Next Article in Journal
Fractal Dimension Calculation and Visual Attention Simulation: Assessing the Visual Character of an Architectural Façade
Next Article in Special Issue
Extending the Architecture of Collective Housing: Towards Common Worlds of Care
Previous Article in Journal
Capacity Assessment of Existing RC Columns
Previous Article in Special Issue
Review of Design of Collective Housing in the 21st Century
 
 
Due to scheduled maintenance work on our servers, there may be short service disruptions on this website between 11:00 and 12:00 CEST on March 28th.
Font Type:
Arial Georgia Verdana
Font Size:
Aa Aa Aa
Line Spacing:
Column Width:
Background:
Article

Crisis and Transition: Forms of Collective Housing in Brussels

Faculté d’Architecture, d’Ingénierie Architecturale, d’Urbanisme (LOCI), Université Catholique de Louvain, 1060 Brussels, Belgium
*
Author to whom correspondence should be addressed.
Buildings 2021, 11(4), 162; https://doi.org/10.3390/buildings11040162
Submission received: 27 February 2021 / Revised: 6 April 2021 / Accepted: 9 April 2021 / Published: 14 April 2021
(This article belongs to the Special Issue The Architecture of Collective Housing)

Abstract

Focusing on the Brussels urban environment, this paper investigates spatial mutations produced by key critical transitions to accommodate new social and living conditions for collective purposes. Using CAD re-drawings, a systematic comparison of residential schemes identifies the evolutionary mechanism that connects manifold changes in the city and domestic spaces. This analysis defines a genealogical framework to observe how specific residential archetypes have shaped Brussels’ sociocultural identity and distinguishes contemporary housing initiatives dealing with current and future challenges. While during the 19th century, interwar, and postwar periods, spatial features evolved from individual, single-family houses to residential schemes bearing collective, egalitarian dwellings, contemporary initiatives are relevant for their experimental solutions, translating into housing design new collective ways of living. This trajectory demonstrates that collective housing provides new insights for designing future types of urban housing. Brussels contemporary housing can shed light on the fact that current crises generated by urban issues, such as demographic growth, migratory and gentrification dynamics, affordability and the COVID-19 pandemic, are accelerating the transition towards the 21st-century city. Eventually, the Belgian capital now has the opportunity to combine two crucial questions, such as typological innovation and sustainability, to successfully approach the coming transition period from social and environmental perspectives.

1. Introduction

Etymologically, the English word “crisis” originated from the Greek verb krinein, which meant “to separate, judge or decide” [1]. Thus, originally the verb, as well as the noun krisis, did not have a negative meaning per se. Krisis signified the preference of one alternative over another. The shift towards the decidedly negative value of the term “crisis”, which is now customary, occurred only in modern times. Today it refers to “times of difficulty, insecurity, and suspense”, particularly in political, social, and economic fields [1].
When dealing with the concept of “collective” in urban planning, it is possible to see that crisis has, throughout urban history, marked the urban image, which is defined by spatial structures and lifestyles [2]. Hence, the crisis of the early years of the twenty-first century coincides, like others in the past, with the emergence of important urban issues [2].
This paper connects the concepts of “crisis” and “collective” through three fundamental assumptions. First, the unfavorable and beneficial effects originated by crisis can be observed on different scales through a set of spatial features. Second, urban space embodies social practices and cultural identity. Third, social conditions establish individual and collective trends. The hypothesis is that specific critical periods occurring in a city determined specific spatial mutations for housing to accommodate new social and living conditions. Observing these critical transitions, it is possible to highlight how the spatial development of urban housing can exemplify the evolution of the individual–collective relationship that characterizes the sociocultural identity of the city.
Social interactions and the built environment establish a reciprocal influence, which is significant for urban studies [3]. Within the city fabric, building types oversee the identification between ways of life and forms of architecture [4] and implement changes in reality [5]. Due to its representativeness, housing provides valuable information for the disclosure of city transitions [6].
Nowadays, increasing housing projects in Europe are reinterpreting, in a spatial way, social and urban issues through innovative forms of housing, which are specifically conceived for a collective purpose [7]. Amid the major European cities, Brussels illustrates the various connections between housing, urban environment, and social practices. In particular, this city is a prime example, given its variety of housing and, more importantly, its continuing initiatives concerning urban development and housing production.
The aim of this paper is fourfold:
  • To understand, on urban and unit scales, the spatial features of housing models established in key critical transitions throughout the urban history of Brussels;
  • To assess how the social dimensions of “individual” and “collective” mutate specifically in the identified housing schemes;
  • To establish a coherent trend in Brussels housing design to observe contemporary initiatives facing economic and social issues determined by the current crises.
The comparative analysis demonstrates here that contemporary initiatives are both realizing and inciting a series of paradoxes, which affect the relationship between housing and the collective for future transitions. Nonetheless, collective housing offers the opportunity to combine crucial questions, such as innovation, sustainability and the city’s identity, to successfully approach the next transition period.

2. Methodology

From a methodological point of view, this paper investigates the spatial and urban features generated during key critical transitions to infer information on society’s collective nature. This analysis is supported by the typo-morphological concept of “referential housing type”. This concept is defined as the archetypal and most ordinary residential type in a specific place throughout urban history [8]. The referential housing type offers a dynamic approach to urban housing analysis since:
  • It discloses urban development through the main features of residential schemes;
  • Along with its spatial definition, it accommodates a series of sociocultural codes;
  • It provides a reference point for housing in a specific environment regardless of historical periods.
The referential type is distinguished from the concept of “foundation type”, which, in a certain time and place, represents the majority of buildings because it identifies the codified family residence standard [9]. Hence, although a place is characterized by only one referential type, there can be a foundation type for each historical period [8].
By investigating the Brussels case, this paper aims to extend the dynamic approach of referential type to contemporary housing production. Thus, it is structured in two sections.
In the first section, this study identifies the crises occurring in the 19th century, interwar, and postwar periods of Brussels’s urban history and provides a comparative perspective on their housing characteristics. For each period, this exploration examines the critical conditions and, consequently, the spatial changes occurring in the urban morphology and dwelling typology. Therefore, this mechanism provides a genealogical framework to observe how Brussels’ urban identity has been shaped by continuity and discontinuity in specific residential schemes.
Furthermore, in the second section, selected contemporary case studies are broadly investigated to assess their various strategies and accomplishments. The aim is to trace the necessary conditions for understanding and positioning contemporary housing production concerning the archetypal scheme determined by the genealogical framework.
In both sections, case studies are examined using CAD re-drawings, which are executed on the same scale and with a homogeneous graphic code.
Eventually, the outcomes summarize the spatial features of the analyzed cases, allowing us to infer how the residential space impacts domestic life and social practices. They also point to trends occurring in the examined crisis periods, particularly concerning the ability of housing schemes to produce and facilitate the collective dimension of living habits. Thus, the evolution of housing types follows transitions that have taken place in social practices, ultimately generating new knowledge on contemporary practices and key clues for addressing housing design.

3. Housing Genealogy

3.1. 19th-Century Transition

The 19th century in Brussels can be considered a period of incertitude [10]. The combined actions of the city’s bourgeoisie and those who engendered the industrial revolution transformed and broke up the Brussels urban structure [11].
The are several reasons behind these transformations [12]:
  • In 1836, Brussels became the capital and headquarters of the central, financial, and cultural administration of Belgium;
  • Industrial development is diversified in several sectors of activity—mechanical and chemical industries were set up along the canal and the Senne;
  • In 1835, the first railway was inaugurated, foreshadowing new means of transporting materials and people;
  • This development also concerned rapid and public transportation, with the subsequent development of tramways enabling and stimulating the development of the city’s suburbs
  • Population growth was witnessed in the majority of the city’s neighborhoods.
Further elements also contribute to the process of transformation and expansion of the urban form: the abolition of the grant in 1860, the new legislation on expropriation applicable by zones for beautification and sanitation, and the booming economy [11]. Additionally, the requirements linked to the bourgeoisie’s economical concerns and the process of industrial modernization create the conditions for a new process of urbanization, which is based on a deep infrastructural intervention to transform the Brussels territory into an urban agglomeration [13].

3.1.1. Concentric Development and the Green Urban Block

In the second half of the 19th century, the periphery’s urbanization was a phenomenon linked specifically to the city development promoted by the new business bourgeoisie [11]. Due to the 1844 law, road planning in the Brussels region became the source of land use planning [13].
In 1866, Victor Besme proposed a plan for Brussels’ urban planning. Its morphological principle was based on new road and transportation infrastructures [14] and specific features for the ordinary city fabric, especially concerning the alignment and height of buildings [15]. The city was expected to grow in successive belts, within which each stratum is defined by its relation to the city center [16]. Besme’s urbanization was structured according to closed urban blocks along new urban axes, either by adding to existent districts or developing new ones. They were organized according to a standardized division of long and narrow plots, in this way defining the terraced house typology [8].
The housing units that made up the block give form to its outer periphery, establishing, through its front and rear façades, a clear and closed boundary between public and private spaces (Figure 1). The houses’ maximum height reached a dimension between 10 and 15 m, in direct proportion to the width of the streets. Housing contiguity was partly governed by walls that built the urban layout and extended outdoor areas to delineate private gardens. Cumulatively, they form an interior compound, visually shared by the inhabitants of the block. The greenery in the middle of Besme’s urban blocks transformed the dense city fabric radically, reducing the land coverage ratio and increasing the surface area for open spaces.

3.1.2. Maison Bruxelloise Type

Typologically, Besme’s plan adopted the specific maison bruxelloise type as a basic unit for the densification of Brussels’ neighborhoods. Considering its representativeness and resilience within the ordinary city structure [17], it was defined as Brussels’ referential type and was identified by a recurring set of spatial features [8]. The inner space of the maison bruxelloise was arranged according to a longitudinal division that separated the house into two distinct segments, in 1/3 and 2/3 ratios (Figure 2). The primary rooms were distributed in a row (enfilade) that occupies the wide longitudinal section of the house. They displayed regular, generous dimensions and provided several options for circulation, enabling polyvalent domestic uses. The secondary rooms occupied the narrower section and group together the services and staircase.
Although working-class housing was not envisaged in Besme’s plan [15], the migration to cities caused by the search for new employment and the subsequent social and hygienic issues resulting from the increasing concentration of workers created the conditions for the first working-class initiatives during the 19th century. Later, the 1889 law concerning housing policy for the working-class set new guidelines for a standard plan, which simplified the set of features of the maison bruxelloise type, excluding the middle-class reception and service functions [15]. Thus, as a consequence of the industrial development and the new social structure that emerged in the 19th century, the bourgeois and working-class variations of the maison bruxelloise type shaped the archetypical residential space within Brussels’ urban fabric.
Furthermore, the maison bruxelloise type produced the exceptionality of the Brussels case. When industrialization spread to the European continent, multi-family apartment blocks were built in most European cities [18,19]. On the contrary, the single-family townhouse constituted the dominant domestic form in the Brussels development.

3.2. Interwar Transition

A complex situation of crisis characterized the interwar period. At the end of the First World War, industrial production collapsed, and inflation was galloping. Despite a real renaissance in various industrial and trade sectors in 1925, the stock market crash of 1929 was followed by a few years of deep crisis. The economy only gradually recovered during the 1930s [20]. Like in most European cities, housing was one of the most important issues in Brussels in the Interwar period [21]. Although the city did not suffer direct war damage, the demand for housing increased sharply due to the influx of people who had fled devastated areas [20]. This housing issue could be broken down into three components:
  • A significant housing shortage;
  • The insalubrity and lack of comfort of pre-existing speculative housing;
  • The rising prices of building materials and construction sites.
Since the initiatives of the garden-cities located in the Brussels outskirts ended around 1926—producing remarkable but exceptional achievements [15]—the real emergence of the block of flats in the 1930s contributed more significantly to developing urban housing. This transition corresponded to the return, with the economic crisis, of the bourgeoisie to the city to live closer to work [20].

3.2.1. Urban Continuity and New Skyline

In contrast to the referential type implemented by Besme’s plan, the interwar blocks of flats in Brussels did not follow a specific master plan. However, they were built in strategic urban locations, such as along avenues and boulevards, public squares, and urban roundabouts. In terms of layout, the block of flats was designed to connect to the existing plot of land and coexisted with the pre-existing fabric of Brussels housed (Figure 3). At the same time, these buildings represented a criticism concerning urban alignments, the skyline, and the uniformity of the built environment.
During the interwar period in Brussels, modernist architects believed in revolutionizing human societies [22]. In particular, CIAM conferences—especially the 1930 edition held in Brussels [23]—greatly prompted housing production and had a significant influence on architectural design [24,25]. Brussels modernist architecture rejected both urban morphologies and housing types that reiterated traditional conventions. In addition to new hygienic and comfort requirements concerning light and air, one of the most important points was the possibility of constructing high-rise buildings [20]. Hence, the block of flats exceeded the referential height of 15 m, to become a clear urban landmark and offer a different skyline than that of the traditional city of Brussels. Furthermore, in interwar Modernism, open green plots, complemented by collective facilities, replaced the individual gardens of referential blocks. These large green areas were intended as extensions of the limited surfaces of modern dwellings.

3.2.2. Block of Flats

After the First World War, war demolitions, new comfort improvements, the disappearance of servants in the domestic life, and the diffusion of the car as a private means of transport favored the block of flats in the transition period that followed [18].
New construction techniques—including concrete and steel framing—and developing the elevator made it possible to carry out high-rise constructions under good conditions of safety and efficiency. Modern technical installations, such as central heating and good sanitary facilities, equipped apartments with the necessary private comfort. At the same time, beyond the simplification of domestic life, the centralization of collective utility services offered economic and practical advantages [20].
These innovations were also reflected on a spatial level [26] (Figure 4). The entrance hall and the stairwell with the elevator were common areas that serve as the business card of a building and, depending on their size, reflect social rank. Buildings also included other common zones, such as laundry rooms and garages. Apartments defined a clear separation between the private domestic sphere and public areas. There were several spaces, each with a well-defined function, without unnecessary rooms. In contrast to the verticality of the Brussels house, there was a marked separation between the day and night rooms on the same level.
In the 1930s, apartments for the lower classes also flourished, owing to the creation of the Société nationale des Habitations à bon marché [20]. They were broadly similar to luxury apartments, but the emphasis was placed on simplicity, the absence of lifts, and hygiene. Nonetheless, common amenities from the bourgeois block of flats, such as hot and cold running water, central heating, and a modern kitchen, were still implemented.

3.3. Postwar Transition

The postwar period greatly diverged from previous transitions by seeing modernist precepts being implemented in Brussels on a large scale [24]. Along with the economic aid provided by the Marshall Plan in Western Europe, the conjunction of a series of factors that followed the Second World War enabled the accomplishment of the modernist project [27]. First, initiatives were taken to establish a national welfare state. Second, the construction industry readapted the serial industrial apparatus developed during the war. Third, war-torn territories offered the long-coveted tabula rasa. Moreover, the absence of a well-elaborated legal framework and the implementation of the Urban Planning Act only in 1962 influenced postwar initiatives [28].
The 1958 World Fair marked a turning point since the state apparatus set standards for its reconstruction ambitions and endorsed modernist architecture with a technocratic vision of reconstruction. Brussels underwent a vast modernization process [29]. The capital began playing a major international role as the provisional host of the European institutions in 1958 and, in 1967, as the headquarters of NATO.
The ideas of normalization, standardization, and industrialization, which had already been promoted before the war by modernist architects as necessary tools to deal with the need for housing, became fundamental postwar precepts. Most paradigmatic postwar production occurred between the 1950s and the 1970s [30] when private developers executed a series of operations in the housing sector. They produced housing of exceptional homogeneity that clearly impacted collective consciousness [18]. Due to the absence of legislation on construction, or by simply ignoring them when they existed [30], real estate developers negotiated directly with local authorities, realizing large-scale interventions characterized by an economic laissez-faire approach in the second belt development of the city. Hence, urban planning from 1955 to 1979 represented the quintessence of unrestrained liberalism [31].

3.3.1. Urban Discontinuity and Modernist Euphoria

In the housing field, two major laws promoted private property—Law De Taye, 1948—and encouraged public housing—Law Brunfaut, 1949. A few years later, another regulation—Law De Taye, 1953—was passed to fight against unhealthy living conditions [28]. Furthermore, from 1956 onwards, state interventions were limited to developments of 25 or more dwellings. This series of laws led to the construction of large estates. Postwar urban strategies rejected the typical city structure to maximize direct sunlight and natural air according to the modernist theories of solar orientation [23,32].
In the Brussels city center, working-class neighborhoods were demolished, and, on the outskirts, large properties were sold to provide space for freestanding buildings set in green surroundings. Housing was grafted directly onto a newly built road infrastructure, allowing people to live among greenery while directly staying connected to the center. High-rise construction was associated with the functional division—housing, working, transports, and leisure—that was defined in CIAM conferences. The Brussels faubourgs offered an ideal territory for high-density residential interventions (Figure 5). While they were close to the city core, their territory was not yet parceled out or tailored to specific housing. It was, therefore, reserved for large aerated residential estates, composed of spacious, freestanding high-rise slabs.
There were three main consequences to this spatial discontinuity: the destruction—of the so-called “Brusselization”—of important urban areas in the name of modernization, developing a serial industrial apparatus to support housing typification and the construction industry, and the conception of a new experimental social practice, developed by the spatial idea of the “machine à habiter”. This trend led Brussels to a period of euphoria in housing construction.

3.3.2. High-Rise Slab

Initiatives by private developers characterized postwar operations. Their residential buildings repeatedly adopted the same scheme [24]: a maximum of 10% of the plot was built on; the buildings followed a north–south orientation, with narrow balconies along the façades; and their height was limited to 12 floors above an underground garage. This configuration was replicated in slab formation according to the limits of the plot and then in identical buildings throughout the city. Thus, the high-rise slab formation allowed construction standardization and economization to be pushed to their limits.
From the typological point of view, four identical flats, often mono-oriented, were organized around a minimal distributive core (Figure 6). Observing the interior arrangement, housing units were less innovative than the types observed in previous transition periods. Night–day separation and the compact arrangement of rooms were founded on finding the most efficient scheme to maximize the number of built square meters and, consequently, profit.

4. Outcome I: From the Individual House to the Egalitarian Dwelling

The spatial features of the maison bruxelloise reveal an individual character centered on the single-family property and the uses of the bourgeoisie [8]. Despite the polyvalent interior spaces offered by their regular dimensions, the domestic life of the bourgeois family was determined by vertical circulation and its related spatiality. Privacy is progressively nuanced from the room facing the public street to the one on the rear side, facing the private garden. It then substantially increases through the maison bruxelloise’s typical vertical configuration. Hence, spatial separation is linked to domestic intimacy and to the hierarchical structure of the household. Since the maison bruxelloise was the basic unit of Besme’s urban development, it embodied the individual nature of the sociocultural image of the city, implicitly favoring the existing social structure and strengthening it in its project. While the maison bruxelloise is characterized by its individual nature, its entangled relationship with the city structure, using parcel contiguity with other units, creates a collective dimension on a neighborhood scale.
The transition from the Brussels house to the block of flats consisted of the Brussels bourgeoisie’s gradual abandonment of ownership of a single-family house, proceeding to adapt to life in an apartment [15,18]. This transition represents a new social form and offers a new collective dimension on a domestic scale, which is strictly linked to life in a single-story dwelling [18]. While domestic life in the maison bruxelloise used to be organized vertically, the single-story dwelling is conceived according to a horizontal model. The innovative schemes executed in interwar housing changed the intimate domesticity offered by the individual house, introducing with them the concept of sharing the diversity of an apartment’s life. Hence, the private stairway of the house transformed into the common stairwell of the block of flats. This collective character is at the same time evident in the floorplan and in the innovative idea that one can build indefinitely in height.
Private postwar initiatives realized on an urban scale, the interwar utopia of new modern dwellings for all social classes. New living standards, in terms of the domestic equipment and living space per person, increased towards building egalitarian dwellings. Nevertheless, collective amenities were not implemented in the majority of the executed projects [24], and collective practice was limited to the common use of circulation spaces—such as stairwells and galleries. In addition, the social vision of this postwar transition was based on the normalized dimensions of everyday spaces, regulating the household through standardized construction methods. This aspect influenced the common aptitude of residents to perceive and associate postwar domestic life with rigid and repetitive housing design. Therefore, modernism prevented any possible accommodation of variations in cultural conventions and their subsequent practices, leading, in the long run, to the failure of postwar design to address the diversity of society and generate urban inclusion [33]. While the collective nature of architecture and urbanism was prevalent in prewar design, the transition period post-1945 generated projects of egalitarian individualization.
The trajectory of social practice is also confirmed by the construction of the city itself. Starting in the 19th century, residents preferred residential areas outside the inner city. This centrifugal movement took on massive proportions in the postwar period, as middle-class families entered a period of social ascension, determining their exodus to the suburbs [34]. While the individual nature of maison bruxelloise was able to activate collective dynamics of vicinity within resilient urban blocks and interwar buildings adopted collective residential schemes on the same neighborhood scale, postwar high-rise design enlarged this scale by adding more open spaces within the ordinary fabric of the city. Though these new large green areas were designed for collective or public purposes, they increased the mutual distances between dwellings exponentially and consequently decreased the opportunities to collectively develop social practices.
From the 19th century onwards, the critical transitions that took place in Brussels urban housing followed a clear evolution concerning socio-spatial intersections. At the same time, they provoked specific housing transformations, giving rise to the following trends:
  • The city progressively moved away from its compact and dense configuration towards an urban sprawl;
  • Urban districts gradually increased their monofunctional environment;
  • Spatial features progressed from the single-family house to collective housing models;
  • Departing from low-rise schemes, typological layouts were progressively determined by high-rise arrangements;
  • Domestic life in the residential unit changed following the increasing transition from polyvalent spaces to normalized dimensions, preventing an eventual evolution in social practices; and
  • The concept of society turned away from a social-class-oriented vision towards an egalitarian one.

5. Contemporary Housing Initiatives

5.1. Envisioning Bruxelles 2040

In Brussels, housing production has become a central issue over the past two decades, characterized by crisis circumstances. While the demand for housing has increased, affordable real estate has dramatically shrunk, affecting the middle and lower classes directly [35]. Contemporary housing initiatives and densification are strictly linked to the demographic growth that is predicted during the period 2020–2040 [36,37] and the dynamics of gentrification [35,37].
The economy’s globalization, the city’s internationalization and contemporary changes in the salary and jobs model are phenomena with great bearing on the spread of gentrification in Brussels. At a metropolitan scale, the role of migratory processes may be summarized in a few key features [38]. First, a significant proportion of inhabitants leave the poor territories of the city. Second, immigration from abroad is concentrated in the dense central parts of the city. Third, suburbanization from the poor area only represents a small percentage. Fourthly, the rich quadrant of the city is neither a destination for immigrants from abroad nor for those coming from the poor segments. These exoduses are compensated for by the arrival of new incomers, with the result that the migratory movements contribute to demographic pressure in the urban areas. Furthermore, public policies aim to encourage the arrival of new middle-class residents [34,37,38,39], to increase the social mix in the central neighborhoods. In addition, the working-class households have a demographic profile similar to the middle classes: households with young children [39]. Hence, the demographic pressure on the already dense territories is important, resulting in the multiplication of small dwellings. These inequalities lead to a structural rise in the cost of housing in particular. Thus, gentrification in Brussels often consists of a “slow” transformation of the city’s neighborhoods, spawning new areas that are “trendy” rather than “chic” [34].
The study Brussels 2040 [40] highlighted the main priorities and actions to be implemented on the territory of the Brussels metropolitan area if urban planning, housing, and infrastructure are to be envisioned in a sustainable way [41]. To develop a coherent distribution of housing through a typologically varied urban territory, the area along the Brussels canal was identified as a potential axis structuring the city from South to North. This essentially industrial zone, a region of the predominantly lower-income population that is today referred to as “poor crescent,” is considered as a fabric to be densified and transformed through housing and in conjunction with mixed-use buildings.
In 2013, the Regional Government implemented a new master plan for the 14 km-long canal territory. At the core of the development interventions, there is a mix of urban functions, economic strengthening, and a potential of 25,000 housing units to meet the demographic boom and the demand for new housing [42]. In opposition to the city planning of previous transition periods, contemporary urban development is, therefore, not based on a global scale but focused on specific key areas.
The Brussels territory is considered to be close to a “horizontal metropolis” [43], a concept that emerged in the Brussels 2040 study defining an extended urban space structured by complementarity, loose hierarchies, and territorial synergies [44]. In this urban space, the relationship between center and periphery gives way to the notions of isotropy, redistribution, and horizontality.
Within the framework of these studies and concepts, it is possible to identify four main axes characterizing contemporary interventions in Brussels.
  • New urban operations are expected to take into account housing requirements in light of recent changes in demographic structures [45], such as reduced family size, the population becoming both younger and older, and the diversity of households [44]. Brussels housing is expected to produce a heterogeneous built environment, which would be able to equally accommodate its diverse population.
  • Urban densification involves a growing need for open spaces and public infrastructure. Considering that the maison bruxelloise included private gardens for residents and that the relationship with open spaces of subsequent Brussels housing types did not show a significant improvement, the present demographic complexity requires more diverse and “programmed” open spaces to be developed alongside the existing metropolitan urban parks.
  • The integration of working and productive spaces in the urban fabric is an explicit ambition of the Brussels-Capital Region [42,44]. Therefore, mixed-use housing projects are the core of strategic urban development, especially along the canal. This aim can be achieved by promoting new typologies that combine the different demands of working/productive and residential activities in a livable way.
  • Sustainability is one of the most pressing issues of contemporary housing construction. Several recent actions have shown their growing importance. First, from 2015 onwards, the obligation to build passively has been established for housing projects. Second, increasing projects are asked to adopt recycling and reusing in developing suitable living environments.
To meet these goals, contemporary projects have focused on developing new forms of collective housing. Although the idea of the collective has become, in the last decade, a central topic in housing design across Europe [7], Brussels is unique in terms of the variety of strategies adopted in housing initiatives [36]. Present and future challenges for the Brussels 2040 project represent a new transition, with housing design acting once again as a key intermediary agent between a crisis condition and a new collective dimension of society. The current critical transition is expected to provide models that can pave the way to high-quality, sustainable, and affordable housing. This exceptional circumstance, therefore, applies to a varied number of initiatives and housing typologies in equal measure. Within this existing variation, we can observe three prevalent types of strategies, which aim:
  • To recycle urban brownfield areas;
  • To revitalize urban blocks and renovate rundown buildings;
  • To reconvert office or nonresidential buildings into housing.

5.1.1. Recycling Brownfield Areas

In the policies and master plan envisioning Brussels 2040 [40,42], large-scale projects along the Brussels canal are considered strategic to reactivate brownfield sites. Due to their former industrial use, the available large plots operate as catalysts to develop more extensive schemes rather than the division of the territory into a series of smaller plots [46]. The large dimensions of project sites are considered ideal for transforming the waterway through mixed-use residential developments.
Located on the site of the former national postal service Bpost, the project “Canal Wharf” is one of the first operations on the east side of the Brussels canal [47]. Adopting the general guidelines of the Canal Plan, the urban configuration consists of four multi-story buildings that are articulated around a garden accessible to residents (Figure 7).
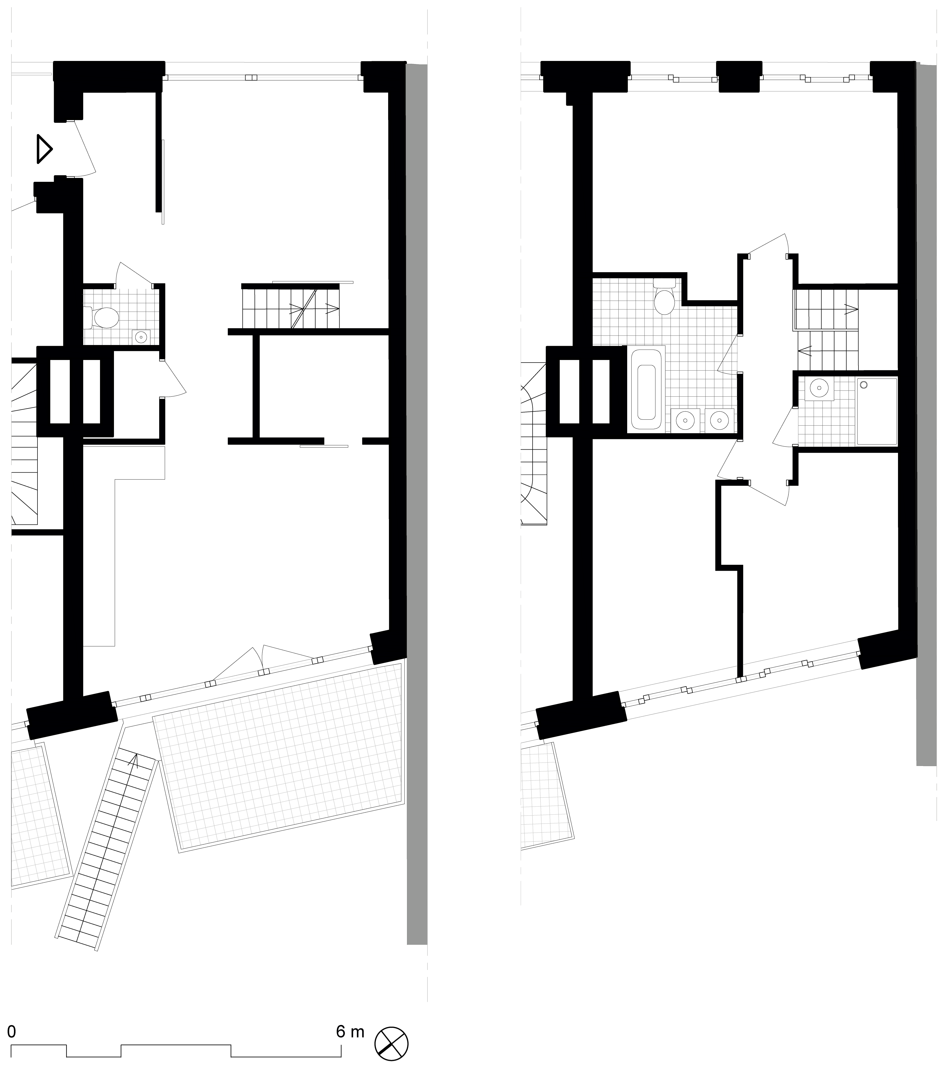
The design of the buildings was granted to three architectural firms—Stéphane Beel Architects, 51N4E, and architectesassociés+ [47]. While the urban layout is expected to provide a collective purpose to the project, the typological scheme adopted by one specific building contradicts this aim. The building designed by 51N4E architects comprises two dwelling types that are drastically pragmatic (Figure 8). First, one-bedroom apartments with a loggia/winter garden give onto the Eastside public park. The spatial invention of this dwelling type resides in the possibility to transform the loggia space into a third room for the apartment, generating added value in terms of spatial flexibility. Indeed, in the long-term, this loggia could be glazed in, depending on future inhabitants’ wishes [47]. Second, studio apartments with a balcony face the outdoor collective garden on the canal side. In contrast to the one-bedroom units, they have a shorter depth and are mainly oriented along the length of the façade. This setup is repeatedly organized by a circulation corridor, which runs longitudinally in the middle of the building. Consequently, both dwelling types display a mono-oriented shape, reinforcing the disparities between the apartments on each side. In addition, the design to integrate social concerns was limited to common amenities on the ground floor, with circulation corridors and balconies to be shared among neighbors.
On the West side of the canal, the site “Tour and Taxis” has grown from the abandoned Brussels customs area into a fully-fledged new neighborhood of 20 hectares, accommodating new dwellings, office buildings, sports infrastructure, a large public park, and an emblematic historical heritage—including the Royal Depot and the Gare Maritime [48]. Residential schemes were awarded to the architectural firms Sergison Bates architects, noArchitecten, and AWG [48]. The project consists of a mix of multi-apartment buildings to simulate the variety of the typical urban block. However, its urban layout is arranged according to a fragmented articulation (Figure 9). From a typological point of view, the dwelling units are characterized by a heterogeneous arrangement (Figure 10). First, the stairwell at the core of each building distributes between 3 and 6 units per floor, enabling a combination of both mono and double-oriented units. Second, the interior space of all dwelling types shows an absence of spatial flexibility in terms of dimension and employment. Third, circulation space and hallways occupy an important percentage of the available surface, preventing any open space or direct double exposure.
Comparing both selected projects, common spatial features in this contemporary strategy can be gathered:
  • Taking inspiration from the concept of “open block”, as defined by Christian de Portzamparc in the 1980s [49], densification is considered as a tool to break open the urban block. While this aspect increases urban porosity in terms of accessibility and integration of large surface areas for green open space, it goes against the ordinary, continuously built morphology of Brussels;
  • The analyzed projects do not adopt configurations that reinterpret the peculiar urban structure of Brussels. The large dimensions of the plot and the lack of the parcel structure give the design complete freedom. As a result, the design consists of non-contextual schemes, characterized by a complete architectural autonomy that could be executed in any other city;
  • Concerning the referential type, characterized by a standard ratio and flexible spaces, both contemporary projects propose conventional schemes determined by standard minimal sizes. While the analyzed units display low flexibility for domestic life, they integrate outdoor spaces—such as loggias, balconies, and terraces—as fundamental elements to their arrangement.

5.1.2. Revitalizing the Urban Block

Since the beginning of the 1990s, the authorities of the Brussels-Capital Region have favored initiatives in the underprivileged territories of the city, in particular through the so-called “Neighborhood Contract” programs. These policies are based on the idea that spatial segregation reinforces social inequalities [37] and on the notion of proximity to reinforce the attractiveness of the living environment through a polycentric development [50].
In Brussels contemporary housing, neighborhood contracts define the framework for the design of one-off projects to revitalize the residential function and public space within the traditional urban fabric [51,52]. Their objective is to improve the living conditions of resident households and favor the social mix, which was identified as being a source of social problems in the neighborhoods concerned [50]. Hence, such housing projects are characterized by their small scale and direct confrontation with the built environment of the urban fabric maison bruxelloise.
Even though its impact remains limited in terms of numbers [53], co-housing is a fairly new trend in the Brussels one-off projects included in neighborhood contracts. The term “co-housing” indicates housing forms characterized by the sharing of certain living spaces and a participatory dimension to favor the creation of community life.
The nonspeculative nature of co-housing projects allows residents to be involved through self-management, promotes mutualization and collaboration, and combines mixed-use and mixed-income in their configuration [54]. Hence, co-housing is considered a suitable model to secure the fundamental criteria for a sustainable lifestyle [7,54]. Energy-efficient construction is here seen as necessary to reduce the cost of housing. Co-housing aims to achieve social cohesion and inclusion, caring for an aging population, organizing the community, and providing gender and child-friendly environments.
Furthermore, it brings into practice solutions for economic affordability. On a local scale, property prices have doubled in the last ten years, and the real estate market supply does not match the population growth, diversity of demand and average incomes [55]. Most of the recent co-housing projects in Brussels are located in dense working-class neighborhoods along the canal area where the affordable housing crisis is particularly acute [53]. In this context, co-housing has the advantage of offering more living space at a cost similar to that offered by the conventional residential market. This primarily economic logic is represented by two types of interventions [53]. The majority of co-housing projects target underprivileged households. However, other projects are mainly “self-promoted” cluster housing units, initiated and managed by the residents themselves.
The housing complex “Brutopia,” conceived by Stekke + Fraas architects, consists of two apartment buildings developed along the facing sides of the urban block and around a central garden (Figure 11). The built volumes follow the alignments, heights, and even the building depth of the pre-existing urban block, characterized by typical parcels of the referential type. At the same time, its residential scheme displays three innovative features that contribute to housing design practices in Brussels.
A typological mix combines duplex apartments distributed according to a circulation gallery and single apartments that are accessible by the stairwell. Positioned on the street sides, the two-meter-wide gallery allows duplex apartments to be oriented towards the central garden (Figure 12). Despite their variety, the apartment layouts remain mostly conventional, displaying a traditional day–night division. However, daily spaces—in particular an open, large, and well-lit kitchen—are proportionally bigger than in traditional dwellings. Conversely, bedrooms are usually designed according to normalized standards, limiting activities other than sleeping.
Furthermore, the collective garden reinterprets and redesigns the neighboring private gardens of referential types. Residents share common amenities, including a laundry room, a large living room with a kitchen, and an underground garage for bicycles and cars. Moreover, additional functions are provided to ground-floor residents. The result is that polyvalent spaces accommodate at times different workspaces, public offices, and rooms for social services [56]. Thus, the collective garden enables a multipurpose ground floor, connecting the values of the street’s public domain and the dwellings’ private ones.
Both mentioned features indicate that the “Brutopia” design was managed through an inclusive approach, which has allowed both architects and residents to make decisions related to the project’s pivotal stages [55]. On one hand, discussions on the general scheme and its shared spaces were held collectively and agreed on by all residents. On the other hand, each household worked with a specific architect to reach decisions on the interior design of the domestic space. As a result, this process has reinforced, in a dynamic way, the collaborative involvement of residents in the collective perspective of the project and has ensured its affordability [53].
These architectural and urban features make co-housing a new housing model that can answer to the peculiar characteristics of the Brussels urban environment and its recent social trends. Thus, the qualities of co-housing, usually demonstrated in studies in the field of humanities [53,57], have an evident impact on a neighborhood scale:
  • Owing to its “neighborhood contract” framework, this model guarantees the continuity of the existing urban fabric and adds new dynamism to the public domain, developing a high-density neighborhood with a mixture of target groups and functions. However, for economic reasons, multi-residential buildings are built instead of individual houses that may reinterpret the maison bruxelloise.
  • Dwellings are designed to suit the specific domestic needs of residential households. Projects consist of a combination of housing units, which reinterprets the typological and social diversity that characterize the Brussels referential block. Nonetheless, they do not constitute innovative types in terms of interior spatial features.
  • Collective amenities, multipurpose spaces, and participative approaches prompt neighborhood dynamics. Their small scale can actively contribute to the local economy, promoting social interaction and affordability and creating a sustainable environment for further urban developments.

5.1.3. Reconversion of Nonresidential Buildings into Housing

In recent years, a third approach also has been taken to foster housing construction in Brussels. In the second half of the 20th century, the economy of the Brussels region became highly outsourced, resulting in a sharp increase in office spaces [58,59]. Today, on the contrary, the trend is the de-densification of business districts and the conversion of unoccupied office buildings [58,60,61].
There are a number of reasons for the conversion of vacant office buildings into housing:
  • The impact of the 2008 financial crisis on the commercial real estate sector;
  • The introduction of new technologies and communication tools that reduce companies’ space requirements;
  • The flexible use of workstations and the resulting reduction of office space per employee;
  • The digital and sharing economies, which make it possible for services and infrastructure to be shared, for instance, in the form of coworking spaces;
  • The high demand for housing in urban areas due to population growth, shrinking households, and changing housing preferences;
  • The shortage of well-situated project sites for residential real estate development.
This conversion strategy shows that a crisis situation not only may lead to deterioration and vacancy of buildings but also presents opportunities for housing projects [58,61]. In line with the goals of Brussels 2040, reconversion projects employ mixed-use design against zoning monofunctionality [61] and address key contemporary sustainability issues. The reconversion of existing buildings prevents the disappearance of scarce open spaces and offers solutions for transforming urban wastelands. The reuse of existing volumes also reduces the amounts of energy and construction waste generated by demolition and new building. Furthermore, through the reconversion of unoccupied buildings, the problem of affordable housing shortage in Brussels urban areas, where the demand is high, can be addressed [61]. Finally, the regular concrete load-bearing structure of office buildings is often very flexible, being easily adapted into housing.
Amid the small number of projects realized this far, this reconversion strategy has especially focused on high-rise office buildings. Indeed, their vertical development allows the compactness envisioned for the city to be established [62].
A project by Bogdan & Van Broeck, called “The Cosmopolitan”, converted the former Assubel office building in the heart of Brussels into a residential tower [63]. Situated in the old quay district (Figure 13), which was built during the Middle Ages for the inner port of Brussels, this squat 15-story office tower was originally constructed in the 1960s by the insurance company. Its unforeseen scale disrupted at the time the continuous urban fabric of filled-in docks.
Since the building’s concrete structure was riddled with asbestos, it would have been faster and cheaper to raze the tower and start construction anew [63]. However, by preserving the original concrete structure, the project has had several benefits. First, calculations have demonstrated fewer construction costs and CO2 emissions in the production and transportation of building materials [63]. The existing skeleton also allowed for an open and freely adaptable plan. Additionally, with the building bearing a height of over three meters between floors, architectural design was driven towards a mixed-use project, creating coworking spaces and small shops. Finally, the space freed up by drastically reducing the number of parking spaces was dedicated to greenery, encouraging sustainable public transports, cycling, or soft mobility.
The tower building offers small housing units, such as studios and one-bedroom apartments, as well as large apartments, up to three bedrooms, and two penthouses on the top floor (Figure 14). On both east and west sides, wide terraces for all apartments have been installed along the building’s entire length. By means of a central longitudinal corridor, all dwellings are mono-oriented and adopt a pragmatic scheme based on modular dimensions.
Therefore, on a spatial level, the conversion of office buildings into housing bears the following recurring characteristics:
  • Given the lack of newly built volumes, it is possible to consider functional densification on a neighborhood scale through the mixed program characterizing the projects;
  • Despite the free plan and flexible spaces that the load-bearing structure can potentially offer, reconversion projects do not implement innovative distributive and typological solutions. To preserve the existing built volume, the design maintains the existing circulation, resulting in apartments that have a hotel-like configuration;
  • Despite their intention to produce collective housing, reconversion projects provide a limited number of common spaces. They are often limited to circulation spaces, which, despite the large available surface area, are not designed for collective use. However, the generous floor height enables potential spatial polyvalence and flexibility in mixed-use.

6. Outcome II: Collective Housing Experimentation

Contemporary housing initiatives in Brussels are relevant for their design, which embodies different interactions between spatial and social dynamics. While these initiatives share the aim to design housing schemes for new collective ways of living, the city may also be considered as an experimental ground on which different types of spatialization can be tested. This leads to two fundamental questions: Is it possible to infer general trends from contemporary urban design experimentations? How do new domestic attitudes and social cohesion practices impact contemporary design strategies?
Densification in Brussels does not follow a global vision. Since land for urbanization is scarce, collective housing is embedded in a discourse of higher densities associated with a better quality of architecture and living. Contemporary projects are conceived as urban fragments to be inserted into the built environment, interpreting urban densification as an added value [64]. Larger densification projects are developed on parcels of land that are freed up when other functions cease to be operational. Small-scale densification occurs through projects that have a considerable resilient impact on a neighborhood scale and the economy. Despite reconversion projects increasing resident numbers, its population density remains low when compared to residential areas. In all three analyzed cases, there is a strong relationship between housing and the workplace, which acts as a driving force for densification and stimulates the urban economy. One possible reason behind the acceleration of these strategies is the perpetuation of forms of work associated with housing on a large scale, a process that has definitively been expedited by the COVID-19 pandemic.
Additionally, the mix of uses, purposes, services, and facilities in contemporary collective housing initiatives is seen as a strategy against the urban monofunctionality that characterized postwar developments in Brussels. Implementing a functional mix within the compact city aspires to re-establish a varied urban fabric, which activates and intensifies, using density, new and existing social dynamics. This is a strategy that embodies the concept of “urbanity” [65]. With regard to Brussels urban planning, this concept is two-fold. First, contemporary initiatives aim to demonstrate the same ambition that historically initiated developing Brussels, when relationships between domestic life and workplaces gave rise to the city faubourgs [11]. Second, mixed-use design embodies the emergence of a generation that favors new forms of housing, ways of working, and public service access, with the boundaries between these elements becoming increasingly rarefied.
The contemporary trend is now establishing spatial variations in dwelling types, as well as in spaces conceived to accommodate diverse uses, actually intensify potential ways of collective living. Thus, nowadays, increasing housing projects experiment with new typological solutions to face economic or social issues currently affecting society. In addition to spatial variety, this typological complexity reflects the search for social diversity and collective practices [50].
In projects currently being executed, typological arrangements are observed as being combined with common and collective spaces, promoting in this way various social practices. Outdoor areas are important focal points for contemporary design, with their usage having the ability to encourage social activities between residents—in collective gardens, for instance—or offer outdoor privacy through balconies/loggias. Access to outdoor spaces and greenery surfaces is becoming ever more crucial, especially in light of the challenging lockdown circumstances caused by the COVID-19 pandemic. Staircases and corridors can also be explored as additional usable spaces for social purposes. Furthermore, residents share amenities inside the building—such as laundry rooms, bicycle sheds, multipurpose rooms, lounges, or kitchens. New forms of collective housing, therefore, emerge, not only providing residents with sufficient private space but also presenting them with the opportunity to enjoy common amenities and spaces for practical comfort and shared tasks.

7. Conclusions: The Brussels Paradox and Opportunity

By exposing the foundations of critical conditions during key periods in Brussels’s urban history, as well as those of contemporary strategies, it has been possible to trace the evolution of urban housing. A critical approach to this historical process is imperative if actions in future transitions are to be conducted with more understanding and insight. New considerations emerge particularly through the comparison of contemporary housing with past housing models (Figure 15). The urban housing evolution observed in Brussels allows four main paradoxes to be outlined:
  • While the maison bruxelloise built the city observing principles of social individuality, transition periods that followed aimed to trace, through the employment of new typologies, a trajectory towards a collective dimension for housing. Today, contemporary design inherits this history and seeks to establish new ambitious objectives for collective housing in urban regeneration and social cohesion. However, contemporary production does not generate a specific collective model;
  • The maison bruxelloise built its collective dimension on a neighborhood scale through large urban layouts shaped by juxtaposed single-family houses. While the interwar period implemented collective configurations on the same scale, it also established the modernist city’s precepts. Progressively, the postwar transition process dispersed the urban scale, limiting its collective nature to the building’s repetitive typological arrangement. Generally, contemporary strategies take such urban approaches to collective housing to the extreme. While projects for brownfield sites and reconversion embody their environment’s autonomy, proposing standard schemes and arrangements, neighborhood contracts define contemporary design according to particular urban characteristics;
  • Despite having different goals, the spatial features of the maison bruxelloise and those belonging to 20th-century transitions were conceived for family units. Conversely, contemporary projects follow the current demographic trend, offering a range of studios and small apartments especially attractive to young couples, singles, and yuppies. These dwellings deliver the highest profit per square meter. The driving force behind this transition fails to offer suitable types for a large range of families with children, especially in the central and more attractive districts;
  • Analysis has shown that each transition period in Brussels produced new spatial features and variations in residential schemes. Despite their ambition to execute new design approaches for domestic spaces, contemporary dwellings are not innovative from a typological point of view. Furthermore, although co-housing projects in Brussels are characterized by an original design process, which considers the real domestic needs of residents, they also do not adopt groundbreaking dwelling types.
The outcomes from past transitions showed how relevant urban compactness is to housing if a collective dimension in social practice is to be reached. While transitioning towards its future, Brussels is being shaped as a polycentric, compact city [44], where the variety of past housing types and contemporary strategies coexist. Brussels’ compact but multifaceted nature also represents the peculiar resilience of its relationship to urban housing variety and urban identity.
According to the original meaning of krisis, the present period of crisis also represents an opportunity. Hence, the concept of “referential type” provides new insights and perspectives for designing future types of urban housing. Brussels can shed light on the fact that the COVID-19 pandemic is accelerating the transition towards the 21st-century city. Given the current crisis, the Belgian capital now has the opportunity to combine two fundamental issues for future changes: urban-cultural peculiarity and architectural innovation.
Brussels’ compact environment consists of past examples—especially the maison bruxelloise and interwar buildings—that define a peculiar urban structure supporting collective living. At the same time, contemporary initiatives, particularly the neighborhood contracts, offer the framework and tools to produce versatile forms of collective housing, which can still retain a kinship to the urban-cultural environment. Within this peculiar urban environment, collective housing can play a key role in terms of sustainability, in particular from a broader perspective involving spatial and social intersections [66]. Today, the evolution of the personal living space and privacy needs depends on a person’s age, life stage, family structure, employment, and economic standing. Owing to its resilient nature, collective housing can create suitable ways to adapt living space requirements to different life stages [53]. As per the statistics on the demographically changing and diversifying population in the Brussels-Capital Region [35,40], the traditional nuclear family will continue to exist, but it will become a demographic minority and be differentiated within the categories of single-parent families and patchwork families [7,53]. This is all the more relevant since contemporary housing projects in Brussels do not consider families with children, who are in search of more suitable and spacious dwellings than those being offered by private developers in the city and more affordable than traditional family homes, to be a target group.
Although recent collective housing experiments are based on a spatial vocabulary [53], this paper’s comparative analysis indicates, however, the necessity to find out collective housing needs architectural innovation to develop typologically groundbreaking dwellings, which may accommodate emerging ways of living. They should, however, still be combined with traditional dwellings. Housing affordability issues in Brussels [35] being considered, advantages resulting from this combination include cost division, shared facilities, and the achieving of a larger density than in traditional housing models. In particular, spatial flexibility is implicitly related to present daily domestic uses. Driven by the digitalization process of recent years and accelerated by the COVID-19 pandemic, the juxtaposition of working and living circumstances requires domestic arrangements with greater flexibility than before.
Brussels housing transition’s greatest potential lies in the connection between diversity on different levels—spatial, social, typological, uses—and a peculiar urban and cultural milieu. The current time of crisis seems to provide Brussels with an opportunity to develop a form of collective housing design in which affordability, social diversity, architectural quality, and outdoor spaces also bring added value to their larger urban context. The analysis of urban housing transitions in Brussels discloses that time is also a relevant factor in the dynamic relationship between habitat and inhabitant. Since social circumstances are, in the longer or shorter term, connected to new spatialities that emerge throughout the history of the habitat [67], it is necessary to fully engage with the large experimental laboratory that Brussels has been and still is today to truly grasp and understand all the elements at play in the transition towards a sustainable and long-lasting future.

Author Contributions

Conceptualization, A.P. and G.L.; formal analysis, A.P.; funding acquisition, A.P.; investigation, A.P.; methodology, A.P. and G.L.; visualization, A.P. and G.L.; writing—original draft, A.P.; writing—review and editing, A.P. and G.L. All authors have read and agreed to the published version of the manuscript.

Funding

This research was funded by Swiss National Science Foundation, grant number 191681. The APC was funded by Swiss National Science Foundation.

Institutional Review Board Statement

Not applicable.

Informed Consent Statement

Not applicable.

Data Availability Statement

The data presented in this study are available on request from the corresponding author.

Conflicts of Interest

The authors declare no conflict of interest.

References

  1. Merriam-Webster Dictionary. Crisis. Available online: http://www.merriam-webster.com/dictionary/crisis (accessed on 12 April 2021).
  2. Secchi, B. La Città Dei Ricchi e La Città Dei Poveri; Laterza: Rome/Bari, Italy, 2013. [Google Scholar]
  3. Devillers, C. Typologie de l’habitat et morphologie urbaine. Archit. d’Aujourd’hui 1974, 174, 18–22. [Google Scholar]
  4. Martí Arís, C. Le Variazioni Dell’identità: Il Tipo in Architettura; Città Studi: Milan, Italy, 1990. [Google Scholar]
  5. Moneo, R. On typology. Oppositions 1978, 13, 23–46. [Google Scholar]
  6. Porotto, A.; Ledent, G. Housing Facing Transitions: Domestic Spaces and Uses Build Brussels. In Proceedings of the 17th Annual International Conference—Housing and the City of the Rchitectural Humanities Research Association, Nottingham, UK, 19–21 November 2020. [Google Scholar]
  7. Schmid, S.; Eberle, D.; Hugentobler, M. History of Collective Living: Forms of Shared Housing; Birkhäuser: Basel, Switzerland, 2019. [Google Scholar]
  8. Ledent, G.; Komossa, S. Referential types as clues for housing design. Urban Morphol. 2019, 23, 125–142. [Google Scholar]
  9. Caniggia, G.; Maffei, G.L. Interpreting Basic Building; Alinea: Florence, Italy, 2001. [Google Scholar]
  10. Martiny, V.-G. Bruxelles: L’architecture Des Origines à 1900; Vokaer: Brussels, Belgium, 1980. [Google Scholar]
  11. Dumont, M.; Lacour, M.; Delhaye, I. Morphologie Urbaine à Bruxelles; Centre d’Étude, de Recherche et d’Action en Architecture: Brussels, Belgium, 1987. [Google Scholar]
  12. Martiny, V.G. La Maison Bourgeoise Unifamiliale à Façade Étroite du 16e Siècle à l’Aube du 20e à Bruxelles. In Nouvelles Approches Concernant la Culture de l’Habitat/New Approaches to Living Patterns; Baetens, R., Blonde, B., Eds.; Brepols: Turnhout, Belgium, 1991; pp. 109–146. [Google Scholar]
  13. Zitouni, B. Brussels: Tracing the agglomeration. City Cult. Soc. 2012, 2, 95–104. [Google Scholar] [CrossRef][Green Version]
  14. Zitouni, B.; Tellier, C. How the technical bodies build the city: Strategic management of time during the creation of the urban development plan in the 19th century and the underground tramway/railway in the 20th century in Brussels. Bruss. Stud. 2013, 1–18. [Google Scholar] [CrossRef]
  15. Smets, M. L’avènement de La Cité-Jardin En Belgique: Histoire de l’Habitat Social en Belgique de 1830 à 1930; Pierre Mardaga: Brussels, Belgium, 1977. [Google Scholar]
  16. Zitouni, B. Agglomérer: Une Anatomie de l’Extension Bruxelloise (1828–1915); Academic Scientific Press & VUB Press: Brussels, Belgium, 2010. [Google Scholar]
  17. Heymans, V. Les Dimensions de l’Ordinaire: La Maison Particulière Entre Mitoyens à Bruxelles; L’Harmattan: Paris, France, 1998. [Google Scholar]
  18. Brauman, A.; Culot, M.; Hoa, J.-P.; Mierop, C.; Paindaveine, H.; Van Loo, A. L’immeuble et La Parcelle: Les Immeubles à Appartements Comme Éléments Constitutif Du Tissu Urbain: Les Cas de Bruxelles 1870-1980; Archives d’Architecture Moderne: Brussels, Belgium, 1982. [Google Scholar]
  19. Moley, C. L’immeuble En Formation: Genèse de l’habitat Collectif et Avatars Intermédiaires; Pierre Mardaga: Liege, Belgium, 1991. [Google Scholar]
  20. Van Dijk, P. Immeubles à Appartements de l’Entre-Deux-Guerres; Region de Bruxelles-Capitale: Brussels, Belgium, 2006. [Google Scholar]
  21. Bauer, C. Modern Housing; Riverside Press: Cambridge, UK, 1934. [Google Scholar]
  22. Strauven, I. Les Frères Bourgeois: Architecture et Plastique Pure; Archives d’Architecture Moderne: Brussels, Belgium, 2005. [Google Scholar]
  23. Congrès Internationaux d’Architecture Moderne. Rationelle Bebauungsweisen: Ergebnisse des Internationalen Kongresses für Neues Bauen (Brüssel, November 1930); Julius Hoffmann Verlag: Stuttgart, Germany, 1931. [Google Scholar]
  24. Ledent, G. From ideal proposals to serial developments: Victor Bourgeois’s schemes in the light of post-war developments in Brussels. Urban Plan. 2019, 4, 196–211. [Google Scholar] [CrossRef]
  25. Mumford, E. The CIAM Discourse on Urbanism, 1928–1960; The MIT Press: Cambridge, UK, 2002. [Google Scholar]
  26. Delhaye, J. L’appartement d’Aujourd’hui; Desoer: Liege, Belgium, 1946. [Google Scholar]
  27. Voyé, L. Sociologie: Construction Du Monde, Construction d’une Discipline; De Broeck Université: Brussels, Belgium, 1998. [Google Scholar]
  28. Heynen, H. Belgium and the Netherlands: Two different ways of coping with the housing crisis, 1945–1970. Home Cult. 2010, 7, 159–177. [Google Scholar] [CrossRef]
  29. Hubert, M. Expo ’58 and “the car as king”. What future for Brussels’s major urban road infrastructure? Bruss. Stud. 2008, 1–17. [Google Scholar]
  30. Broes, T.; Dehaene, M. Real estate pioneers on the metropolitan frontier. Cidades 2016, 33, 1–28. [Google Scholar]
  31. Dessouroux, C. Espaces Partagés, Espaces Disputés: Bruxelles, Une Capitale et Ses Habitants; Direction Études et Planification: Brussels, Belgium, 2008. [Google Scholar]
  32. Gropius, W. Flach—Mittel—Oder Hochbau? In Rationelle Bebauungsweisen; Ergebnisse des Internationalen Kongresses für Neues Bauen, Brüssel, Nov. 1930; Congrès Internationaux d’Architecture Moderne; Verlag Englert und Schlosser: Frankfurt, Germany, 1931. [Google Scholar]
  33. Pinson, D. De l’Échec d’Une Charte à la Poursuite d’une Réflexion. In La Modernité Critique, Autour du CIAM 9 d’Aix-en-Provence, 1953; Bonillo, J.L., Massu, C., Pinson, D., Eds.; Editions Imbernon: Marseille, France, 2006; pp. 241–257. [Google Scholar]
  34. Van Criekingen, M. What Is happening to Brussels’ inner-city neighbourhoods? Selective migration from areas undergoing gentrification. Bruss. Stud. 2006, 1–21. [Google Scholar] [CrossRef]
  35. Dessouroux, C.; Bensliman, R.; Bernard, N.; De Laet, S.; Demonty, F.; Marissal, P.; Surkyn, J. Housing in Brussels: Diagnosis and challenges. Bruss. Stud. 2016, 1–31. [Google Scholar] [CrossRef]
  36. Porotto, A.; Ledent, G. Referential Housing Type for the 21st Century City: New Typo-Morphological Strategies in Brussels. In ISUF 2020 Virtual Conference Proceedings; Scheer, B.C., Ed.; University of Utah Marriott Library, University of Utah: Salt Lake City, UT, USA, 2021. [Google Scholar]
  37. Ananian, P. Housing production in Brussels: The neighbourhood city to stand the test of urban densification. Bruss. Stud. 2016, 1–18. [Google Scholar] [CrossRef]
  38. Van Hamme, G.; Grippa, T.; Van Criekingen, M. Migratory movements and dynamics of neighbourhoods in Brussels. Bruss. Stud. 2013, 1–13. [Google Scholar] [CrossRef]
  39. De Laet, S. The Working classes are also leaving Brussels. An analysis of the suburbanisation of low-income populations. Bruss. Stud. 2018, 1–24. [Google Scholar] [CrossRef]
  40. Dejemeppe, P.; Périlleux, B. Bruxelles 2040; Region de Bruxelles-Capitale: Brussels, Belgium, 2012; ISBN 978-2-930457-79-6. [Google Scholar]
  41. T’Jonck, P. Quelle Métropole En 2040? A+ 2012, 235, 44–50. [Google Scholar]
  42. Chemetoff, A. Région de Bruxelles—Capitale; Plan—Canal/Kanaalplan; Les Éditions du Bureau des Paysages: Gentilly, France, 2014. [Google Scholar]
  43. Cavalieri, C.; Viganò, P. The Horizontal Metropolis: A Radical Project; Park Books: Zurich, Switzerland, 2020. [Google Scholar]
  44. Mabilde, J. Brussels, compact City. A+ 2019, 278, 28–34. [Google Scholar]
  45. Casier, C. The transformation of demographic structures and the geography of Europeans in Brussels between 2000 and 2018. Bruss. Stud. 2019, 1–16. [Google Scholar] [CrossRef]
  46. Le Fort, B.; Visscher, D.J.-P. Typo-morphological diversity and urban resilience: A comparative study of three heterogeneous blocks in Brussels. Urban Morphol. 2020, 24, 70–94. [Google Scholar]
  47. Vandernoot, C. Canal Wharf. A+ 2019, 278, 90–95. [Google Scholar]
  48. De Visscher, L. Tour and taxis. A+ 2019, 278, 8–9. [Google Scholar]
  49. Accorsi, F. L’îlot Ouvert/The Open Block: Christian Portzamparc; AAM: Brussels, Belgium, 2010. [Google Scholar]
  50. Lenel, E. Social mix in public urban action in Brussels: Project or political language? Bruss. Stud. 2013, 1–12. [Google Scholar] [CrossRef]
  51. Cohen, M. À Bruxelles, Près de Chez Nous: L’architecture Dans Les Contrats de Quartier; Ministère de la Région Bruxelles-Capitale: Brussels, Belgium, 2007. [Google Scholar]
  52. Berger, M. Le Temps d’une Politique: Chroniques Des. Contrats de Quartier Bruxellois; CIVA: Brussels, Belgium, 2019. [Google Scholar]
  53. Lenel, E.; Demonty, F.; Schaut, C. Contemporary cohousing experiments in the Brussels-capital region. Bruss. Stud. 2020, 1–19. [Google Scholar] [CrossRef]
  54. Tummers, L. Understanding co-housing from a planning perspective: Why and How? Urban Res. Pract. 2015, 8, 64–78. [Google Scholar] [CrossRef]
  55. Vandernoot, C. Repondre autrement. A+ 2012, 235, 34–37. [Google Scholar]
  56. Totté, P. Affordable housing in Brussels. A+ 2019, 280, 30–34. [Google Scholar]
  57. Tummers, L. The re-emergence of self-managed co-housing in Europe: A critical review of co-housing research. Urban Stud. 2016, 53, 2023–2040. [Google Scholar] [CrossRef]
  58. Dessouroux, C. Fifty years of office building production in Brussels: A geographical analysis. Bruss. Stud. 2010, 1–14. [Google Scholar] [CrossRef]
  59. Dessouroux, C. Les Bureaux à Bruxelles: Un État des Lieux. In Bruxelles: Ses Bureaux: Ses employés; De Beule, M., Dessouroux, C., Eds.; Rossel: Brussels, Belgium, 2009; pp. 14–25. [Google Scholar]
  60. Borret, K. Should I stay or should I go? A+ 2018, 270, 60–63. [Google Scholar]
  61. Lassarre, C. Des Bureaux Pour Toujours? Reconversions au Long Cours. In Bruxelles: Ses Bureaux: Ses Employés; De Beule, M., Dessouroux, C., Eds.; Rossel: Brussels, Belgium, 2009; pp. 111–119. [Google Scholar]
  62. Goldstein, Y. Pour ou contre les tours? A+ 2014, 247, 51. [Google Scholar]
  63. Dehullu, E. The cosmopolitan. A+ 2019, 278, 96–98. [Google Scholar]
  64. Declève, B.; Ananian, P.; Anaya, M.; Lescieux, A. Densités Bruxelloises et Formes d’Habiter; Région de Bruxelles-Capitale: Brussels, Belgium, 2009. [Google Scholar]
  65. Lussault, M. Urbanité. In Dictionnaire de la Géographie et de l’Espace des Sociétés; Lévy, J., Lussault, M., Eds.; Belin: Paris, France, 2013; pp. 1053–1055. [Google Scholar]
  66. Ledent, G.; Salembier, C.; Vanneste, D. Sustainable Dwelling: Between Spatial Polyvalence and Residents’ Empowerment; PUL Presses Universitaires de Louvain: New Leuven, France, 2019. [Google Scholar]
  67. Eleb-Vidal, M.; Bendimérad, S. Facts of society and new spatialities. VLC Arquit. 2017, 4, 1–27. [Google Scholar] [CrossRef]
Figure 1. Urban layouts of selected Brussels referential types (re-drawings by the authors): (a) François-Tilman Suys, Leopold Block (1837); (b) Victor Taelemans, rue Philippe Le Bon 70 (1901); (c) unknown architect, rue des Perdrix 33 (1908); (d) François Hemelsoet, Boulevard Lambermont 73 (1908); (e) J. Michiels, rue des Commerçants 6 (1911); (f) unknown architect, avenue Jules de Trooz 12 (1913).
Figure 1. Urban layouts of selected Brussels referential types (re-drawings by the authors): (a) François-Tilman Suys, Leopold Block (1837); (b) Victor Taelemans, rue Philippe Le Bon 70 (1901); (c) unknown architect, rue des Perdrix 33 (1908); (d) François Hemelsoet, Boulevard Lambermont 73 (1908); (e) J. Michiels, rue des Commerçants 6 (1911); (f) unknown architect, avenue Jules de Trooz 12 (1913).
Buildings 11 00162 g001
Figure 2. Dwelling plans of selected Brussels referential types (re-drawings by the authors): (a) François-Tilman Suys, Leopold Block (1837); (b) Victor Taelemans, rue Philippe Le Bon 70 (1901); (c) unknown architect, rue des Perdrix 33 (1908); (d) François Hemelsoet, Boulevard Lambermont 73 (1908); (e) J. Michiels, rue des Commerçants 6 (1911); (f) unknown architect, avenue Jules de Trooz 12 (1913).
Figure 2. Dwelling plans of selected Brussels referential types (re-drawings by the authors): (a) François-Tilman Suys, Leopold Block (1837); (b) Victor Taelemans, rue Philippe Le Bon 70 (1901); (c) unknown architect, rue des Perdrix 33 (1908); (d) François Hemelsoet, Boulevard Lambermont 73 (1908); (e) J. Michiels, rue des Commerçants 6 (1911); (f) unknown architect, avenue Jules de Trooz 12 (1913).
Buildings 11 00162 g002
Figure 3. Urban layouts of selected interwar types (re-drawings by the authors): (a) Fernand Brunfaut, Cité Melckmans (1928); (b) Victor Bourgeois, Le Nouveau Bruxelles (1930); (c) Antoine Courtens, rond-point de l’Etoile 2 (1931); (d) Jean-Florian Collin, avenue Churchill 126 (1935); (e) Marcel Peeters, Les Pavillons Français (1935); (f) Jean-Jules Eggerickx and Raphaël Verwilghen, Résidence Leopold (1937).
Figure 3. Urban layouts of selected interwar types (re-drawings by the authors): (a) Fernand Brunfaut, Cité Melckmans (1928); (b) Victor Bourgeois, Le Nouveau Bruxelles (1930); (c) Antoine Courtens, rond-point de l’Etoile 2 (1931); (d) Jean-Florian Collin, avenue Churchill 126 (1935); (e) Marcel Peeters, Les Pavillons Français (1935); (f) Jean-Jules Eggerickx and Raphaël Verwilghen, Résidence Leopold (1937).
Buildings 11 00162 g003
Figure 4. Dwelling plans of selected interwar types (re-drawings by the authors): (a) Fernand Brunfaut, Cité Melckmans (1928); (b) Victor Bourgeois, Le Nouveau Bruxelles (1930); (c) Antoine Courtens, rond-point de l’Etoile 2 (1931); (d) Jean-Florian Collin, avenue Churchill 126 (1935); (e) Marcel Peeters, Les Pavillons Français (1935); (f) Jean-Jules Eggerickx and Raphaël Verwilghen, Résidence Leopold (1937).
Figure 4. Dwelling plans of selected interwar types (re-drawings by the authors): (a) Fernand Brunfaut, Cité Melckmans (1928); (b) Victor Bourgeois, Le Nouveau Bruxelles (1930); (c) Antoine Courtens, rond-point de l’Etoile 2 (1931); (d) Jean-Florian Collin, avenue Churchill 126 (1935); (e) Marcel Peeters, Les Pavillons Français (1935); (f) Jean-Jules Eggerickx and Raphaël Verwilghen, Résidence Leopold (1937).
Buildings 11 00162 g004
Figure 5. Urban layouts of selected postwar types (re-drawings by the authors): (a) Alexis Dumont and Paul Goolaerts, avenue de la Brabançonne 80 (1954); (b) Maxime Brunfaut, avenue Auguste Vermeylen 58–60 (1956); (c) Groupe Urbanisme, drève du Château 75–77 (1964); (d) Jean-Claude Cahen, rue Théodor De Cuyper 119–123 (1964); (e) Jacques Mignolet, quai du Batelage 1–15 (1971); (f) M. Boelens and R. Wasterlain, rue Victor Rauter 30–34 (1976).
Figure 5. Urban layouts of selected postwar types (re-drawings by the authors): (a) Alexis Dumont and Paul Goolaerts, avenue de la Brabançonne 80 (1954); (b) Maxime Brunfaut, avenue Auguste Vermeylen 58–60 (1956); (c) Groupe Urbanisme, drève du Château 75–77 (1964); (d) Jean-Claude Cahen, rue Théodor De Cuyper 119–123 (1964); (e) Jacques Mignolet, quai du Batelage 1–15 (1971); (f) M. Boelens and R. Wasterlain, rue Victor Rauter 30–34 (1976).
Buildings 11 00162 g005
Figure 6. Dwelling plans of selected postwar types (re-drawings by the authors): (a) Alexis Dumont and Paul Goolaerts, avenue de la Brabançonne 80 (1954); (b) Maxime Brunfaut, avenue Auguste Vermeylen 58–60 (1956); (c) Groupe Urbanisme, drève du Château 75–77 (1964); (d) Jean-Claude Cahen, rue Théodor De Cuyper 119–123 (1964); (e) Jacques Mignolet, quai du Batelage 1–15 (1971); (f) M. Boelens and R. Wasterlain, rue Victor Rauter 30–34 (1976).
Figure 6. Dwelling plans of selected postwar types (re-drawings by the authors): (a) Alexis Dumont and Paul Goolaerts, avenue de la Brabançonne 80 (1954); (b) Maxime Brunfaut, avenue Auguste Vermeylen 58–60 (1956); (c) Groupe Urbanisme, drève du Château 75–77 (1964); (d) Jean-Claude Cahen, rue Théodor De Cuyper 119–123 (1964); (e) Jacques Mignolet, quai du Batelage 1–15 (1971); (f) M. Boelens and R. Wasterlain, rue Victor Rauter 30–34 (1976).
Buildings 11 00162 g006
Figure 7. Urban layout of the project “Bpost” by 51N4E (re-drawing by the authors).
Figure 7. Urban layout of the project “Bpost” by 51N4E (re-drawing by the authors).
Buildings 11 00162 g007
Figure 8. Dwelling plan of the project “Bpost” by 51N4E (re-drawing by the authors).
Figure 8. Dwelling plan of the project “Bpost” by 51N4E (re-drawing by the authors).
Buildings 11 00162 g008
Figure 9. Urban layout of the project “Tour and Taxis” by Sergison Bates architects (re-drawing by the authors).
Figure 9. Urban layout of the project “Tour and Taxis” by Sergison Bates architects (re-drawing by the authors).
Buildings 11 00162 g009
Figure 10. Dwelling plan of the project “Tour and Taxis” by Sergison Bates architects (re-drawing by the authors).
Figure 10. Dwelling plan of the project “Tour and Taxis” by Sergison Bates architects (re-drawing by the authors).
Buildings 11 00162 g010
Figure 11. Urban layout of the project “Brutopia” by Stekke + Fraas architects (re-drawing by the authors).
Figure 11. Urban layout of the project “Brutopia” by Stekke + Fraas architects (re-drawing by the authors).
Buildings 11 00162 g011
Figure 12. Dwelling plan of the project “Brutopia” by Stekke + Fraas architects (re-drawing by the authors).
Figure 12. Dwelling plan of the project “Brutopia” by Stekke + Fraas architects (re-drawing by the authors).
Buildings 11 00162 g012
Figure 13. Urban layout of the project “Cosmopolitan” by Bogdan and Van Broeck architects (re-drawing by the authors).
Figure 13. Urban layout of the project “Cosmopolitan” by Bogdan and Van Broeck architects (re-drawing by the authors).
Buildings 11 00162 g013
Figure 14. Dwelling plan of the project “Cosmopolitan” by Bogdan and Van Broeck architects (re-drawing by the authors).
Figure 14. Dwelling plan of the project “Cosmopolitan” by Bogdan and Van Broeck architects (re-drawing by the authors).
Buildings 11 00162 g014
Figure 15. Recapitulatory comparison of urban, spatial and social features between residential schemes from Brussels crisis periods.
Figure 15. Recapitulatory comparison of urban, spatial and social features between residential schemes from Brussels crisis periods.
Buildings 11 00162 g015
Publisher’s Note: MDPI stays neutral with regard to jurisdictional claims in published maps and institutional affiliations.

Share and Cite

MDPI and ACS Style

Porotto, A.; Ledent, G. Crisis and Transition: Forms of Collective Housing in Brussels. Buildings 2021, 11, 162. https://doi.org/10.3390/buildings11040162

AMA Style

Porotto A, Ledent G. Crisis and Transition: Forms of Collective Housing in Brussels. Buildings. 2021; 11(4):162. https://doi.org/10.3390/buildings11040162

Chicago/Turabian Style

Porotto, Alessandro, and Gérald Ledent. 2021. "Crisis and Transition: Forms of Collective Housing in Brussels" Buildings 11, no. 4: 162. https://doi.org/10.3390/buildings11040162

APA Style

Porotto, A., & Ledent, G. (2021). Crisis and Transition: Forms of Collective Housing in Brussels. Buildings, 11(4), 162. https://doi.org/10.3390/buildings11040162

Note that from the first issue of 2016, this journal uses article numbers instead of page numbers. See further details here.

Article Metrics

Back to TopTop