Abstract
This paper presents a new method for calculating the area of shear stirrups of steel-reinforced concrete frame joints based on inverse reliability theory. The method can calculate the shear stirrup area of steel-reinforced concrete frame joints by using inverse reliability analysis theory on the premise that the target reliability index and the randomness of structural parameters are given. The method is used to calculate the shear stirrup area of a steel-reinforced concrete frame joint, and the sensitivity of the parameters is analyzed. The rationality of the area of the shear stirrup is also discussed. The results show that the randomness of parameters has a great influence on the area of shear stirrups of steel-reinforced concrete frame joints. Ignoring the randomness of parameters will affect the shear safety of steel-reinforced concrete frame joints.
1. Introduction
Steel-reinforced, ultra-high-strength concrete composite structures have good mechanical performance [1,2,3,4,5]. Additionally, the frame joint is an important part of the connecting beams and columns, transferring the internal force of the building beams and columns. Additionally, the safety and reliability of the frame joint is the premise of the normal work for the building. Chen et al. [6] carried out experimental research on concrete composite columns with built-in profiled steel, and analyzed the influencing factors of seismic performance, including axial compression ratio, stirrup ratio, steel section form, etc. The design principle of “strong column and weak beam, strong joint and weak member” is put forward in the current code [7], which fully illustrates the importance of frame joints in structural design.
However, due to the randomness of structural parameters and load parameters in practical engineering, it is necessary to analyze the shear capacity reliability of joints. Through analyzing the test data and taking the design parameters of steel-reinforced, ultra-high-strength concrete frame joints as random variables, Chang et al. [8] analyzed the frame joints’ reliability of shear strength and bearing capacity and counted the variation rule of reliability with various factors by using the JC checking point method in reliability theory. The results show that the shear-bearing capacity reliability of steel-reinforced ultra-high-strength concrete frame joints increases with the increase in stirrup volume ratio in the joints’ core area while decreasing with the increase of load–effect ratio, and when the axial compression ratio of the columns increases, the reliability increases slightly at first and then decreases. Xiao et al. [9] calculated the reliability index β of shear capacity for reinforced-concrete sandwich joints by using Monte Carlo method in combination with a practical project, and the effects of load–effect ratio, axial compression ratio, structural importance, concrete strength of joints, stirrup spacing and strength in the core area of joints, etc., on it are quantitatively analyzed. According to the requirements of GBJ68-84 “Unified Standard for Building Structural Design”, Bai et al. carried out the reliability analysis based on the formulas for calculating the shear capacity of joints and the experimental and theoretical analysis [10].
The allocation of stirrups is the main problem for the shear capacity of steel-reinforced concrete frame joints, the key factor to measure and reflect the technical and economic index of a building structure, and the important symbol to determine the rationality and economy of a building structure design. Although the current design code for building structures has entered the stage of the probability limit state design method, the reinforcement calculation of steel-reinforced concrete frame joints still mainly stays using the deterministic calculation model. As we all know, there are a lot of uncertainties in the concrete engineering of building structures. Additionally, the uncertainties will affect the calculation of reinforcement quantity. Calculating the shear stirrup area of steel-reinforced concrete frame joints from the perspective of probability provides an effective method for considering objective uncertainty.
Random analysis provides an effective analysis method for considering the random influence of parameters in the study of the shear stirrup area of steel-reinforced concrete symmetry frame joints. The current design code has developed into a performance-based design concept; that is, the target reliability index of the structure is given in advance so that the safety of the structure can be ensured in its design [11,12]. In this way, it is necessary to correct the design parameter of the shear stirrup area of steel-reinforced concrete symmetry frame joints to ensure the predetermined reliability. However, the current research methods for the shear stirrup area of steel-reinforced concrete symmetry frame joints are not suitable for analyzing this problem. On the basis of previous studies, this paper presents a method to calculate the shear stirrups area of steel-reinforced concrete frame joints based on the inverse reliability theory, and calculates the shear stirrups area of steel-reinforced concrete frame joints in a practical project and explores the rationality of the values.
2. Inverse Reliability Theory
Der Kiureghian A. et al. [13] defines the problem of structural inverse reliability as follows:
where is the vector of the normal distribution space; is the target reliability index of the structure, is the structural function; is the gradient operator; and is the design parameter to be determined.
The basic idea for solving the parameter to be determined is to solve when knowing so that the parameter to be determined can satisfy and .
According to the primary reliability analysis theory, the parameter vector satisfies the following formula at the design point:
Then, the target reliability index of the structure is obtained as follows:
By the simultaneous Equations (4) and (5) it can be obtained as follows:
By the linear Taylor expansion of at through , and setting , we can obtain the following equation:
Then,
where and are the corresponding iteration values of the parameters, respectively, in accordance with the reliability index of limit state function . We can use Equation (8) to calculate the design parameter of shear stirrup area of steel-reinforced concrete symmetry frame joint.
We can use Formula (7) and (8) to give the design parameter and the reliability index at the same time. The gradient of to is as follows:
Equation (9) is used as the convergence criterion of the inverse reliability analysis method adopted in this paper:
where is taken as a smaller number and 0.0001 can be taken for specific calculation.
3. Calculation Method of Shear Stirrup Area
The procedure to calculate the shear stirrup area of steel-reinforced concrete frame joints by using the above inverse reliability analysis method is as follows:
Step 1: Assume the initial value of the shear stirrup area of steel-reinforced concrete frame joints and the random variables. Determine the target reliability index and the convergence error of the structure. The initial value of random variables can be taken as the mean of probability distribution, and the initial value of shear stirrup area of steel-reinforced concrete frame joints can be taken as the deterministic model calculation value.
Step 2: Initialize the iteration number k = 1.
Step 3: Use Equation (6) to calculate the updated value u.
Step 4: The value u calculated in the Step 3 is substituted in Equation (8) to calculate the updated value .
Step 5: Check the convergence according to the convergence criterion of Equation (9). If the convergence criterion is not satisfied, set k = k + 1 and go to Step 3. If it is satisfied, stop the calculation and output the calculation results.
4. Example Verification
An example is given to verify the accuracy and validity of the proposed method.
Consider the following limit state equation [14]:
where the random variables obey the standard normal distribution and are independent of each other. , obeying the lognormal distribution and whose variation coefficient is 0.3, is the design variables to be solved. The results of obtained by using the inverse reliability analysis method presented in this paper are shown in Table 1.
Table 1.
Comparison of inverse reliability analysis results.
By analyzing the data in Table 1, it can be seen that the calculation results by using the inverse reliability analysis for the random parameters are in good agreement with the literature results of the stochastic parameter problem which is carried out. Compared to the results in the literature [14], the proposed method could give the design parameter and the reliability index at the same time. It proves that the inverse reliability analysis results using the method proposed in this paper are accurate and reliable, and the calculation accuracy can meet the engineering requirements.
5. Application in Engineering
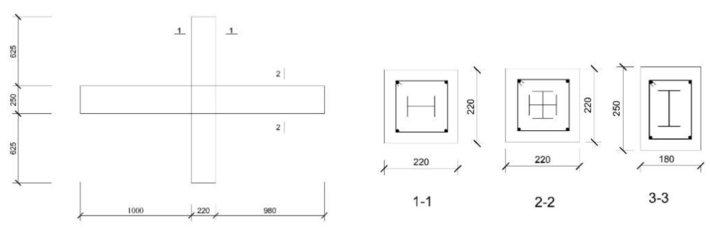
Aiming at the shear capacity of steel-reinforced ultra-high-strength concrete frame joints, through the analysis of experimental data in document [15], the author put forward the formula for calculating the shear capacity of the steel-reinforced ultra-high-strength concrete frame joints (as shown in Equation (12)). In the experiment, the steel-reinforced ultra-high-strength concrete frame beam–column members (the specimen as shown in Figure 1) were subjected to repeated low-cycle loads at the end of the beam, taking into account the three factors that were steel-reinforced form, stirrup ratio and axial compression ratio of the column. The formula is shown as follows:
where is the strength reduction factor of ultra-high-strength concrete, which is taken as l; is the effective checking width of the joint core area, which is taken as the value according to the relevant provisions of the regulation [9]; is the effective checking height of the joint core area; is the tensile yield strength of steel bones; is the tensile strength of stirrups; is the total area of stirrups in the same section; and are, respectively, the thickness and height of steel webs; is the calculated height of the beam section; is the distance between the beam top surface and the stirrups center; is the distance between stirrups in the core area.
Figure 1.
The structure and dimension of frame joint (unit: mm).
According to the “Unified Standard for Architectural Structural Design”, the shear effect S of frame joints is as follows:
where S represents the shear effect caused by loads on frame joints, SGk represents the standard value of the load effect caused by dead loads, and SQk represents the standard value of the load effect caused by live loads.
5.1. Function of Frame Joints
The function of the frame node is defined as
Substituting Equation (11) into Equation (13), we can obtain
Statistical characteristics of each random variable [16] in Equation (15) are shown in Table 2.
Table 2.
Statistical Characteristics of Random Variables.
The formulas of normal distribution are shown as follows.
where and are the station and scale parameters, respectively.
The formulas of extreme I distribution are shown in as follows.
where and are the station and scale parameters, respectively.
5.2. Determination of Target Reliability Index
Target reliability is the lowest reliability index in structural design, which reflects the level of structural safety in a country or region. According to the “Unified Standard for Reliability Design of Building Structures” (GB 50068-2001), the shear failure mode of steel-reinforced concrete frame joints is brittle failure. The structural target reliability index of the first safety grade is 4.2. The structural target reliability index of the second safety grade is 3.7. Additionally, the structural target reliability index of the third safety grade is 3.2. If there is no special explanation in the following section, the safety level of the example building structure is level 2, and the target reliability index is 3.7.
5.3. Calculation of Shear Stirrup Area
When the statistical parameters of random variables related to load and resistance are determined and the target reliability index is 3.7, the calculated shear stirrup area of steel-reinforced concrete frame joints is 663 mm2, while it is 615 mm2 according to the deterministic calculation model. Through comparative analysis, it can be seen that the shear stirrup area of SRC frame joints based on probability is larger than that based on determination because of the uncertainty of parameters. It shows that the randomness of parameters has an important influence on the shear stirrup area of SRC frame joints.
In order to illustrate the advantages of the proposed method, the forward reliability analysis, the inverse reliability method in this paper, and the Monte Carlo method were used to calculate the shear stirrup area of SRC frame joints; the results are shown in Table 3.
Table 3.
Comparison of methods to calculate the shear stirrup area of SRC frame joints.
From the results of Table 3, we can see that the proposed method can give the shear stirrup area of the SRC frame joints meeting with the target reliability and have less iteration times to calculate the results of the shear stirrup area of SRC frame joints at the same time. Compared with the result of the Monte Carlo method using more than 100,000 iterative times, the proposed method was only several iterative times achieving the target design parameter of shear stirrup area of a steel-reinforced concrete symmetry frame joint. Compared with the result of the forward reliability method using a trial-and-error test, the proposed method can give the shear stirrup area of SRC frame joints and the target reliability index at every iterative time. So, the proposed method can recommend calculating the shear stirrup area of SRC frame joints using the probabilistic method.
5.4. Sensitivity Analysis of Parameters
In order to quantitatively analyze the influence of random parameters on the shear stirrup area of steel-reinforced concrete frame joints, the following factors are considered: (1) target reliability index; (2) mean value of random variables; (3) variation coefficient of random variables; (4) probability distribution type of random variables.
- (1)
- Effect of target reliability index on stirrup area
When the target reliability indexes are taken as 4.2, 3.7 and 3.2, respectively, the calculated shear stirrup area of steel-reinforced concrete frame joints are shown in Table 4. The analysis in Table 4 shows that the stirrup area required for shear resistance of the steel-reinforced concrete frame joints decreases with the decrease in target reliability index, which indicates that the stirrup area has an important influence on the reliability index of structures. Conversely, the stirrup area required for different target reliability index is different. Therefore, when calculating the shear stirrup area of steel-reinforced concrete frame joints in building structures, the influence of random parameters should be considered.
Table 4.
Effect of target reliability index on stirrup area (mm2).
- (2)
- The influence of random variable mean value on stirrup area
The mean values of random variables are changed to 0.9, 1.0 and 1.1 times the original mean values. The mean value of one random variable is changed each time, while the mean values of the others are taken as the original values. The calculated shear stirrup area of the reinforced concrete frame joints is shown in Table 5.
Table 5.
The influence of random variables’ mean value on stirrup area (mm2).
Table 5 shows that the stirrups’ area required is different when the mean of random variables changes. Therefore, when calculating the shear stirrups area of steel-reinforced concrete frame joints in building structures, the influence of the statistical parameters’ mean value should be taken into account accurately.
- (3)
- The influence of the random variables’ variation coefficient on the stirrups area
The variation coefficients of random variables are taken as 0.5, 1.0 and 2 times the original mean, respectively. The variation coefficient of one random variable is changed each time. The variation coefficients of the others are taken as the original values. The calculated shear stirrup areas of steel concrete frame joints are shown in Table 6.
Table 6.
The influence of random variables’ variation coefficient on stirrups area (mm2).
Table 6 shows that the stirrups area required is different when the variation coefficient of random variables changes. Therefore, when calculating the shear stirrup area of steel-reinforced concrete frame joints in building structures, the influence of parameters’ variation should be taken into account accurately.
- (4)
- The influence of random variables’ probability distribution type on stirrups area
The probability distribution types of random variables are taken as different distribution (as shown in Table 2), all normal distribution, all logarithmic normal distribution and all extreme I distribution. The calculated shear stirrup areas of steel-reinforced concrete frame joints are shown in Table 7.
Table 7.
The influence of random variables’ probability distribution types on stirrup area (mm2).
Table 7 shows that the stirrups area required is different when the distribution type of random variables changes. Therefore, when calculating the shear stirrups area of steel-reinforced concrete frame joints in building structures, the influence of parameters’ statistical distribution types should be taken into account accurately.
6. Conclusions
In this paper, a method for calculating the shear stirrups area of steel-reinforced concrete frame joints based on the inverse reliability analysis is presented. Through the previous analysis, the following conclusions are drawn:
- (1)
- When calculating the shear stirrups area of steel-reinforced concrete frame joints, the influence of random parameters should be considered according to the actual situation.
- (2)
- The target reliability index has an important influence on the shear stirrups area of steel-reinforced concrete frame joints. The appropriate target reliability index should be selected according to the importance and safety level of the structure, and then the shear stirrups area of steel-reinforced concrete frame joints can be determined.
- (3)
- Compared with the result of the Monte Carlo method using more than 100,000 iterative times, the proposed method was used only several iterative times achieving the target design parameter of the shear stirrup area of a steel-reinforced concrete symmetry frame joint. The proposed method was recommended to calculate the shear stirrup area of a steel-reinforced concrete symmetry frame joint.
- (4)
- Random variables have an important influence on the shear stirrups area of steel-reinforced concrete frame joints. In the practical engineering design, accurate statistical characteristics of random variables should be determined according to the actual situation, so as to provide data support for reasonably calculating the shear stirrups area of steel-reinforced concrete frame joints.
Author Contributions
Z.Y., investigation; F.D., writing. All authors have read and agreed to the published version of the manuscript.
Funding
The Natural Science Foundation of Jiangsu Province (Grant No. BK20200793).
Institutional Review Board Statement
Not applicable.
Informed Consent Statement
Not applicable.
Data Availability Statement
The data used to support the findings of this study are available from the corresponding author upon request.
Acknowledgments
The authors wish to express their sincere gratitude to the Natural Science Foundation of Jiangsu Province (Grant No. BK20200793).
Conflicts of Interest
The authors declare no conflict of interest.
References
- Zhang, Y.; Wei, Y.; Bai, J.; Wu, G.; Dong, Z. A novel seawater and sea sand concrete filled FRP-carbon steel composite tube column: Concept and behavior. Compos. Struct. 2020, 246, 112421. [Google Scholar] [CrossRef]
- Wei, Y.; Bai, J.; Zhang, Y.; Miao, K.; Zheng, K. Compressive performance of high-strength seawater and sea sand concrete filled circular FRP-steel composite tube columns. Eng. Struct. 2021, 240, 112357. [Google Scholar] [CrossRef]
- Yang, W.; Zhao, K.; Chen, H.; Chen, S.; Ding, M. Experimental study on the creep behavior of recombinant bamboo. J. Renew. Mater. 2020, 8, 251–273. [Google Scholar]
- Zhang, Y.; Wei, Y.; Miao, K.; Li, B. A novel seawater and sea sand concrete-filled FRP-carbon steel composite tube column: Cyclic axial compression behaviour and modelling. Eng. Struct. 2021, 252, 113531. [Google Scholar] [CrossRef]
- Wei, Y.; Tang, S.; Ji, X.; Zhao, K.; Li, G. Stress-strain behavior and model of bamboo scrimber under cyclic axial compression. Eng. Struct. 2020, 209, 110279. [Google Scholar] [CrossRef]
- Chen, C.; Wang, C.; Sun, H. Experimental study on Seismic behavior of full encased steep concrete composite columns. J. Struct. Eng. 2014, 140, 1–10. [Google Scholar] [CrossRef]
- GS20011-2010; Code for Seismic Design of Buildings. China Construction Industry Publication: Beijing, China, 2010.
- Chang, Z.; Yan, C.; Jia, J.; Liu, S.; Duan, L. Shear Bearing Capacity Reliability Analysis of Steel Reinforced Ultra-High Strength Concrete Frame Joints Based on JC Check Point Method. World Earthq. Eng. 2017, 33, 151–157. [Google Scholar]
- Xiao, L.; Yu, X.; Zhong, Y. Shear capacity Reliability analysis of Reinforced Concrete Sandwich Joints. World Seism. Eng. 2014, 3, 63–70. [Google Scholar]
- Bai, G.; Jiang, W.; Zhang, Q. Reliability Analysis of SRC Joints. In Proceedings of the Annual Meeting of China Steel Construction Society Association for Steel-Concrete Composite Structures, Harbin, China, May 1997. [Google Scholar]
- Reid, S.G. Specifications of design criteria based on probabilistic measures of design performance. Struct. Saf. 2002, 24, 333–345. [Google Scholar] [CrossRef]
- Tai, K.; Ding, D. A new leap in bridge construction in China. J. Build. Sci. Eng. 2006, 23, 30–40. [Google Scholar]
- Der Kiureghian, A.; Zhang, Y.; Li, C.C. Inverse reliability problem. J. Eng. Mech. ASCE 1994, 120, 1154–1159. [Google Scholar] [CrossRef]
- Li, H.; Foschi, R.O. An inverse reliability method and application. Struct. Saf. 1998, 20, 257–270. [Google Scholar] [CrossRef]
- Yan, C. Seismic Behavior of Steel Reinforced Ultra-High Strength Concrete Frame Joints; Dalian University of Technology: Dalian, China, 2009. [Google Scholar]
- JGJ138-001; Technical Specification for Steel Reinforced Concrete Structures. China Construction Industry Press: Beijing, China, 2002.
Publisher’s Note: MDPI stays neutral with regard to jurisdictional claims in published maps and institutional affiliations. |
© 2022 by the authors. Licensee MDPI, Basel, Switzerland. This article is an open access article distributed under the terms and conditions of the Creative Commons Attribution (CC BY) license (https://creativecommons.org/licenses/by/4.0/).
