Comparison of Computer Extended Descriptive Geometry (CeDG) with CAD in the Modeling of Sheet Metal Patterns
Abstract
1. Introduction
2. Methods
2.1. Four-Way Cylindric Hopper with Conical Coupling
- LogiTRACE approach. The cylindric hopper was built by means of the LogiTRACE Expert library, using a hierarchic process where the main cylinder is intersected first with the conical surface, and second with the lateral revolution cylinder. The sheet metal thickness was set to zero, according to objective of the first stage of pattern drawing creation process. Flat patterns in LogiTRACE are calculated by the method of inscribed prim [23] using chords instead of arcs. The number of generatrix lines was set to 20, 72, and 120 to evaluate its influence in the solution accuracy. Straight lines of transformed junctions were converted to arcs with an error tolerance of 0.1 mm. Dimensions of transformed junctions were calculated by summing the arcs lengths after importing the pattern as a DXF format.
- Solid Edge approach. The cylindric hopper surface cannot be modeled as a general 3D surface in Solid Edge but using the Sheet Metal Design Module, which allows computing the pattern solution. We selected the Contour Flange command as the easiest method to construct the required hopper by the open profile feature, with a minimal value of the opening angle (0.0001°). Because the sheet metal design module does not allow the division of the flat pattern computation process in two stages, the material thickness, bend radius, and bend relief parameters were set to the minimal allowed value of 0.0001 mm, with the aim of achieving a pattern solution hardly dependent of the material and forming process.
- CeDG approach. The spacial hopper was obtained using descriptive geometry procedures in agreement with the CeDG foundation [20]. The intersection of the main cylinder with the upper conical surface is computed using the technique of auxiliary planes containing generatrix lines [24] and extended by the mathematical locus function. Lateral holes are obtained by carrying over points pertaining to their vertical projection circle to the horizontal projection by means of their generatrix lines. The mathematical locus function allows the extension of this geometric procedure after one point is obtained. The hopper is flattened using the mathematical locus extension of the general method of inscribed prism [23], which gives the true (limited by the computer machine precision) transformed curve.
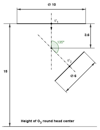
2.2. Cylindric Connection of Tronco-Conic Hopper Outlet with Round Head
- LogiTRACE approach. The dimensions of the vertical pipe are computed from the whole 3D system modeled with Solid Edge, due to limitations of LogiTRACE to model general 3D parts. The pipe was built from an oblique cylinder with round non-parallel sections of the in-series library. Thickness was set to zero. The flat pattern was calculated by the method of inscribed prims [23] using chords, for three values of generatrix lines: 20, 72, and 120. Straight lines of transformed junctions were converted to arcs with error tolerance equal to 0.1 mm.
- Solid Edge approach. A whole model of the 3D system was built as a general 3D part, from which the vertical pipe dimensions were extracted. The vertical pipe was then created in the sheet metal design module using the Lofted Flange command, which was the easiest method to construct a pipe connecting two sections that can be flattened. Due to Solid Edge requirements, both sections must be open. Therefore, an empirical minimal value of 0.004° was assigned to the opening angle. In the same way as study case 1, minimal allowed values were assigned to material thickness (0.0030 mm), bend radius (0.0001 mm), and bend relief (0.0001 mm).
- CeDG approach. The tronco-conic surface was obtained using descriptive geometry procedures, after moving the center-round along its axis to match with a circular direction of the non-revolution cone. The pipe connecting that round outlet with a non-parallel round head centered in was then created. The pipe was unfolded to the flat state by means of the same extension of the method of inscribed prism used in the study case 1. Additional details of the method appear in the Supplementary file.
2.3. Round-Poligonal Section Transition with Circular Branch
- Dimensions presented in Figure 3 (reference values).
- Reference values with HeadAng changed to 45°.
- Reference values with the maximum value of the lateral round pipe diameter (DiamCyl) that avoids the intersection of this pipe with the conical surfaces of transformer.
- LogiTRACE approach. The transition surface connected with the lateral round pipe was built by means of the Expert Library using a hierarchic process, where the transition surface was solved as a part of the in-series library and then included in the Combi-Figure kit to give the intersection with a lateral round cylinder. Thickness was set to zero. The flat pattern was calculated by the method of inscribed prims [23] using chords, for three values of generatrix lines: 20, 72, and 120. Straight lines of transformed junctions were converted to arcs with error tolerance equal to 0.1 mm.
- Solid Edge approach. The transition surface was implemented in the sheet metal design module with the Lofted Flange command, which was the best method able to give the required flat pattern. Round and rectangular sections must be open due to Solid Edge requirements, which impeded modeling the full transformer. A half-transformer that includes the half circular branch was then built, taking advantage of its symmetry. Sheet metal thickness, bend radius, and bend relief parameters were empirically minimized to achieve a flat pattern solution hardly dependent of the material selection. The minimal thickness was 0.0021 mm for the reference values of the model’s parameters and 0.0027 mm for the two sets of modified values. Minimal bend relief was 0.0001 mm and minimal bend radius was 0.0016 mm. Rectangle corners are automatically rounded with the bend radius.
- CeDG approach. The transition surface is obtained applying the general descriptive geometry procedure for non-parallel openings [25], which gives a surface composed by triangles jointed with conical surfaces whose vertices are placed at the rectangle corners. The lateral hole connecting the transformer with the round pipe is obtained by the intersection pipe-triangle plane, according to the position of the pipe and the reference diameter (Figure 3). This condition is kept for all the parameters’ sets. The flat transformed of a cone directrix cannot be obtained in an exact mode through the locus mathematical object used for cylinders. The reason is that there is not a straight line in the flat pattern associated with a known section of the conic surface. We developed a scripting code that implements the general method of inscribed pyramid [23], using true arc lengths, for three values of the number of generatrix lines—20, 72, and 120, with the aim of comparing the accuracy with the others CAD approaches. More details are shown in the Supplementary file.
3. Results
3.1. Four-Way Cylindric Hopper with Conical Coupling
3.2. Cylindric Connection of Tronco-Conic Hopper Outlet with Round Head
3.3. Round-Poligonal Section Transition with Circular Branch
4. Discussion
Supplementary Materials
Author Contributions
Funding
Conflicts of Interest
References
- The Colliery Engineer Company. A Textbook of Sheet Metal Pattern Drafting; Burr Printing House: New York, NY, USA, 1901; p. 734. [Google Scholar]
- Trzepieciński, T. Recent Developments and Trends in Sheet Metal Forming. Metals 2020, 10, 779. [Google Scholar] [CrossRef]
- Kakandikar, G.M.; Nandedkar, V.M. Sheet Metal Forming Optimization Bioinspired Approaches; Taylor & Francis Group: Boca Raton, FL, USA, 2018. [Google Scholar]
- Cheng, Z.; Li, Y.; Xu, C.; Liu, Y.; Ghafoor, S.; Li, F. Incremental sheet forming towards biomedical implants: A review. J. Mater. Res. Technol. 2020, 9, 7225–7251. [Google Scholar] [CrossRef]
- Marsh, D. Applied Geometry for Computer Graphics and CAD, 2nd ed.; Springer Undergraduate Mathematics Series; Springer: New York, NY, USA, 2005; p. 350. [Google Scholar]
- Fournier, R.; Fournier, S. Sheet Metal Handbook, 1st ed.; HPBooks: Los Angeles, CA, USA, 1989; p. 138. [Google Scholar]
- Bowman, M. Sheet Metal Work; The Crowood Press Ltd.: Wiltshire, UK, 2014; p. 500. [Google Scholar]
- Smartunfold. Available online: www.smartunfold.com/ (accessed on 10 April 2021).
- LITIO. Available online: www.litio.si/litio2.htm (accessed on 10 April 2021).
- Poleschuk, N. AutoCAD Developer’s Guide to Visual LISP; Charles River Media: Newton, MA, USA, 2001; p. 500. [Google Scholar]
- Machado, F.; Malpica, N.; Borromeo, S. Parametric CAD modeling for open source scientific hardware: Comparing OpenSCAD and FreeCAD Python scripts. PLoS ONE 2019, 14, e0225795. [Google Scholar] [CrossRef] [PubMed]
- PTC CREO. Available online: www.ptc.com/en/products/creo (accessed on 10 April 2021).
- CATIA. Available online: www.3ds.com/products-services/catia/ (accessed on 10 April 2021).
- AUTODESK Inventor. Available online: www.autodesk.com/products/inventor/features (accessed on 10 April 2021).
- Solid Edge. Available online: solidedge.siemens.com/en/ (accessed on 10 April 2021).
- Tickoo, S. CATIA V5R21 for Designers; CADCIM Technologies: Schererville, IN, USA, 2014. [Google Scholar]
- Lantek Expert. 2021. Available online: www.lantek.com/us/nesting-cad-cam-2d-software (accessed on 10 April 2021).
- LogiTRACE. 2021. Available online: www.profirst-group.com/logitrace-blechabwicklungen (accessed on 10 April 2021).
- Díaz Díaz, E. Tratado de Trazados y Desarrollos de Calderería [Treatise of Drawing and Development in Sheet Metal]; Marcombo: Barcelona, Spain, 2010; p. 158. [Google Scholar]
- Prado-Velasco, M.; Ortíz Marín, R.; García, L.; Rio-Cidoncha, M.G.D. Graphical Modelling with Computer Extended Descriptive Geometry (CeDG): Description and Comparison with CAD. Comput. Aided Des. Appl. 2021, 18, 272–284. [Google Scholar] [CrossRef]
- Hohenwarter, M.; Hugh Jarvis, D.; Lavicza, Z. Linking geometry, algebra, and mathematics teachers: GeoGebra software and the establishment of the International GeoGebra Institute. Int. J. Technol. Math. Educ. 2009, 16, 83–87. [Google Scholar]
- Siebert, H. Layout Drafting and Pattern Making for Heat and Frost Insulators; Apprentice Work Book and Journeyman Review Manual. 2000. Available online: https://www.exlagger.org/Drafting4Insulators.pdf (accessed on 1 January 2021).
- Izquierdo Asensi, F. Geometría Descriptiva Superior y Aplicada [Superior and Applied Descriptive Geometry], 4th ed.; Paraninfo: Madrid, Spain, 1996; p. 642. [Google Scholar]
- Leighton Wellman, B. Technical Descriptive Geometry; Mc Graw-Hill: New York, NY, USA, 1948; p. 615. [Google Scholar]
- Giménez Peris, V. Diédrico Directo, Tomo II: Superficies, Intersecciones, CAD, Sombras [Direct Diedric, Volume II: Surfaces, Intersections, CAD and Shadows]; Tip. Mazuelos s.l.: Cadiz, Spain, 2014; Volume 2, p. 237. [Google Scholar]
- PROfirst. User Manual LogiTRACE Unfolding Software Version 14; Technical Report; PROfirst: Birmingham, UK, 2011; p. 70. Available online: www.profirst-group.com/programs/help_pdf/help_logitrace.pdf (accessed on 10 April 2021).
- Dana-Picard, T.N.; Kovács, Z. Networking of technologies: A dialog between CAS and DGS. Electron. J. Math. Technol. 2021, 15, e1–e17. [Google Scholar]
- Frank, M.; Croft, J. The Need for Descriptive Geometry in a World of 3D Modeling. Eng. Des. Graph. J. 1998, 62, 4–8. [Google Scholar]
- Migliari, R. Descriptive Geometry: From its Past to its Future. Nexus Netw. J. 2012, 14, 555–571. [Google Scholar] [CrossRef]
- Ortiz-Marín, R.; Del Río-Cidoncha, G.; Martínez-Palacios, J. Where is Descriptive Geometry Heading? In Proceedings of the XXIX International Congress INGEGRAF; Advances in Design Engineering; Springer International Publishing: Berlin/Heidelberg, Germany, 2019; pp. 365–373. [Google Scholar]










| Approach | |||||
|---|---|---|---|---|---|
| CeDG | 229.21 (0%) | 192.50 (0%) | 95.50 (0%) | 83.03 (0%) | 23.03 (0%) |
| LogiTRACE | 229.20 (0.004%) | 193.36 (0.4%) | 97.16 (1.738%) | 82.14 (1.07%) | 22.18 (3.69%) |
| Solid Edge | 229.20 (0.004%) | 193.36 (0.4%) | 97.22 (1.801%) | 82.18 (1.024%) | 22.18 (3.69%) |
| Approach | ||||
|---|---|---|---|---|
| CeDG | 188.50 (0%) | 118.93 (0%) | 34.07 (0%) | 162.08 (0%) |
| LogiTRACE | 188.46 (0.021%) | 118.29 (0.538%) | 33.52 (1.614%) | 162.06 (0.012%) |
| Solid Edge | 188.50 (0%) | 118.37 (0.471%) | 33.52 (1.614%) | 162.08 (0%) |
| CeDG | LogiTRACE | |||||
|---|---|---|---|---|---|---|
| NG | + | + | ||||
| 20 | 230.93 | 161.82 | 392.75 | 229.97 | 161.12 | 391.09 |
| 72 | 230.88 | 161.82 | 392.70 | 230.81 | 161.77 | 392.58 |
| 120 | 230.87 | 161.82 | 392.69 | 230.85 | 161.80 | 392.65 |
| Approach | |||||
|---|---|---|---|---|---|
| CeDG | 230.87 (0%) | 161.82 (0%) | 638.26 (0%) | 254.60 (0%) | 373.93 (0%) |
| LogiTRACE | 230.85 (0.009%) | 161.80 (0.012%) | 638.14 (0.019%) | 254.61 (0.004%) | 373.93 (0%) |
| Solid Edge | 230.87 (0%) | 161.82 (0%) | 638.26 (0%) | 254.61 (0.004%) | 373.93 (0%) |
Publisher’s Note: MDPI stays neutral with regard to jurisdictional claims in published maps and institutional affiliations. |
© 2021 by the authors. Licensee MDPI, Basel, Switzerland. This article is an open access article distributed under the terms and conditions of the Creative Commons Attribution (CC BY) license (https://creativecommons.org/licenses/by/4.0/).
Share and Cite
Prado-Velasco, M.; Ortiz-Marín, R. Comparison of Computer Extended Descriptive Geometry (CeDG) with CAD in the Modeling of Sheet Metal Patterns. Symmetry 2021, 13, 685. https://doi.org/10.3390/sym13040685
Prado-Velasco M, Ortiz-Marín R. Comparison of Computer Extended Descriptive Geometry (CeDG) with CAD in the Modeling of Sheet Metal Patterns. Symmetry. 2021; 13(4):685. https://doi.org/10.3390/sym13040685
Chicago/Turabian StylePrado-Velasco, Manuel, and Rafael Ortiz-Marín. 2021. "Comparison of Computer Extended Descriptive Geometry (CeDG) with CAD in the Modeling of Sheet Metal Patterns" Symmetry 13, no. 4: 685. https://doi.org/10.3390/sym13040685
APA StylePrado-Velasco, M., & Ortiz-Marín, R. (2021). Comparison of Computer Extended Descriptive Geometry (CeDG) with CAD in the Modeling of Sheet Metal Patterns. Symmetry, 13(4), 685. https://doi.org/10.3390/sym13040685

