Gas Release and Solution as Possible Mechanism of Oscillation Damping in Water Hammer Flow
Abstract
1. Introduction
2. Mathematical Models
2.1. Continuity Equation
2.2. Gas Release and Solution Equation
2.3. Momentum Equations
2.4. Boundary Conditions
2.5. Method of Characteristics
2.6. Numerical Scheme
2.7. Micro-GA
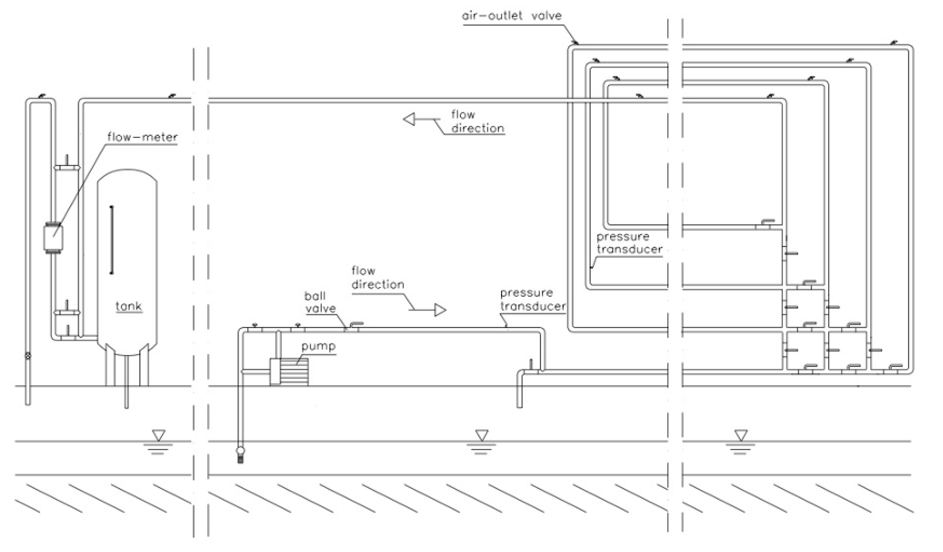
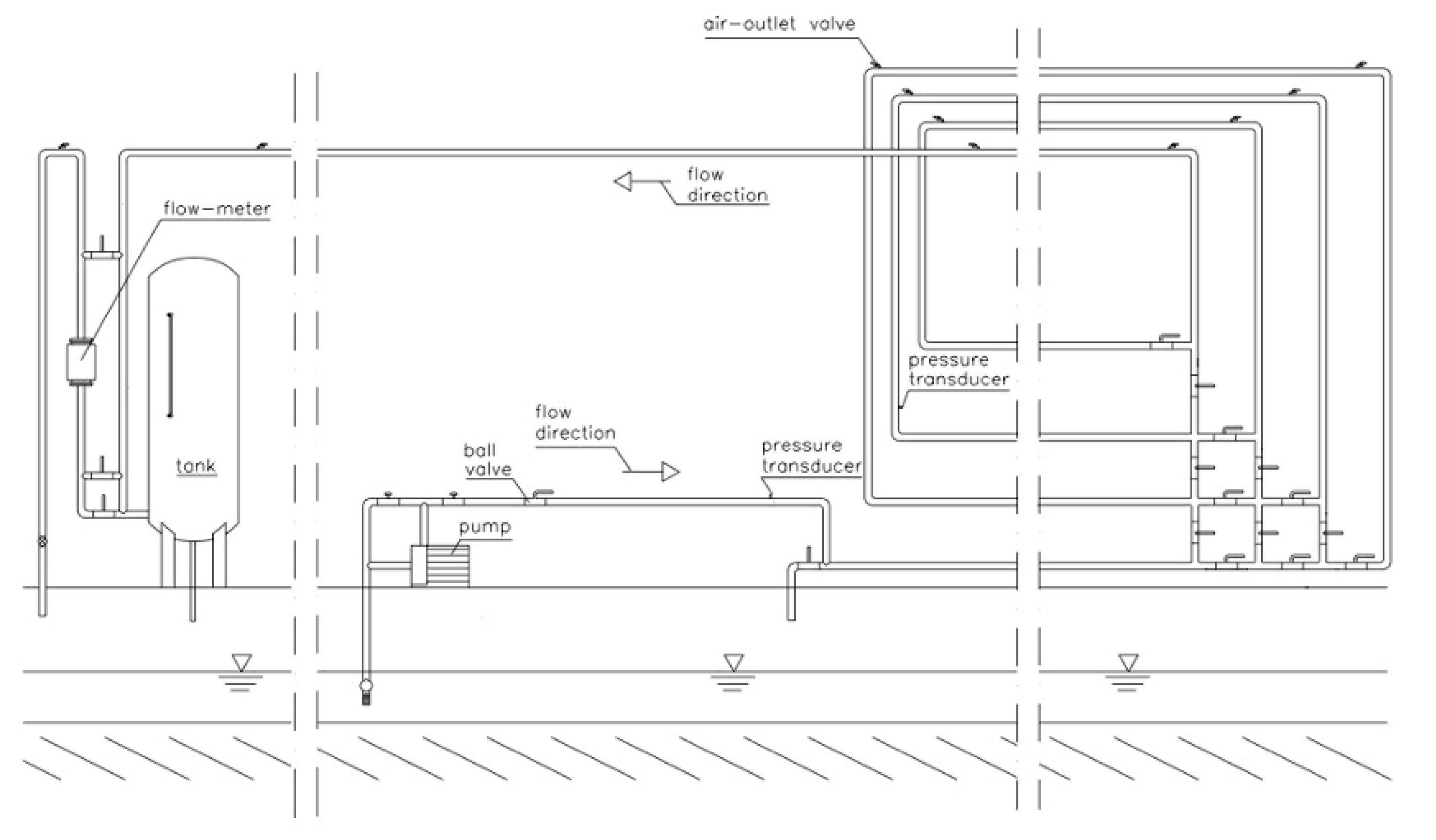
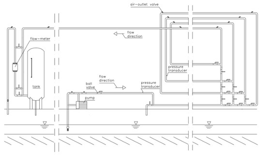
3. Experimental Installation
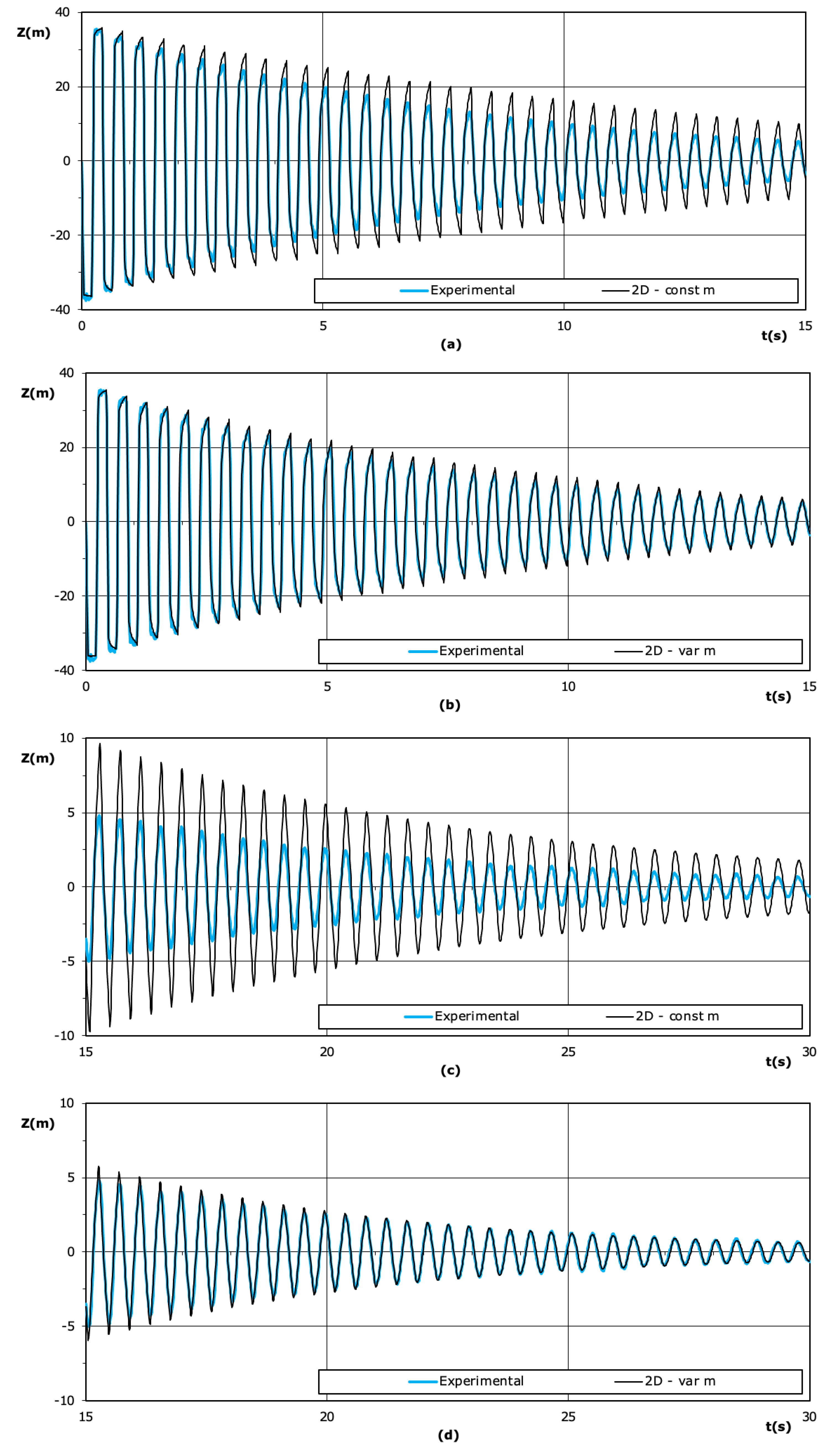
4. Analysis of Results
5. Conclusions
Funding
Data Availability Statement
Conflicts of Interest
References
- Ghidaoui, M.S.; Zhao, M.; McInnis, D.A.; Axworthy, D.H. A review of water hammer theory and practice. Appl. Mech. Rev. 2005, 58, 49–76. [Google Scholar] [CrossRef]
- Pezzinga, G. Evaluation of unsteady flow resistances by quasi-2D or 1D models. J. Hydraul. Eng. 2000, 126, 778–785. [Google Scholar] [CrossRef]
- Vardy, A.E.; Hwang, K.L. A characteristics model of transient friction in pipes. J. Hydraul. Res. 1991, 29, 669–684. [Google Scholar] [CrossRef]
- Eichinger, P.; Lein, G. The Influence of Friction on Unsteady Pipe Flow. In Proceedings of the International Conference on Unsteady Flow and Fluid Transients, Durham, UK, 29 September–1 October 1992; IAHR: Durham, UK, 1992; pp. 41–50. [Google Scholar]
- Silva-Araya, W.F.; Chaudhry, M.H. Computation of energy dissipation in transient flow. J. Hydraul. Eng. 1997, 123, 108–115. [Google Scholar] [CrossRef]
- Pezzinga, G. Quasi-2D Model for Unsteady Flow in Pipe Networks. J. Hydraul. Eng. 1999, 125, 676–685. [Google Scholar] [CrossRef]
- Pezzinga, G.; Brunone, B. Turbulence, friction and energy dissipation in transient pipe flow. In Vorticity and Turbulence Effects in Fluid Structures Interactions; Brocchini, M., Trivellato, F., Eds.; WIT Press: Southampton, UK, 2006; pp. 213–236. [Google Scholar]
- Vardy, A.E. On Sources of Damping in Water-Hammer. Water 2023, 15, 385. [Google Scholar] [CrossRef]
- Ferras, D.; Manso, P.A.; Schleiss, A.J.; Covas, D.I. Experimental distinction of damping mechanisms during hydraulic transients in pipe flow. J. Fluids Struct. 2016, 66, 424–446. [Google Scholar] [CrossRef]
- Kranenburg, C. Gas release during transient cavitation in pipes. J. Hydraul. Div. 1974, 100, 1383–1398. [Google Scholar] [CrossRef]
- Wiggert, D.C.; Sundquist, M.J. The Effect of Gaseous Cavitation on Fluid Transients. J. Fluids Eng. 1979, 101, 79–86. [Google Scholar] [CrossRef]
- Wylie, E.B. Low void fraction two-component two-phase flow. In Unsteady Flow and Fluid Transients; Bettess, R., Watts, J., Eds.; Balkema: Rotterdam, The Netherlands, 1992; pp. 3–9. [Google Scholar]
- Huygens, M.; Verhoeven, R.; Van Pocke, L. Air entrainment in water hammer phenomena. WIT Trans. Eng. Sci. 1998, 18, 10. [Google Scholar]
- Hadj-Taieb, E.; Lili, T. Transient flow of homogeneous gas-liquid mixtures in pipelines. Int. J. Numer. Methods Heat Fluid Flow 1998, 8, 350–368. [Google Scholar] [CrossRef]
- Lee, T.S.; Low, H.T.; Nguyen, D.T. Effects of air entrainment on fluid transients in pumping systems. J. Appl. Fluid Mech. 2007, 1, 55–61. [Google Scholar]
- Lee, T.S.; Low, H.T.; Huang, W.D. Numerical study of fluid transient in pipes with air entrainment. Int. J. Comput. Fluid Dyn. 2004, 18, 381–391. [Google Scholar] [CrossRef]
- Bergant, A.; Simpson, A.R.; Tijsseling, A.S. Water hammer with column separation: A historical review. J. Fluids Struct. 2006, 22, 135–171. [Google Scholar] [CrossRef]
- Fanelli, M. Hydraulic Transients with Water Column Separation; IAHR Working Group 1971–1991 Synthesis Report; IAHR: Delft, The Netherlands; ENEL-CRIS: Milan, Italy, 2000. [Google Scholar]
- Landau, L.D.; Lifshitz, E.M. Fluid Mechanics: Course of Theoretical Physics; Pergamon Press: London, UK, 1959; Volume 6. [Google Scholar]
- Pezzinga, G. Second viscosity in transient cavitating pipe flows. J. Hydraul. Res. 2003, 41, 656–665. [Google Scholar] [CrossRef]
- Cannizzaro, D.; Pezzinga, G. Energy dissipation in transient gaseous cavitation. J. Hydraul. Eng. 2005, 131, 724–732. [Google Scholar] [CrossRef]
- Pezzinga, G.; Santoro, V.C. MOC-Z Models for Transient Gaseous Cavitation in Pipe Flow. J. Hydraul. Eng. 2020, 146, 04020076. [Google Scholar] [CrossRef]
- Lam, C.K.G.; Bremhorst, K.A. Modified Form of the k-ε Model for Predicting Wall Turbulence. J. Fluids Eng. 1981, 103, 456–460. [Google Scholar] [CrossRef]
- Wylie, E.B.; Streeter, V.L. Fluid Transients in Systems; Prentice-Hall: Englewood Cliffs, NJ, USA, 1993. [Google Scholar]
- Zielke, W.; Perko, H.D.; Keller, A. Gas Release in Transient Pipe Flow. In Pressure Surges, Proceedings of the 6th International Conference, Cambridge, UK, 4–6 October 1989; BHRA: Cranfield, UK, 1990; pp. 3–13. [Google Scholar]
- Santoro, V.C.; Crimì, A.; Pezzinga, G. Developments and limits of discrete vapor cavity models of transient cavitating pipe flow: 1D and 2D flow numerical analysis. J. Hydraul. Eng. 2018, 144, 04018047. [Google Scholar] [CrossRef]
- Budny, D.D.; Wiggert, D.C.; Hatfield, F.J. The influence of structural damping on internal pressure during a transient pipe flow. J. Fluids Eng. 1991, 113, 424–429. [Google Scholar] [CrossRef]







| Test | (L/s) | (m/s) | (m) | |
|---|---|---|---|---|
| L1 | 0.207 | 0.091 | 68.12 | 5300 |
| L2 | 0.409 | 0.179 | 66.87 | 10,500 |
| L3 | 0.598 | 0.262 | 60.08 | 15,400 |
| Test | 2D—Constant Mass | 2D—Variable Mass | |
|---|---|---|---|
| (mg/m3) | (mg/m3) | (s) | |
| L1 | 1.96 | 0.00 | 753.2 |
| L2 | 17.30 | 6.16 | 754.2 |
| L3 | 28.64 | 14.96 | 815.2 |
Disclaimer/Publisher’s Note: The statements, opinions and data contained in all publications are solely those of the individual author(s) and contributor(s) and not of MDPI and/or the editor(s). MDPI and/or the editor(s) disclaim responsibility for any injury to people or property resulting from any ideas, methods, instructions or products referred to in the content. |
© 2023 by the author. Licensee MDPI, Basel, Switzerland. This article is an open access article distributed under the terms and conditions of the Creative Commons Attribution (CC BY) license (https://creativecommons.org/licenses/by/4.0/).
Share and Cite
Pezzinga, G. Gas Release and Solution as Possible Mechanism of Oscillation Damping in Water Hammer Flow. Water 2023, 15, 1942. https://doi.org/10.3390/w15101942
Pezzinga G. Gas Release and Solution as Possible Mechanism of Oscillation Damping in Water Hammer Flow. Water. 2023; 15(10):1942. https://doi.org/10.3390/w15101942
Chicago/Turabian StylePezzinga, Giuseppe. 2023. "Gas Release and Solution as Possible Mechanism of Oscillation Damping in Water Hammer Flow" Water 15, no. 10: 1942. https://doi.org/10.3390/w15101942
APA StylePezzinga, G. (2023). Gas Release and Solution as Possible Mechanism of Oscillation Damping in Water Hammer Flow. Water, 15(10), 1942. https://doi.org/10.3390/w15101942
