Quantifying the Relationship Between Mean Radiant Temperature and Indoor Air Temperature Across Building Orientations in Hot and Dry Steppe Climates
Abstract
1. Introduction
2. Materials and Methods
2.1. Research Aim and Objectives
2.2. Climatic Characteristics of the Study Area
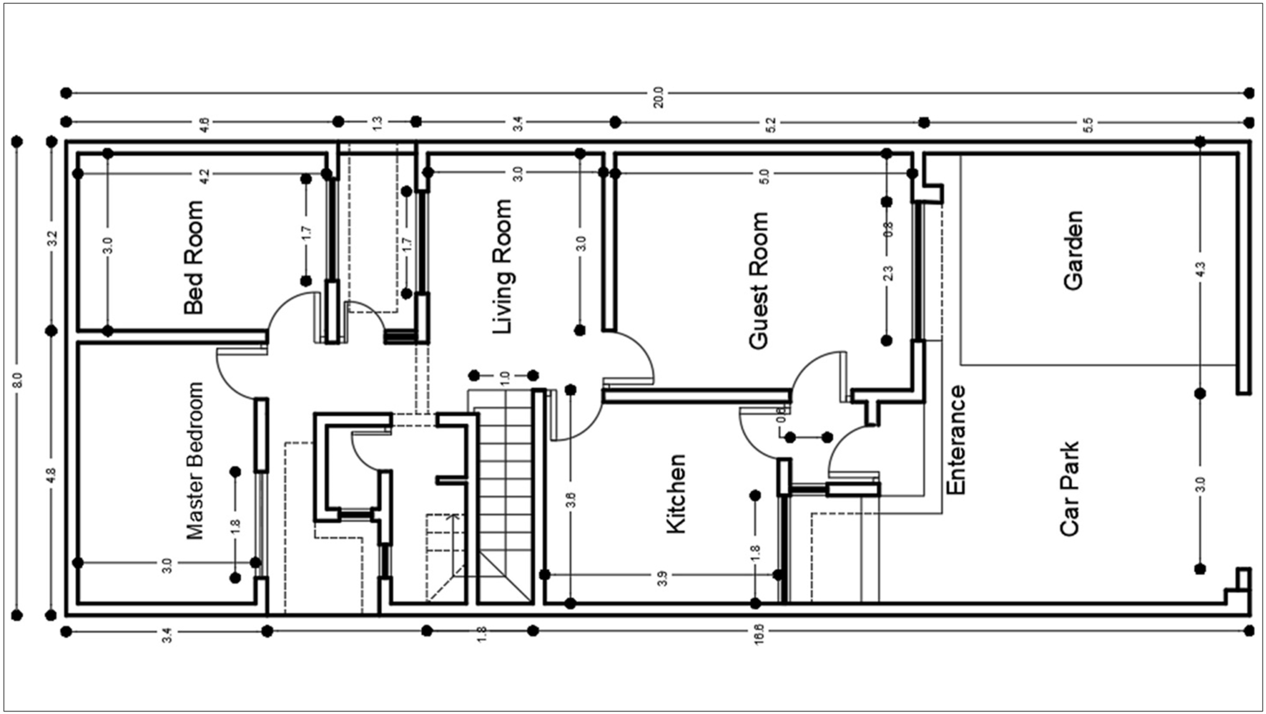
2.3. Methodology
2.4. Tools, Equipment, and Methods for Observation and Evaluation
- Inside Globe Temperature (Gti): Globe temperature, measured with a 40 mm diameter globe, as specified by the ASHRAE-55 standard diameter, is 150 mm and must be taken more than one meter from the exterior walls. It should be noted that employing different sizes resulted in slightly varied MRT results. The variation was because the globe temperature instrument’s ball size diameter decreased from 150 mm to 40 mm. Nevertheless, it had no noticeable effect on the PMV/PDD projections’ ultimate outcomes [34,35]. It is important to mention that when the air velocity inside the building exceeds 0.12 m/s, the size difference between the black globe thermometer and standard thermometers becomes significant [36]; however, this air speed was not observed inside the buildings. Measurements were taken in the center of each room, away from direct solar exposure, to ensure consistency.
- Inside Air Temperature (Tia) refers to the building’s interior air temperature as defined by the CBE Tool’s psychrometric approach. This method uses the dry-bulb temperature and relative humidity to determine the thermal comfort zones on a psychrometric chart.
- Inside Air Velocity (IAV): the air speed in the houses was observed in meters per second using an anemometer.
- Inside Relative Humidity (Rhi): the building’s interior relative humidity.
- The rate of metabolism (Met), or the activity level, is determined according to ASHRAE-55 and the area studied.
3. Results and Discussion
3.1. The Impact of Building Orientation on Thermal Comfort and Energy Efficiency
3.2. Thermal Comfort and Energy Efficiency in Residential Buildings and the Role of MRT
3.3. Findings on the Differences Between MRT and Tia
3.4. Thermal Comfort Findings
3.5. Discussion
3.6. Limitations
4. Conclusions
Author Contributions
Funding
Institutional Review Board Statement
Informed Consent Statement
Data Availability Statement
Conflicts of Interest
References
- Lombard, L.P.; Ortiz, J.; Pout, C. A review on buildings energy consumption information. Energy Build. 2008, 40, 394–398. [Google Scholar] [CrossRef]
- Iranfar, M.; Nia, H.A. The Aesthetic Evaluation in Sustainable Architecture through Ethics to reach Wellbeing: Maslow’s Hierarchy as a Tool. J. Salut. Archit. 2022, 1, 35–59. [Google Scholar] [CrossRef]
- Muhy Al-Din, S.S.; Nia, H.A.; Rahbarianyazd, R. Towards Sustainable Living through Thermoneutral Temperature Management in Subtropical Steppe Climates. Sustainability 2024, 16, 5699. [Google Scholar] [CrossRef]
- Muhy Al-Din, S.S.; Saltik, B. Regulating Indoor Comfortable Temperature Limits for Sustainable Architectural Design in Mediterranean Climates. Buildings 2025, 15, 899. [Google Scholar] [CrossRef]
- Budd, G.M. Assessment of thermal stress—The essentials. J. Therm. Biol. 2001, 26, 371–374. [Google Scholar] [CrossRef]
- ASHRAE. ASHRAE Fundamentals Handbook 2001 (SI Edition); American Society of Heating, Refrigerating, and Air-Conditioning Engineers: Atlanta, GA, USA, 2001; ISBN 1883413885. [Google Scholar]
- ASHRAE Standard 55-2020; Thermal Environmental Conditions for Human Occupancy. American Society of Heating, Refrigerating and Air-Conditioning Engineers [ASHRAE]: Atlanta, GA, USA, 2020.
- Cui, W.; Cao, G.; Park, J.H.; Ouyang, Q.; Zhu, Y. Influence of indoor air temperature on human thermal comfort, motivation and performance. Build. Environ. 2013, 68, 114–122. [Google Scholar] [CrossRef]
- Reiter, S.; De Herde, A. Quantitative and qualitative criteria for comfortable urban public spaces. In Research in Building Physics; Carmeliet, J., Hens, H., Vermeir, G., Eds.; CRC Press: Boca Raton, FL, USA, 2003; pp. 1001–1011. [Google Scholar] [CrossRef]
- Lee, D.S.; Jo, J.H. Measuring and implementing mean radiant temperature in buildings: Technical review. Renew. Sustain. Energy Rev. 2025, 207, 114908. [Google Scholar] [CrossRef]
- Gan, G. Analysis of mean radiant temperature and thermal comfort. Build. Serv. Eng. Res. Technol. 2001, 22, 95–101. [Google Scholar] [CrossRef]
- Haves, P. Environment control in energy efficient buildings. In Energy Efficient Building—A Design Guide; Roof, S., Hancock, M., Eds.; Blackwell Scientific Publications: London, UK, 1992; pp. 40–59. [Google Scholar]
- Dogan, A.; Kayaci, N.; Kanbur, B.B.; Demir, H. Experimental Investigation of Mean Radiant Temperature Trends for a Ground Source Heat Pump-Integrated Radiant Wall and Ceiling Heating System. Buildings 2023, 13, 2420. [Google Scholar] [CrossRef]
- Feng, J.D.; Cheng, H. Comparison of Construction and Energy Costs for Radiant vs. VAV Systems in the California Bay Area; California Energy Commission: Alameda, CA, USA, 2018. [Google Scholar]
- Guruprakash, S.; Rumsey, P. VAV vs. radiant: Side-by-side comparison. ASHRAE J. 2014, 56, 16. [Google Scholar]
- Wang, H.; Olesen, B.W.; Kazanci, O.B. Using thermostats for indoor climate control in offices: The effect on thermal comfort and heating/cooling energy use. Energy Build. 2019, 188–189, 71–83. [Google Scholar] [CrossRef]
- Chaudhuri, T.; Soh, Y.C.; Bose, S.; Xie, L.; Li, H. On assuming mean radiant temperature equal to air temperature during PMV-based thermal comfort study in air-conditioned buildings. In Proceedings of the IECON 2016—42nd Annual Conference of the IEEE Industrial Electronics Society, Florence, Italy, 24–27 October 2016. [Google Scholar] [CrossRef]
- Mors, S.; Hensen, J.L.M.; Loomans, G.L.C.; Boerstra, A.C. Adaptive thermal comfort in primary school classrooms: Creating and validating PMV-based comfort charts. Build. Environ. 2011, 46, 2454–2461. [Google Scholar] [CrossRef]
- Li, Y.; Geng, S.; Zhang, X.; Zhang, H. Study of thermal comfort in underground construction based on field measurements and questionnaires in China. Build. Environ. 2017, 116, 45–54. [Google Scholar] [CrossRef]
- De Dear, R.J.; Brager, G.S. Developing an adaptive model of thermal comfort and preference. Build. Eng. 1998, 104, 145–167. [Google Scholar]
- ISO 7730; Ergonomics of the Thermal Environment—Analytical Determination and Interpretation of Thermal Comfort Using Calculation of the PMV and PPD Indices and Local Thermal Comfort Criteria. International Organization for Standardization: Geneva, Switzerland, 2002.
- Fanger, P.O. Thermal Comfort Analysis and Applications in Environmental Engineering; McGraw-Hill: New York, NY, USA, 1972. [Google Scholar]
- Hawks, M.A.; Cho, S. Review and analysis of current solutions and trends for zero energy building (ZEB) thermal systems. Renew. Sustain. Energy Rev. 2024, 189, 114028. [Google Scholar] [CrossRef]
- Muhy Al-Din, S.S.; Ahmad Nia, H.; Rahbarianyazd, R. Enhancing Sustainability in Building Design: Hybrid Approaches for Evaluating the Impact of Building Orientation on Thermal Comfort in Semi-Arid Climates. Sustainability 2023, 15, 15180. [Google Scholar] [CrossRef]
- Naboni, E.; Malcangi, A.; Zhang, Y.; Barzon, F. Defining the Energy Saving Potential of Architectural Design, Sustainability in Energy and Buildings. Energy Procedia 2015, 83, 140–146. [Google Scholar] [CrossRef]
- Climatic Change Knowledge Report. Iraq-Climate Change Overview Country Summary. 2023. Available online: https://climateknowledgeportal.worldbank.org/country/iraq (accessed on 31 August 2025).
- Kantor, N.; Unger, J. The most problematic variable in the course of human bio-meteorological comfort assessment is the mean radiant temperature. Cent. Eur. J. Geogr. 2011, 3, 90–100. [Google Scholar] [CrossRef]
- D’Ambrosio, A.F.R.; Dell’Isola, M.; Palella, B.I.; Riccio, G.; Russi, A. On the measurement of the mean radiant temperature and its influence on the indoor thermal environment assessment. Build. Environ. 2013, 63, 79–88. [Google Scholar] [CrossRef]
- Staiger, H.; Matzarakis, A. Accuracy of Mean Radiant Temperature Derived from Active and Passive Radiometry. Atmosphere 2020, 11, 805. [Google Scholar] [CrossRef]
- International Organization for Migration (IOM). Demographic Survey: Kurdistan Region of Iraq; UNFPA: New York, NY, USA; KRSO: Erbil, Iraq, 2018; Available online: https://iraq.iom.int (accessed on 31 August 2025).
- Koenigsberger, O.H.; Ingersoll, T.G.; Mayhew, A.; Szokolay, S.V. Manual of Tropical Housing and Design: Climatic Design; Universities Press: Hyderabad, India, 2010. [Google Scholar]
- Nikolopoulou, N.; Baker, N.; Steemers, K. Improvements to the globe thermometer for outdoor use. Archit. Sci. Rev. 1999, 42, 27–34. [Google Scholar] [CrossRef]
- Tartarini, F.; Schiavon, S.; Cheung, T.; Hoyt, T. CBE Thermal Comfort Tool: Online tool for thermal comfort calculations and visualizations. SoftwareX 2020, 12, 100563. [Google Scholar] [CrossRef]
- Abdul-Wahid, S.N.; Mahdy, A.; Godu, H.A. Calculation and Applications of Net Solar Radiation in Iraq. J. Al-Qadisiyah Pure Sci. 2010, 15, 1–30. [Google Scholar]
- Malinowski, J. Iraq a Geography-(Executive Summary); United States Military Academy, Department of Geography and Environmental Engineering: West Point, NY, USA, 2001. Available online: https://files.eric.ed.gov/fulltext/ED476013.pdf (accessed on 2 April 2025).
- Amen, M.A.; Afara, A.; Muhy-Al-Din, S.S. The Persuasibility of Globe Thermometer in Predicting Indoor Thermal Comfort Using Non-standard Globe Diameter: Row Houses of Semi-Arid Climates as Case Studies. Civ. Eng. Archit. 2024, 12, 425–435. [Google Scholar] [CrossRef]
- Kang, D.H.; Mo, P.H.; Choi, D.H.; Song, S.Y.; Yeo, M.S.; Kim, K.W. Effect of MRT variation on the energy consumption in a PMV-controlled office. Build. Environ. 2010, 45, 1914–1922. [Google Scholar] [CrossRef]
- Rowland, I.; Howe, T.N. Vitruvius: Ten Books of Architecture; Cambridge University Press: Cambridge, UK, 1999. [Google Scholar]
- Chiras, D. The Solar House: Passive Heating and Cooling; Chelsea Green Publishing Company: White River Junction, VT, USA, 2002. [Google Scholar]
- Givoni, B. Man, Climate and Architecture; Elsevier Science Ltd.: London, UK, 1969. [Google Scholar]
- Karasu, A. From Tradition to Modernity: Innovative shadings to save energy in residential architecture of Bodrum, Turkey. J. Int. Soc. Study Vernac. Settl. (ISVS) E-J. 2011, 2, 52–64. [Google Scholar]
- Nikolopoulou, M. Outdoor Thermal Comfort. Front. Biosci. 2011, 3, 1552–1568. [Google Scholar] [CrossRef]
- De Dear, R. Ping-pong globe thermometers for mean radiant temperatures. Heat. Vent. Eng. J. Air Cond. 1987, 60, 10–11. [Google Scholar]
- Kuehn, L.A.; Stubbs, R.A.; Weaver, R.S. Theory of the globe thermometer. J. Appl. Physiol. 1970, 29, 750–757. [Google Scholar] [CrossRef]
- Thorsson, S.; Lindberg, F.; Eliasson, I.; Holmer, B. Different methods for estimating the mean radiant temperature in an outdoor urban setting. Int. J. Climatol. 2007, 27, 1983–1993. [Google Scholar] [CrossRef]
- Bordbari, M.J.; Seifi, A.R.; Rastegar, M. Probabilistic energy consumption analysis in buildings using point estimate method. Energy 2018, 142, 716–722. [Google Scholar] [CrossRef]
- Zhao, H.; Magoulès, F. A review on the prediction of building energy consumption. Renew. Sustain. Energy Rev. 2012, 16, 3586–3592. [Google Scholar] [CrossRef]
- Al-Hafith, O.; BK, S.; de Wilde, P. Assessing annual thermal comfort extent in central courtyards: Baghdad as a case study. Smart Sustain. Built Environ. 2023, 12(3), 660–681. [Google Scholar] [CrossRef]
- Radha, C.A.H. Sustainable Renovation of Residential Buildings in Subtropical Climate Zone. Ph.D. Thesis, University of Pecs, Pecs, Hungary, 2018. [Google Scholar]
- Ali, T.H. Human Thermal Comfort Evaluation in Open Spaces of Two Multi-Story Residential Complexes Having Different Design Settings, Duhok-Iraq. Eng. Technol. J. 2016, 34, 1700–1715. [Google Scholar] [CrossRef]
- Besagni, G.; Borgarello, M. The determinants of residential energy expenditure in Italy. Energy 2018, 165, 369–386. [Google Scholar] [CrossRef]
- Wang, L.; Nyuk, H.W.; Li, S. Facade design optimization for naturally ventilated residential buildings in Singapore. Energy Build. 2007, 39, 954–961. [Google Scholar] [CrossRef]
- Hachem, C.; Athienitis, A.; Fazio, P. Parametric investigation of geometric form effects on solar potential of housing units. Sol. Energy 2011, 85, 1864–1877. [Google Scholar] [CrossRef]
- Bichiou, Y.; Krarti, M. Optimization of envelope and HVAC systems selection for residential buildings. Energy Build. 2011, 43, 3373–3382. [Google Scholar] [CrossRef]
- Nicol, F.; Humphreys, M. Maximum temperatures in European office buildings to avoid heat discomfort. Sol. Energy 2007, 81, 295–304. [Google Scholar] [CrossRef]
- Jindal, A. Thermal comfort study in naturally ventilated school classrooms in composite climate of India. Build. Environ. 2018, 142, 34–46. [Google Scholar] [CrossRef]
- Shrestha, M.; Rijal, H.B.; Kayo, G.; Shukuya, M. A field investigation on adaptive thermal comfort in school buildings in the temperate climatic region of Nepal. Build. Environ. 2021, 190, 107523. [Google Scholar] [CrossRef]
- Nematchoua, M.K.; Ricciardi, P.; Reiter, S.; Asadi, S.; Demers, C.M. Thermal comfort and comparison of some parameters coming from hospitals and shopping centers under natural ventilation: The case of Madagascar Island. J. Build. Eng. 2017, 13, 196–206. [Google Scholar] [CrossRef]
- Azizpour, F.; Moghimi, S.; Lim, C.H.; Mat, S.; Salleh, E.; Sopian, K. A thermal comfort investigation of a facility department of a hospital in hot-humid climate: Correlation between objective and subjective measurements. Indoor Built Environ. 2013, 22, 836–845. [Google Scholar] [CrossRef]
- Peeters, L.; de Dear, R.; Hensen, J.; D’Haeseleer, W. Thermal comfort in residential buildings: Comfort values and scales for building energy simulation. Appl. Energy 2009, 86, 772–780. [Google Scholar] [CrossRef]
- Iranfar, M.; Muhy Al-Din, S.S. The Cognition of the Architectural Styles Role on Thermal Performance in Houses of Semi-Arid Climates: Analysis of Building Envelope Materials. Civ. Eng. Archit. 2020, 8, 929–941. [Google Scholar] [CrossRef]
- Xu, C.; Li, S.; Zhang, X.; Shao, S. Thermal comfort and thermal adaptive behaviours in traditional dwellings: A case study in Nanjing, China. Build. Environ. 2018, 142, 153–170. [Google Scholar] [CrossRef]
- Rosenlund, H. Climatic Design of Buildings Using Passive Techniques; Lund University Publication (LUP): Lund, Sweden, 2000. [Google Scholar]
- Beck, H.E.; Zimmermann, N.E.; McVicar, T.R.; Vergopolan, N.; Berg, A.; Wood, E.F. Present and future Köppen-Geiger climate classification maps at 1-km resolution. Sci. Data 2018, 5, 180214. [Google Scholar] [CrossRef]
- Walikewitz, N.; Jänicke, B.; Langner, M.; Meier, F.; Endlicher, W. The difference between the mean radiant temperature and the air temperature within indoor environments: A case study during summer conditions. Build. Environ. 2015, 84, 151–161. [Google Scholar] [CrossRef]
- Chung, J.D.; Hong, H.; Yoo, H. Analysis on the impact of mean radiant temperature for the thermal comfort of underfloor air distribution systems. Energy Build. 2010, 42, 2353–2359. [Google Scholar] [CrossRef]
- Olesen, B.W.; Brager, G.S. A Better Way to Predict Comfort: The New ASHRAE Standard 55-2004. ASHRAE J. 2004, 20–26. [Google Scholar]
- Adunola, A.O.; Ajibola, K. Factors significant to thermal comfort within residential neighborhoods of Ibadan metropolis and preferences in adult residents’ use of spaces. SAGE Open 2016, 6, 2158244015624949. [Google Scholar] [CrossRef]
- Matzarakis, A.; Rutz, F.; Mayer, H. Modelling radiation fluxes in simple and complex environments—Application of the RayMan model. Int. J. Biometeorol. 2007, 51, 323–334. [Google Scholar] [CrossRef]
- Staiger, H.; Laschewski, G.; Grätz, A. The perceived temperature—A versatile index for the assessment of the human thermal environment. Part A: Scientific basics. Int. J. Biometeorol. 2012, 56, 165–176. [Google Scholar] [CrossRef]
- Hoppe, P.R. The physiological equivalent temperature is a universal index for the biometeorological assessment of the thermal environment. Int. J. Biometeorol. 1999, 43, 71–75. [Google Scholar] [CrossRef]
- Matzarakis, A.; Mayer, H.; Iziomon, M.G. Applications of a universal thermal index: Physiological equivalent temperature. Int. J. Biometeorol. 1999, 43, 76–84. [Google Scholar] [CrossRef]
- Jendritzky, G.; de Dear, R.; Havenith, G. UTCI—Why another thermal index? Int. J. Biometeorol. 2012, 56, 421–428. [Google Scholar] [CrossRef] [PubMed]
- Johansson, E.; Thorsson, S.; Emmanuel, R.; Krüger, E. Instruments and methods in outdoor thermal comfort studies—The need for standardization. Urban Clim. 2014, 10, 346–366. [Google Scholar] [CrossRef]
- KRSO (Kurdistan Region Statistic Office-Ministry of Planning/KRG). Kurdistan Region 2018–2022 Indicators. 2023. Available online: https://krso.gov.krd/en/publications/kurdistan-region-2018-2022-indicators (accessed on 31 March 2025).
- Kock, N.; Hadaya, P. Minimum sample size estimation in PLS-SEM: The inverse square root and gamma-exponential methods. Inf. Syst. J. 2016, 28, 227–261. [Google Scholar] [CrossRef]
- Khrit, N.; Alghoul, M.; Sopian, K.; Lahimer, A.; Elayeb, O. Assessing the accuracy of globe thermometer method in predicting outdoor mean radiant temperature under Malaysia tropical microclimate. In Proceedings of the World Renewable Energy Congress-17, Manama, Bahrain, 4–8 December 2016. [Google Scholar]
- Vargas-Salgado, C.; Chiñas-Palacios, C.; Aguila-León, J.; Alfonso-Solar, D. Measurement of the black globe temperature to estimate the MRT and WBGT indices using a smaller diameter globe than a standardized one: Experimental analysis. In Proceedings of the CARPE Conference 2019: Horizon Europe and Beyond 2019, Valencia, Spain, 23–25 October 2019. [Google Scholar] [CrossRef]
- Zhang, H.; Arens, E.; Huizenga, C.; Han, T. Thermal sensation and comfort models for non-uniform and transient environments, part II: Local comfort of individual body parts. Build. Environ. 2010, 45, 389–398. [Google Scholar] [CrossRef]
- Givoni, B. Passive and Low Energy Cooling of Buildings; John Wiley & Sons: Hoboken, NJ, USA, 1994. [Google Scholar]
- Szokolay, S.V. Introduction to Architectural Science: The Basis of Sustainable Design; Elsevier: Amsterdam, The Netherlands, 2008. [Google Scholar] [CrossRef]
- Brawm, G.Z.; Dekay, M. Sun, Wind & Light—Architectural Design Strategies, 2nd ed.; John Wiley & Sons: Hoboken, NJ, USA, 2001. [Google Scholar]
- Xu, X.; Rioux, T.P.; Castellani, M.P. Three dimensional models of human thermoregulation: A review. J. Therm. Biol. 2023, 112, 103491. [Google Scholar] [CrossRef] [PubMed]
- Meir, I.A.; Roaf, S.C. Thermal comfort–thermal mass: Housing in hot dry climates. Indoor Air 2002, 1, 1050–1055. [Google Scholar]






| (a) Environmental Variables | |||
| No. | Equipment | Parameter | Location |
| 1 | EXTECH-H30 (Extech Electronics Co., Taiwan) globe thermometer (40 mm globe) | Inside Globe Temperature (Gti) | Indoor |
| 2 | HAMA (Monheim, Germany) electronic metrological station | Inside Air Temperature (Tia) | Indoor |
| 3 | Pack life DA02 anemometer model (Tacklife, Shenzhen, China) | Inside Air Velocity (IAV) | Indoor |
| 4 | HAMA (Monheim, Germany) electronic metrological station | Inside Relative Humidity (Rhi) | Indoor |
| (b) Individual Variables | |||
| Room | Activity Level (Met) | Clothing Insulation (Clo) | Clo Value |
| Kitchen | 1.6 | 0.5 | 1.03 |
| Living Room | 1.0 | 0.5 | 1.03 |
| Master Bedroom | 0.8 | 0.5 | 1.03 |
| Second Bedroom | 0.8 | 0.5 | 1.03 |
| Guest Room | 1.0 | 0.5 | 1.03 |
| (a) Summer | |||||
| Orientation | MRT Min (°C) | MRT Max (°C) | Tia Min (°C) | Tia Max (°C) | Regression Equation |
| North | 24.8 | 30.7 | 24.3 | 28.2 | Tia = 0.52386 MRT + 12.011 |
| East | 26.9 | 32.6 | 25.9 | 31.0 | Tia = 0.96133 MRT + 0.29491 |
| South | 27.6 | 32.7 | 26.9 | 31.6 | Tia = 0.89142 MRT + 2.53725 |
| West | 28.1 | 34.2 | 26.5 | 31.8 | Tia = 0.87704 MRT + 2.45374 |
| (b) Winter | |||||
| Orientation | MRT Min (°C) | MRT Max (°C) | Tia Min (°C) | Tia Max (°C) | Regression Equation |
| North | 16.5 | 19.5 | 17.1 | 20.0 | Tia = 0.96132 MRT + 1.29778 |
| East | 18.3 | 21.0 | 19.4 | 22.0 | Tia = 0.7268 MRT + 6.35881 |
| South | 15.7 | 20.3 | 19.8 | 22.3 | Tia = 0.4427 MRT + 12.43516 |
| West | 18.4 | 22.0 | 19.9 | 22.8 | Tia = 0.81624 MRT + 5.0074 |
| Orientation | Regression Coefficient (β) | R2 Value | Interpretation |
|---|---|---|---|
| North | 0.28 | 0.62 | Moderate thermal responsiveness; partial shielding from direct solar gain. |
| East | 0.35 | 0.68 | Increased morning exposure; moderate thermal coupling. |
| South | 0.42 | 0.74 | Strongest thermal coupling due to high solar exposure and limited shading. |
| West | 0.31 | 0.65 | Afternoon solar gain contributes to moderate responsiveness. |
| (a) Summer | ||||||||||||
| Room | North PMV | North Sensation | North PPD | East PMV | East Sensation | East PPD | South PMV | South Sensation | South PPD | West PMV | West Sensation | West PPD |
| Guest Room | −0.45 | Neutral | 10% | 0.32 | Neutral | 9% | 1.92 | Warm | 73% | 1.94 | Warm | 74% |
| Kitchen | 0.74 | Slightly Warm | 17% | 1.57 | Warm | 55% | 1.61 | Warm | 57% | 1.65 | Warm | 59% |
| Living Room | 0.08 | Neutral | 5% | 0.44 | Neutral | 10% | 0.44 | Neutral | 9% | 0.47 | Neutral | 10% |
| Master Bedroom | −1.37 | Slightly Cool | 44% | 0.11 | Neutral | 6% | 0.01 | Neutral | 5% | 0.14 | Neutral | 6% |
| Second Bedroom | −0.95 | Slightly Cool | 26% | 1.14 | Slightly Warm | 33% | 1.35 | Slightly Warm | 43% | 1.23 | Slightly Warm | 38% |
| (b) Winter | ||||||||||||
| Room | North PMV | North Sensation | North PPD | East PMV | East Sensation | East PPD | South PMV | South Sensation | South PPD | West PMV | West Sensation | West PPD |
| Guest Room | −1.64 | Cool | 59% | −0.84 | Slightly Cool | 20% | −0.56 | Slightly Cool | 12% | −0.61 | Slightly Cool | 13% |
| Kitchen | 0.19 | Neutral | 6% | 0.42 | Neutral | 9% | 0.05 | Neutral | 5% | 0.44 | Neutral | 9% |
| Living Room | −1.62 | Cool | 58% | −1.05 | Slightly Cool | 29% | −1.16 | Slightly Cool | 33% | −0.37 | Neutral | 8% |
| Master Bedroom | −2.86 | Cold | 98% | −1.76 | Cool | 65% | −2.4 | Cool | 91% | −2.1 | Cool | 81% |
| Second Bedroom | −2.87 | Cold | 98% | −1.8 | Cool | 67% | −2.39 | Cool | 91% | −2.3 | Cool | 89% |
Disclaimer/Publisher’s Note: The statements, opinions and data contained in all publications are solely those of the individual author(s) and contributor(s) and not of MDPI and/or the editor(s). MDPI and/or the editor(s) disclaim responsibility for any injury to people or property resulting from any ideas, methods, instructions or products referred to in the content. |
© 2025 by the authors. Licensee MDPI, Basel, Switzerland. This article is an open access article distributed under the terms and conditions of the Creative Commons Attribution (CC BY) license (https://creativecommons.org/licenses/by/4.0/).
Share and Cite
Muhy Al-Din, S.S.; Hafizi, N.; Altan, H. Quantifying the Relationship Between Mean Radiant Temperature and Indoor Air Temperature Across Building Orientations in Hot and Dry Steppe Climates. Atmosphere 2025, 16, 1132. https://doi.org/10.3390/atmos16101132
Muhy Al-Din SS, Hafizi N, Altan H. Quantifying the Relationship Between Mean Radiant Temperature and Indoor Air Temperature Across Building Orientations in Hot and Dry Steppe Climates. Atmosphere. 2025; 16(10):1132. https://doi.org/10.3390/atmos16101132
Chicago/Turabian StyleMuhy Al-Din, Salar Salah, Nazgol Hafizi, and Hasim Altan. 2025. "Quantifying the Relationship Between Mean Radiant Temperature and Indoor Air Temperature Across Building Orientations in Hot and Dry Steppe Climates" Atmosphere 16, no. 10: 1132. https://doi.org/10.3390/atmos16101132
APA StyleMuhy Al-Din, S. S., Hafizi, N., & Altan, H. (2025). Quantifying the Relationship Between Mean Radiant Temperature and Indoor Air Temperature Across Building Orientations in Hot and Dry Steppe Climates. Atmosphere, 16(10), 1132. https://doi.org/10.3390/atmos16101132

