Parametric Enhancement of a Window-Windcatcher for Enhanced Thermal Comfort and Natural Ventilation
Abstract
1. Introduction

- The proposed window-windcatcher system, by virtue of its small size and integration into the building envelope as a constituent of the window assembly, enhances the utilization potential of the building roof, while concurrently freeing it from design and spatial limitations, including potential vertical expansion or roof garden
- The proposed windcatcher’s diminutive size could surmount the minimum wind velocity requirement, as the air’s path from outside to inside the building through the system is considerably shorter compared to conventional windcatchers.
- As the proposed system is affixed to the window, it can regulate the volumetric airflow entering the room by adjusting the window opening ratio.
- Due to the system’s design, small size, and installation location, all its components are easily accessible, making it easy to clean and impervious to dust and insects.
2. Materials and Methods
2.1. The Baseline Design of the Proposed Window-Windcatcher
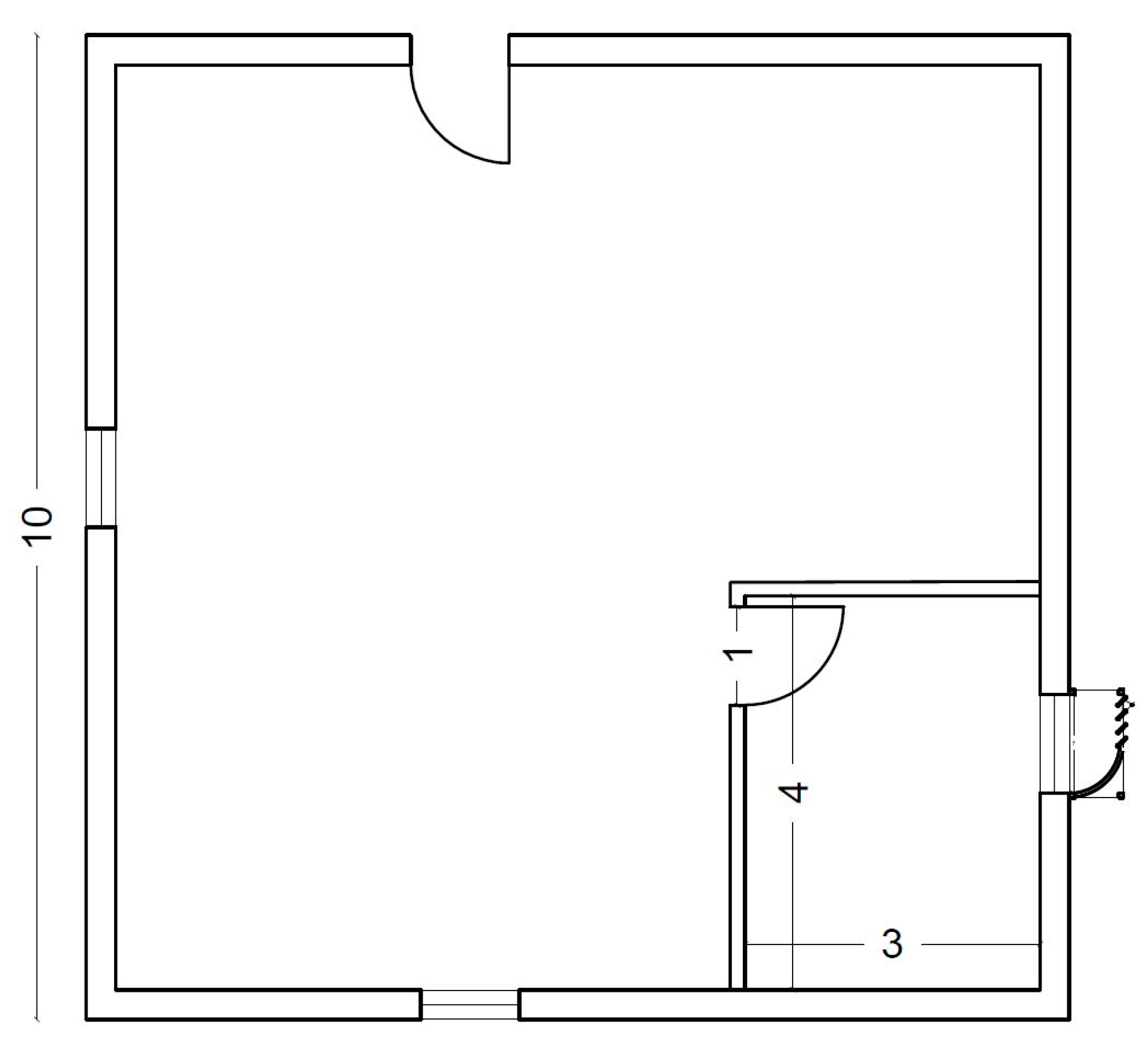
2.2. Building Description
2.3. Study Cases
2.4. CFD Setup
2.5. Optimization Criteria and Parametric Intervals

3. Results
3.1. Fins Angle for the Maximum Actual-to-Required Ventilation Ratio ()
3.2. That Corresponds to the Maximum Actual-to-Required Ventilation Ratio ()
3.3. Turbulence Conditions for the Optimized Dimensional Parameters
3.4. Qualitative Characterization
3.5. Thermal Comfort
4. Discussion
5. Conclusions
Author Contributions
Funding
Institutional Review Board Statement
Informed Consent Statement
Data Availability Statement
Conflicts of Interest
Nomenclature
| Floor area () | |
| k–ε model parameter | |
| Width of the window-windcatcher [cm] | |
| Fins-wall distance [cm] | |
| Fins-wall distance with the maximum actual-to-required ventilation ratio [cm] | |
| Initial turbulence intensity | |
| Turbulence kinetic energy (J/kg) | |
| Turbulence or eddy length scale | |
| Number of bedrooms | |
| Actual-to-required ventilation ratio | |
| Actual-to-required ventilation ratio for each ith | |
| Actual to required ventilation rate for ith | |
| Generic actual ventilation rate (mathematically obtained) [L/s] | |
| Average generic actual ventilation rate (mathematically obtained) [L/s] | |
| Actual ventilation rate [L/s] | |
| Qact,D | for the Doha case study [L/s] |
| Actual ventilation rate for ith [L/s] | |
| Actual ventilation rate for each ith [L/s] | |
| Required ventilation rate (ASHRAE standards) [L/s] | |
| Reynolds number | |
| SQavg | Average actual ventilation rate shift [L/s] |
| Actual ventilation rate shift from one case study to another [L/s] | |
| Average annual temperature [] | |
| Initial velocity magnitude (m/s) | |
| Normal component of wind velocity [m/s] | |
| Shear component of wind velocity [m/s] | |
| The total wind velocity [m/s] | |
| Turbulence Kinetic Energy Dissipation (J/kg) | |
| Fins angle [] | |
| Fins angle with the highest ventilation rate [] |
References
- Eionet. Energy and Climate Change; European Environment Agency: Copenhagen, Denmark, 2017. [Google Scholar]
- Jomehzadeh, F.; Nejat, P.; Calautit, J.K.; Yusof, M.B.M.; Zaki, S.A.; Hughes, B.R.; Yazid, M.N.A.W.M. A review on windcatcher for passive cooling and natural ventilation in buildings, Part 1: Indoor air quality and thermal comfort assessment. Renew. Sustain. Energy Rev. 2017, 70, 736–756. [Google Scholar] [CrossRef]
- Santamouris, M. Cooling the buildings—Past, present and future. Energy Build. 2016, 128, 617–638. [Google Scholar] [CrossRef]
- Wu, J.; Lian, Z.; Zheng, Z.; Zhang, H. A method to evaluate building energy consumption based on energy use index of different functional sectors. Sustain. Cities Soc. 2020, 53, 101893. [Google Scholar] [CrossRef]
- Wang, T.; Foliente, G.; Song, X.; Xue, J.; Fang, D. Implications and future direction of greenhouse gas emission mitigation policies in the building sector of China. Renew. Sustain. Energy Rev. 2014, 31, 520–530. [Google Scholar] [CrossRef]
- Al-mudhafar, A.H.N.; Hamzah, M.T.; Tarish, A.L. Potential of integrating PCMs in residential building envelope to reduce cooling energy consumption. Case Stud. Therm. Eng. 2021, 27, 101360. [Google Scholar] [CrossRef]
- Chenari, B.; Carrilho, J.D.; da Silva, M.G. Towards sustainable, energy-efficient and healthy ventilation strategies in buildings: A review. Renew. Sustain. Energy Rev. 2016, 59, 1426–1447. [Google Scholar] [CrossRef]
- Ma'Bdeh, S.N.; Al-Zghoul, A.; Alradaideh, T.; Bataineh, A.; Ahmad, S. Simulation study for natural ventilation retrofitting techniques in educational classrooms—A case study. Heliyon 2020, 6, e05171. [Google Scholar] [CrossRef]
- Belmonte, M.-V.; Díaz-López, C.; Gavilanes, J.; Millán, E. Introducing passive strategies in the initial stage of the design to reduce the energy demand in single-family dwellings. Build. Environ. 2021, 197, 107832. [Google Scholar] [CrossRef]
- Zhang, H.; Yang, D.; Tam, V.W.; Tao, Y.; Zhang, G.; Setunge, S.; Shi, L. A critical review of combined natural ventilation techniques in sustainable buildings. Renew. Sustain. Energy Rev. 2021, 141, 110795. [Google Scholar] [CrossRef]
- Al-Hemiddi, N.A.; Al-Saud, K.A.M. The effect of a ventilated interior courtyard on the thermal performance of a house in a hot–arid region. Renew. Energy 2001, 24, 581–595. [Google Scholar] [CrossRef]
- Ababsa, M. Atlas of Jordan: History, Territories and Society; Contemporain Publications; Presses de l’Ifpo: Beirut, Lebanon, 2014; p. 485. [Google Scholar]
- Geros, V.; Santamouris, M.; Tsangrasoulis, A.; Guarracino, G. Experimental evaluation of night ventilation phenomena. Energy Build. 1999, 29, 141–154. [Google Scholar] [CrossRef]
- Reyes, V.; Moya, S.; Morales, J.; Sierra-Espinosa, F. A study of air flow and heat transfer in building-wind tower passive cooling systems applied to arid and semi-arid regions of Mexico. Energy Build. 2013, 66, 211–221. [Google Scholar] [CrossRef]
- Ahmed, T.; Kumar, P.; Mottet, L. Natural ventilation in warm climates: The challenges of thermal comfort, heatwave resilience and indoor air quality. Renew. Sustain. Energy Rev. 2021, 138, 110669. [Google Scholar] [CrossRef]
- Jomehzadeh, F.; Hussen, H.M.; Calautit, J.K.; Nejat, P.; Ferwati, M.S. Natural ventilation by windcatcher (Badgir): A review on the impacts of geometry, microclimate and macroclimate. Energy Build. 2020, 226, 110396. [Google Scholar] [CrossRef]
- Esfeh, M.K.; Sohankar, A.; Shahsavari, A.; Rastan, M.; Ghodrat, M.; Nili, M. Experimental and numerical evaluation of wind-driven natural ventilation of a curved roof for various wind angles. Build. Environ. 2021, 205, 108275. [Google Scholar] [CrossRef]
- Hirose, C.; Ikegaya, N.; Hagishima, A.; Tanimoto, J. Indoor airflow and thermal comfort in a cross-ventilated building within an urban-like block array using large-eddy simulations. Build. Environ. 2021, 196, 107811. [Google Scholar] [CrossRef]
- Zheng, X.; Montazeri, H.; Blocken, B. CFD analysis of the impact of geometrical characteristics of building balconies on near-façade wind flow and surface pressure. Build. Environ. 2021, 200, 107904. [Google Scholar] [CrossRef]
- Alsailani, M.; Montazeri, H.; Rezaeiha, A. Towards optimal aerodynamic design of wind catchers: Impact of geometrical characteristics. Renew. Energy 2021, 168, 1344–1363. [Google Scholar] [CrossRef]
- Bahadori, M.N.; Dehghani-Sanij, A.; Sayigh, A. Wind Towers; Springer: Berlin/Heidelberg, Germany, 2016. [Google Scholar]
- Ghadiri, M.H.; Ibrahim, N.L.N.; Dehnavi, M. The effect of tower height in square plan wind catcher on its thermal behavior. Aust. J. Basic Appl. Sci. 2011, 5, 381–385. [Google Scholar]
- Hughes, B.R.; Calautit, J.K.; Ghani, S.A. The development of commercial wind towers for natural ventilation: A review. Appl. Energy 2012, 92, 606–627. [Google Scholar] [CrossRef]
- Abdo, P.; Taghipour, R.; Huynh, B.P. Three-Dimensional Simulation of Wind-Driven Ventilation through a Windcatcher with Different Inlet Designs. J. Therm. Sci. Eng. Appl. 2019, 12, 041008. [Google Scholar] [CrossRef]
- Abdullah, A.; Bin Said, I.; Ossen, D.R. A sustainable bio-inspired cooling unit for hot arid regions: Integrated evaporative cooling system in wind tower. Appl. Therm. Eng. 2019, 161, 114201. [Google Scholar] [CrossRef]
- Saadatian, O.; Haw, L.C.; Sopian, K.; Sulaiman, M.Y. Review of windcatcher technologies. Renew. Sustain. Energy Rev. 2012, 16, 1477–1495. [Google Scholar] [CrossRef]
- Abdo, P.; Huynh, B.P. Effect of Combining Buoyancy Driven and Winddriven Ventilation in a Two Dimensional Room Fitted with a Windcatcher. In ASME International Mechanical Engineering Congress and Exposition; American Society of Mechanical Engineers: New York, NY, USA, 2017; p. V007T09A016. [Google Scholar]
- Bahadori, M.N. Passive Cooling Systems in Iranian Architecture. Sci. Am. 1978, 238, 144–155. [Google Scholar] [CrossRef]
- Sangdeh, P.K.; Nasrollahi, N. Windcatchers and their applications in contemporary architecture. Energy Built Environ. 2022, 3, 56–72. [Google Scholar] [CrossRef]
- Alrebei, O.F.; Obeidat, L.M.; Ma’bdeh, S.N.; Kaouri, K.; Al-Radaideh, T.; Amhamed, A.I. Window-Windcatcher for Enhanced Thermal Comfort, Natural Ventilation and Reduced COVID-19 Transmission. Buildings 2022, 12, 791. [Google Scholar] [CrossRef]
- Karakatsanis, C.; Bahadori, M.; Vickery, B. Evaluation of pressure coefficients and estimation of air flow rates in buildings employing wind towers. Sol. Energy 1986, 37, 363–374. [Google Scholar] [CrossRef]
- Omer, A.M. Renewable building energy systems and passive human comfort solutions. Renew. Sustain. Energy Rev. 2008, 12, 1562–1587. [Google Scholar] [CrossRef]
- Hashemian, M. Reverse Analysis of Wind-Catchers of Ab-Anbars in Iran for Coming to Innovations in Sustainable Architecture. In Proceedings of the 6th International Conference on Civil, Architectural and Environmental Science, Stockholm, Sweden, 19 June 2019. [Google Scholar]
- Mabdeh, S.; Al Radaideh, T.; Hiyari, M. Enhancing Thermal Comfort of Residential Buildings through Dual Functional Passive System (Solar-Wall). J. Green Build. 2020, 16, 155–177. [Google Scholar] [CrossRef]
- Weatherspark. Climate and Average Weather Year Round in Amman; Weatherspark: Amman, Jordan, 2022. [Google Scholar]
- Toivanen, P.K.; Janhunen, P. Spin Plane Control and Thrust Vectoring of Electric Solar Wind Sail. J. Propuls. Power 2013, 29, 178–185. [Google Scholar] [CrossRef]
- Obeidat, B.; Alrebei, O.F.; Abdallah, I.A.; Darwish, E.F.; Amhamed, A. CFD Analyses: The Effect of Pressure Suction and Airflow Velocity on Coronavirus Dispersal. Appl. Sci. 2021, 11, 7450. [Google Scholar] [CrossRef]
- Alrebi, O.F.; Obeidat, B.; Abdallah, I.A.; Darwish, E.F.; Amhamed, A. Airflow dynamics in an emergency department: A CFD simulation study to analyse COVID-19 dispersion. Alex. Eng. J. 2022, 61, 3435–3445. [Google Scholar] [CrossRef]
- de Roode, S.R.; Jonker, H.J.; van de Wiel, B.J.; Vertregt, V.; Perrin, V. A Diagnosis of Excessive Mixing in Smagorinsky Subfilter-Scale Turbulent Kinetic Energy Models. J. Atmos. Sci. 2017, 74, 1495–1511. [Google Scholar] [CrossRef]
- Dimotakis, P.E. Turbulent Mixing. Annu. Rev. Fluid Mech. 2005, 37, 329–356. [Google Scholar] [CrossRef]
- Lee, S.C.; Harsha, P.T. Use of turbulent kinetic energy in free mixing studies. AIAA J. 1970, 8, 1026–1032. [Google Scholar] [CrossRef]
- Morales, X.; Sierra-Espinosa, F.; Moya, S.; Carrillo, F. Thermal effectiveness of wind-tower with heated exit-wall and inlet-air humidification: Effects of winter and summertime. Build. Environ. 2021, 204, 108110. [Google Scholar] [CrossRef]
- Awadallah, T.; Adas, H.; Obaidat, Y.; Jarrar, I. Energy Efficient Building Code for Jordan. Energy 2009, 1, 1–4. [Google Scholar]
- Standards 62.1 & 62.2; Ventilation for Acceptable Indoor Air Quality. American Society of Heating Refrigerating and Air-Conditioning Engineers: Atlanta, GA, USA, 2016.
- Al-Hafith, O.; Satish, B.K.; Bradbury, S.; de Wilde, P. Simulation of courtyard spaces in a desert climate. Energy Procedia 2017, 142, 1997–2002. [Google Scholar] [CrossRef]
- DesignBuilder Software. DesignBuilder 2.1 User’s Manual. 21 October 2009. 2021. Available online: http://www.designbuildersoftware.com/docs/designbuilder/DesignBuilder_2.1_Users-Manual_Ltr.pdf (accessed on 15 May 2022).
- DesignBuilder Software. ASHRAE 140-2017/BESTEST Results for DesignBuilder v6.1. 28 March 2021. 2022. Available online: https://designbuilder.co.uk/download/documents (accessed on 15 May 2022).

















| Category | Property | Specification | Consistent with Reference |
|---|---|---|---|
| Mesh Quality | Elements maximum size (mm) | 500 | [30,39,40,41] |
| Number of elements | 2,190,000 | ||
| Growth rate | 1.2 | ||
| Defeature size (mm) | 2.5 | ||
| Curvature minimum size (mm) | 5 | ||
| Curvature normal angle (degree) | 18 | ||
| Skewness | 0.21188 | ||
| Orthogonal quality | 0.78694 | ||
| Inflation transition ratio | 0.75 | ||
| Inflation number of layers | 5 | ||
| The mesh sensitivity study was conducted in the Amman case study using average velocity across an interior plane with an offset of 1.7 m from the floor, which is approximately the average person’s height in the Middle East Region [42]. The velocity results converged with a relative error margin of 1%. | |||
| Turbulence model | k − | [30,39,40,41] | |
| Solid Modeling | Domain | Boolean | [30] |
| Solid-fluid | No-Slip Walls | ||
| Inlet conditions | Velocity inlets; as per Figure 5, with a turbulence intensity of 5% | ||
| Fluid Modeling and Boundary Conditions | Outlet condition | Pressure outlets of 1 bar | [30,37,38] |
| The external surfaces of the computational domain | Openings An open boundary condition is a computational boundary that allows phenomena generated in the interior domain to pass through the artificial boundary without distortion and without affecting the interior solution. | ||
| Computational performance | Computational performance | Computational performance | [30] |
| Computational time | 12 h/case | ||
| Software | Ansys CFX | ||
| Residual targets | 1 × 10−3 | ||
| Achieved residual level | Approximately 1 × 10−6 | ||
| Boundary Wall | No slip wall | Smooth | |
| Simulation | Steady state | ||
| Parameter | Description | |
|---|---|---|
| Building area | 100 m2 | |
| Shape | Square, 10 × 10 m | |
| Living space area | 12 m2 | |
| Building height | 3 m | |
| Parapet height | 1 m | |
| Living space shape | Rectangular 3 × 4 m | |
| Orientation of living space | Long axis east-west | |
| Windows | Two windows. South, West | |
| Windows size | Four windows | |
| Windows size | Two windows: Width = 1.5 Height = 1 | |
| Two windows: Width = 1.0 Height = 1 | ||
| Airtightness | 0.05 ac/h | |
| Lighting | Fluorescent | 25 mm diam |
| Power density | 10.20 W/m2 | |
| Control | Stepped = 1 step ON/OFF dimming day lighting control | |
| HVAC System | Heating | Off |
| Cooling | Off | |
| Natural Ventilation | On within ASHRAE limitations | |
| Occupancy | Person | 5 |
| Component | Thickness | U-Value | Layers | Thickness |
|---|---|---|---|---|
| External wall | 0.26 m | 1.736 | Cement Plaster | 0.03 |
| Block | 0.20 | |||
| Cement Plaster | 0.03 | |||
| Internal wall | 0.16 m | 1.690 | Cement Plaster | 0.03 |
| Block | 0.10 | |||
| Cement Plaster | 0.03 | |||
| Roof | 0.28 m | 2.004 | Cast Reinforced concrete | 0.10 |
| Block + cast reinforced concrete | 0.15 | |||
| Cement Plaster | 0.03 | |||
| Floor | 0.35 m | 1.4 | Gravel-based Soil | 0.20 |
| Sand | 0.05 | |||
| Cast Reinforced concrete | 0.10 | |||
| Windows | N/A | 1.4 | Sliding, Single clear glazing | 0.06 |
| 5.881 | Aluminum Framing | 0.05 |
Disclaimer/Publisher’s Note: The statements, opinions and data contained in all publications are solely those of the individual author(s) and contributor(s) and not of MDPI and/or the editor(s). MDPI and/or the editor(s) disclaim responsibility for any injury to people or property resulting from any ideas, methods, instructions or products referred to in the content. |
© 2023 by the authors. Licensee MDPI, Basel, Switzerland. This article is an open access article distributed under the terms and conditions of the Creative Commons Attribution (CC BY) license (https://creativecommons.org/licenses/by/4.0/).
Share and Cite
Obeidat, L.M.; Alrebei, O.F.; Nouh Ma’bdeh, S.; Al-Radaideh, T.; Amhamed, A.I. Parametric Enhancement of a Window-Windcatcher for Enhanced Thermal Comfort and Natural Ventilation. Atmosphere 2023, 14, 844. https://doi.org/10.3390/atmos14050844
Obeidat LM, Alrebei OF, Nouh Ma’bdeh S, Al-Radaideh T, Amhamed AI. Parametric Enhancement of a Window-Windcatcher for Enhanced Thermal Comfort and Natural Ventilation. Atmosphere. 2023; 14(5):844. https://doi.org/10.3390/atmos14050844
Chicago/Turabian StyleObeidat, Laith M., Odi Fawwaz Alrebei, Shouib Nouh Ma’bdeh, Tamer Al-Radaideh, and Abdulkarem I. Amhamed. 2023. "Parametric Enhancement of a Window-Windcatcher for Enhanced Thermal Comfort and Natural Ventilation" Atmosphere 14, no. 5: 844. https://doi.org/10.3390/atmos14050844
APA StyleObeidat, L. M., Alrebei, O. F., Nouh Ma’bdeh, S., Al-Radaideh, T., & Amhamed, A. I. (2023). Parametric Enhancement of a Window-Windcatcher for Enhanced Thermal Comfort and Natural Ventilation. Atmosphere, 14(5), 844. https://doi.org/10.3390/atmos14050844

