Next Article in Journal
Recommendation for Calculation of Energy Demand in Pulsed Electric Field Pretreatment of Lignocellulosic Biomass for Efficient Biogas Production
Next Article in Special Issue
Drivers of Green Supply Chain Management Implementation in the SMEs: The Moderating Role of Environmental Uncertainty
Previous Article in Journal
Hourly Regional Rainfall–Runoff Prediction Using Transformer with Water Conservation Constraints
Previous Article in Special Issue
Game Analysis Between Manufacturer and Retailer Under Carbon Tax Policy
 
 
Font Type:
Arial Georgia Verdana
Font Size:
Aa Aa Aa
Line Spacing:
Column Width:
Background:
Article

The Implementation of Automated Guided Vehicles to Logistics Processes in a Production Company—Case Study

by
Iveta Kubasáková
,
Jaroslava Kubáňová
* and
Dominik Benčo
Department of Road and Urban Transport, Faculty of Operation and Economics of Transport and Communications, University of Zilina, 010 26 Zilina, Slovakia
*
Author to whom correspondence should be addressed.
Sustainability 2026, 18(1), 538; https://doi.org/10.3390/su18010538
Submission received: 30 October 2025 / Revised: 4 December 2025 / Accepted: 22 December 2025 / Published: 5 January 2026
(This article belongs to the Special Issue Sustainable Operations, Logistics and Supply Chain Management)

Abstract

The automation of logistics processes in companies is an essential part of the modernization and advancement of companies around the world. This article deals with the issue of deploying a selected type of automated guided vehicle (AGV) in very specific conditions. AGV is suitable for optimizing the circular supply chain in specific conditions of a manufacturing company. The deployment of AGVs is governed by the production needs of the section in question. The selection criterion was therefore the quantity of products that needed to be transported on the selected route. The article uses a new calculation of AGV requirements based on the saturation of individual components from the picking location to the assembly line. The ratio indicator was considered: driving time per shift, depending on the length of working time. Based on this calculation, the most effective option was applied from the individual solutions. Based on our calculation, we arrived at a requirement for three AGVs, plus a reserve, i.e., four. Our selected calculations were applied to the FRONT and TOP positions, where a decision was made between the option of using under-run AGVs or a truck. The decision was made based on the saturation level, and the result is described at the end of the discussion. The AGV is one of the tools for sustainable supply chain management in a company. However, it is important to evaluate the total cost of ownership, including lower labour costs, less risk of damage to goods, higher productivity, and long service life of the trucks. Thanks to these factors, AGVs often prove to be economically advantageous.

1. Introduction

The implementation of automated technology brings effective supply chain management to businesses. Its benefit is the minimization of material flow costs. Effective material flow management is one of the most important topics for optimizing logistics processes in a company. The AGV brings direct savings on materials. Currently, automation has become one of the most important topics in the world of technology and economics. With rapid advances in robotics, artificial intelligence, and automated systems, companies are facing new challenges and opportunities. Automation affects not only manufacturing industries but also services, administration, and other areas of the economy. This study presents a detailed analysis of the movement of individual components on the FRONT platform (front-loading washing machines) and the TOP platform (top-loading washing machines). This study aims to develop an optimized framework for determining the required number of automated guided vehicles (AGVs) based on saturation analysis, focusing on the efficient transport of individual components from the picking zone to the assembly line.
The primary aim of this paper is to propose both the appropriate type and the necessary number of AGVs to optimize the logistic processes within the company. This is achieved through a comprehensive analysis of component flows and AGV utilization rates. The study compares various types of AGVs with respect to spatial navigation and evaluates them based on their capacity and navigational efficiency.
By applying the saturation method, the supply chain process—specifically, the delivery of components to the production line—was analyzed to identify the most efficient AGV configuration. The findings of this study offer a strategic evaluation of AGV deployment within the production hall, aimed at streamlining automation, enhancing workforce productivity, and reallocating labour to higher-value tasks. As a direct outcome, the implementation of the proposed system would enable the reassignment of two employees to other critical areas within the company.
The automated guided vehicle represents a key element of robotization and automation in modern industrial environments, significantly contributing to the development of Industry 4.0. An AGV is defined as a computer-controlled, wheeled system that operates without human intervention, with its main task being the efficient material handling—transporting raw materials, semi-finished goods, and finished products within production lines, warehouses, and distribution centres [1,2]. The intelligent AGV based on electromagnetic guidance was created and developed with the aim of achieving automation of factory material transport, increasing the level of automation, and increasing the productivity and efficiency of factories and enterprises [3]. Consequently, they find application in a wide range of sectors, from the automotive industry to logistics.
A critical area of research focuses on navigation and localization. Traditional, yet inflexible, methods (such as guidance wires) are increasingly being replaced by sophisticated solutions [4]. These primarily include Laser Guided Vehicles (LGVs), which offer high precision, and advanced techniques like SLAM (Simultaneous Localization and Mapping), utilizing sensors such as LIDAR to create a map and simultaneously determine position. The trend is the development of hybrid navigation systems that ensure robust and autonomous operation even in dynamically changing and semi-structured environments [5].
The effectiveness of the entire AGV system is conditional on advanced system control and path planning [6]. A shift is observable from centralized control, where a central system manages everything, to decentralized architectures. These allow vehicles to make individual decisions, thereby increasing operational flexibility and robustness [7]. Key research is dedicated to algorithms for dynamic path planning, dispatching, and fleet optimization of AGVs, with the priority being the elimination of collisions and deadlock situations [8]. The management of energy consumption and battery optimization is also an integral part, ensuring continuous operation.
The application of AGVs brings measurable benefits, including a significant reduction in operating costs due to the elimination of labour expenses and a decrease in handling errors [9]. Furthermore, there is a fundamental increase in workplace safety by minimizing the interaction between people and handling equipment, as AGVs are equipped with sensors for automatic stopping before an obstacle. The systems ensure a consistent material flow and higher overall throughput.
Current challenges and the direction of future research are closely linked to the Industry 4.0 concept. This paper [10] investigates an optimization model and a solution using a decentralized multi-agent approach for a new capacitated multi-AGV scheduling problem with conflicting products (CMASPCPs) to take full advantage of AGVs. The focus is on integrating AGVs with modern technologies such as 5G networks and Digital Twin technology, which allows for the simulation and optimization of operations in a digital environment [10]. A crucial trend is the transition to Autonomous Mobile Robots (AMRs), which offer an even higher degree of adaptability and flexibility and do not require fixed infrastructure. For successful implementation, however, it remains essential to address issues of economic return (ROI) and reliability in a dynamic manufacturing environment [11].
Traditional methods of material handling, based on manual work with forklifts, face increasing challenges related to error rates, labour costs, and the need to ensure increased operational safety. In response to these limitations, automated guided vehicles (AGVs) or their more advanced variants, Autonomous Mobile Robots (AMRs), represent a breakthrough technology [12,13]. Their implementation directly in the logistics processes of a manufacturing company—for example, in supplying assembly lines or in warehouse transfers—has the potential to transform material flow from an unpredictable cost centre to an efficient, accurate, and fully automated system [14]. The deployment of AGVs not only leads to a reduction in labour costs and operational errors but also significantly increases the level of operational safety by eliminating collisions between humans and technology [15]. The aim of this work is therefore to analyze the process of implementing automated guided vehicles into the logistics chain in a selected manufacturing company and to comprehensively evaluate their benefits and challenges [16]. Specifically, we will focus on examining changes in material flow, quantifying and assessing the impact of this technology on occupational safety. Based on the findings and process analysis, recommendations will then be proposed for the optimal use of AGV systems in similar industrial operations.
The current literature mainly addresses the relationship between smart logistics and logistics performance from isolated perspectives, such as technological progress, economic impacts, or regional differences [17]. However, there is a lack of comprehensive analysis that would integrate these dimensions. Furthermore, few systematic studies examine the internal mechanisms and the role of spatial heterogeneity in this relationship [18]. Understanding these mechanisms is essential for formulating effective strategies that maximize the benefits of smart logistics while mitigating potential drawbacks, so this gap is critical [19,20]. The use of AGVs in manufacturing systems has many advantages, as it enables the automation of production lines and speeds up logistics. At the same time, however, it also presents many challenges that provide scope for future research. This article is devoted to the issue of deploying selected AGVs based on material flow saturation between workplaces. This use of the method is unique in terms of the technology and method of AGV deployment in the specific conditions of a manufacturing company. For further use, this method can be applied with minor adjustments according to the actual requirements of the company. The company had one goal, which was to automate the processes we selected, implement AGVs, and eliminate manual handling of goods. Based on the solution we chose, this is possible.

2. Materials and Methods

Analysis of logistics processes at individual workplaces
The company is in the process of developing logistics process automation. The company requires increased safety in selected sections, such as the FRONT and the TOP platform. The company is gradually introducing AGVs for selected processes. We have selected the right types of AGVs for the selected processes and simulated the handling of goods. The question is the selection of AGV models and a comparison of their advantages and disadvantages. We simulated the use of individual types of AGVs in real operation. The technical specifications of the selected AGVs are described in the article. Based on measurements of goods flow saturation, we evaluated the most suitable model for use in the given processes.
Statistical verification of the data is not necessary, as the company stood by its decision to automate its logistics processes. We only pointed out to the company the possibilities of automation using various types of AGVs in different positions within the company. This simulation decision-making process focused on saturating the flow of goods between individual workplaces. The main feature of this problem was to automate the AGV process without the use of human labour and manual handling.
This subsection presents a detailed analysis of the logistics processes at individual sites for specific components. In consideration of component quality and handling requirements, two types of automated guided vehicles were evaluated: under-run AGVs and tugger AGVs. For each AGV type, process simulations were conducted to assess the realistic operational capabilities that each automated vehicle should perform. One of the primary objectives in implementing automation within the logistics processes at a production company is to enhance labour productivity. The integration of automation aims to streamline workflows, optimize resource utilization, and improve overall process efficiency. The production operations of the company are structured into two distinct platforms: the FRONT platform for front-loading washing machines and the TOP platform for top-loading washing machines (hereinafter referred to as “FRONT” and “TOP”). Following consultations with the management of the production company, the analytical focus was directed towards the logistics of handling large components.

2.1. Front Platform

We first started with the analysis of front-fed washing machines—FRONT. There are two production lines, COD and FLEX, on that platform. Based on the findings, we developed a simulation model in which we simulated the AGV’s movement process for the component from the Picking Area/packaging area to the COD and FLEX line workstations and the process of transporting the empty pallet to the Picking Area. The difference between the implementation of the picking AGV and the pulling AGV is the elimination of workstations to perform the operations for the component. In the case of using a truck unit, an operator is required to handle the chassis at the assembly line (to position the chassis and then remove it from the line after the pallet has been emptied). This process is currently performed by a manual operator. The under-run AGV can transport the chassis to the work site without the need for an operator to assist in the process. Three automated guided vehicles from Linde were implemented on the FRONT platform this year to provide transport of the three components.
Component—Front Weight
On the FRONT platform, an analysis was conducted of the component—Front Weight. The component is transported from the Picking Area to the COD and FLEX lines. Currently, a manual truck provides the transportation of the component. The Front Weights are placed in metal pallets; they are transported on a chassis with wheels, which allows easy handling of the component.
Current Process Description
The manual truck operator arrives at the Picking Area. Behind the truck, there are always two chassis on which the forklift driver loads the pallets with the weights. After the pallets are unloaded and loaded onto the chassis, the manual operator transports the components to the COD and FLEX production line. The driver arrives at the COD line, disconnects the chassis, and places it on the workstation, then goes to the FLEX line, disconnects the chassis, and places it on the workstation. There is room for 2 pallet trucks on both the COD and FLEX workstations. If one pallet is emptied, the operator at the line already has a full pallet in place.

2.1.1. AGV-Implemented Process

The process of moving a component through an under-run AGV is shown in Table 1. An average AGV speed of 0.2 m/s was assumed. The process includes the transport of the components to the work site and the return transport of the empty pallet to the picking location.
Inputs include the following:
  • Working time per shift: 440 min.
  • Frequency per shift: 24 rounds.
  • Distance to work site: COD 86 m, FLEX 116 m.
The result of the analysis is the % saturation to determine the required number of automated guided vehicles per job site for the component.
The saturation for the process carried out using AGV is calculated according to the following formula:
S a t u r a t i o n = d r i v i n g   t i m e   p e r   s h i f t w o r k i n g   t i m e × 100   [ % ]
D r i v i n g   t i m e   p e r   s h i f t = t i m e [ s ] 60 × n u m b e r   o f   r o u n d s   p e r   s h i f t   [ m i n ]
Based on Formulas (1) and (2), we calculate:
D r i v i n g   t i m e   p e r   s h i f t =   2076.64   [ s ] 60 ×   24 = 830.66   [ m i n ]
S a t u r a t i o n = 833.66 440 × 100 = 188.79   [ % ]
The under-run AGV’s saturation for the Front Weight component on the COD and FLEX lines is 188.79%, indicating the requirement for two AGVs. For this component, we conducted an analysis of the AGV tugger utilization, which would be capable of transporting two trolleys in a single cycle. An operator is required to position the trolley at the production line (Table 2).
The saturation for the process carried out using an AGV tugger is calculated according to Formulas (1) and (2):
D r i v i n g   t i m e   p e r   s h i f t = 1447.02   [ s ] 60 × 24 = 578.81   [ m i n ]
S a t u r a t i o n = 578.81 440 × 100 = 131.55   [ % ]
The saturation for the AGV tugger for the Front Weight component to the COD and FLEX line is 131.55%, which indicates a shortage of one AGV but an excess of two AGVs. For transport using an under-run AGV, a technical modification of the chassis will be required—raising it to make the vehicle able to run under the chassis. The wheels on the trolley will be retained to allow for easier manual handling if necessary.
Figure 1 is a company layout where we have shown the route for the Front Weight component from the Picking Area to the COD and FLEX line.
Component—Front Wall
On the FRONT platform, we then analyzed the component— the Front Wall. The component is transported from the Paint Shop to the COD and FLEX lines. Currently, a manual truck transports components. The Front Walls are loaded into a dedicated pallet, which is placed on the chassis, for the sake of facilitating the transport of the component.
Current Process Description
The manual operator arrives at the Paint Shop. Behind the truck, there are always two chases on which the forklift operator loads the pallets with the Front Wall. After the pallets are unloaded and loaded onto the chassis, the manual operator transports the components to the COD and FLEX production lines. The driver arrives at the COD line, disconnects the chassis, and places it at the workstation. Then, he proceeds to the FLEX line, disconnects the chassis, and places it at the workstation.

2.1.2. AGV-Implemented Process

The process of moving the component through the AGV is shown in Table 3. An average AGV speed of 0.2 m/s was assumed. The process includes the transport of the components to the work site and the return transport of the empty pallet to the picking location. The input data includes the following:
  • Working time per shift: 440 min.
  • Frequency per shift: 22 rounds.
  • Distance to work site: COD 46 m and 76 Flex metres.
The result of the analysis is the % saturation to determine the required number of automated guided vehicles per job site for the component.
The saturation for the process carried out using AGV is calculated according to Formulas (1) and (2):
D r i v i n g   t i m e   p e r   s h i f t = 1261.64   [ s ] 60 × 22 = 462.60   [ m i n ]
S a t u r a t i o n = 462.60 440 × 100 = 105.14   [ % ]
The saturation for the anterior wall component on the COD and FLEX lines is 105.14%, which represents a deficiency of one but an excess of two AGVs. For this component, it is advisable to use an under-run AGV that can transport one pallet truck due to the elimination of the manual truck work position. For transport using the AGV, a technical modification of the chassis will be required, raising the chassis to make it capable of running under the chassis. The wheels on the chassis will be retained for ease of handling, if necessary, but will need to be placed on the edges of the chassis to allow the AGV to fit under the chassis without difficulty.
Figure 2 is a company layout where we have shown the route for the Front Wall component from the Paint Shop to the COD and FLEX.
Front Wall component
Front Partition. On the FRONT platform, we then analyzed the component—Front Partition. The component in question is transported from the Paint Shop to the COD and FLEX lines. Currently, a manual truck is used to transport components. The Front Partition is placed in a crate that is placed on a raised chassis due to the elevated work area.
Current Process Description
The manual operator arrives at the Paint Shop, where a chassis is positioned behind the truck. The forklift operator loads two crates containing the Front Partition component onto the chassis. After loading, the manual operator transports the components to either the COD or FLEX production line. Upon arrival at the designated line, the driver disconnects the chassis and positions it at the workstation for further processing.

2.1.3. AGV-Implemented Process

The process of moving a component through an AGV is shown in Table 4. An average AGV speed of 0.2 m/s was assumed. The process involves transporting the component to the workplace and backhauling the empty crates to the picking location.
The data input includes the following:
  • Working time per shift: 440 min.
  • Frequency per shift: 4 rounds.
  • Distance to work site: COD 35 m and 64 Flex metres.
The result of the analysis is the % saturation to determine the required number of automated guided vehicles per job site for the component.
The saturation for the process carried out using AGV is calculated according to Formulas (1) and (2):
D r i v i n g   t i m e   p e r   s h i f t = 1031.64   [ s ] 60 × 4 = 68.78   [ m i n ]
S a t u r a t i o n = 68.78 440 × 100 = 15.63   [ % ]
The saturation for the Front Partition component on the COD and FLEX lines is 15.63%, which is a low value for the use of a single AGV for the component, hence the need for a combination. For the component, it is advisable to use an under-run AGV that can transport a single chassis with crates due to the elimination of the manual truck work position. For transport using the AGV, a technical modification of the chassis will be required, raising the chassis to make it capable of running under the chassis. The wheels on the chassis can be retained for ease of handling if required.
Figure 3 is a company layout showing the route for the Front Bar component from the Paint Shop to the COD and FLEX lines.
Component—Front Wall and Front Partition
For the Front Wall and front bulkhead components, we performed an analysis of the AGV truck usage. Since the Front Partition component has a low frequency per shift, we have proposed the use of a truck for both components.

2.1.4. AGV-Implemented Process

The process of component movement through AGVs is shown in Table 5. An average AGV speed of 0.2 m/s was assumed. The process includes the transport of two chassis to the COD and FLEX line workstation and the return transport of the empty chassis to the Paint Shop. Input data includes the following:
  • Working time per shift: 440 min.
  • Frequency per shift: 26 rounds.
  • Distance to COD workstation: 46 m and 30 FLEX metres.
The result of the analysis is the % saturation to determine the required number of automated guided vehicles per job site for the components.
Saturation Calculation for the Process Implemented via AGV. The saturation for a process carried out using AGV is calculated according to Formulas (1) and (2):
D r i v i n g   t i m e   p e r   s h i f t = 974.04   [ s ] 60 × 26 = 422.08   [ m i n ]
S a t u r a t i o n = 422.08 440 × 100 = 95.93   [ % ]
The saturation for the components Front Wall and Front Partition to the COD and FLEX lines is 95.93%, which represents the utilization of a single AGV tugger for both components. When using the tugger, it is necessary to consider the need for an operator at the production line to connect and disconnect the carts.
Component—Upper Counterweight
On the FRONT platform, we further analyzed the component—Upper Counterweight. This component is transported from the Picking Area to the COD and FLEX lines. Currently, the transportation is carried out by a forklift driver. The Upper Counterweight is placed on metal pallets. The workstation for the Upper Counterweight is currently fully automated.
Current Process Description
The forklift operator picks up the pallet with the component. The operator transports the pallet to the workstation, where the line operator pulls out the cart from the box. The forklift operator loads the pallet onto the cart, and the operator pushes the cart with the pallet back into the box.

2.1.5. AGV-Implemented Process

The process of moving the component using AGV is illustrated in Table 6. We considered an average driving speed of 0.2 m/s. The process includes the transportation of the component to the workstation and the transport of empty pallets back to the Picking Area.
Input data:
  • Working time per shift—440 min.
  • Frequency per Shift—16 rounds.
  • Distance to COD workstation—57 m.
  • Distance to FLEX workstation—54 m.
The result of the analysis is the saturation percentage, based on which the required number of automated guided vehicles for the workstation for the given component is determined.
We calculate the saturation for the process implemented by AGV according to the Formulas (1) and (2):
D r i v i n g   t i m e   p e r   s h i f t = 1166.64   [ s ] 60 × 16 = 311.10   [ m i n ]
S a t u r a t i o n = 311.10 440 × 100 = 70.71   [ % ]
The saturation for the counterweight top component on the COD and FLEX lines is 70.71%, which represents the need for one AGV. For this component, it is appropriate to use an under-run AGV that can transport one chassis with a metal pallet. For the transport by AGV, a technical modification of the chassis will be necessary—its increase to make the vehicle able to run under the chassis. The wheels on the chassis will be retained for ease of handling if necessary.
Figure 4 is a company layout where we have shown the route for the counterweight top component on the COD and FLEX line.
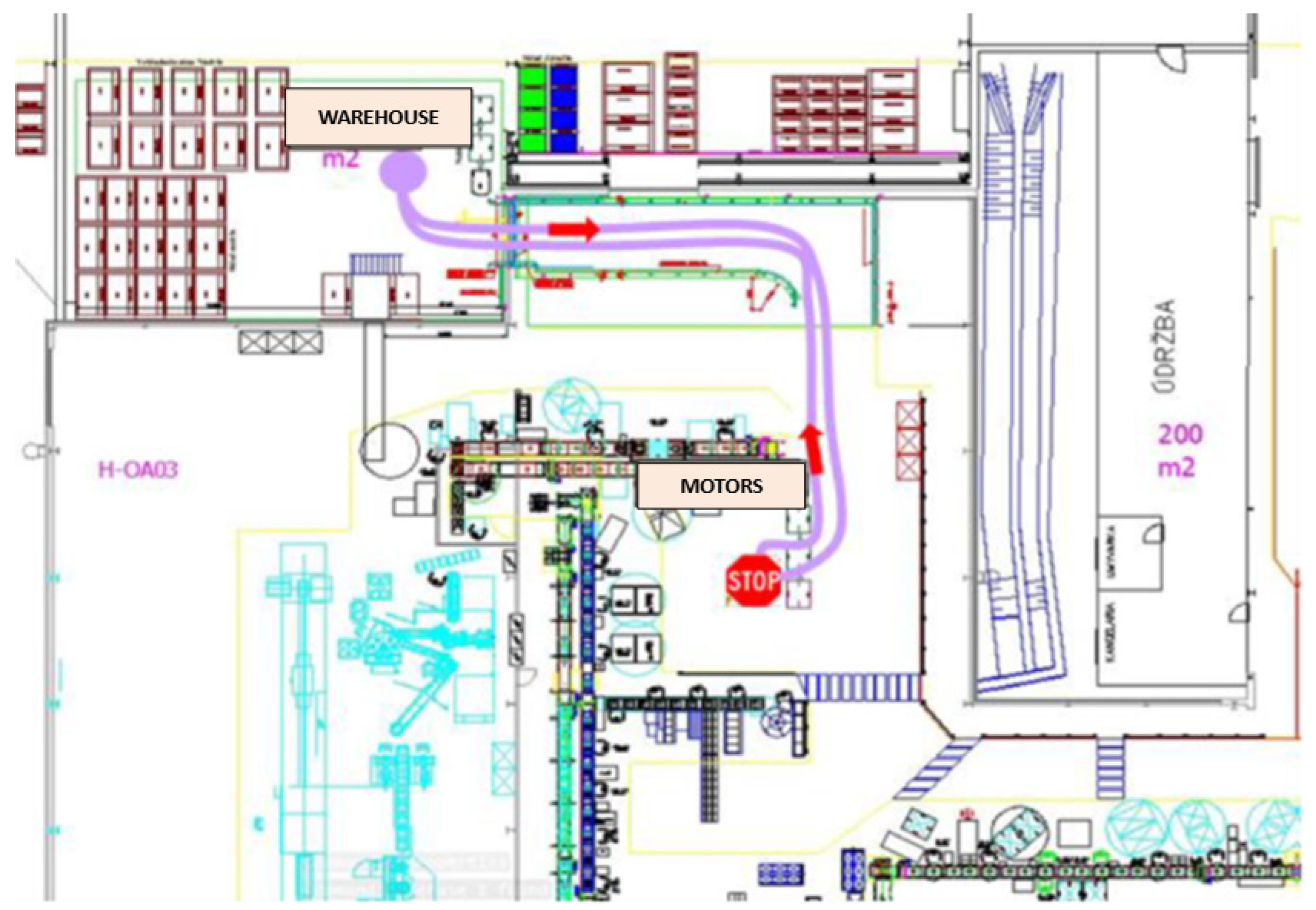
Component—Motor
On the FRONT platform, the last analyzed component was the Motor. The component is transported from the Picking Area to the COD and FLEX production lines. Currently, the transportation of the component is handled by a forklift operator. The motors are placed in cardboard containers, which are arranged on a pallet measuring 1200 mm × 1000 mm.
Current Process Description
The forklift operator transports the pallet containing the component to a designated location within the Picking Area. Subsequently, the pallet is moved to the work area by the forklift and positioned on the turntable. The forklift operator then retrieves the empty pallet and returns it to the Picking Area for further use.

2.1.6. AGV-Implemented Process

The process of component movement through AGV is shown in Table 7. An average AGV speed of 0.2 m/s was assumed. The process involves transporting the component to the work site and backhauling the empty crates to the picking location.
The input data includes the following:
  • Working time per shift: 440 min.
  • Frequency per shift: 11 rounds.
  • Distance to job site: COD 75 m and 59 Flex metres.
The result of the analysis is the % saturation to determine the required number of automated guided vehicles per job site for the component.
We calculate the saturation for the process implemented by AGV according to Formulas (1) and (2):
D r i v i n g   t i m e   p e r   s h i f t = 1396.64   [ s ] 60 × 11 = 256.05   [ m i n ]
S a t u r a t i o n = 256.05 440 × 100 = 58.19   [ % ]
Saturation for the motor component on the COD and FLEX line is 58.19%, which represents the need for one AGV.
For this component, it is appropriate to use an under-run AGV that can transport one pallet of motors. For transportation using an AGV, a chassis design will be required to enable handling of the component.
Figure 5 is a company layout where we have shown the route for the motor component on the COD and FLEX line.

2.2. TOP Platform

After the analysis of the FRONT platform, we started with the analysis of the TOP platform, i.e., top-filled washing machines for individual components.
Based on the findings, we developed a simulation model in which we simulated the process of movement of the AGV with the given component from the picking point to the warehouse to the workplace, and the process of transporting the empty pallet to the picking point.
Component—Motor
On the TOP platform, we first analyzed the component motor; the given component is transported from the warehouse to the assembly line workplace.
Current Process Description
A manual operator transports the chassis with the component from the warehouse to the work site. He disconnects the chassis and slides it into the box. The motor workstation is fully automated on the TOP platform. The manual operator then takes the empty chassis to the warehouse.

2.2.1. AGV-Implemented Process

The process of component movement by AGV is shown in Table 8. An average AGV speed of 0.2 m/s was assumed. The process involves transporting the component to the workplace and returning the empty chassis to the warehouse.
The input data includes the following:
  • Working time per shift: 440 minutes.
  • Frequency per shift: 12 rounds.
  • Distance to work site: 60 m.
The result of the analysis is the % saturation, which will be used to determine the number of automated guided vehicles required per work site for the component.
We calculate the saturation for the process implemented by AGV according to Formulas (1) and (2):
D r i v i n g   t i m e   p e r   s h i f t = 620.82   [ s ] 60 × 12 = 124.16   [ m i n ]
S a t u r a t i o n = 124.16 440 × 100 = 28.22   [ % ]
The saturation for the under-run AGV for the motor component is 28.22%, which represents a low requirement for a single AGV; hence, the need for a combination with another component.
Figure 6 shows the routing of a motor component from the warehouse to the workplace.
Component—Sidewalls
On the TOP platform, an analysis was conducted of the sidewall component, which is transported from the warehouse to the assembly line workstation.
The Current Process Description
The manual operator transports a chassis, carrying a metal pallet with the component, from the warehouse to the workstation. Upon arrival, the driver positions the chassis directly adjacent to the production line for further processing.

2.2.2. AGV-Implemented Process

The process of component movement by AGV is shown in Table 9. An average AGV speed of 0.2 m/s was assumed. The process involves transporting the component to the work site and returning the empty chassis to the warehouse. The input data includes the following:
  • Working time per shift: 440 min.
  • Frequency per shift: 23 rounds.
  • Distance to work site: 50 m.
The result of the analysis is the % saturation, which will be used to determine the number of automated guided vehicles required per work site for the component.
We calculate the saturation for the process implemented by AGV according to Formulas (1) and (2):
D r i v i n g   t i m e   p e r   s h i f t = 520.82   [ s ] 60 × 23 = 199.65   [ m i n ]
S a t u r a t i o n = 199.65 440 × 100 = 45.37   [ % ]
The saturation for the under-run AGV for the sidewall component is 45.37%, which represents a low demand for a single AGV; hence, the need for a combination with another component.
Figure 7 shows the routing of a motor component from the warehouse to the workplace.
Component—Weight right, pulley
We then analyzed the components’ right weight and the pulley on the TOP platform. The components are transported from the warehouse to the assembly line workplace.
Current Process Description:
A manual operator transports the chassis on which the metal cage with the component is placed from the warehouse to the work site.
AGV–under-run specification:
Under-run AGVs are effortlessly integrated, automated mobile robots designed for continuous operation without any downtime. They provide a high degree of customization, allowing for flexibility and scalability. They are compatible with internal logistics as well as complete production lines. Commands for the AGV were defined in individual QR codes. Lifting height is 60 mm, rated load is 1000 kg, navigation QR code, weight is 185 kg, rotation diameter is 1200 mm, and run time is 8 h. The charging time of the AGV under run is 1.5 h.

2.2.3. AGV-Implemented Process

The process of component movement by AGV is shown in Table 10. An average AGV speed of 0.2 m/s was assumed. The process involves transporting the component to the work site and returning the empty chassis to the warehouse. The input data includes the following:
  • Working time per shift: 440 min.
  • Frequency per shift: 47 rounds.
  • Distance to work site: 60 m.
The result of the analysis is the % saturation, which will be used to determine the required number of automated guided vehicles per workplace for the component.
We calculate the saturation for the process implemented by AGV according to Formulas (1) and (2):
D r i v i n g   t i m e   p e r   s h i f t = 620.82   [ s ] 60 × 47 = 486.31   [ m i n ]
S a t u r a t i o n = 486.31 440 × 100 = 110.53   [ % ]
The saturation for the under-run AGV for the right weight and pulley component is 110.53%, which represents the need for one AGV; however, since the value is above 100%, one AGV would not be able to provide for the transportation of the right weight and pulley components.
Figure 8 shows the route of the right-hand weight and pulley components from the warehouse to the workplace.
Components—Motor, Sidewalls, Weight right, pulley
An analysis of the use of the AGV tugger was conducted for the components: motors, sidewalls, right counterweights, and pulley.

2.2.4. AGV-Implemented Process

Specification of AGV Tugger
Towing vehicles or automated guided vehicles pull one or more non-motorized vehicles for transporting cargo in a train-like formation. Sometimes called driverless trains, powered towing vehicles move on wheels. Automated guided vehicles are often used to transport heavy loads over longer distances. They can have several stops for delivery and pickup along a defined route through a warehouse or factory. Commands for the AGV were defined in individual QR codes. Lifting height is max 2031 mm, rated load is 1000 kg, navigation QR code, rotation diameter is 1200 mm, and run time is 6–8 h. The charging time is less than 2 h.
The process of component movement through AGV is shown in Table 11. An average AGV speed of 0.2 m/s was assumed. The process includes the transport of two chassis to the workplace and the transport of the empty chassis to the Paint Shop.
The input data includes the following:
  • Working time per shift: 440 min.
  • Frequency per shift: 28 laps.
  • Distance to work site: 60 m.
The result of the analysis is the % saturation to determine the required number of automated guided vehicles per workstation for the given components.
We calculate the saturation for the process implemented by AGV according to Formulas (1) and (2):
D r i v i n g   t i m e   p e r   s h i f t = 871.76   [ s ] 60 × 28 = 406.82   [ m i n ]
S a t u r a t i o n = 406.82 440 × 100 = 92.46   [ % ]
The saturation level of the AGV tugger for the selected components is 92.46%, indicating that a single AGV tugger is sufficient to transport all the selected components. However, an operator is required at the assembly line to manage the chassis handling process.
The route for the AGV tugger for component transportation is illustrated in Figure 9.

3. Discussion

An analysis was conducted of the logistics processes at selected workplaces. In the following section, the analysis is evaluated, and suggestions for automation are given. For selected positions, the FRONT and TOP platforms, we performed analyses of the use of under-run AGVs or trucks based on saturation in these positions. The results are presented in the following three tables. Based on saturation, we decided to select the type of AGV that has the highest saturation.
FRONT Platform
Table 12 presents an evaluation of the analytical section of the FRONT platform. The results of the analysis highlight the percentage requirement for automation using under-run and tugger-type guided vehicles.
For the front counterweight, Front Wall, and Front Partition components, two alternatives were considered: an AGV under-run vehicle and an AGV tugger.
The primary distinction between these two systems lies in the operational requirements. The implementation of the AGV tugger requires the presence of an operator on the assembly line to disconnect the trolleys and place them on the assembly line.
In contrast, the use of an under-run AGV eliminates the need for a line-side operator, as the AGV autonomously manages the transport process from the picking point to the assembly line. This is contingent upon the continuous availability of goods at the picking point, either pre-positioned or prepared by the picking AGV operator. The AGV tugger offers the advantage of transporting at least two chassis loaded with components to the assembly site in a single operational cycle. Currently, the transport of the front counterweight, Front Wall, and Front Partition components is performed by a manual operator.
TOP Platform
Table 13 provides an assessment of the analytical part of the TOP platform. Based on the results of the analysis, we can see the percentage needed for the automation of driven vehicles.
For the selected components on the TOP platform, we also considered two alternatives—under-run and AGV tugger. However, on the TOP platform, a problematic factor for the under-run AGV is the slope of the ramp, which is located on the route between the assembly line and the warehouse. In this case, it is preferable to use an AGV tugger that would be able to overcome this slope, but again, an operator is required to ensure the truck is positioned on the assembly line.
FRONT platform automation process
Based on the analysis developed after discussing the options with the management of Whirlpool Slovakia, s.r.o., we developed a tender for the automation of the logistics processes on the FRONT platform for components:
  • Front Weights.
  • Front Wall.
  • Front Partition.
  • Motor.
Automation of the selected components has the greatest potential now. The primary objective of the automation process is to eliminate the manual operator position responsible for the transportation of the three specified components (Table 14).
Based on the results of the analysis, we recommend production companies focus on the implementation of AGV under-running to optimize and streamline the process on the FRONT platform within the assembly line. This strategic move was motivated by the need to eliminate manual operator involvement in the transport process from the picking point directly to the assembly line. By implementing an under-run AGV, it would be possible to automate the material transfer, ensuring that this key step in the production process runs reliably and efficiently.
Current Process Description
The entire process begins with the transfer of goods to the warehouse from the truck, where a worker uses a forklift to unload the Front Weight and Motor components to a temporary storage location at the material receiving area. The components are then placed into the storage location. Currently, the Front Weight, Front Wall, and Front Partition components are delivered to the assembly line using a hand truck. At the Picking Area (Picking Area/Warehouse), they are placed on a chassis by an AHV worker, which is then transported to the assembly line by a manual operator. One worker per shift handles the component transport process. The Front Wall and Front Partition components are manufactured by the company’s in-house manufacturing process.
The COD Motor component is delivered to the assembly line using a forklift. The pallet of motors is placed on the turntable behind the assembly line operator, from where the operator then removes the motors. A total of four operators enter the process, including three forklift drivers and one manual operator. Figure 10 shows a schematic of the process at present. The individual pictograms of the forklift and the manual truck represent the number of operators.
Proposed process through AGV
In the picking zone, there will be positions for full and empty pallets for the Front Weight, Front Wall, Front Partition, and Motor components. The automated guided vehicle will bring the full pallet to the assembly line and then carry the empty pallet back to the picking location for all the above-mentioned components. A button will be placed on the assembly line workstation for the operator to signal the automated guided vehicle to empty the pallet. Based on the signal from the operator, the individual AGVs will communicate with each other, evaluating the shortest route to the empty pallet and communicating the selection of the AGV that will be used to perform the operation. All decisions to automate guided vehicles are made by the control system. Figure 11 shows a flowchart of the process after the implementation of automated guided vehicles. After implementation, the manual truck-trailer position on the morning and afternoon shifts will be eliminated.
The platform transports 3 components: the Front Weight, Front Wall, and front crossbar. The saturation for the undercarriage for these three components is 309.55%. This means that more than three automated guided vehicles are needed, with one AGV being underutilized. For this reason, we considered adding an engine component to the COD and FLEX lines. In that case, the saturation for the Front Weight, Front Wall, Front Crossbar, and Engine components would be 367.75%, which represents the need for four automated guided vehicles of the undercarriage type to ensure the transport of these components. After the introduction of automatically controlled vehicles for the components, the manual tractor operator will be eliminated from both the morning and afternoon shifts, which represents a significant cost saving for the company. After process automation, we should purchase 8 pcs LMR vehicles, sensing and signals, software, hardware, licences, project management, integration and installation, and staff training. Based on price quotes, the cost was calculated at EUR 200,000, with annual labour costs amounting to EUR 56,000. This eliminates the need for a manual tractor operator during the morning and afternoon shifts. The return on investments is calculated according to Formula (3):
R e t u r n   o n   i n v e s t m e n t   p e r i o d = i n v e s t m e n t   [ E U R ]   a n n u a l   c o s t   s a v i n g s   [ E U R ]   y e a r
R e t u r n   o n   i n v e s t m e n t   p e r i o d = 200,000   [ E U R ]   56,000   [ E U R ] = 3.57 = ˙ 4   y e a r s
The return on investment was calculated at 4 years.
Access to automated guided vehicle systems involves a combination of physical and software methods of guidance, control, and task management, ranging from simple fixed routes to more complex real-time routing and collision avoidance. AGVs are controlled by technologies such as laser guidance, vision systems, or embedded magnetic tracks that follow their routes. Several scientific articles deal with the introduction of AGVs. They address issues that arise when collisions with employees occur [21] or complex issues that require attention in AGV applications. The authors of this article [22] presented several key issues and basic models. Their goal was to highlight a new method for planning AGV truck routes. In another study, the authors focused on the functioning of the electrical system, PID programming for motor control, and the use of infrared sensors to detect light reflection from black and white tracks [23]. In study [24], authors deal with the implementation of an AGV system in a facility with four research topics: implementation, continuity, responsibilities in problem situations, and lessons learned. The result of the research was the identification of eight factors beneficial for the implementation of an AGV system. In our previous article [9], we discussed the introduction of AGVs in a manufacturing company, which led to savings in labour costs. In this article, however, we focus on automation, which eliminates manual labour by operators, thereby streamlining work activities and saving human resources. Criteria to consider when choosing the right AGV/AMR. These are space, load, economics, or flow saturation between individual positions. It is space, load, and economics. These are the basics. In manufacturing, you must first have the space to deploy such a system. You must consider that the AGV will be transporting some kind of part, component, or entire product. This means you must have sufficient space around the production area for such a vehicle to move safely and reliably. The second key factor is load. You need to know in advance what you will be transporting. If you need to deliver screws to a production site, for example, you will use a different AGV than if you were transporting car bumpers or TV rear covers. Finally, there is the economics of the solution. Finally, the number of people working in manufacturing, logistics, or warehousing companies is also a limiting factor. Therefore, replacing humans with AGVs is one possible solution, as we are facing a labour shortage in the market.
Every mobile vehicle requires a certain minimum space, depending on its size and maneuverability, in which it can move without problems, even at full speed. For smaller models available on the market, this space may be only around 1 m, while for models designed to transport pallets or autonomous forklifts, the minimum aisle width increases to several metres.
AGVs must carry their own power source with them. Everything else depends on this. Batteries are usually used, allowing AGVs to operate without interruption for approximately 8 to 12 h. Three strategies are used for batteries: human battery replacement (takes several minutes), automatic recharging (during the production cycle, the AGV connects to a power source for a few minutes and is not available for logistics), and automatic battery replacement (the most advanced automated system, which replaces AGV batteries itself and ensures their automatic recharging). Recently, systems have also been developed in some countries for electric vehicles, i.e., charging from the road infrastructure while the vehicle is in motion. However, this again requires modifications to the production infrastructure, and not every customer will be willing to go along with this.
There are many solutions that have not been very effective. For example, several dozen vehicles were deployed, and many of them stood in the docking station. They were not charging; they simply had nothing to do. Of the other criteria, guidance efficiency and safety are certainly important considerations. However, these criteria are more technical and may not be understood by everyone. When it comes to guidance, it is important to realize that even the most advanced AGV systems currently still require environmental modifications. These are not wires in the floor, but rather calibration marks.
The articles [25,26] mention calculations of the return on investment in an AGV system or robot. Each study focuses on a different problem. This study [27] examines the deployment of AMR to improve the efficiency of endoscope processing. It is not possible to compare them, only to approximate the applicability of possible calculations to other technical and technological means within the specific conditions of companies. Therefore, the method we have proposed for implementing and verifying the deployment of AGVs in production is unique. It cannot be compared with the problems and solutions examined in individual studies to date.
The main objective of the research conducted by individual authors is to eliminate human labour in selected processes. Various methods of AGV implementation based on different characteristics have been identified. We have clearly chosen the path of automation in order to eliminate errors and manual handling. Another goal in the company will be to implement AGVs in cooperation with other automatic machines and devices. This area still raises many unexplored questions.

4. Conclusions

Automation of logistics processes enables companies to achieve higher levels of productivity thanks to more accurate task execution by equipment and robots. This leads to more efficient production and better utilization of working hours. Based on the analysis, we selected the components with the greatest potential for automating the transport from the picking point to the assembly line via the AGV under-run. The AGV saturation for the selected components (Front Weight, Front Wall, and Front Partition) is 309.55%, which represents the need for more than three AGVs. Due to the low saturation, we proposed the addition of a motor component. The saturation for the selected four components was 367.75%, representing the need for four automated guided vehicles of the sub-trunk type to provide the process.
Based on the results of Table 13, TOP Platform, we can see the need for truck automation. The platform has a problem with the slope of the ramp, so it is advisable to use an AGV tractor. This process must be supplemented by an operator who ensures the placement of the truck on the assembly line. We recommend that the company optimize and streamline the process on the FRONT platform automation process, which consists of components such as Front Weights, Front Wall, Front Partition, and Motor. This is a way to eliminate manual handling in the part of the process of transporting from the pick-up point directly to the assembly line. AGV would automate this process, making it reliable and efficient. Until now, this handling has consisted of manual labour using a hand truck and one worker. The picking process is also performed by one worker. The pallet of motors is placed on the turntable behind the assembly line operator, from where the operator then removes the motors. A total of four operators are involved in the process, including three forklift drivers and one manual operator (see Figure 10). During the picking process, we set up full and empty pallets that the AGV can transport to the line and back to the picking location. The operator presses a button to signal the vehicle to pick up the pallet. Based on the signal from the operator, the AGVs communicate with each other and select the shortest route to the empty pallet. The control system must have all the information about the use of AGVs. After optimizing this system, the position of the manual truck with trailer will be eliminated in both the morning and afternoon shifts.
The automated guided vehicles will be efficiently utilized with space for charging in case of idle operation. The main reason for automating the transport of components is to streamline the process and increase labour productivity. By automating components, the position of the manual operator will be eliminated, saving the company significantly on human resources. Automated vehicles will be used efficiently with space for charging when idle. The main reason for automating component transport is to streamline the process and increase labour productivity. Automating components eliminates the need for manual operators, which significantly saves the company’s human resources with optimalisation of material flow. By saving human labour, the company contributes to sustainable development. Sustainable development can be seen in process automation, management, and the implementation of various technologies that are an integral part of the supply chain. The elimination of human labour brings financial savings in the management of logistics processes in production and in the management of material flow; its main output is the elimination of errors in goods. Our proposed solution takes into account the difficulty of manual handling and the need for human labour, which is in short supply on the market. AGVs effectively replace this work and make no mistakes. This solution can be supplemented with manual handling equipment in case of increased production requirements. The implementation process is influenced by the route and volume of material on a given line. Therefore, our proposed AGV implementation is possible in any company, taking into account these factors and the possibility of effectively replacing people. The use of the material flow saturation method on selected routes in a manufacturing company can be extended by applying several types of AGVs or by possible cooperation in several positions in the manufacturing company, such as unloading goods onto the production line or adjusting the height of the AGV to the production line, or supplying the AGV in combination with another type of AGV and communication between individual devices. New possibilities for implementing new technologies, as well as AGV navigation, can be developed in the form of measurement research using multiple methods. The future brings new possibilities for solutions in cooperation with artificial intelligence, possible forms of navigation, communication, etc.

Author Contributions

Conceptualization, I.K. and J.K.; methodology, I.K., J.K. and D.B.; software, I.K.; validation, I.K., J.K. and D.B.; formal analysis, J.K.; investigation, I.K.; resources, I.K., J.K. and D.B.; data curation, I.K. and D.B.; writing—original draft preparation, J.K. and I.K.; writing—review and editing, I.K., J.K. and D.B.; visualization, J.K.; supervision, I.K.; project administration, I.K.; funding acquisition, I.K., J.K. and D.B. All authors have read and agreed to the published version of the manuscript.

Funding

This research received no external funding.

Institutional Review Board Statement

Not applicable.

Informed Consent Statement

Not applicable.

Data Availability Statement

The original contributions presented in the study are included in the article; further inquiries can be directed to the corresponding author upon reasonable request.

Acknowledgments

This publication was created for the Vega project: 1/0686/25 Application of Logistics 4.0 technologies in conjunction with other elements in the enterprise.

Conflicts of Interest

The authors declare no conflicts of interest.

References

  1. Martínez-Barberá, H.; Herrero-Pérez, D. Autonomous Navigation of an Automated Guided Vehicle in Industrial Environments. Robot. Comput.-Integr. Manuf. 2010, 26, 296–311. [Google Scholar] [CrossRef]
  2. Esmaeilian, B.; Sarkis, J.; Lewis, K.; Behdad, S. Blockchain for the Future of Sustainable Supply Chain Management in Industry 4.0. Resour. Conserv. Recycl. 2020, 163, 105064. [Google Scholar] [CrossRef]
  3. Li, S.; Yan, J.; Li, L. Automated Guided Vehicle: The Direction of Intelligent Logistics. In Proceedings of the 2018 IEEE International Conference on Service Operations and Logistics, and Informatics (SOLI), Singapore, 31 July–2 August 2018; pp. 250–255. [Google Scholar] [CrossRef]
  4. Chen, X.; Lin, W.; Liu, J.; Guan, L.; Zheng, Y.; Gao, F. Electromagnetic Guided Factory Intelligent AGV; Atlantis Press: Dordrecht, The Netherlands, 2016; pp. 200–205. [Google Scholar] [CrossRef]
  5. Cupek, R.; Drewniak, M.; Fojcik, M.; Kyrkjebø, E.; Lin, J.C.-W.; Mrozek, D.; Øvsthus, K.; Ziebinski, A. Autonomous Guided Vehicles for Smart Industries—The State-of-the-Art and Research Challenges. In Proceedings of the Computational Science—ICCS 2020, Amsterdam, The Netherlands, 3–5 June 2020; Krzhizhanovskaya, V.V., Závodszky, G., Lees, M.H., Dongarra, J.J., Sloot, P.M.A., Brissos, S., Teixeira, J., Eds.; Springer International Publishing: Cham, Switzerland, 2020; pp. 330–343. [Google Scholar] [CrossRef]
  6. Bekishev, Y.; Pisarenko, Z.; Arkadiev, V. FMEA Model in Risk Analysis for the Implementation of AGV/AMR Robotic Technologies into the Internal Supply System of Enterprises. Risks 2023, 11, 172. [Google Scholar] [CrossRef]
  7. Eren Şenaras, A. Chapter 8—Parameter Optimization Using the Surface Response Technique in Automated Guided Vehicles. In Sustainable Engineering Products and Manufacturing Technologies; Kumar, K., Zindani, D., Davim, P., Eds.; Academic Press: Dordrecht, The Netherlands, 2019; pp. 187–197. ISBN 978-0-12-816564-5. [Google Scholar]
  8. Vavrik, V.; Gregor, M.; Grznar, P. Computer Simulation as a Tool for the Optimization of Logistics Using Automated Guided Vehicles. In Proceedings of the 12th International Scientific Conference of Young Scientists on Sustainable, Modern and Safe Transport, High Tatras, Slovakia, 31 May–2 June 2017; Bujnak, J., Guagliano, M., Eds.; Elsevier Science BV: Amsterdam, The Netherlands, 2017; Volume 192, pp. 923–928. [Google Scholar] [CrossRef]
  9. Kubasakova, I.; Kubanova, J.; Benco, D.; Kadlecová, D. Implementation of Automated Guided Vehicles for the Automation of Selected Processes and Elimination of Collisions between Handling Equipment and Humans in the Warehouse. Sensors 2024, 24, 1029. [Google Scholar] [CrossRef] [PubMed]
  10. Maoudj, A.; Kouider, A.; Christensen, A.L. The Capacitated Multi-AGV Scheduling Problem with Conflicting Products: Model and a Decentralized Multi-Agent Approach. Robot. Comput.-Integr. Manuf. 2023, 81, 102514. [Google Scholar] [CrossRef]
  11. Cui, H.; Chen, X.; Guo, M.; Jiao, Y.; Cao, J.; Qiu, J. A Distribution Center Location Optimization Model Based on Minimizing Operating Costs under Uncertain Demand with Logistics Node Capacity Scalability. Phys. A Stat. Mech. Its Appl. 2023, 610, 128392. [Google Scholar] [CrossRef]
  12. Ding, S.; Ward, H.; Tukker, A. How Internet of Things Can Influence the Sustainability Performance of Logistics Industries—A Chinese Case Study. Clean. Logist. Supply Chain. 2023, 6, 100094. [Google Scholar] [CrossRef]
  13. Staczek, P.; Pizon, J.; Danilczuk, W.; Gola, A. A Digital Twin Approach for the Improvement of an Autonomous Mobile Robots (AMR’s) Operating Environment—A Case Study. Sensors 2021, 21, 7830. [Google Scholar] [CrossRef] [PubMed]
  14. Gasteiger, E.; Prettner, K. Automation, stagnation, and the implications of a robot tax. Macroecon. Dyn. 2022, 26, 218–249. [Google Scholar] [CrossRef]
  15. Al-Talib, M.; Melhem, W.Y.; Anosike, A.I.; Garza Reyes, J.A.; Nadeem, S.P.; Kumar, A. Achieving Resilience in the Supply Chain by Applying IoT Technology. Procedia CIRP 2020, 91, 752–757. [Google Scholar] [CrossRef]
  16. Qader, G.; Junaid, M.; Abbas, Q.; Mubarik, M.S. Industry 4.0 Enables Supply Chain Resilience and Supply Chain Performance. Technol. Forecast. Soc. Change 2022, 185, 122026. [Google Scholar] [CrossRef]
  17. Xu, L.D. Industry 4.0-Frontiers of Fourth Industrial Revolution. Syst. Res. Behav. Sci. 2020, 37, 531–534. [Google Scholar] [CrossRef]
  18. Grznar, P.; Gregor, M.; Krajcovic, M.; Mozol, S.; Schickerle, M.; Vavrik, V.; Durica, L.; Marschall, M.; Bielik, T. Modeling and Simulation of Processes in a Factory of the Future. Appl. Sci. 2020, 10, 4503. [Google Scholar] [CrossRef]
  19. Ye, A.; Cai, J.; Yang, Z.; Deng, Y.; Li, X. The Impact of Intelligent Logistics on Logistics Performance Improvement. Sustainability 2025, 17, 659. [Google Scholar] [CrossRef]
  20. Anastasiadou, K. Sustainable Mobility Driven Prioritization of New Vehicle Technologies, Based on a New Decision-Aiding Methodology. Sustainability 2021, 13, 4760. [Google Scholar] [CrossRef]
  21. Khedkar, A.; Kajani, K.; Ipkal, P.; Banthia, S.; Jagdale, B.N.; Kulkarni, M. Automated Guided Vehicle System with Collision Avoidance and Navigation in Warehouse Environments. Int. Res. J. Eng. Technol. 2020, 7, 5442–5448. [Google Scholar]
  22. Zhang, Z.; Chen, J.; Guo, Q. Application of Automated Guided Vehicles in Smart Automated Warehouse Systems: A Survey. Comput. Model. Eng. Sci. 2023, 134, 1529–1563. [Google Scholar] [CrossRef]
  23. Kaloutsakis, G.; Tsourveloudis, N.; Spanoudakis, P. Design and Development of an Automated Guided Vehicle. In Proceedings of the IEEE International Conference on Industrial Technology, 2003, Maribor, Slovenia, 10–12 December 2003; IEEE: New York, NY, USA, 2004; Volume 2, p. 993, ISBN 978-0-7803-7852-0. [Google Scholar] [CrossRef]
  24. Karvonen, O. Implementation and Usability of Automated Guided Vehicles: A Case Study of Wärtsilä Sustainable Technology Hub and Logistics Centre. Master’s Thesis, University of Vaasa, Vaasa, Finland, 2022. [Google Scholar]
  25. Štaffenová, K.; Rakyta, M.; Biňasová, V. The Use of Automated Guided Vehicles in the Internal Logistics of the Production Company. Transp. Res. Procedia 2023, 74, 458–464. [Google Scholar] [CrossRef]
  26. Koreis, J.; Loske, D.; Klumpp, M.; Glock, C.H. We Belong Together—A System-Level Investigation Regarding AGV-Assisted Order Picking Performance. Int. J. Prod. Econ. 2025, 282, 109527. [Google Scholar] [CrossRef]
  27. Shi, Y.; Bai, J.; Zhou, M.; Cheng, J.; Zhu, X.; Zuo, X.; Ji, R. The Effect of Autonomous Mobile Robots on Improving Endoscope Reprocessing Efficiency: A Prospective Comparative Trial. Gastrointest. Endosc. 2025, in press. [Google Scholar] [CrossRef] [PubMed]
Figure 1. Layout route—Front Weight component. Legend: The arrow—the route for the Front Weight component from the Picking Area to the COD and FLEX line.
Figure 1. Layout route—Front Weight component. Legend: The arrow—the route for the Front Weight component from the Picking Area to the COD and FLEX line.
Sustainability 18 00538 g001
Figure 2. Layout route—Front Wall component. Legend: The arrow—the route of the Front Wall component from the Paint Shop to COD and FLEX.
Figure 2. Layout route—Front Wall component. Legend: The arrow—the route of the Front Wall component from the Paint Shop to COD and FLEX.
Sustainability 18 00538 g002
Figure 3. Layout route—Front Bar component. Legend: The arrow—the route for the Front Bar component from the Paint Shop to the COD and FLEX line.
Figure 3. Layout route—Front Bar component. Legend: The arrow—the route for the Front Bar component from the Paint Shop to the COD and FLEX line.
Sustainability 18 00538 g003
Figure 4. Layout route—component counterweight upper. Legend: The arrow—the route for the counterweight top component on the COD and FLEX line from the Picking Area.
Figure 4. Layout route—component counterweight upper. Legend: The arrow—the route for the counterweight top component on the COD and FLEX line from the Picking Area.
Sustainability 18 00538 g004
Figure 5. Layout route—Motor component. Legend: The arrow—the route for the motor component—Picking Area on the COD and FLEX line.
Figure 5. Layout route—Motor component. Legend: The arrow—the route for the motor component—Picking Area on the COD and FLEX line.
Sustainability 18 00538 g005
Figure 6. Layout route—TOP component motor. Legend: The arrow—the route of a motor component from the warehouse to the workplace, motors.
Figure 6. Layout route—TOP component motor. Legend: The arrow—the route of a motor component from the warehouse to the workplace, motors.
Sustainability 18 00538 g006
Figure 7. Layout route—component Sidewalls. Legend: The arrow—the routing of a motor component from the warehouse to the workplace-sidewalls.
Figure 7. Layout route—component Sidewalls. Legend: The arrow—the routing of a motor component from the warehouse to the workplace-sidewalls.
Sustainability 18 00538 g007
Figure 8. Layout route—right counterweight component, pulley. Legend: The arrow—the route of the right-hand weight and pulley components from the warehouse to the workplace—weights.
Figure 8. Layout route—right counterweight component, pulley. Legend: The arrow—the route of the right-hand weight and pulley components from the warehouse to the workplace—weights.
Sustainability 18 00538 g008
Figure 9. Sidewall components, Motors, right counterweight, pulley. Legend: The arrow—the new route for the AGV tugger for component transportation—is illustrated. The completed route for the new manipulation vehicle.
Figure 9. Sidewall components, Motors, right counterweight, pulley. Legend: The arrow—the new route for the AGV tugger for component transportation—is illustrated. The completed route for the new manipulation vehicle.
Sustainability 18 00538 g009
Figure 10. Process before AGV implementation.
Figure 10. Process before AGV implementation.
Sustainability 18 00538 g010
Figure 11. Process after AGV implementation.
Figure 11. Process after AGV implementation.
Sustainability 18 00538 g011
Table 1. Under-run AGV—component Front Weight line COD and FLEX.
Table 1. Under-run AGV—component Front Weight line COD and FLEX.
ActivitySpeed [m/s]Distance [m]Time [s]
Route to the pallet0.2525
Lifting the full pallet0.290.050.17
Route with a full pallet to the COD station0.286430
Placing the full pallet 0.210.050.24
Route to the empty pallet0.2210
Lifting the empty pallet0.290.050.17
Lifting the empty pallet0.286430
Placing the pallet0.210.050.24
Route to the full pallet0.2210
Lifting the full pallet0.290.050.17
Route with a full pallet to the FLEX station0.2116580
Placing the full pallet0.210.050.24
Route to the empty pallet0.2210
Lifting the empty pallet0.290.050.17
Route with an empty pallet to PA0.2116580
Placing the empty pallet0.210.050.24
TOTAL SUM-415.42076.64
Ride with the full/empty pallet--2020
Empty ride TOTAL--55
Manipulation (lifting/placing)--1.64
Source: authors.
Table 2. Tugger AGV—component Front Weights COD and FLEX line.
Table 2. Tugger AGV—component Front Weights COD and FLEX line.
ActivitySpeed [m/s]Distance [m]Time [s]
Loading in PA 80
Route to the COD station0.286430
Disconnection of the full trolley at COD 10.26
Route to FLEX station0.230150
Disconnection of the full trolley at FLEX 10.26
Connection of the empty trolley at FLEX 13.25
Route with the empty pallet to the COD station0.286430
Connection of the empty trolley at COD 13.25
Route to PA0.286430
Waiting for unloading in PA 120
Unloading in PA 40
TOTAL SUM-2321447.02
Ride with the full/empty pallet--1160
Loading/unloading in PA--240
Disconnection/connection of the trolley--47.02
Source: authors.
Table 3. Under-run AGV—component Front Wall line COD and FLEX.
Table 3. Under-run AGV—component Front Wall line COD and FLEX.
ActivitySpeed [m/s]Distance [m]Time [s]
Route to the pallet0.2210
Lifting the full pallet0.290.050.17
Transport of the full pallet to the COD workstation0.246230
Placement of the full pallet0.210.050.24
Route to the empty pallet0.2210
Lifting the empty pallet0.290.050.17
Transport of the empty pallet to the Paint Shop0.246230
Placement of the empty pallet0.210.050.24
Route to the full pallet0.2210
Lifting the full pallet0.290.050.17
Transport of the full pallet to the FLEX workstation0.276380
Placement of the full pallet0.210.050.24
Route to the empty pallet0.2210
Lifting the empty pallet0.290.050.17
Transport of the empty pallet to the Paint Shop0.276380
Placement of the empty pallet0.210.050.24
TOTAL SUM 252.41261.64
Transport with full/empty pallet 1220
Total empty ride 40
Handling (lifting/placement) 1.64
Source: authors.
Table 4. Under-run AGV—component Front Partition line COD and FLEX.
Table 4. Under-run AGV—component Front Partition line COD and FLEX.
ActivitySpeed [m/s]Distance [m]Time [s]
Route to the pallet0.2210
Lifting the full pallet0.290.050.17
Route with the full pallet to the COD station0.235175
Placing the full pallet0.210.050.24
Route to the empty pallet0.2210
Lifting the empty pallet0.290.050.17
Route with the empty pallet to the Paint Shop0.235175
Placing the pallet0.210.050.24
Route to the pallet0.2210
Lifting the full pallet0.290.050.17
Route with the full pallet to the FLEX station0.264320
Placing the full pallet0.210.050.24
Route to the empty pallet0.2210
Lifting the empty pallet0.290.050.17
Route with the empty pallet to the Paint Shop0.264320
Placing the empty pallet0.210.050.24
TOTAL 206.41031.64
Transport with full/empty pallet 990
Total empty ride 40
Handling (lifting/placement) 1.64
Source: authors.
Table 5. Tugger AGV—Front Wall and front bulkhead components.
Table 5. Tugger AGV—Front Wall and front bulkhead components.
ActivitySpeed [m/s]Distance [m]Time [s]
Connection of trolleys 26.5
Route with a full pallet to the COD station0.246230
Disconnection of the trolley at COD 10.26
Route with a full pallet to the FLEX station0.230150
Disconnection of the trolley at FLEX 10.26
Connection of the empty trolley at FLEX 13.25
Route with the empty pallet to the FLEX station0.230150
Connection of the empty trolley at COD 13.25
Route with the empty pallets to the Paint Shop0.246230
Waiting for disconnection at the Paint Shop 120
Disconnection of empty trolleys 20.52
TOTAL SUM 152974.04
Ride with the full/empty pallet 760
Loading/unloading at the Paint Shop 167.02
Disconnection/connection of the trolley 47.02
Source: authors.
Table 6. Under-running AGV—counterweight top line COD and FLEX.
Table 6. Under-running AGV—counterweight top line COD and FLEX.
ActivitySpeed [m/s]Distance [m]Time [s]
Route to the pallet0.2525
Lifting a full pallet0.290.050.17
Route with a full pallet to the COD workstation0.257285
Placing a full pallet0.210.050.24
Route to the empty pallet0.2210
Lifting an empty pallet0.290.050.17
Route with an empty pallet to PA0.257285
Placing an empty pallet0.210.050.24
Route to the pallet0.2210
Lifting a full pallet0.290.050.17
Route with a full pallet to the FLEX workstation0.254270
Placing a full pallet0.210.050.24
Route to the empty pallet0.2210
Lifting an empty pallet0.290.050.17
Route with an empty pallet to PA0.254270
Placing an empty pallet0.210.050.24
TOTAL SUM 233.41166.64
Route with full/empty pallet 1110
Empty route TOTAL 55
Handling (lifting/placing) 1.64
Source: authors.
Table 7. Under-running AGV—component motor line COD and FLEX.
Table 7. Under-running AGV—component motor line COD and FLEX.
ActivitySpeed [m/s]Distance [m]Time [s]
Route to the pallet0.2525
Lifting a full pallet0.290.050.17
Route with a full pallet to the COD workstation0.275375
Placing a full pallet0.210.050.24
Route to the empty pallet0.2210
Lifting an empty pallet0.290.050.17
Route with an empty pallet to PA0.275375
Placing an empty pallet0.210.050.24
Route to the pallet0.2210
Lifting a full pallet0.290.050.17
Route with a full pallet to the FLEX workstation0.259295
Placing a full pallet0.210.050.24
Route to the empty pallet0.2210
Lifting an empty pallet0.290.050.17
Route with an empty pallet to PA0.259295
Placing an empty pallet0.210.050.24
TOTAL SUM 279.41396.64
Route with full/empty pallet 1340
Empty route TOTAL 55
Handling (lifting/placing) 1.64
Source: authors.
Table 8. Under-running AGV—Motor component.
Table 8. Under-running AGV—Motor component.
ActivitySpeed [m/s]Distance [m]Time [s]
Route to the pallet0.2210
Lifting the full pallet0.290.050.17
Transport of the full pallet to the workstation0.260300
Placement of the full pallet0.210.050.24
Approach to the empty pallet0.2210
Lifting the empty pallet0.290.050.17
Transport of the empty pallet to the warehouse0.260300
Placement of the empty pallet0.210.050.24
TOTAL 124.2620.82
Transport with full/empty pallet 600
Total empty ride 20
Handling (lifting/placement) 0.82
Source: authors.
Table 9. Under-run AGV—Sidewall component.
Table 9. Under-run AGV—Sidewall component.
ActivitySpeed [m/s]Distance [m]Time [s]
Route to the pallet0.2210
Lifting the full pallet0.290.050.17
Transport of the full pallet to the workstation0.250250
Placement of the full pallet0.210.050.24
Route to the empty pallet0.2210
Lifting the empty pallet0.290.050.17
Transport of the empty pallet to the warehouse0.250250
Placement of the empty pallet0.210.050.24
TOTAL 104.2520.82
Transport with full/empty pallet 500
Total empty ride 20
Handling (lifting/placement) 0.82
Source: authors.
Table 10. Under-run AGV—components Weight right, pulley.
Table 10. Under-run AGV—components Weight right, pulley.
ActivitySpeed [m/s]Distance [m]Time [s]
Route to the pallet0.2210
Lifting the full pallet0.290.050.17
Transport of the full pallet to the workstation0.260300
Placement of the full pallet0.210.050.24
Route to the empty pallet0.2210
Lifting the empty pallet0.290.050.17
Transport of the empty pallet to the warehouse0.260300
Placement of the empty pallet0.210.050.24
TOTAL 124.2620.82
Transport with full/empty pallet 600
Total empty ride 20
Handling (lifting/placement) 0.82
Source: authors.
Table 11. AGV tugger—components: Motor, Sidewalls, Weight right, pulley.
Table 11. AGV tugger—components: Motor, Sidewalls, Weight right, pulley.
ActivitySpeed [m/s]Distance [m]Time [s]
Loading in the Warehouse 80
Transport to the Workstation0.260300
Detachment of Full Chassis 13.18
Attachment to Empty Chassis 18.58
Return to the Warehouse0.260300
Waiting for unloading in the Warehouse 120
Unloading in the Warehouse 40
TOTAL 120871.76
Transport with full/empty pallet 600
Loading/unloading in the Warehouse 240
Chassis detachment/attachment 31.76
Source: authors.
Table 12. Evaluation of the analytical part of the FRONT platform.
Table 12. Evaluation of the analytical part of the FRONT platform.
ComponentSaturation [%]
Under-Run AGVTugger AGV
Front Counterweight188.79131.55
Front Wall105.1495.93
Front Partition15.63
Upper Counterweight70.71
Motor58.19
Source: authors.
Table 13. Evaluation of the analytical part of the TOP platform.
Table 13. Evaluation of the analytical part of the TOP platform.
ComponentSaturation [%]
Under-Run AGVTugger AGV
Motor28.2292.46
Sidewalls45.37
Weight right, pulley110.53
Source: authors.
Table 14. Proposal for the implementation of the AGV on the FRONT platform.
Table 14. Proposal for the implementation of the AGV on the FRONT platform.
ComponentSaturation [%]
Under-Run AGV
Front Weights188.79
Front Wall105.14
Front Partition15.63
Motor58.19
TOTAL367.75
Source: authors.
Disclaimer/Publisher’s Note: The statements, opinions and data contained in all publications are solely those of the individual author(s) and contributor(s) and not of MDPI and/or the editor(s). MDPI and/or the editor(s) disclaim responsibility for any injury to people or property resulting from any ideas, methods, instructions or products referred to in the content.

Share and Cite

MDPI and ACS Style

Kubasáková, I.; Kubáňová, J.; Benčo, D. The Implementation of Automated Guided Vehicles to Logistics Processes in a Production Company—Case Study. Sustainability 2026, 18, 538. https://doi.org/10.3390/su18010538

AMA Style

Kubasáková I, Kubáňová J, Benčo D. The Implementation of Automated Guided Vehicles to Logistics Processes in a Production Company—Case Study. Sustainability. 2026; 18(1):538. https://doi.org/10.3390/su18010538

Chicago/Turabian Style

Kubasáková, Iveta, Jaroslava Kubáňová, and Dominik Benčo. 2026. "The Implementation of Automated Guided Vehicles to Logistics Processes in a Production Company—Case Study" Sustainability 18, no. 1: 538. https://doi.org/10.3390/su18010538

APA Style

Kubasáková, I., Kubáňová, J., & Benčo, D. (2026). The Implementation of Automated Guided Vehicles to Logistics Processes in a Production Company—Case Study. Sustainability, 18(1), 538. https://doi.org/10.3390/su18010538

Note that from the first issue of 2016, this journal uses article numbers instead of page numbers. See further details here.

Article Metrics

Back to TopTop