Next Article in Journal
Promoting Green R&D to Allow Green Products to Outcompete Non-Green Products: Subsidize Consumers or Manufacturers?
Previous Article in Journal
The Impacts of Friendly Designs on the Long-Term Sustainability of Modern Urban Parks
 
 
Font Type:
Arial Georgia Verdana
Font Size:
Aa Aa Aa
Line Spacing:
Column Width:
Background:
Article

Development of a Benchmark Model for Residential Buildings with a Mediterranean Climate: The Aero-Habitat in Algiers City

1
Sustainable Building Design Lab, Department ArGEnCo, Faculty of Applied Sciences, University of Liege, 4000 Liege, Belgium
2
Department of Architecture, Faculty of Sciences, University of Algiers 1 Benyoucef Benkhedda, Algiers 16000, Algeria
3
Department of Architecture, University of 08 Mai 1945, Guelma 24000, Algeria
4
LTSM Laboratory, OVAMUS Laboratory, Mechanical Department, Faculty of Technology, Blida 1 University, Blida 9000, Algeria
*
Authors to whom correspondence should be addressed.
Sustainability 2025, 17(3), 831; https://doi.org/10.3390/su17030831
Submission received: 19 December 2024 / Revised: 14 January 2025 / Accepted: 15 January 2025 / Published: 21 January 2025
(This article belongs to the Section Energy Sustainability)

Abstract

The problem of maximizing energy efficiency in Algerian residential structures in Mediterranean climates is discussed in this article. The primary issue with North Africa’s residential building stock is the dearth of benchmark models that describe thermal comfort and energy use, which is made worse by high cooling needs and energy poverty. The principal aim of this study is to create a benchmark model that will aid in evaluating the energy performance of the existing system and to suggest a series of actions to improve efficiency and thermal comfort in the future. The technique builds a calibrated model based on a database of 284 Algiers apartments by combining modeling and empirical observations. Based on the observed U-Value wall of 0.43 W/(m2K), the average annual energy use for Archetype A is 3.70 kWh/m2, and the average annual heating energy use is 13.20 kWh/m2. The significance of this model in advancing energy efficiency and sustainability in Mediterranean climates is emphasized in the Conclusion Section. These results contribute to our understanding of the dynamics of building energy in similar global environments and evaluate the thermal comfort and the measurement of CO2 emissions in this type of building.

1. Introduction

High energy use in Europe is frequently linked to the region’s harsh climate and abundant energy sources, which are made possible by the region’s strong economy [1]. It has been noted by economists that socioeconomic factors like income account for about 33% of energy use [2]. Because the climate in most European cities is dominated by heating [3], increasing building energy efficiency should be a top concern for the stock of European buildings.
In contrast, North Africa faces fuel poverty despite the extreme climate and cooling-dominated buildings. Unlike in Europe, North African households typically spend between 1.5% and 1.7% [4] of their monthly income to achieve thermal comfort, reflecting low incomes and widespread fuel poverty. Consequently, the priority in this region is to improve thermal comfort and increase energy use, ideally coupled with the integration of renewable energy systems and improved energy efficiency.
In North Africa, there are, as far as we know, not many studies that describe thermal comfort, energy use, and building energy performance. Investigations on energy efficiency and thermal comfort have been carried out in the past in Egypt [5]. In-depth energy audits, comprehensive databases, and sophisticated modeling approaches were all employed in that study, which provided insightful methodology that could be tailored to the North African environment. The housing stock in this region experienced significant expansion between 2004 and 2024. In Morocco, it is estimated that by 2024, it reached In Tunisia, the stock exceeds 4 million units, while Algeria launched major construction programs, including 1.16 million housing units planned between 2020 and 2024, bringing the total to over 10 million units [6,7,8,9]. As shown in Figure 1, collective housing is the most common type of dwelling in North African countries, accounting for 70–75% of the total [10].
An analysis by the IDDRI (Institute for Sustainable Development and International Relations) focuses specifically on the new residential sector in southern and eastern Mediterranean countries (SEMCs). It highlights the importance of building quality, which has very long-term implications for a country’s energy use [11]. Although they do not provide a direct comparison with Southern Europe, these sources offer potential points of comparison. For instance, the IDDRI study [11] mentions that the residential-tertiary sector is expected to become the largest emitter of greenhouse gases worldwide, with emissions reaching 7Gt of CO2 in developing countries. Evaluating thermal comfort and building energy efficiency in North Africa is essential for enhancing comfort and reducing fuel poverty. Integrating renewable energy technologies and improving building energy efficiency are also critical. In this area, thorough research is lacking despite the significance of these problems. Large sample numbers and thorough field measurements are specifically required to produce reliable data for creating efficient energy plans and strategies.
To bridge this gap, this article creates a benchmark model specifically for residential structures located in Mediterranean climates. We examined the energy efficiency and thermal comfort of middle-class communal housing in Algiers, with a particular focus on Algeria. Our process builds an energy performance model that is tested and calibrated using actual data by combining modeling approaches with empirical monitoring.
This paper’s primary goal is to give designers and policymakers reliable modeling tools to help in the evaluation of energy-saving measures and advancements in thermal comfort. Our methodology, which is based on earlier research, is centered on building comprehensive databases, carrying out exhaustive energy audits, and applying sophisticated modeling tools.
Using energy data from utility bills and simulations based on Energy Plus benchmark models, this study proposes an approach to estimate hourly building energy use. The unique aspect of this paper is how it characterizes energy use using a sample of sixty homes and in-depth field measurements. With a sample size this large, which corresponds to 2,001,508 dwelling units in Algeria, it is the first study of its sort in North Africa [12]. Buildings with equivalent sizes and purposes have comparable distributions of fuel and electrical energy use, which are accurately reflected by the benchmark models. This is a fundamental idea in the creation of this work. Additionally, in order to estimate the possibility of future renovations, this study presents a fundamental design of a building energy model, and its occupancy profiles adapted for residential structures.
The peculiarity of Algeria lies in its economy, which is mostly based on oil earnings, making state authorities the main players in the residential construction industry, especially when it comes to large-scale housing initiatives [12]. The approach suggested in this article, which measures the energy usage of communal residential structures, might facilitate informed decision-making in extensive deep energy retrofitting projects. It also encourages the implementation of sustainable building techniques and the creation and deployment of climate-adapted standards (DTR).
By providing solutions specific to Mediterranean conditions, this study contributes to a larger framework that encourages sustainability and energy efficiency in the residential sector. Therefore, future house design and remodeling in this area will be better-understood thanks to the results, which also include pertinent recommendations. The innovation is to create a calibrated numerical model that can be used by researchers and to propose a different scenario for sustainable solutions without carrying out an exhausting, extensive data collection process.
This article is organized into five sections: the first covers the state of the art, the second explains the methodology, the third presents the findings, and the fourth and fifth sections discuss and conclude, respectively.

2. The State of the Art

2.1. Energy Benchmarking in the Residential Sector in the United States: Methods and Trends

To allow for meaningful comparisons, a benchmark’s specification must unambiguously state all required parameters. These comparisons usually involve one or more metrics (such as time or energy) across different architectures. A clear benchmark may be run on any architecture to enable direct metric comparison. On the other hand, comparisons that use poorly specified benchmarks are incorrect. The creation of trustworthy techniques for comprehending and forecasting energy usage is essential for worldwide sustainability initiatives. Researchers have been inspired to investigate energy usage and develop energy use prediction models based on the availability of accessible datasets. Creating efficient energy retrofitting techniques requires benchmarking the energy efficiency of existing residential structures [13,14,15].
Worldwide, there are several benchmark models. The first comprehensive and organized benchmark models for the country’s building stock are available in the United States [16]. Building benchmark models for newly constructed buildings have been created and made available by the DOE’s Building Technologies Program in association with the National Renewable Energy Laboratory, Lawrence Berkeley National Laboratory, and Pacific Northwest National Laboratory [17]. As residents become older, energy usage in American homes tends to rise. The yearly energy use of an occupier rises by around 24.89 kWh for every year of age [18].
The number of appliances in a household and its size have an impact on the amount of water heated and the amount of appliances used [19]. Four designs yielded the highest benchmark values for total energy use, heating, and cooling energy use of building area: 56 kWh/(m2·a), 17.3 kWh/(m2·a), and 16.8 kWh/(m2·a) [20]. In order to benchmark the energy use and characteristics of 124 multi-family properties across 15 US states and assess their performance over a 12-month period in comparison to peers, B. Ashuri, J. Wang, M. Shahandashti, and M. Baek proposed using the Data Envelopment Analysis (DEA) approach [21]. A comparative study between two multi-family residential buildings in Central Pennsylvania shows that a conventional building consumes between 12.9 and 27.67 kWh/m2 per month [22].

2.2. Benchmark Models in Southern Europe: Analyzing Energy Needs

Southern Europe has the second-highest concentration of benchmark models. The majority of benchmark models in Europe are produced at the national level, even with the establishment of the EU building stock observatory [23,24]. The literature on benchmark models in Southern Europe is well established. TRNSYS calculations and conventional methodologies were used to compare the energy needs for heating and cooling 10 structures in Croatia, including a residential building and a typical single-family dwelling [25]. The heating and cooling requirements in the coastal climate ranged from 0 to 118 kWh/m2 and 38 to 170 kWh/m2, respectively. In Cyrus, in the coastline city of Famagusta, the monthly peak energy demand in an apartment exceeded 57.4 kWh between mid-May and mid-September, and further simulations resulted in use of 53.2 kWh in August for the monthly cooling load [24]. The findings of the Agence Nationale de L’habitat in France were consistent with those of D. Charlier and A. Risch [26]. They discovered that the amount of energy used was 274 kWh/m2.
To provide a more accurate description of the built environment and to identify building archetypes that best represent French architecture, the GENIUS database on French building archetypes has been enhanced [27]. The proposed typology of Hellenic residential buildings was initially introduced, accompanied by an evaluation of different Energy Conservation Measures (ECMs) that were employed to assess the energy efficiency of Greece’s building stock. The goal was to reach the 9% indicative national energy savings target [28]. The results from the simulations showed that the majority of energy consumed for domestic hot water (DWH) and heating in Mora’s study, which was centered on the Mediterranean environment, was highly dependent on the traits and preferences of the residents [29].
A study conducted in Italy [30] identified 46 models for single- and multi-family office buildings. These model buildings are typical of the most prevalent climate zone. The benchmark for the gain utilization factor is crucial for determining cooling energy requirements, according to the study of M.J.N. Oliveira Panao [31]. Portugal recommends benchmarks for yearly cooling energy demands ranging from 5.5 to 37.6 kWh/m2. As much as 25% of Spain’s overall power use is accounted for by residential structures [32].
In an analysis of Turkish residential structures, the ancient courtyard apartment building had the greatest heating demand (168 kWh/m2) and the lowest cooling demand (only 4 kWh/m2) [33]. With a cooling demand of 11.4 kWh/m2 and heating demand of 43.7 kWh/m2, the multi-family dwelling has had the lowest energy use rate. K. YiŇgiůt and B. Acarkan’s results from another study [34] The studies show that pre-2000 buildings need renovation to obtain a considerable 42% energy savings, as they consume 11,000 kWh/year more energy than post-2000 structures.

2.3. Current Status and Opportunities for Energy Benchmarking in North Africa

Still, relatively few studies in North Africa have attempted to create typical benchmark models. Because of various typo-morphological indices, urban structures in Algeria have quite different energy demands [35]. Natural gas systems provide the heat and hot water needed for 87% of the yearly energy demand [36]. Energy-efficient design guidelines are not adhered to in the construction of the residential structures that are currently in place. It was determined that more tactics ought to be used in this field with regard to building layout, materials, and facade arrangement [37].
According to a study by S. Attia, A. Evrard, and E. Gratia [5], the average consumption of a typical typology 1 apartment in Egypt was 22.4 kWh/m2/year in Alexandria, 26.6 kWh/m2/year in Cairo, and 31 kWh/m2/year in Asyut. A typical typology 2 apartment in Alexandria used 11 kWh/m2/year, while in Cairo it used 14 kWh/m2/year, and in Asyut, it used 18 kWh/m2/year.
As per the research conducted by M. Krarti and P. Ihm [4], the average energy usage in Libya is 4707 kWh per individual. To predict Morocco’s residential energy use, two sets of models have been constructed [38]. According to the data, electricity will expand at the highest rate (by almost 115%) among all final energy sources between 2016 and 2030. The implementation of smart management methods and the decrease in energy usage in Morocco would be made easier by the integration of new technology and artificial intelligence techniques [39].
The study by H. E. Mechri, V. Corrado, and M. Z. Gannar [40] describes the building energy labeling program in Tunisia, including its approach to evaluating energy performance in the commercial and residential sectors and actions meant to improve building energy efficiency. It emphasizes how important residential and commercial buildings are, as they already make up 27% of Tunisia’s overall energy usage and are expected to quadruple by 2030. The findings of a critical review of energy renovation trends in residential buildings in the Arab countries of the Mashreq and Maghreb (AMM) show that most studies focus on environmental aspects, often neglecting the economic and social criteria of sustainability [41].
A knowledge gap has been discovered considering this examination of the literature. North Africa has a population of 252 million in 2022, yet there are not many standard models in the region [42]. The development of benchmark models that precisely define households based on field observations is critically needed. For residential structures in Algiers, this study thus offers a proven model. In the geographical and climatic context of this study, it represents a very interesting and innovative study on energy use in buildings. Moreover, the study sample is of great importance, as it is the first study in North Africa based on a sample of 60 housing units.

3. Methodology

Developing a realistic reference model for a sample of 1200 people is a key component of the study approach. To establish the energy efficiency and comfort level of middle-class housing, we conducted an analysis of 284 homes in Algeria’s capital, Algiers, earlier in the project. As seen in Figure 1, this study used a hybrid method that incorporated modeling and empirical monitoring techniques. Utilizing literature analysis and field observations, a database of middle-class communal dwellings in Algiers was produced. We selected one sample reference home, measured its energy use, and examined its building performance systems and occupant behavior based on audits and thorough surveys.
High-quality data were produced from three years of energy monitoring and a thorough energy audit. After analysis, a single building performance model was developed using these data. Based on the tracked data, the model was verified and calibrated. The study by S. Attia, A. Mustafa, N. Giry, M. Popineau, M. Cuchet, and N. Gulirmak [43], which created two reference models for Belgian post-war residential buildings and served as the foundation for the technique used in this investigation. The approach is comparable to that of S. Attia, A. Evrard, and E. Gratia [5], who established reference models for the Egyptian residential building industry. The procedures used in conducting this study is covered in depth in the parts that follow. The study report contains links to every dataset that was utilized in this investigation [44].

3.1. Selection of Case Study

3.1.1. The History of the Building

Aero-habitat takes its name from a low-cost housing company (HLM) which owns the project and is semi-public sponsor [45], as shown in Figure 2. Construction was attributed to Louis Miquel, in association with Pierre Bourlier and José Ferrer, all members of the CIAM section in Algiers. According to [46], work began at the end of 1951 and was completed in 1955 (the buildings were occupied gradually after this date).
In the annals of modern architecture, Aero-habitat has a significant role. In fact, the initiative is mentioned in the most significant historical publications. Michel Ragon regards the project in his study [47] as “one of the most interesting of the last years of colonization” (see Figure 3). Maurice Besset [48] even went on to say that the Aero-habitat “opened the way which would lead the Swiss Atelier 5 team to the ‘open’ solution of the Halen housing estate a dozen years later”. Moreover, it was the first structure of its sort in Europe and France. It was “the most important private initiative project” in Algiers at the time and briefly held the world record for the highest residential structure. Figure 2 shows a view of Aero-Habitat from Martyrs’ Boulevard, with a red area highlighting the four buildings of the case study.

3.1.2. Location

The project is in the Parc Malglaive on Krim Belkacem Boulevard in the Telemly district, halfway up the hills surrounding Algiers and 1500 m from the city center (Figure 3).

3.1.3. Building Description and Physical Characteristics

There are four buildings in the project. Notwithstanding the ensemble’s relatively high height, views of homes upstream are not obscured by it because of the spine-like arrangement of the two major buildings, which have their primary axes perpendicular to the contour lines (Figure 4). Consequently, the majority of the trees on the ground surrounding the towering structures are still present. As seen in Figure 5, the tallest of the four structures has 23 stories at the plot’s lowest point and just 13 at its highest. Little earthworks compensate for the uneven terrain, enabling the four structures to follow the contour of the sloping ground. There are 284 apartments in the completed Aero-habitat project, most of which are three- and four-bedroom flats. The apartments range in size from studios to five-bedroom units. In contrast, single-story apartments may be found in the low-rise structures.
The apartments are set out similarly to the residential units, with a “double-oriented through cells” arrangement that places them side by side and facing south, giving views of the Bay of Algiers. Every apartment has a dining area, kitchen, pass-through, living room that extends outside (balcony for single-story apartments and loggia for duplexes), and at least two bedrooms with WCs and bathrooms. Beneath the smallest structure is shared parking and a meeting space for residents to use.

3.2. Creation and Analysis of Database of Middle-Class Collective Houses in Algiers

Based on information from field audits and self-reported tenant questionnaires, a preliminary database of 284 homes was established and maintained. Each structure was described in detail, including its location, age, surface area, design, materials used, airtightness, HVAC systems, restorations, occupancy, and the usage of electrical appliances for comfort, among other things. The Aero-habitat archives database was consulted [49]. Using real-estate websites and other resources, many houses’ Energy Performance of Buildings (EPB) assessments were gathered. This initial stage allowed us to establish the database and be ready for the next field visits and audits.
Between 2021 and 2023, site visits were scheduled for the 4 buildings, which correspond to the 284 households. The building envelope characteristics of each apartment were assessed visually, and a code ranging from 001 to 284 was assigned to each unit. Field surveys were also used to identify and characterize the energy systems of homeowners (such as ventilation, lighting, smart meters, air and water heating systems, and so on) who could complete the survey online or in person. Signing a consent form allowed the household’s energy suppliers to share their gas and electricity bills, which was a requirement for residents. Following their signature, they gained access to their invoices via SONELGAZ (02 Bd Colonel Krim Belkacem, Alger Centre 16000, Algeria), located in 2 Bd Colonel Krim Belkacem, Alger, Center 16000, Algeria, the energy provider. In addition, homeowners were requested to complete an online survey outlining their building’s energy efficiency. The permission form and survey asked questions about energy systems, tenant behavior, building attributes, and domestic hot water. Homeowners received logbooks so they could monitor their monthly usage. In certain residences, data recorders were put in place to monitor usage. Links to the surveys and forms may be found in the dataset report [44].
Lastly, as it was sometimes easier to get people to record their spending through the neighborhood association, it was possible to contact local groups directly. For more than sixty residences, voluntary walk-through audits were arranged. Comprehensive energy audits included U-value monitoring, analysis of occupancy behavior, energy system examination, and blower door testing. Ultimately, 280 households’ worth of data contributed to the database. The procedures for gathering, analyzing, and storing data were all conducted in accordance with the General Data Protection Regulation of the European Union [50].

3.3. Selection of Representative Reference Archetype

Two criteria guided the selection of the reference building. The first criterion involved identifying the most representative building types that reflect a significant portion of the buildings included in this study (see Figure 1). The second criterion focused on the feasibility of data collection and accessibility. Accessing these buildings and conducting field measurements or data collection surveys pose substantial challenges due to the residents’ introversion and the need to respect their privacy, making any fieldwork particularly complex.
There are four bars in the project: bar 1 has six levels; bar 2 has twenty-two stories plus the ground floor, which is the highest bar; bar 3 has five stories; and bar 4 has eighteen floors plus the bottom floor, as illustrated in image 5.
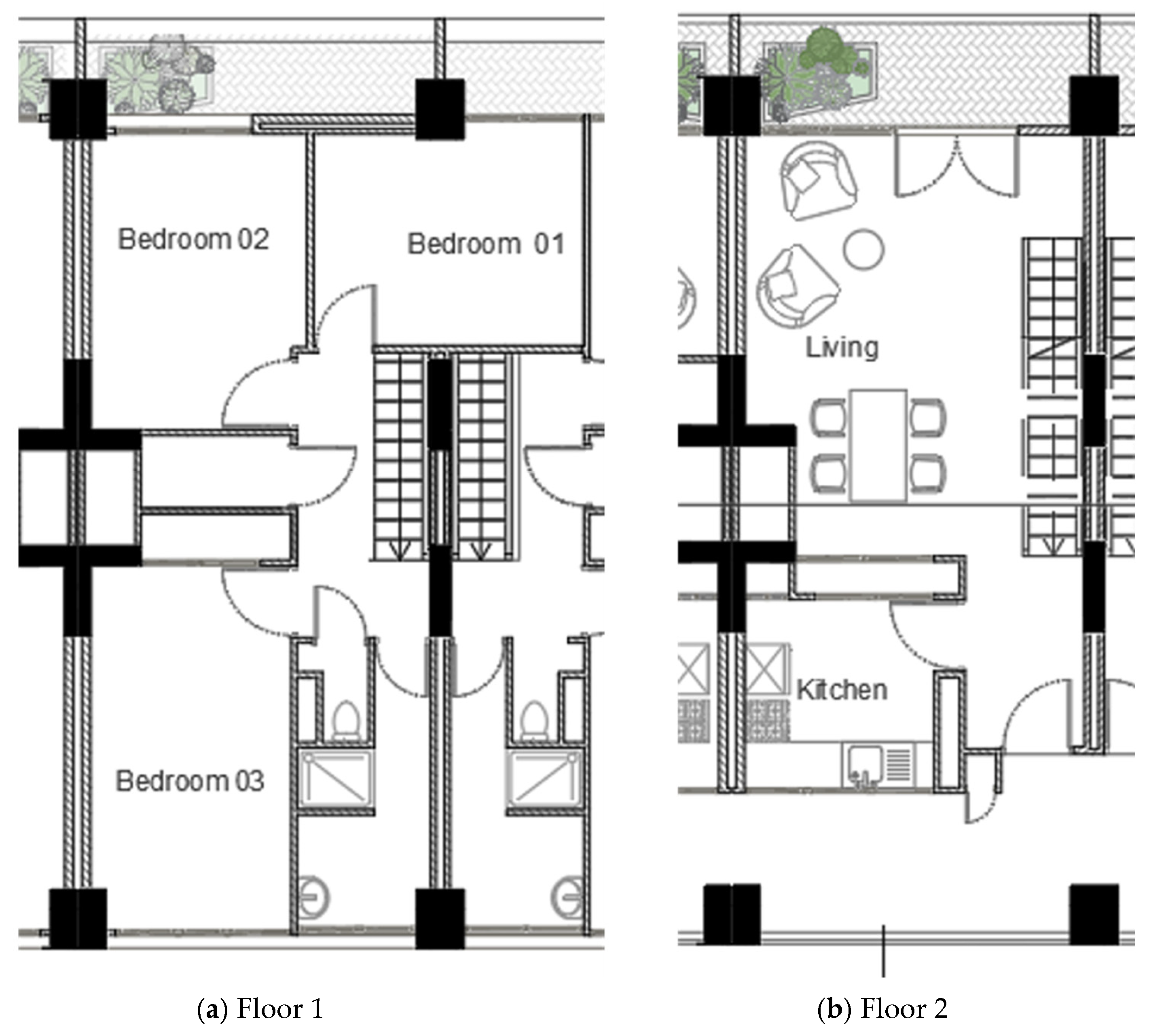
A variety of apartment types are available in each building, including studios, F3 apartments (two bedrooms with living room, kitchen, and bathroom facilities), simplex or duplex apartments, F4 apartments (three bedrooms with living room, kitchen, and bathroom facilities), and F5 apartments (four bedrooms with living room, kitchen, and bathroom facilities). With F3 and F4 typologies spanning between 70 and 90 m2 [51], more than 3 million households now have access to quality housing thanks to several development plans for Algeria’s housing sector that have been in place since 1999 [52] and are intended to improve living circumstances for Algerians in both urban and rural locations. Therefore, we set out to find the most typical kind of Algerian home to calculate energy use and create a benchmark model for residential constructions in the Mediterranean environment. Figure 6a represents bar 1, b represents bar 2, c represents bar 3, and d represents bar 4. In Figure 7, we can see the plans for the two floors of Archetype A.

3.4. Energy Characteristics of Reference Houses

In accordance with Krarti’s recommendations, a subset of homes underwent two energy characterization stages [45]. In 2021 and 2023, sixty families were the subjects of a comprehensive survey and study of the intensity of energy usage (natural gas and electricity). The primary participants, who live in the selected buildings and have intimate knowledge of the region, were interviewed in French, face to face.
The primary informal interviews served as a means of project introduction, trust building, and confidentially maintenance. Based on their quarterly invoices, we were able to inspect energy efficiency features and energy usage for 2021–2023 through step-by-step surveys. We were able to comprehend building performance and recognize usage trends thanks to passage audits. Monthly energy usage was obtained utilizing a confidential dataset. Access to use information was made available to residents in conjunction with the neighborhood association. Sixty audits were consequently conducted using field trips and independently administered online and via paper surveys.
The second kind of energy characterization was rather comprehensive and involved several techniques to reduce the level of uncertainty in the occupancy patterns and parameters used to describe energy efficiency. A duplicate of the survey was conducted inside the buildings for representative samples of the F4 reference Archetype A. The application’s sampling approach, which included a random sample, involved gathering the responses and compiling them on the server via the cloud. Following the identification of recurring response patterns, the request to enter occupancy information was closed.
Consequently, 200 household occupants participated in the occupancy surveys between 2021 and 2023. The information was gathered via the project’s central database, and it was subsequently examined to characterize the energy efficiency of sample dwellings in preparation for the building modeling stage. The occupancy survey data supported the choice of a single representative reference.
A calendar for the years 2021–2023 with an average value served as the basis for the yearly occupancy schedule. Occupancy survey data and data logger data were utilized to identify the dwellings’ heated thermal zones as well as their dimensions, make-up, age, and occupant count. The survey gathered information on water use and the use of domestic hot water (DHW). The number of vacation days was determined for each family. In order to create the daily occupancy schedule, the ISO 18523 and ISO 52016-1 requirements [53,54] were adhered to. A distinctive feature of the energy audit was the assessment of the lighting, HVAC, and energy sources. Mechanical ventilation system components were among the topics included in the audit questionnaire. We looked over the heating and portable heaters. The heating system and energy sources were identified and visually inspected including the exhaust chimneys.

3.5. Development of Benchmark Model

One example simulation model was made based on the previously stated building characterization and selection process. The building energy models were created using Energy Plus (Version 8.2.0) [55]. Every simulation was conducted using the Telemly site in Algiers, the capital city of Algeria. Köppen-Geiger [56] categorizes most of the country as having a temperate warm climate (Csa), which features a dry summer and a moderate winter. Residential buildings are often dominated by heating, with an average of 3500 Heating Degree Days (HDD) and 2000 Cooling Degree Days (CDD) (2014–2019, base temperatures of 10 C HDD and 18.3 C CDD) [57]. The Algerian Meteorological Center was contacted to gather meteorological information for Algiers for the years 2021 through 2023 [58].

3.5.1. Calibration

Utility bill comparisons, model calibration, and further verification against publicly available data have all been attested to the building energy model’s correctness. Calibration was conducted in compliance with ASHRAE Guideline 14 to evaluate the goodness-of-fit of the energy model. The Mean Bias Error (MBE) and the Root Mean Square Error (RMSE) Coefficient of Variation (CV) are the two indicators used by ASHRAE Guideline 14 [59] to assess the goodness-of-fit of the building energy model. Multi-dimensional bias error (MBE) is a non-dimensional measure of the total bias error between the simulated and measured data across a certain temporal resolution. It is commonly expressed as a percentage:
M B E = i = 1 N p ( m i s i ) i = 1 N p m i
where mi (i = 1, 2, …, Np) are the measured data, si (i = 1, 2, …, Np) are the simulated data at time interval i, and Np is the total number of the data values.
CV (RMSE) represents how well the simulation model describes the variability in the measured data. It is defined as follows:
CV   ( RMSE ) = 1 m i = 1 N p ( m i s i ) 2 N p   %
where, besides the quantities already introduced in Equation (1), m is the average of the measured data values. The evaluation of a building energy simulation model’s accuracy is made according to the model’s conformity with the recommended criteria for MBE and CV (RMSE).
For a simulation model, if its MBE is less than 5%, it is considered calibrated according to ASHRAE Guideline 14. The calibration’s Coefficient of Variation (RMSE) is not more than 15% when the monthly data are employed. Two more calibrations were performed on the reference apartment model in order to increase the accuracy of calculating the building’s performance and provide a reliable building energy model. First, the measured monthly gas use of the building was used to calibrate the building models. The most thorough uncertainty analysis was performed on the weather, building envelope, and occupancy [60].

3.5.2. Weather Description

This study has made use of the Dar El-Beida station, which yields accurate readings with low data loss. Clustering methods are essentially classified into two classes [61]. Many advanced instruments are available at the Dar El-Beida meteorological station in Algiers to gather accurate and comprehensive weather data. They include radiometers for measuring solar radiation, anemometers for determining wind direction and speed, rain gauges for estimating precipitation, barometers for tracking atmospheric pressure, thermometers for air temperature, hygrometers for determining humidity levels, and automated weather stations for data transmission and continuous monitoring. The station also makes use of customized software for data processing and analysis, which makes it possible to provide weather reports, identify meteorological patterns, and assist with scientific research. In general, the meteorological station at Dar El-Beida is essential for tracking regional climatic conditions and producing precise weather forecasts.
The climate is of the Mediterranean type on all the northern fringe which includes the Littoral and Tell Atlas (hot and dry summers, wet and cool winters).

3.5.3. Building Envelope Performance Monitoring

The building envelope’s airtightness and thermal conductivity were discovered to be significant yet extremely erratic modeling input factors. The gSKIN KIT-2615C (U-Value Kit) was used to conduct 15-day U-value monitoring on a variety of envelope surfaces in accordance with ISO 9869-1:2014 [62]. The kits were configured to measure a brick cavity wall model [63]. To verify the findings, we computed the heat losses via the exterior walls, floor, roof, and apertures using DTR data [64].

3.5.4. Occupancy Behavior Verification

With consent from the owners, three TESTO IAQ 160 data recorders were placed in the three selected residences. The four parameters that the data recorders delivered to the cloud each hour were temperature, humidity, CO2, and pressure. The field measurements, which centered on the unique behavioral characteristics of the inhabitants, were conducted in the summer of 2023. Monitoring data and survey answers were used to verify occupancy schedules. Schedules for plug loads, lights, and domestic hot water use were developed using information from the energy and interior environment monitoring systems. The profiles were suitably scaled in accordance with the building energy modeling programs’ specifications, drawing from the study conducted by [65]. After defining the daily and yearly heating (and cooling) and natural ventilation times using meteorological data, the heating, cooling, and natural ventilation schedules were developed.

4. Results

This section contains a presentation of the database findings. The energy models, validation findings, and energy characteristics of the three chosen reference flats are all well explained.

4.1. Database of 284 Apartments in Algiers

Figure 8 shows the project site location. By combining all of the geometric and energy-efficiency features of the housing database, a comprehensive database of 284 families was produced. From the data gathered, one apartment reference was found, reference A, which corresponds to F4 homes with a surface area of between 80 and 90 m2 [66]. Due to differences in design, home layout, occupant density, and energy efficiency, the references had to be differentiated.
Figure 9 lists the 284 reference homes that were inspected during the Archetype A field surveys. Reference A consisted of audited homes. Figure 10, which also displays the findings for the audited homes and their measured energy use breakdown, displays the measured energy use (natural gas and electricity) for reference A in 2023.

4.2. Selected Reference Buildings

As indicated in Figure 11 and detailed in Table 1, the reference building has been selected as a typical building. The type of F4 dwelling that is most prevalent in Algeria is represented by Archetype A [43]. A uniform rectangular layout with a brick wall covering is the defining feature of Archetype A. A substantial slab of reinforced concrete covers the two stories of a typical home. The first floor of most homes has a balcony. Beginning in the 1960s, a sizable portion of Algerians had access to this typology [60]. Typically, the area ranges from 79 to 93 square meters [61]. The homes use electricity for cooling and natural gas for heating.
The archetype became more prevalent in Algerian urban society. The facades are made of hollow bricks filled with concrete constructions. The layout of the houses is more open, with an open kitchen and reception area. “Duplex” was the name of the archetype. The multi-zonal thermal areas in the building energy models are categorized as (1) living area (kitchen, living room, and dining area), (2) sleeping area (bedrooms), and (3) brief-presence area (bathrooms and hallways). The archetype’s facades and plans are displayed in Appendix A’s Figure A1. A thorough modeling report has further information on the thermal zoning schemes.

4.3. Energy Characterization of the Reference Archetype

Based on the work of Attia et al., the energy characteristics of the reference simulation model are explained in this section [43].

4.3.1. Energy Use Intensity

According to Table 2, the average energy use intensity of typology A is 3.70 kWh/m2/year for electricity and 13.20 kWh/m2/year for heating (including domestic hot water) based on the characterization of energy use for the 60 families.

4.3.2. Occupancy Density and Schedules

Families with one or more children, couples with children, and single persons constituted Archetype A. Among the residents under investigation, homeowners make up the majority. As a result of not having complete ownership of the land, a sizable portion of survey participants reported usufructuary ownership. When questioned, the majority of tenants gave their kids or grandkids usufruct. The typology had a modest overall occupancy density.
We established the occupation period using the timetable found in ISO 18523-2. For people 45 years of age and older, on average, ISO 18523 was created. Thus, new schedules were developed based on our monitoring observations and surveys. The occupation patterns for the three space categories—living area (kitchen, dining area, and living room), sleeping area (bedrooms), and short-presence area (bathrooms and hallways)—are shown in Figure 12. We kept the workday and weekend schedules distinct because the residents were mostly adults. The holidays and times of occupation for the archetype are presented in Table 3 and Table 4.

4.3.3. Lighting Intensity and Schedules

We were able to identify the types and quantities of lamps that are most frequently utilized thanks to the survey results. Compact fluorescent bulbs accounted for 70% of the total number of lamps utilized, with LED lamps coming in second at 30%. The main rooms using halogen lighting were the living and dining spaces. During the day or when no one was inside, artificial lighting was not used. The average illumination power intensity for dwelling spaces was 12 W/m2, as noted throughout the study. For instance, the average illumination power density in the bedroom was 8 W/m2, with an average variance of 6.1 W/m2. The three primary space types’ lighting schedules are shown in Figure 12. During the winter, lighting schedules were adjusted to provide for an additional two hours of operation in dwelling areas after 8:00 and one hour before 17:00. By contrasting the outcomes with reports released by APRUE [67] and SONALGAZ [68], multiple attempts were undertaken to confirm the lighting schedules.

4.3.4. Plug Load Intensity and Schedules

A detailed audit was conducted on a sample of 60 housing units, complemented by a questionnaire distributed across all 284 units to collect information about the appliances used in this residential model. The survey data were used to calculate the penetration and saturation rates of home appliances. For Algerian single-family residences of type F4, Table 5 enumerates the most popular appliances. A saturation rate of more than 65% was observed in the sample of 14 appliances that were listed. A unit capacity estimate was derived using operation hours and power values for plugged appliances in both standby and continuous mode. Electrical socket load intensity was expected to be 9 W/m2 on average. It was shocking to see that 8.9% of homes had portable electric heaters, while 74.6% of families had split air conditioners. In conclusion, the modeling assumptions were verified by the utilization of monthly and annual data on power usage.

4.3.5. Cooking and Domestic Hot Water

Every home that was inspected has a connection to the city’s gas system. Since 2020, homes have been undergoing a transition period as they swap out their outdated gas and electricity meters for more contemporary, energy-efficient devices. The majority of homes have gas heating systems or boilers. Determining the baseline energy usage for cooking and hot water in the home has been made possible by the analysis of gas bills (see Section 3.3). According to a study, the average household with two elderly residents used 16 m3 of water per person per day or 22 L/person/day. A total of 25 L/person/day of domestic hot water (at 60 °C) was computed. An estimated 30 to 60 min were spent cooking each day.

4.3.6. HVAC Systems and Comfort Setpoints

Natural gas is the source of heat for every home. There were a few homes without any heating. More than 60% of homes have a heating system that includes radiators and a hot water loop. The owners of the homes mentioned switching from gas heating to gas boilers for the heating system after 2000. Thermostatic valves, which are used in radiators, regulate the hot water flow according to the local setpoint temperature that has been measured. It is customary to keep radiators closed in vacant spaces. The living spaces, which include the kitchen, had an average thermostat setpoint temperature of 25 °C. All of the radiators were open. Warmth was maintained at 18 °C with closed radiators in the toilet and other places with brief occupancy. Warmth was maintained at 23 °C in occupied bedrooms with partially open radiators. When it came to people with low metabolic rates and poor body temperature regulation, the thermal comfort setpoint criteria satisfied the standards of ISO 17772-1,2 (Category I) [54]. There was almost no mechanical ventilation in any of the homes studied. In the winter and summer, 88% of poll participants said they open their windows to let natural air in.
As shown in Figure 13 and Figure 14, the buildings exhibit a mix of heating and cooling dominance, with heating load slightly higher when domestic hot water is included. The lack of insulation results in increased heat losses in winter and notable heat gains in summer. The high altitude of Algiers is an additional reason for the higher heating energy use in winter.

4.4. Numerical Model Calibration

Numerous iterations have been conducted using different input data validation techniques. The calculated monthly energy use Mean Absolute Error (MBE) and Coefficient of Variation of Root Mean Square Error (CV (RMSE)) values are shown in Table 6. The results are within reasonable bounds, with the MBE value slightly rising because some homes were vacant. Energy bills were used to compare the observed energy use intensity with the archetypal energy usage. Additionally, by keeping an eye on U-values and airtightness measurements, envelope input parameters were improved. Table 7 displays the final U-values for the building’s exterior and interior floors. Table 7 also displays the results of the blower door test. Obtaining dependable envelope performance numbers by on-site monitoring was more significant than the total amount of energy used by each home. The reported figures considerably decreased the building energy model’s uncertainty. Household occupancy characteristics were improved in an attempt to verify the multi-zone energy model one last time. We were able to achieve a high degree of agreement on the most likely profiles through repeated polls. Occupancy characterization indicated that adults were the primary occupants of the houses, notwithstanding the size of the households.
Nevertheless, the discovery of residents utilizing gas heaters and electric air conditioners was the most important result of the occupancy behavior verification. Calibration for December, January, and February presented a difficult set of adjustments between simulated and measured power use numbers. Based on survey responses, journals, and ad hoc interviews, more than 95% of residents reported using both gas heaters and electric air conditioners. Improvements in thermal comfort and individual comfort levels were the primary drivers. Gas heating equipment helped to match better the curves shown in Figure 13 and Figure 14 and explained the calibration problem. Following many behavioral estimations about heating settings, occupant presence, and routines, the homes’ indoor air quality characteristics were validated by monitoring. Figure 13 and Figure 14 show that the measured data results align perfectly with the simulated results, ensuring the reliability of the numerical model.

5. Discussion

A critical step in characterizing existing structures for the purpose of enabling accurate simulations and plausible scenarios for upcoming restorations is benchmarking. This section delves into the research results and places them in the context of the state of the art at the moment.
The investigation produced a dataset with the thermal and physical properties of more than sixty homes. Based on the performance of a typical building stock and the calibrated in accordance with ASHRAE BESTEST9040 criteria, a multi-zone energy benchmark model was created in EnergyPlus. Our numerical model will enable the evaluation of thermal comfort and the measurement of CO2 emissions in this type of building. We remind readers that this represents a very large number of buildings (Figure 1), which continues to grow. According to this model, Archetype A’s average annual heating energy use intensity is 13.20 kWh/m2/year, but its average annual electricity use intensity is 3.70 kWh/m2/year. The study revealed that Algerian residents’ behavior significantly impacts energy use patterns. They tend to prefer staying at home in the evening, influenced by a culture that highly values privacy and the desire to remain out of sight, leading to elevated energy use after 5 p.m.
Furthermore, energy use varies according to energy prices. The comparatively low cost of gas in Algeria drives substantial increases in heating during the winter, while higher electricity prices lead to more restrained use of air conditioning during the summer. This highlights the importance of considering cultural and economic factors when addressing residential energy efficiency.
In reference to the Aero-habitat project’s remodeling tactics, it is apparent that most of the buildings’ windows are single-glazed, which results in less than ideal window performance overall. For better thermal insulation, these windows need to be swapped for double-glazed ones. Furthermore, the walls and roofing of the building envelope have rather high thermal conductivity, which makes the use of reasonably priced thermal insulation materials for insulation measures necessary. Prioritizing these upgrades aligns with modern energy efficiency standards and sustainability goals. By addressing the windows, walls, and roofing simultaneously, the project can significantly reduce energy losses, improve indoor thermal comfort, and lower long-term operational costs. Adopting such measures would also demonstrate a commitment to environmentally conscious urban development.
Additionally, system upgrades like building more effective pumps to distribute water to higher floors are advised. Occupant survey results showed that 85.7% of homes encounter drafts many times a day, emphasizing the necessity of installing draft stoppers to reduce air currents efficiently. It is essential to carry out simulation studies on the structures in order to maximize solar benefits in the winter and efficiently control air circulation in the summer.
This study used real monthly data on electricity and natural gas usage gathered during a three-year monitoring period from 2021 to 2023 to describe a crucial group of homes. With evidence-based calibration and this all-encompassing approach, the newly generated model’s accuracy and confidence were increased. The surveying of homes, gathering of energy bills, on-site audits, in-situ blower door testing, and thermal conductivity measurements were made possible by employing a mixed methodological approach, as in previous investigations.
One of the main components of energy performance evaluation methods that tries to lower energy use and meet minimum performance requirements is building benchmarking. The performance gap can be closed with the help of thorough characterization of building performance which identifies problems that lead to overheating and discomfort during the winter, such as inadequate envelope performance, a reliance on gas heaters and air conditioning, and a lack of mechanical ventilation systems.
One of the limitations of this study lies in the representativeness of the sample. While efforts were made to include the most common types of housing found in Algeria, we cannot fully guarantee the accuracy of the sample’s representation. This is due to the lack of a comprehensive, studied database on the residential sector in both Algiers and Algeria as a whole. The absence of such data makes it challenging to ensure that the sample precisely reflects the diversity of residential buildings across the country. Consequently, while the sample is based on the available literature and existing knowledge, its representativeness remains a limitation in the context of this study.
In spite of the DTR’s 1999 efforts and the modifications that followed in 2016 [64], there are no comprehensive energy rules in Algeria. Reviewing the energy strategy and investigating ways to boost building sector energy efficiency—such as improving building envelopes, streamlining operations, and encouraging the adoption of more energy-efficient appliances—are essential. The study’s conclusions on citizen use being closely correlated with price and energy poverty call for a re-evaluation of energy costs based on income levels and the provision of corresponding aid to the populace. Algeria must also enforce the adherence of institutions to energy legislation and standards. Renovations can lower energy use in residential buildings and perhaps result in net-zero energy balance or energy-neutral structures.
The findings of this study can be expanded upon in the future through a thorough review of rehabilitation methods appropriate for Algerian building types that are comparable. Furthermore, investigating how mixed-mode ventilation affects residential buildings’ energy usage might be a worthwhile line of inquiry.

6. Conclusions

This study focused on creating a benchmark model for residential buildings in North Africa’s Mediterranean climate, with particular emphasis on Algeria’s specific conditions. We investigated the energy efficiency and thermal comfort of middle-class communal housing in Algiers using empirical monitoring and modeling methodologies.
The findings reveal that Archetype A has an average yearly electricity use intensity of 3.70 kWh/m2/year and a heating energy use intensity of 13.20 kWh/m2/year. Resident behavior significantly influences energy usage, with higher heating energy use in winter and moderate air conditioning energy use in summer, influenced by gas prices and electricity costs. This highlights the need for tailored energy pricing and assistance measures to combat energy poverty.
Key recommendations include installing draft stoppers, improving the water distribution system, enhancing the thermal insulation of building envelopes, and replacing single-glazed windows with double-glazed ones. These steps are crucial for improving energy efficiency and thermal comfort. The study also underscores the importance of adhering to energy regulations and offers suggestions for remodeling to reduce energy use and promote energy-neutral buildings.
Policymakers and designers can benefit from the data and insights in this study, aiding the evaluation and implementation of energy-efficient techniques in residential buildings with Mediterranean climates. Algeria’s economic structure underscores the importance of sustainable construction methods, with the state playing a key role in residential sector development. Future research should explore the impact of mixed-mode ventilation and comprehensive renovation strategies. This study provides a solid benchmark model and valuable recommendations for improving domestic energy efficiency and thermal comfort in North Africa, paving the way for further innovative research directions.

Author Contributions

Conceptualization, A.T., Y.L. and S.A.; methodology, A.T., A.L. and S.A.; software, A.T.; validation, A.L., A.T., Y.L. and S.A.; formal analysis, A.T., A.L. and S.A.; investigation, A.T.; writing—original draft preparation, A.T.; writing—review and editing, A.T. and S.A.; supervision, Y.L. and S.A.; funding acquisition, S.A. and A.L. All authors have read and agreed to the published version of the manuscript.

Funding

This research received no external funding.

Institutional Review Board Statement

Not applicable.

Informed Consent Statement

Data Availability Statement

A dataset is available from https://doi.org/10.7910/DVN/QUVTOZ.

Acknowledgments

This research was funded by a welcome grant provided by Algiers 1 University, which is gratefully acknowledged. We would like to thank the LAE laboratory and its director, Boussoualim, from EPAU Algiers, for lending us their equipment during the measurement campaigns. Also, we would like to acknowledge the Sustainable Building Design (SBD) Laboratory at the University of Liege for the use of the monitoring equipment in this research and the valuable support during the fieldwork audits and data analysis.

Conflicts of Interest

The authors declare no conflict of interest.

Abbreviations

The following abbreviations are used in this manuscript:
CIAMCongrès International de l’Architecture Moderne (International Congress on Modern Architecture)
DTRDocument Technique Règlementaire (Algerian Regulatory Technical Document)
SONELGAZSociété nationale de l’électricité et du gaz (national electricity and gas company)
APRUEAgence pour la Promotion et la Rationalisation de l’Utilisation de l’Energie en Algérie (Agency for the Promotion and Rationalization of Energy Use in Algeria)
DOEDepartment of Energy
ECMsEnergy Conservation Measures
HLMHabitat à Loyer Modéré (Moderate Rent Housing)
HVACHeating, Ventilation, and Air Conditioning
ASHRAEAmerican Society of Heating, Refrigerating and Air-Conditioning Engineers
RMSERoot Mean Square Error.
MBEMean Bias Error
LEDLightEmitting Diode

Appendix A

Figure A1. (a) site layout diagram (b) profile section (c) over view sketch [49].
Figure A1. (a) site layout diagram (b) profile section (c) over view sketch [49].
Sustainability 17 00831 g0a1
Figure A2. (a) Temperature (b) Precipitations.
Figure A2. (a) Temperature (b) Precipitations.
Sustainability 17 00831 g0a2
Figure A3. Radiations.
Figure A3. Radiations.
Sustainability 17 00831 g0a3

References

  1. González-Torres, M.; Pérez-Lombard, L.; Coronel, J.F.; Maestre, I.R.; Yan, D. A review on buildings energy information: Trends, end-uses, fuels and drivers. Energy Rep. 2022, 8, 626–637. [Google Scholar] [CrossRef]
  2. Risch, A.; Salmon, C. What matters in residential energy consumption: Evidence from France. Int. J. Glob. Energy Issues 2017, 40, 79. [Google Scholar] [CrossRef]
  3. Yang, Y.; Javanroodi, K.; Nik, V.M. Climate change and energy performance of European residential building stocks—A comprehensive impact assessment using climate big data from the coordinated regional climate downscaling experiment. Appl. Energy 2021, 298, 117246. [Google Scholar] [CrossRef]
  4. Krarti, M.; Ihm, P. Evaluation of net-zero energy residential buildings in the MENA region. Sustain. Cities Soc. 2016, 22, 116–125. [Google Scholar] [CrossRef]
  5. Attia, S.; Evrard, A.; Gratia, E. Development of benchmark models for the Egyptian residential buildings sector. Appl. Energy 2012, 94, 270–284. [Google Scholar] [CrossRef]
  6. Mebirouk, H. Enjeux et instruments d’une politique urbaine, le logement évolutif comme alternative au quartier précaire de Sidi-Harb d’Annaba (Nord-Est Algérien). Cah. Géographie Qué. 2020, 62, 445–458. [Google Scholar] [CrossRef]
  7. CAHF|Centre for Affordable Housing Finance Africa. North Africa. Available online: https://housingfinanceafrica.org/regions/north-africa/ (accessed on 12 October 2024).
  8. Lewis, J. The Africa Report 2024/25, Knight Frank’s Ultimate Guide to Real Estate Market Performance and Opportunities Across the Continent; The Intelligence Lab Global Property Market Insight. Available online: https://www.knightfrank.com/research/report-library/africa-report-2024-25-11356.aspx (accessed on 6 November 2024).
  9. Haut Commissariat Au Plan. Démographie Marocaine: Tendances Passées et Perspectives D’avenir; Thematic Report; Centre des Etudes et des Recherches Demographiques: Rabat, Morocco, 2005. [Google Scholar]
  10. Ministry of Housing and Urban Policy. L’habitat au Maroc: Situation du Parc de Logements et Statut D’occupation; Haut Commissariat au Plan: Rabat, Morocco, 2014. [Google Scholar]
  11. Sénit, C.-A. L’efficacité Énergétique Dans le Secteur Résidentiel: Une Analyse des Politique des Pays du Sud et de l’Est de la Méditerranée, N14/2008 CHANGEMENT CLIMATIQUE, iddri, Paris, France, 2008. Available online: https://www.iddri.org/sites/default/files/import/publications/id_0814_c.a-senit_efficacite-energetique-psem.pdf (accessed on 24 November 2024).
  12. Ministère de L’habitat de L’urbanisme et de la Ville, Algérie Synthèse du Bilan de Réalisation des Activités pour L’année. 2020. Available online: https://www.mhuv.gov.dz/?p=5145&lang=fr (accessed on 6 June 2024).
  13. Jacobvitz, A.N.; Hilton, A.D.; Sorin, D.J. Multi-program benchmark definition. In Proceedings of the 2015 IEEE International Symposium on Performance Analysis of Systems and Software (ISPASS), Philadelphia, PA, USA, 29–31 March 2015; IEEE: Philadelphia, PA, USA, 2015; pp. 72–82. [Google Scholar]
  14. Ha-Minh, C.; Tang, A.M.; Bui, T.Q.; Vu, X.H.; Huynh, D.V.K. (Eds.) CIGOS 2021, Emerging Technologies and Applications for Green Infrastructure: Proceedings of the 6th International Conference on Geotechnics, Civil Engineering and Structures; Lecture Notes in Civil Engineering; Springer Nature: Singapore, 2022; Volume 203. [Google Scholar]
  15. Wang, E.; Shen, Z.; Alp, N.; Barry, N. Benchmarking energy performance of residential buildings using two-stage multifactor data envelopment analysis with degree-day based simple-normalization approach. Energy Convers. Manag. 2015, 106, 530–542. [Google Scholar] [CrossRef]
  16. Matson, N.E.; Piette, M.A. Review of California and National Methods for Energy Performance Benchmarking of Commercial Buildings; LBNL--57364; Ernest Orlando Lawrence Berkeley National Laboratory: Berkeley, CA, USA, 2005; p. 887197. [Google Scholar] [CrossRef]
  17. Fumo, N.; Mago, P.; Luck, R. Methodology to estimate building energy consumption using EnergyPlus Benchmark Models. Energy Build. 2010, 42, 2331–2337. [Google Scholar] [CrossRef]
  18. Wang, L.; Lee, E.W.M.; Hussian, S.A.; Yuen, A.C.Y.; Feng, W. Quantitative impact analysis of driving factors on annual residential building energy end-use combining machine learning and stochastic methods. Appl. Energy 2021, 299, 117303. [Google Scholar] [CrossRef]
  19. Kuang, B.; Schelly, C.; Ou, G.; Sahraei-Ardakani, M.; Tiwari, S.; Chen, J. Data-driven analysis of influential factors on residential energy end-use in the US. J. Build. Eng. 2023, 75, 106947. [Google Scholar] [CrossRef]
  20. Ding, Y.; Xiang, Y.; Jiang, X.; He, Y. Study of the Energy Consumption Characteristics of Residential Buildings and Influencing Factors Based on Actual Energy Use Data. 2024. Available online: https://ssrn.com/abstract=4806793 (accessed on 24 November 2024).
  21. Ashuri, B.; Wang, J.; Shahandashti, M.; Baek, M. A data envelopment analysis (DEA) model for building energy benchmarking. J. Eng. Des. Technol. 2019, 17, 747–768. [Google Scholar] [CrossRef]
  22. Mirhosseini, H.; Li, J.; Iulo, L.D.; Freihaut, J.D. Quantifying the Enhanced Performance of Multifamily Residential Passive House over Conventional Buildings in Terms of Energy Use. Buildings 2024, 14, 1866. [Google Scholar] [CrossRef]
  23. Röck, M.; Baldereschi, E.; Verellen, E.; Passer, A.; Sala, S.; Allacker, K. Environmental modelling of building stocks—An integrated review of life cycle-based assessment models to support EU policy making. Renew. Sustain. Energy Rev. 2021, 151, 111550. [Google Scholar] [CrossRef]
  24. European Commission. EU Reference Scenario, Energy, Transport and GHG Emissions Trends to 2050 Main Results; European Commission: Brussels, Belgium, 2016. [Google Scholar]
  25. Zakula, T.; Bagaric, M.; Ferdelji, N.; Milovanovic, B.; Mudrinic, S.; Ritosa, K. Comparison of dynamic simulations and the ISO 52016 standard for the assessment of building energy performance. Appl. Energy 2019, 254, 113553. [Google Scholar] [CrossRef]
  26. Charlier, D.; Risch, A. Evaluation of the impact of environmental public policy measures on energy consumption and greenhouse gas emissions in the French residential sector. Energy Policy 2012, 46, 170–184. [Google Scholar] [CrossRef]
  27. Tornay, N.; Schoetter, R.; Bonhomme, M.; Faraut, S.; Masson, V. GENIUS: A methodology to define a detailed description of buildings for urban climate and building energy consumption simulations. Urban Clim. 2017, 20, 75–93. [Google Scholar] [CrossRef]
  28. Dascalaki, E.G.; Droutsa, K.G.; Balaras, C.A.; Kontoyiannidis, S. Building typologies as a tool for assessing the energy performance of residential buildings—A case study for the Hellenic building stock. Energy Build. 2011, 43, 3400–3409. [Google Scholar] [CrossRef]
  29. Mora, D.; Carpino, C.; De Simone, M. Energy consumption of residential buildings and occupancy profiles. A case study in Mediterranean climatic conditions. Energy Effic. 2018, 11, 121–145. [Google Scholar] [CrossRef]
  30. Carnieletto, L.; Ferrando, M.; Teso, L.; Sun, K.; Zhang, W.; Causone, F.; Romagnoni, P.; Zarrella, A.; Hong, T. Italian prototype building models for urban scale building performance simulation. Build. Environ. 2021, 192, 107590. [Google Scholar] [CrossRef]
  31. Oliveira Panão, M.J.N. Revisiting cooling energy requirements of residential buildings in Portugal in light of climate change. Energy Build. 2014, 76, 354–362. [Google Scholar] [CrossRef][Green Version]
  32. Pacheco-Torres, R.; López-Alonso, M.; Martínez, G.; Ordóñez, J. Efficient design of residential buildings geometry to optimize photovoltaic energy generation and energy demand in a warm Mediterranean climate. Energy Effic. 2015, 8, 65–84. [Google Scholar] [CrossRef]
  33. Tereci, A.; Ozkan, S.T.E.; Eicker, U. Energy benchmarking for residential buildings. Energy Build. 2013, 60, 92–99. [Google Scholar] [CrossRef]
  34. YïĞïT, K.; Acarkan, B. Assessment of energy performance certificate systems: A case study for residential buildings in Turkey. Turk. J. Electr. Eng. Comput. Sci. 2016, 24, 4839–4848. [Google Scholar] [CrossRef]
  35. Bensehla, S.; Lazri, Y.; Brito, M.C. Solar potential of urban forms of a cold semi-arid city in Algeria in the present and future climate. Energy Sustain. Dev. 2021, 62, 151–162. [Google Scholar] [CrossRef]
  36. Eddine Khelfa, I.; Lazri, Y.; Alkama, D.; Toumi, R. An energy and ecological assessment of the prior and post-hybrid renovation state of multi-dwelling building in the algerian city of skikda. Indones. J. Soc. Sci. Res. 2024, 5, 130–143. [Google Scholar] [CrossRef]
  37. Rais, M.; Boumerzoug, A.; Baranyai, B. Energy performance diagnosis for the residential building façade in Algeria. Pollack Period. 2021, 16, 136–142. [Google Scholar] [CrossRef]
  38. Haouraji, C.; Mounir, B.; Mounir, I.; Farchi, A. A correlative approach, combining energy consumption, urbanization and GDP, for modeling and forecasting Morocco’s residential energy consumption. Int. J. Energy Environ. Eng. 2020, 11, 163–176. [Google Scholar] [CrossRef]
  39. Zoubir, Z.; Er-Retby, H.; Es-Sakali, N.; Souldi, A.; Mghazli, M.O. Towards Sustainable Buildings: Predictive Modeling of Energy Consumption with Machine Learning. Procedia Comput. Sci. 2024, 236, 59–66. [Google Scholar] [CrossRef]
  40. Mechri, H.E.; Corrado, V.; Gannar, M.Z. Building Energy Labeling in Tunisia; Conference Climamed: Genoa, Italy, 2007; Available online: https://www.researchgate.net/publication/313792042_Building_Energy_labeling_in_Tunisia (accessed on 1 June 2024).
  41. Almomani, A.; Almeida, R.M.S.F.; Vicente, R.; Barreira, E. Critical Review on the Energy Retrofitting Trends in Residential Buildings of Arab Mashreq and Maghreb Countries. Buildings 2024, 14, 338. [Google Scholar] [CrossRef]
  42. Statista Research Department North Africa: Population by Country. 2022. Available online: https://rb.gy/zcxp27 (accessed on 17 June 2024).
  43. Attia, S.; Mustafa, A.; Giry, N.; Popineau, M.; Cuchet, M.; Gulirmak, N. Developing two benchmark models for post-world war II residential buildings. Energy Build. 2021, 244, 111052. [Google Scholar] [CrossRef]
  44. Tellache, A.; Lazri, Y.; Attia, S. Dataset on the Building Energy Performance of the AeroHabitat Residence in Algiers. 2024. Available online: https://hdl.handle.net/2268/318425 (accessed on 1 December 2024).
  45. Ruggeri, D.; Ravéreau, A. Aéro Habitat and Unité d’Habitation. In Africa: Big Change Big Chance; Editrice Compositori: Bologna, Italy, 2015; Volume 1, pp. 136–137. [Google Scholar]
  46. Atzeni, C.; Mocci, S. Self-sustainability of the post-colonial North Africa habitat between individual and collective spheres. TECHNE—J 14. Technol. Archit. Environ. 2017, 88–96. [Google Scholar] [CrossRef]
  47. Ragon, M. Histoire de L’architecture et de L’urbanisme Modernes, Tome 1 Idéologies et Pionniers (1800–1910); Éditions Points; Paris, France, 2010. Available online: https://rb.gy/6wgezm (accessed on 8 July 2023).
  48. Stambouli, N. L’Aéro-habitat, avatar d’un monument classé ? Livraisons Hist. Archit. 2014, 117–127. [Google Scholar] [CrossRef][Green Version]
  49. Association of Aero-habitat Archives of the Aéro-habitat association, 118 Bd Colonel Krim Belkacem, Algiers 16004, Algeria, 2022.
  50. Voigt, P.; Von Dem Bussche, A. The EU General Data Protection Regulation (GDPR); Springer International Publishing: Cham, Switzerland, 2017; ISBN 978-3-319-57958-0. [Google Scholar]
  51. Semahi, S.; Benbouras, M.A.; Mahar, W.A.; Zemmouri, N.; Attia, S. Development of Spatial Distribution Maps for Energy Demand and Thermal Comfort Estimation in Algeria. Sustainability 2020, 12, 6066. [Google Scholar] [CrossRef]
  52. Yasmine, S.; Medjden, H.K.; de Statistique, L. Le Secteur de L’habitat en Algerie: Etat Des Lieux. Rev. Des Sci. Commer. Rev. Sci. Commer. 2017, 16, 110–118. [Google Scholar]
  53. ISO 18523-2:2018; Energy Performance of Buildings—Schedule and Condition of Building, Zone and Space Usage for Energy Calculation—Part 2: Residential Buildings. International Organization for Standardization: Geneva, Switzerland, 2018; Edition 1. Available online: https://www.iso.org/standard/69633.html (accessed on 20 August 2023).
  54. ISO 52016-1:2017; Energy Performance of Buildings—Energy Needs for Heating and Cooling, Internal Temperatures and Sensible and Latent Heat Loads—Part 1: Calculation Procedures. International Organization for Standardization: Geneva, Switzerland, 2017; Edition 1. Available online: https://www.iso.org/obp/ui/en/#iso:std:iso:52016:-1:ed-1:v1:en (accessed on 7 August 2024).
  55. EnergyPlus. Available online: https://energyplus.net/ (accessed on 23 August 2023).
  56. Yang, T.; Ding, Y.; Li, B.; Athienitis, A.K. A review of climate adaptation of phase change material incorporated in building envelopes for passive energy conservation. Build. Environ. 2023, 244, 110711. [Google Scholar] [CrossRef]
  57. Alawadhi, M.; Phelan, P.E. Review of Residential Air Conditioning Systems Operating under High Ambient Temperatures. Energies 2022, 15, 2880. [Google Scholar] [CrossRef]
  58. Météo Alger, Prévisions de 10 Jours Alger, Algérie Météo. Available online: https://www.dzmeteo.com/meteo-alger.dz (accessed on 23 August 2023).
  59. NSI/ASHRAE Standard 140-2017; Standard Method of Test for the Evaluation of Building Energy Analysis Computer Programs. ASHRAE: Corners, GA, USA, 2017. Available online: https://webstore.ansi.org/standards/ashrae/ansiashraestandard1402017 (accessed on 7 August 2024).
  60. Hopfe, C.J.; Hensen, J.L.M. Uncertainty analysis in building performance simulation for design support. Energy Build. 2011, 43, 2798–2805. [Google Scholar] [CrossRef]
  61. Mesri, M.; Ghilane, A.; Bachari, N.E.I. An approach to spatio-temporal analysis for climatic data. Rev. Energ. Renouvelable 2013, 16, 413–424. [Google Scholar] [CrossRef]
  62. Rasooli, A.; Itard, L. In-situ characterization of walls’ thermal resistance: An extension to the ISO 9869 standard method. Energy Build. 2018, 179, 374–383. [Google Scholar] [CrossRef]
  63. Hens, H.; Janssens, A.; Depraetere, W.; Carmeliet, J.; Lecompte, J. Brick Cavity Walls: A Performance Analysis Based on Measurements and Simulations. J. Build. Phys. 2007, 31, 95–124. [Google Scholar] [CrossRef]
  64. DTR C3-2. Thermal Regulation of Residential Buildings e Calculating Methods for Determining Building Heat Losses; CRIB: Algiers, Algeria, 2019; Available online: https://www.academia.edu/11791860/DTR_C3_2_Reglement_thermique_des_batiments_dhabitation_regle_de_calcul_des_peperdition_calorifique_FACICULE1 (accessed on 28 July 2024).
  65. Malekpour Koupaei, D.; Hashemi, F.; Tabard-Fortecoëf, V.; Passe, U. Development of a Modeling Framework for Refined Residential Occupancy Schedules. In An Urban Energy Model, Proceedings of Building Simulation 2019: 16th Conference of IBPSA, Rome, Italy, 2–4 September 2019; IBPSA: Toronto, ON, Canada, 2019; pp. 3377–3384. [Google Scholar] [CrossRef]
  66. Ministère de L’habitat de L’urbanisme et de la Ville, Algérie Logement Public Promotionnel. Available online: https://www.mhuv.gov.dz/fr/logement-public-promotionnel/ (accessed on 2 October 2023).
  67. APRUE. Consommation Energétique Finale de L’Algérie. Chiffres Clés; Ministère de L’énergie: Algiers, Algeria, 2019; Available online: https://rb.gy/syfhnx (accessed on 23 June 2023).
  68. Sonalgaz. Présentation du Modèle de Consommation Energétique au Niveau des Communes; Sonalgaz: Algiers, Algeria, 2018. Available online: https://www.interieur.gov.dz/images/Prsentation-du-modle-de-consommation-nergtique-au-niveau-des-communes.pdf (accessed on 13 January 2023).
Figure 1. Distribution of households by type of housing in North Africa between 2004 and 2024.
Figure 1. Distribution of households by type of housing in North Africa between 2004 and 2024.
Sustainability 17 00831 g001
Figure 2. View of Aero-habitat from Boulevards des Martyrs (Martyrs’ Boulevard).
Figure 2. View of Aero-habitat from Boulevards des Martyrs (Martyrs’ Boulevard).
Sustainability 17 00831 g002
Figure 3. Location of Aero-habitat project (36°77′13″ N, 3°04′88″ E). Source: Google Maps, 2023.
Figure 3. Location of Aero-habitat project (36°77′13″ N, 3°04′88″ E). Source: Google Maps, 2023.
Sustainability 17 00831 g003
Figure 4. Study conceptual framework for methodology.
Figure 4. Study conceptual framework for methodology.
Sustainability 17 00831 g004
Figure 5. (a) Floor plan of Aero-habitat. (b) Section of building 2 [49].
Figure 5. (a) Floor plan of Aero-habitat. (b) Section of building 2 [49].
Sustainability 17 00831 g005
Figure 6. The four bars of the Aero-habitat. (a) bar 1 (b) bar 2 (c) bar 3 (d) bar 4.
Figure 6. The four bars of the Aero-habitat. (a) bar 1 (b) bar 2 (c) bar 3 (d) bar 4.
Sustainability 17 00831 g006
Figure 7. Plans of reference archetype.
Figure 7. Plans of reference archetype.
Sustainability 17 00831 g007
Figure 8. Distribution of 284 representative buildings in Algiers, Algeria (Google Maps, 2023).
Figure 8. Distribution of 284 representative buildings in Algiers, Algeria (Google Maps, 2023).
Sustainability 17 00831 g008
Figure 9. Dwellings representative of Archetype A.
Figure 9. Dwellings representative of Archetype A.
Sustainability 17 00831 g009
Figure 10. Measured energy use intensity for reference A.
Figure 10. Measured energy use intensity for reference A.
Sustainability 17 00831 g010
Figure 11. (a) Typology A in 3D view. (b) Archetype A in 3D view: floor 1. (c) Archetype A in 3D view: floor 2.
Figure 11. (a) Typology A in 3D view. (b) Archetype A in 3D view: floor 1. (c) Archetype A in 3D view: floor 2.
Sustainability 17 00831 g011
Figure 12. Occupation schedule.
Figure 12. Occupation schedule.
Sustainability 17 00831 g012
Figure 13. Surveyed and simulated monthly electricity use of typology A.
Figure 13. Surveyed and simulated monthly electricity use of typology A.
Sustainability 17 00831 g013
Figure 14. Surveyed and simulated monthly gas use of typology A.
Figure 14. Surveyed and simulated monthly gas use of typology A.
Sustainability 17 00831 g014
Table 1. General description of reference A.
Table 1. General description of reference A.
Building DescriptionArchetype A
Number of floors 2
Total area (m2) 100.58
Occupants2
Total volume (m3) 281.6
External wall area 27.57
U-value (W/m2 K)0.43
Table 2. Heating demand, electricity demand, and energy use intensity.
Table 2. Heating demand, electricity demand, and energy use intensity.
Apartments Type Average Heating Energy Demand (kWh/m2/year) Variance Average Electricity Demand (kWh/m2/year) Variance Average Energy Use Intensity (kWh/m2/year) Variance
Reference A13.2087.393.7012.0316.9099.42
Table 3. Occupation status of apartment members in typical apartment for five family members.
Table 3. Occupation status of apartment members in typical apartment for five family members.
2022–2023MemberReference A
Senior 1Senior 2
Days at home in the week Status
06:00–09:00Regularly Often
09:00–12:00OftenOften
12:00–15:00OftenOften
15:00–18:00Regularly Often
18:00–23:00Regularly Often
23:00–06:00Regularly Often
Days at home at the weekend Regularly Often
Table 4. Holiday schedules for the year 2023.
Table 4. Holiday schedules for the year 2023.
NameStart DateEnd Date Number of Days
Summer holidays1 August 202330 August 202330
All Saints’ Day holidays1 January 202320 June 202310
National holidays12 January 20231 November 202304
Table 5. Appliances found in typical apartments.
Table 5. Appliances found in typical apartments.
ApplianceWatt-HourDaily Operating HoursApplianceWatt-HourDaily Operating Hours
Furnace fan5000HD Television5000
Microwave15000.2Washing Machine6801.30
Mobile charger20.3Refrigerator9524
Phone charger300Kettle15000.15
Built-in oven30000PC/Laptop/Tablets150/60/401.00
Electric iron1100 Electric Stove65000
Vacuum cleaner33015Radio1500
Table 6. The MBE and CV (RMSE) of the monthly energy heating and electricity use.
Table 6. The MBE and CV (RMSE) of the monthly energy heating and electricity use.
Statistical IndicesMBE (%)CV (RMSE) (%)
Typology A monthly calibration (electricity/natural gas)7.169.65
Table 7. Summary of input parameters for one benchmark model after calibration.
Table 7. Summary of input parameters for one benchmark model after calibration.
Model Input Measures Typology A
EnvelopeWindow-to-Wall Ratio (WWR in %)15%
Solar Heat Gain Coefficient (SHGC)0.6
Light Transmittance (LT)80%
Solar Protection (External)50%
Window U-Value = (W/m2K)275
Roof U-Value = (W/m2K)0.455
Airtightness (at 50 Pa m3/h-m2)
Heating system, ventilation, and air conditioningCOP Heating System75 °C
Temperature Setpoint [C] for Heating22 °C
Heating System
Heating FuelGaz
LightingLighting Power Density (W/m2)1.5
OccupancyNumber of People02
Occupancy Density (m2/person) 50.29
Occupancy ScheduleSee Figure 10
TotalAverage Use (kWh/m2/year)
Disclaimer/Publisher’s Note: The statements, opinions and data contained in all publications are solely those of the individual author(s) and contributor(s) and not of MDPI and/or the editor(s). MDPI and/or the editor(s) disclaim responsibility for any injury to people or property resulting from any ideas, methods, instructions or products referred to in the content.

Share and Cite

MDPI and ACS Style

Tellache, A.; Lazri, Y.; Laafer, A.; Attia, S. Development of a Benchmark Model for Residential Buildings with a Mediterranean Climate: The Aero-Habitat in Algiers City. Sustainability 2025, 17, 831. https://doi.org/10.3390/su17030831

AMA Style

Tellache A, Lazri Y, Laafer A, Attia S. Development of a Benchmark Model for Residential Buildings with a Mediterranean Climate: The Aero-Habitat in Algiers City. Sustainability. 2025; 17(3):831. https://doi.org/10.3390/su17030831

Chicago/Turabian Style

Tellache, Asmaa, Youcef Lazri, Abdelkader Laafer, and Shady Attia. 2025. "Development of a Benchmark Model for Residential Buildings with a Mediterranean Climate: The Aero-Habitat in Algiers City" Sustainability 17, no. 3: 831. https://doi.org/10.3390/su17030831

APA Style

Tellache, A., Lazri, Y., Laafer, A., & Attia, S. (2025). Development of a Benchmark Model for Residential Buildings with a Mediterranean Climate: The Aero-Habitat in Algiers City. Sustainability, 17(3), 831. https://doi.org/10.3390/su17030831

Note that from the first issue of 2016, this journal uses article numbers instead of page numbers. See further details here.

Article Metrics

Back to TopTop