Timing Circular Regeneration with Adaptive Reuse Potential: A Century of Transformations at the Renoma Department Store, Wroclaw
Abstract
1. Introduction
1.1. Historic Department Stores in Transition
1.2. Research Gap and Aim
- Can the ARP model, when applied retrospectively and integrated with a contextual Readiness Index, reconstruct the timing and drivers of major interventions?
- How do morphological enablers—such as the steel frame, modular grid, and open-plan layout—affect obsolescence and adaptive potential?
- How do readiness factors evolve under different socio-political and economic regimes?
1.3. Contributions & Scope
1.4. Paper Structure
2. Materials and Methods
2.1. Evidence Base and Research Design
2.1.1. Archival and Supplementary Sources (Phase-Level)
2.1.2. Morphological & Spatial Analysis
2.1.3. Contextual Analysis (Socio-Economic, Political, Cultural)
2.1.4. Expert Elicitation: Interviews and O1–O7 Questionnaires
2.1.5. Data Integration & Phase Delineation (P1–P5)
2.2. Adaptive Reuse Potential (ARP): Retrospective Operationalisation
2.3. Readiness Indicator and the GO Metric
2.4. Validation and Sensitivity
3. Case Context: Renoma’s Transformations (1930–2025)
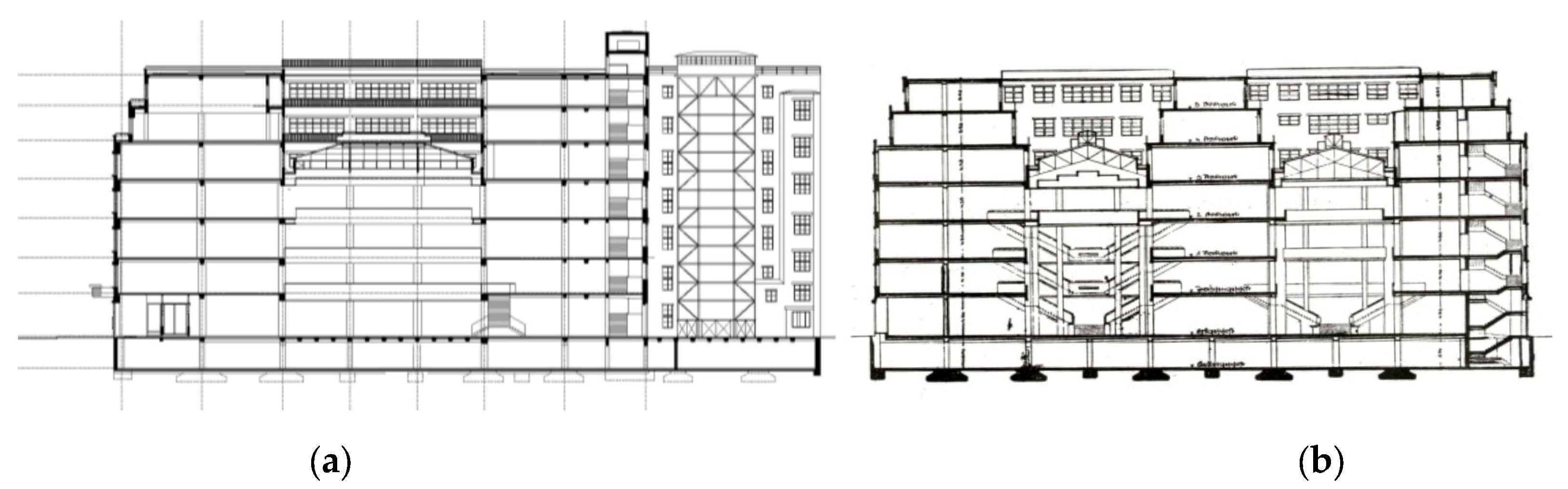
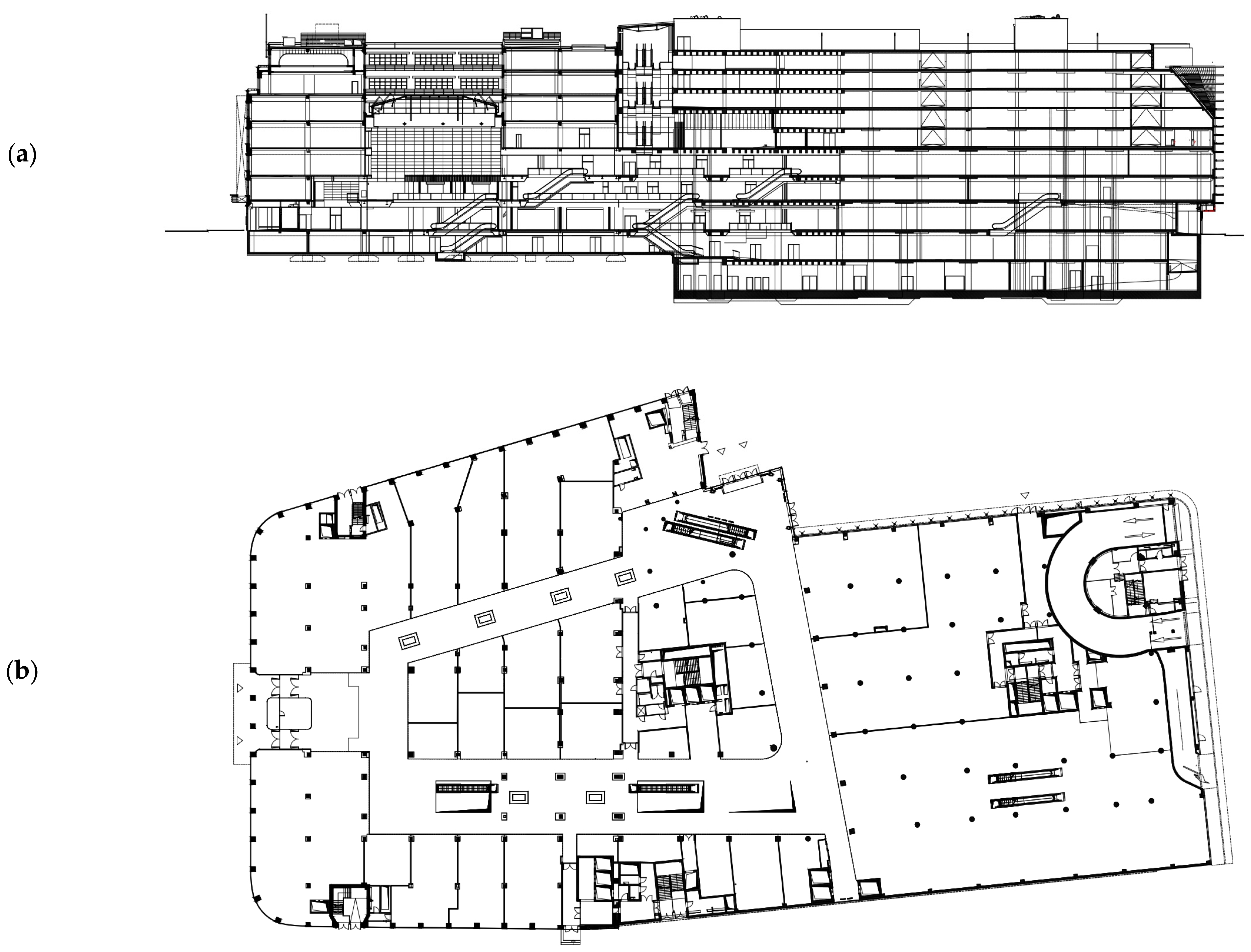
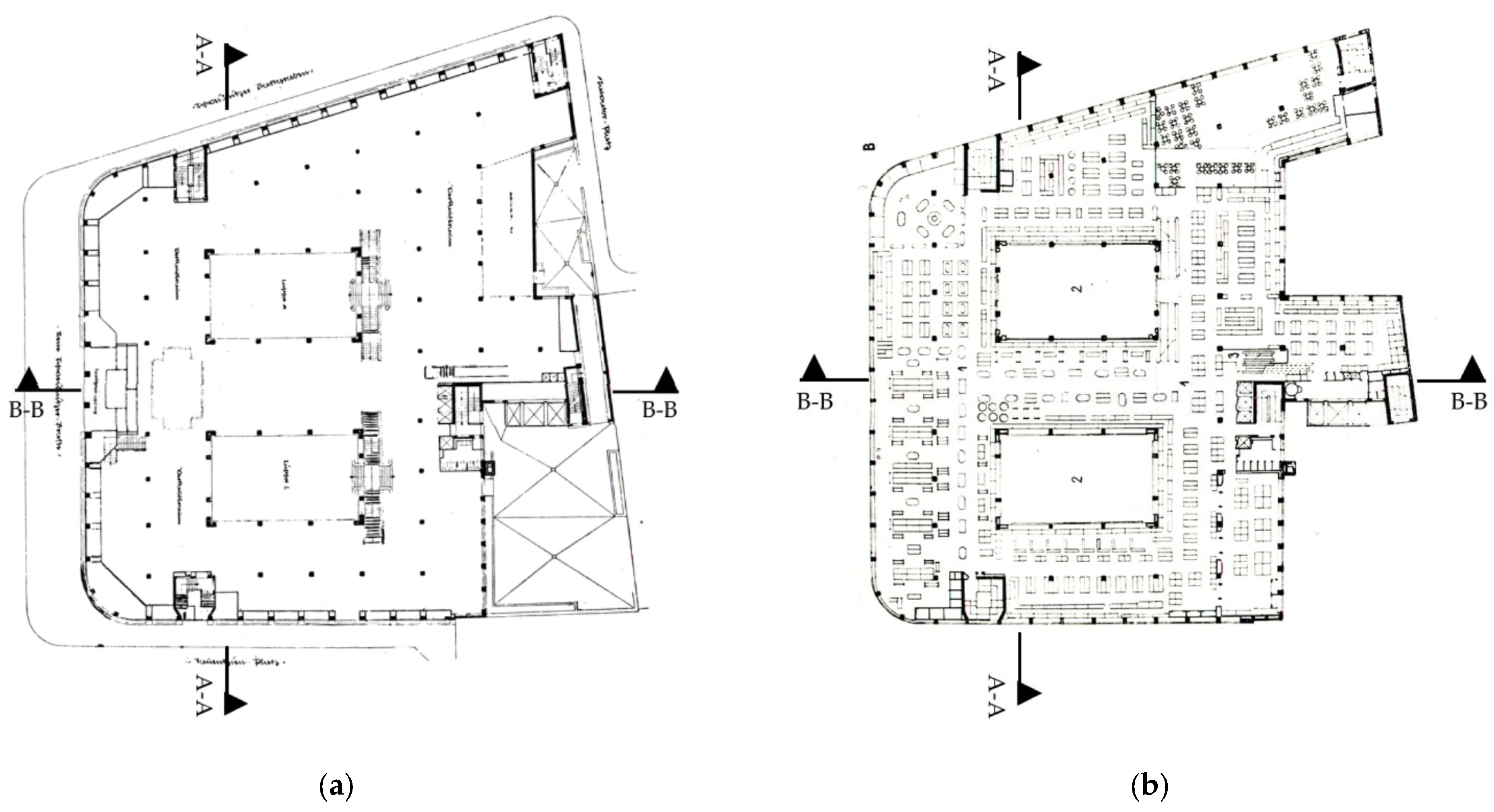
3.1. Architectural Concept & “Flexible Heritage” Enablers



3.2. Phased Transformations (P1–P5)
3.3. Key Decision Drivers and Their Spatial Manifestation
4. Results: ARP and Readiness Assessment of the Renoma Department Store
4.1. Structural and Lifecycle Parameters Underlying ARP
4.2. Obsolescence Assessment: Component Scores (O1–O7 Across Phases P1–P5)
4.3. ARP Scoring Results (O1–O7 Across Phases P1–P5)
4.4. Phase-Level Readiness Assessment (F–P Dimensions)
4.5. Integration of ARP and Readiness Trajectories
5. Discussion
5.1. Adaptive Cycles and Key Drivers
5.2. Policy and Design Implications
Implications for Design Practice and Heritage Management
5.3. Transferability and Portfolio Application
5.3.1. Methodological Transferability
5.3.2. Flexible Heritage and Dynamic Contexts
5.4. Limitations and Future Research
6. Conclusions
Supplementary Materials
Author Contributions
Funding
Institutional Review Board Statement
Informed Consent Statement
Data Availability Statement
Acknowledgments
Conflicts of Interest
Abbreviations
| ARP | Adaptive Reuse Potential—model assessing building adaptability through life-cycle and obsolescence parameters |
| O1–O7 | Obsolescence dimensions used in the ARP model |
| ELb/ELu | Expected lower and upper life bounds applied in ARP life-cycle estimation |
| ΣO | Sum of obsolescence scores (aggregate of O1–O7) |
| R | Readiness Index—contextual measure of implementation capacity |
| F–G–U–D–P | Components of the Readiness Index: Finance, Governance/Approvals, Use Commitment, Delivery/Supply Chain, Policy/Strategic Priority |
| GO metric | Three-level decision classification derived from Readiness: WAIT/PREPARE/GO |
| IQR | Interquartile Range—measure of variability applied to expert-based scoring of O1–O7 |
| CBA-AR | Circular and Adaptable Building—Adaptive Reuse Framework |
| HUL | Historic Urban Landscape approach integrating heritage, environment, and urban development |
Appendix A. Phase-Level Evidence Packages Informing the Readiness and ARP Assessments
| No. | Source (APA Style) | Phase Package(s) (PK-Px) | Ref. No. (if Cited Directly) |
|---|---|---|---|
| 1 | Dernburg, H. Ausgeführte Bauten und Entwürfe [Executed Buildings and Designs]. Wasmuths Monatshefte für Baukunst und Städtebau 1920, 4, 351–374. | PK-P1 | - |
| 2 | Zaar, K.; Zaar, A.L.; Kik, P. Handbuch der Architektur. Teil IV, Heft 2: Bauten für Wohn-, Handels- und Verkehrszwecke [Handbook of Architecture. Part IV, Issue 2: Buildings for Housing, Trade and Traffic Purposes]. Gebhardt: Leipzig, Germany, 1923. | PK-P1 | - |
| 3 | Sichert, L. Wettbewerb: Neubau Warenhaus Wertheim in Breslau [Competition: New Construction of the Wertheim Department Store in Breslau]. Ostdeutsche Bau-Zeitung 1928, 23, 137–144. Available online: https://bibliotekacyfrowa.pl/dlibra/publication/6684 (accessed on 19 September 2025). | PK-P1 | - |
| 4 | Skizzenwettbewerb Warenhaus Wertheim in Breslau [Sketch Competition for Wertheim Department Store in Breslau]. Monatsheft zur Deutschen Bauzeitung 1928, 2, 25–32. | PK-P1 | - |
| 5 | Dernburg, H. Der neue Wertheim-Bau [The New Wertheim Building]. Schlesische Monatshefte 1928, 51–53. | PK-P1 | - |
| 6 | Dernburg, H.; Wertheim Grundstücks-Gesellschaft m.b.H. Geschäftshaus (Warenhaus) A. Wertheim in Breslau [Architectural design drawings]. Archival materials; Technisches Büro: Berlin, Germany, June 1928; Archival files nos. t. 3168–3175, ABmW. | PK-P1 | - |
| 7 | Dernburg, H.; Wertheim Grundstücks-Gesellschaft m.b.H. Geschäftshaus (Warenhaus) A. Wertheim in Breslau [Architectural design drawings—revisions]. Archival material; Technisches Büro: Berlin, Germany February 1929; Archival files nos. t. 3168–3175, ABmW. | PK-P1 | - |
| 8 | Dernburg, H.; Wertheim Grundstücks-Gesellschaft m.b.H. Geschäftshaus (Warenhaus) A. Wertheim in Breslau [Architectural design drawings—final issue]. Archival material; Technisches Büro: Berlin, Germany, July 1929; Archival files nos. t. 3168–3175, ABmW. | PK-P1 | - |
| 9 | Dernburg, H. Zwei Neubauten von Hermann Dernburg [Two New Buildings by Hermann Dernburg]. Wasmuths Monatshefte für Baukunst und Städtebau, 1930, 14, 313–322. | PK-P1 | [63] |
| 10 | Stahlkonstruktion zum Neubau des Kaufhauses Wertheim in Breslau: Ausgeführt von der Carlshülte A.G. für Eisengießerei und Maschinenbau Waldenburg-Altwasser [Steel Construction for the New Wertheim Department Store in Breslau: Executed by Carlshülte A.G. for Iron Foundry and Mechanical Engineering, Waldenburg-Altwasser]. Ostdeutsche Bau-Zeitung 1930, 6, 45–60. Available online: https://bibliotekacyfrowa.pl/dlibra/publication/6862 (accessed on 19 September 2025). | PK-P1 | - |
| 11 | Dernburg, H. Das Warenhaus Wertheim in Breslau [The Wertheim Department Store in Breslau]. Deutsche Bauzeitung 1930, 64, 409–415. | PK-P1 | [62] |
| 12 | Wertheim hat eröffnet [Wertheim Has Opened]. Breslauer Zeitung 1930, 93 (1. Beilage), 2. | PK-P1 | - |
| 13 | Wertheim—großer Ferien-Verkauf [Wertheim—Big Holiday Sale]. Breslauer Zeitung 1930, 171, 4. | PK-P1 | - |
| 14 | Wertheim ist eröffnet [Wertheim is opened]Schlesische Zeitung 1930, 171(4. Bogen), 1. | PK-P1 | - |
| 15 | Wertheim in Breslau [Wertheim in Breslau]Schlesische Zeitung 1930, 177(6. Bogen), 2. | PK-P1 | - |
| 16 | Saison—Ausverkauf bei Wertheim [Sale at Wertheim]. Breslauer Zeitung 1930, 178, 4. | PK-P1 | - |
| 17 | Berlin und seine Bauten. Teil VIII: Bauten für Handel und Gewerbe. Band A: Handel [Berlin and its buildings. Part VIII: Buildings for trade and commerce. Volume A: Trade]; Ernst & Sohn: Berlin/München/Düsseldorf, Germany, 1978. | PK-P1, PK-P3 | - |
| 18 | Irrgang, T. Deutsche Warenhausbauten—Entwicklung und heutiger Stand ihrer Betriebs-, Bau- und Erscheinungsformen [German department store buildings—development and current state of their operational, architectural, and design forms]. Ph.D. Thesis, Technische Universität Berlin, Berlin, Germany, 1980. | PK-P1, PK-P2 | - |
| 19 | Šlapeta, V. Neues Bauen in Breslau [New Building in Breslau]. Rassegna 1989, 40, 14–61. | PK-P1, PK-P3 | - |
| 20 | Architecture of the Early XX Century; Phaidon: London, UK, 1990. | PK-P1 | - |
| 21 | Stommer, R. Vom Traumpalast zum Warencontainer [From dream palace to container store]. Deutsche Bauzeitung 1990, 10, 132–150. | PK-P1, PK-P2 | - |
| 21 | Kirschke, K.; Kirschke, P.; Schlimme, H. Geschäftshäuser der Zwanziger Jahre in Breslau [Commercial buildings of the 1920s in Breslau]. In Hochhäuser für Breslau 1919–1932; Ilkosz, J.; Störtkuhl, B., Eds.; Aschenbeck & Holstein: Delmenhorst, Germany, 1997; pp. 82–100. | PK-P1, PK-P3 | - |
| 22 | Kirschke, K.; Kirschke, P. Three Corners: Poelzig’s, Mendelsohn’s and Dernburg’s Department Stores. In That Wonderful Wrocław Modern Movement; Lose, S., Ed.; VIA: Wrocław, Poland, 1998; pp. 86–100. | PK-P1, PK-P2 | [75] |
| 23 | Kirschke, K.; Kirschke, P. Warenhaus Wertheim. Monotyp luksusowej architektury modernistycznej Wrocławia [The Wertheim Department Store: A monotype of Wrocław’s luxury modernist architecture]. In Oblicza modernizmu w architekturze. Part 1. Paradygmat luksusu w architekturze modernizmu XX wieku; Nakonieczny, R.; Wojas-Stoszowska, J., Eds.; Śląsk Wydawnictwo Naukowe: Katowice, Poland, 2013; pp. 64–72. | PK-P1, PK-P2 | - |
| 24 | Kirschke, K.; Kirschke, P. Colour and Light in Berlin and Wrocław (Breslau) Department Stores Built between 1927 and 1930. Arts 2022, 11, 12. https://doi.org/10.3390/arts11010012. | PK-P1, PK-P4 | [100] |
| 25 | Ladwig-Winters, S. The Attack on Berlin Department Stores (Warenhäuser) after 1933. Yad Vashem. Available online: https://www.yadvashem.org/articles/academic/the-attack-on-berlin-department-stores.html (accessed on 19 September 2025). | PK-P1 (context) | - |
| 26 | Wspaniała placówka odbudowującego się Wrocławia [Opening of the People’s Department Store in Wrocław]. 22 July 1948. Słowo Polskie 200, 2. Available online: https://repozytorium.wbp.wroc.pl/dlibra/publication/337/edition/306/content (accessed on 19 September 2025). | PK-P2 | - |
| 27 | Broniewski, T.; Suwalski, L. Projekt techniczny Powszechnego Domu Towarowego w gmachu przy ul. Fredry, Wrocław [Technical design for the People’s Department Store building at Fredry Street, Wrocław]. Wrocław: Zjednoczenie Powszechne Domy Towarowe (PDT), 1948. | PK-P2 | - |
| 28 | Guerquin, L.A.; et al. “Delikatesy” PDT, Podwale 40, Wrocław: projekt budowlany przebudowy parteru (“Delicatessen” Department Store, Podwale 40, Wrocław: ground floor reconstruction building permit design). Wrocław: Miejskie Biuro Projektów, 1965. | PK-P2 | - |
| 29 | Kamocki, W.; et al. Remont i przebudowa Domu Towarowego “Renoma”/“Centrum”: projekty budowlane kondygnacji [Renoma/Centrum Department Store renovation and reconstruction: floor-level building designs]. Wrocław: Miastoprojekt Wrocław, 1975. | PK-P2 | - |
| 30 | Antkowiak, Z. 40 lat Domu Towarowego Centrum we Wrocławiu. 1948–88 [40 Years of the “Centrum” Department Store in Wrocław, 1948–88]; Wrocław, Poland, 1978 | PK-P2 | [80] |
| 31 | Antkowiak, Z. Dom Towarowy Centrum we Wrocławiu 1930–1948–1993 [The Centrum Department Store in Wrocław 1930–1948–1993]; Wrocław, Poland, 1993. | PK-P2, PK-P3 | - |
| 32 | Rządkowski, J. Ocena prac modernizacyjnych w DT “Centrum” we Wrocławiu [Assessment of Modernisation Works in the “Centrum” Department Store, Wrocław]. Unpublished technical assessment report, Wrocław, Poland, 1993. | PK-P3 | [78] |
| 33 | Rządkowski, J. Modernizacja sali sprzedaży oraz pomieszczeń zaplecza na parterze DT “Centrum”, ul. Świdnicka 40, Wrocław: analiza statyczno-wytrzymałościowa [Modernisation of the sales hall and back-office rooms on the ground floor of the “Centrum” Department Store, Świdnicka 40, Wrocław: static and strength analysis]. Structural analysis; Wrocław, 1994. | PK-P3 | - |
| 34 | Kirschke, K.; Kirschke, P. Remont i modernizacja wejścia głównego do domu towarowego “Centrum”, ul. Świdnicka 40, Wrocław: projekt budowlany (Renovation and modernisation of the main entrance of the “Centrum” Department Store, Świdnicka 40, Wrocław: building design); [Building design documentation (unpublished/commissioned)]. Wrocław: Kirschke Pracownia Projektowa: Wrocław, Poland, 1995. | PK-P3 | - |
| 35 | Januszkiewicz, R.; Rządkowski, J. Ekspertyza zabezpieczenia przeciwpożarowego Domu Towarowego “Centrum”, Wrocław [Fire Protection Assessment for the “Centrum” Department Store, Wrocław]. Fire safety expertise (unpublished/comissioned); EKO–STRAŻAK–POLSKA; Wrocław, Poland, 1998. | PK-P2, PK-P3 | [83] |
| 36 | Kirschke, K.; Kirschke, P. Studium konserwatorskie i wytyczne do projektu modernizacji domu towarowego “Centrum” (dawny Warenhaus “Wertheim”), ul. Świdnicka 40, Wrocław [Conservation Study and Guidelines for the Modernisation of the “Centrum” Department Store—Former Warenhaus “Wertheim”—At Świdnicka 40, Wrocław]. Unpublished conservation study. Kirschke Pracownia Projektowa: Wrocław, Poland, 1998. | PK-P3 | [67] |
| 37 | Kirschke, K.; Kirschke, P.; Maćków, Z. Przebudowa domu towarowego “Centrum”, część A1 “Galeria Centrum”: projekt budowlany i projekt wykonawczy [Reconstruction of the “Centrum” Department Store, Section A1 “Galeria Centrum”: Building and Execution Design]; [Unpublished architectural project documentation (commissioned)]; Maćków Pracownia Projektowa (MPP): Wrocław, Poland, 1999. | PK-P3 | [102] |
| 38 | Rządkowski, J. DT “Centrum–Renoma”: Remont i Przebudowa — Ekspertyza nośności [“Centrum–Renoma” Department Store: Renovation and Reconstruction—Load-Bearing Capacity Expertise]. Unpublished structural assessment report; Wrocław, Poland, 2000. | PK-P3 | [84] |
| 39 | Kirschke, P. Architektura domów handlowych nowej generacji [Architecture of new-generation department stores]. Architectus 2001, 1–2, 125–141. Available online: https://dbc.wroc.pl/dlibra/publication/59394/edition/42640?language=en (accessed on 2 November 2025). | PK-P3 | [37] |
| 40 | Maćków, Z.; Kirschke, K.; Kirschke, P.; Zybura, P.; Wolanin, M.; Erdman, J.; Jacak, M.; Sergiej, G.; Zawiślak, S. Remont i Przebudowa Domu Towarowego “Centrum–Renoma”, ul. Świdnicka 40, Wrocław: Projekt budowlany (2000), Projekty Wykonawcze (2001–2002) [Renovation and Reconstruction of the “Centrum–Renoma” Department Store, Świdnicka 40, Wrocław: Building Design (2000), Execution Designs (2001–2002)]; Building and execution design documentation (unpublished/comissioned); Maćków Pracownia Projektowa: Wrocław, Poland, 2002. | PK-P3 | [85] |
| 41 | Fischer, E.; Ladwig-Winters, S. Die Wertheims: Geschichte einer Familie [The Wertheims: History of a family]. Berlin: be.bra Verlag, 2004. | PK-P3 | - |
| 42 | Omilanowska, M. Świątynie handlu [Temples of Commerce]; Neriton: Warsaw, Poland, 2004. | PK-P3 (comparative) | [105] |
| 43 | Kirschke, K.; Kirschke, P. Department Store “Wertheim”, Today’s Dom Towarowy “Centrum–Renoma”, Architect Hermann Dernburg [Dom Towarowy “Centrum–Renoma”, arch. Hermann Dernburg]; Full Documentation Fiche Heritage List by the DOCOMOMO ISC/Registers; DOCOMOMO: Wrocław, Poland, 1998. | PK-P4 | [77] |
| 44 | Kirschke, K.; Kirschke, P.; Kopaczyński, P.; Maćków, Z. Program konserwatorski elewacji budynku domu towarowego “Renoma” przy ulicy Świdnickiej 40 we Wrocławiu [Conservation Program for the Façades of the “Renoma” Department Store Building at 40 Świdnicka Street, Wrocław].; Façade conservation program (unpublished/commissioned technical report);, Poland; Maćków Pracownia Projektowa (MPP): Wrocław, Poland, 2005. | PK-P4 | [87] |
| 45 | Maćków, Z.; Erdman, J.; Hawrylak, M.; Kirschke, P.; Macuta, M.; Sulisz, P.; Zybura, P.; Kotynia, Z. Remont i przebudowa pięter IV–VI Domu Towarowego “Centrum–Renoma”, ul. Świdnicka 40, Wrocław—na biura: projekt budowlany [Renovation and Reconstruction of Floors IV–VI of the “Centrum–Renoma” Department Store, 40 Świdnicka Street, Wrocław—For Office Use: Building Design]; Building design documentation (unpublished/comissioned); Maćków Pracownia Projektowa: Wroclaw, Poland, 2005. | PK-P4 | [86] |
| 46 | Gierczak, J. Ekspertyza Techniczna Dotycząca Badań Materiałowych Elementów Konstrukcyjnych Domu Towarowego Centrum “Renoma” we Wrocławiu przy ul. Podwale; [Technical expertise]. POLTEBUD: Wrocław, Poland, 2005. | PK-P4 | [103] |
| 47 | Maćków Pracownia Projektowa (MPP). Projekt remontu, przebudowy i rozbudowy budynku DTC “Renoma”, ul. Świdnicka 40, Wrocław: projekt budowlany i wielobranżowy [Design for the Renovation, Reconstruction and Extension of the DTC “Renoma” Building, 40 Świdnicka Street, Wrocław: Architectural and Multidisciplinary Building Project]; Building and multidisciplinary design documentation (unpublished/comissioned); Maćków Pracownia Projektowa (MPP)/Benoy/Arup: Wrocław, Poland; London, UK, 2008. | PK-P4 | [68] |
| 48 | Maćków Pracownia Projektowa. Dom Towarowy Renoma—projekty wykonawcze remontu, przebudowy i rozbudowy [Renoma Department Store—execution designs for renovation, reconstruction and extension]; Execution designs (unpublished/comissioned); MPP: Wrocław, Poland, 2008. | PK-P4 | [88] |
| 49 | Bryła. Zupełnie nowa Renoma [A Completely New Renoma]. Available online: https://www.bryla.pl/bryla/1%2C85301%2C6530218%2CZupelnie_nowa_Renoma.html (accessed on 19 September 2025). | PK-P4 | [92] |
| 50 | Architektura-Murator. Rewitalizacja i rozbudowa “Renomy” we Wrocławiu [Revitalisation and Expansion of “Renoma” in Wrocław]. Available online: https://architektura.muratorplus.pl/realizacje/rewitalizacja-i-rozbudowa-renomy-we-wroclawiu-aa-ryCW-EsRy-DSnh.html (accessed on 19 September 2025). | PK-P4 | [69] |
| 51 | PZiTB/Dolnośląska Budowa Roku. RENOMA Dolnośląską Budową Roku 2009 [RENOMA named Lower Silesian Construction of the Year 2009]. 29 September 2010. Available online: https://prnews.pl/renoma-dolnoslaska-budowa-roku-2009-38588 (accessed on 19 September 2025). | PK-P4 | |
| 52 | Stowarzyszenie Architektów Polskich (SARP). Nagrody Roku 2009 wręczone! [SARP Awards of the Year 2009 Presented!]. 14 December 2010. Available online: https://www.sarp.pl/pokaz/nagrody_roku_2009_wreczone%21%2C1486/ (accessed on 19 September 2025). | PK-P4 | [107] |
| 53 | Arch. Piękny Wrocław. Najlepsze realizacje architektoniczne w roku 2009 [Beautiful Wrocław 2009 awards]; Arch.: Warsaw, Poland, 2010; pp. 78–79. | PK-P4 | |
| 54 | Arch. Nagroda Roku SARP 2009—Dom Handlowy Renoma, Wrocław [SARP Award of the Year 2009—Renoma]. Arch. 2010, No. 5, 14–21. | PK-P4 | |
| 55 | EuropaProperty (CEE Retail Real Estate Awards). Refurbished Project of the Year 2009—Renoma. 2010, February. Available online: https://renoma-wroclaw.pl/o-renomie/?lang=en (accessed on 19 September 2025). | PK-P4 | |
| 56 | World Architecture Festival. WAF Awards 2010—Shortlist, “New and Old”—Renoma Department Store Revitalisation and Extension. 2010. Available online: https://www.e-architect.com/awards/waf-awards-shortlist-2010 (accessed on 19 September 2025). | PK-P4 | [108] |
| 57 | Kabarowski, Ł.; Misiura, A.; Komarzyńska-Świeściak, E.; Juszczyk, W. Projekt budowlany przebudowy części 2. piętra Domu Handlowego “Renoma” na biura [Building Design for the Conversion of Part of the 2nd Floor of the Renoma Department Store into Office Space]; Building design documentation (unpublished/comissioned); KMA Kabarowski Misiura Architekci: Wrocław, Poland, 2011. | PK-P4 | [90] |
| 58 | Budownictwo, Technologie, Architektura. Najlepsza realizacja architektoniczna z użyciem technologii żelbetowej do końca 2009 r. [Best reinforced-concrete realisation up to 2009]. 2011, No. 1, 16–17; Warsaw, Poland. | PK-P4 | - |
| 59 | Architektura.info. Polskie nominacje do Nagrody Mies van der Rohe 2011 [Polish nominations for the Mies van der Rohe Award 2011] (includes Renoma). 20 April 2011. Available online: https://architektura.info/architektura/polska_i_swiat/polskie_nominacje_do_nagrody_mies_van_der_rohe_2011 (accessed on 19 September 2025). | PK-P4 | |
| 60 | TEDxWroclaw. The Story of Renoma Department Store: Zbigniew Maćków at TEDxWroclaw [Video]. YouTube. 16 June 2012. Available online: https://www.youtube.com/watch?v=r1KatSoj8Gg (accessed on 19 September 2025). | PK-P4, PK-P1 (expert lecture) | [106] |
| 61 | Archiweb. n.d.. Reconstruction and completion of the Renoma Department Store. Available online: https://www.archiweb.cz/en/b/rekonstrukce-a-dostavba-obchodniho-domu-renoma-dom-handlowy-renoma (Accessed: 19 September 2025) | PK-P4 | [93] |
| 62 | Kirschke, P. Wrocławskie zabytkowe obiekty komercyjne, których funkcja przestała się sprawdzać [Historic commercial buildings in Wrocław whose function has ceased to be viable]. In Wartość funkcji w obiektach zabytkowych [The value of function in historic buildings]; Szmygin, B., Ed.; Polski Komitet Narodowy Międzynarodowej Rady Ochrony Zabytków; Muzeum Pałac w Wilanowie; Politechnika Lubelska: Warsaw–Lublin, Poland, 2014; pp. 137–153. | PK-P4 | - |
| 63 | Maćków Pracownia Projektowa Sp. z o.o. Projekt Budowlany Przebudowy 2. Piętra Domu Handlowego “Renoma” na Potrzeby Przychodni Medycznej [Building Design for the Conversion of the 2nd Floor of the Renoma Department Store for Medical Clinic Use]; Building design documentation (unpublished/commsioned); Maćków Pracownia Projektowa Sp. z o.o: Wrocław, Poland, 2016. | PK-P4 | [89] |
| 64 | Kirschke, P. Revaluation of Wrocław public use buildings in years 2005–2013. Civ. Environ. Eng. Rep. 2015, 18, 75–83. | PK-P4 | [39] |
| 65 | Wrocław.pl. Nagroda dla Renomy–Property Design Awards 2016 [Award for Renoma—Property Design Awards 2016]. 22 February 2016. Available online: https://www.wroclaw.pl/przedsiebiorczy-wroclaw/nagroda-dla-renomy-property-design-awards-2016 (accessed on 19 September 2025). | PK-P4, PK-P5 | [95] |
| 66 | Kirschke, K.; Kirschke, P.; Komarzyńska-Świeściak, E. Adaptive reuse of commercial and public buildings in Wrocław Old Town in Poland: The occupant’s safety and comfort versus preservation of authenticity of monumental buildings. Teka Commission of Architecture, Urban Planning and Landscape Studies 2018, 14(3), 24–41. https://doi.org/10.35784/teka.1796. | PK-P4, PK-P5 | [40] |
| 67 | Zimny, Ł.; Dziadkowiec, T. Ekspertyza stanu technicznego obiektu na potrzeby planowanej przebudowy Domu Towarowego “Centrum–Renoma”, ul. Świdnicka 40, Wrocław [Technical condition expertise for the planned reconstruction of the “Centrum–Renoma” Department Store, Świdnicka 40, Wrocław]. Głogów: ZZ Zimny Construction, 2020. | PK-P5 | - |
| 68 | Smardz, P.; Gierczak, J. Ekspertyza techniczna dotycząca stanu ochrony przeciwpożarowej domu handlowego Renoma przy ul. Świdnickiej 40 we Wrocławiu [Fire Safety Expertise]; INBEPO Sp. z o.o., Wrocław, Poland, 2020. | PK-P5 | [104] |
| 69 | Kirschke, K.; Kirschke, P.; Komarzyńska-Świeściak, E. Ekspertyza konserwatorska do projektu remontu i przebudowy Domu Handlowego “Renoma”, ul. Świdnicka 40, Wrocław [Conservation expertise for the renovation and reconstruction design of the Renoma Department Store, Świdnicka 40, Wrocław]. Wrocław: Kirschke Pracownia Projektowa, 2020. | PK-P5 | - |
| 70 | Maćków, Z.; Maury, M.; Erdman, J.; Kowalczyk, A.; Radaj, M.; Karpa, P.; Zapotoczna, S.; Juszczak, J. Projekt budowlany remontu, przebudowy i zmiany sposobu użytkowania zabytkowego Domu Handlowego “Renoma”, ul. Świdnicka 40, Wrocław [Building Design for the Renovation, Reconstruction, and Change of Use of the Historic Renoma Department Store, Świdnicka 40, Wrocław]. Architectural project documentation (unpublished/comissioned); Maćków Pracownia Projektowa Sp. z o.o., sp. k.: Wrocław, Poland, 2020. | PK-P5 | [99] |
| 71 | Eurobuild CEE. Another Stage of Renoma Renovations Completed. 29 March 2022. Available online: https://eurobuildcee.com/en/news/32320-another-stage-of-renoma-renovations-completed (accessed on 19 September 2025). | PK-P5 | [91] |
| 72 | Globalworth Poland. Pierwszy etap metamorfozy Renomy zakończony. Perła Wrocławia znów zachwyca [First stage of Renoma’s metamorphosis completed. The pearl of Wrocław impresses again]. 29 March 2022. Available online: https://media.globalworth.pl/183273-pierwszy-etap-metamorfozy-renomy-zakonczony-perla-wroclawia-znow-zachwyca (accessed on 19 September 2025). | PK-P5 | [96] |
| 73 | whiteMAD. Renoma we Wrocławiu zmienia swoje oblicze. We wnętrzu króluje marmur [Renoma in Wrocław changes its face. Marble dominates the interior]. 29 March 2022. Available online: https://www.whitemad.pl/renoma-we-wroclawiu-zmienia-swoje-oblicze-we-wnetrzu-kroluje-marmur/ (accessed on 19 September 2025). | PK-P5 | - |
| 74 | Wroclife. Egzotyczne głowy na budynku Renomy. Skąd się wzięły? Co symbolizują? [Exotic heads on the Renoma building. Where did they come from? What do they symbolise?]. 19 May 2022. Available online: https://wroclife.pl/artykul/578/egzotyczne-glowy-na-budynku-renomy-skad-sie-wziely-co-symbolizuja-wideo (accessed on 19 September 2025). | PK-P5 | [65] |
| 75 | Wrocław.pl. Renoma nagroda Prime Property Prize 2022 [Renoma Awarded the Prime Property Prize 2022]. 13 September 2022. Available online: https://www.wroclaw.pl/przedsiebiorczy-wroclaw/renoma-nagroda-prime-property-prize-2022 (accessed on 19 September 2025). | PK-P5 | [98] |
| 76 | Renoma. The modernized Renoma expands the offer of premium brands. 9 November 2022. Available online: https://renoma-wroclaw.pl/press/the-modernized-renoma-expands-the-offer-of-premium-brands/?lang=en (accessed on 19 September 2025). | PK-P5 | - |
| 77 | Wrocław.pl. Renoma jak przedwojenny Wertheim. Co zmieniło się po przebudowie? [Renoma like the pre-war Wertheim. What changed after the renovation?]. 19 December 2022. Available online: https://www.wroclaw.pl/przedsiebiorczy-wroclaw/renoma-jak-przedwojenny-wartheim-co-zmienilo-sie-po-ostatniej-przebudowie-zdjecia (accessed on 19 September 2025). | PK-P5 | - |
| 78 | Prus, P. Metamorfoza domu handlowego Renoma we Wrocławiu [The transformation of the Renoma Department Store in Wrocław]. Architektura-Murator, 7 September 2023. Available online: https://architektura.muratorplus.pl/realizacje/metamorfoza-domu-handlowego-renoma-we-wroclawiu-zdjecia-aa-2xew-URQx-siHU.html (accessed on 19 September 2025). | PK-P5 | - |
| 79 | Architektura & Biznes. Restoring the splendor of history: An office in Wrocław’s Renoma, or upcycling in art déco style. 3 June 2024. Available online: https://www.architekturaibiznes.pl/en/office-we-wroclaw-renomie-upcycling-art-deco,33144.html (accessed on 19 September 2025). | PK-P5 | - |
| 80 | Lachcik, K. (Host); Maćków, Z. (Guest). Zbigniew Maćków o tworzeniu pracowni, dylematach i miejskiej gęstości [Zbigniew Maćków on building a practice, dilemmas, and urban density] (Audio podcast episode). In Architektura Powinna. Spotify, 10 July 2024. Available online: https://creators.spotify.com/pod/profile/architektura-powinna/episodes/Zbigniew-Makw-o-tworzeniu-pracowni--dylematach-i-miejskiej-gstoci-e2lmhlf (accessed on 19 September 2025). | PK-P5 (expert interview) | - |
| 81 | Urbanity.pl. Renoma Wrocław, Podwale 41, Świdnicka 40 [Renoma Wrocław, 41 Podwale St., 40 Świdnicka St.]. 17 February 2025. Available online: https://www.urbanity.pl/dolnoslaskie/wroclaw/renoma%2Cb1101 (accessed on 19 September 2025). | PK-P5 | - |
| 82 | Migdał, R. Tak przed wojną wyglądała Renoma [This is what Renoma looked like before the war]. Wrocław.pl, 10 March 2025. Available online: https://www.wroclaw.pl/dla-mieszkanca/dom-handlowy-renoma-pdt-pedet-ulica-swidnicka-archiwalne-zdjecia-stare-zdjecia-wroclawia (accessed on 19 September 2025). | PK-P5 | - |
| 83 | Invest in Wroclaw. Renoma is presenting new spaces. What can you find on the first floor today? 15 April 2025. Available online: https://invest-in-wroclaw.pl/renoma-is-presenting-new-spaces-what-can-you-find-on-the-first-floor-today (accessed on 19 September 2025). | PK-P5 | - |
| 84 | Bryła. Wrocławska Renoma Kończy 95 lat. Od Luksusowego Domu Towarowego do Wielofunkcyjnego Obiektu Typu Mixed-Use [Wrocław’s Renoma Turns 95: From Luxury Department Store to Multifunctional Mixed-Use Facility]. 9 June 2025. Available online: https://www.bryla.pl/wroclawska-renoma-konczy-95-lat (accessed on 19 September 2025). | PK-P5 | [109] |
| 85 | Globalworth. n.d. Work starts on the transformation of Renoma in Wrocław. Available online: https://www.globalworth.com/business-news/work-starts-on-the-transformation-of-renoma-in-wroclaw/ (accessed on 19 September 2025). | PK-P5 | [97] |
| 86 | Narodowy Instytut Dziedzictwa. Dom Towarowy Renoma [Renoma Department Store]. Zabytek.pl. Available online: https://zabytek.pl/pl/obiekty/wroclaw-dom-towarowy-firmy-wertheim-ob-dom-handlowy-renoma (accessed on 19 September 2025). | PK-P5 (heritage registry) | [71] |
Appendix B. Interquartile Range (IQR) for Expert-Based Obsolescence Scores (O1–O7)
| Factor | After P1 (1947) | After P2 (1977) | After P3 (2004) | After P4 (2018) | During P5 (2025) |
|---|---|---|---|---|---|
| O1 Physical | 0.50 (0.45; 0.55; 0.10) | 0.61 (0.55; 0.65; 0.10) | 0.45 (0.40; 0.50; 0.10) | 0.08 (0.05; 0.10; 0.05) | 0.20 (0.15; 0.25; 0.10) |
| O2 Economic | 0.39 (0.30; 0.45; 0.15) | 0.22 (0.15; 0.25; 0.10) | 0.06 (0.05; 0.10; 0.05) | 0.33 (0.25; 0.40; 0.15) | 0.33 (0.25; 0.35; 0.10) |
| O3 Functional | 0.06 (0.05; 0.10; 0.05) | 0.11 (0.05; 0.15; 0.10) | 0.06 (0.05; 0.10; 0.05) | 0.06 (0.05; 0.10; 0.05) | 0.11 (0.05; 0.15; 0.10) |
| O4 Technological | 0.17 (0.10; 0.25; 0.15) | 0.44 (0.35; 0.50; 0.15) | 0.44 (0.35; 0.50; 0.15) | 0.17 (0.10; 0.25; 0.15) | 0.06 (0.05; 0.10; 0.05) |
| O5 Social | 0.11 (0.05; 0.15; 0.10) | 0.11 (0.05; 0.15; 0.10) | 0.11 (0.05; 0.15; 0.10) | 0.06 (0.05; 0.10; 0.05) | 0.11 (0.05; 0.15; 0.10) |
| O6 Legal | 0.39 (0.30; 0.45; 0.15) | 0.22 (0.15; 0.25; 0.10) | 0.17 (0.10; 0.25; 0.15) | 0.06 (0.05; 0.10; 0.05) | 0.17 (0.10; 0.25; 0.15) |
| O7 Political | 0.22 (0.15; 0.25; 0.10) | 0.39 (0.30; 0.45; 0.15) | 0.17 (0.10; 0.25; 0.15) | 0.22 (0.15; 0.25; 0.10) | 0.22 (0.15; 0.25; 0.10) |
References
- Jaumain, S.; Crossick, G. Cathedrals of Consumption: The European Department Store, 1850–1939; Ashgate Publishing: Aldershot, UK, 1999; Available online: https://www.routledge.com/Cathedrals-of-Consumption-European-Department-Stores-1850-1939/Crossick-Jaumain/p/book/9780367134037 (accessed on 2 November 2025).
- Wrigley, N.; Lambiri, D. High Street Performance and Evolution: A Brief Guide to the Evidence; University of Southampton: Southampton, UK, 2014. [Google Scholar] [CrossRef]
- Hangebruch, N. Eine Frage der Mischung. Von monofunktionalen Handelsimmobilien zu multifunktionalen Stadtbausteinen. RaumPlanung 2021, 213, 69–72. [Google Scholar]
- Hangebruch, N. Übergangszeit. Zur Zwischennutzung von Kauf- und Warenhäusern. In Transurban. Urban Art in NRW. Residency 2023 Niederrhein; Barringhaus, G., ComeTogether Projekte e.V., Eds.; ComeTogether Projekte e.V.: Köln, Germany, 2023; pp. 46–50. [Google Scholar]
- Hangebruch, N. Kommunaler Verantwortung. Innenstadtumbau Durch Transformation Früherer Kauf- und Warenhäuser [Municipal Responsibility: Inner-City Redevelopment Through Transformation of Former Department Stores]; RWTH Aachen University: Aachen, Germany, 2025. [Google Scholar] [CrossRef]
- Douglas, J. Building Adaptation, 2nd ed.; Routledge: Abingdon, UK, 2006; Available online: https://www.sciencedirect.com/book/9780750666671/building-adaptation (accessed on 29 October 2025).
- Bullen, P.A.; Love, P.E.D. Adaptive reuse of heritage buildings. Struct. Surv. 2011, 29, 411–421. [Google Scholar] [CrossRef]
- Plevoets, B.; Van Cleempoel, K. Adaptive Reuse of the Built Heritage: Concepts and Cases of an Emerging Discipline; Routledge: London, UK, 2019. [Google Scholar]
- Pomponi, F.; Moncaster, A. Circular economy for the built environment: A research framework. J. Clean. Prod. 2017, 143, 710–718. [Google Scholar] [CrossRef]
- Strange, I.; Whitney, D. The changing roles and purposes of heritage conservation in the UK. Plan. Pract. Res. 2003, 18, 219–229. [Google Scholar] [CrossRef]
- Li, Y.; Zhao, L.; Huang, J.; Law, A. Research frameworks, methodologies, and assessment methods concerning the adaptive reuse of architectural heritage: A review. Built Herit. 2021, 5, 6. [Google Scholar] [CrossRef]
- Ranasinghe, D.C.; Illankoon, I.M.C.S. The adaptive reuse of buildings as a circular economy accelerator: A systematic review. In Proceedings of the 3rd Australian Conference on Industrial Engineering and Operations Management, Sydney, Australia, 24–26 September 2024; IEOM Society International: Southfield, MI, USA, 2024. ISBN 979-8-3507-1738-9. [Google Scholar] [CrossRef]
- Hangebruch, N. The clue is the mix: Multifunctional re-uses in former retail real estate properties. Proc. Inst. Civ. Eng. Urban Des. Plan. 2020, 173, 171–181. [Google Scholar] [CrossRef]
- Hangebruch, N.; Othengrafen, F. Blick in die Niederlande: Beitrag zur Transformation Früherer Warenhäuser [A Look into The Netherlands: Contribution to the Transformation of Former Department Stores]; ILS Forschung; ILS Institut für Landes- und Stadtentwicklungsforschung: Dortmund, Germany, 2024; Available online: https://www.ils-forschung.de/2024/02/blick-in-die-niederlande-beitrag-zur-transformation-frueherer-warenhaeuser/ (accessed on 29 October 2025).
- BBSR—Bundesinstitut für Bau-, Stadt- und Raumforschung. Kauf- und Warenhäuser im Wandel: Kleiner baukultureller Statusbericht; BBSR: Bonn, Germany, 2024. [Google Scholar]
- Architectural Record Staff. La Samaritaine by SANAA; Architectural Record: New York, NY, USA, 2021; Available online: https://www.architecturalrecord.com/articles/15247-la-samaritaine-by-sanaa (accessed on 2 November 2025).
- OMA. KaDeWe Berlin: Department Store Transformation; OMA: Rotterdam, The Netherlands, 2020; Available online: https://www.oma.com/projects/kadewe (accessed on 2 November 2025).
- David Chipperfield Architects. Kaufhaus Tyrol Department Store; David Chipperfield Architects: London, UK, 2010; Available online: https://davidchipperfield.com/projects/kaufhaus-tyrol-department-store (accessed on 2 November 2025).
- Freoa, N. Remodelling Galeries Lafayette Haussmann, the Icon of Parisian Shopping is Always on the Move. Paris Select Book. 23 September 2024. Available online: https://www.parisselectbook.com/en/2024/09/23/remodelling-galeries-lafayette-haussmann-the-icon-of-parisian-shopping-is-always-on-the-move/?utm_source=chatgpt.com (accessed on 2 November 2025).
- Hein, M.F.; Houck, K.D. Construction challenges of adaptive reuse of historical buildings in Europe. J. Build. Apprais. 2008, 4, 115–131. [Google Scholar] [CrossRef]
- UNESCO. Recommendation on the Historic Urban Landscape (HUL), Including a Glossary of Definitions; UNESCO: Paris, France, 2011; Available online: https://whc.unesco.org/en/hul (accessed on 3 November 2025).
- Healey, P. Collaborative Planning: Shaping Places in Fragmented Societies; Macmillan: London, UK, 1997. [Google Scholar]
- European Commission. A New Circular Economy Action Plan for a Cleaner and More Competitive Europe (COM(2020) 98 Final); European Commission: Brussels, Belgium, 2020; Available online: https://eur-lex.europa.eu/legal-content/EN/TXT/?uri=COM:2020:98:FIN (accessed on 3 November 2025).
- European Commission. New European Bauhaus Compass; Publications Office of the European Union: Luxembourg, 2022; Available online: https://new-european-bauhaus.europa.eu/tools-and-resources/use-compass_en?utm_source=chatgpt.com (accessed on 3 November 2025).
- European Environment Agency (EEA). Building Renovation: Where Circular Economy and Climate Meet; Briefing No. 12/2022; EEA: Copenhagen, Denmark, 2022; Available online: https://www.eea.europa.eu/publications/building-renovation-where-circular-economy (accessed on 3 November 2025).
- Campbell, S. Green cities, growing cities, just cities? Urban planning and the contradictions of sustainable development. J. Am. Plan. Assoc. 1996, 62, 296–312. [Google Scholar] [CrossRef]
- Langston, C.; Wong, F.K.W.; Hui, E.C.M.; Shen, L.Y. Strategic Assessment of Building Adaptive Reuse Opportunities in Hong Kong. Build. Environ. 2008, 43, 1709–1718. [Google Scholar] [CrossRef]
- Langston, C. Validation of the Adaptive Reuse Potential Model. Facilities 2012, 30, 105–123. [Google Scholar] [CrossRef]
- Conejos, S.; Langston, C.; Smith, J. Improving the implementation of adaptive reuse strategies for historic buildings. In Proceedings of the IX International Forum of Studies “Le Vie dei Mercanti”—S.A.V.E. Heritage: Safeguard of Architectural, Visual, Environmental Heritage, Naples, Italy, 9–11 June 2011; Institute of Sustainable Development and Architecture, Bond University: Gold Coast, Australia, 2011; pp. 1–10. Available online: https://research.bond.edu.au/en/publications/improving-the-implementation-of-adaptive-reuse-strategies-for-his (accessed on 29 October 2025).
- Conejos, S.; Langston, C.; Smith, J. AdaptSTAR model: A climate-friendly strategy to promote built environment sustainability. Habitat Int. 2013, 37, 95–103. [Google Scholar] [CrossRef]
- Conejos, S.; Langston, C.; Smith, J. Enhancing Sustainability through Designing for Adaptive Reuse from the Outset: A Comparison of AdaptSTAR and ARP Models. Facilities 2013, 31, 511–525. [Google Scholar] [CrossRef]
- ISO 20887:2020; Sustainability in Buildings and Civil Engineering Works—Design for Disassembly and Adaptability—Principles, Requirements and Guidance. International Organization for Standardization: Geneva, Switzerland, 2020. Available online: https://www.iso.org/standard/69370.html (accessed on 2 November 2025).
- EN 16883:2017; Conservation of Cultural Heritage—Guidelines for Improving the Energy Performance of Historic Buildings. European Committee for Standardization: Brussels, Belgium, 2017. Available online: https://shop.bsigroup.com/products/conservation-of-cultural-heritage-guidelines-for-improving-the-energy-performance-of-historic-buildings (accessed on 2 November 2025).
- International Council on Monuments and Sites (ICOMOS). Guidance on Heritage Impact Assessments for Cultural World Heritage Properties; International Council on Monuments and Sites: Paris, France, 2011; Available online: https://www.iccrom.org/sites/default/files/2018-07/icomos_guidance_on_heritage_impact_assessments_for_cultural_world_heritage_properties.pdf?utm_source=chatgpt.com (accessed on 3 November 2025).
- BS 7913:2013; Guide to the Conservation of Historic Buildings. British Standards Institution (BSI): London, UK, 2013. Available online: https://knowledge.bsigroup.com/products/guide-to-the-conservation-of-historic-buildings/standard (accessed on 2 November 2025).
- RIBA. RIBA Plan of Work 2020 Overview; Royal Institute of British Architects: London, UK, 2020; Available online: https://www.architecture.com/knowledge-and-resources/resources-landing-page/riba-plan-of-work (accessed on 2 November 2025).
- Kirschke, P. Architektura Domów Handlowych Nowej Generacji [Architecture of New-Generation Department Stores]. Architectus 2001, 1–2, 125–141. Available online: https://dbc.wroc.pl/dlibra/publication/59394/edition/42640?language=en (accessed on 2 November 2025).
- Kirschke, K.; Kirschke, P. Restoration strategies for a commercial facility: Facade of Centrum-Renoma department store in Wrocław. Archit. Civ. Eng. Environ. 2008, 1, 11–20. [Google Scholar]
- Kirschke, P. Revaluation of Wrocław public use buildings in years 2005–2013. Civ. Environ. Eng. Rep. 2015, 18, 75–83. [Google Scholar] [CrossRef][Green Version]
- Kirschke, K.; Kirschke, P.; Komarzyńska-Świeściak, E. Adaptive reuse of commercial and public buildings in Wrocław Old Town in Poland: The occupant’s safety and comfort versus preservation of authenticity of monumental buildings. Teka Comm. Archit. Urban Plan. Landsc. Stud. 2018, 14, 24–41. [Google Scholar] [CrossRef]
- Hamida, M.B.; Jylhä, T.; Remøy, H.; Gruis, V. Towards Promoting Circular Building Adaptability in Adaptive Reuse Projects: A Co-Developed Framework. Smart Sustain. Built Environ. 2024. ahead-of-print. [Google Scholar] [CrossRef]
- Hamida, M.B. Circular and Adaptable Building Transformation: Reconceptualization, Practice Exploration, Framework Co-Development and Implementation. Doctoral Dissertation, Delft University of Technology, Faculty of Architecture, Delft, The Netherlands, 2025. [Google Scholar] [CrossRef]
- Moudon, A.V. Urban Morphology as an Emerging Interdisciplinary Field. Urban Morphol. 1997, 1, 3–10. [Google Scholar] [CrossRef]
- Kropf, K. (Ed.) The Handbook of Urban Morphology; Wiley-Blackwell: Chichester, UK, 2017. [Google Scholar] [CrossRef]
- Thomsen, A.; van der Flier, K. Understanding obsolescence: A conceptual model for buildings. Build. Res. Inf. 2011, 39, 352–362. [Google Scholar] [CrossRef]
- Mehr, S.Y.; Wilkinson, S. A Model for Assessing Adaptability in Heritage Buildings. Int. J. Conserv. Sci. 2021, 12, 87–104. [Google Scholar]
- Herthogs, P.; Debacker, W.; Tunçer, B.; De Weerdt, Y.; De Temmerman, N. Quantifying the Generality and Adaptability of Building Layouts Using Weighted Graphs: The SAGA Method. Buildings 2019, 9, 92. [Google Scholar] [CrossRef]
- Geraedts, R.P.; Prins, M. FLEX 3.0: An Instrument to Formulate the Demand for and Assessing the Supply of the Adaptive Capacity of Buildings. In Volume V: Advancing Products and Services, Proceedings of the CIB World Building Congress 2016, Tampere, Finland, 30 May–3 June 2016; Tampere University of Technology: Tampere, Finland, 2016; pp. 679–690. Available online: https://pure.tudelft.nl/ws/files/4733199/FLEX_3.0_WBC16_Vol_5_4485576.pdf (accessed on 2 November 2025).
- Gierczak, J.R.L.; Ignatowicz, L.; Marcinczak, K. Ocena możliwości zwiększenia żywotności konstrukcji stalowej [Assessment of the Possibility of Increasing the Durability of a Steel Structure]. Prz. Bud. 2020, 91, 25–30. [Google Scholar]
- OECD. Getting Infrastructure Right: A Framework for Better Governance; OECD Publishing: Paris, France, 2017. [Google Scholar] [CrossRef]
- Infrastructure and Projects Authority. Project Routemap: Setting Up Projects for Success—Handbook and Modules; Infrastructure and Projects Authority: London, UK, 2022. Available online: https://www.gov.uk/government/publications/improving-infrastructure-delivery-project-initiation-routemap (accessed on 2 November 2025).
- HM Treasury. The Green Book: Appraisal and Evaluation in Central Government; HM Treasury: London, UK, 2022. Available online: https://assets.publishing.service.gov.uk/media/6645c709bd01f5ed32793cbc/Green_Book_2022__updated_links_.pdf?utm_source=chatgpt.com (accessed on 2 November 2025).
- Miller, R.; Lessard, D. The Strategic Management of Large Engineering Projects: Shaping Institutions, Risks and Governance; MIT Press: Cambridge, MA, USA, 2000. [Google Scholar] [CrossRef]
- Williams, T.; Samset, K. Issues in front-end decision making on projects. Project Manag. J. 2010, 41, 38–49. [Google Scholar] [CrossRef]
- Flyvbjerg, B. The Oxford Handbook of Megaproject Management; Oxford University Press: Oxford, UK, 2017. [Google Scholar]
- Merrow, E.W. Industrial Megaprojects: Concepts, Strategies, and Practices for Success; John Wiley & Sons: Hoboken, NJ, USA, 2011. [Google Scholar]
- Cohen, R.; Standeven, M.; Bordass, B.; Leaman, A. Assessing building performance in use 1: The Probe process. Build. Res. Inf. 2001, 29, 85–102. [Google Scholar] [CrossRef]
- Leaman, A.; Bordass, B. Making feedback and post-occupancy evaluation routine 1: A portfolio of feedback techniques. Build. Res. Inf. 2005, 33, 347–352. [Google Scholar] [CrossRef]
- Schmidt, R.; Austin, S. Adaptable Architecture: Theory and Practice; Routledge: London, UK, 2016. [Google Scholar] [CrossRef]
- Durmisevic, E. Transformable Building Structures: Design for Disassembly as a Way to Introduce Sustainable Engineering to Building Design & Construction. Ph.D. Thesis, Delft University of Technology, Delft, The Netherlands, 2006. Available online: https://resolver.tudelft.nl/uuid:9d2406e5-0cce-4788-8ee0-c19cbf38ea9a (accessed on 3 November 2025).
- Australia ICOMOS. The Burra Charter: The Australia ICOMOS Charter for Places of Cultural Significance; Australia ICOMOS: Melbourne, Australia, 2013; Available online: https://australia.icomos.org/wp-content/uploads/The-Burra-Charter-2013-Adopted-31.10.2013.pdf (accessed on 3 November 2025).
- Dernburg, H. Das Warenhaus Wertheim in Breslau [The Wertheim Department Store in Breslau]. Deutsche Bauzeitung 1930, 64, 409–415. [Google Scholar]
- Dernburg, H. Zwei Neubauten von Hermann Dernburg [Two New Buildings by Hermann Dernburg]. Wasmuths Monatsh. Baukunst Städtebau 1930, 14, 313–322. [Google Scholar]
- Geraedts, R. Success and failure in flexible building. Open House Int. 2011, 36, 54–62. [Google Scholar] [CrossRef]
- Wroclife. Egzotyczne Głowy na Budynku Renomy. Skąd Się Wzięły? co Symbolizują? [Exotic Heads on the Renoma Building. Where Did They Come from? What Do They Symbolise?]. 19 May 2022. Available online: https://wroclife.pl/artykul/578/egzotyczne-glowy-na-budynku-renomy-skad-sie-wziely-co-symbolizuja-wideo (accessed on 19 September 2025).
- Till, J.; Schneider, T. Spatial Agency: Other Ways of Doing Architecture; Routledge: London, UK, 2011. [Google Scholar]
- Kirschke, K.; Kirschke, P. Studium konserwatorskie i wytyczne do projektu modernizacji domu towarowego “Centrum” (dawny Warenhaus “Wertheim”), ul. Świdnicka 40, Wrocław [Conservation Study and Guidelines for the Modernisation of the “Centrum” Department Store—Former Warenhaus “Wertheim”—At Świdnicka 40, Wrocław]. Unpublished Conservation Study. Kirschke Pracownia Projektowa: Wrocław, Poland, 1998. [Google Scholar]
- Maćków Pracownia Projektowa (MPP). Projekt remontu, przebudowy i rozbudowy budynku DTC “Renoma”, ul. Świdnicka 40, Wrocław: Projekt budowlany i wielobranżowy [Design for the Renovation, Reconstruction and Extension of the DTC “Renoma” Building, 40 Świdnicka Street, Wrocław: Architectural and Multidisciplinary Building Project]. Building and Multidisciplinary Design Documentation (Unpublished/Comissioned). Maćków Pracownia Projektowa (MPP)/Benoy/Arup: Wrocław, Poland; London, UK, 2008. [Google Scholar]
- Architektura-Murator. Rewitalizacja i Rozbudowa “Renomy” we Wrocławiu [Revitalisation and Expansion of “Renoma” in Wrocław]. 5 May 2009. Available online: https://architektura.muratorplus.pl/realizacje/rewitalizacja-i-rozbudowa-renomy-we-wroclawiu-aa-ryCW-EsRy-DSnh.html (accessed on 19 September 2025).
- Askar, R.; Bragança, L.; Gervásio, H. Design for Adaptability (DfA)—Frameworks and Assessment Models for Enhanced Circularity in Buildings. Appl. Syst. Innov. 2022, 5, 24. [Google Scholar] [CrossRef]
- Narodowy Instytut Dziedzictwa. Dom Towarowy Renoma [Renoma Department Store]. Zabytek.pl. Available online: https://zabytek.pl/pl/obiekty/wroclaw-dom-towarowy-firmy-wertheim-ob-dom-handlowy-renoma (accessed on 19 September 2025).
- Archiwum Państwowe we Wrocławiu. Building Design Documentation of the Wertheim Department Store; file no. 167/1/1040; Archival materials, State Archives in Wrocław: Wrocław, Poland, 1930. [Google Scholar]
- Kirschke, P. Architektura Wrocławskich Domów Towarowych i Handlowych Oraz ich Rola Centrotwórcza na Obszarze Starego Miasta we Wrocławiu [The Architecture of Wrocław’s Department and Commercial Stores and Their Center-Creating Role in the Old Town Area of Wrocław]. Ph.D. Thesis, Faculty of Architecture, Wrocław University of Science and Technology, Wrocław, Poland, 1993. [Google Scholar]
- Kirschke, K.; Kirschke, P.; Schlimme, H. Geschäftshäuser der Zwanziger Jahre in Breslau [Commercial Buildings of the 1920s in Breslau]. In Hochhäuser für Breslau 1919–1932 [High-Rise Buildings for Breslau 1919–1932]; Ilkosz, J., Störtkuhl, B., Eds.; Aschenbeck & Holstein Verlag: Delmenhorst, Germany, 1997; pp. 82–100. [Google Scholar]
- Kirschke, K.; Kirschke, P. Three Corners: Poelzig’s, Mendelsohn’s and Dernburg’s. Architecture of Wrocław’s Department Stores. In That Wonderful Wrocław Modern Movement; Lose, S., Ed.; VIA: Wrocław, Poland, 1998; pp. 86–100. [Google Scholar]
- Kirschke, K.; Kirschke, P. Warenhaus Wertheim 1930—Dom Handlowy Renoma 2009 [Wertheim Department Store 1930—Renoma Department Store 2009]. In O historii Wrocławia i Śląska Inaczej. 1 [On the History of Wrocław and Silesia Differently]; Derwich, M., Ed.; Wrocławskie Towarzystwo Miłośników Historii: Wrocław, Poland, 2012; Volume 1, pp. 107–112. [Google Scholar]
- Kirschke, K.; Kirschke, P. Department Store “Wertheim”, Today’s Dom Towarowy “Centrum–Renoma”, Architect Hermann Dernburg [Dom Towarowy “Centrum–Renoma”, arch. Hermann Dernburg]; Full Documentation Fiche Heritage List by the DOCOMOMO ISC/Registers; DOCOMOMO: Wrocław, Poland, 1998. [Google Scholar]
- Rządkowski, J. Ocena prac modernizacyjnych w DT “Centrum” we Wrocławiu [Assessment of Modernisation Works in the “Centrum” Department Store, Wrocław], Unpublished technical assessment report; Wrocław, Poland, 1993.
- Uchwała Prezydium Rządu RP. 1947. O odbudowie Domu Towarowego “Centrum” we Wrocławiu [Resolution of the Presidium of the Government of the Republic of Poland on the Reconstruction of the “Centrum” Department Store in Wrocław]. [Government Resolution]. Unpublished Govrnment Resolution; Government of the Republic of Poland: Warsaw, Poland, 1947. (In Polish)
- Antkowiak, Z. 40 lat Domu Towarowego Centrum we Wrocławiu. 1948–1988 [40 Years of the “Centrum” Department Store in Wrocław, 1948–1988]; Dom Towarowy Centrum: Wrocław, Poland, 1978. [Google Scholar]
- Dudek, P. Koncepcje odbudowy powojennego Wrocławia 1945–1956—Między miastem prowincjonalnym a drugą metropolią kraju. Prz. Adm. Publicznej 2013, 2, 59–68. [Google Scholar]
- Wspaniała Placówka Odbudowującego się Wrocławia [Opening of the People’s Department Store in Wrocław]. Słowo Polskie 22 July 1948, no. 200(611), p. 2. Available online: https://repozytorium.wbp.wroc.pl/dlibra/publication/337/edition/306/content (accessed on 19 September 2025).
- Januszkiewicz, R.; Rządkowski, J. Ekspertyza Zabezpieczenia Przeciwpożarowego Domu Towarowego “Centrum”, Wrocław [Fire Protection Assessment for the “Centrum” Department Store, Wrocław]. Fire Safety Expertise (Unpublished/Comissioned). EKO–STRAŻAK–POLSKA: Wrocław, Poland, 1998. [Google Scholar]
- Rządkowski, J. DT “Centrum–Renoma”: Remont i Przebudowa—Ekspertyza Nośności [“Centrum–Renoma” Department Store: Renovation and Reconstruction—Load-Bearing Capacity Expertise]. Unpublished Structural Assessment Report. Wrocław, Poland, 2000. [Google Scholar]
- Maćków, Z.; Kirschke, K.; Kirschke, P.; Zybura, P.; Wolanin, M.; Erdman, J.; Jacak, M.; Sergiej, G.; Zawiślak, S. Remont i Przebudowa Domu Towarowego “Centrum–Renoma”, ul. Świdnicka 40, Wrocław: Projekt budowlany (2000), Projekty Wykonawcze (2001–2002) [Renovation and Reconstruction of the “Centrum–Renoma” Department Store, Świdnicka 40, Wrocław: Building Design (2000), Execution Designs (2001–2002)]; Building and Execution Design Documentation. (Unpublished/Comissioned). Maćków Pracownia Projektowa: Wrocław, Poland, 2002. [Google Scholar]
- Maćków, Z.; Erdman, J.; Hawrylak, M.; Kirschke, P.; Macuta, M.; Sulisz, P.; Zybura, P.; Kotynia, Z. Remont i Przebudowa Pięter IV–VI Domu Towarowego “Centrum–Renoma”, ul. Świdnicka 40, Wrocław—Na Biura: Projekt Budowlany [Renovation and Reconstruction of Floors IV–VI of the “Centrum–Renoma” Department Store, 40 Świdnicka Street, Wrocław—For Office Use: Building Design]; Building Design Documentation. (Unpublished/Comissioned). Maćków Pracownia Projektowa: Wrocław, Poland, 2005. [Google Scholar]
- Kirschke, K.; Kirschke, P.; Kopaczyński, P.; Maćków, Z. Program Konserwatorski Elewacji Budynku Domu Towarowego “Renoma” przy ulicy Świdnickiej 40 we Wrocławiu [Conservation Program for the Façades of the “Renoma” Department Store Building at 40 Świdnicka Street, Wrocław]; Façade Conservation Program. (Unpublished/Commissioned Technical Report). Maćków Pracownia Projektowa (MPP): Wrocław, Poland, 2005. [Google Scholar]
- Maćków Pracownia Projektowa (MPP). Dom Towarowy Renoma—Projekty Wykonawcze Remontu, Przebudowy i Rozbudowy [Renoma Department Store—Execution Designs for Renovation, Reconstruction and Extension]; Execution Designs. (Unpublished/Comissioned). MPP: Wrocław, Poland, 2008. [Google Scholar]
- Maćków Pracownia Projektowa Sp. z o.o. Projekt Budowlany Przebudowy 2. Piętra Domu Handlowego “Renoma” na Potrzeby Przychodni Medycznej [Building Design for the Conversion of the 2nd Floor of the Renoma Department Store for Medical Clinic Use]; Building Design Documentation. (Unpublished/Commsioned). Maćków Pracownia Projektowa Sp. z o.o: Wrocław, Poland, 2016. [Google Scholar]
- Kabarowski, Ł.; Misiura, A.; Komarzyńska-Świeściak, E.; Juszczyk, W. Projekt Budowlany Przebudowy Części 2. Piętra Domu Handlowego “Renoma” na Biura [Building Design for the Conversion of Part of the 2nd Floor of the Renoma Department Store into Office Space]; Building Design Documentation. (Unpublished/Comissioned). KMA Kabarowski Misiura Architekci: Wrocław, Poland, 2011. [Google Scholar]
- Eurobuild CEE. Another Stage of Renoma Renovations Completed. 29 March 2022. Available online: https://eurobuildcee.com/en/news/32320-another-stage-of-renoma-renovations-completed (accessed on 19 September 2025).
- Bryła. Zupełnie Nowa Renoma [A Completely New Renoma]. 24 April 2009. Available online: https://www.bryla.pl/bryla/1%2C85301%2C6530218%2CZupelnie_nowa_Renoma.html (accessed on 19 September 2025).
- Archiweb. n.d. Reconstruction and Completion of the Renoma Department Store. Available online: https://www.archiweb.cz/en/b/rekonstrukce-a-dostavba-obchodniho-domu-renoma-dom-handlowy-renoma (accessed on 19 September 2025).
- Maćków, Z.; Piątek, G. Dom towarowy Renoma we Wrocławiu. Architektura 2009, 7, 32–43. [Google Scholar]
- Wrocław.pl. Nagroda dla Renomy–Property Design Awards 2016 [Award for Renoma—Property Design Awards 2016]. 22 February 2016. Available online: https://www.wroclaw.pl/przedsiebiorczy-wroclaw/nagroda-dla-renomy-property-design-awards-2016 (accessed on 19 September 2025).
- Globalworth Poland. Pierwszy Etap Metamorfozy Renomy Zakończony. Perła Wrocławia Znów Zachwyca [First Stage of Renoma’s Metamorphosis Completed. The Pearl of Wrocław Impresses Again]. 29 March 2022. Available online: https://media.globalworth.pl/183273-pierwszy-etap-metamorfozy-renomy-zakonczony-perla-wroclawia-znow-zachwyca (accessed on 19 September 2025).
- Globalworth. n.d. Work Starts on the Transformation of Renoma in Wrocław. Available online: https://www.globalworth.com/business-news/work-starts-on-the-transformation-of-renoma-in-wroclaw/ (accessed on 19 September 2025).
- Wrocław.pl. Renoma Nagroda Prime Property Prize 2022 [Renoma Awarded the Prime Property Prize 2022]. 13 September 2022. Available online: https://www.wroclaw.pl/przedsiebiorczy-wroclaw/renoma-nagroda-prime-property-prize-2022 (accessed on 19 September 2025).
- Maćków, Z.; Maury, M.; Erdman, J.; Kowalczyk, A.; Radaj, M.; Karpa, P.; Zapotoczna, S.; Juszczak, J. Projekt Budowlany Remontu, Przebudowy i Zmiany Sposobu Użytkowania Zabytkowego Domu Handlowego “Renoma”, ul. Świdnicka 40, Wrocław [Building Design for the Renovation, Reconstruction, and Change of Use of the Historic Renoma Department Store, Świdnicka 40, Wrocław]. Architectural project documentation (unpublished/comissioned). Maćków Pracownia Projektowa Sp. z o.o., sp. k.: Wrocław, Poland, 2020. [Google Scholar]
- Kirschke, K.; Kirschke, P. Colour and Light in Berlin and Wrocław (Breslau) Department Stores Built between 1927 and 1930. Arts 2022, 11, 12. [Google Scholar] [CrossRef]
- Kirschke, K.; Kirschke, P.; Komarzyńska-Świeściak, E. Rewitalizacja Dworca Głównego PKP we Wrocławiu i jej wpływ na rozwój centralnego węzła przesiadkowego w tym mieście [Revitalization of the Wrocław Main Railway Station and Its Impact on the Development of the City’s Central Transport Hub]. Przestrz. Forma 2020, 42, 71–92. [Google Scholar]
- Kirschke, K.; Kirschke, P.; Maćków, Z. Przebudowa domu towarowego “Centrum”, część A1 “Galeria Centrum”: Projekt budowlany i projekt wykonawczy [Reconstruction of the “Centrum” Department Store, Section A1 “Galeria Centrum”: Building and Execution Design]. [Unpublished architectural project documentation (commissioned)]. Maćków Pracownia Projektowa (MPP): Wrocław, Poland, 1999. [Google Scholar]
- Gierczak, J. Ekspertyza Techniczna Dotycząca Badań Materiałowych Elementów Konstrukcyjnych Domu Towarowego Centrum “Renoma” we Wrocławiu przy ul. Podwale; [Technical Expertise]; POLTEBUD: Wrocław, Poland, 2005. [Google Scholar]
- Smardz, P.; Gierczak, J. Ekspertyza Techniczna Dotycząca Stanu Ochrony Przeciwpożarowej Domu Handlowego Renoma Przy ul. Świdnickiej 40 we Wrocławiu; [Fire Safety Expertise]; INBEPO Sp. z o.o.: Wrocław, Poland, 2020. [Google Scholar]
- Omilanowska, M. Świątynie Handlu [Temples of Commerce]; Neriton: Warsaw, Poland, 2004. [Google Scholar]
- TEDxWroclaw. The Story of Renoma Department Store: Zbigniew Maćków at TEDxWroclaw [Video]. YouTube. 16 June 2012. Available online: https://www.youtube.com/watch?v=r1KatSoj8Gg (accessed on 19 September 2025).
- Stowarzyszenie Architektów Polskich (SARP). Nagrody Roku 2009 Wręczone! [SARP Awards of the Year 2009 Presented!]. 14 December 2010. Available online: https://www.sarp.pl/pokaz/nagrody_roku_2009_wreczone%21%2C1486/ (accessed on 19 September 2025).
- World Architecture Festival. WAF Awards 2010—Shortlist, “New and Old”—Renoma Department Store Revitalisation and Extension. 2010. Available online: https://www.e-architect.com/awards/waf-awards-shortlist-2010 (accessed on 19 September 2025).
- Bryła. Wrocławska Renoma Kończy 95 lat. Od Luksusowego Domu Towarowego do Wielofunkcyjnego Obiektu Typu Mixed-Use [Wrocław’s Renoma Turns 95: From Luxury Department Store to Multifunctional Mixed-Use Facility]. 9 June 2025. Available online: https://www.bryla.pl/wroclawska-renoma-konczy-95-lat (accessed on 19 September 2025).
- Hangebruch, N. Department Stores in Transition: Resilience and Transformation of Inner-City Retail Buildings. Sustainability 2022, 14, 8303. [Google Scholar] [CrossRef]
- World Economic Forum. Adaptive Reuse of Assets Model Policy; World Economic Forum: Geneva, Switzerland, 2024; Available online: https://www3.weforum.org/docs/WEF_Adaptive_Reuse_Assets_Model_Policy_2024.pdf (accessed on 3 November 2025).
- Remøy, H.; van der Voordt, T. Adaptive Reuse of Office Buildings into Housing: Opportunities and Risks. Build. Res. Inf. 2014, 42, 381–390. [Google Scholar] [CrossRef]
- European Commission Joint Research Centre. Level(s) Indicator 2.3: Design for Adaptability and Renovation (User Manual v1.0); JRC: Brussels, Belgium, 2020; Available online: https://susproc.jrc.ec.europa.eu/product-bureau/sites/default/files/2020-10/20201013%20New%20Level(s)%20documentation_2.3%20Adaptability_Publication%20v1.0.pdf (accessed on 3 November 2025).
- Mehan, A. Adaptive Reuse as a Catalyst for Post-2030 Urban Sustainability: Rethinking Industrial Heritage Beyond the SDGs. Discover Sustainability 2025, 6, 598. [Google Scholar] [CrossRef]
- Foster, G. Circular Economy Strategies for Adaptive Reuse of Cultural Heritage Buildings to Reduce Environmental Impacts. Resour. Conserv. Recycl. 2020, 152, 104507. [Google Scholar] [CrossRef]
- Foster, G.; Saleh, R. The Adaptive Reuse of Cultural Heritage in European Circular City Plans: A Systematic Review. Sustainability 2021, 13, 2889. [Google Scholar] [CrossRef]
- Foster, G.; Saleh, R. The Circular City and Adaptive Reuse of Cultural Heritage Index: Measuring the Investment Opportunity in Europe. Resour. Conserv. Recycl. 2021, 175, 105880. [Google Scholar] [CrossRef]
- European Commission. New European Bauhaus Progress Report 2023; Publications Office of the European Union: Brussels, Belgium, 2023; Available online: https://eur-lex.europa.eu/legal-content/EN/TXT/?uri=CELEX:52023DC0024 (accessed on 3 November 2025).
- Leung, T.; Yu, C. Design for Adaptability: Integrating Flexibility into Building Systems. J. Build. Eng. 2021, 44, 103347. [Google Scholar] [CrossRef]
- Wilkinson, S.J.; Remøy, H. (Eds.) Building Urban Resilience through Change of Use; Wiley-Blackwell: Chichester, UK, 2018. [Google Scholar] [CrossRef]
- Avrami, E.; Macdonald, S.; Mason, R.; de la Torre, M. (Eds.) Values in Heritage Management: Emerging Approaches and Research Directions; Getty Conservation Institute: Los Angeles, CA, USA, 2019; Available online: https://www.getty.edu/publications/heritagemanagement/ (accessed on 2 November 2025).
- Yung, E.H.K.; Chan, E.H.W. Implementation Challenges to the Adaptive Reuse of Heritage Buildings: Towards the Goals of Sustainable, Low-Carbon Cities. Habitat Int. 2012, 36, 352–361. [Google Scholar] [CrossRef]
- van Knippenberg, K.; Boonstra, B.; Boelens, L. Communities, Heritage and Planning: Towards a Co-Evolutionary Heritage Approach. Plan. Theory Pract. 2022, 23, 26–42. [Google Scholar] [CrossRef]
- van Knippenberg, K.; Boonstra, B. Co-Evolutionary Heritage Reuse: A European Multiple Case Study Perspective. Eur. Plan. Stud. 2023, 31, 1995–2012. [Google Scholar] [CrossRef]
- Wilkinson, S. The Preliminary Assessment of Adaptation Potential in Existing Office Buildings. Int. J. Strateg. Prop. Manag. 2014, 18, 77–87. [Google Scholar] [CrossRef]
- Harrison, R. Heritage: Critical Approaches; Routledge: London, UK; New York, NY, USA, 2013. [Google Scholar]
- Holtorf, C.; Högberg, A. (Eds.) Cultural Heritage and the Future; Routledge: London, UK; New York, NY, USA, 2021. [Google Scholar]
- Della Spina, L. Adaptive Sustainable Reuse for Cultural Heritage: A Multiple Criteria Decision Aiding Approach Supporting Urban Development Processes. Sustainability 2020, 12, 1363. [Google Scholar] [CrossRef]
- Ragheb, G.A. Multi-Criteria Decision Making of Sustainable Adaptive Reuse of Heritage Buildings Based on the A’WOT Analysis: A Case Study of Cordahi Complex, Alexandria, Egypt. Int. J. Sustain. Dev. Plan. 2021, 16, 236–249. [Google Scholar] [CrossRef]
- Kabir, G.; Sadiq, R.; Tesfamariam, S. A Review of Multi-Criteria Decision-Making Methods for Infrastructure Management. Struct. Infrastruct. Eng. 2014, 10, 1176–1210. [Google Scholar] [CrossRef]
- Giannarou, L.; Zervas, E. Using Delphi Technique to Build Consensus in Practice. Int. J. Bus. Sci. Appl. Manag. 2014, 9, 65–82. [Google Scholar] [CrossRef]
- von der Gracht, H.A. Consensus Measurement in Delphi Studies: Review and Implications for Future Quality Assurance. Technol. Forecast. Soc. Change 2012, 79, 1525–1536. [Google Scholar] [CrossRef]






| Ref. | Phase | Period | Archival, Morphological, Spatial, and Contextual Sources/Year(s) | Informs (Readiness F–P/ARP Contextual Support) |
|---|---|---|---|---|
| PK-P1 | P1 | 1930–1945 | Original building projects and competition documentation (1928–1930, H. Dernburg); contemporary press reports; interview with H. Dernburg | Readiness: F, G, U ARP context: O1, O3, O4 |
| PK-P2 | P2 | 1946–1976 | Reconstruction and alteration projects (1948–1975, PDT); archival photos; press coverage | Readiness: G, P ARP context: O2, O6 |
| PK-P3 | P3 | 1977–2004 | Modernisation projects and technical assessments (1993–2000); conservation study (1998); project documentation (1995–2002); press coverage | Readiness: F, U, D ARP context: O4, O5 |
| PK-P4 | P4 | 2005–2018 | Conservation programme (2005); technical assessments (2005); redevelopment and extension projects (2005–2009, MPP, ARUP, Benoy); Adaptation projects (2011–2016, MPP, KMA); press interviews; press coverage | Readiness: G, D, P ARP context: O1, O3 |
| PK-P5 | P5 | 2019–2025 | Adaptation projects (2020, MPP); technical and fire safety assessments (2020); conservation expertise (2020); press interviews; scholarly publications (2020s) | Readiness: F, G, U, D, P ARP context: O2, O6, O7 |
| Factor | What it Captures (≤15 Words) | Main Evidence Used (Examples; all Factor Scores Derived from Structured Expert Questionnaires Informed by Retrospective Professional Practice and Historical Involvement) |
|---|---|---|
| O1 Physical | Structural integrity, durability of frame/envelope, and service pathway condition | As-built drawings, repair packages, structural and MEP reports, site photos |
| O2 Economic | Relative cost of adaptation vs. rebuild; investment viability and OPEX predictability | Market/benchmark reports, owner/press statements, cost/incentive files |
| O3 Functional | Layout efficiency, floorplate flexibility, circulation, accessibility, adaptability for mixed uses | Architectural plans/sections, phase overlays, access/egress documentation |
| O4 Technological | Building systems performance, energy efficiency, infrastructure capacity, and upgradability | MEP inventories, energy/compliance reports, riser mapping |
| O5 Social | User/public acceptance, heritage identity, and social/public realm effects | Press coverage, consultation records, heritage statements, footfall/public realm data |
| O6 Legal | Statutory compliance, heritage listing constraints, ownership and tenure clarity | Permits/decisions, listings/conditions, tenure and ownership files |
| O7 Political | Policy regime, stability, incentives/grants, and political support for reuse | Strategic plans, program priorities, authority statements |
| Phase | Period | Functional–Spatial Changes | Adaptive Strategy |
|---|---|---|---|
| P1. Initial design and wartime transformations | 1930–1945 | Construction of a modern department store for Wertheim with retail, gastronomy, and offices; partial conversion to administrative/paramilitary use during WWII; severe damage in 1945. | New commercial investment with a “loose-fit” modular structure; open floorplates and courts enabling long-term flexibility; war damage left the frame intact, securing reuse potential. |
| P2. Post-war socialist reconstruction | 1946–1976 | Incremental reopening of retail floors, partial use as storage, offices, and education; reliance on original technical systems. | Pragmatic rebuilding and simplified interiors; technical repair of façades; multi-stage spatial and functional recycling under resource constraints; O2 pressure. |
| P3. Reconfiguration of retail departments | 1977–2004 | Multiple retail and gastronomy remodels; installation of escalators and lifts; continued use of upper floors for offices and storage. | Program adaptations without altering structural grid; basic façade maintenance; preparatory studies for larger repositioning. |
| P4. Retail-led mixed-use transition & extension | 2005–2018 | Major redevelopment and expansion: five-level shopping arcade, new wing with parking, updated interiors, new food court and offices. | Comprehensive transformation based on “research by design”; structural strengthening, façade conservation, and full MEP renewal; alignment with capital market standards; O4 mitigation. |
| P5. Office-led functional transition | 2019–2025 | Gradual reduction of retail; growing share of offices, coworking, medical and fitness services; reinterpretation of courts and entrance hall. | Strategic shift toward office and service mix; adaptation to e-commerce and post-pandemic realities; high-standard finishes and enhanced accessibility; O3 flexibility; O6 clarity |
| Ref. Year | Built | Lb (Years) | Lp | ELb | ELu | ELb/ELu | Proximity-to-Midlife (f) |
|---|---|---|---|---|---|---|---|
| 1947 | 1930 | 17 | 120 | 0.14 | 0.69 | 0.2 | 0.45 |
| 1977 | 1930 | 47 | 120 | 0.39 | 0.66 | 0.6 | 0.74 |
| 2004 | 1930 | 74 | 120 | 0.62 | 0.75 | 0.82 | 0.87 |
| 2018 | 1930 * | 88 | 120 | 0.73 | 0.62 | 1.18 | 0.89 |
| 2009 ** | 9 | 120 | 0.08 | 0.62 | 0.12 | 0.45 | |
| 2025 | 1930 * | 95 | 120 | 0.79 | 0.79 | 1.01 | 1.00 |
| 2009 ** | 16 | 120 | 0.13 | 0.79 | 0.17 | 0.35 |
| Decision Window (Ref. Year) | O1 Physical | O2 Economic | O3 Functional | O4 Technological | O5 Social | O6 Legal | O7 Political | Sigma_O (Mean O1–O7) | ΣOi (Langston Fraction) |
|---|---|---|---|---|---|---|---|---|---|
| P1 (1930–1945, ref. 1947) | 0.50 | 0.39 | 0.06 | 0.17 | 0.11 | 0.39 | 0.22 | 0.26 | 0.37 |
| P2 (1946–1976, ref. 1977) | 0.61 | 0.22 | 0.11 | 0.44 | 0.11 | 0.22 | 0.39 | 0.30 | 0.42 |
| P3 (1977–2004, ref. 2004) | 0.45 | 0.06 | 0.06 | 0.44 | 0.11 | 0.17 | 0.17 | 0.21 | 0.29 |
| P4 (2005–2018, ref. 2018) | 0.08 | 0.33 | 0.06 | 0.17 | 0.06 | 0.06 | 0.22 | 0.14 | 0.48 |
| P5 (2019–2025, ref. 2025) | 0.20 | 0.33 | 0.11 | 0.06 | 0.11 | 0.17 | 0.22 | 0.17 | 0.24 |
| Decision Window (Ref. Year) | Decision Window (Ref. Year) | ARP % | Classification | Trend |
|---|---|---|---|---|
| P1 (1930–1945, ref. 1947) | ~1947 | 28.39 | moderate | increasing |
| P2 (1946–1976, ref. 1977) | ~1977 | 42.50 | moderate | increasing |
| P3 (1977–2004, ref. 2004) | ~2004 | 61.64 | high | increasing |
| P4 (2005–2018, ref. 2018) | ~2018 | 31.96 | moderate | increasing |
| P5 (2019–2025, ref. 2025) | ~2025 | 44.08 | moderate | increasing |
| Phase | Period | Decision Window (Ref. Year) | F Finance | G Governance & Approvals | U Use Commitment | D Delivery & Supply Chain | P Policy/Strategic Priority | Readiness R (0–1) |
|---|---|---|---|---|---|---|---|---|
| P1. Initial design and wartime transformations | 1930–1945 | ~1947 | 0.50 | 0.75 | 0.75 | 0.50 | 1.00 | 0.66 |
| P2. Post-war socialist reconstruction | 1946–1976 | ~1977 | 0.50 | 1.00 | 1.00 | 0.50 | 0.75 | 0.75 |
| P3. Reconfiguration of retail departments | 1977–2004 | ~2004 | 0.75 | 0.75 | 0.75 | 0.75 | 0.75 | 0.75 |
| P4. Retail-led mixed-use transition & extension | 2005–2018 | ~2018 | 1.00 | 0.75 | 0.75 | 1.00 | 0.50 | 0.84 |
| P5. Office-led functional transition | 2019–2025 | ~2025 | 0.50 | 1.00 | 0.50 | 1.00 | 0.75 | 0.75 |
| Phase/Decision Window (Ref. Year ±2–3) | ARP% | Readiness R (0–1) | Aggregate Readiness (WAIT/PREPARE/GO) GO [%] (=ARP × R) | Decision Class | Evidence Anchors (see Table 1 and Appendix A) |
|---|---|---|---|---|---|
| P1 (1930–1945, ref. 1947) | 28.39 | 0.66 | 18.81 | WAIT | PK-1945; reconstruction decrees |
| P2 (1946–1976, ref. 1977) | 42.50 | 0.75 | 31.88 | PREPARE | PK-1977; heritage listing |
| P3 (1977–2004, ref. 2004) | 61.64 | 0.75 | 46.23 | GO | PK-1989; privatisation files |
| P4 (2005–2018, ref. 2018) | 31.96 | 0.84 | 26.77 | PREPARE | PK-2004; EU accession; permits |
| P5 (2019–2025, ref. 2025) | 44.08 | 0.75 | 33.06 | PREPARE | PK-2015; Globalworth strategy |
Disclaimer/Publisher’s Note: The statements, opinions and data contained in all publications are solely those of the individual author(s) and contributor(s) and not of MDPI and/or the editor(s). MDPI and/or the editor(s) disclaim responsibility for any injury to people or property resulting from any ideas, methods, instructions or products referred to in the content. |
© 2025 by the authors. Licensee MDPI, Basel, Switzerland. This article is an open access article distributed under the terms and conditions of the Creative Commons Attribution (CC BY) license (https://creativecommons.org/licenses/by/4.0/).
Share and Cite
Komarzyńska-Świeściak, E.; Kirschke, K.; Kirschke, P. Timing Circular Regeneration with Adaptive Reuse Potential: A Century of Transformations at the Renoma Department Store, Wroclaw. Sustainability 2025, 17, 11276. https://doi.org/10.3390/su172411276
Komarzyńska-Świeściak E, Kirschke K, Kirschke P. Timing Circular Regeneration with Adaptive Reuse Potential: A Century of Transformations at the Renoma Department Store, Wroclaw. Sustainability. 2025; 17(24):11276. https://doi.org/10.3390/su172411276
Chicago/Turabian StyleKomarzyńska-Świeściak, Elżbieta, Krystyna Kirschke, and Paweł Kirschke. 2025. "Timing Circular Regeneration with Adaptive Reuse Potential: A Century of Transformations at the Renoma Department Store, Wroclaw" Sustainability 17, no. 24: 11276. https://doi.org/10.3390/su172411276
APA StyleKomarzyńska-Świeściak, E., Kirschke, K., & Kirschke, P. (2025). Timing Circular Regeneration with Adaptive Reuse Potential: A Century of Transformations at the Renoma Department Store, Wroclaw. Sustainability, 17(24), 11276. https://doi.org/10.3390/su172411276

