Abstract
Within the ongoing scientific and disciplinary debate on the interplay between climate change and land-use governance, this paper highlights the critical role of urban planning and design in shaping environmental regeneration strategies for coastal urban areas vulnerable to flooding phenomena. These flood events—driven by the combined effects of sea-level rise (SLR) and riverine flood—represent one of the key challenges facing the “global risk society” given their increasing impact on urban areas and the tangible economic, social, and environmental damages they produce. In this context, this paper presents selected outcomes from the findings of the research project “Climate-proof planning and regeneration strategies for adaptation to sea-level rise. Experimentation and innovation in local urban planning in at-risk areas of the Lazio region”, conducted at Sapienza University of Rome. The project focuses on research and experimental planning in coastal areas of Lazio identified as being at risk of SLR-related flooding by 2100. It aims to define theoretical–methodological and operational references for urban regeneration with an ecosystemic approach within the framework of so-called climate-proof planning. This study examines three macro-areas, further subdivided into seven distinct sites, categorized by their prevailing urban functions. For each site, following a preliminary assessment of flood-prone zones, tailored design actions are proposed. These actions are framed within three overarching of urban resilience strategies, developed in previous research by the authors: “defence”, “adaptation”, and “relocation”.
1. Introduction
The concept of resilience entered the domain of urban and regional planning during the past century [1], referring to actions which, within a long-term perspective and supported by adaptive and co-evolutionary capacities [2], can effectively steer ongoing urban and territorial transitions towards pathways of sustainable development [3,4].
The concept simultaneously acknowledges, on the one hand, the environmental, social, and economic vulnerabilities characterising contemporary cities and, on the other, establishes a strategic framework for responding to such crises through renewed analytical models, novel interpretations of territorial dynamics, and innovative design approaches to reorient public policy interventions [5,6,7].
Within this conceptual framework, the contribution focuses on urban resilience to degenerative processes induced by climate change, understood “as the capacity of social, economic and ecosystems to cope with a hazardous event, trend, or disturbance, responding or reorganising in ways that maintain their essential function, identity, and structure, as well as biodiversity in the case of ecosystems, while also maintaining the capacity for adaptation, learning, and transformation. Resilience is a positive attribute when it maintains such a capacity for adaptation, learning, and/or transformation” [8].
Accelerated sea-level rise and increasing flood risk, driven by global climate change, constitute among the most pressing challenges for contemporary spatial planning. Historically central to human settlements and economic activities, coastal regions now face the progressive submersion of substantial land areas, with profound implications for ecosystems, infrastructures, and cultural heritage. These so-called “sub-limen” zones, literally “below threshold” [9], are marked by a potential loss scenario that demands radical innovation in favour of intrinsically adaptive and multifunctional strategies of urban regeneration [10].
The evolving scientific discourse, alongside the increasing recognition by both national and international institutions of the impacts of climate change on territorial systems [11,12], has underscored the urgent need for integrated policies, strategic frameworks, and actionable interventions to foster urban climate resilience [13]. Achieving this objective requires an informed and multi-level governance framework capable of designing shared trajectories of collective action [14,15] for the safeguarding and regeneration of territorial assets through iterative and circular processes linking strategic visions with spatial and operational outcomes [16,17,18,19,20].
Such an approach presupposes an integrated, multi-scalar perspective for addressing the urban complexity of territories exposed to risk [21,22], in line with the principles articulated in the Guidelines for Ecosystem-based Approaches to Climate Change Adaptation and Disaster Risk Reduction [23], and consistent with the objectives of the European Strategy on Adaptation to Climate Change [24].
Within this framework, the identification of policies, instruments, programmes, and projects becomes crucial for operationalising the orientations set forth in the 2030 Agenda for Sustainable Development [25] and in the outcomes of the Climate Conference [26].
In response to these imperatives, this contribution highlights the pivotal role of synergies across design disciplines, particularly urban planning, architectural design, and environmental and applied botany, in developing innovative strategies for urban and environmental regeneration in fragile coastal contexts. This integrative approach combines resilient settlement planning, adaptive architectural solutions, and nature-based strategies for impact mitigation, ecosystem protection, and biodiversity enhancement, thereby ensuring the long-term sustainability and liveability of these territories.
Finally, the paper presents the findings of an experimental research project carried out along the Tyrrhenian coast in the Lazio region of Italy, focusing on seven target sites identified as highly exposed to sea-level rise and flood hazards. The study illustrates the outcomes of a site-specific design toolkit aimed at coastal multi-risk adaptation, integrating risk mitigation with the enhancement of ecosystem services and the strengthening of social capital, ultimately transforming threats into catalysts for sustainable and equitable urban development, and advancing practical adaptation strategies for local implementation [27].
2. State of the Art: Three Macro-Strategies for Urban Regeneration with an Environmental Approach
Over the past two decades, climate change adaptation strategies have undergone a significant transformation, with an increasing recognition of the effectiveness of Nature-based Approaches in reducing territorial vulnerability. These approaches encompass interrelated concepts such as the Ecosystem-based Approach (EbA), Nature-based Solutions (NBS), Green Infrastructures (GI), and Ecosystem-based measures for Disaster Risk Reduction (eco-DRR), all of which aim to integrate ecosystem conservation and restoration into planning processes and risk management frameworks [28,29,30].
These approaches pursue the overarching goal of enhancing the resilience of socio-ecological systems through ecosystem restoration, conservation, and functional optimization, while simultaneously improving the provision of ecosystem services essential for human well-being [31,32]. Among their principal benefits are coastal and soil erosion control, hydrological regulation, flood risk reduction, and the mitigation of drought impacts. Grounded in a systemic understanding of ecosystem functioning, these strategies are designed to deliver integrated responses to multiple environmental, climatic, and sectoral policy objectives. Moreover, they generate multiple and synergistic socio-economic co-benefits, frequently surpassing those achievable through conventional technological solutions, thereby contributing to long-term sustainability and territorial cohesion [33].
Within this framework, the recent ratification of the Nature Restoration Law [34] represents a pivotal milestone towards an ambitious and legally binding ecological transition. The regulation establishes clear, measurable targets for restoring at least 20% of the EU’s terrestrial and marine areas by 2030, extending its scope to all degraded ecosystems, from rivers to wetlands, forests, and agricultural landscapes. It is grounded on the premise that achieving a favourable conservation status of ecosystems constitutes an essential prerequisite for addressing the climate crisis while simultaneously contributing to disaster risk prevention and public health improvement [35].
Building upon previous research activities, the authors have contributed to the conceptualisation of three macro-strategies for urban resilience and to the development of theoretical, methodological, and operational frameworks aimed at classifying site-specific adaptation measures for coastal areas facing the impacts of sea-level rise and increasingly frequent flooding events. These frameworks are designed to be transferable and replicable across different territorial contexts [9,36].
This research, informed by an inductive analysis of the best international practices, has been structured into two sequential and complementary phases:
2.1. Phase 1: Preliminary Categorisation of Practices
The first phase led to the development of a taxonomy of best practices organised into three primary strategic categories [37]:
- Defence Strategies—protecting territories from the impacts of flooding or sea-level rise through hydraulic engineering interventions (Grey Infrastructure) or nature-based solutions (Green Infrastructure).
- Adaptation Strategies—implementing systemic actions and structural transformations to enhance the intrinsic capacity of urban systems to manage and adapt to risk impacts, primarily through morphological reconfigurations aligned with the surrounding environmental context.
- Relocation Strategies—planning the strategic transfer of urban components (population, infrastructures, and critical functions) from areas of persistent and high risk towards zones considered safer and less exposed.
2.2. Phase 2: Systemic Integration and Theoretical–Methodological Advancement
The second phase represents a significant theoretical and methodological refinement of the initial conceptual framework, introducing a systemic interpretation of territorial components most exposed and vulnerable to risk phenomena [9]. The strategic categories defined in Phase 1 were subsequently integrated with a disaggregation of territorial systems into three interrelated components:
- Ecological–Environmental Components—encompassing natural and semi-natural systems within urban and peri-urban contexts (e.g., water bodies, soils, vegetation, biodiversity) and their interactions with risk dynamics.
- Settlement–Morphological Components—referring to the physical structure and spatial configuration of urban settlements (e.g., building density, construction typologies, land-use patterns, and urban morphology).
- Service and Infrastructure Components—including the critical networks and essential services supporting urban functionality (e.g., transportation systems, water and energy supply, telecommunications, healthcare, and emergency services).
The integration of these components with the Defence, Adaptation, and Relocation strategies enabled the construction of a more robust and multidimensional conceptual framework for designing and implementing urban resilience strategies. This framework moves beyond a fragmented perspective towards a holistic understanding of the city–territory system, thereby strengthening the analytical and operational capacity of spatial planning processes.
Building upon this methodological foundation, an experimental research activity was conducted along the Lazio coastline, the results of which are presented in the following sections.
It is important to note that the two phases described above (Phase 1 and Phase 2) represent the methodological outcomes of previous research projects conducted by the authors and therefore do not constitute the operative method of the present study. The current research builds upon and further develops that framework within a broader and more articulated methodological structure, organised into three Work Packages (Analysis, Planning, and Design). In particular, the theoretical and conceptual system elaborated through the previous phases—based on the integration between the three macro-strategies of defence, adaptation, and relocation and the systemic articulation of territorial components (ecological–environmental, settlement–morphological, and service and infrastructure)—has been integrated into the planning phase (WP2, see Section “Methods”). Within WP2, this framework served as a direct reference for defining site-specific design actions and resilience strategies. In this sense, the present research can be interpreted as both an operational implementation and an advancement of the earlier methodological framework, within a wider transdisciplinary and multi-scalar perspective.
3. Materials
3.1. Broad-Scale Territorial Framework
The preliminary phase of the research identified the coastal areas of the Lazio region that are directly exposed to sea-level rise risk (hereafter referred to as “critical areas”) and those indirectly affected, followed by their classification through a comparative multi-criteria assessment.
To this end, the study developed a systemic, multi-scalar, and transdisciplinary characterisation of the study area, adopting a knowledge-based territorial approach grounded in the concept of landscape, which, as widely acknowledged, extends beyond traditional environmental and territorial analyses by incorporating the perception of the territory by local communities [38].
The characterisation of the territory was progressively refined, starting with a broad-scale multidisciplinary framework, which was subsequently deepened through site-specific investigations conducted within a targeted, yet still multidisciplinary, perspective. Consistent with this methodological approach, the analysis employed multiple open-access spatial datasets supporting scientific research, enabling the construction of a comprehensive territorial framework for the Lazio coastal region.
The spatial integration of these datasets was carried out using georeferencing techniques available in the QGIS environment. Specifically, the study relied on the following open-source knowledge layers (Table 1):
- Morphological characterisation of the territory (10 × 10 m ground resolution);
- Land-use classification.
- Satellite imagery interpretation.
- Landscape heritage inventories.
- Protected area classifications.
- Digital technical cartography (1:5000 scale).
- Georeferenced ISTAT statistical data.
Table 1.
Data sources and spatial information framework. The table documents the sources of spatial and statistical data used in the research, providing a transparent overview of datasets and their origin to enhance the transparency, reproducibility, and scientific validity of the spatial analyses and GIS-based methods applied throughout the study.
Table 1.
Data sources and spatial information framework. The table documents the sources of spatial and statistical data used in the research, providing a transparent overview of datasets and their origin to enhance the transparency, reproducibility, and scientific validity of the spatial analyses and GIS-based methods applied throughout the study.
| Layer | References |
|---|---|
| Morphological characterisation of the territory (10 × 10 m ground resolution); | TINITALY/01: a new triangular irregular network of Italy. Annals of Geophysics: https://doi.org/10.4401/ag-4424, accessed on 5 July 2025 [39] |
| Land-use classification. | Corine Land https://www.isprambiente.gov.it/it/attivita/suolo-e-territorio/suolo/copertura-del-suolo/corine-land-cover, accessed on 10 July 2025 [40] |
| Carta geologica: https://geoportale.regione.lazio.it/, accessed on 12 July 2025 [41] | |
| Piano regolatore generale del Comune di Fiumicino available at the link: https://www.comune.fiumicino.rm.it/it/page/catasto-e-urbanistica-165?fromService=1, accessed on 7 August 2025 [42] | |
| Piano regolatore generale del Comune di Tarquinia available at the link: https://servizionline.comune.tarquinia.vt.it/cmstarquinia/portale/trasparenza/trasparenzaamministrativadocs.aspx?R=1&CP=131, accessed on 13 August 2025 [43] | |
| Piano Regolatore del Comune di Roma available at the link: http://www.urbanistica.comune.roma.it/prg.html, accessed on 15 July 2025 [44] | |
| Piano Regolatore Comunale di Latina available at the link: https://trasparenza.comune.latina.it/web/trasparenza/papca-g/-/papca/display/76441, accessed on 9 August 2025 [45] and https://www.provincia.latina.it/flex/cm/pages/ServeBLOB.php/L/IT/IDPagina/13673, accessed on 11 August 2025 [46] | |
| Satellite imagery interpretation | Available at the link: https://www.google.it/intl/it/earth/index.html, accessed on 18 July 2025 [47] |
| Landscape heritage inventory | PAI Piano di bacino per l’assetto Idrogeologico available at the link: https://aubac.it/attivita/pianificazione, accessed on 3 August 2025 [48] |
| Protected area classifications | Rete Natura 2000 available at the link: https://www.mase.gov.it/portale/schede-e-cartografie, accessed on 19 August 2025 [49] |
| SIC, ZSC e ZPS available at the link: https://www.mase.gov.it/portale/sic-zsc-e-zps-in-italia, accessed on 19 August 2025 [50] | |
| Georeferenced ISTAT statistical data | Basi territoriali: https://www.istat.it/notizia/basi-territoriali-e-variabili-censuarie/, accessed on 3 August 2025 [51] |
The identification of “critical areas” was performed by selecting DEM raster cells with altimetry values below a predefined threshold. In summary, the analyses, carried out using the “Raster Calculator” tool in QGIS, generated spatial clusters characterised by altitudes lower than the thresholds of +65 cm (scientific reference for projected sea-level rise by 2100) and +85 cm (sensitivity scenario) (Lab. Climate Modelling of ENEA). Subsequent processing extracted georeferenced polygons, and further refinement allowed for the isolation of contour lines at the relevant elevation thresholds. These spatial units were thereby classified as “critical areas”.
It is important to note that, due to inherent altimetric approximations and local hydraulic dynamics (including dominant currents, wind patterns, erosion phenomena, and extreme precipitation events), the identification of “critical areas” should be considered qualitative and preliminary. Consequently, broader study zones were delineated around these “critical areas” to encompass their systemic interrelations and to support subsequent, more detailed analyses.
The correlation between elevation contours and land-use patterns enabled the identification of thirty “problem areas” along the Lazio coastline, each associated with specific critical conditions. As expected, these areas are predominantly located along dunal formations (or remnants thereof), whereas cliff-dominated coastal segments are largely excluded from exposure. In synthesis, the majority of “critical areas” are concentrated within the recent backdune systems of the Tiber River estuary, the coastal plains of Lower Maremma, and the Pontine coastal lowlands. In several of these locations, additional hydrological pressures arise due to the convergence of minor natural watercourses.
As previously noted, the relationships between “critical areas” and their respective “problem areas” exhibit different systemic interdependencies and varying levels of relevance. Based on these attributes, the prevailing functional vocations of the affected areas were identified, resulting in the following typology:
- (a)
- Areas with complex urban settlement systems, characterised by permanent residential use.
- (b)
- Areas with elementary settlement systems, primarily linked to seasonal or commuting-related residential patterns.
- (c)
- Areas with predominantly agricultural settlement systems, including reclaimed lands.
- (d)
- Areas with high natural value, largely devoid of settlement structures.
- (e)
- Areas of high natural value enriched by significant archaeological and monumental heritage, including 16th-century coastal watchtowers, prehistoric settlement sites, Roman imperial coastal villas, and other historical assets.
The outcome of this large-scale territorial assessment is summarised in the following classification of “problem areas” according to their prevailing land-use typology (Figure 1):
- Coastal areas with a predominantly urban-settlement vocation: (06—Porto di Civitavecchia; 09—Ladispoli; 11—Fiumicino; 12—Isola Sacra; 14—Lido di Ostia; 20—Lido di Latina/Centrale; 26—Piana di Terracina/Fiume Mortacino; 29—Gaeta).
- Coastal areas with a predominantly seasonal-settlement vocation: (02—Montalto Marina; 03—Lido di Tarquinia; 07—Santa Severa; 15—Torvaianica; 16—Tor San Lorenzo; 17—Marina di Tor San Lorenzo; 24—Circeo; 27—Salto di Fondi; 30—Gianola).
- Coastal areas with a predominantly agricultural or land-reclamation vocation: (01—Capalbio Scalo; 25—Piana di Terracina/Punta Leano).
- Coastal areas with a predominantly landscape–environmental vocation: (04—Saline di Tarquinia; 05—Foce del Mignone; 13—Isola di Tor Boacciana; 18—Tor Caldara; 21—Lago di Fogliano; 22—Sabaudia).
- Coastal areas with a predominantly historical–archaeological vocation: (08—Castello di Santa Severa; 10—Castello Odescalchi; 19—Torre Astura; 23—Torre Paola; 28—Villa di Tiberio).
Figure 1.
Classification of the “problem areas” of the Lazio coastline. Broad-scale framework and identification of each zone. Red line: projected coastline in 2100 (+65 cm); blue area: coastal zones with predominant urban-residential vocation; purple area: coastal zones with predominant seasonal-residential vocation; brown area: coastal zones with predominant agricultural/reclamation vocation; green area: coastal zones with predominant landscape–environmental vocation; red area: coastal zones with predominant historical-archaeological vocation (Prepared by Carlo Valorani).
Figure 1.
Classification of the “problem areas” of the Lazio coastline. Broad-scale framework and identification of each zone. Red line: projected coastline in 2100 (+65 cm); blue area: coastal zones with predominant urban-residential vocation; purple area: coastal zones with predominant seasonal-residential vocation; brown area: coastal zones with predominant agricultural/reclamation vocation; green area: coastal zones with predominant landscape–environmental vocation; red area: coastal zones with predominant historical-archaeological vocation (Prepared by Carlo Valorani).

3.2. Selection of Case Studies
Following the classification of thirty “problem areas” along the Lazio coastline, seven target areas characterised by highly critical territorial conditions were selected—Fiumicino, Isola Sacra, Ostia Lido, Lido di Latina/Centrale, Lago di Fogliano, Lido di Tarquinia and Saline di Tarquinia—on which the experimental project presented in this paper was conducted. The selection was made through a preliminary assessment that integrated morphological, environmental, infrastructural and climatic aspects, with particular attention to the impact of the chronic phenomenon of sea level rise by 2100, the continuity of coastal physiographic units and the presence of ecological connections. Territorial representativeness was also considered, ensuring the presence of cases belonging to the three coastal provinces of Lazio, to reflect the geomorphological and settlement variety of regional coastal urban systems. The seven target areas were then aggregated into three macro-areas, defined based on criteria of territorial contiguity and similarity in evolutionary dynamics.
3.2.1. Macro-Area A: Fiumicino, Isola Sacra, Ostia Lido—Figure 2
Macro-area A (Figure 2) includes the coastal system between Fiumicino, Isola Sacra and Ostia Lido, with a peculiar geomorphological conformation resulting from anthropogenic transformation processes that began as early as the beginning of the 1st century AD [52], in which the interaction between hydraulic, sedimentary and settlement modifications has produced a fragile balance between the original lagoon environment and subsequent phases of urbanisation. Since the 1960s, the Isola Sacra area has seen the development of the spontaneous settlement of Passo della Sentinella, which is now densely populated and lacks adequate drainage and hydraulic protection infrastructure. From a planning perspective, the General Urban Development Plan of the Municipality of Fiumicino (2006) classifies these areas as Zone B, “consolidated residential completion”, and as part of the “city of transformation”, identifying sub-zone B1b as ‘building maintenance for environmental remediation and recovery’ [53], while the PRG of Rome [54] classifies Ostia Lido as part of the “historic city” and “consolidated city” fabric, orienting the redevelopment of the seafront through a “Type D Enhancement Area”. Furthermore, the overlap between anthropogenic pressure, morphological fragility and spontaneous urbanisation processes results in a condition of high vulnerability to hydraulic risk and coastal flooding, already highlighted at national level by Antonioli et al. (2017) [55], who include this area among the thirty-three portions of the Italian coast potentially subject to submersion by 2100.
Figure 2.
Representation of Macro-Area A (Fiumicino, Isola Sacra, Ostia Lido). Processed in QGIS 3.26.3 using ESRI Satellite base map. (Prepared by Federico Ianiri).
Figure 2.
Representation of Macro-Area A (Fiumicino, Isola Sacra, Ostia Lido). Processed in QGIS 3.26.3 using ESRI Satellite base map. (Prepared by Federico Ianiri).

3.2.2. Macro-Area B: Lido di Latina and Lago di Fogliano—Figure 3
Macro-area B (Figure 3) corresponds to a portion of physiographic unit no. 4, between Capo d’Anzio and Capo Circeo [56], and is characterised by the presence of Tyrrhenian pools, depressions typical of coastal plains subject to groundwater out-crops or significant rainfall, which develop in slow-draining clay soils, in a low-slope context where dune ridges hinder the flow of watercourses fed by the Lepini and Ausoni springs [57]. This landscape significance is accompanied by a high degree of environmental compromise, which is due both to the accentuation of natural phenomena in a changing climate and to the progressive urbanisation of the coastline [58], the Regional Parks Agency records the highest incidence of anthropised dunes on the entire Lazio coast in this stretch, the result of historical reclamation and subsequent spontaneous anthropisation that has restructured the ecosystems of the Pontine Plain and Lido di Latina/Centrale. The forecasts of the PRG (General Regulatory Plan) of Latina [59] identify the “Comprensorio Costiero R9” (Coastal Area R9) as an area for restructuring and completion through executive plans, while the area of Lake Fogliano is classified as subzone G2 as public green space with the possibility of sports facilities. In this configuration, marked by reclamation, subsidence and erosion, the overlap between residual ecosystems, urbanised fabrics and exposure to hydraulic risk make the macro-area an emblematic case of extreme fragility.
Figure 3.
Representation of Macro-Area B (Lido di Latina/Centrale, Lago di Fogliano). Processed in QGIS 3.26.3 using ESRI Satellite base map. (Prepared by Federico Ianiri).
Figure 3.
Representation of Macro-Area B (Lido di Latina/Centrale, Lago di Fogliano). Processed in QGIS 3.26.3 using ESRI Satellite base map. (Prepared by Federico Ianiri).

3.2.3. Macro-Area C: Lido di Tarquinia and Saline di Tarquinia—Figure 4
Macro-area C (Figure 4) includes the coastal system between Lido di Tarquinia and Saline di Tarquinia, a stretch where profoundly different territorial components coexist. Lido di Tarquinia, characterised by high urban density and marked seasonal tourism, has a coastline subject to erosion and marine intrusion. The Tarquinia Salt Pans, on the other hand, are an anthropogenic wetland, separated from the sea by a narrow sandbar and similar to a brackish lagoon behind the dunes, which is home to habitats of significant biogeographical and conservation value [60,61,62].
Figure 4.
Representation of Macro-Area C (Lido di Tarquinia, Saline di Tarquinia). Processed in QGIS 3.26.3 using ESRI Satellite base map. (Prepared by Federico Ianiri).
Figure 4.
Representation of Macro-Area C (Lido di Tarquinia, Saline di Tarquinia). Processed in QGIS 3.26.3 using ESRI Satellite base map. (Prepared by Federico Ianiri).

Subject to environmental protection restrictions since 1980 with the establishment of the “Saline di Tarquinia” Animal Population Nature Reserve [63], the wetlands are now part of the Natura 2000 network as SCIs and SPAs, as well as “Important Bird Areas” [64]. The Legambiente Spiagge 2022 report and the Life Natura 2002—Saline di Tarquinia project confirm the delicacy of this ecosystem, particularly in relation to marine intrusion processes and the worsening of extreme weather events associated with sea level rise.
From a planning perspective, the Tarquinia General Development Plan (PRG) [43] classifies the Lido as “Zone F—facilities and installations of general interest” (Art. 12 NTA), including sub-zones intended for beach services, public green spaces and collective facilities, regulated by implementing instruments such as the Detailed Plan for the Lido di Tarquinia [65], aimed at promoting tourism, accommodation and residential functions. The Saline area, on the other hand, is classified as “Zone D—industrial and similar facilities—D3 Saline” (Art. 10 NTA), for which no changes are planned with respect to the current situation.
The coexistence of the urban density of the Lido and the ecological fragility of the Saline, aggravated by the effects of climate change and coastal erosion processes, creates a condition of vulnerability in which anthropogenic pressures and environmental factors intertwine, generating a complex and sensitive system.
3.3. Environmental Characterisation of the Seven Analysed Case Studies
The following section provides a focused environmental characterisation of the seven selected case studies, with particular attention to the ecological and botanical components of coastal systems. This choice responds to the need to deepen the understanding of the most fragile and least regulated territorial layer—namely, the ecosystemic one—which plays a pivotal role in shaping nature-based adaptation strategies.
This dedicated and site-specific analysis is essential to support the implementation of ecosystem-based interventions and to ensure alignment with EU conservation directives.
Indeed, the Ecosystem-Based Approach aims to conserve an ecosystem—and thus the biodiversity it sustains—so that it can continue to provide humans with essential ecosystem services [66,67]. Ecosystems are complex structures in which interactions among geological, climatic, and biological components are dynamic. A well-conserved ecosystem is resilient to disturbances due to its inherent capacity for adaptation and resistance. Unfortunately, global change profoundly undermines the adaptive capacity of ecosystems, with dunes among the most threatened. The EU Habitat Directive 92/43/EEC lists many dune-related habitats in Annex I, including those typical of Atlantic, North Sea, and Baltic coasts (code 21*) and Mediterranean coasts (code 22*), as well as habitats connected to dunes, which are also protected under the same directive. Notably, this includes flooded marshes and pastures (code 1*).
Dunes constitute a key coastal morphological element for shoreline protection: they act as natural barriers against high water levels, provide protection for backdune environments, and serve as sand reservoirs that replenish beaches, mitigating erosion. A healthy dune system represents the first barrier against saline intrusion. Dune systems, once widespread along the Tyrrhenian coasts until recent times, now survive only in limited sectors, having been dismantled by intensive and often unregulated urbanisation. This situation threatens biodiversity, the ecosystem services provided by dunes [68] and more broadly, cultural heritage [69]. Planning and designing ecosystem-based interventions to counter sea-level rise therefore require a thorough understanding of the ecological characteristics of coastal habitats.
The Italian ecosystem map identifies two types of “psammophilous ecosystems”, found on the peninsula and major islands, which have recently been assessed as highly threatened [70]. These ecosystems survive only in a few sectors along the Lazio coast [71] where morphological, floristic, and vegetational characteristics have been extensively studied [72]. Dunes are an integral part of a complex of ecosystems arranged in an ideal transect extending from the coastline inland. Collectively, these form a geosigmetum, represented in Lazio by the “Peninsular psammophilous and halophilous geosigmetum of dune vegetation”, which is in close ecological connection with the “Tyrrhenian coastal geosigmetum of hygrophilous and marsh vegetation of backdune systems and coastal plains” [73].
The importance of these threatened ecosystems has led to the establishment of protected areas at both national and regional levels. Furthermore, the identification of habitats protected under the Directive has resulted in the designation of Special Areas of Conservation. These foundational insights were essential for the characterization of the three Macro-Areas.
3.3.1. Macro-Area A: Fiumicino, Isola Sacra, Ostia Lido
This macro-area, although partly located within the State Nature Reserve “Litorale Romano”, is the one most affected by the severe reduction of the dune ecosystem [71]. The ecological space of the dunes has almost completely disappeared, and only the beach portion survives, which is maintained without respecting its natural profile (both winter and summer berms are absent). The typical beach vegetation, with Cakile maritima as its characteristic species, is often removed, and only in limited coastal sections do traces of embryonic dunes persist, hosting a few elements of their typical flora, including Calamagrostis arenaria subsp. arenaria and Pancratium maritimum.
Within this area, two Natura 2000 Special Areas of Conservation (SACs) have been identified:
- IT6030023—Macchia Grande di Focene e Macchia dello Stagneto;
- IT6030024—Isola Sacra.
Additionally, in the Castel Porziano area, which is directly connected spatially, lies the State Nature Reserve “Tenuta di Castelporziano”, which is also designated as a Special Protection Zone (SPZ) (IT6030084—Castel Porziano, Presidential Estate). Along its coastal sector, elements of relatively well-preserved dune systems still survive, serving as essential reference points for designing restoration and recovery interventions.
3.3.2. Macro-Area B: Lido di Latina and Lago di Fogliano
The coastline of this macro-area was historically characterized by the presence of dune systems at the beginning of the last century, and even today, significant stretches of dunes remain, although they are highly impacted by anthropogenic pressures, especially in the Lido di Latina/Centrale area [74]. The reduction of the dunes here is less severe than in Macro-area A, but only a few sections still host natural, well-preserved dune systems capable of providing a wide range of ecosystem services.
The area falls within the territory protected by the SPZ “IT6040015—Parco Nazionale del Circeo” and, more importantly, the SAC “IT6040012—Laghi Fogliano, Monaci, Caprolace e Pantani dell’Inferno”, which safeguards numerous dune habitats. This is also the area that would benefit the most from a well-functioning dune system, as the Agro Pontino region is experiencing significant saline wedge intrusion and, moreover, the reclaimed land lies at an elevation barely above, or in some places even below, sea level. As a result, Macro-area B will be particularly affected by sea-level rise and the phenomena associated with it.
3.3.3. Macro-Area C: Lido di Tarquinia and Saline di Tarquinia
In this sector, topographic maps produced by the IGM based on surveys from the 1940s do not indicate the presence of dune systems. However, it cannot be excluded that, in the not-so-distant past, dune ecosystems were present here as well. In fact, within the SACs “IT6010027—Litorale tra Tarquinia e Montalto di Castro” and “IT6010026—Saline di Tarquinia”, numerous dune habitats are still present and remain ecologically connected with several hygrophilous and halophilous habitats.
4. Methods
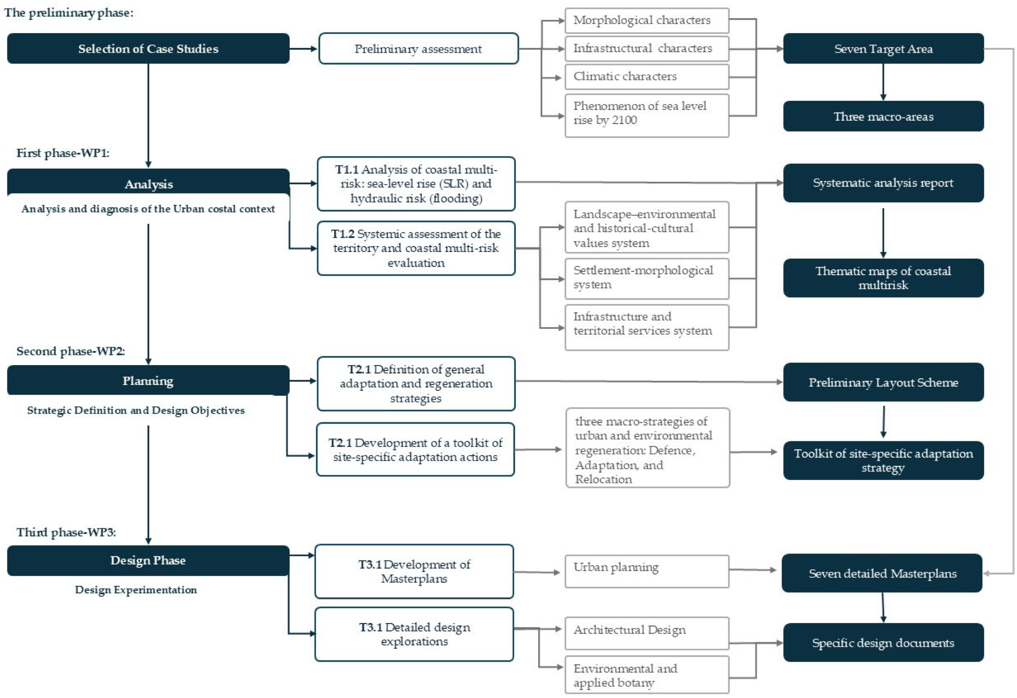
The research methodology (Figure 5) is based on a transdisciplinary approach actively involving scholars and researchers from urban planning, architectural design, and environmental and applied botany. Specifically, the urban planning discipline guided the experimental process by defining an integrated framework of strategies, objectives, and site-specific climate-proof actions.
Figure 5.
Framework of the research work process. The diagram illustrates the overall workflow of the research, outlining the sequential relationship between the analytical (WP1), planning (WP2), and design (WP3) phases.
The methodology is structured into three main work packages (WP)—Analysis, Planning, and Design—to investigate and address the challenges posed by climate change across the seven selected coastal areas. This framework ensured an iterative, evidence-based process from contextual understanding to the formulation of innovative solutions.
4.1. WP1: Analysis and Diagnosis of the Urban-Coastal Context (Analysis Phase)
Objective: To comprehensively understand the socio-spatial and environmental dynamics of the selected urban-coastal areas, identifying current and future vulnerabilities associated with climate change. This WP establishes the knowledge base for all subsequent phases.
Main Activities:
- T1.1—Sub-phase 1a|Analysis of sea-level rise (SLR) risk and hydraulic hazard in the Target Areas.
- T1.2—Sub-phase 1b|Systemic assessment of the territory and coastal multi-risk evaluation, identifying which system required the greatest attention for site-specific adaptation actions: the “landscape–environmental and historical–cultural values” system, the “settlement–morphological” system, or the “infrastructure and territorial services” system.
Expected Outputs:
- Thematic maps of coastal multi-risk for each target area.
- Systemic analysis reports for each area highlighting the most vulnerable system.
Urban planning plays a leading role in defining the integrated analytical framework and assessment methodology. It guides the analysis of risks at the territorial level (SLR, hydraulic risk) and the multi-risk coastal assessment (T1.1, T1.2), identifying the system (landscape–environmental, settlement–morphological, or infrastructural) that requires the most attention for adaptation actions.
- Environmental and applied botany contributes to the diagnosis by providing the expertise necessary for the analysis and assessment of the “landscape–environmental and historical–cultural values” system (T1.2). This includes understanding existing ecological dynamics, biodiversity and the vulnerability of coastal ecosystems.
- Architectural design provides a preliminary contribution to the analysis of the vulnerability of the ‘settlement–morphological’ system, focusing on the physical structure of urban spaces and the potential resilience of existing buildings and public spaces.
4.2. WP2: Strategic Definition and Design Objectives (Planning Phase)
Objective: To translate the knowledge acquired in WP1 into a strategic framework, outlining specific objectives for the experimental design and defining operational strategies best suited to address climate risks.
Main Activities:
- T2.1—Sub-phase 2a|Definition of general adaptation and regeneration strategies and objectives for coastal areas (Preliminary Layout Scheme).
- T2.2—Sub-phase 2b|Development of a toolkit of site-specific adaptation actions, contextualized within the three macro-strategies of urban and environmental regeneration: Defence, Adaptation, and Relocation.
Expected Outputs:
- Preliminary Layout Scheme outlining general strategies and objectives.
- Toolkit document categorizing adaptation actions according to macro-strategy.
Urban planning plays a central role in this phase. It translates the data and vulnerabilities identified in WP1 into a coherent strategic framework. It defines the general adaptation and regeneration strategies (T2.1, the Preliminary Asset Scheme) and develops the toolkit of site-specific actions (T2.2), framing them within the macro-strategies of defence, adaptation and relocation.
- Architectural design and environmental and applied botany actively participate in defining the Toolkit of Actions (T2.2), ensuring that the strategies outlined are technically feasible and based on principles of resilient design and nature-based solutions.
4.3. WP3: Design Experimentation (Design Phase)
Objective: To develop concrete and innovative design proposals for urban-coastal areas, testing their performance through simulations and evaluating their effectiveness against established objectives.
Main Activities:
- T3.1—Sub-phase 3a|Development of Masterplans for each Target Area, integrating the strategies and actions defined in WP2 into a coherent spatial layout addressing the specific vulnerabilities of each area.
- T3.2—Sub-phase 3b|Detailed design explorations in Architectural Design (resilient building design, adaptive public spaces, water–land interface solutions) and applied Environmental Botany (selection of plant species suited to saline or variable water regimes, design of dunes and coastal wetlands for protection and biodiversity).
Expected Outputs:
- Seven detailed Masterplans (one per target area).
- Specific design documents in architecture and applied environmental botany.
Urban planning ensures the integration and overall consistency of the results. Oversees the development of Masterplans for each Target Area (T3.1), ensuring that the strategies and actions defined in WP2 are translated into a unified spatial layout that responds to territorial vulnerabilities.
Architectural design guides detailed design explorations at the architectural and urban scale (T3.2). Focuses on the design of resilient buildings, the reconfiguration of adaptive public spaces and the development of solutions for the water–land interface (e.g., water–land interface solutions).
Environmental and applied botany provides the essential expertise for Nature-Based Solutions. Develops an eco-logical detailed design (T3.2) by focusing on the selection of plant species suitable for variable or saline water regimes and the design of protective ecosystems such as coastal dunes and wetlands, contributing to coastal defence and biodiversity conservation.
5. Discussion
The analysis activities T 1.1 and T 1.2, attributable to WP1 Analysis and diagnosis of the urban-coastal context (analysis phase), provided an integrated and systemic reading of the territory for each macro-area, aimed at assessing coastal multi-risk.
In order to carry out this assessment, the coastal multi-risk component was first reconstructed by superimposing the polygon of the new coastline in 2100—developed according to the SSP5-8.5 emission scenario [75], which predicts an average sea level rise of 65 cm [22]—and the hydraulic hazard polygons relating to flood scenarios with return periods of 30 years (high hazard) and 100 years (medium hazard), as defined by the Central Apennine Basin Authority in the Flood Risk Management Plan [76].
A quantitative assessment was then carried out to understand systemic vulnerability, by superimposing the coastal multi-risk polygons with the areal and linear layers representing the components of the reference territorial systems, namely the landscape–environmental and historical–cultural values system, the settlement–morphological system and the services and infrastructure system.
Further analysis was carried out between the incidence of the coastal multi-risk component on the urban planning system, to assess the extent to which exposure to multi-risk interferes with the components of the rule of law, i.e., with the provisions contained in the urban planning instruments in force.
This procedure made it possible to compare the physical dimension of vulnerability with the regulatory dimension, providing an integrated assessment that highlighted not only the extent of the compromised areas (in m2), but also the degree of consistency between the permitted transformations and the actual conditions of risk exposure in the various territorial systems.
The GIS processing was carried out using QGIS 3.26.3, using the overlay (intersect) function of the vector layers, which made it possible to quantify the compromised area as a percentage of the total area of each system and to weight the vulnerability in a comparable way between the three macro-areas analysed.
The main thematic layers were represented graphically to make explicit the spatial interaction processes underlying the assessment.
The results of the coastal multi-risk analysis for each target area are presented below in a systematic manner, grouped by macro-area (WP1: T 1.1 and T 1.2), highlighting the degree of systemic compromise observed and the most exposed components.
5.1. Macro-Area A—Figure 6
In Fiumicino, the multi-risk analysis revealed substantial compromise of the landscape–environmental and historical–cultural values system, with 60% of green areas falling within risk zones. The settlement–morphological system shows exposure of 19% of built-up areas, while in the infrastructure and services system, 55% of tourism services, 68% of production areas, and 70% of local roads are affected.
In Isola Sacra, vulnerability is even more pronounced for the landscape–environmental system, with 82% of green areas at risk. The settlement–morphological system exhibits exposure of 60% of the built-up area, while in the infrastructure and services system, tourism-related services are entirely located in potentially flood-prone areas.
Figure 6.
Representation of the relationship between risk components caused by acute and chronic phenomena in Macro-Area A (Fiumicino, Isola Sacra, Ostia Lido). Processed in QGIS 3.26.3 using ESRI Satellite base map. (Prepared by Federico Ianiri).
Figure 6.
Representation of the relationship between risk components caused by acute and chronic phenomena in Macro-Area A (Fiumicino, Isola Sacra, Ostia Lido). Processed in QGIS 3.26.3 using ESRI Satellite base map. (Prepared by Federico Ianiri).

In Ostia Lido, the analysis highlights involvement across all three components: 25% of agricultural land and 20% of green areas are at risk in the landscape–environmental and historical–cultural values system; the settlement–morphological system shows criticality in 10% of historic fabrics; and in the infrastructure and services system, 30% of productive activities, 25% of school facilities, 15% of public services, and 20% of local roads are exposed.
5.2. Macro-Area B—Figure 7
In the territory of Lido di Latina/Centrale, the analysis highlighted high vulnerability across all three systems considered. The landscape–environmental and historical–cultural values system is potentially compromised for 48% of agricultural areas and 29% of green spaces. The settlement–morphological system shows significant criticality, with 79% of built-up areas exposed to risk. The infrastructure and services system also record substantial impacts: 34% of recreational and sports areas, 19% of public parking, 21% of productive areas, and 44% of local roads are affected.
Figure 7.
Representation of the relationship between risk components caused by acute and chronic phenomena in Macro-Area B (Lido di Latina/Centrale, Lago di Fogliano). Processed in QGIS 3.26.3 using ESRI Satellite base map. (Prepared by Federico Ianiri).
Figure 7.
Representation of the relationship between risk components caused by acute and chronic phenomena in Macro-Area B (Lido di Latina/Centrale, Lago di Fogliano). Processed in QGIS 3.26.3 using ESRI Satellite base map. (Prepared by Federico Ianiri).

In the case of Lago di Fogliano, the analysis revealed a situation dominated by compromise of the landscape–environmental and historical–cultural values system, with 30% of agricultural land and approximately 50% of historical assets located in risk-prone areas. The settlement–morphological system is marginally represented due to the absence of widespread construction. However, the infrastructure and services system show evident vulnerabilities: tourism and recreational activities along the coastal margin are entirely exposed, while local roads are compromised by approximately 30%.
5.3. Macro-Area C—Figure 8
In the territory of Lido di Tarquinia, the analysis highlighted a broadly critical scenario, with the landscape–environmental and historical–cultural values system affected in 79% of agricultural areas and the entirety of the archaeological heritage located within risk-prone zones. The settlement–morphological system is also significantly exposed, with 75% of built-up areas impacted. The infrastructure and services system show very high compromise, with 100% of local and urban services and 90% of tourism-related services falling within potentially flood-prone areas.
Regarding the Saline di Tarquinia, the analysis revealed particularly pronounced vulnerability in the landscape–environmental and historical–cultural values system, with 71% of agricultural land and 100% of habitats within the Nature Reserve affected. The settlement–morphological system shows limited exposure, involving 9% of built-up areas, while the infrastructure and services system record the impact of a single urban service.
Figure 8.
Representation of the relationship between risk components caused by acute and chronic phenomena in Macro-Area C (Lido di Tarquinia, Saline di Tarquinia). Processed in QGIS 3.26.3 using ESRI Satellite base map. (Prepared by Federico Ianiri).
Figure 8.
Representation of the relationship between risk components caused by acute and chronic phenomena in Macro-Area C (Lido di Tarquinia, Saline di Tarquinia). Processed in QGIS 3.26.3 using ESRI Satellite base map. (Prepared by Federico Ianiri).

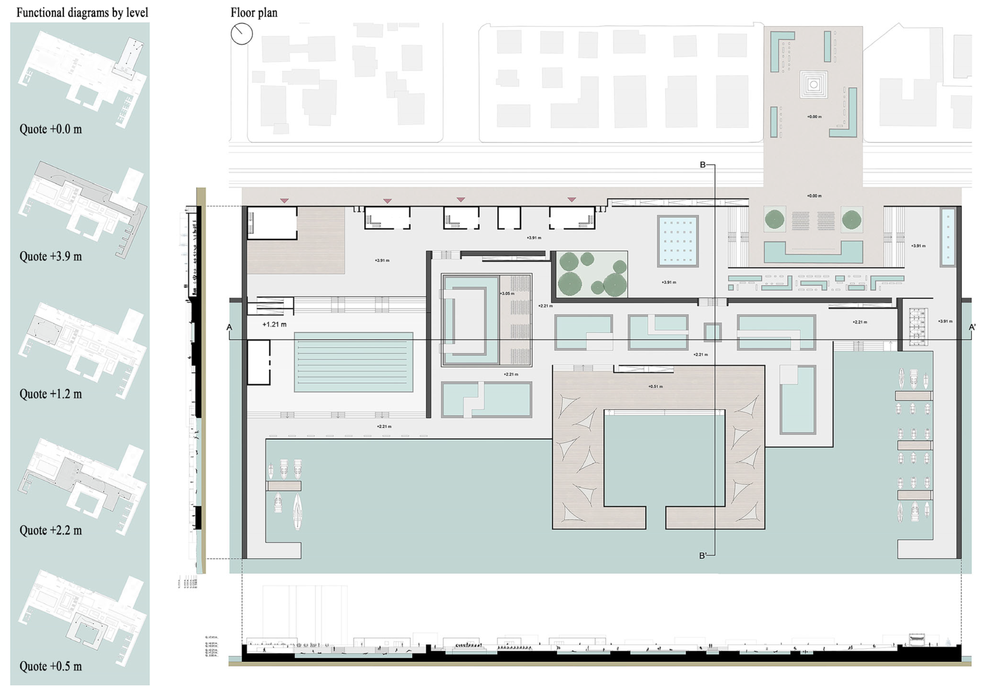
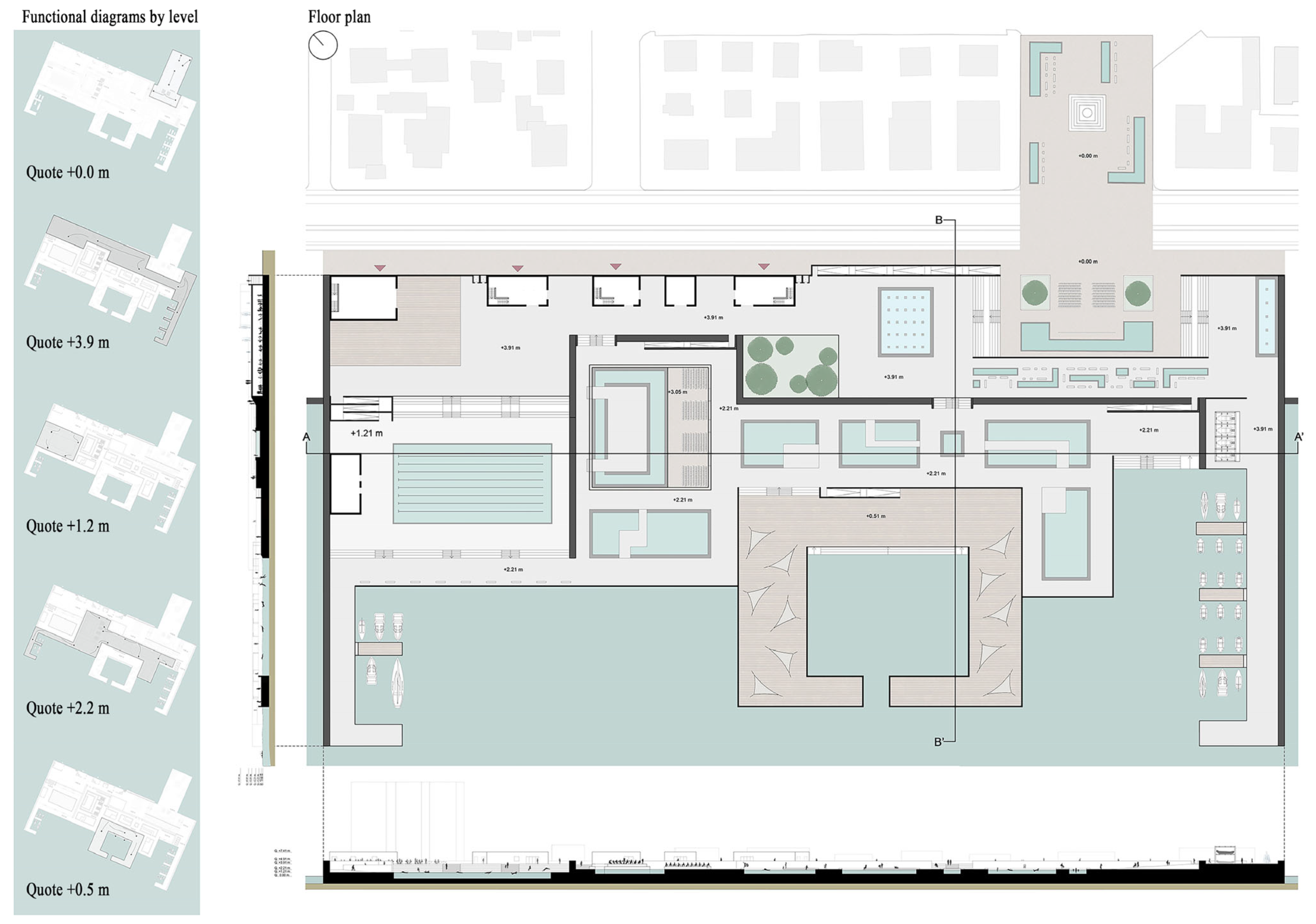
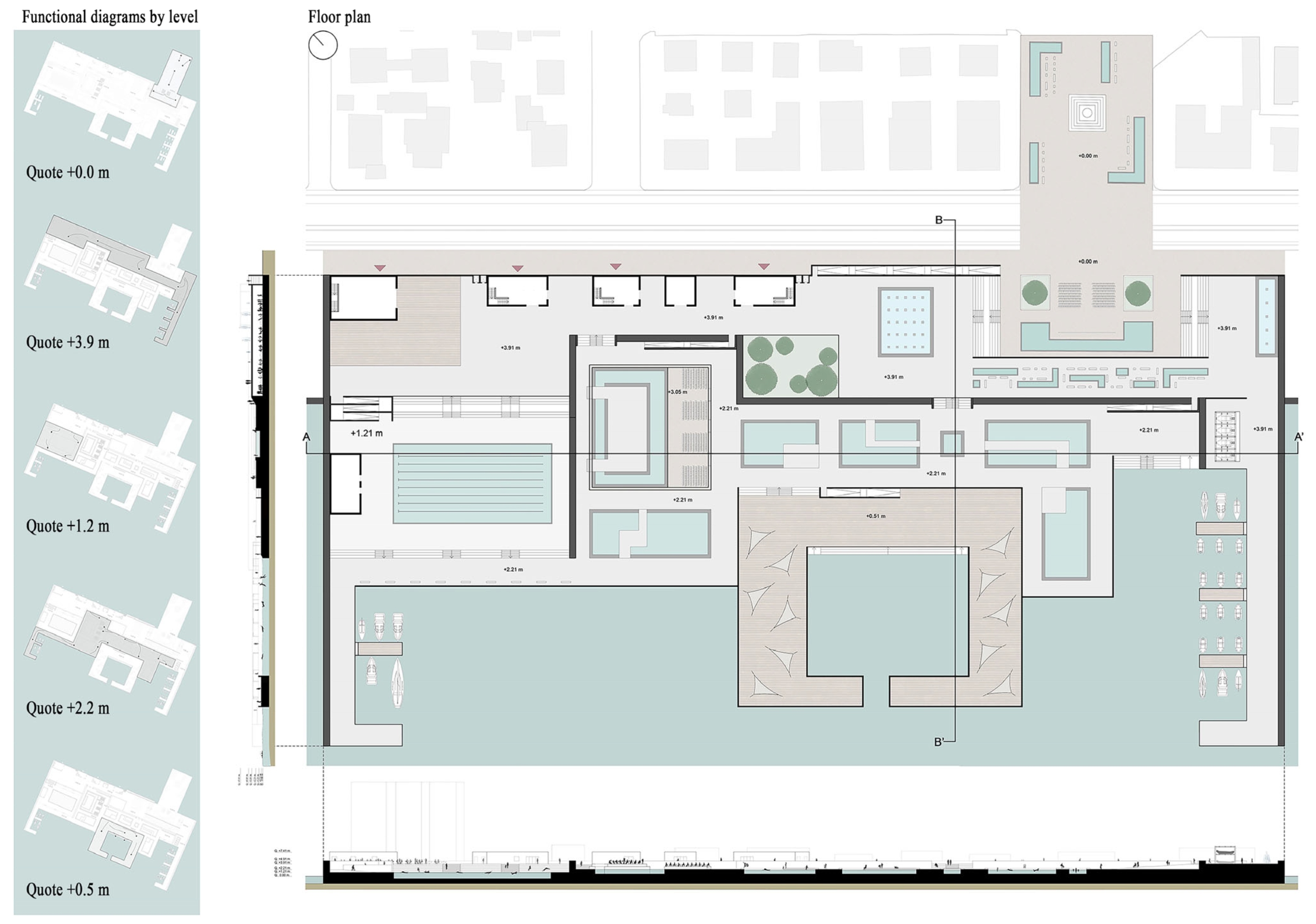
Based on the outcomes of WP1, it was possible to proceed with the activities of WP2: Strategic Definition and Project Objectives (Planning Phase), establishing specific strategies and objectives for each of the seven target areas from Figure 9, Figure 10, Figure 11, Figure 12, Figure 13, Figure 14 and Figure 15 summarized in a Preliminary Layout scheme (T 2.1). These objectives were pursued through site-specific design actions for territorial adaptation to the identified risk phenomena, compiled in a toolkit (T 2.2).
Figure 9.
Preliminary Layout Scheme summarizing strategies and specific objectives for the Fiumicino area. (Prepared by Giulia Mieli).
Figure 10.
Preliminary Layout Scheme summarizing strategies and specific objectives for the Isola Sacra area. (Prepared by Alessandro Sofi).
Figure 11.
Preliminary Layout Scheme summarizing strategies and specific objectives for the Ostia Lido area. (Prepared by Flavia Antonelli).
Figure 12.
Preliminary Layout Scheme outlining strategies and specific objectives for the Lido di Latina/Centrale area. (Developed by Federico Ianiri).
Figure 13.
Preliminary Layout Scheme summarising strategies and specific objectives for the Lago di Fogliano area. (Developed by Nicoletta Taddei).
Figure 14.
Preliminary Layout Scheme summarising strategies and specific objectives for the Lido di Tarquinia area. (Developed by Alessandro Sbardella).
Figure 15.
Preliminary Layout Scheme summarising strategies and specific objectives for the Saline di Tarquinia area. (Developed by Cristina De Angelis).
Table 2 provides a summary of the interventions outlined in the toolkit (WP2: T 2.2) for each of the seven target areas, indicating the main site-specific actions in relation to the primary challenges (sea-level rise and flooding) and succinctly linking them to the macro-strategies of defence, adaptation, and relocation.
Table 2.
Site-specific and Climate-proof interventions proposed within the toolkit (the symbol “✔” indicates within which macro strategy the project action falls, between Defence, Adaptation and Relocation).
Based on the results obtained from WP2, it was then possible to proceed with the activities of WP3: Design Experimentation (Design Phase), the outcomes of which, organized by disciplinary contribution, are described in detail in Section 6.1, Section 6.2 and Section 6.3.
6. Results
This section describes the results of the activities (T 3.1 and T 3.2) of WP3—Design Experimentation (Design Phase), conducted according to a transdisciplinary approach, with the aim of highlighting the contribution that individual disciplines have made to the final spatial configuration of the seven target areas.
Design experimentation represents the final phase of the methodological process, in which the results of the vulnerability analysis (macro scale) are translated into operational strategies (meso scale) and, subsequently, into site-specific design actions (micro scale), consistent with a correct transition from a strategic to an operational and then regulatory dimension of the Local Plan.
The transition between these levels is based on structural consistency between territorial risk diagnosis, urban planning and the definition of architectural and environmental solutions, which aim to reduce exposure and strengthen the resilience of coastal systems.
In this perspective, local planning acts as a translation device between systemic knowledge and operational planning, orienting tools, procedures and interventions consistent with the critical issues that emerged in the analytical phase.
Specifically, Section 6.1 highlights the leading role of urban design in unifying the strategies and actions defined in WP2, translating them into a comprehensive and coherent spatial layout that addresses the specific vulnerabilities of each area.
The Masterplans for each area (grouped by Macro-areas) are briefly presented be-low, highlighting the design characteristics and formal outcomes that most characterise them.
Section 6.2 and Section 6.3 provide more detail on the main design actions for each target area, highlighting their technical and disciplinary characteristics and their consistency with the adaptation strategies defined at the urban planning level.
6.1. The Role of Urban Planning in Governing and Guiding a Resilient Transition
6.1.1. Macro-Area A: Fiumicino
Characterised by high hydraulic and morphological vulnerability, the Fiumicino area is the subject of a Masterplan (Figure 16) that translates this critical issue into a strategy for environmental redevelopment and risk mitigation. The project involves the relocation of settlements most exposed to erosion and sea level rise to areas characterised by greater geomorphological stability. At the same time, it promotes the functional restoration of the dune system, recognising it as a fundamental element in coastal ecosystem regulation. The inclusion of a multifunctional wetland area, with tree species compatible with the potential mature vegetation, acts as an ecological buffer zone, reducing the anthropogenic impact on the coastal environment. To complete the defence system, the project involves the installation of breakwaters oriented to counteract the action of sea currents and promote sedimentation.
Figure 16.
Masterplan of the Fiumicino area. (Developed by Giulia Mieli).
6.1.2. Macro-Area A: Isola Sacra
The Isola Sacra area is systemically vulnerable due to the overlap between hydraulic risk and anthropogenic pressure. The Masterplan (Figure 17) provides for the partial removal of the illegal settlement of Passo della Sentinella and its relocation to areas that are safer from a hydro geomorphological point of view. The part of the settlement that remains in situ introduces the concept of “adaptive settlement”, with dwellings rebuilt on raised platforms supported by poles fixed into the ground, capable of ensuring resilience to flooding events. In addition, the conversion of part of the coastline into a wetland aims to rebalance anthropogenic pressure and strengthen the ecological functionality of the system.
Figure 17.
Masterplan of the Isola Sacra area. (Developed by Alessandro Sofi).
6.1.3. Macro-Area A: Ostia Lido
The Ostia Lido area, an integral part of Rome’s metropolitan coastal urban system, has a complex systemic vulnerability, determined by the coexistence of a consolidated historical fabric, rigid infrastructure and high exposure to sea level rise phenomena. In this context, the Masterplan (Figure 18) adopts an adaptation strategy that favours infra-structural and morphological defence solutions, given the impossibility of relocating significant parts of the built environment.
Figure 18.
Masterplan of the Ostia Lido area. (Developed by Flavia Antonelli).
The proposed “embankment infrastructure” is the centrepiece of the project: a multifunctional barrier that acts as a flood protection element and, at the same time, as a support for the beach and hospitality services originally located on the coastline. The intervention is not limited to physical defence but proposes a morphological reinterpretation of the seafront, which becomes an urban regeneration device capable of integrating landscape, slow mobility and resilient public spaces.
The new urban section of the seafront is structured as an ecological and infrastructural threshold: towards the sea, it acts as a system for absorbing and dissipating wave energy, while towards the city, it becomes a public platform that reorganises coastal functions and reconnects the historic fabric with the coastline.
In this way, the project simultaneously addresses hydraulic vulnerability, infra-structural rigidity and the lack of urban quality, providing an integrated vision of defence, enjoyment and environmental redevelopment.
6.1.4. Macro-Area B: Lido di Latina/Centrale
The Lido di Latina/Centrale area is characterised by complex systemic vulnerability due to a combination of subsidence, coastal erosion and progressive anthropization of the coastline, which have compromised the continuity of the dune and lake ecosystems. The Masterplan (Figure 19) responds to these critical issues by proposing the transformation of the coastline into a “living shoreline”, a paradigm that recognizes the morphological dynamism of the coast as a resource rather than a limitation.
Figure 19.
Masterplan of the Lido di Latina/Centrale area. (Developed by Federico Ianiri).
The progressive retreat of settlements and seaside activities allows for the restoration of natural habitats and the enhancement of biodiversity, promoting a dynamic balance between human use and natural processes.
The intervention also involves the introduction of ecological drainage systems and the reconnection of the wetlands behind them, to strengthen the hydro-morphological resilience of the coastline and promote the natural management of rainwater runoff. Supported by naturalistic engineering and environmental restoration techniques, the project aims to re-establish the coexistence between landscape and settlement, rede-fining the interface between built space and the marine environment.
6.1.5. Macro-Area B: Lago di Fogliano
The Lake Fogliano area is mainly vulnerable in terms of the environment and landscape, due to the loss of continuity between the marine and lake systems and the progressive retreat of the dune system. The Masterplan (Figure 20) focuses on the restoration and stabilisation of this system, achieved through artificial beach nourishment, renaturalization and the planting of native and compatible plant species.
Figure 20.
Masterplan of the Lago di Fogliano area. (Developed by Nicoletta Taddei).
The project is divided into bands of gradual naturalisation, creating a functional transitional ecosystem that acts simultaneously as a natural barrier, an ecological corridor and a controlled recreational area.
The definition of differentiated microhabitats—from embryonic dunes to wet back-dunes—strengthens the system’s absorption and filtration capacity, reducing the impact of marine intrusion phenomena and promoting the restoration of original eco-logical processes. From this perspective, the redevelopment of the lakefront has a dual value: it increases ecological functionality and at the same time enhances the environ-mental heritage as a protective landscape infrastructure.
6.1.6. Macro-Area C: Lido di Tarquinia
The Lido di Tarquinia area exhibits systemic vulnerability resulting from the interaction between high urban density, coastal erosion and the progressive loss of natural barriers. The Masterplan (Figure 21) addresses these critical issues through the creation of an evolutionary coastal system based on the concept of a “living shoreline” and the morphological restoration of the dune front.
Figure 21.
Masterplan of the Lido di Tarquinia area. The green color indicates agricultural areas; the red perimeter indicates the monumental archaeological center; the yellow color indicates “the city of transformation” and the pink color indicates “the city to be renovated—mainly residential”; the blue color indicates private services. The coastline with a return time to 2100 is also shown in red. The purple grid indicates areas subject to demolition with relocation of residents, and the dotted pattern indicates the establishment of a new nature reserve. (Developed by Alessandro Sbardella).
The project involves the restoration of a system of structured dunes divided into vegetation zones, each characterised by botanical species selected to promote the conservation of coastal biodiversity and resilience to extreme weather events.
At the same time, the relocation of the most vulnerable urban centres to geomorphologically safer areas helps to reduce exposure to risk and rebalance the relationship between the city and the marine environment. The new spatial configuration promotes ecological continuity along the coast and the recovery of the identity value of the coastal landscape, within a framework of ecological transition and climate adaptation.
6.1.7. Macro-Area C: Saline di Tarquinia
The Tarquinia Salt Pans are a highly environmentally vulnerable area due to a combination of rising sea levels, salinisation processes and the loss of ecological functionality of the wetland ecosystem. The Masterplan (Figure 22) addresses these critical issues through integrated measures for the protection, renaturalization and functional reactivation of the saline environment.
Figure 22.
Masterplan of the Saline di Tarquinia area. The different colors of the areas refer to the ecosystem services provided by that particular area. The forest absorbs carbon dioxide; the yellow area indicates a source of food for salt marshes with the production of Salicornia; the pink, light green, and beige colors indicate cultural ecosystem services: in those areas, there are wellness trails, walks, and birdwatching activities. (Developed by Cristina De Angelis).
The restoration of the dune system, achieved through environmental engineering techniques and diversified planting, ensures the protection of the historic salt pans and consolidates their resilience. The project also involves the partial reactivation of traditional production activities for recreational and educational purposes, with a view to combining environmental protection with economic and tourist development.
The intervention aims to regenerate a dynamic and multifunctional ecosystem capable of absorbing climatic and anthropogenic pressures, restoring the Reserve’s strategic role in the sustainable management of the Tarquinia coastline and the preservation of the landscape heritage.
6.2. The Contribution of Architectural Design
Regarding the three target areas of Isola Sacra, Ostia Lido, and Lido di Latina/Centrale, the experimentation identified three distinct potential strategies, all closely linked to the specific historical-landscape conditions and the character of each location.
Concerning the relocation of at-risk structures, the design experiments explored solutions that include:
- Floodable base structures with vertical development to reduce land consumption (cf. Lido di Latina/Centrale coastal area).
- Elevation above the ground on pilotis (cf. Isola Sacra coastal area).
- In the case of the Ostia Lido settlement, where relocation was excluded, a multifunctional defence structure was proposed instead—a levee platform articulated on multiple levels to accommodate existing beach facilities.
With reference to the first solution (Figure 23), in the strip subject to sea-level rise along the coastline, the analysis of the historical evolution of the territory highlighted:
Figure 23.
Diagrams, profiles, and elevations of the project for the Lido di Latina/Centrale area. (Developed by Federico Ianiri).
- The importance of geomorphological features and the so-called backdune Tyrrhenian “pools”, depressions in the land that will redefine the configuration of the new coastline due to sea-level rise.
- The presence of defence towers built in different periods, which strongly characterize the landscape.
- The presence of reclamation canals constructed from the late 18th century through 20th-century works.
- Based on these data—and to limit land consumption—it was proposed to relocate the residential fabric at risk of flooding, currently characterized by extensive urbanization patterns similar to sprawl, into vertically developed structures reminiscent of the towers that still punctuate the coastline.
The towers, with “floodable” bases [77] will redefine the relationship between the settlement fabric and the coastline. Strategically located relative to the Tyrrhenian pools—which, with rising sea levels, will form small water basins—the towers will also include canal landing points, effectively transforming the canals into functional transport infrastructures.
With reference to the second solution (Figure 24), in the case of Isola Sacra as well, the relocation of housing units and associated services relied on settlement patterns typical of the local tradition, thus maintaining—albeit reinvented—the relationship between building and sea, between water and construction [78].
Figure 24.
Diagrams, plan, and views of the project for the Isola Sacra area. (Developed by Alessandro Sofi).
The new units are elevated on pilotis, creating a two-level urban landscape: the lower level in contact with the water, featuring a series of landing points for fishing and tourism; the upper level, at a higher elevation, defines a water-facing plaza providing access to residences and services, including a market and artisanal workshops linked to fishing and shipbuilding. The project also includes reinforcement of the existing coastal levee. The proposed solution, though not yet fully detailed, envisions integrating the defence levee with a high-speed vehicular infrastructure, inspired by multifunctional dams designed in the Netherlands by [79,80].
Finally, regarding the third solution (Figure 25), concerning the Ostia Lido settlement, where relocation of the flood-prone urban fabric was excluded, a multifunctional defence structure was proposed. This levee integrates the protection of the settlement with a series of services and open spaces. In this case as well, the reference is to inhabited dams successfully implemented in the Netherlands. It was proposed that, in certain points aligned with the existing urban fabric, the linear defence structure could gain thickness, extending toward the sea and integrating additional functions. This creates a multifunctional “levee-platform”, conceived not merely as a defensive work but as an integrated infrastructure articulated on multiple levels, capable of accommodating beach services and defining a new contemporary public space.
Figure 25.
Diagrams, plan, and sections of the project for the Ostia Lido area. (Developed by Flavia Antonelli).
6.3. The Contribution of Environmental and Applied Botany: Green Infrastructure and Ecosystem Services
With reference to the four target areas of Fiumicino, Lago di Fogliano, Lido di Tarquinia, and Saline di Tarquinia, the preliminary analysis highlighted the potential for recovery and restoration of the dune system and its associated ecosystems.
Accordingly, the proposed toolkit of actions to address climate-related emergencies was based on the creation of green infrastructures as defined by the European Commission: “A strategically planned network of natural and semi-natural areas with other environmental features, designed and managed to deliver a wide range of ecosystem services, while also enhancing biodiversity”.
Considering the structure of the dune, the potential of existing habitats, and the specificities of coastal ecosystems and vegetation series along the Tyrrhenian coast, the recovery and/or restoration of natural areas is designed to provide a set of ecosystem services, as proposed in the Common International Classification of Ecosystem Services (CICES) framework (Version 5.1) (Table 3).
Table 3.
Framework of the Common International Classification of Ecosystem Services (CICES) (Version 5.1) defined based on site-specific actions for the target areas.
Restoration hypotheses were informed by analogous projects developed in similar coastal contexts within the Mediterranean region [81,82,83,84]. The proposed actions do not focus solely on dune system restoration but, where possible, also on the recovery and restoration of connected habitats, such as halophilous and hygrophilous habitats and backdune plains, which synergistically contribute to mitigating sea level rise.
For all actions, an estimate of the time required for implementation was proposed.
We did not estimate or model the quantitative impacts of ecosystem services. Consequently, we did not set quantified targets for environmental interventions to reduce the risks associated with sea-level rise. Further investigation is required to assess the quantitative—and therefore economic—impacts of ecosystem services; this will be ad-dressed in future work.
Given the heterogeneous state of conservation of the dune system, two types of interventions are needed across the three macro-areas:
- Recovery of dune systems compromised by human activity (Figure 26).
Figure 26. Dune profile in the “Lago di Fogliano” area in its current state (upper image) and following the proposed restoration intervention outlined in the toolkit of actions. The upper image indicates the habitats presently occurring, albeit in a suboptimal conservation state. The lower image highlights the habitats that could be restored following the removal of the roadway currently crossing the stable dune, which strongly impacts the communities of habitats 2210 and 2250. Additionally, two habitats are identified that do not strictly belong to the dune system but, together with it, contribute to the provision of numerous ecosystem services (habitats 9340 and 6420). - Restoration of the dune system and other associated habitats (Figure 27).
Figure 27. Representative schematic of the dune system restored following the actions proposed in the toolkit for the Fiumicino area. The schematic shows the reference geosegments (Blasi et al., 2010 [73]) and the habitats that could characterise the dune system within the project area. It also indicates selected indicator species of these habitats, which could be used for the planting of native species.
The first type of intervention is required in the Lago di Fogliano area. Here, in addition to dismantling and removing the most impactful human-made structures and activities, such as the road crossing the stable dune, the restoration of the most affected habitats of the dune and backdune system is suggested, including planting of characteristic species. In the other areas, a series of actions aimed at restoring the dune system and backdune ecosystems is planned, following a fifty-year implementation schedule (Figure 28).
Figure 28.
Timeline of the actions required for the restoration of the dune in the Fiumicino area.
7. Conclusions and Future Developments
In conclusion, it is essential to emphasize that the proposed research is embedded within a broader line of inquiry that the authors have pursued for many years on the theme of climate-proof planning. Therefore, the results must be interpreted through a dual lens.
On one hand, they represent an advancement in applied research. The experimentation along the Lazio coast was explicitly intended to operationalize the theoretical–methodological approach that has been conceptualized, developed, and tested over the years within a concrete territorial context.
On the other hand, these results serve as a starting point for addressing more specific issues that have not yet been explored in detail. These represent a limitation of the present study but also act as a bridge to future developments. Among these, it will be particularly relevant to assess both the variation in the quantity of ecosystem services generated by the proposed measures and the potential reduction in socio-economic costs.
To date, the authors have aimed to demonstrate that the overall adaptive capacity of the regional system to coastal multi-risk (resulting from the interaction between sea level rise and flood events) is achievable only through the construction of an integrated and multiscalar resilience strategy. This strategy must include interrelated site-specific actions rather than isolated interventions that do not communicate with one another. Indeed, the proposed planning actions, although highly localized, do not constitute episodic interventions but rather interconnected components of broader strategies. The need to articulate, for each area, integrated strategies encompassing defence, adaptation, and relocation interventions simultaneously underscores the necessity of moving from the general to the specific and vice versa. Given the a-scalar nature of climate change impacts on the territory, the effectiveness of adaptation measures requires a corresponding a-scalar approach in planning actions. This means that the overall effect on the urban system is ensured by the sum of the specific contributions of individual actions.
The results aim to demonstrate that although the phenomenon affecting the Lazio coast is the same (SLR and flooding), the planning response must be diversified according to the specific characteristics of each territorial context.
7.1. Macro-Area A: Fiumicino, Isola Sacra, and Ostia Lido
In the cases of Fiumicino and Isola Sacra, as well as Ostia Lido (Macro-area A), the risk of significant compromise to the morphological settlement system was identified. However, this was addressed through different planning strategies, consistent with the distinct territorial characteristics. For the settlement of Passo della Sentinella, relocation to a geomorphologically safer area (at a higher elevation) was proposed. In contrast, Ostia Lido was targeted for the construction of a defensive infrastructure to protect the built environment. This strategic divergence was primarily dictated by the nature of the settlements: Passo della Sentinella, illegally developed in a highly vulnerable area at the mouth of the Tiber River, versus Ostia Lido, a consolidated, stratified, and high-density urban area. Consequently, interventions in Ostia Lido aimed to preserve the existing urban structure, while in Passo della Sentinella, the focus was on environmental restoration and relocation of inhabitants and urban functions. See Macro-area A description in Section 6.1 and specific project interventions in Section 6.2 and Section 6.3.
7.2. Macro-Area B: Lido di Latina/Centrale and Lago di Fogliano
The areas of Lido di Latina/Centrale and Lago di Fogliano (Macro-area B) are characterized by a mirrored planning approach. Both areas were targeted for coastal ecosystem restoration, albeit through different strategies.
For Lido di Latina/Centrale, the general strategy involved accommodating geomorphological changes expected by 2100 due to sea level rise, aiming to establish a “living shoreline” (a paradigm that recognizes coastal morphological dynamism as a resource rather than a constraint). This dynamism had previously been interrupted and altered by urbanization that neglected the area’s hydrogeological nature.
In contrast, the strategy for Lago di Fogliano focused not on restoring the original ecosystem (as in Lido di Latina/Centrale) but on preserving it. Here, the advancing coastline threatens the lake’s very existence, which is protected from the sea by a fragile strip of land separating the two ecosystems. The planning strategy included artificial beach nourishment, renaturalization, and planting of native and compatible vegetation species—interventions aimed at slowing and mitigating ecosystem degradation. See Macro-area B description in Section 6.1 and specific project interventions in Section 6.2 and Section 6.3.
7.3. Macro-Area C: Lido di Tarquinia and Saline di Tarquinia
Similarly to the previous areas, Lido di Tarquinia and Saline di Tarquinia exhibit a mirrored planning approach. Lido di Tarquinia involves both dune system restoration and the creation of a “living shoreline”, as well as relocation of the urban settlement to geomorphologically safer areas (similar to Lido di Latina/Centrale). Saline di Tarquinia, on the other hand, focuses on protecting the salt marsh ecosystem from marine intrusion through dune system restoration using environmental engineering techniques and diversified plantings (similar to Lago di Fogliano). See Macro-area C description in Section 6.1 and specific project interventions in Section 6.2 and Section 6.3.
7.4. Integrated, Multidisciplinary, and Multiscalar Approach
The objective of the experimentation was to demonstrate that in the presence of widespread ecosystem degradation caused by climate change, action must be integrated, multidisciplinary, and multiscalar. In fact, each sub-area communicates with the others, as do the three Macro-areas—both in terms of climate change impacts on the territory and in terms of planning responses to those impacts.
The interventions in Fiumicino and Isola Sacra-Fiumicino (specifically Passo della Sentinella, Macro-area A), Lido di Latina/Centrale (Macro-area B), and Lido di Tarquinia (Macro-area C) are similar in that they involve restoring ecosystems to their pre-urbanization state in vulnerable areas unsuitable for human settlement, and relocating urban functions to geomorphologically safer zones. These areas exhibit a predominance of adaptation strategies (e.g., coastal adaptation to natural geomorphological changes in Lido di Latina/Centrale) and relocation strategies (e.g., displacement of settlements in Passo della Sentinella and Lido di Tarquinia).
Conversely, the interventions in Ostia Lido, Lago di Fogliano, and Saline di Tarquinia are characterized by efforts to protect ecosystems from degradation caused by coastal erosion and saline intrusion. These areas predominantly employ defence strategies, such as barrier construction (e.g., the levee infrastructure in Ostia Lido) and dune system restoration through environmental engineering techniques (e.g., in Lago di Fogliano and Saline di Tarquinia).
Based on the foregoing, the authors acknowledge certain points that were not fully addressed and represent potential avenues for future research. Among these is a deeper investigation into the economic, financial, and social feasibility of the proposed solutions, particularly in cases of settlement relocation, which could have complex social and economic implications requiring more detailed analysis. Additionally, it would be useful to further develop long-term monitoring systems to assess the effectiveness of urban regeneration strategies in terms of risk reduction, ecosystem improvement, and socio-economic impacts.
Finally, engagement with local public administrations and representatives of civil society would be desirable to involve them in decision-making and the implementation of the proposed design solutions.
In summary, the research lays a solid foundation for resilient coastal planning while simultaneously opening the way for future developments, primarily oriented toward verifying economic, financial, and social feasibility.
Author Contributions
Conceptualization, C.M., A.D.C., C.V., M.M.A. and M.M.; methodology, C.M. and M.M.; software, C.F., F.I. and M.R.; validation, C.M. and M.M.; format analysis, C.M., C.V., M.M., C.F., F.I. and M.R.; investigation, C.M., M.M., C.F., F.I. and M.R.; resources, C.M., C.V., M.M., C.F., F.I. and M.R.; data curation, C.M., C.V., M.M., C.F., F.I. and M.R.; writing-original draft preparation, C.M., A.D.C., C.V., M.M.A., M.M., C.F., F.I. and M.R.; writing-review and editing, C.M., M.M., C.F., F.I. and M.R.; supervision, C.M.; project administration, C.M.; funding acquisition, C.M. The article results from a joint reflection of the authors; however, Section 1 “Introduction” is attributed to Carmela Mariano; Section 2 “State of the Art: Three Macro-Strategies for Urban Regeneration with an Environmental Approach” is attributed to Marsia Marino and Maria Racioppi; in Section 3 “Materials”, Section 3.1 “Broad-Scale Territorial Framework” is attributed to Carlo Valorani, Section 3.2 “Selection of Case Studies” to Chiara Filicetti, Federico Ianiri, and Maria Racioppi, and Section 3.3 “Environmental Characterisation of the Seven Analysed Case Studies” to Mattia Martin Azzella. Section 4 “Method” is attributed to Carmela Mariano and Marsia Marino; Section 5 “Discussion” to Chiara Filicetti, Federico Ianiri, Marsia Marino, and Maria Racioppi; Section 6 “Results” and Section 6.1 “The Role of Urban Planning in Governing and Guiding a Resilient Transition” to Carmela Mariano and Marsia Marino; Section 6.2 “The Contribution of Architectural Design” to Alessandra De Cesaris; Section 6.3 “The Contribution of environmental and applied botany: Green Infrastructure and Ecosystem Services” to Mattia Martin Azzella; the Conclusions are attributed to Carmela Mariano and Marsia Marino. All authors have read and agreed to the published version of the manuscript.
Funding
Sapienza University of Rome funded this research as part of the Research project “Urban regeneration strategies for climate-proof territories. Tools and methods for the vulnerability assessment and identification of resilience tactics for coastal urban areas subject to sea level rise” Grant RM120172A7DEE5BD (PI Prof. Carmela Mariano) and by the research project “Climate proof planning and resilience strategies for adaptation to the sea level rise phenomenon. Experimentation and innovation of local urban planning in Lazio’s territories at risk” Grant RP12117A7C582F41 (PI Prof. Carmela Mariano).
Institutional Review Board Statement
Not applicable.
Informed Consent Statement
Not applicable.
Data Availability Statement
The original contributions presented in this study are included in the article. Further inquiries can be directed to the corresponding author.
Acknowledgments
The contribution presents the results of activities carried out within the research projects “Urban Regeneration Strategies for Climate-Proof Territories: Tools and Methods for Vulnerability Assessment and the Identification of Resilience Tactics for Coastal Urban Areas Subject to Sea-Level Rise” and “Climate-Proof Planning and Resilience Strategies for Adaptation to Sea-Level Rise: Experimentation and Innovation of the Local Urban Plan in High-Risk Areas of Lazio” (Scientific Supervisor: Carmela Mariano; Team: Alessandra De Cesaris, Carlo Valorani, Mattia Martin Azzella, Marsia Marino, Maria Racioppi, candidate Chiara Filicetti, candidate Federico Ianiri). The research benefited from collaboration with the Climate Modelling and Impacts Laboratory of ENEA (National Agency for New Technologies, Energy and Sustainable Economic Development), which provided data on projected sea-level rise in centimetres by 2100. The experimentation activities involved several students from the Master’s degree program in Architecture–Urban Regeneration (Sapienza University of Rome), within the framework of the thesis laboratory “Urban Regeneration Strategies for Climate-Proof Territories: Resilience Tactics for Coastal Urban Areas Subject to Sea-Level Rise” (Scientific Supervisor: Carmen Mariano). The students contributing to each macro-area were: for Macro-area A: Flavia Antonelli, Giulia Mieli, Alessandro Sofi; for Macro-area B: Federico Ianiri, Nicoletta Taddei; for Macro-area C: Cristina De Angelis, Alessandro Sbardella.
Conflicts of Interest
The authors declare no conflicts of interest.
References
- Alexander, C. A city is not a tree. Archit. Forum 1965, 122, 58–62. [Google Scholar]
- Davoudi, S.; Shaw, K.; Haider, L.J.; Quinlan, A.E.; Peterson, G.D.; Wilkinson, C.; Fünfgeld, H.; McEvoy, D.; Porter, L. Resilience: A bridging concept or a dead end? Plan. Theory Pract. 2012, 13, 308–312. [Google Scholar]
- Chelleri, L.; Waters, J.; Olazabal, M.; Minucci, G. Resilience trade-offs: Addressing multiple scales and temporal aspects of urban resilience. Environ. Urban. 2015, 27, 181–198. [Google Scholar] [CrossRef]
- Meerow, S.; Newell, J.P.; Stults, M. Defining urban resilience: A review. Landsc. Urban Plan. 2016, 147, 38–49. [Google Scholar] [CrossRef]
- Mariano, C.; Marino, M. Sea level rise and regeneration strategies in coastal urban areas: The case of Ravenna. In Proceedings of the Urbanpromo XVII “New Urban Communities and the Strategic Value of Knowledge”, 19 November 2020; Planum Publisher: Rome, Italy, 2020; pp. 1–X. [Google Scholar]
- Brunetta, G.; Caldarice, O.; Russo, M.; Sargolini, M. (Eds.) Resilienza nel Governo del Territorio. In Proceedings of the XXIII Conferenza Nazionale Siu Downscaling, Rightsizing. Contrazione Demografica e Riorganizzazione Spaziale, Torino, Italy, 17–18 June 2021; Planum Publisher: Rome, Italy, 2021; Volume 4. [Google Scholar]
- Savino, M. Introduzione. In Resilienza, Circolarità, Sostenibilità; Moccia, F.D., Sepe, M., Eds.; Urbanistica Informazioni, No. 272, Special Issue: Crisis and Rebirth of Cities; INU Edizioni: Rome, Italy, 2017; p. 219. [Google Scholar]
- IPCC Climate Change 2022: Impacts, Adaptation and Vulnerability. 2022. Available online: https://www.ipcc.ch/report/ar6/wg2/ (accessed on 5 October 2022).
- Mariano, C.; Marino, M. SubLimen landscapes. In MedWays Open Atlas; Ricci, M., Ed.; LetteraVentidue: Siracusa, Italy, 2022. [Google Scholar]
- Latour, B. La Sfida di Gaia: Il Nuovo Regime Climatico; Feltrinelli: Milan, Italy, 2020. [Google Scholar]
- European Commission. European Green Deal. 2019. Available online: https://ec.europa.eu/info/strategy/priorities-2019-2024/european-green-deal_it (accessed on 3 September 2025).
- Horizon Europe. 2021–2027. Available online: https://horizoneurope.apre.it/ (accessed on 12 August 2025).
- Carter, J.G.; Cavan, G.; Connelly, A.; Guy, S.; Handley, J.; Kazmierczak, A. Climate change and the city: Building capacity for urban adaptation. Prog. Plan. 2015, 95 (Suppl. C), 1–66. [Google Scholar] [CrossRef]
- Landauer, M.; Juhola, S.; Klein, J. The role of scale in integrating climate change adaptation and mitigation in cities. J. Environ. Plan. Manag. 2019, 62, 741–765. [Google Scholar] [CrossRef]
- Reckien, D.; Salvia, M.; Heidrich, O.; Church, J.M.; Pietrapertosa, F.; De Gregorio-Hurtado, S.; D’Alonzo, V.; Foley, A.; Simoes, S.G.; Lorencová, E.K.; et al. How are cities planning to respond to climate change? Assessment of local climate plans from 885 cities in the EU-28. J. Clean. Prod. 2018, 191, 207–219. [Google Scholar] [CrossRef]
- IPCC. Climate Change 2013: The Physical Science Basis. In Contribution of Working Group I to the Fifth Assessment Report of the Intergovernmental Panel on Climate Change; Cambridge University Press: Cambridge, UK, 2014; Available online: https://www.ipcc.ch/site/assets/uploads/2018/02/WG1AR5_all_final.pdf (accessed on 10 September 2025).
- UNISDR. Annual Report 2012. 2012. Available online: https://www.undrr.org/publication/unisdr-annual-report-2012 (accessed on 7 July 2025).
- UNFCCC. United Nations Framework Convention on Climate Change. 2021. Available online: https://unfccc.int/resource/docs/convkp/conveng.pdf (accessed on 13 July 2025).
- United Nations. 2030 Agenda for Sustainable Development. 2015. Available online: https://sustainabledevelopment.un.org/content/documents/2125Agenda%20for%20Sustainable%20Development_web.pdf (accessed on 13 July 2025).
- European Environment Agency. Climate Change, Impacts and Vulnerability in Europe. 2016. Available online: https://www.eea.europa.eu/publications/climate-change-impacts-and-vulnerability-2016 (accessed on 5 July 2025).
- Musco, F.; Zanchini, E. Le Città Cambiano il Clima; Corila: Venezia, Italy, 2013. [Google Scholar]
- Mariano, C.; Marino, M.; Pisacane, G.; Sannino, G.M. Sea level rise and coastal impacts: Innovation and improvement of the local urban plan for a climate-proof adaptation strategy. Sustainability 2021, 13, 1565. [Google Scholar] [CrossRef]
- Camera dei Deputati. Servizio Studi. In Proceedings of the Conferenza delle Nazioni Unite sui Cambiamenti Climatici COP25 di Madrid, Madrid, Spain, 2–13 December 2019; Available online: https://temi.camera.it/leg19/dossier/OCD18-13040/conferenza-nazioni-unite-sui-cambiamenti-climatici-cop25-madrid-2-13-dicembre-2019.html (accessed on 12 September 2025).
- European Commission. Forging a Climate-Resilient Europe: The New EU Strategy on Adaptation to Climate Change. 2021. Available online: https://eur-lex.europa.eu/legal-content/EN/TXT/?uri=COM:2021:82:FIN (accessed on 5 March 2022).
- United Nations. Transforming Our World: The 2030 Agenda for Sustainable Development (A/RES/70/1). 2015. Available online: https://sdgs.un.org/2030agenda (accessed on 5 July 2025).
- UNFCCC. Glasgow Climate Pact: Decision-/CMA.3. 2021. Available online: https://unfccc.int/documents/310475 (accessed on 1 June 2025).
- Tyler, S.; Moench, M. A framework for urban climate resilience. Clim. Dev. 2012, 4, 311–326. [Google Scholar] [CrossRef]
- CBD. Connecting Biodiversity and Climate Change Mitigation and Adaptation; Secretariat of the Convention on Biological Diversity: Montreal, QC, USA, 2009.
- IUCN. Ecosystem-Based Approaches to Climate Change Adaptation. 2020. Available online: https://www.iucn.org/theme/ecosystem-management/our-work/ecosystem-based-approaches-climate-change-adaptation (accessed on 5 January 2022).
- UNEP. Making Peace with Nature: A Scientific Blueprint to Tackle the Climate, Biodiversity and Pollution Emergencies; UNEP: Nairobi, Kenya, 2021. [Google Scholar]
- Seddon, N.; Smith, A.; Smith, P.; Key, I.; Chausson, A. Understanding the value and limits of nature-based solutions to climate change and other global challenges. Philos. Trans. R. Soc. B 2020, 375, 20190120. [Google Scholar] [CrossRef] [PubMed]
- Cohen-Shacham, E. Nature-Based Solutions for Disaster Risk Reduction; IUCN & Partnership for Environment and Disaster Risk Reduction: Geneva, Switzerland, 2019. [Google Scholar]
- Kabisch, N.; Frantzeskaki, N.; Pauleit, S.; Naumann, S.; Davis, M.; Artmann, M.; Haase, D.; Knapp, S.; Korn, H.; Stadler, J.; et al. Nature-based solutions to climate change mitigation and adaptation in urban areas: Perspectives on indicators, knowledge gaps, barriers, and opportunities. Ecol. Soc. 2016, 21, 39. [Google Scholar] [CrossRef]
- European Commission. Regulation of the European Parliament and of the Council on Nature Restoration. 2022. Available online: https://eur-lex.europa.eu/resource.html?uri=cellar:f5586441-f5e1-11ec-b976-01aa75ed71a1.0001.02/DOC_1&format=PDF (accessed on 10 June 2025).
- European Commission. Proposal for a Regulation on Nature Restoration (COM(2022) 304 Final) 2022. Available online: https://eur-lex.europa.eu/legal-content/EN/TXT/?uri=celex:52022PC0304 (accessed on 9 June 2025).
- Marino, M. Governare la Transizione: Il Piano Urbanistico Locale Tra Sperimentazione e Innovazione Climate-Proof; FrancoAngeli: Milan, Italy, 2023. [Google Scholar]
- Mariano, C.; Marino, M. Defense, adaptation and relocation: Three strategies for urban planning of coastal areas at risk of flooding. In Proceedings of the Planning, Nature and Ecosystem Services INPUT aCAdemy, Cagliari, Italy, 24–26 June 2019; pp. 704–713. [Google Scholar]
- Council of Europe. European Landscape Convention. 2000. Available online: https://www.iflaeurope.eu/assets/docs/European_Landscape_Convention-Txt-Ref_en.pdf_.pdf (accessed on 10 June 2025).
- INGV. Download Area 1.1. Available online: https://tinitaly.pi.ingv.it/Download_Area1_1.html (accessed on 5 July 2025).
- ISPRA. Corine Land Cover. Available online: https://www.isprambiente.gov.it/it/attivita/suolo-e-territorio/suolo/copertura-del-suolo/corine-land-cover (accessed on 10 July 2025).
- Geoportale Regione Lazio. Patrimonio Geologico. Available online: https://geoportale.regione.lazio.it (accessed on 12 July 2025).
- Comune di Fiumicino. Catasto e Urbanistica. Available online: https://www.comune.fiumicino.rm.it/it/page/catasto-e-urbanistica-165?fromService=1 (accessed on 7 August 2025).
- Piano Regolatore Generale del Comune di Tarquinia. 1975. Available online: https://servizionline.comune.tarquinia.vt.it/cmstarquinia/portale/trasparenza/trasparenzaamministrativadocs.aspx?R=1&CP=131 (accessed on 10 June 2025).
- Comune di Roma. Piano Regolatore Generale di Roma. Available online: http://www.urbanistica.comune.roma.it/prg.html (accessed on 15 July 2025).
- Comune di Latina. Dettaglio Atto. Available online: https://trasparenza.comune.latina.it/web/trasparenza/papca-g/-/papca/display/76441 (accessed on 9 August 2025).
- Provincia di Latina. Sistema Informativo Territoriale(SIT). Available online: https://www.provincia.latina.it/flex/cm/pages/ServeBLOB.php/L/IT/IDPagina/13673 (accessed on 11 August 2025).
- Google Heart. Available online: https://www.google.it/intl/it/earth/index.html (accessed on 18 July 2025).
- Autorità di Bacino dell’Appennino Centrale. Pianificazione. Available online: https://aubac.it/attivita/pianificazione (accessed on 3 August 2025).
- Ministero dell’Ambiente e Della Sicurezza Energetica. Schede e Cartografie. Available online: https://www.mase.gov.it/portale/schede-e-cartografie (accessed on 19 August 2025).
- SIC, ZSC e ZPS in Italia. Available online: https://www.mase.gov.it/portale/sic-zsc-e-zps-in-italia (accessed on 19 August 2025).
- ISTAT. Basi Territoriali e Variabili Censuarie. Available online: https://www.istat.it/notizia/basi-territoriali-e-variabili-censuarie/ (accessed on 3 August 2025).
- Keay, S.; Millett, M.; Strutt, K.; Germoni, P. The Isola Sacra Survey: Ostia, Portus and the Port System of Imperial Rome; McDonald Institute Monographs: Cambridge, UK, 2020. [Google Scholar]
- Mariano, C.; Marino, M. The climate-proof planning towards the ecological transition: Isola Sacra—Fiumicino (Italy) between flood risk and urban development perspectives. Sustainability 2023, 15, 8387. [Google Scholar] [CrossRef]
- Comune di Roma. Piano Regolatore Generale del Comune di Roma: Sistemi e Regole 3.23, Foglio 23; Roma, Italy, 2003. Available online: https://www.comune.veduggioconcolzano.mb.it/s3prod/uploads/ckeditor/attachments/6/5/7/4/9/072000.pdf (accessed on 3 August 2025).
- Antonioli, F.; Anzidei, M.; Amorosi, A.; Presti, V.L.; Mastronuzzi, G.; Deiana, G.; De Falco, G.; Fontana, A.; Fontolan, G.; Lisco, S.; et al. Sea-level rise and potential drowning of the Italian coastal plains: Flooding risk scenarios for 2100. Quat. Sci. Rev. 2017, 158, 14–30. [Google Scholar] [CrossRef]
- Consoli, V.; Fattori, C.; Mancinella, D.; Tufano, M.; Capizzi, D. Dune Costiere. Studio Per L’individuazione Di Nuove Aree Protette Nell’ambiente Dunale Costiero del Lazio. Agenzia Regionale Parchi. 2010. Available online: https://www.parchilazio.it/schede-12503-dune_costiere_studio_per_l_individuazione_di_nuove_aree_protette_nell_ambiente_dunale_costiero_del_l (accessed on 10 June 2025).
- Stanisci, A.; Acosta, A.; Gargini, V.; Fiore, F.; Blasi, C. Zonazione della vegetazione nelle “piscine” dei querceti planiziari del Lazio. Inf. Bot. Ital. 2001, 33, 379–389. [Google Scholar]
- ISPRA. Focus on Water and Urban Environment: State of the Environment 46/13; ISPRA: Rome, Italy, 2013. [Google Scholar]
- Comune di Latina. Piano Regolatore Generale del Comune di Latina; Comune di Latina: Latina, Italy, 1972. [Google Scholar]
- Ministero dell’Agricoltura e delle Foreste. Ministerial Decree, 25 January 1980: Establishment of the “Saline di Tarquinia” Natural Reserve; Ministero dell’Agricoltura e delle Foreste: Rome, Italy, 1980.
- Allavena, S. The Avifauna of Saline di Tarquinia; Scientific Publication or Technical Report. 1976. Available online: https://dspace.unitus.it/handle/2067/1135 (accessed on 10 June 2025).
- Legambiente. Beaches 2022: Report on the Criticalities of the Italian Coasts. 2022. Available online: https://www.legambiente.it (accessed on 10 June 2025).
- Ministero dell’Agricoltura. Ministerial Decree Establishing the “Saline di Tarquinia” Natural Reserve. Gazzetta Ufficiale della Repubblica Italiana. 1980. Available online: https://www.parchilazio.it/documenti/schede/pdf_saline_8_91.pdf (accessed on 9 June 2025).
- European Environment Agency. Natura 2000—Reference Portal. Central Data Repository (CDR)—EionetComune di Tarquinia. 2024. Available online: https://cdr.eionet.europa.eu/help/natura2000 (accessed on 10 June 2025).
- Comune di Tarquinia. Piano Particolareggiato del Lido. Available online: https://servizionline.comune.tarquinia.vt.it/cmstarquinia/portale/trasparenza/trasparenzaamministrativadettaglio.aspx?R=1&CP=131&CDOC=17778 (accessed on 10 June 2025).
- Convention on Biological Diversity (CBD). Convention on Biological Diversity. 1992. Available online: https://www.cbd.int/convention/text/ (accessed on 10 June 2025).
- UNEP; CBD; COP. Report of the Fifth Meeting of the Subsidiary Body on Scientific, Technical and Technological Advice (No. 5, p. 96). In Proceedings of the Conference of the Parties to the Convention on Biological Diversity, Nairobi, Kenya, 26 May 2000; Available online: https://www.cbd.int/meetings/SBSTTA-05 (accessed on 10 June 2025).
- Everard, M.; Jones, L.; Watts, B. Have we neglected the societal importance of sand dunes? An ecosystem services perspective. Aquat. Conserv. Mar. Freshw. Ecosyst. 2010, 20, 476–487. [Google Scholar] [CrossRef]
- Reimann, L.; Vafeidis, A.T.; Brown, S.; Hinkel, J.; Tol, R.S. Mediterranean UNESCO World Heritage at risk from coastal flooding and erosion due to sea-level rise. Nat. Commun. 2018, 9, 4161. [Google Scholar] [CrossRef] [PubMed]
- Blasi, C.; Zavattero, L.; Capotorti, G.; Bonacquisti, S.; Copiz, R.; Del Vico, E.; Facioni, L. Red List of Ecosystems of Italy; IUCN: Geneva, Switzerland, 2023. [Google Scholar]
- Carboni, M.; Carrazza, M.L.; Acosta, A. Assessing conservation status on coastal dunes: A multiscale approach. Landsc. Urban Plan. 2009, 91, 17–25. [Google Scholar] [CrossRef]
- Acosta, A.; Ercole, S.; Stanisci, A.; Pillar, V.D.P.; Blasi, C. Coastal vegetation zonation and dune morphology in some Mediterranean ecosystems. J. Coast. Res. 2007, 236, 1518–1524. [Google Scholar] [CrossRef]
- Blasi, C.; Di Pietro, R.; Filibeck, G.; Filesi, L.; Ercole, S.; Rosati, L. Vegetation series of the Lazio region. In The Vegetation of Italy; Blasi, C., Ed.; Palombi & Partner: Macerata, Italy, 2010; pp. 281–310. [Google Scholar]
- Carter, M.; Ianiri, F.; Mariano, C. Resilience tactics for coastal urban areas: The Marina di Latina and the New York Harbor. Agathon 2024, 16, 156–173. [Google Scholar] [CrossRef]
- IPCC. Synthesis Report: Contribution of Working Groups I, II and III to the Sixth Assessment Report of the Intergovernmental Panel on Climate Change (First); IPCC: Geneva, Switzerland, 2023. [Google Scholar] [CrossRef]
- Autorità di Bacino Distrettuale dell’Appennino Centrale (PGRAAC). Flood Risk Management Plan. 2021. Available online: https://aubac.it/piani-di-bacino/piano-di-gestione-del-rischio-alluvioni-pgra (accessed on 22 July 2025).
- Holl, S. Hybrid Building. 2009. Available online: https://www.stevenholl.com/category_projects/office-hybrid/ (accessed on 25 July 2025).
- The Flood Hub. Property Flood Resilience (PFR) Things to Consider. 2025. Available online: https://thefloodhub.co.uk/blog/property-flood-resilience-pfr-things-to-consider/ (accessed on 10 June 2025).
- DELVA Landscape Architecture Urbanism. Strandeiland ‘Het Oog’—Amsterdam. 2020. Available online: https://delva.la/projecten/ (accessed on 28 July 2025).
- De Urbanisten. River Dike, Rotterdam. 2009. Available online: https://www.urbanisten.nl/work/river-dike-rotterdam (accessed on 29 July 2025).
- Adriadapt. AdriAdapt: A Knowledge Platform on Resilience for Adriatic Cities. 2025. Available online: https://adriadapt.eu/it/ (accessed on 7 August 2025).
- European Commission. Conservation and Recovery of Dune Priority Habitats Among the Sites of Cagliari, Caserta, Matera Provinces. LIFE Public Database. 2025. Available online: https://webgate.ec.europa.eu/life/publicWebsite/project/LIFE07-NAT-IT-000519/conservation-and-recovery-of-dune-priority-habitats-among-the-sites-of-cagliari-caserta-matera-provinces (accessed on 7 August 2025).
- European Commission. De-Urbanizing and Recovering the Ecological Functioning of the Coastal Systems of La Pletera. LIFE Public Database. 2025. Available online: https://webgate.ec.europa.eu/life/publicWebsite/project/LIFE13-NAT-ES-001001/de-urbanizing-and-recovering-the-ecological-functioning-of-the-coastal-systems-of-la-pletera (accessed on 7 August 2025).
- Life Redune. Restoration of Dune Habitats in Natura 2000 Sites of the Veneto Coast. 2025. Available online: http://liferedune.it (accessed on 7 August 2025).
Disclaimer/Publisher’s Note: The statements, opinions and data contained in all publications are solely those of the individual author(s) and contributor(s) and not of MDPI and/or the editor(s). MDPI and/or the editor(s) disclaim responsibility for any injury to people or property resulting from any ideas, methods, instructions or products referred to in the content. |
© 2025 by the authors. Licensee MDPI, Basel, Switzerland. This article is an open access article distributed under the terms and conditions of the Creative Commons Attribution (CC BY) license (https://creativecommons.org/licenses/by/4.0/).




















