Next Article in Journal
Air Pollution in Residential Areas of Monocentric City Agglomerations: Objective and Subjective Dimensions
Previous Article in Journal
From General to Company-Specific Ecodesign Strategies: Developing Guidelines for Eco-Efficient Product Design Across the Entire Product Portfolio of an Appliance Company
 
 
Font Type:
Arial Georgia Verdana
Font Size:
Aa Aa Aa
Line Spacing:
Column Width:
Background:
Article

Innovative Food Packaging with Sensible Design to Reduce Losses and Waste

by
Luiz Eduardo Campos Filho
1,*,
Vitor Hugo Araújo Fernandes Silva
2,
Valentina Vinci
3,
Mariana Hiromi Yokota
2,
Ellen Rodrigues dos Santos
2,
Gabriel Vicente Bitencourt de Almeida
4,
Mariana Pilar Gatani
5,
Maria Teresa de Alvarenga Freire
2 and
Juliano Fiorelli
1
1
Department of Biosystems Engineering, Faculty of Animal Science and Food Engineering, University of São Paulo—USP, Pirassununga 13635-900, Brazil
2
Department of Food Engineering, Faculty of Animal Science and Food Engineering, University of São Paulo—USP, Pirassununga 13635-900, Brazil
3
Secretariat of Science and Technology, Faculty of Architecture, Urbanism and Design, National University of Córdoba, Córdoba 5000, Argentina
4
Companhia de Entrepostos e Armazéns Gerais de São Paulo, São Paulo 05316-900, Brazil
5
Center for Research and Technology Transfer Villa María, National Scientific and Technical Research Council, Córdoba 5000, Argentina
*
Author to whom correspondence should be addressed.
Sustainability 2025, 17(10), 4489; https://doi.org/10.3390/su17104489
Submission received: 7 November 2024 / Revised: 24 January 2025 / Accepted: 12 February 2025 / Published: 15 May 2025
(This article belongs to the Section Sustainable Materials)

Abstract

The search for innovative solutions to reduce food losses and waste remains a priority in the supply chain, yet past research has largely overlooked comprehensive packaging designs that address both operational and environmental challenges. Persistent issues, such as inadequate standardization, poor mechanical resistance, and insufficient ventilation in conventional packaging, significantly contribute to food losses, particularly in transportation and storage stages. Within this scope, this study bridges these gaps by developing differentiated packaging designs tailored to mitigate food losses in the fruits and vegetables (FV) supply chain. Employing a qualitative case study approach, data collection involved interviews, document analysis, and field research at CEAGESP. The findings revealed critical deficiencies in current practices, including fragile materials and ineffective ventilation. In response, five innovative packaging prototypes were developed using Autodesk Inventor and SolidWorks, featuring enhanced mechanical strength, standardized dimensions, and strategic ventilation. These prototypes aim to preserve FV during transport and storage while improving logistical efficiency and sustainability. By presenting practical, eco-efficient packaging solutions, this study advances the field and provides a foundation for future research and industry implementation.

1. Introduction

Food packaging performs essential functions such as holding, protecting, facilitating handling, and conveying information [1]. The protection function encompasses characteristics to reduce food losses and waste, such as mechanical protection, barriers against external agents, and thermal and sealing properties [2]. However, packaging can suffer damage, compromising its protective function, which is to preserve the product against adverse weather conditions, crushing, and other undesirable situations. In addition, packaging design and product appearance are important factors to avoid the negative impact damages have on purchasing decisions [3].
Traditionally, research in this field has explored sustainability by focusing on specific aspects such as material reduction or improved recyclability. For example, ref. [4] proposed an environmental scoring tool for food packaging based on three pillars of sustainability: Materials, Functionality, and Post-Usage Fate. This tool was developed through a participatory process involving experts and end users, translating criteria into a scoring system ranging from 0 (worst) to 1 (best) for each pillar. Applied to three case studies—milk, sugar, and strawberries—the methodology highlighted the critical yet often overlooked role of packaging functionality in food preservation and waste reduction. The developed tool demonstrated accessibility for non-experts, such as food manufacturers and policymakers, offering practical indicators for selecting sustainable packaging options. Such approaches underscore the importance of integrating multiple dimensions of sustainability into packaging design, a perspective that remains underrepresented in contemporary research.
Similarly, ref. [5] developed and validated a packaging innovation scorecard to assess the effectiveness of packaging innovation processes within a retail context, linking these processes to both cost and climate performance. Using a case study methodology with a major retail company, data collection involved semi-structured interviews, workshops, and observations. The results revealed the scorecard’s effectiveness in measuring the complexity of packaging innovation processes, identifying areas for improvement, and benchmarking company performance against best practices. While the scorecard showed promising usability and functionality, the study also emphasized the need for further validation of its long-term impact on action plan formulation and performance outcomes.
Food losses and waste are widely recognized as a significant threat to food security, economic stability, and environmental preservation [6]. It is noteworthy that approximately one-third of all production intended for human consumption, equivalent to 1.3 billion tons of edible food, is wasted along the supply chain every year, which is enough to meet the food needs of approximately one-eighth of the world’s population suffering from malnutrition [7]. Moreover, it represents a significant challenge for the global food demand, which is foreseen to increase to around 150 to 170% of the current need by 2050 [8]. Addressing food waste is a critical component of the United Nations’ Sustainable Development Goal (SDG) 12, particularly target 12.3 [9], which aims to halve per capita food waste by 2030 and minimize losses along the production and supply chain, reinforcing the need for sustainable actions globally.
Searching for progress in the food-loss-and-waste area, a preliminary study conducted on food waste in the European Union found that the largest proportion of food waste originates in households (42%), followed by the distribution sector (39%), food services (14%), and retail and wholesale sales (5%) [10]. In Brazil, this waste revolves around 41,000 tons of food per day, triggered from production to final consumption, with 20% happening in planting and harvesting, 8% in transportation and storage, 15% in industrial processing, 1% in retail, and 17% in final consumption, amounting to nearly 30% of the food produced per year, i.e., 46 million tons [11]. Ref. [12] analyzed the problem of losses and waste of fruit, vegetables, and greens (FV) in Brazil, highlighting that these foods represent a significant part of the total annual waste. Quantitative data estimate that, specifically in this segment, up to 45% of FV production is lost along the supply chain, from harvest to final consumption, with not only economic losses but also environmental and social impacts, considering the volume of natural resources, such as water and land, used to produce these foods. In addition, the qualitative data highlight the importance of policies and practices aimed at valuing and consuming these foods, promoting awareness of the importance of healthy and sustainable eating.
Although Brazil is one of the world’s largest producers of FV, the lack of comprehensive data on losses and waste hinders the formulation of effective strategies to mitigate their social, economic, and environmental impacts. Recent research has identified critical points in the supply chain, contributing to specific solutions. A study conducted by [13] estimated that, over a decade, Brazil lost approximately 143.9 million tons of fruits. The research analyzed the stages of production, transportation, and commercialization, revealing that these losses are associated with factors such as inadequate packaging, inefficient handling, and precarious transportation. This significant volume of losses reflects not only economic waste but also negative impacts on the environment and food security. The authors emphasized the need for public policies aimed at implementing better logistical practices and developing technologies to reduce waste along the production chain.
Ref. [14] presented alarming data on food waste in Brazil, estimating that approximately 27 million tons of food are lost annually. Of this total, 80% of losses occur during handling, transportation, and at supply centers. The study highlighted that inadequate infrastructure, such as insufficient refrigerated transportation and storage facilities, is one of the main factors contributing to these losses. Furthermore, the packaging often fails to provide the necessary protection to preserve FV quality, particularly during long-distance transportation. The author suggests that investments in infrastructure and the use of advanced packaging technologies could significantly reduce waste.
Ref. [15] characterized logistical practices in the distribution of FV at the Campinas Supply Center (Ceasa) in São Paulo. The authors observed that the use of non-refrigerated transportation and inadequate packaging is directly associated with the loss of fresh products. The study also found that many foods are discarded due to physical damage or deterioration, exacerbated by inadequate storage and transportation conditions. The research reinforces the importance of interventions that promote the use of more durable and appropriate packaging, as well as improvements in logistical processes. Such actions could minimize losses along the supply chain while contributing to the sustainability of the food system.
Regarding the context of mitigating food waste by optimizing food packaging, ref. [16] examined the issue of peanut shell disposal in Brazil, where this agro-industrial byproduct was often regarded as a low-value waste, leading to improper disposal and contributing to environmental pollution. The research proposed an innovative solution by transforming peanut shells, which constituted a significant portion of peanut production, into raw material for particleboard manufacturing. This approach not only mitigated disposal-related challenges but also enhanced the value of a material that would otherwise have been incinerated or discarded in landfills. By incorporating peanut shells into production processes, the study contributed to waste reduction and the promotion of sustainable practices in the region, fostering a circular economy that converted waste into valuable resources.
Ref. [17] highlighted the importance of rationally designing packaging for food products to reduce the environmental impact of single-use plastics, especially in beverage packaging. The researchers explored reducing the use of plastics or the lifespan of products simultaneously, keeping open the possibilities of introducing innovative designs to the market and providing consumers with positive experiences. The study results demonstrated the effectiveness of the proposed computational framework for optimizing packaging design. It contributed to more sustainable development in the food industry and facilitated the simulation of coupled mass transfer. This process refers to the simultaneous modeling and analysis of mass transfer in packaging, considering how the interaction between various substances, such as through mass loss (e.g., evaporation of water or migration of compounds), affects the quality and shelf life of packaged food products.
Ref. [18] underscored the importance of developing packaging with effective ventilation to preserve the quality of fresh produce during transportation and storage. Using life cycle analysis, numerical modeling, and multi-scale approaches, the researchers emphasized the need to consider factors such as ventilation, temperature, humidity distribution, and the packaging’s mechanical strength. The authors’ results indicated that the numerical models and multi-scale approaches were essential for evaluating packaging performance, highlighting the logistical aspects, and manufacturing costs, such as the cooling efficiency, to develop quality ventilated packaging in the cold chain.
Ref. [19] studied the need to improve the conservation of perishable products, such as fruit, during storage and transportation. The research focused on the influence of the design of ventilation holes in packaging boxes on their thermal performance. Using Computational Fluid Dynamics (CFD) modeling, different packing box configurations were evaluated experimentally and numerically. The ventilation holes in the packaging box configuration with the best thermal performance were strategically located, with specific dimensions and positions, and the packaging that showed the best results was the one whose fruit reached temperatures 1.5 °C to 5 °C lower than the other configurations after 8 h of cooling.
Ref. [20], focusing on the adoption of sustainable packaging materials, carried out a case study that addressed the complexity of the current scenario in the food packaging industry, highlighting the importance of the packaging designs regarding the aspects of circular economy and sustainability. The authors reported a research gap on the subject and applied the Quality Function Deployment (QFD) method, a methodology that integrates consumer expectations and technical requirements through semi-structured interviews, allowing for the prioritization of customer needs, and the correlation between these needs and product characteristics. The results highlighted the importance of aspects such as “product identification”, “type of food product to be packaged”, and “robustness” for consumer expectations. The analysis revealed that by considering the different needs of users and food products, technical characteristics can be integrated efficiently, prioritizing product safety and considering its conformation in the packaging.
Aiming to identify and analyze the challenges of food packaging in the context of the circular economy, ref. [21] conducted a systematic literature review highlighting the specific challenges that FV packaging presents, such as the need for compostable materials, which turn into humus and do not leave toxic residues when decomposed, becoming a more sustainable option. One given material example was wood, which is used to make cellulose packaging, presenting a more sustainable alternative to plastic, and promoting waste reduction and resource conservation in the food supply chain.
Despite the growing awareness of reducing losses and waste, there is still a lack of research focused in Brazil on food packaging innovation as a strategic solution within the food supply chain. Therefore, this study aimed to develop innovative designs for FV packaging to reduce losses and waste in the food transportation chain. The aim is to provide relevant knowledge that contributes to logistical efficiency, sustainability, and economy in the Brazilian food industry, offering a solid basis for future research and improved practices in the sector.

2. Materials and Methods

In this study, an exploratory and descriptive qualitative approach was adopted, seeking to understand complex issues related to food loss and generate opportunities to solve specific practical problems related to FV losses in the transportation stages.
The study used a bibliographical and theoretical approach, as well as a documentary and case study approach. A literature review with a scientific focus on the subject was carried out. At the same time, the documentary research consisted of statistical data and regulatory documents dealing with the commercialization and usage evolution of different categories of packaging materials supplied by the São Paulo Warehouse Company (CEAGESP) (São Paulo, Brazil).
The research strategy aimed for a more in-depth analysis of FV losses at specific transportation chain stages. A case study with a qualitative approach was considered appropriate for a detailed and contextualized exploration of the dynamics related to food losses and waste. To ensure the depth of the data collected, semi-structured interviews with heavy users of FV packaging were conducted online with small producers using the Google Meet platform. Besides the field research carried out at CEAGESP, documents were analyzed on marketing statistics and the evolution of this type of packaging consumption. This approach enabled the understanding of the main causes of food losses along the supply chain, as well as the essential requirements for developing effective packaging. Figure 1 presents a flowchart of the research stages, in line with [22,23].

2.1. Systematic Literature Review

A systematic literature review was conducted to explore the research landscape on “packaging for fruit and vegetable products” and “circular economy food packaging”. The review was organized into three stages: search, screening, and classification, as described below.

2.1.1. Search Strategy

The literature search was performed in two major academic databases: Web of Science and Scopus. The search strings used were designed to capture studies addressing the research objectives. The parameters for the search process are outlined in Table 1.

2.1.2. Screening Process

The articles retrieved during the search were subjected to a rigorous screening process to ensure relevance to the research focus. Titles, abstracts, and keywords were reviewed to determine alignment with the objectives of the study. Articles were evaluated based on inclusion and exclusion criteria, as summarized in Table 2.

2.1.3. Classification and Organization

The selected articles were systematically organized into thematic areas to facilitate a structured analysis of the literature. The classification was guided by recurring topics and key research questions identified in the selected studies. Table 3 provides an overview of the thematic areas.

2.2. Data Collection

2.2.1. Semi-Structured Interviews

The interviews were conducted under the approval of the Research Ethics Committee (CEP): 28776119.7.0000.5422 using a semi-structured questionnaire to allow for an in-depth exploration of the main issues related to FV packaging. Small producers, distributors, traders, and logistics experts at CEAGESP were selected to provide six varied opinions on current practices and future needs in FV packaging. The questions were carefully designed to address technical aspects, such as weaknesses in present packaging, resistance requirements, and end-user preferences. They included inquiries about the type of fruits and vegetables (FV) produced and packaged, the category of packaging raw materials used (e.g., wood, plastic, cardboard), and the main obstacles faced in using these packaging materials.

2.2.2. Field Research and Document Analysis

The field research aimed to follow in detail the food storage, transportation, and handling processes of daily operational practices at CEAGESP. The stages involved in handling products were monitored from reception to distribution, identifying opportunities for improvement and critical points where packaging plays a crucial role in preserving quality and reducing losses. The parameters presented in [24] (Table 4), which regulates the use of packaging for marketing fresh vegetables, guided this study’s evaluation criteria.

2.3. Sensible Packaging Design

This stage was carried out using SolidWorks 2024, a Computer-Aided Design (CAD) software developed by Dassault Systèmes, and Inventor 2024 (version 2025.2.1), a CAD software from Autodesk, both of which provide professional tools for creating 3D mechanical projects, including designing and modeling parts, as well as product assembly and simulation. Figure 2 illustrates the process of designing optimized packaging models.

3. Results and Discussion

3.1. Systematic Literature Review

The systematic literature review was conducted to map the scientific production on “packaging for fruit and vegetable products” and “circular economy food packaging”. The methodology was structured into stages to identify advancements, research gaps, and opportunities, focusing on the Web of Science and Scopus databases.

3.1.1. Stage 1: Search and Article Selection

The keywords “packaging for fruit and vegetable products” and “circular economy food packaging” were used in search strings applied to the Web of Science and Scopus databases. The period analyzed was from 2014 to 2024, with filters for language (English and Portuguese) and publication type (peer-reviewed articles). The results are presented in Table 5.

3.1.2. Stage 2: Inclusion and Exclusion Criteria

Strict inclusion and exclusion criteria were applied to ensure the relevance of the selected studies. Table 6 outlines the applied criteria.

3.1.3. Stage 3: Classification and Organization

The selected articles were analyzed and classified into thematic categories to identify their main contributions. The findings indicate that most research is concentrated in developed countries, such as the United States and Europe, while Brazil has significantly fewer publications, as shown in Table 7.
The results also revealed three main categories of study, as presented in Table 8.
The analysis of the articles revealed significant efforts to develop packaging solutions for FV that meet sustainability requirements and minimize losses and waste throughout the distribution chain (Table 9). Materials such as bio-based materials and natural composites have emerged as promising alternatives, particularly due to their biodegradability and ability to extend the shelf life of food.
Agricultural residues, such as corn husks and rice husks, have been widely investigated, reinforcing the concept of the circular economy by transforming waste into packaging solutions. Additionally, the application of nanocellulose in conservation films has proven effective in creating physical barriers against moisture and oxygen, which are critical factors for the quality of FV [20,25].
However, a significant gap was observed in studies addressing the Brazilian context, where climatic and logistical conditions pose specific challenges. This highlights the need for local research that incorporates regional materials and accessible technologies tailored to the national market.
Table 9. Potential of alternative materials for sustainable packaging: examples of bio-based composites, agricultural residues, and nanocellulose for food preservation.
Table 9. Potential of alternative materials for sustainable packaging: examples of bio-based composites, agricultural residues, and nanocellulose for food preservation.
Alternative MaterialKey CharacteristicsPotential ApplicationsReferences
Bio-based materials (PLA, PHA)Compostable, biodegradable, and derived from renewable sourcesPrimary packaging for FV[26,27]
Agricultural residue compositesReuse of corn husks, sugarcane bagasse, and rice husksBoxes and trays[28,29]
Residual woodHigh mechanical strength, durabilitySecondary packaging[30,31]
NanocelluloseEnhanced mechanical and barrier propertiesConservation films[20,25]
The growing interest in alternative materials for FV packaging is driven by the need to align sustainability with logistical efficiency requirements. These efforts are increasingly focused on incorporating waste and renewable resources into packaging solutions to enhance environmental performance and reduce dependency on traditional materials like plastic and cardboard. For instance, ref. [30] explored the mechanical properties of wood panels made from forestry residues, demonstrating their application potential in structural packaging solutions. These panels exhibited high strength and durability, reinforcing their suitability for demanding applications while contributing to resource conservation and waste minimization. The study highlighted the dual benefits of integrating forestry residues into packaging: reducing environmental burdens and creating economic opportunities in the forestry sector.
Similarly, ref. [28] analyzed agricultural residues, including corn husks and sugarcane bagasse, for composite material development in packaging. Their research underscored the versatility of these by-products, showing how they can be transformed into eco-friendly alternatives for boxes and trays used in food packaging. By repurposing agricultural waste, this approach contributes to circular economy goals, minimizing the environmental footprint of packaging while providing cost-effective solutions for industry stakeholders. Furthermore, ref. [17] introduced a computational framework that integrates life cycle assessment with mechanical optimization to design eco-friendly packaging. This method allowed for the detailed evaluation and improvement of packaging functionality, balancing environmental impact and mechanical performance. By incorporating sustainability into the core of design processes, this framework offers a roadmap for the next generation of food packaging innovations.
In addition, ref. [32] investigated the application of Oriented Strand Boards (OSB) made from residual balsa wood (Ochroma pyramidale) as secondary display packaging. Their findings demonstrated that OSB panels, manufactured using castor oil-based polyurethane resin, possessed the necessary physical and mechanical properties for applications demanding strength and structural stability. Furthermore, the positive acceptance of the prototype by users emphasized its feasibility as a replacement for conventional materials like cardboard and plastic. This study underscored the role of forestry residues in supporting circular economy strategies, enhancing both environmental sustainability and economic viability in the packaging sector.

3.2. Data Collection

3.2.1. Semi-Structured Interviews

The semi-structured interviews were conducted between October 2020 and February 2022, engaging 10 participants, including small producers, distributors, and logistics experts at CEAGESP. To ensure a diverse range of perspectives, the interviews were conducted using a combination of online platforms, such as Google Meet, and face-to-face interactions. The small producers were based in São Paulo, Piracicaba, and Pirassununga, and primarily dealt with products such as tomatoes, lettuce, wooden packaging (Type K), and plastic packaging. Transportation was carried out using small trucks, with local distribution concentrated around the producing regions, covering an average distance of 200 km. At CEAGESP, which operates as one of the largest wholesale food supply centers in Latin America, the focus was on a broader range of fruits and vegetables, supported by an extensive distribution network that supplies both regional and national markets. The results obtained from the semi-structured interviews (Table 5 and Table 6) revealed a series of challenges faced by stakeholders in the food supply chain. The main concerns were the current packaging’s fragility and lack of standard dimensions. Specifically, during long-distance transportation on highways, whose poor road structure results in vibrations and bumps, current packaging is inadequate to protect food from physical damage. In addition, the interviews explored the strength requirements of packaging, heavy users’ preferences, and desirable FV packaging characteristics (Table 10 and Table 11).
The responses provided a comprehensive understanding of the sector’s needs and expectations concerning food packaging, in line with the study carried out by [33], which portrayed the need for a comprehensive approach to sustainable packaging design, considering aspects such as environmental efficiency, distribution costs, preservation of product quality and ease of use, evaluating the whole properties of the packaging system.

3.2.2. Field Research and Document Analysis

A direct analysis of the operational processes at CEAGESP revealed different types of FV packaging usage, given their size, format, and state of conservation (Figure 3).
Regarding food handling and packaging in the boxes, it was possible to see the occurrence of inadequate procedures that can cause damage to the products, such as the lack of protection provided by the packaging, like the absence of reinforced structures, internal coatings that protect the FV against impacts and vibrations, sealing failures that compromise food integrity, allowing contaminants to enter and affect the product quality and safety, and the lack of stability when stacking the boxes. Moreover, requirements I, II, and IV (external dimensions for stacking, integrity, hygiene, and compliance with sanitary standards) provided by [24] were not fulfilled. In addition, packaging was reused and showed visible deterioration on the surface, caused by inadequate handling practices, leading to possible microbiological contamination and physical damage to the food (Figure 4).
Damaged packaging is repaired and reconditioned at the back of the hall (Figure 5), to be sold to traders for reuse. Furthermore, no hygiene measures were observed during the process of repairing and assembling the reconditioned packaging.
It was observed that the boxes were palletized incorrectly, with excessive stacks arranged on the pallets, which can cause package damage, including dents and breaks that compromise product protection. To top it off, incorrect palletization led to uneven weight distribution, increasing the risk of collapse during transport. This scenario can jeopardize product integrity and increase the contamination risk since damaged packages can allow contaminants to enter the food. In addition, it was shown that the M-boxes can only be stacked with each other, allowing just the vertical transportation of these packages, which makes it difficult to transport different products.
The adopted box arrangement displayed flaws regarding damages to the packaging structure and the food it was supposed to protect. The incorrect box arrangement on the pallets generated excessive pressure points due to the weight concentration in specific pallet areas, which caused deformations and ruptures in the packaging, compromising the integrity of the FV (Figure 6). It must be considered that this condition increases the risk of the stacks collapsing and causing accidents during transportation and storage.
To avoid these problems, palletizing must be carried out strategically. Correct palletization of packaged products requires careful attention to the distribution of packages on pallets, considering their geometry and mass. Packages should not be arranged randomly or without considering their specific characteristics. Planning is crucial to find an arrangement that distributes the weight evenly throughout the pallet. This can be achieved using cross-stacking techniques, where the boxes are arranged in alternating layers, or forming homogeneous blocks, with similar characteristic packages placed together. The field research showed that when stacking the M-boxes, the design limited the compatibility between the packages, allowing only boxes of the same model to overlap. This limitation hindered efficient transportation and also contributed to the arrangement’s instability, thus increasing the risks of falls and additional damage during handling and transportation.
It is important to ensure the packages are properly aligned without significant gaps, which could cause instability in the set (Figure 7). Filler material or containment tapes may also be necessary to reinforce the arrangement’s safety.
The field research conducted at CEAGESP provided a realistic view of the practices adopted and the shortcomings of the current packaging. It highlighted specific areas to be improved and confirmed the statements made in the interviews. Monitoring the stages involved in handling FV packaging made it possible to verify the existence of various flaws, from initial handling to storage and transportation, which compromise the products’ integrity. Damage during handling, sealing failures, and stacking problems were common causes of losses along the supply chain.
The findings of this research align with recent studies highlighting the role of sustainable packaging in the food supply chain. For instance, ref. [34] investigated the contribution of sustainable packaging to the circularity of food supply chains using a multi-criteria decision-making (MCDM) framework. The study addressed the pressing need for sustainable practices within the food industry, particularly in response to increasing environmental concerns and regulatory pressures. Through an extensive literature review, the study emphasized various approaches to sustainable packaging, underscoring its critical role in reducing environmental impact and minimizing food waste. Key findings indicated that sustainable packaging improved recyclability while ensuring food safety and quality throughout the supply chain. Moreover, parameters such as life cycle assessment and recyclability indices were identified as essential for evaluating and enhancing packaging sustainability. Case analyses demonstrated that implementing sustainable packaging solutions effectively fosters circular food supply chains, promoting resource efficiency and environmental sustainability. Finally, the study highlighted the importance of collaboration among supply chain stakeholders to achieve long-term sustainability goals, aligning with consumer preferences for eco-friendly products and reinforcing the necessity of innovative packaging designs.
In this study, it was proposed that the package dimensions be adapted to optimize the structured placement of the packages on the pallets, conferring practicality to the arrangement and ensuring a more varied transport of products. The proposed model has been adapted to dimensions of 40 × 60 cm or 30 × 50 cm to ensure adequate standardization and an efficient design with a support area for overlapping the sides that are shaped to fit securely and precisely with other packages of the same model or with the same standardization, thus ensuring safe and versatile stacking. This is because the packaging was projected with shaped sides to facilitate precise and stable fitting. The standardized dimensions and adjusted design aim to ensure correct alignment of the packages during stacking, distributing the weight evenly and preventing slippage. This proposal aims to improve the stability of packaging stacks during transport and storage, providing greater flexibility in the organization and transport of different types of products and contributing to a more efficient and secure supply chain.
A similar approach was taken by [35], who conducted a literature review and interviews with stakeholders in the food and packaging industry to explore the role of packaging in minimizing food waste throughout the supply chain. The research identified opportunities to reduce food waste through packaging improvements, such as improved protection of fresh produce, design of distribution packaging to reduce damage, and use of retail-ready packaging that minimizes handling. The results highlighted that packaging has a significant impact on reducing food waste, underscoring the importance of considering the product and its packaging as a complete system to optimize sustainability.

3.3. Packaging Design Development

3.3.1. Requirements Analysis

A comprehensive requirements analysis was conducted to identify the essential technical and functional parameters for the packaging prototype development. These parameters included specific challenges and needs observed during data collection and field research, such as mechanical strength, stacking capacity, compatibility with different product types, and compliance to furnish information to develop sensible packaging models. This phase’s technical and functional requirements were a solid basis for designing the prototypes.

3.3.2. Prototype Development

Based on the requirements identified, five packaging prototype models were developed using Dassault Systèmes SolidWorks 2024 and Autodesk Inventor 2024 software. The software allowed for the creation of two-dimensional sketches to build three-dimensional modeled parts using various tools such as movement, rotation, revolution, and cuts, etc. Finally, the product assembling used tools to fit the 3D parts together.
Ref. [36] proposed a methodology that combined eco-design strategies with computer-aided design and engineering tools to redesign plastic packaging for food transportation, emphasizing environmental sustainability. The study highlights the use of R-Plastic, a material aligned with circular economy principles, which combines residual materials and includes a high percentage of recycled high-density polyethylene (HDPE). This approach ensures that the packaging is both recyclable and made from recycled materials. The findings demonstrate that the mechanical properties of virgin HDPE mixed with 30% to 70% recycled HDPE remain comparable, making R-Plastic a viable and sustainable option for packaging design while maintaining structural integrity. The authors carried out iterations to identify opportunities to optimize the packaging in terms of sustainability, which resulted in a more sustainable design that diminished the amount of plastic material used, seeking to mitigate the environmental impact of the food and packaging industries. Bearing this in mind, each prototype developed in this research was carefully designed to address the shortcomings of current packaging and offer proposals for improving the flaws identified. Some shortcomings identified were insufficient packaging resistance to impacts and adverse conditions, such as temperature variations, humidity, and exposure to sunlight; inadequate pressure and compression; lack of adequate sealing, which compromises protection against contamination; and the difficulty of stacking, which causes instability and damage during transportation. Construction details and design features were optimized to ensure effective food protection during transport and storage. The prototypes were subjected to various refinement interactions, with adjustments and modifications made in terms of shape and dimensions to improve the packaging design and functionality, guaranteeing its effectiveness and suitability for the needs of the food industry.
The prototypes were designed to be assembled without the need for screws, which significantly enhances their practicality and usability. This feature not only facilitates easy assembly and disassembly by handlers but also ensures better hygienic standards, as the absence of screws eliminates potential points for dirt accumulation. Additionally, the ease of disassembly allows for more efficient cleaning and maintenance of the packaging, while the developed designs enhance logistical efficiency by enabling compact storage when not in use, optimizing space utilization in transportation vehicles.
The prototype initially developed in this study (Prototype 1) is illustrated in Figure 8 and considers aspects of practicality in handling and maintaining the ventilation of the products.
Practical handling functionality is central to prototype design, incorporating features to facilitate package transportation and handling. The design includes ergonomic handles, shapes that allow efficient stacking, and contact areas that reduce the physical effort required during handling. These features aim to minimize operator fatigue and improve the efficiency of loading and unloading operations, besides ensuring safe package handling.
As for maintaining product ventilation, the prototype was designed to ensure adequate air circulation inside the package. The design includes strategically positioned openings to allow for continuous ventilation, helping to prevent the accumulation of moisture, which can lead to FV deterioration. The openings were sized and located based on airflow and fluid dynamics studies, ensuring that air exchange is efficient in all critical areas of the package [19]. In addition, the openings were designed to maximize ventilation without compromising the package’s structural integrity, ensuring optimal preservation of the products during storage and transport.
Due to issues related to the possibility of losing the fitting structures at the base of Prototype 1 during users’ handling, Prototypes 2 and 3 (Figure 9) were designed to ensure characteristics that would permit the boxes to be handled properly. Prototype 2 was developed with essential aspects for efficiency and safety during the process, with strategically positioned side openings, allowing the operator to position their hands more ergonomically. These openings made it easier to lift and carry the boxes, reducing physical effort and improving control during handling. This design was especially relevant for high-demand environments, where agility and safety are essential.
Prototype 3 features a dismountable packaging design that allows the boxes to be assembled and disassembled at will, offering additional flexibility during transportation and storage. The possibility of disassembling the boxes helps optimize space when they are not in use, facilitating storage and logistics. In addition, Prototype 3 maintains the side openings, combining practical handling with the disassembling advantage, with physical reinforcement to guarantee structural integrity during intensive handling.
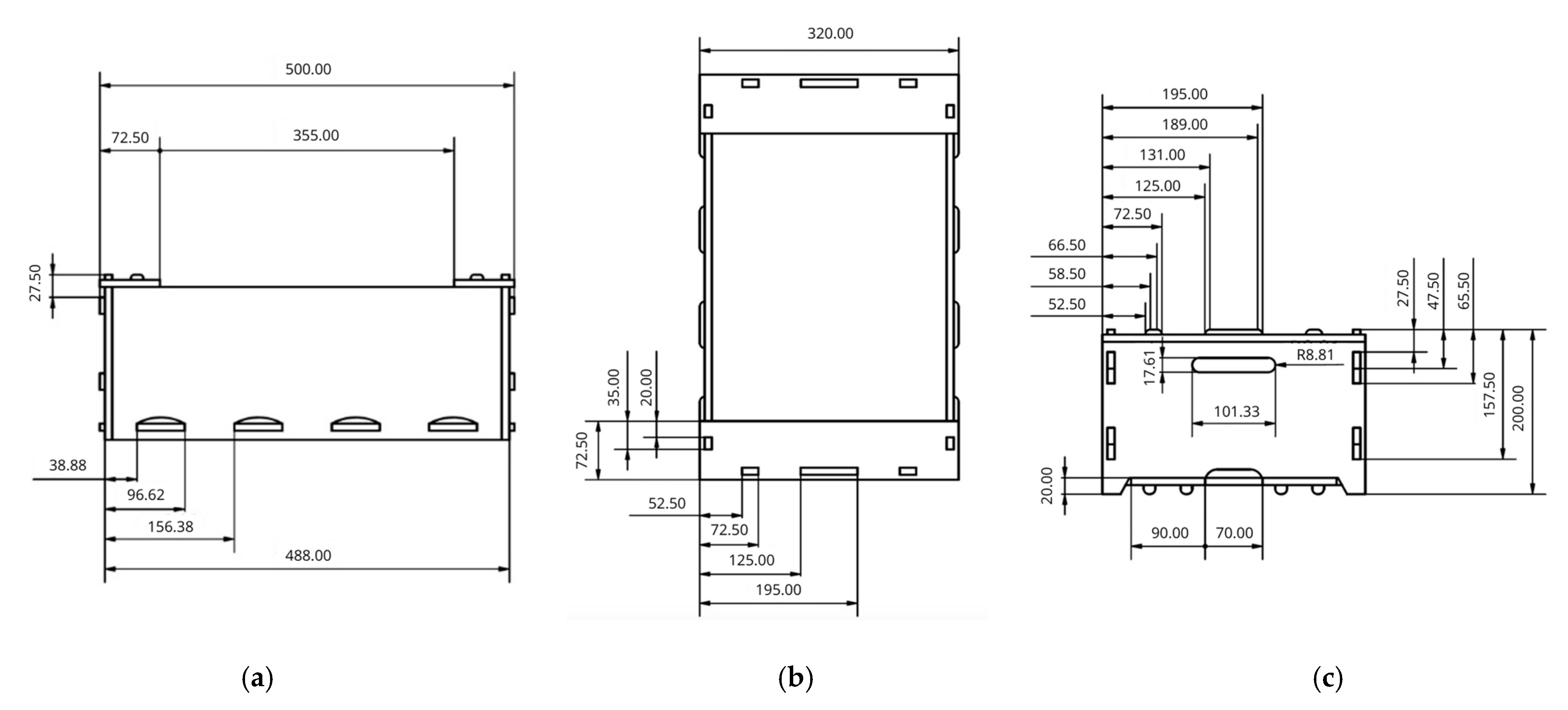
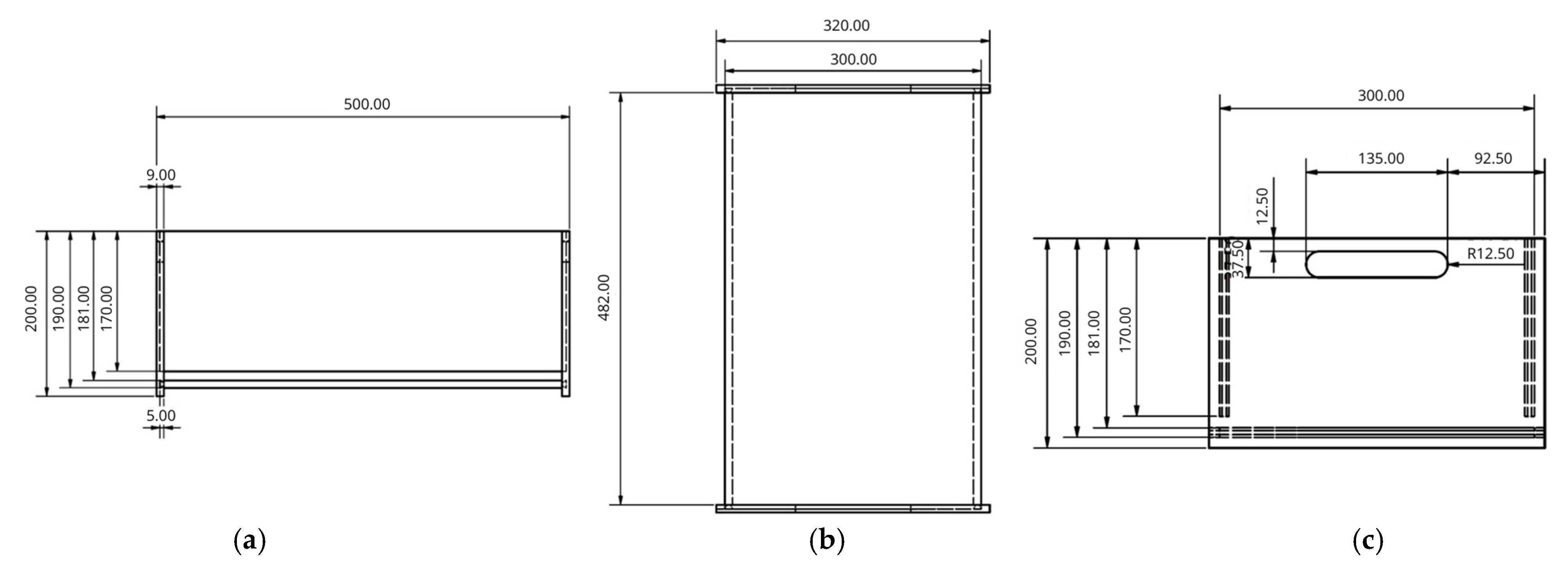
Considering the need to develop a package with a palletizable format and standardized dimensions (30 × 50 cm) to facilitate transport and interchangeability, Prototypes 4 and 5 were designed (Figure 10) to allow other types of packaging and diversifying the food transported in a truck. These prototypes were developed based on the need to insert holes in standardized positions, ensuring adequate ventilation for the food products, as indicated by [19].
Prototype 4 was designed with standardized dimensions to facilitate palletizing and transport, allowing for an efficient arrangement of packages on pallets. This model includes a series of strategically placed holes to ensure adequate ventilation of the products. The constant circulation of air inside the packaging fights off moisture accumulation, which could favor the growth of fungi and bacteria, and by reducing the internal humidity, minimizes the risk of food spoilage, prolonging its shelf life during storage and transport.
Prototypes 5 and 6 offer a modular approach, allowing for interchangeability with different types of packaging and adjusting to various product shapes. The prototypes (4, 5 and 6) were designed to optimize logistics and efficiency in food transport, in line with best practices and industry guidelines.
Based on the semi-structured interviews and document analysis, the dimensions of the prototypes were set at 30 × 50 cm to meet the needs identified (Figure 11, Figure 12 and Figure 13). Given these requirements, the prototypes were developed with a design seeking to ensure the presence of a support surface so that the package sides would allow it to fit securely and precisely with other packages of the same type, providing standardization of different format packaging but with the same dimensions (30 × 50 cm).
The proposed shape on the packaging sides is designed with connections and flaps to enable stable and safe stacking. These flaps are shaped to fit exactly into the corresponding dents in adjacent packages, creating a system that prevents unwanted movement and shifting during transportation and storage. The proposed design ensures the boxes remain aligned and firmly stacked, reducing the risk of product damage and optimizing the use of space in transport.
The designs of Prototypes 4, 5, and 6 corroborate recent studies addressing different types of requirements to develop food packaging. Prototype 4 aims to optimize the FV ventilation by inserting holes sized and distributed on all sides of the package to maximize airflow without compromising its structural strength, as pointed out by [37], who used computational methods to analyze airflow, heat transfer, and resistance to compression in corrugated cardboard packages for fresh fruit. The results indicated a resistance loss of 10–40% with the addition of ventilation holes, but there was a significant increase in cooling rates with up to a 7–8% increase in ventilation area. The importance of multi-parametric approaches to testing the packaging concerning various processes and the need for maximum ventilation without compromising the fruit’s mechanical integrity was highlighted.

4. Conclusions

This study underscores the persistent challenges in the food supply chain arising from inadequate packaging design, as highlighted in the literature over the past decade. Key problems include the fragility of materials, lack of standardization, and limited consideration of ventilation and stacking stability, which collectively contribute to significant food losses. In response, this study developed five innovative packaging prototypes designed to mitigate the identified shortcomings. The designs incorporate standardized dimensions, enhanced structural integrity, and optimized ventilation, addressing both the functional and sustainability requirements of modern supply chains. The findings not only provide a viable solution to reduce food losses and waste but also contribute to advancing knowledge in the domain by bridging the gap between theoretical research and practical application.
Beyond packaging innovations, this research emphasizes the importance of training handlers and workers who interact with tertiary packaging. Proper techniques, understanding packaging limitations, and adherence to hygiene protocols are crucial to ensure these innovations achieve their intended impact. Training programs on the correct use, maintenance, and disposal of packaging can reduce damage, improve hygiene compliance, and enhance supply chain efficiency. Promoting a culture of responsibility and sustainability among handlers further contributes to minimizing food losses and waste.
Future research should explore the scalability and long-term impact of these prototypes, including their adaptability to various food types and their alignment with global sustainability goals. The methodologies and designs presented here lay a solid foundation for further innovations in food packaging, fostering a more resilient and efficient supply chain.

Author Contributions

Conceptualization, J.F., M.T.d.A.F. and L.E.C.F.; Methodology, G.V.B.d.A., L.E.C.F. and E.R.d.S.; Software, V.V. and V.H.A.F.S.; Validation, M.P.G., V.V., M.T.d.A.F. and G.V.B.d.A.; Formal analysis, G.V.B.d.A., J.F. and M.T.d.A.F.; Investigation, L.E.C.F., E.R.d.S., V.H.A.F.S. and M.H.Y.; Resources, J.F. and M.T.d.A.F.; Data curation, L.E.C.F., E.R.d.S., V.H.A.F.S. and M.H.Y.; Writing—original draft preparation, L.E.C.F., V.H.A.F.S. and M.H.Y.; Writing—review and editing, J.F., M.T.d.A.F., M.P.G. and G.V.B.d.A.; Visualization, J.F., M.T.d.A.F. and L.E.C.F.; Supervision, J.F. and M.T.d.A.F.; Project administration, J.F., M.T.d.A.F. and M.P.G.; Funding acquisition, J.F. and M.T.d.A.F. All authors have read and agreed to the published version of the manuscript.

Funding

This study was funded by Fundação de Amparo à Pesquisa do Estado de São Paulo (Fapesp), grant number 2021/08432-3, Conselho Nacional de Desenvolvimento Científico e Tecnológico (CNPq), grant number 405201/2021-4 and 309120/2020-9 and Fundação de Estudos Agrários Luiz de Queiroz (Fealq). This study was partially funded by the Coordenação de Aperfeiçoamento de Pessoal de Nível Superior—Brazil (CAPES) financial code 001.

Institutional Review Board Statement

The study was conducted in accordance with the Declaration of Helsinki, and approved by the Ethics Committee of University of São Paulo—School of Animal Science and Food Engineering (protocol code 28776119.7.0000.5422, approved on 19 February 2020).

Informed Consent Statement

Informed consent was obtained from all subjects involved in the study.

Data Availability Statement

The original contributions presented in this study are included in the article. Further inquiries can be directed to the corresponding author.

Conflicts of Interest

Author Gabriel Vicente Bitencourt de Almeida was employed by the Companhia de Entrepostos e Armazéns Gerais de São Paulo. The remaining authors declare that the research was conducted in the absence of any commercial or financial relationships that could be construed as a potential conflict of interest.

References

  1. Singh, P.; Wani, A.A.; Langowski, H.-C. (Eds.) Food Packaging Materials: Testing & Quality Assurance; CRC Press Taylor & Francis Group: Boca Raton, FL, USA, 2017. [Google Scholar]
  2. Lindh, H.; Williams, H.; Olsson, A.; Wikström, F. Elucidating the Indirect Contributions of Packaging to Sustainable Development: A Terminology of Packaging Functions and Features. Packag. Technol. Sci. 2016, 29, 225–246. [Google Scholar] [CrossRef]
  3. Hosu, A.I.; Glogovetan, A.I.; Pocol, C.B. Consumers perceptions of food sustainable design packaging: A systematic literature review. Sci. Pap. Ser. Manag. Econ. Eng. Agric. Rural. Dev. 2022, 22, 407–416. [Google Scholar]
  4. Frojan, J.; Bisquert, P.; Buche, P.; Gontard, N.; Boone, L.; Nhu Thuy, T.; Vermeulen, A.; Ragaert, P.; Dewulf, J.; Guillard, V. Scoring methodology for comparing the environmental performance of food packaging. Packag. Technol. Sci. 2023, 36, 439–463. [Google Scholar] [CrossRef]
  5. Pålsson, H.; Hellström, D. Packaging innovation scorecard. Packag. Technol. Sci. 2023, 36, 969–981. [Google Scholar] [CrossRef]
  6. Abiad, M.G.; Meho, L.I. Food loss and food waste research in the Arab world: A systematic review. Food Secur. 2018, 10, 311–322. [Google Scholar] [CrossRef]
  7. Gustavsson, J.; Cederberg, C.; Sonesson, U.; SIK—The Swedish Institute for Food and Biotechnology. Global Food Losses and Food Waste; FAO: Rome, Italy, 2011. [Google Scholar]
  8. Diouf, J. FAO’s Director-General on How to Feed the World in 2050. Popul. Dev. Rev. 2009, 35, 837–839. [Google Scholar] [CrossRef]
  9. United Nations. Goal 12: Ensure Sustainable Consumption and Production Patterns. Available online: https://sdgs.un.org/goals (accessed on 10 January 2025).
  10. Monier, V.; Mudgal, S.; Escalon, V.; O’Connor, C.; Gibon, T. Preparatory Study on Food Waste Across EU 27. 2010. Available online: https://op.europa.eu/en/publication-detail/-/publication/c53d0adf-7c3c-4cd4-a457-0df434575263 (accessed on 12 December 2024).
  11. Instituto Brasileiro de Geografia e Estatística (IBGE). Pesquisa de Orçamentos Familiares—POF 2008/2009: Análise do Consumo Alimentar Pessoal no Brasil; IBGE: Rio de Janeiro, Brazil, 2011. [Google Scholar]
  12. Dos Santos, K.L.; Panizzon, J.; Cenci, M.M.; Grabowski, G.; Jahno, V.D. Perdas e desperdícios de alimentos: Reflexões sobre o atual cenário brasileiro. Braz. J. Food Technol. 2020, 23, 1–12. Available online: https://www.scielo.br/j/bjft/a/yhXZXHzvzPTqRWJpLcVt9Bx/?lang=pt (accessed on 10 October 2024). [CrossRef]
  13. Gorayeb, T.C.C.; Martins, F.H.; Costa, M.V.C.G.; Costa Junior, J.G.; Bertolin, D.C.; Dezani, A.A. Study of Fruit Losses and Waste in Brazil. Anais Sintagro. Available online: https://www.fatecourinhos.edu.br/anais_sintagro (accessed on 10 January 2025).
  14. Longo, A.M. Food losses and waste in Brazil: Analysis of causes and possible solutions. J. Logist. Transp. 2022, 18, 45–63. [Google Scholar]
  15. Silva, R.F.; Santos, J.P.; Almeida, M.L. Logistics of FVL distribution and its impacts on losses: A case study at the Campinas/SP Ceasa. J. Food Syst. 2022, 14, 89–102. [Google Scholar]
  16. Gatani, M.P.; Fiorelli, J.; Medina, J.C.; Arguello, R.; Ruiz, A.; Nascimento, M.F.; Savastano, H., Jr. Viabilidade técnica de produção e propriedades de painéis de partículas de casca de amendoim. Rev. Matéria 2013, 18, 1286–1293. [Google Scholar] [CrossRef]
  17. Zhu, Y.; Guillemat, B.; Vitrac, O. Rational design of packaging: Toward safer and ecodesigned food packaging systems. Front. Chem. 2019, 7, 349. [Google Scholar] [CrossRef] [PubMed]
  18. Berry, T.M.; Defraeye, T.; Shrivastava, C.; Ambaw, A.; Coetzee, C.; Opara, U.L. Designing ventilated packaging for the fresh produce cold chain. Food Bioprod. Process. 2022, 134, 121–149. [Google Scholar] [CrossRef]
  19. Ilangovan, A.; Curto, J.; Gaspar, P.D.; Silva, P.D.; Alves, N. CFD modelling of the thermal performance of fruit packaging boxes: Influence of vent-holes design. Energies 2021, 14, 7990. [Google Scholar] [CrossRef]
  20. Kazancoglu, Y.; Ada, E.; Ozbiltekin-Pala, M.; Uzel, R.A. In the nexus of sustainability, circular economy and food industry: Circular food package design. J. Clean. Prod. 2023, 415, 137778. [Google Scholar] [CrossRef]
  21. Ada, E.; Kazancoglu, Y.; Gozacan-Chase, N.; Altin, O. Challenges for circular food packaging: Circular resources utilization. Appl. Food Res. 2023, 3, 100310. [Google Scholar] [CrossRef]
  22. Marconi, M.A.; Lakatos, E.M. Research Techniques: Planning and Execution of Research, Sampling and Research Techniques, Elaboration, Analysis and Interpretation of Data, 5th ed.; Atlas: São Paulo, Brazil, 2002. [Google Scholar]
  23. De Oliveira, S.L. Treatise on Scientific Methodology: Research Projects, Undergraduate Thesis, Monographs, Dissertations, and Theses, 2nd ed.; Pioneira Thomson Learning: São Paulo, Brazil, 2004. [Google Scholar]
  24. Brasil; Secretaria de Agricultura e Reforma Agrária (SARC); Agência Nacional de Vigilância Sanitária (ANVISA); Instituto Nacional de Metrologia, Qualidade e Tecnologia (INMETRO). Instrução Normativa Conjunta SARC/ANVISA/INMETRO nº 009, de 12 de Novembro de 2002; Diário Oficial da União: Brasília, Brazil, 2002. [Google Scholar]
  25. Alzubi, H.; Khan, M.I.; Johnson, R.L. Application of nanocellulose in food packaging: Enhancing barrier properties. J. Nano Mater. Eng. 2022, 15, 334–348. [Google Scholar]
  26. Becker, J.M.; Smith, L.A. Advances in bioplastics for food packaging. Polym. Sci. J. 2020, 45, 123–145. [Google Scholar]
  27. Medina, R.; Pérez, A. The Role of PLA and PHA in Sustainable Food Packaging. Sustain. Mater. J. 2021, 32, 78–96. [Google Scholar]
  28. Silva, F.; Araújo, D.; Costa, M. Agricultural residues as raw materials for packaging composites. Bio-Based Mater. J. 2021, 19, 215–228. [Google Scholar]
  29. Rahkovsky, I.; Nayga, R.M.; Klaiber, H.A. Agricultural residue utilization in the packaging industry: A sustainable approach. Env. Innov. Soc. Trans. 2013, 7, 44–59. [Google Scholar]
  30. Giordano, P.; Castellanos, S.; Neves, M.R. Mechanical properties of residual wood panels for sustainable packaging. Wood Sci. Technol. 2020, 54, 1127–1142. [Google Scholar]
  31. Ada, S.; Muller, A.J.; Zhang, L. Circular economy strategies for residual wood-based packaging. Int. J. Sustain. Prod. Des. 2023, 18, 89–102. [Google Scholar]
  32. Campos Filho, L.E.; Vieira, P.R.; Santos, T.B. Development of display packaging from balsa wood-based OSB panels. J. Sustain. Packag. 2021, 9, 56–71. [Google Scholar]
  33. Svanes, E.; Vold, M.; Møller, H.; Pettersen, M.K.; Larsen, H.; Hanssen, O.J. Sustainable packaging design: A holistic methodology for packaging design. Packag. Technol. Sci. 2010, 23, 161–175. [Google Scholar] [CrossRef]
  34. Zambujal-Oliveira, J.; Fernandes, C. The Contribution of Sustainable Packaging to the Circular Food Supply Chain. Packag. Technol. Sci. 2024, 37, 443–456. [Google Scholar] [CrossRef]
  35. Verghese, K.; Lewis, H.; Lockrey, S.; Williams, H. Packaging’s role in minimizing food loss and waste across the supply chain. Packag. Technol. Sci. 2015, 28, 603–620. [Google Scholar] [CrossRef]
  36. Pérez-Ortega, S.; González-Yebra, Ó.; Oliva, R.; Álvarez, A. Theoretical study for redesign of an agricultural package applying ecodesign strategies and CAD/CAE tools. DYNA 2021, 96, 435–440. [Google Scholar] [CrossRef]
  37. Mukama, M.; Ambaw, A.; Opara, U.L. Advances in design and performance evaluation of fresh fruit ventilated distribution packaging: A review. Food Packag. Shelf Life 2020, 24, 100472. [Google Scholar] [CrossRef]
Figure 1. Research process flowchart highlighting methodological steps and key findings, including identified deficiencies in current packaging and the development of optimized solutions for fruit and vegetable transport. SARC: Secretariat of Agriculture and Agrarian Reform, ANVISA: National Health Surveillance Agency, and INMETRO: National Institute of Metrology, Standardization, and Industrial Quality.
Figure 1. Research process flowchart highlighting methodological steps and key findings, including identified deficiencies in current packaging and the development of optimized solutions for fruit and vegetable transport. SARC: Secretariat of Agriculture and Agrarian Reform, ANVISA: National Health Surveillance Agency, and INMETRO: National Institute of Metrology, Standardization, and Industrial Quality.
Sustainability 17 04489 g001
Figure 2. Phases of packaging design development: integration of requirements analysis and CAD simulations to address ventilation, durability, and stacking stability, reducing food losses in the supply chain.
Figure 2. Phases of packaging design development: integration of requirements analysis and CAD simulations to address ventilation, durability, and stacking stability, reducing food losses in the supply chain.
Sustainability 17 04489 g002
Figure 3. Different types of food packaging. (a) “M-boxes”; (b) “K-boxes”; (c) “Torito boxes”.
Figure 3. Different types of food packaging. (a) “M-boxes”; (b) “K-boxes”; (c) “Torito boxes”.
Sustainability 17 04489 g003
Figure 4. Examples of inadequate FV transport packaging. (a) Guavas packed in wooden crates containing moisture and splinters; (b) Cassava stored in deteriorated wooden crates with mold.
Figure 4. Examples of inadequate FV transport packaging. (a) Guavas packed in wooden crates containing moisture and splinters; (b) Cassava stored in deteriorated wooden crates with mold.
Sustainability 17 04489 g004
Figure 5. Storage place for the damaged packages.
Figure 5. Storage place for the damaged packages.
Sustainability 17 04489 g005
Figure 6. Examples of practices adopted when palletizing FV packages. (a) Physical damage resulting from incorrect palletizing of packages; (b) Packages correctly palletized but without allowing insertion of different format packages.
Figure 6. Examples of practices adopted when palletizing FV packages. (a) Physical damage resulting from incorrect palletizing of packages; (b) Packages correctly palletized but without allowing insertion of different format packages.
Sustainability 17 04489 g006
Figure 7. Example of packaging with arrangement stability.
Figure 7. Example of packaging with arrangement stability.
Sustainability 17 04489 g007
Figure 8. Structure of Prototype 1. (a) Overall view of the packaging; (b) View with emphasis on the parts that make up the structure base.
Figure 8. Structure of Prototype 1. (a) Overall view of the packaging; (b) View with emphasis on the parts that make up the structure base.
Sustainability 17 04489 g008
Figure 9. Structures of Prototypes 2 and 3. If there are multiple panels, they should be listed as: (a) Package developed based on packaging traditionally used in the food industry; (b) Dismountable packaging, joined together by snapping parts.
Figure 9. Structures of Prototypes 2 and 3. If there are multiple panels, they should be listed as: (a) Package developed based on packaging traditionally used in the food industry; (b) Dismountable packaging, joined together by snapping parts.
Sustainability 17 04489 g009
Figure 10. Structures of Prototypes 4, 5, and 6. (a) Packaging with holes for air to pass through; (b) Dismountable package, joined by snapping parts; (c) Interchangeable packaging.
Figure 10. Structures of Prototypes 4, 5, and 6. (a) Packaging with holes for air to pass through; (b) Dismountable package, joined by snapping parts; (c) Interchangeable packaging.
Sustainability 17 04489 g010
Figure 11. Structure of Prototype 4. (a) Front side; (b) Left side; (c) Top view.
Figure 11. Structure of Prototype 4. (a) Front side; (b) Left side; (c) Top view.
Sustainability 17 04489 g011
Figure 12. Structure of Prototype 5. (a) Front side; (b) Left side; (c) Top view.
Figure 12. Structure of Prototype 5. (a) Front side; (b) Left side; (c) Top view.
Sustainability 17 04489 g012
Figure 13. Structure of Prototype 6. (a) Front side; (b) Left side; (c) Top view.
Figure 13. Structure of Prototype 6. (a) Front side; (b) Left side; (c) Top view.
Sustainability 17 04489 g013
Table 1. Systematic literature review parameters: search strategies and results identifying gaps in sustainable and functional packaging research for FV.
Table 1. Systematic literature review parameters: search strategies and results identifying gaps in sustainable and functional packaging research for FV.
ParameterDescription
DatabasesWeb of Science, Scopus
Keywords“packaging for fruit and vegetable products”, “circular economy food packaging”
Publication period2014–2024
LanguageEnglish
Publication typePeer-reviewed articles
Table 2. Criteria for inclusion and exclusion of studies: selection process yielding relevant insights into circular economy applications and food loss prevention.
Table 2. Criteria for inclusion and exclusion of studies: selection process yielding relevant insights into circular economy applications and food loss prevention.
CriterionInclusionExclusion
LanguageEnglish, PortugueseOther languages
RelevanceFocus on sustainable packaging and circular economyUnrelated to food packaging
Type of publicationPeer-reviewed articlesReview articles without empirical data
AccessibilityFull-text availabilityInaccessible articles
Table 3. Thematic areas identified in literature review.
Table 3. Thematic areas identified in literature review.
Thematic AreaDescription
Innovative materialsExploration of alternative materials such as bio-based materials and nanocomposites.
Circular Economy applicationsEvaluation of sustainable practices and lifecycle impacts in packaging.
Food packaging applicationsStudies focused on packaging solutions for fruits and vegetables.
Table 4. Summary of the recommendations stipulated in SARC/ANVISA/INMETRO Joint Normative Instruction No. 009.
Table 4. Summary of the recommendations stipulated in SARC/ANVISA/INMETRO Joint Normative Instruction No. 009.
ItemItem TitleDescriptionObjective
IExternal dimensions for stackingThe external dimensions must allow for stacking, preferably on pallets measuring 1.00 m by 1.20 m.Ensure compatibility with standard pallets, facilitating storage and transportation.
IIIntegrity and hygieneThey must be kept intact and sanitized.Ensure good conditions, free from contamination.
IIIChoice of disposable or returnable packagingThey can be disposable or returnable; the returnable ones must be resistant to handling and sanitizing operations and must not become vehicles for contamination.Offer flexibility and guarantee the durability and safety of returnable packaging.
IVCompliance with health standardsThey must comply with the specific provisions relating to Good Manufacturing Practices (GMP), appropriate use, and hygienic-sanitary standards relating to food, as regulated by Law No. 6437, of 20 August 1977, which provides for infractions of federal sanitary legislation, and Law No. 9782, of 26 January 1999, which defines the National Sanitary Surveillance System and makes other provisions.Comply with safety and hygiene regulations, protecting the health of consumers.
VLabeling and marking requiredMandatory labeling or marking information regarding quantitative, qualitative, and other indications required for the product must comply with specific legislation (Collegiate Board Resolutions 360/2003, 54/2012, 429/2020 and Normative Instruction 1/2000).Ensure regulatory compliance and provide transparency of information.
Table 5. Overview of database queries, search terms, and focus areas, highlighting the scope of studies on sustainable packaging for fruits and vegetables and circular economy applications.
Table 5. Overview of database queries, search terms, and focus areas, highlighting the scope of studies on sustainable packaging for fruits and vegetables and circular economy applications.
DatabaseSearch TermInitial ArticlesAfter Language and Publication Type FiltersPublication PeriodMain Areas of Focus
Web of SciencePackaging for fruit and vegetable products5552632014 to 2024Food Science, Sustainability
Web of ScienceCircular economy food packaging5285282014 to 2024Circular Economy, Packaging Engineering
ScopusPackaging for fruit and vegetable products120012002014 to 2024Materials Engineering, Sustainability
ScopusCircular economy food packaging8508502014 to 2024Circular Economy, Packaging Innovation
Table 6. Inclusion and exclusion criteria applied during the systematic review to ensure relevance and focus on innovations in circular economy and packaging functionality.
Table 6. Inclusion and exclusion criteria applied during the systematic review to ensure relevance and focus on innovations in circular economy and packaging functionality.
CriterionInclusionExclusion
LanguageEnglish, PortugueseOther languages
Publication typePeer-reviewed articlesAbstracts, theses, and conference papers
Thematic relevanceSustainability and circular economyStudies outside the scope
Table 7. Geographic distribution of research publications: concentration of studies in developed countries and limited focus on Brazil’s specific packaging challenges.
Table 7. Geographic distribution of research publications: concentration of studies in developed countries and limited focus on Brazil’s specific packaging challenges.
CountryNumber of PublicationsFocus Area
United States320Sustainable packaging design
Germany150Circular economy applications
Brazil25Use of alternative materials and nanotechnology
Others200Diverse
Table 8. Categorization of reviewed studies: contributions to sustainable material use, mechanical performance, and region-specific logistical improvements in packaging.
Table 8. Categorization of reviewed studies: contributions to sustainable material use, mechanical performance, and region-specific logistical improvements in packaging.
CategoryDescriptionExamples of Studies
Mechanical and functional propertiesEvaluation of alternative materials and packaging technologiesBio-based materials, natural composites
Circular economy applicationsEnvironmental impact and efficiency of packaging throughout the life cycleWaste reduction strategies
Challenges in BrazilStudies focused on specific conditions in the Brazilian marketFV transportation, regional logistics
Table 10. Challenges reported by small producers regarding packaging materials: recurring issues with durability, hygiene, and contamination risks.
Table 10. Challenges reported by small producers regarding packaging materials: recurring issues with durability, hygiene, and contamination risks.
Packaging MaterialMain Obstacles Reported
WoodSplinters, humidity, lack of resistance, accumulation of dirt, cross-contamination, and lack of hygiene.
PlasticLack of control over packaging (no effective system for tracking and managing it), mixing packages of different sizes and weights, and product overload in the same package.
Table 11. Perspectives from CEAGESP stakeholders: insights into current practices and the need for standardized, ventilated, and resilient packaging designs.
Table 11. Perspectives from CEAGESP stakeholders: insights into current practices and the need for standardized, ventilated, and resilient packaging designs.
QuestionSummary of Response
What are the main challenges faced when transporting and storing food?Difficulties with inadequate packaging, damage during transportation, and storage problems.
What are the current practices regarding FV packaging?The use of varied packaging, some inadequate to protect food from damage, such as the lack of effective sealing that leads to contamination, materials that do not offer enough resistance to impacts, and designs that do not guarantee food integrity during transportation and storage.
What are the future needs for FV packaging?There is a need for more resistant, sustainable, and suitable packaging for different food types.
What are end users’ preferences when it comes to packaging?The desire for safe, practical packaging that preserves food quality.
Disclaimer/Publisher’s Note: The statements, opinions and data contained in all publications are solely those of the individual author(s) and contributor(s) and not of MDPI and/or the editor(s). MDPI and/or the editor(s) disclaim responsibility for any injury to people or property resulting from any ideas, methods, instructions or products referred to in the content.

Share and Cite

MDPI and ACS Style

Campos Filho, L.E.; Fernandes Silva, V.H.A.; Vinci, V.; Yokota, M.H.; Rodrigues dos Santos, E.; Bitencourt de Almeida, G.V.; Gatani, M.P.; de Alvarenga Freire, M.T.; Fiorelli, J. Innovative Food Packaging with Sensible Design to Reduce Losses and Waste. Sustainability 2025, 17, 4489. https://doi.org/10.3390/su17104489

AMA Style

Campos Filho LE, Fernandes Silva VHA, Vinci V, Yokota MH, Rodrigues dos Santos E, Bitencourt de Almeida GV, Gatani MP, de Alvarenga Freire MT, Fiorelli J. Innovative Food Packaging with Sensible Design to Reduce Losses and Waste. Sustainability. 2025; 17(10):4489. https://doi.org/10.3390/su17104489

Chicago/Turabian Style

Campos Filho, Luiz Eduardo, Vitor Hugo Araújo Fernandes Silva, Valentina Vinci, Mariana Hiromi Yokota, Ellen Rodrigues dos Santos, Gabriel Vicente Bitencourt de Almeida, Mariana Pilar Gatani, Maria Teresa de Alvarenga Freire, and Juliano Fiorelli. 2025. "Innovative Food Packaging with Sensible Design to Reduce Losses and Waste" Sustainability 17, no. 10: 4489. https://doi.org/10.3390/su17104489

APA Style

Campos Filho, L. E., Fernandes Silva, V. H. A., Vinci, V., Yokota, M. H., Rodrigues dos Santos, E., Bitencourt de Almeida, G. V., Gatani, M. P., de Alvarenga Freire, M. T., & Fiorelli, J. (2025). Innovative Food Packaging with Sensible Design to Reduce Losses and Waste. Sustainability, 17(10), 4489. https://doi.org/10.3390/su17104489

Note that from the first issue of 2016, this journal uses article numbers instead of page numbers. See further details here.

Article Metrics

Back to TopTop