The Conceptualization of a Modular Residential Settlement Project Emerging in a Displacement Situation due to War in the Context of Sustainable Development Requirements
Abstract
1. Introduction
- Utilizing existing and vacant housing stock.
- Creating conditions for emergency housing and subsequently converting established camps.
- Providing access to social housing.
- Supporting housing cooperatives and improving mechanisms for housing access.
2. Materials and Methods
- How can optimal housing conditions be provided quickly and on a large scale?
- What are the basic requirements for refugee housing, and what are the specificities of this type of unit?
- Can displacement situations impact housing development?
- Is it possible to standardize modular housing for the refugee community?
- Does the New European Bauhaus initiative work in a war crisis?
3. Research Status—Literature Review
3.1. Settlements for Displaced Populations
3.2. Modular Construction
3.3. Examples of the Implementation of Social Modular Housing for Refugees and Migrants
3.4. Systemic German Experience with Modular Housing for Refugees
3.5. New European Bauhaus
- Beauty—in the sense of quality of experience, going beyond functionality;
- Sustainable—striving to achieve climate goals and preserve biodiversity;
- Together (social inclusion)—addressing the needs of different social groups, equality, and affordability.
- Return to nature;
- Re-establishing a sense of belonging;
- Prioritizing places and people in greatest need;
- The need for a long-term, circular approach to construction.
4. Results
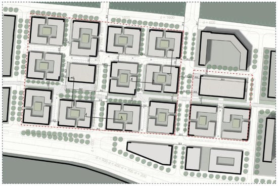
4.1. Characteristics of the “ProModSe” Project
4.2. Implementation of the Principles of the New European Bauhaus Initiative
- Beauty—The layout of public spaces aims to create a hierarchical network conducive to intensifying interpersonal contacts between members of different neighborhood groups. Buildings should be designed with repeatable, industrially produced structural elements, with controlled energy and material consumption throughout the production cycle. The simplicity and functionality of the housing layout should facilitate adaptation to the cultural habits of diverse communities.
- Sustainable Development—Natural components should be treated as an integral part of the urban fabric, ensuring the continuity of natural connections with various biological, hydrological, and climatic functions. Appropriate proportions of biologically active surfaces should be maintained within the blocks and public spaces, and water retention should be ensured. Building materials should be natural, sourced locally, and easily dismantled, recycled, and reused.
- Together (social inclusion)—The size of the settlement unit should depend on the number of residents whose needs can be met within a given dimension and at an acceptable social level. The neighborhood group within its enclave should have space for integration and protection in a crisis. The safety of the family community in the settlement unit should be ensured using structurally reinforced spaces, enabling immediate shelter.
- Reconnection with nature—The concept of proposed public spaces involves their expansion into a network that integrates larger green areas into a system connecting with natural areas. The minimum share of biologically active surfaces in the street cross-section is set at 25%.
- Regaining a sense of belonging—We propose maintaining the scale characteristic of local peripheral development, shaping street spaces with a height appropriate for small urban units, not exceeding three to four stories, and a cross-section in the proportion of h = 2:3.
- Prioritizing the places and people that need it the most—A residential unit consisting of quarter-based neighborhood groups fulfils essential social functions when it accommodates no fewer than 1200–1500 residents divided into neighborhood groups of no more than 300 people.
- Long-term thinking about the life cycle in the industrial ecosystem—We assume the use of prefabricated modular technology with wooden construction and appropriate thermal insulation made of mineral wool or other alternative natural materials. This allows for rapid investment implementation, low production waste, and the possibility of recycling.
5. Discussion
6. Conclusions
- There is a need for settlement arrangements embedded in the urban context, creating neighborhood communities with the prospect of permanent housing.
- Continuous improvement in housing standards is required, including considerations for the variability of family structures, cultural conditions, and environmental needs.
- A systemic and organizational framework for housing policies involving refugee communities, taking into account geopolitical considerations, is required.
- Prefabricated construction emerged as the optimal technological solution for mass construction, emphasizing rapid implementation. However, adapting the production line to the construction site and ensuring production efficiency were necessary conditions for implementation.
- In wartime, safety-related elements are essential, such as the ability to evacuate quickly to a secure shelter. Therefore, certain structural elements, like evacuation shelters, required non-standard construction solutions.
- Given potential threats, the project’s flexibility is crucial, allowing for adaptation to changing conditions and scalability in the future.
- Establishing a technologically consistent urban structure, such as a modular settlement, can effectively increase affordable housing production in various housing markets.
Author Contributions
Funding
Institutional Review Board Statement
Informed Consent Statement
Data Availability Statement
Conflicts of Interest
References
- Hanson, J. Urban transformations: A history of design ideas. Urban Des. Int. 2000, 5, 97–122. [Google Scholar] [CrossRef]
- Monclús, J.; Díez Medina, C. Modernist housing estates in European cities of the Western and Eastern Blocs. Plan. Perspect. 2016, 31, 533–562. [Google Scholar] [CrossRef]
- Tulkowska, K. Masters and teachers, housing innovations in designs of the professors of the Faculty of Architecture in the Warsaw University of Technology at the beginning of the 20th century. In Proceedings of the 4th World Multidisciplinary Civil Engineering-Architecture-Urban Planning Symposium WMCAUS, Prague, Czech Republic, 17–21 June 2019. [Google Scholar] [CrossRef]
- Tažiková, A.; Struková, Z.; Kozlovská, M. An Analysis of Real Site Operation Time in Construction of Residential Buildings in Slovakia. Sustainability 2023, 15, 1529. [Google Scholar] [CrossRef]
- Nazir, F.A.; Edwards, D.J.; Shelbourn, M.; Martek, I.; Thwala, W.D.; El-Gohary, H. Comparison of modular and traditional UK housing construction: A bibliometric analysis. J. Eng. Des. Technol. 2021, 19, 164–186. [Google Scholar] [CrossRef]
- Delleman, J.; Charbonneau, M.; Teng, M.; Jarus, T. Resident Perspectives on Modular Housing: The Need for Progression, Collaboration, and Autonomy. Can. J. Community Ment. Health 2023, 42, 1–15. [Google Scholar] [CrossRef]
- Tažiková, A.; Struková, Z.; Kozlovská, M.; Klosova, D. Potential for the implementation of modular apartment buildings in Slovakia. In Proceedings of the AIP Conference—World Multidisciplinary Civil Engineering-Architecture-Urban Planning Symposium WMCAUS, Prague, Czech Republic, 5–9 September 2022. [Google Scholar] [CrossRef]
- Ghannad, P.; Lee, Y.C.; Choi, J.O. Investigating Stakeholders’ Perceptions of Feasibility and Implications of Modular Construction-Based Post-Disaster Reconstruction. In Proceedings of the Modular and Offsite Construction (MOC) Summit Proceedings, Banff, AB, Canada, 21–24 May 2019; pp. 504–513. [Google Scholar] [CrossRef]
- Chen, D.; Wang, G.; Chen, G. Lego architecture: Research on a temporary building design method for post-disaster emergency. Front. Archit. Res. 2021, 10, 758–770. [Google Scholar] [CrossRef]
- Ghannad, P.; Lee, Y.C.; Choi, J.O. Feasibility and implications of the modular construction approach for rapid post-disaster recovery. Int. J. Ind. Constr. 2020, 1, 64–75. [Google Scholar] [CrossRef]
- Ghannad, P.; Lee, Y.C. Optimizing Modularization of Residential Housing Designs for Rapid Postdisaster Mass Production of Housing. J. Constr. Eng. Manag. 2023, 149, 04023046. [Google Scholar] [CrossRef]
- European Commission. Communication From The Commission To The European Parliament, The Council, The European Economic and Social Committee and the Committee of the Regions. New European Bauhaus. Beautiful, Sustainable, Together. COM/2021/573 Final. Available online: https://eur-lex.europa.eu/legal-content/EN/TXT/?uri=COM%3A2021%3A573%3AFIN (accessed on 22 November 2023).
- Dalal, A. The refugee camp as urban housing. Hous. Stud. 2022, 37, 189–211. [Google Scholar] [CrossRef]
- Cuny, F.C. Refugee camps and camp planning: The state of the art. Disasters 1977, 1, 125–143. Available online: https://shelterprojects.org/other/siteplanning/site-planning-references/Cuny%201977%20Refugee%20camps%20and%20camp%20planning%20-%20the%20state%20of%20the%20art.pdf (accessed on 3 March 2024). [CrossRef]
- Hewton, J.; Vifor, J.R.O.; Singh, R. The effect of dwelling-based and neighbourhood-based precariousness on mental wellbeing. Hous. Stud. 2023, 1–21. [Google Scholar] [CrossRef]
- Andriasyan, M.; Zanelli, A.; Yeghikyan, G.; Asher, R.; Haeusler, H. Algorithmic planning and assessment of emergency settlements and refugee camps. In Proceedings of the 38th eCAADe Conference, Berlin, Germany, 16–18 September 2020. Available online: https://www.researchgate.net/profile/Mesrop-Andriasyan/publication/344284444_Algorithmic_Planning_and_Assessment_of_Emergency_Settlements_and_Refugee_Camps/links/5f634952299bf1b53edb672b/Algorithmic-Planning-and-Assessment-of-Emergency-Settlements-and-Refugee-Camps.pdf (accessed on 3 March 2024).
- Neto, M.; Marum, J.C. Brecha de ciudad (a) nía. La aporía (¿ inevitable?) entre espacios de protección y derechos de ciudadanía en los campos de refugiados en situaciones prolongadas. Rita_Rev. Indexada Textos Académicos 2022, 18, 202–219. [Google Scholar] [CrossRef]
- Rekittke, J. Desperate City Builders. In Informality and the City: Theories, Actions and Interventions; Marinic, G., Meninato, P., Eds.; Springer: Cham, Switzerland, 2022; pp. 421–431. [Google Scholar] [CrossRef]
- Bekta, E.A. Post-Disaster Dilemma: Temporary Settlements in Düzce City, Turkey. In Post-Disaster Reconstruction. Meeting Stakeholder Interests; Alexander, D., Davidson, C.H., Fox, A., Johnson, C., Lizzaralde, G., Eds.; Firenze University Press: Firenze, Italy, 2006; pp. 289–301. Available online: https://library.oapen.org/bitstream/handle/20.500.12657/54813/1/9788884536112.pdf#page=312 (accessed on 3 March 2024).
- Stappers, P.J.; Giaccardi, E. Research through design. In The Encyclopedia of Human-Computer Interaction, 2nd ed.; The Interaction Design Foundation—IxDF: Aarhus, Denmark, 2014; pp. 1–94. Available online: https://www.interaction-design.org/literature/book/the-encyclopedia-of-human-computer-interaction-2nd-ed/research-through-design (accessed on 3 March 2024).
- Niezabitowska, E.D. Research Methods and Techniques in Architecture, 1st ed.; Routledge: London, UK, 2018. [Google Scholar]
- Goncikowski, M. Research by design–determining the form of the initial architectural concept of a skyscraper building in Warsaw. Archit. Eng. Des. Manag. 2024, 20, 1–31. [Google Scholar] [CrossRef]
- Wierzbicka, A.M.; Kryvoruchko, Y.; Trębacz, P.; Jóźwik, R.; Duda, M. Prefabrykacja—Przyszłość odbudowy Ukrainy. Zawód Archit. 2022, 87, 40–42. [Google Scholar]
- Wierzbicka, A.M.; Kryvoruchko, Y.; Trębacz, P.; Jóźwik, R.; Duda, M. Modular Refugee Settlement Project. In Architecture of Challenges—Rebuilding Ukraine; Wierzbicka, A.M., Ed.; Oficyna Wydawnicza Politechniki Warszawskiej: Warsaw, Poland, 2023; pp. 222–227. [Google Scholar]
- Wierzbicka, A.M.; Kryvoruchko, Y.; Trębacz, P.; Jóźwik, R.; Duda, M. Prefabrication—The future of reconstruction in Ukraine. Modular settlement project for war refugees in Ukraine (EIT Community New European Bauhaus—Modular Refugees Settlement Project—ProModSe). In Architecture of Challenges—Rebuilding Ukraine; Wierzbicka, A.M., Ed.; Oficyna Wydawnicza Politechniki Warszawskiej: Warsaw, Poland, 2023; pp. 210–211. [Google Scholar]
- Dantas, A.; Amado, M. Refugee Camp: A Literature Review. J. Urban Plan. Dev. 2023, 149, 03123003. [Google Scholar] [CrossRef]
- Moore, B. Refugee settlements and sustainable planning. Forced Migr. Rev. 2017, 55, 5–7. Available online: https://www.fmreview.org/sites/default/files/FMRdownloads/en/shelter.pdf (accessed on 3 March 2024).
- Ammoun, M.; Uzunoğlu, K. A Study on Flexible Cluster Units for Refugees Camps. Eur. J. Sustain. Dev. 2020, 9, 641. [Google Scholar] [CrossRef]
- Bachour, M.-K. Can Canada become home without a house? The intersectional challenges to housing and settlement among refugees. Hous. Stud. 2023, 1–23. [Google Scholar] [CrossRef]
- Riggs, W.; Sethi, M.; Meares, W.L.; David Batstone, D. Prefab micro-units as a strategy for affordable housing. Hous. Stud. 2022, 37, 742–768. [Google Scholar] [CrossRef]
- FitzGerald, D.S.; Arar, R. The sociology of refugee migration. Annu. Rev. Sociol. 2018, 44, 387–406. [Google Scholar] [CrossRef]
- Kraly, E.P.; Abbasi-Shavazi, M.J.; Torres Colón, L.L.; Reed, H.E. Social Consequences of Forced and Refugee Migration. Annu. Rev. Sociol. 2023, 49, 129–153. [Google Scholar] [CrossRef]
- Valtonen, K. From the margin to the mainstream: Conceptualizing refugee settlement processes. J. Refug. Stud. 2004, 17, 70–96. [Google Scholar] [CrossRef]
- Ashour, L.; Khattab, R.; Yaghi, A.; Qatamin, H. The Climate Change Impact on Refugee Camps, Al Za’atari Case Study. In Resilient and Responsible Smart Cities: The Path to Future Resiliency; Kruger, E.L., Karunathilake, H.P., Alam, T., Eds.; Springer International Publishing: Cham, Switzerland, 2023; pp. 135–141. [Google Scholar] [CrossRef]
- Lim, R.Z.; Looi, D.T.; Tsang, H.H.; Wilson, J.L. A preliminary design tool for volumetric buildings. Struct. Des. Tall Spec. Build. 2022, 31, e1946. [Google Scholar] [CrossRef]
- Hayes, P. Structural design of high rise volumetric building systems using hot-rolled steel. Civ. Eng. 2019, 172, 45–50. [Google Scholar] [CrossRef]
- Gibb, A. Pre-Assembly in Construction: A Review of Recent and Current Industry and Research Initiatives on Pre-Assembly in Construction. 2001. Available online: https://core.ac.uk/reader/288369770 (accessed on 3 March 2024).
- Wuni, I.Y.; Shen, G.Q. Critical success factors for management of the early stages of prefabricated prefinished volumetric construction project life cycle. Eng. Constr. Archit. Manag. 2020, 27, 2315–2333. [Google Scholar] [CrossRef]
- Chougule, A.B.; Chothe, O. Review of Time and Cost Analysis for Prefabricated Prefinished Volumetric Construction (PPVC). In Recent Advances in Structural Engineering and Construction Management: Select Proceedings of ICSMC 2021; Hau, K.K., Gupta, A.K., Chaudhary, S., Gupta, T., Eds.; Springer Nature Singapore: Singapore, 2022; pp. 937–949. [Google Scholar] [CrossRef]
- Chen, C. Advantages and barriers of modular construction method in constructing buildings. Proc. Inst. Civ. Eng. Smart Infrastruct. Constr. 2023, 176, 75–84. [Google Scholar] [CrossRef]
- Building and Construction Authority. Prefabricated Prefinished Volumetric Construction—PPVC. Available online: https://www1.bca.gov.sg/buildsg/productivity/design-for-manufacturing-and-assembly-dfma/prefabricated-prefinished-volumetric-construction-ppvc (accessed on 25 October 2023).
- Lu, W.; Chen, K.; Xue, F.; Pan, W. Searching for an optimal level of prefabrication in construction: An analytical framework. J. Clean. Prod. 2018, 201, 236–245. [Google Scholar] [CrossRef]
- Cao, K.; Zhao, Y. New approaches to the design and public functions of social rental housing. J. Educ. Humanit. Soc. Sci. SSMI 2023, 14, 288. [Google Scholar] [CrossRef]
- Berlin Landesamt für Flüchtlingsangelegenheiten. Modulare Unterkünfte. Available online: https://www.berlin.de/laf/wohnen/allgemeine-informationen/modulare-unterkuenfte/ (accessed on 22 June 2024).
- Sällbo. Ending Loneliness by Living Together. Available online: https://innovationinpolitics.eu/showroom/project/sallbo-ending-loneliness-by-living-together/ (accessed on 22 June 2024).
- Rigot. Collective Dwelling Centre/Acau Architecture. Available online: https://www.archdaily.com/946026/rigot-collective-dwelling-centre-acau-architecture?ad_source=search&ad_medium=projects_tab (accessed on 22 June 2024).
- Szlachetko, K. Zrównoważona polityka oświetlenia zewnętrznego w mieście. Studium przypadku Kopenhagi. Stud. Iurid. Toruniensia 2023, 32, 225–247. [Google Scholar] [CrossRef]
- Behmer-Prinz, K.; Bergedieck, A.; Rosenow-Williams, K. Die Praxis der kommunalen Unterbringung von geflüchteten Menschen: Eine akteurszentrierte Analyse der Umsetzung von Schutzstandards zwischen 2015 und 2020. Humanit. Völkerrecht 2022, 5, 14–35. [Google Scholar] [CrossRef]
- Kleilein, D. Modulare Unterkünfte für Flüchtlinge in Berlin. Bauwelt 2016, 28–29, 34–37. Available online: https://www.bauwelt.de/themen/bauten/Modulare-Unterkuenfte-Fluechtlinge-Containerdoerfer-Berlin-Wohnraum-AIM-archutektur-management-2624356.html (accessed on 3 March 2024).
- Senatsverwaltung für Stadtentwicklung, Bauen und Wohnen. Modulare Unterkünfte für Flüchtlinge. Available online: https://www.berlin.de/sen/bauen/hochbau/soziales/ (accessed on 22 June 2024).
- Rosado-García, M.J.; Kubus, R.; Argüelles-Bustillo, R.; García-García, M.J. A new European Bauhaus for a culture of transversality and sustainability. Sustainability 2021, 13, 11844. [Google Scholar] [CrossRef]
- Bento, J. Architectural Policies in Europe: An Overview. UCL Bartlett Faculty of the Building Environment, Bartlett School of Planning. 2022. Available online: https://roac.ca/wp-content/uploads/2023/03/Rise_for_Architecture_Appendix_7_Independent_Research_on_the_Development_of_Architecture_Policies.pdf (accessed on 3 March 2024).
- European Commission. Level(s) Common Framework Documents European Commission Product Policy Bureau. 2021. Available online: https://susproc.jrc.ec.europa.eu/product-bureau/product-groups/412/documents (accessed on 25 October 2023).
- De Wolf, C.; Cordella, M.; Dodd, N.; Byers, B.; Donatello, S. Whole life cycle environmental impact assessment of buildings: Developing software tool and database support for the EU framework Level (s). Resour. Conserv. Recycl. 2023, 188, 106642. [Google Scholar] [CrossRef]
- Trębacz, P. Standards for creating a modular settlement for refugees in the context of the values embodied in the New European Bauhaus. In Architecture of Challenges—Rebuilding Ukraine; Wierzbicka, A.M., Ed.; Oficyna Wydawnicza Politechniki Warszawskiej: Warsaw, Poland, 2023; pp. 200–201. [Google Scholar]
- Ingaramo, R.; Negrello, M. ‘Surviving the City’. Nature as an Architecture Design Strategy for a More Resilient Urban Ecosystem. In Green Infrastructure: Planning Strategies and Environmental Design; Springer International Publishing: Cham, Switzerland, 2023; pp. 139–150. [Google Scholar] [CrossRef]
- Vukmirović, M.; Radić, B.; Gavrilović, S.; Jovanović, A. Design proposal development for a more liveable open public space. IOP Conf. Ser. Earth Environ. Sci. 2023, 1196, 012077. [Google Scholar] [CrossRef]
- Di Bucchianico, G. Design for inclusion. Different approaches for a shared goal. In Advances in Industrial Design: Proceedings of the AHFE 2021 Virtual Conferences on Design for Inclusion, Affective and Pleasurable Design, Interdisciplinary Practice in Industrial Design, Kansei Engineering, and Human Factors for Apparel and Textile Engineering, USA 25–29 July 2021; Springer International Publishing: Berlin/Heidelberg, Germany, 2021; pp. 225–232. [Google Scholar] [CrossRef]
- Sadowski, K. Implementation of the new european bauhaus principles as a context for teaching sustainable architecture. Sustainability 2021, 13, 10715. [Google Scholar] [CrossRef]
- Xhexhi, K. In the Traces of Bioclimatic Architecture. In Ecovillages and Ecocities: Bioclimatic Applications from Tirana, Albania; Springer International Publishing: Cham, Switzerland, 2023; pp. 109–147. [Google Scholar] [CrossRef]
- Jakica, N.; Di Bitonto, M.G. Lightweight Environmental Architecture. In Lightweight Energy: Membrane Architecture Exploiting Natural Renewable Resources; Springer International Publishing: Cham, Switzerland, 2022; pp. 47–92. [Google Scholar] [CrossRef]
- Couvelas, A. Bioclimatic building design theory and application. Procedia Manuf. 2020, 44, 326–333. [Google Scholar] [CrossRef]
- Lützkendorf, T.; Foliente, G.; Balouktsi, M.; Wiberg, A.H. Net-zero buildings: Incorporating embodied impacts. Build. Res. Inf. 2015, 43, 62–81. [Google Scholar] [CrossRef]
- Attia, S. Net Zero Energy Buildings (NZEB): Concepts, Frameworks and Roadmap for Project Analysis and Implementation; Butterworth-Heinemann: Oxford, UK, 2018. [Google Scholar]
- Chaillan, G.; Condon, P.; Poirriez, C.; Wu, S. A manufacturing process approach to construction: Design and application of a composite system for modular buildings. In Proceedings of the IABSE Symposium: Engineering the Future, Vancouver, BC, Canada, 21–23 September 2017; pp. 2635–2641. [Google Scholar] [CrossRef]
- Marchesi, M.; Tweed, C. Social innovation for a circular economy in social housing. Sustain. Cities Soc. 2021, 71, 102925. [Google Scholar] [CrossRef]
- Jóźwik, R. Architectural and Urban Changes in a Residential Environment—Implications for Design Science. Sustainability 2024, 16, 3987. [Google Scholar] [CrossRef]
- Jóźwik, R. Man and place: Creating sustainable, stable relationships in the context of a displacement situation. In Architecture of Challenges—Rebuilding Ukraine; Wierzbicka, A.M., Ed.; Oficyna Wydawnicza Politechniki Warszawskiej: Warsaw, Poland, 2023; pp. 86–87. [Google Scholar]
- Dunin-Woyseth, H.; Nilsson, F. On the emergence of research by design and practice-based research approaches in architectural and urban design. In Design Innovation for the Built Environment; Routledge: London, UK, 2013; pp. 37–51. [Google Scholar] [CrossRef]











Disclaimer/Publisher’s Note: The statements, opinions and data contained in all publications are solely those of the individual author(s) and contributor(s) and not of MDPI and/or the editor(s). MDPI and/or the editor(s) disclaim responsibility for any injury to people or property resulting from any ideas, methods, instructions or products referred to in the content. |
© 2024 by the authors. Licensee MDPI, Basel, Switzerland. This article is an open access article distributed under the terms and conditions of the Creative Commons Attribution (CC BY) license (https://creativecommons.org/licenses/by/4.0/).
Share and Cite
Wierzbicka, A.M.; Trębacz, P.; Jóźwik, R.; Duda, M. The Conceptualization of a Modular Residential Settlement Project Emerging in a Displacement Situation due to War in the Context of Sustainable Development Requirements. Sustainability 2024, 16, 5971. https://doi.org/10.3390/su16145971
Wierzbicka AM, Trębacz P, Jóźwik R, Duda M. The Conceptualization of a Modular Residential Settlement Project Emerging in a Displacement Situation due to War in the Context of Sustainable Development Requirements. Sustainability. 2024; 16(14):5971. https://doi.org/10.3390/su16145971
Chicago/Turabian StyleWierzbicka, Anna Maria, Paweł Trębacz, Renata Jóźwik, and Magdalena Duda. 2024. "The Conceptualization of a Modular Residential Settlement Project Emerging in a Displacement Situation due to War in the Context of Sustainable Development Requirements" Sustainability 16, no. 14: 5971. https://doi.org/10.3390/su16145971
APA StyleWierzbicka, A. M., Trębacz, P., Jóźwik, R., & Duda, M. (2024). The Conceptualization of a Modular Residential Settlement Project Emerging in a Displacement Situation due to War in the Context of Sustainable Development Requirements. Sustainability, 16(14), 5971. https://doi.org/10.3390/su16145971

