Abstract
Rural energy consumption plays an important role in energy consumption due to the improvement of rural residents’ living quality requirements in China. Ultra-low energy rural residential buildings are proposed to decrease rural energy consumption. First of all, this paper aims to provide the definition of ultra-low energy rural residential buildings, which is to reduce 50% of the building energy consumption of the rural residential benchmark building according to the Chinese standard for energy efficiency of rural residential buildings. Secondly, this paper presents the heat transfer coefficients of building envelopes of ultra-low energy rural residential buildings in the severe cold zone, cold zone and hot summer and cold winter zone in China. Based on optimized design and simulation analysis, the heat transfer coefficients of building envelopes are determined by the construction cost, energy efficiency and retrofit feasibility. Thirdly, the suitable combination of a high-performance external wall and internal wall is recommended based on carbon emission and cost efficiency. As an achievement, a technical specification for ultra-low energy rural buildings has been proposed by the China Academy of Building Research. It is beneficial to design ultra-low energy rural residential buildings in China and other countries.
1. Introduction
Nowadays, energy and environmental issues have received much attention. Buildings play a major role in energy consumption and carbon emissions. The building and construction sectors accounted for around 30% of total energy consumption and 27% of total carbon emissions all over the world [1]. Global Greenhouse Gas (GHG) emissions from buildings accounted for 21% of global GHG emissions, which were 12 GtCO2-eq in 2019 [2]. The European Union has adopted various policies to develop energy efficient, eco-designed and sustainable buildings. Hirvonen et al. [3] conducted a research on the emission reduction of building retrofits for Finnish apartment buildings. Moreover, the improvement of the energy efficiency of traditional rural buildings is one of the most challenging issues. Rocchi et al. [4] researched thermal insulation materials for the roofs of traditional rural buildings in central Italy. Tahsildoost and Zomorodian [5] defined optimum retrofit strategies of rural buildings considering the element of economy, environment and comfort benefits in four climate zones of Iran. Miah et al. [6] carried out the rural energy consumption pattern and influencing factors in the Chittagong region, Bangladesh. Allouhi et al. integrated energy efficient designs and renewable systems for rural houses in Morocco [7].
For rural buildings, the areas accounted for over half the total building space in China, which was nearly 22.7 billion square meters in 2020. Residential buildings accounted for 90% of the buildings in rural areas [8]. In 2020, the total rural residential building energy consumption was approximately 344.6 billion kWh per year, which accounted for 22% of the total building energy consumption in China [9]. Rural energy consumption still increases dramatically due to the improvement of rural occupants living requirements and social development. The average rural building energy consumption is 27.4 kgce/(m2·a) in northern China, which is more than double the energy consumption in southern China. For rural buildings, daily energy consumption includes lighting, cooking, heating, supplying hot water and the use of facilities. Heating accounts for a big part of rural building energy consumption, which is about 53.6% of the total rural energy consumption in northern China. Many rural residential buildings are built by farmers. They use solid clay bricks and concrete blocks. External walls do not have insulation. Windows have a low heat transfer coefficient [10]. Building envelopes include roofs, exterior walls, doors and windows. It has an important influence on building energy consumption. Moreover, 23–34% of the energy consumption of rural buildings is leaded by the heat loss of external walls [11]. Therefore, rural residential buildings lose the amount of heat in winter due to poor envelope thermal performance. From many survey results, the indoor temperature of rural residential buildings is around 10~15 °C in winter in China, which is much lower than the indoor temperature of urban buildings (20 °C) [10,12,13]. The rural building situation is not satisfied like urban buildings because of thermal insulation performances and the HAVC system.
In order to tackle the above problems, GB/T 50824-2013 [14] is proposed by the Chinese government (the Ministry of Housing and Urban-Rural Development (MOHURD)), which provides guidance to build energy efficient rural residential buildings and improve the indoor environment of rural residential buildings. However, this standard was published 10 years ago, and some requirements and technical strategies are not suitable for present energy efficient buildings. With the development of building energy efficiency and the improvement of residential environment quality, ultra-low energy rural residential buildings have been created, which have high-performance building envelopes and high-efficient heating and cooling facilities. They are inspired by the German passive housing technology system [15].
Zero Energy Building (ZEB) provides satisfied thermal comfort with low building energy consumption, which has gained more and more worldwide attention over the past decades [16,17]. The concept of ZEB has been established by the U.S. Department of Energy. The commonly used definitions are net site energy, net zero source energy, net zero energy costs and net zero energy emissions [18]. The European Union (EU) promised that all new buildings will be nearly zero energy buildings by 2020 [19]. In the USA, 50% of U.S. commercial buildings will be ZEBs by 2040. All commercial buildings will be Nearly Zero Energy Buildings (nZEB) by 2050 [20]. In order to provide construction guidance, there are several zero energy building standards across the world, such as Ecohomes (BRE, UK), Passive Haus (Germany), Association for Environment Conscious Building (AECB, UK), Leadership in Energy and Environmental Design (LEED, USA) and Technical standard for nearly zero energy buildings GB/T 51350-2019 (CTS-NZEB, China) [21]. In Passive Haus, seven climate zones are identified based on different outdoor temperatures in the world. They are the arctic zone, cold zone, cool-temperature zone, warm-temperature zone, warm zone, hot zone and very hot zone [22]. In CTS-NZEB, the concept of ultra-low energy buildings (ULEB), nZEB and ZEB has been defined. The energy efficient rate of them is 50%, 60–75% and 100% compared with benchmark buildings, according to standards in effect in 2015 [23].
For ZEB design, building energy consumption, construction cost and the condition of existing buildings should be considered. Key technical strategies of ZEB design include passive strategies, active strategies and renewable energy applications [20]. The building energy simulation is a fundamental approach to reducing energy consumption by passive strategies and determining heat transfer coefficients of building envelopes. It is a convenient approach to calculate hourly building energy consumption. Improving thermal performance of buildings is one of the most useful passive strategies in ZEB design [12,18,24,25].
However, zero energy building standards, as mentioned above, focus on urban buildings rather than rural residential buildings. Firstly, technical strategies of urban zero energy buildings are not suitable for rural residential buildings because of the operating cost, energy source and building situation. Secondly, the heat transfer coefficient of urban building envelopes in CTS-NZEB is not appropriate for rural residential buildings because of the thickness, weight of thermal insulation and incremental cost. Thirdly, there are some distinctions in terms of heating, cooling and ventilation between rural buildings and urban buildings in China. For example, the central heating system does not apply to rural buildings. Rural residents can control the heating system of rooms dividedly at any moment. The indoor temperature of rural residential buildings in winter is approximately 15 °C, which is much lower than the indoor temperature of urban buildings (20 °C) [12]. Especially in the northern rural heating areas, the use frequency of different rooms of rural houses in winter, the demand for indoor thermal environment and other aspects are very different from those of Chinese cities and towns. The heating demand is general, which is called “part time and part space mode”, with the highest proportion accounting for about 60%. Therefore, based on these differences, technical strategies and standards of ultra-low energy rural residential buildings should be established.
This paper first defines what the ultra-low energy rural building is, and then provides the maximum U-value of envelopes for ultra-low energy rural buildings in three main climate zones in China, including the severe cold zone, cold zone and hot summer and cold winter zone, by building energy simulations. Finally, considering carbon emission and cost efficiency in the whole life cycle, the suitable high-performance exterior wall and interior wall are recommended for severe cold and cold zones in this paper. The design U-value of external walls is under the limit of the heat transfer coefficient of external walls of ultra-low energy rural buildings. As a research achievement, the association standard T/CECS 739-2020 [26] has been published. It emphasizes the definition of ultra-low energy rural buildings, the heat transfer coefficient of envelopes and construction technologies.
2. Materials and Methods
In CTS-NZEB, ultra-low energy public buildings and residential buildings in the severe cold zone, hot summer and cold winter zone and hot summer and warm winter zone reduce 50% of the energy consumption of benchmark buildings according to GB 50189-2015 [27], JGJ 26-2010 [28], JGJ 134-2016 [29] and JGJ 75-2012 [30], separately. Based on the definition, this paper establishes the definition of the ultra-low energy rural residential buildings, which reduces over 50% of the rural benchmark building according to GB/T 50824-2013.
In China, heating is available for rural residential buildings in the severe cold zone, cold zone and hot summer and cold winter zone in winter. The heating energy use in these zones accounts for a large percentage of energy consumption [31]. Coal-burning stoves and raw coal are the main sources of energy supply for heating in rural areas. Therefore, these three climate zones should be concerned in this research because heating and these three zones account for most of the areas in China. The energy efficiency of these rural buildings is important, and this research provides the heat transfer coefficients of rural building envelopes in these three zones through analysis. The method below determines the heat transfer coefficients of ultra-low energy rural residential buildings in the cold climate zone for an example of ultra-low energy rural buildings. It provides a reference example for other climate zones in China and other countries.
This article introduced typical rural building models based on studies and surveys, and the heat transfer coefficients of building envelopes are set in accordance with GB/T 50824-2013 as benchmark building models, while considering common thermal insulation material, expanded polystyrene board (EPS) and extruded polystyrene board (XPS). DeST-h software (Designer’s Simulation Toolkits, DeST 3.0) is used to simulate the energy-saving effect of rural buildings. According to different wall structures, combined with the cost of local building materials, the construction form withalow carbon emission level and optimal economy is given by analyzing and comparing the carbon emissions in the whole life cycle and the economic costs of different construction systems.
2.1. Rural Residential Building Model Parameters and Setup
The envelope structures of benchmark buildings and ultra-low energy rural buildings in the cold climate zone have been introduced and compared in Table 1, including external walls, internal walls, glazing, roofs, slab-on-grade floors and floors. The thickness and verity of thermal insulation materials are modified, such as external walls, slab-on-grade floors and floors. For external walls, the insulation material is adjusted to 100 mm EPS board (thermal conductivity 0.036 W/m·K), which is thicker than benchmark buildings. For slab-on-grade floors and floors, the thermal insulation material XPS board (thermal conductivity 0.030 W/m·K) is adopted.
Table 1.
Different envelope structures of benchmark buildings designed by GB/T 50824-2013 and ultra-low energy rural buildings in cold climate zone.
Typical rural residential buildings are chosen in Jining, Shandong province (latitude 35.26, longitude 116.35), which is located in the cold climate zone of China. For benchmark buildings designed by the design standard GB/T 50824-2013, the indoor temperature in winter is set to 14 °C. The air change rate of rural buildings is set to 0.5 h−1. Considering occupant satisfaction, for ultra-low energy rural buildings, the indoor temperature in winter is set to 18 °C. The air change rate is set to 0.6 h−1. Heating is available from 15 November to 15 March [32,33]. There are 4 months in the heating period.
The heat transfer coefficients (U value) were calculated with the heat flow and surface temperatures inside and outside the envelope component. The U value was calculated by the following equation:
where U (W/m2·K) is the heat transfer coefficient of the building envelope, such as external walls or internal walls. (W/m2) is the mean heat flow. (K) is the mean temperature difference between the inside and outside surfaces ofthebuilding envelope.
The heat transfer coefficients of benchmark buildings and ultra-low energy rural residential buildings in the cold climate zone are calculated with the above equation and listed in Table 2. Basically, the U value of the envelopes of ultra-low energy rural buildings is half that of the benchmark buildings and quite equal with the nearly zero energy buildings designed by GB/T 51350-2019. Especially, the U value of the slab-on-grade floors and the floors of ultra-low energy rural buildings is much lower than that the benchmark buildings because thermal insulation material is added.
Table 2.
Heat transfer coefficients of building envelopes for buildings designed by different standards in cold climate zone.
The envelope structures of benchmark buildings and ultra-low energy rural buildings in the severe cold climate zone have been introduced and compared in Table 3. The thermal insulation materials in the severe cold zone are thicker than those in the cold zone. In terms of external walls, the thermal insulation material is 150 mm EPS in the severe cold zone. The thermal insulation material is 100 mm EPS in the cold zone. The heat transfer coefficients of the benchmark buildings and ultra-low energy rural residential buildings in the severe cold zone are calculated and listed in Table 4.
Table 3.
Different envelope structures of benchmark buildings designed by GB/T 50824-2013 and ultra-low energy rural buildings in severe cold climate zone.
Table 4.
Heat transfer coefficients of building envelopes for buildings designed by different standards in severe cold climate zone.
The envelope structures of benchmark buildings and ultra-low energy rural buildings in the hot summer and cold winter zone have been described and compared in Table 5. The thermal insulation materials in this zone are thinner than those in the cold climate zone. The thermal insulation of the external walls and roofs of ultra-low energy rural buildings are much thicker than benchmark buildings. The slab-on-grade floors and floors do not modify. The heat transfer coefficients of the benchmark buildings and ultra-low energy rural residential buildings in the hot summer and cold winter zone are calculated and listed in Table 6. The U value of the external walls and roofs of ultra-low energy rural buildings is much lower than that of the benchmark buildings because thermal insulation material is added.
Table 5.
Different envelope structures of benchmark buildings designed by GB/T 50824-2013 and ultra-low energy rural buildings in hot summer and cold winter climate zone.
Table 6.
Heat transfer coefficients of building envelopes for buildings designed by different standards in hot summer and cold winter zone.
2.2. Simulation Software of Rural Residential Building Energy Consumption
Building simulation is an outstanding tool to design and evaluate building energy consumption. The building environment design simulation toolkit DeST-h (DeST 3.0) is a Chinese building energy simulation software supported by Tsinghua university [34]. It is an appropriate simulation tool for the analysis of building and system energy performance, which is similar to DOE-2, EnergyPlus. They analyze the dynamic behavior of building envelopes and the annual energy consumption. DeST 3.0 includes several stages of the building design process, such as the building thermal process, system scheme analysis, air handling unit system analysis, duct/pipe networks and plant analysis. For example, in the building thermal process, the simulation can perform hourly indoor air temperatures and cooling/heating loads for building models. In the system scheme analysis, the simulation can show the performance of different heating, ventilation and air-conditioning (HAVC) systems. Nowadays, DeST software has been widely applied to simulate annual building energy consumptions in China, with some demonstrations in Europe and Japan.
2.3. Description of Rural Residential Building Models
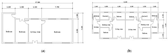
Since 2005, the authors’ research team has conducted pilot studies of energy-saving buildings [12,35]. Based on studies and surveys, single-story buildings, two-story buildings and three-story buildings account for a substantial part of rural buildings in three climate zones. Typical rural building models are selected from field surveys in Beijing and Shandong. The average building area of single-story rural buildings is around 100 m2. In this research, three typical rural building models, which are single-story, two-story and three-story, are built by DeST software. For the single-story rural residential building, it is 3.5 m high, and the building area is 100 m2. For the two-story rural building, it is 3.5 m high on each floor, and the building area is 300 m2. For the three-story rural building, the total height is 10.8 m and the height of each floor is 3.5 m, 3 m and 4.3 m, separately, and the total building area is 450 m2. In these models, the bedrooms, living rooms, bathrooms and kitchens are heated during some use periods, except for the stairwells. Typical building plans are shown in Figure 1. The functions of the different rooms are shown in the building plans. Simulation models in DeST software are shown in Figure 2.

Figure 1.
Typical rural building layout. (a) First floor for single-story rural building; (b) First floor for two-story rural building; (c) Second floor for two-story rural building; (d) First floor for three-story rural building; (e) Second floor for three-story rural building; (f) Third floor for three-story rural building.
Figure 2.
Typical rural building models in DeST. (a) Single-story rural building model; (b) Two-story rural building model; (c) Three-story rural building model.
2.4. Suitable Structures of External Wall and Interior Wall
The State Council of China issued the Notice on Printing and Distributing the Action Plan for Carbon Peaking by 2030 [36], which proposes to improve the energy efficiency level of rural housing, build a batch of green rural housing and encourage zero-carbon rural housing by 2030.
At present, under the same wall heat transfer coefficient, there are few studies on the carbon emission level and economy of different wall structures during their life cycle. Based on the principle of the lowest carbon emission, the best economy in the whole life cycle in this paper and under the limit index of the heat transfer coefficient of the exterior wall of the ultra-low energy consumption rural housing, the suitable high-performance exterior wall structure of the ultra-low energy consumption rural housing is analyzed according to the common exterior wall thermal insulation and sandwich thermal insulation construction practices in the severe cold and cold regions.
3. Results and Discussions
This section may be divided by subheadings. It should provide a concise and precise description of the experimental results, their interpretation as well as the experimental conclusions that can be drawn.
3.1. Simulation Results of Rural Residential Building Models
The envelope materials and thicknesses of three typical rural building models (shown in Figure 2) are compiled in Table 1. By modifying the parameters of building envelopes according to different standards, the energy efficiency rate of the single-story rural building, the two-story rural building and the three-story rural building is 52.2%, 66.8% and 70.8% in the cold climate zone (Table 7). The building energy consumption of ultra-low energy rural buildings reduces to 50% compared with the benchmark buildings designed by GB/T 50824-2013, respectively. Figure 3 shows the building hourly load per building area of a single-story rural building in the cold zone, as an example. Moreover, the two-story rural building and three-story rural building have better energy efficient effects than the single-story rural building.
Table 7.
Annual heating loads and energy efficiency rate for typical rural building models in cold climate zone.
Figure 3.
Building hourly load per building area of single-story rural building in cold zone.
For the other two climate zones, the research method is similar with the cold climate zone. The annual heating loads and energy efficiency rates in the severe cold zone and hot summer and cold winter zone are shown in Table 8 and Table 9, separately. For the severe cold zone, the energy efficiency rate of the single-story rural building, the two-story rural building and the three-story rural building is 53.8%, 50.0% and 50.1% (Table 8). For the hot summer and cold winter zone, the energy efficiency rate of the single-story rural building, the two-story rural building and the three-story rural building is 53.0%, 53.6% and 54.7% (Table 9).
Table 8.
Annual heating loads and energy efficiency rate for typical rural building models in severe cold climate zone.
Table 9.
Annual heating loads and energy efficiency rate for typical rural building models in hot summer and cold winter zone.
Because energy efficiency rates achieve over 50%, the envelope structures mentioned above meet the requirements of ultra-low energy rural buildings in these three zones. The simulation results meet the definition of ultra-low energy rural residential buildings. When 50% of the energy efficiency rates is guaranteed, the thickness and type of thermal insulation materials are modified in consideration of the incremental cost.
3.2. Heat Transfer Coefficients of Building Envelopes Comparison with PHI Standard
In order to understand the energy consumption level of ultra-low energy consumption rural buildings in China, we have compared it with GB/T 50824-2013, GB/T 51350-2019 and the Criteria for Buildings Passive House-EnerPHit- PHI Low Energy Building published by the Passive House Institute (PHI standard) [22], which are relatively common in the world.
According to the PHI standard, the heating loads of seven climate zones have been provided, and China is located in hot and very hot climate zones. The maximum heating loads of buildings are below 15 kWh/m2 in China. Compared with ultra-low rural residential buildings, the heating loads of passive buildings is much lower. In terms of the cold climate zone and hot summer and cold winter zone in China, the energy consumptions of muti-floor buildings are mostly equal to passive buildings which are located in a warm, hot and very hot zone. Considering the affordability of the operating cost and rural economic development, rural residential buildings do not need to achieve the goal of passive house at present.
As shown in Table 2, Table 4 and Table 6, the values of the envelope parameters for ultra-low energy rural building design in China are lower than the insulation values of GB/T 50824-2013, in particular with regard to the external walls, glazing and slab-on-grade-floors. Meanwhile, they are slightly higher than the insulation values of GB/T 51350-2019. For the PHI standard, different envelope components have the same U value (0.25 W/m2·K). The maximum U value according to the PHI standard is between the U value of the severe cold zone and cold zone for ultra-low energy rural buildings in China. For ultra-low energy rural buildings in the severe cold zone, the maximum U value of roofs, external walls, floors and slab-on-grade floors is 0.2 W/m2·K, 0.2 W/m2·K and 0.3 W/m2·K. In the cold climate zone, the maximum U value of roofs, external walls, floors and slab-on-grade floors is 0.3 W/m2·K, 0.3 W/m2·K and 0.45 W/m2·K. In the hot summer and cold winter zone, the maximum U value of roofs and external walls is 0.4 W/m2·K and 0.45 W/m2·K.
As the research achievement, envelope thermal performance has been presented in the association standard T/CECS 739-2020. This standard provides a technical pathway to construct ultra-low energy rural residential buildings in China, which includes the parameters of building envelopes and HVAC system.
Compared with T/CECS 739-2020, the PHI standard has paid more attention to user satisfaction and the airtightness of building envelopes, which is shown in Table 10. Specific differences are mentioned below:
Table 10.
The comparison of T/CECS 739-2020 and PHI standard.
- Unlike the PHI standard and GB/T 51350-2019, T/CECS 739-2020 not only provides parameters, but also includes contents about the measures of building construction, acceptance and operation.
- Two standards provide the requirement of building energy consumption criteria. Energy consumption simulation is carried out in two standards. However, the criteria and simulation software are different due to the national climate, source, building condition and user energy consumption habits.
- According to the PHI standard, passive buildings are classified as Classic, Plus or Premium, which have different requirements of renewable energy generation. However, in T/CECS 739-2020, renewable energy use is more than 10% in rural buildings, which is similar to GB/T 51350-2019.
- The indoor environment parameters are specified by these two standards. T/CECS 739-2020 only includes humidity, noise and lights. However, occupant satisfaction is still included in the PHI standard.
- The PHI standard gives the recommended value for the thermal performance of building envelopes all over the world, which does not specifically refer to rural buildings. However, T/CECS 739-2020 is for ultra-low energy rural houses in five climate zones in China specifically. The comparison of these two standards is shown in Table 10.
3.3. Selection of Suitable Wall Structures
As an example, an ultra-low energy consumption rural residential project has been conducted in Beijing, with a total floor area of 255 square meters and two floors above the ground. The statistics of the wall structural area are shown in Table 11. In order to compare the lifetime carbon emissions of different construction methods, other parts of the building, the electromechanical system, decoration and other methods are the same except for different wall structures.
Table 11.
Statistics of wall structural area.
Based on the principle of the lowest carbon emission and the best economy in the whole life cycle, and under the limit index of the heat transfer coefficient of the exterior wall of the ultra-low energy consumption rural housing given in Table 2 and Table 4, the suitable high-performance exterior wall structure of the ultra-low energy consumption rural housing is analyzed in the severe cold and cold regions, as shown in Table 12. The project material usage amount, life cycle cost and carbon emission of different wall structures are shown in Table 13. The service life of the building is calculated to be 50 years according to JGJ 144-2019 [37], the service life of the enclosure thermal insulation system is calculated to be 25 years. During the whole life of the building, the external thermal insulation system of the exterior wall is updated twice, the sandwich thermal insulation system building is not considered to be updated and the polystyrene particle insulation system of the interior wall is updated twice. According to the Chinese national standard GB/T 51366-2019 [38], the carbon emission factors of building materials are shown in Table 14.
Table 12.
Different structures of external wall and interior wall.
Table 13.
The project material usage amount, life cycle cost and carbon emission of different wall structures.
Table 14.
Carbon emission factors of building materials.
According to Table 13, the following conclusions can be drawn:
Firstly, among the four types of wall structures, the carbon emission level of the Class D structure is the lowest (34,237 kgCO2e) and that of the Class A structure is the highest (96,261.9 kgCO2e) during the whole life of the building. The carbon emission level of the Class D structure is equivalent to 35.6% of the Class A structure, with an obvious emission reduction effect. From the analysis of carbon emissions per unit cost, the Class A structure is the highest (0.78 kgCO2e/RMB), the Class D structure is the lowest (0.45 kgCO2e/RMB) and the Class D structure is equivalent to 57.7% of the price level of the Class A structure.
Secondly, considering the safety of the building structure, the outer wall of the Class D structure is mainly made of 70 mm reinforced concrete, 140 mm XPS and 70 mm reinforced concrete, and the inner partition wall is made of 70 mm reinforced concrete, 30 mm XPS and 70 mm reinforced concrete. Compared with the traditional wall structure, the Class D structure can effectively protect the insulation layer from erosion, improve durability, reduce the frequency of renewal and maintenance in the whole life cycle, have the lowest carbon emission level, the lowest incremental cost and obvious carbon emission reduction benefits.
Therefore, Class D is suitable for promotion in the pilot demonstration project of ultra-low energy consumption rural housing.
4. Conclusions
In China, zero energy buildings develop rapidly and gain much more attention because of GB/T 51350-2019. Many demonstration projects of ZEB have been carried out. Ultra-low energy rural residential buildings are an important part of the zero energy building system. They decrease amounts of rural building energy consumption in rural areas and improve the indoor environment so as to gain more and more attention from rural occupants and the Chinese government. Because of the use frequency of different rooms of rural houses in winter, the demand for indoor thermal environments and other aspects are very different from those of Chinese cities and towns due to China’s rural economic conditions, living habits and other factors, especially in the northern rural heating areas. Therefore, a technical index for realizing ultra-low energy consumption rural housing in China is presented.
This paper puts forward the definition of ultra-low energy rural residential buildings, which reduce 50% of the building energy consumption of the rural residential benchmark buildings according to the Chinese national standard GB/T 50824-2013. Moreover, it provides envelope thermal performance for ultra-low energy rural residential buildings in the severe cold zone, cold zone and hot summer and cold winter zone in China. Heat transfer coefficients of building envelopes are determined by building energy consumption simulation. Considering the incremental cost and rural construction situation, the maximum value of envelope parameters are given to guarantee 50% of the energy efficient rate. The envelope performance of ultra-low energy rural buildings is improved compared with the rural energy efficiency standard GB/T 50824-2013. Meanwhile, the suitable combination of external walls and internal walls is recommended considering carbon emission and cost efficiency.
The association standard T/CECS 739-2020 is published. The definition and technical strategies of ultra-low energy rural residential buildings are proposed in this standard. It provides strong support to construct ultra-low energy rural residential buildings in order to decrease rural energy consumption. Meanwhile, it can significantly help China and other countries achieve their target of becoming carbon neutral. In the actual construction project, the principle of the lowest carbon emission and the best economy in the whole life cycle can be considered to conduct analysis of the suitable high-performance enclosure structure of ultra-low energy consumption rural housing.
For further work, the design requirements of rural buildings should be improved and should be similar with urban residential buildings with urbanization and rural development in China.
Author Contributions
Methodology, Q.D.; Validation, Q.D., M.S. and J.L.; Data curation, S.Z.; Writing—original draft, S.Z.; Writing—review and editing, Q.D. All authors have read and agreed to the published version of the manuscript.
Funding
This research was funded by Project of Ministry of Housing and Urban-Rural Development (2022-K-185), Project “Research Service on the Organizational System and Institutional System of Green Urban-Rural Development” by Xuzhou Housing and Urban-Rural Development Bureau (JSZC-320300-RJJS-C2022-0001001) and the Project “Research on low carbon and carbon neutral design methods and key technologies of residential and public buildings” by China Academy of Building Research (No. 20220109330730005).
Institutional Review Board Statement
Not applicable.
Informed Consent Statement
Not applicable.
Data Availability Statement
Not applicable.
Conflicts of Interest
The authors declare no conflict of interest.
References
- IEA. 2022. Available online: https://www.iea.org/topics/buildings (accessed on 23 January 2023).
- IPCC. Summary for Policymakers. In Climate Change 2022: Mitigation of Climate Change; Contribution of Working Group III to the Sixth Assessment Report of the Intergovernmental Panel on Climate Change; Cambridge University Press: Cambridge, UK; New York, NY, USA, 2022. [Google Scholar]
- Hirvonen, J.; Jokisalo, J.; Heljo, J.; Kosonen, R. Towards the EU emissions targets of 2050: Optimal energy renovation measures of Finnish apartment buildings. Int. J. Sustain. Energy 2019, 38, 649–672. [Google Scholar] [CrossRef]
- Rocchi, L.; Kadziński, M.; Menconi, M.E.; Grohmann, D.; Miebs, G.; Paolotti, L.; Boggia, A. Sustainability evaluation of retrofitting solutions for rural buildings through life cycle approach and multi-criteria analysis. Energy Build. 2018, 173, 281–290. [Google Scholar] [CrossRef]
- Tahsildoost, M.; Zomorodian, Z.S. Energy, carbon, and cost analysis of rural housing retrofit in different climates. J. Build. Eng. 2020, 30, 101277. [Google Scholar] [CrossRef]
- Miah, M.D.; Kabir, R.; Koike, M.; Akther, S.; Man, Y.S. Rural household energy consumption pattern in the disregarded villages of Bangladesh. Energy Policy 2010, 38, 997–1003. [Google Scholar] [CrossRef]
- Allouhi, A.; Rehman, S.; Krarti, M. Role of energy efficiency measures and hybrid PV biomass power generation in designing 100% electric rural houses: A case study in Morocco. Energy Build. 2021, 236, 110770. [Google Scholar] [CrossRef]
- Li, Z.; Liu, Z. The research of energy efficiency and indoor thermal comfort for rural residences in the west of Liaoning, China. Build. Energy Effic. 2018, 46, 134–139. (In Chinese) [Google Scholar]
- Jiang, Y.; Hu, S.; Zhang, Y.; Wang, B.; Yang, Z.; Liu, X.; Zhang, T.; Wei, Q.; Lin, L.; Liu, X.; et al. Annual Development Research Report on Building Energy Efficiency in China 2022 (Special Topic of Public Buildings); China Building Industry Press: Beijing, China, 2022; pp. 1–13. (In Chinese) [Google Scholar]
- Xu, J.; Gao, W.; Hu, X. Analysis on energy consumption of rural building based on survey in northern China. Energy Sustain. Dev. 2018, 47, 34–38. [Google Scholar]
- Zhu, T.; Song, B.; Deng, Q. Analysis of economical thickness of exterior insulation for high-performance wall. Build. Sci. 2015, 6, 75–79. (In Chinese) [Google Scholar]
- Shan, M.; Wang, P.; Li, J.; Yue, G.; Yang, X. Energy and environment in Chinese rural buildings: Situations, challenges, and intervention strategies. Build. Environ. 2015, 91, 271–282. [Google Scholar] [CrossRef]
- He, B.; Yang, L.; Ye, M.; Mou, B.; Zhou, Y. Overview of rural building energy efficiency in China. Energy Policy 2014, 69, 385–396. [Google Scholar] [CrossRef]
- GB/T 50824-2013; MOHURD. Design Standard for Energy Efficiency of Rural Residential Buildings. China Architecture and Building Press: Beijing, China, 2013. (In Chinese)
- Liu, W.; Yu, Z.; Li, H.; Gao, C.; Wang, G.; Wang, G. Technical and Economic Analysis of External Wall Thermal Insulation for Nearly Zero Energy Buildings Based on Life Cycle Cost. In IOP Conference Series: Earth and Environmental Science; IOP Publishing: Bristol, UK, 2020; Volume 555. [Google Scholar]
- Marszal, A.J.; Heiselberg, P.; Bourrelle, J.S.; Musall, E.; Voss, K.; Sartori, I.; Napolitano, A. Zero Energy Building—A review of definitions and calculation methodologies. Energy Build. 2011, 43, 971–979. [Google Scholar] [CrossRef]
- Li, D.H.W.; Liu, Y.; Lam, J.C. Zero energy buildings and sustainable development implications—A review. Energy 2013, 54, 1–10. [Google Scholar] [CrossRef]
- Crawley, D.; Pless, S.; Torcelline, P. Getting to Net Zero; No. NREL/JA-550-46382; National Renewable Energy Lab. (NREL): Golden, CO, USA, 2009. [Google Scholar]
- European Commission. Commission Recommendation (EU) 2016/1318 of 29 July 2016 on Guidelines for the Promotion of Nearly Zero-Energy Buildings and Best Practices to Ensure that, by 2020, All New Buildings are Nearly Zero-Energy Buildings. 2016. Available online: https://eur-lex.europa.eu/legal-content/EN/ALL/?uri=CELEX:32016H1318 (accessed on 15 November 2022).
- Torcellini, P.; Pless, S.; Deru, M.; Crawley, D. Zero Energy Buildings: A Critical Look at the Definition; No. NREL/CP-550-39833; National Renewable Energy Lab. (NREL): Golden, CO, USA, 2006. [Google Scholar]
- Kang, Y.; Wu, J.; Liu, R.; He, L.; Yu, Z.; Yang, Y. Handshaking towards zero-concept analysis and technical measures of LEED zero-energy building in connection with technical standard of nearly zero-energy building in China. Energy Explor. Exploit. 2020, 39, 669–689. [Google Scholar] [CrossRef]
- Passive House Institute. Criteria for Buildings, Passive House-EnerPHit-PHI Low Energy Building. 2023. Available online: https://passiv.de/downloads/03_building_criteria_en.pdf (accessed on 23 January 2023).
- GB/T 51350-2019; MOHURD (Ministry of Housing and Urban-Rural Development of China), National Standard. Technical Standard for Nearly Zero Energy Buildings. China Architecture and Building Press: Beijing, China, 2019.
- Wang, L.; Gwilliam, J.; Jones, P. Case study of zero energy house design in UK. Energy Build. 2009, 41, 1215–1222. [Google Scholar] [CrossRef]
- Attia, S.; Gratia, E.; Herde, A.; Hensen, J.L.M. Simulation-based decision support tool for early stages of zero-energy building design. Energy Build. 2012, 49, 2–15. [Google Scholar] [CrossRef]
- T/CECS 739-2020; CECS (China Association for Engineering Construction Standardization), Chinese Association Standard. Technical Specification for Ultra-Low Energy Rural Buildings. China Architecture and Building Press: Beijing, China, 2020. (In Chinese)
- GB 50189-2015; MOHURD. Standard for Energy Efficiency of Public Buildings. China Architecture & Building Press: Beijing, China, 2019. (In Chinese)
- JGJ 26-2010; MOHURD. Design Standard for Energy Efficiency of Residential Buildings in Severe Cold and Cold Zones. China Architecture & Building Press: Beijing, China, 2010. (In Chinese)
- JGJ 134-2016; MOHURD. Design Standard for Energy Efficiency of Residential Buildings in Hot Summer and Cold Winter Zone. China Architecture & Building Press: Beijing, China, 2016. (In Chinese)
- JGJ 75-2012; MOHURD. Design Standard for Energy Efficiency of Residential Buildings in Hot Summer and Warm Winter Zone. China Architecture & Building Press: Beijing, China, 2012. (In Chinese)
- Chang, Y.; Ries, R.J.; Wang, Y. Life-cycle energy of residential buildings in China. Energy Policy 2013, 62, 656–664. [Google Scholar] [CrossRef]
- GB/T 50736-2012; MOHURD. Design Code for Heating Ventilation and Air Conditioning of Civil Buildings. China Architecture and Building Press: Beijing, China, 2012. (In Chinese)
- Management Measures of Heating for Beijing (ZHENGFULING [2009] No.216). Available online: http://www.beijing.gov.cn/zhengce/zhengcefagui/201905/t20190529_81967.html (accessed on 15 November 2022).
- Yan, D.; Xia, J.; Tang, W.; Song, F.; Zhang, X.; Jiang, Y. DeST—An integrated building simulation toolkit Part I: Fundamentals. In Building Simulation; Tsinghua Press: Beijing, China, 2008; Volume 1, pp. 95–110. [Google Scholar]
- Deng, Q.; Shan, M.; Zhang, G.; Zhang, S.; Liu, Y.; Yang, X. Effect Evaluation of Large-Scale Energy Saving Renovation of Rural Buildings in Beijing and Implications for Other Cities in the Same Zone. Sustainability 2023, 15, 5580. [Google Scholar] [CrossRef]
- The Implementation Plan for Carbon Peaking in Urban and Rural Construction (JIANBIAO [2022] No. 53). Available online: http://www.gov.cn/zhengce/zhengceku/2022-07/13/content_5700752.htm. (accessed on 15 November 2022).
- JGJ 144-2019; MOHURD. Technical Standard for External Thermal Insulation on Walls. China Architecture & Building Press: Beijing, China, 2019. (In Chinese)
- GB/T 51366-2019; MOHURD. Standard for Building Carbon Emission Calculation. China Architecture & Building Press: Beijing, China, 2019. (In Chinese)
Disclaimer/Publisher’s Note: The statements, opinions and data contained in all publications are solely those of the individual author(s) and contributor(s) and not of MDPI and/or the editor(s). MDPI and/or the editor(s) disclaim responsibility for any injury to people or property resulting from any ideas, methods, instructions or products referred to in the content. |
© 2023 by the authors. Licensee MDPI, Basel, Switzerland. This article is an open access article distributed under the terms and conditions of the Creative Commons Attribution (CC BY) license (https://creativecommons.org/licenses/by/4.0/).