Influence of Green Roofs on the Design of a Public Stormwater Drainage System: A Case Study
Abstract
1. Introduction
2. Materials and Methods
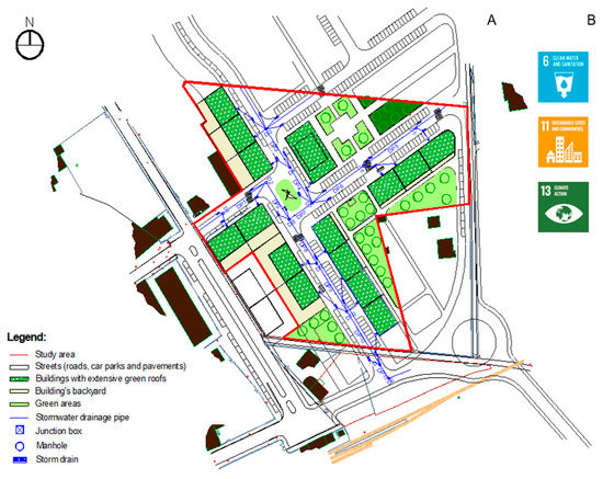
2.1. Study Area
2.2. Criteria for Sizing the Public Stormwater Drainage System
3. Results and Discussion
3.1. Sizing the Public Stormwater Drainage System
3.2. Cost Analysis of the Public Stormwater Drainage System
4. Conclusions
Author Contributions
Funding
Institutional Review Board Statement
Informed Consent Statement
Data Availability Statement
Acknowledgments
Conflicts of Interest
Appendix A
| Drainage Pipe | Flow Rate (L/s) | Inside Diameter (mm) | Inclination (%) | Velocity (m/s) | Drain Height (m) | Drag Tension (N/m2) | Path Time (min) | |||||
|---|---|---|---|---|---|---|---|---|---|---|---|---|
| Min. | Max. | Min. | Max. | Min. | Max. | Min. | Max. | Min. | Max. | |||
| DP1 | 7.70 | 25.66 | 177.00 | 1.99 | 1.43 | 1.98 | 0.048 | 0.092 | 5.43 | 8.86 | 0.30 | 0.42 |
| DP2 | 11.35 | 37.84 | 177.00 | 6.34 | 2.41 | 3.36 | 0.044 | 0.083 | 15.92 | 26.27 | 0.14 | 0.20 |
| DP3 | 17.04 | 56.79 | 177.00 | 7.53 | 2.88 | 3.96 | 0.051 | 0.100 | 21.72 | 35.14 | 0.12 | 0.17 |
| DP4 | 21.90 | 73.00 | 177.00 | 6.18 | 2.87 | 3.85 | 0.062 | 0.127 | 20.64 | 32.00 | 0.12 | 0.16 |
| DP5 | 8.34 | 27.79 | 177.00 | 9.51 | 2.54 | 3.59 | 0.034 | 0.062 | 19.10 | 32.08 | 0.20 | 0.28 |
| DP6 | 18.97 | 63.22 | 177.00 | 3.49 | 2.25 | 2.93 | 0.066 | 0.145 | 12.35 | 18.40 | 0.24 | 0.32 |
| DP7 | 53.36 | 177.87 | 275.00 | 2.63 | 2.62 | 3.41 | 0.103 | 0.225 | 14.49 | 21.58 | 0.09 | 0.12 |
| DP8 | 65.58 | 218.59 | 275.00 | 3.97 | 3.22 | 4.20 | 0.103 | 0.225 | 21.88 | 32.59 | 0.13 | 0.17 |
| DP9 | 74.47 | 248.24 | 275.00 | 5.13 | 3.65 | 4.76 | 0.103 | 0.225 | 28.23 | 42.03 | 0.13 | 0.17 |
| DP10 | 82.62 | 275.39 | 352.00 | 3.49 | 3.21 | 4.40 | 0.109 | 0.216 | 21.17 | 33.85 | 0.15 | 0.21 |
| DP11 | 101.23 | 337.43 | 443.00 | 2.24 | 2.85 | 3.40 | 0.125 | 0.272 | 15.78 | 27.34 | 0.05 | 0.06 |
| Drainage Pipe | Manhole | Nominal Diameter (mm) | Length (m) | Terrain Elevation (m) | Manhole Base (m) | Manhole Depth (m) | Drainage Pipe Covering (m) | |||||
|---|---|---|---|---|---|---|---|---|---|---|---|---|
| (1) | (2) | (1) | (2) | (1) | (2) | (1) | (2) | (1) | (2) | |||
| DP1 | D1 | D2 | 200.00 | 35.70 | 47.51 | 46.80 | 46.32 | 45.61 | 1.19 | 1.19 | 1.00 | 1.00 |
| DP2 | D2 | D8 | 200.00 | 28.40 | 46.80 | 45.00 | 45.61 | 42.73 | 1.19 | 2.27 | 1.00 | 1.00 |
| DP3 | D3 | D4 | 200.00 | 29.60 | 49.03 | 46.80 | 47.84 | 45.61 | 1.19 | 1.19 | 1.00 | 1.00 |
| DP4 | D4 | D7 | 200.00 | 27.20 | 46.80 | 45.12 | 45.61 | 43.28 | 1.19 | 1.84 | 1.00 | 1.00 |
| DP5 | D5 | D6 | 200.00 | 43.00 | 50.09 | 46.00 | 48.90 | 44.81 | 1.19 | 1.19 | 1.00 | 1.00 |
| DP6 | D6 | D7 | 200.00 | 42.50 | 46.00 | 45.12 | 44.81 | 43.28 | 1.19 | 1.84 | 1.00 | 1.60 |
| DP7 | D7 | D8 | 315.00 | 18.90 | 45.12 | 45.00 | 43.28 | 42.73 | 1.84 | 2.27 | 1.60 | 1.98 |
| DP8 | D8 | D9 | 315.00 | 33.70 | 45.00 | 43.80 | 42.73 | 41.39 | 2.27 | 2.41 | 1.98 | 2.12 |
| DP9 | D9 | D10 | 315.00 | 37.00 | 43.80 | 42.80 | 41.39 | 39.49 | 2.41 | 3.31 | 2.12 | 3.01 |
| DP10 | D10 | D11 | 400.00 | 40.50 | 42.80 | 39.37 | 39.49 | 37.99 | 3.31 | 1.38 | 3.01 | 1.00 |
| DP11 | D11 | DE (*) | 500.00 | 10.70 | 39.37 | 39.13 | 37.99 | 37.75 | 1.38 | 1.38 | 1.00 | 1.00 |
| Drainage Pipe | Flow Rate (L/s) | Inside Diameter (mm) | Inclination (%) | Velocity (m/s) | Drain Height (m) | Drag Tension (N/m2) | Path Time (min) | |||||
|---|---|---|---|---|---|---|---|---|---|---|---|---|
| Min. | Max. | Min. | Max. | Min. | Max. | Min. | Max. | Min. | Max. | |||
| DP1 | 7.10 | 23.66 | 177.00 | 1.99 | 1.39 | 1.94 | 0.046 | 0.088 | 5.24 | 8.60 | 0.31 | 0.43 |
| DP2 | 10.46 | 34.87 | 177.00 | 6.34 | 2.35 | 3.29 | 0.042 | 0.079 | 15.37 | 25.44 | 0.14 | 0.20 |
| DP3 | 15.71 | 52.36 | 177.00 | 7.53 | 2.81 | 3.89 | 0.049 | 0.095 | 20.98 | 34.14 | 0.13 | 0.18 |
| DP4 | 20.19 | 67.29 | 177.00 | 6.18 | 2.81 | 3.80 | 0.059 | 0.120 | 19.95 | 31.36 | 0.12 | 0.16 |
| DP5 | 7.69 | 25.62 | 177.00 | 9.51 | 2.48 | 3.51 | 0.032 | 0.060 | 18.43 | 31.01 | 0.20 | 0.29 |
| DP6 | 17.45 | 58.18 | 177.00 | 2.95 | 2.07 | 2.70 | 0.066 | 0.145 | 10.46 | 15.58 | 0.26 | 0.34 |
| DP7 | 49.13 | 163.75 | 224.00 | 6.66 | 3.63 | 4.74 | 0.084 | 0.184 | 29.87 | 44.49 | 0.07 | 0.09 |
| DP8 | 60.46 | 201.53 | 275.00 | 3.38 | 2.97 | 3.87 | 0.103 | 0.225 | 18.60 | 27.70 | 0.15 | 0.19 |
| DP9 | 68.61 | 228.71 | 275.00 | 4.35 | 3.37 | 4.39 | 0.103 | 0.225 | 23.96 | 35.68 | 0.14 | 0.18 |
| DP10 | 76.06 | 253.54 | 352.00 | 3.38 | 3.10 | 4.26 | 0.105 | 0.207 | 19.90 | 32.02 | 0.16 | 0.22 |
| DP11 | 92.95 | 309.84 | 443.00 | 2.24 | 2.78 | 3.29 | 0.119 | 0.261 | 15.22 | 26.76 | 0.05 | 0.06 |
| Drainage Pipe | Manhole | Nominal Diameter (mm) | Length (m) | Terrain Elevation (m) | Manhole Base (m) | Manhole Depth (m) | Drainage Pipe Covering (m) | |||||
|---|---|---|---|---|---|---|---|---|---|---|---|---|
| (1) | (2) | (1) | (2) | (1) | (2) | (1) | (2) | (1) | (2) | |||
| DP1 | D1 | D2 | 200.00 | 35.70 | 47.51 | 46.80 | 46.32 | 45.61 | 1.19 | 1.19 | 1.00 | 1.00 |
| DP2 | D2 | D8 | 200.00 | 28.40 | 46.80 | 45.00 | 45.61 | 42.19 | 1.19 | 2.81 | 1.00 | 1.00 |
| DP3 | D3 | D4 | 200.00 | 29.60 | 49.03 | 46.80 | 47.84 | 45.61 | 1.19 | 1.19 | 1.00 | 1.00 |
| DP4 | D4 | D7 | 200.00 | 27.20 | 46.80 | 45.12 | 45.61 | 43.51 | 1.19 | 1.61 | 1.00 | 1.00 |
| DP5 | D5 | D6 | 200.00 | 43.00 | 50.09 | 46.00 | 48.90 | 44.81 | 1.19 | 1.19 | 1.00 | 1.00 |
| DP6 | D6 | D7 | 200.00 | 42.50 | 46.00 | 45.12 | 44.81 | 43.51 | 1.19 | 1.61 | 1.00 | 1.37 |
| DP7 | D7 | D8 | 250.00 | 18.90 | 45.12 | 45.00 | 43.51 | 42.19 | 1.61 | 2.81 | 1.37 | 2.51 |
| DP8 | D8 | D9 | 315.00 | 33.70 | 45.00 | 43.80 | 42.19 | 41.05 | 2.81 | 2.75 | 2.51 | 2.45 |
| DP9 | D9 | D10 | 315.00 | 37.00 | 43.80 | 42.80 | 41.05 | 39.44 | 2.75 | 3.36 | 2.45 | 3.06 |
| DP10 | D10 | D11 | 400.00 | 40.50 | 42.80 | 39.37 | 39.44 | 37.99 | 3.36 | 1.38 | 3.06 | 1.00 |
| DP11 | D11 | DE (*) | 500.00 | 10.70 | 39.37 | 39.13 | 37.99 | 37.75 | 1.38 | 1.38 | 1.00 | 1.00 |
| Drainage Pipe | Flow Rate (L/s) | Inside Diameter (mm) | Inclination (%) | Velocity (m/s) | Drain Height (m) | Drag Tension (N/m2) | Path Time (min) | |||||
|---|---|---|---|---|---|---|---|---|---|---|---|---|
| Min. | Max. | Min. | Max. | Min. | Max. | Min. | Max. | Min. | Max. | |||
| DP1 | 6.50 | 21.66 | 177.00 | 1.99 | 1.36 | 1.89 | 0.044 | 0.084 | 5.04 | 8.31 | 0.31 | 0.44 |
| DP2 | 9.57 | 31.90 | 177.00 | 6.34 | 2.29 | 3.21 | 0.040 | 0.075 | 14.78 | 24.56 | 0.15 | 0.21 |
| DP3 | 14.38 | 47.92 | 177.00 | 7.53 | 2.74 | 3.81 | 0.047 | 0.090 | 20.19 | 33.05 | 0.13 | 0.18 |
| DP4 | 18.47 | 61.57 | 177.00 | 6.18 | 2.74 | 3.73 | 0.056 | 0.112 | 19.22 | 30.56 | 0.12 | 0.17 |
| DP5 | 7.03 | 23.45 | 177.00 | 9.51 | 2.42 | 3.42 | 0.031 | 0.057 | 17.72 | 29.88 | 0.21 | 0.30 |
| DP6 | 15.94 | 53.15 | 177.00 | 2.46 | 1.89 | 2.46 | 0.066 | 0.145 | 8.73 | 13.00 | 0.29 | 0.38 |
| DP7 | 44.89 | 149.63 | 224.00 | 5.56 | 3.32 | 4.33 | 0.084 | 0.184 | 24.94 | 37.15 | 0.07 | 0.09 |
| DP8 | 55.21 | 184.02 | 275.00 | 2.82 | 2.71 | 3.53 | 0.103 | 0.225 | 15.51 | 23.10 | 0.16 | 0.21 |
| DP9 | 62.60 | 208.66 | 275.00 | 3.62 | 3.07 | 4.00 | 0.103 | 0.225 | 19.94 | 29.70 | 0.15 | 0.20 |
| DP10 | 69.34 | 231.15 | 275.00 | 5.54 | 3.68 | 4.91 | 0.097 | 0.203 | 29.14 | 44.87 | 0.14 | 0.18 |
| DP11 | 85.14 | 283.81 | 352.00 | 2.24 | 2.76 | 3.68 | 0.125 | 0.260 | 15.10 | 23.27 | 0.05 | 0.06 |
| Drainage Pipe | Manhole | Nominal Diameter (mm) | Length (m) | Terrain Elevation (m) | Manhole Base (m) | Manhole Depth (m) | Drainage Pipe Covering (m) | |||||
|---|---|---|---|---|---|---|---|---|---|---|---|---|
| (1) | (2) | (1) | (2) | (1) | (2) | (1) | (2) | (1) | (2) | |||
| DP1 | D1 | D2 | 200.00 | 35.70 | 47.51 | 46.80 | 46.32 | 45.61 | 1.19 | 1.19 | 1.00 | 1.00 |
| DP2 | D2 | D8 | 200.00 | 28.40 | 46.80 | 45.00 | 45.61 | 42.61 | 1.19 | 2.39 | 1.00 | 1.00 |
| DP3 | D3 | D4 | 200.00 | 29.60 | 49.03 | 46.80 | 47.84 | 45.61 | 1.19 | 1.19 | 1.00 | 1.00 |
| DP4 | D4 | D7 | 200.00 | 27.20 | 46.80 | 45.12 | 45.61 | 43.72 | 1.19 | 1.40 | 1.00 | 1.00 |
| DP5 | D5 | D6 | 200.00 | 43.00 | 50.09 | 46.00 | 48.90 | 44.81 | 1.19 | 1.19 | 1.00 | 1.00 |
| DP6 | D6 | D7 | 200.00 | 42.50 | 46.00 | 45.12 | 44.81 | 43.72 | 1.19 | 1.40 | 1.00 | 1.17 |
| DP7 | D7 | D8 | 250.00 | 18.90 | 45.12 | 45.00 | 43.72 | 42.61 | 1.40 | 2.39 | 1.17 | 2.10 |
| DP8 | D8 | D9 | 315.00 | 33.70 | 45.00 | 43.80 | 42.61 | 41.66 | 2.39 | 2.14 | 2.10 | 1.85 |
| DP9 | D9 | D10 | 315.00 | 37.00 | 43.80 | 42.80 | 41.66 | 40.32 | 2.14 | 2.48 | 1.85 | 2.19 |
| DP10 | D10 | D11 | 315.00 | 40.50 | 42.80 | 39.37 | 40.32 | 37.99 | 2.48 | 1.38 | 2.19 | 1.00 |
| DP11 | D11 | DE (*) | 400.00 | 10.70 | 39.37 | 39.13 | 37.99 | 37.75 | 1.38 | 1.38 | 1.00 | 1.00 |
References
- Edenhofer, O. Climate Change 2014: Mitigation of Climate Change: Contribution of Working Group III to the Fifth Assessment Report of the Intergovernmental Panel on Climate Change. In Summary for Policymakers; Edenhofer, O.R., Pichs-Madruga, Y., Sokona, E., Farahani, S., Kadner, K., Seyboth, A., Adler, I., Baum, S., Brunner, P., Eickemeier, B., et al., Eds.; Cambridge University Press: New York, NY, USA, 2014; Volume 3, ISBN 978-1-107-05821-7. [Google Scholar]
- IPCC. Climate Change 2022: Impacts, Adaptation and Vulnerability. Working Group II Contribution to the Sixth Assessment Report of the Intergovernmental Panel on Climate Change; Pörtner, H.-O., Roberts, D.C., Tignor, M., Poloczanska, E.S., Mintenbeck, K., Alegría, A., Craig, M., Langsdorf, S., Löschke, S., Möller, V., et al., Eds.; Cambridge University Press: New York, NY, USA, 2022.
- Santos, F.D. Alterações Climáticas; Fundação Francisco Manuel dos Santos: Lisboa, Portugal, 2021. (In Portuguese) [Google Scholar]
- Xu, H.; Randall, M.; Fryd, O. Urban Stormwater Management at the Meso-Level: A Review of Trends, Challenges and Approaches. J. Environ. Manag. 2023, 331, 117255. [Google Scholar] [CrossRef]
- Pearlmutter, D.; Pucher, B.; Calheiros, C.S.C.; Hoffmann, K.A.; Aicher, A.; Pinho, P.; Stracqualursi, A.; Korolova, A.; Pobric, A.; Galvão, A.; et al. Closing Water Cycles in the Built Environment through Nature-Based Solutions: The Contribution of Vertical Greening Systems and Green Roofs. Water 2021, 13, 2165. [Google Scholar] [CrossRef]
- Wang, X.C.; Luo, L. Water-Wise Cities and Sustainable Water Systems: Current Problems and Challenges. In Water-Wise Cities and Sustainable Water Systems: Concepts, Technologies, and Applications; Wang, X.C., Fu, G., Eds.; IWA Publishing: London, UK, 2021; pp. 25–52. ISBN 978-1-78906-076-8. [Google Scholar]
- Calheiros, C.S.C.; Castiglione, B.; Palha, P. Nature-Based Solutions for Socially and Environmentally Responsible New Cities: The Contribution of Green Roofs. In Circular Economy and Sustainability; Elsevier: Amsterdam, The Netherlands, 2022; pp. 235–255. ISBN 978-0-12-821664-4. [Google Scholar]
- Pearlmutter, D.; Theochari, D.; Nehls, T.; Pinho, P.; Piro, P.; Korolova, A.; Papaefthimiou, S.; Mateo, M.C.G.; Calheiros, C.; Zluwa, I.; et al. Enhancing the Circular Economy with Nature-Based Solutions in the Built Urban Environment: Green Building Materials, Systems and Sites. Blue Green Syst. 2020, 2, 46–72. [Google Scholar] [CrossRef]
- Calheiros, C.S.C.; Stefanakis, A.I. Green Roofs Towards Circular and Resilient Cities. Circ. Econ. Sust. 2021, 1, 395–411. [Google Scholar] [CrossRef]
- ANCV (Ed.) Coberturas Verdes: Guia Técnico Para Projeto, Construção e Manutenção, 1st ed.; Associação Nacional de Coberturas Verdes: Porto, Portugal, 2019; ISBN 978-989-33-0039-8. (In Portuguese) [Google Scholar]
- Liu, W.; Feng, Q.; Chen, W.; Wei, W. Assessing the Runoff Retention of Extensive Green Roofs Using Runoff Coefficients and Curve Numbers and the Impacts of Substrate Moisture. Hydrol. Res. 2020, 51, 635–647. [Google Scholar] [CrossRef]
- Kader, S.; Chadalavada, S.; Jaufer, L.; Spalevic, V.; Dudic, B. Green Roof Substrates—A Literature Review. Front. Built Environ. 2022, 8, 1019362. [Google Scholar] [CrossRef]
- Lee, J.Y.; Lee, M.J.; Han, M. A Pilot Study to Evaluate Runoff Quantity from Green Roofs. J. Environ. Manag. 2015, 152, 171–176. [Google Scholar] [CrossRef]
- Akther, M.; He, J.; Chu, A.; Huang, J.; van Duin, B. A Review of Green Roof Applications for Managing Urban Stormwater in Different Climatic Zones. Sustainability 2018, 10, 2864. [Google Scholar] [CrossRef]
- Junior, A.; Neto, P.; Mendiondo, E. Análise da Retenção Hídrica em Telhados Verdes a Partir da Eficiência do Coeficiente de Escoamento. Rev. Bras. De Recur. Hídricos 2014, 19, 41–52. [Google Scholar] [CrossRef]
- Silva, M.D.; K. Najjar, M.; W. A. Hammad, A.; Haddad, A.; Vazquez, E. Assessing the Retention Capacity of an Experimental Green Roof Prototype. Water 2019, 12, 90. [Google Scholar] [CrossRef]
- Versini, P.-A.; Ramier, D.; Berthier, E.; de Gouvello, B. Assessment of the Hydrological Impacts of Green Roof: From Building Scale to Basin Scale. J. Hydrol. 2015, 524, 562–575. [Google Scholar] [CrossRef]
- Leite, F.R.; Antunes, M.L.P. Green Roof Recent Designs to Runoff Control: A Review of Building Materials and Plant Species Used in Studies. Ecol. Eng. 2023, 189, 106924. [Google Scholar] [CrossRef]
- Barriuso, F.; Urbano, B. Green Roofs and Walls Design Intended to Mitigate Climate Change in Urban Areas across All Continents. Sustainability 2021, 13, 2245. [Google Scholar] [CrossRef]
- Bus, A.; Szelągowska, A. Green Water from Green Roofs—The Ecological and Economic Effects. Sustainability 2021, 13, 2403. [Google Scholar] [CrossRef]
- Tafazzoli, M. Hydrologic Responses to Urbanization: Towards a Holistic Approach for Maximizing Green Roofs’ Performance in Controlling Urban Precipitations. Urban Clim. 2023, 48, 101352. [Google Scholar] [CrossRef]
- Palermo, S.A.; Turco, M.; Principato, F.; Piro, P. Hydrological Effectiveness of an Extensive Green Roof in Mediterranean Climate. Water 2019, 11, 1378. [Google Scholar] [CrossRef]
- Silva, J.; Paço, T.A.; Sousa, V.; Silva, C.M. Hydrological Performance of Green Roofs in Mediterranean Climates: A Review and Evaluation of Patterns. Water 2021, 13, 2600. [Google Scholar] [CrossRef]
- Yan, J.; Zhang, S.; Zhang, J.; Zhang, S.; Zhang, C.; Yang, H.; Wang, R.; Wei, L. Stormwater Retention Performance of Green Roofs with Various Configurations in Different Climatic Zones. J. Environ. Manag. 2022, 319, 115447. [Google Scholar] [CrossRef] [PubMed]
- Jusić, S.; Hadžić, E.; Milišić, H. Stormwater Management by Green Roof. Act Scie Agri 2019, 3, 57–62. [Google Scholar] [CrossRef]
- Andrés-Doménech, I.; Perales-Momparler, S.; Morales-Torres, A.; Escuder-Bueno, I. Hydrological Performance of Green Roofs at Building and City Scales under Mediterranean Conditions. Sustainability 2018, 10, 3105. [Google Scholar] [CrossRef]
- Berardi, U.; GhaffarianHoseini, A.; GhaffarianHoseini, A. State-of-the-Art Analysis of the Environmental Benefits of Green Roofs. Appl. Energy 2014, 115, 411–428. [Google Scholar] [CrossRef]
- Czemiel Berndtsson, J. Green Roof Performance towards Management of Runoff Water Quantity and Quality: A Review. Ecol. Eng. 2010, 36, 351–360. [Google Scholar] [CrossRef]
- Razzaghmanesh, M.; Beecham, S. The Hydrological Behaviour of Extensive and Intensive Green Roofs in a Dry Climate. Sci. Total Environ. 2014, 499, 284–296. [Google Scholar] [CrossRef]
- Hamouz, V.; Pons, V.; Sivertsen, E.; Raspati, G.S.; Bertrand-Krajewski, J.-L.; Muthanna, T.M. Detention-Based Green Roofs for Stormwater Management under Extreme Precipitation Due to Climate Change. Blue Green Syst. 2020, 2, 250–266. [Google Scholar] [CrossRef]
- Santos, M.L.; Silva, C.M.; Ferreira, F.; Matos, J.S. Hydrological Analysis of Green Roofs Performance Under a Mediterranean Climate: A Case Study in Lisbon, Portugal. Sustainability 2023, 15, 1064. [Google Scholar] [CrossRef]
- Brandão, C.; do Rosário Cameira, M.; Valente, F.; Cruz de Carvalho, R.; Paço, T.A. Wet Season Hydrological Performance of Green Roofs Using Native Species under Mediterranean Climate. Ecol. Eng. 2017, 102, 596–611. [Google Scholar] [CrossRef]
- Francis, L.F.M.; Jensen, M.B. Benefits of Green Roofs: A Systematic Review of the Evidence for Three Ecosystem Services. Urban For. Urban Green. 2017, 28, 167–176. [Google Scholar] [CrossRef]
- Bona, S.; Silva-Afonso, A.; Gomes, R.; Matos, R.; Rodrigues, F. Nature-Based Solutions in Urban Areas: A European Analysis. Appl. Sci. 2022, 13, 168. [Google Scholar] [CrossRef]
- United Nations. The Sustainable Development Goals Report 2022. Available online: https://unstats.un.org/sdgs/report/2022/ (accessed on 1 February 2023).
- PORDATA. Censos 2021. Available online: https://www.pordata.pt/censos/quadro-resumo-municipios-e-regioes/macedo+de+cavaleiros-448 (accessed on 1 February 2023).
- IPMA. Séries Longas. Available online: https://www.ipma.pt/pt/oclima/series.longas/?loc=Bragan%C3%A7a&type=raw (accessed on 1 February 2023).
- Decreto Regulamentar n.° 23/95, de 23 de Agosto—Aprova o Regulamento Geral Dos Sistemas Públicos e Prediais de Distribuição de Água e de Drenagem de Águas Residuais. Available online: https://data.dre.pt/eli/decregul/23/1995/08/23/p/dre/pt/html (accessed on 10 February 2023). (In Portuguese).
- Sá Marques, J.A.A.D.; Sousa, J.J.D.O. Hidráulica Urbana: Sistemas de Abastecimento de Água e de Drenagem de Águas Residuais, 4th ed.; Imprensa da Universidade de Coimbra: Coimbra, Portugal, 2018; ISBN 978-989-26-1610-0. (In Portuguese) [Google Scholar]
- ANQIP. Technical Commitee 0701. Available online: https://www.anqip.pt/index.php/pt/comissoes-tecnicas/93-comissao-tecnica-0701 (accessed on 10 February 2023).
- Pimentel-Rodrigues, C.; Silva-Afonso, A. Contributions of Water-Related Building Installations to Urban Strategies for Mitigation and Adaptation to Face Climate Change. Appl. Sci. 2019, 9, 3575. [Google Scholar] [CrossRef]
- Fersil. Infraestrutura, Saneamento e Drenagem. Available online: https://fersil.com/solution/infraestruturas (accessed on 1 February 2023).
- Monteiro, C.M.; Calheiros, C.S.C.; Pimentel-Rodrigues, C.; Silva-Afonso, A.; Castro, P.M.L. Contributions to the Design of Rainwater Harvesting Systems in Buildings with Green Roofs in a Mediterranean Climate. Water Sci. Technol. 2016, 73, 1842–1847. [Google Scholar] [CrossRef]
- Design of London. Living Roofs and Walls: Technical Report—Supporting London Plan Policy; Greater London Authority: London, UK, 2008; ISBN 978-1-84781-132-5. [Google Scholar]
- Decreto-Lei n.° 102-D/2020, de 10 de Dezembro—Aprova o Regime Geral Da Gestão de Resíduos, o Regime Jurídico Da Deposição de Resíduos Em Aterro e Altera o Regime Da Gestão de Fluxos Específicos de Resíduos, Transpondo as Diretivas (UE) 2018/849, 2018/850, 2018/851 e 2018/852. Available online: https://dre.pt/dre/detalhe/decreto-lei/102-d-2020-150908012 (accessed on 20 March 2023). (In Portuguese).



| Surface | Area (m2) | Runoff Coefficient (Dimensionless) | |
|---|---|---|---|
| Streets | Roads | 9928.65 | 0.80 |
| Car parks | |||
| Pavements | |||
| Green areas | 3428.55 | 0.20 | |
| Plots | Buildings | 5769.85 | 0.90 (1); 0.70 (2); 0.50 (3) |
| Building’s backyard (50% paved area) | 955.66 | 0.80 | |
| Building’s backyard (50% green area) | 955.66 | 0.20 | |
| Drainage Pipe | Nominal Diameter (mm) | Inside Diameter (mm) | Wall Thickness (mm) |
|---|---|---|---|
![]() | 200 | 177 | 11.5 |
| 250 | 224 | 13.0 | |
| 315 | 275 | 20.0 | |
| 400 | 352 | 24.0 | |
| 500 | 443 | 28.5 |
| Drainage Pipe | Drained Area (m2) | Effective Area (m2) | Concentration Time (min) | Rainfall Intensity (mm/h) | ||||||
|---|---|---|---|---|---|---|---|---|---|---|
| Scenarios: | (1) | (2) | (3) | (1) | (2) | (3) | (1) | (2) | (3) | |
| DP1 | 1712.31 | 1202.71 | 1108.79 | 1014.87 | 7.50 | 7.50 | 7.50 | 76.82 | 76.82 | 76.82 |
| DP2 | 2579.77 | 1812.00 | 1670.50 | 1529.00 | 7.80 | 7.81 | 7.81 | 75.18 | 75.14 | 75.11 |
| DP3 | 3789.24 | 2661.53 | 2453.68 | 2245.84 | 7.50 | 7.50 | 7.50 | 76.82 | 76.82 | 76.82 |
| DP4 | 4914.52 | 3451.91 | 3182.35 | 2912.78 | 7.62 | 7.63 | 7.63 | 76.13 | 76.12 | 76.10 |
| DP5 | 1854.01 | 1302.24 | 1200.54 | 1098.85 | 7.50 | 7.50 | 7.50 | 76.82 | 76.82 | 76.82 |
| DP6 | 4350.22 | 3055.55 | 2816.94 | 2578.33 | 7.93 | 7.96 | 7.99 | 74.48 | 74.36 | 74.21 |
| DP7 | 12,069.89 | 8477.78 | 7815.74 | 7153.70 | 7.73 | 7.75 | 7.78 | 75.53 | 75.43 | 75.30 |
| DP8 | 15,135.70 | 10,631.18 | 9800.97 | 8970.77 | 8.02 | 8.02 | 8.06 | 74.02 | 74.02 | 73.85 |
| DP9 | 17,340.43 | 12,179.76 | 11,228.62 | 10,277.49 | 8.15 | 8.16 | 8.21 | 73.37 | 73.32 | 73.09 |
| DP10 | 19,396.35 | 13,623.82 | 12,559.91 | 11,496.01 | 8.28 | 8.30 | 8.36 | 72.77 | 72.67 | 72.38 |
| DP11 | 24,038.37 (*) | 16,884.33 | 15,565.81 | 14,247.28 | 8.45 | 8.51 | 8.50 | 71.94 | 71.66 | 71.71 |
| Work Description | Partial Price (EUR) | ||
|---|---|---|---|
| Scenario 1 | Scenario 2 | Scenario 3 | |
| 1. Land moving | 6546.20 | 6788.41 | 5788.87 |
| 2. Pipes | 9078.00 | 8983.50 | 8364.50 |
| 3. Network components | 14,500.00 | 14,500.00 | 14,500.00 |
| 4.1. Other works | 847.20 | 847.20 | 847.20 |
| Partial price (EUR) | 30,971.40 | 31,119.11 | 29,500.57 |
| Total value (EUR) | 30,971.40 + VAT | 31,119.11 + VAT | 29,500.57 + VAT |
Disclaimer/Publisher’s Note: The statements, opinions and data contained in all publications are solely those of the individual author(s) and contributor(s) and not of MDPI and/or the editor(s). MDPI and/or the editor(s) disclaim responsibility for any injury to people or property resulting from any ideas, methods, instructions or products referred to in the content. |
© 2023 by the authors. Licensee MDPI, Basel, Switzerland. This article is an open access article distributed under the terms and conditions of the Creative Commons Attribution (CC BY) license (https://creativecommons.org/licenses/by/4.0/).
Share and Cite
Silva, F.; Calheiros, C.S.C.; Valle, G.; Pinto, P.; Albuquerque, A.; Antão-Geraldes, A.M. Influence of Green Roofs on the Design of a Public Stormwater Drainage System: A Case Study. Sustainability 2023, 15, 5762. https://doi.org/10.3390/su15075762
Silva F, Calheiros CSC, Valle G, Pinto P, Albuquerque A, Antão-Geraldes AM. Influence of Green Roofs on the Design of a Public Stormwater Drainage System: A Case Study. Sustainability. 2023; 15(7):5762. https://doi.org/10.3390/su15075762
Chicago/Turabian StyleSilva, Flora, Cristina Sousa Coutinho Calheiros, Guilherme Valle, Pedro Pinto, António Albuquerque, and Ana Maria Antão-Geraldes. 2023. "Influence of Green Roofs on the Design of a Public Stormwater Drainage System: A Case Study" Sustainability 15, no. 7: 5762. https://doi.org/10.3390/su15075762
APA StyleSilva, F., Calheiros, C. S. C., Valle, G., Pinto, P., Albuquerque, A., & Antão-Geraldes, A. M. (2023). Influence of Green Roofs on the Design of a Public Stormwater Drainage System: A Case Study. Sustainability, 15(7), 5762. https://doi.org/10.3390/su15075762


