Abstract
Despite the growing attention given to modular construction in the UK, a lack of investigation into the practical challenges and limitations experienced by contractors has been noted. Hence, this study aims to critically assess the feasibility of volumetric modular construction from the perspective of contractors who have applied this method in real-world projects. The study adopted a qualitative research approach using a case study technique and selected two modular construction projects in Newcastle upon Tyne, UK, as case studies. Semi-structured interviews were conducted with nine professionals from the contracting organisations involved in these projects in addition to project document reviews from the selected cases and data analysis using a content analysis approach. The study found that while modular construction can be costly, it is appreciated by contractors for its ability to reduce construction schedules and save costs. However, program delays, skill gaps, and reduced design flexibility pose significant challenges. This study offers unique insights into the practical challenges and limitations of volumetric modular construction and provides recommendations for improvement. Its contribution to the body of knowledge is significant as it sheds light on the trade-offs involved in using modular construction and highlights the need for further research to enhance its application in real-world projects.
1. Introduction
Offsite modular construction has emerged as a popular solution to tackle the chronic housing shortage and attain net-zero carbon targets in the UK [1]. This technique involves the prefabrication of building components, sub-assemblies, and parts in off-site factories, which are then transferred and assembled on site as integral parts of a larger structure [2]. These modular units may either constitute a small fraction of the overall project or form the entire building. Accordingly, the proliferation of modular construction is frequently justified by the promise of superior quality and precision in manufacturing, as well as economies of scale in mass-producing numerous standardised units, leading to enhanced productivity, rapid production, reduction of waste, and efficient allocation of resources [3,4]. Consequently, an in-depth analysis of the seminal literature on modular construction in the UK exposes a recurrent trend of advocating the technique based on its perceived advantages and capabilities while minimally considering crucial aspects relating to practical implementation and potential challenges.
In a retrospective trajectory, the existence of the underlying principle behind off-site modular construction in the UK (i.e., relocation of on-site activities to a controlled factory environment) can be traced back to 1940s, and its use has been increasing ever since [5]. Nevertheless, despite the long-standing interest in off-site modular construction, the UK has been lagging behind other developed nations in adopting this method. The reasons for this are frequently acknowledged to be deep-rooted and intertwined with the fragmented industry landscape [6] in addition to comprehensive collaboration required due to the planning, coordination, installation, procurement, and scope of works [5]. Additionally, the lethargic adoption of modular construction has been attributed to concerns surrounding costs, site productivity, and workmanship issues, which can all have a detrimental impact on the quality of the finished modular product during real-life implementation [7]. Nevertheless, these implementation challenges appear to contradict early studies that promoted modular construction adoption, such as [8,9,10], who posited that modular construction could simply reduce costs, boost productivity, and enhance quality control based on the input of experts’ opinions with a minimal attention towards practical/procedural aspects. Hence, it seems that reality of modular construction is considerably more multifaceted than initially thought. Anecdotally, Knightfrank’s report [11] reveals that roughly 43% of respondents believe that modular construction will have no impact or even exacerbate the UK construction industry’s existing challenges without proper guidance for its real-life application. This perspective of a lack of attention towards the procedural aspects of off-site modular construction drives this study’s objective, which seeks to investigate the practical challenges in modular construction from the viewpoint of contractors who have first-hand experience in its adoption and implementation.
Despite the widespread acknowledgment of the potential of off-site modular construction in addressing some of the UK’s most pressing construction issues, such as the housing crisis and the net-zero carbon objectives, the complete realisation of its perceived benefits requires a comprehensive understanding and resolution of the practical challenges encountered by contractors and other adopters in real-world situations. Accordingly, contractors and other adopters must anticipate and develop effective strategies to overcome such challenges, thereby instilling greater confidence in the viability of modular construction as a viable alternative for the UK construction industry.
In terms of prevalent literature on the subject, the modular construction-related literature appears to be saturated with studies extolling its potential benefits and implementation strategies [12,13,14,15], with less attention towards the practicality of the concept. This inadequacy is particularly alarming given the intricacy of the UK construction industry and the imperative need for robust collaboration networks to guarantee the successful and sustainable implementation of off-site modular construction, something that the UK CI has long been lacking [16,17]. As a result, the authors have identified UK contractors, who are also one of the main innovation enablers in the industry, as a pertinent context to explore the challenges encountered during the application of modular construction in real-life situations. This study aims to investigate the intrinsic nature of the UK construction industry and the difficulties that contractors may face while employing modular construction in this context. Accordingly, the research problem is formulated as follows:
Q1: What challenges are UK contractors confronting or expected to face while using modular construction methods/approaches?
This study seeks to address the above research problem by providing a thorough analysis of the literature and empirical evidence on the challenges that UK contractors may encounter during the employment of modular construction, which will contribute to a more comprehensive understanding of off-site modular construction in the UK.
2. Literature Review
2.1. Offsite Modular Construction in the UK
For over a century, the construction industry has relied heavily on conventional on-site and labour-intensive construction techniques, which have been deemed as the norm for the sector, including in the UK [18]. Nevertheless, the world’s population is growing at an unprecedented pace, generating a higher demand for infrastructure and housing, which is further compounded by increasingly complex requirements such as sustainability and zero-carbon emissions [1]. These changes require the construction industry to re-evaluate its traditional ways and adapt to the evolving landscape, as evident in the automobile and aviation sectors [17]. Failure to respond effectively to these challenges may lead to the industry’s stagnation, which would ultimately result in the inability to meet the demands and expectations of the ever-changing society [16]. In response, the construction industry has somewhat embraced modern construction techniques that are purportedly both efficient and sustainable, shifting the majority of on-site operations to factory-controlled environments in order to improve productivity [19]. Although the definition of off-site construction (OSC) remains contentious, various studies have employed terms like modern methods of construction (MMC), modular construction (MiC), volumetric construction, industrialised construction, and prefabricated construction to refer to the practice of moving on-site work to a factory environment. However, regardless of terminology, the core principle remains the same: the relocation of on-site activities to a factory setting [2,20].
Meanwhile, the UK CI serves as an intriguing case study to showcase the evolution of OSC and the integration of various terminologies to signify specific stages of this evolution over the last century. OSC’s origins can be traced back to the Roman occupation of Britain, with Lunt Fort’s archaeological site near Coventry built using components sourced from elsewhere [5]. Joseph Paxton later revived this construction approach during the 1851 Great Exhibition, constructing the Crystal Palace in just nine months, and later dismantling it to be relocated elsewhere. After World War II, the UK deployed a prefab mission to meet the housing needs of the population; however, these prefabricated dwellings proved to be substandard in terms of durability and criteria, leading to negative public perceptions [5,18]. To counter this perception, the UK CI introduced industrialised building concepts, with a focus on a closed construction process in a factory setting and leaving basic assembly activities for on-site work. This approach often employed large panel methods (i.e., panelised construction), and by the end of the 1970s, the UK CI had progressed towards volumetric construction, with modular construction becoming more prevalent in the 1990s [2]. In 2019, the UK government defined modern methods of construction (MMC) as an umbrella term for seven categories of OSC forms that encompass all the previously listed taxonomies, all of which share the fundamental principle of relocating on-site work to a factory environment [19].
The persistent promotion of MMC, particularly off-site modular construction in the UK, can be attributed to the perceived sustainability benefits derived from these practices. Evidently, the low level of embodied carbon during the manufacturing and assembly processes, as well as the potential for standardisation of designs and building components have been acknowledged by scholars and the UK government [2,4,19]. By standardizing components, they can be more readily reused and recycled at the end of their lifecycle, thus reducing the future demand for raw materials and component production and representing a significant step towards achieving greater sustainability [21].
Overall, it can be identified that the scholars have widely researched OSC in various forms and specifications. Despite this, there is unanimous agreement among scholars regarding the advantages and capabilities that OSC may provide over traditional construction, which will be discussed in the following section.
2.2. Advantages of Modular Construction
Table 1 summarises the key advantages of modular construction and the supporting literature. These advantages, ranging from improved quality control to enhanced mobility, make modular construction an attractive alternative to traditional construction methods for a wide range of building projects.
Table 1.
Advantages of modular construction.
Although modular construction has been recognised for its numerous benefits, it is crucial to acknowledge the associated complexities and challenges, which will be discussed in the following section.
2.3. Challenges for Modular Construction
Table 2 presents a critical and advanced overview of the challenges faced by modular construction, organised into six broad categories. These challenges are based on previous research and are intended to provide a comprehensive understanding of the challenges faced by the industry.
Table 2.
Challenges for modular construction.
After extensively reviewing the literature, it is apparent that modular construction faces a plethora of challenges, primarily pertaining to design, logistics, and financial overruns. However, there exists a paucity of research delving into the reasons behind its underutilisation and the persistent preference for traditional construction techniques.
3. Research Methodology
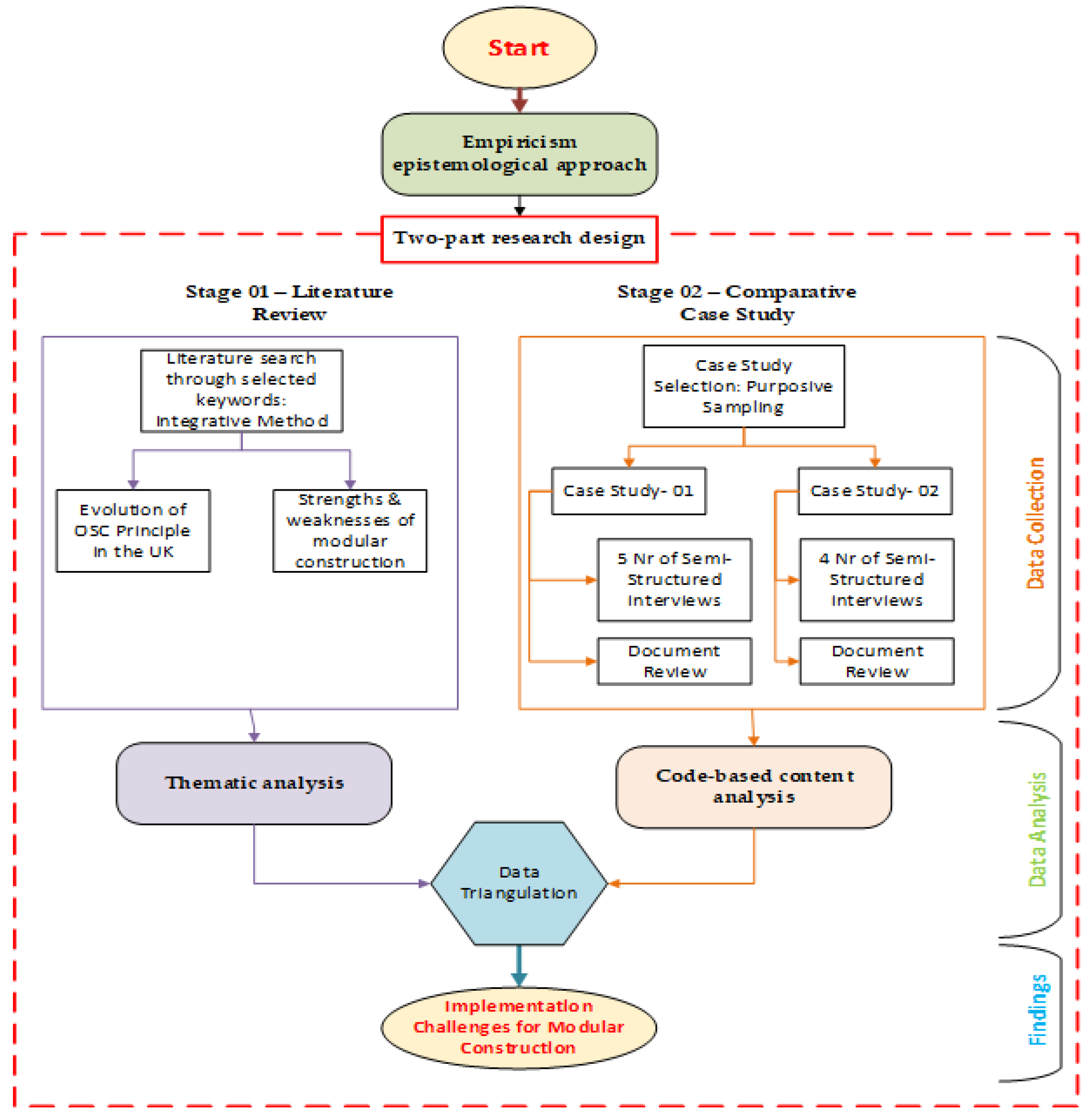
The deployment of an empiricism epistemological approach was deemed necessary to acquire knowledge regarding the procedural difficulties faced by UK contractors during modular construction application [45]. Consequently, a two-part research design was formulated to steer the research process as illustrated in Figure 1. Stage one encompassed a comprehensive, focused literature review that employed an integrative methodology to investigate the development of the underlying principle of off-site construction (OSC) and its inherent strengths and weaknesses. As Synder [46] noted, this integrative method facilitated a more rigorous form of inquiry that introduced fresh perspectives on the existing matters by allowing for creative synthesis and critical analysis. In stage two, a multi-case study design consisting of two modular-based development projects located in Newcastle city centre, United Kingdom, was conducted using purposive sampling as prescribed by Schoch [47]. In order to maintain a controlled environment, the chosen projects were restricted to similar areas of modular building construction, specifically student accommodation.
Figure 1.
Adopted research process of the study.
3.1. Data Collection
A multi-case study was chosen as the research design for this study; it was chosen over a single-case study due to its capacity to provide a more comprehensive analysis of the contextual factors that impact modular construction in the UK. The ethical clearance for the study was granted by the Northumbria University Research Ethics Council, after which two projects were chosen as case studies through purposive sampling. Specifically, a sample of five modular builders from the Northeast region was identified from the Modular and Portable Building Association Directory to ensure that the sample selection was purposeful and deliberate. Additionally, the majority of data collection in the case studies was completed through reviewing project-specific documentation, followed by semi-structured interviews. Semi-structured interviews were deemed as the favoured data collection technique within the multi-case study research design, as they enable further interrogation/cross-examination (if desired) to gain more knowledge from the respondents without being limited to a set of questions, as is the case with structured interviews or questionnaire surveys [48,49]. Hence, the study utilised a semi-structured interview approach as the primary data collection instrument to identify problematic instances encountered during the case studies and to gain insights into how these problems were overcome [50]. Table 3 shows that the interviewed professionals encompass a diverse range of implementation aspects related to modular construction in the construction project environment (i.e., including coordination, logistics, and financial considerations).
Table 3.
The profiles of interviewees.
The sample size utilised in this study is consistent with Townsend’s [51] recommendations, which stipulate that qualitative research employing semi-structured or in-depth interviews should have a sample size ranging from 5 to 25. Townsend also asserts that the depth of data collected, rather than the frequency of responses, is the key determinant of sample size in qualitative research, necessitating careful selection of suitable respondents, as was observed in this study. In conjunction with the data gathered from the respondents, a comprehensive document review was conducted during site visits of the chosen case studies. This involved a detailed examination of critical project documents, such as the structural and architectural drawings, the Bill of Quantities (BOQ), contract documents, and meeting minutes on project progress. Further to ethical considerations, both cases were maintained with anonymous entries. With informed consent, the semi-structured interviews were recorded and transcribed.
3.2. Data Analysis
The study adopted thematic analysis as the primary technique to explore patterns within the collected qualitative data [52], with the main objective of highlighting relevant themes and concepts of interest [53]. In particular, the analysis aimed to condense and organise the findings in a manner that facilitates appropriate conclusions and theories and supports recommendations for future research [54]. Given the qualitative nature of the collected data, this study implemented the evaluation and coding of data to extract meaningful insights.
Additionally, the study assessed the willingness of respondents to engage with modular construction in the future, thereby allowing for the development of conclusions regarding the scale of the challenges faced. The design of the interview questions was found to be critical in achieving the desired research objectives. As such, the interview guideline was structured in a way that enables the identification of attitudes towards modular construction and the challenges faced by contractors in this domain. This information is of particular interest, as it allowed for an understanding of whether these challenges are negatively impacting contractors’ preference for this construction method.
Moreover, the selection of a diverse group of professionals with different roles within the case study facilitated offering a holistic view of the constraints faced throughout the project [55]. By gathering information from various top-down levels, the authors were able to identify the attitudes of the entire project team towards modular construction and the challenges faced by contractors in this domain. The comprehensive data collected by the study also enabled the researchers to develop appropriate recommendations that may aid in overcoming the challenges faced by the contractors in future.
3.3. An Overview of the Case Studies
3.3.1. Case Study 01
The selected case study 01 pertains to the construction of a new student accommodation comprising 1277 bedrooms split across six blocks and worth £72 million; it was considered the UK’s largest prefabricated volumetric modular building system at the time of construction. The project has already received two awards for the most innovative large project within the UK. The site’s location in a busy city centre posed logistical challenges due to its proximity to the city’s largest hospital, a university student campus, and various residential areas (see Figure 2).
Figure 2.
Planview of the congested construction site location of Case Study 01.
The construction project’s complexities demanded in-depth consideration to ensure that construction-related traffic was managed to avoid any disruption, particularly to the hospital. With student accommodation required to be ready for the September intake, failure to deliver on time would result in the loss of an entire year’s revenue, estimated to be around £7 million. Thus, reducing the project’s program period was a priority for the client.
In addition, the gross internal floor area for the six blocks totals approximately 37,000 m2, with each block varying from four to nine storeys. Each block features a crucifix design, with the core areas constructed entirely of traditional materials such as steel frames, reinforced concrete, and masonry and cladding facades (see Figure 3).
Figure 3.
Crucifix design of each building block: bedroom modules.
Due to budget constraints, it was deemed more feasible to use the traditional element for the building core, which significantly reduced costs and made it cost-effective to employ two construction methods. Ultimately, the use of traditional construction methods reduced costs by £1 million.
Taking into account the specifics of the internal module design of each block, a typical module was composed of two opposing bedrooms connected by a small corridor area. These modules were then assembled alongside each other, in order to interconnect them (refer to Figure 4).
Figure 4.
Schematic drawing of bedroom modules.
The project was implemented over a two-year period, and according to the construction planner, it was completed 6–9 months faster than if it had been constructed using traditional methods. For example, it took only 18 days to assemble the modular units for one block, which comprised 192 bedrooms and 24 communal spaces over six floors, weighing approximately 2000 tonnes. Each modular unit weighed about 10 tonnes and was 12 m in length.
The overall timeframe for the package was faster than traditional methods; it took 18 weeks to manufacture block 6, which consisted of 64 modular units. Shipping time was 6 weeks from China to the UK, and 3 weeks were allocated within the program for site works and erection. The complete package program took 84 weeks for the construction of 1277 bedrooms, complete with ensuites and kitchen areas. The 789 modules were manufactured in China and shipped to Southampton, where each module was transported to the site in Newcastle upon Tyne on specialised articulated lorries. Selected just-in-time deliveries were put in place, and a 500-tonne crane was employed to lift the modules into place, as illustrated in Figure 5.
Figure 5.
Artistic impression of the lifting and positioning of bedroom modules in the building frame through a crane.
Given the high value of the package, there were concerns regarding large upfront payments and the risk of subcontractor insolvency; therefore, performance bonds had to be included within the contract. International shipping law was extensively considered, given the high value of the products being shipped. The contractor also had to ensure that maritime insurance was obtained for protection during the shipping period. As the modular units, including electrical accessories, were manufactured in China, all items had to comply with UK Standards.
3.3.2. Case Study 02
Case study 02 involved the construction of a £8.3 million student accommodation project in Newcastle City Centre, comprising 206 rooms and with a gross internal floor area around 5600 m2. Despite being located in a highly constrained site, the project was completed in 42 weeks, a full 17 weeks faster than traditional construction. Modular construction was adopted as the only viable option to meet the project’s tight schedule, enabling completion in time for the September student intake.
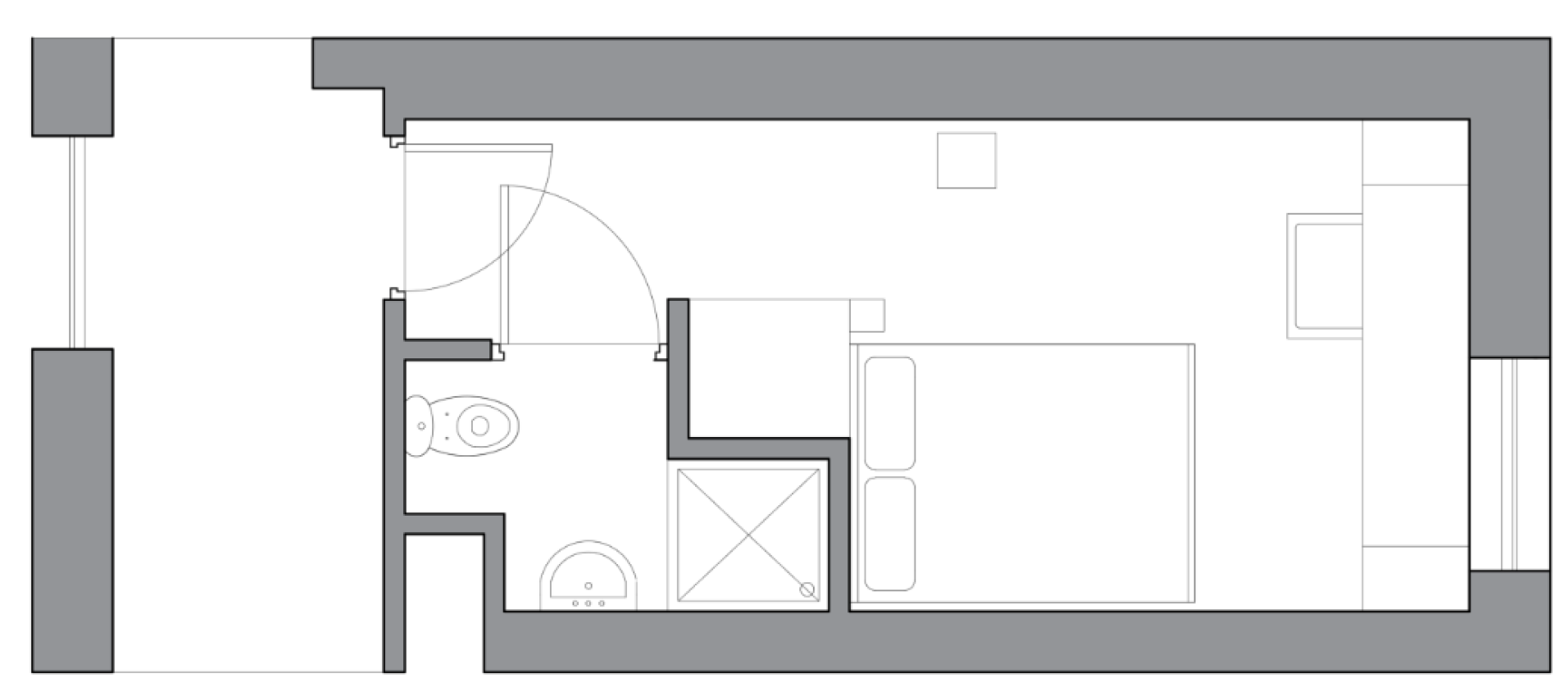
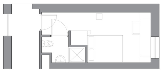
The five-floor building was designed with eight clusters per floor, with each cluster having shared kitchen and living areas. All bedrooms were equipped with ensuites, including 54 studio flats and 2 accessible bedrooms (See Figure 6 for the bedroom layout and Figure 7 for the floor layout). The main contractor staff described the project as “highly constrained” due to its location.
Figure 6.
The layout of a studio-type bedroom module.
Figure 7.
The floor layout consisting of bedroom modules (ensuite and studio types).
The construction of the building was entirely based on modular construction, where 300 units were prefabricated off-site by a specialised modular manufacturer in Hull, UK. The modules were produced while the existing building was being demolished to make way for the foundation. After manufacturing in Hull, the modules were transported to Newcastle upon Tyne for installation via crane. The contractor had to obtain permission for road closures due to the confined site location, necessitating compliance with a strict construction schedule.
Upon arrival of the modules on site, the assembly of the building was completed within a mere 17 weeks, thus reducing the construction time significantly. Followingly, the on-site work for the modules was the completion of internal elements, including decoration and furniture. The external facade was then finished with rain screen cladding, coated in varying shades of green.
4. Research Findings
The research findings presented in this section were derived from document reviews and semi-structured interviews conducted as part of two case studies exploring the challenges faced by UK contractors in implementing modular construction. Three emerging themes were identified as the main challenges, namely economic, design, and site constraints, which are common to both case studies. These themes were thematically analysed in depth using manual content analysis drawn from the collected data.
4.1. Economic Considerations
The adoption of modular construction was found to present economic challenges to contractors, a finding that requires careful consideration. One such challenge pertains to the risk of insolvency of modular contractors, and the corresponding need to develop mechanisms to mitigate such risks. C1R4, for instance, pointed out that “the challenge with modular is ensuring they will still be standing when you require the final unit being delivered…main contract and sub-contract conditions need to reflect this”. Case 01, for example, took out non-performance bonds to protect itself from the risk of the contractor becoming insolvent. This concern was echoed in C2R3, where there was anxiety about “the financial standing of the supplier”. Given the substantial upfront costs involved in modular construction, it is imperative to incorporate legal terms and conditions into contracts to protect the interests of the main contractors and clients, especially in view of the high value and bespoke nature of the package. As C2R3 noted, obtaining insurance can also be problematic since the modules are not held in one place. This challenge is likely to be exacerbated in Case 01, where modules were manufactured in China and shipped to the site.
Furthermore, C1R3 identified an issue regarding shipping law, questioning who would ultimately bear responsibility and cost if the modules were lost in transit. Case 01 mitigated this risk by taking out maritime insurance to cover the contractor in the event of such an occurrence. Both cases faced risk factors such as high delivery costs or the possibility of the contractor becoming insolvent, even when payments were made upfront to suppliers.
Despite the higher construction costs associated with modular construction compared to traditional methods, as noted by C2R2 who stated that “modular [was] 10% more expensive”, Case 01 still found the method to be financially viable due to a reduction in preliminaries, resulting in reduced construction finance costs. C1R3 also observed that modular construction resulted in a “6–9 month reduction” in construction time, leading to cost savings in terms of prelims, contractor staff, welfare, and overhead costs. The benefits of reduced construction time and increased programme certainty were cited as key factors in selecting modular construction. C1R1 specifically mentioned the decreased construction period and the infeasibility of traditional methods from a programme perspective. The majority of respondents [C1R2, C1R3, C1R4, C1R5] in Case 01 also noted the benefits of modular construction, with C1I2 citing the “programme certainty on a large proportion of the internal fit-out, which minimises the risk to the programme” and C1R3 confirming that modular construction “reduces programme risk and reduces risk of lack of labour”. Interestingly, Case 01 utilised both traditional and modular construction methods, with the “core” area being constructed traditionally due to budget constraints. The contractor estimated that this saved the client £1million, making it a financially feasible option.
Both case studies relied on modular construction as the chosen method to meet the deadline for the September student intake and maximise revenue opportunities for the clients. The primary focus for both projects was to benefit the clients financially, and modular construction was deemed the only option to ensure timely completion. The reduction in program duration allowed the clients to generate revenue, which ultimately exceeded the additional construction costs. As noted by C1R1, “the client gains revenue by the project handing-over compared to traditional methods”, a similar sentiment echoed in Case 02 by C2R3, who claimed that the “client will see quicker return on investment by selecting the faster construction method”. Thus, while modular construction may be more expensive in terms of construction costs, the reduction in other expenses such as contractor staff, site set-up, and trades makes it a viable option from a client perspective.
Both case studies encountered issues in instances where the site was not ready for assembly of the modules. Case 01 was situated in a busy city centre with significant traffic congestion, and Case 02 was also located in the city centre, with limited space around the site boundary. C1R4 noted that “off-site storage costs can be substantial” if the site is not prepared for delivery. Due to the modular size, units were not easily stored and had to be moved off-site until the site was ready. This differs from traditional construction, as sites can usually be self-sufficient, with materials arriving on reasonably sized palettes and laydown areas available. In addition to the excessive storage costs, the re-delivery costs and crane hire periods must also be factored in. Furthermore, as the modules are designed for manufacturing, the product cannot be altered once composed, resulting in costly adjustments if modifications are necessary. C2R2 claimed that “everything had to be fully designed… there could be no later changes”, which would result in exorbitant costs and impact the program.
4.2. Design Issues
Both Case 01 and Case 02 declared that the design had to be finalised before manufacturing, which resulted in a lack of design flexibility, unlike traditional building methods. Before starting on site, there was a significant amount of communication between the architects and manufacturers, as evidenced by C2R3’s statement that the “architect collaborated heavily with the manufacturer to agree on items”, which is consistent with C1R1’s explanation that the “design had to be approved by the UK team before manufacture” and that “all designs had to be fully selected with no changes”. This design process differed from traditional construction methods as it focused more on the finer details, which are typically agreed upon at a later stage. For instance, according to C1R1, “design decisions and sign-off items such as finishes happen much earlier in the construction sequence, for example, carpet types, colours, furnishings are all selected prior to commencement of the groundworks”. This view is further supported by C1R2, who alleged that “a lot of effort and time went into the finer design detail a lot earlier in the process than a non-modular build”. Furthermore, the main focus of the design process in modular building is on internal finishes, as per C2R3, who claimed that “the civil and structure design process did not differ significantly”.
Both case studies experienced design issues related to movement and tolerances during shipping, as reported by C2R1, who stated that there were “tolerance issues, brickwork size, M&E dry lining, and fire stopping works were difficult due to restricted access to the product”. However, these issues were addressed by the metalwork contractor who made changes to the frame to align the modules. Additionally, limited access due to the module design presented challenges in applying fire sealants and intumescent protection. C1R3 emphasised the necessity of conducting “various quality control inspections to check for compliance” before shipment; unfortunately, there were still quality issues during the shipping period, as reported by C211, who cited “damage during transport that caused water ingress issues”. Similarly, C213 claimed that the modules were not of high quality and had also faced water ingress problems.
In Case 01, design issues with module tolerances were also encountered, as noted by C1R2, who reported “defective design and install of water feed, brickwork, cladding, dry-lining and M&E design issues”. As confirmed by C1R1, there were oversights during the procurement of the modules, and upon arrival on site, there were several months of work required to bring them up to standard. This was due to movement within the structure during shipping, resulting in cracks and tolerance issues. C2R3 reported that plaster cracking occurred during the lifting process, requiring re-plastering, re-decoration, and re-cleaning of the modules, which affected the schedule.
In terms of building design regulations, Case 01 faced significant challenges, while case 02 did not encounter challenges to the same degree. This could be attributed to the fact that the modules in case 01 were manufactured in China, whereas those in case 02 were manufactured in the UK. C1R1 highlighted that it was difficult to ensure compliance with UK regulations during the design process, given that the product was being manufactured in China. Building control also expressed uncertainty, particularly since many of the electrical accessories failed British standard tests upon arriving in the UK. As C1R3 explained, since the items were “foreign manufactured”, they had to comply with UK building regulations. These challenges were addressed through extensive conversations between the UK and China design teams prior to manufacturing, although there were instances where small electrical accessories failed British standard tests on site, resulting in their replacement by the UK manufacturer’s team. C1R2 and C1R3 noted that fire strategy proved difficult and more challenging, as the project was being constructed around the same time as the Grenfell tragedy. Given that the product in Case 01 was foreign manufactured, building compliance was even more closely scrutinised. Consequently, more attention was paid to ensuring that the design was compliant with UK Standards, and the fire strategy had to be re-examined, resulting in delays on site and within the program.
Regarding demolition and disposal, C1R4 reported a “greater percentage of recycling element”, in which modules could be soft-stripped, unbolted, and lifted away from the building, and the metal could be recycled. However, C2R2 and C2R3 stated that the demolition and disposal strategy was not considered, as it was viewed as an investment.
4.3. Site Constraints
The consequences of these logistic issues were dire, with the interruption of just-in-time deliveries resulting in substantial off-site storage costs, as claimed by C1R4. Furthermore, there was great risk involved in whether the site would be ready to receive the modules, and failure to do so would result in high storage costs, as asserted by C1R2. C2R1 also noted that “there was an issue with material delivery/storage, meaning just-in-time deliveries were essential”. In the absence of contingency plans, any delay in the program could have severe consequences for the project’s productivity.
Just in time deliveries were crucial in both cases, as storage was a challenge. As a result, C1R2 stated that there were instances when the modules could not be lifted due to poor weather, and as a result, the modules had to be stored, which was costly and affected the schedule. Furthermore, both projects had to carefully plan logistics to avoid any disruptions to site productivity. C1R2 claimed that they experienced “a downturn in expected productivity on the traditionally built elements of the project due to the unknown and unfamiliar interface details with the module system”. Due to the size of the modules, it was difficult to manage logistics, especially in Case 02, where the site boundary was extremely close to the building line. C2R1 explained that a road closure was necessary for approximately six weeks while taking delivery of the modules. This was costly and required approval from the council; local traffic was affected, potentially causing backlash from the public.
One other notable challenge was the reliance on weather conditions to operate the crane, which affected the ability to keep to the program with just-in-time deliveries. As a result, there were occasions when the crane could not operate due to strong winds, leading to delays and cost overruns. The logistics issues were further compounded by limited storage space and restricted site locations in both cases. C1R2 alleged that there was “limited storage space and [the site was] close to nearby hospital and ambulance routes”, and C1R3 confirmed that “there was no storage, so modules were delivered on a just-in-time basis”.
Coordination of works around modular installation and lifting equipment proved challenging due to the crane laydown area of the “500T” crane. For instance, in Case 01, areas had to be closed off to external trades such as groundworks, and access was only given to the modular contractor, making it difficult for other trades to continue with their works. C1R1 also noted that modular was considered as the “unknown”, leading to uncertainty from stakeholders. The popularity of traditional methods may explain the lack of new means being implemented, as the skill gap within modular construction proved to be a recurring theme in both case studies. Many professionals had little or no experience in this field, and even though their experience in the construction industry varied from five to thirty-one years, they still struggled with the lack of knowledge about modular construction.
The lack of a modular interface with sub-contractors presented a significant barrier on site, which was exacerbated by their limited experience with modular construction. As C1R2 noted, “our supply chain had no previous experience”, which C2R1 confirmed: “there was a lack of knowledge due to modular being a relatively new method”. Toolbox talks were implemented to help overcome this obstacle and improve communication with all trades. In Case 01, the modules were manufactured in China, which resulted in ongoing communication challenges for the UK-based contractor and design team. The main contractor’s team had difficulty communicating with the Chinese design team, whose first language was not English, and the UK design team struggled with the newness of modular construction and the difficulties of agreeing on design details through email or phone communication. As C1R1 and C1R4 both alleged, the lack of experience within the UK design team and the limited English proficiency of the Chinese design team made communication a significant challenge. They attempted to overcome this by increasing communication via email.
In both Case 01 and Case 02, modular construction was chosen due to time constraints. According to C1R4, modular construction was selected for “speed of construction as work had to be completed within two academic years”. In addition, C2R2 confirmed that the contractor could complete the “scheme a year ahead of schedule by choosing modular over traditional”. However, while modular construction is generally viewed positively, C2R1 claimed that there was a “tight programme” due to the challenges of managing numerous 13-tonne modules arriving on site for placement. As C2R1 explained, the main “concern regarding risk was the tight programme” because the modules had to be installed on the allocated slot; otherwise, it could affect the entire schedule.
Overall, all nine respondents acknowledged that they would consider modular construction again, albeit with some reservations. The respondents in Case 01 opined that they would prefer a united/integrative construction approach and indicated that a comprehensive modular strategy would have obviated many of the implementation challenges they encountered. They also conveyed that procuring a UK-based supplier would have facilitated communication and reduced their emphasis on adherence to British standards. In Case 02, the respondents also affirmed their intention to use modular construction in the future, subject to making some adjustments to the mechanical and electrical system and ensuring that the structure was impervious to weather conditions before initiating internal works.
5. Discussion of Research Findings
The analysis of UK contractors’ experiences during modular construction implementation revealed a range of constraints, which were classified into three distinct themes: economic considerations, design complexities, and site constraints. These themes are presented in Figure 8.
Figure 8.
The conceptualisation of implementation challenges of modular construction for UK contractors.
5.1. Economic Viability in Modular Construction in Comparison to Traditional Construction
The economic viability of modular construction in comparison to traditional ‘on-site’ construction has been a subject of considerable debate in recent years. While the HM Government report [56] suggested that modular construction costs 33% less than traditional methods, KPMG’s [57] study found that modular construction costs more than the corresponding on-site construction methods. This can be attributed to manufacturers withholding savings from the public. In light of these findings, it emerged that modular construction was, in fact, 10% more expensive than traditional building methods. While the overall cost of the project was still feasible, acknowledging reductions in other costs such as preliminaries, it is worth noting that in one case, the building cost was initially over budget when proceeding with modular construction. Consequently, in Case 01, the implementation of traditional elements of the building resulted in a savings of £1 million, bringing the project under the client’s budget.
The empirical findings indicate that insurance for modular construction is expensive and challenging to obtain, requiring contractors to secure legal coverage for potential shipping mishaps, such as modules being lost during marine transportation. Secondary data support these results, indicating that transportation challenges are contingent on the location of manufacturing and country-specific regulations that must be observed [8,58]. Moreover, transportation could create substantial constraints for contractors, depending on the delivery site’s location and the modules’ source. Additionally, the correlation between transportation challenges and traffic control regulations must also be considered. In one instance, road closures were in effect for six weeks during module delivery.
5.2. Complexities in Design, Manufacturing, and Assembly in Modular Construction
The empirical findings demonstrate that design flexibility is a critical issue in modular construction, as the design must be signed off before manufacturing begins, thereby limiting flexibility during the manufacturing and assembly stages. This finding is supported by the seminal literature, which suggests that inflexibility during the design process can lead to significant risks, cost overruns, and potential delays during modular building manufacturing and assembly [59]. As such, efficient communication among multidisciplinary teams becomes even more important during the design and manufacturing phases, and careful attention must be paid to practical considerations during the design process [60]. However, it is important to note that lack of collaboration among different professionals is noted to be deep and long rooted in the CI, and addressing these fundamental complexities as the first step is necessary to overcome the design issues in modular construction.
Despite the absence of major design changes during the manufacturing and assembly of modules, the fire strategy design was found to cause significant delays on site, thereby negatively impacting the project’s timeline in both the case studies. The opinions of the respondents were gathered, and their views were collated with UK CI–specific reasons, particularly in light of the Grenfell tragedy, which brought considerable scrutiny to bear on fire testing. This event coincided with a transitional phase in the UK CI, as the authorities sought to upgrade existing fire safety regulations. Moreover, tolerance challenges were noted in both primary and secondary data, with shipping movement identified as a leading cause of problems. It is worth noting that the literature review confirms that limitations in modular construction are inherent, with issues related to design, transportation, and tolerances [61]. Therefore, despite the product arriving as a fully finished unit, defects can occur during shipping, leading to potential complications for the contractor.
Modular construction presents a significant design challenge in complying with building regulations, as modules produced in different countries with varying standards may fail to meet necessary regulations. In the cases studied, some electrical accessories had to be replaced to align with British standards. While waste reduction has been identified as a benefit of modular construction, owing to the controlled construction environment [27,28], regulatory compliance remains a pressing concern. Additionally, modular construction may lead to a higher percentage of recyclable waste, thus facilitating the recycling process [59].
5.3. Site Constraints and Human Resources for the Implementation of Modular Construction
The promotion of modular construction as a means to reduce weather-related delays in the UK construction industry has been a consistent theme in the literature [13,34]. Modular construction aims to improve construction methods by increasing in-house efficiency, as traditional construction is heavily reliant on unpredictable weather conditions, which can pose challenges for contractors [35]. However, case studies indicate that weather conditions still have a significant impact on the use of cranes for lifting modules, resulting in delays, increased storage costs, longer crane hire periods, and an overall impact on the construction programme (primary data analysis). The expected crane load also needs to be considered, as it can impact the site and make it difficult to coordinate trades [26].
Contrary to the anticipated increase in site productivity and construction performance [4,22], contractors encountered a decrease in productivity compared to traditionally built structures due to unfamiliarity with the module system (Case Study 01). Additionally, the communication barrier with the Chinese design team (i.e., from whom Case 01 procured the modules) posed a significant challenge due to language and cultural differences, similar to the findings of McGraw Hill Construction [62]. The successful implementation of modular construction in the UK is contingent upon the availability of contractors with specialised knowledge and experience in this area [17,40]. Unfortunately, \ UK construction industry professionals are found to lack familiarity with modular construction techniques. As a result, industry stakeholders remain hesitant to invest in modular construction due to concerns over product quality and supplier engagement, which has presumably slowed the adoption of this method [11,16].
6. Conclusions and Way Forward
Change is an inevitable part of any business or industry, but a failure to embrace it can lead to anachronism and alienation from the public. The construction industry, particularly in the UK, has been criticised for its reluctance to adopt innovations despite frequent calls from the government to address the country’s housing shortage. Modular construction has been proposed as a solution to some of the deep-rooted issues within the industry, but little is known about its actual implementation and the challenges faced by the modular contractors. This study aims to bridge this gap in knowledge by exploring the realities of modular construction implementation and the expectations of UK contractors. The empirical evidence suggests that modular construction offers several benefits, such as reduced waste and controlled construction environments. The empirical research substantiates the industry’s strong interest in utilising modular construction as a solution for site limitations and tight timeframes, as identified in both case studies. However, it is not without its challenges for an efficient implementation, and careful consideration must be given to these challenges, namely, economic considerations, design issues, and site constraints.
The economic feasibility of modular construction remains debatable, with some cases demonstrating cost savings, but with transportation challenges and insurance difficulties increasing overall project costs. Inflexibility during design and regulatory compliance present additional hurdles to modular construction’s viability in the UK. Although modular construction is promoted as a resolution for weather-related delays, crane usage is still heavily influenced by weather conditions, leading to delays and increased costs. Meanwhile, the communication among multidisciplinary teams is crucial during the design and manufacturing stages, with attention given to practical considerations. Addressing the lack of collaboration among professionals is also necessary to overcome design issues. Transportation poses constraints for contractors, requiring careful consideration of modular construction’s potential benefits and drawbacks.
This empirical investigation is not without limitations, particularly with regards to methodological aspects. Firstly, the small sample size, combined with the selection of two case studies from the Northeast region, may pose difficulties in generalising the findings to contractors in other parts of the UK. Therefore, future research should seek, at various geographical locations in the UK, to obtain a more representative sample. Additionally, while implementation challenges were identified, the present study did not fully explore their significance or severity. Thus, future research should aim to address this limitation by employing larger sample sizes and utilising advanced statistical quantitative analysis techniques.
Overall, this study identified that the implementation of modular construction in the UK requires a more nuanced understanding of the complexities and constraints within the construction industry. On the other hand, modular construction cannot be considered a panacea for the UK construction industry’s challenges, and it is essential to weigh its potential benefits against the challenges that it presents. Thus, a concerted effort to address the challenges identified through collaborative approaches can facilitate the transition to more efficient and sustainable construction practices such as modular construction. Despite the long-standing need for a concerted effort, as highlighted by various industry reports, this study aims to provide fresh perspectives and momentum towards achieving this goal. Ultimately, this study highlights the need for a shift towards more collaborative and integrated approaches to construction, which can address the deep-rooted issues within the industry and lead to a more sustainable future.
Author Contributions
Conceptualization, M.A. and N.T.; methodology, A.R.; validation, M.A., N.T. and A.R.; formal analysis, A.R.; investigation, M.A.; writing—original draft preparation, A.R.; writing—review and editing, A.R.; visualization, S.S.; supervision, N.T. All authors have read and agreed to the published version of the manuscript.
Funding
This research received no external funding.
Institutional Review Board Statement
This study obtained ethical approval from Northumbria University at Newcastle upon Tyne, UK.
Informed Consent Statement
Informed consent was obtained from all subjects involved in the study.
Data Availability Statement
The data presented in this study are available on request from the corresponding author.
Conflicts of Interest
The authors declare no conflict of interest.
References
- Wilson, W.; Barton, C. Tackling the Under-Supply of Housing in England; House of Commons Library: London, UK, 2022. [Google Scholar]
- Ehwi, R.J.; Oti-Sarpong, K.; Shojaei, R.; Burgess, G. Offsite Manufacturing Research: A Systematic Review of Methodologies Used. Constr. Manag. Econ. 2021, 40, 24. [Google Scholar] [CrossRef]
- Malik, N.; Ahmad, R.; Chen, Y.; Altaf, M.S.; Al-Hussein, M. Minimizing joist cutting waste through dynamic waste allocation in panelized floor manufacturing. Int. J. Constr. Manag. 2019, 21, 1011–1023. [Google Scholar] [CrossRef]
- Hussein, M.; Eltoukhy, A.E.; Karam, A.; Shaban, I.A.; Zayed, T. Modelling in off-site construction supply chain management: A review and future directions for sustainable modular integrated construction. J. Clean. Prod. 2021, 310, 127503. [Google Scholar] [CrossRef]
- Young, E.; Seidu, R.; Thayaparan, M.; Appiah-Kubi, J. Modular Construction Innovation in the UK: The Case of Residential Buildings. In Proceedings of the International Conference on Industrial Engineering and Operations Management, Dubai, United Arab Emirates, 10–12 March 2020. [Google Scholar]
- Parliament. What Are the Barriers in the Wider Uptake of Off-Site Manufacture? Lords Select Committee. 2018. Available online: https://www.parliament.uk/globalassets/documents/lords-committees/science-technology/off-site-manufacture-for-construction/off-site-manufacture-construction-ev.pdf (accessed on 13 January 2023).
- Kamali, M.; Hewage, K. Development of performance criteria for sustainability evaluation of modular versus conventional construction methods. J. Clean. Prod. 2017, 142, 3592–3606. [Google Scholar] [CrossRef]
- Lu, N. The Current Use of Offsite Construction Techniques in the United States Construction Industry. In Proceedings of the Construction Research Congress, Seattle, WA, USA, 5–7 April 2009. [Google Scholar] [CrossRef]
- Lu, N.; Korman, T. Implementation of Building Information Modeling (BIM) in Modular Construction: Benefits and Challenges. In Proceedings of the Construction Research Congress, Banff, AB, Canada, 8–10 May 2010. [Google Scholar] [CrossRef]
- Azman, M.; Ahamad, M.; Hanafi, M. The Common Approach in Off-Site Construction Industry. Aust. J. Basic Appl. Sci. 2010, 4, 4478–4482. [Google Scholar]
- Knight Frank. Housebuilding Report 2018; Knight Frank: London, UK, 2018; Available online: https://content.knightfrank.com/research/297/documents/en/uk-housebuilding-report-2018-5682.pdf (accessed on 12 March 2019).
- Chourasia, A.; Singhal, S. Manivannan Prefabricated Volumetric Modular Construction: A Review on Current Systems, Challenges, and Future Prospects. Pract. Period. Struct. Des. Constr. 2023, 28, 03122009. [Google Scholar] [CrossRef]
- Iacovidou, E.; Purnell, P.; Tsavdaridis, K.D.; Poologanathan, K. Digitally enabled modular construction for promoting modular components reuse: A UK view. J. Build. Eng. 2021, 42, 102820. [Google Scholar] [CrossRef]
- Ferdous, W.; Bai, Y.; Ngo, T.D.; Manalo, A.; Mendis, P. New advancements, challenges and opportunities of multi-storey modular buildings—A state-of-the-art review. Eng. Struct. 2019, 183, 883–893. [Google Scholar] [CrossRef]
- Choi, J.O.; Chen, X.B.; Kim, T.W. Opportunities and challenges of modular methods in dense urban environment. Int. J. Constr. Manag. 2017, 19, 93–105. [Google Scholar] [CrossRef]
- Farmer, M. The Farmer Review of the UK Construction Labour Model: Modernise or Die; Construction Leadership Council: London, UK, 2016. [Google Scholar]
- Egan, J. Rethinking Construction: The Report of the Construction Task Force, DTI (URN 98/1095); Construction Task Force: London, UK, 1998. [Google Scholar]
- Zenga, M.; Javor, A. Modular Homes: The Future Has Arrived; Fideli Publishing: Martinsville, IN, USA, 2008; ISBN 9781604140675. [Google Scholar]
- Ministry of Housing, Communities and Local Government (MHCLG). Modern Methods of Construction: Introducing the MMC Definition Framework; Cast Consultancy: London, UK, 2019. [Google Scholar]
- Abanda, F.; Tah, J.; Cheung, F. BIM in off-site manufacturing for buildings. J. Build. Eng. 2017, 14, 89–102. [Google Scholar] [CrossRef]
- Wu, H.; Hu, R.; Yang, D.; Ma, Z. Micro-macro characterizations of mortar containing construction waste fines as replacement of cement and sand: A comparative study. Constr. Build. Mater. 2023, 383, 131328. [Google Scholar] [CrossRef]
- Pan, W.; Sidwell, R. Demystifying the Cost Barriers to Off-Site Construction in the UK. J. Constr. Manag. Econ. 2011, 29, 1081–1099. [Google Scholar] [CrossRef]
- Pan, W.; Gibb, A.G.F.; Dainty, A.R.J. Strategies for Integrating the Use of Off-Site Production Technologies in House Building. J. Constr. Eng. Manag. 2012, 138, 1331–1340. [Google Scholar] [CrossRef]
- Goulding, J.; Pour Rahimian, F.; Arif, M.; Sharp, M. New offsite production and business models in construction: Priorities for the future research agenda. Arch. Eng. Des. Manag. 2015, 11, 163–184. [Google Scholar] [CrossRef]
- Park, H.K.; Ock, J.-H. Unit modular in-fill construction method for high-rise buildings. KSCE J. Civ. Eng. 2015, 20, 1201–1210. [Google Scholar] [CrossRef]
- Lawson, M.; Ogden, R.; Goodier, C. Design in Modular Construction; CRC Press: London, UK, 2014. [Google Scholar] [CrossRef]
- Kamali, M.; Hewage, K.; Sadiq, R. Economic sustainability benchmarking of modular homes: A life cycle thinking approach. J. Clean. Prod. 2022, 348, 131290. [Google Scholar] [CrossRef]
- Pan, W.; Zhang, Z. Benchmarking the sustainability of concrete and steel modular construction for buildings in urban development. Sustain. Cities Soc. 2023, 90, 104400. [Google Scholar] [CrossRef]
- Wasim, M.; Serra, P.V.; Ngo, T.D. Design for manufacturing and assembly for sustainable, quick and cost-effective prefabricated construction—A review. Int. J. Constr. Manag. 2020, 22, 3014–3022. [Google Scholar] [CrossRef]
- Jang, H.; Ahn, Y.; Roh, S. Comparison of the Embodied Carbon Emissions and Direct Construction Costs for Modular and Conventional Residential Buildings in South Korea. Buildings 2022, 12, 51. [Google Scholar] [CrossRef]
- Mostafa, N.; Kermanshachi, S.; Khalid, M.; Al-Bayati, A.J. Construction Safety Training: Exploring Different Perspectives of Construction Managers and Workers. In Proceedings of the 2020 ASEE Annual Conference & Exposition, Montreal, QC, Canada, 21–24 June 2020. [Google Scholar]
- Liu, C.; Sepasgozar, S.M.; Shirowzhan, S.; Mohammadi, G. Applications of object detection in modular construction based on a comparative evaluation of deep learning algorithms. Constr. Innov. 2022, 22, 141–159. [Google Scholar] [CrossRef]
- Mohandes, S.R.; Abdelmageed, S.; Hem, S.; Yoo, J.S.; Abhayajeewa, T.; Zayed, T. Occupational Health and Safety in Modular Integrated Construction projects: The case of crane operations. J. Clean. Prod. 2022, 342, 130950. [Google Scholar] [CrossRef]
- Shahzad, W.M.; Rajakannu, G.; Ghalenoei, N.K. Potential of Modular Offsite Construction for Emergency Situations: A New Zealand Study. Buildings 2022, 12, 1970. [Google Scholar] [CrossRef]
- Chen, L.; Zhai, C.; Wang, L.; Hu, X.; Huang, X. Modular Structure Construction Progress Scenario: A Case Study of an Emergency Hospital to Address the COVID-19 Pandemic. Sustainability 2022, 14, 11243. [Google Scholar] [CrossRef]
- Pan, W.; Gibb, A.G.F.; Dainty, A.R.J. Perspectives of UK housebuilders on the use of offsite modern methods of construction. Constr. Manag. Econ. 2007, 25, 183–194. [Google Scholar] [CrossRef]
- Zhang, W.; Lee, M.W.; Jaillon, L.; Poon, C.S. The hindrance to using prefabrication in Hong Kong’s building industry. J. Clean. Prod. 2018, 204, 70–81. [Google Scholar] [CrossRef]
- Arif, M.; Bendi, D.; Sawhney, A.; Iyer, K.C. State of offsite construction in India-Drivers and barriers. J. Phys. Conf. Ser. 2012, 364, 012109. [Google Scholar] [CrossRef]
- Gibb, A.; Isack, F. Re-engineering through pre-assembly: Client expectations and drivers. Build. Res. Inf. 2003, 31, 146–160. [Google Scholar] [CrossRef]
- Mao, C.; Shen, Q.; Pan, W.; Ye, K. Major Barriers to Off-Site Construction: The Developer’s Perspective in China. J. Manag. Eng. 2015, 31, 04014043. [Google Scholar] [CrossRef]
- Wu, G.; Yang, R.; Li, L.; Bi, X.; Liu, B.; Li, S.; Zhou, S. Factors influencing the application of prefabricated construction in China: From perspectives of technology promotion and cleaner production. J. Clean. Prod. 2019, 219, 753–762. [Google Scholar] [CrossRef]
- Ezzeddine, A.; de Soto, B.G. Connecting teams in modular construction projects using game engine technology. Autom. Constr. 2021, 132, 103887. [Google Scholar] [CrossRef]
- Ribeiro, A.M.; Arantes, A.; Cruz, C.O. Barriers to the Adoption of Modular Construction in Portugal: An Interpretive Structural Modeling Approach. Buildings 2022, 12, 1509. [Google Scholar] [CrossRef]
- Gan, X.; Chang, R.; Zuo, J.; Wen, T.; Zillante, G. Barriers to the transition towards off-site construction in China: An Interpretive structural modeling approach. J. Clean. Prod. 2018, 197, 8–18. [Google Scholar] [CrossRef]
- Amaratunga, D.; Baldry, D.; Sarshar, M.; Newton, R. Quantitative and qualitative research in the built environment: Application of “mixed” research approach. Work Study 2002, 51, 17–31. [Google Scholar] [CrossRef]
- Synder, H. Literature review as a research methodology: An overview and guidelines. J. Bus. Res. 2019, 104, 333–339. [Google Scholar] [CrossRef]
- Schoch, K. Case Study Research; Sage Publications: New York, NY, USA, 2020; Available online: https://uk.sagepub.com/sites/default/files/upm-assets/105275_book_item_105275.pdf (accessed on 20 October 2022).
- Fellows, R.; Liu, A. Research Methods for Construction, 3rd ed.; Wiley-Blackwell: Oxford, UK, 2015. [Google Scholar]
- Naoum, S. Dissertation Research and Writing for Construction Students, 3rd ed.; Routledge: Oxford, UK, 2007. [Google Scholar]
- Fontana, A.; Frey, J.H. The Interview: From Neutral Stance to Political Involvement. In The Sage Handbook of Qualitative Research; Denzin, N.K., Lincoln, Y.S., Eds.; Sage Publications Ltd.: New York, NY, USA, 2005; pp. 695–727. [Google Scholar]
- Townsend, K. Saturation and run off: How many interviews are required in qualitative research? In Proceedings of the 27th Australia and New Zealand Academy of Management Conference, Hobart, TAS, Australia, 4–6 December 2013; Available online: https://www.anzam.org/wp-content/uploads/pdf-manager/5_ANZAM-2013-002.PDF (accessed on 20 October 2022).
- Clarke, V.; Braun, V. Thematic analysis. J. Posit. Psychol. 2016, 12, 297–298. [Google Scholar] [CrossRef]
- Maguire, M.; Delahunt, B. Doing a Thematic Analysis: A Practical, Step-by-Step Guide for Learning and Teaching Scholars. 2019. Available online: http://ojs.aishe.org/index.php/aishe-j/article/view/335 (accessed on 26 April 2019).
- Devitt, P. Research essentials. Nurs. Child. Young People 2015, 27, 12. [Google Scholar] [CrossRef]
- Stake, R.E. Multiple Case Study Analysis; The Guilford Press: New York, NY, USA, 2006. [Google Scholar]
- HM Government. Construction 2025. Industrial Strategy: Government and Industry in Partnership; HM Government: London, UK, 2013. Available online: https://assets.publishing.service.gov.uk/government/uploads/system/uploads/attachment_data/file/210099/bis-13-955-construction-2025-industrial-strategy.pdf (accessed on 5 March 2019).
- KPMG. How Off-Site Manufacturing Can Transform Our Industry: KPMG. 2016. Available online: https://assets.kpmg.com/content/dam/kpmg/pdf/2016/04/SmartConstructionReport.pdf (accessed on 12 February 2018).
- Naqvi, D.; Wey, E.; Patel, J.; Siegert, G. Modularization in the Petrochemical Industry. In Proceedings of the Construction Research Congress, Boston, MA, USA, 3–5 April 2014. [Google Scholar] [CrossRef]
- Hyams, A.; McCann, E.; Ferguson, H. Construction Methods: Modular. Building. 2018. Available online: https://www.building.co.uk/data/construction-methods-modular/5094760.article (accessed on 20 October 2022).
- Lu, N.; Liska, R.W. Designers’ and General Contractors’ Perceptions of Offsite Construction Techniques in the United State Construction Industry. Int. J. Constr. Educ. Res. 2008, 4, 177–188. [Google Scholar] [CrossRef]
- Gibb, A.G.F. Offsite Fabrication-Preassembly, Prefabrication and Modularization; Whittles Publishing Services: Edinburgh, UK, 1999. [Google Scholar]
- McGraw Hill Construction. Prefabrication and Modularization: Increasing Productivity in the Construction Industry; McGraw-Hill Construction: Bedford, MA, USA, 2011. [Google Scholar]
Disclaimer/Publisher’s Note: The statements, opinions and data contained in all publications are solely those of the individual author(s) and contributor(s) and not of MDPI and/or the editor(s). MDPI and/or the editor(s) disclaim responsibility for any injury to people or property resulting from any ideas, methods, instructions or products referred to in the content. |
© 2023 by the authors. Licensee MDPI, Basel, Switzerland. This article is an open access article distributed under the terms and conditions of the Creative Commons Attribution (CC BY) license (https://creativecommons.org/licenses/by/4.0/).







