Next Article in Journal
Multi-Scenario Simulations of Land Use and Habitat Quality Based on a PLUS-InVEST Model: A Case Study of Baoding, China
Previous Article in Journal
Firm-Specific Determinants of Firm Performance in the Hospitality Sector in India
Previous Article in Special Issue
Holistic Quality Model and Assessment—Supporting Decision-Making towards Sustainable Construction Using the Design and Production of Graded Concrete Components as an Example
 
 
Font Type:
Arial Georgia Verdana
Font Size:
Aa Aa Aa
Line Spacing:
Column Width:
Background:
Article

Environmental Impact of a Mono-Material Timber Building Envelope with Enhanced Energy Performance

1
Institute for Computational Design and Construction, University of Stuttgart, 70180 Stuttgart, Germany
2
Department of Life Cycle Engineering, Institute for Acoustics and Building Physics, University of Stuttgart, 70569 Stuttgart, Germany
*
Author to whom correspondence should be addressed.
Sustainability 2023, 15(1), 556; https://doi.org/10.3390/su15010556
Submission received: 1 November 2022 / Revised: 23 December 2022 / Accepted: 23 December 2022 / Published: 28 December 2022
(This article belongs to the Special Issue Quality as Driver for Sustainable Construction)

Abstract

Broader adoption of timber construction is a strategy for reducing negative greenhouse gas (GHG) emissions created by the construction industry. This paper proposes a novel solid timber building envelope that uses computational design and digital fabrication to improve buildings’ energy performance. Timber beams are sawn with deep slits that improve thermal insulation and are milled with various joints for airtight, structural connections. To minimize embedded energy and to simplify disposal, the envelope is assembled without adhesives or metal fasteners. The building envelope is evaluated for thermal resistance and airtightness, and fabrication is evaluated for duration and power output during sawing. Finally, a Lifecycle Assessment (LCA) is carried out. The Global Warming Potential (GWP) is compared to that of other wood envelope systems with similar thermal conductance. Compared to other timber constructions with similar building physics properties, the proposed system showed lower GWP values (−15.63 kg CO2 eq./m² construction). The development and analysis demonstrate the potential to use digitally controlled subtractive manufacturing for improving the quality of solid timber to achieve higher environmental performance in building envelopes. However, further design and fabrication optimizations may be necessary to reduce required materials and production energy.

1. Introduction

Humanity is currently faced with the challenge of mitigating global climate change, whose impact has manifested in a myriad of disasters from heat waves to flooding to wildfires. We must act quickly to address these symptoms of and, more importantly, the underlying cause of climate change, which is, above all, the insulating effect of greenhouse gas (GHG) emissions, in order to limit the global warming to +2 °C [1]. The construction industry, tasked with the essential job of building for habitation, commerce, manufacturing, and cultural life, as well as the underlying infrastructure, is responsible for the largest single share of GHG emissions in the world, at 37% in 2021, and the manufacturing of construction materials such as steel, concrete, and glass accounts for 11% of total global GHG emissions [2]. By substituting these materials with other, less energy- and GHG-intensive materials, the building industry could significantly reduce its contribution to global warming.
Wood has strong potential to reduce GHG emissions by replacing more energy-intensive and highly polluting materials [3,4,5]. This is the result of multiple effects related to wood production and utilization as a substitute for other materials.
The Global Warming Potential (GWP) of a timber element would include all of the emissions from forestry, harvesting, transportation, and processing minus the expected GHG emissions from the equivalent processes for a concrete or steel building system that would otherwise be used.
In the case of wood building materials, the resource extraction usually results in a net negative GWP process, because the biogenic carbon sequestered by tree growth is higher than the emissions from the machinery and transportation required for harvesting and production [6,7]. End-of-life processes also play a large role in the environmental impact of timber buildings. Reclaimed materials from demolished buildings are typically either reused, recycled, or disposed of in landfills, and usually undergo a mix of processes depending on the specific material, infrastructure, and regional industrial practices. For any material, the reuse of entire construction elements represents the most sustainable end-of-life process. In the case of timber elements, there is a variety of recycling options. Large elements can be sawn down to smaller elements for furniture or other smaller-scale uses, and wood can be mechanically reduced to produce composite building products, or it can be turned into wood pellets and burned for energy. The latter recycling option releases the sequestered carbon back into the atmosphere, but has the benefit of substituting for fossil fuels, which would otherwise be consumed [8].
Overall, the collection of lifecycle information, and the subsequent assessment of environmental impact, will be more and more fundamental for ensuring the sustainability of timber construction. In this regard, Lifecycle Assessment (LCA) is a useful tool, which benefits from widespread acknowledgment and a standardized framework (ISO 14040–ISO 14044) [9,10]. The integration of lifecycle environmental assessment in planning processes supports decision making by identifying and quantifying trade-offs between technical and environmental requirements and design optimization possibilities [11].
This paper details a novel construction system, the Mono-Material Wood Wall (MMWW), that uses digitally controlled subtractive manufacturing to add functional performance to wood and eliminate other materials with the goal of increasing the sustainability relative to industry-standard construction methods. The building system uses solid timber as a base building material and seeks to combine the strengths of traditional and industrial timber construction techniques to optimize their benefits and address their weaknesses. This paper summarizes the development and building physics evaluation of the construction system. Finally, this work provides a comparative environmental assessment in terms of GHG emissions by tabulating and comparing material inputs of the MMWW system and other conventional timber systems with similar building physics characteristics.

2. Materials and Methods

2.1. Wood Building Systems

Wood is an ancient building material, and its usage has developed and adapted in conjunction with relevant technologies and occupant needs. The system developed in this research project derives characteristics from traditional log construction and contemporary panel construction.

2.1.1. Log Construction

Log construction is the simplest wood construction system considered here. It typically consists of minimally processed, horizontally stacked logs. Often, logs are left round on exposed faces and are prepared by planning top and bottom mating surfaces and are sawn with connection details at their ends for joining in the corner of buildings. These structures are often built geographically close to where the wood is harvested and represent very low GHG emissions for material harvest and processing. However, these buildings tend to have poor thermal insulation and airtightness performance.

2.1.2. Panel Construction

Panel construction uses wood products made from composites of wood material and adhesives or fillers that bind them into large panels, such as Cross-Laminated Timber (CLT). Panels can have fiber directionality to increase structural capacity on a specific axis, or they can be layered or agglomerated with perpendicular layers or omnidirectionally for a more homogenous structural performance and dimensional stability. These panels are typically milled with openings and other features and are usually combined with other materials such as thermal insulation panels or moisture and airflow-regulating membrane materials. These panels are often prefabricated and assembled as completed walls or floor plates. This material system is well adapted to large-scale manufacturing and is made possible through the ubiquitous use of heavy transport and cranes to maneuver the large panels. These wood products can be effectively integrated into contemporary buildings because the manufacturing process generates a fairly homogenous material compared to solid wood counterparts, allowing precise engineering of structural systems. The built-up layers allow building performance to be readily tuned to meet energy performance goals. Depending on the specific panel product, adhesives used to bind the wood can cause difficulties in material separation at the end of life and introduce pollutants at production or disposal stages of building life [7].

2.1.3. Timber Frame Construction

Timber frame construction uses large-scale linear timber elements to create structural building frames. These structures can take the form of rectilinear post and beam assemblies for multi-story construction, or as trusses or three-dimensional space frames for large spans or free-form geometries. Traditional timber framing often uses solid timber beams and wood-only carpentry details such as mortise and tenon joints. On the other hand, many modern timber frame structures use composite timber products such as glulam beams that are connected with complex steel hardware. Timber frames are purely structural systems that rely on other materials for enclosure, insulation, and weather protection.

2.2. Quality in Construction

Having established that timber construction has a lower environmental impact in comparison with concrete or steel counterparts, and having demonstrated examples of traditional solid timber construction, the question becomes how to improve the quality of timber construction to enhance its utility and appeal to promote its industrial adoption. The authors propose that timber material systems can be developed or improved upon in ways that reduce energy consumption and expand the formal and structural capabilities to facilitate adoption by architects, engineers, and contractors. The proposed building system seeks to enhance the quality of solid timber by improving building physics performance, expanding the geometric design freedom, and by providing professionals with the tools to implement the system, all without the need for additional building materials.

2.3. Building Physics Performance

2.3.1. Thermal Resistance

Building physics is a broad term, which covers many aspects of a building’s energy performance, safety, and comfort. Thermal resistance has significant impacts on the energy performance of any building that is mechanically heated or cooled, because it slows the flow of heat energy across the building envelope. For solids, thermal resistance is defined according to the formula:
R = d/(λ),
where R = R-Value of an object, in m²·K/W; λ = thermal conductivity of a material, in W/(m·K); and d = thickness of the body in the direction of heat flow, in meters [12]. In building physics, R is given for a unit area of 1 m² as R = W/K and is thus inversely related to heating and cooling energy consumption [12]. To increase the per unit area thermal resistance of a building envelope, one can either decrease the material conductivity, add subsequent layers of low-conductivity material, or increase the envelope thickness.

2.3.2. Airtightness

Airtightness also directly affects energy performance. The air permeability of a building or building components is evaluated by maintaining a constant air pressure differential across the envelope and measuring the volume of air that passes through the envelope. A blower-door test attaches pressurizing fans and airflow sensors to a building’s door and measures the volume of air that permeates the entire envelope. This is represented as air-changes per hour (ACH), or the amount of complete building volumes of air that permeate the envelope at that pressure. Materials or surface assemblies such as wall panels can be evaluated for permeation, resulting in a measurement in terms of volume of air per unit area per hour (m³/m²∙H). Joints between panels can similarly be measured, with results in volume of air per unit length per hour (m³/m∙H). In buildings, common areas of air leakage are around windows and doors, junctions between walls, between walls and floors, and at perforations for access and services [13]. One study of timber-framed houses in Sweden found a mean air permeability of 3.96 m³/m²∙h at 50 pa. or 3.9 ACH [14]. Log construction has on average the worst airtightness, at 5.724 m³/m²∙h [15]. Impermeable membranes, sealing tapes, and expanding foams are widely used to seal timber buildings, but their complexity and resulting incorrect application are among the most common causes of excessive leakage [16]. One study in Spain demonstrated 25% and 12% reductions in heating and cooling efficiency due to air infiltration [17], and a study of proposed airtightness improvements in the United States suggests that if all housing was brought up to the current 90th percentile standard, site conditioning energy demand could be reduced by half [18].

2.4. Digital Construction

The digital revolution has brought about many developments to the way the construction industry operates. Design and construction logistics software provide the tools to design and optimize complex systems, and the digitalization of physical tools and processes allow for a deeper understanding of and a higher degree of control over the built environment.

2.4.1. CNC Fabrication

CNC fabrication automates the tedious and time-consuming work of accurate measurement and machining, and allows rapid, precise, and consistent production of complex three-dimensional forms. These capabilities are used in wooden architecture primarily to accelerate the production of traditional components or component details and to generate precise, geometrically differentiated forms. A common example of CNC machining of traditional forms is the wide adoption of CNC router tables in cabinetry workshops to reduce the tedious layout required for precise fitting parts. At the architecture scale, large-scale joinery machines cut standard carpentry joints such as mortise and tenons into large timber beams that fit precisely together on the construction site, and large panel processing machines can mill entire walls and floors to fit together precisely on a jobsite. Computational scripts can add more flexibility to CNC fabrication by subdividing three-dimensional forms into component parts and automatically generating their construction details and the machine code required to fabricate them.

2.4.2. Material Layer Reduction

The adoption of Building Information Modeling (BIM) systems allows construction professionals to understand and manipulate complex systems, and is accompanied by a rise in the complexity of construction systems. In architecture, this manifests as construction systems with many layers of different materials, each with a specific function. The production chains for these products can be complex and have a large effect on the environmental impact of a project. Additionally, end of life disposal can be hampered by the difficult separation of the various materials.
It follows that a single material filling the roles of multiple standard building layers would reduce the complexity of the production chain and disposal processes. If the production of that material causes less environmental damage or can mitigate damages from other processes, then the overall environmental impact of the system should be reduced. If the material manipulation improves its environmentally relevant properties, this can reduce the operational environmental impact. If the reduction in material layers facilitates material separation at end-of-life, the material can be more easily recycled or more cleanly disposed of. Manipulating the material in such a way that it can fulfill more roles can be considered to be improving its quality.

2.5. System Development

The construction system consists of a novel building envelope and the custom developed software tools used to implement it. The building envelope, called the Mono-Material Wood Wall (MMWW), consists of a pure wood structural assembly that achieves airtight enclosure and increased thermal insulation compared to solid wood. The MMWW is intended to be easily adapted into conventional architectural design practices and interface with standard building tectonics through the custom design-to-fabrication software. This interface allows design, engineering, and fabrication collaboration with automatic generation of material quantities, schematics diagrams, logistical planning, and machine code.

2.5.1. Building Envelope Development

The current development is a continuation of the building system developed for IBA: Timber Prototype House (TPH), erected in 2018 in Apolda, Germany. That system, based loosely on log construction, centered around a timber beam profile that demonstrated increased structural and energy performance without adhesives, metal fasteners, or added insulation layers [19]. The system was optimized for a freestanding structure, with few interfaces with external material systems. It consisted of an array of vertically oriented, four-sided frames, which generated a tunnel-like structure with open ends, capped by a glass façade. Intricate milled joints rigidified the frames and further sealed the enclosure against air permeation.
The current development maintains the basic beam element profile developed for the TPH. Further investigation seeks to optimize profile dimensions to improve energy performance and reduce fabrication expenses. Additionally, new joinery details are developed to adapt the construction system to meet the stringent requirements of contemporary, urban, multi-story construction. This phase of development maintains elements from log construction, but also employs techniques drawn from timber frame and panel construction.

2.5.2. Timber Profile Development

The development was conceptualized as a log construction, where large-dimension, solid-timber elements are arrayed together to create architectural surfaces. To address the shortcomings of traditional log construction, several modifications are made to improve structural, thermal, and airtightness performance without resorting to adhesives or metal fasteners. The horizontally oriented timber in traditional log construction is tipped vertically to align wood fiber with structural stresses, more efficiently bearing live and dead loads. The increased structural efficiency allowed for the removal of material in the timber section. The profile of the timber element, a 100 mm × 190 mm spruce beam, was conceptually subdivided into functional zones (Figure 1). Deep longitudinal slits were sawn into the beams, which release internal stresses that can cause cracking and deformation over time. The slits also generate air chambers that reduce thermal conductivity of the wood material, effectively functioning as thermal insulation. In log construction, where the individual elements are often simply stacked on one another, the timber profile is further processed with longitudinal grooves that generate an airtight spline connection with adjacent elements.

2.5.3. Joinery

The primary construction of the TPH was assembled without metal fasteners or adhesives using a series of interlocking wooden joints. First, two beam profiles were connected along their narrow longitudinal side using butterfly-style wooden dowels to create a full wall section 380 mm thick. Four of these packets were then assembled into frames with CNC milled lap joints at the ends. These lap joints had milled channels with interlocking splines that created a rigid joint and restricted airflow across the section (Figure 2). Between adjacent frames, a plywood spline is inserted into matching channels on each side, creating a barrier to air permeation. These splines were also pinned with beechwood dowels, locking the entire construction together (Figure 3).

2.5.4. Construction System

The trapezoidal frames were stacked into 6 building modules approximately 1 m deep. The building modules were loaded onto trailers and transported to the building site, where they were mated on a lightweight steel frame using a telescoping forklift. Due to the high weight and resulting friction, the plywood spline could not be inserted between modules, and only small blocks were used to ensure correct alignment. The complete building system is visualized in Figure 4.
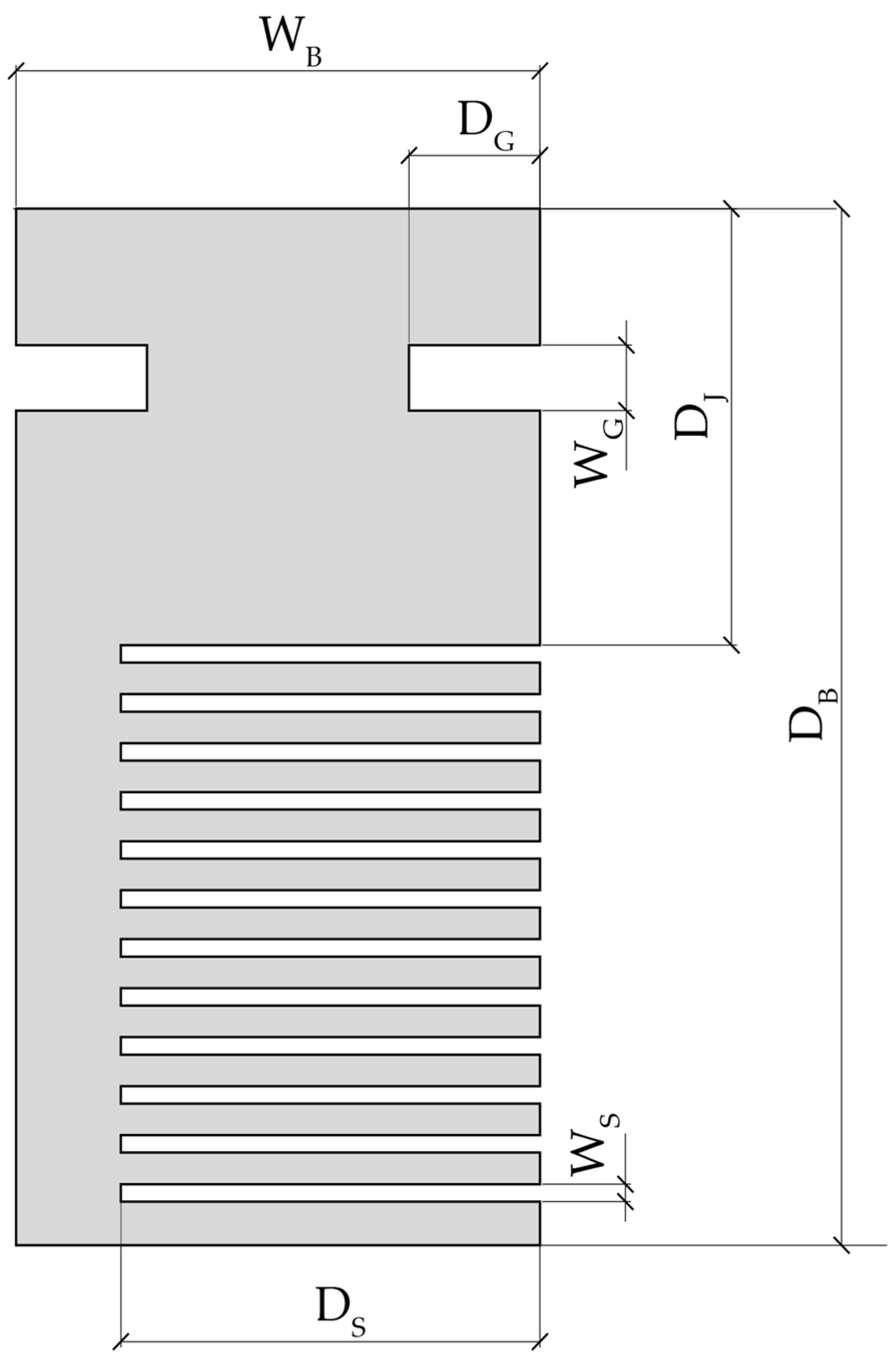
The challenge of applying the MMWW as a multi-story building envelope required a redesign of the joinery system. The same basic timber beam profile was used, but dimensional variations were tested, for example, the width of the insulation slits, to optimize further the building physic performance. The variable beam parameters are shown in Figure 5 and the dimensions and thermal conductivity values are compared in Table 1.
In order to interface with other building components such as floor plates, interior walls, and other façade constructions, the MMWW was re-envisioned as a system of prefabricated, structural loadbearing, panels, as seen in Figure 6. Instead of the four-sided frames of the TPH, the timber beams were reconfigured into simple, flat, rectangular panels. The perimeter of each panel consists of four solid timber beams that are milled with various connection details, some to hold the individual panel together and others to connect to adjacent panels or to the structure of the building. This frame uses connection details like those found in timber frame construction, and are dimensioned to take typical live and dead loads for multi-story construction. Like with the TPH, the MMWW consists of two layers of the timber beam profile. The inner layer consists of single-story height wall panels alternating with floor plates secured with dowel-type connections. The exterior layer consists of similar panels that can extend vertically over multiple stories and help to seal any thermal bridges or air gaps that could occur at the wall–floor interface. Connections between adjacent panels are achieved with a commercially available, beech plywood-based, bowtie-style connector for CLT panels known as the X-Fix connector. The panels can also accommodate openings for windows and doors by inserting frame-type elements inside of the wall panels. For the LCA, a thin pure wood façade was included on the envelope as a protective layer. This façade consists of overlapping, horizontal, larch planks hung with beechwood nails on vertical larchwood battens, as seen in Figure 7.
The MMWW construction system seeks to improve energy performance and sustainability by combining the best aspects of traditional log construction and industrial panel based construction. Aggregating beams as in log construction and using all-wood joinery developed for timber frame construction can help minimize artificial materials to create a renewable, sustainable envelope. Combining this with CNC fabrication technology should allow for smaller tolerances, leading to better structural and building physics performance. By implementing the system as pre-fabricated panels, the system can benefit from economies of scale and efficient transportation networks to minimize construction waste.

2.6. Building Physics Analysis

The MMWW was tested at multiple stages in its development for various performance criteria related to application as a load-bearing building envelope. The values are either calculated, based on standard engineering practices, or measured with laboratory equipment. In some cases, the results meet a minimum required value and systems are considered adequate. In other cases, the building system is altered and re-analyzed to further optimize performance. The results of the building physics analyses are used to demonstrate performance that is competitive with industry-standard building systems, and thermal insulation values are used as a benchmark value by which the LCA comparison is evaluated.

2.6.1. Thermal Insulation

The thermal conductance (U-Value) was initially calculated to be 0.239 W/m²∙K for the profile shown in Table 1 based on [8]. The Hot-Box test of an envelope sample demonstrated a U-Value of 0.20 W/m²∙K. An evaluation of various profile configurations based on [8] established an optimal insulation slit width of 5 mm. All of these results are documented in [20].
Based on these tests, a profile was proposed that was structural, had details for structural and air-sealing connections, and was able to be fabricated. This profile has a tabulated U-Value of 0.2077 W/m²∙K (Table 2).

2.6.2. Airtightness

Original tests of the MMWW sample demonstrated a broad range of airtightness values. When the sample was simply mounted with uncovered panel edges, the insulation slits were open to the atmosphere and able to leak internal air. This configuration had the worst airtightness, at 13.3 m³/m²∙h. The edges of the panel were then sealed with impermeable tape, leaving only the inner and outer surfaces of the façade exposed, which reduced permeability to 2.1 m³/m²∙h. These tests informed further development. The improvements that were implemented in the TPH were the following:
  • Insulation slits stopped before the end of the beam, reducing leakage at their ends.
  • Lap joints were augmented with milled channel features that block airflow at frame corners.
  • All sides of the beams were planned to ensure flush mating surfaces.
The blower-door test of the TPH showed a mean ACH of 2.7. This relatively high value is due in part to the high surface area to volume ratio of the small structure. This value translates to a unit-area permeability of 1.32 m³/m²∙h for the MMWW envelope. A detailed evaluation can be found in [20].

2.7. Production Evaluation

In a standard LCA, emissions from construction are considered in three phases: A1 is resource production and extraction, A2 is transportation, and A3 is processing into a product [21]. The fabrication of the MMWW beam profiles represents significant energy expenditures that would not be accounted for in A3. Therefore, the authors thought it important to attempt to estimate the energy expenditure of this secondary production phase.
Various machines were used at different stages in production with different connection details, so a direct comparison of their efficiency is difficult. Additionally, the machines were not optimized for speed or machining efficiency. For analysis, production on each machine is estimated based on maximum spindle power and total fabrication time. Fabrication processes are not differentiated for extra fabrication steps such as planning beam surfaces or milling connection details. For every machine process, at least two-thirds of machining time was spent on the insulation slits. The fabrication samples in Table 3 are considered for analysis of production speeds. All elements are milled with 12 slits, each 80 mm deep.
A test was undertaken on the Maka PE 170 to determine the energy required purely for sawing the insulation slits, independent of other machine factors. First, the spindle power was measured while spinning a single 5 mm circular sawblade at cutting speed without the sawing to obtain a base power output. Then, 80 mm deep slits were sawn at a feed rate of 10 m/min and power draw was measured during sawing. The measured sawing power minus the non-loaded spindle power is the estimated power per slit, which can be multiplied by the number of slits desired to estimate the power for complete profile machining.

2.8. Lifecycle Assessment of MMWW System

For the assessment of the environmental potential of MMWW systems, an LCA analysis was carried out according to EN ISO 14040 [9] and EN ISO 14044 [10]. LCA specifications for buildings and building materials are also considered, i.e., EN 15804 [22], the core rules of construction materials’ environmental assessment and environmental products declaration; EN 15978 [21], calculation methods for building LCA; and EN 15643 [23], the sustainability of construction works.
LCA analyses investigate a product throughout its whole lifecycle, i.e., from cradle to grave: within the lifecycle are resource extraction and material production as well as usage, waste, disposal, and recycling processes related to end-of-life routes. In contrast to other tools, LCA has a flexible nature and has the advantage of providing environmental impact in a quantitative way. In order to realize this, within the lifecycle inventory, the data collection aims to gather information on input processes and outputs, which correspond to emissions and releases in air, water, and land. Depending on the goal of the analysis and system/product, there are many different ways to frame the bounds of the system/product, and many different metrics by which the results of an analysis might be interpreted. To this end, as recalled in ISO 14040 and ISO 14044 standards, LCA is an iterative process in which all 4 stages, namely (1) goal and scope establishment, (2) lifecycle inventory, (3) Lifecycle Impact Assessment, and (4) interpretation, might be refined along the work flow [9,10].
With respect to the evaluation of the Global Warming Potential (GWP) of a product, GHG emissions released during the product/system lifecycle are evaluated and converted in CO2 equivalent flow in the characterization step of Lifecycle Impact Assessment (LCIA) [9,10]. Here, the goal and scope of the analysis are presented together with the lifecycle inventory of the investigated technologies. Section 3 of this paper presents the LCIA results and interpretation.

2.8.1. Goal and Scope of the Analysis

The analysis aimed to assess the environmental potential of the developed MMWW system, to compare it with other traditional systems, and to identify further environmental optimization potentials. The here-presented analysis will report, in detail, the Global Warming Potential (GWP 100 years) total, according to EN 15804 + A1 [22], by focusing on the climate change mitigation potential of the presented technologies.
The established functional unit is (m²) external wall construction. The comparison will be carried out among systems with similar building physics characteristics, i.e., with equal U-Value = 0.21 W/m²K and fire resistance class (REI 60 outside/30 inside). The comparative systems are massive timber (HMW) and timber board (HRW) systems selected from the dataholz.eu construction catalogue. Additionally, two different timber systems (MHM V1 and MHM V2) have been considered. Data on building physics properties and construction material quantities have been estimated based on technical product documentation [24]. Insulation and load-bearing elements are chosen to ensure the same established building physics features as found in the MMWW system.
The LCA analysis is carried out through the cradle-to-grave approach, in which the system boundaries entail a production phase (A1–A3 module according to EN 15978) and end of life (C3–C4 and D Modules according to EN 15978) [21]. The duration of the analysis is assumed to be 20 years. This allows a focus on constructive aspects while disregarding, in this instance, the building operation (B Module), which could be investigated on a higher level in, e.g., a full LCA analysis of a building.

2.8.2. Data Collection and Lifecycle Inventory (LCI)

The lifecycle modeling was carried out in GENERIS® [25], used here as software for a design-accompanying LCA. The environmental information is based on datasets provided by the German ÖKOBAUDAT environmental database [26].
The LCI tabulated materials belonging to the layers of the main construction and façade (Table 4). Because limited information was available for the production energy of the X-Fix connectors and Lignoloc nails, these material layers were calculated simply using the base material quantities. Additionally, the off-site construction fabrication process has been considered. The calculated energy consumption refers to the machines used for carpentry works based on the increased power consumption for sawing insulation slits, as measured in Section 2.5. As a result of such a process, the MMWW production outputs the building envelope product, together with sawdust as a co-product, which does not belong to the final external wall system and is destined for other product functions and other lifecycles. This co-product is therefore omitted from consideration in this LCA.
Unlike the MMWW, none of the off-site fabrications or on-site assembly processes (Module A4) are considered for the comparative systems, and are not taken into account in this analysis [21].
When analyzing MHM elements, varying timber section thicknesses led to different thermal resistance values. These are modeled using a layer of EPS-Foam insulation with a thickness that is modulated to achieve the same R-Value as the MMWW (see Table 5).
Timber board wall (HRW) systems consist primarily of timber-based elements with an insulation layer—in this example, mineral wool—and plasterboards for fire resistance (Table 6 and Table 7).
The end-of-life scenario for all investigated systems is based on the information of Ökobau.dat [26], which entails for timber elements waste processes (C3 Module) and recovery for energy purposes (D Module).

3. Results

3.1. Production Results

3.1.1. Production Times

Production times for the various elements depended heavily on the machine being used and the specific details required for the elements. Results can be found in Table 8.

3.1.2. Production Energy

The direct measurement of production energy for sawing 12 individual slits on the Maka PE 170 is represented in Figure 8. The average idle power between cuts was 757 watts and during sawing was 4,296 watts. This would indicate that the sawblade requires 3539 watts for sawing. A proposed tool for fabrication could combine multiple sawblades on a single spindle axle. If all 12 insulation slits could be sawn by a single powerful spindle, the process would require 43,299 watts of power, assuming output = idle power + (slit count × sawing power). At the tested 10 m/min, this process could produce 30 m² per hour and the added production energy for the slits would be 1440 Wh/m².

3.2. Lifecycle Impact Assessment (LCIA)

Here, the results of the LCIA are presented for the developed MMWW system with regard to Global Warming Potential, GWP 100 ys according to EN 15804 + A1 [22]. Results are aggregated by lifecycle phase (see Table 9).
As shown in Table 9, the total GHG emissions over the construction lifecycle have a final negative value. The GWP of each lifetime phase is visualized in Figure 9. The high quantity of CO2 equivalent GHG stored in timber elements (spruce and larch elements) is reduced over time due to fabrication processes and end-of-life disposal. Within the end-of-life phase of construction, due to the waste processes of such timber elements, most of the stored CO2 is afterwards released, resulting in positive GHG emissions for modules C3–C4. Timber elements are burned and the energy is recovered (Module D), which is tabulated as a negative GWP because it can substitute for fossil fuels which would otherwise be consumed. As shown in Figure 10, the spruce beam material accounts for the vast majority of the negative GWP at −16.498 kg CO2 eq./m². The results demonstrated that the carpentry machines can affect the total lifecycle impacts, but based on the provided information, only in a limited range. Depending on labor conditions, machines’ power and set-ups, electricity consumption can vary.

3.3. Environmental Performance Comparison with Contemporary Wood Construction Systems

In Table 10 and Figure 11, the MMWW system is compared with the solid timber (MHM) and board timber (HRW) constructions described in Section 2.8.2.
The comparison among the several alternatives demonstrated higher GWP impacts from traditional timber systems and especially from HRW systems. Most of the higher GHG emissions of the comparative systems are associated with the employed cladding and insulation elements, which have more energy-intensive production processes. Based on the data collected, the MMWW system would appear to present better environmental performance due to the higher amount of timber.

4. Conclusions and Outlook

The MMWW development presents a viable solid timber building envelope system with strong environmental merits. Thanks to precise CNC fabrication, the relatively low-quality material, solid timber, is augmented with enhanced performance features that allow it to perform in a contemporary construction context. The MMWW building outperforms its tectonically similar ancestor, log construction, in nearly every metric.
There is still much room for further investigation and development. Ongoing collaborations with industrial partners seek to reduce production times to make the system economically competitive with other standard wood systems, which should simultaneously reduce the production energy. A seemingly optimal production chain would see the base profiles produced as green wood in a sawmill before the timber is dried. Then, contractors who wish to utilize the system could simply purchase the preproduced profiles, cut them to the appropriate length, and combine them with CNC fabricated frame elements to generate wall panels. From the LCA analysis perspective, this collaboration needs to be intensified in order to produce product-specific environmental datasets, to consequently enhance the lifecycle model of the whole MMWW system, and finally reduce inaccuracies and discrepancies related to use of the generic databases.
Ongoing research is investigating the effects of moisture on the performance and longevity of the MMWW building envelope. WUFI Pro simulations are being undertaken to understand if and how water is likely to collect in the envelope and how it could cause structural damage or reduce the buildings lifespan. Physical tests are also underway to simulate cycles of condensation, rain, and frost, to verify the WUFI results and to understand how the system can be further improved.
The pure wood material palette of the envelope gives the MMWW a lower GWP. Because the wood material itself is not considered to add or remove carbon from the atmosphere, the main factors that determine its impact are the production energy and the energy capture at the end of life. However, this is due to the substitution effect, whereby the wood biomass is burned instead of fossil fuels, maintaining a constant atmospheric carbon level instead of adding to it. As electrical generation continues to move towards renewable sources, this effect will be diminished. Because production energy and fossil fuel substitution are proportional to the volume of wood in a product, the more wood a product uses, the lower the tabulated GWP results will be. In this model, the substitution of wood for other building materials, such as concrete, is not considered. To maximize the ecological potential of the system, it becomes important to both maximize the volume of wood used globally to store as much carbon as possible in solid form, and also to use that wood as efficiently as possible to maximize the substitution of concrete, steel and other carbon intensive materials. What is also not included in the environmental assessment is consideration of forestry stocks and harvest rates. It will be crucial to ensure a correct and more aware management of forests to sequester atmospheric carbon in the context of a more sustainable construction sector.
Another potential environmental benefit to the MMWW system is the ease with which it can be disassembled and recycled. While other traditional systems in the study involved extensive use of non-bio-based materials, such as adhesives, metal fasteners, and insulation panels, the MMWW system consists purely of timber. In this regard, end-of-life scenarios alternative to the current baseline routes could involve minimal reprocessing, for example, of the partial or entire reusing panels or individual beams. More intensive recycling routes could see the beam profiles resawn into smaller lumber or reduced to aggregate for composite wood products. These scenarios, as an advantage, might retain the wood carbon content out of the atmosphere for longer than the original building’s life. While it is difficult to foresee what will happen to the material at its end of life, the system is nevertheless currently designed in order to make reuse and recycling as simple as possible.

Author Contributions

Conceptualization, O.B., F.A., and A.M.; Methodology, O.B. and R.D.B.; software, O.B.; validation, O.B. and R.D.B.; formal analysis, O.B. and R.D.B.; investigation, O.B. and R.D.B.; resources, A.M.; data curation, R.D.B.; writing—original draft preparation, O.B. and R.D.B.; writing—review and editing, R.D.B., F.A., and A.M.; visualization, O.B.; supervision, F.A. and A.M.; project administration, O.B., F.A., and A.M.; funding acquisition, O.B., F.A., and A.M. All authors have read and agreed to the published version of the manuscript.”

Funding

The authors acknowledge the support by the Forschungsinitiative Zukunft Bau, Bundesinstitut für Bau-, Stadt- und Raumforschung (BBSR) as part of the project “Kostengünstige, hochdämmende, schichtenreduzierte, sortenreine, klebstofffreie, digitalgefertigte Holzmassivbauweise. (SWD-10.08.18.7-20.50)” led by ICD University of Stuttgart in collaboration with IfW University of Stuttgart. The authors acknowledge the partial support by the Deutsche Forschungsgemeinschaft (DFG, German Research Foundation) under Germany’s Excellence Strategy—EXC 2120/1—390831618. Financing bodies did not influence the research and had no role in the authorship of this paper.

Institutional Review Board Statement

Not applicable.

Informed Consent Statement

Not Applicable.

Data Availability Statement

Data on timber construction systems used information from dataholz.eu. Lifecycle analyses were undertaken using the GENERIS® tool, which makes use of the Ökobaudat construction material database at https://www.oekobaudat.de (accessed on 31 October 2022). Database can be downloaded at https://www.oekobaudat.de/en/service/downloads.html.

Acknowledgments

The authors acknowledge Hans-Christian Möhring, Kamil Güzel, Matthias Schneider, André Jaquemond, Hendrik Köhler, and Sergej Klassen. Sponsors and industry partners: LEUCO, Schneider Holz, X-Fix, and Blower-Door GmbH. Sponsors and industry partners provided financial and material support and expert consultation. However, they had no involvement in the study design, reporting the results of the research, or the authorship of this paper.

Conflicts of Interest

The funders had no role in the design of the study; in the collection, analyses, or interpretation of data; in the writing of the manuscript; or in the decision to publish the results.

References

  1. IPCC 2021. Climate Change 2021: The Physical Science Basis: The Physical Science Basis. Contribution of Working Group I to the Sixth Assessment Report of the Intergovernmental Panel on Climate Change; International Panel on Climate Change; Cambridge University Press: New York, NY, USA; Cambridge, UK, 2021. [Google Scholar]
  2. IEA. 2019 Global Status Report for Buildings and Construction; Global Alliance for Buildings and Construction; International Energy Agency: Paris, France, 2019; Available online: https://www.iea.org/reports/global-status-report-for-buildings-and-construction-2019 (accessed on 31 October 2022).
  3. Ximenes, F.A.; Grant, T. Quantifying the greenhouse benefits of the use of wood products in two popular house designs in Sydney, Australia. Int. J. Life Cycle Assess. 2013, 18, 891–908. [Google Scholar] [CrossRef]
  4. Skullestad, J.L.; Bohne, R.A.; Lohne, J. High-rise Timber Buildings as a Climate Change Mitigation Measure—A Comparative LCA of Structural System Alternatives. Energy Procedia 2016, 96, 112–123. [Google Scholar] [CrossRef]
  5. Hawkins, W.; Cooper, S.; Allen, S.; Roynon, J.; Ibell, T. Embodied carbon assessment using a dynamic climate model: Case-study comparison of a concrete, steel and timber building structure. Structures 2021, 33, 90–98. [Google Scholar] [CrossRef]
  6. González-García, S.; Krowas, I.; Becker, G.; Feijoo, G.; Moreira, M.T. Cradle-to-gate life cycle inventory and environmental performance of Douglas-fir roundwood production in Germany. J. Clean. Prod. 2013, 54, 244–252. [Google Scholar] [CrossRef]
  7. Puettmann, M.; Wilson, J. Life-cycle analysis of wood products: Cradle-to-gate LCI of residential wood building materials. Wood Fiber Sci. J. Soc. Wood Sci. Technol. 2005, 37, 18–29. [Google Scholar]
  8. Hafner, A.; Ott, S.; Winter, S. Recycling and End-of-Life Scenarios for Timber Structures. In Materials and Joints in Timber Structures; Aicher, S., Reinhardt, H.-W., Garrecht, H., Eds.; Springer: Dordrecht, The Netherlands, 2014; pp. 89–98. [Google Scholar]
  9. DIN EN ISO 14040; Umweltmanagement_-Ökobilanz_-Grundsätze und Rahmenbedingungen. International Organization for Standardization: Berlin/Heidelberg, Germany, 2021.
  10. DIN EN ISO 14044; Umweltmanagement_-Ökobilanz_-Anforderungen und Anleitungen Deutsche Fassung. International Organization for Standardization: Berlin/Heidelberg, Germany, 2018.
  11. Zhang, L.; Balangé, L.; Braun, K.; Di Bari, R.; Horn, R.; Hos, D.; Kropp, C.; Leistner, P.; Schwieger, V. Quality as Driver for Sustainable Construction—Holistic Quality Model and Assessment. Sustainability 2020, 12, 7847. [Google Scholar] [CrossRef]
  12. ISO 6946:2017; Building Components and Building Elements—Thermal Resistance and Thermal Transmittance—Calculation methods. International Organization for Standardization: Geneva, Switzerland, 2017.
  13. Carrié, F.R.; Jobert, R.; Leprince, V. Contributed Report 14. Methods and Techniques for Airtight Buildings; Air Infiltration and Ventilation Centre: Sint-Stevens-Woluwe, Belgium, 2012; Available online: http://tightvent.eu/wp-content/uploads/2012/04/CETE69_AIVC_Contributed_Report_14.pdf (accessed on 3 July 2020).
  14. Korpi, M.; Vinha, J.; Kurnitski, J. (Eds.) Airtightness of Timber-Framed Houses with Different Structural Solutions. In Proceedings of the Performance of Exterior Envelopes of Whole Buildings IX International Conference, Oak Ridge, TN, USA, 5–10 December 2004. [Google Scholar]
  15. Vinha, J.; Manelius, E.; Korpi, M.; Salminen, K.; Kurnitski, J.; Kiviste, M.; Laukkarinen, A. Airtightness of residential buildings in Finland. Build. Environ. 2015, 93, 128–140. [Google Scholar] [CrossRef]
  16. Kalamees, T.; Alev, Ü.; Pärnalaas, M. Air leakage levels in timber frame building envelope joints. Build. Environ. 2017, 116, 121–129. [Google Scholar] [CrossRef]
  17. Poza-Casado, I.; Meiss, A.; Padilla-Marcos, M.Á.; Feijó-Muñoz, J. Airtightness and energy impact of air infiltration in residential buildings in Spain. Int. J. Vent. 2021, 20, 258–264. [Google Scholar] [CrossRef]
  18. Logue, J.M.; Sherman, M.H.; Walker, I.S.; Singer, B.C. Energy impacts of envelope tightening and mechanical ventilation for the U.S. residential sector. Energy Build. 2013, 65, 281–291. [Google Scholar] [CrossRef][Green Version]
  19. Drexler, H.; Bucklin, O.; Rohr, A.; Krieg, O.; Menges, A. Timber Prototype: High Performance Solid Timber Constructions. In Proceedings of the Powerskin Conference Proceedings, Munich, Germany, 19 January 2017; pp. 241–252. Available online: https://books.bk.tudelft.nl/index.php/press/catalog/download/isbn.9789492516299/526/161-1?inline=1 (accessed on 10 August 2020).
  20. Bucklin, O.; Menges, A.; Amtsberg, F.; Drexler, H.; Rohr, A.; Krieg, O.D. Mono-material wood wall: Novel building envelope using subtractive manufacturing of timber profiles to im-prove thermal performance and airtightness of solid wood construction. Energy and Buildings. 2022, 254, 111597. [Google Scholar] [CrossRef]
  21. DIN EN 15978; Nachhaltigkeit von Bauwerken: Bewertung der Umweltbezogenen Qualität von Gebäuden_-Berechnungsmethode. Deutsche Fassung, International Organization for Standardization: Berlin/Heidelberg, Germany, 2012.
  22. DIN EN 15804; Nachhaltigkeit von Bauwerken - Umweltproduktdeklarationen - Grundregeln für die Produktkategorie Bauprodukte. Deutsche Fassung, International Organization for Standardization: Berlin/Heidelberg, Germany, 2022.
  23. DIN EN 15643; Nachhaltigkeit von Bauwerken: Allgemeine Rahmenbedingungen zur Bewertung von Gebäuden und Ingenieurbauwerken. Deutsche Fassung, International Organization for Standardization: Berlin/Heidelberg, Germany, 2021.
  24. MHM Entwicklungs GmbH. Technische Daten Massiv-Holz-Mauer. Pfronten-Weißbach. Available online: https://www.massivholzmauer.de/fileadmin/Download-PDF/Datenblatt_MHM.pdf (accessed on 13 February 2020).
  25. The Fraunhofer Institute for Building Physics. GENERIS®. Available online: https://www.generis.live/ (accessed on 31 October 2022).
  26. ÖKOBAUDAT. Informationsportal Nachhaltiges Bauen. Available online: https://www.oekobaudat.de/ (accessed on 31 October 2022).
  27. Dataholz.eu. - Katalog bauphysikalisch und ökologisch geprüfter und/oder zugelassener Holz- und Holzwerkstoffe, Baustoffe, Bauteile und Bauteilfügungen. Available online: https://www.dataholz.eu/ (accessed on 31 October 2022).
Figure 1. Profile of MMWW standard timber element, showing dimensions, functional zones, and placement in wall section.
Figure 1. Profile of MMWW standard timber element, showing dimensions, functional zones, and placement in wall section.
Sustainability 15 00556 g001
Figure 2. TPH joinery details visualization (a) and photo (b) showing milled features in corner lap joint.
Figure 2. TPH joinery details visualization (a) and photo (b) showing milled features in corner lap joint.
Sustainability 15 00556 g002
Figure 3. TPH joinery details visualization (a) and photo (b) showing pinned spline connection between adjacent profile beams.
Figure 3. TPH joinery details visualization (a) and photo (b) showing pinned spline connection between adjacent profile beams.
Sustainability 15 00556 g003
Figure 4. Building system for the TPH.
Figure 4. Building system for the TPH.
Sustainability 15 00556 g004
Figure 5. Dimension parameters of MMWW beam profile.
Figure 5. Dimension parameters of MMWW beam profile.
Sustainability 15 00556 g005
Figure 6. Multi-story MMWW assembly details showing panel construction and integration with CLT floor plate.
Figure 6. Multi-story MMWW assembly details showing panel construction and integration with CLT floor plate.
Sustainability 15 00556 g006
Figure 7. Multi-story MMWW visualization with rain-screen façade.
Figure 7. Multi-story MMWW visualization with rain-screen façade.
Sustainability 15 00556 g007
Figure 8. Graph showing spindle power while sawing slits. Areas of high output show sawing periods; low areas show movement between cuts with no external loading.
Figure 8. Graph showing spindle power while sawing slits. Areas of high output show sawing periods; low areas show movement between cuts with no external loading.
Sustainability 15 00556 g008
Figure 9. LCIA of MMWW system showing contribution of lifetime phases to GWP. GWP100y aggregated by lifecycle module. Source: GENERIS® [25].
Figure 9. LCIA of MMWW system showing contribution of lifetime phases to GWP. GWP100y aggregated by lifecycle module. Source: GENERIS® [25].
Sustainability 15 00556 g009
Figure 10. LCIA of MMWW system showing contribution of material components to lifetime GWP. GWP100y aggregated by lifecycle module. Source: GENERIS® [25].
Figure 10. LCIA of MMWW system showing contribution of material components to lifetime GWP. GWP100y aggregated by lifecycle module. Source: GENERIS® [25].
Sustainability 15 00556 g010
Figure 11. LCIA of MMWW and comparative analysis with MHM, HRW, and HMW systems. GWP100 aggregated by lifecycle module. Source: GENERIS® [25].
Figure 11. LCIA of MMWW and comparative analysis with MHM, HRW, and HMW systems. GWP100 aggregated by lifecycle module. Source: GENERIS® [25].
Sustainability 15 00556 g011
Table 1. Comparison of TPH and multi-story MMWW beam profile parameters and thermal conductivity.
Table 1. Comparison of TPH and multi-story MMWW beam profile parameters and thermal conductivity.
WBDBWGDGDJWSDSU-Value
mmW/m²∙K
TPH1001901225803.2800.2394
Multi-Story1002002015805800.2077
Table 2. Tabulated thermal resistance and conductance of MMWW per ISO 6946 [12].
Table 2. Tabulated thermal resistance and conductance of MMWW per ISO 6946 [12].
Profile DepthProfile WidthSlit CountSlit DepthSlit WidthResistance Per slitResistance of ElementResistance of WallConductance of Wall
mmmm mmMmm²∙K/Wm²∙K/Wm²∙K/WW/m²∙K
200100128050.11002.32274.81530.2077
Table 3. Prototyping and production machines and the elements produced on them.
Table 3. Prototyping and production machines and the elements produced on them.
MachineSpindle Power (kW)Element ProducedBeam Details
Kuka KR-12582.4 m mock-up elementFlat end lap joint
spline groove
butterfly dowel
3.2 mm wide sawblade
Homag BOF 311_595.0 m TPH building elementComplex end joint
spline groove
all surfaces planed
3.2 mm wide sawblade
Maka PE 170122 m lab sample element Spline groove
5 mm wide sawblade
Hundegger K2i132.2 m production test elementSpline groove
6 mm wide sawblade
Table 4. Data collection of MMWW systems.
Table 4. Data collection of MMWW systems.
ComponentLayerProcess Dataset [26]AmountUnit
Main constructionSpruce beams
10 × 20 cm
Schnittholz Fichte (generisch)0.4
Spruce planks
3 × 2 cm
Schnittholz Fichte (generisch)0.0006
X-Fix connectorsFurniersperrholz
(Durchschnitt DE)
0.0012
FacadeLarch planks
10 × 2 cm
Schnittholz Lärche0.003
Lignoloc beechwood nailsBuche Holz generisch1.41 × 10−4
Off-site productionElectricityStrom mix DE1.44kWh
Mass per m²156.7Kg/m²
Table 5. Data collection of MHM systems [24].
Table 5. Data collection of MHM systems [24].
ComponentLayerProcess DatasetAmount
V1
Amount
V2
Unit
Main
construction
Spruce planks Schnittholz Fichte (generisch)0.340.205
Nails (aluminum)Aluminum profile0.15880.0953Piece
WGL 040 insulationEPS-Hartschaum (Styropor) W/D 0400.06960.1187
Mass per m²181.4110.5Kg/m²
Table 6. Data collection of HRW (awrhhi04a) system. Source: dataholz.eu [27].
Table 6. Data collection of HRW (awrhhi04a) system. Source: dataholz.eu [27].
ComponentLayerProcess Dataset [26]AmountUnit
FacadeLarch planksSchnittholz Lärche0.024
Spruce planksSchnittholz Fichte (generisch)0.03
Medium-Density Fiberboard (MDF)Mitteldichte Faserplatte (MDF)0.015
Main constructionSolid construction timber (60/160; e = 625)Konstruktionsvollholz (Durchschnitt DE)0.023
Mineral wool (façade insulation) 040Mineralwolle (Fassaden-Dämmung)0.144
OSB planksOSB-Platten0.015
Spruce planksSchnittholz Fichte (generisch)0.0032
Mineral wool (façade insulation) 040Mineralwolle (Fassaden-Dämmung)0.0368
CoveringPlasterboard GKF—12.5 mm Knauf Gipskartonplatten Feuerschutz—GKF und GKFI—12.5 mm (800 kg/m³ u. 10.0 kg/m²)1
Plasterboard DIN EN 15283-2 oder ETAGipsfaserplatte nach DIN EN 15283-2 oder ETA1
Mass per m²58.9Kg/m²
Table 7. Data collection of HRW (awmopo04a) system. Source: dataholz.eu [27].
Table 7. Data collection of HRW (awmopo04a) system. Source: dataholz.eu [27].
ComponentLayerProcess Dataset [26]AmountUnit
FacadePlasterKalkputzmörtel0.007
Wood fiber insulation boardHolzfaserdämmplatten0.06
Main constructionSolid construction timber (60/120; e = 625) Konstruktionsvollholz (Durchschnitt DE)0.009
Mineral wool (façade insulation) 040Mineralwolle (Fassaden-Dämmung)0.111
CoveringCross-laminated timberBrettsperrholz (Durchschnitt DE)0.09
Plasterboard DIN EN 15283-2 Gipsfaserplatte nach DIN EN 15283-2 oder ETA1
Mass per m²77.4Kg/m²
Table 8. Fabrication times and energy per m² based on max spindle output.
Table 8. Fabrication times and energy per m² based on max spindle output.
MachineBeam ElementTime (min)m² Production Time (min)Energy Estimate
Unit minutesMinutes/m²kWh/m²
Kuka KR-1252.4 m mock-up element4537550
Homag BOF 311_55.0 m TPH building element2512018
Maka PE 1702 m lab sample element 1515030
Hundegger K2i2.2 m production test element2522749.2
Table 9. LCIA results for MMWW GWP per EN 15804 + A1 in kg CO2 eq./m² [22]. Source: GENERIS® [25].
Table 9. LCIA results for MMWW GWP per EN 15804 + A1 in kg CO2 eq./m² [22]. Source: GENERIS® [25].
ComponentLayerA1–A3 ProductionC3–C4
Waste and Disposal
D RecyclingTot Lifecycle
Main constructionSpruce beams 10 × 20 cm−202.5896255.7920−69.7004−16.4980
Spruce planks 3 × 2 cm−0.41630.5256−0.1432−0.0339
X-Fix verbinder−1.057921.50−0.299880.14
FacadeLarch planks 10 × 2 cm−2.72283.5610−0.9429−0.1047
Lignoloc−0.15450.1877−0.0498−0.0166
A3 production Machine/fabrication total0.87780.00.00.8778
Total Construction−206.06261.57−71.14−15.63
Table 10. LCIA of MMWW and comparative analysis with MHM, HRW, and HMW systems. GWP100 aggregated by lifecycle module. Source: GENERIS ® [25].
Table 10. LCIA of MMWW and comparative analysis with MHM, HRW, and HMW systems. GWP100 aggregated by lifecycle module. Source: GENERIS ® [25].
System A1–A3 ProductionC3–C4 Waste and DisposalD RecyclingTOT Lifecycle
MMWWkg CO2 eq./m²−206.06261.57−71.14−15.63
MHW V1kg CO2 eq./m²−225.67297.98−85.09−12.78
MHW V2kg CO2 eq./m²−130.68179.81−51.30−2.16
HRW [awrhhi04a]kg CO2 eq./m²−4.1218.33−4.529.69
HMW [awmopo04a]kg CO2 eq./m²−61.8195.42−44.24−10.63
Disclaimer/Publisher’s Note: The statements, opinions and data contained in all publications are solely those of the individual author(s) and contributor(s) and not of MDPI and/or the editor(s). MDPI and/or the editor(s) disclaim responsibility for any injury to people or property resulting from any ideas, methods, instructions or products referred to in the content.

Share and Cite

MDPI and ACS Style

Bucklin, O.; Di Bari, R.; Amtsberg, F.; Menges, A. Environmental Impact of a Mono-Material Timber Building Envelope with Enhanced Energy Performance. Sustainability 2023, 15, 556. https://doi.org/10.3390/su15010556

AMA Style

Bucklin O, Di Bari R, Amtsberg F, Menges A. Environmental Impact of a Mono-Material Timber Building Envelope with Enhanced Energy Performance. Sustainability. 2023; 15(1):556. https://doi.org/10.3390/su15010556

Chicago/Turabian Style

Bucklin, Oliver, Roberta Di Bari, Felix Amtsberg, and Achim Menges. 2023. "Environmental Impact of a Mono-Material Timber Building Envelope with Enhanced Energy Performance" Sustainability 15, no. 1: 556. https://doi.org/10.3390/su15010556

APA Style

Bucklin, O., Di Bari, R., Amtsberg, F., & Menges, A. (2023). Environmental Impact of a Mono-Material Timber Building Envelope with Enhanced Energy Performance. Sustainability, 15(1), 556. https://doi.org/10.3390/su15010556

Note that from the first issue of 2016, this journal uses article numbers instead of page numbers. See further details here.

Article Metrics

Back to TopTop