Deformation Capacity of RC Beam-Column Joints Strengthened with Ferrocement
Abstract
1. Introduction
2. Experimental Program
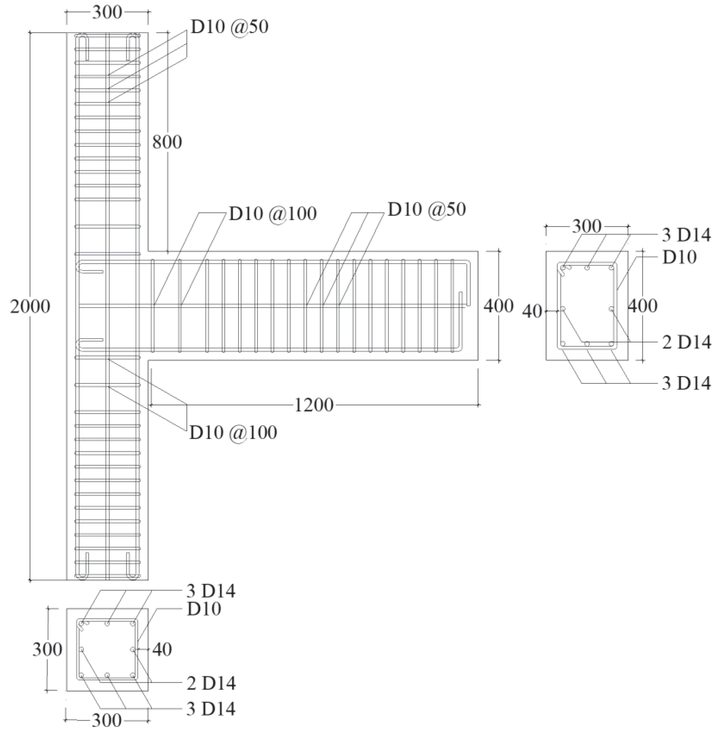
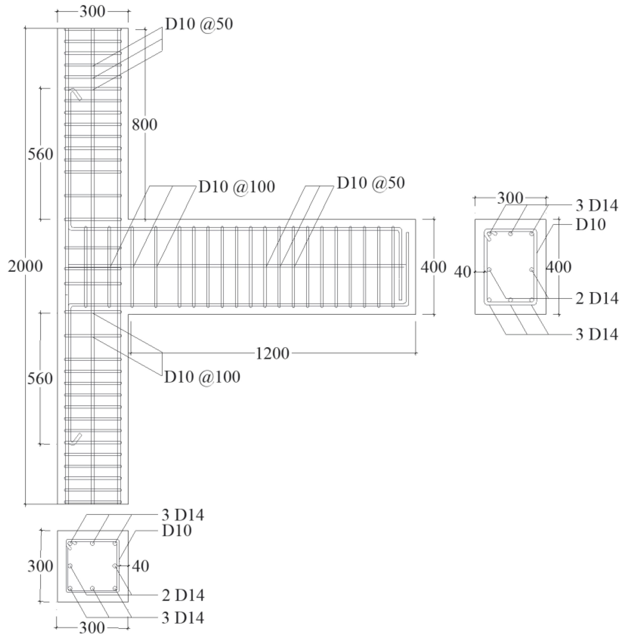
2.1. Detail of Specimens
2.2. Loading Procedure
3. Results and Discussion
3.1. Crack Propagation and Failure Mode
3.2. Load and Displacement Relationship
3.3. Structural Ductility
3.4. Stiffness Degradation
3.5. Energy Dissipation
3.6. Comparison with Previous Studies
4. Conclusions
Author Contributions
Funding
Institutional Review Board Statement
Informed Consent Statement
Data Availability Statement
Acknowledgments
Conflicts of Interest
References
- Peraturan Beton Bertulang Indonesia 1971 NI-2; Departemen Pekerjaan Umum dan Tenaga Listrik: Bandung, Indonesia, 1979.
- Celep, Z.; Erken, A.; Taskin, B.; Ilki, A. Failure of masonry and concrete buildings during the March 8, 2010 Kovancilar and Palu (Elazig) earthquakes in Turkey. Eng. Fail. Anal. 2011, 18, 868–889. [Google Scholar] [CrossRef]
- Coşgun, C.; Dindar, A.A.; Seçkin, E.; Önen, Y.H. Analysis of building damage caused by earthquakes in Western Turkey. Gradevinar 2013, 65, 743–752. [Google Scholar]
- Damcı, E.; Temur, R.; Bekdaş, G.; Sayin, B. Damages and causes on the structures during the October 23, 2011 Van earthquake in Turkey. Case Stud. Constr. Mater. 2015, 3, 112–131. [Google Scholar] [CrossRef]
- Fikri, R.; Dizhur, D.; Walsh, K.; Ingham, J. Seismic performance of reinforced concrete frame with masonry infill buildings in the 2010/2011 Canterbury, New Zealand earthquakes. Bull. Earthq. Eng. 2019, 17, 737–757. [Google Scholar] [CrossRef]
- Fikri, R.; Dizhur, D.; Ingham, J. Typological study and statistical assessment of parameters influencing earthquake vulnerability of commercial RCFMI buildings in New Zealand. Bull. Earthq. Eng. 2019, 17, 2011–2036. [Google Scholar] [CrossRef]
- Fikri, R.; Derakhshan, H.; Ingham, J. Numerical evaluation of a non-ductile RCFMI building subjected to the Canterbury, New Zealand earthquakes: A case study of the St Elmo Courts building. Structures 2020, 28, 991–1008. [Google Scholar] [CrossRef]
- Sezen, H.; Whittaker, A.S.; Elwood, K.J.; Mosalam, K.M. Performance of reinforced concrete buildings during the August 17, 1999 Kocaeli, Turkey earthquake, and seismic design and construction practise in Turkey. Eng. Struct. 2003, 25, 103–114. [Google Scholar] [CrossRef]
- Hasan, M.; Saidi, T.; Afifuddin, M.; Setiawan, B. The assessment and strengthening proposal of building structure after the Pidie Jaya earthquake in December 2016. J. King Saud Univ. Eng. Sci. 2021; in press. [Google Scholar] [CrossRef]
- Chang, H.Y.; Lin, K.C. Reconnaissance observations on the buildings damaged by the 2010 Taiwan Kaohsiung earthquake. Nat. Hazard 2013, 69, 237–249. [Google Scholar] [CrossRef]
- Kabeyasawa, T. Damages to RC school buildings and lesson froms from the 2011 East Japan earthquake. Bull. Earthq. Eng. 2017, 15, 535–553. [Google Scholar] [CrossRef]
- Muguruma, H.; Nishiyama, M.; Watanabe, F. Lessons learned from the Kobe earthquake—A Japanese perspective. PCI J. 1995, 40, 28–42. [Google Scholar] [CrossRef]
- Mitchell, D.; DeVall, R.H.; Kobayashi, K.; Tinawi, R.; Tso, W.K. Damage to concrete structures due to the January 17, 1995, Hyogo-ken Nanbu (Kobe) earthquake. Can. J. Civ. Eng. 1996, 23, 757–770. [Google Scholar] [CrossRef]
- Su, N. Structural evaluations of reinforced concrete buildings damaged by Chi-Chi earthquake in Taiwan. Prac. Period. Struct. Des. Constr. 2001, 6, 119–128. [Google Scholar] [CrossRef]
- Zhang, C.; Tao, M.X. Strong-column–weak-beam criterion for reinforced concrete frames subjected to biaxial seismic excitation. Eng. Struct. 2021, 241, 112481. [Google Scholar] [CrossRef]
- De Angelis, A.; Tariello, F.; De Masi, R.F.; Pecce, M.R. Comparison of different solutions for a seismic and energy retrofit of an auditorium. Sustainability 2021, 13, 8761. [Google Scholar] [CrossRef]
- Facconi, L.; Lucchini, S.S.; Minelli, F.; Grassi, B.; Pilotelli, M.; Plizzari, G.A. Innovative method for seismic and energy retrofitting of masonry buildings. Sustainability 2021, 13, 6350. [Google Scholar] [CrossRef]
- Parrella, V.F.; Molari, L. Building retrofitting system based on bamboo-steel hybrid exoskeleton structures: A case study. Sustainability 2021, 13, 5984. [Google Scholar] [CrossRef]
- Cardani, G.; Massetti, G.E.; Riva, D. Multipurpose retrofitting of a tower building in Brescia. Sustainability 2021, 13, 8877. [Google Scholar] [CrossRef]
- Gkournelos, P.D.; Triantafillou, T.C.; Bournas, D.A. Seismic upgrading of existing reinforced concrete buildings: A state-of-the-art review. Eng. Struct. 2021, 240, 112273. [Google Scholar] [CrossRef]
- Attari, N.; Amziane, S.; Chemrouk, M. Efficiency of beam-column joint strengthened by FRP laminates. Adv. Compos. Mater. 2010, 19, 171–183. [Google Scholar] [CrossRef]
- Ghobarah, A.; Said, A. Shear strengthening of beam-column joints. Eng. Struct. 2002, 24, 881–888. [Google Scholar] [CrossRef]
- Beydokhty, E.Z.; Shariatmadar, H. Behavior of damaged exterior RC beam-column joints strengthened by CFRP composites. Lat. Am. J. Solid Struct. 2016, 13, 880–896. [Google Scholar] [CrossRef]
- De Vita, A.; Napoli, A.; Realfonzo, R. Full sace reinforced concrete beam-column joints strengthened will steel reinforced polymer systems. Front. Mater. 2017, 4, 18. [Google Scholar] [CrossRef]
- Ghobarah, A.; Said, A. Seismic rehabilitation of beam-column joints using FRP laminates. J. Earthq. Eng. 2001, 5, 113–129. [Google Scholar] [CrossRef]
- Pohoryles, D.A.; Melo, J.; Rossetto, T.; Varum, H. Seismic retrofit schemes with FRP for deficient RC beam-column joints: State-of-the-art review. J. Compos. Constr. 2019, 23, 03119001. [Google Scholar] [CrossRef]
- Li, B.; Chua, H.Y.G. Seismic performance of strengthened reinforced concrete beam-column joints using FRP composites. J. Struct. Eng. 2009, 135, 1177–1190. [Google Scholar] [CrossRef]
- Mahmoud, M.H.; Afefy, H.M.; Kassem, N.M.; Fawzy, T.M. Strengthening of defected beam-column joints using CFRP. J. Adv. Res. 2014, 5, 66–77. [Google Scholar] [CrossRef]
- Zhao, Y.; Liu, Y.; Li, J. Study of seismic behavior of RC beam-column joints strengthened by sprayed FRP. Adv. Mater. Sci. Eng. 2018, 2018, 3581458. [Google Scholar] [CrossRef]
- Santarsiero, G. FE modelling of the seismic behavior of wide beam-column joints strengthened with CFRP systems. Buildings 2018, 8, 31. [Google Scholar] [CrossRef]
- Katakalos, K.; Manos, G.; Papakonstantinou, C. Seismic retrofit of R/C T-beams with steel fiber polymers under cyclic loading conditions. Buildings 2019, 9, 101. [Google Scholar] [CrossRef]
- Baji, H.; Eslami, A.; Ronagh, A.R. Development of a nonlinear FE modelling approach for FRP-strengthened RC beam-column connections. Structures 2015, 3, 272–281. [Google Scholar] [CrossRef]
- Roy, B.; Laskar, A.I. Cyclic performance of beam-column subassemblies with construction joint in column retrofitted with GFRP. Structures 2018, 14, 290–300. [Google Scholar] [CrossRef]
- Attari, N.; Youcef, Y.S.; Amziane, S. Seismic performance of reinforced concrete beam–column joint strengthening by frp sheets. Structures 2019, 20, 353–364. [Google Scholar] [CrossRef]
- Maheri, M.R.; Torabi, A. Retrofitting external RC beam-column joints of an ordinary MRF through plastic hinge relocation using FRP laminates. Structures 2019, 22, 65–75. [Google Scholar] [CrossRef]
- Tahnat, Y.B.A.; Samaaneh, M.A.; Dwaikat, M.M.S.; Halahla, A.M. Simple equations for predicting the rotational ductility of fiber-reinforcedpolymer strengthened reinforced concrete joints. Structures 2020, 24, 73–86. [Google Scholar] [CrossRef]
- Akhlaghi, A.; Mostofinejad, D. Experimental and analytical assessment of different anchorage systems used for CFRP flexurally retrofitted exterior RC beam-column connections. Structures 2020, 28, 881–893. [Google Scholar] [CrossRef]
- Tafsirojjaman, T.; Fawzia, S.; Thambiratnam, D.P. Structural behaviour of CFRP strengthened beam-column connections under monotonic and cyclic loading. Structures 2021, 33, 2689–2699. [Google Scholar] [CrossRef]
- Davodikia, B.; Saghafi, M.H.; Golafshar, A. Experimental investigation of grooving method in seismic retrofit of beam-column external joints without seismic details using CFRP sheets. Structures 2021, 34, 4423–4434. [Google Scholar] [CrossRef]
- Murad, Y.Z.; Alseid, B.H. Retrofitting interior RC beam-to-column joints subjected to quasi-static loading using NSM CFRP ropes. Structures 2021, 34, 4158–4168. [Google Scholar] [CrossRef]
- Alcocer, S.M.; Jirsa, J.O. Strength of reinforced concrete frame connections rehabilitated by jacketing. ACI Struct. J. 1993, 90, 249–261. [Google Scholar]
- Ghobarah, A.; Aziz, T.S.; Biddah, A. Rehabilitation of reinforced concrete frame connections using corrugated steel jacketing. ACI Struct. J. 1997, 94, 283–294. [Google Scholar]
- Ghobarah, A.; Biddah, A.; Mahgoub, M. Seismic retrofit of reinforced concrete columns using steel jackets. Eur. Earthq. Eng. 1997, 11, 21–31. [Google Scholar]
- Truong, G.T.; Dinh, N.H.; Kim, J.C.; Choi, K.K. Seismic performance of exterior RC beam–column joints retrofitted using various retrofit solutions. Int. J. Concr. Struct. Mater. 2017, 11, 415–433. [Google Scholar] [CrossRef]
- Misir, I.S.; Kahraman, S. Strengthening of non-seismically detailed reinforced concrete beam column joints using SIFCON blocks. Shadana 2013, 38, 69–88. [Google Scholar] [CrossRef][Green Version]
- Gokdemir, H.; Tankut, T. Seismic strengthening of beam-column joints using diagonal steel bars. Teknik Dergi 2017, 28, 7977–7992. [Google Scholar]
- Adil, D.M.; Subramanian, N.; Sumeet, P.; Dar, A.R.; Raju, J. Performance evaluation of different strengthening masures for exterior beam-column joints under opening moments. Struct. Eng. Mech. 2020, 74, 243–254. [Google Scholar] [CrossRef]
- Yurdakul, Ö.; Avşar, Ö.; Kilinç1, K. Application of different rehabilitation and strengthening methods for insufficient RC beam-column joints. Adv. Mater. Res. 2013, 688, 222–229. [Google Scholar] [CrossRef]
- Engindeniz, M.; Kahn, L.F.; Zureick, A.H. Repair and Strengthening of Reinforced Concrete Beam-Column Joints: State of the Art. ACI Struct. J. 2005, 102, 187–197. [Google Scholar]
- Yan, Y.; Liang, H.; Lu, Y.; Zhao, X. Slender CFST columns strengthened with textile-reinforced engineered cementitious composites under axial compression. Eng. Struct. 2021, 241, 112483. [Google Scholar] [CrossRef]
- Qian, H.; Guo, J.; Yang, X.; Lin, F. Seismic rehabilitation of gravity load-designed interior RC beam-column joints using ECC-infilled steel cylinder shell. Structures 2021, 34, 1212–1228. [Google Scholar] [CrossRef]
- Li, Y.; Sanada, Y. Seismic strengthening of existing RC beam-column joints by wing walls. Earthq. Eng. Struct. Dyn. 2017, 46, 1987–2008. [Google Scholar] [CrossRef]
- Tiwary, A.K.; Singh, S.; Chohan, J.S.; Kumar, R.; Sharma, S.; Chattopadhyaya, S.; Abed, F.; Stepinac, M. Behavior of RC Beam–Column Joints Strengthened with Modified Reinforcement Techniques. Sustainability 2022, 14, 1918. [Google Scholar] [CrossRef]
- ACI 549.1R-18: Design Guide for Ferrocement; American Concrete Institute: Farmington Hills, MI, USA, 2018.
- Paramasivam, P.; Lim, C.T.E.; Ong, K.C.G. Strengthening of RC beams with ferrocement laminates. Cem. Concr. Compos. 1998, 20, 53–65. [Google Scholar] [CrossRef]
- Raghunathapandian, P.; Palani, B.; Elango, D. Flexural strengthening of RC tee beams using ferrocement. Int. J. Recent Technol. Eng. 2020, 8, 2277–3878. [Google Scholar]
- Shakthivel, V.; Pradeep Kumar, C. Experimental investigation of strengthening of RC beam using ferro cement laminates. Int. J. Eng. Tech. 2019, 5, 186–195. [Google Scholar]
- Khan, S.U.; Rafeeqi, S.F.A.; Ayub, T. Strengthening of RC beams in flexural using ferrocement. IJST Transac. Civ. Eng. 2013, 37, 353–365. [Google Scholar]
- Khan, S.U.; Nuruddin, M.F.; Ayub, T.; Shafiq, N. Effects of ferrocement in strengthening the serviceability properties of reinforced concrete structures. Adv. Mater. Res. 2013, 690–693, 686–690. [Google Scholar] [CrossRef]
- Makki, R.F. Response of reinforced concrete beams retrofitted by ferrocement. Int. J. Sci. Technol. Res. 2014, 3, 27–34. [Google Scholar]
- Miah, M.J.; Miah, M.S.; Alam, W.B.; Lo Monte, F.; Li, Y. Strengthening of RC beams by ferrocement made with unconventional concrete. Mag. Civ. Eng. 2019, 89, 94–105. [Google Scholar] [CrossRef]
- Abdullah; Takiguchi, K. An investigation into the behavior and strength of reinforced concrete columns strengthened with ferrocement jackets. Cem. Concr. Compos. 2003, 25, 233–242. [Google Scholar] [CrossRef]
- Mourad, S.M.; Shannag, M.J. Repair and strengthening of reinforced concrete square column using ferrocement jackets. Cem. Concr. Compos. 2012, 34, 288–294. [Google Scholar] [CrossRef]
- Jiang, L.M.; Tang, F.H.; Ou, M.L. Experimental research on the strengthening of RC columns by high performance ferrocement laminates. Adv. Mater. Res. 2011, 243–249, 1409–1415. [Google Scholar] [CrossRef]
- Kaish, A.B.M.A.; Jamil, M.; Raman, S.N.; Zain, M.F.M.; Nahar, L. Ferrocement composites for strengthening of concrete columns: A review. Constr. Build. Mater. 2018, 160, 326–340. [Google Scholar] [CrossRef]
- Shaaban, I.G.; Seoud, O.A. Experimental behavior of full-scale exterior beam-column space joints retrofitted by ferrocement layers under cyclic loading. Case Stud. Constr. Mater. 2018, 8, 61–78. [Google Scholar] [CrossRef]
- Shaaban, I.G.; Said, M. Finite element modeling of exterior beam-column joints strengthened by ferrocement under cyclic loading. Case Stud. Constr. Mater. 2018, 8, 333–346. [Google Scholar] [CrossRef]
- Li, B.; Lam, E.S.S.; Wu, B.; Wang, Y.Y. Experimental investigation on reinforced concrete interior beam–column joints rehabilitated by ferrocement jackets. Eng. Struct. 2013, 56, 897–909. [Google Scholar] [CrossRef]
- SNI 2847:2019 Persyaratan Beton Struktural Untuk Bangunan Gedung Dan Penjelasan; Badan Standardisasi Nasional: Jakarta, Indonesia, 2019.
- Tuz, L. Determination of the causes of low service life of the air fan impeller made of high-strength steel. Eng. Fail. Anal. 2021, 127, 105502. [Google Scholar] [CrossRef]
- Tuz, L. Evaluation of microstructure and selected mechanical properties of laser beam welded S690QL high-strength steel. Adv. Mater. Sci. 2018, 18, 34–42. [Google Scholar] [CrossRef]
- Nowacki, J.; Sajek, A.; Matkowski, P. The influence of welding heat input on the microstructure of joints of S1100QL steel in one-pass welding. Arch. Civ. Mech. Eng. 2016, 16, 777–783. [Google Scholar] [CrossRef]
- Park, R.; Paulay, T. Reinforced Concrete Structures; Wiley: Hoboken, NJ, USA, 1975. [Google Scholar]
- Dabiri, H.; Kheyroddin, A.; Kaviani, A. A numerical study on the seismic response of RC wide column–beam joints. Int. J. Civ. Eng. 2019, 17, 377–395. [Google Scholar] [CrossRef]
- Kheyroddin, A.; Mohammadkhah, A.; Dabiri, H.; Kaviani, A. Experimental investigation of using mechanical splices on the cyclic performance of RC columns. Structures 2020, 24, 717–727. [Google Scholar] [CrossRef]
- Kheyroddin, A.; Dabiri, H. Cyclic performance of RC beam-column joints with mechanical or forging (GPW) splices; an experimental study. Structures 2020, 28, 2562–2571. [Google Scholar] [CrossRef]
- Dabiri, H.; Kheyroddin, A. An experimental comparison of RC beam-column joints incorporating different splice methods in the beam. Structures 2021, 34, 1603–1613. [Google Scholar] [CrossRef]



















| Specimen | Description |
|---|---|
| BCJ1 | Beam column joint designed based on NI-2 [1] |
| BCJ2 | Beam column joint designed based on SNI 2847:2020 [69] |
| BCJ3 | Beam column joint designed based on NI-2 [1] and strengthened with ferrocement |
| Materials | Quantity |
|---|---|
| Cement (kg) | 317 |
| Water (kg) | 205 |
| Fine sand (kg) | 365 |
| Coarse sand (kg) | 729 |
| Split stone dmax 20 mm (kg) | 729 |
| w/c | 0.65 |
| Slump (mm) | 12 |
| Compressive strength (MPa) | 24.8 |
| Bar Diameter (mm) | Yield Strength, fy (MPa) | Young’s Modulus (GPa) |
|---|---|---|
| 14 | 310 | 200 |
| 10 | 375 | 200 |
| Specimen | Load (kN) and Displacement (mm) | Ratio of Δfail to Δfail,BCJ1 | |||||||
|---|---|---|---|---|---|---|---|---|---|
| At First Crack | At First Yield | Maximum | At Failure | ||||||
| Pcr | Δcr | Py | Δy1 | Pmax | Δm | Pfail | Δfail | ||
| BCJ1 | 22.68 | 1.80 | 56.85 | 12.07 | 73.95 | 24.01 | 51.6 | 32.58 | 1.00 |
| BCJ2 | 29.53 | 1.57 | 68.38 | 13.55 | 83.48 | 23.15 | 77.89 | 52.39 | 1.61 |
| BCJ3 | 34.14 | 1.55 | 65.14 | 12.00 | 75.64 | 24.00 | 71.86 | 52.04 | 1.60 |
| Specimen | Δu (mm) | First Yield, Δy1 (mm) | Balance of Energy, Δy2 (mm) | General Yielding, Δy3 (mm) | Δy,avg (mm) | μ | Ratio of μ to μBCJ1 |
|---|---|---|---|---|---|---|---|
| BCJ1 | 27.60 | 12.07 | 12.42 | 12.65 | 12.38 | 2.23 | 1.00 |
| BCJ2 | 52.39 | 13.55 | 13.65 | 13.78 | 13.66 | 3.84 | 1.72 |
| BCJ3 | 52.04 | 12.00 | 12.26 | 12.43 | 12.23 | 4.26 | 1.91 |
| Strengthening Scheme | Improvement in (%) | ||||
|---|---|---|---|---|---|
| Orientation Angle | Number Layer of Wire Mesh | Maximum Displacement | Ductility | Initial Stiffness | Energy Dissipation |
| 0° (Present study) | 4 | 60 | 91 | 29 | 71 |
| 45° [66] | 3 | 18 | NA * | 12 | 16 |
| 60° [66] | 3 | 20 | NA * | 68 | 21 |
| 0° with addition of diagonal reinforcement [68] | 2 | 22 | 17 | 19 | 154 |
Publisher’s Note: MDPI stays neutral with regard to jurisdictional claims in published maps and institutional affiliations. |
© 2022 by the authors. Licensee MDPI, Basel, Switzerland. This article is an open access article distributed under the terms and conditions of the Creative Commons Attribution (CC BY) license (https://creativecommons.org/licenses/by/4.0/).
Share and Cite
Araby, M.Z.; Rizal, S.; Abdullah; Afifuddin, M.; Hasan, M. Deformation Capacity of RC Beam-Column Joints Strengthened with Ferrocement. Sustainability 2022, 14, 4398. https://doi.org/10.3390/su14084398
Araby MZ, Rizal S, Abdullah, Afifuddin M, Hasan M. Deformation Capacity of RC Beam-Column Joints Strengthened with Ferrocement. Sustainability. 2022; 14(8):4398. https://doi.org/10.3390/su14084398
Chicago/Turabian StyleAraby, M. Zardan, Samsul Rizal, Abdullah, Mochammad Afifuddin, and Muttaqin Hasan. 2022. "Deformation Capacity of RC Beam-Column Joints Strengthened with Ferrocement" Sustainability 14, no. 8: 4398. https://doi.org/10.3390/su14084398
APA StyleAraby, M. Z., Rizal, S., Abdullah, Afifuddin, M., & Hasan, M. (2022). Deformation Capacity of RC Beam-Column Joints Strengthened with Ferrocement. Sustainability, 14(8), 4398. https://doi.org/10.3390/su14084398

