Next Article in Journal
Technological Innovation, Fiscal Decentralization, Green Development Efficiency: Based on Spatial Effect and Moderating Effect
Previous Article in Journal
Strengthening of Community Tourism Enterprises as a Means of Sustainable Development in Rural Areas: A Case Study of Community Tourism Development in Chimborazo
 
 
Font Type:
Arial Georgia Verdana
Font Size:
Aa Aa Aa
Line Spacing:
Column Width:
Background:
Article

Fire Safety of Healthcare Units in Conditions of Oxygen Therapy in COVID-19: Empirical Establishing of Effects of Elevated Oxygen Concentrations

1
Internal Security Institute, The Main School of Fire Service, 01-629 Warsaw, Poland
2
Faculty of Safety Engineering and Civil Protection, The Main School of Fire Service, 01-629 Warsaw, Poland
3
Faculty of Process and Environmental Engineering, Lodz University of Technology, 90-924 Lodz, Poland
4
Department of Anaesthesiology and Intensive Care, Medical University of Warsaw, 02-005 Warsaw, Poland
5
Department of Transplantation Medicine and Nephrology, Medical University of Warsaw, 02-006 Warsaw, Poland
6
Department of Internal Medicine and Cardiology, Medical University of Warsaw, 02-005 Warsaw, Poland
*
Author to whom correspondence should be addressed.
Sustainability 2022, 14(7), 4315; https://doi.org/10.3390/su14074315
Submission received: 19 December 2021 / Revised: 31 March 2022 / Accepted: 2 April 2022 / Published: 5 April 2022

Abstract

:
Large-scale usage of oxygen therapy (OT) may lead to increased oxygen concentrations (OC) in places where COVID-19 patients are treated. The aim of the study was to establish in an empirical way the OC in COVID-19 at the patient’s bedside and to assess the relationships and reactions that occur during OT in an uncontrolled oxygen-enriched environment. We analyzed and took into account the OC, the technical conditions of the buildings and the air exchange systems. Based on the results, we performed a Computational Fluid Dynamics analysis to assess evacuation conditions in the event of a fire outbreak in the COVID-19 zone. A total of 337 measurements of OC were carried out, and three safety thresholds were then defined and correlated with fire effects. The highest ascertained oxygen concentration was 25.2%. In the event of a fire outbreak at 25.2% oxygen in the atmosphere, the response time and evacuation of medical staff and patients is no longer than 2.5 min. Uncontrolled oxygen enrichment of the environment threatens the safety of medical staff and patients in COVID-19 hospitals.

1. Introduction

The COVID-19 pandemic that began in 2019 has affected almost the entire world while significantly changing perceptions of health care safety. Subsequent virus mutations and prognostic models [1,2,3] may help provide evidence of the scale and complexity of the problem. Health systems have been and continue to be in the most difficult situation, as they are expected to operate coherently and in a controlled manner while the risks associated with managing a crisis continue to increase. Despite the best efforts of health care professionals, it is impossible to reduce all risks to an acceptable level. One of such risks is the combination of intensive oxygen therapy (OT) with an uncontrolled oxygen-enriched environment. OT helps save the lives of patients suffering respiratory failure due to COVID-19 but contemporaneously carries lethal fire and explosion risks. According to the European Commission’s Joint Research Centre (JRC), environments rich in oxygen have become a cause of an increasing number of fatal fires in hospitals where COVID-19 patients are treated worldwide [4]. Studies of the JRC have shown that in 2020 alone, at least 20 cases of fires were recorded, which were caused by an oxygen-rich environment in hospitals with COVID-19 patients [5].
A review of open sources implemented by the National Fire Protection Association (NFPA) Journal has shown that at least 80 persons have died in hospital fires since the start of the COVID-19 pandemic [6]. On the other hand, according to the data of Linde-healthcare, in the period of 27 May 2020–1 February 2021, at least 78 persons died due to incidents involving oxygen-enriched atmosphere in hospitals treating COVID-19 patients [7]. According to NFPA and open sources cited by NFPA, a fire and explosion of an oxygen tank in Baghdad on 24 April 2021 killed at least 82 people and injured hundreds, with the number of casualties likely to increase due to severe burns, the source said [8]. These incidents were the result of a dynamic surge in oxygen concentration (OC) in hospitals due to the COVID-19 pandemic and occurred mainly in intensive care units (ICUs).
Intensive OT in a confined space can produce an uncontrolled environment enriched with oxygen, which in normal conditions constitutes approximately 21% of the Earth’s atmosphere, but once its concentration exceeds 23%, it can cause fire and explosion hazards [9,10]. Medical oxygen is not a direct hazard, but in contact with oils, greases or fats (including ointments, gels and disinfectants), it tends to self-ignite and strongly promotes the combustion of substances. This has been confirmed by fire safety analyses, which have shown that intensive OT and the presence of combustible materials in hospitals facilitate rapid ignition and the spread of fires [9,11,12]. Materials that do not burn in air, amongst others fire-resistant materials, may burn vigorously in air that is enriched with oxygen or in pure oxygen [13]. Spontaneous combustion occurs even if OC is increased only by a few percentage points above the safe value. What is more, oxygen also significantly increases the flame temperature and the combustion rate. Initiating devices capable of triggering fires when air in hospitals is enriched with oxygen include electrical devices, especially special medical equipment, power cables, including extension cords as well as air conditioners [14,15], and also disinfectants containing alcohol or hydrocarbons. Another complication is that oxygen is not only colorless but also odorless and tasteless. The fact that there are no evident physiological effects that could alert personnel of the presence of an uncontrolled oxygen-enriched atmosphere also increases the risk of a potential fire [16,17].
Several safety institutions and public health management bodies have responded to fire and explosion threats, in the majority of cases by devising recommendations comprising instructions for safe handling of oxygen. Nonetheless, fires and explosions of oxygen-enriched environments in COVID-19 hospitals still occur. This problem may be due to its multi-faceted nature, and it has not yet been studied in a sufficiently broad way. Conducting revisions of the titles, abstracts and contents of these papers sheds light on the currently collected knowledge in an analyzed context. Using the ScienceDirect® database, the use of the “COVID-19” record produced 78,643 results for published or forthcoming scientific papers. However, taking into consideration the “fire oxygen COVID-19” records, only 431 results were obtained, most of which were found to be related to oxygen in general, COVID-19, or fires resulting from the use of oxygen (also not related to the COVID-19 situation). We were unable to find any publication based on an empirical study of OC in COVID-19 hospitals, which may suggest that the studies conducted so far have been based on theoretical models or took into account pre-pandemic conditions.
Our research objective was to establish in an empirical way the OC in COVID-19 at the patient’s bedside and carry out an evaluation of relationships and reactions that occur during OT in an uncontrolled oxygen-enriched environment, as well as to prove the influence of an oxygen-enriched atmosphere on fire and explosion risks, and consequently on the safety of medical staff and patients.

2. Methods

The study was carried out in 3 wards hospitalizing SARS-CoV-2 patients: in ICU (n = 12), in COVID Internal Disease Department (CIDD) (n = 24), and in COVID Department (CD) (n = 32). Oxygen measurements were executed at least once a day at different times and in all rooms where differentiated forms of OT were adopted:
  • Passive through a nose catheter with OF 2–8 L/min or face mask with OF 8–15 L/min;
  • High flow nasal oxygen therapy (HFNOT)–OF 30–60 L/min;
  • OT in mechanical ventilation.
The statistical analysis took into consideration: type of OT used for the individual patient, OF, room volume, type of ventilation (0–gravity, 1–mechanical) and the measured OC. If there was more than one patient in the room, values were summed up taking into account the percentage in the administered gas mixture. Calculations were made of correlations with the R2 coefficient for the dependence OF–OC and OF–OC times the volume of the room.
The body of an average adult consumes about 200 ml (0.3 g) of oxygen per minute. Certainly, during pneumonia, respiratory failure or infection, oxygen consumption is higher, but all studied subjects in the COVID wards were in a similar disease state. Therefore, this factor appears to be negligible. The study measured oxygen concentration under real conditions; its consumption by each patient therefore influenced the measurement result.
A two-phase study was also conducted during a computer analysis with the use of the computational fluid dynamics (CFD) method. Five simulations were performed, in which changes were introduced to the initial OC within the range of 21 to 25%. For this egress route, fire parameters were computed that affect evacuation safety, such as temperature and the visibility range. All calculations of values of the above-mentioned parameters, as well as of OC, were carried out at the height of 1.8 m of the analyzed premise. This height is recommended according to evaluation criteria of conditions on egress routes, and the situation of the analyzed area is adopted based on the British standard [18] at an appropriate height from the floor. Also identified were flammable substances present in rooms that enter into reaction with oxygen, and an analysis was carried out on the technical documentation of buildings, taking into account air replacement (ventilation). Particular attention was drawn to the presence of such disinfectants as hand disinfectant and agent for disinfection of surfaces. All pandemic safety rules were strictly observed. The study was supervised by unit managers. The measurements were carried out by the medical staff working in the analyzed wards. All ethical standards concerning the execution and processing of test results have been maintained. The authors are not familiar with any similarly extensive study based on data in actual conditions.

3. Results

A total of 337 OC measurements were executed in wards that treat COVID-19 patients. The average OC in hospital rooms was found to be 21.5% (range from 20.9 to 25.2%). Measurements in ICU were executed using the Dräger Pac® 8500 sensor (O2 + CO). In this ward, medical ventilators were predominantly used (97%). The average flow rate of oxygen administered per patient was 7.8 L/min, and per unit room volume it was 0.13 L/min. To ensure the required number of air exchanges, mechanical supply and exhaust ventilation was used in the rooms of this ward. Maybe because of this, the mean OC (21%, 20.9–21.4%) did not differ significantly from the accepted norm. It should be emphasized that administration of oxygen through a sealed system, such as a ventilator, causes only a minimal oxygen enrichment of the atmosphere. What is more, the ICU is a specialized ward adapted to treating patients in diverse life-threatening conditions, including providing OT.
Measurements in the CIDD were executed with the use of the Tetra 3 sensor. Different types of patient therapy were used in this unit: passive therapy (73%) and less frequently HFNOT (18%) and ventilator therapy (9%). Consequently, the mean flow rate of oxygen administered per patient was 10.2 L/min and per unit room volume it was 0.36 L/min. This affected the mean OC in the air, which in the CIDD was found to be 22.6% (21.0–25.2%), with much lower concentrations observed on the ground floor of the building: 22.1% (21.4–23.5%), which may be due to the fact that mainly mechanical ventilation was used in this part of the ward, and it seems this had the least effect on enriching the atmosphere with oxygen. There is mechanical supply and exhaust ventilation on the ground floor and mechanical exhaust ventilation in the patient rooms situated on the first floor. The highest measured OC in the room was 25.2% (Figure 1). An analysis of potential causes of this situation pointed to a lock used to separate particular zones. The sluice was immediately modified, assuring its full functionality.
There were mixed types of OT in CD: passive OT (67%), HFNOT (22%) and mechanical ventilation–ventilator therapy (11%). The mean flow rate of oxygen administered per patient in this ward was 16.0 L/min, and per unit room volume it came up to 0.54 L/min. The mean OC on this ward was 21.7% (20.9–23.7%).
In this unit, gravitational ventilation was used (this simplest method of air exchange in buildings does not sufficiently secure them from oxygen accumulation), except for the side staircase, where a fan was used, and the bathroom in the orange zone on the first floor, where an identical fan was installed. The purpose of the fans was to create positive pressure in the stairwell and bathroom so as to prevent the flow of contaminated air from the red zone to the green zone (Table 1).
It was assumed that the correct OC was 20.9%. The results obtained in the particular ranges were as follows. For OC in the range of 20.9–22.0%, there were 285 results; 22.0–23.0%, 40 results; 23.0–24.0%, 7 results; and 24.0–25.0%, 4 results. In the range of more than 25.0% OC, one readout was obtained. Assuming 23% as the maximum safe value of OC in the air, it was ascertained that in 3.6% of results, that value had been exceeded. Also verified was the impact of the volume and ventilation type of enclosures on the measured value of OC.
Results in which the measured concentration was found to exceed 23.5% O2 suggest that a fire-hazardous oxygen-enriched atmosphere has been created. There may be several possible causes for this in health care facilities, such as: inefficient or ineffective ventilation of patient rooms, too many OT devices working in one room or, in extreme cases, a leak in the medical gas or oxygen cylinder installation.
It was established that the ventilation conditions in the studied wards have an impact on the OC values. The median concentration value, the percentage of exceeding the limit values during measurements in individual wards, and an attempt to explain such a situation are presented in Table 2.

3.1. Statistical Analysis of the Measurement Results

In the further part of the study, statistical analysis was carried out to determine the correlation between the measured OC and the total oxygen supply to patients in the patient rooms in each ward. Among the established methods of correlation determination (Pearson’s linear correlation coefficient, Spearman’s rank correlation coefficient and others), we have selected R2, which is an indicator of how well our data fit the regression model (Table 3). A similar correlation with room volume was additionally examined, i.e., the effect of the value of the total OF from the OT equipment on the amount of oxygen (m3) stored in the room. The type of OT implemented was also included in the statistical analysis.
The observed relationships have demonstrated that in all cases, the correlation OF - %O2 x Vol. was better than the correlation OF - %O2 (not including the room volume), which implies that room volume is important in analyses of fire risk inside a room (Figure 2). If OC are not analyzed in advance, simplified models that do not take into account the room volume can be used as hand calculations. In the design of temporary hospitals for patients with COVID-19, it is necessary to take into account the large room volume. Large halls, such as sports halls in stadiums or trade fair venues, seem to be the most appropriate places to organize such units. Since oxygen is a heavier gas than air, we recommend avoiding lower rooms, as this could create unfavorable concentrations of this gas and cause safety thresholds to be exceeded.
The determination of a correlation between the total flow of oxygen administered to patients in a room and the level of OC is extremely important in terms of safety because this allows appraising the expected OC and the comparison of this value with defined thresholds. As the most important goal in case of a fire outbreak is to save lives, we applied the CFD method to verify the influence of the OC in the hospital rooms on the dynamics of fire growth, and we have specified potential consequences for the medical staff and the patients.

3.2. Simulation Results

To analyze the fire dynamics depending on the assumed OC in the room, use was made of the Fire Dynamics Simulator (FDS) program [19]. Basic conservation equations of mass, momentum and energy with equations of the state for single species forming the framework of the FDS fire model have been introduced.
The process of collecting data for simulation in FDS was as follows.
1. General Information
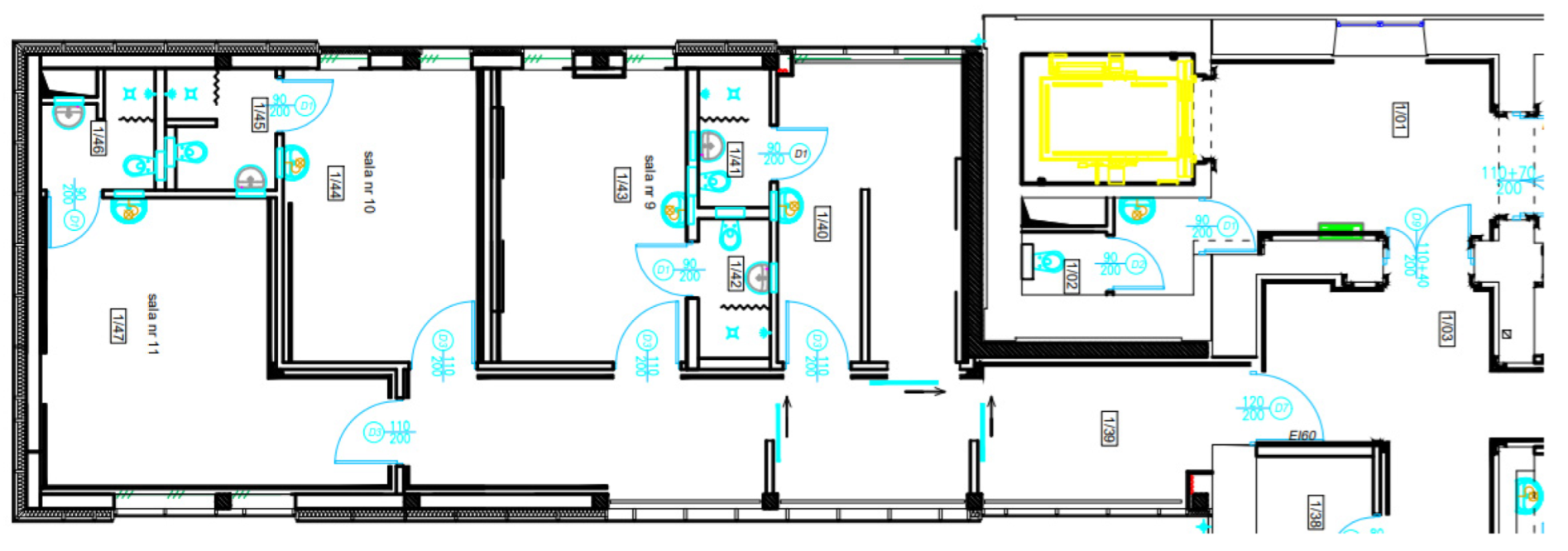
For computer-based analysis of fire development (CFD method—computational fluid dynamics), rooms No. 9, 10 and 11 were selected together with a corridor in CIDD, part of which is shown in Figure 3, intended for the treatment of patients infected with COVID-19.
The area of one of the rooms selected for analysis—room 11 in pavilion 3 (room 1/47)—is 26.5 m2. Its height is 3.30 m to the suspended ceiling (total height 4.45 m). The bathroom area (room 1/46) is 3.6 m2, and the height of the suspended ceiling is 2.50 m (total height 4.45 m). There is only exhaust ventilation in the rooms and in the corridor. According to the design documentation for room 11 (room 1/47), the ventilation flow rate is 40 m3/h (the design assumed 20 m3/h for one patient). The flow rate of ventilation in the bathroom (room 1/46) is 50 m3/h. The room is ventilated from the corridor and window ventilators. The 15 m long corridor was separated by walls and doors, which could disturb the air movement because:
  • The fire doors in the pre-pandemic period were open, controlled by an electromagnetic lock from the fire alarm system, and are closed during the pandemic.
  • When creating a COVID ward, a sliding door was added to define an orange zone.
2. Grid Resolution
The calculation cell dimension was 0.1 m for a single room and 0.2 m for the layout of rooms.
3. Definition of Dedign Fire
The fire power density was assumed for hospital rooms with patients staying at 250 kW/m2. As a consequence, for the area of the analyzed room No. 11, which was 26.5 m2, the maximum heat release rate was HRR = 6625 kW. A fire of this magnitude can only arise with adequate oxygen access to combustion, which comes from leakage from the oxygen therapy process or from leaks in the ventilation openings.
Polyurethane foam [20], which is a component of hospital bed mattresses, was adopted as the combustible material.
4. Geometry of Rooms in the Building
FDS performs calculations based on a rectangular structural mesh, so it was necessary to make some simplifications in the modeled geometry, which was recreated on the basis of the floor plan of the building (Figure 3).
5. Modeling of Room Ventilation
The room ventilation modeling takes into account the parameters included in the design documentation, as well as window leakage and the gap under the door.
The mentioned input data for individual simulation scenarios are given in Table 4.
An analysis was performed on the fire development dynamics in a single compartment (room 11, where the highest OC was recorded) in CIDD for the initial OC within the range from 21 to 25%, each 1% corresponding to a total of five simulations, with the use of a grid with the size of a cubic cell of 10 cm. A further three simulations were executed for a room layout with a corridor to set out the value of temperature and visibility range on the egress route (cell with dimensions of 20 cm). They differed by specification of the room where the fire broke out. The initial OC in selected rooms was as follows (maximum recorded values): room 9—22.2%, room 10—23.2%, room 11—25.2%. In the first place, calculations were executed of fire parameters, including OC for a single premise (room 11) (Table 5, Figure 4 and Figure 5).
The fire development dynamics has a direct impact on the time available for medical personnel to undertake evacuation and self-evacuation. Assuming standard conditions in hospital rooms, it is expected that if a fire starts, it would be developing at an average rate, i.e., the time to reach flashover would be 5 min. However, when exposed to an oxygen-enriched atmosphere, this time would be significantly reduced. The calculated ASET time (available time for safe evacuation), which is related to the occurrence of human-critical conditions (high temperature, pungent smoke), is even shorter than the specified time of 5 min (Figure 6).
The conducted analysis has shown that in an oxygen-enriched atmosphere, the time available for medical personnel to evacuate patients and self-evacuate is 2.5 minutes. This is a very short time, particularly remembering that signs of a fire need to be detected (the fastest way is via the fire alarm system), and the medical staff need to reach the right floor, COVID-19 area or the right room. Difficult movement conditions may also arise in the corridor and must also be taken into account. In an extreme case (e.g., a fire in a room with an O2 concentration of 25%), the time to cross the corridor would be limited to approximately 30 s, as after that time, visibility along this section of the evacuation route would become drastically decreased. Thus, the evacuation time for patients and the self-evacuation of medical staff in a fire caused by elevated OC indicates clearly that both the life and safety of medical staff and patients are in real danger.

4. Discussion

Concentrated OT in the confined space of hospital rooms where COVID-19 patients are treated can produce an oxygen-enriched environment. When a combustible material reacts in an oxygen-enriched atmosphere at the presence of an initiator, there is a violent exothermic reaction of the combustible substance with the oxidant, which is accompanied by the release of heat and flames. The ensuing consequences are predominantly fatal for both medical personnel and patients, as has been confirmed by statistics indicating at least 250 victims and hundreds of seriously injured. Not all healthcare entities were or are now appropriately prepared for this type of incident, which may consequently adversely affect the safety of both patients and medical staff. Analyzing the ScienceDirect® database allows for making the supposition that the studies implemented so far make assumptions based on theoretical models or those analyzed in dissimilar pre-pandemic conditions. It seems that the issue should be explored further, primarily with the use of data compiled empirically in the COVID-19 conditions.
It was assumed that the correct OC is 20.9%, and above that value, an increased fire and explosion hazard is to be expected. The usage of high-flow open-circuit oxygen equipment entails a risk that OC in the surroundings would become increased, and consequently pursuant to [21,22] in the analysis of fire hazard, it was assumed that a hazardous OC amounts to more than 23%.
A review of obtained results has disproved reports suggesting that intensive care units (ICUs) are under particular threat. This is probably due to the fact that in those rooms, patients are treated with ventilator therapy, which assures significant system tightness, low leakage estimated at about 0.4 L/min and a relatively low OF of about 10 L/min. Consequently, oxygen is not lost from the device−patient system and does not fill the room in an unfavorable way. The room ventilation in such wards is also generally of modern design and efficiency. It was found that much greater hazards are created in temporary premises used for patients with SARS-CoV-2, which are unsuitable for intensive OT. In these wards, a real risk to the safety of medical staff and patients was repeatedly ascertained. In 3.6% of all cases, the safe OC value was exceeded (23%), with the extreme measured value being 25.2%. The analysis has demonstrated that the cause of such a high concentration was the sluice used to separate individual zones. The sluice was immediately reconstructed while maintaining full functionality. This was a particularly hazardous situation, as it directly endangered the lives of patients and medical staff, but it drew attention to a problem that may exist in many other hospitals.
In this study, we assumed three dangerous OC thresholds (threshold 1—23%; threshold 2—24%; threshold 3—25%) to be found in units treating patients with COVID-19; we also discussed the potential consequences for uncontrolled oxygen enrichment.
In the case of threshold 1 and a concentration of 23%, a potential fire hazard will exist. For the safety of the medical staff involved, this means that their clothing could catch fire, and for patients, for example, bed linen could ignite. Already at this threshold, the ability of medical staff to respond would be significantly reduced, not to mention patients who have received ventilator therapy.
The next dangerous threshold is a concentration of 24%. Once this level becomes exceeded, even specialist polyamide medical clothing with increased fire resistance, covered with special coatings based on nanoparticles, would be prone to ignition [23]. This means that only rescue teams equipped with specialized personal protective equipment (firefighters’ special Nomex clothing and respiratory protection equipment) can be allowed to enter such a room.
The last third threshold is associated with a 25% O2 concentration. Due to the dynamic reactions taking place, working in this type of environment presents a significant increase in hazard to patients and medical staff. If a fire breaks out in such an oxygen-enriched environment, hair and clothing would burn violently (excess oxygen tends to stick to hair and clothing).
An analysis performed in the FDS, which is a CFD model of fire-driven fluid flow, showed that each 1% increase in OC increases the maximum fire power by an average of 8% and shortens the ASET when escape through a corridor is required by approximately 40 s. In the event of a fire in a building compartment, ASET—the time available for occupants to safely evacuate the compartment—depends on the time of fire detection and on the time of the onset of hazardous conditions.
For the specified thresholds, the fire development dynamics described by the heat release rate are expected to increase as follows: for threshold 1—by 5.7%, for threshold 2—by 6.1%, and for threshold 3—even by as much as 33.7%, respectively, in relation to the normal OC. As a consequence of the resulting fire, the response and evacuation time will be, for a single patient room, ASET = 150 s (regardless of thresholds). In the case of an escape route leading through a corridor, the evacuation time will be ASET = 260 s for threshold 1, 220 s for threshold 2, and 180 s for threshold 3.
According to the executed analyses, medical personnel may have a real chance to evacuate one patient and self-evacuate only if the OC level does not exceed threshold 2. Once it becomes exceeded, there is a high probability that even special medical clothing with increased fire resistance would become ignited. With concentrations exceeding thresholds 2 and 3, only specialist rescue teams wearing appropriate personal protective equipment should be allowed to work at the place. However, it should be assumed that the time needed for safe evacuation is relatively short and the arrival time of emergency units, depending on the circumstances, may be on average approx. 10 minutes. In conclusion, we would like to emphasize that the most important sequence of decisions aimed at minimizing the fire and explosion risks, and at the same time directly affecting the safety of medical staff and patients, depends on the correct multifactorial analysis of the oxygen-enriched environment, as well as on the implementation of substantive (mainly focusing on Standard Operating Procedures and on the training of medical staff) and technological (at least using personal mono- or multi-gas detectors) solutions in the risk management process.
The process can be improved thanks to the proposed recommendations, which have been jointly agreed upon with the medical staff working in the COVID-19 ward in the hospital. We are aware of some obvious content in the work, but we were looking for uncomplicated solutions to be able to improve the safety of patients and medical staff.

5. Practical Application Model of Safe Supply of Oxygen in COVID-19 Department

To minimize the risk of fire in an oxygen-enriched atmosphere, the following precautions are proposed:
1. Development of a fire risk assessment in the event of an increased level of oxygen in the departments. Train all users in the safe handling of oxygen. Eliminate as many elements as possible from the combustion triangle with regards to:
(a) Flammable materials—not using creams and gels based on hydrocarbons [24];
(b) Initiators—inspections of electrical devices in terms of the generation of excess heat or sparks;
(c) Control of oxygen concentration—use of personal oxygen by medical personnel, only if necessary.
2. Development of global guidelines to allow devising individual risk management models.
3. Building management awareness—medical staff should be frequently trained on methods of minimizing the use of the leakiest therapies in a single room.
4. Following instructions (e.g., in the form of a mathematical dependence) pertaining to the maximum number of patents in one room undergoing high-flow oxygen therapy depending on volumetric intensities of oxygen flow and ventilation intensity in the room.
5. Determination of new performance standards for mechanical ventilation systems. Automation of air exchange in patient rooms through the use of appropriate ventilation systems equipped with oxygen sensors (intelligent HVAC elements intensify ventilation when the assumed oxygen concentration is exceeded); where oxygen sensors are not available, portable single and/or multi-gas detectors are used.
6. The complementation of fire alarm or similar systems with oxygen detectors is recommended, but the design of such non-standard detectors should be in each case consulted with the alarm system manufacturers.
7. For cases in which the concentration thresholds are exceeded, immediate ventilation of the room should be ensured through the use of specialized portable fans, and in a critical situation, windows should be opened. However, it is necessary to take into account the weather conditions and the condition of patients, which was usually difficult in the analyzed situation.
8. When analyzing the test results, it was found that one of the important causes of the increased oxygen saturation in the CIDD on the first floor was a lock erected to separate the red COVID zone from the green zone. This is the orange zone (border area for changing and disinfecting). The design of mechanical ventilation assumes the replacement of 60 m3/h for a double room. This part of the building is only equipped with exhaust ventilation. The air is supplied naturally through the window vents from the corridor and controlled by the humidity. The corridor was divided by an airlock and closed with a fire door—under normal conditions, fire doors are kept in the open position by an electromagnetic fuse. After the corridor was divided, the extraction system could not function efficiently; hence, the oxygen content in the air was significantly exceeded. Therefore, it is recommended that such temporary arrangements should be reviewed and that hospital rooms should be additionally equipped with mechanical supply ventilation to allow adequate ventilation of the hospital premises by means of an external ventilator. Adequate ventilation is also essential to reduce the risk of infection in confined spaces [25,26].
9. In the event of a fire, an attempt should be made to extinguish it with fire blankets or water extinguishers, which require medical approval (the extinguishing agent may adversely affect the skin and respiratory system of a person, and water may be contaminated and moldy) [27].
10. For a case in which it is necessary to evacuate, it should be organized taking into account the degree of risk of individual patients, starting with the room where the fire broke out, then adjacent rooms and the entire separated part of the ward; later on, the evacuation would require the participation of the fire brigade. It should be remembered that the time to reach the patient in the affected room should not exceed 2.5 minutes.
The above recommendations are not exhaustive but highlight important factors that can easily reduce the risk of fire and explosion and minimize the risk in the COVID-19 zone.

6. Conclusions

A significant increase in the number of fires has been recorded due to the high supply of medical oxygen during the several months of the COVID-19 pandemic. Fires in uncontrolled oxygen-enriched environments developed rapidly, considerably reducing response and evacuation times as well as the chance of saving lives. Despite the efforts of many researchers and COVID-19 hospital safety units, fires with high casualty rates do continue to occur [28,29]. This may be caused among others by the fact that solutions had been recommended that did not take into account the actual multifactorial relationships. A further problem may be posed by the unavailability of uniform recommendations. Hence, it seems that the most desirable solution, based on empirical studies, may be the development of a uniform strategy for oxygen reduction in the setting of COVID-19 intensive OT. Given the global diversity in health care systems, the strategy should allow adaptation to the specific conditions that prevail in individual treatment units.
The results compiled and presented in this study are only a starting point for extensive research on uncontrolled oxygen-enrichment environments, but at this stage, they may provide important information, not only to researchers but also to those responsible for risk management in hospitals. It is our hope that the proposed recommendations will help to minimize the risk of fire and explosion and improve the safety of patients and medical staff.

Author Contributions

Conceptualization, W.W. and P.W.; methodology, W.W.; software, N.T.; validation, J.T., T.B. and O.D.-D.; formal analysis, D.S.; investigation, W.W.; resources, N.T.; writing—original draft preparation, N.T. and O.D.-D.; writing—review and editing, N.T., O.D.-D., W.W., P.W., J.T., D.S., T.B. and P.P.; visualization, N.T.; supervision, P.P.; project administration, P.P. All authors have read and agreed to the published version of the manuscript.

Funding

This research received no external funding.

Institutional Review Board Statement

Ethics approval was not required for this study.

Informed Consent Statement

Not applicable.

Conflicts of Interest

The authors declare no conflict of interest.

References

  1. He, S.; Tang, S.; Rong, L. A discrete stochastic model of the COVID-19 outbreak: Forecast and control. Math. Biosci. Eng. 2020, 17, 2792–2804. [Google Scholar] [CrossRef] [PubMed]
  2. Plank, M.J.; Binny, R.N.; Hendy, S.C.; Lustig, A.; James, I.A.; Steyn, N. A stochastic model for COVID-19 spread and the effects of Alert Level 4 in Aotearoa New Zealand. medRxiv 2020. [Google Scholar] [CrossRef]
  3. Hendy, S.; Steyn, N.; James, A.; Plank, M.J.; Hannah, K.; Binny, R.N. Mathematical modelling to inform New Zealand’s COVID-19 response. J. R. Soc. N. Z. 2021, 51, S86–S106. [Google Scholar] [CrossRef]
  4. European Commission Joint Research Centre. Lessons Learned Bulletin-Special Issue #2. 2020. Available online: https://minerva.jrc.ec.europa.eu/en/shorturL/minerva/llb_on_risk_of_oxygen_related_fires_in_hospitals_treating_COVID_19_patients (accessed on 17 December 2021).
  5. European Commission Joint Research Centre. Lessons Learned Bulletin - Special Issue. 2021. Available online: https://minerva.jrc.ec.europa.eu/en/shorturL/minerva/llb_2_covidoxygenv2pdf (accessed on 17 December 2021).
  6. Resupesta de NFPA al Coronavirus. Available online: https://www.nfpajla.org/coronavirus (accessed on 25 July 2021).
  7. Oprea, I. Bezpieczne stosowanie tlenu medycznego na terenie placówek medycznych COVID-19 [Safe use of medical oxygen in COVID-19 medical facilities]. Linde Gaz, Bucharest 2021.
  8. Verzoni, A.; Deadly Trend. NFPA. J. 2021. Available online: https://www.nfpa.org/News-and-Research/Publications-and-media/NFPA-Journal/2021/Summer-2021/News-and-Analysis/Dispatches (accessed on 17 December 2021).
  9. Pattnaik, A.; Kumar, A. Fire Safety In Hospitals–Issues and Challenges. Health Popul. Perspect. Issues 2019, 42, 116–122. [Google Scholar]
  10. Suhaili, S.S.; Ulang, N.M.; Azzmi, N.M.; Baharum, F. Overview of Fire Safety Management for Government Hospital Buildings. Int. J. Adv. Res. Eng. Technol. 2020, 11, 89–97. [Google Scholar] [CrossRef]
  11. Jankowski, M.; Górecka, D. Medycyna Praktyczna Dla Lekarzy [Practical Medicine for Physicians]; National Library of Medicine: Krakow, Poland, 2020. [Google Scholar]
  12. Islam, M.M.; Ullah, S.M.A.; Mahmud, S.; Raju, S.M. Breathing Aid Devices to Support Novel Coronavirus (COVID-19) Infected Patients. SN Comput. Sci. 2020, 1, 274. [Google Scholar] [CrossRef] [PubMed]
  13. European Industrial Gases Association – COVID 19. Oxygen e-Learning. Available online: https://www.eiga.eu/oxygen-elearning/ (accessed on 25 July 2021).
  14. Smith, L.P.; Roy, S. Operating room fires in otolaryngology: Risk factors and prevention. Am. J. Otolaryngol. 2011, 32, 109. [Google Scholar] [CrossRef] [PubMed]
  15. Choudhary, A.H.; Kausar, M.; Satpathy, S.; Sharma, D.K. Fire Safety Related Challenges Faced by Existing Hospitals: A Review. Medico-legal Update 2020, 20, 419. [Google Scholar] [CrossRef]
  16. Sharma, R.; Bakshi, H.; Banerjee, A. Fire Safety Hazards: How Safe Are Our Hospitals? Indian J. Community Med. 2020, 45, 104–105. [Google Scholar] [CrossRef] [PubMed]
  17. World Health Organization. Oxygen Sources and Distribution for COVID-19 Treatment Centres. Available online: https://apps.who.int/iris/handle/10665/331746 (accessed on 25 July 2021).
  18. BSI PD 7974-6: The Application of Fire Safety Engineering Principles to Fire Safety Design of Buildings Part 6: Human Factors: Life Safety Strategies Occupant Evacuation, Behaviour and Condition (Sub-System 6). Available online: https://www.bsigroup.com/en-GB/about-bsi/media-centre/press-releases/2019/march/revised-british-standard-for-fire-safety-engineering-published/ (accessed on 25 July 2021).
  19. McGrattan, K.B.; Baum, H.R.; Rehm, R.J.; Hamins, A.; Forney, J.P. Fire Dynamics Simulator-Technical Reference Guide; Chapter 1; National Institute of Standards and Technology, Building and Fire Research Laboratory: Gaithersburg, MD, USA, 2020. Available online: https://nvlpubs.nist.gov/nistpubs/Legacy/IR/nistir6467.pdf (accessed on 25 July 2021).
  20. Barcikowska, M.; Chmiel, E. Polyurethane foams with 1,3,5-triazine ring and silicon atoms. Macromol. Res. 2019, 27, 543–550. [Google Scholar] [CrossRef]
  21. Northern Care Alliance (NHS Group). Standard Operating Procedure Monitoring Ambient Oxygen Levels in Clinical Areas Using High Flow Open Circuit Oxygen Devices. 2020. Available online: https://www.pat.nhs.uk/Coronavirus/Clinical-operational-guidance/General/NCAE05820%20Monitoring%20ambient%20oxygen%20levels.pdf (accessed on 25 July 2021).
  22. Kelly, F.E.; Ralph, M.; Henrys, P. Oxygen enrichment in clinical areas using high-flow nasal oxygen and non-invasive respiratory support. Anaesthesia 2021, 76, 1137–1138. [Google Scholar] [CrossRef] [PubMed]
  23. Kundu, C.K.; Song, L.; Hu, Y. Nanoparticles based coatings for multifunctional Polyamide 66 textiles with improved flame retardancy and hydrophilicity. J. Taiwan Inst. Chem. Eng. 2020, 112, 15–19. [Google Scholar] [CrossRef]
  24. Selam, M.N.; Bayisa, R.; Ababu, A.; Abdella, M.; Diriba, E.; Wale, M.; Baye, A.M. Increased Production of Alcohol-Based Hand Rub Solution in Response to COVID-19 and Fire Hazard Potential: Preparedness of Public Hospitals in Addis Ababa, Ethiopia. Risk Manag. Healthc. Policy 2020, 13, 2507–2513. [Google Scholar] [CrossRef] [PubMed]
  25. D’Orazio, M.; Bernardini, G.; Quagliarini, E. A probabilistic model to evaluate the effectiveness of main solutions to COVID-19 spreading in university buildings according to proximity and time-based consolidated criteria. Build. Simul. 2021, 14, 1795–1809. [Google Scholar] [CrossRef] [PubMed]
  26. Dai, H.; Zhao, B. Association of the infection probability of COVID-19 with ventilation rates in confined spaces. Build. Simul. 2020, 13, 1321–1327. [Google Scholar] [CrossRef] [PubMed]
  27. Hirsch, D.B.; Williams, J.H.; Harper, S.A.; Beeson, H.; Pedley, M.D. Oxygen Concentration Flammability Thresholds of Selected Aerospace Materials considered for the Constellation Program. In Proceedings of the Second IAASS Conference: Space Safety in a Global World, Chicago, IL, USA, 14–16 May 2007. [Google Scholar]
  28. Iraq Hospital Fire: Protests as COVID Ward Blaze Kills at Least 92. Available online: https://www.bbc.com/news/world-middle-east-57814954 (accessed on 15 December 2021).
  29. At Least 14 Dead In Fire At COVID-19 Clinic in North Macedonia. Available online: https://www.rferl.org/a/north-macedonia-covid-fire-/31450755.html (accessed on 15 December 2021).
Figure 1. Change in oxygen concentration in rooms: 9, 10, 11 and in the corridor in COVID-19 Internal Diseases Department.
Figure 1. Change in oxygen concentration in rooms: 9, 10, 11 and in the corridor in COVID-19 Internal Diseases Department.
Sustainability 14 04315 g001
Figure 2. Correlation of oxygen flow to oxygen concentration, and oxygen flow to oxygen concentration and volume, for all wards.
Figure 2. Correlation of oxygen flow to oxygen concentration, and oxygen flow to oxygen concentration and volume, for all wards.
Sustainability 14 04315 g002
Figure 3. Diagram of the part of the COVID-19 Internal Diseases Department dedicated to the treatment of patients with COVID-19.
Figure 3. Diagram of the part of the COVID-19 Internal Diseases Department dedicated to the treatment of patients with COVID-19.
Sustainability 14 04315 g003
Figure 4. Heat release rate dependent on oxygen concentration in the range of 21–25% (simulated fire in room 11).
Figure 4. Heat release rate dependent on oxygen concentration in the range of 21–25% (simulated fire in room 11).
Sustainability 14 04315 g004
Figure 5. Temperature course dependent on oxygen concentration in the range of 21–25% (simulated fire in room 11).
Figure 5. Temperature course dependent on oxygen concentration in the range of 21–25% (simulated fire in room 11).
Sustainability 14 04315 g005
Figure 6. Corridor temperature course dependent on fire origin (room 9–11).
Figure 6. Corridor temperature course dependent on fire origin (room 9–11).
Sustainability 14 04315 g006
Table 1. Sensor used, number of individual therapies, oxygen supply in wards, range and average oxygen concentration measurement, type of room ventilation.
Table 1. Sensor used, number of individual therapies, oxygen supply in wards, range and average oxygen concentration measurement, type of room ventilation.
ICUCIDDCD
SensorDräger Pac® 8500Tetra 3Dräger Pac® 6500 (O2)
Passive oxygen therapy (n)355116
High-flow oxygen therapy (n)01438
Mechanical ventilation (n)96719
Average oxygen supply per patient (L/min)7.810.216.0
Average oxygen supply per volume unit (m3)0.130.360.54
Oxygen concentration range (%)20.9–21.421.0–25.220.9–23.7
Average oxygen concentration (%)21.022.621.7
Type of room ventilationEffective mechanical supply and exhaust ventilationOnly mechanical exhaust ventilation in patient roomsMainly gravity ventilation, two additional fans generating overpressure
ICU–Intensive Care Unit, CIDD–COVID-19 Internal Diseases Department, CD–COVID-19 Department.
Table 2. Average oxygen concentration, percentage of exceedances of the limit values in individual wards with the supposed cause.
Table 2. Average oxygen concentration, percentage of exceedances of the limit values in individual wards with the supposed cause.
WardAverage>23%>24%>25%Cause of the exceedance
ICU21.0%---No exceedance. Effective mechanical supply and exhaust ventilation, mainly Adaptive Servo Ventilation treatment (tightness of unit considering mask usage by a patient)
CIDD22.6%29%18%4%Poor mechanical exhaust ventilation on the first floor, lockable fire doors, sliding doors separating the zone (necessary due to separation of a COVID zone)
CD21.7%2%--Insufficient gravity ventilation
ICU–Intensive Care Unit, CIDD–COVID-19 Internal Diseases Department, CD–COVID-19 Department.
Table 3. The square of the Pearson product moment correlation coefficient (R2).
Table 3. The square of the Pearson product moment correlation coefficient (R2).
No.Ward (Therapy)CorrelationLinear Dependence FormulaR2
1ICUOxygen flow - %O2y = 0.0022x + 20.90.3526
2Oxygen flow - %O2 x Vol.y = 1.1405x + 22.0770.6628
3CIDDOxygen flow - %O2y = 0.0413x + 20.90.4044
4Oxygen flow - %O2 x Vol.y = 0.2531x + 12.7240.4154
5CDOxygen flow - %O2y = 0.0143x + 20.9–0.245
6Oxygen flow - %O2 x Vol.y = 0.0828x + 9.90140.3855
7ICU+
CIDD
Oxygen flow - %O2y = 0.0074x + 20.90.0053
8Oxygen flow - %O2 x Vol.y = 1.0765x + 16.8550.5683
9All wardsOxygen flow - %O2y = 0.0112x + 20.9-0.076
10Oxygen flow - %O2 x Vol.y = 0.5097x + 14.8030.232
11All wards, passive OTOxygen flow - %O2y = 0.0407x + 20.9-0.331
12Oxygen flow - %O2 x Vol.y = 0.3328x + 7.32490.4373
13All wards, high-flow OTOxygen flow - %O2y = 0.0124x + 20.90.1255
14Oxygen flow - %O2 x Vol.y = 0.1117x + 5.12960.4838
15All wards, OT in mechanical ventilationOxygen flow - %O2y = 0.0058x + 20.90.286
16Oxygen flow - %O2 x Vol.y = 0.7354x + 22.7130.3607
ICU–Intensive Care Unit, CIDD–COVID-19 Internal Diseases Department, CD–COVID-19 Department.
Table 4. Basic input data for the simulations.
Table 4. Basic input data for the simulations.
No.ParameterValue
1.Program versionFDS 6.7.7
2.Simulation time900 s
3.Cell size0.1 m (single compartment)
0.2 m (whole corridor)
4.Number of cells109,824 (single compartment)
71,060 (whole corridor)
5.Fuel parameters
(polyurethane foam)
Heat of combustion 27,000 kJ/kg
Fire power density 250 kW/m2
Table 5. Maximum values of selected fire parameters in room 11 at changing initial value of oxygen concentration.
Table 5. Maximum values of selected fire parameters in room 11 at changing initial value of oxygen concentration.
Oxygen ConcentrationMaximum Power of FireMaximum Temperature
(at the Height of 1.8 m)
21%3178 kW984 °C
22%3233 kW1015 °C
23%3360 kW1021 °C
24%3372 kW1061 °C
25%4248 kW1841 °C
Publisher’s Note: MDPI stays neutral with regard to jurisdictional claims in published maps and institutional affiliations.

Share and Cite

MDPI and ACS Style

Wróblewski, W.; Tuśnio, N.; Wolny, P.; Siuta, D.; Trzebicki, J.; Bączkowska, T.; Dzikowska-Diduch, O.; Pruszczyk, P. Fire Safety of Healthcare Units in Conditions of Oxygen Therapy in COVID-19: Empirical Establishing of Effects of Elevated Oxygen Concentrations. Sustainability 2022, 14, 4315. https://doi.org/10.3390/su14074315

AMA Style

Wróblewski W, Tuśnio N, Wolny P, Siuta D, Trzebicki J, Bączkowska T, Dzikowska-Diduch O, Pruszczyk P. Fire Safety of Healthcare Units in Conditions of Oxygen Therapy in COVID-19: Empirical Establishing of Effects of Elevated Oxygen Concentrations. Sustainability. 2022; 14(7):4315. https://doi.org/10.3390/su14074315

Chicago/Turabian Style

Wróblewski, Wojciech, Norbert Tuśnio, Paweł Wolny, Dorota Siuta, Janusz Trzebicki, Teresa Bączkowska, Olga Dzikowska-Diduch, and Piotr Pruszczyk. 2022. "Fire Safety of Healthcare Units in Conditions of Oxygen Therapy in COVID-19: Empirical Establishing of Effects of Elevated Oxygen Concentrations" Sustainability 14, no. 7: 4315. https://doi.org/10.3390/su14074315

APA Style

Wróblewski, W., Tuśnio, N., Wolny, P., Siuta, D., Trzebicki, J., Bączkowska, T., Dzikowska-Diduch, O., & Pruszczyk, P. (2022). Fire Safety of Healthcare Units in Conditions of Oxygen Therapy in COVID-19: Empirical Establishing of Effects of Elevated Oxygen Concentrations. Sustainability, 14(7), 4315. https://doi.org/10.3390/su14074315

Note that from the first issue of 2016, this journal uses article numbers instead of page numbers. See further details here.

Article Metrics

Back to TopTop