Next Article in Journal
A Survey on Mixed Traffic Flow Characteristics in Connected Vehicle Environments
Previous Article in Journal
Edge AI and Blockchain for Smart Sustainable Cities: Promise and Potential
Previous Article in Special Issue
Toward Energy-Efficient Houses Considering Social Cultural Needs in Bahrain: A New Framework Approach
 
 
Font Type:
Arial Georgia Verdana
Font Size:
Aa Aa Aa
Line Spacing:
Column Width:
Background:
Article

A New Framework for Sustainable Resilient Houses on the Coastal Areas of Khanh Hoa, Vietnam

Leicester School of Architecture, De Montfort University, Leicester LE1 9BH, UK
*
Author to whom correspondence should be addressed.
Sustainability 2022, 14(13), 7630; https://doi.org/10.3390/su14137630
Submission received: 26 April 2022 / Revised: 18 June 2022 / Accepted: 21 June 2022 / Published: 22 June 2022
(This article belongs to the Special Issue Advances on Building Performance and Sustainability)

Abstract

:
With the impacts of tropical storms on Vietnam’s residences, the aim of the study is to produce a new framework for designing sustainable resilient houses in Vietnam’s coastal areas. This study was based on the community’s need to develop a set of guidelines for improving the stability of domestic buildings in storm-prone areas. It also addresses some unresolved issues including storm-proofing techniques and sustainable development in coastal dwellings. The main findings of this study were defined by the use of mixed-method approaches. These research methods involved observational surveys, questionnaires, interviews, case studies, and computer simulations. Particularly, the case studies were simulated by the use of computational fluid dynamics to mimic the storm impacts on existing buildings. These concentrated on the solutions, techniques, benefits, and challenges of sustainable resilience in coastal residences. The results are presented by a framework for designing a sustainable resilient house and a prototype was also tested. Both the framework and the prototype can satisfy the community demands by making energy-efficient buildings and effective wind mitigation guiding other research about developing sustainable and resilient houses in the future.

1. Introduction

Natural disasters such as hurricane Katrina in 2005, Haiyan in 2013, Damrey in 2017, and Dorian in 2019, have shed light on the possible environmental impacts on people and property as well as the number of resources required for recovery [1]. The damages caused by such natural phenomena have inspired the human population, particularly in tropical regions to design strategies to reduce the societal and infrastructural impacts of these disasters. The intensity of a tropical storm usually ranges between 39 to 73 mph (62 to 117 km/h), while the wind speed of a tropical hurricane is 74 mph (119 km/h) or higher. Risk factors such as strength, size, and duration of a tropical storm are created by two main factors of climate change; warmer ocean temperatures, and higher sea levels [2,3,4]. Such storms can be triggered by the increase in temperature, humidity, and rainfall, which can be consequences of an imbalance between the natural environment and urbanization [5,6].
With respect to buildings during a hurricane, we are concerned with the is the physical impacts of tropical storms on building structures and their vulnerability. The physical influences of a hurricane on construction may be due to heavy rain, strong wind, flash flooding, and a rise in sea level. These impacts can cause buildings to collapse or may damage building structures such as structural cracking, uplifting roofs, overturning foundations, removing cladding, and breaking windows and doors [7]. The physical impacts of wind on roofs are the highest, and the influences of floods on the foundations are the greatest [8,9]. Thus, the motivation of this study is based on the demand to improve the stability and quality of domestic houses in storm-prone areas, with a scope limited to the country of Vietnam. The emphasis of this study is the reduction of storm impacts on buildings (resilient design) and minimizing the environmental effects of buildings (sustainability). It not only addresses a part of unresolved issues in terms of building resilience but also promotes sustainable development in the local residences of the country of Vietnam.
Therefore, this work provides a framework for a sustainable resilience house in the context of coastal conditions in Vietnam. This involves local climate conditions, geomorphology, construction technology, and human activities. Such factors have a strong relationship to establishing and developing an urban shape [10,11]. These are based on the literature review, field surveys, and simulations to provide a clear understanding of the framework that contributes to solving the challenges and achieving the development of resilient houses in Vietnam with sustainable design.

2. Literature Review

The literature followed the design process of domestic buildings identifying construction details, characteristics, and geographical features in the coastal areas of Vietnam. Here we present the existing methods of storm-proofing and the development of a resilient house that embraces sustainable characteristics. Modern and vernacular houses are the main styles of buildings in the storm-affected areas of Vietnam. These houses represent tropical architecture with the minimum physical effects from natural phenomena and maximum air ventilation [12,13].
Moreover [14] pointed out two goals of sustainable development with renewable energy and responsible consumption. Although two strategies have been applied to coastal residences in Vietnam and other tropical countries, it still has a variety of limitations in knowledge, technology, and techniques. In terms of storm-proofing solutions, resilient houses typically have simple designs and house plans (rectangular or square). Specific characteristics include the use of 30-degree roof slopes, raised floors (with base flood elevation), and structural reinforcement (cross, horizontal, or vertical bracing) [15,16]. The details of the characteristics can be summarized as follows:
a.
Building shape or house plan:
A simple house shape is preferred over more complex shapes for designing resilient houses in a storm-prone region [17]. The windstorm usually moves swiftly around a building and creates high pressure as well as suction on house elements such as walls, roofs, windows, and doors. The square or circle shape minimizes wind loads [18,19] (Figure 1). Particularly, certain points that need to be avoided in designing building shapes, which include the ‘T’, ‘L’, ‘U’, ‘H’ or cross shapes [15]. Those shapes can collect full strong wind, similar to a windbag.
b.
Roof shapes:
Besides building shape, roof shape is also a significant factor in designing shapes of construction to provide windstorm mitigation. The roof is an element of a house that is usually used to protect the interior space from natural phenomena such as rain, wind, and sunlight. According to [20,21], a hip roof is the best option to mitigate pressure as well as the suction of windstorms as wind pressure will be divided equally across four directions of four slopes. The pyramid roof is another type of hip roof with an acute corner on the rooftop, which can too reduce more wind loads on the roof than the regular gable roof (Figure 2).
c.
Building height:
The height of building structures in affected regions is based on a combination of influences from the local architecture, culture, geomorphology, materials, and wind conditions [23]. Each type of material has a different limitation in the design of building structure and height. According to [24] there are possible options for the typical foundation for dwellings in flood-prone areas, which are divided into two flood-proofing techniques and the base flood elevation (BFE) in the location (Figure 3). The application of wet flood-proofing techniques is usually defined in coastal residences through the use of high stilts. The application of dry flood-proofing techniques can be determined as the use of the basement or crawlspace.
d.
Building structure:
The strong structure of domestic houses is a significant element to ensure house stability during storm events [25]. If a dwelling is built with a timber structure, it needs to be strengthened with cross-bracing and metal straps (Figure 4). Furthermore, a case study of reinforcing brick construction with vertical and horizontal bracing to resist the damage of windstorms was provided by [26,27]. The reinforced concrete structure of modern dwellings has been used more than timber and brick structure (load-bearing brick wall) because the concrete structure from foundation to roof is connected as a rigid block. This block has a strong connection to resist vertical uplift and horizontal pressure of wind loads.
In sustainable development, two strategies have been applied in coastal residences that can be summarized as:
a.
Energy efficiency:
Besides the community’s needs for storm resilience, the demands of living standards and energy consumption are also growing. The use of clean or renewable energy for reducing carbon emissions, non-renewable resources, and negative impacts on the environment was proposed in [28]. The reduction of energy consumption from air ventilation and artificial lighting in housing is evidence of sustainable advantage. Wind and solar power are common renewable energies used in domestic buildings due to the current affordable prices. Most of the household energy consumption is electricity, which occupies approximately 50% [29] with the rest coming from gas and other resources. The use of technology to collect and transform solar energy can provide electrical energy. Most residences install solar panels on the roof to collect maximum solar energy. Those contribute to reducing the cost of energy and carbon emissions in a house.
b.
Resource efficiency:
The scope of resource efficiency in this research concentrates on defining material resource efficiency in construction. The content of recycling materials will emphasize the reuse of waste materials from collapsed buildings after a hurricane. Those benefits of resource efficiency can support the building life cycle in terms of maintenance, recycling, and eco-design.
A variety of existing research presents the use of natural or renewable materials to build resilient houses in storm-prone areas. Stone can ensure building stability from storm surges and minimize environmental impact. The traditional design is still used in vernacular houses in Vietnam, but now with reinforced concrete structure, clay brick walls, and concrete foundations to increase the stability of a building. An option of using a bamboo yin-yang roof or a double roof with four slopes (30-degree slope) was provided in [30] for mitigating wind loads as well as harvesting rainwater was present. Bamboo is also used in other building components such as walls or partitions because it is a sustainable and renewable resource.
When a building is demolished or collapsed by disaster, the types of construction material usually include scrap metal, timber (hardwood), concrete, and brick. Those waste materials should be collected and separated before recycling and reusing. The reuse of waste materials can minimize construction costs and environmental impacts. Each type of material has different methods for recycling or reuse in construction such as scrap metal or timber can be reused as furniture or decoration. The methods of recycling and reuse are an aspect of resource efficiency in construction. That impact can promote sustainable development in resilient buildings.
In fact, the techniques of storm-proofing in Vietnam’s residences have not developed and have various limitations. That is realized through the comparison of existing research in this country. The comparison in Table 1 is summarized with 9 key points of the building resilience: Design, Sustainability, Technology, Disaster, Climate, Geography, Culture, Economy, and Policy. Those points concentrated on defining the storm-proofing techniques and building development of each existing research. A common limitation of those existing research in Vietnam is the lack of a framework for guiding the design of building resilience in a storm-prone area. That is caused by the limitations of technology and techniques for simulating storm impacts on buildings. The professionals have limited knowledge of methods and solutions for ensuring building stability because most experience is based on the existing houses in Vietnam. Those techniques could not satisfy the quality as well as stability of buildings from disasters in the current time.
Although the previous studies lacked the description of methods and techniques to develop building stability, they provided a variety of useful data for recognizing the benefits and problems in the storm-prone areas. For instance [37] presented the advantages and disadvantages of coastal areas in Vietnam. This investigation emphasized the impacts of storm disasters on the buildings and society. The application of strong points from the natural environment was illustrated through the design of vernacular houses [30,32] described the main characteristics of vernacular houses and showed the potential development for increasing building performance with sustainability. The discussion of using natural materials and passive designs was only theories because two studies lacked thermal or fluid dynamic simulation. Besides the investigation of vernacular design, the previous studies in Vietnam also presented and developed the modern design for reducing storm impacts on society and residences in storm-prone areas [31,34,36,38]. The design of the building structure for ensuring stability was presented in [31,34], which showed the weaknesses and improvements such as shape, orientation, form, materials, and connection. Both studies were only based on the theories and previous existing buildings in Vietnam. It does not satisfy the community’s needs about building stability and performance in the extreme climate. The studies [33,35,36] proposed the strategies of sustainable design for improving building quality as well as increasing building stability. They presented the importance and influence of the environment on buildings but it limited the evidence of applications or simulations. Thus, the contribution of this study will be based on the knowledge gaps in sustainable building design and simulation in Vietnam’s coastal areas by addressing the following research questions:
What are the significant characteristics to identify and develop sustainable resilience in Vietnam’s coastal houses?
How to apply the characteristics of sustainable resilience to domestic buildings in the storm-prone areas in Vietnam?
The overall aim of this paper is to develop a new framework of sustainable resilient houses in Vietnam. This framework will be tested by producing a prototype. The specific objectives of this paper are therefore as follows:
To examine characteristics of sustainable resilient houses in storm-prone areas in Vietnam.
To identify the local community needs in relation to sustainable resilient houses in coastal or storm-prone areas.
To evaluate the performance of existing house resilience with model simulation in the context.
To develop and test a new framework for sustainable resilient houses in Vietnam.

3. Materials and Methods

After gathering the data from the literature review, this study applied mixed-method approaches to collect significant data from the real world. Although each method has a different type of data, their purposes still concentrate on surveying the community demands and defining suitable solutions for the development of resilient houses with sustainable design. The multiple methods for collecting data included observations, questionnaires, interviews, and simulation case studies of existing buildings. Those were divided into two groups with qualitative and quantitative data. Figure 5 shows the plan and details of the research procedure. The outcome of this process provides the main findings to conduct the framework of sustainable resilient houses in Vietnam. Hence, the process and results of the methods will be summarized.
a.
Observation:
The purpose of this method is to observe the local houses, people’s behaviour, and the environment following a hurricane. This naturalistic observation also provides related information in the affected areas such as temperature, humidity, wind velocity, waves, tides, building, and community problems. The survey focuses on the building damages in Nha Trang city after Damrey (2017) and Usagi (2018) storms.
For instance, Figure 6 illustrates the physical impacts of the Damrey hurricane in 2017 which had the highest wind force in recent years with 167–183 km/h (105 mph). Storm Usagi in November 2018 did not have strong winds at level 10 but the rate of rainfall was high at 350 mm (Figure 7). The social infrastructure and residences have been damaged by windstorms and floods. In terms of the Damrey storm, 3500 destroyed houses were 2.5% of the total construction damage in the city. The common material damages to buildings were the lifted roof with 39% and other houses had collapsed walls with 13% [39]. This situation impacts the safety and quality of life. It is also useful evidence for evaluating data when it is compared with the results of questionnaires and interviews.
b.
Questionnaire:
This survey aims to define the community demands, people’s behavior, and storm impacts on dwellings in the affected areas. The survey was completed online and used closed-end questions. Those questions were designed on the basis of the knowledge gaps and literature review. The results were 50 responses with 22 responses from local people and 28 responses from local architects. The results of responses were compared together with the data of observation and interviews for considering the proportion of similar opinions.
Figure 8 shows five questions and the results of the questionnaire, which overview the preparation of local people, the physical impacts of a storm, and the necessity of storm-proofing for buildings. Although the local people have been noticed by weather stations, their preparation for storm-proofing has been limited in terms of techniques as well as knowledge. The common damages to coastal residences during storm events were roof up-lift roofs, breaking windows, and floods. Another cause is also based on the weakness of the building structure such as a lack of rigid connection between building components. Hence, most participants agreed with the development of building resilience with sustainability and they also proposed to apply this to modern and vernacular houses because the concepts of sustainable development in buildings have an affordable cost for the developing area.
c.
Interview:
The purpose of the interview is to gather in-depth data for explaining the people’s opinions, experiences, and issues obtained from the questionnaire’s responses. This also provided the collection of respondents’ experiences with storm resilience and sustainable development of coastal houses in different situations. The interviews were conducted in various ways including face-to-face conversations, telephone, emails, and other social networks. Total valid data collection includes 5 responses from local professionals and 3 responses from non-professionals in the affected areas. All participants preferred the design with the connection between the building and the natural environment. That connection not only reduces the negative impacts of extreme weather through natural protection but also creates comfortable spaces for living or working.
Because of limited knowledge about architecture and construction, answers from non-professionals were based on experience, daily life, and behaviors. The building characteristics, damages, and solutions were presented with general descriptions. For example, they only know the uplift roof is caused by the low-quality structure but they do not know that damage has depended on the roof shape, materials, or connection between building components. It is caused by the limited knowledge of the reinforced structure for resisting wind and flood impacts. The householders do not have specialized knowledge in construction, thus their interests only are aesthetics and building costs.
However, their responses still mentioned three main features for designing a sustainable house in storm-prone areas. The first is the influence of tropical climate conditions on the house. The house not only ensures the safety of householders in disasters but also creates a comfortable space or temperature in daily life. The application of a passive design for controlling room temperature is a traditional design. That design is also used to reduce the impacts of windstorms and floods. The rest includes the building components and the storm damage to those elements. The interviewers mentioned the damage from wind loads and water penetration on the building components. The stability of their building is reduced by the impacts of water penetration. When the connection of building elements is weak, the house is easily collapsed by windstorms. Most of the houses are built with brick load-bearing walls that are collapsed from windstorm impacts at level 8 or about 70 km/h. Furthermore, they demonstrated simple solutions to reduce the storm damage to their houses. Those are the use of stilts or stone cladding for flood-proofing and the application of cross-bracing for wind resistance. Although the householders have limited knowledge about resilience or sustainability, they presented their demands to develop a sustainable house with high stability in the affected zone.
Besides householders, the professionals have more experience and career knowledge in developing construction. Their responses were used to define in-depth knowledge about sustainable design for building resilience in the affected areas. Five main points in their answers included the climate conditions, hurricane impacts, local architecture, storm-proofing techniques, and sustainable design. The responses of professionals about climate conditions and storm-proofing techniques were similar to the householder’s answers. They mentioned the importance of passive design and natural ventilation for designing domestic buildings in Vietnam or tropical countries. The identification of climate conditions is necessary to satisfy the demands of designing comfortable spaces, room temperature, and lighting. Another similar point is the presentation of storm-proofing for coastal houses. Those were still general techniques with the use of water-proofing materials, change of roof shape, and application of cross bracing. They emphasized applying the reinforced concrete structure. The rigid structure must connect from foundation to roof. Hence, the results of local professionals’ responses illustrated a part of the knowledge gaps in developing house resilience. The lack of previous framework and high technology can be a difficulty for approaching new techniques or upgrading knowledge.
In spite of that, the professionals provided a variety of strategies and opinions to develop sustainable houses in the storm-prone area. The development of sustainable residences is also a strategy of the government in recent years. Those architects and engineers have applied sustainable design to their construction but it still has limitations in performance as well as management. In fact, if the design of dwellings changes to sustainability, the local architecture will have a few changes to satisfy new techniques and technology. The development of domestic dwellings with sustainable design also creates challenges for developing resilient houses because that requires specialized knowledge in both sustainability and resilience. The professionals showed an example of this issue through the selection of building materials. If a house is built with industrial materials to ensure stability, the achievement of resource efficiency from this building will be difficult such as reusing or recycling waste materials. Indeed, a guide or framework for supporting the design of a sustainable house in the affected area is necessary. That can show significant elements of resilience and sustainability for designing a suitable house with the local and climate conditions.
To sum up, the professionals agreed with the householder’s solutions regarding storm resilience, and they also suggested more opinions for enhancing the building performance as well as building stability. Both of them emphasized the lack of information as well as a framework for developing resilient houses with sustainability. Hence, the local architects and planners have a belief in this study. They think the framework in this study can apply to improve the stability as well as the quality of domestic buildings in the affected areas in the future.
d.
Simulation case studies:
A case study is a way of understanding the research context, which provides details of the phenomenon and demands of a community. The simulation mimics the impact of the aforementioned storms on existing buildings and environmental surroundings through the use of computational fluid dynamic software. This method aims to define the strengths and weaknesses of house components in storm resilience as well as sustainable development. It involves the shapes, roof systems, structural connection, and relationship with the environment of existing buildings. Particularly, the setting of simulation should be based on the conditions of reality (data collection) to increase modelling accuracy in the dynamic simulation.
The results of simulation case studies are divided into two scenarios: worst-case and base-case. The consideration of each scenario will be based on the cause and effect of the case in the affected areas. It involves the wind velocity, design of houses, structures, materials, and environmental surroundings. Furthermore, the scenario can predict the consequences of a situation in the future because the analysis depends on the logic and structure of the simulation for the prediction [40]. For example, the worst-case scenario describes the negative situation of a house in a storm event such as collapsed structures or not ensuring safety for householders. The base-case scenario presents common situations of domestic buildings in the affected areas. That includes the damage to building components but the householders still ensure safety in this situation. The identification of different scenarios from tested simulations contributes to the decision-making process when the framework is applied to design a sustainable resilience house in storm-prone areas.

4. Case Studies

The selection of case studies focused on two building styles in the affected areas: modern and vernacular. Those case studies were selected with the acceptance of local householders. That supports simulating the existing residences in the impacts of a storm event. The results of the simulation were also compared with the householder’s responses in terms of the building damages. This comparison is an evaluation of the main findings in the interviews as well as simulation case studies.
The case studies are simulated by a computational fluid dynamic simulation (Autodesk CFD) because the advantages of this software are to optimize the simulation of HVAC, thermal management, fluid flow, and free surface movement. The limitations of this software are the lack of a climate data library and the difficulty of simulating the thermal impacts in construction materials. Therefore, the building performance and environmental conditions were set both manually and predicted from the EnergyPlus model using DesignBuilder software.
a.
The setting of simulation case studies:
When the models of case studies were performed by Autodesk CFD, the parameters of building materials and wind simulation were set in the same data of reality. It was based on the data collection of observation and interviews. The design of wind intensity was set at 70 km/h, and the four main materials in this setting were outside air temperature, concrete, brick, and wood (Figure 9). Moreover, the simulation also set the thermal dynamic in the models. The settings of the thermal simulation were based on the sun path of six months in the rainy season (from September 2020 to February 2021). The selected time for simulating the sun’s impact on the building was from 10 am to 2 pm to mimic the hottest temperature effect.
In the wind simulation, the velocity magnitude of wind (m/s) was illustrated by the colour of the wind vector. Static pressure of wind (Pa) was shown by the colour of the house. Both of them have similar colour displays with red being the highest and blue the lowest.
b.
The fluid dynamic and thermal simulation of modern house:
The dwelling of this case study was built with the modern style in 1994. The design of the building can illustrate the common construction in the location with a rectangular plan, box-shaped building, and 80% land use. This modern house has two main facades: Southwest and Southeast. The Northwest and Northeast of the house were linked with neighbour’s buildings.
The simulation of this case performs the wind movement from Southeast to Northwest, the main wind direction (Figure 10). This orientation is the direction storms arise yearly from the ocean. The long façade of the dwelling was oriented to the Southeast and this facade has more negative impacts from windstorms. The windstorms can go straight and affect this façade because it has a gap in front of this elevation and the height of neighbour’s buildings in this direction is been lower. However, the dwelling has one side to link with the neighbour’s house. An advantage of connection is to support the building stability from the storm impacts by creating a block or group of residences.
Furthermore, Figure 11 shows part of a dynamic thermal simulation. It simulated the temperature distribution and solar gain of the modern house in December 2022. The results of the thermal simulation are summarized in Table 2. That is evidence to define the comfortable room temperature and solar gain of the house. An advantage of the building is the two facades with a long facade on the Southeast. This advantage supports the house to obtain maximum daylight per day. However, the negative impact of this extended sunlight is the increase in room temperature. The average temperature of the living room is about 29 °C without natural ventilation. A common passive design for reducing the temperature of the living room is the use of stone cladding. The temperature of the bedroom is around 23 °C because this space only obtains sunlight from 8 am to 10 am. In particular, the results of solar gain on the building per month are used to evaluate the potential development of sustainability in the house. The evaluation is also based on the design and materials of the building. That design can reduce the energy consumption for artificial lighting or cooling system if the building applies sustainable technology to store solar energy.
Indeed, the outcomes showed the strong and weak features of the modern building in storm-proof. The reinforced concrete structure is the main characteristic to ensure building stability in high storm impacts. That structure created a rigid connection from foundation to terrace (flat roof). A weakness of this house is flood-proofing. It is caused by the lack of floodproofing knowledge, materials, and techniques at that time. Additionally, the results of the simulation also illustrated the relationship between the building and the surrounding environment. The average temperature and solar gain in the house can be used to consider the application of sustainable design. A common passive design is the creation of green space on the long facade (Southeast) that contribute to creating comfortable room temperature. The energy and cost efficiency of this design were identified by the householder and local professionals.
c.
The fluid dynamic and thermal simulation of vernacular house:
The place of this case study is the Cai riverside with the direction toward an ocean. It has a higher density of green spaces than the city center. Those buildings in this area are built in the vernacular style because of flood-prone areas. A common characteristic of the vernacular houses on the riverside is the use of stilts. In terms of this dwelling, it has two facades (Southwest and Northeast) that aim to increase the effectiveness of the passive design such as natural ventilation. The connection between the house and the environment not only supports managing comfortable room temperature but also protects the building from storm impacts.
The main wind direction of this case study is the Southeast but the river or Northeast façade is affected by the highest wind pressure. The vernacular house was designed to obtain natural ventilation and resist high temperatures with a big window in the Northeast direction. That design is a weakness of the resilient house because the Northeast elevation does not have trees and buildings to reduce or prevent the wind loads. Additionally, the connection of building components is weak. It does not ensure the building’s stability during a storm event. Common damage in this house is the roof uplift due to the connection between roof cladding and trusses. It only links by nails and glue. Figure 12 illustrates the high wind pressure on the building. The roof, overhang, windows, walls, and balcony in the Northeast direction are the components that are impacted by high pressure. The use of cross-bracing or reinforced concrete can be a solution to ensure the stability of the vernacular house in the affected areas.
Similar to the thermal simulation of the modern house, this case study also simulated temperature and solar gain on the vernacular house. Figure 13 displays a dynamic thermal simulation of the house in December 2022 and the results of the thermal simulation are summarized in Table 3. This building usually obtains sunlight from 7 am to 2 pm per day. The average temperature of the living room and bedroom in this case study is around 32 °C because of the long sunlight hours, orientation, and building materials. Both spaces do not satisfy the comfortable room temperature. The householder used plants to reduce the impact of sunlight on the rear facade (Northeast elevation). Although the effects of this green space have supported the shading and reduction of direct sunlight into the building, the room temperature is still high. This reason is from the use of aluminum roof cladding. When the roof collects a large amount of solar radiation, the indoor temperature also increases similar to the solar heat gain. If the building applies photovoltaic panels on the metal roof to store solar energy, it can use that energy for cooling systems in the house. That can be a solution to reduce the room temperature and an improvement to promote sustainable development.
As a result, the vernacular house is more vulnerable than the modern house in storm-proofing techniques. The application of stilts and passive design in this building does not ensure stability from windstorms in recent years. Although the impacts of windstorms are reduced by the green space around the dwelling, the roof is uplifted and the roof systems are damaged at 70 km/h of wind velocity. A cause is the use of brick load-bearing walls. That does not create a rigid connection from foundation to roof. However, the house has high potential development of sustainable design because the vernacular style inherits a few strong points of traditional design such as collecting natural ventilation, using natural materials, and managing room temperature. Those strengths also contribute to creating resource efficiency in terms of reusing and recycling building materials.

5. Results

The outcomes of this study include a framework and a prototype for designing sustainable resilient houses in Vietnam based on the data evaluation and simulation. That is a set of guidelines to support architects and planners in achieving effective design by simplifying the decision-making process. The framework shows the requirements and specifications to achieve sustainable resilience. Two main areas of the specifications concentrate on the designs of storm-proofing and sustainability. The specifications of resilient design aim to ensure building stability and the sustainable design supports improving the building performance. The framework is validated with the design of a prototype. The proposed prototype is a general sample or model of a house. This prototype also presents the sections of the framework to achieve a sustainable resilient house.
a.
Proposal framework:
The framework is presented as a visual map with three main stages for designing sustainable resilient houses that follow the building standards of Vietnam to satisfy the community needs and social conditions in the place (Figure 14).
The first stage is a basic step for approaching the framework. The purpose of this stage is to determine the evidence and related information in the study context. It is necessary to understand the storm impacts, people’s awareness, community’s needs, local existing residences, and environmental surroundings. This data can be collected by observations, interviews, and case study simulations. As the results of data collection in the study, the observation provides evidence of storm impacts and background information on the place such as geography, orientation, culture, and community. The interview not only applies to collect relevant data but also aims to obtain in-depth individual opinions from the community in the affected areas. The simulation case study supports determining the risks of windstorms on the building and environmental surroundings. It also establishes a sustainable design for achieving energy efficiency through the outcomes of thermal simulation. Those collected data should be evaluated before designing the specification of resilience and sustainability in the next stage. The evaluation will support the selection of design requirements for the local conditions and community’s needs.
The second stage will identify the specifications of the building design, structure, and materials. The design specifications in resilience or sustainability can be summarized by three points. The resilient designs are wind mitigation, flood-proofing, and human security. Sustainable designs involve energy efficiency and resource efficiency. Those standard specifications for designing a sustainable resilient house should be based on the collected data from the previous stage. The design of specifications is also evaluated with the local requirement of resilience and sustainability before applying. The evaluation should include the quality or availability of building design, structure, and materials to ensure the building stability from impacts of wind velocity 80 km/h (or higher) and achieve the effects of sustainable design. The policies will show the minimum or acceptable levels of building resilience and energy efficiency in the location. For instance, the design of a prototype can be sketched when the specifications are applied to evaluate those case studies. That will define the strengths or limitations of buildings in case studies and establish suitable designs in a prototype. The reinforced concrete structure of the modern house and the stilts of the vernacular house are two strong points of the local construction for reducing storm impacts. The design of the prototype will apply those points to maintain the aesthetic as well as architecture in the location.
The final stage of the framework is to produce and evaluate a prototype of a sustainable resilient house. This prototype or proposed building should be based on the data from the previous design principles and considerations, and it should be performed with simulation software. The standards for evaluating the prototype or proposed building are defined from the first stage, data collection, and analysis. After testing and evaluating the proposed building, two options are faced. If the simulation of the prototype does not satisfy the standards or conditions of the context, it needs to be re-designed. The re-design is also re-evaluated and tested with the same methods as well as the standards to achieve a satisfactory outcome. This step will be repeated until the proposed building is accepted. If the simulation can satisfy the standards and design requirements in the context, the proposed building can be accepted as a sustainable resilient house. Indeed, the outcomes of evaluating the prototype can predict the minimum or maximum damages to the building in the requirement. It also illustrates the suitable designs to achieve energy efficiencies such as the application of a passive design or the use of renewable energy technology.
b.
Prototype:
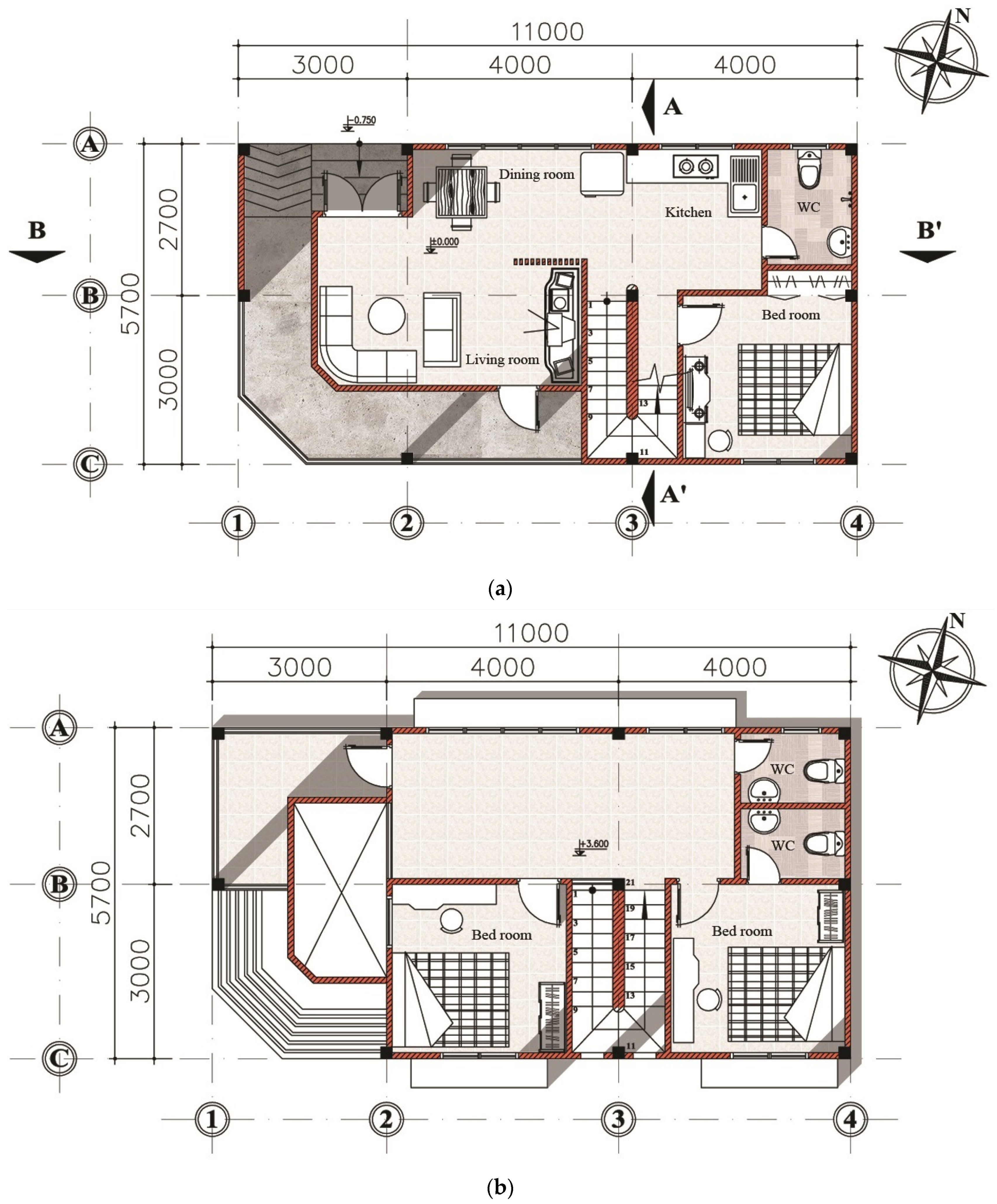
The design of the prototype, following the development of the framework, can be a combination of both vernacular and modern styles using building structure. The building plan was designed with a rectangular shape pattern and it was chamfered a corner in the Southwest. The total area of the design is 113 m2 with 62 m2 on the ground floor and 51 m2 on the first floor. The distribution of spaces on the ground floor includes a living room, dining room, kitchen, toilet, and bedroom (Figure 15a). That design aimed to ensure circulation and ventilation as same as the design of the previous house but it has a few changes in the layout and structure. The distribution of spaces on the first floor is designed with two bedrooms and two toilets (Figure 15b). This floor also has a large corridor in the centre, which is connected to a balcony in the Northwest direction and is linked to the living room space on the ground floor. The hot air or temperature in the living room can be reduced through the air movement from the corridor on the ground floor to the family space and balcony on the first floor. The design of floor plans not only shows the increase of ventilation inside but also illustrates the improvement of building stability from the impacts of windstorms. For instance, the wind pressure on building components is reduced when the wind interacts with the short edges and the chamfered corner of the building (refer to Figure 1 or [17,19]). Particularly, the use of modern structure solves the vulnerability of the vernacular house with the rigid connection (refer to Figure 4 or [27]). A strong point of vernacular structure in this house is the use of stilts for resisting flood damages. Both designs of the structure can minimize damage from the influences of wind forces and floods.
Additionally, the building structure was designed as a box. This building form is a suitable shape to ensure building stability from the negative impacts of windstorms (refer to [19]). The short edge of the building is oriented in the main wind direction which is the ocean wind (from the East direction). The height of the building structure was based on the construction standards of building resilience in storm-prone areas (refer to Figure 3 or [24]). It is about 8.3 m with two floors and a roof. The height of the ground floor is 3.6 m and the first floor is 2.7 m. The ground floor was designed higher than the first floor because this not only creates comfortable spaces with air ventilation on the ground floor but also ensures the building height in high winds. It was based on the investigation of [30] about building height in Vietnam. The roof system was also designed to minimize the wind pressure with 4 slopes (refer to Figure 2 or [22]). The height of this roof is about 2 m and the slope is around 60% (or 31 degrees). This design of roof slope suits to drain rainwater. It not only ensures the speed movement of rainwater on the roof but also protects the drainage system of the roof.
Figure 15c shows the perspective of the prototype that is based on the views from the riverside (Southwest). The building aesthetic and form were designed similar to the general architectural style in the city centre. This design still keeps vernacular features of the riverside or the flood-prone regions. Those characteristics are identified through the use of stilts and hipped roofs. Particularly, the exterior wall cladding is built at 1 m in height, which is based on the base flood elevation in the location (750 mm). The design depends on the rising tides in a flood event, and it also prevents water penetration on the brick walls. Moreover, the building perspective demonstrated the relationship between the environment surrounding and the proposed design. The design uses corridors or open space to create a connection between interior and exterior. This connection is a specification of a sustainable house, which aims to promote building performance. The benefits of those sustainable designs are the reduction of humidity, temperature, and the harvesting of solar energy. Hence, the design of the house was satisfied with the specifications of sustainable resilience in the framework. That was evaluated from the comparison between the prototype performance and standards/case studies.
The main wind or hurricane direction is from the ocean (Southeast direction). The setting of wind velocity is similar to those cases with 70 km/h, and it is the wind force of the Usagi storm in 2018 (refer to Figure 9). The wind pressure from the Southeast direction is mitigated at around 1500 Pa when it flows through the building surroundings. This pressure cannot destroy the reinforced concrete structure or other building components. Besides that, the highest pressure of wind force on the house is approximately 2400 Pa when the windstorm impacts from the Southwest (Figure 16). The positive effects of the short facade and chamfered corner will be performed to minimize the wind loads and to ensure building stability. The roof is also impacted by the high pressure of windstorms from this direction (Southwest). However, this influence cannot uplift or destroy the roof system because the strong points of this roof are the four slopes and rigid connections to the building structure. The design of the roof system also avoids the creation of obstacles such as water tanks. The roof only adds photovoltaic panels to achieve energy efficiency, which can increase the building performance during storm events.
Figure 17 illustrated the indoor thermal simulation of the building at 11 am and without the impact of air ventilation. It also showed the impact of the sun on the building such as daylight and solar gain. For example, the thermal simulation of the ground floor was displayed, which was useful data to define the natural light as well as solar gain on this floor. The analysis of daylight and solar gain on the first floor was also based on this result of thermal simulation (Table 4).
The results of the thermal simulation were summarized in Table 4, which showed the average room temperature and solar gain. The main facade of the building (Northeast) obtains sunlight from 8 am to 2 pm, and the solar gain of the rear facade (Southwest) starts from that time until the sunset. The living room and kitchen of this building have full of daylight. The average temperature in the living room is about 26 °C and the bedroom satisfies the comfortable room temperature with 23 °C. That room temperature is also based on the cladding material in the rooms. The use of natural material or stone not only controls comfortable room temperature but also achieves resource efficiency. In addition, the average monthly solar gain of this building is high, similar to the solar gain in the case study of the modern house. That can be a potential development of sustainable design for reducing energy consumption when the building applies photovoltaic panels. The improvement of energy efficiency in the building will be shown through the reduction of energy consumption for the cooling system and artificial lighting.
c.
Comparison between prototype and building standards:
Table 5 focuses on the comparison of specifications between the proposed design and building standards in Vietnam. The specifications in the comparison have five main points with wind mitigation, flood proofing, human security, energy efficiency, and resource efficiency. Those points were evaluated through various elements of the construction such as building shape, form, structure, materials, techniques and other components.
In terms of the comparison, the proposed design achieved full specifications of the design requirements or standards (Table 5). The description of the building design and wind simulation above presented those specifications. The proposed prototype not only ensures building stability from the influence of 70 km/h wind but also is protected by design and building surroundings from higher windstorms. The storm-proofing techniques of the house were illustrated through the use of rigid connection and stilts (or wet flood-proofing method). The application of rigid connection is also the main point for ensuring human security in a hurricane event. That connection creates a strong structure to resist wind pressure. Furthermore, the proposed prototype also developed the advantages of traditional design with sustainable design in the current time. The building components were designed to enhance ventilation and day lighting. The benefits of the effects are the reduction of cost and energy consumption. The minimizing construction cost is also demonstrated with the use of natural and local materials. That can be performed by reused or recycled waste materials after a storm disaster. Indeed, the building quality was improved through those resilient and sustainable designs. They involve the creation of comfortable room temperature or improvement of building performance.
d.
Comparison between prototype and case studies:
The evaluation was undertaken by comparing the prototype performance and two case studies in Vietnam. It concentrates on comparing sustainable resilient specifications (Table 6).
Firstly, the building components of the vernacular house were damaged by windstorms such as roof systems and connectors. The case study of the modern house has a suitable form and structure to mitigate wind loads on the walls and facades but the flat roof of this case still has been affected by high pressure at 117 km/h wind. This weak point of the modern house has been solved in the proposed design with the application of 4 slopes roof. Moreover, the reduction of flood risk is also necessary for coastal residences. The traditional design of using stilts for domestic buildings on the riverside is a suitable flood-proofing technique. The vernacular building and the prototype applied this technique to minimize flood damages. The modern house did not apply the stilts structure because it was built in the City Centre. That existing building is usually affected, which causes by problems from existing infrastructure.
Both designs of wind mitigation and floodproofing also relate to managing human security or creating a safe space for a house in the storm-prone region. They have a general fundamental, which is from the selection of building structure and materials. The decision of structural form and material will impact types of construction techniques and connections because each material or structure has specific methods to apply to the building. Those methods also are based on the purpose or requirement of the house. For instance, if a house in a storm-prone area is built with a reinforced concrete structure, it should be applied suitable storm-proof techniques with the reinforced concrete material from building design to building components. A timber frame house in a hurricane-prone zone also needs to apply suitable storm-proof techniques for ensuring the building stability, which may involve the building connections. Thus, the room spaces of the modern house and prototype were evaluated as safe spaces.
Secondly, an advantage of Vietnam’s houses that has been developed from the traditional to the modern period is the creation of energy efficiency in the building with natural daylighting. However, the comparison of thermal simulation showed the differences between case studies and the proposed prototype in terms of room temperature and solar gain. Sustainable design in domestic houses is developing step by step with the application of high technologies and techniques from developed countries. The cost-efficiency of the case studies and the prototype at the present time is from the reduction of energy consumption for lighting and cooling. It can develop to the reduction of electrical or gas energy in the future.
Another feature of residence in Nha Trang city, Khanh Hoa province is the local building materials. Those materials are potential development of sustainable houses in this city such as stone, concrete, and clay brick. In fact, the vernacular house was built with timber. That reason could be from the householder’s demands and the common building material at that time. The use of local industrialized and natural materials in existing buildings or the prototype will achieve the benefits of resource efficiency. Although the recycling of construction waste is limited to techniques and technology in Vietnam, the resource efficiency in two case studies and the prototype can realize with the reuse and reduction of waste materials after a storm. The stone or brick waste can be reused for a fence, garden cladding, or decorations of exterior space. The concrete waste is recycled for road gravel, landscaping gravel, or retaining walls.
Finally, the building specifications of the case studies and the prototype are the basis to evaluate the performance as well as building quality. It not only evaluates the building quality after an influence of a hurricane but also assesses the building performance in daily life. For instance, the modern house and the prototype can have longer durability than the vernacular house due to their materials. Those building materials also relate to maintenance, improvement, and replacement. The concrete structure and brick components are difficult elements to replace in Vietnam’s houses. It is caused by the limitation of techniques and technologies in the present time.
To sum up, the conclusive design of the sustainable resilient house is based on three main stages of the framework for defining and evaluating the suitable data. It includes the data collection, design specification, and simulation. Those main findings or designs concentrate on the purpose of this study, which must show useful data for improving storm-proofing and performance in the house. It involves the design of building orientation, shape, structure, materials, and the relationship between the house and the environment. For example, the results of the prototype simulation demonstrate the enhancement of building performance. The house satisfies the standard as well as specifications of resilience through the design of the building shape and the use of rigid connections between components. The specifications of sustainability are satisfied by the application of natural material, passive design, and renewable energy technology.

6. Discussion

This research study has two main phases in the process that is similar to the research questions. Those questions were based on the knowledge gaps in existing research in Vietnam (Table 1) and are addressed by the main findings of literature reviews, surveys, and related outcomes. The answers were evaluated to solve the building problems and to develop sustainable houses in storm-prone areas in Khanh Hoa province. Hence, the main factors of this study are the identification of sustainable resilient characteristics and the suitable application of those characteristics in local dwellings in the affected areas.
Firstly, the identification of sustainable resilient characteristics was addressed by outcomes of method approaches such as observation, questionnaire, interview, and simulation case studies. The literature review showed the characteristics of sustainable resilience houses in tropical climate conditions, particularly the scope of storm-proofing and sustainable designs. The details involved the architectural style, form, shape, orientation, floor plans, structure, material, connection, construction techniques, and building performance. In order to fully define the characteristics, the results of surveys in the affected areas were necessary to define the suitable characteristics for solving building problems and improving building quality. The scope of consideration was narrowed through the special features of the local environment such as outside air temperature, rainfall, wind speed, local policy, resilient infrastructure, residences, and people’s behaviors. The main findings of the surveys were also compared with the results of the simulation case studies to check their reliability. As a result of the agreements, all participants understood the significance of sustainable resilient buildings. That was valuable data to define fully the characteristics.
Secondly, the identification of suitable applications was demonstrated by the framework and prototype. Both of them showed the design process and efficiency of sustainable resilient houses in Vietnam’s coastal areas. The framework was presented with a visual map of the design process and it was based on the policy and building standards in Vietnam. That concentrated on addressing the unresolved issues of residences in the storm-prone area such as flood-proofing techniques, house stability, and resource recovery after a storm. Three stages of the framework illustrated the identification, collection, evaluation, selection, and application of suitable characteristics for designing a sustainable resilient house. The outcomes of the first stage constituted a foundation for designing a resilient house with sustainability in the storm-prone area. The second stage aimed to narrow the selection of information in the previous stage by design specifications. The third stage provided the perspective design as well as fluid dynamic simulation. As the result of the prototype, the use of main features for designing sustainable resilient houses was demonstrated through the design process and the application of fluid dynamic simulation to suitable characteristics.

7. Output and Impacts

The research process contributed to the knowledge and understanding of sustainable resilient houses on the coastal areas of Vietnam. The framework provided the process to understand and evaluate the local conditions, standards, designs, and challenges in the affected area. The simulation results of the prototype successfully tested the framework of sustainable resilient houses in tropical climates. This produces knowledge and practical design guidance about high performance of resilient houses in storm-prone areas satisfying local community’s needs. Such guidelines can be adopted in other regions with similar climates and cultural values to help improve the relationship between human interaction and engagement with the surrounding built environment, creating better places for occupants. Additionally, the output of this research helps establish the main features of a sustainable resilient house such as stability, ventilation, comfort, and energy efficiency with emphasis on passive design measures, harvesting both the solar energy and ventilation.

8. Conclusions

The relevant information about the location and status of Khanh Hoa were obtained using semi-structured interviews and surveys. It included climate conditions, urban planning, building designs, community needs, and people’s behaviour. Particularly, the viewpoints of professionals and householders were basic data for understanding the limited knowledge, techniques, and technologies in terms of sustainable resilience. The main needs of the community were to ensure building stability in storm situations to enable improved building performance in daily life. As the result, the advantages of the framework can satisfy the community demands by making energy-efficient buildings and effective wind mitigation. The proposed framework and a prototype can be used to conduct the design of sustainable resilient houses in Vietnam. It supports the decision-making process in terms of design. This produces knowledge and practical design guidance about developing resilient houses and ensuring sustainable features in storm-prone areas. Such guidelines can be adopted in other regions with similar climates and cultural values to help develop sustainable houses.
The prototype model identifies the main features for producing a resilient tropical dwelling in storm-prone regions that satisfy the needs of the local community. These features address forms, shapes, orientations, room spaces, materials, structures, wind mitigation, ventilation and energy efficiency.

Author Contributions

V.H.X.D. was responsible for the investigation, data collection, analysis, and preparation of the original draft of the paper. V.H.X.D. is the corresponding author of the manuscript. A.T. was responsible for preparing the structure of the paper providing advice and contributions on the research methodology and the design of inclusive research together with reviewing and editing. All authors have read and agreed to the published version of the manuscript.

Funding

This research received no external funding.

Informed Consent Statement

Not applicable.

Data Availability Statement

Not applicable.

Conflicts of Interest

The authors declare no conflict of interest.

References

  1. Windle, M.; Quraishi, S.; Goentzel, J. Disaster Housing Construction Challenges in America. In Exploring the Role of Factory-Built Housing; MIT Center for Transportation and Logistics: Cambridge, MA, USA, 2019; Available online: https://dspace.mit.edu/handle/1721.1/122651 (accessed on 25 April 2022).
  2. Anthes, R.; Corell, R.W.; Holland, G.; Hurrell, J.W.; MacCracken, M.C.; Trenberth, K.E. Hurricanes and Global Warming—Potential Linkages and Consequences; American Meteorological Society: Boston, MA, USA, 2006. [Google Scholar] [CrossRef]
  3. Mousavi, M.E.; Irish, J.L.; Frey, A.E.; Olivera, F.; Edge, B.L. Global warming and hurricanes: The potential impact of hurricane intensification and sea level rise on coastal flooding. Clim. Chang. 2011, 104, 575–597. [Google Scholar] [CrossRef]
  4. Mimura, N. Sea-level rise caused by climate change and its implications for society. Proc. Jpn. Acad. Ser. B Phys. Biol. Sci. 2013, 89, 281–301. Available online: https://www.researchgate.net/publication/251877745 (accessed on 23 April 2022). [CrossRef] [PubMed] [Green Version]
  5. Union of Concerned Scientists. Hurricanes and Climate Change. Available online: https://www.ucsusa.org/resources/hurricanes-and-climate-change (accessed on 10 June 2020).
  6. Berardelli, J. How Climate Change Is Making Hurricanes More Dangerous. Stronger Wind Speed, More Rain, and Worsened Storm Surge Add up to More Potential Destruction. Clim. Explain. Available online: https://www.yaleclimateconnections.org/2019/07/how-climate-change-is-making-hurricanes-more-dangerous/ (accessed on 15 June 2020).
  7. Jeffrey, A.E.; Olson, E.K.; Nelson, P.E. Evaluating Building Enclosures after Hurricanes; Simpon Gumpertz and Heger (SGH): Waltham, MA, USA, 2017. [Google Scholar]
  8. Lotay, Y. Wind Induced Damage to Roofs and Mitigations: A Comparative Study on Roofs in Bhutan and Japan; Asian Disaster Reduction Center: Kobe City, Japan, 2015; Available online: https://www.adrc.asia/aboutus/vrdata/finalreport/2014B_BTN_fr.pdf (accessed on 23 April 2022).
  9. FEMA P-85. Protecting Manufactured Homes from Floods and Other Hazards. In A Multi-Hazard Foundation and Installation Guide, 2nd ed.; US Department of Homeland Security: Washington, DC, USA, 2009. Available online: https://www.fema.gov/sites/default/files/2020-08/fema_p85.pdf (accessed on 23 April 2022).
  10. Mangor, K.; Dronen, N.K.; Kærgaard, K.H.; Kristensen, S.E. Shoreline Management Guidelines; DHI: Greenwood Village, CO, USA, 2017. [Google Scholar]
  11. Masselink, G.; Russell, P.; Rennie, A.; Brooks, S.; Spencer, T. Impacts of climate change on coastal geomorphology and coastal erosion relevant to the coastal and marine environment around the UK. MCCIP Sci. Rev. 2020, 2020, 158–189. [Google Scholar]
  12. Cairns Regional Council. Sustainable Tropical Building Design. In Guidelines for Commercial Buildings; Cairns Regional Council (CRC): Cairns, Australia, 2011. Available online: https://www.cairns.qld.gov.au/__data/assets/pdf_file/0003/45642/BuildingDesign.pdf (accessed on 23 April 2022).
  13. Stagno, B. Design Guidelines for Contemporary Tropical Architecture. Arch. Daily. Available online: https://www.archdaily.com/928807/design-guidelines-for-contemporary-tropical-architecture (accessed on 23 May 2020).
  14. Shafii, F. Achieving Sustainable Construction in the Developing Countries of Southeast Asia. In Proceedings of the 6th Asia-Pacific Structural Engineering and Construction Conference (APSEC 2006), Kuala Lumpur, Malaysia, 5–6 September 2006; Available online: https://core.ac.uk/download/pdf/11777295.pdf (accessed on 23 April 2022).
  15. Taher, R. General Recommendations for Improved Building Practices in Earthquake and Hurricane Prone Areas. In Architecture for Humanity; College of Architecture and Design, University Heights: Newark, NJ, USA, 2021; Available online: https://humanitarianlibrary.org/sites/default/files/2014/02/ImprovedBuildingPracticesforHurricaneandEarthquakeProneAreas.pdf (accessed on 23 April 2022).
  16. FEMA 543. Risk Management Series. Design Guide for Improving Critical Facility Safety from Flooding and High Winds. FEMA US Department of Homeland Security. 2007. Available online: https://www.fema.gov/sites/default/files/2020-08/fema543_design_guide_complete.pdf (accessed on 23 April 2022).
  17. Agarwal, A. Cyclone Resistant Building Architecture. Disaster Risk Management Programme. 2007. Available online: https://nidm.gov.in/PDF/safety/flood/link2.pdf (accessed on 23 April 2022).
  18. Jin, Y.; Yang, Q.; Li, Q. Integrated Risk Management of Typhoon Disaster to Light Steel Building. In Proceedings of the 2008 International Conference on Risk Management and Engineering Management, Beijing, China, 4–6 November 2008; pp. 422–427. Available online: https://ieeexplore.ieee.org/document/4673266 (accessed on 24 April 2022).
  19. Mooneghi, M.A.; Kargarmoakhar, R. Aerodynamic Mitigation and Shape Optimization of Buildings: Review. J. Build. Eng. 2016, 6, 225–235. [Google Scholar] [CrossRef]
  20. Cui, B. Wind Effects on Monosloped and Sawtooth Roofs. Ph.D. Thesis, Clemson University, Clemson, SC, USA, 2007. Available online: https://tigerprints.clemson.edu/cgi/ (accessed on 24 April 2022).
  21. Haq, B. Battling the Storm. In Study on Cyclone Resistant Housing, 1st ed.; German Red Cross: Bamberg, Germany, 1999; Available online: https://sheltercluster.s3.eu-central-1.amazonaws.com/public/docs/pdf (accessed on 24 April 2022).
  22. Singh, J.; Roy, A.K. Effects of roof slope and wind direction on wind pressure distribution on the roof of a square plan pyramidal low-rise building using CFD simulation. Int. J. Adv. Struct. Eng. 2019, 11, 231–254. [Google Scholar] [CrossRef] [Green Version]
  23. Flood Resistant Design and Construction; ASCE 24-05; American Society of Civil Engineers: Reston, VA, USA, 2006.
  24. FEMA. Foundation Requirements and Recommendations for Elevated Homes. Hurricane Sandy Recovery Fact Sheet No.2. FEMA-DRs-4085-NY and 4086-NJ. May 2013. Available online: https://www.fema.gov/sites/default/files/documents/pdf (accessed on 24 April 2022).
  25. Maxwell-Cook, J.C. Structural Waterproofing; ButterWorths: London, UK, 1967. [Google Scholar]
  26. Smith, T. Wind Safety of the Building Envelope. Available online: https://www.wbdg.org/resources/wind-safety-building-envelope (accessed on 15 November 2019).
  27. FEMA 488 Hurricane Charley in Florida. Observations, Recommendations, and Technical Guidance. Mitigation Assessment Team Report. 2005. Available online: https://www.fema.gov/sites/default/files/2020-08/pdf (accessed on 24 April 2022).
  28. Yuksek, I.; Karadag, I. Use of Renewable Energy in Buildings. Renew. Energy—Technol. Appl. 2021. [Google Scholar] [CrossRef]
  29. Almasri, R.A.; Almarshoud, A.F.; Omar, H.M.; Esmaeil, K.K.; Alshitawi, M. Exergy and Economic Analysis of Energy Consumption in the Residential Sector of the Qassim Region in the Kingdom of Saudi Arabia. Sustainability 2020, 7, 2606. [Google Scholar] [CrossRef] [Green Version]
  30. Ly, P.; Birkeland, J.; Demirbilek, N. Applying Environmentally Responsive Characteristics of Vernacular Architecture to Sustainable Housing in Vietnam. Sustainable Architecture and Urban Development. pp. 287–306. 2010. Available online: https://www.irbnet.de/daten/iconda/CIB_DC22717.pdf (accessed on 25 April 2022).
  31. Tran, P.; Tran, T.H.; Tran, A.T. Sheltering from a Gathering Storm: Typhoon Resilience in Vietnam; Institute for Social and Environmental Transition-International: Boulder, CO, USA, 2014. [Google Scholar]
  32. Truong, N.H.L. Lessons from Climatic Response in Vietnamese Vernacular House. J. Civ. Eng. Environ. Technol. 2014, 1, 41–46. [Google Scholar]
  33. Adger, W.N. Social Vulnerability to Climate Change and Extremes in Coastal Vietnam. World Dev. 1999, 27, 249–269. [Google Scholar] [CrossRef]
  34. Macks, K.J. Typhoon Resistant School Buildings for Viet Nam. In Department of Educational Buildings; Ministry of Education. Educational Facilities Development Service; UNESCO: Paris, France, 1987. [Google Scholar]
  35. Nguyen, H.N. Flooding in Mekong River Delta, Viet Nam. In Human Development Report 2007/2008; Fighting Climate Change: Human Solidarity in Divided World; Human Development Report Office OCCASIONAL PAPER: New York, NY, USA, 2007. [Google Scholar]
  36. Nguyen, A.T.; Tran, Q.B.; Tran, D.Q.; Reiter, S. An investigation on climate responsive design strategies of vernacular housing in Vietnam. Build. Environ. 2011, 46, 2088–2106. [Google Scholar] [CrossRef] [Green Version]
  37. Oanh, L.N.; Nguyen, T.T.T.; Wilderspin, I.; Coulier, M. A preliminary analysis of flood and storm disaster data in Viet Nam. In Global Assessment Report on Disaster Risk Reduction; UN: Geneva, Switzerland, 2011. [Google Scholar]
  38. Phan, N.D.; Chapman, L.; Tight, M.; Phan, N.L.; Le, V.T. Increasing vulnerability to floods in new development areas: Evidence from Ho Chi Minh City. Int. J. Clim. Chang. Strateg. Manag. 2018, 10, 197–212. [Google Scholar]
  39. Le, D.V. 2017 Vietnam Post-Typhoon Damrey Rapid Damage and Needs Assessment. In Khanh Hoa Provincial People’s Committee; The World Bank: Washington, DC, USA, 2018. [Google Scholar]
  40. Jackson, D. How to do Scenario Analysis: Step-by-Step Guide. Available online: https://finmark.com/scenario-analysis/ (accessed on 15 January 2022).
Figure 1. Building shapes and fluid dynamics [19].
Figure 1. Building shapes and fluid dynamics [19].
Sustainability 14 07630 g001
Figure 2. Roof shapes and fluid dynamics. (a) The gable-ended roof gets high uplift. (b) The hip roof gets lowers uplift. (c) The pyramidalidal roof gets the lowest uplift [22].
Figure 2. Roof shapes and fluid dynamics. (a) The gable-ended roof gets high uplift. (b) The hip roof gets lowers uplift. (c) The pyramidalidal roof gets the lowest uplift [22].
Sustainability 14 07630 g002
Figure 3. Height and types of foundation in the flooding area [24].
Figure 3. Height and types of foundation in the flooding area [24].
Sustainability 14 07630 g003
Figure 4. Design reinforcement timber and reinforced concrete structure [27].
Figure 4. Design reinforcement timber and reinforced concrete structure [27].
Sustainability 14 07630 g004
Figure 5. Design of methodological approach.
Figure 5. Design of methodological approach.
Sustainability 14 07630 g005
Figure 6. Storm effects in Nha Trang (2017).
Figure 6. Storm effects in Nha Trang (2017).
Sustainability 14 07630 g006
Figure 7. Storm effects in Nha Trang (2018).
Figure 7. Storm effects in Nha Trang (2018).
Sustainability 14 07630 g007
Figure 8. The results of the questionnaire.
Figure 8. The results of the questionnaire.
Sustainability 14 07630 g008aSustainability 14 07630 g008b
Figure 9. Setting environmental conditions of the simulations.
Figure 9. Setting environmental conditions of the simulations.
Sustainability 14 07630 g009aSustainability 14 07630 g009b
Figure 10. Wind direction from Southeast to Northwest.
Figure 10. Wind direction from Southeast to Northwest.
Sustainability 14 07630 g010
Figure 11. Thermal simulation of modern house in December 2020.
Figure 11. Thermal simulation of modern house in December 2020.
Sustainability 14 07630 g011
Figure 12. Wind direction from Northeast to Southwest.
Figure 12. Wind direction from Northeast to Southwest.
Sustainability 14 07630 g012
Figure 13. Thermal simulation of vernacular house in December, 2020.
Figure 13. Thermal simulation of vernacular house in December, 2020.
Sustainability 14 07630 g013
Figure 14. Proposed conceptual framework.
Figure 14. Proposed conceptual framework.
Sustainability 14 07630 g014
Figure 15. Design of proposed prototype. (a) Ground floor plan. (b) First floor plan. (c) Perspective.
Figure 15. Design of proposed prototype. (a) Ground floor plan. (b) First floor plan. (c) Perspective.
Sustainability 14 07630 g015aSustainability 14 07630 g015b
Figure 16. Wind direction from Southwest to Northeast.
Figure 16. Wind direction from Southwest to Northeast.
Sustainability 14 07630 g016
Figure 17. Indoor thermal simulation of the proposed design.
Figure 17. Indoor thermal simulation of the proposed design.
Sustainability 14 07630 g017
Table 1. Summary of existing research in Vietnam [30,31,32,33,34,35,36,37,38].
Table 1. Summary of existing research in Vietnam [30,31,32,33,34,35,36,37,38].
TitleDesignSustainabilityTechnologyDisasterClimateGeographyCultureEconomicPolicySupport Reference
Applying Environmentally Responsive Characteristics of Vernacular Architecture to Sustainable Housing in VietnamYesYesNoYesYesNoYesNoNo[30]
Sheltering From a Gathering Storm: Typhoon Resilience in VietnamYesYesNoYesYesNoYesYesYes[31]
Lessons from Climatic Response in Vietnamese Vernacular HouseYesYesNoYesYesNoYesNoNo[32]
Social Vulnerability to Climate Change and Extremes in Coastal VietnamNoNoNoYesYesNoNoYesYes[33]
Typhoon Resistant School Buildings for Viet NamNoNoYesYesYesYesYesNoNo[34]
Flooding in Mekong River Delta, Viet NamNoYesNoNoNoYesYesYesYes[35]
An investigation on climate responsive design strategies of vernacular housing in VietnamNoYesNoNoYesYesYesNoNo[36]
A preliminary analysis of flood and storm disaster data in Viet NamNoNoNoYesNoYesYesNoNo[37]
Increasing vulnerability to floods in new development areas: evidence from Ho Chi Minh CityNoYesNoNoYesNoNoNoNo[38]
Table 2. Summary of monthly temperature and solar gain in modern house.
Table 2. Summary of monthly temperature and solar gain in modern house.
SepOctNovDecJanFeb
Average air temperature Living room27 °C28 °C29 °C30 °C31 °C30 °C
Bed room22 °C23 °C23 °C24 °C24 °C23 °C
Solar gain (kWh)179421462241248326512361
Table 3. Summary of monthly temperature and solar gain in vernacular house.
Table 3. Summary of monthly temperature and solar gain in vernacular house.
SepOctNovDecJanFeb
Average air temperature Living room30 °C32 °C33 °C34 °C34 °C32 °C
Bed room30 °C32 °C33 °C34 °C34 °C32 °C
Solar gain (kWh)145416671785187618621660
Table 4. Monthly temperature and average solar heat gain in prototype.
Table 4. Monthly temperature and average solar heat gain in prototype.
SepOctNovDecJanFeb
Average air temperature Living room21 °C24 °C26 °C27 °C27 °C26 °C
Bed room20 °C22 °C24 °C25 °C25 °C24 °C
Solar gain (kWh)146420012305245624011984
Table 5. The comparison between the proposed design and standards in Vietnam.
Table 5. The comparison between the proposed design and standards in Vietnam.
Specification of a Sustainable Resilient BuildingStandards of
Vietnam’s Buildings
Proposed DesignEffects
Building resilienceWindstorm mitigationEnsuring on 70 km/h
or 43.5 mph wind
yesMinimize wind loads
FloodproofingDepending on the based flood elevation of each placeyesMinimize flood damages
Human securitySafe areayesBuilding stability
Sustainable designEnergy efficiencyReduction of energy consumptionyesHigh solar gain and comfortable room temperature
Resource efficiencyReduction of waste materialsyesRecycled materials
Table 6. The comparison between the proposed design and two case studies.
Table 6. The comparison between the proposed design and two case studies.
SpecificationProposed DesignModern HouseVernacular House
ResilienceWind storm mitigationForm and roof designForm designNo
Flood-proofingUse of stiltsNoUse of stilts
Human securitySafe space with rigid structureSafe spaceNo
Sustainability Comfortable room temperatureComfortable room temperatureHigh room temperature
20–27 °C23–29 °C32 °C
High solar gain High solar gain High solar gain
Energy efficiency2300 kWh
per month
2200 kWh
per month
1700 kWh
per month
Resource efficiencyLocal and natural materialUse of local materialUse of natural material
Publisher’s Note: MDPI stays neutral with regard to jurisdictional claims in published maps and institutional affiliations.

Share and Cite

MDPI and ACS Style

Taki, A.; Doan, V.H.X. A New Framework for Sustainable Resilient Houses on the Coastal Areas of Khanh Hoa, Vietnam. Sustainability 2022, 14, 7630. https://doi.org/10.3390/su14137630

AMA Style

Taki A, Doan VHX. A New Framework for Sustainable Resilient Houses on the Coastal Areas of Khanh Hoa, Vietnam. Sustainability. 2022; 14(13):7630. https://doi.org/10.3390/su14137630

Chicago/Turabian Style

Taki, Ahmad, and Viet Ha Xuan Doan. 2022. "A New Framework for Sustainable Resilient Houses on the Coastal Areas of Khanh Hoa, Vietnam" Sustainability 14, no. 13: 7630. https://doi.org/10.3390/su14137630

APA Style

Taki, A., & Doan, V. H. X. (2022). A New Framework for Sustainable Resilient Houses on the Coastal Areas of Khanh Hoa, Vietnam. Sustainability, 14(13), 7630. https://doi.org/10.3390/su14137630

Note that from the first issue of 2016, this journal uses article numbers instead of page numbers. See further details here.

Article Metrics

Back to TopTop