Next Article in Journal
Analysing Students’ Reasons for Keeping Their Webcams on or off during Online Classes
Previous Article in Journal
Impact of COVID-19 Pandemic in Public Mental Health: An Extensive Narrative Review
 
 
Font Type:
Arial Georgia Verdana
Font Size:
Aa Aa Aa
Line Spacing:
Column Width:
Background:
Article

Performance Evaluation of Concrete Structures Using Crack Repair Methods

Advanced Composites Research Center, Korea Institute of Civil Engineering and Building Technology, 283, Goyang-daero, Ilsanseo-gu, Goyang-si 10223, Gyeonggi-do, Korea
*
Author to whom correspondence should be addressed.
Sustainability 2021, 13(6), 3217; https://doi.org/10.3390/su13063217
Submission received: 5 February 2021 / Revised: 25 February 2021 / Accepted: 13 March 2021 / Published: 15 March 2021
(This article belongs to the Section Sustainable Engineering and Science)

Abstract

Concrete structures deteriorate over time due to cracks induced by various physical, chemical, and environmental factors. This performance degradation not only reduces their service life but may lead to human casualties and other property damage as well. While concrete crack repair can help address this problem, the implementation of the optimal repair method is important according to the environmental conditions. In this study, epoxy, impregnating, and epoxy/impregnating methods were used to repair concrete cracks. Epoxy was used for crack injection, and a supernatant was used for surface protection. The epoxy/impregnating method was used to protect both cracked areas and surfaces. Activated cracks were induced using flexural strength tests, and the stiffness of the specimens according to the repair method was compared to examine the structural performance. In addition, after the flexural strength tests, the strength, carbonation, chloride, and freeze–thaw durability were evaluated for the concrete core specimens. The impregnating method yielded the best repair performance for strength, epoxy/impregnating method for carbonation, epoxy and epoxy/impregnating methods for chloride, and epoxy/impregnating method for freezing and thawing. The results of our study enable selection of the optimal repair method to be used in practical applications based on physical, chemical, and environmental factors.

1. Introduction

Concrete structures undergo deterioration as they are exposed to chemical and environmental factors over time. These factors include carbonation, hydration heat, drying shrinkage, freezing and thawing, chloride, and alkali-aggregate reactions. Concrete cracking, as well as concrete spalling, and steel reinforcement corrosion, which are caused by internal and external chemical and physical reactions, occur as concrete deteriorates [1,2,3]. The service life of such concrete structures also decreases abruptly due to the degraded durability performance accompanied by structural defects. To address these problems, concrete repairs are required. Overseas standards and guidelines related to concrete repair include ISO-16311 of the International Organization for Standardization (ISO), EN-1504 standard of the European Union, and ACI 562 of the American Concrete Institute [4,5,6]. In South Korea, there are detailed guidelines on safety inspection and precision safety diagnosis implemented by the Korean Authority of Land and Infrastructure Safety, but they have only brief descriptions on crack repair [7]. In general, concrete repair methods are classified as (1) crack surface treatment methods, wherein a coat of paint is applied only to cracked areas to improve waterproofness and durability when the crack width is 0.2 mm or less; (2) crack injection methods, wherein a resin-based or cementitious material with low viscosity is injected into cracks to improve waterproofness and durability mostly when the crack width exceeds 0.2 mm; and (3) crack filling methods, wherein concrete and mortar are cut along cracks in conjunction with the filling of the crack with a repair material when the crack width is ≥0.5 mm [7]. Repairs must be performed after the selection of suitable materials and the determination of the time considering the cause, range, and scale of cracking as well as environmental conditions, safety, and economic efficiency. At construction sites, however, repair methods are used in combination with an emphasis on safety. As this may increase maintenance costs, the implementation of the optimal repair method is important according to the environmental conditions [8]. In addition, South Korean research studies and guidelines related to repairs are still insufficient compared with those in other countries [8]. Nonetheless, considerable research efforts related to crack causes, materials, and repairs have been made in the past. Petrounias et al. [9] investigated how different alteration styles of serpentinites and andesites affect their mechanical properties, as well as how their performance as concrete aggregates is influenced. Issa et al. [10] used a single epoxy product and evaluated the performance of the material in artificial concrete cracks. Christodoulou et al. [11] evaluated the long-term performance of reinforced concrete structures following the use of surface-impregnating external silane coating. Kang et al. [12] evaluated the performance of crack repair materials based on the flexural specimens with inactive cracks through artificial notches. Bae et al. [13] evaluated the performance of concrete impregnated with inorganic surface penetration agents. Kwon et al. [14] performed surface impregnation repair on crack-free specimens and evaluated their durability. Most of these studies were conducted using specimens with no or inactive cracks and either developed new repair materials or evaluated the performance of a single material [9,10,11,12,13,14]. In this study, however, specimens to be applied to actual structures were fabricated, and then activated cracks were described for various loads. The induced cracks were then repaired, and the durability of the specimens evaluated. Durability degradation occurs in concrete infrastructure, including bridges, roads, tunnels, ports, and nuclear power plants, due to various deterioration phenomena [15,16,17,18,19,20,21]. To counter the effects of aging, the service life of such infrastructure must be extended via repairs and reinforcements [22,23,24,25,26,27,28,29]. Accordingly, the accuracy and effectiveness of repair and reinforcement technologies must be verified, and the construction of various experimental databases is first required to suggest improvement measures in terms of policies, systems, and economy in conjunction with technical factors.
Therefore, in this study, various tests were performed to examine the structural and durability performances according to the concrete crack repair method used. After the generation of artificial cracks in the specimens, areas with activated cracks were repaired using epoxy, impregnating, and epoxy/impregnating crack repair methods, and the structural performance of the specimens was evaluated. Subsequently, concrete core specimens were collected from the cracked areas to examine their durability performance based on the compressive strength of concrete, carbonation, accelerated carbonation, chloride, and freezing and thawing tests. Building new infrastructure requires significant resources. The results of this study contribute toward sustainability by shedding light on the optimal method to be used for extending the service life of existing concrete structures without compromising on safety.

2. Materials and Methods

2.1. Structural Test Details and Methods

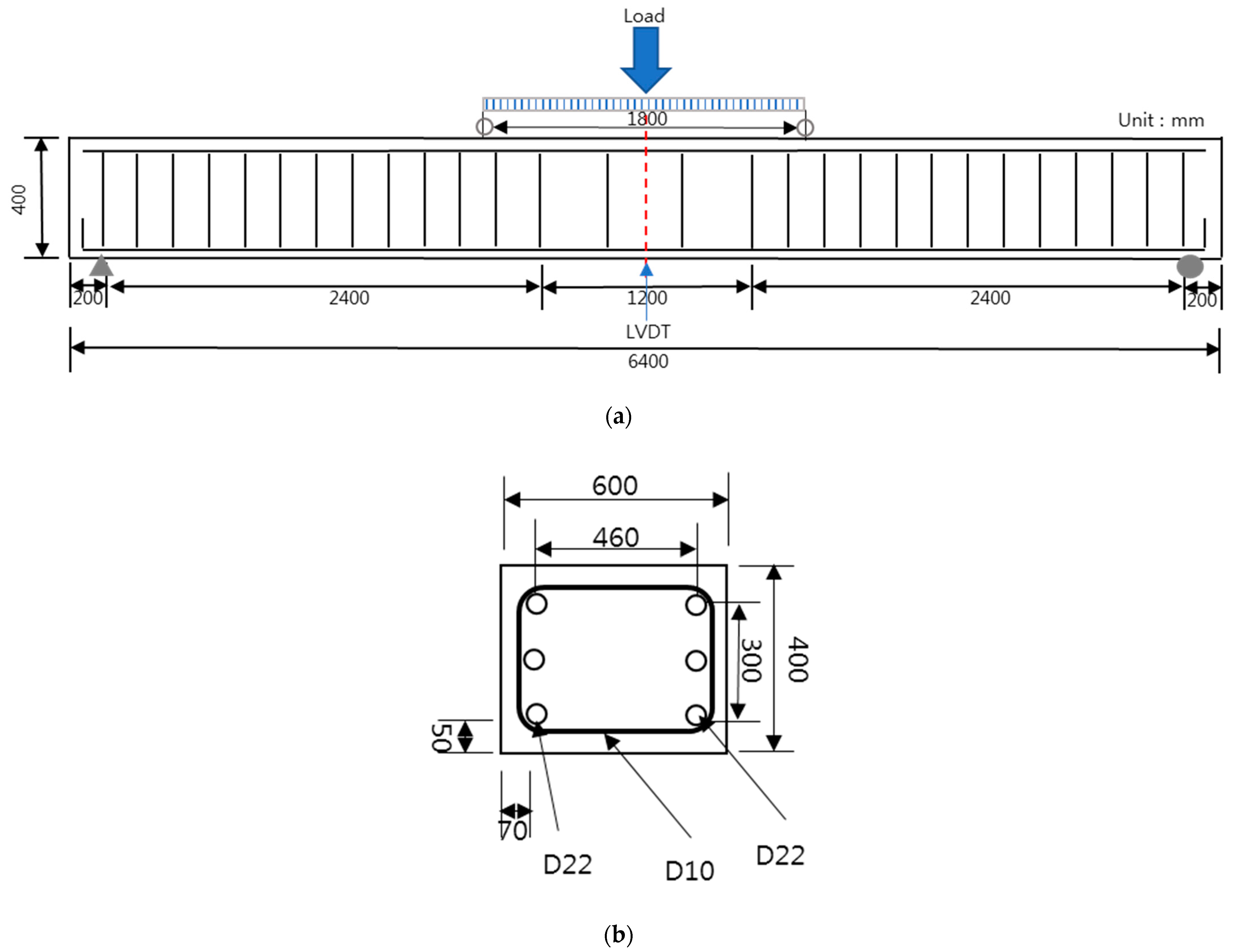
In this study, artificial cracks were generated through an actual model beam to describe activated cracks. Figure 1 shows the details of the specimen and the experimental method. The specimen had a total length of 6400 mm and a height of 400 mm. D22 rebars were used in three layers, and D10 was used as the tie bar. Supports were installed 200 mm from both ends. Loads were applied at points 900 mm from the top center of the specimen on both sides. To measure the displacement caused by the loads, a linear variable differential transformer (LVDT) was installed at the bottom center part of the specimen. The test was conducted using a 200 ton universal testing machine (UTM), and loading was controlled at a rate of 0.05 mm/s. TDS-503 was used for data measurements. In addition, the flexural strength tests were conducted in accordance with KS F 2408 (standard tests for the flexural strength of concrete).

2.2. Crack Repair

Figure 2 shows concrete crack repair methods. The epoxy, impregnating, and epoxy/impregnating repair methods were used. Epoxy repairs fill cracks; impregnating repairs apply a coating to the concrete and crack surfaces; and epoxy/impregnating repairs fill the crack and protect the surface. The epoxy used in this study was a low-viscosity type (dry) mainly used for repairing cracks in concrete social infrastructure, such as bridges, tunnels, and dams (epoxy resin:polyamide amine = 2:1). In addition, the epoxy material had bond, tensile, and compressive strengths of 7.1, 61, and 60 MPa, respectively. It was injected using a syringe to fill the cracks. The impregnating material penetrates more than 3–6 mm when applied depending on the concrete strength. It also improves the durability and waterproofness of the concrete structure. Regarding the construction method, concrete cracks and foreign substances on the surface must be cleaned before impregnating it, and the structure must be sufficiently dried to improve the impregnating penetration effect. The surface was evenly impregnated using a roller and a sprayer.

2.3. Reloading Flexural Strength Test

The flexural strength test was performed as shown in Table 1. The test was conducted in two parts: (a) first loading, wherein concrete cracks were repaired and cured, and (b) second loading (approximately 80% of the first loads). In the first loading, the 20, 30, and 40 MPa specimens were subjected to maximum loads of 40, 60, and 80 kN, followed by the removal of the loads. Reloading was then performed with loads of up to 20, 40, and 60 kN. Upon the completion of the first loading, all the specimens were subjected to epoxy, impregnating, and epoxy/impregnating crack repairs and then cured for a certain period. Finally, in the second loading, loads of up to approximately 80% of the first loads, i.e., up to 30, 50, and 70 kN, were applied, and the load-displacement curves were plotted and analyzed.

3. Results

3.1. Flexural Performance of Activated Crack Repair

Figure 3 shows the flexural performance results of the 20 MPa concrete specimens according to crack repair method in the form of load-displacement curves. After the application of each repair method and the second loading, the maximum deflections of the specimens repaired using epoxy, impregnating, and epoxy/impregnating methods were found to be 13.86, 13.21, and 15.22 mm, respectively. When the results of the first loading were compared with those of the second loading after the repair, the stiffness increased by approximately 30% for epoxy repair, 2% for impregnating repair, and 46% for epoxy/impregnating repair. Epoxy and epoxy/impregnating repair exhibited a clear stiffness increase, but impregnating repair showed an insignificant increase. Regarding the crack patterns, cracks occurred from the existing cracks for impregnating repair, but cracks occurred at new locations for the repair methods that included epoxy.

3.2. Flexural Performance of 30 MPa Activated Crack Repair

Figure 4 shows the flexural performance results of the 30 MPa concrete specimens according to crack repair method in the form of load-displacement curves. After the application of each repair method and the second loading, the maximum deflections of the specimens repaired using epoxy, impregnating, and epoxy/impregnating methods were found to be 22.82, 21.29, and 14.84 mm, respectively. For the specimen repaired using epoxy/impregnating, however, significant cracking was observed during the first loading. Thus, the test was conducted under the same load conditions as the 20 MPa specimen to prevent the fracture of the specimen. When the results of the first loading were compared with those of the second loading after the repairs, epoxy repair increased the stiffness by approximately 20%. Impregnating repair decreased the stiffness by 6%, and epoxy/impregnating repair exhibited the highest stiffness increase of 41%. While epoxy and epoxy/impregnating repair methods exhibited a clear increase in stiffness, the increase was negligible for the impregnating repair method. Regarding the crack patterns, cracks occurred from the existing cracks in the case of impregnating repairs, but cracks occurred at new locations for the repair methods that included epoxy.

3.3. Flexural Performance of Activated Crack Repair

Figure 5 shows the flexural performance results of the 40 MPa concrete specimens according to the crack repair method in the form of load-displacement curves. After the application of each repair method and the second loading, the maximum deflections of the specimens repaired using epoxy, impregnating, and epoxy/impregnating methods were found to be 30.83, 27.06, and 28.53 mm, respectively. When the results of the first loading were compared with those of the second loading after repairs, the stiffness decreased by approximately 15% for epoxy repair, 12% for impregnating repair, and 13% for epoxy/impregnating repair. Epoxy repair maintained similar initial stiffness, unlike low and medium strengths, but the stiffness decreased as the load increased. Impregnating repair, however, exhibited low stiffness upon load application. Regarding crack patterns, cracks occurred from the existing cracks in the case of impregnating repair, but cracks occurred at new locations in the cases of repair methods that included epoxy. A comparison among the 20, 30, and 40 MPa specimens revealed that the repair methods related to epoxy repair significantly influenced the stiffness of the concrete structures as the strength increased.

4. Durability Evaluation Methods for Concrete Core Specimens

4.1. Concrete Core Specimens

Table 2 presents the types and numbers of concrete core specimens. For the concrete core specimens, Ø100 × 400 cylindrical specimens with repaired cracks were collected upon the completion of the second loading flexural strength test. Three specimens were collected for each compressive strength, and another 48 specimens were collected for each strength repaired using epoxy, impregnating, and epoxy/impregnating methods. Carbonation, chloride, and freezing–thawing tests were conducted after cutting the specimens according to the durability standards for carbonation, chloride, freezing, and thawing.

4.2. Compressive Strength

The concrete compressive strength test was conducted in accordance with the standard test method for the compressive strength of concrete, KS F 2405. In the test, a 200 ton UTM was used [30]. The specimen size was Ø100 × 200 mm.

4.3. Standard and Accelerated Carbonation Tests

The accelerated concrete carbonation test was conducted in accordance with the standard test method for accelerated carbonation of concrete, KS F 2584, and the test for normal carbonation and accelerated carbonation-depth measurement was conducted in accordance with the standard test method for measuring the carbonation depth of concrete, KS F 2596 [31,32]. A carbonation chamber was used, and the acceleration conditions were set to a temperature of 20 ± 2 °C, the relative humidity of 65 ± 5%, and CO2 concentration of 5 ± 0.2%. For the carbonation-depth measurement method, the specimens were split when they reached a predetermined accelerated curing period, and their performances were analyzed using the phenolphthalein solution specified in KS M 8238. In the case of the phenolphthalein solution, an indicator was used, wherein 100 mL was prepared by dissolving 1 g of phenolphthalein powder in 95 mL of 95% ethanol, followed by the addition of water. When the specimens were very dry, more water was added by adjusting the amount of ethanol to 70 mL. The solution was applied to the measured surfaces with a sprayer, and the discolored sections were measured. The average value was measured for the measured surfaces at 10 points on two sides of a specimen. In addition, the carbonation velocity rate can be derived based on the carbonation depth using Equation (1).
A = c t t
where C t is the carbonation depth (mm), A is the carbonation velocity rate (mm/y), and t is the time (year).

4.4. Chloride

The chloride test was conducted in accordance with NT BUILD 492 (concrete, mortar, and cement-based repair materials; chloride migration coefficient from non-steady-state migration experiments) to derive the chloride depth and chloride diffusion coefficient [33]. The test was conducted as follows: The Ø100 × 200 mm cylindrical specimens were cut to have a thickness of 50 ± 2 mm. The exterior of the cut specimen was coated with epoxy resin. After placing the specimen in a vacuum desiccator, the absolute pressure was reduced to 10–50 mbar (1–5 kPa), and the vacuum condition was maintained for 3 h. A Ca(OH)2 solution was then added to the specimen to be immersed, and the vacuum condition was maintained for 18 ± 2 h to saturate the specimen. The anode part of the saturated specimen was then filled with a 0.3 N NaOH solution (approximately 12 g NaOH in 1 L water), and a 10% NaCl solution (100 g NaCl in 900 g water, ~2 N) was added to the cathode, as shown in Figure 6. After the application of an initial voltage of 30 V, the voltage to be applied was determined based on the measurement of the initial current. Finally, measurements were performed for 6–96 h depending on the amount of current.
The chloride diffusion coefficient was derived based on Equations (2)–(4).
D n s s m = R T z F E × X d α X d t ,
E = U 2 L
α = 2 R T z F E ° e r f 1 ( 1 2 c d c 0 )
where Dnssm is the voltage-accelerated chloride diffusion coefficient obtained in an unsteady state (m2/s), R is the molar gas constant (8.314 J/K·mol), T is the absolute temperature (K), L is the specimen thickness (m), z is the ionic valence (z = 1 for chlorides), F is the Faraday constant (9.648 × 104 J/V·mol), U is the potential difference (V), Xd is the average penetration depth by calorimetry (m), t is the application time of the potential difference (s), C0 is the chloride ion concentration of the cathode cell (≒2 N), Cd is the reaction concentration by colorimetry (≒0.07 N for OPC), and erf−1 is the inverse of the error function.

4.5. Freezing and Thawing

The freeze–thaw tests were conducted in accordance with the standard test method for resistance of concrete to rapid freezing and thawing, KS F 2456 [34]. The specimen size was Ø100 × 200 mm, and a freeze-and-thaw chamber was used. One cycle was based on the freezing process in which the temperature of the center of the specimen dropped from 4 to −18 °C and the thawing process in which the temperature increased from −18 to 4 °C. In addition, one freeze–thaw cycle was set to be more than two hours and less than four hours. Based on this test, the relative dynamic elastic modulus could be measured at 0, 100, 200, and 300 cycles. The reduction rate of the relative dynamic elastic modulus after N cycles can be calculated based on Equation (5). In addition, the durability index for the evaluation of the performance of concrete can be derived using Equation (6).
P c = ( n c 2 n 0 2 ) × 100
where P c is the relative dynamic elastic modulus (%) after C cycles of freezing and thawing, n 0 is the primary resonance frequency (Hz) of deformation vibration at the 0th cycle, and n c is the primary resonance frequency (Hz) of deformation vibration after C cycles.
D F = P N / M
where D F is the durability index of the specimen, P is the relative dynamic elastic modulus (%) at N cycles, N is the number of cycles at which the relative dynamic elastic modulus becomes 60%, and M is the number of cycles when exposed to freezing and thawing.

5. Experimental Durability Results

5.1. Compressive Strength Results

Table 3 and Figure 7 present the concrete core compressive strength results. The compressive strengths of the control specimens with design strengths of 20, 30, and 40 MPa were found to be 22.3, 30.0, and 44.1 MPa, respectively. These outcomes satisfied the design strengths. The compressive strengths after epoxy and impregnating repair exceeded the design strengths of 20 and 30 MPa. The epoxy/impregnating repair method also recovered performance as much as the control specimens. In particular, the impregnating repair method exhibited approximately 10–20% higher performance than the control specimens. In the case of the design strength of 40 MPa, none of the crack repair methods could recover performance as much as the control specimen, but approximately 90–95% recovery could be achieved. Based on these results, it was found that the impregnating repair method was the most effective, and the epoxy/impregnating repair method tended to exhibit low performance for all the design strengths. Essentially, impregnating demonstrates the effect of forming dense capillary pores through its reaction with calcium hydroxide in concrete. It appears that the epoxy/impregnating repair method, wherein impregnation was applied after epoxy injection, could not exhibit a sufficient absorption effect of the impregnation, owing to the epoxy.
As shown, if an additional continuous cyclic load is applied to a crack in the concrete structure, the structural performance may rapidly deteriorate. It can mainly appear in infrastructure such as bridges, roads, railroads, and dams, where their failure can cause damage to humans. Therefore, it is judged that concrete strength performance can be improved based on impregnating repair.

5.2. Standard and Accelerated Carbonation Test Results

Table 4 and Figure 8, Figure 9 and Figure 10 present the standard concrete and accelerated carbonation-depth results. For the design strengths of 20, 30, and 40 MPa, the specimens without cracks were compared with those repaired using the epoxy, impregnating, and epoxy/impregnating repair methods owing to cracks. In the case of the specimens without cracks, the carbonation depths for the design strengths of 20, 30, and 40 MPa were found to be approximately 14.5, 7.3, and 4.1 mm, respectively. This is because CO2 penetration from the outside is difficult for high-strength concrete owing to the high internal watertightness. In addition, the carbonation depths at 1 and 4 weeks of age according to the crack repair method are as follows: For a design strength of 20 MPa at 4 weeks of age, the carbonation depths of the epoxy and impregnating repair methods increased by approximately 1.5 times, but the epoxy/impregnating repair method exhibited a carbonation depth similar to that at 1 week of age. Similarly, for a design strength of 30 MPa at 4 weeks of age, the carbonation depths of the epoxy and impregnating repair methods increased by approximately 1.3 times, but the epoxy/impregnating repair method exhibited a carbonation depth similar to that at 1 week of age. For a design strength of 40 MPa at 4 weeks of age, however, the epoxy and epoxy/impregnating repair methods exhibited carbonation depths similar to those at 1 week of age, but the carbonation depth of the epoxy/impregnating repair method almost doubled compared with the results of 20 and 30 MPa. In addition, as the design strength increased, the carbonation depths at 4 weeks of age exhibited a tendency to decrease owing to the repair methods. Therefore, in the case of the epoxy/impregnating repair method at 40 MPa, it is expected that more accurate results can be derived by obtaining more data. The carbonation velocity rate exhibited a tendency similar to that of the carbonation depth because it was derived based on the latter itself. Then, epoxy filling and epoxy/impregnating repair methods help resist and reduce carbon dioxide penetration from the environment.
When carbon dioxide penetrates the structure along the crack, it adheres to the reinforcing bar, destroys the surface passive film of the reinforcing bar, and causes rust. When the reinforcing bar is corroded, it expands, resulting in additional cracks and detachment in the concrete internal structure. If this repeatedly occurs, the performance of the structure degrades rapidly, and durability performance can be improved by epoxy/impregnating repair. In addition, it can be used for various roads and bridges.

5.3. Chloride Test Results

Table 5 and Figure 11, Figure 12 and Figure 13 present the concrete chloride depths and diffusion coefficients, respectively. The chloride depths of the control specimens with design strengths of 20, 30, and 40 MPa were found to be 9.4, 5.1, and 4.4 mm, respectively. For a design strength of 20 MPa, the chloride depths of the epoxy, impregnating, and epoxy/impregnating repair methods were 14.2, 37.5, and 14.4 mm, respectively. These were approximately 1.5, 4, and 1.5 times higher than that of the control specimen, respectively. For a design strength of 30 MPa, the chloride depths of the epoxy, impregnating, and epoxy/impregnating repair methods were 6.8, 25.9, and 7.9 mm, which were approximately 1.2, 5, and 1.5 times higher than that of the control specimen, respectively. For a design strength of 40 MPa, the chloride depths of the epoxy, impregnating, and epoxy/impregnating repair methods were 2.5, 5.7, and 2.7 mm, respectively. The chloride depths of the epoxy and impregnating repair methods were approximately 0.5 times lower than that of the control specimen, but the chloride depth of the epoxy/impregnating repair method was 1.2 times higher. As the design strength increased, the repair effect was found to be larger for the epoxy, impregnating, and epoxy/impregnating repair methods. The epoxy repair method exhibited the highest performance improvement, followed by the epoxy/impregnating and impregnating repair methods. Impregnating repair exhibited a smaller repair effect than epoxy repair. It appears that the chloride depth became higher for the impregnating repair method because cracks were generated from the existing cracks during the second loading after the repairs in the flexural strength test. By contrast, cracks were mainly generated at new locations for the epoxy and epoxy/impregnating repair methods. The chloride diffusion coefficient exhibited the same phenomenon as that exhibited by the chloride depth because it was derived based on the latter itself. Especially, by filling the cracks with epoxy, crack penetration from chloride damage reduced significantly as the epoxy behaves as an integral part of the concrete structure.
Chloride exhibits a similar form to carbonation infiltration, causing corrosion of reinforcing bars due to chloride infiltration and rapid deterioration of the structure. As a method to prevent such performance degradation, the durability performance may be improved by epoxy and epoxy/impregnating repair. In addition, it is regarded as considerably advantageous for coastal areas.

5.4. Test Results of Freezing–Thawing Test

Table 6 and Figure 14 present the relative dynamic elastic moduli at 0, 100, 200, and 300 cycles based on the freezing–thawing test. Among the design strengths of 20, 30, and 40 MPa, 20 MPa led to damage because the measurement was not possible at 300 cycles. For 30 and 40 MPa, the relative dynamic elastic moduli at 300 cycles were measured to be 26 and 32.5%, respectively. In the case of the design strength of 20 MPa, the epoxy/impregnating repair method exhibited the highest relative dynamic elastic modulus of 41.4% for 0–300 cycles. For a design strength of 30 MPa, the epoxy, impregnating, and epoxy/impregnating repair methods exhibited approximately 1.8, 1.5, and 1.7 times higher relative dynamic elastic moduli than the control specimen after 300 cycles. For a design strength of 40 MPa, the epoxy, impregnating, and epoxy/impregnating repair methods exhibited approximately 1.5, 0.8, and 2.1 times higher relative dynamic elastic moduli than the control specimen after 300 cycles. As described previously, the impregnating repair method exhibited rapid performance degradation over 200 cycles owing to the more obvious crack occurrence. The epoxy/impregnating repair method was considered to have the most excellent crack repair effect because it exhibited higher relative dynamic elastic moduli than the epoxy and impregnating repair methods at 100, 200, and 300 cycles.
Table 7 and Figure 15 present the concrete compressive strengths after the 300th cycle of the freezing–thawing tests. The compressive strengths of the control specimens with design strengths of 20, 30, and 40 MPa were found to be 16.5, 23.9, and 35.3 MPa, respectively, which were approximately 23% lower than the design strengths owing to the durability degradation. In the case of a design strength of 20 MPa, the impregnating and epoxy/impregnating repair methods recovered the design strength of 20 MPa. For a design strength of 30 MPa, none of the repair methods could recover the design strength, but they exhibited strengths higher than that of the control specimen. For a high strength of 40 MPa, however, none of the repair methods could recover the design strength, and they exhibited strengths lower than that of the control specimen. In addition, it was found that the repair methods that included impregnating exhibited higher compressive strength after the freeze–thaw cycles.
Freeze-thawing causes moisture to penetrate through cracks in concrete structures, and by repeated freezing and thawing, the structure may expand, resulting in dangerous situations such as concrete detachment. Especially in cold areas, it can occur in places that may be exposed to water. In the case of freeze-thawing, it is believed that durability performance can be improved based on epoxy/impregnating repair.

6. Conclusions

In this study, activated cracks were described through flexural strength tests on concrete specimens, and their structural performance was evaluated using the epoxy, impregnating, and epoxy/impregnating repair methods. Subsequently, carbonation, chloride, and freezing–thawing tests were conducted on the concrete core specimens. The results of this study can be summarized as follows:
(1)
For concrete design strengths of 20 and 30 MPa, the compressive strengths of the epoxy and impregnating repair methods exceeded the design strengths, and the epoxy/impregnating repair method recovered performance as much as the control specimens. In the case of the design strength of 40 MPa, none of the repair methods could recover performance as much as the control specimen. Approximately 90% recovery was achieved. In particular, impregnating repair increased the watertightness of the specimen and improved performance by approximately 10–20%.
(2)
In the case of carbonation resistance performance, for design strengths of 20 and 30 MPa, the carbonation depths of the epoxy and impregnating repair methods increased by approximately 1.3 times, but the epoxy/impregnating repair method exhibited a carbonation depth similar to that at one week of age. For a design strength of 40 MPa, however, the epoxy and impregnating repair methods exhibited carbonation depths similar to those at 1 week of age, but the carbonation depth of the epoxy/impregnating repair method increased considerably.
(3)
In the case of chloride resistance performance, for design strengths of 20, 30, and 40 MPa, the chloride depths of both the epoxy and epoxy/impregnating repair methods were approximately 1.5 times higher than those of the control specimen, but the impregnating repair method exhibited 4–5 times higher chloride depths. This appears to be attributed to the additional cracks generated from the existing cracks for the impregnating repair method during the flexural strength test after repair.
(4)
The freezing–thawing test results revealed that the relative dynamic elastic modulus exceeded 70% for the epoxy and impregnating repair methods and 80% for the epoxy/impregnating repair method at 100 cycles for the design strengths of 20, 30, and 40 MPa. After 200 cycles, however, a more obvious occurrence of cracks was observed. In addition, rapid performance degradation occurred, and the impregnating repair method exhibited faster performance degradation than the epoxy repair method at 300 cycles.
(5)
Physical and environmental conditions must be considered when repair methods are implemented for concrete structures with activated cracks. The impregnating repair method yielded the highest strength performance. The epoxy/impregnating repair method was the most suitable for carbonation, the epoxy and epoxy/impregnating repair methods for chloride, and the epoxy/impregnating repair method for freeze–thaw durability. In addition, the most suitable repair method varied depending on the design strength.
(6)
As mentioned previously, various conditions must be considered when repair methods are applied to actual structures. To obtain more accurate repair method data, further research on more repair methods, crack sizes, and repair materials is required in the future.

Author Contributions

Conceptualization, T.-K.K. and J.-S.P.; Data Curation, T.-K.K. and J.-S.P.; Formal analysis, T.-K.K. and J.-S.P.; Investigation, T.-K.K. and J.-S.P.; Methodology, T.-K.K. and J.-S.P.; Project administration, J.-S.P.; Resources, T.-K.K.; Software, T.-K.K.; Supervision, J.-S.P.; Validation, T.-K.K. and J.-S.P.; Visualization, T.-K.K. and J.-S.P.; Writing—original draft, T.-K.K.; Writing—review and editing, T.-K.K. and J.-S.P. All authors have read and agreed to the published version of the manuscript.

Funding

This research was funded by the Smart Civil Infrastructure Research Program for the Ministry of Land, Infrastructure, and Transport of the Korean Government, grant number 17SCIP-B128496-01.

Institutional Review Board Statement

Not applicable.

Informed Consent Statement

Not applicable.

Data Availability Statement

The data presented in this study are available on request from the corresponding author.

Acknowledgments

This research was supported by a grant (17SCIP-B128496-01) from the Smart Civil Infrastructure Research Program funded by the Ministry of Land, Infrastructure and Transport of the Korean government.

Conflicts of Interest

The author declares no conflict of interest.

References

  1. Kim, T.K.; Choi, S.J.; Choi, J.H.; Kim, J.H.J. Prediction of chloride penetration depth rate and diffusion coefficient rate of concrete from curing condition variations due to climate change effect. Int. J. Concr. Struct. Mater. 2013, 13, 15. [Google Scholar] [CrossRef]
  2. Mehta, P.K.; Paulo, J.M.M. Concrete (Microstructure, Properties, and Materials), 3rd ed.; McGraw Hill: New York, NY, USA, 2006. [Google Scholar]
  3. Sidney, M.; Francis, Y.; David, D. Concrete, 2nd ed.; Prentice Hall: Upper Saddle River, NJ, USA, 2003. [Google Scholar]
  4. International Organization for Standardization. Maintenance and Repair of Concrete Structures; ISO 16311; Vernier: Geneva, Switzerland, 2014. [Google Scholar]
  5. British Standards Institution. Products and System for the Protection and Repair of Concrete Structures; BS EN 1504; British Standards Institution: London, UK, 2005. [Google Scholar]
  6. American Concrete Institute (ACI). Code Requirements for Assessment, Repair, and Rehabilitation of Existing Concrete Structures and Commentary; ACI 562; American Concrete Institute (ACI): Farmington Hills, MI, USA, 2016. [Google Scholar]
  7. Ministry of Land, Infrastructure, and Transport. Detailed Guidelines on Safety Inspection and Precision Safety Diagnosis; Report No. RD-12-E6-024; Korea Authority of Land & Infrastructure Safety: Jinju, Korea, 2017. (In Korean)
  8. Park, J.S.; Park, K.T.; Park, H.B.; Kim, B.C. Concrete repair and rehabilitation code and post-reinforcement evaluation technology. J. Korea Concr. Inst. 2018, 30, 21–26. (In Korean) [Google Scholar]
  9. Petrounias, P.; Giannakopoulou, P.P.; Rogkala, A.; Stamatis, P.M.; Tsikouras, B.; Papoulis, D.; Lampropoulou, P.; Hatzipanagiotou, K. The influence of alteration of aggregates on the quality of the concrete: A case study from serpentinites and andesites from central Macedonia (North Greece). Geosciences 2018, 8, 115. [Google Scholar] [CrossRef]
  10. Issa, C.A.; Debs, P. Experimental study of epoxy repairing of cracks in concrete. Constr. Build. Mater. 2007, 21, 157–163. [Google Scholar] [CrossRef]
  11. Christodoulou, C.; Goodier, C.I.; Austin, S.A.; Webb, J.; Glass, G.K. Long-term performance of surface impregnation of reinforced concrete structures with silane. Constr. Build. Mater. 2013, 48, 708–716. [Google Scholar] [CrossRef]
  12. Kang, S.P.; Hong, S.J. Bending strength and fracture energy of repaired concrete specimen by crack repair material. J. Archit. Inst. Korea Struct. Const. 2009, 25, 161–168. (In Korean) [Google Scholar]
  13. Bae, J.S.; Kim, H.J.; Park, G.J.; Han, J.W. Characteristics of concrete impregnated with inorganic surface penetration agents. J. Korea Inst. Concr. Struct. Maint. Insp. 2010, 14, 71–77. (In Korean) [Google Scholar]
  14. Kwon, S.J.; Park, S.S.; Lee, S.M.; Kim, J.W. Selection of concrete surface impregnation through durability tests. J. Korea Inst. Concr. Struct. Maint. Insp. 2007, 11, 77–87. (In Korean) [Google Scholar]
  15. Chang, C.F.; Chen, J.W. Experimental investigation of concrete-carbonation depth. Cem. Concr. Res. 2006, 36, 1760–1767. [Google Scholar] [CrossRef]
  16. Khunthongkeaw, J.; Tangtermsirikul, S.; Leelawat, T. A study on carbonation depth prediction for fly ash concrete. Constr. Build. Mater. 2006, 20, 744–753. [Google Scholar] [CrossRef]
  17. Cho, H.C.; Ju, H.; Oh, J.Y.; Lee, K.J.; Hahm, K.W.; Kim, K.S. Estimation of concrete carbonation depth considering multiple influencing factors on the deterioration of durability for reinforced concrete structures. Adv. Mater. Sci. Eng. 2016, 2016, 4814609. [Google Scholar] [CrossRef]
  18. Farahani, A.; Taghaddos, H.; Shekarchi, M. Prediction of long-term chloride diffusion in silica fume concrete in a marine environment. Cem. Concr. Compos. 2015, 59, 10–17. [Google Scholar] [CrossRef]
  19. Sun, G.; Zhang, Y.; Sun, W.; Liu, Z.; Wang, C. Multi-scale prediction of the effective chloride diffusion coefficient of concrete. Constr. Build. Mater. 2011, 25, 3820–3831. [Google Scholar] [CrossRef]
  20. Jiang, L.; Niu, D.; Yuan, L.; Fei, Q. Durability of concrete under sulfate attack exposed to freeze–thaw cycles. Cold Reg. Sci. Technol. 2015, 112, 112–117. [Google Scholar] [CrossRef]
  21. Zhang, P.; Wittmann, F.H.; Vogel, M.; Müller, H.S.; Zhao, T. Influence of freeze-thaw cycles on capillary absorption and chloride penetration into concrete. Cem. Concr. Res. 2017, 100, 60–67. [Google Scholar] [CrossRef]
  22. Han, S.H.; Park, W.S.; Yang, E.I. Evaluation of concrete durability due to carbonation in harbor concrete structures. Constr. Build. Mater. 2013, 48, 1045–1049. [Google Scholar] [CrossRef]
  23. Silva, R.V.; Neves, R.; De Brito, J.; Dhir, R.K. Carbonation behavior of recycled aggregate concrete. Cem. Concr. Compos. 2015, 62, 22–32. [Google Scholar] [CrossRef]
  24. Němeček, J.; Kruis, J.; Koudelka, T.; Krejčí, T. Simulation of chloride migration in reinforced concrete. Appl. Math. Comput. 2018, 319, 575–585. [Google Scholar] [CrossRef]
  25. Wang, J.; Basheer, P.M.; Nanukuttan, S.V.; Long, A.E.; Bai, Y. Influence of service loading and the resulting microcracks on chloride resistance of concrete. Constr. Build. Mater. 2016, 108, 56–66. [Google Scholar] [CrossRef]
  26. Kim, T.K.; Choi, S.J.; Kim, J.H.J.; Chu, Y.S.; Yu, E. Performance-based evaluation of carbonation resistance of concrete according to various curing conditions from climate change effect. Int. J. Concr. Struct. Mater. 2017, 11, 687–700. [Google Scholar] [CrossRef]
  27. Jiang, W.Q.; Shen, X.H.; Xia, J.; Mao, L.X.; Yang, J.; Liu, Q.F. A numerical study on chloride diffusion in freeze-thaw affected concrete. Constr. Build. Mater. 2018, 179, 553–565. [Google Scholar] [CrossRef]
  28. Yun, Y.; Wu, Y.F. Durability of CFRP-concrete joints under freeze–thaw cycling. Cold Reg. Sci. Technol. 2011, 65, 401–412. [Google Scholar] [CrossRef]
  29. Ma, Z.; Zhu, F.; Ba, G. Effects of freeze-thaw damage on the bond behavior of concrete and enhancing measures. Constr. Build. Mater. 2019, 196, 375–385. [Google Scholar] [CrossRef]
  30. Korea Standards Association (KSA). Standard Test Method for Compressive Strength of Concrete; KS F 2405; Korea Standards Association (KSA): Seoul, Korea, 2017.
  31. Korea Standards Association (KSA). Standard Test Method for Accelerated Carbonation of Concrete; KS F 2584; Korea Standards Association (KSA): Seoul, Korea, 2020.
  32. Korea Standards Association (KSA). Standard Test Method for Measuring Carbonation Depth of Concrete; KS F 2596; Korea Standards Association (KSA): Seoul, Korea, 2019.
  33. Nordtest. Chloride Migration Coefficient from Non-Steady-State Migration Experiments; NT Build 492; Nordtest: Espoo, Finland, 1999. [Google Scholar]
  34. Korea Standards Association (KSA). Standard Test Method for Resistance of Concrete to Rapid Freezing and Thawing; KS F 2456; Korea Standards Association (KSA): Seoul, Korea, 2013.
Figure 1. Test specimen details: (a) specimen details and (b) cross-sectional view.
Figure 1. Test specimen details: (a) specimen details and (b) cross-sectional view.
Sustainability 13 03217 g001
Figure 2. Crack repair methods: (a) epoxy repair, (b) impregnating repair, and (c) epoxy/impregnating repair.
Figure 2. Crack repair methods: (a) epoxy repair, (b) impregnating repair, and (c) epoxy/impregnating repair.
Sustainability 13 03217 g002
Figure 3. Flexural strength test results of 20 MPa specimens: (a) epoxy repair, (b) impregnating repair, and (c) epoxy/impregnating repair.
Figure 3. Flexural strength test results of 20 MPa specimens: (a) epoxy repair, (b) impregnating repair, and (c) epoxy/impregnating repair.
Sustainability 13 03217 g003
Figure 4. Flexural strength test results of 30 MPa specimens: (a) epoxy, (b) impregnating, and (c) epoxy/impregnating repairs.
Figure 4. Flexural strength test results of 30 MPa specimens: (a) epoxy, (b) impregnating, and (c) epoxy/impregnating repairs.
Sustainability 13 03217 g004
Figure 5. Flexural strength test results of 40 MPa specimens: (a) epoxy, (b) impregnating, and (c) epoxy/impregnating repairs.
Figure 5. Flexural strength test results of 40 MPa specimens: (a) epoxy, (b) impregnating, and (c) epoxy/impregnating repairs.
Sustainability 13 03217 g005
Figure 6. NT Build 492 test method.
Figure 6. NT Build 492 test method.
Sustainability 13 03217 g006
Figure 7. Compressive strength responses for various concrete specimens.
Figure 7. Compressive strength responses for various concrete specimens.
Sustainability 13 03217 g007
Figure 8. Carbonation depth: (a) epoxy repair, (b) impregnating repair, and (c) epoxy/impregnating repair.
Figure 8. Carbonation depth: (a) epoxy repair, (b) impregnating repair, and (c) epoxy/impregnating repair.
Sustainability 13 03217 g008
Figure 9. Concrete carbonation depth responses for different test specimens.
Figure 9. Concrete carbonation depth responses for different test specimens.
Sustainability 13 03217 g009
Figure 10. Concrete carbonation speed modulus responses for different test specimens.
Figure 10. Concrete carbonation speed modulus responses for different test specimens.
Sustainability 13 03217 g010
Figure 11. Chloride depth: (a) epoxy repair, (b) impregnating repair, and (c) epoxy/impregnating repair.
Figure 11. Chloride depth: (a) epoxy repair, (b) impregnating repair, and (c) epoxy/impregnating repair.
Sustainability 13 03217 g011
Figure 12. Chloride depth responses for different concrete specimens.
Figure 12. Chloride depth responses for different concrete specimens.
Sustainability 13 03217 g012
Figure 13. Chloride diffusion coefficient responses for different concrete specimens.
Figure 13. Chloride diffusion coefficient responses for different concrete specimens.
Sustainability 13 03217 g013
Figure 14. Relative elastic modulus responses of various test specimens.
Figure 14. Relative elastic modulus responses of various test specimens.
Sustainability 13 03217 g014
Figure 15. Compressive strength responses following freezing and thawing for various concrete specimens.
Figure 15. Compressive strength responses following freezing and thawing for various concrete specimens.
Sustainability 13 03217 g015
Table 1. Loading and reloading methods of flexural strength test.
Table 1. Loading and reloading methods of flexural strength test.
SpecimenFirst LoadingConcrete Crack Repair and CuringSecond Loading
20 MPa
-
Loading up to 40 kN
-
Load removal
-
Loading up to 20 kN
-
Epoxy
-
Impregnating
-
Epoxy/impregnating
Loading up to 30 kN
30 MPa
-
Loading up to 60 kN
-
Load removal
-
Loading up to 40 kN
-
Epoxy
-
Impregnating
-
Epoxy/impregnating
Loading up to 50 kN
40 MPa
-
Loading up to 80 kN
-
Load removal
-
Loading up to 60 kN
-
Epoxy
-
Impregnating
-
Epoxy/impregnating
Loading up to 70 kN
Table 2. Concrete core specimens.
Table 2. Concrete core specimens.
SpecimenDesign Strength (MPa)EADurability Test
Control203Compressive strength
303
403
Epoxy2012Carbonation, chloride, freezing–thawing, compressive strength
3012
4012
Impregnating2012
3012
4012
Epoxy/Impregnating2012
3012
4012
Total117-
Table 3. Compressive strength test results.
Table 3. Compressive strength test results.
Design Strength (MPa)Repair MethodCompressive Strength (MPa)
20Control23.3
Epoxy23.5
Impregnating27.3
Epoxy/Impregnating22.9
30Control30.0
Epoxy33.2
Impregnating34.1
Epoxy/Impregnating29.9
40Control44.1
Epoxy40.3
Impregnating42.3
Epoxy/Impregnating41.0
Table 4. Accelerated carbonation test results.
Table 4. Accelerated carbonation test results.
Design Strength (MPa)Repair MethodCarbonation Depth
(Noncrack) (mm)
Carbonation Depth (mm)Carbonation Speed Modulus
( mm / w e e k )
1 Week4 Weeks1 Week4 Weeks
20Control -18.4-9.2
Epoxy13.917.034.48.517.2
Impregnating15.117.426.98.713.45
Epoxy/Impregnating14.414.515.07.257.5
30Control -12.3 6.15
Epoxy6.27.110.73.555.35
Impregnating5.812.120.36.0510.15
Epoxy/Impregnating9.911.312.25.656.1
40Control -3.0 1.5
Epoxy2.95.45.82.72.9
Impregnating4.59.112.24.556.1
Epoxy/Impregnating5.015.928.27.9514.4
Table 5. Chloride test results.
Table 5. Chloride test results.
Design Strength (MPa)Repair MethodChloride Depth
(mm)
Chloride Diffusion Coefficient
(×10−12 m2/s)
20Control9.48.76 × 10−12
Epoxy14.21.31 × 10−11
Impregnating37.53.76 × 10−11
Epoxy/Impregnating14.41.33 × 10−11
30Control5.14.38 × 10−12
Epoxy6.85.71 × 10−12
Impregnating25.92.46 × 10−11
Epoxy/Impregnating7.96.84 × 10−12
40Control4.43.65 × 10−12
Epoxy2.51.87 × 10−12
Impregnating5.75.55 × 10−12
Epoxy/Impregnating2.71.94 × 10−12
Table 6. Freezing and thawing test results.
Table 6. Freezing and thawing test results.
Design Strength (MPa)Repair MethodRelative Elastic Modulus (%)
0th Cycle100th Cycle200th Cycle300th Cycle
20Control10073.054.4-
Epoxy10077.954.827.7
Impregnating10075.543.4-
Epoxy/Impregnating10080.352.141.1
30Control10071.960.426.0
Epoxy10073.167.347.3
Impregnating10068.952.138.7
Epoxy/Impregnating10082.869.744.0
40Control10077.560.232.5
Epoxy10071.165.751.2
Impregnating10076.251.925.8
Epoxy/Impregnating10083.773.266.0
Table 7. Freezing and thawing compressive strength results.
Table 7. Freezing and thawing compressive strength results.
Design Strength (MPa)Repair MethodCompressive Strength (MPa)
20Control16.5
Epoxy16.4
Impregnating20.7
Epoxy/Impregnating20.2
30Control23.9
Epoxy25.2
Impregnating26.4
Epoxy/Impregnating26.2
40Control35.3
Epoxy32.6
Impregnating33.1
Epoxy/Impregnating31.6
Publisher’s Note: MDPI stays neutral with regard to jurisdictional claims in published maps and institutional affiliations.

Share and Cite

MDPI and ACS Style

Kim, T.-K.; Park, J.-S. Performance Evaluation of Concrete Structures Using Crack Repair Methods. Sustainability 2021, 13, 3217. https://doi.org/10.3390/su13063217

AMA Style

Kim T-K, Park J-S. Performance Evaluation of Concrete Structures Using Crack Repair Methods. Sustainability. 2021; 13(6):3217. https://doi.org/10.3390/su13063217

Chicago/Turabian Style

Kim, Tae-Kyun, and Jong-Sup Park. 2021. "Performance Evaluation of Concrete Structures Using Crack Repair Methods" Sustainability 13, no. 6: 3217. https://doi.org/10.3390/su13063217

APA Style

Kim, T.-K., & Park, J.-S. (2021). Performance Evaluation of Concrete Structures Using Crack Repair Methods. Sustainability, 13(6), 3217. https://doi.org/10.3390/su13063217

Note that from the first issue of 2016, this journal uses article numbers instead of page numbers. See further details here.

Article Metrics

Back to TopTop