Abstract
According to the most recent data from the United Nations High Commissioner for Refugees, in 2020, 82.4 million people were forcibly displaced. In addition to this situation, in the developed world, building construction consumes 40% of the world’s material resources and primary energy, while the construction industry generates 35% of industrial waste and 40% of total global emissions. Therefore, the objective of the research is to propose an eco-efficient prototype for emergency housing, from the point of view of circular economy and regenerative sustainability, that can respond to situations of natural or humanitarian disasters. To achieve this, it will be necessary to identify the problem that must be answered and develop a theoretical model that will serve as a guide for future interventions of these characteristics. Finally, to verify the applicability of the developed protocol, a field work is executed in an unorganized settlement, Subaşi camp, located in Turkey. This research presents a novel prototype that could be used as an alternative to current emergency housing, not only responding adequately to the minimum standards of habitability, but also doing so in an eco-efficient, environmentally correct way and promoting the Sustainable Development Goals and circular economy established in the 2030 Agenda.
Keywords:
emergency situation; social; sustainability; circular economy; construction; modular; ephemeral 1. Introduction
In the last two decades, 7056 natural disasters occurred in the world causing 1.35 million deaths, of which 90% were caused by climate change [1]. In 2019, 75% of the displacements registered, 24.9 million, were caused by natural disasters and 25%, 8.5 million, by conflicts [2]. As a result of natural disasters, social conflicts, and epidemics, the number of forced displacements has been increasing worldwide. According to the most recent data from the United Nations High Commissioner for Refugees (UNHCR), in 2020, 82.4 million people were forcibly displaced, representing 1% of the world’s population and the highest number ever registered [3,4]. Of the total number of displaced people in 2020, 82.4 million, 40.5 million correspond to new internal displacements, while the rest were already displaced in previous years [4].
Relevant causes of displacement worldwide are conflicts, which accounted for 8.5 million new displacements in 2019, slightly less than 25% of the total [2]. However, the main cause of displacement worldwide is natural disasters, registering 24.9 million new internal displacements in 2019, 75% of the total, caused mainly by storms [2,5]. This can be seen in Figure 1, which shows, on a world map, the areas affected by displacement related to conflicts in orange, and those related to natural disasters in yellow. As demonstrated, the areas where a greater number of displacements of both types converge are Africa and Western Asia, demarcations close to the European continent. These forced displacements around the world, combined with increasingly prolonged crises, cause situations of great vulnerability and poverty for those affected.
Figure 1.
New displacements as a result of disasters and conflicts in 2019. (Authors’ own work)
Apart from these situations, there are other emergency situations that increase the inequalities that migrants and refugees face worldwide, negatively impacting their mental health, their living conditions, and their access to health services [6,7]. One of these situations are epidemics, such as Covid-19, which was declared a global pandemic by the WHO.
Historically, southern European countries are the ones that have received the most immigrants, even though the Mediterranean route has the greatest number of fatalities for the highest number of migrants, as has been pointed out by numerous media. This is due to the proximity that exists between the southern European countries with the African continent and the Middle East, areas where a high number of displacements due to disasters and conflicts converge [8].
In 2019, Greece became the main entry point for displaced people to Europe through the Mediterranean Sea, as shown in Figure 2, with 65,829 people arriving to the country and Lesbos being the island that received the most arrivals. A third of the people who came to Greece arrived in Lesbos. Most of these entries to Europe were made from Izmir, a coastal Turkish city that is part of the eastern Mediterranean migration route and which has seen its migrant population increase due to the pact between the European Union and Turkey, preventing the passage of migrants to Europe and returns those who arrive to the Greek islands to Turkey [8].
Figure 2.
Main Mediterranean migration routes and new arrivals to Europe and Greece in 2019. (Authors’ own work)
In 2020, Turkey hosted the largest number of refugees globally: almost 3.7 million people, 15% of all people displaced across borders globally. In this way, Turkey remains the main host country for refugees in the world [4]. Due to the great importance of Turkey and specially the city of Izmir in the refugee and displaced population, the research will be focused on this city.
The supply of accommodation after an emergency is one of the priorities of humanitarian aid, although the reality is that the conditions in which people in situations of forced displacement live are precarious and overcrowded, mainly due to the quality and quantity of the extended means [9]. Most of the damages caused could be mitigated using a quick and planned approach.
As a direct consequence of these displacements, refugee camps arise, with the main objective to provide protection and safe and decent living conditions for those fleeing their country [10,11]. Refugee camps are intended as temporary solutions, to host people for a limited period, in order to keep them safe and provide them with shelter as a provisional solution to forced displacement. However, the reality is that the majority of refugees spend long periods of time at these settlements [12,13].
Housing, apart from a fundamental right, is a critical factor that directly affects the survival of victims in the initial phases of a disaster or in displacement due to a conflict, since it provides security, protection against climatology, and resistance to possible diseases, in addition to maintaining human dignity and sustaining family and community life, allowing affected populations to recover more quickly after a disaster.
Displaced people, whether they are refugees, asylum seekers, internally displaced, or migrants, are particularly vulnerable to a wide range of human rights violations, including the right to decent housing. Displaced people are also particularly sensitive to discrimination, racism, and xenophobia, which can lead to serious difficulties in achieving adequate and sustainable living conditions [13,14,15].
When speaking of emergency housing, it is referred to as a minimum habitat, not in the sense of an incomplete unit reduced to poverty, but rather it must respond to the minimum needs of comfort for refugees in the event of a catastrophe. These are minimal in terms of dimensions, materials, costs, construction times, and permanence [16]. In this sense, it is intended that emergency housing responds to a series of basic conditions, such as protection against the weather and possible replicas of natural phenomena, storage capacity for belongings, security and privacy protection, the flexibility and adaptability of spaces to changing users and different cultures, and the reuse and recycling of materials, as well as the use of traditional local materials [17]. According to Ian Davis, architect of refugee camps in wars and catastrophes and advisor to the UN, emergency architecture is capable of cushioning extreme and unexpected situations where the time factor is the background against which it is necessary to act [18].
In this current outlook, our research question is: would it be possible to implement sustainability into emergency housing? The preservation of the environment together with situations of forced displacement due to war or natural catastrophes, must be contemplated. It is also necessary to considering the ephemeral nature of these settlements, which sometimes become large, inhabited towns generating the consequential waste and environmental impact.
In the developed world, building construction consumes 40% of the world’s material resources and primary energy [19], while the construction industry generates 35% of industrial waste [20] and 40% of total global emissions [21,22,23]. In the European Union (EU), construction and its industry consume 50% of natural resources for manufacturing materials and generate 35% of waste [24]. Greenhouse gases emissions from these activities are estimated at 5–12% of the total, while a more efficient use of materials could reduce them by 80% [25]. In the EU, construction and demolition waste (CDW) represents the largest flow in terms of mass at 1/3 of 3 trillion tonnes per year.
Actions inspired by circular economy such as the standardization of materials made up of secondary raw materials and the dissemination of information among the intervening actors have the potential to contribute to avoiding an increase in the production of CDW and a higher amount and quality of recycling [26]. Such is the case of the Spanish Circular Economy 2030 strategy that lays the foundations to promote a new production and consumption model in which the value of products, materials, and resources is maintained in the economy for as long as possible, minimizing waste generation and maximizing the scope of those that cannot be avoided [27].
The above led us to the idea of applying the Circular Economy concept of the 2030 Agenda to this type of housing: reuse, recycle, to design an emergency housing construction prototype following sustainable criteria, through the application of reused materials. Achieving a design that allows the standardization of the process will not only help society, helping those most disadvantaged, adapting it to their needs but also to reduce the time of action after a catastrophe with native and recycled materials, which will contribute to the minimization of the environmental impact of these settlements.
To achieve the change from a linear model to a circular one, it is necessary to reduce the waste that is generated [28], but above all ensure that this waste gives rise to new materials, reducing the use of raw materials and promoting the reduction of energy consumption [22].
The construction sector is the largest producer of waste when compared to other economic activities, representing 35% of total waste generation in the European Union, which is equivalent to four times more than total household waste. Construction and demolition activities are estimated to account for 30–40% of the total waste produced in China, reaching 1 billion tonnes in 2013, 850 million tonnes of physical waste in the EU, and more than 530 million tonnes in the United States in 2014. In terms of reuse and recycling rates of this CDW waste, China reused and recovered only around 5%, while the EU and the US achieved higher recovery rates, around 79% and 70%, respectively. Despite the fact that two-thirds of EU countries have already reached the 70% recovery target of CDW waste set by the Waste Framework Directive (WFD) for 2020, other countries need to take further steps to improve their recovery rates, among which are Spain, Sweden, Belgium, and Greece [19].
In addition, circular economy reduces the pressure on natural resources and is a necessary condition to achieve the climate neutrality objective for 2050 established in the European Green Deal and to alleviate the loss of biodiversity. Half of the total greenhouse gas emissions and more than 90% of the loss of biodiversity and water stress are due to the extraction and treatment of resources [29].
In Spain, to reduce this waste, the State Waste Management Framework Plan (PEMAR) has been approved for the years 2016 to 2022, which establishes the general strategy of the waste policy in Spain, as well as the minimum objectives to be met by prevention and preparation for reuse, recycling, recovery, and disposal. Although the plan reflects the drastic reduction in CDW generation, from about 42 million tons in 2007 to 27 million tons in 2012, it is still necessary to follow guidelines to continue this reduction [30,31].
Circular economy from an architecture perspective must start during the design phase, consider functional systems that take into account modularity and adaptability of construction elements, consider the change in needs throughout the life of the building, and understand the outcome as a living space [32]. The circular economy applied to emergency housing would entail a notable decrease in the percentage of CDW waste recovered, a reduction in greenhouse gas emissions and energy consumption, and would help to preserve the environment and its biodiversity. The CDW waste recycling rate could be increased by setting the bases of action for other emergency situations, since the construction of temporary buildings using new materials generates a high impact on the ecosystem, as has been verified in the recent case of the construction of temporary hospitals around the world to alleviate the Covid-19 pandemic.
Numerous scientific publications show the need to implement the circular economy as a current economic model, in everyday life [33] and in the construction sector [34], as the problems generated by the increase of waste are being faced [35]. Others investigate new construction solutions in emergency housing [36] or propose new prototypes that adapt to the different realities of these situations [37], even in the event of natural disasters [38].
However, none of them address the need for global economic regeneration that is required in a world affected by COVID 19, which has caused a great impact on the economy. As shown in Figure 3, this has caused the deepest recession in decades for many countries [39], since the last crisis in 2009, which saw 1.674% of world gross domestic product (GDP). Although the final impact is still uncertain, the forecasts showed a contraction of 5.2% in the world GDP for the year 2020, making it urgent to adopt measures that cushion the consequences for 2021 given the low foreseeable growth of 0.3% with respect to the fall of the year 2020 [40].
Figure 3.
Evolution of GDP 2006–2020 (in US dollars). (Authors’ own work)
Knowing the serious current consequences in the world economy, the need to incorporate the circular economy into our economic system becomes even more essential. This would allow, among other aspects, savings in raw materials and an increase in job creation and in the economic value of natural resources.
Faced with this bleak outlook in developed countries, the situation in the most disadvantaged places and the impact that it will have on them are of particular concern. Therefore, the objective of the research is to propose an eco-efficient prototype for emergency housing, from the point of view of circular economy and regenerative sustainability, that can respond to situations of natural or humanitarian disasters. The investigation develops an eco-efficient design protocol adaptable to diverse scenarios as required, creating a rapid, easy, functional, and environmentally correct architecture, closely committed to the United Nations Sustainable Development Goals of the 2030 Agenda, thus helping to achieve equality among people, protect the planet, and ensure prosperity. The research develops an eco-efficient design of emergency housing for the Subaşi settlement, through in situ field work in this refugee camp. Consequently, this validates the previous established protocol and demonstrates the possibility of designing an environmentally correct protocol for future emergency situations, thus avoiding the precarious nature to which those in forced displacement are exposed. Despite the need for emergency housing and the implementation of the circular economy, two themes of undoubted actuality, no research has ever proposed the merge of the two, proposing a solution that would improve both aspects. This research becomes essential for the correct evolution towards sustainability and respect for the environment, in relation to emergency housing.
2. Materials and Methods
In order to achieve an eco-efficient and environmentally sustainable theoretical model that meets the minimum standards of habitability in emergency housing, it will be necessary to follow the subsequent methodology, as outlined in Figure 4, which will allow the achievement of the main objective: the design of an emergency housing prototype to optimise circular economy. It will be necessary to identify the problem that must be answered and develop a theoretical model that brings together the universal strategies to be carried out in these situations and that will serve as a guide for future interventions of these characteristics. Finally, its validity and adaptability to a real case will be demonstrated.
Figure 4.
Methodology workflow of the research. (Authors’ own work)
Thus, the steps to take are the following:
- Identification of the problem, thoroughly explained in the introduction, to know the impact of forced displacements worldwide and the current production system on the environment.
- Identification of the minimum habitability conditions, with the purpose of knowing the main universal strategies applicable to these situations that satisfy the needs of its users.
- Analysis of contemporary emergency housing, which makes it possible to publicise their shortcomings and adaptability to the environment.
- Definition of the circular economy criteria in emergency architecture, to know and be able to meet the objectives proposed by different organizations at European and global level.
- Definition of the sustainability criteria in the materials used: Cradle to Cradle Certified Products, to select the materials that best adapt constructively and environmentally to the emergency housing prototype.
The previous points will conclude in the prototype proposal which will compile the conclusions obtained at each stage, thus accomplishing the objective of the research, to propose an eco-efficient prototype for emergency housing, from the point of view of circular economy and regenerative sustainability, that can respond to situations of natural or humanitarian disasters in different locations. This methodology workflow has a qualitative approach, and not quantitative, due to the fact that no calculation software has been used to measure the results.
Following that, each of the stages of the proposed methodology are developed.
2.1. Identification of the Minimum Habitability Conditions
As of today, there is no universal solution to give refuge to people in situations of forced displacement, but there are different methods that try to mitigate the damage to those who have lost everything. One such method that attempts to improve the quality of its actions during disaster responses is the Sphere Project, created by a group of humanitarian non-governmental organizations (NGOs) and the International Red Cross and Red Crescent Movement, in order to develop a set of universal minimum standards in essential areas of humanitarian responses [41]. This project is in charge of guiding the actions of the vast majority of humanitarian organizations for twenty years, so its premises will be taken as a basis in this research:
- People affected by disaster or conflict have a right to live with dignity and, therefore, a right to assistance.
- All possible steps should be taken to alleviate human suffering arising out of disaster or conflict.
The Humanitarian Charter and minimum standards will not of course stop humanitarian crises from happening, nor they can prevent human suffering. What they offer, however, is an opportunity for the enhancement of assistance with the aim of making a difference to the lives of people affected by disaster.
The Handbook does, however, have a specific place within the broader realm of humanitarian action, which goes beyond providing immediate relief and covers a spectrum of activities that starts with disaster preparedness, then includes humanitarian response, and finally extends into early recovery [41].
For the investigation, the following four minimum standards that emergency housing must meet in relation to the design of their spaces and the choice of the materiality of the new prototype will be taken in consideration:
Shelter and settlement standard 2: settlement planning.
The planning of return, host, or temporary communal settlements enables the safe and secure use of accommodation and essential services by the affected population [41].
Shelter and settlement standard 3: covered living spaces.
People have sufficient covered living spaces providing thermal comfort, fresh air, and protection from the climate ensuring their privacy, safety, and health and enabling essential household and livelihood activities to be undertaken [41].
Shelter and settlement standard 4: construction.
Local safe building practices, materials, expertise, and capacities are used where appropriate, maximising the involvement of the affected population and local livelihood opportunities [41].
Shelter and settlement standard 5: environmental impact.
Shelter and settlement solutions and the material sourcing and construction techniques used minimise adverse impact on the local natural environment [41].
2.2. Analysis of Contemporary Emergency Housing
The refugee camps are not intended to be a long-term remedy; the assistance provided in them is temporary, that is, until the circumstances are favourable for the refugees to be able to return to their countries of origin in dignified conditions [42].
The types of accommodation that are available to people who arrive looking for a safer place depend on the time that the people displaced will be in it and on different environmental and anthropological factors. In these situations, the essential aim is to cover the need for shelter in a space that offers security, warmth, and comfort to its users, and where they can gradually resume their lives until they can return to their country of origin [43].
That is why this investigation is based on one of these settlements, that of Subaşi camp, which is located in the province of Izmir, in Turkey, and which can be seen in Figure 5. This will be the location for which the emergency house prototype will be designed.
Figure 5.
Location of the Subaşi settlement (Turkey). (Authors’ own work)
Currently, 15 Syrian families of about five members each have lived in this 2849 m2 space for four years, but around 400 families live in this type of settlement in the area. The inhabitants of the Subaşi settlement have as their main source of income agriculture in the adjoining lands, although it is mainly the men from the camp who work there. Although most of the year they live on this land, they change their location depending on the agricultural season, an aspect that will be decisive when designing the prototype of the emergency housing.
An on-site survey of the characteristics of the dwellings of the inhabitants of this settlement was carried out. They are built on the basis of a removable galvanized steel structure of tubular profiles that form a gable roof, without a firm and solid anchor to the ground, on which they place fabrics, blankets, and plastics in the form of an envelope that serve as little protection. Several of these accommodations have wooden pallets on the ground to slightly raise the floor and avoid the water that enters when the plot is flooded, since the interior and exterior floors of the home are at the same level. These lodgings have a single rectangular space without interior divisions of about 7 m2 with a single passage opening that gives access to the interior, which hinders the independence and family life of its users. A few of these accommodations have an opening in the roof to facilitate ventilation when cooking inside. In addition, these homes do not have any type of access to water or electricity. In the following photographs, the general characteristics of Subaşi location and habitability are displayed (Figure 6), and in the collage (Figure 7), the lifestyle of its inhabitants is shown.

Figure 6.
(a) Plot conditions at the Subaşi settlement. (b) Dwellings at the Subaşi settlement. (c) Plot conditions at the Subaşi settlement. (d) Dwellings at the Subaşi settlement. (Authors’ own work)
Figure 7.
Lifestyle of the Subaşi settlement’s inhabitants (Turkey). (Authors’ own work)
Knowing the characteristics of these settlements, in this research, an exhaustive analysis of different case studies already executed or recently designed was carried out, to see if they were sufficiently verifiable. Mainly, houses and prototypes that have already been used in a disaster or conflict situation have been chosen to be able to compare their effectiveness. Furthermore, some prototypes have been selected that have not yet been mass-produced, due to their academic nature or because they are still in the evaluation process, but which show some aspects of interest.
With these case studies, collected in Table 1, it is intended to have a wide range of contemporary emergency housing solutions. Subsequently, a comparison of the most important characteristics in an emergency home has been made with them, assessing how the selected case studies respond to them [43,44,45,46,47,48,49,50,51,52,53,54]. This will serve as a complement to the manuals and standards seen above, in order to develop the emergency housing prototype that brings together all the fundamental aspects of this type of architecture and situations.
Table 1.
Comparative table between case studies. (Authors’ own work)
As general conclusions of the analysis, it can be determined that all the designs have a flat packaging to facilitate their transport and the change of location, and most of them also use a system that allows easy and quick assembly by their users, without the need for tools, special nor qualified personnel, and with an elevation above the ground, that allows their adaptation to terrains with unevenness and its protection against impervious terrain and meteorological agents that give rise to the deterioration of the soil. Some of these designs are modular which allows the adaptation of the designs to any other function that the field may need or to family nuclei of different sizes and types. None of the cases studied meet all the minimum standards recommended in the Sphere Standards, betting mainly on designs with very small interior spaces and without divisions, designed only for resting, which makes it impossible to carry out comfortable daily life and does not help people recover; therefore, the need for this research to develop a new emergency housing prototype remains un-avoidable.
It is surprising that very few of these prototypes have recycling capacity and most of them use materials with a high environmental impact such as plastics and have a fairly low life expectancy. Only in one of the examples, The Hex House, it is appreciated that there is the possibility of personalizing the home itself, something that could increase the deadlines and the cost of production and delay the start-up of the houses. In addition, the function of these emergency houses is that they can be used by several different families throughout their useful life, so it would not make sense for each family to have the possibility to choose the materiality so they would be continually changing. It is important to remember that these are homes designed only for extraordinary and not permanent situations. Likewise, the maximum durability, in these cases of temporary emergency housing, for which there is information, is 5 years, a very short useful life, thus generating an increase in the amount of waste.
Undoubtedly, the most striking aspect is that most are prototypes that claim to be universal, trying to solve at once the different climates in which emergency housing may be needed, without considering the climatic conditions of the place. This decision can only result in these homes being uninhabitable in certain locations at certain times of the year, as each location has particular requirements.
2.3. Definition of the Circular Economy Criteria in Emergency Architecture
The current linear economic model is reaching its own limits, as the environment is not able to sustain it for longer. This situation is also being aggravated by the current state of the COVID-19 pandemic and the health measures that are being taken to restrict it, since they are considerably increasing the amount of waste and the linear consumer model.
The European Union has already been working on the implementation of the circular economy for a few years. In December 2017, the Commission of the European Parliament, after declaring the climate emergency, presented the European Green Deal to promote efficient use of resources by moving towards a clean and circular economy, restoring biodiversity and reducing pollution, providing that the EU is climate neutral by 2050 [55]. Included in this European Green Deal is the new Circular Economy Action Plan for sustainable growth. The new plan focuses on the design and production of a circular economy, with the aim of ensuring that the resources used are kept in the EU economy for as long as possible. Some of the objectives of this plan are to advance in the reduction of the use of non-renewable natural resources incorporating recycled content, promote the analysis of the life cycle of products and the incorporation of eco-design criteria, and favour the effective application of the principle of hierarchy of waste, promoting the prevention of its generation, encouraging reuse, and strengthening recycling. In addition, this plan is committed to promoting innovative forms of sustainable consumption, which include sustainable products and services, and to disseminating the importance of moving towards a circular economy [56,57]. In this context, looking for alternatives that minimize the extraction of raw materials, incorporate recycled materials, and reduce the energy consumption and CO2 emissions related to the manufacture of construction products is another way to move towards a circular building sector. It is important to consider the environmental impact of the whole life cycle of a building, not only certain phases [57].
In 2015, the UN, supported by 193 countries, approved the 2030 Agenda on Sustainable Development, an opportunity for countries and their societies to embark on a new path that results in equality among people, protecting the planet, and ensuring prosperity. The Agenda has 17 Sustainable Development Goals (SDGs), which range from the elimination of poverty and the reduction of inequalities to the fight against climate change, responsible production and consumption, and the conservation of underwater life and terrestrial ecosystems [58].
This prototype qualitatively improves a great amount of the Sustainable Development Goals (SDGs) such as the reduction of inequalities; making cities and human settlements inclusive, safe, resilient, and sustainable; strengthening the means of implementation; and revitalizing the global partnership for sustainable development and inclusive societies for sustainable development [58]. Moreover, this prototype is involved in protecting, restoring, and promoting sustainable use of terrestrial ecosystems, halting and reversing land degradation, and halting biodiversity loss [58].
The application of these goals in our prototype becomes essential to obtaining an optimal result in the investigation, since it combines the main purposes of the research, the application of the circular economy, and the improvement of habitability conditions in emergency situations.
2.4. Definition of the Sustainability Criteria in the Materials Used: Cradle to Cradle Certified Products
In this situation of high consumption of natural resources and high production of waste, the importance of establishing a new economic model of a cyclical nature, the circular economy, is obvious. This system aims to optimize the life of each material by reducing the environmental impact that generates the production process, thus creating an economy that is both sustainable and profitable. From this need, the Cradle to Cradle Products Innovation Institute was created, whose basic principles are to ensure that materials are safe for humans and the environment, allow a circular economy through the design of products and processes, protect the environment, and respect human rights, contributing to a just and equitable society. To do this, they use a Cradle to Cradle Product Certification, which evaluates the materials used and the manufacturing process of the products based on environmental and social performance in five critical sustainability categories: material health, material reuse, energy use renewables, and carbon management, water management, and social responsibility, thus offering a path for product manufacturers to make measurable progress towards the UN SDGs [59]. These basic principles, collected in Figure 8, will be taken into consideration in the materiality of the new designed prototype.
Figure 8.
Cradle to Cradle Products Innovation Institute basic principles. (Authors’ own work)
2.5. Definition of The Design Protocol for Emergency Housing
The current situation requires going beyond the implementation of a circular economy; it requires going from being solely sustainable to being regenerative, actively contributing to the regeneration and improvement of the health of people, society, and the planet [60]. On the other hand, many experts defend the importance of accommodation for the recovery of people after an emergency.
In this section, based on all the points previously studied, an action protocol has been drawn up in the design of housing for emergencies, which includes the criteria that must be considered, to respond to all the previous precepts, which are collected in Appendix A.
This design protocol for emergency housing is divided into two sections: functionality and materiality. The first section encompasses aspects related to the prototype commissioning and living conditions, and the security provided to its users. The second section considers the environmental impact of the materials used and the characteristics that the materials must have to be functional in emergency housing. Both sections are based on the conclusions obtained from the case studies analysed, the SDGs, and the Sphere Standards, guaranteeing compliance with the minimum habitability standards. In addition, the materiality section includes the Cradle-to-Cradle Products Innovation Institute standards and the circular economy premises established in the 2030 Agenda, which will guarantee the use of safer and more sustainable products following the criteria of the circular economy.
Some of the most important aspects collected in the first section are the easiness and rapidity of transport, reduced manufacturing time, the need for sufficient interior space for daily activities, the adaptability and flexibility of the design, the quality and comfort of the spaces, the guaranty of providing safe separations and privacy between users protecting their safety, dignity, and humans rights, and the importance of involving the affected population in planning for provisional community settlements. Additionally, the second section includes aspects such as ensuring the durability of the prototype, evaluating the specific climatic conditions of the location to offer optimal thermal comfort, promoting the use of housing solutions and materials that are familiar to the affected population and environmentally sustainable, minimizing the negative effects on local environmental resources, eliminating waste as much as possible, and using circular and sustainable materials that allow the dismantling and relocation of the system. This eco-efficient design protocol establishes the basic premises in any emergency situation, thus avoiding the precarious nature to which those in forced displacement are exposed.
3. Results and Discussion
To verify the applicability of the developed protocol, as mentioned before, field work was executed in an unorganized settlement that meets the characteristics of a refugee camp: Subaşi camp, which is located in the province of Izmir, in Turkey. An emergency housing design has been developed to apply the precepts included in the developed protocol and thus verify its validity.
3.1. Identification of the Minimum Habitability Conditions
The protocol followed for the prototype design is composed from the minimum standards for humanitarian response determined in the Sphere Manual, the SDGs, the circular economy premises established in the 2030 Agenda, the Cradle-to-Cradle Products Innovation Institute standards, and the conclusions obtained from the analysis of the different case studies.
Displaced people are particularly vulnerable to a wide range of human rights violations, leading to serious difficulties in achieving adequate and sustainable living conditions. Being conscious of this matter, the design prioritises the inhabitants, maintaining human dignity, and sustaining family and community life.
Among other things, this protocol advocates for a prototype where its users would be able not only to develop essential household and livelihood activities inside, but also, they would have a space to recover and to feel secure and comfortable, without housing shortages, ensuring that living conditions are optimal and they can gradually resume their lives. The design of the prototype must provide its inhabitants with independence, empowerment, and a sense of ownership.
Following all the precepts of the design protocol for emergency housing, the prototype was designed, only in the absence of the choice of materiality, which is detailed in the subsequent section.
3.2. Definition of the Sustainability Criteria in the Materials Used: Cradle to Cradle Certified Products
Due to the restrictive peculiarities of emergency housing, the range of materials that would work correctly for the final prototype are few, as the materials used have to fit within a circular economy, and must be able to adapt to an ephemeral, flexible, architecture, removable, portable, and cooperative capacity of its users in construction. The importance of applying the circular economy principles of durability and disassembly must not be forgotten. These aspects should be carefully taken into account especially when working on emergency housing, since their inhabitants are economically vulnerable, and the resources must be optimised, promoting material recovery, value retention, and meaningful next use [57]. Following the protocol established in Appendix A, no material in the Cradle to Cradle Products Innovation Institute catalogue meets the previous needs, since the vast majority of these are designed for permanent construction or are not adapted to some of the key concepts to achieve in the emergency housing prototype mentioned above.
That is why it was decided to propose products or materials, which are available in areas close to Subaşi camp, and which follow the method of safe and circular redesign of products proposed by the Cradle to Cradle Products Innovation Institute. This method explores the implications of material choice in each phase of their life cycle: during production, the use phase, the post-use phase, and when materials are reintroduced into the system. To effectively design a product for its use in closed cycles, it is essential to consider the impact of the choice of materials, for humans or the environment, in each of these stages of the life cycle [61]. In this way it must be guaranteed that the materials used are adaptable to emergency housing use and meet the characteristics and processes necessary to be considered safer and more sustainable products that are manufactured in accordance with circular economy and create a positive impact. In this specific case they will be galvanized steel, already used in the structure of the current homes of the residents of Subaşi; Accoya natural wood panels, OSB panels, and rock wool insulation for the construction of the sandwich panels that will function as the envelope of the prototype; and finally, cellular polycarbonate, for the openings of the accommodation. While the suppliers of OSB panels and rock wool are found in the same province of Izmir, where Subaşi is located, the suppliers of cellular polycarbonate, Accoya natural wood panels, and galvanized steel can be found in Turkey itself, which will facilitate and speed up transport, reducing costs, and environmental impact.
3.2.1. Galvanized Steel
Since the lodgings that are currently in use in Subaşi are built on the basis of a removable galvanized steel structure of tubular profiles, this material will be used for the base structure of the houses in order to be able to reuse some of those that are already in use and lower costs. This decision will make it easier to put the houses into operation as it is a material commonly used by users and on which they have sufficient technical knowledge and skills for assembly.
Zinc, together with steel, is 100% recyclable and also guarantees, unlike other coatings, the absence of toxic or dangerous chemical substances, not generating impacts on the environment, providing as well exceptional durability and constructive versatility without any conservation cost [62]. Likewise, galvanized steel is capable of resisting inclement weather, it is lighter than many other metals, and its cost is very low, which will favour its acquisition, assembly, and transport by users [63].
Below, in Figure 9, it will be demonstrated, following the method of safe and circular redesign of products proposed by the Institute, that galvanized steel is a material that meets the characteristics and processes necessary to be included in the Cradle to Cradle Certified catalogue. The circular process of this material will not always begin in the same phase but depending on the state in which the material is found, it may begin in any of those that make up its cycle.
Figure 9.
Life cycle of galvanized steel structures. (Authors’ own work)
3.2.2. Natural Wood and OSB Sandwich Panels and Rock Wool Insulation
For the exterior partitions of the prototypes, it is proposed to use sandwich panels made out of OSB wood on the inside and natural wood on the outside with rock wool insulation in between that will be fixed to the galvanized steel structure mentioned above by means of some clamps. The choice of a different type of wood for the faces of the sandwich panel is justified only due to the different characteristics that the interior and exterior of the houses require.
The choice of OSB for the sandwich panels has several reasons: wood is a great thermal and acoustic insulator and is a completely sustainable material that guarantees one of the cleanest and cheapest recycling processes [64]. The idea of using wood for the cladding of the prototype is due to the fact that it perfectly meets the standards of the circular economy: it is renewable, recyclable, reusable, and biodegradable. In addition, it is a natural material, available in large quantities and is easy to produce [65]. It is important to highlight that wood is an important source of carbon retention, contributing to the mitigation of climate change [66]. In addition, the decision to bet on sandwich panels in removable temporary houses, which incorporate insulation, allows an easy and quick start-up and transport, as it has a smaller number of pieces.
Figure 10 shows how OSB panels meet the characteristics and processes necessary to be included in the Cradle to Cradle Certified catalogue, following the method of safe and circular redesign of products proposed by the Institute. The circular process of this material will not always begin in the same phase but depending on the state in which the material is found, it may begin in any of those that make up its cycle.
Figure 10.
Life cycle of OSB panels. (Authors’ own work)
As the exterior cladding of the panels, the Accoya group outdoor wood cladding has been chosen which is already registered by the Cradle to Cradle Institute with a gold certification, which guarantees that the materials used and the environmental and social performance in the process of product manufacturing comply with the UN SDGs, which establishes rigorous parameters for the sustainability of the product throughout its life cycle [67].
For its part, rock wool, which is fire and humidity resistant and functions as thermal and acoustic insulation, is fully recyclable. Likewise, as this material does not degrade over time, its useful life is very long, in addition to allowing infinite recycling, giving rise to new products or new rock wool [68,69].
Another key aspect of the circular economy is the use of modular construction materials that are easy to disassemble and separate according to the materials, thus allowing their reuse and recycling, a requirement that this element meets [70].
Figure 11 shows how the rock wool insulation of the sandwich panels meets the characteristics and processes necessary to be included in the Cradle to Cradle Certified catalogue, following the method of safe and circular redesign of products proposed by the Institute. The circular process of this material will not always begin in the same phase but depending on the state in which the material is found, it may begin in any of those that make up its cycle.
Figure 11.
Life cycle of rockwool. (Authors’ own work)
3.2.3. Cellular Polycarbonate
After investigating innumerable materials that could function correctly as translucent material for the windows of the emergency housing prototype, since they must be resistant, removable, light, easily accessible, and circular, it is concluded that to this day, there is not yet a material that is capable of fulfilling all these characteristics, since the field of translucent materials is limited.
Currently, the range of translucent materials is restricted to derivatives of polymers or glass, which are either difficult to maintain in a circular cycle or are too brittle and heavy. Because of this, it was decided to choose cellular polycarbonate as the translucent material for the prototype windows. This product is much stronger than glass, is more cost-effective, and weighs a lot less. In addition, it has excellent acoustic properties and can be easily installed by unqualified personnel [71].
The main disadvantage of this material lies in its circularity, because, although it is possible to be recycled, it requires very specific technologies. This makes recycling difficult, although it does not make it impossible. On the other hand, the use of this material will be very limited in the prototype designed and will allow the house to have ventilation capacity and lower energy consumption, making it an optimal material for this situation [72].
Below, Figure 12 shows that polycarbonate is a material that meets the characteristics and processes necessary to be included in the Cradle to Cradle Certified catalogue. The circular process of this material will not always begin in the same phase but depending on the state in which the material is found, it may begin in any of those that make up its cycle.
Figure 12.
Life cycle of cellular polycarbonate. (Authors’ own work)
3.2.4. Emergency Housing Prototype Design
After the investigation, it is concluded that emergency housing that responds correctly to the situation in which people find themselves at Subaşi camp (Turkey) will have the following key points: durability, ease and speed of transport, ease of storage and assembly, reduced manufacturing time, participation of the affected population, elevation above the ground, adaptability and flexibility, quality and comfort, safety and vulnerability, compliance with the Sphere Standards, sufficient interior space for daily activities, use of local and circular materials, and climatic adaptability.
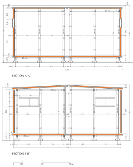
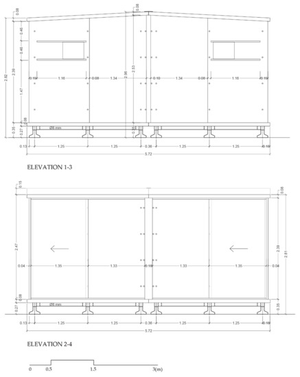
The prototype designed based on the criteria and precepts established in the previous points, which can be seen in plan and elevations in Figure 13 and whose planimetry developed to scale is found in Appendix B, initially consists of a 6 m2 base module, designed for a single person, with annexation capacity that allows a configuration of greater dimensions and adaptable to different uses and/or population groups.
Figure 13.
(a) Perspective of the prototype; (b) sectioned perspective of the prototype. (Authors’ own work)
These houses have a structure formed by tubular galvanized steel profiles that are anchored to the ground by means of a superficial foundation such as an EasyPAD. Its envelope is composed of sandwich panels with interior cladding of OSB panels, exterior natural wood cladding for exteriors from the Accoya group and rock wool insulation, as well as a natural wooden plank from the same Accoya group that will function as the base of the house. This exterior cladding allows the opening of gaps that will facilitate ventilation, the entry of natural light, and the passage to the interior of the house.
The openings of the house are solved by a sliding system with galvanized steel rails. The two window openings have a cellular polycarbonate panel on the inside that will allow light to pass through and filter the vision of the interior, and on the outside a wooden panel from the Accoya group that will block the entry of light and give total privacy to the interior spaces.
The interior divisions of this prototype, in the case of joining two or more modules, will be made of OSB panels that will serve to separate the night areas from the main room.
These modules are mainly intended to be used as housing in emergency situations, but due to their flexibility they can also be configured to function as buildings for common use such as schools, activity or bureaucratic centres, or, depending on the kind of emergency situation like pandemics or earthquakes, as field hospitals, vaccination centres, or even morgues. Additionally, using only the structure and the base piece, they can also be used as common outdoor spaces with customization capacity.
The prototype proposed is intended to be a universal solution that can be used in different locations where it may be needed, hence it has a culturally neutral design with the capacity for customization by its inhabitants. The neutrality of its design and the use of materials used globally allows all cultures to feel identified and comfortable with it.
3.2.5. Production Process
The prototype proposed in this research combines different materials in order to best adapt to the spatial, cultural, and economic needs of its users. Due to this, each material will have a different origin, although as close as possible to the current Subaşi settlement, which can be seen in Figure 14, in order to reduce the environmental impact of transport and optimize local opportunities.
Figure 14.
Origin of the materials of the emergency housing prototype. (Authors’ own work)
3.2.6. Prototype’s Lifespan
As mentioned above, these temporary housings should not become a permanent housing solution to which it is resorted automatically, but due to the long lifespan of the materials used in this prototype, these housings will be useful for a long period of time. Figure 15 details the different phases these accommodations will go through throughout their useful life, in order to apply the circular economy standards during their entire process.
Figure 15.
Lifespan of the emergency housing prototype. (Authors’ own work)
The life cycle of the prototypes is mainly divided into three phases: a first phase in which the residents participate with qualified personnel, the second coordinated by the users, and a third phase in which there is a change in use or location of the houses, carried out by residents with external support if required.
The first phase includes the arrival of the different components of the prototypes at the site, the teaching by qualified personnel to the first users of the construction skills necessary for the construction of the houses, the planning of the arrangement of the accommodation in the location and collaborative construction between residents and qualified staff. This phase will mainly serve to bring the housing construction system closer to its users in order to provide them with autonomy for the future.
The second phase, regulated only by the users, includes the personalization and interior planning of the houses, which will contribute to create personal and culturally appropriate spaces for the residents in which they feel comfortable developing their life until they get a permanent residence. In addition, in this phase the residents themselves will be the ones who determine when a change in the current planning is necessary, either due to the increase in demographics at the site or due to a need for a change in the current program. At this time the current residents will teach any new residents the construction skills they learned in the first phase so that they themselves can put new constructions into operation.
The third phase will come when a change of location is necessary, when the materials cannot continue to be used in that way or are required for other uses, either because this type of accommodation is no longer needed or because of the wear and tear of the materials over time. In the case in which the materials are not going to be used anymore, they will be recycled or reused in other uses so that their life cycle is infinite, and they can give rise to other products. If, on the other hand, these materials are going to continue to be used in the prototype, but in a different location, it will be decided to dismantle the houses that require it and transport their components to the new location to start the cycle again. In this case, phase one in which the assembly occurs jointly between qualified personnel and the users will be eliminated, starting directly at the second phase, since at this point, the residents already have the necessary skills to do it themselves.
3.3. Comparative Table between the Prototype and Other Case Studies
Already knowing the material and design characteristics of the prototype proposed, an exhaustive comparison was possible between the proposal and the different case studies already presented in Section 2.2. Analysis of contemporary emergency housing was carried out. This comparison evaluated the efficacy and the aptitudes of the prototype, assessing if all the design, functionality, habitability, and material requirements determined in the previous sections have been accomplished. As the previous analysis showed, despite the variety of case studies chosen, every prototype evaluated had important scarcities: they were either unable to be used as a rapid, easy, and functional emergency housing or the materials used for their construction had an important environmental impact.
Additionally, none of these case studies were closely committed to the United Nations Sustainable Development Goals of the 2030 Agenda: they failed to accomplish either equality among people, the protection of the planet, or the surety of prosperity.
The following figure, Table 2, shows the most important characteristics in an emergency home, assessing how the different prototypes respond to them and will confirm whether the proposed prototype meets all the requirements stablished in the previous sections.
Table 2.
Comparative table between the prototype and other case studies. (Authors’ own work)
As general conclusions of the analysis, it can be determined that the prototype proposed meets all the requirements established in the protocol for emergency housing. This prototype, as most of the case studies, has a flat packaging to facilitate its transport and the change of location and it is elevated above the ground, allowing its adaptation to terrains with unevenness and its protection against impervious terrain and meteorological agents that give rise to the deterioration of the soil. Moreover, most of the pre-existing prototypes use a system that allows easy and quick assembly by their users, without the need for tools, special nor qualified personnel. The new prototype has also this characteristic, allowing the assembly to be carried out by its users, who will simply need basic instructions and tools, which will be delivered together with the different pieces that define the volume.
The modular capacity of the design is undoubtedly a feature to highlight, as it allows different configurations, being able to function as different sizes housing according to the needs of its inhabitants, as buildings for common use such as schools, activity, or bureaucratic centres, or, depending on the requirements of the emergency situation, as field hospitals, vaccination centres, or even morgues. Additionally, using only the structure and the base piece, they can also be used as common outdoor spaces with customization capacity.
None of the cases studied met the minimum standards recommended in the Sphere Standards, betting mainly on designs with very small interior spaces and without divisions. In consequence, this characteristic of the prototype highlights its importance, since its users would be able not only to develop essential household and livelihood activities inside, but also, they would have a space to recover, to feel comfortable, without housing shortages.
The materiality aspect is another characteristic of the prototype to highlight, since just a few of these prototypes have recycling capacity and most of them use materials with a high environmental impact such as plastics and have a fairly low life expectancy. The materials chosen for the prototype have reuse and recycling capacity and are considered safe and sustainable products that are manufactured in accordance with circular economy creating a positive impact in the environment. The materials chosen are globally known, accessible, and available in areas close to Subaşi camp, facilitating and speeding up transport, reducing costs and its environmental impact. Thanks to the materials chosen, the life span of the prototype is unlimited, decreasing the amount of waste it generates and allowing several different families to own it throughout its useful life. This feature makes the prototype draw attention, since almost all the existing ones have a very short useful life.
Undoubtedly, the most striking aspect is that most are prototypes that claim to be universal, trying to solve at once the different climates in which emergency housing may be needed, without considering the climatic conditions of the place, resulting in these homes being uninhabitable in certain locations at certain times of the year. This is a big concern, so one of the priorities when designing the prototype was for it to be climate adaptable to different locations. Depending on the location where the emergency housing is needed, the thickness of the insulation material would be different, attending to the specific requirements of the location.
Although in terms of interior space there are some bigger pre-existing prototypes, it must not be forgotten that these are minimum habitats designed only for extraordinary and not permanent situations, so the design simply meets the minimum standards of habitability defined in the Sphere manual which defines a suitable surface for these circumstances.
The prototype proposed is intended to be a universal solution that can be used in different locations where it may be needed, hence it has a culturally neutral design with the capacity for customization by its inhabitants. The neutrality of its design and the use of materials used globally allows all cultures to feel identified and comfortable with it.
Consequently, this validates the previous established protocol and demonstrates the possibility of designing an environmentally correct protocol for future emergency situations, thus avoiding the precarious nature to which those in forced displacement are exposed.
4. Conclusions
The rise in forced displacement of people in recent years due to natural disasters, armed conflicts, and pandemics has favoured an increase in the number of temporary accommodations, which tend to have a short useful life. Added to this great problem is the linear economic system implemented in the world, which causes a high rate of waste. These two current issues have been addressed in this study, reaching the conclusion that the factors that characterize the emergency architecture can make this an example where issues around the sustainability factor are applied in a practical way.
The finished investigation leads to the identification of the key aspects to consider in an emergency situation. Firstly, the cause of the displacement must be identified, to respond to the minimum needs of comfort for refugees in the event of a catastrophe, understanding their needs, cultural and social traditions, and lifestyle as well, so they can gradually resume their lives. Secondly, identification of the minimum habitability conditions considering the Sphere Project Standards. These minimum standards try to provide protection and assistance to the affected population to ensure the basic conditions for life with dignity. Since nowadays there is no efficient universal housing prototype for emergencies, it becomes of great importance to perform an exhaustive analysis of contemporary emergency housing. This analysis identifies the defective aspects of these existing prototypes, which will help to design the novel prototype of the research in the most efficient way possible. Moreover, the characteristics of the housing must be adaptable to the location where it is needed to fulfil the minimum comfort and habitability conditions.
Subsequently, the circular economy criteria in emergency architecture have been considered. This was achieved by analysing the environmental impact of the current linear production system and how it can be improved by switching it to a circular one, as well as how to implement in the prototype materials whose production process is more sustainable. Finally, the sustainability criteria in the materials used was defined, following the Cradle-to-Cradle Products Innovation Institute standards. These standards ensure that materials are safe for humans and the environment, allow a circular economy through the design of products and processes, protect the environment, and respect human rights, contributing to a just and equitable society.
Once these questions have been addressed, the action protocol, which compiles the conclusions obtained at each stage, was developed. This protocol advocates for a prototype where its users would be able not only to develop essential household and livelihood activities inside, but would also have a space to recover, to feel secured and comfortable, without housing shortages, ensuring that living conditions are optimal and they can gradually resume their lives. The design of the prototype provides its inhabitants with independence, empowerment, and a sense of ownership. This eco-efficient design protocol establishes the basic premises in any emergency situation, thus avoiding the precarious nature to which those in forced displacement are exposed.
Finally, based on the previous protocol, this research presents a novel prototype that could be used as an alternative to current emergency housing, not only responding adequately to the minimum standards of habitability, but also doing so in an eco-efficient, environmentally responsible way, and promoting the SDGs and circular economy established in the 2030 Agenda. The proposed prototype not only solves the aspect of a rapid start-up of emergency housing in the location where they are needed, meeting minimum standards of habitability, and covering the needs that their users may have, but also providing eco-efficient and environmentally responsible solutions that help to close the life cycle of its materials, incorporating the prototype into a circular cycle that respects the environment and society. The prototype improves the quality of life of displaced people; allowing them to quickly return to a progressive normality and moving them away from unhealthy and vulnerable situations. In addition, this prototype contemplates the principles of regenerative sustainability, as it is a solution that provides benefits to its users and the environment, economically, socially, and environmentally. Resuming the research question: would it be possible to implement sustainability into emergency housing? It can be confirmed that the implementation of the circular economy in emergency housing is possible.
Once the effective behaviour of the fusion between emergency architecture and sustainable factors has been verified, the proposed prototype becomes the starting point to continue with this line of work in prototypes of existing emergency housing or in new designs that may arise.
Author Contributions
Conceptualization, P.P.-P. and P.M.-M.; methodology, P.P.-P. and P.M.-M.; validation, P.P.-P., P.M.-M. and C.L.; formal analysis, P.P.-P.; investigation, P.P.-P. and P.M.-M.; resources, P.P.-P.; data curation, P.P.-P. and P.M.-M.; writing—original draft preparation, P.P.-P. and P.M.-M.; writing—review and editing, P.P.-P. and P.M.-M.; visualization, P.P.-P.; supervision, P.M.-M. and C.L.; project administration, P.M.-M.; funding acquisition, P.M.-M. All authors have read and agreed to the published version of the manuscript.
Funding
This research has been funded by the research project art. 68/83 LOU ref. 4115/0632 thanks to GRUPO PUMA S.L Y PROARID GREEN S.L. The results of this work are part of a final degree research project in architecture carried out by the second author and directed by the first author which applies the knowledge acquired during the second research stay at the Experimental Production Centre of the Faculty of Architecture and Urbanism, University of Buenos Aires, Argentina, developed by the first author of the article and as results of the same. Therefore, it represents the transfer of knowledge acquired in the Experimental Centre of Production of the University of Buenos Aires, Argentina in the field work carried out in situ at the Subaşi refugee camp in Smyrna, Turkey.
Institutional Review Board Statement
Not applicable.
Informed Consent Statement
Not applicable.
Data Availability Statement
The data collected are original and specific to the research and have not been previously published.
Conflicts of Interest
The authors declare no conflict of interest.
Appendix A
Table A1.
Design protocol for emergency housing.
Table A1.
Design protocol for emergency housing.
| DESIGN PROTOCOL FOR EMERGENCY HOUSING | |
|---|---|
| Functionality | |
| □ | Easiness and rapidity of transport, in order to considerably reduce the environmental impact of transport. |
| □ | Easiness of storage and assembly, with flat packaging, standard measurements and ease of assembly by the users themselves. |
| □ | Reduced manufacturing time, so that the response to the need is as fast as possible. |
| □ | Sufficient interior space for daily activities, generating spaces that allow people to recover, offering them privacy and independence. |
| □ | Security and vulnerability, ensuring the safety, dignity and humans rights of its users, guaranteeing the protection of their freedom and physical safety. |
| □ | Elevated above the ground, thus generating healthier spaces preventing water from penetrating it as much as possible and allowing its adaptation to uneven terrain. |
| □ | Adaptability and flexibility, to adapt to the different needs and uses of the field in which they are located and of the users who inhabit it. |
| □ | Quality and comfort, ensuring that living conditions are optimal. |
| □ | Compliance with the Sphere Standards, as they will guarantee compliance with the minimum habitability standards: |
| □ | Assess and analyse the housing and settlement needs of the affected population. |
| □ | Draw up a response plan for accommodation and settlements in coordination with the competent authorities, with the participation of organizations and the affected population. |
| □ | Apply local planning practices and adapt to the type of disaster or crisis, the dangers it entails and the impact they have on the affected population. |
| □ | Regularly ensure that homes or settlements are located at a safe distance from any real or eventual threat and that existing risks are minimized. |
| □ | Ensure that there is safe access to all accommodation and human settlements, as well as essential services. |
| □ | Involve the affected population in planning for provisional community settlements in consultation with families, neighbours, and community groups, as appropriate. |
| □ | Humanitarian response plans must ensure that temporary accommodation does not automatically become a permanent housing solution. |
| □ | Ensure that sufficient floor space and adequate firebreaks are available in planned temporary camps or camps set up by displaced people. |
| □ | Minimize risks related to disease vectors. |
| □ | Ensure that every affected family has a covered living space. |
| □ | Ensure safe separations and privacy between sexes, different age groups and different families, as appropriate, within the same household. |
| □ | Ensure that essential household and livelihood activities can be carried out within the covered living space or in an adjacent area. |
| □ | All people affected by the disaster have a minimum covered area of 3,5 m2 per person that respects people’s privacy and minimizes overcrowding. |
| □ | The height of the accommodation, from floor to ceiling, must be a minimum of two meters at its highest point. |
| □ | It is necessary to offer the possibility of installing subdivisions within individual dwellings. |
| □ | Accommodation should be oriented and designed in such a way that ventilation is optimized, and direct sun exposure is minimized. |
| □ | The accommodation must be of light construction, with adequate insulation according to its location. |
| Materiality | |
| □ | Participation with the population, to provide them with independence, empowerment, and a sense of ownership. |
| □ | Durability, to allow for a longer lifespan. |
| □ | Quality and comfort, ensuring that living conditions are optimal. |
| □ | Adaptability and flexibility, to adapt to the different needs and uses of the field in which they are located and of the users who inhabit it. |
| □ | Compliance with the Sphere Standards, as they will guarantee compliance with the minimum habitability standards: |
| □ | Evaluate the specific climatic conditions for each season to offer optimal thermal comfort, good ventilation, and protection. |
| □ | Promote the use of housing solutions and materials that are familiar to the affected population, environmentally sustainable and, where possible, that are culturally and socially acceptable. |
| □ | Enable the maintenance and the improvement of the housing using locally available tools and resources. |
| □ | Involve the affected population, local construction professionals, and competent authorities to agree on safe construction practices, materials, and technical knowledge necessary to optimize livelihood opportunities. |
| □ | Minimize structural risks and vulnerabilities by meeting appropriate construction and material specifications. |
| □ | Arrange materials supply, labour hiring, technical assistance, and regulatory authorizations, guaranteeing the appropriate bidding, procurement and construction processes. |
| □ | Assess and analyse the negative effects of the disaster on the environment and determine environmental risks and vulnerabilities. |
| □ | Consider the degree of availability of local natural resources when planning the temporary or permanent settlement of the affected population. |
| □ | Minimize the negative effects on local environmental resources that can be caused by the production and supply of building materials and the construction process. |
| □ | Preserve trees and other vegetation, where possible, to increase water retention, minimize erosion, and provide shade. |
| □ | Re-establish the place of the provisional community settlements in the state they originally were once they are no longer needed. |
| □ | Compliance with the standards of the Cradle to Cradle Products Innovation Institute, which will guarantee the use of safer and more sustainable products following the criteria of the circular economy: |
| □ | Ensure that products are made with chemicals that are as safe as possible for humans and the environment. |
| □ | Eliminate waste as much as possible, helping to ensure that products remain in perpetual cycles of use and reuse. |
| □ | Guarantee the manufacture of products using renewable energies, so that the impact of greenhouse gases produced by the manufacture of the product is reduced or eliminated. |
| □ | Guarantee the correct use of water in the manufacture of products. |
| □ | Design business operations that honour all the people and natural systems affected by the manufacture of a product. |
| □ | Use of local materials, to reduce the environmental impact, and constructive solutions and materials that are familiar to the affected population and as far as possible, that are culturally and socially acceptable to them. |
| □ | Use of circular and sustainable materials, from the environmental point of view, that allow the dismantling and relocation of the system, facilitating its reuse and recycling, making its useful life unlimited, and facilitating its economic viability. |
| □ | Climate adaptability, so that the prototype can function optimally in different locations that require emergency housing. |
Appendix B
Figure A1.
Emergency housing prototype: Elevations and floor plans.
Figure A2.
Emergency housing prototype: Sections.

Figure A3.
Emergency housing prototype: Constructive details.
Figure A4.
Emergency housing prototype configuration: Elevations.
Figure A5.
Emergency housing prototype configuration: Ground plan.
Figure A6.
Emergency housing prototype configuration: Roof plan.
Figure A7.
Emergency housing prototype configuration: Sections.
References
- ONU. Cerca de 1,35 Millones de Personas Murieron en Los Últimos 20 Años Debido a Desastres Naturales. Available online: https://news.un.org/es/story/2016/10/1366641 (accessed on 20 March 2020).
- Internal Displacement Monitoring Centre. Global Report on Internal Displacement 2021. Available online: https://www.internal-displacement.org/sites/default/files/publications/documents/grid2021_idmc.pdf (accessed on 18 July 2021).
- Comisión Española De Ayuda Al Refugiado. Situación Refugiados. Available online: https://www.cear.es/situacion-refugiados/ (accessed on 22 March 2020).
- ACNUR. Tendencias Globales. Desplazamiento Forzado en 2020. Available online: https://www.acnur.org/60cbddfd4 (accessed on 24 June 2021).
- ONU. Gestión del Riesgo de Desastres. Available online: https://www.un-spider.org/es/riesgos-y-desastres/gestion-del-riesgo-de-desastres (accessed on 10 April 2020).
- ONU. Una Cifra Récord de Personas Necesitará Ayuda Humanitaria en 2020. Available online: https://news.un.org/es/story/2019/12/1466201 (accessed on 29 March 2020).
- Universidad de Sevilla. La COVID-19 Amplifica las Desigualdades que Sufren las Personas Migrantes y Refugiadas a Nivel Mundial. 2021. Available online: https://investigacion.us.es/noticias/4685 (accessed on 15 March 2021).
- El País. MORIA, la Cruel Bienvenida de Europa a los Refugiados. 2019. Available online: https://elpais.com/internacional/2019/11/26/actualidad/1574777275_996732.html (accessed on 29 March 2020).
- Muñiz Núñez, P. Viviendas Prefabricadas en Procesos de Alojamiento de Transición para Refugiados y Desplazados Internos: Haití, Japón, Siria, 2010–2016; Repositorio Universidade Coruña: A Coruña, Spain, 2017; Available online: http://hdl.handle.net/2183/19262 (accessed on 22 June 2020).
- López, J.M.; Gamboa, L.C. Participatory and sustainable emergency settlements: New prototypes. Int. J. Technol. Knowl. Soc. 2013, 9, 49–65. [Google Scholar] [CrossRef]
- Rodríguez, S. ¿Qué Son los Campos de Refugiados? ACNUR. 2019. Available online: https://eacnur.org/blog/que-son-los-campos-de-refugiados-tc_alt45664n_o_pstn_o_pst/ (accessed on 6 March 2020).
- Fosas, D.; Albadra, D.; Natarajan, S.; Coley, D.A. Refugee housing through cyclic design. Archit. Sci. Rev. 2018, 61, 327–337. [Google Scholar] [CrossRef]
- Gordillo Bedoya, F. Hábitat Transitorio y Vivienda para Emergencias. In Revista Tábula Rasa; Leonardo Montenegro M: Bogotá, Colombia, 2004; Volume 2, pp. 145–166. Available online: http://www.revistatabularasa.org/numero-2/gordillo.pdf (accessed on 25 July 2020).
- Tas, S.; Erdal, M.; Aruntas, H.Y. Refugee problems in Turkey and its evaluation in the context of sustainability. Lect. Notes Civ. Eng. 2018, 7, 306–320. [Google Scholar] [CrossRef]
- Paidakaki, A.; De Becker, R.; De Reu, Y.; Viaene, F.; Elnaschie, S.; Van den Broeck, P. How can community architects build socially resilient refugee camps? Lessons from the Office of Displaced Designers in Lesvos, Greece. Archnet-IJAR 2021. [Google Scholar] [CrossRef]
- Palero, J.S.; González Chipont, M.E. La vivienda ante emergencias. In VI Jornadas de Investigación. Encuentro y Reflexión: Investigación, Enseñanza y Transferencia: Patrimonio Intelectual; Amanda Pollet: Córdoba, Argentina, 2017; pp. 255–265. Available online: https://rdu.unc.edu.ar/bitstream/handle/11086/5753/2.13.%20La%20vivienda%20ante%20emergencias.pdf?sequence=30&isAllowed=yhttps://rdu.unc.edu.ar/bitstream/handle/11086/5753/2.13.%20La%20vivien%C2%ACda%20ante%20emergencias.pdf?sequence=30&isAllowed=y (accessed on 15 September 2020).
- Ballent, A.; Liernur, J. La casa y la multitud: Vivienda, política y cultura en la Argentina moderna. In Estudios Sociales del Estado; FCE: Buenos Aires, Argentina, 2014; Volume 1, pp. 267–269. [Google Scholar]
- Davis, I. Arquitectura de Emergencia, 1st ed.; Gustavo Gili: Barcelona, Spain, 1980. [Google Scholar]
- UNEP. Energy Efficiency for Buildings. Available online: http://www.euenergycentre.org/images/unep%20info%20sheet%20-%20ee%20buildings.pdf (accessed on 25 March 2021).
- Hendriks, C.; Pietersen, H. Sustainable Raw Materials: Construction and Demolition; RILEM: Cachan, France, 2000; Available online: https://books.google.es/books?hl=es&lr=&id=QsIxakWiIFkC&oi=fnd&pg=PR9&dq=Sustainable+raw+materials:+Construction+and+demolition+waste.&ots=jsIP17MndD&sig=l8YC9mtg3t9APYTjX6NZSeqK0P0#v=onepage&q=Sustainable%20raw%20materials%3A%20Construction%20and%20demol (accessed on 25 July 2020).
- Osmani, M.; Villoria-Sáez, P. Chapter 19—Current and Emerging Construction Waste Management Status, Trends and Approaches. Waste 2019, 2, 365–380. [Google Scholar] [CrossRef]
- Maia Guzenski, F. Impactos Ambientales del Sector de la Construcción. Master’s Thesis, Polytechnic University of Madrid, Madrid, Spain, 2012. [Google Scholar]
- La Arquitectura en la Economía Circular. Cómo Diseñar de Manera Circular. Fundación Arquia. 2016. Available online: https://blogfundacion.arquia.es/2016/11/la-arquitectura-en-la-economia-circular-como-disenar-de-manera-circular/ (accessed on 20 January 2021).
- Mercader-Moyano, P. Cuantificación de los Recursos Consumidos y Emisiones de CO2 Producidas en las Construcciones de Andalucía y sus Implicaciones en el Protocolo de Kioto. Ph.D. Thesis, University of Seville, Seville, Spain, 2010. [Google Scholar]
- Internal Market, Industry, Entrepreneurship and SMEs. Buildings and Construction. Available online: https://ec.europa.eu/growth/industry/sustainability/built-environment_en (accessed on 6 April 2021).
- European Commission. A New Circular Economy Action Plan for a Cleaner and More Competitive Europe. Available online: https://eur-lex.europa.eu/resource.html?uri=cellar:9903b325-6388-11ea-b735-01aa75ed71a1.0017.02/DOC_1&format=PDF (accessed on 1 March 2021).
- Gobierno de España, Ministerio para la Transición Ecológica y el Reto Demográfico. Estrategia Española de Economía Circular. Available online: https://www.miteco.gob.es/es/calidad-y-evaluacion-ambiental/temas/economia-circular/estrategia/ (accessed on 8 March 2021).
- Climent Salvador, A. Economía Circular Aplicada a la Arquitectura. Espejismo o Realidad. Ph.D. Thesis, Polytechnic University of Valencia, Valencia, Spain, 2018. [Google Scholar]
- iResiduo. La Unión Europea pondrá Fin a la Obsolescencia Programada Con su Proyecto de Economía Circular. 2020. Available online: https://iresiduo.com/noticias/comision-europea/20/03/12/union-europea-pondra-fin-obsolescencia-programada-proyecto (accessed on 20 March 2020).
- Gobierno de España, Ministerio de Agricultura, Alimentación y Medio Ambiente. Plan Estatal Marco de Gestión de Residuos (PEMAR) 2016–2022. Available online: https://www.miteco.gob.es/es/calidad-y-evaluacion-ambiental/planes-y-estrategias/pemaraprobado6noviembrecondae_tcm30-170428.pdf (accessed on 1 February 2021).
- Federación Española de la Recuperación y el Reciclaje (FER). El Plan Estatal Marco de Gestión de Residuos. Objetivos y Principales Características. Available online: https://www.recuperacion.org/el-plan-estatal-marco-de-gestion-de-residuos-objetivos-y-principales-caracteristicas/ (accessed on 1 February 2021).
- Comisión Europea. Green Deal: El Camino Para una Europa Neutra Climáticamente. Available online: https://ec.europa.eu/spain/news/20191212_Europe-climate-neutral-2050_es (accessed on 23 May 2020).
- D’Adamo, I. Adopting a Circular Economy: Current Practices and Future Perspectives. Soc. Sci. 2019, 8, 328. [Google Scholar] [CrossRef] [Green Version]
- Rahla, K.M.; Mateus, R.; Bragança, L. Implementing Circular Economy Strategies in Buildings—From Theory to Practice. Appl. Syst. Innov. 2021, 4, 26. [Google Scholar] [CrossRef]
- Bagheri, M.; Esfilar, R.; Golchi, M.; Kennedy, C. Towards a circular economy: A comprehensive study of higher heat values and emission potential of various municipal solid wastes. Sustain. Cities Soc. 2020, 101, 210–221. [Google Scholar] [CrossRef] [PubMed]
- Shi, Y.; Zhai, G.; Xu, L.; Zhu, Q.; Deng, J. Planning Emergency Shelters for Urban Disasters: A Multi-Level Location–Allocation Modeling Approach. Sustainability 2019, 11, 4285. [Google Scholar] [CrossRef] [Green Version]
- Maffei, R. Sheltering in Emergency: Processes and Products. Ph.D. Thesis, Polytechnic University of Milan, Milan, Italy, 2013. [Google Scholar]
- Bachiller Alva Sánchez, P.A. Gestión de Refugios con Estructuras Tensegrity en caso de Desastres Naturales, Huaicos en el Distrito de Chosica—Lima 2017. Ph.D. Thesis, Ricardo Palma University, Lima, Peru, 2019. [Google Scholar]
- Fondo Monetario Internacional. Actualización de las Perspectivas de la Economía Mundial. Available online: https://www.imf.org/es/Publications/WEO/Issues/2020/06/24/WEOUpdateJune2020 (accessed on 7 November 2020).
- Banco Mundial. Global Economic Prospects. Available online: https://www.bancomundial.org/es/publication/global-economic-prospects (accessed on 7 November 2020).
- ACNUR. El Proyecto Esfera: Carta Humanitaria y Normas Mínimas para la Respuesta Humanitaria. Available online: https://www.acnur.org/fileadmin/Documentos/Publicaciones/2011/8206.pdf?view=1 (accessed on 14 April 2021).
- UNISDR. National Disaster Risk Assessment. Available online: https://www.unisdr.org/files/52828_nationaldisasterriskassessmentwiagu.pdf (accessed on 29 June 2021).
- ACNUR Comité Español. ACNUR e IKEA Idean Nuevos Tipos de Casas en Los Campos de Refugiados. Available online: https://eacnur.org/blog/acnur-e-ikea-idean-nuevos-tipos-casas-los-campos-refugiados/ (accessed on 28 April 2020).
- ACNUR. Family Tent for Cold Weather with Fire Retardant. Available online: https://cms.emergency.unhcr.org/documents/11982/57181/Family+Tent/c27ba67d-21cd-4d72-b7e7-3fc20bb086f6 (accessed on 22 April 2020).
- ACNUR. Shelter Design Catalogue. Available online: https://cms.emergency.unhcr.org/documents/11982/57181/Shelter+Design+%20Catalogue+January+2016/a891fdb2-4ef9-42d9-bf0f-c12002b3652e (accessed on 22 April 2020).
- Plataforma Arquitectura. Fundación IKEA Diseña Vivienda de Emergencia. Available online: https://www.plataformaarquitectura.cl/cl/626467/fundacion-ikea-disena-vivienda-de-emergencia (accessed on 22 April 2020).
- The Hex House. Available online: http://www.hex-house.com/#contact (accessed on 22 April 2020).
- Dezeen. Architects for Society Designs Low-Cost Hexagonal Shelters for Refugees. Available online: https://www.dezeen.com/2016/04/14/architects-for-society-low-cost-hexagonal-shelter-housing-refugees-crisis-humanitarian-architecture/ (accessed on 22 April 2020).
- El Definido. Cmax System: El Diseño que Revolucionó la Vivienda de Emergencia. Available online: https://www.eldefinido.cl/actualidad/mundo/4857/Cmax-System-el-diseno-que-revoluciono-la-vivienda-de-emergencia/ (accessed on 24 April 2020).
- Cmax System. Available online: https://cmaxsystem.com/ (accessed on 24 April 2020).
- Plataforma Arquitectura. Cmax System: Argentino llama la Atención de la ONU con un Refugio Móvil para Enfrentar Desastres Naturales. Available online: https://www.plataformaarquitectura.cl/cl/02-268869/cmax-system-argentino-llama-la-atencion-de-la-onu-con-un-refugio-movil-para-enfrentar-desastres-naturales (accessed on 22 April 2020).
- Beta Architecture. Módulos de Vivienda de Emergencia Desplegables. Available online: http://www.beta-architecture.com/modulos-de-vivienda-de-emergencia-desplegables-gaston-saboulard-federico-ortiz/ (accessed on 24 April 2020).
- Blog Tuvie. Telescopic Tent: Modular Emergency Tent Made of Elastic Waterproof Nylon material. Available online: http://www.tuvie.com/telescopic-tent-modular-emergency-tent-made-of-elastic-waterproof-nylon-material/ (accessed on 24 April 2020).
- Afasia Archzine. 79 Takk. Available online: http://afasiaarchzine.com/2013/08/79-takk/ (accessed on 24 April 2020).
- Revista Técnica de Medio Ambiente. La Comisión Europea presenta el nuevo Plan de Acción de Economía Circular. Available online: https://www.retema.es/noticia/la-comision-europea-presenta-el-nuevo-plan-de-accion-de-economia-circular-i7HbZ (accessed on 20 April 2020).
- Gobierno de España, Ministerio para la Transición Ecológica y el Reto Demográfico. Pacto por una economía circular: El compromiso de los agentes económicos y sociales 2018–2020. Available online: https://www.miteco.gob.es/es/calidad-y-evaluacion-ambiental/temas/economia-circular/170911pacto_ec_def_tcm30-425902.pdf (accessed on 20 April 2020).
- Mercader-Moyano, P.; Esquivias, P.M. Decarbonization and Circular Economy in the Sustainable Development and Renovation of Buildings and Neighbourhoods. Sustainability 2020, 12, 7914. [Google Scholar] [CrossRef]
- Gobierno de España, Ministerio de Derechos Sociales y Agenda 2030. Objetivos de Desarrollo Sostenibles. Available online: https://www.agenda2030.gob.es/objetivos/home.htm (accessed on 1 February 2021).
- Cradle to Cradle Products Innovation Institute. What Is Cradle to Cradle Certified™? Available online: http://www.c2ccertified.org/get-certified/product-certification (accessed on 10 August 2020).
- The European Portal for Energy Efficiency in Buildings. From Restorative to Regenerative Sustainability: State of Art and Visions for Regenerative Heritage. Available online: https://www.buildup.eu/en/news/restorative-regenerative-sustainability-state-art-and-visions-regenerative-heritage (accessed on 2 February 2021).
- The Circular Design Guide. Materials Journey Mapping. Available online: https://www.circulardesignguide.com/post/journey-mapping (accessed on 18 August 2020).
- Asociación Técnica Española de Galvanización. El Galvanizado ES Economía Circular. Available online: https://www.ateg.es/blog/el-galvanizado-es-economia-circular (accessed on 10 August 2020).
- Obras Urbanas. Renovables e Internacionalización de la Construcción Impulsan el Sector del Acero Galvanizado. Available online: https://www.obrasurbanas.es/renovables-acero-galvanizado/ (accessed on 12 August 2020).
- Forestal Maderera Luis Cuesta, S.L. La Madera es un Excelente Aislante Térmico. Available online: https://www.forestalmaderera.com/la-madera-excelente-aislante-termico/#:~:text=La%20raz%C3%B3n%20por%20la%20cual,del%20calor%20y%20la%20electricidad (accessed on 15 August 2020).
- LinkedIn. La Madera, Clave en la Economía Circular. Available online: https://es.linkedin.com/pulse/la-madera-clave-en-econom%C3%ADa-circular-rebeca-fern%C3%A1ndez-farp%C3%B3n (accessed on 15 August 2020).
- Sonae Arauco. Respetar el Medio Ambiente Forma Parte de Nuestra Naturaleza. Available online: https://www.sonaearauco.com/es/empresa/sostenibilidad-y-certificaciones_2458.html (accessed on 15 August 2020).
- Accoya. Unrivalled: Benefits of Accoya. Available online: https://www.accoya.com/why-accoya/benefits/ (accessed on 17 August 2020).
- Revista Circle. Lana de Roca, ¿el Nuevo Material Sostenible? Available online: https://www.revistacircle.com/2019/09/13/lana-de-roca-el-nuevo-material-sostenible/ (accessed on 15 August 2020).
- Rockwool. Las 7 Fortalezas de la Roca. Available online: https://cdn01.rockwool.es/siteassets/rw-es/herramientas/biblioteca-de-documentos/el-grupo-rockwool/7-fortalezas-de-la-roca_es.pdf?f=20181210134413 (accessed on 15 August 2020).
- Rockwool. Informe de Sostenibilidad 2019: Construidos para Durar. Available online: https://www.rockwool.es/nuestra-vision/sostenibilidad-y-circularidad/economia-circular/ (accessed on 15 August 2020).
- Houzz. Policarbonato: Una Alternativa Rentable al Cristal. Available online: https://www.houzz.es/revista/policarbonato-una-alternativa-rentable-al-cristal-stsetivw-vs~52517686 (accessed on 15 August 2020).
- Ecoticias. Policarbonato. Available online: https://www.ecoticias.com/residuos-reciclaje/21346/noticias-de-hidrogeno-biocarburantes-ecocarburantes-etanol-biodiesel-biomasa-biogas-aceite-reciclado-algas-biometanizacion-compost-medio-medio-ambiente-medioambiente-medioambiental-renovables-residuos-rec (accessed on 15 August 2020).
Publisher’s Note: MDPI stays neutral with regard to jurisdictional claims in published maps and institutional affiliations. |
© 2021 by the authors. Licensee MDPI, Basel, Switzerland. This article is an open access article distributed under the terms and conditions of the Creative Commons Attribution (CC BY) license (https://creativecommons.org/licenses/by/4.0/).











