Analysis of Rotational Stiffness of the Timber Frame Connection
Abstract
1. Introduction
2. Materials and Methods
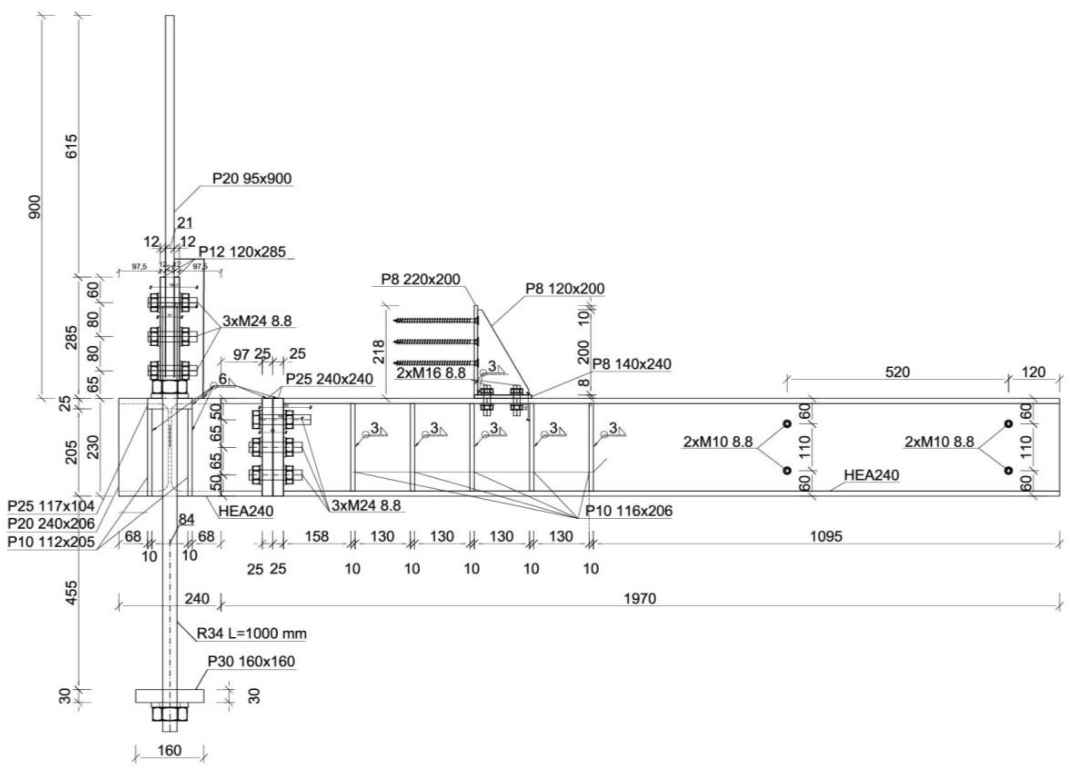
2.1. Description of Construction and Geometry
2.2. Experimental Measurement
2.2.1. Description of the Test Machine
2.2.2. Description of the Frame Connection Loading
2.3. Analytical Calculation of Frame Connection Rotational Stiffness
2.3.1. Calculation of Translational Stiffness
- ρm
- is the average value of density of the connected timber member;
- d
- is the fastener diameter.
- le
- is the effective length of screw penetration;
- d
- is the screw diameter.
- n
- is the number of fasteners;
- Ku
- is the translational stiffness of the fastener (3).
2.3.2. Calculation of Rotational Stiffness
2.4. Numerical Model
3. Results
3.1. Determination of Rotational Stiffness of the Connection
3.2. Determination of Load Capacity of the Connection
4. Discussion
5. Conclusions
Author Contributions
Funding
Acknowledgments
Conflicts of Interest
References
- Požgaj, A.; Kürjatko, S. Wood properties of spruce from forests affected by pollution in Czechoslovakia. IAWA J. 1986, 7, 405–410. [Google Scholar] [CrossRef]
- Widmann, R.; Fernandez-Cabo, J.L.; Steiger, R. Mechanical properties of thermally modified beech timber for structural purposes. Eur. J. Wood Wood Prod. 2012, 70, 775–784. [Google Scholar] [CrossRef]
- Gao, S.; Xu, M.; Guo, N.; Zhang, Y. Mechanical properties of glued-laminated timber with different assembly patterns. Adv. Civ. Eng. 2019. [Google Scholar] [CrossRef]
- Sabun, L.B.; Florov, R.S.; Zinov’ev, V.E.; Kodes, I.S. The physical and mechanical properties of structural steels. Met. Sci. Heat Treat. 1972, 14, 161–164. [Google Scholar] [CrossRef]
- Gorkunov, E.S.; Grachev, S.V.; Smirnov, S.V.; Somova, V.M.; Zadvorkin, S.M.; Kar’kina, L.E. Relation of physical-mechanical properties to the structural condition of severely deformed patented carbon steels at drawing. Russ. J. Nondestruct. Test. 2005, 41, 65–79. [Google Scholar] [CrossRef]
- Karpash, O.M.; Dotsenko, Y.R.; Karpash, M.O.; Vasylyk, A.V. Resistivity as an informative parameter for evaluation of actual physical and mechanical properties of structural steels. Metallofiz. I Noveishie Tekhnologii 2008, 30, 213–219. [Google Scholar]
- Sajid, H.U.; Naik, D.L.; Kiran, R. Microstructure-mechanical property relationships for post-fire structural steels. J. Mater. Civ. Eng. 2020, 32. [Google Scholar] [CrossRef]
- Zhang, C.; Jia, B.; Wang, J. Influence of artificial cooling methods on post-fire mechanical properties of Q355 structural steel. Constr. Build. Mater. 2020, 252. [Google Scholar] [CrossRef]
- Yaremchuk, L.; Olyanyshen, T.; Hogaboam, L. Selection of coating materials for wood finishing based on a hierarchical analysis method of their technological, economic and ecological criteria. Int. J. Energy Technol. Policy 2016, 12, 295–311. [Google Scholar] [CrossRef]
- Lindfors, N.C.; Salo, J. New ecological wood–plastic composite materials for scaphoid-type casting: Material properties and clinical evaluation. Hand Ther. 2014, 19, 67–72. [Google Scholar] [CrossRef]
- Jorissen, A.J.M.; Leijten, A.J.M. Tall timber buildings in The Netherlands. Struct. Eng. Int. J. Int. Assoc. Bridge Struct. Eng. 2008, 18, 133–136. [Google Scholar] [CrossRef]
- Leijten, A.J.M.; Brandon, D. Advances in moment transfering dvw reinforced timber connections—Analysis and experimental verification, part 1. Constr. Build. Mater. 2013, 43, 614–622. [Google Scholar] [CrossRef]
- Aejaz, S.A.; Dar, A.R.; Bhat, J.A. Numerical study on the nonlinear behavior of full-scale timber framed joints. Pract. Period. Struct. Des. Constr. 2021, 26. [Google Scholar] [CrossRef]
- Kasal, B.; Pospisil, S.; Jirovsky, I.; Heiduschke, A.; Drdacky, M.; Haller, P. Seismic performance of laminated timber frames with fiber-reinforced joints. Earthq. Eng. Struct. Dyn. 2004, 33, 633–646. [Google Scholar] [CrossRef]
- Chen, Z.; Popovski, M. Connection and system ductility relationship for braced timber frames. J. Struct. Eng. (United States) 2020, 146. [Google Scholar] [CrossRef]
- Aruova, L.B.; Ospanova, Z.N.; Aruov, B.B.; Alibekova, N.T.; Shashpan, Z.A.; Kyrgizbaev, A.T. Cyclic tests of joints of glued wooden structures. In IOP Conference Series: Materials Science and Engineering, Proceedings of the 2020 The fifth International Conference on Building Materials and Construction (ICBMC 2020), Tokyo, Japan, 26–29 February 2020; IOP Publishing: Bristol, UK, 2020; Volume 829. [Google Scholar] [CrossRef]
- Bachtiar, E.V.; Clerc, G.; Brunner, A.J.; Kaliske, M.; Niemz, P. Static and dynamic tensile shear test of glued lap wooden joint with four different types of adhesives. Holzforschung 2017, 71, 391–396. [Google Scholar] [CrossRef]
- Jung, K.; Murakami, S.; Kitamori, A.; Chang, W.-S.; Komatsu, K. Improvement of glued-in-rod joint system using compressed wooden dowel. Holzforschung 2010, 64, 799–804. [Google Scholar] [CrossRef]
- Candelas-Gutierrez, A. The power of geometric relationships in mudéjar timber roof frames. Nexus Netw. J. 2017, 19, 521–545. [Google Scholar] [CrossRef]
- Blaß, H.J.; Schädle, P. Ductility aspects of reinforced and non-reinforced timber joints. Eng. Struct. 2011, 33, 3018–3026. [Google Scholar] [CrossRef]
- Cajka, R.; Burkovic, K. Coupled timber-concrete ceiling using bonded shear connectors. Adv. Mater. Res. 2013, 772, 130–135. [Google Scholar] [CrossRef]
- Danková, J.; Mec, P.; Safrata, J. Experimental investigation and performance of timber-concrete composite floor structure with non-metallic connection system. Eng. Struct. 2019, 193, 207–218. [Google Scholar] [CrossRef]
- Aejaza, S.A.; Dar, A.R.; Bhatb, J.A. Structural performance of timber frame joints-full scale tests and numerical validation. Struct. Eng. Mech. 2020, 74, 457–470. [Google Scholar] [CrossRef]
- Bemessung Nach Eurocode 5. Holz—Kurier 2001, 56, 15.
- Winter, S.; Dietsch, P. Eurocode 5—Design of timber structures. [Eurocode 5—Bemessung und konstruktion von holzbauwerken]; Bauingenieur: Fellbach, Germany, 2011; pp. 348–355. [Google Scholar]
- Kleinhenz, M.; Winter, S.; Dietsch, P. Eurocode 5—A halftime summary of the revision process. In Presented at the WCTE 2016—Proceedings of the World Conference on Timber Engineering, Vienna, Austria, 22–25 August 2016. [Google Scholar]
- Linear Path Sensor [online]. [cit. 2020-09-25]. Available online: https://www.gefran.sk/sk/snimace/linearne-snimace-polohy-potenciometricke/linearne-potenciometricke-snimace-drahy/Linearny-snimac-polohy-Gefran-LT67.html (accessed on 25 September 2020).
- ČSN EN 1995-1-1. Eurokód 5: Navrhovaní Dřevěných Konstrukcí – Část 1-1 Obecná Pravidla – Společná Pravidla a Pravidla Pro Pozemní Stavby; ÚNMZ: Praha, Czech Republic, 2006. [Google Scholar]
- Dřevěné Konstrukce Podle Eurokódu 5, STEP 1: Navrhování a Konstrukční Materiály. Přeložil Bohumil Koželouh; KODR: Zlín, Czech Republic, 2004; ISBN 80-238-2620-4.
- Dřevěné Konstrukce Podle Eurokódu 5, STEP 2: Navrhování Detailů a Nosných Systémů. Přeložil Bohumil Kožouh; Informační centrum ČKAIT: Praha, Czech Republic, 2004; ISBN 80-86769-13-5.
















| Method of Calculation | Force Causing Collapse F [kN] | Bending Moment Causing Collapse M [kNm] | Multiplier M |
|---|---|---|---|
| Standard EC5 calculation | 149.10 | 223.65 | - |
| ANSYS-linear calculation | 308.89 | 469.51 | 2.09 |
| ANSYS-nonlinear calculation | 157.94 | 240.07 | 1.07 |
| Experimental test | 230.30 | 349.95 | 1.56 |
Publisher’s Note: MDPI stays neutral with regard to jurisdictional claims in published maps and institutional affiliations. |
© 2020 by the authors. Licensee MDPI, Basel, Switzerland. This article is an open access article distributed under the terms and conditions of the Creative Commons Attribution (CC BY) license (http://creativecommons.org/licenses/by/4.0/).
Share and Cite
Johanides, M.; Kubíncová, L.; Mikolášek, D.; Lokaj, A.; Sucharda, O.; Mynarčík, P. Analysis of Rotational Stiffness of the Timber Frame Connection. Sustainability 2021, 13, 156. https://doi.org/10.3390/su13010156
Johanides M, Kubíncová L, Mikolášek D, Lokaj A, Sucharda O, Mynarčík P. Analysis of Rotational Stiffness of the Timber Frame Connection. Sustainability. 2021; 13(1):156. https://doi.org/10.3390/su13010156
Chicago/Turabian StyleJohanides, Marek, Lenka Kubíncová, David Mikolášek, Antonín Lokaj, Oldřich Sucharda, and Petr Mynarčík. 2021. "Analysis of Rotational Stiffness of the Timber Frame Connection" Sustainability 13, no. 1: 156. https://doi.org/10.3390/su13010156
APA StyleJohanides, M., Kubíncová, L., Mikolášek, D., Lokaj, A., Sucharda, O., & Mynarčík, P. (2021). Analysis of Rotational Stiffness of the Timber Frame Connection. Sustainability, 13(1), 156. https://doi.org/10.3390/su13010156

