Revising Seismic Vulnerability of Bridges Based on Bayesian Updating Method to Evaluate Traffic Capacity of Bridges
Abstract
1. Introduction
2. Seismic Vulnerability Analysis of Bridge
3. Bayesian Parameter Estimation Method
3.1. Bayesian Method Principle
3.2. Parameter Estimation Method
4. Seismic Vulnerability Curves Based on Historical Damage Data
5. Case Studies
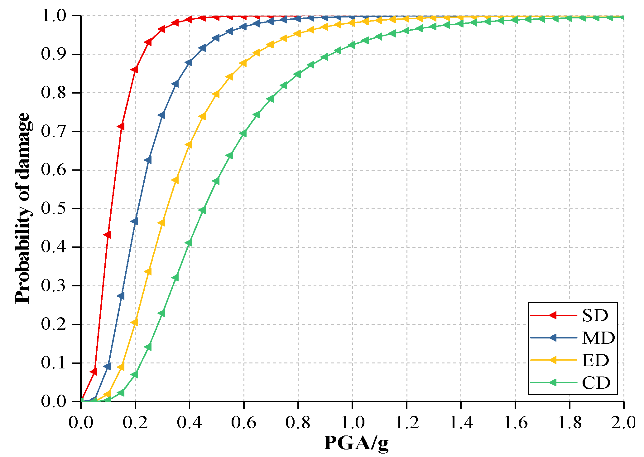
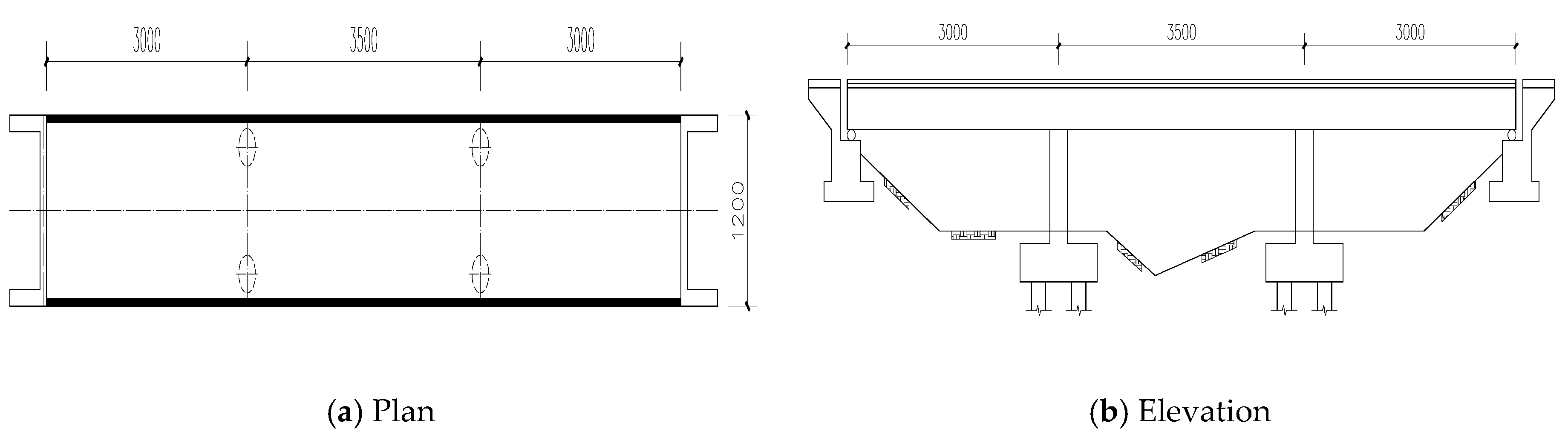
5.1. Correcting the Theoretical Seismic Vulnerability Curve of Simply Supported Bridge
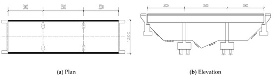
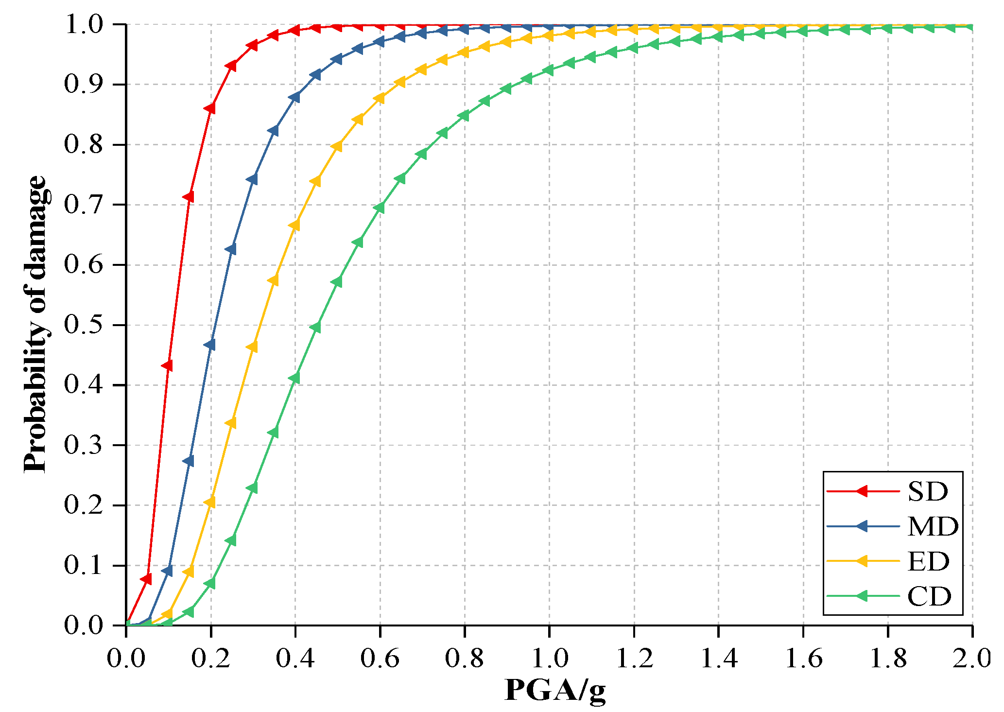
5.2. Correcting the Theoretical Seismic Vulnerability Curve of Continuous Girder Bridge
6. Post-Earthquake Traffic Capacity Assessment
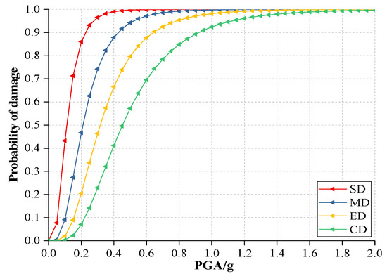
6.1. The Damage State Failure Probability of Guxigou Middle Bridge
6.2. Design Traffic Flow Assessment
6.3. Traffic Time Assessment
7. Conclusion
- (1)
- This study used Bayesian correction method to update the seismic vulnerability curves of bridges under several damage states. In the case that the experimental conditions are not sufficient for statistical probability analysis, this method makes full use of the existing historical earthquake damage experience and numerical simulation results to determine the probability distribution parameters of the bridge structure. The results show that the corrected seismic vulnerability curves are closer to the actual situation, which provides a new idea for the reliability analysis of bridge structure.
- (2)
- Based on the corrected seismic vulnerability curves of Guxigou Middle Bridge, the traffic flow and traffic time of the bridge after earthquakes were quickly evaluated. The results show that the traffic flow decreases and the traffic time increases when the peak acceleration of earthquake increases. This method has certain practicability and scientificity, which is of great significance for evaluating the sustainable traffic capacity of bridges after earthquakes.
Author Contributions
Funding
Conflicts of Interest
References
- Jiang, Z.Z.; Li, Y.Y.; Sun, Q.F.; Fan, Y. Research on Theoretical Model of Traffic Capacity of Highway Bridges after Earthquake. J. Disaster Prev. Mitig. Eng. 2015, 35, 226–231. [Google Scholar]
- Transportation Research Road; Highway Capacity Manual (HCM), National Research Council: Washington, DC, USA, 2001.
- Cabboi, A.; Magalhaes, F.; Gentile, C.; Cunha, A. Automated modal identification and tracking: Application to an iron arch bridge. Struct. Control Health Monit. 2017, 24. [Google Scholar] [CrossRef]
- Chalouhi, E.K.; Gonzalez, I.; Gentile, C.; Karoumi, R. Damage detection in railway bridges using Machine Learning: Application to a historic structure. In 10th International Conference on Structural Dynamics (EURODYN); Sapienza Univ Rome, Fac Civil & Ind Engn: Rome, Italy, 2017. [Google Scholar] [CrossRef]
- Intergovernmental Panel on Climate Change (IPCC). Determinants of Risk: Exposure and Vulnerability, Managing the Risks of Extreme Events and Disasters to Advance Climate Change Adaptation (SREX); Cambridge University Press (CUP): New York, NY, USA, 2012. [Google Scholar]
- Barbat, A.H.; Carreno, M.L.; Pujades, L.G.; Lantada, N.; Cardona, O.D.; Marulanda, M.C. Seismic vulnerability and risk evaluation methods for urban areas. A review with application to a pilot area. Struct. Infrastruct. Eng. 2010, 6, 17–38. [Google Scholar] [CrossRef]
- Chieffo, N.; Clementi, F.; Formisano, A.; Lenci, S. Comparative fragility methods for seismic assessment of masonry buildings located in Muccia (Italy). J. Build. Eng. 2019, 25. [Google Scholar] [CrossRef]
- Pan, Y.; Agrawal, A.K.; Ghosn, M. Seismic fragility of continuous steel highway bridges in New York State. J. Bridge Eng. 2007, 12, 689–699. [Google Scholar] [CrossRef]
- Lourenco, P.B.; Roque, J.A. Simplified indexes for the seismic vulnerability of ancient masonry buildings. Constr. Build. Mater. 2006, 20, 200–208. [Google Scholar] [CrossRef]
- Karim, K.R.; Yamazaki, F. Effect of earthquake ground motions on fragility curves of highway bridge piers based on numerical simulation. Earthq. Eng. Struct. Dyn. 2001, 30, 1839–1856. [Google Scholar] [CrossRef]
- Stefanidou, S.P.; Kappos, A.J. Bridge-specific fragility analysis: When is it really necessary? Bull. Earthq. Eng. 2019, 17, 2245–2280. [Google Scholar] [CrossRef]
- Zourgui, N.H.; Kibboua, A.; Taki, M. Using full bridge model to develop analytical fragility curves for typical concrete bridge piers. Gradevinar 2018, 70, 519–530. [Google Scholar] [CrossRef]
- Zampieri, P.; Zanini, M.A.; Faleschini, F. Derivation of analytical seismic fragility functions for common masonry bridge types: Methodology and application to real cases. Eng. Fail. Anal. 2016, 68, 275–291. [Google Scholar] [CrossRef]
- Li, H.N.; Cheng, H.; Wang, D.S. A Review of advances in seismic fragility research on bridge structures. Eng. Mech. 2018, 35, 1–16. [Google Scholar]
- Kiremidjian, A.A.; Basoz, N. Evaluation of bridge damage data from recent earthquake. Nceer Bull. 1997, 11, 1–27. [Google Scholar]
- Laura, M.; Francesco, C.; Antonio, F. Static and dynamic testing of highway bridges: A best practice example. J. Civ. Struct. Health Monit. 2020, 10, 43–56. [Google Scholar] [CrossRef]
- Zani, G.L.; Martinelli, P.; Galli, A.; Gentile, C.; di Prisco, M. Seismic Assessment of a 14th-Century Stone Arch Bridge: Role of Soil-Structure Interaction. J. Bridge Eng. 2019, 24. [Google Scholar] [CrossRef]
- Cornell, C.A.; Jalayer, F.; Hamburger, R.O.; Foutch, D.A. Probabilistic basis for 2000 SAC federal emergency management agency steel moment frame guidelines. J. Struct. Eng. 2002, 128, 526–533. [Google Scholar] [CrossRef]
- California Department of Transportation (Caltrans). The Northridge Earthquake; Caltrans PEQIT Report; Div of Structures: Sacramento, CA, USA, 1994. [Google Scholar]
- Shinozuka, M.; Feng, M.Q.; Lee, J.; Naganuma, T. Statistical analysis of fragility curves. J. Eng. Mech. Asce 2000, 126, 1224–1231. [Google Scholar] [CrossRef]
- Hwang, H.; Liu, J.B. Seismic fragility analysis of reinforced concrete bridges. China Civ. Eng. J. 2004, 37, 47–51. [Google Scholar]
- Choi, E.S.; DesRoches, R.; Nielson, B. Seismic fragility of typical bridges in moderate seismic zones. Eng. Struct. 2004, 26, 187–199. [Google Scholar] [CrossRef]
- Duan, M.Z.; Ya, H.Y.; Li, S.S.; Cao, H.Y. Assessment Model for Traffic Capaity after Seismic Disaster. J. Chongqing Jiaotong Univ. (Nat. Sci.) 2017, 36, 79–85. [Google Scholar]
- Lan, R.Q.; Feng, B.; Wang, Z.F. Study on the fast assessment of traffic capacity of highway bridges after strong earthquakes. World Earthq. Eng. 2009, 25, 81–87. [Google Scholar]
- Liu, Z.L. Seismic Performance Assessment of Urban Bridge Network Considering the Post-Disaster Evacuation Capacity. Master’s Thesis, Harbin Institute of Technology, Harbin, China, 2015. [Google Scholar]
- Wu, W.P.; Li, L.F.; Hu, S.C.; Xu, Z.J. Research review and future prospect of the seismic fragility analysis for the highway bridges. J. Earthq. Eng. Eng. Vib. 2017, 37, 85–96. [Google Scholar]
- Cornell, C.A. Engineering seismic risk analysis. Bull. Seismol. Soc. Am. 1968, 58, 1583–1606. [Google Scholar]
- Shinozuka, M.; Kim, S.H.; Kushiyama, S.; Yi, J.H. Fragility curves of concrete bridges retrofitted by column jacketing. Earthq. Eng. Eng. Vib. 2002, 1, 195–205. [Google Scholar] [CrossRef]
- Shinozuka, M.; Murachi, Y.; Dong, X.J.; Zhou, Y.W.; Orlikowski, M.J. Effect of seismic retrofit of bridges on transportation networks. Earthq. Eng. Eng. Vib. 2003, 2, 169–179. [Google Scholar] [CrossRef]
- Ghosh, J.; Padgett, J.E. Aging Considerations in the Development of Time-Dependent Seismic Fragility Curves. J. Struct. Eng. 2010, 136, 1497–1511. [Google Scholar] [CrossRef]
- Karim, K.R.; Yamazaki, F. A simplified method of constructing fragility curves for highway bridges. Earthq. Eng. Struct. Dyn. 2003, 32, 1603–1626. [Google Scholar] [CrossRef]
- Wu, Z.Y.; Jia, Z.P.; Liu, X.X. Calibration of Analytical Fragility Curves Based on Empirical Data of Bridges. Appl. Math. Mech. 2014, 35, 723–736. [Google Scholar]
- Chen, L.B. Seismic Vulnerability Analysis for Highway Bridges in Wenchuan Region. Ph.D. Thesis, Southwest Jiaotong University, Chengdu, China, 2007. [Google Scholar]
- Lv, D.G.; Yu, X.H. Theoretical study of probabilistic seismic risk assessment based on analytical functions of seismic fragility. J. Build. Struct. 2013, 34, 41–48. [Google Scholar]
- Ang, A.H.-S.; Tang, W.H. Probability Concepts in Engineering Planning and design; John Wiley and Sons Inc.: New York, NY, USA, 1984. [Google Scholar]
- Zhang, G.W.; Liu, L.Y. A generalized Bayes method for determining the probability distribution parameters of random variables. Chin. J. Geotech. Eng. 1995, 17, 91–94. [Google Scholar]
- Xu, C.; Yang, L.D. Test of Goodness of Fit of Random Variables and Baysian Estimation of Distribution Parameters. J. Tongji Univ. 1998, 26, 340–344. [Google Scholar]
- Ma, J.R.; Xu, J. Discussion on Fuzzy Bayes Method for Parameter Estimation. J. Chengdu Univ. (Nat. Sci. Ed.) 2011, 30, 223–225. [Google Scholar]
- Lin, Q.L. A Study on Seismic Fragility of Highway Bridges Based on Wenchuan Earthquake Damage. Ph.D. Thesis, Institute of Engineering Mechanics, China Earthquake Administration, Harbin, China, 2017. [Google Scholar]
- Zheng, K.F.; Chen, L.B.; Zhuang, W.L.; Ma, H.S.; Zhang, J.J. Bridge Vulnerability Analysis Based on Probability Seismic Demand Models. Eng. Mech. 2013, 30, 165–172. [Google Scholar]
- Wang, J.M.; Wang, G.L.; Nie, J.G.; Zhao, L.H. Probability based seismic risk analysis of bridge structures. China Civ. Eng. J. 2010, 43, 86–93. [Google Scholar]
- Gao, N. Seismic Vulnerability Analysis of Long-Span Continous Beam Bridge. Master’s Thesis, Southwest Jiaotong University, Chengdu, China, 2017. [Google Scholar]
- Bocchini, P.; Frangopol, D.M. A stochastic computational framework for the joint transportation network fragility analysis and traffic flow distribution under extreme events. Probab. Eng. Mech. 2011, 26, 182–193. [Google Scholar] [CrossRef]
- Comell, C.A. Bounds on the reliability of structural systems. J. Struct. Div. 1967, 93, 171–200. [Google Scholar]














| Damage State | Girder Bridge Parameters | Arch Bridge Parameters | ||
|---|---|---|---|---|
| SD | 0.224 | 1.002 | 0.237 | 1.003 |
| MD | 0.583 | 0.752 | 0.459 | 0.887 |
| ED | 1.192 | 0.701 | 0.866 | 0.836 |
| CD | 1.864 | 0.661 | 2.019 | 0.804 |
| Damage State | Numerical Simulation | Bayesian Updating Method | ||
|---|---|---|---|---|
| SD | 0.1099 | 0.4969 | 0.1116 | 0.5069 |
| MD | 0.2093 | 0.4635 | 0.2172 | 0.4711 |
| ED | 0.3156 | 0.5252 | 0.3436 | 0.5314 |
| CD | 0.4525 | 0.5535 | 0.5496 | 0.5343 |
| Damage State | Numerical Simulation | Bayesian Updating Method | ||
|---|---|---|---|---|
| ND | 0.3980 | 0.2780 | 0.3965 | 0.2949 |
| MD | 0.8390 | 0.3810 | 0.8300 | 0.4013 |
| CD | 1.4530 | 0.4185 | 1.4884 | 0.4395 |
| PGA | |||||
|---|---|---|---|---|---|
| 0.00 | 100.00% | 0.00% | 0.00% | 0.00% | 0.00% |
| 0.05 | 93.35% | 6.35% | 0.28% | 0.02% | 0.00% |
| 0.10 | 58.14% | 34.53% | 6.29% | 0.97% | 0.07% |
| 0.15 | 29.00% | 46.58% | 18.38% | 5.29% | 0.75% |
| 0.20 | 13.74% | 42.39% | 28.31% | 12.63% | 2.93% |
| 0.25 | 6.56% | 33.06% | 32.80% | 20.57% | 7.02% |
| 0.30 | 3.21% | 24.07% | 32.75% | 27.12% | 12.86% |
| 0.35 | 1.62% | 16.97% | 30.03% | 31.46% | 19.92% |
| 0.40 | 0.84% | 11.81% | 26.15% | 33.59% | 27.60% |
| 0.45 | 0.45% | 8.19% | 22.04% | 33.91% | 35.41% |
| 0.50 | 0.25% | 5.68% | 18.20% | 32.89% | 42.98% |
| 0.55 | 0.14% | 3.96% | 14.83% | 31.02% | 50.05% |
| 0.60 | 0.08% | 2.78% | 11.98% | 28.64% | 56.52% |
| 0.65 | 0.05% | 1.96% | 9.63% | 26.03% | 62.33% |
| 0.70 | 0.03% | 1.40% | 7.72% | 23.39% | 67.46% |
| 0.75 | 0.02% | 1.00% | 6.18% | 20.83% | 71.97% |
| 0.80 | 0.01% | 0.72% | 4.95% | 18.43% | 75.89% |
| 0.85 | 0.01% | 0.53% | 3.97% | 16.22% | 79.28% |
| 0.90 | 0.00% | 0.39% | 3.19% | 14.22% | 82.20% |
| 0.95 | 0.00% | 0.28% | 2.56% | 12.44% | 84.72% |
| 1.00 | 0.00% | 0.21% | 2.07% | 10.85% | 86.87% |
| 1.05 | 0.00% | 0.16% | 1.67% | 9.46% | 88.72% |
| 1.10 | 0.00% | 0.12% | 1.35% | 8.23% | 90.30% |
| 1.15 | 0.00% | 0.09% | 1.10% | 7.16% | 91.65% |
| 1.20 | 0.00% | 0.07% | 0.89% | 6.23% | 92.81% |
| 1.25 | 0.00% | 0.05% | 0.73% | 5.42% | 93.80% |
| 1.30 | 0.00% | 0.04% | 0.60% | 4.72% | 94.65% |
| 1.35 | 0.00% | 0.03% | 0.49% | 4.11% | 95.37% |
| 1.40 | 0.00% | 0.02% | 0.40% | 3.58% | 95.99% |
| 1.45 | 0.00% | 0.02% | 0.33% | 3.12% | 96.53% |
| 1.50 | 0.00% | 0.01% | 0.28% | 2.72% | 96.99% |
| 1.55 | 0.00% | 0.01% | 0.23% | 2.38% | 97.38% |
| 1.60 | 0.00% | 0.01% | 0.19% | 2.08% | 97.73% |
| 1.65 | 0.00% | 0.01% | 0.16% | 1.82% | 98.02% |
| 1.70 | 0.00% | 0.01% | 0.13% | 1.59% | 98.27% |
| 1.75 | 0.00% | 0.00% | 0.11% | 1.39% | 98.49% |
| 1.80 | 0.00% | 0.00% | 0.09% | 1.22% | 98.68% |
| 1.85 | 0.00% | 0.00% | 0.08% | 1.07% | 98.85% |
| 1.90 | 0.00% | 0.00% | 0.07% | 0.94% | 98.99% |
| 1.95 | 0.00% | 0.00% | 0.06% | 0.83% | 99.11% |
| 2.00 | 0.00% | 0.00% | 0.05% | 0.73% | 99.22% |
| PGA | lb | fc | PGA | lb | fc | PGA | lb | fc | PGA | lb | fc |
|---|---|---|---|---|---|---|---|---|---|---|---|
| 0 | 3.743 | 3000 | 0.55 | 3.955 | 98 | 1.05 | 3.989 | 4 | 1.55 | 0.000 | 2 |
| 0.05 | 3.782 | 3000 | 0.6 | 3.962 | 58 | 1.1 | 3.991 | 3 | 1.6 | 0.000 | 2 |
| 0.1 | 3.816 | 2994 | 0.65 | 3.967 | 36 | 1.15 | 3.992 | 3 | 1.65 | 0.000 | 2 |
| 0.15 | 3.844 | 2903 | 0.7 | 3.971 | 23 | 1.2 | 0.000 | 3 | 1.7 | 0.000 | 2 |
| 0.2 | 3.868 | 2592 | 0.75 | 3.976 | 16 | 1.25 | 0.000 | 2 | 1.75 | 0.000 | 2 |
| 0.25 | 3.887 | 2055 | 0.8 | 3.979 | 11 | 1.3 | 0.000 | 2 | 1.8 | 0.000 | 2 |
| 0.3 | 3.904 | 1441 | 0.85 | 3.981 | 8 | 1.35 | 0.000 | 2 | 1.85 | 0.000 | 2 |
| 0.35 | 3.918 | 910 | 0.9 | 3.984 | 6 | 1.4 | 0.000 | 2 | 1.9 | 0.000 | 2 |
| 0.4 | 3.930 | 536 | 0.95 | 3.986 | 5 | 1.45 | 0.000 | 2 | 1.95 | 0.000 | 1 |
| 0.45 | 3.940 | 303 | 1 | 3.988 | 4 | 1.5 | 0.000 | 2 | 2 | 0.000 | 1 |
| 0.5 | 3.948 | 171 |
© 2020 by the authors. Licensee MDPI, Basel, Switzerland. This article is an open access article distributed under the terms and conditions of the Creative Commons Attribution (CC BY) license (http://creativecommons.org/licenses/by/4.0/).
Share and Cite
Wang, W.; Wu, F.; Wang, Z. Revising Seismic Vulnerability of Bridges Based on Bayesian Updating Method to Evaluate Traffic Capacity of Bridges. Sustainability 2020, 12, 1898. https://doi.org/10.3390/su12051898
Wang W, Wu F, Wang Z. Revising Seismic Vulnerability of Bridges Based on Bayesian Updating Method to Evaluate Traffic Capacity of Bridges. Sustainability. 2020; 12(5):1898. https://doi.org/10.3390/su12051898
Chicago/Turabian StyleWang, Wei, Fengying Wu, and Ziyi Wang. 2020. "Revising Seismic Vulnerability of Bridges Based on Bayesian Updating Method to Evaluate Traffic Capacity of Bridges" Sustainability 12, no. 5: 1898. https://doi.org/10.3390/su12051898
APA StyleWang, W., Wu, F., & Wang, Z. (2020). Revising Seismic Vulnerability of Bridges Based on Bayesian Updating Method to Evaluate Traffic Capacity of Bridges. Sustainability, 12(5), 1898. https://doi.org/10.3390/su12051898

