Shear Behavior of a Reinforced Concrete Frame Retrofitted with a Hinged Steel Damping System
Abstract
1. Introduction
2. Experimental Program
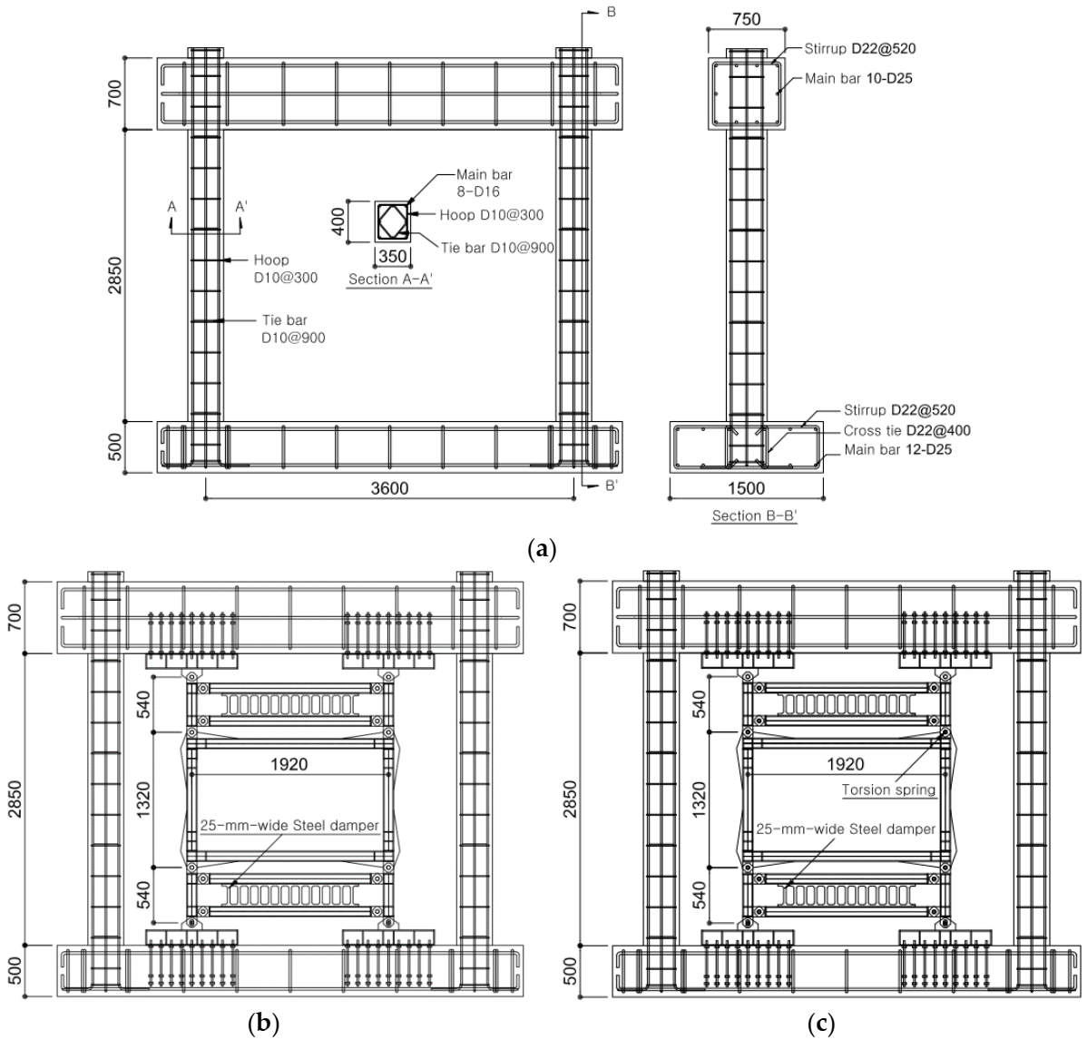
2.1. Test Specimens
2.2. Materials
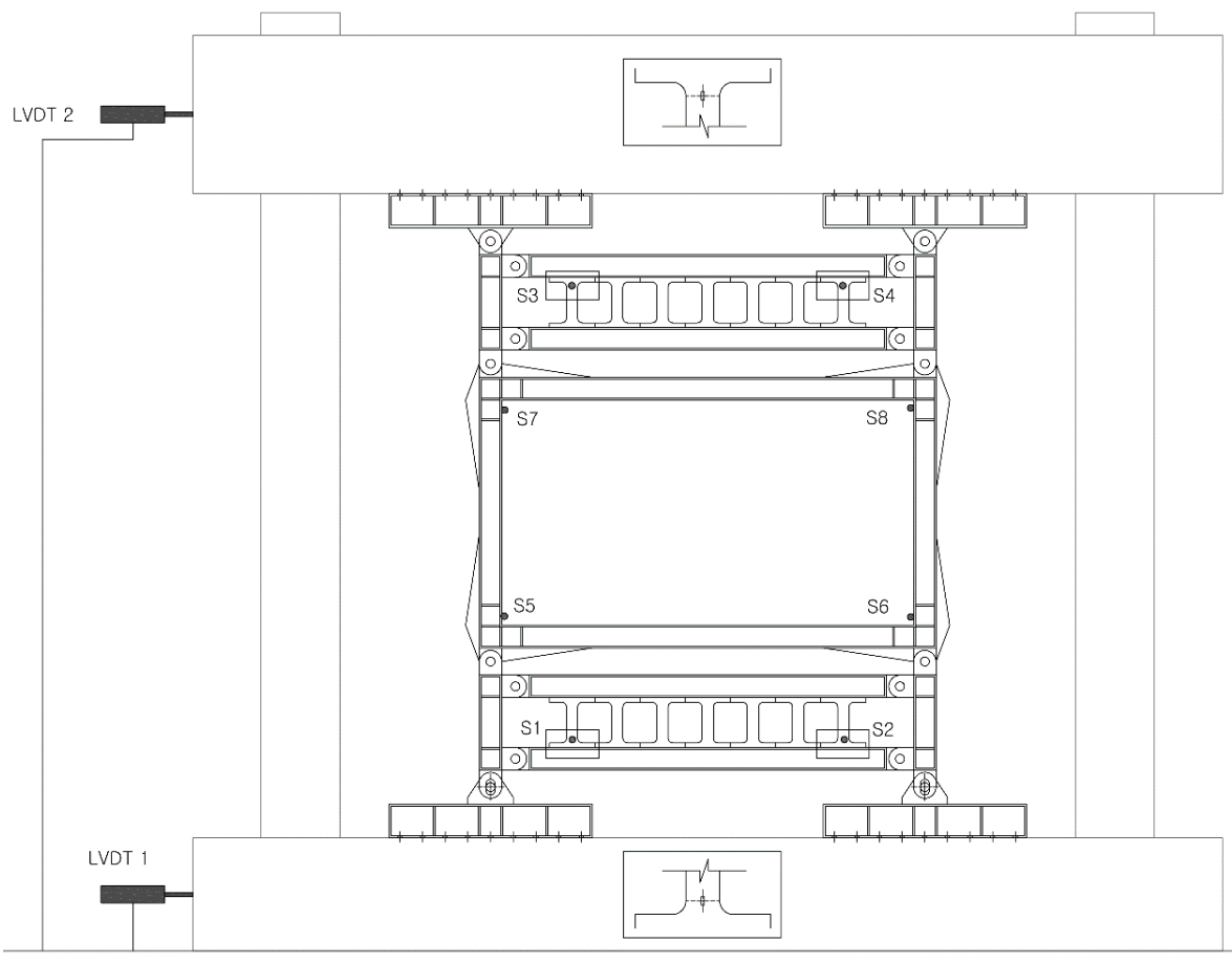
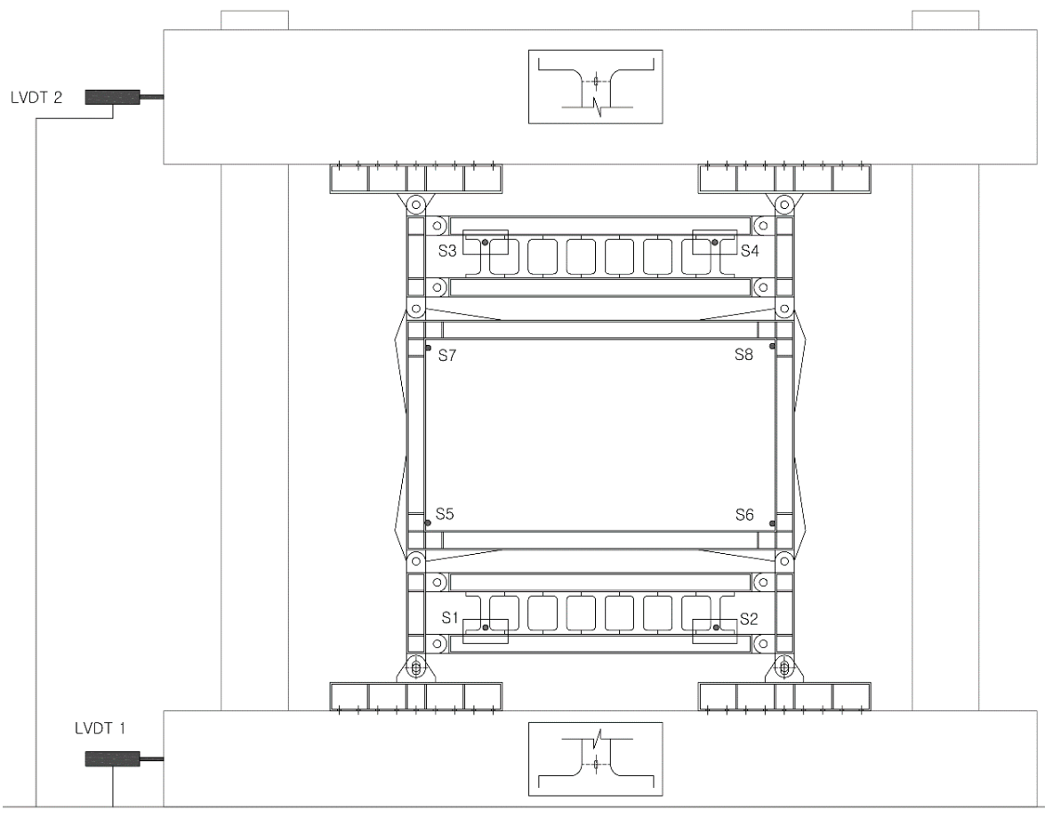
2.3. Test Method
3. Experimental Results and Discussion
3.1. Cracking and Failure Modes
3.2. Load–Displacement Relationships
3.3. Stiffness Degradation Characteristic
3.4. Energy Dissipation Capacity
3.5. Steel Strain Characteristics
4. Conclusions
- (1)
- The DR specimen with the hinged steel damping system showed a gradual decrease in strength and finally failed.
- (2)
- The strength, stiffness, and energy dissipation capacity of the DSR specimen were slightly improved compared to the DR specimen, and it was confirmed that stress redistribution was induced by the rotational stiffness of the torsion spring installed in the hinge connection between the upper and lower frames.
- (3)
- Between the upper and lower dampers, plastic deformation occurred intensively in the damper that reached the yield load first as the displacement increased. Therefore, further detailed development and experimental verification are required in future studies so that the damper, which is a seismic resistance element, can act symmetrically at the top and bottom.
- (4)
- In actual structures, the clearance dimensions between columns or between the upper beam and the floor are not precise due to construction errors. The system developed in this study took this into account, and an extra length was provided for the hinge connection. However, it may be one of the causes of the asymmetric deformation of the upper/lower dampers in the experimental results. In addition, when the proposed system was applied to a nonductile RC frame, the seismic performance of the structure must be accurately identified, and this must be considered in the design of the system’s H-beam and steel damper.
- (5)
- In this study, anchors were pre-installed in the top and bottom horizontal beams to prevent performance degradation factors such as construction errors. The characteristics of anchoring connections are vital for the performance of the whole retrofitted system. Even if the calculated fixing length is applied, there is a possibility that the anchoring ability cannot be exhibited depending on the construction situation. Therefore, it is recommended to use a sufficiently larger amount than the calculated amount of anchoring bolts in consideration of performance degradation factors such as construction errors. In addition, it is essential to prevent damage to the reinforcing bar by detecting the location of the reinforcing bar inside the existing reinforced concrete member before anchoring.
- (6)
- The system proposed in this study has upper/lower dampers to dissipate energy from earthquakes, therefore it is possible to reduce the stress transmitted to the primary members of the existing RC structure. As a result of the experiment, it is judged that the proposed system prevents the transfer of stress to the opening because small deformations occur in the opening even though the steel dampers are in a plastic deformation state. Additionally, if the upper and lower dampers are damaged by an earthquake, only the dampers need to be replaced, so the proposed system can be used for permanent seismic retrofit of existing structures.
- (7)
- In order to apply the details or construction methods proposed through this study, it is necessary to evaluate the performance of the existing structure, and furthermore to carry out performance evaluations and study the design formula of the reinforcement system to calculate the appropriate reinforcement amount.
Author Contributions
Funding
Conflicts of Interest
References
- Zhao, Y.; Zhang, D.; Shen, S.; Ueda, T. Axial loading capacity of concrete-jacketed RC columns with pre-and post-corrosion damage. Struct. Concr. 2016, 17, 355–364. [Google Scholar] [CrossRef]
- Anvari, A.; Ghalehnovi, M.; de Brito, J.; Karimipour, A. Improved bending behaviour of steel-fibre-reinforced recycled aggregate concrete beams with a concrete jacket. Mag. Concr. Res. 2020, 1–19. [Google Scholar] [CrossRef]
- Gholampour, A.; Hassanli, R.; Mills, J.E.; Vincent, T.; Kunieda, M. Experimental investigation of the performance of concrete columns strengthened with fiber reinforced concrete jacket. Constr. Build. Mater. 2019, 194, 51–61. [Google Scholar] [CrossRef]
- Deng, M.; Zhang, Y. Cyclic loading tests of RC columns strengthened with high ductile fiber reinforced concrete jacket. Constr. Build. Mater. 2017, 153, 986–995. [Google Scholar] [CrossRef]
- Mohammed, A.A.; Manalo, A.C.; Ferdous, W.; Zhuge, Y.; Vijay, P.V.; Pettigrew, J. Experimental and numerical evaluations on the behaviour of structures repaired using prefabricated FRP composites jacket. Eng. Struct. 2020, 210, 110358. [Google Scholar] [CrossRef]
- He, A.; Cai, J.; Chen, Q.J.; Liu, X.; Xu, J. Behaviour of steel-jacket retrofitted RC columns with preload effects. Thin-Walled Struct. 2016, 109, 25–39. [Google Scholar] [CrossRef]
- Badoux, M.; Jirsa, J.O. Steel bracing of RC frames for seismic retrofitting. J. Struct. Eng. 1990, 116, 55–74. [Google Scholar] [CrossRef]
- Roudsari, M.T.; Entezari, A.; Hadidi, M.; Gandomian, O. Experimental assessment of retrofitted RC frames with different steel braces. Structures 2017, 11, 206–217. [Google Scholar]
- Rahimi, A.; Maheri, M.R. The effects of steel X-brace retrofitting of RC frames on the seismic performance of frames and their elements. Eng. Struct. 2020, 206, 110149. [Google Scholar] [CrossRef]
- Baghi, H.; Oliveira, A.; Valença, J.; Cavaco, E.; Neves, L.; Júlio, E. Behavior of reinforced concrete frame with masonry infill wall subjected to vertical load. Eng. Struct. 2018, 171, 476–487. [Google Scholar] [CrossRef]
- Shan, S.; Li, S.; Xu, S.; Xie, L. Experimental study on the progressive collapse performance of RC frames with infill walls. Eng. Struct. 2016, 111, 80–92. [Google Scholar] [CrossRef]
- Murty, C.V.R.; Jain, S.K. Beneficial influence of masonry infill walls on seismic performance of RC frame buildings. In Proceedings of the 12th world conference on earthquake engineering, Auckland, New Zealand, 30 January–4 February 2000. [Google Scholar]
- Kelly, J.M.; Skinner, R.I.; Heine, A.J. Mechanisms of energy absorption in special devices for use in earthquake resistant structures. Bull. N. Z. Soc. Earthq. Eng. 1972, 5, 63–87. [Google Scholar] [CrossRef]
- Symans, M.D.; Charney, F.A.; Whittaker, A.S.; Constantinou, M.C.; Kircher, C.A.; Johnson, M.W.; McNamara, R.J. Energy dissipation systems for seismic applications: Current practice and recent developments. J. Struct. Eng. 2008, 134, 3–21. [Google Scholar] [CrossRef]
- Parulekar, Y.M.; Reddy, G.R. Passive response control systems for seismic response reduction: A state-of-the-art review. Int. J. Struct. Stab. Dyn. 2009, 9, 151–177. [Google Scholar] [CrossRef]
- Choi, J.; Abebe, D.Y. Hysteresis characteristics of shear panel damper using SLY120. APCBEE Procedia 2014, 9, 370–375. [Google Scholar] [CrossRef]
- Liu, Y.; Aoki, T.; Shimoda, M. Distribution measurement of a shear panel damper developed for bridge structure. J. Struct. 2013, 2013, 1–11. [Google Scholar] [CrossRef]
- Shigley, J.E.; Mischke, C.R.; Budynas, R.G. Mechanical Engineering Design, 7th ed.; McGraw-Hill: New York, NY, USA, 2004. [Google Scholar]
- Korean Standards Association. KS F 2403. Standard Test Method for Making and Curing Concrete Specimens; Korean Standards Association: Seoul, Korea, 2014. [Google Scholar]
- Korean Standards Association. KS F 2405. Standard Test Method for Compressive Strength of Concrete; Korean Standards Association: Seoul, Korea, 2017. [Google Scholar]
- Korean Standards Association. KS B 0801. Test pieces for Tensile Test for Metallic Materials; Korean Standards Association: Seoul, Korea, 2017. [Google Scholar]
- Korean Standards Association. KS B 0802. Method of Tensile Test for Metallic Materials; Korean Standards Association: Seoul, Korea, 2013. [Google Scholar]
- Climent, A.B.; Oh, S.; Akiyama, H. Ultimate energy absorption capacity of slit-type steel plates subjected to shear deformations. J. Struct. Constr. Eng. 1998, 63, 139–147. [Google Scholar]















| Specimen * | Column | Hinged Steel Damping System | ||||||||
|---|---|---|---|---|---|---|---|---|---|---|
| Section (mm) | Length (mm) | Spacing (mm) | Steel Reinforcement | Steel Damper | Spring at Hinge | |||||
| Main | Hoop | Tie | Thickness (mm) | Width (mm) | Spacing (mm) | |||||
| NR | 350 × 400 | 2850 | 3600 | 8-D16 | D10@300 | D10@900 | N/A | N/A | N/A | N/A |
| DR | 6 | 25 | 100 | X | ||||||
| DSR | O | |||||||||
| Type | |||
|---|---|---|---|
| Concrete | 25.8 | 2923 | 16.2 |
| Type | |||
|---|---|---|---|
| Rebar | D10 | 471 | 591 |
| D16 | 455 | 573 | |
| Plate | Slit damper (6T) | 405 | 468 |
| H-beam (8T) | 406 | 448 | |
| Specimen | Yielding | Peak Load | Load Component of Steel Damper (kN) | Predicted Strength of Steel Damper (kN) | Dissipated Energy (kN·m) | ||||
|---|---|---|---|---|---|---|---|---|---|
| Load (kN) | Disp. (mm) | Stiffness (kN/mm) | Load (kN) | Disp. (mm) | Stiffness (kN/mm) | ||||
| NR | 223.0 | 42.2 | 5.3 | 232.0 | 63.6 | 3.7 | N/A | N/A | 144.9 |
| DR | 275.0 | 45.0 | 6.1 | 286.9 | 68.3 | 4.2 | 54.9 | 68.3 | 310.3 |
| DSR | 258.2 | 37.1 | 7.0 | 286.0 | 66.4 | 4.3 | 54.0 | 68.3 | 320.4 |
Publisher’s Note: MDPI stays neutral with regard to jurisdictional claims in published maps and institutional affiliations. |
© 2020 by the authors. Licensee MDPI, Basel, Switzerland. This article is an open access article distributed under the terms and conditions of the Creative Commons Attribution (CC BY) license (http://creativecommons.org/licenses/by/4.0/).
Share and Cite
Yun, H.-D.; Kim, S.-W.; Park, W.-S.; Kim, S.-W. Shear Behavior of a Reinforced Concrete Frame Retrofitted with a Hinged Steel Damping System. Sustainability 2020, 12, 10360. https://doi.org/10.3390/su122410360
Yun H-D, Kim S-W, Park W-S, Kim S-W. Shear Behavior of a Reinforced Concrete Frame Retrofitted with a Hinged Steel Damping System. Sustainability. 2020; 12(24):10360. https://doi.org/10.3390/su122410360
Chicago/Turabian StyleYun, Hyun-Do, Sun-Woong Kim, Wan-Shin Park, and Sun-Woo Kim. 2020. "Shear Behavior of a Reinforced Concrete Frame Retrofitted with a Hinged Steel Damping System" Sustainability 12, no. 24: 10360. https://doi.org/10.3390/su122410360
APA StyleYun, H.-D., Kim, S.-W., Park, W.-S., & Kim, S.-W. (2020). Shear Behavior of a Reinforced Concrete Frame Retrofitted with a Hinged Steel Damping System. Sustainability, 12(24), 10360. https://doi.org/10.3390/su122410360

