Next Article in Journal
Many Miles to Paris: A Sectoral Innovation System Analysis of the Transport Sector in Norway and Canada in Light of the Paris Agreement
Next Article in Special Issue
Hybrid CHP/Geothermal Borehole System for Multi-Family Building in Heating Dominated Climates
Previous Article in Journal
Assessing the Achievement of the SDG Targets for Health and Well-Being at EU Level by 2030
Previous Article in Special Issue
Significant Implication of Optimal Capacitor Placement and Sizing for a Sustainable Electrical Operation in a Building
 
 
Font Type:
Arial Georgia Verdana
Font Size:
Aa Aa Aa
Line Spacing:
Column Width:
Background:
Article

Retrofitting High-Rise Residential Building in Cold and Severe Cold Zones of China—A Deterministic Decision-Making Mechanism

1
School of Economics and Management, Nanjing Tech University, Nanjing 211816, Jiangsu, China
2
Department of Civil Engineering, The University of Hong Kong, Hong Kong, China
3
School of Architecture, Georgia Institute of Technology, Atlanta, GA 30332-0155, USA
*
Author to whom correspondence should be addressed.
Sustainability 2020, 12(14), 5831; https://doi.org/10.3390/su12145831
Submission received: 19 June 2020 / Revised: 14 July 2020 / Accepted: 15 July 2020 / Published: 20 July 2020
(This article belongs to the Special Issue Energy Efficiency and Sustainability in Buildings)

Abstract

This study aimed to develop a deterministic decision-making mechanism for finding the optimum set of retrofit solutions of existing high-rise residential buildings in two different climatic zones of China. The retrofit solutions were critically examined with different energy saving targets based on the local climatic conditions, building features, and retrofit costs in cold and severe cold zones comparatively. By making the extensive review and analyzing considerable statistics data and cost information, net present value (NPV) method was employed in the prototype building apartments to develop this deterministic model. The results demonstrated that the heating system is the most important factor in saving energy and obtaining the optimum revenue in these two regions. The highest optimal NPV can be obtained by achieving 60% energy saving in the cold zone, as energy saving is around 319 kWh/m2/year with the total retrofit costs of USD $3560, while it is 281 kWh/m2/year with the total retrofit costs of USD $3480 to achieve the 50% energy-saving target in the severe cold zone. Based on the analysis of energy savings and retrofit costs, the results can be effectively implemented for the purpose of creating sustainable retrofits in existing buildings, and the model can be adapted for selecting appropriate retrofit choices in other climatic zones.

1. Introduction

Given energy consumption in buildings is projected to increase by 1.7% annually until 2025, sustainable building retrofits can play an important role in reducing end-use energy in existing buildings [1]. Sustainable building retrofits in residential buildings are not only recognized by researchers as a key strategy to enhance energy efficiency of existing buildings [2,3], but it is also considered as an effective measure to cut down on energy costs and improve building performance [4,5]. While existing buildings’ stocks are increasing globally, the concern for sustainable building retrofit is ever increasing [6]. Rapid urbanization around the world has increased the energy consumption in the residential building sectors as more and more people are living in those earlier constructed buildings in inner cities, which are of low energy efficiency. Studies show that more than 25% of the total energy is consumed by the residential buildings in the EU [7]. It is estimated that the total energy demand of buildings will increase by 110–150% in 2050, and by 160–220% in 2095 compared to the 2005 level [8]. In China, existing building stocks have exceeded 56 billion m2 in 2017 [9], and they are expected to increase to around 78 billion m2 by 2050 [10]. For that reason, China ranks as the world’s second largest in energy consumed by all buildings, and the largest for residential buildings globally [11]. The rapid economic and social development would further increase the energy consumption in residential buildings of China [12].
Due to high energy conservation potential, sustainable retrofit of existing residential buildings is a major concern globally, and thus, many efforts are devoted in retrofit solutions. For example, the use of alterative building envelope in building retrofitting in Portugal [13], multifunctional facade system for apartment building retrofitting in Finland and Russia [14], exterior insulation retrofit strategies in wooden-framed structures in cold regions in USA [15], optimization of cost and energy efficiency of multi-storied residential buildings in Sweden [16], and other potential retrofit measures were studied in Bulgaria, Serbia, Hungary, and the Czech Republic [17]. Similar studies were conducted in Sweden [18], Spain [19], USA [5], China [20], and Canada [21]. In addition, Arumägi and Kalamees [22] studied the energy conservation potential of wooden apartment buildings in Estonia. The study found that heating, ventilation, insulation, and energy sources are the most influential factors for retrofitting, and the corresponding retrofit solutions to these aspects can save 20–65% of the total primary energy used in the residential buildings. Chen et al. [23] showed that space heating retrofitting would be a good option in Beijing for reducing energy consumption with low investment using a simulation model.
A range of retrofit measures have been adopted by sustainable retrofit projects globally, which include, but are not limited to, installing energy-efficient equipment, smart control systems, window and wall retrofits, advanced heating and cooling technologies, renewable energy systems, etc., depending upon climatic conditions and locations [24,25]. In this regard, numerous studies have adopted different strategies and/or developed quantification methods in order to derive the optimistic and costs-effective measures for promoting sustainable retrofits globally. For example, Zheng et al. [20] proposed a techno-economic-risk based decision model for large scale building retrofit using Monte Carlo simulation and life cycle cost analysis in China. Shen et al. [1] analyzed the retrofit options of existing buildings based on net present value (NPV) using EnergyPlus, and found that global climate change may alter the optimal solution for energy conservation measures according to the locations, building types, and so on. Fina et al. [24] developed an optimization model using Matlab to maximize the NPV over a time horizon of 20 years for the installation of solar PVs on the roof and façade in the multi-family apartments. La Fleur et al. [26] studied how to optimize energy conservation and costs in retrofitting multi-family buildings with lightweight concrete in Sweden. The study concluded that improving thermal performance through retrofitting the building envelope and installing heat recovery ventilation systems for reducing the heating demand over a period of a 40-years life cycle may not cost-effective. Instead, the balanced mechanical ventilation system with heat recovery is the most cost-effective strategy when the energy saving target is set at 40%. Another study discovered that heat recovery ventilation and energy-efficient window can reduce 18% of the total heat demand of existing multi-family residential buildings in Stockholm [27].
With a desire to purse a balance of energy use and retrofit costs in existing buildings, Penna et al. [28] combined a dynamic energy simulation program with an optimization model to examine the relationship between the building characteristics and energy consumption. Wu et al. [29] studied different optimal scenarios under the condition of maximum energy savings and NPV. Other similar studies have focused on different aspects on retrofits, e.g., decision support model for retrofitting residential buildings based on energy-related occupants’ behaviors by Serrano-Jimenez et al. [30]; a simulation-based multi-objective optimization method for office building based on life cycle assessment and life cycle costing by Sharif and Hammad [31]; risks and uncertainties of sustainable building retrofit measures [32] and their sensitivities [33]; multi-criteria decision-making and multi-objective optimization methods [34,35,36], economic feasibility analysis [37], and so on.
It is recognized that the adoption of suitable retrofit strategies is very important for enhancing energy efficiency and cost-effectiveness, as the success of a sustainable building retrofit project is highly dependent on the selected retrofit strategies [24]. However, energy retrofit rate is still lower than expected in practices due to the complexities such as the characterizations, projections, comparisons, and references [2]. Finding relevant and reliable information, site-specific retrofit measures including their suitability, cost-effectiveness, etc., are the main hindrances for developers in sustainable building retrofit projects [38]. In addition, most previous studies concentrated on the retrofit solutions applied to a single broad climatic zone without analyzing the differences under various climatic conditions, not to mention about examining the energy-efficiency and cost-effectiveness of an array of sustainable building retrofit decisions in different climatic conditions within a country. Moreover, a deterministic decision-making mechanism is rarely considered in selecting optimal retrofit measures through in-depth investigation of such measures in different zones comparatively. Therefore, this study aimed to develop a deterministic model on the final renovation choice with energy retrofit targets for existing high-rise residential buildings in the two climatic zones (i.e., cold and severe cold zones) of China by considering the local climatic conditions, practical retrofit measures and the relevant retrofit costs, based on the NPV method with the building prototypes. By in-depth analysis, this study contributes in finding out the optimal set of retrofit solutions in the specific climate zones according to the local climatic conditions, building features, and retrofit costs. In addition, the retrofit solutions were critically analyzed in two different climatic zones comparatively with respect to different energy saving targets. The results can be effectively used as a reference for sustainable retrofit projects in selected regions, as well as serving as a practical guide for other regions globally.
After critically analyzing the relevant literature, the research gap, aim, and contribution of the study is highlighted in the introduction section. The deterministic modelling framework with illustration, the details of building prototypes in both climatic zones, adopted optimization model approach with detailed considerations and simulation tools, which is described in the methodology section. After that, the identified costs-effective retrofit measures, optimal set of retrofit measures, and comparison of optimum retrofit choices for different energy-saving targets in both of the climatic zones are explicitly described in the results and discussion section. In addition, the comparison of optimum retrofit measures between the studied zones is comparatively discussed, and the limitations are also highlighted in this section. Finally, the key findings, implications, novelty, and future research direction are highlighted in conclusions.

2. Methodology

A deterministic optimization mechanism for sustainable building retrofit measures was developed with the purpose of solving the problem of poor building thermal performance in two climatic zones of China, namely: Cold and severe cold zones. Based on the common features of local buildings, two building prototypes were made reference to and modeled in AutoCAD and Autodesk Revit. Extensive review of literature and government reports was conducted to gather the data associated to the prototype buildings and the corresponding cost data. The energy simulation tool called Energy Performance Calculator (EPC) based on ISO-CEN standards, which was developed by the Georgia Institute of Technology [39], is employed to assess the building thermal performance according to the building prototypes. The weather data used in this simulation originates from EnergyPlus weather database and different cities have their specific weather files for the calculation of building energy performance in EPC. The detailed climatic information of each zone, which has a significant impact on critical parameters of energy simulation related to indoor temperature, fresh air change rate, occupancy density, and so forth, is given in the Supplementary Materials (S1). Based on the building characteristics and local conditions, energy consumption of the designed prototype buildings was simulated, and then potential retrofit measures were obtained through the literature review and case study, finally an optimization model was developed to evaluate the energy savings and economic feasibility involved in building retrofit. The procedure of the optimization model is illustrated in Figure 1.

2.1. Building Prototypes

2.1.1. Building Prototype in Cold Zones

In cold zones, small concrete blocks have become more useful in the frame structures of medium high-rise and high-rise buildings since the 1980s [40]. In Beijing, the popular external wall material was concrete block in the 1990s, since it not only saved land resources used for making bricks and reduced the fuel needed to fire bricks, but it also increased the indoor net area compared to brick walls [41]. The optimal thickness of concrete block wall is probably around 260 mm according to an analysis on the thermal properties and economic feasibility of various wall materials [42,43]. The retrofitting projects of existing high-rise residential buildings investigated that the common thickness of concrete blocks in external walls is around 300 mm, with 20 mm thick cement plaster on both inside and outside. Its heat transfer coefficient (U-value) is approximately 2.1 W/m2K, which is much higher than the thermal requirements specified in energy-efficient design standards issued in 1986 [44]. The JGJ-26-86 standard required the U-value of building envelopes built after the year of 1986 to be no more than 1.61 W/m2K in the cold zone. As a consequence, this study deemed the wall’s U-value as 1.61 W/m2K based on its 300 mm concrete block materials and 20 mm cement plaster. The absorption coefficient of such wall material is about 0.68, and its emissivity is around 0.9 [45].
Residential buildings built before 2000 in Beijing usually employed 5 mm single glass glazing with aluminum frames for their external windows. The U-value of this type of window is around 6.4 W/m2K [46,47]. According to the requirement for the thermal property of window glazing specified in energy-efficient design standard JGJ-26-86, the U-value of external windows should be less than 6.4 W/m2K in cold zones, such as in Beijing. The prototypical apartment is modelled based on the information regarding the residential buildings built in 1990s, hence it can be designed as using 5 mm single clear float glass with an aluminum frame, and that the window U-value is 6.4 W/m2K in order to meet the basic requirements issued in 1986. Basically, general smooth window glass without coating has about 0.84 emissivity [45]. The direct SHGC of general single glazing is usually about 0.85 according to the international standards of various glasses [39]. No shading devices or renewable energy (RE) is applied to this apartment prototype before retrofitting, as the cold zone is a heating-dominant region and building designs usually focused on the reduction of heating demands [48]. The main thermal properties of the prototype are described in Table 1.
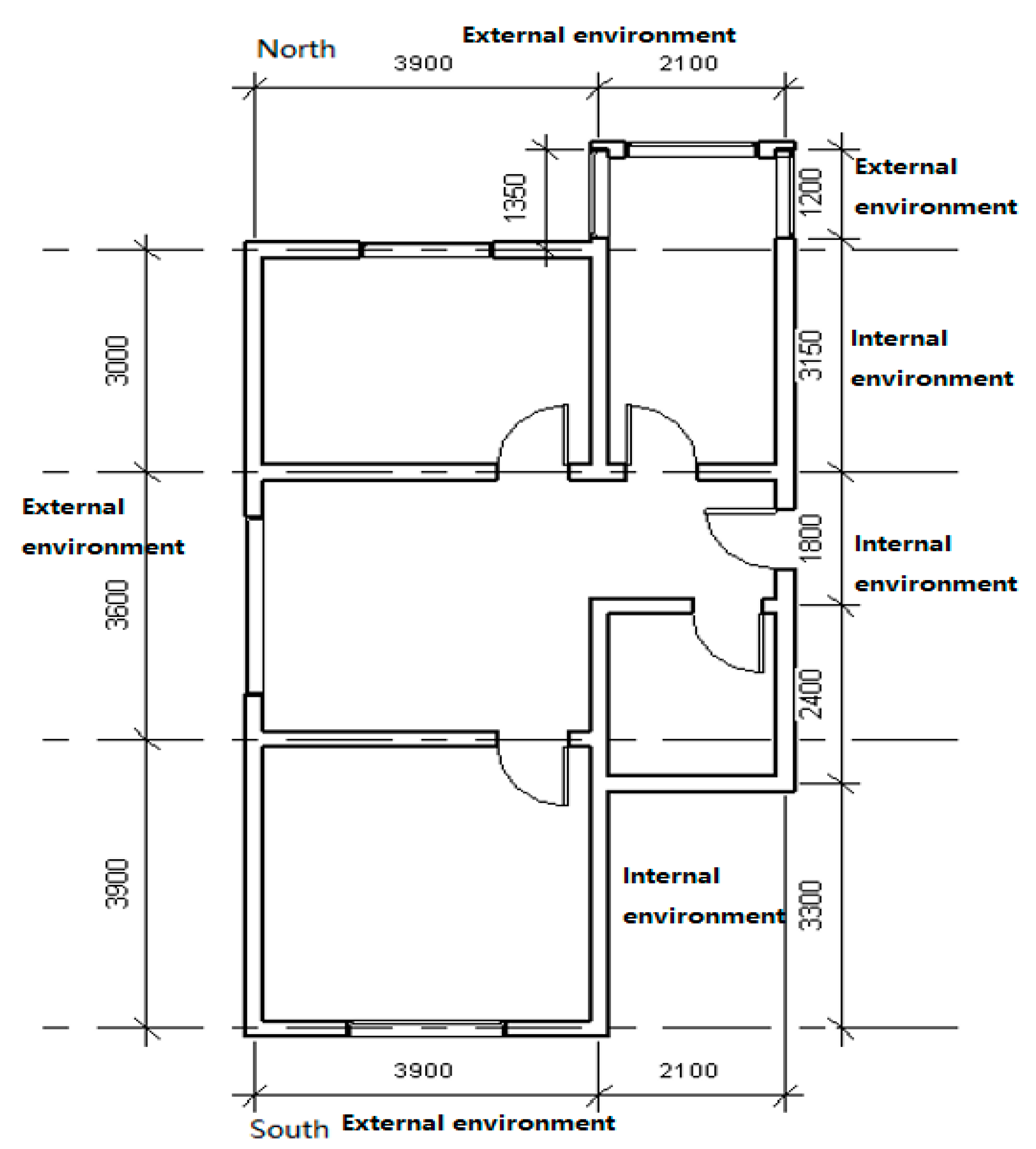
A survey focused on Beijing buildings revealed that the dwelling areas for each person could reach 21 m2, which indicated that most households with three people could live in an apartment with at least about 60 m2 floor area. The most common shape of a residential building is the row-type with a north-south direction [49]. According to the Sin-German retrofit project in Beijing, the floor height of high-rise existing buildings built in 1990s is around 2.70 m. On a standard floor, there are always eight apartments, and floor areas differ from 40–65 m2, but the most common apartments have around 50 m2 floor area, with two bedrooms and a small living room [44]. The south orientation for a building is regarded as the best direction, since it can obtain more sunlight and solar heat, particularly in the context of northern China. Consequently, the prototype is designed as around 57 m2 with two bedrooms and one living room. The layout design of the prototypical apartment is similar to an apartment on the top left corner of a standard floor involved in the Beijing Sino-German retrofit project as shown in Figure 2. The prototype in the cold zone is situated in the north-west corner on a floor; none of the windows take shading devices into account, and details are shown in Table 2.

2.1.2. Building Prototype in Severe Cold Zones

The focus of this research is on existing high-rise buildings constructed in the 1990s, and the thermal property of the building envelope built before 2000 was probably very close to the rules specified in JGJ-26-86. Consequently, the external walls of the prototype apartment are made of 490 mm hollow bricks with 30 mm cement plaster on both the inside and outside, and the wall U-value is assumed as 0.84 W/m2K in order to meet requirements of the energy-efficient design standard implemented in the 1990s. The emissivity of walls depends on the type of wall structure material and brick walls usually have an emissivity around 0.9 and an absorption coefficient of about 0.76 [45].
More than 90% of existing residential buildings employs double glazing windows with a single aluminum frame to reduce the energy consumption in Harbin in 1990s [50,51,52,53,54,55], the heat transfer coefficient of double glazing with single aluminum frame was about 3.43 W/m2K in this city [51]. The U-values of 4/5/4 mm and 5/5/5 mm clear double air-filled windows are about 3.41 W/m2K and 3.23 W/m2K in the severe cold zone, respectively [52]. Windows of some pilot energy-efficient residential buildings have a better thermal performance, and their U-values range from 1.8 to 2.06 W/m2K in the severe cold zone [56]. According to the thermal requirements issued in the JGJ-26-86 standard, the heat transfer coefficient of window glazing should be no more than 3.26 W/m2K; therefore, this study set the heat transmittance of window glazing of the apartment prototype as 3.26 W/m2K in the severe cold zone, and the window glass is probably 5/5/5 mm clear double air-filled glazing based on the above discussion. The SHGC of general double clear glazing is around 0.85, even if the thickness of window glass is diverse [57]. This general smooth window glass without coating usually has about 0.84 of emissivity due to the material type [45]. The detailed thermal properties of the apartment prototype are shown in Table 3.
The designs of residential buildings had been guided by the Residential Design Code (GBJ 96–86) issued in 1986, which restricted the floor height to be less than 2.80 m, but more than 2.40 m in the living rooms and bedrooms. The proposed floor area for a household with 4–4 persons varied from 45 m2 to 65 m2 [58]. There was no significant difference of the indoor air quality in a room with between the floor height of 2.70 m and 2.80 m, and 2.70 m was one of the most common floor heights in the 1990s [59]. The floor height of the prototype in the severe cold zone is designed as 2.70 m in order to be consistent with other climatic zones. According to the average occupancy density (20 m2/person) and average number of occupants (3 persons) in a household in the severe cold zone, the overall floor area of the prototypical apartment is presumed as around 60 m2, which conforms to the design code GBJ 96–86.
The dominant shape of high-rise residential buildings in Harbin was rectangular, with a long length on the east-west axis, but short width on the north-south orientation. In fact, the most common building orientation in severe cold zones is still north-south, since it can maximize solar heat gain and reduce energy consumption [60]. Although the detailed designs of residential buildings were diverse, most windows were on the south and north due to the most common rectangle shape. The ‘Tower’ buildings with rectangular cross-section was the dominant type of high-rise residential buildings built in the 1990s in Harbin, and they can represent the most common design features of high-rise apartments built at that time [61]. To reflect the general situation of the floor layout of old high-rise buildings, the prototype takes layouts of the most common designs involved in the retrofit projects and a summary of high-rise housing designs discussed by Yang [61] and other previous studies into account [62,63,64]. Based on the above information about apartments built in the 1990s in Harbin, the apartment prototype is designed with a 59 m2 floor area with rectangle shape on the north-south orientation as described in Figure 3. To be consistent with the prototype in cold zones, the prototypical apartment is presumed at the north-western corner of a standard floor with most windows facing the north, west, and south, as depicted in Table 4.

2.2. Optimization Model

2.2.1. Principle of Optimization Model

A decision on retrofit strategies is usually a trade-off between the cost of retrofit measures and the return generated by the energy savings attributable to the retrofit. Economic analysis can identify energy-efficient and cost-effective retrofit alternatives by comparing the overall benefits of various retrofit solutions. Several quantitative methods for capital calculation can be used to evaluate the economic feasibility of building retrofit alternatives such as NPV, pay-back period, and internal rate of return. NPV is a measurement of profit calculated by subtracting the present values of cash outflows (including the initial cost) from the present values of cash inflows over a period of time. The major concern for investors is to obtain the maximum return on their payment, and NPV is an effective way to demonstrate how much investors can benefit from the investment [37]. Meanwhile, it is useful to assess the cost effectiveness of a set of building retrofit measures during a life cycle. Amongst various evaluation methods, NPV is the most common way to find the optimal set of energy-efficient and cost-effective measures for high building thermal performance over a long term [65]. The NPV involved in a building retrofit project is determined by calculating the costs of retrofit measures and the benefits from building renovation over a period of time. In this study, the NPV of the return on investment in retrofitting existing buildings depends on retrofit costs and the earnings from energy consumption reduction.

2.2.2. Period of Time and Discount Rate for NPV Model

The period of investment is based on the lifespan of a building after renovation. After the sustainable building retrofit, buildings usually see their lifetime expanded by as much as 30 years without further renovation taking the expected lifetime of a building structure into account, although the lifespan of some retrofit components, such as window glazing, is around 25 years, and some equipment needs improvement after 15–20 years [66]. The longer the building’s lifetime after renovation is, the greater the benefits of a retrofit measure are. In practice, renovation and replacement of building envelopes rarely occur more often than every 20 years or so, since many building components—wall insulation and window, door and roof upgrades, for example—last for about 30 years at most [67]. If not taking the lifetime of mechanical systems into account, the proper life cycle of investment on retrofit may be around 30 years. However, the average lifespan of mechanical systems in a building is approximately 20 years. In particular, the life cycle of air-conditioner can range from 10 to 20 years in accordance with different standards [68]. Taking the lifetime of building structure and building service systems into account, it can be assumed that the life cycle of a total package of building retrofit measures is 20 years, and the present study adopts this assumption for economic calculations.
Another important factor to determine the NPV is the discount rate, which is the rate of return used in a discounted cash flow analysis. The rate used to discount future cash flows to the present value is a key parameter of this process. The benefits from a building retrofit will all be realized in the future, so when determining the present value of future cash flows, the economic technique used in NPV is discounting rather than growing. According to data from the FRED Economic Research website, the discount rate in China has been around 3% since 2000 [69]. In the present study, the discount rate for NPV analysis is assumed to be 3%.

2.3. Decision Objective of Optimization Model

2.3.1. Problem Definition of Optimization Model

Economic analysis can help identify the energy-efficient and cost-effective retrofit alternatives through the comparison of the overall benefits of various retrofit solutions [30]. As trade-off between energy saving and costs is a very important criterion, optimization is imperative for retrofit decisions. The detailed principles and considerations of the optimization model adopted in this study are given in Supplementary Information (S1). The first step involved in the development of the optimization model is to identify the objectives and to formulate those objectives into optimization mathematical expressions. The second step is to define the proper decision variables, criteria, and constraints, and the optimal choice may not be practicable and convincing in the absence of any information about the objective functions, decision variables, and constraints. These variables should present all sets of potential measures that are used to improve the building energy performance and indoor thermal comfort in a building retrofit, such as insulation, mechanical systems, control systems, renewal energy (RE), and so on. Constraints are based on the attributes of decision variables and the requirements of other parameters pertinent to the objectives [70]. To determine the optimal retrofit solution of existing high-rise residential buildings in the cold and severe cold zones, building prototypes were drawn up to perform the energy simulation and optimization (details are given in Supplementary Information S2). The aim of building retrofit is to reduce the energy consumption of existing buildings while minimizing their retrofit costs.

2.3.2. Decision Variables of Optimization Model

Energy reduction can be translated into economic benefits, and the overall gain originating from building renovation can therefore be quantitatively described as economic expressions such as NPV. NPV is a common method for analyzing the feasibility of a building retrofit and finding the most suitable solution to maximize the energy efficiency of existing buildings and minimize the retrofit costs [1,24,30,71].
The entire investment (C) in building retrofit is composed of the cost ( C T i ) of a group of retrofit solutions used in the prototype, as shown in the following Equation (1):
C r e t r o f i t = i = 1 n C T i
where C r e t r o f i t is the overall cost of all retrofit measures, C T i stands for the costs of retrofit techniques T i , i   = 1, 2, 3, …, n, T i represents the i type of retrofit technique (n = 28 in this study).
From an economic perspective, energy-saving benefits can be quantitatively calculated in terms of money, and depend on the amount of energy reduction ( Δ E ) and the unit price (CE) of different types of energy used in the studied climatic zones. The total energy consumption ( E t o t a l ) in a building consists of energy used for heating ( E H ) , cooling ( E C ) , lighting   E L , domestic hot water E D H W , and equipment   E E . The thermal properties of the above systems for heating, cooling, lighting, domestic hot water (DHW), and equipment, as well as the building envelope, determine a building’s energy efficiency. Retrofitting measures can improve the thermal properties of building components including envelope and service systems, and the energy use in a building is therefore reduced after renovation. The energy reduction is calculated as the building energy consumption before and after employing retrofit measures. This energy saving can lead to reductions in the costs of electricity, natural gas, and other types of energy used in apartments. The baseline ( E b ) for energy reduction calculation is energy consumption in the existing buildings with its original envelope and mechanical systems. After upgrading, there will be an updated energy use ( E a ) that reflects a better thermal performance produced by energy-efficient retrofitting measures. Thus, energy reduction can be described as follows, in Equation (2):
Δ E = E b E a
where Δ E defines the reduction of energy consumption caused by building retrofit, E b denotes energy consumption before the building retrofit (the baseline of energy consumption was based on S1), and E a represents energy consumption after the building retrofit, as determined by the thermal properties of the retrofit measures—Equation (3):
E a = E a L + E a H + E a C + E a D H W + E a E
where E a L   i s   energy use for lighting after retrofit, E a H   i s   energy use for heating after retrofit, E a C   i s   energy use for cooling after retrofit, E a D H W i s   energy use for domestic hot water (DHW) after retrofit, and E a E is energy use for domestic equipment, all after retrofit with no change in appliances.
The return obtained from building retrofits ( R ) depends on the total energy reduction ( Δ E ) in a life cycle and the cost of energy ( C E ), which can be calculated by Δ E and CE, as shown in Equation (4):
R = Δ E C E
where R is the return produced by energy reduction, Δ E is the energy reduction after retrofitting in a lifetime, and C E is the cost of energy.
The life cycle of a building retrofit is assumed to be 20 years, so the total energy reduction should take this overall time period into account. Therefore, the NPV is shown in the following Equation (5):
N P V = t = 0 N R t 1 + i t = t = 0 20 R C r e t r o f i t 1 + i t
where R t is the net cash flow of return on investment in building retrofit, i is the discount rate (i = 3%), and t denotes the period of analysis in years, N is the total number of period (N = 20 in this study), R represents the return produced by the reduced energy cost, which is determined by the unit price of energy ( C E ) and energy reduction ( Δ E ) as described in Equation (3), C r e t r o f i t denotes the overall cost of all retrofit measures as stated in Equation (1).
The maximum NPV indicates the minimum cost of retrofit and maximum energy reduction, which leads to the optimal building retrofit decision. As presented in Equation (6), the decision criterion is:
M a x   N P V = M a x t = 0 20 R C r e t r o f i t 1 + i t
In identifying the maximum NPV, the optimal set of retrofit measures will be found, as these measures determine the C r e t r o f i t   and the return R generated by the reduced energy consumption Δ E . The present study examines 28 potential types of retrofit techniques involving lighting, heating, and cooling, energy management, solar energy use, and the building envelope, etc., based on the literature review and case studies, for retrofit decision making (T1–T28). These techniques are defined as decision variables in the decision model (the decision variables are described in Supplementary Materials, S2).

2.4. Constraints

Objectives and decision variables have to satisfy the following constraints:
  • Diverse energy-saving targets require different retrofit decisions, all based on balancing economic benefits and energy reduction. In addition, there may be different energy-saving potentials under different climatic conditions, therefore, it is essential to restrict energy reduction to a certain range in order to identify the optimal retrofit options for a given energy reduction requirement. Assuming that there are six levels of energy reduction—i.e., 20%, 30%, 40%, 50%, 60%, and 70%—there will be six corresponding sets of optimal retrofit measures.
  • According to some retrofit projects conducted in northern China, improvement of the heating system alone can help occupants reduce energy consumption by 10%. For existing public buildings, the Chinese government has mandated decreases in energy use by 10%, 20%, or 30% [72,73,74]. In order to identify the optimal retrofit decisions for various energy-saving targets, this study begins by analyzing the best choices for building retrofits that will achieve energy conservation in the range of 20–70% in each climatic zone. Thus, the variable regarding energy reduction should meet one of the following constraints:
    (i) 
    22 % * E b Δ E 20 % * E b (leading to a set of optimal decisions to meet a 20% target),
    (ii) 
    32 % * E b Δ E 30 % * E b (leading to a set of optimal decisions to meet a 30% target),
    (iii) 
    42 % * E b Δ E 40 % * E b (leading to a set of optimal decisions to meet a 40% target),
    (iv) 
    52 % * E b Δ E 50 % * E b (leading to a set of optimal decisions to meet a 50% target),
    (v) 
    62 % * E b Δ E 60 % * E b (leading to a set of optimal decisions to meet a 60% target),
    (vi) 
    72 % * E b Δ E 70 % * E b (leading to a set of optimal decisions to meet a 70% target).
  • The biggest concern regarding a building retrofit is its economic benefits based on reasonable energy reductions, so it is important to indicate that the NPV involved in building retrofits is positive rather than negative. If it is negative, a building retrofit will be highly unlikely to appeal to stakeholders. Thus, the constraint for NPV is as follows: NPV > 0.

3. Results and Discussion

3.1. Cost-Effective Retrofit Measures in Cold Zone

3.1.1. Optimal Set of Retrofit Measures for the Cold Zone

In cold zones, the largest optimal NPV can be obtained by reducing energy consumption by 60% in existing buildings, and thus, several types of renovation measures are applied to improve building thermal performance (Table S1). The retrofit of the lighting system, including a control system and lamps, is, as always, the first step in reducing energy consumption. Heating is the dominant source of energy demand in cold zones and makes up more than 65% of the total energy consumption in a building. The energy efficiency of heating systems has a significant impact on the amount of delivered energy; the better the thermal performance of a heating system, the less energy is required to produce the same amount of heat for occupants. The original heating system uses central distribution with a gas-fueled boiler, which has no design to control or adapt the heating operation. There is no doubt that such an outdated distribution system can lead to relatively low energy efficiency. The renovation of the heating pipe system includes upgrading the layout, metering, thermostats, and radiators, and is beneficial for improving the heating system’s energy efficiency. This renovation is a key component of the set of optimal retrofit measures to improve indoor thermal comfort and heating consumption in heating-dominant zones. Due to occupants’ improper operation, there may be many areas where heating is wasted, so it is necessary to utilize a smart control system to manage the heating operation. Hence, a C-class building energy management system (BEMS) is chosen to control the operation of mechanical systems so as to meet users’ needs. The combination of an updated heating system and a BEMS can help obtain a considerable reduction in energy consumption for heating.
Both wall insulation and window retrofits are highly important for the improvement of a building’s thermal performance in cold zones. Walls on all four orientations require renovation with insulation that is at least 50 mm thick. For the eastern wall, the insulation thickness should be increased to 100 mm. Otherwise, total energy use cannot be reduced by 60%. The thicker insulation is, the better it is at preventing heat transfer and heat loss through walls. Heat transfer between heated indoor and cold outdoor environments is a major source in driving up heating demand, so reducing heat transfer through walls will help reduce the heating consumption significantly. The thermal performance of windows is another key element of a building envelope that causes heat loss. Double-pane, low-e glazing has better thermal properties such as lower U-values that indicate lower rates of thermal transmittance through a material. The low thermal transmittance leads to low heat loss, thermal convection, and conduction, which together determine the thermal performance of window systems. Therefore, 6/12 mm double-pane, low-e glazed windows (1.76 W/m2K) are used to replace the current 5 mm single-pane glazing (6.4 W/m2K); this upgrade, combined with wall insulation, can make the building as a whole a good insulator that will mean less energy, which is expended to maintain a comfortable thermal environment in cold winters. Due to the much lower cooling demand in cold zones, internal venetian blinds are employed to reduce solar heat gain in summer; they will not have a significant impact on the heating demand in winter.
Saving 60% energy use can lead to more than USD $8500 in net benefits from a building retrofit (Table S2). The total investment in this retrofit scenario is around USD $3580; the most expensive part of the optimal measures is the BEMS, which makes up almost 40% of the total cost. The energy saved by the optimal set of retrofit measures is up to 319 kWh/m2/year, which helps occupants achieve a 60% energy use reduction. Each dollar spent on the retrofit can produce about 100 kWh of energy savings over a life cycle.
The second most expensive group of retrofit measures is upgrading window glazing (Table S2). The 6/12 mm double-pane, low-e glazing in four directions costs USD $740, which accounts for more than 20% of the overall retrofit cost. The third biggest element (around 18%) in the retrofit cost is wall insulation. Thicker insulation, such as 50 mm, is much more expensive than 30 mm insulation. To optimize the NPV, only the eastern wall is upgraded to 50 mm insulation. The renovation costs for the heating system are similar to the wall insulation expenses in this apartment prototype. The retrofit price of heating system per floor area is about USD $11/m2. The total expense for these improvements is about USD $630, which accounts for nearly 18% of the overall investment in the building retrofit. The lighting system and internal shading device expenses are relatively low. From the economic perspective, both are cost-effective retrofit measures, since low investments bring comparatively higher returns in energy savings. Thus, it is always worth paying attention to improving them, even though their contribution to the overall reduction in energy consumption is not as significant as other, more expensive solutions.

3.1.2. Comparison between Optimum Retrofit Choices for Various Energy-Saving Targets

Comparing retrofit measures used for different energy-saving targets reveals that there is no difference in lighting renovation. All optimal retrofit decisions utilize LEDs and daylighting control in heating-dominant regions (Table 5). As to mechanical systems, it is unnecessary to improve heating systems when the stakeholders plan to reduce energy consumption by less than 40%. If the building’s thermal performance must achieve a 40% or greater savings level, upgrading the heating system becomes a critical factor. Thus, retrofitting the heating system’s distribution pipes, metering, and thermostats are applied to all plans with at least 40% improvement targets. For relatively low energy-saving targets in the 20–40% range, it is irrational to adopt a BEMS to reduce energy use, given its high cost. However, the BEMS does offer a powerful potential to adjust the operation of mechanical systems and thus help save energy consumed by heating and cooling. A building would have a virtually perfect thermal performance by integrating a BEMS with a renewed mechanical system. Therefore, a C-class BEMS is used to achieve 50% and 60% improvements in energy efficiency. This class of BEMS contributes mainly by adapting the building operation so as to avoid occupants’ improper control settings, but it is insufficient to decrease energy consumption by 70%; for that, a smarter BEMS is employed.
There is a slight difference between the various optimal wall insulation solutions in cold zones. Each possible retrofit scenario has to include insulation on the northern wall. The most common thickness on a northern wall is 30 mm, but the thickest insulation is 120 mm, which is used for 70% energy saving. The medium thickness of wall insulation in this orientation is 50 mm, which is used for 40% and 60% improvement in thermal performance. In general, southern walls need thicker insulation since most retrofit plans adopt 50 mm expanded polystyrene (EPS) to reduce thermal transmittance through the wall. Even for the greatest retrofit benefits, the optimal thickness of wall insulation on the south remains 50 mm. Similarly, the most popular thickness of wall insulation on the west is 50 mm; only the highest energy efficiency demands 120 mm EPS insulation in this orientation. The thickness of wall insulation on the east tends to vary. Thirty mm insulation on the eastern wall is adequate for 30% and 40% energy savings. If the retrofit’s purpose is to obtain the largest economic return, 50 mm insulation on the east is required.
The thermal properties of southern windows are not as important as the windows in other directions. Only when energy use must be reduced by at least 60% is it necessary to replace the current window glazing on the south. Eastern and western windows, however, must employ double glazing to replace the existing 5 mm single-pane, clear glazing. More importantly, most optimal retrofit decisions choose the 6/12 mm double-pane, low-e glazing for the renovation of western and eastern windows. Along with increases in the building’s energy efficiency requirements, it is better to choose double-pane, low-e glazing to obtain further improvements.
For relatively low retrofit targets such as 20% and 30% reductions, the maximum investment in the retrofit is less than USD 1200, with the biggest part of the retrofit cost involving wall insulation. When the building’s thermal performance needs to increase by 40%, the most expensive retrofit measure will be mechanical systems, such as the heating system. Its cost is the highest, with more than 37% of the entire investment spent on this mechanical element. The absolute value of the retrofit cost of walls and windows does show a significant change compared to the investment involved in 20% and 30% reductions (Figure 4). To obtain a 50% improvement of energy efficiency, the BEMS takes up almost half of the entire investment. Even in the group of best retrofit decisions with the maximum NPV, the BEMS cost still accounts for around 40% of the overall spending on renovation. Beyond the BEMS, attention should be paid to the improvement of the heating system, since it involves about 20% of the funds used for the entire building retrofit for higher energy efficiency targets of at least 50% improvement. Overall, the focus of the building retrofit should be on mechanical systems when the building’s thermal performance has to improve by at least 50%. There is no significant change in the cost of window retrofits with a minimum 50% increase in building energy efficiency. The cost of the wall insulation retrofit shows a slow growth trend in the 50–70% energy-saving targets. This indicates that the building’s energy efficiency is sensitive to the thickness of wall insulation, and that it is worthwhile to adopt a well-insulated wall at a higher cost to achieve a greater reduction in energy use.
The maximum NPV is more than USD $8500 over the life cycle of a retrofit. The optimal NPV begins at around USD $3900 and keeps increasing until it reaches the 60% target. Above 60%, the optimal NPV declines rapidly. The highest optimal NPV reflects the maximum potential of energy savings in cold zones. The overall investment goes up along with increases in the building’s energy efficiency requirements. As shown in Figure 5, the growth trend is gentle below 60%, at which point it becomes steep. From the viewpoint of economic analysis, it is better to concentrate on retrofit measures targeting a 60% improvement. The decline of energy savings per cost (ESpC) shows a relatively steady trend (103–100 kWh/USD) when the energy consumption reduction stays in the 50–0% range (Table 6 and Figure 5).

3.2. Cost-Effective Retrofit Measures in Severe Cold Zone

3.2.1. Optimum Retrofit Measures in the Severe Cold Zone

The optimal NPV can be obtained by a 60% reduction in energy consumption; the corresponding set of renovation measures is shown in Table S4. Similar to the cold zone, the renovation of lamps and the lighting control system are still the most common measures applied to reduce energy consumption in severe cold zones. LEDs are the best choice for replacing existing fluorescent lamps. Daylighting and lighting control are beneficial to reducing lighting energy waste.
The severe cold zone is completely heating-dominant areas, so cooling demand can be ignored. The focus of building retrofit is to reduce heating demand and improve the energy efficiency of heating systems. The fundamental solution is upgrading the heating distribution pipe system, including the layout of pipes in the building, heat metering, radiators, and thermostats. After a retrofit, the energy efficiency of the heating system can be increased by up to 38% (from 0.68 to 0.94), which is the critical factor in determining the delivered energy for heating demand. In order to reduce more energy use related to heating, it is better to adopt a BEMS to manage the occupants’ improper operation of the heating system. The automatic control of this mechanical system is helpful in reducing the energy waste caused by inappropriate operation. To obtain higher building energy efficiency, a higher level of BEMS such as a B-class is considered, since it can optimize the operation by tuning the various controllers involved in mechanical systems. This type of BEMS is more powerful in helping a building achieve optimal thermal performance with good indoor thermal comfort. Therefore, B-class BEMS is employed to improve the energy efficiency by 60%. In order to reduce the energy used for DHW, the existing electric water heater is replaced by a solar water heater.
The severe cold zone needs external walls with better thermal properties to reduce heat transmittance in the heating season. The thin insulation on the existing walls is insufficient to prevent heat transfer from the walls and makes it difficult to reduce energy consumption for heating purposes. Thus, 50 mm EPS insulation is required for the walls in all four directions. Windows are another main component in transferring heat from the indoor environment to the outside. Using wall insulation alone cannot provide quality indoor thermal comfort; it must be integrated with high-performance windows. All existing 6/9 mm double glazing should be upgraded to 6/12 mm double-pane, low-e windows, since low-e glass has a much better U-value, which can help dramatically reduce heat transmittance. This replacement is quite useful in making the building as an insulator in severe cold environments; relatively low energy use can maintain a comfortable indoor thermal environment. Shading devices are not appropriate for this area, as they are used to reduce solar heat gain, which helps reduce heating demand in completely heating-dominant regions.
The costs of the chosen optimal retrofit measures are presented in Table S5. The overall investment in a retrofit for a 60% reduction is around USD $5820, with the BEMS accounting for more than 47% of the total. The energy saved can be as much 335 kWh/m2/year, which accounts for about 60% of the entire energy consumption. However, each dollar can only reduce around 67 kWh of energy due to the high retrofit cost.
The computer-based control system is the most expensive retrofit solution, but it is essential in these regions; otherwise, the reduction in energy consumption cannot reach 60%. The second largest portion of retrofit costs is taken up by window glazing. More than 17% of the overall investment is allocated to the 6/12 mm double-pane, low-e glazing for all four orientations, with a cost of around USD $1000. In fact, the investment in mechanical retrofit merits more attention since the unit price is much higher than what is required for the building envelope retrofit. For instance, the retrofit cost of a heating system is up to USD $740 for a small prototypical apartment, and the overall cost of a solar water heater is about USD $720, including both equipment and installation fees.
The relatively inexpensive retrofit measures are retrofitting walls and the lighting system. Insulation is one of the most common materials in the construction market in severe cold zones, and its price is lower than in other climatic zones. The total cost of wall insulation is approximately USD $450, which accounts for less than 8% of the entire retrofit investment. The least expensive renovation is the improvement of lamps and lighting controls; the cost of the entire lighting retrofit is less than USD $200 for an apartment, and the proportion of the overall retrofit cost is 2%.

3.2.2. Comparison between Optimum Retrofit Choices for Various Energy-Saving Targets

Retrofitting lighting systems is a highly effective way to reduce energy consumption, as the improvement of lighting system energy efficiency not only has great potential to reduce lighting energy waste, but also comes at a relatively low cost, has a simple upgrading process, and has limited effects on occupants’ lives. This group of retrofit techniques ( T 1   T 4 ), made up of the renovation of daylighting control, occupancy lighting control, constant lighting control, and lamps, is always in demand for energy reduction, no matter what the energy-saving target is. The best choice for daylighting and occupancy lighting control ( T 1 and T 2 ) is a fully automatic system for any energy conservation requirement. In terms of the optimal NPV principle, it is unnecessary to adopt dimmers ( T 3 ) to control constant lighting in severe cold zones, except to meet the aim of maximum energy saving (67%). LEDs ( T 4 3 ) are always chosen to replace the current lamps in any optimization process, owing to the high energy efficiency of LED lamps as shown in Table 7.
Energy used for heating accounts for more than 70% of the total energy consumption in severe cold zones. The focus of a retrofit solution should be placed on how to reduce the heating demand and the energy delivered for heating. Accordingly, the retrofit measure for the heating system ( T 5 ) is an essential solution for any kind of energy efficiency requirement (from 20% to 60%) in this zone. All retrofit scenarios adopt the same retrofit measures for the heating system, since it is the fundamental renovation solution for reducing energy consumption used for heating in heating-dominant regions. A BEMS ( T 7 ) is a relatively expensive retrofit technique compared to other traditional measures since it is a computer-based control system. However, it plays an important role in heating-dominant zones due to its control of heat loss and overheating. For different energy-saving purposes, the best choice of BEMS for the optimal NPV would be different based on cost and energy reduction target. When plan to reduce energy consumption by about 20–30%, it is reasonable to ignore this retrofit measure ( T 7 1 ) due to its high cost. As building energy efficiency demands increase to the 40–50% improvement level, adapting the building’s operation to meet the users’ demands ( T 7 1 ) should be taken into account, as it can avoid the energy wasted when occupants recognize and react to overheating. Thus, a higher energy efficiency (60% reduction) target requires an automatic operation system ( T 7 3 ) to optimize the building operation; this system can automatically control the heating supply according to indoor comfort needs. It is extremely hard to improve a building’s energy efficiency after its energy consumption has been reduced by 60%. The smartest BEMS ( T 7 4 ) is used to help the building reach its highest thermal performance, but simultaneously drives the retrofit costs to their highest level.
Only when the energy use must be reduced by at least 40% do most existing windows need to be replaced by double-pane, low-e glazing. This is because the thermal properties (low U-values) of the existing double glazing are sufficient to provide thermal comfort with high energy efficiency. There is no need in severe cold zones for both external and internal shading devices ( T 17 T 28) such as overhangs, side fins, venetian blinds, roller shades, or curtains, no matter how what the required energy reduction is (Table 7). Because the total energy used for cooling is around 4 kWh/m2 through the entire year, it also has the potential to increase the heating demand.
Comparing the retrofit costs involved in different energy saving plans, the major variation is still caused by the renovation of mechanical systems, although there are some differences in the choices of window retrofit (Table S6). If the building adopts a BEMS for better thermal performance, the investment can increase sharply, especially if the smarter classes of such a control system are chosen. For instance, the BEMS cost is USD $1440 to obtain 50% energy saving, but increases to USD $2770 for a 60% reduction. This computer-based system accounts for more than 40% of the total retrofit cost and is the most expensive retrofit item (Figure 6).
The investment in the heating system is another major part of the whole retrofit cost. At the beginning stage with a low energy-saving target, more than 77% of the overall retrofit cost is spent on renovating the heating system. The focus of a retrofit decision has to be on the investment in a heating system, since it is the most important driver of the total retrofit cost (Figure 6). Even for the purpose of highest energy efficiency, the expense for upgrading heating systems still accounts for around 13% of the entire retrofit investment. To obtain the highest energy efficiency, stakeholders have to pay USD $1000 for the window retrofit. This accounts for more than 17% of the total renovation costs. If a BEMS is not selected by the retrofit decision makers, upgrading windows will consume more than 40% of the total investment with a 40% savings target. Wall insulation is relatively cheap, ranging from 7% to 22% of the entire retrofit investment, depending on the energy-savings target.
Based on the optimization model, the optimal NPV is about USD $7470 at the 60% energy consumption reduction level (Table 8). The NPV will decline dramatically, and the cost of building retrofit will increase sharply above 60% (Figure 7).
If the target is 20%, the NPV is approximate USD $3860 (Table 8), but the NPV can almost double when the target is 50%. Meanwhile, the investment in retrofit measures is quite low when the energy conservation goal is less than 50%. The overall cost of retrofit solutions is no more than USD $2500 for an apartment in a severe cold zone (Table 8). The slow growth trend in investment means that it is much easier to cut down energy use by less than 50% than it is when the target is greater than a 50% decrease. As for ESpC, it continues to fall from the beginning of energy reduction. This downward trend is caused by the degree of difficulty of improving a building’s energy efficiency based on its original thermal performance. At the beginning of a building retrofit aiming at only a 20% reduction in energy use, every dollar can save around 148 kWh over a retrofit’s lifespan. Conversely, energy conservation per dollar can achieve only 67 kWh over the same time frame when the energy efficiency must reach a 60% target. Therefore, the maximum energy savings per investment are always obtained at the lowest energy reduction target. It is better to integrate retrofit cost, NPV, and energy reduction target to choose the set of optimal retrofit measures aiming at less than 50% energy reduction; this is more beneficial to their NPV and building energy efficiency.

3.3. Comparison of Optimum Retrofit Measures between Studied Zones

Due to different climatic conditions, the optimal sets of retrofit measures will vary widely in different climatic zones, even with the same energy-saving target. Retrofit decisions for 40% energy savings as an example, the best choice for each zone shown in Table 9. In the lighting system, regardless of climatic zone, retrofitting occupancy control is quite useful to reduce electric lighting usage and save energy. The second popular lighting control system is automatic daylighting control. LEDs are one of the most popular energy-efficient forms of lighting. It is better to improve the heating system in both cold and severe cold zones. The energy used for heating demand accounts for around 70% of the overall energy use in these two regions, and the focus of a building retrofit is to decrease the delivered energy to meet heating demand. A BEMS requires a higher investment, and thus is unreasonable to apply for lower building performance targets.
In northern China, many retrofit projects have employed wall insulation to improve the thermal performance of existing buildings [41]. However, wall insulation in different orientations has different impacts on building energy efficiency, and the best choice of directions for different climatic backgrounds would be completely different due to variations in the solar radiation caused by climatic conditions. In order to obtain a 40% energy saving, all zones with cold winters prefer to employ low-e glazing to reduce heat demand. Most also adopt 6/12 mm double-pane, low-e glazing, except on two sides in cold zones. The overall cost and unit cost per floor area of each retrofit choice are shown in Table 9, and the benefits of such retrofits are shown in Table 10. Retrofits in cold zones can obtain the higher NPV of retrofit benefits (USD $6630 over a 20-year lifespan), whereas it is about USD $6400 in severe cold zones. The reduction in heating demand makes a large contribution to the high optimal NPV in these heating-dominant areas due to the large baseline of energy consumption for heating needs. The higher energy saving is up to 226 kWh/m2/year in the severe cold zone, but cold zones can generate the higher ESpC (USD $144/kWh), compared to severe cold zones (USD $108/kWh).
Improving energy efficiency, de-carbonizing heating and cooling, and increasing renewable energy systems in existing residential buildings, are crucial for meeting social and climatic policy objectives. In the retrofit project, low cost capital is critical to the economic viability [72]. By considering the local climatic conditions, retrofit measures and the associated retrofit costs, this study adopted the NPV method with the prototype buildings to develop a deterministic model with energy saving targets for existing high-rise residential buildings in the cold and severe cold zones of China. The results (e.g., optimal set of retrofit measures with different energy reduction target) can be used directly or can be used as a reference in practical retrofit projects in the studied regions, and the model can be adapted for selecting appropriate retrofit choices in other climatic zones. This study found a 50–60% energy conservation optimally with a selection of proper retrofit measures. With only renovating HVAC system, Fine and Touchie [73] found a 14% reduction in space heating energy consumption with a payback period of 10 years in multi-family residential buildings in Canada, whereas about annual energy of 7.01 kWh/m2 can be saved with building envelope retrofits in China cost-effectively [74], and window retrofit can save 7–16% of the energy demand in the residential buildings depending on the climate in the USA [75]. Moreover, about 40% reduction of heating energy demand was predicted for installing new insulation and high efficiency windows in South Korea [76], and a total 15% energy reduction with a payback period of 10.4 years was predicted with the potential measures in residential building in Brazil by Sartori and Calmon [77]. By improving window, wall, and roof systems of single-family houses in Turkey, about 50% of the heating demand can be reduced with favorable payback periods [78]. After selecting a set of retrofit solutions, life cycle assessment is crucial in decision-making process for better promoting the sustainability of the existing building, which is lacking in the current literature [79], and is also not considered in this study. The choice of retrofit measures is greatly influenced by costs, and the economic outcomes are also influenced by the measures [76,80,81]. In addition, building retrofits are subject to various uncertainties, such as the thermal properties of building materials, costs of retrofit technologies, operation patterns, etc., which could affect the retrofit choice [32,82], which are not considered in this study. In addition, combining uncertainty with sensitivity in the optimization process is, therefore, essential to provide stakeholders with a sufficient level of confidence in choosing the best retrofit solution. Therefore, future studies should address these important aspects (e.g., lifecycle assessment of such optimized retrofit measures, uncertainty, sensitivity analysis, etc.) for promoting sustainable retrofit in the existing residential buildings.

4. Conclusions

By considering the thermal properties and local cost of retrofit measures, a deterministic optimization model was developed to evaluate the optimal energy-saving potential for various retrofit alternatives in cold and severe cold regions of China. Based on deterministic analysis, the optimum energy saving target and the corresponding NPV of retrofit revenue were estimated. There is a great potential to improve a building’s thermal performance in the cold and severe cold zones as the maximum optimum profit is gained by a 60% energy saving in these two regions. Undoubtedly, the optimum retrofit solution is to improve the energy efficiency by 60% in the cold zone since its earning (USD $152/m2) is much higher than the benefits from other levels of energy saving, and retrofit costs are only slightly higher than those for a 50% reduction. However, the optimum energy saving target in the severe cold zone may be 50%, because an energy saving of 60% or 50% results in the same maximum NPV (USD $128/m2), but 60% requires a much higher cost. Meanwhile, the retrofit cost (USD $60/m2) used for the 50% reduction is only half of the investment on the 60% improvement of energy efficiency in this region. In order to reduce the investment in retrofit, it is better to choose 50% as the energy-saving target. If there is no limitation in investment, the energy-saving goal can be set at 60% in the severe cold zone, since it can further reduce energy consumption based on the same NPV, which is the same as it is for the cold zone.
Although the retrofit solutions are quite similar in both of the zones, they differ in the choice of building energy management systems, domestic hot water systems, and external wall insulation thickness. Renovations to the lighting system (including the control systems and lighting lamps) are applicable to both climatic zones and all energy-saving targets, and may be the first choice because of their energy-saving potential and low cost. The best retrofit choices for the cold zone are related to building energy management (C level–adapting the operation), the central heating system (such as pipe layout, metering, and a thermostat), wall insulation (50 mm and 100 mm insulation), window glazing (double low-e on all windows), and internal shading. The combination of these retrofit measures can improve the building’s thermal performance by 60% and produce the largest economic profit. The optimum retrofit solution corresponds to the 50% or 60% reduction of energy consumption and can produce the maximum NPV in the severe cold zone, but a 60% energy saving requires a higher retrofit cost than the 50% reduction. To achieve the higher energy saving-target (60%), the optimal retrofit measures should include building energy management (B level—optimizing the operation), the central heating system (such as pipe layout, metering, and a thermostat), a solar water heater for DHW, wall insulation (50 mm insulation), and window glazing (double low-e on all windows). The best set of retrofit measures in this region is very similar to that applied to the cold zone; they differ in the BEMS types, DHW, and insulation thickness.
The identified optimum retrofit solutions can be directly adopted in the cost-effective retrofitting of existing high-rise residential buildings in the real practice in the studied climate zones of China, with a target to save a maximum of 60% of the total energy consumption. The results can also be used for selecting a specific retrofit measure as reference (e.g., cost-effective specific heating system). In addition, the deterministic decision-making mechanism developed in this study can be adapted to other regions in China, as well as globally to find out the suitable retrofit measures. Building retrofits are subject to various uncertainties, such as the thermal properties of building materials, costs of retrofit technologies, operation patterns, etc., which could affect the retrofit choice, which should be critically considered in the future studies. Moreover, the environmental impacts (e.g., CO2 emission) for selecting different sets of retrofit solutions can also be evaluated for ensuring sustainable building retrofits.

Supplementary Materials

The following are available online at https://www.mdpi.com/2071-1050/12/14/5831/s1, S1: Climate and Building Prototypes, S2: Decision Variables of Optimization Model, Table S1: Optimum retrofit measures in the cold zone, Table S2. Economic analysis of building retrofits in the cold zone; Table S3. Investment (USD) in retrofits for various energy-saving goals in the cold zone, Table S4. Optimum retrofit measures in the severe cold zone, Table S5. Economic analysis of retrofit in the severe cold zone, Table S6. Investment in retrofit for various energy-saving goals in the severe cold zone.

Author Contributions

Conceptualization, S.T.N.; Data curation, Q.H. and M.U.H.; Formal analysis, Q.H. and M.U.H.; Investigation, M.U.H. and G.L.A.; Methodology, Q.H., S.T.N. and G.L.A.; Supervision, S.T.N.; Validation, G.L.A.; Writing—original draft, Q.H.; Writing—review & editing, M.U.H., S.T.N. and G.L.A. All authors have read and agreed to the published version of the manuscript.

Funding

The APC was funded by the project of National Social Science Fund of China (Project No. 17BMZ083).

Conflicts of Interest

The authors declare no conflict of interest.

References

  1. Shen, P.; Braham, W.; Yi, Y. The feasibility and importance of considering climate change impacts in building retrofit analysis. Appl. Energy 2019, 233–234, 254–270. [Google Scholar] [CrossRef]
  2. Murto, P.; Jalas, M.; Juntunen, J.; Hyysalo, S. Devices and strategies: An analysis of managing complexity in energy retrofit projects. Renew. Sustain. Energy Rev. 2019, 114, 109294. [Google Scholar] [CrossRef]
  3. He, Q.; Ng, S.T.; Hossain, M.U.; Augenbroe, G.L. A data-driven approach for sustainable building retrofit—A case study of different climate zones in China. Sustainability 2020, 12, 4726. [Google Scholar] [CrossRef]
  4. Pardo-Bosch, F.; Cervera, C.; Ysa, T. Key aspects of building retrofitting: Strategizing sustainable cities. J. Environ. Manag. 2019, 248, 109247. [Google Scholar] [CrossRef] [PubMed]
  5. Regnier, C.; Sun, K.; Hong, T.; Piette, M.A. Quantifying the benefits of a building retrofit using an integrated system approach: A case study. Energy Build. 2018, 159, 332–345. [Google Scholar] [CrossRef]
  6. Tan, Y.; Liu, G.; Zhang, Y.; Shuai, C.; Shen, G.P. Green retrofit of aged residential buildings in Hong Kong: A preliminary study. Build. Environ. 2018, 143, 89–98. [Google Scholar] [CrossRef]
  7. Union European. Statistical Pocketbook 2018: Energy; Publications Office of the European Union: Luxembourg, 2018. [Google Scholar] [CrossRef]
  8. Eom, J.; Clarke, L.; Kim, S.H.; Kyle, P.; Patel, P. China’s building energy demand: Long-term implications from a detailed assessment. Energy 2012, 46, 405–419. [Google Scholar] [CrossRef]
  9. Güneralp, B.; Zhou, Y.; Ürge-Vorsatz, D.; Gupta, M.; Yu, S.; Patele, P.L.; Fragkias, M.; Li, X.; Seto, K.C. Global scenarios of urban density and its impacts on building energy use through 2050. PNAS 2017, 114, 8945–8950. [Google Scholar]
  10. China Energy. Building Energy-Saving Industry Observation: Detailed Factors Affecting the Development of the Industry, 2016. Available online: http://www.cnenergy.org/hb/jzyth/201612/t20161207_409532.html (accessed on 15 January 2017).
  11. IEA. Energy Balances of Non-OECD Countries 2015; International Energy Agency (IEA): Paris, France, 2015. [Google Scholar]
  12. Zhang, X.H.; Zhang, R.; Wu, L.Q.; Deng, S.H.; Lin, L.L.; Yu, X.Y. The interactions among China’s economic growth and its energy consumption and emissions during 1978. Ecol. Ind. 2013, 24, 83–95. [Google Scholar] [CrossRef]
  13. Silvestre, J.D.; Castelo, A.M.P.; Silva, J.; de Brito, J.; Pinheiro, M.D. Retrofitting a building’s envelope: Sustainability performance of ETICS with ICB or EPS. Appl. Sci. 2019, 9, 1285. [Google Scholar] [CrossRef]
  14. Paiho, S.; Seppä, I.P.; Jimenez, C. An energetic analysis of a multifunctional facade system for energy efficient retrofitting of residential buildings in cold climates of Finland and Russia. Sustain. Cities Soc. 2015, 15, 75–85. [Google Scholar] [CrossRef]
  15. Craven, C.; Garber-Slaght, R. Exterior insulation envelope retrofits in cold climates: Implications for moisture control. HVAC&R Res. 2014, 20, 384–394. [Google Scholar]
  16. Dodoo, A.; Gustavsson, L.; Tettey, U.Y.A. Cost-optimized energy-efficient building envelope measures for a multi-storey residential building in a cold climate. Energy Proc. 2019, 158, 3760–3767. [Google Scholar] [CrossRef]
  17. Csoknyai, T.; Hrabovszky-Horváth, S.; Georgiev, Z.; Jovanovic-Popovic, M.; Stankovic, B.; Villatoro, O.; Szendro, G. Building stock characteristics and energy performance of residential buildings in Eastern-European countries. Energy Build. 2016, 132, 39–52. [Google Scholar] [CrossRef]
  18. Nourozi, B.; Wang, Q.; Ploskić, A. Energy and defrosting contributions of preheating cold supply air in buildings with balanced ventilation. Appl. Thermal Eng. 2019, 146, 180–189. [Google Scholar] [CrossRef]
  19. Casquero-Modrego, N.; Goñi-Modrego, M. Energy retrofit of an existing affordable building envelope in Spain, case study. Sustain. Cities Soc. 2019, 44, 395–405. [Google Scholar] [CrossRef]
  20. Zheng, D.; Yu, L.; Wang, L. A techno-economic-risk decision-making methodology for large-scale building energy efficiency retrofit using Monte Carlo simulation. Energy 2019, 189, 116169. [Google Scholar] [CrossRef]
  21. Berardi, U.; Soudian, S. Benefits of latent thermal energy storage in the retrofit of Canadian high-rise residential buildings. Build. Simul. 2018, 11, 709–723. [Google Scholar] [CrossRef]
  22. Arumägi, E.; Kalamees, T. Analysis of energy economic renovation for historic wooden apartment buildings in cold climates. Appl. Energy 2014, 115, 540–548. [Google Scholar] [CrossRef]
  23. Chen, S.; Guan, J.; Levine, M.D.; Xie, L.; Yowargana, P. Elaboration of energy saving renovation measures for urban existing residential buildings in north China based on simulation and site investigations. Build. Simul. 2013, 6, 113–125. [Google Scholar] [CrossRef]
  24. Fina, B.; Auer, H.; Friedl, W. Profitability of active retrofitting of multi-apartment buildings: Building-attached/integrated photovoltaics with special consideration of different heating systems. Energy Build. 2019, 190, 86–102. [Google Scholar] [CrossRef]
  25. Zhao, X.; Tan, Y.; Shen, L.; Zhang, G.; Wang, J. Case-based reasoning approach for supporting building green retrofit decisions. Building Environ. 2019, 160, 106210. [Google Scholar] [CrossRef]
  26. La Fleur, L.; Rohdin, P.; Moshfegh, B. Investigating cost-optimal energy renovation of a multifamily building in Sweden. Energy Build. 2019, 203, 109438. [Google Scholar] [CrossRef]
  27. Pasichnyi, O.; Levihn, F.; Shahrokni, H.; Wallin, J.; Kordas, O. Data-driven strategic planning of building energy retrofitting: The case of Stockholm. J. Clean. Prod. 2019, 233, 546–560. [Google Scholar] [CrossRef]
  28. Penna, P.; Prada, A.; Cappelletti, F.; Gasparella, A. Multi-objectives optimization of energy efficiency measures in existing buildings. Energy Build. 2015, 95, 57–69. [Google Scholar] [CrossRef]
  29. Wu, Z.; Wang, B.; Xia, X. Large-scale building energy efficiency retrofit: Concept, model and control. Energy 2016, 109, 456–465. [Google Scholar] [CrossRef]
  30. Serrano-Jimenez, A.; Lizana, J.; Molina-Huelva, M.; Barrios-Padura, A. Decision-support method for profitable residential energy retrofitting based on energy-related occupant behaviour. J. Clean. Prod. 2019, 222, 622–632. [Google Scholar] [CrossRef]
  31. Sharif, S.A.; Hammad, A. Simulation-Based Multi-Objective Optimization of institutional building renovation considering energy consumption, life-cycle cost and life-cycle assessment. J. Build. Eng. 2019, 21, 429–445. [Google Scholar] [CrossRef]
  32. Gabrielli, L.; Ruggeri, A.G. Developing a model for energy retrofit in large building portfolios: Energy assessment, optimization and uncertainty. Energy Build. 2019, 202, 109356. [Google Scholar] [CrossRef]
  33. Ascione, F.; Borrelli, M.; De Masi, R.F.; DeRossi, F.; Vanoli, G.P. Energy refurbishment of a university building in cold Italian backcountry. Part 2: Sensitivity studies and optimization. Energy Proc. 2019, 159, 10–15. [Google Scholar] [CrossRef]
  34. Jafari, A.; Valentin, V. Selection of optimization objectives for decision-making in building energy retrofits. Build. Environ. 2018, 130, 94–103. [Google Scholar] [CrossRef]
  35. Daly, D.; Cooper, P.; Ma, Z. Qualitative analysis of the use of building performance simulation for retrofitting lower quality office buildings in Australia. Energy Build. 2018, 181, 84–94. [Google Scholar] [CrossRef]
  36. He, Y.; Liao, N.; Bi, J.; Guo, L. Investment decision-making optimization of energy efficiency retrofit measures in multiple buildings under financing budgetary restraint. J. Clean. Prod. 2019, 215, 1078–1094. [Google Scholar] [CrossRef]
  37. Menassa, C.C. Evaluating sustainable retrofits in existing buildings under uncertainty. Energy Build. 2011, 43, 3576–3583. [Google Scholar] [CrossRef]
  38. De Wilde, M. The sustainable housing question: On the role of interpersonal, impersonal and professional trust in low-carbon retrofit decisions by homeowners. Energy Res. Social Sci. 2019, 51, 138–147. [Google Scholar] [CrossRef]
  39. ISO. Energy Performance of Buildings–Calculation of Energy Use for Space Heating and Cooling (Vol. CEN-ISO 13790-2008(E); ISO: Geneva, Switzerland, 2008; pp. 1–172. [Google Scholar]
  40. Li, H. Optimal choice for medium and high-rise buildings in cold region-concrete block building. Constr. Technol. Low Temp. 1995, 2, 4–6. [Google Scholar]
  41. Hu, Q.; Hu, N.; Duan, J. The Road to Success: Sino-German Technical Cooperation-Energy Efficiency in Existing Buildings. Retrieved from Beijing, China: 2012. Available online: https://low-carbon-urban-development-germany-china.org/wp-content/uploads/2015/10/EEEB-Project-Overview-EN.pdf (accessed on 17 July 2020).
  42. Feng, X.; Jia, X.; an Fu, Q. Thermoeconomic analysis for building wall materials. J. North China Electr. Power Univ. 2003, 30, 94–2003. (In Chinese) [Google Scholar]
  43. Wu, X. Selection of Energy-Efficient Wall Structures and Materials to Save 65% Energy in the Cold Zone, in The Fourth Science and Technology Academic Conference; Jilin University Press: Changchun, China, 2006. [Google Scholar]
  44. Beijing Uni-Construction Group Co. Report on EEEB Demonstration Project Building No.12 Huixin West Street, Beijing; Sino-German Technical Cooperation Energy Efficiency in Existing Buildings (EEEB): Beijing, China, 2010. [Google Scholar]
  45. Heo, Y.; Choudhary, R.; Augenbroe, G.A. Calibration of building energy models for retrofit analysis under uncertainty. Energy Build. 2012, 47, 550–560. [Google Scholar] [CrossRef]
  46. Li, N.; Li, Y.; Wang, J. Energy Efficiency Analysis on Rebuilding of Beijing Municipal Existing Building External Windows. Energy Conserv. Technol. 2015, 33, 51–54. (In Chinese) [Google Scholar]
  47. Ren, J.; Li, J.; Zhao, Y.; Zhang, L.; Gao, H. Energy efficiency analysis on rebuilding of Beijing municipal existing building external windows. Archit. Technol. 2011, 42, 877–879. [Google Scholar]
  48. Wang, L. Design of external shading devices in cold northern regions. Shanxi Architect. 2010, 36, 234–235. [Google Scholar]
  49. Gao, X.; Asami, Y.; Ishikawa, T. Preferences for floor plans of medium-sized apartments: A Survey analysis in Beijing, China. Housing Stud. 2013, 28, 429–452. [Google Scholar] [CrossRef]
  50. Zhu, D. Research on the Heat Transfer Coefficient of Window in Harbin Area, in School of Municipal and Environmental Engineering; Harbin Institute of Technology: Harbin, China, 2012; p. 76. [Google Scholar]
  51. Hao, S. Research on Evaluation of Existing Resident Buildings Energy, in Management Department; Beijing Architecture University: Beijing, China, 2014; p. 61. [Google Scholar]
  52. Li, Z. Residential Building Window’s Heat Transfer Coefficient Research and Analysis in the Strict and Cold Region, in Civil Engineering; Xinjiang University: Urumqi, China, 2006; p. 91. [Google Scholar]
  53. Urumqi Construction Committee. Urumqi CaoChangXiang District Pilot Project Report; Urumqi Construction Committee: Urumqi, China, 2011; pp. 1–128. [Google Scholar]
  54. Chen, Z. Dynamic Simulation of Energy Consumption and Analysis for Residential Buildings in the Strict and Cold Regions, in Civil Engineering Department; Xinjiang University: Urumchi, China, 2007. [Google Scholar]
  55. Zhou, B. Choosing materials for high-rise building envelope in severe cold region. New Build. Mater. 1994, 11, 6–9. (In Chinese) [Google Scholar]
  56. Mu, C.; Cai, Z.; Li, C. The Research of Energy Conservation of New House in Severe Cold Area of China. Constr. Technol. 2000, 29, 1–3. (In Chinese) [Google Scholar]
  57. Feng, J.; Ding, Y.; Wu, H. Energy efficiency of various types of window glass in Beijing. Build. Energy Effic. 2012, 40, 50–54. [Google Scholar]
  58. Ministry of Construction. Residential Design Code (GBJ 96–86); China Architecture & Building Press: Beijing, China, 1986; p. 13.
  59. Xu, L.; Zhang, H. Introduction of Residential Design Code. Architect. J. 1987, 1, 22–26. [Google Scholar]
  60. Jin, H.; Zhao, B. Design Strategy of Energy-Efficient Public Buildings in Cold Region of China, in ASES; ASES: Baltimore, MD, USA, 2013; pp. 1–5. [Google Scholar]
  61. Yang, B. Research on the Evolution of Harbin High-Rise Residence, in Architecture; Northeast Forestry University: Harbin, China, 2017. [Google Scholar]
  62. Li, D. Research on Healthy Housing Design of Severe Cold Zone–Harbin Residential Building Design as an Example, in School of Architecture; Northeast Forestry University: Harbin, China, 2012; p. 66. [Google Scholar]
  63. Zhang, R. North cold regions extant building envelope structure energy efficiency renovation technology. Arch. Technol. 2017, 48, 465–469. (In Chinese) [Google Scholar]
  64. Zhao, A. Analysis of Cooling and Heating Demand Moving towards Near Zero Energy Civil Building in Severe Cold Region and Cold Region. Master’s Thesis, Dalian University of Technology, Dalian, China, 2018. (In Chinese). [Google Scholar]
  65. Petersen, S.; Svendsen, S. Method for component-based economical optimisation for use in design of new low-energy buildings. Renew. Energy 2012, 38, 173–180. [Google Scholar] [CrossRef]
  66. Verbeeck, G.; Hens, H. Energy savings in retrofitted dwellings: Economically viable? Energy Build. 2005, 37, 747–754. [Google Scholar] [CrossRef]
  67. Scheuer, C.; Keoleian, G.A.; Reppe, P. Life cycle energy and environmental performance of a new university building: Modeling challenges and design implications. Energy Build. 2003, 35, 1049–1064. [Google Scholar] [CrossRef]
  68. SAC and AQSIQ. General Requirements on Fixed Number of Years of Safety Use and Recycling for House and Similar Electrical Appliances; Standards Press of China: Beijing, China, 2007; Volume GB/T 20197.1-2007, pp. 1–8. [Google Scholar]
  69. Federal Reserve Bank of St. Louis. Discount Rate for China (2017). Available online: https://fred.stlouisfed.org/series/INTDSRCNM193N (accessed on 17 July 2020).
  70. Jedrzejuk, H.; Marks, W. Optimization of shape and functional structure of buildings as well as heat source utilization. Basic theory. Build. Environ. 2002, 37, 1–5. [Google Scholar] [CrossRef]
  71. Zheng, D.; Yu, L.; Wang, L.; Tao, J. An energy-saving retrofit baseline determination method for large-scale building based on investigation data. Sci. Technol. Built Environ. 2019, 25, 396–408. [Google Scholar] [CrossRef]
  72. Brown, D.; Sorrell, S.; Kivimaa, P. Worth the risk? An evaluation of alternative finance mechanisms for residential retrofit. Energy Pol. 2019, 128, 418–430. [Google Scholar] [CrossRef]
  73. Fine, J.P.; Touchie, M.F. A grouped control strategy for the retrofit of post-war multi-unit residential building hydronic space heating systems. Energy Build. 2020, 208, 109604. [Google Scholar] [CrossRef]
  74. Li, H.X.; Li, Y.; Jiang, B.; Zhang, L.; Wu, X.; Lin, J. Energy performance optimisation of building envelope retrofit through integrated orthogonal arrays with data envelopment analysis. Renew. Energy 2019. [Google Scholar] [CrossRef]
  75. Hart, R.; Selkowitz, S.; Curcija, C. Thermal performance and potential annual energy impact of retrofit thin-glass triple-pane glazing in US residential buildings. Build. Simul. 2019, 12, 79–86. [Google Scholar] [CrossRef]
  76. Lee, J.; Shepley, M.M.; Choi, J. Exploring the effects of a building retrofit to improve energy performance and sustainability: A case study of Korean public buildings. J. Build. Eng. 2019, 25, 100822. [Google Scholar] [CrossRef]
  77. Sartori, T.; Calmon, J.L. Analysis of the impacts of retrofit actions on the life cycle energy consumption of typical neighbourhood dwellings. J. Build. Eng. 2019, 21, 158–172. [Google Scholar] [CrossRef]
  78. Gugul, G.N.; Koksal, M.A.; Ugursal, V.I. Techno-economical analysis of building envelope and renewable energy technology retrofits to single family homes. Energy Sustain. Dev. 2018, 45, 159–170. [Google Scholar] [CrossRef]
  79. Rodrigues, C.; Kirchain, R.; Freire, F.; Gregory, J. Streamlined environmental and cost life-cycle approach for building thermal retrofits: A case of residential buildings in South European climates. J. Clean. Prod. 2018, 172, 2625–2635. [Google Scholar] [CrossRef]
  80. Liu, Y.; Liu, T.; Ye, S.; Liu, Y. Cost-benefit analysis for energy efficiency retrofit of existing buildings: A case study in China. J. Clean. Prod. 2018, 177, 493–506. [Google Scholar] [CrossRef]
  81. Mauri, L.; Vallati, A.; Ocłon, P. Low impact energy saving strategies for individual heating systems in a modern residential building: A case study in Rome. J. Clean. Prod. 2019, 214, 791–802. [Google Scholar] [CrossRef]
  82. Asadi, E.; Silva, M.G.; Antunes, C.H.; Dias, L.; Glicksman, L. Multi-objective optimization for building retrofit: A model using genetic algorithm and artificial neural network and an application. Energy Build. 2014, 81, 444–456. [Google Scholar] [CrossRef]
Figure 1. The procedure of the optimization model adopted in this study.
Figure 1. The procedure of the optimization model adopted in this study.
Sustainability 12 05831 g001
Figure 2. Layout of a prototype apartment in cold zones.
Figure 2. Layout of a prototype apartment in cold zones.
Sustainability 12 05831 g002
Figure 3. Layout of the prototype in severe cold zones.
Figure 3. Layout of the prototype in severe cold zones.
Sustainability 12 05831 g003
Figure 4. Investment in retrofit for various energy-saving targets in cold zone.
Figure 4. Investment in retrofit for various energy-saving targets in cold zone.
Sustainability 12 05831 g004
Figure 5. Economic analysis of building retrofit in cold zones.
Figure 5. Economic analysis of building retrofit in cold zones.
Sustainability 12 05831 g005
Figure 6. Investment in retrofit measures for various energy-saving targets in severe cold zones.
Figure 6. Investment in retrofit measures for various energy-saving targets in severe cold zones.
Sustainability 12 05831 g006
Figure 7. Economic analysis of building retrofit in the severe cold zones.
Figure 7. Economic analysis of building retrofit in the severe cold zones.
Sustainability 12 05831 g007
Table 1. Thermal properties of a prototype in the cold zone.
Table 1. Thermal properties of a prototype in the cold zone.
FactorExternal WallExternal Window
Main structure materials20 mm cement plaster + 300 mm ceramic concrete block + 20 mm cement plaster5 mm single glazing with aluminum frame
U-value (W/m2K)1.616.4
Absorption coefficient0.68NA
Emissivity0.900.84
SHGCNA0.85
Table 2. Envelope parameters of a prototype in cold zones.
Table 2. Envelope parameters of a prototype in cold zones.
OrientationsWall Area (m2)Window Area (m2)Floor Area (m2)Floor Height (m)
East14.851.3557.002.70
South4.592.70
West18.002.25
North16.746.75
Total54.1813.0557.002.70
Table 3. Thermal properties of a prototype in the severe cold zone.
Table 3. Thermal properties of a prototype in the severe cold zone.
FactorExternal WallExternal Window
Main structure materials30 mm cement plaster + 490 mm hollow bricks + 30 mm cement plaster5/5 mm double glazing with aluminum frame
U-value (W/m2K)0.843.26
Absorption coefficient0.76NA
Emissivity0.900.84
SHGCNA0.85
Table 4. Envelope parameters of a prototype in severe cold zones.
Table 4. Envelope parameters of a prototype in severe cold zones.
OrientationsWall Area (m2)Window Area (m2)Floor Area (m2)Floor Height (m)
East1.851.8059.002.70
South7.832.70
West26.605.40
North11.704.50
Total47.5214.4059.002.70
Table 5. Optimum retrofit decisions for various energy-saving targets in the cold zone.
Table 5. Optimum retrofit decisions for various energy-saving targets in the cold zone.
Building SystemsGroups of Retrofit Options20% Energy Saving30% Energy Saving40% Energy Saving50% Energy Saving60% Energy Saving70% Energy Saving
Lighting systemT1—Daylighting controlFully auto-controlFully auto-controlFully auto-controlFully auto-controlFully auto-controlFully auto-control
T2—Lighting occupancy controlFully auto-controlFully auto-controlFully auto-controlFully auto-controlFully auto-controlFully auto-control
T3—Constant lighting controlNo retrofitNo retrofitNo retrofitNo retrofitNo retrofitNo retrofit
T4—Lighting lampsLEDLEDLEDLEDLEDLED
Air conditioning systemT5—Heating systemNo retrofitNo retrofitPipe system retrofitPipe system retrofitPipe system retrofitPipe system retrofit
T6—Cooling systemNo retrofitNo retrofitNo retrofitNo retrofitNo retrofitInvert air conditioner
T7—BEM systemNo retrofitNo retrofitNo retrofitB-adapting operationB-adapting operationC-optimizing operation
RET8—Solar water heaterNo retrofitNo retrofitNo retrofitNo retrofitNo retrofit175 L solar water heater
External wallT9—Insulation on south50 mm EPS50 mm EPS100 mm EPSno retrofit50 mm EPS100 mm EPS
T10—Insulation on north30 mm EPS30 mm EPS50 mm EPS30 mm EPS50 mm EPS120 mm EPS
T11—Insulation on eastno retrofit30 mm EPS30 mm EPS50 mm EPS100 mm EPS120 mm EPS
T12—Insulation on west50 mm EPS100 mm EPS50 mm EPSno retrofit50 mm EPS120 mm EPS
Window systemT13—Window retrofit on southNo retrofitNo retrofitNo retrofitNo retrofit6/12 mm double low-e6/12 mm double low-e
T14—Window retrofit on northNo retrofit6 mm single low-e6 mm single low-e6/12 mm double low-e6/12 mm double low-e6/12 mm double low-e
T15—Window retrofit on east6/9 mm double glazing6/12 mm double low-e glazing6/12 mm double low-e glazing6/12 mm double low-e6/12 mm double low-e6/12 mm double low-e
T16—Window retrofit on west6/12 mm double glazing6/12 mm double glazing6/12 mm double low-e glazing6/12 mm double low-e6/12 mm double low-e6/12 mm double low-e
Internal shadingT25—Shading on southNo retrofitNo retrofitNo retrofitNo retrofitNo retrofitNo retrofit
T26—Shading on northNo retrofitNo retrofitNo retrofitNo retrofitVenetian blindNo retrofit
T27—Shading on eastNo retrofitNo retrofitNo retrofitNo retrofitNo retrofitNo retrofit
T28—Shading on westNo retrofitNo retrofitNo retrofitNo retrofitVenetian blindNo retrofit
Table 6. Benefits from retrofit for different energy-saving targets in the cold zone. NPV: Net present value.
Table 6. Benefits from retrofit for different energy-saving targets in the cold zone. NPV: Net present value.
NPV (USD)Investment (USD)Saved Energy (kWh/m2/year)Energy Savings Per Cost (ESpC) (kWh/USD)Energy SavingEnergy Saving Target
396064011319821.71%20%
5510111016616931.99%30%
6630170021714441.81%40%
7230294027010351.94%50%
8530356031910061.46%60%
580082003645070.08%70%
Table 7. Optimum retrofit decisions for various energy-saving targets in severe cold zone.
Table 7. Optimum retrofit decisions for various energy-saving targets in severe cold zone.
Building SystemsGroups of Retrofit Options20% Energy Saving30% Energy Saving40% Energy Saving50% Energy Saving60% Energy Saving
Lighting systemT1—Daylighting controlFully auto-controlFully auto-controlFully auto-controlFully auto-controlFully auto-control
T2—Lighting occupancy controlFully auto-controlFully auto-controlFully auto-controlFully auto-controlFully auto-control
T3—Constant lighting controlNo retrofitNo retrofitNo retrofitNo retrofitNo retrofit
T4—Lighting lampsLEDLEDLEDLEDLED
Air conditioning systemT5—Heating systemPipe system retrofitPipe system retrofitPipe system retrofitPipe system retrofitPipe system retrofit
T6—Cooling systemNo retrofitNo retrofitNo retrofitNo retrofitNo retrofit
T7—BEM systemNo retrofitNo retrofitNo retrofitC-adapting operationB-optimized operation
RET8—Solar water heaterNo retrofitNo retrofitNo retrofitNo retrofit200 l solar water heater
External wallT9—Insulation on southNo retrofit50 mm EPS50 mm EPS50 mm EPS50 mm EPS
T10—Insulation on north30 mm EPS50 mm EPS100 mm EPS50 mm EPS50 mm EPS
T11—Insulation on east50 mm EPS100 mm EPS100 mm EPS50 mm EPS50 mm EPS
T12—Insulation on westNo retrofit30 mm EPS50 mm EPS50 mm EPS50 mm EPS
Window systemT13—Window retrofit on southNo retrofitNo retrofit6/12 mm double low-e glazing6/12 mm double low-e glazing6/12 mm double low-e glazing
T14—Window retrofit on northNo retrofitNo retrofit6/12 mm double low-e glazingNo retrofit6/12 mm double low-e glazing
T15—Window retrofit on eastNo retrofitNo retrofit6/12 mm double low-e glazingNo retrofit6/12 mm double low-e glazing
T16—Window retrofit on westNo retrofit6/12 mm double low-e glazing6/12 mm double low-e glazing6/12 mm double low-e glazing6/12 mm double low-e glazing
External shadingT17—Overhang on southNo retrofitNo retrofitNo retrofitNo retrofitNo retrofit
T18—Overhang on northNo retrofitNo retrofitNo retrofitNo retrofitNo retrofit
T19—Overhang on eastNo retrofitNo retrofitNo retrofitNo retrofitNo retrofit
T20—Overhang on westNo retrofitNo retrofitNo retrofitNo retrofitNo retrofit
T21—Side fins on southNo retrofitNo retrofitNo retrofitNo retrofitNo retrofit
T22—Side fins on northNo retrofitNo retrofitNo retrofitNo retrofitNo retrofit
T23—Side fins on eastNo retrofitNo retrofitNo retrofitNo retrofitNo retrofit
T24—Side fins on westNo retrofitNo retrofitNo retrofitNo retrofitNo retrofit
Internal shadingT25—Shading on southNo retrofitNo retrofitNo retrofitNo retrofitNo retrofit
T26—Shading on northNo retrofitNo retrofitNo retrofitNo retrofitNo retrofit
T27—Shading on eastNo retrofitNo retrofitNo retrofitNo retrofitNo retrofit
T28—Shading on westNo retrofitNo retrofitNo retrofitNo retrofitNo retrofit
Table 8. Benefits from building retrofits with different energy-saving targets in the severe cold zone.
Table 8. Benefits from building retrofits with different energy-saving targets in the severe cold zone.
NPV (USD)Investment (USD)Saved Energy (kWh/m2/year)Energy Savings Per Cost (ESpC) (kWh/USD)Energy SavingEnergy Saving Target
387094012014821.98%20%
5280159017412731.88%30%
6400242022610841.47%40%
745034802819451.62%50%
747058203356761.48%60%
Table 9. Comparison of optimum measures and costs for 40% energy saving between studied zones.
Table 9. Comparison of optimum measures and costs for 40% energy saving between studied zones.
Building SystemsGroups of Retrofit OptionsCold ZoneSevere Cold Zone
Retrofit MeasuresCosts (USD)Retrofit MeasuresCosts (USD)
Lighting systemT1—Daylighting controlFully automatic control60Fully automatic control70
T2—Lighting occupancy controlFully automatic control30Fully automatic control40
T3—Constant lighting controlNo retrofit0No retrofit0
T4—Lighting lampsLED30LED30
Air conditioning systemT5—Heating systemPipe system retrofit630Pipe system retrofit740
T6—Cooling systemNo retrofit0No retrofit0
T7—BEM systemNo retrofit0No retrofit0
RET8—Solar water heaterNo retrofit0No retrofit0
External wallT9—Insulation on south100 mm EPS10050 mm EPS100
T10—Insulation on north50 mm EPS170100 mm EPS160
T11—Insulation on east30 mm EPS80100 mm EPS30
T12—Insulation on west50 mm EPS17050 mm EPS250
Window systemT13—Window retrofit on southNo retrofit06/12 mm double low-e glazing360
T14—Window retrofit on north5 mm single low-e2006/12 mm double low-e glazing150
T15—Window retrofit on east6/12 mm double low-e glazing1006/12 mm double low-e glazing140
T16—Window retrofit on west6/12 mm double low-e glazing1306/12 mm double low-e glazing350
External shadingT17—Overhang on southNo retrofit0No retrofit0
T18—Overhang on northNo retrofit0No retrofit0
T19—Overhang on eastNo retrofit0No retrofit0
T20—Overhang on westNo retrofit0No retrofit0
T21—Side fins on southNo retrofit0No retrofit0
T22—Side fins on northNo retrofit0No retrofit0
T23—Side fins on eastNo retrofit0No retrofit0
T24—Side fins on westNo retrofit0No retrofit0
Internal shadingT25—Shading on southNo retrofit0No retrofit0
T26—Shading on northNo retrofit0No retrofit0
T27—Shading on eastNo retrofit0No retrofit0
T28—Shading on westNo retrofit0No retrofit0
Total17002420
Table 10. Comparison of benefits from building retrofits for 40% energy saving between various zones.
Table 10. Comparison of benefits from building retrofits for 40% energy saving between various zones.
ParametersCold ZoneSevere Cold
NPV (USD)66306410
Investment (USD)17002420
Energy savings (kWh/m2/year)217226
Energy savings per cost (ESpC) (kWh/USD)144108

Share and Cite

MDPI and ACS Style

He, Q.; Hossain, M.U.; Ng, S.T.; Augenbroe, G.L. Retrofitting High-Rise Residential Building in Cold and Severe Cold Zones of China—A Deterministic Decision-Making Mechanism. Sustainability 2020, 12, 5831. https://doi.org/10.3390/su12145831

AMA Style

He Q, Hossain MU, Ng ST, Augenbroe GL. Retrofitting High-Rise Residential Building in Cold and Severe Cold Zones of China—A Deterministic Decision-Making Mechanism. Sustainability. 2020; 12(14):5831. https://doi.org/10.3390/su12145831

Chicago/Turabian Style

He, Qiong, Md. Uzzal Hossain, S. Thomas Ng, and Godfried L. Augenbroe. 2020. "Retrofitting High-Rise Residential Building in Cold and Severe Cold Zones of China—A Deterministic Decision-Making Mechanism" Sustainability 12, no. 14: 5831. https://doi.org/10.3390/su12145831

APA Style

He, Q., Hossain, M. U., Ng, S. T., & Augenbroe, G. L. (2020). Retrofitting High-Rise Residential Building in Cold and Severe Cold Zones of China—A Deterministic Decision-Making Mechanism. Sustainability, 12(14), 5831. https://doi.org/10.3390/su12145831

Note that from the first issue of 2016, this journal uses article numbers instead of page numbers. See further details here.

Article Metrics

Back to TopTop