Comparative Analysis of Multi-Criteria Methods for the Enhancement of Historical Buildings
Abstract
1. Introduction
2. Aim of the Paper
3. MCDM Methods Comparative Analysis
- -
- Positive—that is, all the principal minors are positive, where by ‘principal minor’, we mean the determinant of the square sub-matrix formed by the first n rows and m columns (with 1 ≤ m ≤ n);
- -
- Reciprocal, being aij = 1/aji and therefore, the elements on the main diagonal are all unitary (aii = 1). This relationship of reciprocity arises from the need to guarantee the symmetry of judgments of importance;
- -
- Constituted by finite elements, since for each criterion, C, considered, we have aij ≠ ∞.
- -
- CR < 5% for n = 3;
- -
- CR < 9% for n = 4;
- -
- CR < 10% for n > 4.
- -
- Acceptable advantage, Q (A″) − Q (A′) ≥ DQ, with DQ = 1/(n − 1), where n is the number of alternatives;
- -
- Acceptable stability of the decision, that is, the alternative A′ must also be the best, or in the ranking must present the minimum value in terms of Si and/or Ri.
- -
- Alternatives A′ and A″, if only condition 2 is not satisfied;
- -
- Alternatives A′, A″, ..., AN, if only condition 1 is not met.
4. Selection of the Best Use of a Historic Building. Characterization of a Hierarchical Analysis Model
- -
- Community involvement (C1), intended as the average number of daily users. It is measured as the average daily number of people who attend the structure;
- -
- New workers (C2), measured as the number of new workers in the structure.
- -
- The cultural criterion includes the sub-criteria:
- -
- Cultural effects (C3), understood as the attraction of the structure with respect to cultural events;
- -
- Compatibility of the function with the historical-architectural characteristics of the property (C4). This criterion depends on the three sub-criteria:
- -
- Representativeness of the use function (C41), evaluated as the aptitude to express the cultural peculiarities of the reference territory, in respect of the material and spiritual reality of the architectural artefact;
- -
- Residential impact (C42), understood as the average number of daily users, in this case with a negative meaning, in the sense that higher this number is, the lower the score attributed to the alternative is. In fact, with the aim of protecting the cultural asset, it is advisable to prefer functional activities with a moderate residential impact, in order to avoid excessive loads on the structure that may require interventions of static adaptation such as to compromise the authenticity of the historical matter;
- -
- Respect of the criterion of minimum intervention (C43), that is, safeguarding the characteristics of the building. It is necessary to avoid intrusive interventions, such as new openings, tracks for installations, partitions, kitchens, and toilets, so as not to reduce the artistic-monumental quality of the property. This criterion represents one of the cardinal principles of architectural restoration and conservation of historic buildings. It is therefore a qualitative, rather than a quantitative criterion [49,50].
- -
- Return On Investment (C5). This is measured by ROI (Return On Investment), which expresses the rate of return on the total investments of a company for the assumed activity.
5. Case Study and Results
- -
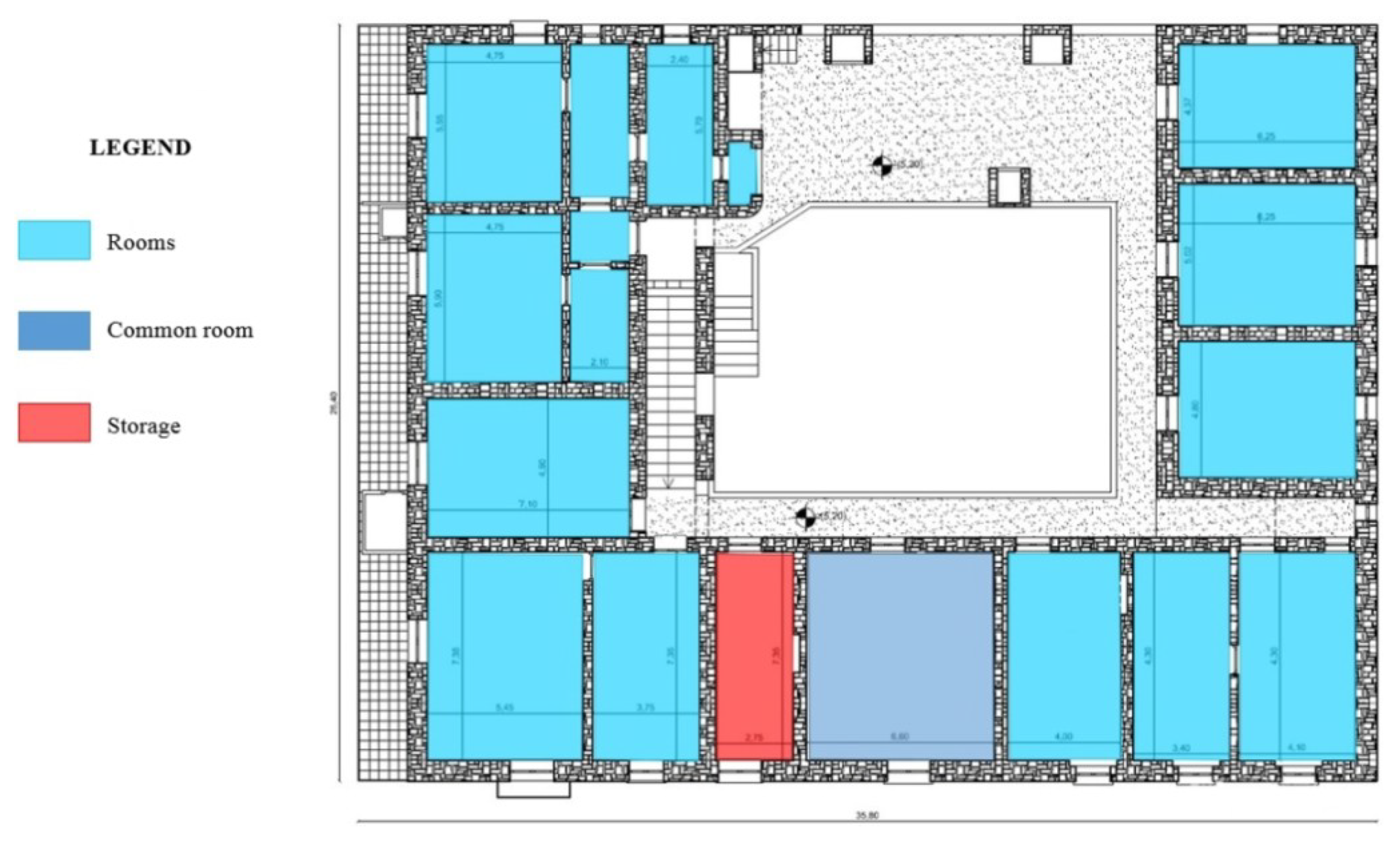
- Bed & Breakfast (A1);
- -
- Multi-purpose rooms (A2) for holding conferences, seminars, thematic meetings, exhibitions and multimedia workshops;
- -
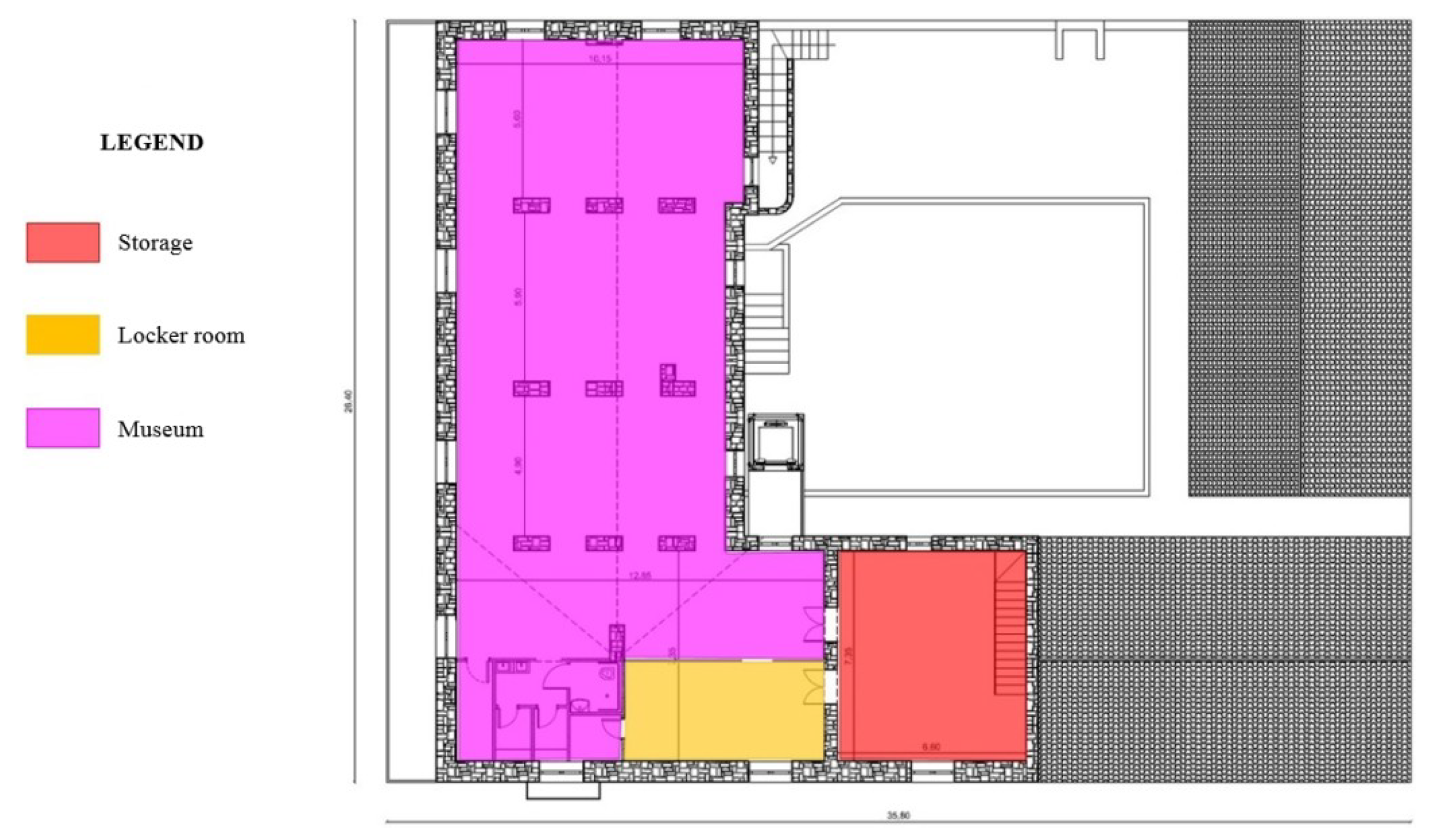
- Local cuisine restaurant (A3), which proposes traditional dishes, cooking workshops, as well as workshops for the valorization of the typical craftsmanship of the places, with an adjoining museum of rural civilization;
- -
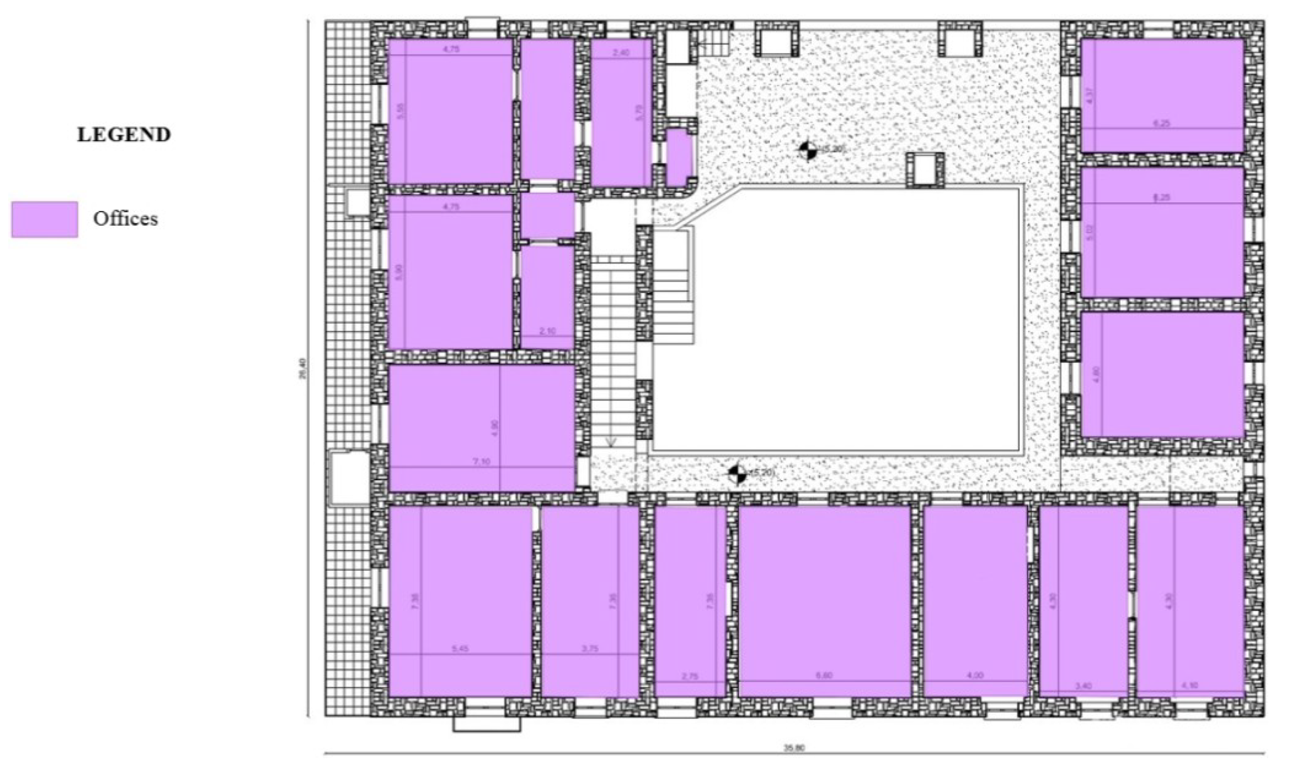
- Public and private offices (A4).
- -
- Community involvement (C1). As there is no data on the average number of users, a filling index was envisaged as a rate of the maximum capacity of the structure;
- -
- New workers (C2). This data was obtained through surveys carried out in similar structures in the territory;
- -
- Cultural effects (C3). This is expressed as the ratio between the surface used for cultural activities (SC) and the total area of the building (ST);
- -
- Compatibility of the function with the historical-architectural characteristics of the property (C4). This criterion depends on the three sub-criteria:
- -
- Representativeness of the use function (C41), according to a judgment scale from 1–7;
- -
- Residential impact (C42), assessed as for criterion C1;
- -
- Respect of the criterion of minimum intervention (C43). The judgment was assigned by the decision-maker according to a qualitative scale from 1–7, depending on the level of protection that is guaranteed to the original structure;
- -
- Return On Investment, ROI (C5). For each of the four alternatives, the ROI value was derived from information on the profitability of the reference economic sector in the area of investigation.
6. Discussion
7. Conclusions
Author Contributions
Funding
Conflicts of Interest
Appendix A












References
- Nesticò, A.; Sica, F. The sustainability of urban renewal projects: A model for economic multi-criteria analysis. J. Prop. Invest. Financ. 2017, 35, 397–409. [Google Scholar] [CrossRef]
- Di Ruocco, G.; Nesticò, A. Archaeological Site Conservation and Enhancement: An Economic Evaluation Model for the Selection of Investment Projects. Sustainability 2018, 10, 3907. [Google Scholar] [CrossRef]
- Ministero dell’ambiente e della tutela del territorio e del mare. In Proceedings of the Le Infrastrutture verdi e i servizi Ecosistemici in Italia Come Strumento per le politiche Ambientali e la Green Economy: Potenzialità, Criticità e proposte, In Conference La Natura dell’Italia, Rome, Italy, 11–12 December 2013.
- Maskey, V.; Brown, C.; Lin, G. Assessing factors associated with listing a historic resource in the national register of historic places. Econ. Dev. Q. 2009, 4, 342–350. [Google Scholar] [CrossRef]
- Phillips, R.G.; Burdruk, M. Introduction to Quality of Life and Community Indicators for Parks, Recreation and Tourism Management; Springer: Dordrecht, The Netherlands, 2010. [Google Scholar]
- Throsby, D. Heritage Economics: A conceptual framework. In The Economics of Uniqueness. Investing in Historic City Cores and Cultural Heritage Assets for Sustainable Development; Licciardi, G., Amirtahmasebi, R., Eds.; World Bank Group: Washington, DC, USA, 2012; pp. 45–74. [Google Scholar]
- Nesticò, A.; Guarini, M.R.; Morano, P.; Sica, F. An Economic Analysis Algorithm for Urban Forestry Projects. Sustainability 2019, 11, 314. [Google Scholar] [CrossRef]
- Cascone, S.; Sciuto, G. Nuove identità per edifici dismessi in centro storico. Recupero Conserv. 2016, 133, 27. [Google Scholar]
- Della Spina, L. Evaluation Decision Support Models: Highest and Best Use choice. Procedia Soc. Behav. Sci. 2016, 223, 936–943. [Google Scholar] [CrossRef][Green Version]
- Nesticò, A.; Macchiaroli, M.; Pipolo, O. Costs and Benefits in the Recovery of Historic Buildings: The Application of an Economic Model. Sustainability 2015, 7, 14661–14676. [Google Scholar] [CrossRef]
- Ribera, F.; Nesticò, A.; Cucco, P.; Maselli, G. A multicriteria approach to identify the Highest and Best Use for historical buildings. J. Cult. Herit. 2019. [Google Scholar] [CrossRef]
- Mosetto, G.; Vecco, M. Economia del Patrimonio Monumentale; FrancoAngeli: Milan, Italy, 2001. [Google Scholar]
- De La Torre, M. Assessing the Values of the Cultural Heritage; Getty Conservation Institute: Los Angeles, CA, USA, 2002. [Google Scholar]
- Fusco Girard, L.; Nijkamp, P. La valutazione per lo Sviluppo Sostenibile Della Città e del Territorio; FrancoAngeli: Milan, Italy, 1997. [Google Scholar]
- Pompili, T.; Travisi, C.M.; Ruggeri, G. La valutazione di attività complementari alle attività agricole nelle aree rurali e periurbane della provincia di Milano: Un approccio multicriteri. In Proceedings of the XXV Conferenza Italiana di Scienze Regionali, Novara, Italy, 6–8 october 2004. [Google Scholar]
- Nesticò, A. Risk-Analysis Techniques for the Economic Evaluation of Investment Projects. In Integrated Evaluation for the Management of Contemporary Cities. SIEV 2016. Green Energy and Technology; Mondini, G., Fattinnanzi, E., Oppio, A., Bottero, M., Stanghellini, S., Eds.; Springer: Cham, Switzerland, 2018; pp. 617–629. [Google Scholar] [CrossRef]
- Nesticò, A.; Moffa, R. Economic analysis and Operational Research tools for estimating productivity levels in off-site construction [Analisi economiche e strumenti di Ricerca Operativa per la stima dei livelli di produttività nell’edilizia off-site]. Valori Valutazioni 2018, 20, 107–126. [Google Scholar]
- Nesticò, A.; Morano, P.; Sica, F. A model to support the public administration decisions for the investments selection on historic buildings. J. Cult. Herit. 2018, 33, 201–207. [Google Scholar] [CrossRef]
- Mavrotas, G. Effective implementation of the ε-constraint method in multi-objective mathematical programming problems. Appl. Math. Comput. 2009, 213, 455–465. [Google Scholar] [CrossRef]
- Pompili, T. Metodologie di valutazione economica: Una rassegna sistematica. In Valutazione Economica e Strategica di Programmi e Progetti Territoriali; FrancoAngeli: Milan, Italy, 2006. [Google Scholar]
- Nesticò, A.; He, S.; De Mare, G.; Benintendi, R.; Maselli, G. The ALARP Principle in the Cost-Benefit Analysis for the Acceptability of Investment Risk. Sustainability 2018, 10, 4668. [Google Scholar] [CrossRef]
- Pons, O.; De la Fuente, A.; Aguado, A. The Use of MIVES as a Sustainability Assessment MCDM Method for Architecture and Civil Engineering Applications. Sustainability 2016, 8, 460. [Google Scholar] [CrossRef]
- Figueira, J.; Greco, S.; Ehrgott, M. Multiple Criteria Decision Analysis: State of the Art Surveys; Springer Science & Business Media: New York, NY, USA, 2005; Volume 78. [Google Scholar]
- Figueira, J.; Greco, S.; Roy, B.; Stowinski, R. An overview of ELECTRE methods and their recent extensions. J. Multi Criteria Decis. Anal. 2013, 20, 61–85. [Google Scholar] [CrossRef]
- Hwang, C.L.; Yoon, K. Multiple Attribute Decision Making, Lecture Notes in Economics and Mathematical System n. 186; Springer: Berlin, Germany, 1981. [Google Scholar]
- Opricovic, S.; Tzeng, G.H. Extended VIKOR method in comparison with outranking methods. Eur. J. Oper. Res. 2007, 178, 514–529. [Google Scholar] [CrossRef]
- Roy, B. How outranking relation helps multiple criteria decision making, Multiple Criteria Decision Making, Actes du Séminaire “Théorie de la Décision”; Beaulieu-Sainte-Assise: Francia, 1973. [Google Scholar]
- Roy, B. Méthodologie Multicritére D’aide à la Decision; Economica: Paris, France, 1985. [Google Scholar]
- Saaty, T.L. The Analytic Hierarchy Process; McGraw-Hill: New York, NY, USA, 1977. [Google Scholar]
- Saaty, T.L. A Scaling Method for Priorities in Hierarchy Structures. J. Math. Psychol. 1980, 15, 234–281. [Google Scholar] [CrossRef]
- Saaty, T.L. How to make a decision: The Analytic Hierarchy Process. Eur. J. Oper. Res. 1990, 48, 9–26. [Google Scholar] [CrossRef]
- Saaty, T.L. Decision Making for Leaders: The Analytic Hierarchy Process for Decision in a Complex Word; RWS Publications: Pittsburg, CA, USA, 1999. [Google Scholar]
- Tzeng, G.H.; Huang, J.J. Multiple Attribute Decision Making Methods and Applications; CRC Press, Taylor & Francis Group: Boca Raton, FL, USA, 2011. [Google Scholar]
- Velasquez, M.; Hester, P.T. An Analysis of Multi-Criteria Decision Making Methods. Int. J. Oper. Res. 2013, 10, 56–66. [Google Scholar]
- Vincke, P. Multicriteria Decision-Aid; John Wiley & Sons: Hoboken, NJ, USA, 1992. [Google Scholar]
- Zanakis, S.H.; Solomon, A.; Wishart, N.; Dublish, S. Multi-attribute decision making: A simulation comparison of select methods. Eur. J. Oper. Res. 1998, 107, 507–529. [Google Scholar] [CrossRef]
- Mela, K.; Tiainen, T.; Heinisuo, M. Comparative study of multiple criteria decision making methods for building design. Adv. Eng. Inform. 2012, 26, 716–726. [Google Scholar] [CrossRef]
- Forman, E.H. The Analytic Hierarchy Process: An Exposition, School of Business and Public Management; George Washington University: Washington, DC, USA, 2001. [Google Scholar]
- Basak, I. Estimation of priority weights based on a resampling technique and a ranking method in analytic hierarchy process. J. Multi Criteria Decis. Anal. 2019. [Google Scholar] [CrossRef]
- Fishburn, P.C. Additive Utilities with Incomplete Product Set: Applications to Priorities and Assignments; ORSA: Baltimora, MD, USA, 1967. [Google Scholar]
- Saaty, T.L. Decision making with the analytic hierarchy process. Int. J. Serv. Sci. 2008, 1, 83–98. [Google Scholar] [CrossRef]
- Calabrò, F.; Della Spina, L. Innovative Tools for the Effectiveness and Efficiency of Administrative Action of the Metropolitan Cities: The Strategic Operational Programme. In 1th international Symposium New Metropolitan Perspectives—The Integrated Approach of Urban Sustainable Development (ISTH2020), Advanced Engineering Forum; Trans Tech Publications: Switzerland, Zurich, 2014; Volume 11, pp. 3–10. [Google Scholar]
- Yau, Y. Multi-criteria decision making for urban built heritage conservation: Application of the analytic hierarchy process. J. Build. Apprais. 2008, 4, 191–205. [Google Scholar] [CrossRef]
- Nijkamp, P.; Rietveld, P.; Voogd, H. Multicriteria Evaluation in Physical Planning; North Holland Publications: Amsterdam, The Netherland, 1990. [Google Scholar]
- UNESCO. Budapest Declaration on Word Heritage; UNESCO: Budapest, Hungary, 2002. [Google Scholar]
- Chan, E.H.W.; Lee, G.K.L. Critical factors for improving social sustainability of urban renewal projects. Soc. Indic. Res. 2007, 85, 243–256. [Google Scholar] [CrossRef]
- Zancheti, S.; Hidaka, L. Measuring urban heritage conservation: Indicator, weights and instruments (part. 2). J. Cult. Herit. Manag. Sustain. Dev. 2012, 2, 15–16. [Google Scholar] [CrossRef]
- Phillips, R.G.; Stein, J.M. An indicator frameworkfor linking historic preservation and community economic development. Soc. Indic. Res. 2013, 113, 1–15. [Google Scholar] [CrossRef]
- Petzet, M. Principles of Preservation: An Introduction to the International Charters for Conservation and Restoration 40 years after the Venice Charter. In International Charters for Conservation and Restoration Monuments & Sites; ICOMOS: München, Germany, 2004. [Google Scholar]
- Pellegri, P.C. Manuale del Riuso Architettonico: Sostenibilità e Compatibilità Ambientale Nella Scelta dei Materiali e Delle Tecnologie; Flaccovio Editore: Palermo, Italy, 2018. [Google Scholar]
- Fusco Girard, L.; Nijkamp, P. Energia, Bellezza, Partecipazione: La sfida della Sostenibilità. Valutazioni Integrate tra Conservazione e Sviluppo; Angeli: Milano, Italy, 2004. [Google Scholar]
- Fiore, P.; Nesticò, A.; Macchiaroli, M. The energy improvement of monumental buildings. An investigation protocol and case studies La riqualificazione energetica degli edifici monumentali. Un protocollo di intervento e caso studio. Valori Valutazioni 2016, 16, 45–55. [Google Scholar]
- De Mare, G.; Granata, M.F.; Nesticò, A. Weak and Strong Compensation for the Prioritization of Public Investments: Multidimensional Analysis for Pools. Sustainability 2015, 7, 16022–16038. [Google Scholar] [CrossRef]
- De Mare, G.; Manganelli, B.; Nesticò, A. Dynamic Analysis of the Property Market in the City of Avellino (Italy). In The Wheaton-Di Pasquale Model Applied to the Residential Segment; Murgante, B., Misra, S., Carlini, M., Torre, C., Nguyen, H.Q., Taniar, D., Apduhan, B.O., Gervasi, O., Eds.; Springer-Verlag: Berlin/Heidelberg, Germany, 2013; Volume 7973, pp. 509–523. [Google Scholar] [CrossRef]
- Della Spina, L. Historical Cultural Heritage: Decision Making Process and Reuse Scenarios for the Enhancement of Historic Buildings. In New Metropolitan Perspectives. ISHT 2018. Smart Innovation, Systems and Technologies; Calabrò, F., Della Spina, L., Bevilacqua, C., Eds.; Springer: Cham, Switzerland, 2019; Volume 101. [Google Scholar] [CrossRef]
- Triantaphyllou, E. Multi-Criteria Decision Making Methods: A Comparative Study, Applied Optimization 44; Kluwer Academic Publisher: Dordrecht, The Netherland, 2002. [Google Scholar]
- Zimmermann, H.J. Fuzzy Set Theory and Its Applications; Third Revised Edition; Kluer Academy Publishers: Boston, MA, USA, 1996. [Google Scholar]




| n | 1 | 2 | 3 | 4 | 5 | 6 | 7 | 8 | 9 |
|---|---|---|---|---|---|---|---|---|---|
| RCI | 0 | 0 | 0.58 | 0.90 | 1.12 | 1.24 | 1.32 | 1.41 | 1.45 |
| Method | Number of Criteria | Number of Alternatives | Algorithm Structure | Ranking | Solution |
|---|---|---|---|---|---|
| AHP | Large | Limited | Pairwise comparison | Score ranking | Best alternative of all according to criteria and sub-criteria |
| ELECTRE | Limited | Limited | Preference thresholds | Preference ranking | Not dominated alternative |
| TOPSIS | Large | Large | Ideal solution and negative ideal solution | Score ranking | Alternative closer to the ideal solution and at the same time more distant from the ideal negative solution |
| VIKOR | Large | Large | Ideal solution | Score ranking | Alternative closer to the ideal solution |
| C1 | C2 | C3 | C41 | C42 | C43 | C5 | |
|---|---|---|---|---|---|---|---|
| Community Involvement | New Workers | Cultural Effects | Representativeness of the Use Function | Residential Impact | Criterion of Minimum Intervention | ROI | |
| [n. users] | [n. workers] | [m2/m2] | [n. users] | [€/€] | |||
| A1 | 122 | 14 | 0.335 | 5 | 122 | 3 | 0.073 |
| A2 | 168 | 16 | 0.661 | 6 | 168 | 6 | 0.043 |
| A3 | 197 | 22 | 0.641 | 6 | 197 | 4 | 0.122 |
| A4 | 140 | 16 | 0.205 | 3 | 140 | 5 | 0.101 |
| Intensity | 1 | 3 | 5 | 7 | 9 | 2, 4, 6, 8 |
|---|---|---|---|---|---|---|
| Linguistic | Equal | Moderate | Strong | Demonstrated | Extreme | Intermediate values |
| C1–Community Involvement | C1–Community Involvement | |||||||||
|---|---|---|---|---|---|---|---|---|---|---|
| A1 | A2 | A3 | A4 | A1 | A2 | A3 | A4 | wi | ||
| A1 | 1.00 | 0.33 | 0.20 | 1.00 | A1 | 0.100 | 0.071 | 0.112 | 0.111 | 0.099 |
| A2 | 3.00 | 1.00 | 0.33 | 3.00 | A2 | 0.300 | 0.214 | 0.187 | 0.333 | 0.259 |
| A3 | 5.00 | 3.00 | 1.00 | 4.00 | A3 | 0.500 | 0.643 | 0.561 | 0.444 | 0.537 |
| A4 | 1.00 | 0.33 | 0.25 | 1.00 | A4 | 0.100 | 0.071 | 0.140 | 0.111 | 0.106 |
| CR = 3.80 | CR = 3.80 | |||||||||
| C2–New workers | C2–New workers | |||||||||
| A1 | A2 | A3 | A4 | A1 | A2 | A3 | A4 | wi | ||
| A1 | 1.00 | 1.00 | 0.20 | 1.00 | A1 | 0.125 | 0.143 | 0.118 | 0.143 | 0.132 |
| A2 | 1.00 | 1.00 | 0.25 | 1.00 | A2 | 0.125 | 0.143 | 0.147 | 0.143 | 0.139 |
| A3 | 5.00 | 4.00 | 1.00 | 4.00 | A3 | 0.625 | 0.571 | 0.588 | 0.571 | 0.589 |
| A4 | 1.00 | 1.00 | 0.25 | 1.00 | A4 | 0.125 | 0.143 | 0.147 | 0.143 | 0.139 |
| CR = 0.38 | CR = 0.38 | |||||||||
| C3–Cultural effects | C3–Cultural effects | |||||||||
| A1 | A2 | A3 | A4 | A1 | A2 | A3 | A4 | wi | ||
| A1 | 1.00 | 0.17 | 0.20 | 3.00 | A1 | 0.081 | 0.073 | 0.085 | 0.158 | 0.099 |
| A2 | 6.00 | 1.00 | 1.00 | 8.00 | A2 | 0.486 | 0.436 | 0.427 | 0.421 | 0.443 |
| A3 | 5.00 | 1.00 | 1.00 | 7.00 | A3 | 0.405 | 0.436 | 0.427 | 0.368 | 0.409 |
| A4 | 0.33 | 0.13 | 0.14 | 1.00 | A4 | 0.027 | 0.055 | 0.061 | 0.053 | 0.049 |
| CR = 4.62 | CR = 4.62 | |||||||||
| C41—Representativeness of the use function | C41—Representativeness of the use function | |||||||||
| A1 | A2 | A3 | A4 | A1 | A2 | A3 | A4 | wi | ||
| A1 | 1.00 | 0.33 | 0.33 | 5.00 | A1 | 0.139 | 0.133 | 0.133 | 0.278 | 0.171 |
| A2 | 3.00 | 1.00 | 1.00 | 6.00 | A2 | 0.417 | 0.400 | 0.400 | 0.333 | 0.388 |
| A3 | 3.00 | 1.00 | 1.00 | 6.00 | A3 | 0.417 | 0.400 | 0.400 | 0.333 | 0.388 |
| A4 | 0.20 | 0.17 | 0.17 | 1.00 | A4 | 0.028 | 0.067 | 0.067 | 0.056 | 0.054 |
| CR = 5.28 | CR = 5.28 | |||||||||
| C42—Residential impact | C42—Residential impact | |||||||||
| A1 | A2 | A3 | A4 | A1 | A2 | A3 | A4 | wi | ||
| A1 | 1.00 | 3.00 | 5.00 | 1.00 | A1 | 0.395 | 0.409 | 0.385 | 0.387 | 0.394 |
| A2 | 0.33 | 1.00 | 3.00 | 0.33 | A2 | 0.132 | 0.136 | 0.231 | 0.129 | 0.157 |
| A3 | 0.20 | 0.33 | 1.00 | 0.25 | A3 | 0.079 | 0.045 | 0.077 | 0.097 | 0.075 |
| A4 | 1.00 | 3.00 | 4.00 | 1.00 | A4 | 0.395 | 0.409 | 0.308 | 0.387 | 0.375 |
| CR = 3.16 | CR = 3.16 | |||||||||
| C43—Criterion of minimum interventation | C43—Criterion of minimum interventation | |||||||||
| A1 | A2 | A3 | A4 | A1 | A2 | A3 | A4 | wi | ||
| A1 | 1.00 | 0.17 | 0.33 | 0.20 | A1 | 0.067 | 0.098 | 0.036 | 0.044 | 0.061 |
| A2 | 6.00 | 1.00 | 5.00 | 3.00 | A2 | 0.400 | 0.588 | 0.536 | 0.662 | 0.546 |
| A3 | 3.00 | 0.20 | 1.00 | 0.33 | A3 | 0.200 | 0.118 | 0.107 | 0.074 | 0.125 |
| A4 | 5.00 | 0.33 | 3.00 | 1.00 | A4 | 0.333 | 0.196 | 0.321 | 0.221 | 0.268 |
| CR = 8.26 | CR = 8.26 | |||||||||
| C5—ROI | C5—ROI | |||||||||
| A1 | A2 | A3 | A4 | A1 | A2 | A3 | A4 | wi | ||
| A1 | 1.00 | 3.00 | 0.20 | 0.33 | A1 | 0.107 | 0.188 | 0.119 | 0.074 | 0.122 |
| A2 | 0.33 | 1.00 | 0.14 | 0.20 | A2 | 0.036 | 0.063 | 0.085 | 0.044 | 0.057 |
| A3 | 5.00 | 7.00 | 1.00 | 3.00 | A3 | 0.536 | 0.438 | 0.597 | 0.662 | 0.558 |
| A4 | 3.00 | 5.00 | 0.33 | 1.00 | A4 | 0.321 | 0.313 | 0.199 | 0.221 | 0.263 |
| CR = 6.54 | CR = 6.54 | |||||||||
| C1 (Social) | C2 (Cultural) | C3 (Financial) | Priority | |||||
| wCi | 0.333 | 0.333 | 0.333 | |||||
| C1 | C2 | C3 | C4 | C5 | ||||
| wCi | 0.500 | 0.500 | 0.500 | 0.500 | 1.00 | |||
| C41 | C42 | C43 | ||||||
| wCi | 0.333 | 0.333 | 0.333 | |||||
| wA1 | 0.099 | 0.132 | 0.099 | 0.171 | 0.394 | 0.061 | 0.122 | 0.130 |
| wA2 | 0.259 | 0.139 | 0.443 | 0.388 | 0.157 | 0.546 | 0.057 | 0.220 |
| wA3 | 0.537 | 0.589 | 0.409 | 0.388 | 0.075 | 0.125 | 0.558 | 0.474 |
| wA4 | 0.106 | 0.139 | 0.049 | 0.054 | 0.375 | 0.268 | 0.263 | 0.175 |
© 2019 by the authors. Licensee MDPI, Basel, Switzerland. This article is an open access article distributed under the terms and conditions of the Creative Commons Attribution (CC BY) license (http://creativecommons.org/licenses/by/4.0/).
Share and Cite
Nesticò, A.; Somma, P. Comparative Analysis of Multi-Criteria Methods for the Enhancement of Historical Buildings. Sustainability 2019, 11, 4526. https://doi.org/10.3390/su11174526
Nesticò A, Somma P. Comparative Analysis of Multi-Criteria Methods for the Enhancement of Historical Buildings. Sustainability. 2019; 11(17):4526. https://doi.org/10.3390/su11174526
Chicago/Turabian StyleNesticò, Antonio, and Piera Somma. 2019. "Comparative Analysis of Multi-Criteria Methods for the Enhancement of Historical Buildings" Sustainability 11, no. 17: 4526. https://doi.org/10.3390/su11174526
APA StyleNesticò, A., & Somma, P. (2019). Comparative Analysis of Multi-Criteria Methods for the Enhancement of Historical Buildings. Sustainability, 11(17), 4526. https://doi.org/10.3390/su11174526

