Flexural and Shear Deformation of Basement-Clamped Reinforced Concrete Shear Walls
Abstract
1. Introduction
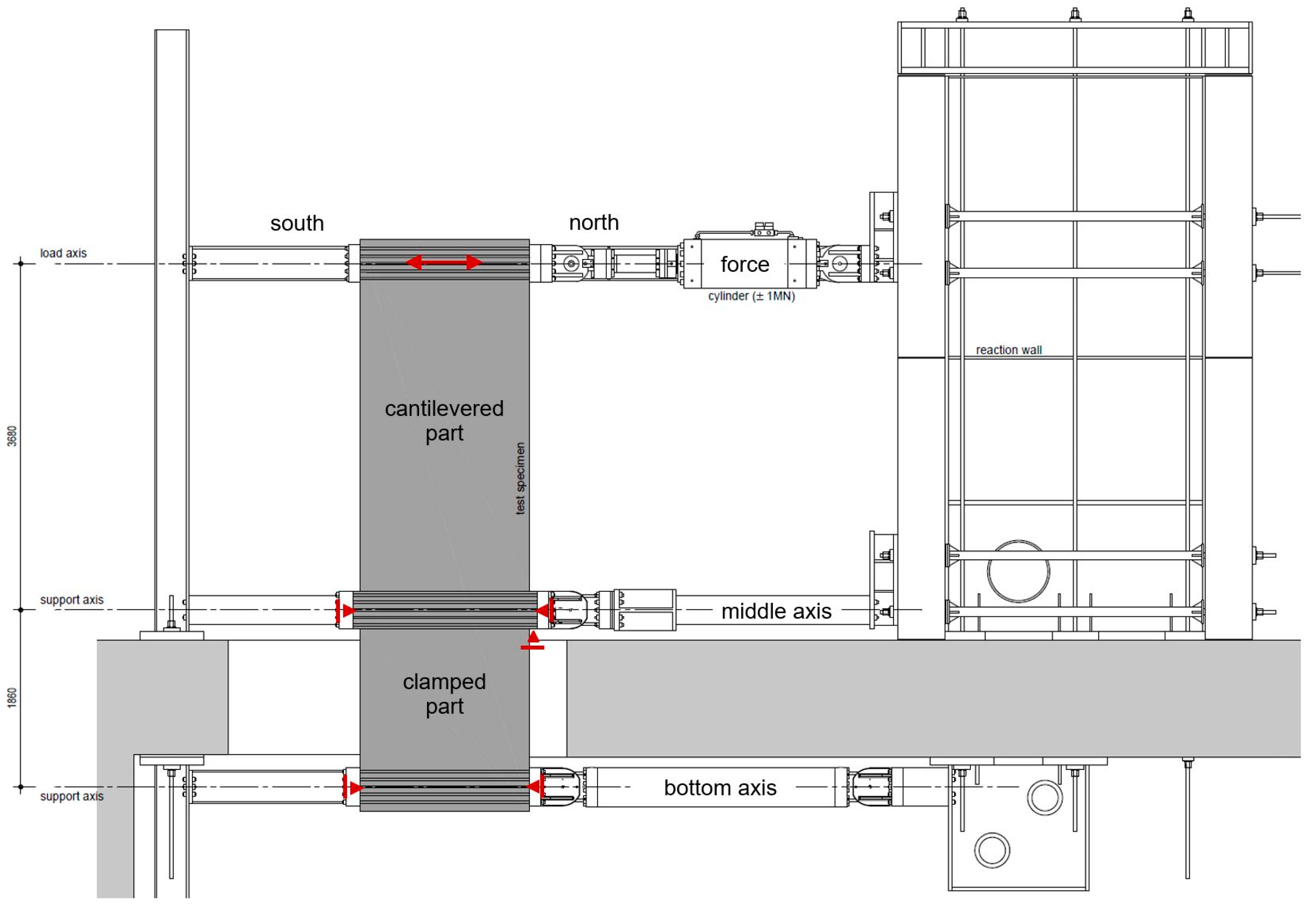
2. Experimental Set-Up and Test Specimens
2.1. Experimental Set-Up
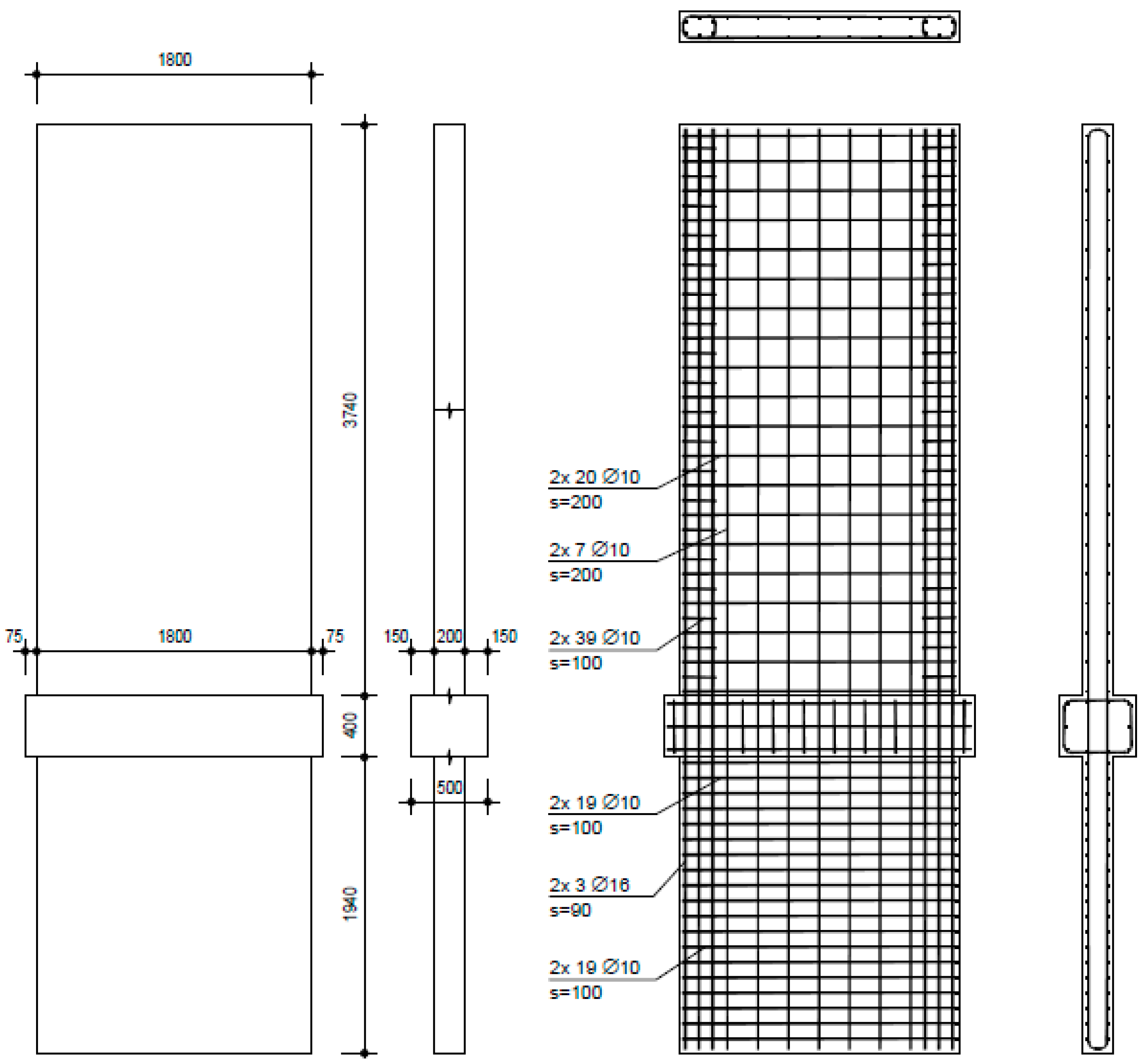
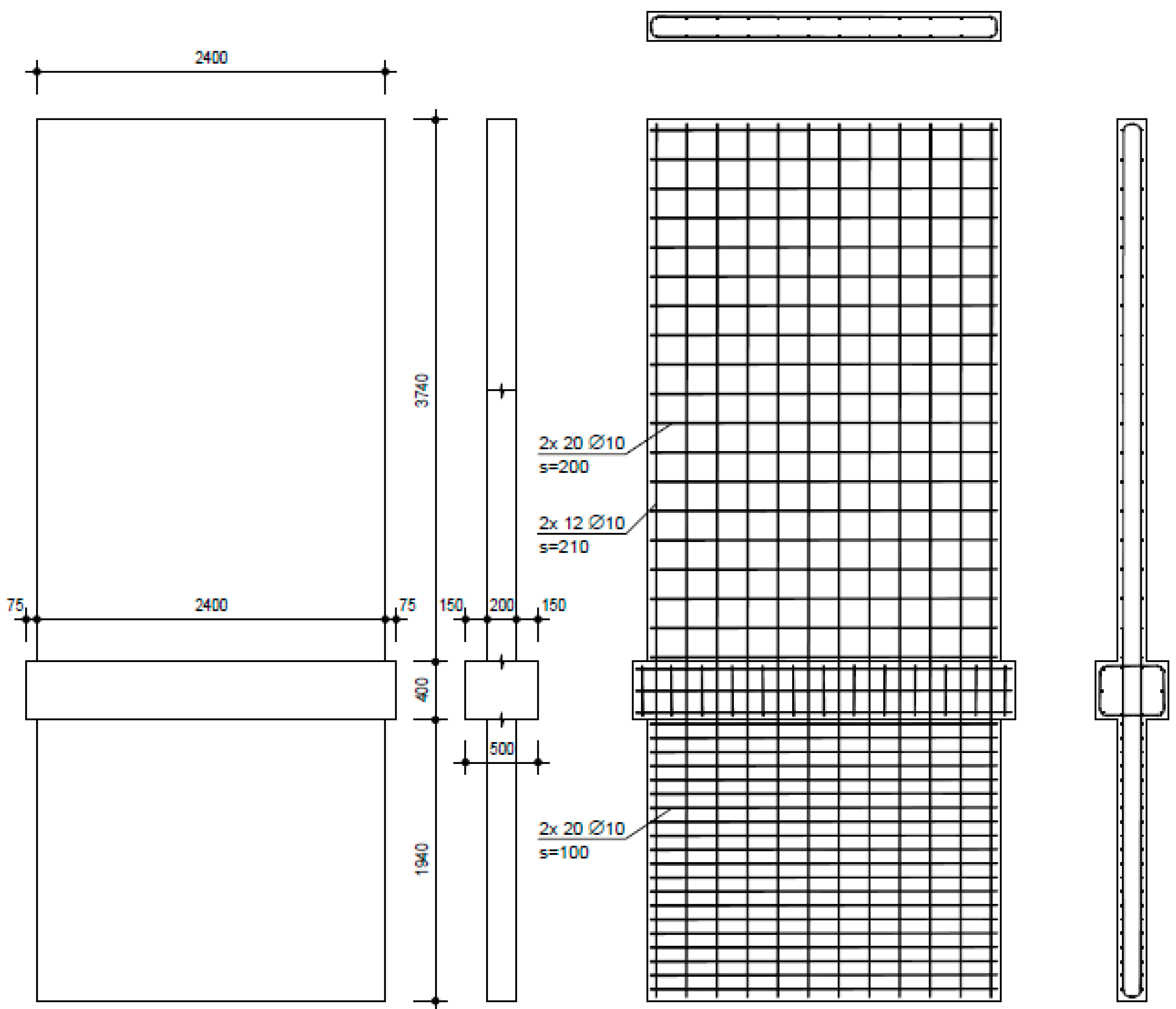
2.2. Shear Walls
2.3. Measurement Equipment
2.3.1. Measurement with Inductive Displacement Transducers (Back Side)
2.3.2. Optical Measurement (Front Side)
2.4. Loading Protocols
3. Results
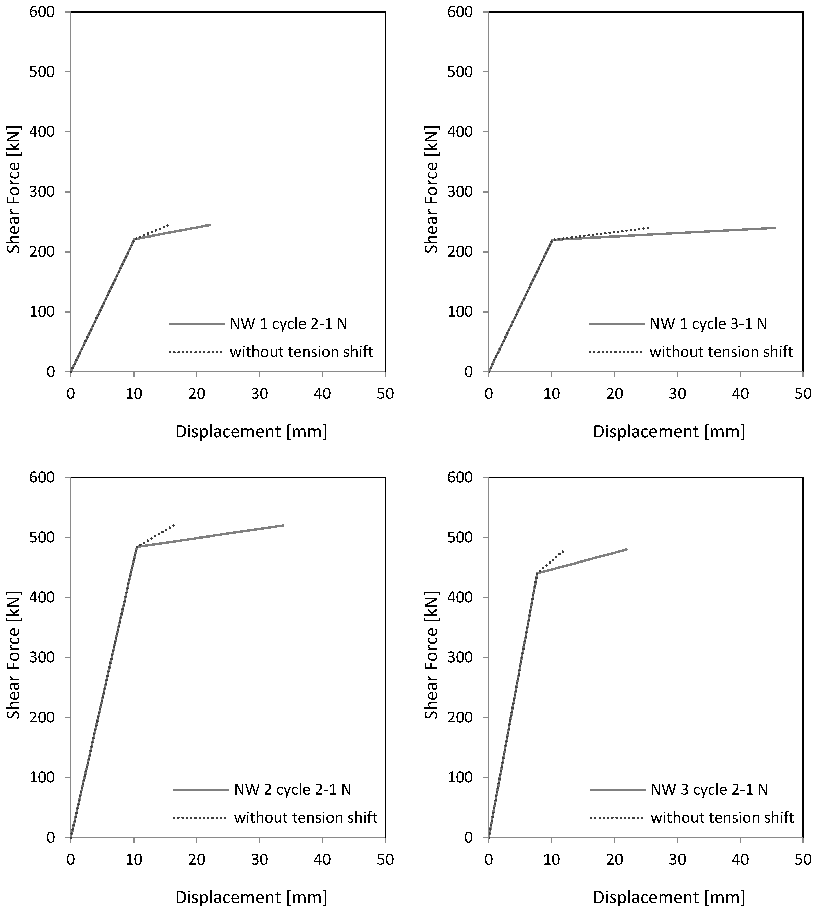
3.1. NW 1
3.1.1. Crack Patterns and Crack Opening
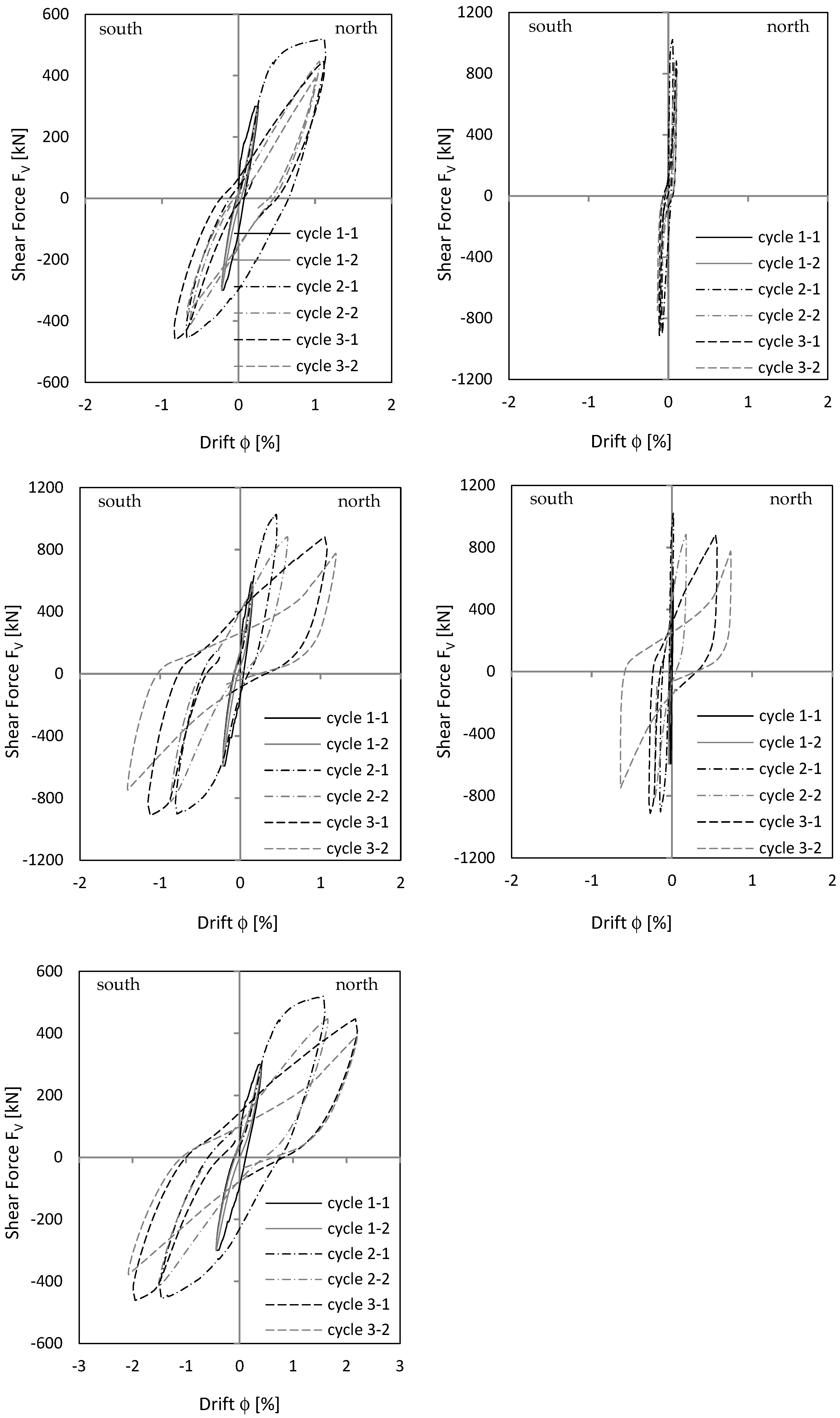
3.1.2. Load–Displacement Behaviour
3.2. NW 2
3.2.1. Crack Patterns and Crack Opening
3.2.2. Load–Displacement Behaviour
3.3. NW 3
3.3.1. Crack Patterns and Crack Opening
3.3.2. Load–Displacement Behaviour
4. Load–Displacement Analysis of the Cantilever Part
5. Conclusions
5.1. Crack Pattern
5.2. Crack Opening and Crack Spacing
5.3. Curvature Distribution over the Height
5.4. Load–Displacement Behaviour
5.5. Sliding Failure
5.6. Recommendations for Further Research
- -
- The tension shift effect has a major influence on the force–displacement curve. Further, shear wall experiments from the literature could be evaluated to identify the influence of the tension shift effect on the plastic hinge length. One should be able to specify the individual effects from flexure (Bernoulli) and tension shift separately because they vary with the slenderness of a wall separately.
- -
- As mentioned in the publication, the sliding shear behaviour needs to be evaluated in more detail. For example, how is the stress and deformation state in a wall before sliding shear occurs? What are the impact factors on the sliding shear resistance for into-the-basement-clamped RC shear walls.
Funding
Institutional Review Board Statement
Data Availability Statement
Acknowledgments
Conflicts of Interest
References
- Dazio, A.; Beyer, K.; Bachmann, H. Quasi-static cyclic tests and plastic hinge analysis of RC structural walls. Eng. Struct. 2009, 31, 1556–1571. [Google Scholar] [CrossRef]
- Dazio, A.; Wenk, T.; Bachmann, H. Versuche an Stahlbetontragwänden unter Zyklisch-Statischer Einwirkung (Tests on Rc Walls under Cyclic-Static Action); IBK Report 239; Swiss Federal Institute of Technology ETH: Zürich, Switzerland, 1999. [Google Scholar] [CrossRef]
- Hannewald, P.; Bimschas, M.; Dazio, A. Quasi-Static Cyclic Tests on RC Bridge Piers with Detailing Deficiencies; IBK Report 352; Swiss Federal Institute of Technology ETH: Zürich, Switzerland, 2013. [Google Scholar] [CrossRef]
- Bimschas, M. Displacement-Based Seismic Assessment of Existing Bridges in Regions of Moderate Seismicity. Ph.D. Thesis, Swiss Federal Institute of Technology ETH, Zürich, Switzerland, 2010. [Google Scholar] [CrossRef]
- Bimschas, M.; Chatzi, E.; Marti, P. Inelastic Deformation Analysis of Reinforced Concrete Bridge Piers, Part 1: Theory and Background. ACI Struct. J. 2015, 112, 267–276. [Google Scholar] [CrossRef]
- Bimschas, M.; Chatzi, E.; Marti, P. Inelastic Deformation Analysis of Reinforced Concrete Bridge Piers, Part 2: Application and Verification. ACI Struct. J. 2015, 112, 277–286. [Google Scholar] [CrossRef]
- Hannewald, P. Seismic Behavior of Poorly Detailed RC Bridge Piers. Ph.D. Thesis, Swiss Federal Institute of Technology EPFL, Lausanne, Switzerland, 2010. [Google Scholar] [CrossRef]
- Hines, E.M.; Restrepo, J.I.; Seible, F. Force-displacement characterization of well-confined bridge piers. ACI Struct. J. 2004, 101, 537–548. [Google Scholar] [CrossRef]
- Hoult, R.; Goldsworthy, H.; Lumantarna, E. Plastic Hinge Length for Lightly Reinforced Rectangular Concrete Walls. J. Earthq. Eng. 2018, 22, 1447–1478. [Google Scholar] [CrossRef]
- Hoult, R. Minimum Longitudinal Reinforcement Requirements Proposed for Limited-Ductile RC Walls in AS 3600. In Proceedings of the Australian Structural Engineering Conference ASEC 2018, Adelaide, Australia, 25–28 September 2018; ISBN 978-1-925627-11-4. [Google Scholar]
- Tarquini, D.; Almeida, J.P.; Beyer, K. Extended Tension Chord Model for Boundary Elements of RC Walls Accounting for Anchorage Slip and Lap Splices Presence. Int. J. Concr. Struct. Mater. 2020, 14, 2. [Google Scholar] [CrossRef]
- Biskinis, D.; Fardis, M.; Michael, N. Flexure-controlled ultimate deformations of members with continuous or lap-spliced bars. Struct. Concr. 2010, 11, 93–108. [Google Scholar] [CrossRef]
- Schuler, H.; Meier, F.; Trost, B. Influence of the tension shift effect on the force–displacement curve of reinforced concrete shear walls. Eng. Struct. 2023, 274, 115144. [Google Scholar] [CrossRef]
- Synge, A.J. Ductility of Squat Shear Walls. In Research Report No. 80-8; Department of Civil Engineering, University of Canterbury: Christchurch, New Zealand, 1980; 150p. [Google Scholar]
- Luna, B.N.; Rivera, J.P.; Rocks, J.F.; Goksu, C.; Weinreber, S.; Whittaker, A.S. Low Aspect Ratio Rectangular Reinforced Concrete Shear Wall—Specimen SW8, Network for Earthquake Engineering Simulation (Distributor); University at Buffalo: Buffalo, NY, USA, 2013. [Google Scholar] [CrossRef]
- Greifenhagen, C. Seismic Behavior of Lightly Reinforced Concrete Squat Shear Walls. Ph.D. Thesis, Swiss Federal Institute of Technology EPFL, Lausanne, Switzerland, 2006. [Google Scholar] [CrossRef]
- Trost, B. Interaction of Sliding, Shear and Flexure in the Seismic Response of Squat Reinforced Concrete Shear Walls. Ph.D. Thesis, ETH, Zürich, Switzerland, 2017. [Google Scholar] [CrossRef]
- Trost, B.; Schuler, H.; Stojadinovic, B. Sliding in Compression Zones of Reinforced Concrete Shear Walls: Behavior and Modeling. ACI Struct. J. 2019, 116, 3–16. [Google Scholar] [CrossRef]
- Schuler, H.; Trost, B. Sliding Shear Resistance of Squat Walls under Reverse Loading: Mechanical Model and Parametric Study. ACI Struct. J. 2016, 113, 711–721. [Google Scholar] [CrossRef]























| Wall | hup | hbase | t | lb1/2 | lweb | ρb1/2 | ρweb | ρV_up | ρV_base |
|---|---|---|---|---|---|---|---|---|---|
| [m] | [m] | [m] | [m] | [m] | [%] | [%] | [%] | [%] | |
| NW 1 | 3.68 | 1.86 | 0.20 | 0 | 1.80 | - | 0.44 | 0.39 | 0.39 |
| NW 2 | 3.68 | 1.86 | 0.20 | 0.27 | 1.26 | 2.23 | 0.44 | 0.39 | 0.79 |
| NW 3 | 3.68 | 1.86 | 0.20 | 0 | 2.40 | - | 0.39 | 0.39 | 0.79 |
| Wall | fc_cube_base | fc_cube_up | fst_base | fst_up |
|---|---|---|---|---|
| [MPa] | [MPa] | [MPa] | [MPa] | |
| NW 1 | 42.2 | 38.3 | 3.1 | 2.7 |
| NW 2 | 52.6 | 35.9 | 4.1 | 3.2 |
| NW 3 | 44.1 | 39.8 | 3.3 | 2.9 |
| ∅ | Es | fsy | fsu | εy | εu |
|---|---|---|---|---|---|
| [GPa] | [MPa] | [MPa] | [mm/m] | [mm/m] | |
| 10 | 202 | 601 | 635 | 3.0 | 65.3 |
| 16 | 186 | 606 | 658 | 3.3 | 119 |
| Wall | Cycle | lw | hw | κy | κmax | hflex | hy | hshift | x | z | zT | θy |
|---|---|---|---|---|---|---|---|---|---|---|---|---|
| [-] | [m] | [m] | [mrad/m] | [mrad/m] | [m] | [m] | [m] | [m] | [m] | [m] | [°] | |
| NW 1 | 2-1 N | 1.80 | 3.48 | 2.51 | 10.3 | 0.34 | 0.78 | 0.44 | 0.16 | 0.98 | 0.88 | 63 |
| NW 1 | 3-1 N | 1.80 | 3.48 | 2.51 | 32.0 | 0.29 | 0.69 | 0.4 | 0.13 | 0.94 | 0.87 | 65 |
| NW 2 | 2-1 N | 1.80 | 3.48 | 2.60 | 15.1 | 0.24 | 1.03 | 0.79 | 0.18 | 1.24 | 1.14 | 55 |
| NW 3 | 2-1 N | 2.40 | 3.48 | 1.91 | 9.6 | 0.29 | 0.99 | 0.7 | 0.19 | 1.29 | 1.17 | 59 |
| Wall | Cycle | δflex | δ | ϕ | ϕexp | Figure |
|---|---|---|---|---|---|---|
| [mm] | [mm] | [%] | [%] | (Experiment) | ||
| NW 1 | 2-1 N | 16 | 22 | 0.60 | 0.58 | 11 top left |
| NW 1 | 3-1 N | 26 | 46 | 1.25 | 1.10 | 11 top left |
| NW 2 | 2-1 N | 16 | 44 | 1.20 | 1.12 | 15 top left |
| NW 3 | 2-1 N | 12 | 22 | 0.60 | 0.61 | 19 top left |
Disclaimer/Publisher’s Note: The statements, opinions and data contained in all publications are solely those of the individual author(s) and contributor(s) and not of MDPI and/or the editor(s). MDPI and/or the editor(s) disclaim responsibility for any injury to people or property resulting from any ideas, methods, instructions or products referred to in the content. |
© 2024 by the author. Licensee MDPI, Basel, Switzerland. This article is an open access article distributed under the terms and conditions of the Creative Commons Attribution (CC BY) license (https://creativecommons.org/licenses/by/4.0/).
Share and Cite
Schuler, H. Flexural and Shear Deformation of Basement-Clamped Reinforced Concrete Shear Walls. Materials 2024, 17, 2267. https://doi.org/10.3390/ma17102267
Schuler H. Flexural and Shear Deformation of Basement-Clamped Reinforced Concrete Shear Walls. Materials. 2024; 17(10):2267. https://doi.org/10.3390/ma17102267
Chicago/Turabian StyleSchuler, Harald. 2024. "Flexural and Shear Deformation of Basement-Clamped Reinforced Concrete Shear Walls" Materials 17, no. 10: 2267. https://doi.org/10.3390/ma17102267
APA StyleSchuler, H. (2024). Flexural and Shear Deformation of Basement-Clamped Reinforced Concrete Shear Walls. Materials, 17(10), 2267. https://doi.org/10.3390/ma17102267

