Abstract
Investigations on the fatigue crack growth of commercial pure titanium are carried out with cruciform specimens under different biaxial load ratios (λ = 0, 0.5, and 1) and crack inclination angles (β = 90°, 60°, and 45°) in this paper. Based on the finite element results, the modified solution of stress intensity factors KI and KII for cruciform specimens containing mixed mode I-II crack is obtained by considering crack size, biaxial load ratio, and crack inclination angles. The experimental results show that the maximum tangential stress criterion is fit for the prediction of crack initiation angles for mixed model I-II crack under uniaxial or biaxial loading condition. When the biaxial load ratio increases, the crack propagation angle becomes smaller, and so does the fatigue crack growth rate of mode I crack or mixed mode I-II crack. Based on an equivalent stress intensity factor, a new valid stress intensity factor is proposed to better describe the biaxial fatigue crack growth behavior, which can demonstrate the contribution of mode I and mode II of stress intensity factor.
1. Introduction
In engineering, crack damage in structures or components is often under the condition of complex stress. Commercial pure titanium (CP-Ti) is widely used in pressure vessels due to its good corrosion resistance and machinable deformation properties. In order to ensure the safety of titanium pressure vessels, an in-depth understanding of the fracture behavior of mixed mode crack is required. Uniaxial fatigue crack growth models are inadequate for mixed mode complex stress situations, so it is necessary to study the fatigue crack growth under biaxial loading.
There have been many studies related to uniaxial fatigue crack growth, which are concerned with the uniaxial fatigue crack growth of AZ31B magnesium alloy [1,2], 7075-T651 aluminum alloy [3], CP-Ti based metal, and weldment [4,5].
Studies on the growth of uniaxial mixed mode I-II fatigue cracks have been referenced by previous work [6,7,8,9]. They applied the maximum tangential stress (MTS) criterion to investigate the propagation direction of a mixed mode I-II crack.
Cruciform specimens are widely used in many laboratories and research institutions for biaxial fatigue crack growth tests [10,11]. By changing the angle of the initial crack and different load ratios, a mode I or mixed mode I-II crack can be achieved, and a uniform stress field can be distributed in the central region [12]. Liu and Dittmer [13] studied the fatigue crack growth behavior of aluminum alloys at different biaxial load ratios, and they found that the direction and crack growth rate were controlled by larger biaxial load components, and the stress parallel to the crack had a negligible effect on the crack growth rate. This was not the case for Yuuki [14], who showed that the effect of biaxial ratio on the crack growth rate was negligible at lower stress levels only, but at higher stress levels, the fatigue crack growth rate was significantly higher under a biaxial ratio of −1 than that under biaxial load ratios of 0 and 1. Hopper and Miller [15] suggested that stresses parallel to the crack would make crack growth rate decrease. Lee and Taylor [16] reported that the fatigue crack life became shorter as the biaxial stress ratio increased, but the exact crack growth rate and crack driving force data were not given in their paper to support the conclusion. In a study reported by Anderson [17], it was found that the stress field of biaxial loading caused a change of fatigue crack growth rate, and that equal biaxial tension resulted in a lower crack growth rate compared to uniaxial loading. Joshi and Shewchuk [18] used bending loaded specimens to investigate biaxial fatigue crack growth, and the paper only mentioned that the crack growth rate was affected by biaxial load ratio, but did not specify what kind of effect. Sunder [19] concluded that the stress biaxial load ratio had a significant effect on the fatigue crack growth rate, and the growth rate was sensitive to the change of biaxiality, with an increase of biaxial ratio leading to a decrease of crack growth rate. Meng [20] investigated the effect of phase difference and stress ratio on biaxial fatigue crack growth of ZK60 magnesium alloy and found that the crack growth mechanism was the same at different stress ratios, but the growth mechanism was different with phase differences. Shlyannikov [21] found that cruciform specimens with a thinned central observation zone were more convenient for studying the crack growth rate under biaxial loading, and suggested that fatigue crack growth with a mixed mode crack might be influenced more by plastic stress intensity factor.
Compared to uniaxial loading, biaxial fatigue crack growth still holds a lot of promise for research. More previous scholars’ studies on biaxial fatigue crack growth are focused on alloys used in aerospace, and the conclusions are different due to the different materials of cruciform specimens. In this paper a CP-Ti cruciform specimen is used, and the modified solutions of stress intensity factors KI and KII for cruciform specimens containing mixed mode I-II cracks are obtained through finite element simulation. Furthermore, fatigue crack growth rates under different biaxial load ratios and crack inclination angles based on tests are discussed, and the effects of stress intensity factors KI, KII on fatigue crack growth rate under different biaxial load ratios are analyzed. Finally, a new equivalent stress intensity factor is proposed to describe the biaxial crack growth behavior of CP-Ti.
2. Biaxial Fatigue Crack Growth Test
2.1. Material
The material of the cruciform specimen is CP-Ti (Baose, Nanjing, China). The mechanical properties are shown in Table 1 and its chemical compositions are shown in Table 2.
Table 1.
Mechanical properties.
Table 2.
Chemical composition (%).
2.2. Cruciform Specimen and Test Methods
An IPBF-5000 series test machine of Tianjin Kair Measurement and Control Company (Tianjin, China) is used (Figure 1) [22], and the specimen is shown in Figure 2. A loading frequency of 0.2 Hz is used for all experiments, and the waveform is a sine wave. The maximum load in the vertical direction (Y-axis) is 270 MPa as a constant, the load in the horizontal direction (X-axis) is changed according to biaxial load ratio λ, λ (λ = σx/σy) with cyclic stress ratio R = 0 and crack inclination angles of 90°, 60°, and 45°. Before the fatigue crack growth test, the crack needs to be prefabricated. For the crack with inclination angle of 90°, the load perpendicular to the crack (Y-axis) is applied to propagate the crack; it should be noted that the maximum stress intensity factor for the pre-crack must be less than the equivalent force intensity factor of the subsequent mixed mode I-II mode crack [23]. For the inclined cracks of 60° and 45°, equal biaxial loading (λ = 1) for pre-cracking is performed [16], which is to eliminate the effect of machined notch on the crack growth. In this paper, the fatigue crack growth is studied under biaxial load ratios of 0.5, 1, and 0 (uniaxial load) with crack inclination angles of 90°, 60°, and 45°.
Figure 1.
Biaxial test machine and cruciform specimen. (a) Specimen clamping diagram (b) Test Machines.

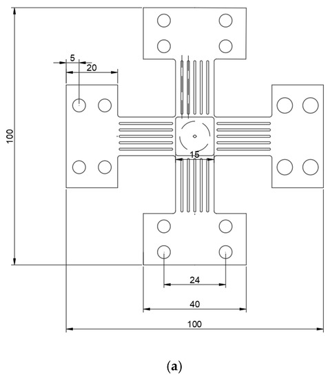
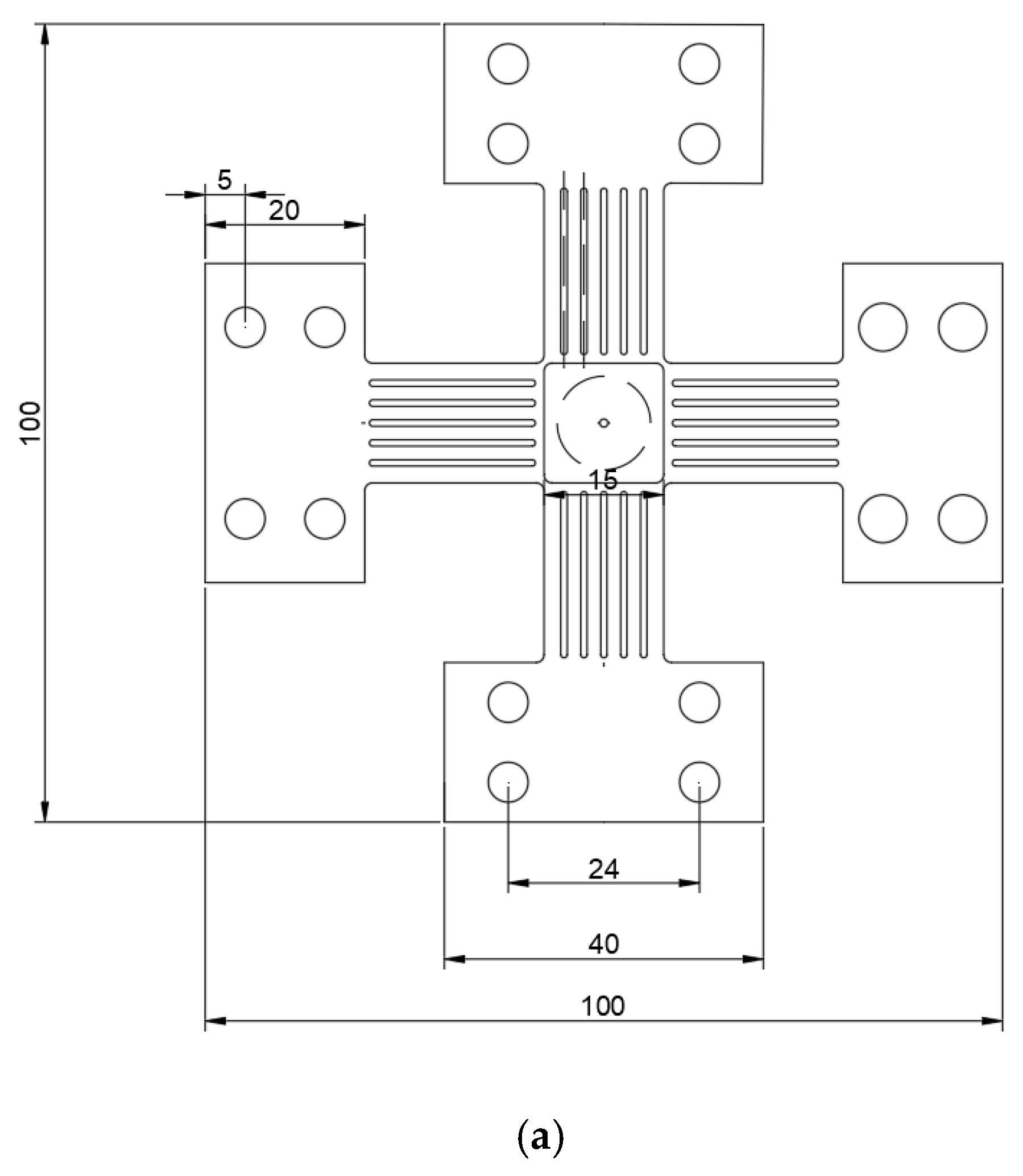
Figure 2.
The cruciform specimen. (a) Dimension of cruciform specimen and (b) three-dimensional specimen (λ = 0, 0.5, and 1). σ is the load in the Y direction, λσ is the load in the X direction.
The overall dimensions of the specimen are 100 × 100 (mm), with a thickness of 1.2 mm, thinned to 0.4 mm in the center, and a 15 × 15 (mm) square in the central observation area. Before the test, the central observation area of the specimen needs to be sanded with 400 to 2000 grit sandpaper (Kraftwell, Hangzhou, China) in turn to make the central observation area as smooth as possible to facilitate the observation of crack growth and measurement.
3. Solution of Stress Intensity Factor for Cruciform Specimen
The stress intensity factor is an important parameter to characterize fatigue crack growth, and is a quantitative expression of stress level at crack tip, which is the driving force for crack growth. Therefore, an accurate solution of the stress intensity factor is of great importance for fatigue crack growth. In general, for biaxially loaded specimens, the stress intensity factor calculation Formulas (1) and (2) of the infinite plate can be used [21]. There are differences between the stress intensity factors of the cruciform specimen used in this article and the infinite plate, therefore, the stress intensity factor suitable for the mixed mode I-II fracture for the cruciform specimen must be derived.
In this paper, ABAQUS6.14 software (Paris, France) is used to calculate the stress intensity factors KI and KII for the cruciform specimen model. A range of radius 0.5 is selected at the tip of crack and set as a wedge-shaped mesh to refine it. The finite element model of cruciform specimen and the surrounding meshes are shown in Figure 3. The entire model uses the C3D8R element type. The number of elements in the model is 36,925 and the number of nodes is 58,202. We found that the results of finite element simulation are independent of the mesh size when the crack tip mesh size is less than 0.05 mm. Therefore, the mesh size within 0.5 mm of the crack tip is divided equally by 0.05 mm and the mesh size outside the 0.5 mm range gradually increases.
Figure 3.
Finite element model of cruciform specimen with mesh and refined mesh near crack.
3.1. Stress Intensity Factor for Cruciform Specimen
3.1.1. Stress Intensity Factor for Mode I Crack (β = 90°)
In Figure 4, the finite element solutions of KI for mode I cracks (β = 90°) are compared with KI of the infinite plate. It can be seen that the stress intensity factor KI of the infinite plate is independent of biaxial load ratio, while the stress intensity factor KI of the cruciform specimen is decreasing with horizontal load, which is related to biaxial load ratio λ. Obviously, the stress intensity factor KI of the infinite plate is not suitable for the KI of the cruciform specimen under biaxial loading.
Figure 4.
Relationship of KI with crack length a.
3.1.2. Stress Intensity Factor for Mixed Mode I-II Crack (β = 60°, 45°)
Figure 5 shows the comparison of finite element solutions of stress intensity factor KI and KII with those solutions for infinite plate when crack inclination angle β = 60°. From Figure 5, it can be seen that KI becomes larger and KII becomes smaller as biaxial load ratio increases. When λ = 1, KII disappears and only KI exists. As seen in Figure 5a, there is a certain error between the KI solution by finite element and the KI solution of infinite plate. From Figure 5b, the difference between the finite element solution of KII and the KII solution of the infinite plate is greater. KII can cause dislocation movement based on planar slip or wavy slip [11].
Figure 5.
Stress intensity factor versus crack length a (β = 60°). (a) Relationship between KI and a and (b) relationship between KII and a.
From Figure 5, it can be seen that there is a certain error between the infinite flat plate solution and the finite element solution, and it increases with the crack length. This is because the ratio of crack length a to the width of the finite region is smaller when the crack is shorter, which is similar to the case of the crack in the infinite flat plate. However, as the crack propagates, the crack length a in the finite element model is more and more influenced by the shape of the specimen, so the error becomes larger. Considering the crack propagation angle β, biaxial ratio λ, and the effect of geometric factor a/w, the infinite flat plate solution is modified to reduce the error.
Figure 6 shows the stress intensity factors KI and KII for β = 45°; and the variation regularity is similar to Figure 5 and the stress intensity factor KII also decreases with biaxial load ratio. However, in the uniaxial load (λ = 0) state, the overall level of KI at the same crack length is lower than that at β = 60°, and KII is higher than that at β = 60°. The difference between the two solutions of KI at 45 degrees is smaller compared KI at 60 degrees, and it can be concluded that the inclined crack is less influenced by geometric factors and biaxial ratio λ at 45 degrees.
Figure 6.
Stress intensity factor KI and KII (β = 45°). (a) Relationship between KI and a and (b) relationship between KII and a.
Based on the finite element solution of the stress intensity factor, it is found that it is not enough to consider the influence of geometric factors of the cruciform specimen only, but also the influence of biaxial load ratio λ and crack inclination angle β. Therefore, the correction parameter f(λ,β) is introduced. The correction coefficients of Shanyanskiy [24] are referred for the cruciform specimens KI and KII (Equations (3)–(7)).
where w is width of thinned area of cruciform specimen, YI(a/w) and YII(a/w) are shape factors, and f(λ,β) is biaxial loading factor.
The comprehensive error analysis shows that the average error between the finite element solution and the fitted formula solution is 3%, and the maximum error is less than 7%. Therefore, the fitted formula can be used for the calculation of stress intensity factor of cruciform specimen.
4. Crack Propagation Angle
For the MTS criterion of brittle fracture, it is assumed that the crack propagates along a path perpendicular to the direction of maximum tension stress. This criterion is proved to have a high consistency with the data under tensile experiments and used as a common method for scholars to study the crack propagation angle.
In general, biaxial fatigue crack growth is determined by the following three parameters: stress biaxial ratio λ, crack inclination angle β, and stress intensity factor KI and KII. During crack growth, a mixed mode I-II crack may occur.
Based on MTS, Erdogan and Sih [25] proposed Equation (10) to calculate the crack propagation angle θ0.
where the predicted angle here is relative to crack surface, and θ0 = 0 indicates that the crack extends along a straight line. When KII > 0, θ0 < 0. When KII < 0, θ0 > 0.
Figure 7a is a typical picture of the crack propagation angle for biaxial load ratio λ = 0.5; it can be seen that the crack path during propagation is somewhat jagged and not smooth, and even that a small crack deflection phenomenon occurs. Figure 7b shows the comparison between predicted and measured propagation angles of cracks under different biaxial load ratios and inclination angles based on MTS criterion. It can be seen that MTS criterion is better for prediction of the crack propagation angle. When β = 90°, the crack path is extended along the initial crack direction, and when β = 60° or 45°, the prediction of crack propagation angle by MTS criterion is also consistent with the measured value. When biaxial load ratio is 1, the crack growth path hardly changes for mode I or mixed mode I-II crack, and it is along the direction of initial crack. This is consistent with the characteristics observed by Leevers [26].

Figure 7.
Crack initiation angle and real crack path under different biaxial load ratios. (a) Real crack paths from test specimens (λ = 0.5) and (b) real crack propagation angle and predicted crack propagation angle by MTS criterion.
Figure 7b shows that the crack propagation angle decreases with the biaxial load ratio. A crack initial angle becomes smaller, the deflection angle of the crack also becomes smaller. At the same time, the crack deflection direction is all toward the direction perpendicular to the maximum principal stress. In short, for a mode I crack, the propagation direction is perpendicular to the crack path, and its fatigue crack growth behavior is completely controlled by KI. Once the crack is subjected to mixed mode I-II loading, the fatigue crack growth behavior will depend on the combined action of KI and KII. It can be found that the crack propagation angle becomes larger with crack inclination angle β under the constant biaxial load ratio, and it can be seen that β has a significant effect on the crack propagation angle of mixed mode I-II fatigue crack growth. As β decreases, the crack propagation angle increases continuously, and the crack propagation angles are 0°, 26.9°, and 35.1° (to the left of the crack), and 0°, 30.8°, and 35.5° (to the right of the crack) for β of 90°, 60°, and 45°, respectively. With the variation of β, the propagation direction of the mixed mode I-II crack is controlled jointly by KI and KII [23]. Both Qian [27] and Richard [28] have also demonstrated the correctness of MTS criterion with experimental results.
Under uniaxial loading, the crack initiation angle with the crack inclination of 45 degree is of some error compared with the predicted value by the MTS criterion which is due to that under uniaxial loading (Y-direction) the other loading arm is constrained in the X-direction with zero load. This is somewhat different from that with uniaxial specimen. The maximum error is at 9%, and the overall average error is at 5%.
5. Experimental Results and Analysis
5.1. Fatigue Crack Growth of Mode I Crack
Observing the a-N curves in Figure 8a, it can be found that as the biaxial load ratio increases, the crack growth life also increases. As the crack gradually propagates, the growth rate under λ = 0 starts to lead more than that under λ = 0.5 and 1, and becomes faster and faster. Combined with Figure 8b, it can be clearly seen that the crack growth rate under uniaxial loading (λ = 0) is undoubtedly the fastest. The load conditions under λ = 0.5 and λ = 1 start to show a clear bifurcation when the crack length reaches 2.3 mm, where under λ = 0.5 crack starts to show a clear acceleration, and the fatigue crack growth under λ = 1 is the slowest. From Figure 8b, the growth rate under λ = 1 is of a lower level, and the fatigue crack life is longer compared to that under λ = 0 and λ = 0.5, which is consistent with the conclusion by Lee [16] that the fatigue crack life increases with biaxial load ratio in the range 0 to 1.
Figure 8.
a-N curves and crack growth rate (β = 90°). (a) a-N curves. (b) The relationship between da/dN and KI.
When the initial crack inclination angle is 90°, KII is equal to zero, and the crack growth is completely controlled by KI; the relationship between da/dN and ΔKI is shown in Figure 8b. Under λ = 0, the crack growth rate is at a higher level, leads throughout the whole propagation process, and also become slower with the increase of λ. Anderson and Garrett [17] found a similar phenomenon in their study, where a change of λ leads to change of crack growth rate. Furthermore, compared with Figure 4, when λ = 0, the stress intensity factor KI is the highest and also the crack growth rate is the fastest. The curves in Figure 8b show some instability at the end of crack growth, with irregular fluctuations of crack growth rate. Breitbarth [29] observed by DIC technique that crack in the center of specimen leads to redistribution of stress and strain field during test, especially when the plastic zone at the tip of crack reaches the boundary of zone, and the crack becomes unstable. As a whole, the fatigue growth rate decreases with biaxial load ratio λ for mode I crack, this result is consistent with the conclusion reached by Hopper and Miller [15] that loads parallel to the crack lead to a decrease of crack growth rate.
5.2. Fatigue Crack Growth of Mixed Mode I-II Crack
Figure 9 shows the a-N curves of cruciform specimens with mixed mode I-II crack (β = 60°, 45°), and it is also seen that the longest life and the slowest fatigue crack growth rate are found under λ = 1.
Figure 9.
a-N curves under crack inclination β = 60°, 45°. (a) a-N curves (β = 60°), (b) a-N curves (β = 45°).
Figure 10a,b show the relationship between the stress intensity factors amplitude ΔKI and ΔKII, and the fatigue crack growth rate da/dN, respectively, and it is found that both curves show the opposite order. In Figure 10a, the fatigue crack growth rate decreases with biaxial load ratio λ when the crack growth rate is related with ΔKI. In Figure 10b, the crack growth rate increases with biaxial load ratio λ when the crack growth rate is described by ΔKII.
Figure 10.
Relationship between stress intensity factor amplitude ΔKI, ΔKII, and da/dN (β = 60°). (a) Relationship between ΔKI and da/dN. (b) Relationship between ΔKII and da/dN.
Figure 11 shows da/dN crack growth rate at different ΔK (β = 45°). For cruciform specimens with a mixed mode I-II crack, Figure 11a plots the crack growth rate between ΔKI and da/dN, and Figure 11b plots the relationship between ΔKII and da/dN; the results are consistent with Figure 10.
Figure 11.
Relationship between stress intensity factor amplitude ΔKI, ΔKII, and da/dN (β = 45°). (a) Relationship between ΔKI and da/dN. (b) Relationship between ΔKII and da/dN.
Further observation of Figure 5 and Figure 6 shows that as the biaxial load ratio increases, the stress intensity factor amplitude ΔKI increases and ΔKII decreases. Comparing Figure 5 and Figure 6 with Figure 10 and Figure 11, as the biaxial load ratio increases, ΔKI increases and da/dN decreases; at the same time, ΔKII decreases and da/dN increases. It can be deduced that the fatigue crack growth rate da/dN does not depend on the single contribution of stress intensity factor amplitude ΔKI or ΔKII.
5.3. Equivalent Stress Intensity Factor and Fatigue Crack Growth
As seen above, the mixed mode I-II crack is not controlled only by stress intensity factor amplitude ΔKI or ΔKII, and it is not appropriate to use either ΔKI or ΔKII alone to describe the fatigue crack growth rate. In other words, mixed mode I-II fatigue crack growth is more complex [21].
For the cruciform specimens with a mixed mode I-II crack, both stress intensity factors amplitude ΔKI and ΔKII are present under both uniaxial and biaxial loading conditions.
Tanaka [30] used the equivalent stress intensity factor Keq to describe the relationship with fatigue crack growth rate da/dN.
Biner [8] used the effective stress intensity factor Keff to investigate the relationship with da/dN.
As seen in Equations (11) and (12), the coefficients of KII are different. Tanaka believes that KII contributes more during crack propagation process and gives KII a higher weight. Biner believes that the weight of KII during crack growth is limited and the coefficient of KII is equal to1.
Based on equivalent stress intensity factors and an effective stress intensity factor, the contribution of KII is explored and an equivalent stress intensity factor is identified to describe the fatigue crack growth rate.
The relationship among crack length, effective stress intensity factor amplitude, and da/dN (β = 60°) is given in Figure 12. The effective intensity factor amplitude ΔKeff (Figure 12a) does not show a regular change as biaxial load ratio λ increases; while equivalent stress intensity factor amplitude ΔKeq (Figure 12b) decreases as biaxial load ratio λ increases.
Figure 12.
Relationship between crack length, equivalent and effective stress intensity factor amplitude, and da/dN (β = 60°). (a) Relationship between a and ΔKeff, (b) relationship between a and ΔKeq, (c) relationship between ΔKeff and da/dN, and (d) relationship between ΔKeq and da/dN.
In Figure 12c,d, fatigue crack growth rate decreases as the biaxial load ratio λ increases. This indicates that the effect on the fatigue crack growth rate is not well described by the effective stress intensity factor amplitude ΔKeff, while the equivalent stress intensity factor amplitude ΔKeq can describe the effect on fatigue crack growth rate.
Similarly, the relationship between crack length, equivalent intensity factor amplitude, and da/dN (β = 45°) is given in Figure 13. The effective intensity factor amplitude ΔKeff (Figure 13a) increases as biaxial ratio increases; the equivalent intensity factor amplitude ΔKeq (Figure 13b) does not show a regular variation as biaxial load ratio increases.
Figure 13.
Relationship between crack length, equivalent and effective stress intensity factor amplitude, and da/dN (β = 45°). (a) Relationship between a and ΔKeff, (b) relationship between a and ΔKeq, (c) relationship between ΔKeff and da/dN, and (d) relationship between ΔKeq and da/dN.
In Figure 13c, fatigue crack growth rate decreases with biaxial load ratio λ; in Figure 13d, fatigue crack growth rate changes differently with biaxial load ratio λ. Comparing Figure 13a–d, it is found that their regularity is contrary to each other. These results illustrate that the effect on fatigue crack growth rate cannot be described by either effective stress intensity factor amplitude ΔKeff or equivalent intensity factor amplitude ΔKeq. The results from Figure 12 and Figure 13 show that the effective stress intensity factor amplitude ΔKeff and equivalent intensity factor ΔKeq cannot effectively account for the contribution of the stress intensity factor amplitude on the fatigue crack growth rate for cruciform specimens with a mixed mode I-II crack with crack inclination angle β = 60° and 45° at the same time.
In addition to models of Biner and Tanaka, there are also models from Demir [31], Richard [32], and Pook [33], which are different equivalent combinations of KI and KII. They all proposed different models in their respective studies to describe the different contributions of KI and KII in crack propagation.
Figure 14 describes the fatigue crack propagation law at β = 60 degrees using the Demir model. The fatigue crack propagation rate should increase with the increase of propagation driving force K. However, Figure 14a,b show contradictory phenomena. The crack driving force is the largest, but the propagation rate is the smallest. Figure 15 shows the description of the Richard model for the fatigue crack propagation law at β = 60 degrees, and similarly there are contradictions between the two. From the Pook model in Figure 16, it can be seen that the same contradiction appears for β = 45 degrees. This indicates that the above model is not suitable for describing the fatigue crack propagation law in this paper. To this end, a new valid stress intensity factor KV by correcting the weight coefficients of KII is proposed here
Figure 14.
Demir model. (a) Relationship between a and ΔKD (β = 60°). (b) Relationship between a and ΔKD (β = 60°).
Figure 15.
Richard model. (a) Relationship between a and ΔKR (β = 60°). (b) Relationship between a and ΔKR (β = 60°).
Figure 16.
Pook model. (a) Relationship between a and ΔKR (β = 45°). (b) Relationship between a and ΔKR (β = 45°).
Figure 17a,b show the relationship between the crack length a and ΔKv, and it can be found that the equivalent force intensity factor decreases with biaxial load ratio (β = 60°,45°). Figure 17c,d shows the relationship between ΔKv and da/dN, where the fatigue crack growth rate decreases with biaxial load ratio consistently (β = 60°,45°). Compared with Keff and Keq by Biner and Tanaka, the valid stress intensity factor Kv proposed in this paper is more suitable for describing the fatigue crack growth rate of CP-Ti cruciform specimens.
Figure 17.
Relationship between crack length, equivalent stress intensity factor amplitude and da/dN. (a) Relationship between a and ΔKv (β = 60°), (b) relationship between a and ΔKv (β = 45°), (c) relationship between ΔKv and da/dN (β = 60°), and (d) relationship between ΔKv and da/dN (β = 45°).
In this paper, the fatigue crack propagation of commercial titanium under biaxial loading is investigated, the correction factors of the stress intensity factor suitable for small cruciform specimen is proposed, and the valid stress intensity factor model Kv is corrected from previous studies. The purpose is to improve the study of fatigue crack propagation of commercial titanium under biaxial loading so as to ensure the safety of pressure-bearing equipment and its structure.
6. Conclusions
Fatigue crack growth behavior of CP-Ti under different biaxial load ratios and crack inclination angles is investigated in this paper. Through a finite element method and biaxial fatigue crack propagate test, the following conclusions can be obtained. Based on the finite element results, the shape coefficients and biaxial load ratio factor are obtained by regression, and the modified solutions of the stress intensity factors KI and KII for the cruciform specimens are derived.
- (1)
- The MTS criterion can well describe the crack propagation angle for mixed mode I-II crack growth and under uniaxial or biaxial fatigue crack growth. Initial crack inclination angles have a great effect on the crack propagation angle, and the crack propagation angle decreases with crack initial angle. When the biaxial load ratio increases, the crack propagation angle becomes smaller;
- (2)
- It is found that for cruciform specimens with a mode I or mixed mode I-II crack, the fatigue crack growth rate decreases with biaxial load rate;
- (3)
- For mixed mode I-II crack, a new equivalent stress intensity factor Kv is proposed, which well explains the experimental results of fatigue crack growth rate of cruciform specimens under uniaxial or biaxial loading condition. Fatigue crack growth rate of a mixed mode I-II crack is affected by the combined effect of stress intensity factor KI and KII with different contribution.
Author Contributions
J.-Y.L.: Conceptualization, Methodology, Experiment, Writing—Original Draft, and Editing. W.-J.B.: Formal Analysis and Experiment. J.-Y.Z.: Experiment, Writing—Review, and Editing. C.-Y.Z.: Conceptualization, Methodology, Formal Analysis, Investigation, Writing—Original Draft, and Funding Acquisition. All authors have read and agreed to the published version of the manuscript.
Funding
This research was funded by National Natural Science Foundation of China (51975271).
Institutional Review Board Statement
Not Applicable.
Informed Consent Statement
Not Applicable.
Data Availability Statement
The data that support the findings of this study are available from the corresponding author upon reasonable request.
Acknowledgments
The authors gratefully acknowledge the financial support of the National Natural Science Foundation of China (51975271).
Conflicts of Interest
The authors declare that they have no conflict of interest.
Nomenclature
| a | Crack length |
| λ | Biaxial load ratio(σx/σy) |
| R | Stress ratio |
| β | Initial crack inclination angle |
| θ0 | Crack propagation angle |
| N | Number of cycles |
| KI | Mode I stress intensity factor |
| KII | Mode II stress intensity factor |
| ΔKI | Range of mode I stress intensity factor |
| ΔKII | Range of mode II stress intensity factor |
| Keq | The equivalent intensity factor by Tanaka |
| Keff | The effective stress intensity factor by Biner |
| Kv | New the equivalent stress intensity factor |
| FEA | Finite element analysis |
| MTS | Maximum tangential stress |
| CS | Cruciform specimens |
| CP-Ti | Commercial pure titanium |
| YI(a/w) | Mode I shape factor |
| YII(a/w) | Mode II shape factor |
| f(λ,β) | Biaxial loading factor |
| da/dN | Crack growth rate |
References
- Culbertson, D.; Jiang, Y. An experimental study of the orientation effect on fatigue crack propagation in rolled AZ31B magnesium alloy. Mater. Sci. Eng. A 2016, 676, 10–19. [Google Scholar] [CrossRef] [Green Version]
- Zheng, S.; Yu, Q.; Jiang, Y. An experimental study of fatigue crack propagation in extruded AZ31B magnesium alloy. Int. J. Fatigue 2013, 47, 174–183. [Google Scholar] [CrossRef]
- Zhao, T.; Zhang, J.; Jiang, Y. A study of fatigue crack growth of 7075-T651 aluminum alloy. Int. J. Fatigue 2008, 30, 1169–1180. [Google Scholar] [CrossRef]
- Li, J.; Su, C.Y.; Lu, L.; Zhang, P.; Chang, L.; Miao, X.T.; Zhou, B.B.; He, X.H.; Zhou, C.Y. Investigation on fatigue crack growth behavior for commercial pure titanium at different crack tip plastic deformed levels. Theor. Appl. Fract. Mech. 2019, 100, 1–13. [Google Scholar] [CrossRef]
- Lu, L.; Li, J.; Su, C.Y.; Sun, P.Y.; Chang, L.; Zhou, B.B.; He, X.H.; Zhou, C.Y. Research on fatigue crack growth behavior of commercial pure titanium base metal and weldment at different temperatures. Theor. Appl. Fract. Mech. 2019, 100, 215–224. [Google Scholar] [CrossRef]
- Biner, S.B. Fatigue crack growth studies under mixed-mode loading. Int. J. Fatigue 2001, 23, 259–263. [Google Scholar] [CrossRef]
- Mageed, A.M.A.; Pandey, R.K. Mixed mode crack growth under static and cyclic loading in A1-alloy sheets. Eng. Fract. Mech. 1991, 40, 371–385. [Google Scholar] [CrossRef]
- Wang, Y.; Wang, W.; Zhang, B.; Li, C.Q. A review on mixed mode fracture of metals. Eng. Fract. Mech. 2020, 235, 107126. [Google Scholar] [CrossRef]
- Sajith, S.; Shukla, S.S.; Murthy, K.S.R.K.; Robi, P.S. Mixed mode fatigue crack growth studies in AISI 316 stainless steel. Eur. J. Mech.-A/Solids 2020, 80, 103898. [Google Scholar] [CrossRef]
- Misak, H.E.; Perel, V.Y.; Sabelkin, V.; Mall, S. Corrosion fatigue crack growth behavior of 7075-T6 under biaxial tension–tension cyclic loading condition. Eng. Fract. Mech. 2013, 106, 38–48. [Google Scholar] [CrossRef]
- Misak, H.E.; Perel, V.Y.; Sabelkin, V.; Mall, S. Crack growth behavior of 7075-T6 under biaxial tension–tension fatigue. Int. J. Fatigue 2013, 55, 158–165. [Google Scholar] [CrossRef]
- Smith, E.W.; Pascoe, K.J. The behaviour of fatigue cracks subject to applied biaxial stress: A review of experimental evidence. Fatigue Fract. Eng. Mater. Struct. 1983, 6, 201–224. [Google Scholar] [CrossRef]
- Liu, A.; Dittmer, D. Effect of Multiaxial Loading on Crack Growth. Volume 2 Compilation of Experimental Data; Northrop Corp.: Hawthorne, CA, USA, 1978; p. 635. [Google Scholar]
- Yuuki, R.; Akita, K.; Kishi, N. The effect of biaxial stress state and changes of state on fatigue crack growth behaviour. Fatigue Fract. Eng. Mater. Struct. 1989, 12, 93–103. [Google Scholar] [CrossRef]
- Hopper, C.D.; Miller, K.J. Fatigue crack propagation in biaxial stress fields. J. Strain Anal. Eng. Des. 1977, 12, 23–28. [Google Scholar] [CrossRef]
- Lee, E.U.; Taylor, R.E. Fatigue behavior of aluminum alloys under biaxial loading. Eng. Fract. Mech. 2011, 78, 1555–1564. [Google Scholar] [CrossRef]
- Anderson, P.R.G.; Garrett, G.G. Fatigue crack growth rate variations in biaxial stress fields. Int. J. Fract. 1980, 16, R111–R116. [Google Scholar] [CrossRef]
- Shewchuk, S.R.J.A. Fatigue-crack Propagation in a Biaxial-stress Field. Exp. Mech. 1970, 10, 529–533. [Google Scholar]
- Sunder, R.; Ilchenko, B.V. Fatigue crack growth under flight spectrum loading with superposed biaxial loading due to fuselage cabin pressure. Int. J. Fatigue 2011, 33, 1101–1110. [Google Scholar] [CrossRef]
- Meng, Y.; Gao, H.; Yan, Y.; Gao, L. Effects of phase difference and stress ratio on biaxial tension–tension fatigue crack propagation behavior of rolled ZK60 magnesium alloy. Mater. Today Commun. 2020, 24, 101159. [Google Scholar] [CrossRef]
- Shlyannikov, V.N.; Tumanov, A.V.; Zakharov, A.P. The mixed mode crack growth rate in cruciform specimens subject to biaxial loading. Theor. Appl. Fract. Mech. 2014, 73, 68–81. [Google Scholar] [CrossRef]
- Zhu, Z.; Lu, Z.; Zhang, P.; Fu, W.; Zhou, C.; He, X. Optimal Design of a Miniaturized Cruciform Specimen for Biaxial Testing of TA2 Alloys. Metals 2019, 9, 823. [Google Scholar] [CrossRef] [Green Version]
- Wang, Q.; Liu, X.; Wang, W.; Yang, C.; Xiong, X.; Fang, H. Mixed mode fatigue crack growth behavior of Ni-Cr-Mo-V high strength steel weldments. Int. J. Fatigue 2017, 102, 79–91. [Google Scholar] [CrossRef]
- Shanyavskiy, A. Fatigue cracking simulation based on crack closure effects in Al-based sheet materials subjected to biaxial cyclic loads. Eng. Fract. Mech. 2011, 78, 1516–1528. [Google Scholar] [CrossRef]
- Erdogan, F.; Sih, G.C. On the Crack Extension in Plates Under Plane Loading and Transverse Shear. J. Basic Eng. 1963, 85, 519–525. [Google Scholar] [CrossRef]
- Leevers, P.S.; Radon, J.C.; Culver, L.E. Fracture trajectories in a biaxially stressed plate. J. Mech. Phys. Solids 1976, 24, 381–395. [Google Scholar] [CrossRef]
- Qian, J.; Fatemi, A. Mixed mode fatigue crack growth: A literature survey. Eng. Fract. Mech. 1996, 55, 969–990. [Google Scholar] [CrossRef]
- Richard, H.A.; Fulland, M.; Sander, M. Theoretical crack path prediction. Fatigue Fract. Eng. Mater. Struct. 2005, 28, 3–12. [Google Scholar] [CrossRef]
- Breitbarth, E.; Besel, M.; Reh, S. Biaxial testing of cruciform specimens representing characteristics of a metallic airplane fuselage section. Int. J. Fatigue 2018, 108, 116–126. [Google Scholar] [CrossRef]
- Tanaka, K. Fatigue crack propagation from a crack inclined to the cyclic tensile axis. Eng. Fract. Mech. 1974, 6, 493–507. [Google Scholar] [CrossRef]
- Demir, O.; Ayhan, A.O.; İriç, S. A new specimen for mixed mode-I/II fracture tests: Modeling, experiments and criteria development. Eng. Fract. Mech. 2017, 178, 457–476. [Google Scholar] [CrossRef]
- Richard, H.A.; Schramm, B.; Schirmeisen, N.H. Cracks on Mixed Mode loading—Theories, experiments, simulations. Int. J. Fatigue 2014, 62, 93–103. [Google Scholar] [CrossRef]
- Pook, L.P.; Radon, J.C. (Eds.) The Significance of Mode I Branch Cracks for Combined Mode Failure, Fracture and Fatigue: Elasto-Plasticity, Thin Sheet and Micromechanism Problems; Pergamon Press: Oxford, UK, 1980; pp. 143–153. [Google Scholar]
Publisher’s Note: MDPI stays neutral with regard to jurisdictional claims in published maps and institutional affiliations. |
© 2022 by the authors. Licensee MDPI, Basel, Switzerland. This article is an open access article distributed under the terms and conditions of the Creative Commons Attribution (CC BY) license (https://creativecommons.org/licenses/by/4.0/).