Assessment of the Susceptibility to Material Fracture in the Cross-Wedge Rolling Process with Concave Tools
Abstract
1. Introduction
2. Materials and Methods
2.1. Experimental Studies of the Cross-Wedge Rolling Process
2.2. Finite Element Analysis of the Cross-Wedge Rolling Process
2.3. Validation of the Numerical Model
3. Results
4. Discussion
4.1. Stress-State Indicator σ1/σi
4.2. Effective Strain εi
4.3. Ovalisation of the Cross-Section of the Forging
5. Concept of Reducing the Cross-Section of Ovalisation during Cross-Wedge Rolling
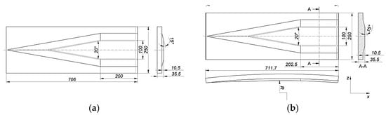
5.1. FEM Model of Cross-Wedge Rolling with Concave Tools
5.2. Results of FEM Analysis
5.3. Analysis of Results and Discussion
6. Conclusions
- The size of the resulting material crack is dependent on the size of the ovalisation of the cross-section of the CWR-rolled forging;
- As the ovality of the forging cross-section increases during the CWR process, the value of the normalised Cockcroft–Latham damage criterion increases, and the size of the resulting crack increases;
- The use of concave tools reduces the size of the ovalisation of the cross-section of the forging in the CWR process and reduces the value of the normalised Cockcroft–Latham damage criterion;
- The smallest value of the normalised Cockcroft–Latham damage criterion was recorded for a concave tool with a radius of curvature R = 5000 mm.
Funding
Institutional Review Board Statement
Informed Consent Statement
Data Availability Statement
Conflicts of Interest
References
- Pater, Z.; Tomczak, J.; Bulzak, T. Establishment of a new hybrid fracture criterion for cross wedge rolling. Int. J. Mech. Sci. 2020, 167, 105274. [Google Scholar] [CrossRef]
- Zhou, X.; Shao, Z.; Zhang, C.; Sun, F.; Zhou, W.; Hua, L.; Jiang, J.; Wang, L. The study of central cracking mechanism and criterion in cross wedge rolling. Int. J. Mach. Tools Manuf. 2020, 159, 103647. [Google Scholar] [CrossRef]
- Yamane, K.; Shimoda, K.; Kuroda, K.; Kajikawa, S.; Kuboki, T. A new ductile fracture criterion for skew rolling and its application to evaluate the effect of number of rolls. J. Mater. Process. Technol. 2020, 291, 116989. [Google Scholar] [CrossRef]
- Novella, M.F.; Ghiotti, A.; Bruschi, S.; Bariani, P.F. Ductile damage modeling at elevated temperature applied to the cross wedge rolling of AA6082-T6 bars. J. Mater. Process. Technol. 2015, 222, 259–267. [Google Scholar] [CrossRef]
- Pater, Z.; Tomczak, J.; Bulzak, T.; Wójcik, Ł.; Walczuk, P. Assessment of ductile fracture criteria with respect to their application in the modeling of cross wedge rolling. J. Mater. Process. Technol. 2020, 278, 116501. [Google Scholar] [CrossRef]
- Pater, Z.; Tomczak, J.; Bulzak, T.; Bartnicki, J.; Tofil, A. Prediction of crack formation for cross wedge rolling of harrow tooth preform. Materials 2019, 12, 2287. [Google Scholar] [CrossRef] [PubMed]
- Bulzak, T. Ductile fracture prediction in cross-wedge rolling of rail axles. Materials 2021, 14, 6638. [Google Scholar] [CrossRef] [PubMed]
- Zhou, X.; Shao, Z.; Pruncua, C.I.; Hua, L.; Balint, D.; Lin, J.; Jiang, J. A study on central crack formation in cross wedge rolling. J. Mat. Process. Technol. 2020, 279, 116549. [Google Scholar] [CrossRef]
- Bulzak, T.; Pater, Z.; Tomczak, J.; Majerski, K. Hot and warm cross-wedge rolling of ball pins Comparative analysis. J. Manuf. Process. 2020, 50, 90–101. [Google Scholar] [CrossRef]
- Huang, X.; Wang, B.; Zhou, J.; Ji, H.; Mu, Y.; Li, J. Comparative study of warm and hot cross-wedge rolling: Numerical simulation and experimental trial. Int. J. Adv. Manuf. Technol. 2017, 92, 3541–3551. [Google Scholar] [CrossRef]
- Xiong, Y.; Sun, S.; Li, Y.; Zhao, J.; Lv, Z.; Zhao, D.; Zheng, Y.; Fu, W. Effect of warm cross-wedge rolling on microstructure and mechanical property of high carbon steel rods. Mater. Sci. Eng. A 2006, 431, 152–157. [Google Scholar] [CrossRef]
- Zhang, N.; Wang, B.; Lin, J. Effect of cross wedge rolling on the microstructure of GH4169 alloy. Int. J. Miner. Metall. 2012, 19, 836–842. [Google Scholar] [CrossRef]
- Yuan, J.; Chen, X.; Zhao, Z.; Sun, B.; Shu, X. Numerical and experimental study on microstructure evolution of Ti-6Al-4 V alloy shaft preform in cross-wedge rolling process. Int. J. Adv. Manuf. Technol. 2022, 119, 3785–3801. [Google Scholar] [CrossRef]
- Bartnicki, J.; Pater, Z. The aspects of stability in cross-wedge rolling processes of hollowed shafts. J. Mat. Process. Technol. 2004, 155–156, 1867–1873. [Google Scholar] [CrossRef]
- Shen, J.; Wang, B.; Yang, C.; Zhou, J.; Cao, X. Theoretical study and prediction of the inner hole reduction and critical mandrel diameter in cross wedge rolling of hollow shaft. J. Mater. Process. Technol. 2021, 294, 117140. [Google Scholar] [CrossRef]
- Bartnicki, J.; Tomczak, J.; Pater, Z. Numerical analysis of the cross-wedge rolling process by means of three tools of stepped shafts from aluminum alloy 7075. Arch. Metall. Mater. 2015, 60, 433–435. [Google Scholar] [CrossRef]
- Pater, Z.; Gontarz, A.; Tomczak, J.; Bulzak, T. Producing hollow drive shafts by rotary compression. Arch. Civ. Mech. Eng. 2015, 15, 917–924. [Google Scholar] [CrossRef]
- Wu, Z.J.; Peng, W.F.; Shu, X.D. Influence of rolling temperature on interface properties of the cross wedge rolling of 42CrMo/Q235 laminated shaft. Int. J. Adv. Manuf. Technol. 2017, 91, 517–526. [Google Scholar] [CrossRef]
- Kruse, J.; Mildebrath, M.; Budde, L.; Coors, T.; Faqiri, M.Y.; Barroi, A.; Stonis, M.; Hassel, T.; Pape, F.; Lammers, M.; et al. Numerical simulation and experimental validation of the cladding material distribution of hybrid semi-finished products produced by deposition welding and cross-wedge rolling. Metals 2020, 10, 1336. [Google Scholar] [CrossRef]
- Tomczak, J.; Bulzak, T.; Pater, Z.; Wójcik, Ł.; Kusiak, T. Skew rolling of bimetallic rods. Materials 2021, 14, 18. [Google Scholar] [CrossRef] [PubMed]
- Pater, Z.; Tomczak, J.; Bulzak, T. Cavity formation in cross-wedge rolling processes. J. Iron Steel Res. Int. 2019, 26, 1–10. [Google Scholar] [CrossRef]
- Han, S.; Shu, X.; Chen, T.; Chang, Y.; Chen, J.; Chen, X.; Xiang, W. Study on the progressive forming mechanism of multi-step shafts based on convex-end billet in the cross wedge rolling technology. J. Mech. Sci. 2019, 33, 6021–6035. [Google Scholar] [CrossRef]
- Pater, Z.; Tomczak, J.; Bulzak, T.; Walczuk-Gągała, P. Novel damage calibration test based on cross-wedge rolling. J. Mater. Res. Technol. 2021, 13, 2016–2025. [Google Scholar] [CrossRef]
- Surdacki, P.; Gontarz, A.; Winiarski, G.; Samołyk, G. Research of the tool velocity and product shape aspects of the hot radial rolling of c45 steel rings. Adv. Sci. Technol. Res. J. 2021, 15, 352–363. [Google Scholar] [CrossRef]
- Ji, H.; Liu, J.; Fu, X.; Tang, X.; Wang, B.; Huang, X. Finite element analysis and experiment on multi-wedge cross wedge rolling for asymmetric stepped shaft of C45. J. Cent. South Univ. 2017, 24, 854–860. [Google Scholar] [CrossRef]
- Murillo-Marrodan, A.; Garcia, E.; Cortes, F. A study of friction model performance in a skew rolling process numerical simulation. Int. J. Simul. Model. 2018, 17, 569–582. [Google Scholar] [CrossRef]
- Bulzak, T.; Pater, Z.; Tomczak, J.; Wójcik, Ł.; Murillo-Marrodan, A. Internal crack formation in cross wedge rolling: Fundamentals and rolling methods. J. Mater. Process. Technol. 2022, 307, 117681. [Google Scholar] [CrossRef]
- Pater, Z.; Tomczak, J.; Bulzak, T.; Wójcik, Ł.; Lis, K. Rotary compression in tool cavity—A new ductile fracture calibration test. Int. J. Adv. Manuf. Technol. 2020, 106, 4437–4449. [Google Scholar] [CrossRef]




















| Temperature (°C) | dmax (mm) | dmin (mm) | Δd = dmax − dmin (mm) |
|---|---|---|---|
| 950 | 25.37 | 21.61 | 3.76 |
| 1050 | 25.17 | 21.81 | 3.36 |
| 1150 | 24.75 | 22.03 | 2.72 |
![]() | |||
Publisher’s Note: MDPI stays neutral with regard to jurisdictional claims in published maps and institutional affiliations. |
© 2022 by the author. Licensee MDPI, Basel, Switzerland. This article is an open access article distributed under the terms and conditions of the Creative Commons Attribution (CC BY) license (https://creativecommons.org/licenses/by/4.0/).
Share and Cite
Bulzak, T. Assessment of the Susceptibility to Material Fracture in the Cross-Wedge Rolling Process with Concave Tools. Materials 2022, 15, 6605. https://doi.org/10.3390/ma15196605
Bulzak T. Assessment of the Susceptibility to Material Fracture in the Cross-Wedge Rolling Process with Concave Tools. Materials. 2022; 15(19):6605. https://doi.org/10.3390/ma15196605
Chicago/Turabian StyleBulzak, Tomasz. 2022. "Assessment of the Susceptibility to Material Fracture in the Cross-Wedge Rolling Process with Concave Tools" Materials 15, no. 19: 6605. https://doi.org/10.3390/ma15196605
APA StyleBulzak, T. (2022). Assessment of the Susceptibility to Material Fracture in the Cross-Wedge Rolling Process with Concave Tools. Materials, 15(19), 6605. https://doi.org/10.3390/ma15196605


