Experimental and Analytical Studies of Prefabricated Composite Steel Shear Walls under Low Reversed Cyclic Loads
Abstract
:1. Introduction
2. Experimental Information
2.1. Design of Specimens
2.2. Properties of Material
2.3. Test Setup
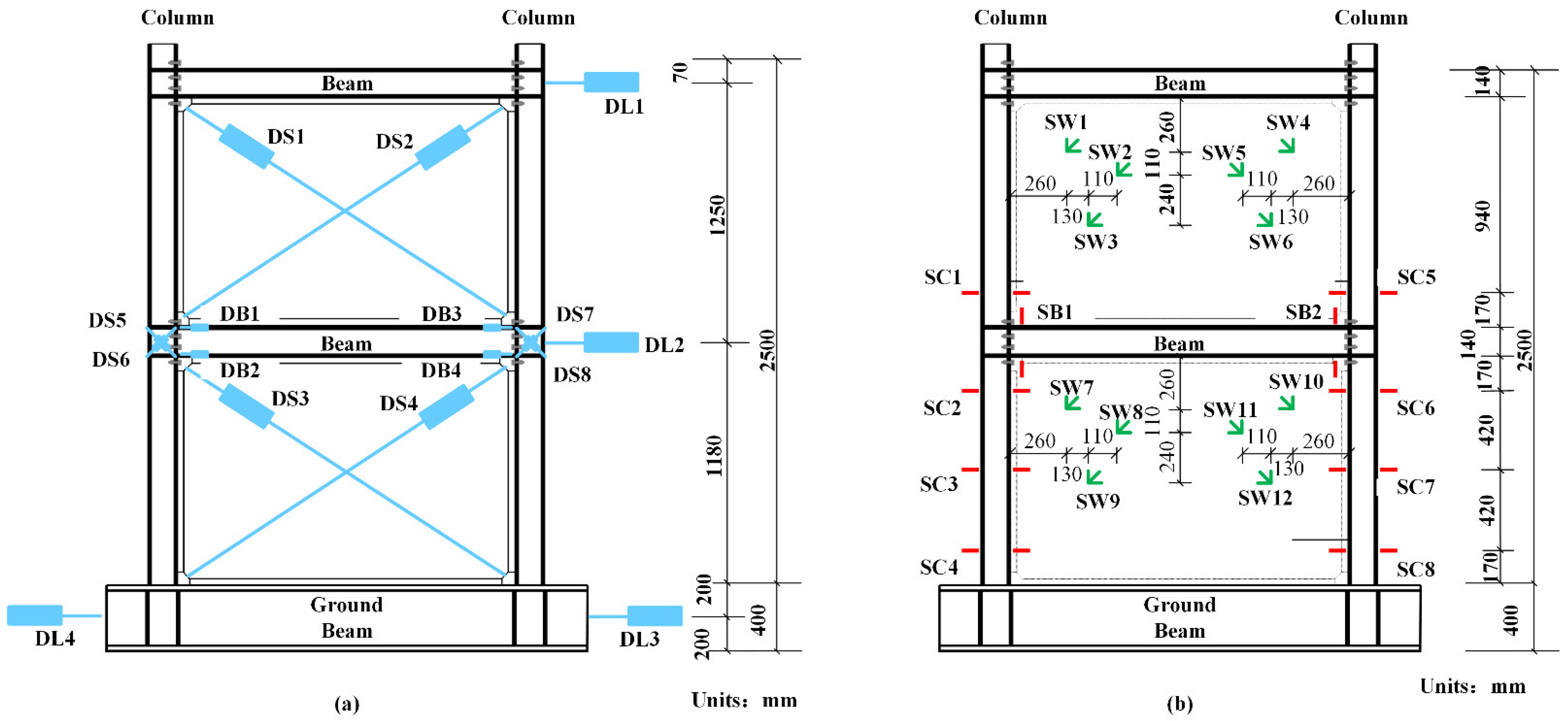
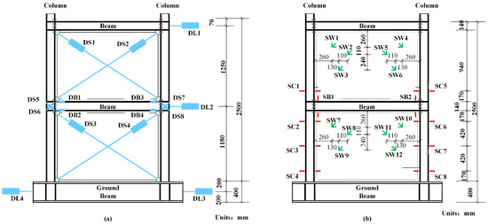
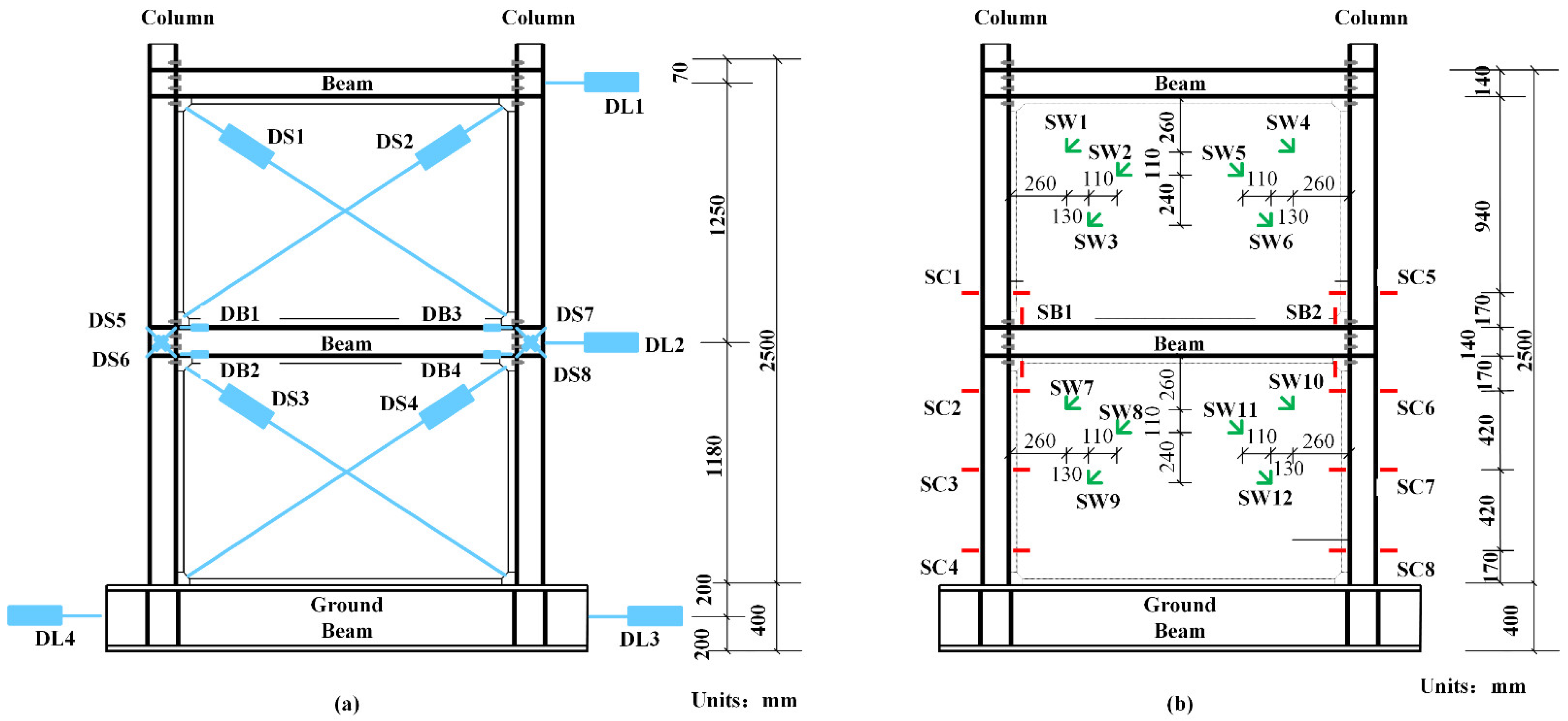
2.4. Arrangement of Measuring Points
2.5. Testing Procedures
3. Experimental Results and Discussion
3.1. General Performance
- (1)
 - Before the loading displacement reached , no obvious changes were found aside from the squeaking due to the friction between gaskets and shear walls. The deformation of the specimen was able to be completely recovered under cyclic loads.
 - (2)
 - When the loading displacement reached , the lateral force was , where is the peak value of the lateral loading force. Figure 9a reveals that slight local buckling was observed in the steel plate shear walls. Tension struts in the direction of the principle tensile stress were mainly located in the diagonals. It is noted that the range of local buckling in the second story was larger than that in the first story. When the specimen was unloaded to zero, slight residual deformation could be detected.
 - (3)
 - When the loading displacement reached , the lateral force reached . During the loading process, local buckling become more evident (as shown in Figure 9b), as demonstrated by the following two aspects: ① the numbers of tension diagonal struts increased; ② the range of the tension diagonal struts became larger. During the unloading process, the recovery of buckling deformation was very slow. When the specimen was unloaded to zero, obvious residual deformation in the shape of an X was still visible.
 - (4)
 - When the loading displacement reached the structure entered the failure stage. The experiment was stopped as the lateral loading force decreased below 85% of .
 
3.2. Force-Displacement Response
3.2.1. Hysteretic Curves
3.2.2. Skeleton Curves
- (1)
 - The elastic stage, where a linear relationship between the lateral drifts and forces occurred. The curves of all the specimens coincided with each other. Similar initial stiffnesses (slope of the curves) were observed, which meant the attached RC panels had little effect on the initial stiffness of the shear walls.
 - (2)
 - The plastic stage, which initiated from the yield point and ended at the ultimate strength point. The restraining effect of the concrete panels greatly increased the yield strength and maximum bearing capacity of the shear walls. Compared with specimen SPSW, the yield strength and ultimate strength of SPCSW increased by 9.34% (5.21%) and 25.96% (33.85%). The more noticeable growth in the yield strength and the maximum strength of specimen DPCSW were revealed as 40.30% (32.32%) and 85.59% (93.31%), respectively. Numbers outside and inside the parentheses represent values corresponding to the positive and negative loading directions, respectively.
 - (3)
 - The failure stage, where lateral forces descended along with the continuous increase in lateral drift.
 
3.3. Strength Degradation
3.4. Stiffness Degradation
3.5. Deformation Capacity–Ductility
3.6. Energy Dissipation Capability
3.7. Distribution of Shear Resisted by Shear Walls and Steel Frames
4. Prediction of Bearing Capacity
5. Conclusions
- (1)
 - Comparisons of the experimental results from the tested specimens SPSW and SPCSW demonstrated that SPCSW was a more effective choice to resist cyclic loads. Yield strength, ultimate bearing capacity, ductility and cumulative energy consumption of the SPCSW tested in this paper increased by 7.28%, 29.91%, 34.26% and 79.96%, respectively. However, the absence of an RC panel on one side of the steel plate meant that the premature buckling failure of the steel shear wall could not be fundamentally avoided.
 - (2)
 - With the same overall thickness of RC panels, the DPCSW tested in this paper displayed the most excellent lateral-resisting properties: the highest yield strength and bearing capacity, adequate ductility, plumper and stable hysteresis loop and excellent energy absorption capacity. The expected failure mode, i.e., shear yield failure of the steel plate occurring earlier than the buckling failure, was achieved.
 - (3)
 - Both the initial and failure stiffness of the three tested specimens were almost equal to each other. However, the addition of RC panels was able to effectively slow down the lateral stiffness degradation process. RC panels did not directly participate in resisting lateral loads. Therefore, almost no cracks appeared until the out-of-plane buckling deformation arose.
 - (4)
 - The effects of steel frames on the yield loads of specimens SPSW, SPCSW and DPCSW were considered by modification coefficient . Steel frames with simply supported and semi-rigid connections had little influence on the lateral yield load of specimens as long as the minimum frame column stiffness was guaranteed. Nevertheless, the rigidly connected steel frame indeed elevated the lateral yield load. Furthermore, the higher the value of the stiffness ratio of the frame columns, the greater the improvement degree.
 
Author Contributions
Funding
Institutional Review Board Statement
Informed Consent Statement
Data Availability Statement
Conflicts of Interest
References
- Chen, S.-J.; Jhangb, C. Experimental study of low-yield-point steel plate shear wall under in-plane load. J. Constr. Steel Res. 2011, 67, 977–985. [Google Scholar] [CrossRef]
 - Berman, J.W. Seismic behavior of code designed steel plate shear walls. Eng. Struct. 2011, 33, 230–244. [Google Scholar] [CrossRef]
 - Yuan, N.; Zhang, L.; Li, H. Application of Steel Frame and Buckling-Restrained Steel Plate Shear Wall in Assembled Steel Residence. Build. Struct. 2020, 50, 91–95. [Google Scholar]
 - Zhang, W.; Wang, K.; Chen, Y.; Ding, Y. Experimental study on the seismic behaviour of composite shear walls with stiffened steel plates and infilled concrete. Thin-Walled Struct. 2019, 144, 106279. [Google Scholar] [CrossRef]
 - Zengde, Z.; Jingfeng, W.; Xudong, G.; Chunfeng, Z.; Beibei, L. Study on seismic performance of prefabricated CFST frames with beam-only-connected SPSWs. China Civ. Eng. J. 2019, 52, 38–47. [Google Scholar]
 - Jin, S.; Yang, S.; Bai, J. Numerical and experimental investigation of the full-scale buckling-restrained steel plate shear wall with inclined slots. Thin-Walled Struct. 2019, 144, 106362. [Google Scholar] [CrossRef]
 - Ge, M.; Hao, J.; Yu, J.; Yan, P.; Xu, S. Shaking table test of buckling-restrained steel plate shear walls. J. Constr. Steel Res. 2017, 137, 254–261. [Google Scholar] [CrossRef]
 - Jiang, D.; Xiao, C.; Chen, T.; Zhang, Y. Experimental Study of High-Strength Concrete-Steel Plate Composite Shear Walls. Appl. Sci. 2019, 9, 2820. [Google Scholar] [CrossRef]
 - Qi, Y.; Gu, Q.; Sun, G.; Zhao, B. Shear force demand on headed stud for the design of composite steel plate shear wall. Eng. Struct. 2017, 148, 780–792. [Google Scholar] [CrossRef]
 - Haghi, N.; Epackachi, S.; Kazemi, M.T. Macro modeling of steel-concrete composite shear walls. Structures 2020, 23, 383–406. [Google Scholar] [CrossRef]
 - Yang, Y.; Liu, J.; Fan, J. Buckling behavior of double-skin composite walls: An experimental and modeling study. J. Constr. Steel Res. 2016, 121, 126–135. [Google Scholar] [CrossRef]
 - Zhang, X.; Qin, Y.; Chen, Z. Experimental seismic behavior of innovative composite shear walls. J. Constr. Steel Res. 2016, 116, 218–232. [Google Scholar] [CrossRef]
 - Guo, L.; Li, R.; Rong, Q.; Zhang, S. Cyclic behavior of SPSW and CSPSW in composite frame. Thin-Walled Struct. 2012, 51, 39–52. [Google Scholar] [CrossRef]
 - Arabzadeh, A.; Soltani, M.; Ayazi, A. Experimental investigation of composite shear walls under shear loadings. Thin-Walled Struct. 2011, 49, 842–854. [Google Scholar] [CrossRef]
 - Zhao, Q.; Astaneh-Asl, A. Cyclic behavior of traditional and innovative composite shear walls. J. Struct. Eng. 2004, 130, 271–284. [Google Scholar] [CrossRef]
 - Astaneh-Asl, A. Seismic Behavior and Design of Composite Steel Plate Shear Walls; Structural Steel Educational Council: Moraga, CA, USA, 2002. [Google Scholar]
 - Guo, Y.; Dong, Q.; Zhou, M. Test and Analysis on Hysteretic Behavior of Buckling-Restrained Steel Plate Shear Wall. J. Build. Struct. 2009, 30, 31–39. [Google Scholar]
 - Qi, Y.; Gu, Q.; Sun, G.; Zhao, B.; Wang, H. Concrete panel thickness demand for the design of composite steel plate shear wall. Struct. Des. Tall Spec. Build. 2019, 28, 1605–1619. [Google Scholar] [CrossRef]
 - Wei, M.-W.; Liew, J.Y.R.; Fu, X.-Y. Panel action of novel partially connected buckling-restrained steel plate shear walls. J. Constr. Steel Res. 2017, 128, 483–497. [Google Scholar] [CrossRef]
 - Shafaei, S.; Ayazi, A.; Farahbod, F. The effect of concrete panel thickness upon composite steel plate shear walls. J. Constr. Steel Res. 2016, 117, 81–90. [Google Scholar] [CrossRef]
 - Han, Q.; Zhang, Y.; Wang, D.; Sakata, H. Seismic behavior of buckling-restrained steel plate shear wall with assembled multi-RC panels. J. Constr. Steel Res. 2019, 157, 397–413. [Google Scholar] [CrossRef]
 - Sun, F.F.; Yang, J.; Liu, G. Shaking Table Test on a Perforated Buckling-Restrained Steel Plate Shear Wall Structure. J. Earthq. Eng. 2020, 26, 1824–1846. [Google Scholar] [CrossRef]
 - Berman, J.W.; Bruneau, M. Experimental Investigation of Light-Gauge Steel Plate Shear Walls. J. Struct. Eng. 2005, 131, 259–267. [Google Scholar] [CrossRef]
 - Jin, S.; Bai, J. Experimental investigation of buckling-restrained steel plate shear walls with inclined-slots. J. Constr. Steel Res. 2019, 155, 144–156. [Google Scholar] [CrossRef]
 - Jin, S.; Bai, J.; Ou, J. Seismic behavior of a buckling-restrained steel plate shear wall with inclined slots. J. Constr. Steel Res. 2017, 129, 1–11. [Google Scholar] [CrossRef]
 - Wei, M.-W.; Liew, J.Y.R.; Du, Y.; Fu, X.-Y. Seismic behavior of novel partially connected buckling-restrained steel plate shear walls. Soil Dyn. Earthq. Eng. 2017, 103, 64–75. [Google Scholar] [CrossRef]
 - Wei, M.-W.; Liew, J.Y.R.; Xiong, M.-X.; Fu, X.-Y. Hysteresis model of a novel partially connected buckling-restrained steel plate shear wall. J. Constr. Steel Res. 2016, 125, 74–87. [Google Scholar] [CrossRef]
 - JGJ99; Technical Specification for Steel Structure of Tall Building. China Architecture & Building Press: Beijing, China, 2015.
 - JGJ/T380; Technical Specification for Steel Plate Shear Walls. China Architecture & Building Press: Beijing, China, 2015.
 - GB50010; Code for Design of Concrete Structures. China Architecture & Building Press: Beijing, China, 2016.
 - Feng, P.; Qiang, H.; Ye, L. Discussion and definition on yield points of materials, members and structures. Eng. Mech. 2017, 34, 36–46. [Google Scholar]
 - Fan, C.; Hao, J.; Tian, W. Expeimental Study and Simplified Model Analysis of Thin Steel Plate Wall Structures. Eng. Mech. 2016, 33, 34–45. [Google Scholar]
 - Yu, J.; Hao, J.; Li, B.; Zheng, C. Experimental study on seismic behavior of semi-rigid connection frame-steel plate shear wall. J. Xi’an Univ. Arch. Tech. (Nat. Sci. Ed.) 2015, 47, 376–381. [Google Scholar]
 - ANSI/AISC-341-10; Seismic Provisions for Structural Steel Buildings. American Institute of Steel Construction: Chicago, IL, USA, 2016.
 




















| Specimens | Steel Frames | Steel Plate | Concrete Panel | Connection Type | ||||
|---|---|---|---|---|---|---|---|---|
| Beams | Columns | Connection Type | Thickness\mm | Type | Thickness/mm | |||
| SPSW | Semi-rigid | 2 | 555 | —— | Welded fish plate | |||
| SPCSW | 2 | 555 | Single-sided | 70 mm | ||||
| DPCSW | 2 | 555 | Double-sided | 35 mm × 2 | ||||
| Positions | Yield Strength, fy (MPa) | Ultimate Strength, fu (MPa) | fu/fy | Elastic Modulus, E (MPa) | 
|---|---|---|---|---|
| Frame columns | 311 | 475.5 | 1.53 | 2.18 × 105 | 
| Frame beams | 306 | 462.5 | 1.51 | |
| Extended endplate | 347 | 484 | 1.39 | |
| Steel plates | 280 | 400 | 1.43 | |
| Steel bars | 383 | 479 | 1.25 | 2.05 × 105 | 
| Specimens | Loading Direction | Initial Stiffness | Yield Strength | Yield Drift | Maximum Strength | Drift at Maximum Strength | Failure Strength | Maximum Drift  | Failure Stiffness | Ductility | 
|---|---|---|---|---|---|---|---|---|---|---|
| /kN/mm | /kN | /mm | /kN | /mm | /kN | /mm | /kN/mm | |||
| SPSW | (+) | 39.25 | 362.42 | 14.47 | 442.26 | 27.18 | 327.45 | 34.57 | 9.84 | 2.39 | 
| (−) | 39.74 | −367.56 | −13.90 | −425.58 | −26.53 | −364.37 | −33.57 | 11.61 | 2.41 | |
| SPCSW | (+) | 43.92 | 396.26 | 12.72 | 557.08 | 34.80 | 394.16 | 42.59 | 10.71 | 3.35 | 
| (−) | 43.86 | −348.41 | −13.16 | −569.66 | −33.59 | −536.22 | −40.80 | 13.56 | 3.10 | |
| DPCSW | (+) | 36.50 | 508.48 | 16.50 | 820.79 | 58.62 | 598.46 | 71.63 | 11.03 | 4.34 | 
| (−) | 42.27 | −486.34 | −13.41 | −822.67 | −46.27 | −716.31 | −57.42 | 12.17 | 4.28 | 
| Steel Plate | /mm | /kN | Frame Columns | ||||||||||||
|---|---|---|---|---|---|---|---|---|---|---|---|---|---|---|---|
| t/mm | L/mm | H/mm | /(N/mm2) | Dimensions/mm | Connection Type | ||||||||||
| SPSW | SPSW | 2 | 1565 | 1110 | 280 | 555 | - | 365.49 | 505.99 | 0.72 | 6.01 | 8.30 | 1.38 | Semi-rigid | |
| SPSW-500 [17] | 2.2 | 1100 | 1100 | 382.7 | 500 | - | 350.44 | 534.70 | 0.66 | 9.08 | 165.19 | 18.20 | Simply supported | ||
| SPSW-400 [17] | 2.8 | 1100 | 1100 | 324 | 393 | - | 440.53 | 576.15 | 0.76 | 11.6 | 229.35 | 19.85 | Simply supported | ||
| SPSW-1 [13] | 2 | 1560 | 1050 | 283 | 525 | - | 813 | 509.78 | 1.59 | 4.83 | 112.86 | 23.36 | Rigid | ||
| Specimen 1 [32] | 4 | 1200 | 1200 | 356 | 300 | - | 465.1 | 986.58 | 0.47 | 21.4 | 16.01 | 0.75 | Rigid | ||
| Specimen 2 [33] | 3.3 | 1050 | 1050 | 345.27 | 318 | - | 575.09 | 690.72 | 0.83 | 11.8 | 28.16 | 2.38 | Rigid | ||
| Specimen 3 [5] | 5 | 1760 | 1275 | 335.7 | 255 | - | 602.6 | 1705.59 | 0.35 | 23.3 | 78.50 | 3.37 | Beam connected only | ||
| Specimen 4 [5] | 5 | 1760 | 1275 | 338.3 | 255 | - | 580.4 | 1718.79 | 0.34 | 23.3 | 133.33 | 5.73 | Beam connected only | ||
| SPSW with single panel | SPCSW | 2 | 1565 | 1110 | 280 | 555 | 70 | 372.34 | 505.99 | 0.74 | 6.01 | 8.30 | 1.38 | Semi-rigid | |
| SPSW with double panels | DPCSW | 2 | 1565 | 1110 | 280 | 555 | 35 | 497.41 | 505.99 | 0.98 | 6.01 | 8.30 | 1.38 | Semi-rigid | |
| BR-SPW1-500 [17] | 2.2 | 1100 | 1100 | 382.7 | 500 | 50 | 500.89 | 534.70 | 0.94 | 9.08 | 229.35 | 25.27 | Simply supported | ||
| BR-S PW2-500 [17] | 2.2 | 1100 | 1100 | 382.7 | 500 | 50 | 499.15 | 534.70 | 0.93 | 9.08 | 229.35 | 25.27 | Simply supported | ||
| BR-SPW1-400 [17] | 2.8 | 1100 | 1100 | 382.7 | 393 | 50 | 694.05 | 680.53 | 1.02 | 11.6 | 229.35 | 19.85 | Simply supported | ||
| BR-SPW2-400 [17] | 2.8 | 1100 | 1100 | 382.7 | 393 | 50 | 705.17 | 680.53 | 1.04 | 11.6 | 229.35 | 19.85 | Simply supported | ||
| C-SPW-400 [17] | 2.8 | 1100 | 1100 | 382.7 | 393 | 50 | 584.61 | 680.53 | 0.86 | 11.6 | 229.35 | 19.85 | Simply supported | ||
| Traditional type [15] | 4.8 | 1730 | 1752 | 248 | 365 | 75 | 1953 | 1188.99 | 1.64 | 81.0 | 405.35 | 5.00 | Rigid | ||
| Innovative type [15] | 4.8 | 1730 | 1752 | 248 | 365 | 75 | 1717 | 1188.99 | 1.44 | 81.0 | 405.35 | 5.00 | Rigid | ||
| CSPSW-1 [13] | 2 | 1560 | 1050 | 230 | 525 | 50 | 899.13 | 414.31 | 2.17 | 4.83 | 112.86 | 23.36 | Rigid | ||
Publisher’s Note: MDPI stays neutral with regard to jurisdictional claims in published maps and institutional affiliations.  | 
© 2022 by the authors. Licensee MDPI, Basel, Switzerland. This article is an open access article distributed under the terms and conditions of the Creative Commons Attribution (CC BY) license (https://creativecommons.org/licenses/by/4.0/).
Share and Cite
Chen, S.; Peng, X.; Lin, C.; Zhang, Y.; Hu, H.; He, Z. Experimental and Analytical Studies of Prefabricated Composite Steel Shear Walls under Low Reversed Cyclic Loads. Materials 2022, 15, 5737. https://doi.org/10.3390/ma15165737
Chen S, Peng X, Lin C, Zhang Y, Hu H, He Z. Experimental and Analytical Studies of Prefabricated Composite Steel Shear Walls under Low Reversed Cyclic Loads. Materials. 2022; 15(16):5737. https://doi.org/10.3390/ma15165737
Chicago/Turabian StyleChen, Shenggang, Xiaotong Peng, Chen Lin, Yingying Zhang, Hexiang Hu, and Zhengjian He. 2022. "Experimental and Analytical Studies of Prefabricated Composite Steel Shear Walls under Low Reversed Cyclic Loads" Materials 15, no. 16: 5737. https://doi.org/10.3390/ma15165737
APA StyleChen, S., Peng, X., Lin, C., Zhang, Y., Hu, H., & He, Z. (2022). Experimental and Analytical Studies of Prefabricated Composite Steel Shear Walls under Low Reversed Cyclic Loads. Materials, 15(16), 5737. https://doi.org/10.3390/ma15165737
        
                                                