Abstract
As a renewable raw material, straw bale represents a sustainable way of construction with minimal environmental impact. This paper focused on life cycle impact assessment of load-bearing straw bale residential building. Product stage from raw materials extraction to manufacture of construction materials was considered in the assessment including seven variations of straw bale. Construction materials were evaluated due to IMPACT 2002+ method. Both midpoint and endpoint impact categories were included. The results showed the importance of straw bale origin. Ecosystem quality impact of straw from extensively cultivated pastures was twenty times higher than that of intensive crop production, thus making a significant difference to an overall score of the construction. Results showed advantage of straw as a construction material particularly when used locally. In addition, significant contributions of other construction materials were identified.
1. Introduction
1.1. Environmental Impact and Life Cycle Assessment
From 1990 to 2014 industrialization caused an increase of direct emissions, including energy and non-energy process emissions by 65% [1], thus forming a difficult situation we are facing today. The World Economic Forum [2] claim climate-related natural disasters such as hurricanes, droughts, and wildfires are becoming more intense and more frequent. Together with faster polar ice melting threatening coastal populations, we are forced to take action to avert irreversible changes of our environment. Andrew Boyd, a co-founder of Climate Watch project, stated we have just over 7 years to help our planet restore [3].
A way how to survive these changes is to switch on sustainable raw material and energy sources as well as to create technologies preventing waste production as much as possible. Consequently, in 2006 the International Organization for Standardization released a framework for Life Cycle Assessment—LCA methodology [4,5], providing principles and guidelines of products and services impact assessment over the whole life cycle. This method has been being commonly used among researchers worldwide and brings progressive view on environmental pollution caused by current technology and society requirements.
LCA method helps us understand products and services within their individual life cycle stages. According to EN 15804 [6] buildings and construction materials have four main stages—product, construction, use and end-of-life stage; and one additional stage expresses possible benefits and loads beyond system boundaries (Figure 1). Each stage may have a different impact. In order to choose the product or service with the lowest environmental impact, it is crucial to identify and understand its impacts throughout the whole life cycle.
Figure 1.
Life cycle stages of buildings.
The LCA evaluates input and output material and energy flows within the system under study by midpoint and/or endpoint impact categories depending on a specific calculation method. Figure 2 illustrates relation between midpoint and endpoint categories on the basis of IMPACT 2002+ calculation method [7]. Characterization stage as the key step of Life Cycle Impact Assessment (LCIA) can be supplemented by damage assessment, weighting, or single score analysis. These steps serve to compare the magnitude of selected impact categories or products. The results provide the decision makers with information on environmental benefits and burdens connected with a product or service.
Figure 2.
Example of possible environmental impacts and their relation to midpoint and endpoint impact categories.
1.2. Straw as a Construction Material
Straw has been used as a construction material for thousands of years. Its chemical composition is comparable to wood biomass and can be implemented into construction in various ways. Common types of straw-based buildings present load-bearing or post and beam construction. Nowadays, straw-based biocomposites are the scope of interest [8].
Straw-based constructions represent a green variant of conventional construction materials. Muazu et al. [9] affirmed traditional constructions utilized local raw material sources and provided simple processing and minimal transport requirements. Bhattarai et al. [10] in their study highlighted environmental issues of straw bales. Ashour and Wu declared [11] it is possible to use straw bales for construction almost any structure including thermal and acoustic insulation as well as fire safety walls. Properly designed straw-based constructions can meet thermo-technical criteria and environmental requirements (Table 1).
Table 1.
Selected characteristics of straw.
Potential reduction in waste disposal and general availability of straw bales make straw a remarkable construction material. The exact number of straw-based constructions in the world is unknown. However, there are databases that register these buildings, e.g., the European Straw Building Association (ESBA) in Europe [21]. According to Cornaro et al. [22] straw-based buildings were mostly spread in the USA, Western Europe, and Asia.
Focusing on straw bales throughout their life cycle, Gonzalez [23] reported that the embodied energy of straw bales was lower by 5.8% than that of fired brick and 19.8% lower in case of cement block. Moreover, he proved that transport distances of common masonry construction materials considerably increased overall environmental damage, highlighting a relevant role of renewable agricultural products in lowering impacts of construction materials, as well as options for sustainable production.
A study by Abd-Elhafeez et al. [24] comparing straw bale and masonry brick construction showed that straw bale construction reached 40% lower discomfort degree hours, 82% lower energy consumption, and 80% lower CO2 emissions than masonry brick construction.
Findings of Cornaro et al. [22] revealed production and construction of straw-based wall accounted for 50% lesser embodied energy and CO2 emissions than the masonry wall. Moreover, the use stage of straw-based wall was responsible for about 91% of the total embodied energy and 93% of the total CO2 emissions compared to masonry wall liable to 85% and 88% of the total embodied energy and CO2 emissions, respectively.
Nozdrovicky et al. [25] investigated technological effects of straw baling technology and found out smaller field acreage required frequent machine turning which increased the working time of the machinery which led to higher CO2 emissions.
International Energy Agency [26] reported buildings and construction industry was responsible for 36% of the total final energy consumption and 38% of the total energy-related CO2 emissions in 2019.
International Energy Agency. Global Status Report for Buildings and Construction 2019. IEA, Paris. Available online: https://www.iea.org/reports/global-status-report-for-buildings-and-construction-2019 (accessed on 16 January 2021). This paper identifies product stage environmental impacts of straw bale building considering several types of straw bale. Midpoint (carcinogens; non-carcinogens; respiratory organics and inorganics; ionizing radiation; ozone layer depletion; aquatic and terrestrial ecotoxicity; terrestrial acidification and nitrification; land occupation; aquatic acidification and eutrophication; global warming; non-renewable energy; mineral extraction) and endpoint impact categories (human health, ecosystem quality, climate change, resources) are introduced to thoroughly explore impacts of used construction materials.
2. Materials and Methods
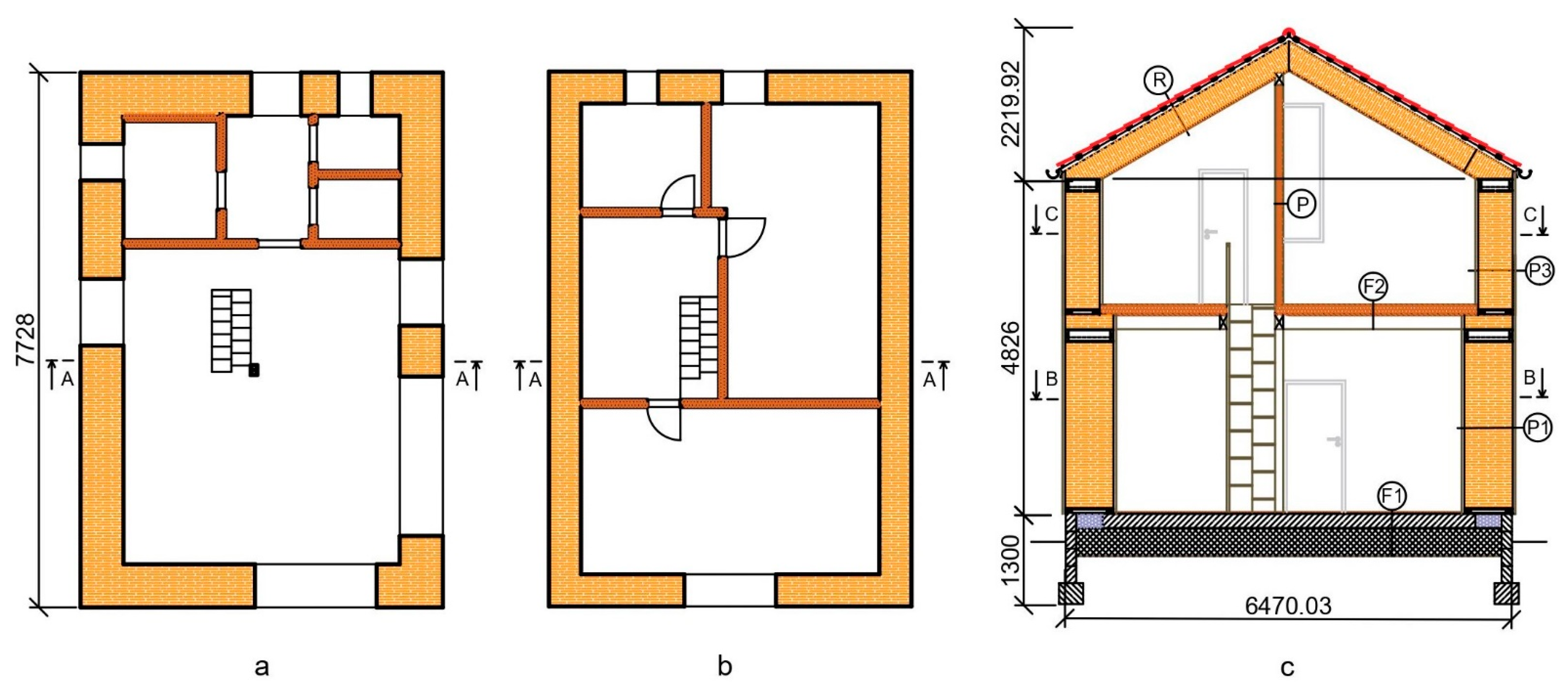
The selected load-bearing straw bale construction was assessed in terms of its environmental impact, based on the LCA methodology [4,5] and IMPACT 2002+ calculation method [7]. Stages A1 to A3 were included in the assessment (Figure 1) [6]. Functional unit was characterized by the whole straw bale construction representing 76.05 m2 of gross internal area. The construction was proposed by authors denoting typical way of construction object for small family housing (Figure 3).
Figure 3.
Cross sections of the straw bale residential building (SBRB): (a) First floor section B-B; (b) Second floor section C-C; (c) Cross section A-A. Material composition of marked structures were given in Table 2. Measures are given in milimetres.
The data on components were taken from building area statement. Thermal characteristics (specific heat demand and heat transfer coefficient) were calculated due to Slovak technical standard STN 73 0540-3 [27]. Specific heat demand for heating was set to 31 kWh/m2a. Primary energy demand was not taken into account.
Material composition (Table 2) and weight distribution within the construction (Table 3) were described in their respective tables. Environmental impact was expressed via midpoint and endpoint impact categories.
Table 2.
Material composition and heat transfer coefficient of the SBRB.
Table 3.
Weight distribution of the construction materials based on the actual area statement of the construction. Each material was given a number for further assessment. Database name referred to a specific dataset used in the evaluation. Allocation at the point of substitution (APOS) and unit processes (U) were selected for the life cycle modelling.
Market for standalone straw production database including transport was chosen for the initial assessment of the construction. In addition, six more straw databases were assessed separately (Table 4) in order to identify the most environmentally beneficial variant of straw. Selected straw databases were defined as co-products of wheat production and differed in geographical locations, type of cultivation along with area of occupation and transformation of soil [28]. Construction material no. 10 (Table 3) referred to Straw G database (Table 4).
Table 4.
Straw databases used for straw environmental contribution comparison. Land occupation described the duration of land use from soil cultivation until harvest and the yield per area unit in a year. Land transformation referred to the area required to produce 1 kg of straw.
3. Results
At first, the proposed construction was assessed by the characterization stage. All material and energy flows were assigned to respective midpoint impact categories. The characterization result (Table A1) showed foam glass hit environment the worst at seven impact categories—carcinogens (74.23 kg C2H3Cl eq), respiratory inorganics (8.42 kg PM2.5 eq), ionizing radiation (59.14 × 103 Bq C-14 eq), terrestrial acidification/nitrification (98.11 kg SO2 eq), aquatic acidification (25.78 kg SO2 eq), global warming (58.93 × 102 kg CO2 eq), and non-renewable energy (90.45 × 103 kg oil eq).
OSB affected the worst respiratory organics (1.72 kg C2H4 eq). Metal sheet roofing was indicated as the worst material in mineral extraction responsible for 555.82 kg Fe eq resource depletion, representing only 0.25% of construction weight.
Despite relatively low weight contribution (0.9%), XPS achieved the highest negative impact in ozone layer depletion category (1.15 × 10−3 kg CFC-11 eq) due to the extrusion process where HFC-134a and HFC-152a were still being used as blown agents besides CO2.
Standalone straw achieved the highest negative impact in land occupation (61.34 × 103 m2 eq organic arable land in a year) and aquatic eutrophication (3.08 kg PO43− eq) impact categories. Nonetheless, it reached negative values in non-carcinogens (−14.29 × 102 kg C2H3Cl eq), aquatic ecotoxicity (−27.30 × 105 kg TEG eq), and terrestrial ecotoxicity (−35.61 × 105 kg TEG eq) impact categories proving positive effects on environment related to the incorporation of pollutants into its structure. However, the negative impact could occur at the end of the life cycle when pollutants could revert to the environment. In the category of land occupation, the impact was caused by the process of standalone straw production, especially by inputs from nature “Occupation, pasture, artificial, intensive”. The same process was responsible for negative impact on aquatic eutrophication caused by phosphates leaching. On the other hand, zinc and copper accounted for positive effect since their deposition into the straw structure.
After characterization results, damage assessment was carried out (Figure 4). Damage assessment constituted four endpoint impact categories (human health, ecosystem quality, climate change, and resources) formed by multiplying the midpoint characterization potentials with the damage characterization factors of the reference substances based on Jolliet et al. [7]. Human health was introduced as disability-adjusted life years (DALY). The damage to biodiversity reflected the fraction of species that has been lost in comparison with a natural or undisturbed area as the potentially disappeared fraction of species over a certain area during a certain time. Resources were characterized by the amount of additional primary energy required per unit of mineral and of total non-renewable primary energy for energy carriers. Climate change remained the same unit as for midpoint impact category.
Figure 4.
Damage assessment of construction materials within each endpoint impact category (human health, ecosystem quality, climate change and resources). Numbers refer to construction materials listed in Table 3.
Positive effect of straw (no. 10) heavy metals absorption from soil resulted in human health negative values from the damage assessment point of view (Figure 4). Foam glass (no. 12) confirmed the worst values in climate change, resources and human health impact category. Ecosystem quality was mostly affected by straw bale due to the intensive pasture occupation.
Concrete (no. 2), fiberboard (no. 3), and clay plaster (no. 4) showed similar values in almost all categories except climate change dominated by concrete (Figure 4). Mastic asphalt (no. 5) and roof insulation foil (no. 8) had a negligible effect on the environment due to their low weight contribution (0.05% and 0.01%, respectively) within the construction.
Eventually, single score endpoint impacts were identified (Figure 5). Single score assessment evaluates contribution of each endpoint impact category on the whole material. One point (Pt), as the single score unit, stands for one-thousandth of the yearly environmental load of one average European inhabitant.
Single score results clearly identified straw bale (no. 10) as the biggest burden for the environment mainly because of intensive pasture occupation as already mentioned above. Moreover, it should be stated straw represented only 15.09% of weight within the whole construction. The second worst material remained foam glass (no. 12) followed by metal sheet roofing (no. 13). Moreover, metal sheet roofing had more than 16 times lower weight compared to foam glass and represented nearly 55% of the foam glass overall endpoint impact.
In order to investigate the contribution of straw origin to overall environmental impact six more straw databases were assessed (Table 4 and Table 5; Figure 6). Straw G, identical to construction material no. 10 used in the initial assessment, affirmed to be the most harmful straw alternative despite positive effects on human health. On the other hand, Straw C corresponding to intensive wheat production appeared to be the most environmentally beneficial option the least affecting ecosystem quality (4.98% out of overall Straw G impact in respective category).
Table 5.
Relative percentage comparison of individual straw alternatives environmental impact. For each impact category the worst and the best straw alternative was highlighted according to the highest contribution within individual category.
Figure 6.
Contribution of different straw alternatives to environmental impact—a single score assessment.
According to the single score assessment of different straw alternatives (Figure 6), replacing Straw G (2.65 Pt) with Straw C (0.29 Pt) would lead to decrease in potential environmental impact of construction straw bale by 89.06%. Though, Straw C does not operate with market transportation distances. Nevertheless, if locally available sources of straw bale were used, the transportation impact would be negligible.
4. Discussion
Databases used for the assessment were part of global datasets referring to average technology and transport distances from all over the world. The study proved importance of straw origin on the final impact of the construction and supported the findings of Haas et al. [29] who claimed extensive and organic farming reduced negative environmental impact compared to intensive grassland farming. Each straw alternative considered in our study had specific relative percentage endpoint category impact (Table 5) closely related to specific technological operations according to the cultivation type. That proved the relevance of database selection when performing LCA and importance of locally available sources as well as contribution of individual cultivation type. As the best option for construction straw bale, Straw C was chosen representing intensive wheat production in Swiss. Foam glass, metal sheet roofing, wood flooring, and XPS were identified to bear the majority of the building impact on environment. Waterproofing insulation environmental impact was denoted as negligible.
Global warming midpoint impact category of the SBRB was 304.93 kg CO2 eq/m2 and 294.35 kg CO2 eq/m2 in the case of Straw C alternative. Wood-based single-family building assessed by Petrovic et al. [30] produced 169.80 kg CO2 eq/m2 throughout the product stage. Other assessment of wood-based building done by Mitterpach et al. [31] showed impact of 389.62 kg CO2 eq/m2. However, each construction was unique in terms of material composition, weight distribution, number of floors, floor area, inventory used for the assessment, calculation method, geographical region and many other factors. Most of the studies contained data specific for the research, making it non-comparable with other records. Such constraints therefore brought different values and did not reflect reality. Moreover, quantity of construction materials within construction was often estimated, resulting in further inaccuracies.
The findings of Moschetti et al. [32] pointed towards the need for a stronger strategic emphasis on the embodied energy and emissions of materials for a successful transition from zero-energy to zero-emission building target. Despite relatively high impact on ecosystem quality straw remained an environmentally beneficial construction material.
As well as Takano et al. [33] compared different databases, our results of the specific impacts on the environment were always individual and different according to the chosen calculation method and also within individual impact categories. Furthermore, attributive and consequential approaches could have different results, as was proved by Finnveden et al. [34]. Moreover, further research on environmental characteristics of straw constructions could be made considering straw as an agricultural waste material and its effect on the total score. The study did not take into account economic factor, environmental conditions and durability of the structure.
5. Conclusions
This paper revealed the environmental impact of straw bale residential building (SBRB) at midpoint and endpoint impact categories and proved the importance of suitable construction materials selection. The study also identified environmentally inappropriate and burdensome materials.
To express possible impacts of different straw bales origin on construction embodied environmental impact seven variations of straw were considered. Results pointed at vast differences between individual products, especially depending on the production technology, tillage, geographical range, and transport distances. Proper selection of straw bale could cut the total embodied emissions up to 89%. In all cases, straw had the greatest impact on ecosystem quality due to land occupation. Intensive wheat straw production required more fertilizers, thus supported eutrophication. On the other hand, vast land occupation done by extensive production of standalone straw considerably damaged the biodiversity, but remained positive in non-carcinogens, aquatic and terrestrial ecotoxicity impact categories due to absorption of heavy metals during biomass growth.
Understanding the environmental impact of construction materials presents a key point of construction design. However, to build the most environmentally beneficial construction it is necessary to look at each life cycle stage in detail and assess them as a whole. In these terms, further analysis should be made to evaluate the overall life cycle environmental impact of such structure considering several variations of the most burdensome construction materials and energy sources.
Author Contributions
Conceptualization, R.V. and M.V.; Data curation, J.S.; Formal analysis, R.V.; Investigation, R.V.; Methodology, R.V.; Project administration, J.S.; Resources, R.V. and M.V.; Software, R.V.; Supervision, J.S.; Validation, R.V. and J.S.; Visualization, R.V.; Writing—original draft, R.V.; Writing—review & editing, J.S. All authors have read and agreed to the published version of the manuscript.
Funding
This research was funded by SLOVAK RESEARCH AND DEVELOPMENT AGENCY, grant number APVV-17-0206.
Institutional Review Board Statement
Not applicable.
Informed Consent Statement
Not applicable.
Data Availability Statement
Additional data can be found at https://www.ecoinvent.org/database/older-versions/ecoinvent-34/ecoinvent-34.html (accessed on 2 June 2021).
Acknowledgments
This work was supported by the grant APVV-17-0206 Ultra-low-energy Green Buildings Base on Wood as a Renewable Raw Material.
Conflicts of Interest
The authors declare no conflict of interest.
Appendix A
Table A1.
Midpoint characterization environmental impacts of the SBRB. Columns represent specific impact categories and lines refer to construction material listed in Table 4. Contribution of particular construction material within each impact category is given in a relative percentage according to the material with the highest/lowest environmental impact marked in color. Red color symbolizes the highest environmental impact within the selected impact category and green color stands for the lowest environmental impact. In addition, actual contributions according to the particular impact category units are placed right below the lines with percentage contribution.
Table A1.
Midpoint characterization environmental impacts of the SBRB. Columns represent specific impact categories and lines refer to construction material listed in Table 4. Contribution of particular construction material within each impact category is given in a relative percentage according to the material with the highest/lowest environmental impact marked in color. Red color symbolizes the highest environmental impact within the selected impact category and green color stands for the lowest environmental impact. In addition, actual contributions according to the particular impact category units are placed right below the lines with percentage contribution.
| Material | Impact Category | ||||||||||||||
|---|---|---|---|---|---|---|---|---|---|---|---|---|---|---|---|
| Carcinogens | Non-Carcinogens | Respiratory Inorganics | Ionizing Radiation | Ozone Layer Depletion | Respiratory Organics | Aquatic Ecotoxicity | Terrestrial Ecotoxicity | Terrestrial Acid/Nutri | Land Occupation | Aquatic Acidification | Aquatic Eutrophication | Global Warming | Non-Renewable Energy | Mineral Extraction | |
| (kg C2H3Cl eq) | (kg C2H3Cl eq) | (kg PM2.5 eq) | (Bq C-14 eq) | (kg CFC-11 eq) | (kg C2H4 eq) | (kg TEG eq) | (kg TEG eq) | (kg SO2 eq) | (m2eq Organic Arable Land·Year) | (kg SO2 eq) | (kg PO43− eq) | (kg CO2 eq) | (kg oil eq) | (kg Fe eq) | |
| 1 * | 38.65 | 1.60 | 9.60 | 3.69 | 2.42 | 23.93 | 1.66 | 0.42 | 8.31 | 0.01 | 8.64 | 5.37 | 9.70 | 5.96 | 17.50 |
| 1 ** | 28.69 | 22.81 | 0.81 | 21.80 × 102 | 2.77 × 10−5 | 0.41 | 45.29 × 103 | 15.00 × 103 | 8.15 | 6.37 | 2.23 | 0.17 | 571.91 | 53.95 × 102 | 97.24 |
| 2 * | 26.64 | 3.34 | 29.95 | 29.68 | 18.28 | 45.08 | 4.88 | 1.69 | 53.10 | 0.14 | 39.76 | 11.09 | 59.99 | 28.30 | 13.12 |
| 2 ** | 19.78 | 47.76 | 2.52 | 17.55 × 103 | 2.10 × 10−4 | 0.77 | 13.32 × 104 | 60.30 × 103 | 52.10 | 85.44 | 10.25 | 0.34 | 35.35 × 102 | 25.60 × 103 | 72.90 |
| 3 * | 28.17 | 4.35 | 38.04 | 28.43 | 10.93 | 34.88 | 14.02 | 3.50 | 39.97 | 0.25 | 49.49 | 15.94 | 39.14 | 33.15 | 3.47 |
| 3 ** | 20.91 | 62.12 | 3.20 | 16.81 × 103 | 1.25 × 10−4 | 0.60 | 38.27 × 104 | 12.47 × 104 | 39.21 | 151.38 | 12.76 | 0.49 | 23.07 × 102 | 29.99 × 103 | 19.29 |
| 4 * | 29.66 | 2.78 | 36.67 | 31.98 | 24.95 | 59.40 | 6.25 | 2.78 | 58.34 | 0.13 | 47.72 | 11.61 | 37.33 | 36.03 | 11.83 |
| 4 ** | 22.02 | 39.68 | 3.09 | 18.91 × 103 | 2.86 × 10−4 | 1.02 | 17.08 × 104 | 99.12 × 103 | 57.24 | 81.55 | 12.30 | 0.36 | 22.00 × 102 | 32.59 × 103 | 65.73 |
| 5 * | 0.10 | 0.01 | 0.17 | 0.19 | 0.21 | 0.50 | 0.05 | 0.01 | 0.24 | 0.00 | 0.32 | 0.07 | 0.20 | 0.31 | 0.01 |
| 5 ** | 0.08 | 0.19 | 0.01 | 109.35 | 2.44 × 10−6 | 8.61 × 10−3 | 13.48 × 102 | 364.35 | 0.23 | 0.33 | 0.08 | 2.27 × 10−3 | 11.46 | 275.84 | 0.08 |
| 6 * | 57.83 | 3.37 | 22.12 | 19.16 | 9.36 | 100.00 | 10.74 | 2.99 | 37.97 | 2.23 | 30.60 | 10.58 | 22.11 | 27.86 | 9.60 |
| 6 ** | 42.93 | 48.12 | 1.86 | 11.33 × 103 | 1.07 × 10−4 | 1.72 | 29.32 × 104 | 10.64 × 104 | 37.25 | 13.68 × 102 | 7.89 | 0.33 | 13.03 × 102 | 25.20 × 103 | 53.37 |
| 7 * | 12.19 | 1.26 | 23.77 | 12.16 | 6.83 | 34.76 | 3.56 | 1.07 | 22.96 | 4.19 | 16.90 | 4.53 | 11.55 | 11.17 | 3.04 |
| 7 ** | 9.05 | 17.93 | 2.00 | 71.94 × 102 | 7.84 × 10−5 | 0.60 | 97.07 × 103 | 38.10 × 103 | 22.52 | 25.71 × 102 | 4.36 | 0.14 | 680.86 | 10.10 × 103 | 16.92 |
| 8 * | 0.12 | 0.02 | 0.25 | 0.28 | 0.06 | 2.03 | 0.04 | 0.01 | 0.43 | 0.00 | 0.38 | 0.06 | 0.47 | 0.81 | 0.03 |
| 8 ** | 0.09 | 0.27 | 0.02 | 168.18 | 7.33 × 10−7 | 0.03 | 10.51 × 102 | 255.44 | 0.42 | 0.39 | 0.10 | 1.95 × 10−3 | 27.39 | 731.95 | 0.19 |
| 9 * | 9.70 | 0.15 | 2.59 | 1.78 | 100.00 | 14.45 | 0.25 | 0.05 | 3.65 | 0.00 | 4.21 | 1.13 | 6.20 | 7.41 | 0.83 |
| 9 ** | 7.20 | 2.13 | 0.22 | 10.54 × 102 | 1.15 × 10−3 | 0.25 | 68.18 × 102 | 18.75 × 102 | 3.58 | 1.31 | 1.08 | 0.03 | 365.40 | 67.02 × 102 | 4.62 |
| 10 * | 15.09 | −100.00 | 21.87 | 10.94 | 10.99 | 41.46 | −100.00 | −100.00 | 37.83 | 100.00 | 24.83 | 100.00 | 20.47 | 14.50 | 9.86 |
| 10 ** | 11.20 | −14.29 × 102 | 1.84 | 64.72 × 102 | 1.26 × 10−4 | 0.71 | −27.30 × 105 | −35.61 × 105 | 37.12 | 61.34 × 103 | 6.40 | 3.08 | 12.06 × 102 | 13.11 × 103 | 54.83 |
| 11 * | 18.98 | 0.97 | 20.22 | 8.66 | 6.12 | 51.22 | 2.57 | 0.69 | 14.81 | 0.26 | 14.23 | 3.83 | 8.90 | 11.39 | 4.24 |
| 11 ** | 14.09 | 13.84 | 1.70 | 51.19 × 102 | 7.02 × 10−5 | 0.88 | 70.29 × 103 | 24.64 × 103 | 14.53 | 156.87 | 3.67 | 0.12 | 524.69 | 10.30 × 103 | 23.57 |
| 12 * | 100.00 | 5.66 | 100.00 | 100.00 | 35.75 | 62.76 | 14.33 | 2.08 | 100.00 | 0.19 | 100.00 | 73.05 | 100.00 | 100.00 | 99.33 |
| 12 ** | 74.23 | 80.84 | 8.42 | 59.14 × 103 | 4.10 × 10−4 | 1.08 | 39.13 × 104 | 74.14 × 103 | 98.11 | 115.53 | 25.78 | 2.25 | 58.93 × 102 | 90.45 × 103 | 552.07 |
| 13 * | 91.04 | 10.13 | 58.36 | 14.19 | 9.05 | 14.69 | 6.74 | 0.77 | 58.14 | 0.00 | 82.27 | 13.54 | 58.71 | 37.77 | 100.00 |
| 13 ** | 67.58 | 144.79 | 4.91 | 83.90 × 102 | 1.04 × 10−4 | 0.25 | 18.41 × 104 | 27.32 × 103 | 57.05 | 27.27 | 21.21 | 0.42 | 34.60 × 102 | 34.16 × 103 | 555.82 |
| 14 * | 42.05 | 4.57 | 38.31 | 39.25 | 13.59 | 89.73 | 16.41 | 4.54 | 38.54 | 2.13 | 28.33 | 14.12 | 18.72 | 24.27 | 8.76 |
| 14 ** | 31.22 | 65.28 | 3.23 | 23.21 × 103 | 1.56 × 10−4 | 1.54 | 44.78 × 104 | 16.18 × 104 | 37.81 | 13.08 × 102 | 7.30 | 0.43 | 11.04 × 102 | 21.95 × 103 | 48.71 |
* Values are given as percentages; ** Values are given according to the particular impact category units.
References
- Rissman, J.; Bataille, C.; Masanet, E.; Aden, N.; Morrow, W.R.; Zhou, N.; Elliott, N.; Dell, R.; Heeren, N.; Huckestein, B.; et al. Technologies and policies to decarbonize global industry: Review and assessment of mitigation drivers through 2070. Appl. Energy 2020, 266, 114848. [Google Scholar] [CrossRef]
- World Economic Forum. The Global Risks Report. 2020. Available online: https://www.weforum.org/reports/the-global-risks-report-2020 (accessed on 2 October 2020).
- Corbett, J. Massive ‘Climate Clock’ Urging Governments to #ActInTime Unveiled on Metronome in New York City. Common Dreams. 2020. Available online: https://www.commondreams.org/news/2020/09/19/massive-climate-clock-urging-governments-actintime-unveiled-metronome-new-york-city (accessed on 10 October 2020).
- ISO 14040:2006 Environmental Management. Life Cycle Assessment-Principles and Framework; International Organization for Standardization: Geneva, Switzerland, 2006.
- ISO 14044:2006+A1:2018 Environmental Management. Life Cycle Assessment-Requirements and Guidelines; International Organization for Standardization: Geneva, Switzerland, 2006.
- EN 15804:2012+A2:2019 Sustainability of Construction Works-Environmental Product Declarations-Core Rules for the Product Category of Construction Products; European Committee for Standardization: Bruxelles, Belgium, 2012.
- Jolliet, O.; Margni, M.; Charles, R.; Humbert, S.; Payet, J.; Rebitzer, G.; Rosenbaum, R. IMPACT 2002+: A new life cycle impact assessment methodology. Int. J. Life Cycle Assess. 2003, 8, 324–330. [Google Scholar] [CrossRef]
- Ghaffar, S.H. Straw fibre-based construction materials. In Advanced High Strength Natural Fibre Composites in Construction; Fan, M., Fu, F., Eds.; Woodhead Publishing: Cambridge, UK, 2017; pp. 257–283. [Google Scholar] [CrossRef]
- Muazu, A.G.; Alibaba, H.Z. The Use of Traditional Building Materials in Modern Methods of Construction. IJESTR 2017, 2, 30–40. [Google Scholar]
- Bhattarai, P.; Dhakal, D.R.; Neupane, K.; Chamberlin, K.S. Straw Bale in Construction of Building and its future in India. IJMER 2012, 2, 422–426. [Google Scholar]
- Ashour, T.; Wu, W. Using Barley Straw as Building Material. In Barley: Production, Cultivation and Uses; Elfson, S.B., Ed.; Nova Science Publishers Inc.: Hauppage, NY, USA, 2011; 28p. [Google Scholar]
- Dzidic, S. Fire Resistance of the Straw Bale Walls. In Contemporary Achievements in Civil Engineering, Proceedings of the 5th International Conference, Subotica, Serbia, 21 April 2017; Faculty of Civil Engineering Subotica of the University of Novi Sad: Subotica, Serbia, 2017. [Google Scholar] [CrossRef]
- Petkova-Slipets, R.; Zlateva, P. Thermal Insulating Properties of Straw-Filled Environmentally Friendly Building Materials. Civ. Environ. Eng. 2017, 13, 52–57. [Google Scholar] [CrossRef]
- Costes, J.-P.; Evrard, A.; Biot, B.; Keutgen, G.; Daras, A.; Dubois, S.; Lebeau, F.; Courard, L. Thermal Conductivity of Straw Bales: Full Size Measurements Considering the Direction of the Heat Flow. Buildings 2017, 7, 11. [Google Scholar] [CrossRef]
- Sabapathy, K.A.; Gedupudi, S. Straw bale based constructions: Measurement of effective thermal transport properties. Constr. Build. Mater. 2019, 198, 182–194. [Google Scholar] [CrossRef]
- Teslík, J.; Fabian, R.; Hrubá, B. Determination of the Airborne Sound Insulation of a Straw Bale Partition Wall. Civ. Environ. Eng. 2017, 13, 20–29. [Google Scholar] [CrossRef][Green Version]
- Cascone, S.; Evola, G.; Gagliano, A.; Sciuto, G.; Parisi, C.B. Laboratory and In-Situ Measurements for Thermal and Acoustic Performance of Straw Bales. Sustainability 2019, 11, 5592. [Google Scholar] [CrossRef]
- Koh, C.H.; Kraniotis, D. Hygrothermal performance, energy use and embodied emissions in straw bale buildings. Energy Build. 2021, 245, 111091. [Google Scholar] [CrossRef]
- Marques, B.; Tadeu, A.; Almeida, J.; António, J.; de Brito, J. Characterisation of sustainable building walls made from rice straw bales. J. Build. Eng. 2020, 28, 101041. [Google Scholar] [CrossRef]
- Allam, M.E.; Garas, G.L.; El Kady, H.G. Recycled chopped rice straw- cement bricks: Mechanical, fire resistance & economical assessment. Aust. J. Basic Appl. Sci. 2011, 5, 27–33. [Google Scholar]
- European Straw Building Association. Available online: https://strawbuilding.eu/ (accessed on 25 May 2021).
- Cornaro, C.; Zanella, V.; Robazza, P.; Belloni, E.; Buratti, C. An innovative straw bale wall package for sustainable buildings: Experimental characterization, energy and environmental performance assessment. Energy Build. 2020, 208, 109636. [Google Scholar] [CrossRef]
- González, A.D. Energy and carbon embodied in straw and clay wall blocks produced locally in the Andean Patagonia. Energy Build. 2014, 70, 15–22. [Google Scholar] [CrossRef]
- Abd-Elhafeez, M.; Ali, N.; Elrayies, G.; Eid, Y. Impact Assessment of Reused Straw Bales as Alternative Building Materials. Port-Said Eng. Res. J. 2015, 19, 56–64. [Google Scholar] [CrossRef]
- Nozdrovicky, L.; Macak, M.; Maga, J. Evaluation of the technical and economical effects of the using of machinery system for processing of straw for energy purposes. Agric. Eng. Int. CIGR J. 2015, 2015, 200–207. [Google Scholar]
- International Energy Agency. Global Status Report for Buildings and Construction 2019. IEA: Paris, France. Available online: https://www.iea.org/reports/global-status-report-for-buildings-and-construction-2019 (accessed on 28 May 2021).
- STN 73 0540-3:2012 Thermal Protection of Buildings. Thermal Performance of Buildings and Components. In Part 3: Properties of Environments and Building Products; Slovak Technical Standards: Bratislava, Slovakia, 2012.
- Ecoinvent v3.4. 2017. Available online: https://www.ecoinvent.org/database/older-versions/ecoinvent-34/ecoinvent-34.html (accessed on 5 September 2020).
- Haas, G.; Wetterich, F.; Köpke, U. Comparing intensive, extensified and organic grassland farming in southern Germany by process life cycle assessment. Agric. Ecosyst. Environ. 2001, 83, 43–53. [Google Scholar] [CrossRef]
- Petrovic, B.; Myhren, J.A.; Zhang, X.; Wallhagen, M.; Eriksson, O. Life cycle assessment of a wooden single-family house in Sweden. Appl. Energy 2019, 251, 113253. [Google Scholar] [CrossRef]
- Mitterpach, J.; Ileckova, R.; Stefko, J. Life cycle impact assessment of construction materials of a wood-based building in an environmental context. Acta Fac. Xylologiae 2018, 60, 147–157. [Google Scholar] [CrossRef]
- Moschetti, R.; Brattebø, H.; Sparrevik, M. Exploring the pathway from zero-energy to zero-emission building solutions: A case study of a Norwegian office building. Energy Build. 2019, 188–189, 84–97. [Google Scholar] [CrossRef]
- Takano, A.; Winter, S.; Hughes, M.; Linkosalmi, L. Comparison of life cycle assessment databases: A case study on building assessment. Build. Environ. 2014, 79, 20–30. [Google Scholar] [CrossRef]
- Finnveden, G.; Hauschild, M.Z.; Ekvall, T.; Guinée, J.; Heijungs, R.; Hellweg, S.; Koehler, A.; Pennington, D.; Suh, S. Recent developments in Life Cycle Assessment. J. Environ. Manag. 2009, 91, 1–21. [Google Scholar] [CrossRef] [PubMed]
Publisher’s Note: MDPI stays neutral with regard to jurisdictional claims in published maps and institutional affiliations. |
© 2021 by the authors. Licensee MDPI, Basel, Switzerland. This article is an open access article distributed under the terms and conditions of the Creative Commons Attribution (CC BY) license (https://creativecommons.org/licenses/by/4.0/).





