Next Article in Journal
Development and Comparative Analysis of Vortex Generators for Boundary Layer and Separation Control on the Suction Side of Wind Turbine Blades
Previous Article in Journal
Optimal Sizing of Local Photovoltaic Systems in Cement Plants Under Multi-Timescale Demand Response
Previous Article in Special Issue
Multi-Directional Vibration Energy Harvesting Based on a Compliant Parallel Mechanism
 
 
Due to scheduled maintenance work on our servers, there may be short service disruptions on this website between 11:00 and 12:00 CEST on March 28th.
Font Type:
Arial Georgia Verdana
Font Size:
Aa Aa Aa
Line Spacing:
Column Width:
Background:
Article

Vortex-Induced Vibration Energy Harvesting for Road Vehicle Suspensions: Modeling, Prototyping, and Experimental Validation

1
School of Mechanical and Automotive Engineering, Qingdao University of Technology, Qingdao 266520, China
2
College of Energy and Power Engineering, Nanjing University of Aeronautics and Astronautics, Nanjing 211106, China
*
Authors to whom correspondence should be addressed.
Energies 2026, 19(7), 1636; https://doi.org/10.3390/en19071636
Submission received: 22 February 2026 / Revised: 16 March 2026 / Accepted: 19 March 2026 / Published: 26 March 2026
(This article belongs to the Special Issue Innovations and Applications in Piezoelectric Energy Harvesting)

Abstract

To address the demand for a micro-power supply for vehicle suspension control, a novel harvester is proposed to recover vortex-induced vibration energy in the wake of a shock absorber. A suspension dynamic model was established to simulate the spring compression process and identify the wind-shielding condition. The spring-shock absorber assembly was then simplified as a stepped cylinder with two cross-sections. Flow-field analysis showed that the size, shape, and rising angle of the wake vortices were affected by the bluff-body geometry, Reynolds number, and boundary conditions. The downwash motion was found to directly influence vortex development, and two new vortex-connection modes were identified. These results provided guidance for harvester optimization. A two-way fluid–structure interaction model was developed to describe the electromechanical conversion behavior of the proposed harvester under flow excitation. Numerical results showed that the output voltage increased with vehicle speed. An average peak voltage of 1.82 V was obtained when the piezoelectric patches were installed two larger-cylinder diameters downstream. The optimal patch length was 120 mm, and further increasing the length did not significantly improve the harvesting performance. Finally, a full-scale prototype was tested, and the measured voltage agreed well with the simulation results. The proposed harvester can therefore serve as a potential micro-power source for low-power suspension electronics.

1. Introduction

Electronic control systems are widely used in modern vehicle chassis systems. When sensors, control units, and actuators are powered by a conventional battery, long wiring harnesses may increase electromagnetic interference and reduce system reliability, especially in electric vehicles (EVs) [1,2,3]. Micro-batteries [4] and self-powered regenerative structures [5,6,7] therefore provide a promising solution for near-field power supply. Active suspension systems, as typical chassis control subsystems, have also been designed with regenerative structures [8,9,10]. However, in most existing studies, the recovered energy is obtained from vertical vibration [11,12,13,14]. Although the harvested power can be considerable, the energy-regeneration process is usually coupled with suspension control [15], which may create trade-offs between control performance and energy harvesting. Wang [16] reported typical wake vortices behind a passenger vehicle suspension in numerical simulations. These vortices are induced by longitudinal airflow and generate lateral pressure fluctuations, suggesting a potential energy source that is physically distinct from the vertical motion of the suspension. Nevertheless, studies on harvesting this flow-induced vibration energy around vehicle suspensions remain limited.
Vortex-induced vibration energy has been widely utilized in sensor networks [17,18], aircraft [19], marine systems [20], rotating machinery [21,22,23], wind energy applications [24,25,26], and even vehicle body shape design [27]. Li et al. developed a vane-based harvester for vortex energy recovery [28], and their simulations showed that the driving force was mainly governed by vortex dissipation along the vane surface and the wake pressure gradient. However, the vane also introduced an additional streamwise force, which may increase vehicle drag. Du et al. used a fan placed upstream of a bluff body to generate piezoelectric power in a wind-tunnel-like setup [29]. While this design may be suitable for a micro wind turbine, it would also create extra aerodynamic resistance when mounted on a moving vehicle. Therefore, the harvesting structure in this study was designed to extract energy primarily from lateral flow-induced excitation, thereby minimizing interference with the main airflow direction.
Another issue is how to simplify the vehicle suspension into an appropriate bluff-body model. In most previous simulations, the bluff body has been represented as a single cylinder [30], two connected cylinders [31], or nested cylinders [32]. However, the real suspension assembly is much more complex than a simple cylinder. A bluff body with two characteristic diameters may therefore be a more realistic approximation, similar to the stepped-cylinder model reported in the literature [33,34,35,36]. Nevertheless, the spring mounted on the upper part of the suspension acts as a wind-shielding component. It is thus necessary to determine when and how wake vortices are generated and develop under this shielding effect. It must also be verified whether the lower spring seat can be reasonably regarded as the boundary between the two diameters.
Unlike most existing vortex-induced energy harvesters, which are mainly developed for standard cylinders, generic bluff bodies, vane-type devices, or fan-assisted configurations, the present study focuses on the wake of a road-vehicle suspension shock absorber under realistic geometric and operating constraints. The novelty of this work lies in three aspects. First, the proposed harvester targets a specific near-field power-supply problem for suspension electronics, rather than a general flow-excited harvesting device. Second, it exploits lateral wake-induced excitation behind the shock absorber, which is physically different from the vertical vibration used in conventional regenerative suspensions and may avoid direct coupling with the main suspension control task. Third, an integrated framework is established, including quarter-car compression analysis, detailed suspension wake simulation, stepped-cylinder simplification, local wake characterization, fluid–structure-piezoelectric modeling, and prototype validation. These features distinguish the present study from previous vortex-energy-harvesting works.
Therefore, we propose a new method to recycle the vibration energy after the shock absorber. Suspension kinematic simulations are performed to calculate the spring’s compression. A simplified bluff body is substituted for the spring and shock absorber. According to air flow simulation results, a piezoelectric harvester was designed with the bidirectional fluid–structure coupling model. A prototype was built, and test results validate the energy recovery.
Therefore, this study proposes a novel method for harvesting vibration energy from the wake of a shock absorber. Suspension kinematic simulations were conducted to determine the spring compression, and the spring-shock absorber assembly was simplified as a bluff-body model. Based on the airflow analysis, a piezoelectric harvester was designed and modeled using a two-way fluid–structure interaction framework. A prototype was then fabricated, and experimental results confirmed the feasibility of the proposed energy-harvesting method.
The main contributions of this study are as follows.
(1)
Unlike conventional regenerative suspension systems that harvest energy from vertical motion, the proposed method recovers vortex-induced vibration energy in the lateral direction.
(2)
It is demonstrated that the wind-shielding effect of the suspension spring can be neglected once the spring is compressed beyond a certain height, under which a stable Kármán vortex street develops downstream.
(3)
A piezoelectric harvester is designed as a potential solution for near-field power supply to suspension control units or sensors. Under typical urban driving conditions, the harvested voltage can reach 0.8 V.
The remainder of this paper is organized as follows. First, a suspension model is established to determine the spring compression range. Second, the flow characteristics of the real suspension geometry are simulated to identify the wind-shielding limit caused by the spring. Based on this limit, the suspension is simplified as a stepped cylinder, and the generation and development of the Kármán vortex street are analyzed. Third, a PVDF-based prototype harvester is designed to recover the vortex-induced vibration energy, and experiments are conducted to validate the electrical output.

2. Suspension Kinematics and Spring-Compression Boundary for Harvester Design

A kinematic model was established, and simulations were conducted to investigate the motion characteristics of the shock absorber. It was assumed that the vehicle and road-surface excitations were both bilaterally symmetric, and that the vibrations of the front and rear axles did not interfere with each other. Under these assumptions, the vehicle could be simplified as a quarter-car model with two degrees of freedom, as shown in Figure 1. In this model, the unsprung mass m represents the wheel, while the sprung mass m′ represents the vehicle body. The two masses are connected by a spring and a shock absorber. The spring stiffness is denoted by k 2 , and the damping coefficient of the shock absorber is denoted by c . The two degrees of freedom are the wheel displacement z 1 and the body displacement z 2 . The road-surface displacement input q , is treated as a random excitation and can be represented by white noise w t , as shown in Equation (1).
q = 2 π n 0 G q n 0 u w ( t ) d t
where n 0 denotes the spatial frequency of the road excitation, and G q n 0 denotes the corresponding power spectral density, u is the vehicle speed.
Applying Newton’s second law to the sprung and unsprung masses yields the governing equations of the quarter-car model, as given below:
m z ¨ 2 + k 2 z 2 z 1 + c z ˙ 2 z ˙ 1 = 0 m z ¨ 1 + k 1 z 1 q k s z 2 z 1 c z ˙ 2 z ˙ 1 = 0
The above equations can be expressed in matrix form as follows:
k 2 k 2 k 2 k 1 + k 2 z 2 z 1 + c c c c z ˙ 2 z ˙ 1 + m 0 0 m z ¨ 2 z ¨ 1 + 0 k 1 q = 0
With the auxiliary definitions that the derivative of z 2 is z ˙ 2 and the derivative of z 1 is z ˙ 1 , Equation (2) can be further transformed. A state vector X = z ˙ 2 z 2 z ˙ 1 z 1 Τ , composed of the displacements and velocities of the sprung and unsprung masses, is then introduced. Thus, Equation (3) can be expressed in state-space form as follows:
X ˙ = A X + B q
where A = c m k 2 m c m k 2 m 1 0 0 0 c m k 2 m c m k 1 + k 2 m 0 0 1 0 ; B = 0 0 k 1 m 0 .
Similarly, an output vector Y = z ¨ 2 z 2 z 1 k z 1 q Τ can be introduced to represent the three key performance indices of the suspension system. The body acceleration (BA) of the sprung mass z ¨ 2 is used to evaluate ride comfort. The suspension working space (SWS) z 2 z 1 reflects the allowable relative displacement of the suspension and affects the operational safety of the shock absorber. The dynamic tire load (DTL) k z 1 q characterizes the tire-road contact condition and is therefore closely associated with driving safety. These output variables are expressed in Equation (5). In the corresponding state-space equations, the system matrices A , B , C and D contain only the mass, stiffness, and damping parameters.
Y ˙ = C Y + D q
where C = c m k 2 m c m k 2 m 0 1 0 1 0 0 0 k 1 ; D = 0 0 k 1 .
It should be clarified that the quarter-car model is not introduced here as an independent suspension-dynamics study. Its purpose is to determine the realistic spring compression range under representative road excitations, because the spring height directly affects the wind-shielding condition, the exposed wake region behind the shock absorber, and thus the available flow-induced excitation for the harvester. The predicted compression range is subsequently used to define the geometric states in the CFD analysis, to identify the conditions under which stable wake vortices can develop, and finally to support the simplification of the stepped-cylinder model and the design of the piezoelectric harvester.
A mid-size passenger car was selected for the kinematic and dynamic simulations, and the corresponding parameters are listed in Table 1. Various road conditions and vehicle speeds were considered in the dynamic analysis. In this study, only one representative case is presented, in which the vehicle travels on a Class B road at 40 km/h. Results for other operating conditions are available in our previous study on suspension control.
While the step-cylinder simplification captures the dominant wake characteristics (vortex shedding frequency, Strouhal number, drag coefficient), it inherently neglects fine geometric details such as the dust cover corrugations, mounting brackets, and spring coil gaps. A validation study comparing the simplified model with a high-fidelity model at 20 m/s revealed relative errors of 1.2% in shedding frequency, 5.4% in pressure fluctuation at the PVDF mounting location, and 4.5% in predicted voltage output. These errors are considered acceptable for the conceptual design stage and are smaller than the overall discrepancies between simulation and experiment. However, for detailed design optimization, a higher-fidelity model or experimental calibration may be necessary to refine the predictions.
Figure 2 presents the time-domain responses of the three performance indices in the output vector Y, while the frequency-domain results are summarized in Table 2. The simulation results indicate that the dynamic variation in the suspension working space (SWS) remains within ±0.02 m. Given a sprung mass of 400 kg and a spring stiffness of 20,000 N/m, the corresponding static spring compression is 0.02 m. Therefore, the total compression of the spring can be assumed to lie within the range of 0 to 0.04 m.
The above compression range is not only a suspension-dynamics result, but also a boundary condition for the subsequent wake analysis. Since the spring acts as a wind-shielding component, its compressed height determines whether the incoming flow can pass through the spring-shock absorber assembly and form a stable wake behind the shock absorber. Therefore, the total compression range of 0–0.04 m is used in the following CFD section to define the admissible spring-height states of the real suspension model. Based on these states, the critical shielding condition for vortex formation is identified, which further provides the physical basis for the stepped-cylinder simplification and the downstream arrangement of the piezoelectric films.

3. Fluid Simulation Model

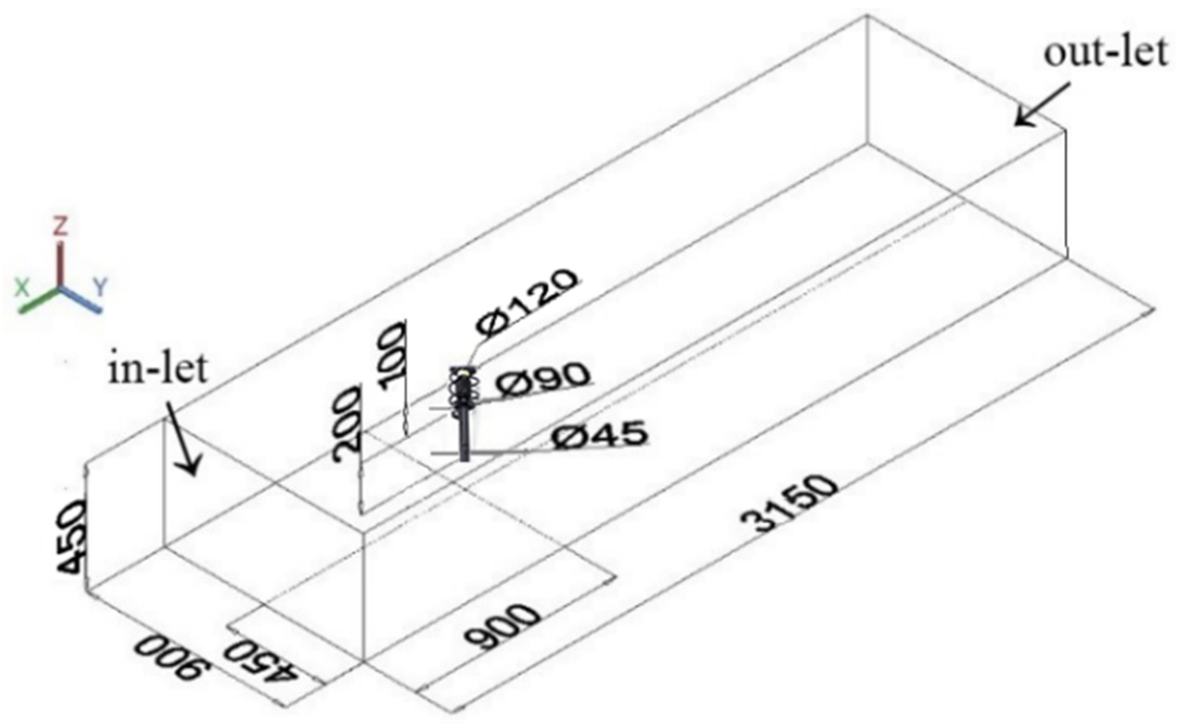
A three-dimensional suspension model was established according to the actual suspension structure of the vehicle considered in this study. The main parameters are summarized in Table 3. In addition to the geometric dimensions of the shock absorber and spring assembly, the size of the computational fluid domain is also included. The flow field was then simulated using the transition SST model.
The computational domain dimensions are listed in Table 3, and the coordinate system was defined such that the streamwise, lateral, and vertical directions correspond to the vehicle longitudinal, transverse, and vertical directions, respectively. As shown in Figure 3, a velocity-inlet boundary condition was imposed at the upstream boundary, with inlet velocities of 10, 20, and 30 m/s to represent different vehicle operating conditions. A pressure-outlet boundary condition was specified at the downstream boundary. The surfaces of the shock absorber, spring, and simplified stepped cylinder were treated as no-slip walls. The remaining domain boundaries were treated as stationary walls. The inlet turbulence intensity was set to 5%, and the air properties were specified using the density and viscosity values given below. All simulations were performed in transient form in order to capture the vortex-shedding process.
Most passenger vehicles operate at speeds below 120 km/h. Assuming still air, the incoming flow velocity has the same magnitude as the vehicle speed but the opposite direction. Accordingly, the Reynolds number can be estimated to range from above 300 to below 3 × 105.
According to Chen [37], the flow regime changes from laminar to turbulent within this Reynolds number range. Therefore, a four-equation transition model was employed in the present simulations. This model is composed of the γ R e θ t and k ω equations. The governing equation for the intermittency factor γ is expressed as follows [38].
ρ k t + ρ U j k x j = P γ E γ + x j μ + μ t σ f γ x j
P γ = c a 1 F l e n g t h ρ S γ F o n s e t 1 2 1 c e 1 γ
E γ = c a 2 ρ Ω γ F t u r b c e 2 γ 1
In Equation (6), F l e n g t h denotes the control length of the transition region, Ω is the vortex intensity, and S is the magnitude of the strain-rate tensor. Term F o n s e t is a function of two Reynolds numbers, namely R e v associated with the vortices and R e θ c corresponding to the critical transition momentum thickness. The latter Reynolds number can be determined from the empirical correlation function R e θ c = f R ˜ e θ c [11]. Term F t u r b is a function of the viscosity-ratio parameter. The definitions and descriptions of the remaining parameters may be found in the work of Aslesha Bodavula [19].
A fixed time step was used in the transient simulations. For each operating condition, the flow was first advanced until the initial transient decayed, after which the periodic wake response was recorded for post-processing. Convergence within each time step was assessed by monitoring the residuals of the governing equations and the stability of the lift and drag coefficients. The vortex-shedding frequency was identified from the time history and spectrum of the lift coefficient.
Numerical simulations of the flow field were then carried out. The finite volume method was employed for spatial discretization, and the SIMPLE algorithm was used for pressure-velocity coupling. The convection and transport terms were discretized using a second-order upwind scheme, whereas the pressure term was discretized using a second-order central difference scheme. Temporal discretization was performed using the second-order implicit Crank-Nicolson scheme. The inlet turbulence intensity was set to 5%.
In the simulations, three flow velocities, 10, 20, and 30 m/s, were selected to represent low, medium, and high vehicle speeds, respectively. Since the spring in the suspension assembly may produce a wind-shielding effect, the spring was compressed to determine the critical height for vortex formation. Figure 4 presents the flow features at five spring heights, H0–H4, listed in Table 3, at a flow velocity of 20 m/s. All top-view images were taken from the vertical mid-plane of the spring. Comparison of the five velocity contours shows that a typical Kármán vortex street appears when the spring height is between 140 and 180 mm. The free spring length is about 185 mm, and the compression range obtained from the previous dynamic simulation is 0–0.04 m (40 mm), which approximately corresponds to the spring heights shown in Figure 4c–e. At 30 m/s, the spring-height range for vortex formation extends to 120 mm, whereas at 10 m/s, vortices appear only when the spring height is 180 mm.
Therefore, it may be concluded that wake vortices can develop behind the shock absorber under common driving conditions, such as when a vehicle travels on an urban road at a moderate speed. However, the formation of a stable Kármán vortex street becomes less likely when the road is rough enough to induce greater spring compression or when the vehicle is moving at a relatively low speed.

3.1. Simplified Step Cylinder Model

Direct simulation of the flow field around the detailed suspension structure is computationally time-consuming. Therefore, the suspension geometry was simplified into a stepped-cylinder model with two characteristic diameters. As shown in Figure 5, an upper cylinder with variable height was used to represent the spring and dust cover, forming a stepped cylinder similar to that described in Ref. [31].
The Reynolds numbers corresponding to the three flow velocities are presented below. In the calculations, the air density ρ was taken as 1.0 kg/m3, the flow velocity v was set to 10, 20, and 30 m/s, and the upper-cylinder diameter d was 90 mm. The kinematic viscosity of air was assumed to be its standard value at room temperature.
R e D 1 = ρ v d / μ = 5 × 10 4 R e D 2 = 1 × 10 5 R e D 3 = 1.5 × 10 5
The lift and drag coefficients were subsequently determined from Equations (8) and (9), respectively.
C l = F L 1 2 ρ u 2 D L
C d = F D 1 2 ρ u 2 D L
The projected area normal to the flow direction is defined by the product of the diameter D and length L . The time-domain and frequency-domain results at the intermediate flow velocity are presented in Figure 6. The first dominant frequency is identified as 55.5 Hz.
Direct application of the Strouhal relation is not straightforward because different vortex-shedding frequencies may occur in the wake of the two cylinders with different diameters. Therefore, an equivalent diameter D e was introduced based on the results shown in Figure 6. Using the empirical relation for vortex-shedding frequency in Equation (10) [37], the equivalent diameter of the stepped-cylinder model was determined to be 0.071 m. To validate this approximation, both the upper and lower cylinders were replaced by an equivalent diameter of 0.07 m, and the flow field was simulated again. The resulting shedding frequency was 56.5 Hz, with a relative error of 1.77% compared with the original value of 55.5 Hz.
f s = 0.198 U D e 1 19.7 R e
S t = f s D e U
Using the Strouhal relation in Equation (11), the Strouhal number was calculated to be 0.198. By replacing D with the equivalent diameter D e in Equation (9), the drag coefficient was determined to be 1.21 at R e = 1.5 × 10 5 . The calculated Strouhal number and drag coefficient are compared with values reported in previous studies, as summarized in Table 4. The corresponding results at low and high flow velocities are also included in the table. Among the selected references, Fang [39] and Wang [40] provide experimental data. The comparison indicates that only two cases exhibit errors of about 10%, while the remaining results agree closely with the literature. These results support the validity of the simplified model and the equivalent-diameter approximation.
It should be noted that the validation of the simplified model is not limited to global wake descriptors such as the Strouhal number and mean drag coefficient. In the following sections, the local wake structure, velocity distribution, and pressure fluctuation at the PVDF-relevant positions are further compared with those of the detailed suspension model. This additional comparison helps confirm that the simplified geometry preserves not only the global shedding behavior but also the main local flow features relevant to energy harvesting.

3.2. Vortex Pattern Analysis

To gain further insight into the wake characteristics behind the shock absorber, extensive numerical simulations were performed using the simplified stepped-cylinder model. One representative result is presented in Figure 7. Following the classification proposed by Dunn and Tavoularis [43], the flow field can be divided into three regions. Both the vector plots and contour maps show that vortices are more likely to develop at the junction of the wake streams and near the boundary between the L-cell and S-cell regions. Downstream of the smaller cylinder, long and slender vortices are generated. These vortices exhibit relatively high shedding frequencies, but their convection velocities are low, and their directions may change rapidly. Their main advantage is that they reach a stable state over a relatively short development distance. By contrast, strip-shaped vortices are formed behind the upper larger cylinder. These vortices are larger in scale and remain more strongly attached to the cylinder surface, which results in a lower shedding frequency.
In the N-cell region, downwash motions can be observed around Regions I and II, which helps explain the generation and evolution of the edge vortices. Compared with the vortices in the L-cell and S-cell regions, those in the N-cell region are more irregular because of the more complex flow coupling. The different vortex patterns in these three regions make it difficult to recover the wake energy effectively using a single harvesting structure. Therefore, the harvester should be designed as a multi-part configuration, consisting of either three sections or at least two sections.
Additional simulations were performed at flow velocities of 10 m/s and 30 m/s. At the higher flow velocity, the vortices showed a similar zonal distribution but more distinct flow features. By contrast, at 10 m/s, the vortical structures were barely detectable.
Based on the Q criterion, vortex iso-surfaces were visualized for different Reynolds numbers calculated using Equation (7). The corresponding results are shown in Figure 8. For comparison, the reference result reported by Morton and Yarusevych [35] is presented in Figure 8d. In their study, the lower Reynolds-number condition exhibited a clear separation among the L-cell, N-cell, and S-cell regions. Moreover, the presence of a taller cylinder with a larger diameter may also have contributed to the development of more distinct vortex structures.
In the present study, the actual suspension geometry restricts the model to a configuration with a shorter large cylinder and a longer small cylinder. The vehicle operating speed further constrains the Reynolds number range. Nevertheless, clear vortex columns are still observed in the simplified model derived from the practical suspension structure. In addition to the conventional half-ring connections, a new double-half-ring connection pattern is identified, for example, between vortices S1 and S3 and between S3 and S5 in Figure 8a, as well as between S2 and S4 and between S4 and S6 in Figure 8c. In Figure 8b, another half-ring connection pattern linking vortices on opposite sides is also observed, such as the connections between S2 and S3 and between S4 and S5. Since the rotational directions of the vortices may affect the sign and magnitude of the tangential force acting on the piezoelectric film surface, these two newly identified connection patterns should be considered in the design of the vortex energy harvester.
Overall, the L-cell vortices in Figure 8a–c show stronger attachment to the cylinder surface and a flatter shape than those reported in Ref. [34]. In the present case, the S-cell and N-cell regions cannot be clearly separated; they are therefore treated as a combined S&N-cell region. The vortices in this combined region are relatively flat, which is advantageous for harvester design and structural response. Their greater streamwise width may also prolong the interaction time and thus enhance energy-harvesting performance.

3.3. Velocity and Pressure Analysis

Figure 9 presents the two-dimensional velocity contours behind the two cylinders. Consistent with the Reynolds numbers considered above, three representative flow velocities were adopted as simulation inputs. The lower-cylinder wake was examined at a height of 0.1 m, while the upper-cylinder wake was examined at a height of 0.25 m. Among the six contour plots, the vortical structures behind the lower cylinder are more distinct than those behind the upper cylinder, indicating stronger excitation efficiency and better response stability for the lower piezoelectric film; this will be further verified in Section 5.2. However, the vortices also exhibit lateral spreading on both sides, and this effect becomes more pronounced with increasing flow velocity. This feature makes it difficult to install the piezoelectric film along the streamwise direction.
Comparison with the contour plot in Figure 4e shows that the wake vortices obtained from the simplified model are generally consistent with those predicted by the original detailed model. Therefore, the stepped-cylinder model was used as a substitute for the suspension assembly in the subsequent simulations and prototype experiments.
It should also be noted that piezoelectric films laterally arranged along the centerline and those mounted on the lateral sides operate in different modes. The former is more likely to provide stable harvesting from the negative-pressure region, whereas the latter is easier to integrate with the wheel cover and may experience stronger flow-induced vibration when the films are appropriately arranged in a V-shaped configuration [44].
Figure 10 shows the corresponding pressure-disturbance contours. These pressure fluctuations provide the physical basis for energy recovery using the piezoelectric harvester. It should be emphasized that the pressure disturbances act primarily in the lateral direction, suggesting that the proposed harvesting mechanism may theoretically introduce little or no penalty to the vehicle’s longitudinal motion. For brevity, only the results at the intermediate inlet velocity are presented in Figure 10, since the contours at the other velocities show trends similar to those observed in the previously discussed velocity fields.
The vortex characteristics under different incoming-flow heights were further investigated. Such variations may arise from different wheel-cover geometries in vehicle-body design. The corresponding results are presented in Figure 11. At a relatively small incoming-flow height, the wake exhibits a typical Kármán vortex street, as shown in Figure 11a. When the flow height reaches the junction of the two cylinders, as shown in Figure 11b, an upward deflection begins to develop behind the upper cylinder. With a further increase of only 0.8 mm in the present case, the flow rises in a convoluted manner and impinges on the rear side of the upper cylinder, as shown in Figure 11c. Physically, the minimum height h min marks the initial position at which the vortex line starts to escape upward. The height difference Δ h is also an important parameter affecting vortex development in the N-cell region. However, this type of critical transition should be avoided in the harvester design. When the flow height reaches half the height of the upper cylinder, as shown in Figure 11d, the wake displays features similar to those in Figure 7. Additional simulations were carried out at different flow velocities, two of which are presented in Figure 11e,f. The results at a flow height of 0.21 m indicate that the vortical structures are not sufficiently strong for energy harvesting when the inlet velocity is below 15 m/s.

4. Harvester Design

Based on the velocity and pressure distributions, a prototype was fabricated and tested. Two piezoelectric films were arranged as shown in Figure 12. The diameter of the upper cylinder was 90 mm, and that of the lower cylinder was 45 mm. The front end of each piezoelectric patch was fixed, while the rear end was free to bend and vibrate, so that the films could be modeled as cantilever beams. The films were mounted at heights of 250 mm for the upper cylinder and 100 mm for the lower cylinder. The lateral offset was 144 mm, calculated from a spreading angle of 15°. In Figure 12b, a downstream distance of 540 mm (six times D ) from the stepped cylinder was selected as an example mounting position, while the optimization of the mounting location is discussed in Section 5.3.

4.1. Voltage Calculation

The energy-harvesting element was made of polyvinylidene fluoride (PVDF) film, and its main parameters are listed in Table 3. Among the various vibration models available for cantilever beams or films, the d 31 mode was adopted in this study. In this mode, a stress T applied along the x -axis generates an electric field in the z -axis direction, as shown in Figure 13.
The coupled constitutive equations describing the piezoelectric effect and the inverse piezoelectric effect are expressed as follows:
S 1 = s 11 E T 1 + d 31 E 3 D 3 = d 31 T 1 + ε 33 T E 3
where S denotes the strain, with a unit of m , T denotes the stress, with a unit of N/m2, D is the electric displacement, with a unit of C/m2, and E is the electric field, with a unit of V/m, s E represents the elastic compliance coefficient under a constant electric field (or zero electric field), and ε Τ is the dielectric constant. D and d t are the piezoelectric strain coefficient matrices, with a unit of C/N. The subscripts 1, 2, and 3 represent the x -, y -, and z -axes shown in Figure 13.
It is assumed that (1) the system coordinate system coincides with the transverse anisotropic coordinate system of the piezoelectric material, and (2) the indices denote the polarization directions. Accordingly, the above constitutive equations can be expressed in matrix form.
S 1 S 2 S 3 S 4 S 5 S 6 = S 11 E S 12 E S 13 E 0 0 0 S 12 E S 11 E S 13 E 0 0 0 S 13 E S 13 E S 33 E 0 0 0 0 0 0 S 44 E 0 0 0 0 0 0 S 44 E 0 0 0 0 0 0 2 ( S 11 E S 12 E ) T 1 T 2 T 3 T 4 T 5 T 6 + 0 0 d 31 0 0 d 31 0 0 d 33 0 d 15 0 d 15 0 0 0 0 0 E 1 E 2 E 3
D 1 D 2 D 3 = 0 0 0 0 d 15 0 0 0 0 d 15 0 0 d 31 d 31 d 33 0 0 0 T 1 T 2 T 3 T 4 T 5 T 6 + ε 11 T 0 0 0 ε 11 T 0 0 0 ε 33 T E 1 E 2 E 3
The designed vortex energy harvester involves two coupled processes: fluid–structure interaction between the wake vortices and the piezoelectric films, and electromechanical coupling between the films and the electrical storage unit. The corresponding governing equations are given as follows:
f + 1 ρ p + v 2 V = u t + ( V ) V M 0 0 0 u ˙ φ ˙ + C 0 0 0 u ˙ φ ˙ + K u K u v K v u K v u φ = F ( t ) Q
In the fluid–structure interaction equation, V and p represent the flow velocity and pressure, respectively. In the electromechanical equation, M , C and K denote the mass, damping, and stiffness matrices. The variables u and u ˙ correspond to the nodal displacement and velocity of the piezoelectric film, respectively. The subscripts of K indicate the u - and v -directions. φ ˙ denotes the bending angular velocity of the film. F t is the instantaneous load applied to the beam, and Q is the electric charge generated by the piezoelectric film.
Equation (15) involves four input variables, V , p , u , and φ . Solving this equation yields the output quantities F and Q . To achieve higher accuracy in the coupled analysis, a finite element approach was further introduced prior to the coupling calculation. The fluid-domain model was established according to the configuration shown in Figure 11. The piezoelectric beam was modeled using a PVDF film of 73 mm × 2 mm × 16 mm, and the corresponding material properties are listed in Table 5.
Although the simplified step cylinder model has been validated by global parameters (St, Cd) and macroscopic voltage outputs, the authors acknowledge that a more rigorous verification of local wake characteristics (e.g., vortex strength and pressure fluctuation) at the exact PVDF mounting location is necessary. Future work will employ Particle Image Velocimetry (PIV) to directly measure the local flow field and surface pressure transducers to quantify the dynamic load on the piezoelectric films, providing a more direct validation of the fluid–structure interaction at the energy harvester’s position.
To address the concern that global parameters alone cannot guarantee the fidelity of local flow characteristics critical for energy harvesting, we further examined the wake topology at the specific locations where PVDF films are mounted. As illustrated in Figure 9 and Figure 11, the simplified step cylinder model reproduces the distinct vortex patterns observed behind the actual suspension assembly (Figure 4e). The vortex shedding frequency at the step junction, which directly dictates the alternating pressure on the PVDF film, was matched using an equivalent diameter method (Equation (10)), yielding a Strouhal number consistent with literature (Table 4). Furthermore, the Q-criterion contours in Figure 8 reveal detailed vortex connection modes (e.g., the double-half-ring pattern) in the near-wake region, confirming that the complex three-dimensional flow features influencing the film’s tangential force are preserved. The subsequent experimental validation of the output voltage (Section 5) serves as an integral confirmation that the localized pressure fluctuations induced by these vortices are accurately captured by the simplified model.
The output voltage presented in Section 4.2 is derived from the fully coupled fluid–structure–piezoelectric simulation. The workflow is as follows:
Fluid–Structure Interaction: The fluid solver computes the transient pressure and shear stress distribution on the PVDF surface based on the vortex-induced vibration. These loads are transferred to the structural solver via the FSI interface using a radial basis function (RBF) interpolation to ensure accurate mapping between non-conforming meshes.
Piezoelectric Constitutive Relation: The structural solver, incorporating the piezoelectric material model (Equations (12)–(14)), calculates the mechanical deformation {u} and the electrical potential {ϕ} simultaneously. The coupled finite element matrix equation (Equation (15)) is solved at each time step, where the stiffness matrix includes mechanical, piezoelectric and dielectric sub-matrices.
Voltage Extraction: The PVDF film is modeled with electrodes on its top and bottom surfaces. The output voltage V(t) is obtained as the difference in the electrical potential degree of freedom between the two electrode layers. This approach inherently accounts for the non-uniform strain distribution along the film length and its effect on the generated voltage.
Open-Circuit Condition: The simulations are performed under an open-circuit electrical boundary condition (zero charge on electrodes), which is standard for evaluating the intrinsic voltage generation capability of the harvester. The results in Figure 14 and Table 6 represent this open-circuit voltage, which is directly comparable to the experimental measurements where the film was connected to a high-impedance data acquisition system.

4.2. Simulation Results

Simulations were performed at three flow velocities: 10, 20, and 30 m/s. The output voltages of the upper and lower piezoelectric films are presented in Figure 14. A comparison of the subfigures indicates that the voltage increases with flow velocity, in agreement with the contour results shown in Figure 9. The curves in the left-hand subfigures exhibit more compact oscillatory behavior, which is consistent with the vortex characteristics shown in Figure 7 and Figure 8. The maximum voltages and mean peak values are summarized in Table 6. All voltage values were calculated based on their absolute magnitudes.

4.3. Film Structure Optimization

In addition to the vortex height and spreading angle discussed in Section 4, the downstream mounting position and size of the piezoelectric films also affect the energy-harvesting performance. The relationship between output voltage and mounting position was first investigated. Simulations were performed for films located at downstream distances of 1D, 2D, 4D, 6D, 8D, and 10D from the cylinder. The corresponding mean peak voltages at different flow velocities are shown in Figure 15.
For the upper large cylinder, the mean voltage decreases approximately linearly as the mounting position increases from 2D to 10D. For the lower small cylinder, this approximately linear relationship is observed only over the range of 4D to 10D at low flow velocity. Although relatively high mean voltages are obtained at medium and high velocities when the films are mounted at 2D downstream, the lower film generates only 0.2 V at 10 m/s (36 km/h), while the upper film generates 0.6 V. These results indicate that a mounting position of 2D is not suitable for effective energy harvesting under typical urban driving conditions. Therefore, 4D, 6D, and 8D are recommended as preferable downstream mounting positions for the piezoelectric films.
Piezoelectric films of different lengths were considered, and the corresponding simulation results are presented in Figure 16. The four film lengths were 40, 70, 120, and 170 mm. The film width was fixed at 20 mm, and the thickness was 0.2 mm.
The results indicate that the output voltage increases with film length up to 120 mm. When the piezoelectric film exceeds this length, part of the voltage output begins to decrease. For the lower cylinder, the curves at medium and high flow velocities show a particularly sharp decline. This reduction may be attributed to reverse bending of the excessively long film, which may in turn interfere with the development of the downstream vortical structures. Therefore, 120 mm is recommended as the optimal film length for the present case. Although the comparison of film length is relatively simple, it provides sufficient guidance for the current design. A more comprehensive optimization study can be conducted in future work.

5. Test

Based on the prototype shown in Figure 11, a test rig was designed and experiments were carried out to validate the output characteristics of the proposed harvester.

5.1. Test Rig Design

As shown in Figure 17, the experimental apparatus can be divided into two sections. The fluid section on the right includes a duct, a honeycomb flow straightener, and a centrifugal fan. The duct was made of organic glass, with a length of 3 m and a rectangular cross-section of 450 mm × 500 mm. A steel stepped cylinder was mounted inside the duct. To ensure a stable incoming flow, the cylinder was positioned 2.4 m downstream of the rectifier outlet. The centrifugal fan generated the required axial flow at three inlet velocities through frequency regulation. The wind speed ranged from 5 to 35 m/s, while the adjustable air-flow rate ranged from 0 to 2400 m3/h.
The piezoelectric section on the left consists of the PVDF films, a data acquisition system, a computer, and an anemometer. Two PVDF films were installed according to the simulation parameters given in Section 5.2. The data acquisition system employed a four-channel USBZJ acquisition card with a sampling rate of 30 kS/s. The anemometer was used for wind-speed calibration. It was positioned near the top of the stepped cylinder during fan adjustment and removed during the actual measurement process.
This paper used a USBZJ-4 data acquisition card in the experiment, with the following specific parameters (Table 7):
This acquisition card is designed specifically for piezoelectric sensors, and its 10 MΩ input impedance is much higher than the impedance of PVDF film at the test frequency (see analysis below), which can meet the requirements of open circuit voltage measurement. The left piezoelectric area includes films, a data acquisition system, a computer and an anemometer. Two PVDF films are fixed according to the simulation parameters in Section 5.2. The data acquisition system used a 4-channel USBZJ-type card with a 30 KS/s sampling rate. The anemometer was used for wind speed corrections. It is set near the top of the step cylinder during the fan’s adjustment and taken away during the measurement process.

5.2. Analysis of Experimental Results

Experiments were conducted under the same operating conditions as those adopted in the preceding simulations. Some of the high-speed tests were performed in the wind tunnel laboratory [45]. The output voltages recorded over a period of 50 s are presented in Figure 18. The experimental voltage ranges are slightly smaller than the corresponding simulation results shown in Figure 13. The maximum voltages are summarized in Table 8, together with the simulated values and the corresponding relative errors.
Open-circuit voltage alone is insufficient to evaluate the practical electrical output capability of the harvester. Therefore, additional load-dependent experiments should be carried out by connecting external resistive loads to the PVDF films. For each operating condition, the RMS voltage across the load is measured, and the corresponding current and output power are calculated as I r m s = V r m s / R and P = V r m s 2 / R . This analysis makes it possible to identify the optimal load range and to quantify the actual usable electrical output of the proposed harvester.
The experiments were repeated using piezoelectric patches of different lengths, and the corresponding test curves are presented in Figure 19.
Compared with the simulation results in Figure 15, the experimental data show a similar overall variation trend. Only the longest film exhibits a reversed decline. The mean peak voltages are also smaller than the simulated values, consistent with the maximum-voltage comparison discussed above. This discrepancy may mainly result from nonlinear hysteresis or time-delay effects in the actual coupled process between the wake vortices and the electrical response. These effects may also explain why the experimental results become less satisfactory when the film length is excessively large.
Because spring compression could not be implemented in the present test rig, experiments on the shock absorber-spring assembly were conducted only at the installed spring length. The corresponding maximum output voltages are summarized in Table 9. Although the voltages measured from the suspension assembly are slightly lower than those obtained from the stepped-cylinder model, the difference is not substantial. These results further support the feasibility of vortex-induced energy harvesting for the suspension system.

5.3. Resistive Load Matching

To determine the optimal electrical load for maximum power transfer, the PVDF films were connected to a variable resistor (0.1 MΩ to 100 MΩ), and the output voltage was measured at flow velocities of 10, 20, and 30 m/s. Table 10 presents the output power as a function of load resistance for both films at 20 m/s. The power exhibits a clear peak at a specific load, confirming the impedance matching condition. The upper film achieves a maximum power of 0.86 μW at 4.7 MΩ, while the lower film reaches 1.24 μW at 2.8 MΩ. The lower film consistently produces higher power, attributed to the stronger pressure fluctuations in the S-cell region. The optimal load resistance corresponds to the impedance of the PVDF capacitance at the shedding frequency, verifying the expected relationship R o p t 1 / 2 π f C p .
Table 11 summarizes the optimal load resistance and corresponding maximum output power for all tested flow velocities. As the flow velocity increases, the optimal load resistance decreases, consistent with the increase in shedding frequency and the resulting decrease in PVDF capacitive reactance. The maximum power increases with velocity, reaching 3.08 μW for the lower film at 30 m/s, corresponding to a power density of 6.42 μW/cm3. The power density is comparable to other microscale vortex-induced vibration energy harvesters reported in the literature. The superior performance of the lower film across all velocities confirms that the S-cell region provides more effective excitation for piezoelectric energy conversion.
To evaluate the practical energy storage capability, the PVDF output was rectified using a full-wave bridge rectifier (4 × 1N4148) and connected to capacitors of 10 μF, 47 μF, and 100 μF. The charging curves were recorded at 20 m/s using the lower film. Table 12 summarizes the charging performance. The capacitor voltage saturates at approximately 1.4 V, slightly below the open-circuit voltage due to the rectifier forward voltage drop and impedance mismatch. The stored energy increases linearly with capacitance, reaching 91.1 μJ for the 100 μF capacitor after 340 s. The average charging power is remarkably constant at 0.27 μW for all capacitors, indicating that the rectified output behaves as a constant power source over the charging period. This demonstrates that the harvested energy can be accumulated and used for intermittent low-power applications, such as duty-cycled wireless sensors.

6. Conclusions and Discussion

This paper proposes a new method for harvesting vibration energy associated with the suspension system. Based on analyses of spring compression and wake-vortex development, a piezoelectric harvester was designed and investigated through numerical simulations and prototype experiments. The main conclusions are as follows:
(1)
The proposed harvesting approach offers a new concept for regenerative suspension systems. Unlike most existing regenerative suspensions, which mainly recover energy from vertical vibration, the present method exploits the lateral pressure-induced energy in the wake flow. Since the harvesting force is orthogonal to both the suspension-compression direction and the vehicle-travel direction, the proposed approach is expected to have minimal influence on ride comfort and no additional aerodynamic penalty in terms of fuel economy.
(2)
The proposed harvester demonstrates potential as a micro-power source for automotive electronic control systems. Although the experimentally measured output voltage is lower than that predicted by the simulations, it still reaches approximately 0.8–2.2 V, suggesting possible applicability to suspension controllers and other low-power electronic units. The lower bound of 0.8 V is of particular interest because it is achieved at a vehicle speed of only 36 km/h, which is representative of typical urban driving conditions. Considering the large number of road vehicles in service, the proposed approach may offer potential benefits in terms of energy saving on a broader scale.
(3)
Kinematic and dynamic analyses are essential for determining the suspension compression conditions. Although most dynamic studies mainly evaluate ride comfort and safety performance, the classical suspension working space (SWS) index can also serve an additional role in the present fluid-flow analysis. In particular, it is necessary to verify that the spring does not significantly block the incoming flow under most operating conditions, thereby allowing a stable wake-vortex field to develop behind the shock absorber.
(4)
The simplified stepped-cylinder model was shown to be a reasonable approximation of the suspension geometry. Comparisons of the Strouhal number and the lift and drag coefficients (Cl and Cd) showed good agreement with values reported in the literature. For most of the comparison cases, the relative errors were within an acceptable range. In addition, the wake-flow characteristics predicted for the stepped-cylinder model were consistent with those of the real suspension assembly. Therefore, the stepped-cylinder model is a suitable choice for numerical simulation, especially in the early stage of design.
(5)
The vortex patterns and the associated velocity and pressure characteristics were systematically investigated. Two new vortex-connection modes were identified, providing further understanding of the generation and evolution of the wake vortices. The rotational directions of these vortices may have different effects on the response of the thin piezoelectric films. Future work will focus on clarifying the relationship between the tangential aerodynamic force and the bending behavior of the films.
Future work could employ multi-fidelity modeling approaches, such as using simplified models for parametric exploration and design optimization or validating critical designs with high-fidelity simulations or wind tunnel experiments. Additionally, additive manufacturing techniques could be used to fabricate physical models with representative geometric details for direct experimental validation of the simplification errors.

Author Contributions

Methodology, F.W., H.S., X.Z. and B.L.; Software, J.L., H.S., M.L., X.Z. and B.L.; Validation, F.W., M.L., H.Y. and X.Z.; Formal analysis, J.L., H.S., H.Y. and B.L.; Resources, B.L.; Data curation, H.Y. and X.Z.; Writing—original draft, F.W. and J.L.; Writing—review and editing, J.L.; Visualization, F.W.; Supervision, F.W., M.L. and H.Y.; Project administration, F.W. and H.S.; Funding acquisition, J.L. All authors have read and agreed to the published version of the manuscript.

Funding

This research is supported by the National Natural Science Foundation of China (No. 51575288) and The State Key Laboratory of Automotive Simulation and Control Open Foundation (No. 20210226).

Data Availability Statement

The data presented in this study are available on request from the corresponding author due to privacy.

Conflicts of Interest

The authors declare no conflicts of interest.

References

  1. Liu, C.; Chau, K.T.; Lee, C.H.T.; Song, Z. A Critical Review of Advanced Electric Machines and Control Strategies for Electric Vehicles. Proc. IEEE 2021, 109, 1004–1028. [Google Scholar] [CrossRef]
  2. Zhao, J.; Wong, P.K.; Ma, X.; Xie, Z. Chassis integrated control for active suspension, active front steering and direct yaw moment systems using hierarchical strategy. Veh. Syst. Dyn. 2017, 55, 72–103. [Google Scholar] [CrossRef]
  3. Jamadar, N.M.; Jadhav, H.T. A review on braking control and optimization techniques for electric vehicle. Proc. Inst. Mech. Eng. Part D J. Automob. Eng. 2021, 235, 2371–2382. [Google Scholar] [CrossRef]
  4. Toor, A.; Wen, A.; Maksimovic, F.; Gaikwad, A.M.; Pister, K.S.J.; Arias, C. Stencil-printed Lithium-ion micro batteries for IoT applications. Nano Energy 2021, 82, 105666. [Google Scholar] [CrossRef]
  5. Osamah, S.; Ibrahim, D. Development of a novel hybrid regenerative-electrode ammonia fuel cell and battery system. Energy Convers. Manag. 2019, 181, 476–484. [Google Scholar] [CrossRef]
  6. Peng, H.; Wang, J.; Shen, W.; Shi, D.; Huang, Y. Controllable regenerative braking process for hybrid battery-ultracapacitor electric drive systems. IET Power Electron. 2018, 11, 2507–2514. [Google Scholar] [CrossRef]
  7. Shu, X.; Yang, W.; Guo, Y.; Wei, K.; Qin, B.; Zhu, G. A reliability study of electric vehicle battery from the perspective of power supply system. J. Power Sources 2020, 451, 227805. [Google Scholar] [CrossRef]
  8. Abdelkareem, M.A.; Xu, L.; Ali, M.K.A.; Elagouz, A.; Mi, J.; Guo, S.; Liu, Y.; Zuo, L. Vibration energy harvesting in automotive suspension system: A detailed review. Appl. Energy 2018, 229, 672–699. [Google Scholar] [CrossRef]
  9. Long, G.; Ding, F.; Zhang, N.; Zhang, J.; Qin, A. Regenerative active suspension system with residual energy for in-wheel motor driven electric vehicle. Appl. Energy 2018, 260, 114180. [Google Scholar] [CrossRef]
  10. Liu, J.; Liu, J.; Zhang, X.; Liu, B. Transmission and energy-harvesting study for a novel active suspension with simplified 2-DOF multi-link mechanism. Mech. Mach. Theory 2021, 160, 104286. [Google Scholar] [CrossRef]
  11. Shi, D.; Chen, L.; Wang, R.; Jiang, H.; Shen, Y. Design and experiment study of a semi-active energy-regenerative suspension system. Smart Mater. Struct. 2015, 24, 015001. [Google Scholar] [CrossRef]
  12. Jerrelind, J.; Allen, P.; Gruber, P.; Berg, M.; Drugge, L. Contributions of vehicle dynamics to the energy efficient operation of road and rail vehicles. Veh. Syst. Dyn. 2021, 59, 1114–1147. [Google Scholar] [CrossRef]
  13. Kopylov, S.; Chen, Z.; Abdelkareem, M.A.A. Implementation of an Electromagnetic Regenerative Tuned Mass Damper in a Vehicle Suspension System. IEEE Access 2020, 8, 110153–110163. [Google Scholar] [CrossRef]
  14. Zhang, Y.; Chen, H.; Guo, K.; Zhang, X.; Li, S.E. Electro-hydraulic damper for energy harvesting suspension: Modeling, prototyping and experimental validation. Appl. Energy 2017, 199, 1–12. [Google Scholar] [CrossRef]
  15. Liu, J.; Li, X.; Zhang, X.; Chen, X. Modeling and Simulation of Energy-Regenerative Active Suspension Based on BP Neural Network PID Control. Shock Vib. 2019, 2019, 104286. [Google Scholar] [CrossRef]
  16. Wang, F.; Yin, Z.; Chen, F.; Yan, S. A Research on the Aerodynamic Drag Reduction Mechanism of Front Wheel Deflectors in a Condition of Wheel Rotation. Automot. Eng. 2016, 38, 157–162. [Google Scholar]
  17. Shao, C.; Xu, K.; Fang, M. Frequency-Variance Based Antistrong Vibration Interference Method for Vortex Flow Sensor. IEEE Trans. Instrum. Meas. 2014, 63, 1566–1582. [Google Scholar] [CrossRef]
  18. Kan, J.; Liao, W.; Wang, J.; Wang, S.; Yan, M.; Jiang, Y.; Zhang, Z. Enhanced piezoelectric wind-induced vibration energy harvester via the interplay between cylindrical shell and diamond-shaped baffle. Nano Energy 2021, 89, 106466. [Google Scholar] [CrossRef]
  19. Bodavula, A.; Yadav, R.; Guven, U. Numerical investigation of the unsteady aerodynamics of NACA 0012 with suction surface protrusion. Aircr. Eng. Aerosp. Technol. 2020, 92, 186–200. [Google Scholar] [CrossRef]
  20. Tamimi, V.; Esfehani, M.; Zeinoddini, M.; Naeeni, S.; Wu, J.; Shahvaghar-Asl, S. Marine hydrokinetic energy harvesting performance of diamond and square oscillators in tandem arrangements. Energy 2020, 202, 117749. [Google Scholar] [CrossRef]
  21. Zhou, G.; Li, Z.; Zhu, Z.; Hao, B.; Tang, C. A Flew Piezoelectric Bimorph Energy Harvester Based on the Vortex-Induced-Vibration Applied in Rotational Machinery. IEEE/ASME Trans. Mechatron. 2019, 24, 700–709. [Google Scholar] [CrossRef]
  22. Zhang, Y.; Liu, K.; Xian, H.; Du, X. A review of methods for vortex identification in hydroturbines. Renew. Sustain. Energy Rev. 2018, 81, 1269–1285. [Google Scholar] [CrossRef]
  23. Zhu, H.; Gao, Y. Vortex induced vibration response and energy harvesting of a marine riser attached by a free-to-rotate impeller. Energy 2017, 134, 532–544. [Google Scholar] [CrossRef]
  24. Naseer, R.; Dai, H.; Abdelkefi, A.; Wang, L. Piezomagnetoelastic energy harvesting from vortex-induced vibrations using monostable characteristics. Appl. Energy 2017, 203, 142–153. [Google Scholar] [CrossRef]
  25. Wu, N.; He, Y.; Fu, J.; Liao, P. Performance of a bistable flow-energy harvester based on vortex-induced vibration. J. Wind. Eng. Ind. Aerodyn. 2021, 217, 104733. [Google Scholar] [CrossRef]
  26. Siala, F.F.; Liburdy, J.A. Power estimation of flapping foil energy harvesters using vortex impulse theory. Renew. Energy 2020, 154, 894–902. [Google Scholar] [CrossRef]
  27. Sánchez–Sanz, M.; Velazquez, A. Passive control of vortex induced vibration in internal flow using body shape. J. Fluids Struct. 2011, 27, 976–985. [Google Scholar] [CrossRef]
  28. Li, S.; Sun, Z. Harvesting vortex energy in the cylinder wake with a pivoting vane. Energy 2015, 88, 783–792. [Google Scholar] [CrossRef]
  29. Du, X.; Zhang, M.; Chang, H.; Wang, Y.; Yu, H. Micro windmill piezoelectric energy harvester based on vortex- induced vibration in tunnel. Energy 2022, 238, 121734. [Google Scholar] [CrossRef]
  30. Kumar, S.K.; Bose, C.; Ali, S.F.; Sarkar, S.; Gupta, S. Investigation on a vortex induced vibration based energy harvester. Appl. Phys. Lett. 2017, 111, 243903. [Google Scholar] [CrossRef]
  31. Morton, C.; Yarusevych, S. Vortex Dynamics in the Turbulent Wake of a Single Step Cylinder. J. Fluids Eng. 2014, 136, 031205. [Google Scholar] [CrossRef]
  32. Sun, W.; Guo, F.; Seok, J. Development of a novel vibro-wind galloping energy harvester with high power density incorporated with a nested bluff-body structure. Energy Convers. Manag. 2019, 197, 111880. [Google Scholar] [CrossRef]
  33. Dai, H.L.; Abdelkefi, A.; Yang, Y.; Wang, L. Orientation of bluff body for designing efficient energy harvesters from vortex-induced vibrations. Appl. Phys. Lett. 2016, 108, 053902. [Google Scholar] [CrossRef]
  34. Yan, Y.; Ji, C.; Srinil, N. Three-dimensional flip-flopping flow around a pair of dual-stepped circular cylinders in a side-by-side arrangement. Phys. Fluids 2020, 32, 123608. [Google Scholar] [CrossRef]
  35. Morton, C.; Yarusevych, S. Vortex shedding from cylinders with two step discontinuities in diameter. J. Fluid Mech. 2020, 902, A29. [Google Scholar] [CrossRef]
  36. Misuriya, G.; Eldho, T.I.; Mazumder, B.S. Higher-Order Turbulence Around Different Circular Cylinders Using Particle Image Velocimetry. J. Fluids Eng.-Trans. ASME 2021, 143, 091202. [Google Scholar] [CrossRef]
  37. Chen, S.; Sanitjai, S.; Ghosh, K.; Goldstein, R. Three-dimensional vortex flow near the endwall of a short cylinder in crossflow: Uniform-diameter circular cylinder. Appl. Therm. Eng. 2012, 49, 73–78. [Google Scholar] [CrossRef]
  38. Rogowski, K.; Królak, G.; Bangga, G. Numerical Study on the Aerodynamic Characteristics of the NACA 0018 Airfoil at Low Reynolds Number for Darrieus Wind Turbines Using the Transition SST Model. Processes 2021, 9, 477. [Google Scholar] [CrossRef]
  39. Fang, Y.Y.; Han, Z.L. Numerical experimental research on the hydrodynamic performance of flow around a three dimensional circular cylinder. Adv. Civ. Eng. 2011, 90–93, 2778–2781. [Google Scholar] [CrossRef]
  40. Chen, W.L.; Wang, X.; Xu, F.; Li, H.; Hu, H. Passive Jet Flow Control Method for Suppressing Unsteady Vortex Shedding from a Circular Cylinder. J. Aerosp. Eng. 2017, 30, 040160. [Google Scholar] [CrossRef]
  41. Botterill, N.; Morvan, H.P.; Owen, J.S. Investigation into the numerical modelling of the drag crisis for circular cylinders. In Proceedings of the 5th European and African Conference on Wind Engineering, Florence, Italy, 19–23 July 2009. [Google Scholar]
  42. Breuer, M. A challenging test case for large eddy simulation: High Reynolds number circular cylinder flow. Int. J. Heat Fluid Flow 2000, 21, 648–654. [Google Scholar] [CrossRef]
  43. Dunn, W.; Tavoularis, S. Experimental studies of vortices shed from cylinders with a step-change in diamete. J. Fluid Mech. 2006, 555, 409–437. [Google Scholar] [CrossRef]
  44. Zhang, B.; Mao, Z.; Wang, L.; Fu, S.; Ding, W. A novel V-shaped layout method for VIV hydrokinetic energy converters inspired by geese flying in a V-Formation. Energy 2021, 230, 120811. [Google Scholar] [CrossRef]
  45. Hu, X.; Zhang, J.; Hui, Z.; Luo, Y.; Guo, P.; Wang, J. Flow control of automobile with plasma vortex generator. J. Mech. Sci. Technol. 2021, 35, 2493–2502. [Google Scholar] [CrossRef]
Figure 1. Quarter-car suspension vibration model.
Figure 1. Quarter-car suspension vibration model.
Energies 19 01636 g001
Figure 2. Time-domain responses of the suspension performance indices.
Figure 2. Time-domain responses of the suspension performance indices.
Energies 19 01636 g002
Figure 3. Computational flow field model of the shock absorber assembly.
Figure 3. Computational flow field model of the shock absorber assembly.
Energies 19 01636 g003
Figure 4. Top-view flow fields under different spring compression conditions.
Figure 4. Top-view flow fields under different spring compression conditions.
Energies 19 01636 g004aEnergies 19 01636 g004b
Figure 5. Simplified stepped-cylinder model of the suspension assembly.
Figure 5. Simplified stepped-cylinder model of the suspension assembly.
Energies 19 01636 g005
Figure 6. Lift coefficient history and frequency spectrum at 20 m/s.
Figure 6. Lift coefficient history and frequency spectrum at 20 m/s.
Energies 19 01636 g006
Figure 7. Partition of wake-vortex regions around the stepped cylinder at 20 m/s.
Figure 7. Partition of wake-vortex regions around the stepped cylinder at 20 m/s.
Energies 19 01636 g007
Figure 8. Q-criterion vortex iso-surfaces at different Reynolds numbers.
Figure 8. Q-criterion vortex iso-surfaces at different Reynolds numbers.
Energies 19 01636 g008
Figure 9. Cross-sectional velocity contours of the stepped cylinder at low, medium, and high flow velocities.
Figure 9. Cross-sectional velocity contours of the stepped cylinder at low, medium, and high flow velocities.
Energies 19 01636 g009
Figure 10. Pressure contours at the medium flow velocity.
Figure 10. Pressure contours at the medium flow velocity.
Energies 19 01636 g010
Figure 11. Lateral-view streamlines under different incoming-flow conditions.
Figure 11. Lateral-view streamlines under different incoming-flow conditions.
Energies 19 01636 g011aEnergies 19 01636 g011b
Figure 12. Schematic diagram of the prototype harvester.
Figure 12. Schematic diagram of the prototype harvester.
Energies 19 01636 g012aEnergies 19 01636 g012b
Figure 13. Schematic of the d 31 vibration mode of the PVDF piezoelectric film.
Figure 13. Schematic of the d 31 vibration mode of the PVDF piezoelectric film.
Energies 19 01636 g013
Figure 14. Piezoelectric output voltages induced by wake-vortex excitation.
Figure 14. Piezoelectric output voltages induced by wake-vortex excitation.
Energies 19 01636 g014
Figure 15. Mean values of peak voltage at different mounting distances.
Figure 15. Mean values of peak voltage at different mounting distances.
Energies 19 01636 g015
Figure 16. Mean values of peak voltage for different film lengths.
Figure 16. Mean values of peak voltage for different film lengths.
Energies 19 01636 g016
Figure 17. Experimental test rig of the proposed harvester.
Figure 17. Experimental test rig of the proposed harvester.
Energies 19 01636 g017
Figure 18. Measured output voltages of the piezoelectric films.
Figure 18. Measured output voltages of the piezoelectric films.
Energies 19 01636 g018
Figure 19. Measured mean output voltages for different film lengths.
Figure 19. Measured mean output voltages for different film lengths.
Energies 19 01636 g019aEnergies 19 01636 g019b
Table 1. Suspension model parameters for simulations.
Table 1. Suspension model parameters for simulations.
ParametersSymbolValueUnit
Sprung massm’400Kg
Unsprung massm50Kg
Damper ratioc1300N·(s·m)−1
Tire stiffnessk1200,000N/m
Spring stiffnessk220,000N/m
Table 2. Frequency-domain results of the quarter-car suspension model.
Table 2. Frequency-domain results of the quarter-car suspension model.
BA (m/s2)SWS (m)DTD (m)
RMS value0.31040.00630.0014
Table 3. Main dimensions of the suspension assembly and computational domain.
Table 3. Main dimensions of the suspension assembly and computational domain.
StructureParameterSymbolValue (mm)
Shock absorberDiameterd45
Heighth200
Springsection diameterd05
Middle diameterd1120
Height (Length)H0, H1, H2, H3, H4180, 160, 140, 120, 100
Dustproof coverMiddle diameterD90
HeightH100
Flow fieldLongitudinal70d3150
Lateral20d900
Vertical10d450
Table 4. Comparison of flow parameters for the equivalent cylinder.
Table 4. Comparison of flow parameters for the equivalent cylinder.
Reynolds NumberLiteratureStrouhal NumberRelative Error (St)Mean Drag Coefficient Relative   Error   ( C d ¯ )
5 × 104This article0.2021.17
5 × 104Botterill N [41]0.22510.2%1.202.5%
1 × 105This article0.1961.18
1 × 105Fang Y [39]0.1903.2%1.255.6%
1.5 × 105This article0.1981.21
1.5 × 105Wang X. [40]0.22010.0%1.200.8%
1.4 × 105Breuer [42]0.2001.0%1.296.2%
Table 5. Piezoelectric parameters of the PVDF film material.
Table 5. Piezoelectric parameters of the PVDF film material.
ParameterSymbolValueUnit
Densityρ1.78 × 103Kg/m3
Poisson’s ratioμ0.3
relative dielectric constantε/ε09.5
Young’s modulusE2GPa
stress constantg312.16 × 10−1
strain constantd312.3 × 10−11
Electromechanical constantk3112%
Table 6. Maximum voltage from the piezoelectric film.
Table 6. Maximum voltage from the piezoelectric film.
VoltagePosition10 m/s20 m/s30 m/s
MaximumUpper cylinder0.85 V1.58 V2.20 V
Lower cylinder1.25 V1.68 V2.38 V
Mean of peaksUpper cylinder0.41 V0.77 V0.94 V
Lower cylinder0.72 V0.84 V1.39 V
Table 7. Parameters of USBZJ-4 data acquisition card.
Table 7. Parameters of USBZJ-4 data acquisition card.
ParameterSpecifications
ModelUSBZJ-4314
(4-channel synchronous acquisition)
Sampling rate30 kS/s
Input impedance10 MΩ//47 pF
Input coupling methodDirect current (DC) coupling
Range±10 V
Resolution12 bit (about 2.4 mV)
Table 8. Comparison between simulated and experimental maximum voltages.
Table 8. Comparison between simulated and experimental maximum voltages.
Position, VelocitySimulation Voltage(V)Test Voltage(V)Relative Error
(a1) lower cylinder, u = 10 m/s0.850.805.9%
(a2) lower cylinder, u = 20 m/s1.681.5010.7%
(a3) lower cylinder, u = 30 m/s2.201.9113.2%
(b1) upper cylinder, u = 10 m/s1.251.194.8%
(b2) upper cylinder, u = 20 m/s1.681.623.6%
(b3) upper cylinder, u = 30 m/s2.382.207.6%
Table 9. Maximum voltages of the suspension assembly.
Table 9. Maximum voltages of the suspension assembly.
Air Velocity10 m/s20 m/s30 m/s
Upper cylinder0.99 V1.30 V1.64 V
Lower cylinder0.71 V1.22 V1.92 V
Table 10. Output power vs. load resistance at 20 m/s.
Table 10. Output power vs. load resistance at 20 m/s.
Load Resistor (MΩ)Upper Film Power (μW)Lower Film Power (μW)
0.50.120.18
1.00.280.42
2.00.510.89
2.80.681.24
3.90.821.08
4.70.860.94
5.60.790.81
6.80.710.68
8.20.580.52
10.00.450.41
Table 11. Optimal load resistance and maximum output power at different flow velocities.
Table 11. Optimal load resistance and maximum output power at different flow velocities.
Flow Velocity (m/s)Film PositionOptimal Load (MΩ)Maximum Power (μW)Power Density (μW/cm3)
10Upper film6.80.120.25
10Lower film4.20.350.73
20Upper film4.70.861.79
20Lower film2.81.242.58
30Upper film3.22.154.48
30Lower film1.93.086.42
Table 12. Capacitive charging performance at 20 m/s (lower film).
Table 12. Capacitive charging performance at 20 m/s (lower film).
Capacitance (μF)Saturation Voltage (V)Charging Time to 90% (s)Stored Energy (μJ)Average Charging Power (μW)
101.423810.10.27
471.3816544.80.27
1001.3534091.10.27
Disclaimer/Publisher’s Note: The statements, opinions and data contained in all publications are solely those of the individual author(s) and contributor(s) and not of MDPI and/or the editor(s). MDPI and/or the editor(s) disclaim responsibility for any injury to people or property resulting from any ideas, methods, instructions or products referred to in the content.

Share and Cite

MDPI and ACS Style

Wang, F.; Liu, J.; Sun, H.; Li, M.; Yin, H.; Zhang, X.; Liu, B. Vortex-Induced Vibration Energy Harvesting for Road Vehicle Suspensions: Modeling, Prototyping, and Experimental Validation. Energies 2026, 19, 1636. https://doi.org/10.3390/en19071636

AMA Style

Wang F, Liu J, Sun H, Li M, Yin H, Zhang X, Liu B. Vortex-Induced Vibration Energy Harvesting for Road Vehicle Suspensions: Modeling, Prototyping, and Experimental Validation. Energies. 2026; 19(7):1636. https://doi.org/10.3390/en19071636

Chicago/Turabian Style

Wang, Fei, Jiang Liu, Haoyu Sun, Mingxing Li, Hao Yin, Xilong Zhang, and Bilong Liu. 2026. "Vortex-Induced Vibration Energy Harvesting for Road Vehicle Suspensions: Modeling, Prototyping, and Experimental Validation" Energies 19, no. 7: 1636. https://doi.org/10.3390/en19071636

APA Style

Wang, F., Liu, J., Sun, H., Li, M., Yin, H., Zhang, X., & Liu, B. (2026). Vortex-Induced Vibration Energy Harvesting for Road Vehicle Suspensions: Modeling, Prototyping, and Experimental Validation. Energies, 19(7), 1636. https://doi.org/10.3390/en19071636

Note that from the first issue of 2016, this journal uses article numbers instead of page numbers. See further details here.

Article Metrics

Article metric data becomes available approximately 24 hours after publication online.
Back to TopTop