Thermal Insulation of Agricultural Buildings Using Different Biomass Materials
Abstract
1. Introduction
2. Comparison of Thermal Properties of Different Materials, Including Biomass, as Insulation of Buildings
3. Comparison of Embodied Energy and Carbon Footprint for Different Construction Materials
4. Materials and Methods
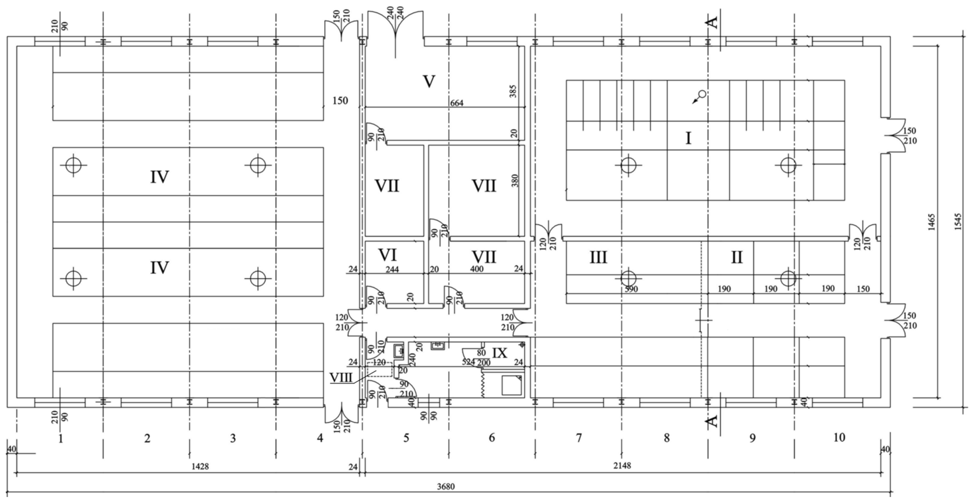
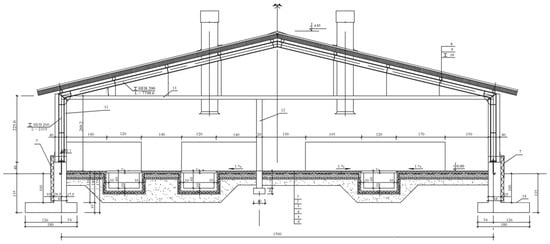
4.1. Specific Technical Data of the Proposed Building Model for Two Variants TB and HB
- Outer layer: Brick, 24 cm thick, with a density of 1800 kg/m3.
- Mineral wool (glass wool) insulation, 10 cm thick, with a density of 30 kg/m3.
- Inner layer: PGS foam gas silicate (aerated concrete, AAC, based on fly ash), 12 cm thick, with a thermal conductivity (λ) of 0.38 W·m⁻1·K⁻1 and a density of 600 kg/m3.
4.2. Carbon Footprint Calculation Procedure and Economic Analysis
- where:
- CF—Carbon footprint (measured in kg CO2 equivalent).
- —Global Warming Potential of each material (kg CO2e/kg of material) and for particular stages of the life cycle.
- —Global Warming Potential for stage: Extraction and Production.
- —Global Warming Potential for stage: Transportation.
- —Global Warming Potential for stage: Application.
- —Global Warming Potential for stage: End of Life.
- Material mass—The total mass of the material used.
- Carbon sequestration—The amount of CO2 absorbed by the biomaterial during its growth in the ground and/or during the calcination of lime.
5. Results and Discussion
6. Conclusions and Practical Recommendations
Author Contributions
Funding
Data Availability Statement
Acknowledgments
Conflicts of Interest
References
- Precision Business Insights. Available online: https://www.precedenceresearch.com/building-thermal-insulation-market (accessed on 20 January 2024).
- IEA. GlobalABC Roadmap for Buildings and Construction 2020–2050. Towards a Zero-Emission, Efficient, and Resilient Buildings and Construction Sector. 2020. Available online: https://iea.blob.core.windows.net/assets/6cca78af-2327-4e97-868c-294d48cb66b3/GlobalABC_Roadmap_for_Buildings_and_Construction_2020-2050.pdf (accessed on 21 November 2024).
- CEMBUREAU European Cement Association. Activity Report 2023, Belgium, Brussels. Available online: https://www.cembureau.eu/media/dnbf4xzc/activity-report-2023-for-web.pdf (accessed on 6 December 2024).
- Prakash, R.; Raman, S.N.; Subramanian, C.; Divyah, N. Eco-friendly fiber-reinforced concretes. In Handbook of Sustainable Concrete and Industrial Waste Management; Colangelo, F., Cioffi, R., Farina, I., Eds.; Series in Civil and Structural Engineering; Woodhead Publishing: Cambridge, UK, 2022; pp. 109–145. ISBN 9780128217306. Available online: https://www.sciencedirect.com/science/article/abs/pii/B9780128217306000310?via%3Dihub (accessed on 11 November 2024). [CrossRef]
- United Nations Environment Programme. 2021 Global Status Report for Buildings and Construction: Towards a Zero-Emission, Efficient and Resilient Buildings and Construction Sector. Nairobi. Available online: https://globalabc.org/sites/default/files/2021-10/GABC_Buildings-GSR-2021_BOOK.pdf (accessed on 5 December 2024).
- Rossignoli, C.; Caruso, M.; Jommi, C.; Sterpi, D. Preliminary experimental investigation into the use of recycled fibres from textile waste for the improvement of embankments. J. Water Land Dev. 2023, 59, 202–207. [Google Scholar] [CrossRef]
- Hameed, S.H.; Alwan, K.J. A review of insulation materials used to reduce thermal loads in buildings. AIP Conf. Proc. 2024, 3092, 090005. [Google Scholar]
- Osman, A.I.; Farghali, M.; Dong, Y.; Kong, J.; Yousry, M.; Rashwan, A.K.; Chen, Z.; Al-Fatesh, A.; Rooney, D.W.; Yap, P.S. Reducing the carbon footprint of buildings using biochar-based bricks and insulating materials: A review. Environ. Chem. Lett. 2024, 22, 71–104. [Google Scholar] [CrossRef]
- Hammond, G.; Jones, C. Inventory of Carbon & Energy: ICE (Vol. 5). Sustainable Energy Research Team, Department of Mechanical Engineering, University of Bath: Bath, UK, 2008. Available online: https://www.appropedia.org/w/images/5/56/ICE_Version_1.6a.pdf, (accessed on 11 November 2024).
- Grazieschi, G.; Asdrubali, F.; Thomas, G. Embodied energy and carbon of building insulating materials: A critical review. Clean. Environ. Syst. 2021, 2, 100032. [Google Scholar] [CrossRef]
- Hurtado, P.L.; Rouilly, A.; Raynaud, C.; Vandenbossche, V. The properties of cellulose insulation applied via the wet spray process. Build. Environ. 2016, 107, 43–51. [Google Scholar] [CrossRef]
- Hurtado, P.L.; Rouilly, A.; Vandenbossche, V.; Raynaud, C. A review on the properties of cellulose fibre insulation(Review). Build. Environ. 2016, 96, 170–177. [Google Scholar] [CrossRef]
- Füchsl, S.; Rheude, F.; Röder, H. Life cycle assessment (LCA) of thermal insulation materials: A critical review. Clean. Mater. 2022, 5, 100119. [Google Scholar] [CrossRef]
- Zhao, J.R.; Zheng, R.; Tang, J.; Sun, H.J.; Wang, J. A mini-review on building insulation materials from perspective of plastic pollution: Current issues and natural fibres as a possible solution. J. Hazard. Mater. 2022, 438, 129449. [Google Scholar] [CrossRef]
- Zhao, J.; Shuang, L.; Tang, Y. Preparation of building insulation foam materials by recycling industrial and agroforestry wastes. J. Build. Eng. 2023, 68, 105988. [Google Scholar] [CrossRef]
- Superti, V.; Forman, T.V.; Houmani, C. Recycling Thermal Insulation Materials: A Case Studyon More Circular Management of Expanded Polystyrene and Stonewool in Switzerland and Research Agenda. Resources 2021, 10, 104. [Google Scholar] [CrossRef]
- Michalak, J.; Czernik, S.; Marcinek, M.; Michałowski, B. Environmental burdens of External Thermal Insulation Systems. Expanded Polystyrene vs. Mineral Wool: Case Study from Poland. Sustainability 2020, 12, 4532. [Google Scholar] [CrossRef]
- Koenen, A.; Marquis, D.; Denh, S. Reference materials for thermal conductivity measurements European Situation. Buildings 2024, 14, 2795. [Google Scholar] [CrossRef]
- Pomada, M.; Kieruzel, K.; Ujma, A.; Palutkiewicz, P.; Walasek, T.; Adamus, J. Analysis of Thermal Properties of Materials Used to Insulate External Walls. Materials 2024, 17, 4718. [Google Scholar] [CrossRef] [PubMed]
- Kupryś-Caruk, M.; Lisowski, A.; Chomontowski, C. The effect of silage additive on the kinetics of biogas production from lignocellulosic perennial crops. J. Water Land. Dev. 2023, 56, 58–66. [Google Scholar] [CrossRef]
- Wróbel, B.; Hryniewicz, M.; Kulkova, I.; Mazur, K.; Jakubowska, Z.; Borek, K.; Dobrzyński, J.; Konieczna, A.; Miecznikowski, A.; Piasecka-Jóźwiak, K.; et al. Fermentation Quality and Chemical Composition of Industrial Hemp (Cannabis sativa L.) Silage Inoculated with Bacterial Starter Cultures—A Pilot Study. Agronomy 2023, 13, 1371. [Google Scholar] [CrossRef]
- Roman, K.; Grzegorzewska, E. The Comparison of Physical and Chemical Properties of Pellets and Briquettes from Hemp (Cannabis sativa L.). Energies 2024, 17, 2210. [Google Scholar] [CrossRef]
- Arrigoni, A.; Pelosat, R.; Melià, P.; Ruggieri, G.; Sabbadini, S.; Dotelli, G. Life cycle assessment of natural building materials: The role of carbonation, mixture components and transport in the environmental impacts of hempcrete blocks. J. Clean. Prod. 2017, 149, 1051–1061. [Google Scholar] [CrossRef]
- Collet, F.; Pretot, S. Thermal conductivity of hemp concretes: Variation with formulation, density and water content. Constr. Build. Mater. 2014, 65, 612–619. [Google Scholar] [CrossRef]
- KOWR. Available online: www.kowr.gov.pl (accessed on 8 January 2025).
- Świechowska, I.; Kupka, D.; Gagracz, M. Możliwości Uprawy i Wykorzystanie Pozarolnicze Konopi Włóknistych; Centrum Doradztwa Rolniczego w Brwinowie Oddział w Poznaniu: Poznań, Poland, 2022. [Google Scholar]
- European Comission, Minutes of the Meeting of the Expert Group for Agricultural Markets, in Particular Concerning Aspects Falling Under the CMO Regulation—Subgroup: Arable Crops and Olive Oil and the CDG Arable Crops—Cotton, Flax and Hemp Sectors Organised by Videoconference on 26 April 2021, Part I: Production of Hemp and Market Opportunities. Available online: https://agriculture.ec.europa.eu/document/download/21ed75d2-4da8-4d93-a9bb-47fbb3661ece_en?filename=cdg-arable-crops-2021-04-26-minutes_en.pdf (accessed on 30 December 2024).
- European Comission. Hemp Production in the EU. Available online: https://agriculture.ec.europa.eu/farming/crop-productions-and-plant-based-products/hemp_en (accessed on 21 November 2024).
- Czyż, K.; Roman, K. Annals of WULS—SGGW. For. Wood Technol. 2023, 123, 177–190. Available online: https://wulsannals.com/article/543115/en (accessed on 12 November 2024).
- Double Raw Fibreworks. Available online: https://ekosentis.eu/ (accessed on 5 December 2024).
- Sokołowski, P.; Kossakowski, P. Kompozyt Wapienno-Konopny—Materiał Ekologiczny. Res. Rev. Czest. Polytecnic (ZN PCz) 2019, 25, 230–240. [Google Scholar] [CrossRef]
- Asdrubali, F.; D’Alessandro, F.; Schiavoni, S. A review of unconventional sustainable building insulation materials. Sustain. Mater. Technol. 2015, 4, 1–17. [Google Scholar] [CrossRef]
- Hryniewicz, M.; Mazur, K.; Konieczna, A.; Motyka, J.; Rutkowski, M.; Rutkowski, T.; Nazaruk, M.; Koperski, B.; Koperski, W.; Ludwiniak, M. The use of hemp shiv as a replacement for the aggregate mixture in concrete mix for the production of precast concrete elements. Mater. Eng. 2021, 1, 12–19. [Google Scholar] [CrossRef]
- Benfratello, S.; Capitano, C.; Peri, G.; Rizzo, G.; Scaccianoce, G.; Sorrentino, G. Thermal and structural properties of a hemp-lime biocomposite. Constr. Build. Mater. 2013, 48, 745–754. [Google Scholar] [CrossRef]
- Niyigena, C.; Amziane, S.; Chateauneuf, A.; Arnaud, L.; Bessette, L.; Collet, F.; Lanos, C.; Escadeillas, G.; Lawrence, M.; Magniont, C.; et al. Variability of the mechanical properties of hemp concrete. Mater. Today Commun. 2016, 7, 122–133. [Google Scholar] [CrossRef]
- EC Directive. Council Directive 2008/120/EC of 18 December 2008 Laying Down Minimum Standards for the Protection of Pigs. (Codified Version). Available online: https://eur-lex.europa.eu/eli/dir/2008/120/oj/eng (accessed on 5 December 2024).
- Smith, B.C.; Ramirez, B.C.; Hoff, S.J. Modeling and Assessing Heat Transfer of Piglet Microclimates. AgriEngineering 2021, 3, 768–782. [Google Scholar] [CrossRef]
- Yohanis, Y.G.; Norton, B. Life-cycle operational and embodied energy for a generic single-storey office building in the UK. Energy 2002, 27, 77–92. [Google Scholar] [CrossRef]
- Mohebbi, G.; Bahadori-Jahromi, A.; Ferri, M.; Mylona, A. The Role of Embodied Carbon Databases in the Accuracy of Life Cycle Assessment (LCA) Calculations for the Embodied Carbon of Buildings. Sustainability 2021, 13, 7988. [Google Scholar] [CrossRef]
- Miller, A.J. Energy Implications of the Transportation of Building Materials. Fraunhofer Informationszentrum Raum und Bau IRB. 1996. Available online: https://www.irbnet.de/daten/iconda/CIB8492.pdf (accessed on 22 October 2024).
- Dixit, M.K.; Fernández-Solís, J.L.; Lavy, S.; Culp, C.H. Identification of parameters for embodied energy measurement: A literature review. Energy Build. 2010, 42, 1238–1247. [Google Scholar] [CrossRef]
- Ajabli, H.; Zoubir, A.; Elotmani, R.; Louzazni, M.; Kandoussi, K.; Daya, A. Review on Eco-friendly insulation material used for indoor comfort in building. Renew. Sust. Energy Rev. 2023, 185, 113609. [Google Scholar] [CrossRef]
- Palumbo, M.; Lacasta, A.M.; Giraldo, M.P.; Haurie, E. Correal, Bio-based insulation materials and their hygrothermal performance in a building envelope system (ETICS). Energy Build. 2018, 174, 147–155. [Google Scholar] [CrossRef]
- Claude, V.; Nguyen, E.; Delhaye, A.; Mayeux, A.; Charron, S. Hygroscopic and Thermal Inertia Impact of Biobased Insulation in a Wood Frame Wall. In Bio-Based Building Materials; ICBBM 2023; RILEM Bookseries; Amziane, S., Merta, I., Page, J., Eds.; Springer: Cham, Switzerland, 2023; Volume 45. [Google Scholar] [CrossRef]
- Wi, S.; Park, J.H.; Kim, Y.U.; Yang, S.; Kim, S. Thermal, Hygric, and Environmental Performance Evaluation of Thermal Insulation Materials for Their Sustainable Utilization in Buildings. Environ. Pollut. 2021, 272, 116033. [Google Scholar] [CrossRef] [PubMed]
- Ali, A.; Issa, A.; Elshaer, A. A Comprehensive Review and Recent Trends in Thermal Insulation Materials for Energy Conservation in Buildings. Sustainability 2024, 16, 8782. [Google Scholar] [CrossRef]
- Bel, C.V. Insulation Materials. Cellulose Fiber and Expanded Polystyrene Insulations. Study of Insulation Materials, Properties and Behaviors. 2017. Available online: https://upcommons.upc.edu/bitstream/handle/2117/110633/insulation%20materials%20-%20Celia%20Viladot-.pdf (accessed on 22 November 2024).
- Viel, M.; Collet, F.; Prétot, S.; Lanos, C. Hemp-Straw Composites: Gluing Study and Multi-Physical Characterizations. Materials 2019, 12, 1199. [Google Scholar] [CrossRef] [PubMed]
- Kumar, D.; Alam, M.; Zou, P.X.W.; Sanjayan, J.G.; Memon, R.A. Comparative analysis of building insulation material properties and performance. Renew. Sustain. Energy Rev. 2020, 131, 110038. [Google Scholar] [CrossRef]
- Hussain, A.; Calabria-Holley, J.; Lawrence, M.; Jiang, Y. Hygrothermal and mechanical characterisation of novel hemp shiv based thermal insulation composites. Constr. Build. Mater. 2019, 212, 561–568. [Google Scholar] [CrossRef]
- Trochonowicz, M.; Szostak, B. The impact of density, temperature, moisture, and test direction on the thermal conductivity coefficient in pine wood. Build. Archit. 2023, 22, 005–013. Available online: https://ph.pollub.pl/index.php/bia/article/view/5452/4327 (accessed on 5 December 2024). [CrossRef]
- Zhang, X.; Chen, B.; Ahmad, M.R. Characterization of a novel bio-insulation material for multilayer wall and research on hysteresis effect. Constr. Build. Mater. 2021, 290, 123162. [Google Scholar] [CrossRef]
- Siciliano, A.P.; Zhao, X.; Fedderwitz, R.; Ramakrishnan, K.; Dai, J.; Gong, A.; Zhu, J.Y.; Kośny, J.; Hu, L. Sustainable Wood-Waste-Based Thermal Insulation Foam for Building Energy Efficiency. Buildings 2023, 13, 840. [Google Scholar] [CrossRef]
- Pedroso, M.; Gomes, M.d.G.; Silvestre, J.D.; Hawreen, A.; Flores-Colen, I. Thermophysical Parameters and Hygrothermal Simulation of Aerogel-Based Fibre-Enhanced Thermal Insulating Renders Applied on Exterior Walls. Energies 2023, 16, 3048. [Google Scholar] [CrossRef]
- Florentin, Y.; Pearlmutter, D.; Givoni, B.; Gal, E. A life-cycle energy and carbon analysis of hemp-lime bio-composite building materials. Energy Build. 2017, 156, 293–305. [Google Scholar] [CrossRef]
- Korjenic, A.; Zach, J.; Bednar, T.; Korjenic, S. Development and performance evaluation of natural thermal-insulation materials composed of renewable resources. Energy Build. 2021, 242, 110926. [Google Scholar] [CrossRef]
- Wang, Y.; Chen, Z.; Yang, L.; Bian, C.; Du, Z.; Xu, T.; Wu, H.; Zhang, J.; He, L. Preparation and characterization of micro-cellular melamine foam supported SiO2 aerogel for building thermal insulation. Energy Build. 2024, 320, 114617. [Google Scholar] [CrossRef]
- Haigh, R. A Review and Thermal Conductivity Experimental Program of Mattress Waste Material as Insulation in Building and Construction Systems. Constr. Mater. 2024, 4, 401–424. [Google Scholar] [CrossRef]
- Alrasheed, M.R.A. Optimizing the Thickness of Multilayer Thermal Insulation on Different Pipelines for Minimizing Overall Cost-Associated Heat Loss. Processes 2024, 12, 318. [Google Scholar] [CrossRef]
- Ye, Z.; Wells, C.M.; Carrington, C.G.; Hewitt, N.J. Thermal Conductivity of Wool and Wool–Hemp Insulation. Int. J. Energy Res. 2006, 30, 37–49. [Google Scholar] [CrossRef]
- Kuqo, A.; Mai, C. Seagrass Leaves: An Alternative Resource for the Production of Insulation Materials. Materials 2022, 15, 6933. [Google Scholar] [CrossRef]
- Tupciauskas, R.; Berzins, A.; Pavlovics, G.; Bikovens, O.; Filipova, I.; Andze, L.; Andzs, M. Optimization of Thermal Conductivity vs. Bulk Density of Steam-Exploded Loose-Fill Annual Lignocellulosics. Materials 2023, 16, 3654. [Google Scholar] [CrossRef]
- Dhakal, U.; Berardi, U.; Gorgolewski, M.; Richman, R. Hygrothermal performance of hempcrete for Ontario (Canada) buildings. J. Clean. Prod. 2017, 142, 3655–3664. [Google Scholar] [CrossRef]
- Basbagill, J.; Flager, F.; Lepech, M.; Fischer, M. Application of life-cycle assessment to early stage building design for reduced embodied environmental impacts. Build. Environ. 2013, 60, 81–92. [Google Scholar] [CrossRef]
- Jami, T.; Karade, S.R.; Singh, L.P. A review of the properties of hemp concrete for green building applications. J. Clean. Prod. 2019, 239, 117852. [Google Scholar] [CrossRef]
- Budhathoki, R.; Maraseni, T.; Apan, A. Enviro-economic and feasibility analysis of industrial hemp value chain: A systematic literature review. GCB Bioenergy. 2024, 16, 13141. [Google Scholar] [CrossRef]
- Pittau, F.; Krause, F.; Lumia, G.; Habert, G. Fast-growing bio-based materials as an opportunity for storing carbon in exterior walls. Build. Environ. 2018, 129, 117–129. [Google Scholar] [CrossRef]
- Wardal, W.J.; Romaniuk, W.; Borusiewicz, A. (Eds.) Innowacyjne Rozwiązania Technologiczno-Budowlane w Chowie Trzody Chlewnej (Innovative Technological-Building Solutions in Pig Housing); WSA: Łomża, Poland, 2018; 186p, ISBN 978-83-947669-8-6. [Google Scholar]
- Arnaud, L.; Gourlay, E. Experimental study of parameters influencing mechanical properties of hemp concretes. Constr. Build. Mater. 2012, 28, 50–56. [Google Scholar] [CrossRef]
- Röck, M.; Ruschi, M.; Saade, M.; Balouktsi, M.; Rasmussen, F.N.; Birgisdottir, H.; Frischknecht, R.; Habert, G.; Lützkendorf, T.; Passer, A. Embodied GHG emissions of buildings—The hidden challenge for effective climate change mitigation. Appl. Energy 2020, 258, 114107. [Google Scholar] [CrossRef]
- IPCC. Report on Buiding Sector. Available online: https://www.ipcc.ch/report/ar6/wg3/downloads/report/IPCC_AR6_WGIII_Chapter09.pdf (accessed on 5 December 2024).
- Alsaqabi, Y.; Almhafdy, A.; Haider, H.; Ghaffarianhoseini, A.; Ghaffarianhoseini, A.; Ali, A.A.M. Techno-Environmental Assessment of Insulation Materials in Saudi Arabia: Integrating Thermal Performance and LCA. Buildings 2023, 13, 331. [Google Scholar] [CrossRef]
- ISOHEMP. Available online: www.isohemp.com/sites/default/files/2024-11/ish_technical_data_sheet_hemp_blocks_2024_EN.pdf (accessed on 12 November 2024).
- Circular Ecology Database. Available online: https://circularecology.com/ice-download-confirm01.html (accessed on 12 November 2024).
- Arehart, J.H.; Nelson, W.S.; Srubar, W.V. On the theoretical carbon storage and carbon sequestration potential of hempcrete. J. Clean. Prod. 2020, 266, 121846. [Google Scholar] [CrossRef]
- Cosentino, L.; Fernandes, J.; Mateus, R. A Review of Natural Bio-Based Insulation Materials. Energies 2023, 16, 4676. [Google Scholar] [CrossRef]
- Peroni, P.; Liu, Q.; Lizarazu, W.Z.; Xue, S.; Yi, Z.; Von Cossel, M.; Mastroberardino, R.; Papazoglou, E.G.; Monti, A.; Iqbal, Y. Biostimulant and Arbuscular Mycorrhizae Application on Four Major Biomass Crops as the Base of Phytomanagement Strategies in Metal-Contaminated Soils. Plants 2024, 13, 1866. [Google Scholar] [CrossRef]
- Tronet, P.; Lecompte, T.; Picandet, V.; Baley, C. Study of lime hemp concrete (LHC)—Mix design, casting process and mechanical behaviour. Cement. Concr. Comp. 2016, 67, 60–72. [Google Scholar] [CrossRef]
- Todde, G.; Carboni, G.; Marras, S.; Caria, M.; Sirca, C. Industrial hemp (Cannabis sativa L.) for phytoremediation: Energy and environmental life cycle assessment of using contaminated biomass as an energy resource. Sustain. Energy Technol. Assess. 2022, 52, 102081. [Google Scholar] [CrossRef]
- Wardal, W.J.; Mazur, K.E.; Roman, K.; Roman, M.; Majchrzak, M. Assessment of Cumulative Energy Needs for Chosen Technologies of Cattle Feeding in Barns with Conventional (CFS) and Automated Feeding Systems (AFS). Energies 2021, 14, 8584. [Google Scholar] [CrossRef]
- Mazur, K.E.; Barwicki, J.; Tseiko, V. Comparison of Mechanized and Automated Technologies in the Scope of Cumulative Energy in Sustainable Milk Production. Sustainability 2024, 16, 906. [Google Scholar] [CrossRef]
- Gürzenich, D.; Mathur, J.; Bansal, N.K.; Wagner, H.J. Cumulative energy demand for selected renewable energy technologies. Int. J. Life Cycle Assess. 1999, 4, 143–149. [Google Scholar] [CrossRef]





| Type of Material | Thermal Conductivity Coefficient [W·m−1·K−1] | Density [kg·m−3] | Source | No. of Reference |
|---|---|---|---|---|
| Rock wool | 0.046 | 30–180 | Zhao et al., 2023 | [15] |
| 40–200 | Palumbo et al., 2020 | [43] | ||
| Mineral wool | 0.03271–0.03688 | 77.7 | Pomada et al., 2024 | [19] |
| 0.031–0.035 | 30 | Claude et al., 2023 | [44] | |
| 0.03126–0.03463 | 102.8–124.7 | Wi et al., 2021 | [45] | |
| Expanded Polystyrene (EPS) | 0.046 | 21.2–31.8 | Koenen et al., 2024 | [18] |
| 0.03126–0.03463 | 28.1–35.7 | Wi et al., 2021 | [45] | |
| 0.041 | 18–50 | Ali et al., 2024 | [46] | |
| 0.034–0.039 | 15–35 | Bel, 2017 | [47] | |
| Extruded Polystyrene (XPS) | 0.03422–0.03541 | 17.1 | Pomada et al., 2024 | [19] |
| 0.025–0.028 | 30.5–34.7 | Wi et al., 2021 | [45] | |
| Low/medium/high-density panels hemp fibre or woody core | 0.090–0.160 at 23 °C and 50% RH | 200–600 | Collet, Pretot, 2014 | [24] |
| Hemp | >0.03 | 150 | Koenen et al., 2024 | [18] |
| Hemp shives composite | 0.069.0–0.0759 (*) | 210–410 | Viel et al., 2019 | [48] |
| 0.059–0.073 | Kumar et al., 2020 | [49] | ||
| Hemp shives | 0.038–0.123 | 90–110 | Hussain et al., 2019 | [50] |
| Hemp–lime composites | 0.051–0.058 | 360 | Hussain et al., 2019 | [50] |
| Pine wood | 0.1237–0.1260 | 450–630 | Kumar et al., 2020 | [49] |
| 416–646 | Trochonowicz, Szostak, 2023 | [51] | ||
| Small corn stalk | 0.045 | 109.6 | Zhang et al., 2021 | [52] |
| Large corn stalk | 0.031 | 84.5 | ||
| Wood fibre | 0.065–0.37 | 230 | Palumbo et al., 2018 | [43] |
| Flax | 0.038 | 20–100 | Claude et al., 2023 | [44] |
| Insulation foam made from wood waste (**) | 0.038 | 60 | Siciliano et al., 2023 | [53] |
| Cork | 0.036–0.065 | 65–240 | Ali et al., 2024 | [47] |
| Insulation Material | Thermal Conductivity W∙m−1∙K−1 | Embodied Energy MJ∙kg−1 |
|---|---|---|
| Bagasse | 0.049–0.055 | 2.96 |
| Cellulose | 0.037–0.042 | 3.3–10.5 |
| Coffee chaff | 0.076 | 0.23 |
| Coir | 0.04–0.045 | 0.55 |
| Cork | 0.037–0.050 | 26 |
| Cotton stalks | 0.058–0.082 | 44–48 |
| Flax | 0.033–0.090 | 39.5 |
| Hemp | 0.039–0.123 | 18.71 |
| Juta | 0.050 | 21.11 |
| Kenaf | 0.026–0.044 | 22.7–39.06 |
| Parameter | Value | Unit |
|---|---|---|
| Density of materials | kg∙m−3 | |
| brick | 1800 | |
| glass wool | 30 | |
| AAC | 600 | |
| hempcrete | 400 | |
| Thermal conductivity | W∙m−1∙K−1 | |
| brick | 0.72 | |
| glass wool | 0.045 | |
| AAC | 0.38 | |
| hempcrete | 0.123 | |
| Width of building (*) | 15.00 | m |
| Width of building (**) | 15.45 | |
| Length of walls (*) | 33.00 | |
| Length of walls (**) | 33.80 | |
| Height of walls | 2.25 | |
| Wall thickness | 0.4 | |
| Surface of doors and gates | 6 | |
| Windows surface in rooms, of which: | ||
| pregnant and loose sows | 7.56 | |
| lactating sows | 3.78 | |
| piglets | 3.78 | |
| pigs | 11.34 | m2 |
| forage room | 1.89 | |
| toilet | 0.81 | |
| Total windows area | 29.16 | |
| Gates area | 20.25 | |
| Total area of windows, doors and gates | 49.41 | |
| Floor area | 495 |
| Elements of Building Walls | Volume of Element [m3] | Density of Material [kg·m3] | Weight of Element [kg] | GWP [kg CO2 eq per kg of Material] | Carbon Footprint [kg CO2e] |
|---|---|---|---|---|---|
| Layer of brick | 38.1420 | 1800.00 | 68,655.60 | 0.24 | 16,477.200 |
| Layer of insulation made of glass wool | 15.8925 | 30.00 | 476.77 | 8.63 | 4114.396 |
| Layer of aerated concrete | 19.0728 | 600.00 | 11,443.68 | 0.17 | 1945.425 |
| Total carbon footprint traditional construction (variant TB) | − | − | − | − | 22,537.02 |
| Hempcrete wall (variant HC) | 63.57 | 400 | 25,428 | 0.08 | 2034.24 1 |
| Carbon sequestration | − | − | − | − | −45,770.40 |
| Total carbon footprint | − | − | − | − | −43,736.16 |
| Variant | Material for Variants | Average Market Price [EUR·m−2] | Estimated Cost of External Walls [EUR] |
|---|---|---|---|
| Layer of brick (0.24 thickness) | 45 | 7151.62 | |
| TB | Layer of insulation made of glass wool | 7.55 | 1199.88 |
| Layer of aerated concrete | 13.2 | 2098.00 | |
| Total for TB variant | 10,449.50 | ||
| TH | Hempcrete | 65 | 10,330.125 |
Disclaimer/Publisher’s Note: The statements, opinions and data contained in all publications are solely those of the individual author(s) and contributor(s) and not of MDPI and/or the editor(s). MDPI and/or the editor(s) disclaim responsibility for any injury to people or property resulting from any ideas, methods, instructions or products referred to in the content. |
© 2025 by the authors. Licensee MDPI, Basel, Switzerland. This article is an open access article distributed under the terms and conditions of the Creative Commons Attribution (CC BY) license (https://creativecommons.org/licenses/by/4.0/).
Share and Cite
Mazur, K.E.; Wardal, W.J.; Barwicki, J.; Tseyko, M. Thermal Insulation of Agricultural Buildings Using Different Biomass Materials. Energies 2025, 18, 636. https://doi.org/10.3390/en18030636
Mazur KE, Wardal WJ, Barwicki J, Tseyko M. Thermal Insulation of Agricultural Buildings Using Different Biomass Materials. Energies. 2025; 18(3):636. https://doi.org/10.3390/en18030636
Chicago/Turabian StyleMazur, Kamila Ewelina, Witold Jan Wardal, Jan Barwicki, and Mikhail Tseyko. 2025. "Thermal Insulation of Agricultural Buildings Using Different Biomass Materials" Energies 18, no. 3: 636. https://doi.org/10.3390/en18030636
APA StyleMazur, K. E., Wardal, W. J., Barwicki, J., & Tseyko, M. (2025). Thermal Insulation of Agricultural Buildings Using Different Biomass Materials. Energies, 18(3), 636. https://doi.org/10.3390/en18030636

