Next Article in Journal
The Experimental Investigation of the Effects on the Combustion, Performance, and Emission Characteristics of an RCCI Engine Using Methanol/Diesel Fuel
Next Article in Special Issue
Properties of Carbon Fibers as Supercapacitor Electrodes via Electrospinning Using a Blending Solution of Polyacrylonitrile and Bisphenol A
Previous Article in Journal
Hydrothermal Liquefaction Biocrude Stabilization via Hydrotreatment
 
 
Font Type:
Arial Georgia Verdana
Font Size:
Aa Aa Aa
Line Spacing:
Column Width:
Background:
Article

Usage of Microencapsulated Phase-Change Materials to Improve the Insulating Parameters of the Walls of Refrigerated Trailers

Department of Robotics and Mechatronics, Faculty of Mechanical Engineering and Robotics, AGH University of Krakow, al. A. Mickiewicza 30, 30-059 Krakow, Poland
*
Author to whom correspondence should be addressed.
Energies 2024, 17(6), 1439; https://doi.org/10.3390/en17061439
Submission received: 12 February 2024 / Revised: 7 March 2024 / Accepted: 12 March 2024 / Published: 16 March 2024

Abstract

Climate change is forcing action to reduce energy consumption and greenhouse gas emissions. An extremely important area of high-polluting energy consumption is material transport and, within this, the transport of chilled goods, including deep-frozen goods, is an important contributor. Phase change materials (PCMs) can have an important role in reducing energy consumption for the transport of chilled goods, but the current state of knowledge is not sufficient to bring the solution into popular use. This article includes a study of the effect of implementing microencapsulated PCM (mPCM) in polyurethane foam (PU) on the insulation performance of refrigerated trailer walls in low-temperature transport. In this research, mPCM was used, characterised by a phase-change heat in the range of 170–195 k J k g and a phase change temperature in the range from −10 °C to −9 °C. The studies performed show the potential of using mPCMs to improve the insulation performance of the walls of refrigerated trailers. Containing mPCM in the amount of 5.0% wt. placed throughout the entire volume of the wall can improve thermal conductivity of the wall for up to 15% in peak and 4.5% (0.2792 W m 2 K without mPCM and 0.2665 W m 2 K with mPCM) in the phase change temperature range. Out of the range of phase change temperatures, the thermal conductivity of the wall with mPCM is worse for 2.72% than in walls without PCM. Problems that need to be tackled were also identified, before the solution can be put into everyday use, i.e., finding the technology to increase the proportion of mPCMs relative to PU.

1. Introduction

The observed dynamic economic development generates increasing energy consumption in various forms. According to Eurostat data, in 2021, energy from petroleum products accounted for the largest percentage (up to 34.6%) of all types of energy used. It is followed by natural gas (23.2%), with almost identical consumption to electricity (22.8%). The share of renewable energy sources is still growing, but in 2021, they accounted for only 11.8% of the share. However, it is necessary to remember that only energy that has not been converted to electricity is counted, so the actual share of renewable energy will be higher and hidden in electricity [1].
It should be noted that the transport sector is responsible for 29% of energy consumption and is the most energy-intensive area, followed by energy consumption in households (28%) and industry (26%). The last places are taken by services (14%) and agriculture and forestry (3%) [2]. According to estimates, global transport of goods at low temperatures is responsible for approximately 14% of the total amount of CO2 emitted [3] and a very important point of energy consumption are diesel-powered refrigeration systems, which are responsible for almost 40% of these emissions [4].
The size of the problem of energy usage and emissions of greenhouse gas in the supply chain has long led many researchers to try to reduce the environmental impact of this industry [5,6,7,8,9,10]. Already in 2008, S. A. Tassou [11] et al. conducted an analysis of available technologies and possibilities that will contribute to reducing the environmental impact of road transport. The solutions mentioned included technologies such as absorption systems [12,13] and adsorption systems [14] for food transport, thermoelectric cooling and energy generation, or air circulation cooling [15]. Currently, the most prospective approach to the problem seems to be the elimination of low-efficiency and high-emission diesel units in favour of the use of high-efficiency central generation using thermal energy storage (cooling storage), which is increasingly popular and of interest to researchers [5,7,8]. Basically, this can be performed in two ways [16]:
(a)
Integrating them with the walls of trailers (improving the insulation of the walls of refrigerated trailers) [6];
(b)
As a cooling source for the refrigeration system [5].
There can also be hybrid solutions that combine increased wall insulation with the implementation of cold energy storage inside the trailer wall [7,8].
Phase change material (PCM) is increasingly used in refrigerated trailers, mainly in the form of cold storage, accumulating energy in the form of latent heat. PCMs are characterized by the ability to accumulate large amounts of heat energy during phase change processes. By using the latent heat, high energy storage density can be achieved per mass and volume unit [17]. This aspect is particularly important in refrigerated vehicles because one of the main aspects of transport is to reduce semi-trailer weight. Another important feature of PCM is the phase transformation that occurs at a specified temperature, which allows the material to transfer or absorb thermal energy at a constant temperature and allows passive cooling [17]. Using latent heat associated with precisely defined temperatures, significant amounts of energy can be stored in a small range of temperatures, which is particularly important in refrigeration applications because all cold storages should operate in a narrow temperature range.
It should be stressed that, in most materials, it is possible to use PCM to improve refrigeration transportation efficiency, considering the phase transformation of solids to liquids and liquids to gases. From the point of view of the design of PCM storage in refrigerated trailer walls, a particularly interesting type of phase transformation is solid–liquid transformation, which is not related to a significant volume change and therefore increases pressure [17].
Research conducted so far on the use of PCM in refrigerated transport has largely focused on solutions based on a central tank with a PCM bed. Liu et al. [5] conducted research on such a solution, and developed a central tank cooling system with a PCM bed and a cooling system that forced the internal air flow inside the trailer and distributed the cold. This solution eliminated the need for refrigeration units mounted on the trailer, but due to forced air circulation, it could not be considered a completely passive system. Testing showed that this method was justified because it allowed the required temperature to remain inside the trailer for a specified period of time, and that the mass of the PCM tank was comparable to that of the refrigeration unit. The use of the solution described reduced energy consumption by 50% to maintain temperature.
Subsequent research was conducted by A. Mousazade et al. [18], who proposed the use of PCM-filled plates with a built-in heat exchanger, which was a storage facility in the semi-trailer cooling system and could eliminate the increase in temperature in the semi-trailer. The team’s results were also promising, and showed that, depending on the type of PCM used, a semitrailer using such a system could travel less than 500 km without the refrigeration unit operating. Salgaonkari et al., in 2016 [19], attempted to use eutectic plates. The eutectic used by the team was characterised by a phase change temperature below 0 °C. The use of plates was intended to create a passive cooling system and eliminate the refrigeration unit. The research results were highly promising because it was possible to reduce the costs of using the refrigeration unit by up to 86.4%.
Another approach to PCM use of PCM was proposed by Fioretti et al. [7] and Copertaro et al. [20], who placed PCM in the form of a layer located on the outer side of the wall. The research team led by Fioretti [7] examined a solution dedicated to refrigerated containers, but in this case, the thermal energy (cold) can be used in a similar way to that used in refrigerated trailers. They used PCM with a phase change temperature of 35 °C to absorb the thermal energy penetrating inside, through the PCM layer.
The advantage of this solution is its versatility, allowing you to maintain any temperature in containers, but the main disadvantage is that it does not work on days where the temperature does not exceed 35 °C and there is no direct sunlight.
A similar approach to the use of PCM in the walls of refrigerated trailers was also carried out, among others, by L. Huang and U. Piontek. [8]. They took the responsibility to study the impact of using two PCMs (water and commercial OP5E material from Ruhr New Material Technology Co., Ltd., Hangzhou, China), which were to operate under conditions between 2 °C and 8 °C. The material was placed inside of the wall, and the results turned out to be very promising.
Research conducted so far has focused on the application of PCM in the form of a layer. This topic has been extensively investigated, including the impact of the location of the PCM layer in the wall or its amount on the effectiveness of the wall of the refrigerated trailer chamber. Another way of using PCM in refrigerated transport was presented by Michel et al. [6], who focused on the application of PCM as one of the elements of the walls of refrigerated trailers, next to the standardly used polyurethane foam (PU). In such circumstances, one of its tasks is to increase the insulation of trailer walls, and at the same time, an appropriate application of PCM can provide a beneficial effect in the form of latent energy storage.
Michel et al. [6], during their study, analysed two composites with different PCM content and tested their thermal conductivity. They decided to place PCM in two mass concentrations relative to the total wall mass, in the form of a layer in a different part of the wall (closer to the outer or inner part of the wall). Researchers have shown that, when using a layer of PCM in the form of a composite consisting of PU and PCM, it is possible to achieve significant increase in wall insulation, which effects in energy savings in comparison to a classic wall made of PU, but the savings and their level are closely related to the location of the PCM in the wall. The approach presented by Michel et al. [6] in their research is very interesting because it eliminates the need to install additional elements in the trailer (tanks, heat exchangers) and simplifies the construction of the trailer, which is an advantage while taking into account possibility of implementation of this solution in mass production of refrigerated trailers. A similar solution was tested by Y. Pu et al. [21]. They have conducted research on the possibility of using ethylcellulose to create cold storage microcapsules and operate in the temperature range from 0 °C to 7 °C.
The research conducted so far has very modestly analysed the possibilities of implementing PCM in the form of microcapsules into PU, thereby creating a new insulating material, especially for transport of deep-frozen goods. The mentioned studies performed by Michel et al. [6] and Y. Pu et al. [21] are the only ones dedicated to the transport sector, but the proposed solutions, despite their intended use for refrigerated transport, were based on PCM with a melting point over 0 °C, which seems to be a bit too high to meet the requirements used in industry in the field of deep-frozen refrigerated transport.
Apart from the research gap in the use of microencapsulated PCMs (mPCMs) in combination with PU foams in deep-frozen transport, research on the integration of mPCMs with other materials for increasing insulation parameter have been ongoing for many years. Previous research most often referred to their use in the construction industry sector. For example, Abbas H.M. et al. [22] examined the influence of mPCM on the insulating properties of building blocks by testing analogous chambers made of hollow brick walls without and with mPCM. The results of experimental tests and simulations have shown that the use of mPCM in the construction of walls can bring tangible benefits in the form of lowering the temperature inside the chamber by approximately 4.7 °C, delaying the heating process by 2 h, and reducing temperature fluctuations by almost 24%.
Another study focussing on the integration of mPCM with building materials was carried out by the research team of Ong P.J. et al. [23]; in their work, they addressed the effect of coating made of mPCM and glass bubbles (GB) on the insulation of mortar panels and the possibility of reducing the temperature inside the test chambers. The results indicated that the use of mPCM covering in combination with GB allowed for a significant reduction in the temperature inside the chamber (about 3 °C), as well as the panel surface (−5–7 °C).
Research carried out for the purposes of this publication is another element of the research described in the publication by K. Zdun and T. Uhl [24], in which the possibilities of improving the properties of the walls of refrigerated trailers, in the case of temperatures lower than −10 °C, were tested using PCM in the form of a layer. The conducted research proved that, by applying a sufficiently thick PCM layer to wall, passive, low-temperature cooling of a refrigerated trailer is possible for a long period of time. However, researchers identified problems with mass production of trailers using the proposed solution. The fact that previous work has rarely included the use of mPCM in trailer walls, and that there are no studies that cover the behaviour of the material at negative temperatures, prompted researchers to consider the possibility of using mPCM in the walls of refrigerated trailers for the transport of deep-frozen goods.
The work carried out to date contains little research into the effects of mPCMs on the insulation performance of refrigerated trailer walls. Works presented above include studies of mPCMs at higher temperatures (above 0 °C), but not lower, and do not include their implementation in PU. The aim of this project is to create refrigerated trailer walls that use cold storage incorporating mPCM implemented in the PU. This text contains a wide spectrum of research that covers the scope of mPCM wall structure preparation and a description of research that focusses on the implementation of mPCM and its impact on the insulating and energy storage properties. The researchers want to create a solution suitable for use in the transport of materials subject to Agreement on the International Carriage of Perishable Foodstuffs and on the Special Equipment to be Used for such Carriage (fr. ATP) for non-mechanically cooled means of transport, proposed the integration of the traditionally used wall of a refrigerated trailer made of PU with mPCM with a phase change temperature of −10 °C.

2. Materials and Methods

The standard walls of refrigerated trailers are made of PU sandwiched between two layers of steel sheet (sandwich construction), where the thickness of the individual layers may change. The outer layers should provide protection to the inner layer and guarantee the required strength. They are usually made of metal sheet or laminate, which provides protection against weather conditions and external forces acting on the walls of the trailer. The core is responsible for ensuring the required insulating parameters of the structure, and PU, expanded polystyrene, or vinyl foam are generally used to produce it, with PU being the most popular because it allowed the production of self-supporting refrigerated bodies as an alternative to standard construction [25].
The authors of the study decided to use the classic sandwich wall structure filled with PU (approx. 60% isocyanate and 40% polyol), modified by introducing mPCM. PCM is designed to store thermal energy and temporarily reduce the thermal conductivity.

2.1. Wall Design

Placing PCM on the walls of refrigerated trailers is possible in several ways. As a result of the lack of research on the application of PCM in the form of microcapsules for use at low temperatures, the authors decided to make several wall structures that differed in the amount of mPCM applied and its arrangement in the wall structure (shown in Figure 1). A control wall and three test walls were constructed. The first wall was filled in its entire volume with PU, with the addition of microcapsules in an amount of 2.5% by polyole’s mass concentration; the second was also fully filled with a mixture of PU and mPCM, but with a mass fraction of mPCM of 5.0% by polyole’s mass concentration; and the third wall was filled with PU and mPCM with a mass fraction of 5% by polyole’s mass concentration, placed half the thickness of the wall (29 mm). The total thickness of the wall did not change, and the thickness and type of the external sheet metal did not change either. The list of completed walls in Stage I is shown in Table 1.

2.1.1. Phase Change Material

In the tested walls, mPCM was used. Rubitherm Mikrocaps RT-9 based on Rubitherm RT-9HC was selected for testing. It is characterized by a phase-change heat in the range of 170–195 k J k g and a phase-change temperature in the range from −10 °C to −9 °C [26] (shown in Figure 2). During previous research conducted by K. Zdun et al. [24], the influence of PCM at a temperature of −24 °C was investigated. Due to the lack of available PCM operating in such a low temperature range that can be subjected to microencapsulation, it was decided to conduct research using PCM operating at a temperature of approximately −10 °C. Each capsule in its dry (integrated) state contains from 75% to 80% PCM by volume.
Material Preparation
The mPCM was delivered by Mikrokaps in the form of an aqueous suspension. The mixing of the material in this state with the PU ingredients was not possible because the addition of water changed the parameters of the resulting PU. For this reason, it was necessary to dry the PCM. To accomplish this task, the freeze-drying method was chosen, which allows efficient and complete removal of water from the mixture. The freeze-drying method was chosen because it involves removing water at low temperature and low pressure, which guaranteed that the PCM would not be destroyed by a too high temperature.
Lyophilization was carried out for 48 h after freezing the material at −40 °C. As a result of freeze drying, a dry mass was obtained, which was then rubbed through a sieve with a mesh of 1 mm. The material thus obtained was mixed with polyol during the creation of the mixture before pouring the wall.
Properly prepared mPCM was added to the PU ingredients at the stage of preparation and then the foam was poured into the mould.
Photographic documentation of the mPCM preparation procedure is shown in Figure 3.

2.2. Wall Preparation

All tested walls were made using a mould provided by Wielton S.A. at the Poznań University of Technology with the participation of Polychem employees. The mould has been adapted to prepare walls with dimensions of 800 × 1000 mm and a thickness of 58 mm. The mould had a heating system installed only in the lower part (no lid heating).
Each wall was made in a similar way, based on the same PU formula obtained using components from Polychem Systems Sp. z o.o. (Poznań, Poland) The process took place in the following stages: a steel sheet was placed at the bottom of the mould, heated to approximately 40 °C, and then PU or PU with mPCM was poured. After the foam was dipped, the second steel sheet was placed on top of the mould. Then, the form was closed with a lid. After about 25 min, the mould was opened, and the wall was removed.
When the wall to be made was filled with a mixture of PU and mPCM in part of the thickness of the wall, the pouring process was divided into two stages. During the first pour, a 29 mm thick insert was placed between the steel sheet and the bottom of the mould, which made it possible to obtain a thinner wall. Then, before the next pouring, the insert was removed.
The pouring process was carried out by manual pouring, without the use of specialised equipment. The use of industrial solutions in the form of high-pressure units would allow for better performance properties of PU.

2.3. Methods

The purpose of testing the thermal properties of the walls of refrigerated trailers was to determine the insulation parameters of the structure, including the thermal conductivity, and to determine the impact of PCM on the change in the thermal characteristics of the structure. Using the wall of a refrigerated trailer with the addition of mPCM with different mass fractions, it was intended to determine the impact of the amount of mPCM on the insulation and storage parameters, while the wall with mPCM placed in half of the volume could be used to compare the impact of mPCM on the insulation and storage capacity of the walls, depending on the arrangement of mPCM (on the side of the cooling chamber or on the outside).
The research described in this publication was carried out in two stages. As originally planned, only one stage was to be performed, based on the use of a test chamber in which only one of the walls was the test wall. The results obtained, however, revealed an imperfection in the test stand, which meant that the effect of the chamber walls, made in the standard version (without PCM implementation), was too significant to be able to assess the effect of the applied mPCM on the insulation of the walls. However, this stage allowed the most promising design of the walls under study to be selected, for which a new test stand of six walls under study was prepared. The second stage of the research was based on the use of the new test stand. During both stages of the investigation, the same measuring system was used, and the measurements themselves were carried out similarly.

2.3.1. Test Stand Characteristics

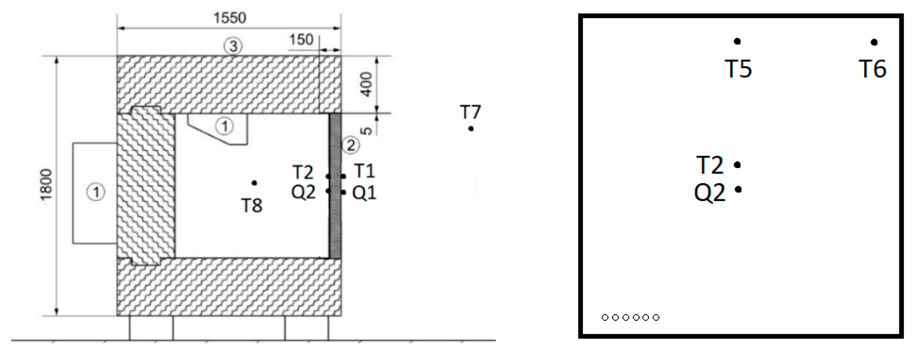
In first stage, a specially prepared climatic chamber, shown in Figure 4, was used. It consists of five, adiabatic, 40 cm thick adiabatic layer walls, filled with mineral wool with a density of approximately 40 k g m 3 and a thermal conductivity of λ = 0.035 W m K , which is used to ensure the isothermal interior of the chamber. Inside the chamber, there is a space with a volume of approximately 1 m 3 , which can be cooled to −30 °C using an integrated thermostatically controlled refrigeration unit of 0.8 kW. The chamber does not have a front wall and, in its place, there is a space intended to place the tested walls. The chamber is placed on supports that distance it from the ground by 68 mm, and its external dimensions are: 1.80 m high × 1.80 m wide × 1.55 m deep.
The test walls had dimensions of 1.00 m high × 0.80 m wide; therefore, to reduce the opening in the chamber, a rectangular insert was made and installed with dimensions of 1.00 m high × 0.20 m wide × 0.15 m deep, filling part of the opening. The method of installing the insert (2) in the chamber (1) is shown in Figure 4.
The research station is equipped with measurement sensors. During the tests, the following were measured: temperature at eight measurement points and heat flux at three measurement points. The data were collected at intervals of 5 s. The measurements were made with the following measurement devices:
  • Eight K-type thermocouples;
  • Three heat flow sensors—Hukseflux HFP01-05;
  • Three data recorders—TandD MCR-4V.
Sensors T3, T4 and Q3 will be placed on the side wall (adiabatic wall), sensors T3 and Q3 on the inside, and sensor T4 on the outside. The arrangement of sensors throughout the chamber was selected based on the publication by Rasooli and Itrad [27] on wall insulation measurements and it is the same as in previous authors research [24]. The heat flow sensor is a control device that, in addition to providing information on the station parameters, allows checking the consistency of the results of subsequent series of measurements. The arrangement of the sensors on the side wall of the chamber is shown in Figure 5.
In second stage, to improve the accuracy of the measurements, a stand in the form of a full chamber made entirely of test walls filled with mPCM and a reference chamber made of classic walls. Walls filled with PU with the addition of mPCM with a mass fraction of 5% were selected for testing. There were also made control chamber containing walls without PCM.
The chamber presented in Figure 6 consists of six identical walls. Within the chambers, there is a space with a volume of approx. 0.884 m3, which can be cooled to −30 °C using an integrated 0.8 kW refrigeration unit controlled by a thermostat. The stand was equipped with measuring devices as the previous ones and placed at the same points on one wall.

2.3.2. Experimental Procedure

To determine the effect of mPCM on the insulation of walls, it was necessary to measure the temperatures inside and outside the test chamber during the experiment, as well as the density of the heat flux flowing through the walls.
In both Stage I and Stage II, the tests began with the assembly of the wall in the chamber or the assembly of the cooling unit in the chamber and the insulation of thermal bridges with PU. Each wall was tested twice—without and with freezing—to check influence of adding mPCM to PU foam without using its latent heat and its ability to store energy. The procedure of each test is presented below:
(1)
Testing without freezing:
(a)
Cooling—lowering the temperature inside the chamber to the min. temperature.
(b)
Relaxation—automatic heating of the air inside the chamber to a temperature of 10 °C.
(c)
Freezing test:
(2)
Cooling—lowering the temperature inside the chamber to the min. temperature.
(a)
Freezing—maintaining the min. temperature in the chamber.
(b)
Relaxation—automatic heating of the air inside the chamber to a temperature of 10 °C.
In the case of Stage I, the minimum temperature was −15 °C, which was determined by the actual capabilities of the test stand. In the second stage, the temperature was −20 °C. Once measurements were completed, the testing procedure was interrupted and testing of the next wall or chamber began.
A total of seven measurements were carried out in Stage I. The test was performed for a control wall (without freezing), four measurements for walls with mPCM in the entire volume (with and without freezing), and two measurements for a wall with mPCM in half the volume (with mPCM on the outside, with and without freezing). The list of tests performed in Stage I is presented in Table 2.
In the case of Stage II, four measurements were performed for a chamber built of control walls without freezing and with preliminary freezing, and for a chamber built of mPCM walls with and without freezing. The list of measurements in Stage II is presented in Table 3.

3. Results

The research results were divided into Stages I and II, which gives a complete picture and provides an easy way to compare them. During the measurements, the temperature at individual measurement points and the heat flow through the tested wall were monitored. Thanks to the recorded values, it was possible to determine the time course of the temperature inside the chamber and the heating time in the defined temperature range. Moreover, the recorded data allowed for the determination of the thermal conductivity of the tested wall and, as a result, an assessment of the impact of the implementation of a PCM on the wall insulation and its ability to store energy.

3.1. Stage I

The temperature curves inside the chamber are measurement results directly downloaded from the recorders, covering the period from a temperature of approximately −15 °C to a temperature of −4.5 °C. The choice of this temperature range was determined by the expectations regarding the range to which the impact of mPCM on the properties of the walls would be visible. These results are presented in Figure 7.
The obtained temperature curves clearly indicate that, in the case of walls in which mPCM was used and were not subjected to freezing, they are characterised by a faster rate of heating of the chamber, which proves that the mere addition of PCM has a negative impact on the insulation of the walls. The differences between individual levels of the amount of mPCM used are small, but noticeable compared to the reference wall.
In the case of walls subjected to freezing, the heating time of the chamber increases compared to that of the reference wall. However, it should be noted that in the initial stage of heating, the temperature course for the frozen walls coincides with the course of the walls without freezing and is steeper than for the reference wall. However, for each of the frozen walls, a point is observed at an inside chamber temperature of approximately −12.5 °C, when the temperature changes significantly and the heating rate of the chamber interior decreases (red circle on Figure 7). This moment is associated with the start of the phase transition.
As a result, the heating time to the set temperature (approx. −4.5 °C) is longer than in the case of the reference wall. It can be noticed that, depending on the number of mPCMs placed in the wall, the total heating time and the temperature course inside the chamber differs. For measurements I.3 and I.7, where the amount of material in the entire wall was similar, the curves are very similar, while in the case of measurement I.5, where the wall containing the most phase-change material was frozen, the heating time is the longest.
The heating time of the interior (presented in Figure 8) also shows that the key influence on the operation of the PCM cooling chamber wall is its amount of mPCM and degree of freezing. In the case of walls containing mPCM that were not subjected to freezing, the heating time of the chamber interior was approximately 35% shorter than in the case of the reference wall (I.2—37.05%, I.4—30.82%, I.6—46.23%). The use of freeze-treated walls increased the heating time of the chamber interior by 23.61% (I.3) and 19.01% (I.7) in the case of walls with a lower PCM content, and by over 55.41% in the case of a wall containing mPCM in the entire volume and mass concentration 5.0% (I.5).
Using heat flow sensors, an attempt was made to determine the thermal conductivity of the test wall. The value of the heat flux fluctuates significantly during the experiment, and there are even moments when it becomes negative, which could only occur when heat flows from the inside to the outside, and this is not possible because of the higher temperature outside. Therefore, it is not possible to attach significant importance to the results presented, or subject them to detailed analysis to draw conclusions. The inaccuracies in the measurement of the results of the thermal conductivity did not allow determining the thermal insulation and thermal capacity of the wall, so it was decided to attempt to perform the test in Stage II, with the changed construction of the test stand.

3.2. Stage II

Due to the availability of resources, for the second stage, where the tests were performed in a chamber fully made of test walls, it was possible to produce only one chamber with mPCM incorporated and one chamber with reference walls. Based on results of first stage, it was decided to use wall made of PU filled with PCM in the form of microcapsules in the entire volume and mass concentration 5.0%, as it showed the best performance. According to Table 3, in the second stage, four measurements were made: two for the chamber made of reference walls, and two for the chamber made of tested walls.
The construction of a new test stand, which had not been used before, allowed reaching of stable thermal conditions inside the chamber and better thermal insulation. Thanks to that fact, during the second stage, it was possible to reach a lower temperature, down to −20 °C. Due to cooling equipment controller, the temperature inside fluctuated in the range from −15 °C to −20 °C. The temperature curves for all four measurements are presented in Figure 9, and during chamber heating in Figure 10.
Measurement of the heating time from −20 °C to a temperature of 0 °C (shown in Figure 11) confirms the validity of the results obtained in Stage I. Exactly as before, the wall containing mPCM, without freezing, was characterised by a shorter heating time of the chamber interior than the reference wall, whereas in the case of freezing, the chamber heating time was longer. However, the measured differences in the heating time of the chamber interior were lower than in the case of tests in stage I. The reduction in heating time for a wall made of mPCM without freezing was 8.41%, while the extension of this time after freezing was 4.58%. When analysing the results, it should also be noted that, as expected, in the case of the reference wall without mPCM, freezing had no effect on the chamber heating time (difference less than 1%).
The chambers created for Stage II were characterised by significantly lower heat losses through thermal bridges, and the stable conditions obtained inside and outside the chamber allowed the determination of the thermal conductivity of the wall. The coefficient was determined in 5 s intervals, according to the methodology below. It was decided to determine coefficients of K as the quotient of heat flux outside the wall (Q2) for the temperature on the outer (T1) and inner surfaces (T2). The coefficient was determined according to the following formula.
K = Q 2 T 1 T 2 W m 2 K
K —thermal conductivity of the wall W m 2 K ;
Q 2 —heat flux at the sensor Q2 W m 2 ;
T 1 —temperature at the outer surface of the wall [°C];
T 2 —temperature at the inner surface of the wall [°C].
The thermal conductivity K was determined for each measurement point. From the point of view of the purpose of the investigation, the most interesting is the comparison of the K coefficient for measurements II.2 and II.4, which are presented in Figure 12. They indicate that, in the case of the reference wall, the thermal conductivity K remains constant during the entire heating of the chamber interior, while in the case of a wall containing mPCM and subjected to freezing, three temperature ranges are clearly visible, during which the value of the thermal conductivity K behaves differently (Figure 13). In the first range, which corresponds to temperatures from −19.5 °C to −10 °C (phase transformation initiation temperature), the PCM contained in the wall is in a solid state, and the value of the thermal conductivity K is noticeably higher than in the case of the reference wall. In the second temperature range, falling within the phase transformation temperature range of the RT-9 material, the value of the coefficient decreases significantly, reaching a minimum at a temperature of approximately −9 °C (red circle on Figure 12). In the third temperature range (above −8 °C), when the PCM is in a warm state, the values of the thermal conductivity K for the reference wall and the wall proposed by the authors of this study are very similar.
Due to the above observations, the average value of the thermal conductivity K was determined for each of the walls tested in the following ranges: the entire test (from −19.5 °C to 0 °C), until phase transformation began (from −19.5 °C to −10 °C), phase change (from −10 °C to −8 °C), and after phase change (from −8 °C to 0 °C). The results are presented in Table 4 and in Figure 14 and Figure 15.
Thanks to the analysis of the results presented in Table 4 and Figure 14 and Figure 15, it is possible to notice several regularities. In the case of measurement II.3, in each of the temperature ranges, a significantly higher value of the thermal conductivity K is observed. The smallest difference can be noticed in the temperature range from −8 °C to 0 °C when, in the case of the wall subjected to freezing (II.4), the material the phase change has already been melted.
The most interesting observation is the decrease in the value of the thermal conductivity K in the temperature range corresponding to the phase transformation. In this entire range, during measurement II.4, the average value of the K coefficient was 0.2665 W m 2 K , and was 4.55% lower than in the case of the reference wall (II.2), while this coefficient reached the minimum value of 0.2374 W m 2 K , which was 14.98% lower than in the case of the reference wall.

4. Discussion

The research carried out as part of this work and its results clearly indicate that the use of PCM in the form of microcapsules added to PU in the walls of refrigerated trailers allows for improvement of their insulating properties, but under certain precisely defined conditions and for a certain period of time.
The first stage of the work allowed us to observe two regularities, which were also confirmed in the second stage of the research. The addition of mPCM to walls that were not subsequently frozen worsens their insulating properties, which was manifested by a shorter heating time of the interior of the test chamber compared to the test with a reference wall without the addition of mPCM. The situation changed when the prepared walls with PCM were frozen. In this case, the heating time of the chamber interior was extended.
The amount of PCM used had a clear influence on the degree of extension of the heating time of the chamber interior. In the case of walls in which less PCM was used (2.5% by weight in the entire volume and 5% in half the volume), a very similar increase in the heating time of the chamber interior was achieved (by about 20%), while in the case of the wall in which mPCM was used in an amount of 5% by mass in the entire volume of the wall, this time was extended by over 55%. The obtained results are consistent with the expectations that when a larger amount of PCM is used, a greater thermal capacity of the wall will be obtained, and thus the period of its increased insulation will be longer.
The results of the first stage also indicate that the method of implementing mPCM in the wall is not important, because when the amount of PCM enclosed in the wall was similar, the improvement in the heating time of the chamber interior was very similar. Considering the fact that preparing a wall with layers, in which one contains mPCM and the other does not, is relatively difficult, especially on an industrial scale, the use of layering is not justified.
The conditions under which the first stage of the investigation was carried out and the configuration of the test stand did not allow a quantitative determination of the influence of the PCM on the wall parameters. Based on the test results, it was only possible to determine the heating time of the chamber interior, but it was not possible to determine the influence of the tested wall itself and the remaining walls of the test chamber. Therefore, in the second stage of the research, chambers consisting only of the tested walls were built.
The tests carried out during Stage II were aimed at obtaining results with the maximum exclusion of disturbing factors, such as thermal bridges and walls of a structure other than the test ones. This effect was achieved, which is confirmed by very stable temperature courses inside the chamber for all tests performed. The results obtained during the second stage of the investigation, in which chambers composed entirely of the tested walls were used, confirm the results obtained in the first stage of the investigation.
They indicate that the use of a 5.0% addition of PCM allows for an extension of the heating time of the chamber interior and a periodic reduction in the thermal conductivity K when the wall is subjected to freezing.
The obtained results indicate that thanks to the microcapsules with PCM that were frozen, it was possible to extend the time during which the chamber was heated, but this time was only extended by about 4.5%, which is not a value that would allow for a sufficiently long transport time.
A periodic decrease in the value of this coefficient clearly indicates the effect of a PCM, because it is observed precisely in the temperature range of the phase transformation. The recorded results are consistent with expectations, because during the phase change, the material absorbs thermal energy penetrating from the outside into the chamber.
A rather big obstacle related to the use of mPCM in walls made of PU is the fact that the addition of microcapsules itself worsens their insulating properties if they are not subjected to freezing, and even if they are frozen, being in a solid state, they significantly deteriorate the value of the K coefficient until the phase transition begins. It means that if the proposed solution is used in a real refrigerated trailer, with such a low concentration of PCM, the losses associated with reducing the level of wall insulation outside the temperature range corresponding to the phase change will exceed the gains obtained during the phase change.

5. Conclusions

The use of PCM in the construction of refrigerated trailer walls is a potential development area for emission-free refrigerated trailers. Research carried out shows that the implementation of PCM in the form of microcapsule in the structure of the walls of refrigerated trailers can bring real benefits in the form of improving the insulating properties of the walls, but within a limited scope and duration of operation, which depend primarily on the amount of PCM used.
Currently, the amount of PCM that can be applied in the form of microcapsules is limited by its impact on the mechanical properties of the obtained PU. PU with the addition of 5.0% microcapsules containing PCM in relation to the weight of polyol used in this study does not allow a long-term effect of increasing the insulation of walls, which would allow for a significant reduction in energy consumption during deep frozen transport or would enable passive cooling during transport.
In addition, the process of creating PU from mPCM requires additional technological procedures, such as the drying and freezing of mPCM. It should also be remembered that the drying of mPCM with a low phase-change temperature is limited because of the risk of overheating of the mPCM during drying, resulting in its degradation and loss of thermal properties.
The observations and conclusions presented in this text are limited to a specific mPCM placed in a PU wall with a specific formulation. The tests were carried out under limited temperature conditions, which were conditioned by the selected mPCM (the temperature depended on the phase transformation temperature). If PU as well as mPCM with different thermal conductivity coefficients or different heat capacity and phase transformation heat are used, the observed regularities may change.
To further develop the construction of PCM walls, it is worth conducting research which should focus on developing a PU recipe in which a larger mass of PCM can be placed in relation to the mass of PU. This would allow for the creation of a wall of a refrigerated trailer, useful in industry, which will become a passive source of cold. Wall will have the opportunity to eliminate the need to use refrigeration units on the trailer or reduce energy consumption during transport. As a result, it will reduce the ecological effect of transport by increasing the efficiency of cold production and by increasing the use of renewable energy when freezing the trailer at the loading point.

Author Contributions

Conceptualization, T.U.; methodology, K.Z. and P.R.; software, P.R.; validation, K.Z. and P.R.; formal analysis, K.Z. and P.R.; investigation, K.Z. and P.R.; resources, T.U.; data curation, K.Z. and P.R.; writing—original draft preparation, K.Z. and P.R.; writing—review and editing, K.Z., P.R. and T.U.; visualization, P.R.; supervision, T.U.; project administration, K.Z.; funding acquisition, T.U. All authors have read and agreed to the published version of the manuscript.

Funding

This research was funded by the National Centre of Research and Development Grant number POIR.01.02.00-00-0216/16-00 titled; Development of Design and manufacturing technology for refrigerated box semi-trailer for transport of goods in refrigerated conditions.

Data Availability Statement

Data are contained within the article.

Acknowledgments

The authors thank the National Centre of Research and Development for financial support. Thanks to Wielton SA, for supporting the building of the experimental setup.

Conflicts of Interest

The authors declare no conflicts of interest.

References

  1. Eurostat. Shedding Light on Energy in the EU. 2023. Available online: https://ec.europa.eu/eurostat/web/interactive-publications/energy-2023#energy-consumption (accessed on 6 February 2024).
  2. Eurostat. What Kind of Energy Do We Consume in the EU? Available online: https://ec.europa.eu/eurostat/cache/infographs/energy_2022/bloc-3a.html?lang=en (accessed on 14 February 2024).
  3. Dekker, R.; Mallidis, I.; Bloemhof, J. Operations Research for green logistics—An overview of aspects, issues, contributions and challenges. Eur. J. Oper. Res. 2012, 219, 671–679. [Google Scholar] [CrossRef]
  4. Tassou, S.A.; Ge, Y.T.; De-Lille, G. Food transport refrigeration—Approaches to reduce energy consumption and environmental impacts of road transport. Appl. Therm. Eng. 2009, 29, 1467–1477. [Google Scholar] [CrossRef]
  5. Liu, M.; Bruno, F.; Saman, W. Development of a novel refrigeration system for refrigerated trucks. Appl. Energy 2012, 92, 336–342. [Google Scholar] [CrossRef]
  6. Michel, B.; Chauvelon, P.; Fuentes, A.; Glouannec, P. Experimental and numerical study of insulation walls containing a composite layer of PU-PCM and dedicated to refrigerated vehicle. Appl. Therm. Eng. 2017, 116, 382–391. [Google Scholar] [CrossRef]
  7. Fioretti, R.; Coperato, B.; Principi, P. A refrigerated container envelope with a PCM (Phase Change Material). Energy Convers. Manag. 2016, 122, 131–141. [Google Scholar] [CrossRef]
  8. Huang, L.; Piontek, U. Improving Performance of Cold-Chain Insulated Container with Phase Change Material: An Experimental Investigation. Appl. Sci. 2017, 7, 1288. [Google Scholar] [CrossRef]
  9. Stellingwerf, H.M.; Kanellopoulos, A.; van der Vorst, J.G.; Bloemhof, J.M. Reducing CO2 emissions in temperature-controlled road. Transp. Res. Part D 2018, 58, 80–93. [Google Scholar] [CrossRef]
  10. James, S.J.; James, C. The food cold-chain and climate change. Food Res. Int. 2010, 43, 1944–1956. [Google Scholar] [CrossRef]
  11. Tassou, S.A.; Ge, Y.T. Reduction of refrigeration energy consumption and environmental impacts in food retailing. In Handbook of Water and Energy Management in Food Processing; Woodhead Publishing: Sawston, UK, 2008; pp. 585–611. [Google Scholar]
  12. Koehler, J.; Tagethoff, W.J.; Westphalen, D.; Sonnekalb, M. Absorption refrigeration system for mobile applications utilizing exhaust gases. Heat Mass Transf. 1997, 32, 333–340. [Google Scholar] [CrossRef]
  13. Horuz, I. An alternative Road Transport Refrigeration. Turk. J. Eng. Environ. Sci. 1998, 22, 211–222. [Google Scholar]
  14. Christy, C.; Toossi, R. Adsorption Air-Conditioning for Containerships and Vehicles; Metrans Report 00-7; METRANS: Los Angeles, CA, USA, 2004. [Google Scholar]
  15. Spence, S.W.T.; Doran, W.J.; Artt, D.W. Design, construction and testing of an air aircycle refrigeration system for road transport. Int. J. Refrig. 2004, 27, 503–510. [Google Scholar] [CrossRef]
  16. Selvens, H.; Allouche, Y.; Manescu, R.I.; Hafner, A. Review on cold thermal energy storage applied to refrigeration systems. Therm. Sci. Eng. Prog. 2021, 22, 100807. [Google Scholar] [CrossRef]
  17. Pielichowska, K.; Pielichowski, K. Phase change materials for thermal energy storage. Prog. Mater. Sci. 2014, 65, 67–123. [Google Scholar] [CrossRef]
  18. Mousazade, A.; Rafee, R.; Valipour, M.S. Thermal performance of cold panels with phase change materials in a refrigerated truck. Int. J. Refrig. 2020, 120, 119–126. [Google Scholar] [CrossRef]
  19. Salgaonkari, C.P.; Kulkarni, R.S.; Kulkarni, D.D. Eutectic: Phase Change Material for Food Storage. Int. J. Curr. Eng. Technol. 2016. Available online: https://inpressco.com/wp-content/uploads/2016/03/Paper1999-101.pdf (accessed on 14 February 2024).
  20. Copertaro, B.; Principi, P.; Fioretti, R. Thermal performance analisis of PCm in refrigerated container envelopes in the Italian context–Numerical modeling and validation. Appl. Therm. Eng. 2016, 102, 873–881. [Google Scholar] [CrossRef]
  21. Pu, Y.; Fang, J.; Du, Y. Preparation and Characterization of Reusable Water/Ethylcellulose Phase Change Cold Storage Microcapsules With High Latent Heat. Colloids Surf. A Physicochem. Eng. Asp. 2021, 633, 127833. [Google Scholar] [CrossRef]
  22. Abbas, H.M.; Jalil, J.M.; Ahmed, S.T. Experimental and numerical investigation of PCM capsules as insulation materials inserted into a hollow brick wall. Energy Build. 2021, 246, 111127. [Google Scholar] [CrossRef]
  23. Ong, P.J.; Lum, Y.Y.; So, X.Y.D.; Wang, S.; Wang, P.; Chi, D.; Liu, H.; Kai, D.; Lee, C.-L.K.; Yan, Q.; et al. Integration of phase change material and thermal insulation material as a passive strategy for building cooling in the tropics. Constr. Build. Mater. 2023, 386, 131583. [Google Scholar] [CrossRef]
  24. Zdun, K.; Uhl, T. Improvement of Properties of Insulated Wall for Refrigerated Trailer—Numerical and Experimental Study. Energies 2021, 15, 51. [Google Scholar] [CrossRef]
  25. Perz, K.; Mamoński, Ł.; Rewolińska, A. Wpływ barwy nadwozia chłodniczego na jego parametry cieplne. Eksploat. Testy 2018, 12. Available online: https://yadda.icm.edu.pl/baztech/element/bwmeta1.element.baztech-37bf4862-4068-4ddc-b35c-2e104a22073e/c/perz.pdf (accessed on 14 February 2024). [CrossRef]
  26. Rubitherm Technologies GmbH. Data Sheet–Rubitherm RT–9HC. Available online: https://www.rubitherm.eu/media/products/datasheets/Techdata_-RT-9HC_EN_29092020.PDF (accessed on 14 February 2024).
  27. Rassoli, L.A.; Itard, l. In-situ characterization of walls’ thermal resistance: An extension to the ISO 9869 standard method. Energy Build. 2018, 179, 374–383. [Google Scholar] [CrossRef]
Figure 1. Arrangement of mPCM on the walls (blue colour—mPCM, grey–brown colour—PU).
Figure 1. Arrangement of mPCM on the walls (blue colour—mPCM, grey–brown colour—PU).
Energies 17 01439 g001
Figure 2. Enthalpy distribution diagram—RT-9HC [26].
Figure 2. Enthalpy distribution diagram—RT-9HC [26].
Energies 17 01439 g002
Figure 3. Sample of mPCM during material preparation: (a) microcapsules in suspension; (b) microcapsules after freeze-drying; (c) microcapsules after rubbing through a sieve.
Figure 3. Sample of mPCM during material preparation: (a) microcapsules in suspension; (b) microcapsules after freeze-drying; (c) microcapsules after rubbing through a sieve.
Energies 17 01439 g003
Figure 4. Illustrative drawing of the chamber to test the walls of the cold store (Stage I): from the left: method of installing the insert in the chamber ① testing chamber, ② filling insert; photo of whole chamber.
Figure 4. Illustrative drawing of the chamber to test the walls of the cold store (Stage I): from the left: method of installing the insert in the chamber ① testing chamber, ② filling insert; photo of whole chamber.
Energies 17 01439 g004
Figure 5. Arrangement of measurement sensors, from left: cross-sectional view of the laboratory station ① refrigeration unit, ② tested wall, ③ test chamber, view of the inner side of the tested wall.
Figure 5. Arrangement of measurement sensors, from left: cross-sectional view of the laboratory station ① refrigeration unit, ② tested wall, ③ test chamber, view of the inner side of the tested wall.
Energies 17 01439 g005
Figure 6. Schematic drawing of the chamber to test the walls of the cold store (Stage II).
Figure 6. Schematic drawing of the chamber to test the walls of the cold store (Stage II).
Energies 17 01439 g006
Figure 7. Temperature curves, Stage I.
Figure 7. Temperature curves, Stage I.
Energies 17 01439 g007
Figure 8. Heating time to −4.5 °C, Stage I.
Figure 8. Heating time to −4.5 °C, Stage I.
Energies 17 01439 g008
Figure 9. Temperature T8 inside the chamber during whole testing, Stage II.
Figure 9. Temperature T8 inside the chamber during whole testing, Stage II.
Energies 17 01439 g009
Figure 10. Temperature T8 inside the chamber from the chiller switching off, Stage II.
Figure 10. Temperature T8 inside the chamber from the chiller switching off, Stage II.
Energies 17 01439 g010
Figure 11. Heating time in Stage II.
Figure 11. Heating time in Stage II.
Energies 17 01439 g011
Figure 12. Thermal conductivity K, Stage II.
Figure 12. Thermal conductivity K, Stage II.
Energies 17 01439 g012
Figure 13. Thermal conductivity K and temperature T8–II.4.
Figure 13. Thermal conductivity K and temperature T8–II.4.
Energies 17 01439 g013
Figure 14. Mean thermal conductivity in temperature ranges (II.2 and II.4).
Figure 14. Mean thermal conductivity in temperature ranges (II.2 and II.4).
Energies 17 01439 g014
Figure 15. Mean thermal conductivity in temperature ranges (II.3 and II.4).
Figure 15. Mean thermal conductivity in temperature ranges (II.3 and II.4).
Energies 17 01439 g015
Table 1. List of completed walls.
Table 1. List of completed walls.
Wall NumberWall Description
1Control wall—without mPCM
2Wall containing mPCM in the amount of 2.5% wt. placed throughout the entire volume of the wall.
3Wall containing mPCM in the amount of 5.0% wt. placed throughout the entire volume of the wall.
4Wall containing mPCM in the amount of 5.0% wt. placed in a 29 mm thick wall layer near the sheet metal surface.
Table 2. List of measurements in Stage I.
Table 2. List of measurements in Stage I.
Measurement NumberWall TypeFreezing
I.1Control wall—without mPCMNo
I.2Wall with 2.5% by weight microcapsules, distributed throughout the volume.No
I.3Wall with 2.5% by weight microcapsules, distributed throughout the volume.Yes
I.4Wall with 5.0% by weight microcapsules, distributed throughout the volume.No
I.5Wall with 5.0% by weight microcapsules, distributed throughout the volume.Yes
I.6Wall with 5.0% by weight microcapsules, distributed in half the volume, PCM outsideNo
I.7Wall with 5.0% by weight microcapsules, distributed in half the volume, PCM outsideYes
Table 3. List of measurements in Stage II.
Table 3. List of measurements in Stage II.
Measurement NumberWall TypeMinimum Temperature Maintenance Time [h]
II.1Control wall—without mPCM0
II.2Control wall—without mPCM2
II.3Wall with 5.0% wt. microcapsules, distributed in half the volume0
II.4Wall with 5.0% wt. microcapsules, distributed in half the volume12
Table 4. Thermal conductivity K in temperature ranges—II.1–II.4.
Table 4. Thermal conductivity K in temperature ranges—II.1–II.4.
From −19.5 °C to 0 °CFrom −19.5 °C to −10 °CPhase Change Temperature Range (from −10 °C to −8 °C)From −8 °C to 0 °C
II.10.29730.29860.29040.2978
II.20.28650.27150.27920.2935
II.30.32250.36580.30280.3093
II.40.29430.28670.26650.3018
Disclaimer/Publisher’s Note: The statements, opinions and data contained in all publications are solely those of the individual author(s) and contributor(s) and not of MDPI and/or the editor(s). MDPI and/or the editor(s) disclaim responsibility for any injury to people or property resulting from any ideas, methods, instructions or products referred to in the content.

Share and Cite

MDPI and ACS Style

Zdun, K.; Robakowski, P.; Uhl, T. Usage of Microencapsulated Phase-Change Materials to Improve the Insulating Parameters of the Walls of Refrigerated Trailers. Energies 2024, 17, 1439. https://doi.org/10.3390/en17061439

AMA Style

Zdun K, Robakowski P, Uhl T. Usage of Microencapsulated Phase-Change Materials to Improve the Insulating Parameters of the Walls of Refrigerated Trailers. Energies. 2024; 17(6):1439. https://doi.org/10.3390/en17061439

Chicago/Turabian Style

Zdun, Konrad, Piotr Robakowski, and Tadeusz Uhl. 2024. "Usage of Microencapsulated Phase-Change Materials to Improve the Insulating Parameters of the Walls of Refrigerated Trailers" Energies 17, no. 6: 1439. https://doi.org/10.3390/en17061439

APA Style

Zdun, K., Robakowski, P., & Uhl, T. (2024). Usage of Microencapsulated Phase-Change Materials to Improve the Insulating Parameters of the Walls of Refrigerated Trailers. Energies, 17(6), 1439. https://doi.org/10.3390/en17061439

Note that from the first issue of 2016, this journal uses article numbers instead of page numbers. See further details here.

Article Metrics

Back to TopTop