The Influence of Selected Parameters of the Mathematical Model on the Simulation Performance of a Municipal Waste-to-Energy Plant Absorber
Abstract
1. Introduction
- Research work on simplified models of absorbers used in semi-dry flue gas treatment processes generated at WtE plants is significantly limited. The use of relevant data presenting the performance parameters of absorbers operating in industrial thermal waste treatment plants could undoubtedly support the wider development of such work.
- The relevant parameters of absorbers working in professional WtE installations are very difficult to access publicly. This makes it significantly more difficult to use them in research work with a purpose similar to this manuscript.
- For the case under study, no comparisons were made for the global and local steps.
- The literature on the tested absorbers did not compare simulation times for simplified geometries with real results.
- The literature sources reviewed do not show the impact of the simplifications of absorber parameters on the performance of the absorber. This includes changes in the geometry, design, and mathematical model of the absorber. The complex geometry and process require multiple components and an appropriately adopted time step.
- Scrubber design does not use simplified models. They take too long to simulate.
- No model simplified enough has been presented. It should serve as a basis for numerical calculations. It must consider the reactions of selected chemical compounds.
2. Measurement Results at Waste-to-Energy Plants
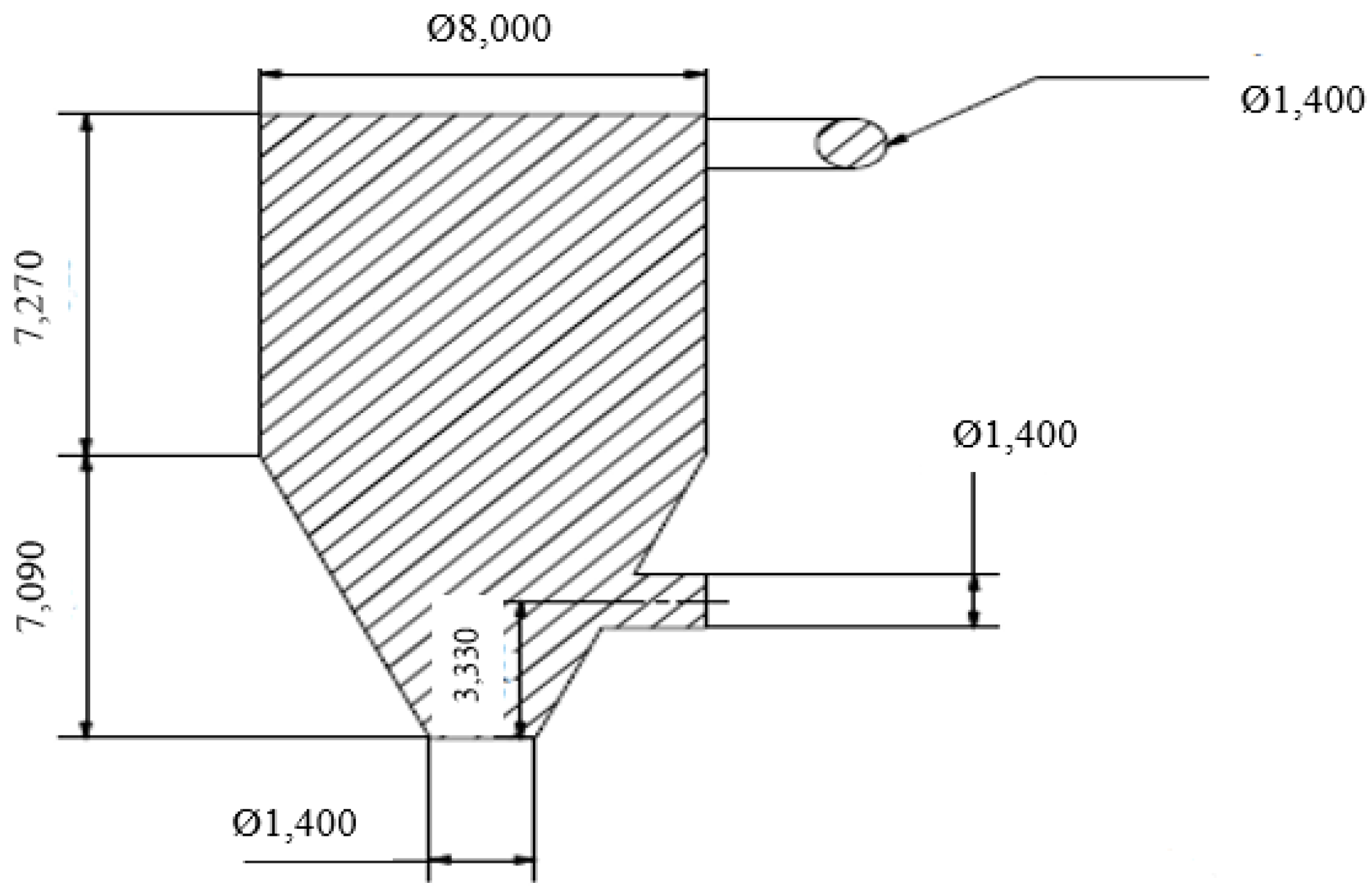
3. Numerical Calculations
- The settings and assumptions included in the OpenFOAM program;
- The adopted geometry of basic structural elements, i.e., meshes;
- Numerical results in the tables and graphs of selected cases.
- P—pressure [Pa];
- p_rgh—hydrostatic pressure [Pa];
- U—velocity [m/s];
- T—temperature [K];
- Chemical compounds, including, for example, N2 or O2 depending on the modelling goal.
4. Results
5. Conclusions
Author Contributions
Funding
Data Availability Statement
Conflicts of Interest
Appendix A



| Basic Mesh | High Density Mesh | |||||||||||||||
|---|---|---|---|---|---|---|---|---|---|---|---|---|---|---|---|---|
| Number of mesh elements | 643,608 | 1,652,450 | ||||||||||||||
| Measurement | I | II | III | IV | I | II | III | IV | ||||||||
| Time step type | ATS | LTS | ATS | LTS | ATS | LTS | ATS | LTS | ATS | LTS | ATS | LTS | ATS | LTS | ATS | LTS |
| Calculation time [min] | 378 | 301 | 454 | 339 | 490 | 397 | 566 | 499 | 957 | 681 | 1002 | 909 | 1204 | 1011 | 1289 | 1162 |
| Calculated outlet temperature value [K] | 412 | 412 | 411 | 411 | 432 | 432 | 410 | 410 | 414 | 414 | 407 | 407 | 429 | 429 | 409 | 409 |
| Measured value of flue gas temperature [K] | 420 | 420 | 400 | 400 | 419 | 419 | 397 | 397 | 420 | 420 | 400 | 400 | 419 | 419 | 397 | 397 |
| Difference [K] | 8 | 8 | 11 | 11 | 13 | 13 | 13 | 13 | 6 | 6 | 7 | 7 | 10 | 10 | 12 | 12 |
| Relative error [%] | 1.90 | 1.90 | 2.75 | 2.75 | 3.10 | 3.10 | 3.27 | 3.27 | 1.43 | 1.43 | 1.75 | 1.75 | 2.39 | 2.39 | 3.02 | 3.02 |
| Basic Mesh | High Density Mesh | |||||||||||||||
|---|---|---|---|---|---|---|---|---|---|---|---|---|---|---|---|---|
| Number of mesh elements | 323,604 | 827,322 | ||||||||||||||
| Measurement | I | II | III | IV | I | II | III | IV | ||||||||
| Time step type | ATS | LTS | ATS | LTS | ATS | LTS | ATS | LTS | ATS | LTS | ATS | LTS | ATS | LTS | ATS | LTS |
| Calculation time [min] | 181 | 165 | 243 | 182 | 277 | 202 | 289 | 217 | 592 | 351 | 608 | 478 | 685 | 531 | 701 | 598 |
| Calculated outlet temperature value [K] | 429 | 429 | 414 | 414 | 435 | 435 | 413 | 413 | 428 | 428 | 409 | 409 | 433 | 433 | 412 | 412 |
| Measured value of flue gas temperature [K] | 420 | 420 | 400 | 400 | 419 | 419 | 397 | 397 | 420 | 420 | 400 | 400 | 419 | 419 | 397 | 397 |
| Difference [K] | 9 | 9 | 14 | 14 | 16 | 16 | 16 | 16 | 8 | 8 | 9 | 9 | 14 | 14 | 15 | 15 |
| Relative error [%] | 2.14 | 2.14 | 3.50 | 3.50 | 3.82 | 3.82 | 4.03 | 4.03 | 1.90 | 1.90 | 2.25 | 2.25 | 3.34 | 3.34 | 3.78 | 3.78 |
References
- Jurczyk, M. The Impact of Selected Design and Operational Parameters on the Efficiency of the Semi-Dry Flue Gas Cleaning Installation in a Municipal Waste-to-Energy Plant. Ph.D. Thesis, AGH University of Krakow, Kraków, Poland, 2024. [Google Scholar]
- Cyranka, M.; Jurczyk, M.; Pająk, T. Municipal Waste-to-Energy plants in Poland–current projects. In E3S Web of Conferences; EDP Sciences: Les Ulis, France, 2016; Volume 10, p. 00070. [Google Scholar]
- Cyranka, M.; Jurczyk, M. Energy recovery from municipal waste based on moving grate technology. Agric. Eng. 2016, 20, 23–33. [Google Scholar] [CrossRef][Green Version]
- Jurczyk, M.; Mikus, M.; Dziedzic, K. Flue gas cleaning in municipal waste-to-energy plants-Part 1. Infrastrukt. Ekol. Teren. Wiej. 2016, IV/1, 1179–1193. [Google Scholar]
- Jurczyk, M.; Mikus, M.; Dziedzic, K. Flue gas cleaning in municipal waste-to-energy plants-Part 2. Infrastrukt. Ekol. Teren. Wiej. 2016, IV/2, 1309–1321. [Google Scholar]
- Pajak, T.; Jurczyk, M. Initial operating experience with the new Polish waste-to-energy plants. Waste Manag. 2016, 6, 189–199. [Google Scholar]
- Wielgosiński, G.; Czerwińska, J. Spalarnie odpadów komunalnych w Polsce. Nowa Energ. 2016, 4, 34–41. [Google Scholar]
- Cyranka, M.; Jurczyk, M.; Dziedzic, K.; Jewiarz, M.; Łapczyńska-Kordon, B. Municipal Waste Anaerobic Digestion in Poland. In Renewable Energy Sources: Engineering, Technology, Innovation; Springer: Cham, Switzerland, 2018; pp. 297–307. [Google Scholar]
- Guziana, B.; Song, H.; Thorin, E.; Dotzauer, E.; Yan, J. Waste-to-energy in a Polish perspective. In Proceedings of the 4th International Conference on Applied Energy ICAE2012, Suzhou, China, 5–8 July 2012. [Google Scholar]
- Bogale, W.; Viganò, F. A preliminary comparative performance evaluation of highly efficient Waste-to-Energy plants. Energy Procedia 2014, 45, 1315–1324. [Google Scholar] [CrossRef]
- CEWEP—Confederation of European Waste-to-Energy Plants. Recycling and Waste-to-Energy in Combination for Sustainable Waste Management; CEWEP: Brussels, Belgium, 2012; Available online: https://web.archive.org/web/20141124033436/www.cewep.eu/m_1038 (accessed on 15 May 2019).
- Poma, C.; Verda, V.; Consonni, S. Design and performance evaluation of a waste-to-energy plant integrated with a combined cycle. Energy 2010, 35, 786–793. [Google Scholar] [CrossRef]
- Pikoń, K.; Bogacka, M. Współczesne Problemy Ochrony Środowiska i Energetyki 2019: Praca Zbiorowa; Politechnika Śląska: Gliwice, Poland, 2020. [Google Scholar]
- Moya, D.; Aldás, C.; López, G.; Kaparaju, P. Municipal solid waste as a valuable renewable energy resource: A worldwide opportunity of energy recovery by using Waste-To-Energy Technologies. Energy Procedia 2017, 134, 286–295. [Google Scholar] [CrossRef]
- Aslam, M.S.; Huang, B.; Cui, L. Review of construction and demolition waste management in China and USA. J. Environ. Manag. 2020, 264, 110445. [Google Scholar] [CrossRef]
- Brunner, P.H.; Rechberger, H. Waste to energy–key element for sustainable waste management. Waste Manag. 2015, 37, 3–12. [Google Scholar] [CrossRef]
- Ram, C.; Kumar, A.; Rani, P. Municipal solid waste management: A review of waste to energy (WtE) approaches. Bioresources 2021, 16, 4275. [Google Scholar] [CrossRef]
- Pikoń, K.; Galica, K. Spalanie odpadów komunalnych—Analiza przypadku. Arch. Gospod. Odpad. Ochr. Sr. 2007, 5, 71–89. [Google Scholar]
- Wielgosiński, G. Termiczne Przekształcanie Odpadów; Wydawnictwo “Nowa Energia”: Racibórz, Poland, 2020. [Google Scholar]
- Ng, W.P.Q.; Lam, H.L.; Varbanov, P.S.; Klemeš, J.J. Waste-to-energy (WTE) network synthesis for municipal solid waste (MSW). Energy Convers. Manag. 2014, 85, 866–874. [Google Scholar] [CrossRef]
- Bertone, M.; Stabile, L.; Buonanno, G. An Overview of Waste-to-Energy Incineration Integrated with Carbon Capture Utilization or Storage Retrofit Application. Sustainability 2024, 16, 4117. [Google Scholar] [CrossRef]
- Rada, E.C.; Ragazzi, M.; Torretta, V.; Castagna, G.; Adami, L.; Cioca, L.I. Circular economy and waste to energy. In AIP Conference Proceedings; AIP Publishing LLC.: Melville, NY, USA, 2018; Volume 1968, No. 1; p. 030050. [Google Scholar]
- Zhou, H.; Long, Y.; Meng, A.; Li, Q.; Zhang, Y. Classification of municipal solid waste components for thermal conversion in waste-to-energy research. Fuel 2015, 145, 151–157. [Google Scholar] [CrossRef]
- Mavrotas, G.; Gakis, N.; Skoulaxinou, S.; Katsouros, V.; Georgopoulou, E. Municipal solid waste management and energy production: Consideration of external cost through multi-objective optimisation and its effect on waste-to-energy solutions. Renew. Sustain. Energy Rev. 2015, 51, 1205–1222. [Google Scholar] [CrossRef]
- Grillo, L.M. Municipal solid waste (MSW) combustion plants. In Waste to Energy Conversion Technology; Woodhead Publishing: Sawston, UK, 2013; pp. 72–97. [Google Scholar]
- Klinghoffer, N.B.; Castaldi, M.J. (Eds.) Waste to Energy Conversion Technology; Elsevier: Amsterdam, The Netherlands, 2013. [Google Scholar]
- Lombardi, L.; Carnevale, E.; Corti, A. A review of technologies and performances of thermal treatment systems for energy recovery from waste. Waste Manag. 2015, 37, 26–44. [Google Scholar] [CrossRef]
- Wielgosiński, G.; Zarzycki, R. Technologie i Procesy Ochrony Powietrza; Wydawnictwo Naukowe PWN: Warsaw, Poland, 2018. [Google Scholar]
- Saanilahti, S. Reducing HCI and SO₂ Emissions with Dry Flue Gas Cleaning Process. Bachelor’s Thesis, Tampere University of Applied Sciences, Tampere, Finland, 2008. [Google Scholar]
- Li, X.; Han, J.; Liu, Y.; Dou, Z.; Zhang, T.A. Summary of research progress on industrial flue gas desulfurisation technology. Sep. Purif. Technol. 2022, 281, 119849. [Google Scholar] [CrossRef]
- Zikirillo, S.; Ataboyev, I.M. Air Pollution and control engineering and technology. In Proceedings of the International Conference on Modern Science and Scientific Studies, Paris, France, 19 April 2023; Volume 2, No. 5. pp. 155–159. [Google Scholar]
- Yamamoto, Y.; Yamamoto, H.; Takada, D.; Kuroki, T.; Fujishima, H.; Okubo, M. Simultaneous removal of NOx and SOx from flue gas of a glass melting furnace using a combined ozone injection and semi-dry chemical process. Ozone Sci. Eng. 2016, 38, 211–218. [Google Scholar] [CrossRef]
- Rui de Paula, V.; de Medeiros, J.L.; Araújo, O.D.Q.F.; de Andrade Cruz, M.; Ribeiro, G.T.; de Oliveira, V.R. Fluidised bed treatment of residues of semi-dry flue gas desulfurisation units of coal-fired power plants for conversion of sulfites to sulfates. Energy Convers. Manag. 2017, 143, 173–187. [Google Scholar]
- Kumar, L.; Jana, S.K. Advances in absorbents and techniques used in wet and dry FGD: A critical review. Rev. Chem. Eng. 2022, 38, 843–880. [Google Scholar] [CrossRef]
- Fang, D.; Liao, X.; Zhang, X.; Teng, A.; Xue, X. A novel resource utilisation of the calcium-based semi-dry flue gas desulfurisation ash: As a reductant to remove chromium and vanadium from vanadium industrial wastewater. J. Hazard. Mater. 2018, 342, 436–445. [Google Scholar] [CrossRef] [PubMed]
- Wen, Z.; Di, J.; Liu, S.; Han, J.; Lee, J.C.K. Evaluation of flue-gas treatment technologies for municipal waste incineration: A case study in Changzhou, China. J. Clean. Prod. 2018, 184, 912–920. [Google Scholar] [CrossRef]
- Weinell, C.E.; Jensen, P.I.; Dam-Johansen, K.; Livbjerg, H. Hydrogen chloride reaction with lime and limestone: Kinetics and sorption capacity. Ind. Eng. Chem. Res. 1992, 31, 164–171. [Google Scholar] [CrossRef]
- Matsuda, H.; Ozawa, S.; Naruse, K.; Ito, K.; Kojima, Y.; Yanase, T. Kinetics of HCl emission from inorganic chlorides in simulated municipal wastes incineration conditions. Chem. Eng. Sci. 2005, 60, 545–552. [Google Scholar] [CrossRef]
- Liu, Z.S.; Wey, M.Y.; Lin, C.L. Reaction characteristics of Ca(OH)2, HCl and SO2 at low temperature in a spray dryer integrated with a fabric filter. J. Hazard. Mater. 2002, 95, 291–304. [Google Scholar] [CrossRef] [PubMed]
- Neuwahl, F.; Cusano, G.; Benavides, J.G.; Holbrook, S.; Roudier, S. Best Available Techniques (BAT) Reference Document for Waste Incineration; Publications Office of the European Union: Luxembourg, 2019. [Google Scholar]
- Crowe, C.T. Modelling spray-air contact in spray-drying systems. In Advances in Drying; Mujumdar, A.S., Ed.; Hemisphere: New York, NY, USA, 1980; Volume 1, p. 63. [Google Scholar]
- Goldberg, J.E. Prediction of Spray Dryer Performance. Ph.D. Thesis, University of Oxford, Oxford, UK, 1987. [Google Scholar]
- Soltani, S. Computational Modelling of Spray Drying-With Application to Inhaled Drug Production. Master’s Thesis, Department of Chemical and Biological Engineering Chalmers University of Technology, Göteborg, Sweden, 2012. [Google Scholar]
- Meerdink, G. Drying of Liquid Food Droplets: Enzyme Inactivation and Multicomponent Diffusion; Wageningen University and Research: Wageningen, The Netherlands, 1993. [Google Scholar]
- Liang, B.; Judson King, C. Factors Influencing Flow Pattrens, Temperature Fields and Consequent Drying Rates in Spray Drying. Dry. Technol. 1991, 9, 1–25. [Google Scholar] [CrossRef]
- Langrish, T.G.; Oakley, D.E.; Keey, R.B.; Bahu, R.E.; Hutchinson, C.A. Time-dependent flow patterns in spray dryers: Particle processing. Chem. Eng. Res. Des. 1993, 71, 355–360. [Google Scholar]
- Kieviet, F.G.; Van Raaij, J.; De Moor, P.P.E.A.; Kerkhof, P.J.A.M. Measurement and modelling of the air flow pattern in a pilot-plant spray dryer. Chem. Eng. Res. Des. 1997, 75, 321–328. [Google Scholar] [CrossRef]
- Lage, P.L.C.; Rangel, R.H. Single droplet vaporisation including thermal radiation absorption. J. Thermophys. Heat Transf. 1993, 7, 502–509. [Google Scholar] [CrossRef]
- Schlottke, J.; Weigand, B. Direct numerical simulation of evaporating droplets. J. Comput. Phys. 2008, 227, 5215–5237. [Google Scholar] [CrossRef]
- Hase, M.; Weigand, B. Numerical study of the temperature field of unsteady moving droplets and of the surrounding gas. In Proceedings of the ILASS-Europe, Zurich, Switzerland, 2–6 September 2001. [Google Scholar]
- Hase, M.; Weigand, B. Numerical simulation of 3D unsteady heat transfer at strongly deformed droplets at high Reynolds numbers. In High Performance Computing in Science and Engineering’03; Springer: Berlin/Heidelberg, Germany, 2003; pp. 255–266. [Google Scholar]
- Kulmala, M.; Vesala, T.; Schwarz, J.; Smolik, J. Mass transfer from a drop—II. Theoretical analysis of temperature dependent mass flux correlation. Int. J. Heat Mass Transf. 1995, 38, 1705–1708. [Google Scholar] [CrossRef]
- Nikolopoulos, N.; Theodorakakos, A.; Bergeles, G. A numerical investigation of the evaporation process of a liquid droplet impinging onto a hot substrate. Int. J. Heat Mass Transf. 2007, 50, 303–319. [Google Scholar] [CrossRef]
- Renksizbulut, M.; Bussmann, M. Multicomponent droplet evaporation at intermediate Reynolds numbers. Int. J. Heat Mass Transf. 1993, 36, 2827–2835. [Google Scholar] [CrossRef]
- Dombrowski, N.; Hasson, D. The flow characteristics of swirl (centrifugal) spray pressure nozzles with low viscosity liquids. AIChE J. 1969, 15, 604–611. [Google Scholar] [CrossRef]
- Dombrowski, N.; Wolfsohn, D.L. The atomisation of water by swirl spray pressure nozzles. Trans. Inst. Chem. Eng. 1972, 50, 259–269. [Google Scholar]
- Dumouchel, C.; Bloor, M.I.G.; Dombrowski, N.; Ingham, D.B.; Ledoux, M. Viscous flow in a swirl atomiser. Chem. Eng. Sci. 1993, 48, 81–87. [Google Scholar] [CrossRef]
- Fantini, E.; Tognotti, L.; Tonazzini, A. Drop size distribution in sprays by image processing. Comput. Chem. Eng. 1990, 14, 1201–1211. [Google Scholar] [CrossRef]
- Kuts, P.S.; Samsonyuk, V.K.; Akulich, P.V. Liquid phase distribution in a spray formed by pneumatic nozzle in the spray dryer chamber. Drying 1992, 92, 543–550. [Google Scholar]
- Masters, K. An Introduction to Atomisation Techniques in Spray Drying; Lecture Notes; Delft University: Delft, The Netherlands, 1964. [Google Scholar]
- Nelson, P.A.; Stevens, W.F. Size distribution of droplets from centrifugal spray nozzles. AIChE J. 1961, 7, 80–86. [Google Scholar] [CrossRef]
- Pajak, T.; Jurczyk, M. Effect of selected parameters on the water particle movement in flue gas stream. Przemysł Chem. 2018, 97, 1508–1510. [Google Scholar]
- Ishii, M.; Zuber, N. Drag coefficient and relative velocity in bubbly, droplet or particulate flows. AIChE J. 1979, 25, 843–855. [Google Scholar] [CrossRef]
- Abramzon, B.; Sazhin, S. Droplet vaporisation model in the presence of thermal radiation. Int. J. Heat Mass Transf. 2005, 48, 1868–1873. [Google Scholar] [CrossRef]
- Ma, C.; Bothe, D. Numerical modelling of thermocapillary two-phase flows with evaporation using a two-scalar approach for heat transfer. J. Comput. Phys. 2013, 233, 552–573. [Google Scholar] [CrossRef]
- Hase, M.; Weigand, B. Transient heat transfer of deforming droplets at high Reynolds numbers. Int. J. Numer. Methods Heat Fluid Flow 2004, 14, 85–97. [Google Scholar] [CrossRef]
- Strotos, G.; Gavaises, M.; Theodorakakos, A.; Bergeles, G. Numerical investigation of the evaporation of two-component droplets. Fuel 2011, 90, 1492–1507. [Google Scholar] [CrossRef]
- Hardt, S.; Wondra, F. Evaporation model for interfacial flows based on a continuum-field representation of the source terms. J. Comput. Phys. 2008, 227, 5871–5895. [Google Scholar] [CrossRef]
- Haywood, R.J.; Renksizbulut, M.; Raithby, G.D. Transient deformation and evaporation of droplets at intermediate Reynolds numbers. Int. J. Heat Mass Transf. 1994, 37, 1401–1409. [Google Scholar] [CrossRef]
- Haelssig, J.B.; Tremblay, A.Y.; Thibault, J.; Etemad, S.G. Direct numerical simulation of interphase heat and mass transfer in multicomponent vapour–liquid flows. Int. J. Heat Mass Transf. 2010, 53, 3947–3960. [Google Scholar] [CrossRef]
- Strotos, G.; Gavaises, M.; Theodorakakos, A.; Bergeles, G. Numerical investigation on the evaporation of droplets depositing on heated surfaces at low Weber numbers. Int. J. Heat Mass Transf. 2008, 51, 1516–1529. [Google Scholar] [CrossRef]
- Mezhericher, M.; Levy, A.; Borde, I. Heat and mass transfer of single droplet/wet particle drying. Chem. Eng. Sci. 2008, 63, 12–23. [Google Scholar] [CrossRef]
- Dalmaz, N.; Ozbelge, H.O.; Eraslan, A.N.; Uludag, Y. Heat and mass transfer mechanisms in drying of a suspension droplet: A new computational model. Dry. Technol. 2007, 25, 391–400. [Google Scholar] [CrossRef]
- Nešić, S.; Vodnik, J. Kinetics of droplet evaporation. Chem. Eng. Sci. 1991, 46, 527–537. [Google Scholar] [CrossRef]
- Charlesworth, D.H.; Marshall Jr, W.R. Evaporation from drops containing dissolved solids. AIChE J. 1960, 6, 9–23. [Google Scholar] [CrossRef]
- Kincaid, D.C.; Longley, T.S. A water droplet evaporation and temperature model. Trans. ASAE 1989, 32, 457–0462. [Google Scholar]
- Zhifu, Z.; Guoxiang, W.; Bin, C.; Liejin, G.; Yueshe, W. Evaluation of evaporation models for single moving droplet with a high evaporation rate. Powder Technol. 2013, 240, 95–102. [Google Scholar] [CrossRef]
- Renksizbulut, M.; Yuen, M.C. Experimental study of droplet evaporation in a high-temperature air stream. J. Heat Transfer. 1983, 105, 384–388. [Google Scholar] [CrossRef]
- Li, L.; Lu, B.; Xu, W.; Wang, C.; Wu, J.; Tan, D. Dynamic behaviors of multiphase vortex-induced vibration for hydropower energy conversion. Energy 2024, 308, 132897. [Google Scholar] [CrossRef]
- Guo, X.; Yang, M.; Li, F.; Zhu, Z.; Cui, B. Investigation on cryogenic cavitation characteristics of an inducer considering thermodynamic effects. Energies 2024, 17, 3627. [Google Scholar] [CrossRef]
- Wu, J.; Xu, P.; Li, L.; Li, Z.; Qi, H.; Wang, C.; Zhang, Y.; Xie, Y.; Tan, D. Multiphase dynamic interfaces and abrasive transport dynamics for abrasive flow machining in shear thickening transition states. Powder Technol. 2024, 446, 120150. [Google Scholar] [CrossRef]
- Greenshields, C.J. OpenFOAMuserguide; Version 3; OpenFOAM Foundation Ltd.: London, UK, 2015; p. 47. [Google Scholar]
- Devolder, B.; Schmitt, P.; Rauwoens, P.; Elsaesser, B.; Troch, P. A review of the implicit motion solver algorithm in OpenFOAM® to simulate a heaving buoy. In Proceedings of the 18th NUTTS Conference, Marstrand, Sweden, 28–30 September 2015; Volume 2015. [Google Scholar]
- Crowe, C.T.; Schwarzkopf, J.D.; Sommerfeld, M.; Tsuji, Y. Multiphase Flows with Droplets and Particles; CRC Press: Boca Raton, FL, USA, 2011; Volume 10, p. b11103. [Google Scholar]
- Menter, F.R.; Kuntz, M.; Langtry, R. Ten years of industrial experience with the SST turbulence model. Turbul. Heat Mass Transf. 2003, 4, 625–632. [Google Scholar]
- Tan, Y.; Ni, Y.; Xu, W.; Xie, Y.; Li, L.; Tan, D. Key technologies and development trends of the soft abrasive flow finishing method. J. Zhejiang Univ. Sci. A 2023, 24, 1043–1064. [Google Scholar] [CrossRef]














| Parameter | Measurement | |||
|---|---|---|---|---|
| Flue gas flow [mn3/h] | 22,941 | 43,596 | 71,578 | 79,915 |
| Flue gas flow [mn3/s] | 6.37 | 12.11 | 19.88 | 22.20 |
| Flue gas velocity in the pipe (calculated) [m/s] for d = 1.2 m | 6 | 11 | 18 | 20 |
| Water mass flow [kg/h] (to the absorber) | 400 | 1070 | 1800 | 2370 |
| Water mass flow [kg/s] | 0.11 | 0.3 | 0.5 | 0.66 |
| Inlet flue gas temp. [K] | 473 | 473 | 498 | 498 |
| Outlet flue gas temp. [K] | 420 | 400 | 419 | 397 |
| Parameter | Measurement | |
|---|---|---|
| Line 1 | Line 2 | |
| Flue gas flow [mn3/h] | 97,190 | 82,480 |
| Flue gas flow [mn3/s] | 27.00 | 22.91 |
| Flue gas velocity in the pipe (calculated) [m/s] for d = 1.4 m | 17.65 | 14.89 |
| Water mass flow [kg/h] (to the absorber) | 948 | 830 |
| Water mass flow [kg/s] | 0.26 | 0.23 |
| Inlet flue gas temp. [K] | 453 | 454 |
| Outlet flue gas temp. [K] | 406 | 408 |
| Basic Mesh | High-Density Mesh | |||||||||||||||
|---|---|---|---|---|---|---|---|---|---|---|---|---|---|---|---|---|
| Number of mesh elements | 733,930 | 1,793,054 | ||||||||||||||
| Measurement | I | II | III | IV | I | II | III | IV | ||||||||
| Time step type | ATS | LTS | ATS | LTS | ATS | LTS | ATS | LTS | ATS | LTS | ATS | LTS | ATS | LTS | ATS | LTS |
| Calculation time [min] | 396 | 312 | 484 | 385 | 521 | 415 | 603 | 523 | 981 | 725 | 1101 | 954 | 1269 | 1098 | 1345 | 1204 |
| Calculated outlet temperature value [K] | 414 | 414 | 408 | 408 | 410 | 410 | 407 | 407 | 417 | 417 | 404 | 404 | 412 | 412 | 404 | 404 |
| Measured value of flue gas temperature [K] | 420 | 420 | 400 | 400 | 419 | 419 | 397 | 397 | 420 | 420 | 400 | 400 | 419 | 419 | 397 | 397 |
| Difference [K] | 6 | 6 | 8 | 8 | 9 | 9 | 10 | 10 | 3 | 3 | 4 | 4 | 7 | 7 | 7 | 7 |
| Relative error [%] | 1.43 | 1.43 | 2.00 | 2.00 | 2.15 | 2.15 | 2.52 | 2.52 | 0.71 | 0.71 | 1.00 | 1.00 | 1.67 | 1.67 | 1.76 | 1.76 |
| Absorber Model | Mesh | ATS [min] | LTS [min] | Difference [min] | Time Profit [%] | Average Time Profit [%] |
|---|---|---|---|---|---|---|
| Geometry No. 1 | Basic mesh | 396 | 312 | 84 | 21.21 | 17.34 |
| 484 | 385 | 99 | 20.45 | |||
| 521 | 415 | 106 | 20.35 | |||
| 603 | 523 | 80 | 13.27 | |||
| High-density mesh | 981 | 725 | 256 | 26.10 | ||
| 1101 | 954 | 147 | 13.35 | |||
| 1269 | 1098 | 171 | 13.48 | |||
| 1345 | 1204 | 141 | 10.48 | |||
| Geometry No. 2 | Basic mesh | 378 | 301 | 77 | 20.37 | 17.57 |
| 454 | 339 | 115 | 25.33 | |||
| 490 | 397 | 93 | 18.98 | |||
| 566 | 499 | 67 | 11.84 | |||
| High-density mesh | 957 | 681 | 276 | 28.84 | ||
| 1002 | 909 | 93 | 9.28 | |||
| 1204 | 1011 | 193 | 16.03 | |||
| 1289 | 1162 | 127 | 9.85 | |||
| Geometry No. 3 | Basic mesh | 181 | 165 | 16 | 8.84 | 23.15 |
| 243 | 182 | 61 | 25.10 | |||
| 277 | 202 | 75 | 27.08 | |||
| 289 | 217 | 72 | 24.91 | |||
| High-density mesh | 592 | 351 | 241 | 40.71 | ||
| 608 | 478 | 130 | 21.38 | |||
| 685 | 531 | 154 | 22.48 | |||
| 701 | 598 | 103 | 14.69 |
| Line 1 | Line 2 | |||||||||||||||||||||||
|---|---|---|---|---|---|---|---|---|---|---|---|---|---|---|---|---|---|---|---|---|---|---|---|---|
| Geometry No. 1 | Geometry No. 2 | Geometry No. 3 | Geometry No. 1 | Geometry No. 2 | Geometry No. 3 | |||||||||||||||||||
| Basic Mesh | High-Density Mesh | Basic Mesh | High-Density Mesh | Basic Mesh | High-Density Mesh | Basic Mesh | High-Density Mesh | Basic Mesh | High-Density Mesh | Basic Mesh | High-Density Mesh | |||||||||||||
| Number of mesh elements | 630,803 | 1,592,410 | 617,519 | 1,542,974 | 327,412 | 749,587 | 630,803 | 1,592,410 | 617,519 | 1,542,974 | 327,412 | 749,587 | ||||||||||||
| Time step type | ATS | LTS | ATS | LTS | ATS | LTS | ATS | LTS | ATS | LTS | ATS | LTS | ATS | LTS | ATS | LTS | ATS | LTS | ATS | LTS | ATS | LTS | ATS | LTS |
| Calculation time [min] | 501 | 414 | 1036 | 876 | 448 | 372 | 931 | 775 | 265 | 192 | 507 | 392 | 499 | 401 | 998 | 857 | 442 | 362 | 905 | 749 | 243 | 181 | 489 | 373 |
| Calculated outlet temperature value [K] | 411 | 411 | 409 | 409 | 426 | 426 | 423 | 423 | 433 | 433 | 429 | 429 | 412 | 412 | 409 | 409 | 424 | 424 | 424 | 424 | 431 | 431 | 427 | 427 |
| Measured value of flue gas temperature [K] | 406 | 406 | 406 | 406 | 406 | 406 | 406 | 406 | 406 | 406 | 406 | 406 | 408 | 408 | 408 | 408 | 408 | 408 | 408 | 408 | 408 | 408 | 408 | 408 |
| Difference [K] | 5 | 5 | 3 | 3 | 20 | 20 | 17 | 17 | 27 | 27 | 23 | 23 | 4 | 4 | 1 | 1 | 16 | 16 | 16 | 16 | 23 | 23 | 19 | 19 |
| Relative error [%] | 1.23 | 1.23 | 0.74 | 0.74 | 4.93 | 4.93 | 4.19 | 4.19 | 6.65 | 6.65 | 5.67 | 5.67 | 0.98 | 0.98 | 0.25 | 0.25 | 3.92 | 3.92 | 3.92 | 3.92 | 5.64 | 5.64 | 4.66 | 4.66 |
| Absorber Model | Line No. | Mesh | ATS [min] | LTS [min] | Difference [min] | Time Profit [%] | Average Time Profit [%] |
|---|---|---|---|---|---|---|---|
| Geometry No. 1 | Line No. 1 | Basic mesh | 501 | 414 | 87 | 17.37 | 16.64 |
| High-density mesh | 1036 | 876 | 160 | 15.44 | |||
| Line No. 2 | Basic mesh | 499 | 401 | 98 | 19.64 | ||
| High-density mesh | 998 | 857 | 141 | 14.13 | |||
| Geometry No. 2 | Line No. 1 | Basic mesh | 448 | 372 | 76 | 16.96 | 17.26 |
| High-density mesh | 931 | 775 | 156 | 16.76 | |||
| Line No. 2 | Basic mesh | 442 | 362 | 80 | 18.10 | ||
| High-density mesh | 905 | 749 | 156 | 17.24 | |||
| Geometry No. 3 | Line No. 1 | Basic mesh | 265 | 192 | 73 | 27.55 | 24.87 |
| High-density mesh | 507 | 392 | 115 | 22.68 | |||
| Line No. 2 | Basic mesh | 243 | 181 | 62 | 25.51 | ||
| High-density mesh | 489 | 373 | 116 | 23.72 |
Disclaimer/Publisher’s Note: The statements, opinions and data contained in all publications are solely those of the individual author(s) and contributor(s) and not of MDPI and/or the editor(s). MDPI and/or the editor(s) disclaim responsibility for any injury to people or property resulting from any ideas, methods, instructions or products referred to in the content. |
© 2024 by the authors. Licensee MDPI, Basel, Switzerland. This article is an open access article distributed under the terms and conditions of the Creative Commons Attribution (CC BY) license (https://creativecommons.org/licenses/by/4.0/).
Share and Cite
Jurczyk, M.; Banaś, M.; Pająk, T.; Dziedzic, K.; Łapczyńska-Kordon, B.; Jewiarz, M. The Influence of Selected Parameters of the Mathematical Model on the Simulation Performance of a Municipal Waste-to-Energy Plant Absorber. Energies 2024, 17, 6382. https://doi.org/10.3390/en17246382
Jurczyk M, Banaś M, Pająk T, Dziedzic K, Łapczyńska-Kordon B, Jewiarz M. The Influence of Selected Parameters of the Mathematical Model on the Simulation Performance of a Municipal Waste-to-Energy Plant Absorber. Energies. 2024; 17(24):6382. https://doi.org/10.3390/en17246382
Chicago/Turabian StyleJurczyk, Michał, Marian Banaś, Tadeusz Pająk, Krzysztof Dziedzic, Bogusława Łapczyńska-Kordon, and Marcin Jewiarz. 2024. "The Influence of Selected Parameters of the Mathematical Model on the Simulation Performance of a Municipal Waste-to-Energy Plant Absorber" Energies 17, no. 24: 6382. https://doi.org/10.3390/en17246382
APA StyleJurczyk, M., Banaś, M., Pająk, T., Dziedzic, K., Łapczyńska-Kordon, B., & Jewiarz, M. (2024). The Influence of Selected Parameters of the Mathematical Model on the Simulation Performance of a Municipal Waste-to-Energy Plant Absorber. Energies, 17(24), 6382. https://doi.org/10.3390/en17246382

