Next Article in Journal
Lifecycle Assessment of Strategies for Decarbonising Wind Blade Recycling toward Net Zero 2050
Next Article in Special Issue
3D Numerical Modeling to Assess the Energy Performance of Solid–Solid Phase Change Materials in Glazing Systems
Previous Article in Journal
Linked Data Generation Methodology and the Geospatial Cross-Sectional Buildings Energy Benchmarking Use Case
Previous Article in Special Issue
Development of Concrete Façade Sandwich Panels Incorporating Phase Change Materials
 
 
Font Type:
Arial Georgia Verdana
Font Size:
Aa Aa Aa
Line Spacing:
Column Width:
Background:
Article

The Use of Transparent Structures to Improve Light Comfort in Library Spaces and Minimize Energy Consumption: A Case Study of Warsaw, Poland

Institute of Civil Engineering, Warsaw University of Life Sciences—SGGW, Nowoursynowska 159 St., 02-776 Warsaw, Poland
*
Author to whom correspondence should be addressed.
Energies 2024, 17(12), 3007; https://doi.org/10.3390/en17123007
Submission received: 30 April 2024 / Revised: 11 June 2024 / Accepted: 14 June 2024 / Published: 18 June 2024
(This article belongs to the Special Issue Phase Change Materials for Building Energy Applications)

Abstract

Light plays a key role in shaping the quality and atmosphere of interior spaces, and its importance and contradictions are amplified in the design of libraries. This study focuses on the problems associated with both insufficient natural light and excessive light. In both cases, visual discomfort is the result. The reason for these problems lies in the use of translucent structures with different parameters and properties in library architecture. This study analyzed the lighting environment in the main reading rooms of two university libraries in Warsaw. The research methods were based on a field survey of objects and an analysis of the architectural and construction parameters of the premises, as well as the physical and mechanical properties of various types of translucent materials used in the reading rooms. The results of this study shed light on the relationship between the interior space of the reading room and the geometry of transparent structures, as well as the effectiveness of daylighting in libraries in the natural conditions of Warsaw. The key point of the present study was to recognize the critical role that transparent materials and structures play in mitigating potential operational problems in library spaces. Wise selection of these elements at the design stage can help minimize problems related to thermal energy regulation, ventilation control, acoustic insulation, and increased visual comfort. The importance of this research area lies in its potential to optimize library buildings by increasing energy efficiency and reducing reliance on artificial lighting, heating, and air conditioning. Careful consideration of transparent materials at the design stage promises long-term benefits in the form of sustainable library spaces that not only meet functional requirements, but also contribute to a more environmentally conscious architectural landscape.

1. Introduction

The use of natural light in the design of a building’s comfortable environment is a decisive aspect not only in terms of shaping the quality of its interior space, but also in terms of its energy efficiency [1,2]. Properly organized daylighting benefits people’s physical and mental health, promotes efficient indoor living, and increases the energy efficiency of a building [3,4,5]. Using daylight to illuminate the interiors of buildings is a prerequisite for a comfortable and healthy working environment [6]. Daylight is considered the healthiest type of light for the human eye due to its color and continuous spectrum [5], while artificial lighting is unable to provide similar conditions due to flicker. The quality of lighting influences human activity-related responses: the speed, accuracy, and effort expended to perform different types of tasks [7]. However, exposure to daylight can have both positive and negative effects on health due to its dynamics and variability. As these changes are difficult to control, this creates several problems.
Too little illumination and its unevenness, excessive brightness, the appearance of glare, and the inappropriate positioning of the workplace in relation to the light source can cause visual impairment and visual fatigue, eye irritation, the appearance of blurred images, or a feeling of double vision. Prolonged exposure to poor lighting conditions can cause or exacerbate visual impairment, affect well-being, and cause accidents [4,7,8,9].
The optimum lighting environment for visual comfort and safety in the middle of a room depends largely on the amount of light entering the room, the intensity and brightness of the lighting, as well as the reflections that can be created on different surfaces. The lighting requirements set out in the Polish standard PN-EN 12464-1:2022-01 [10] indicate that the light intensity in a reading and writing room should be 500 lx (Em) [11]. The homogeneity of illumination is characterized by the level of illuminance at different points of the working plane or the entire room and is determined by the ratio of the visual task area to the immediate surrounding area. According to the standard, the minimum value of uniformity in the visual task area should be 0.7 and 0.5 in the nearest surrounding area [8]. In this research study, two of these parameters are taken into account—the amount and the brightness of the daylight.
Scientific studies in recent years dedicated to investigating and discussing the quality of lighting in rooms and buildings under different conditions are mainly concerned with the lighting environment in residential buildings [12], office spaces and commercial buildings [4], waiting rooms [5], and classrooms [13,14]. However, the importance of conducting such studies in library spaces, especially in reading rooms, should not be diminished. Table 1 presents a summary of example research dedicated to library spaces conducted in the last five years.
A reading room is a place that requires special lighting to ensure the reader’s comfort and well-being [8]. Reading rooms vary in parameters and shape, location, number and orientation of windows, as well as purpose. All of these indicators are important because they form the requirements for providing optimal lighting conditions depending on the needs of the user.
The architecture of libraries has changed considerably over the last two decades, with new, modern libraries being designed with the main planning principle of open space and free access to all kinds of information in mind. This has led to the emergence of a single flexible space in the library structure, in which one functional area flows seamlessly ‘into’ another [26]. In most reading rooms, in addition to areas for concentrated work which are characterized by a regular arrangement of desks, shelves with free access to books, coffee tables with soft furnishings, areas for computer work, etc., are now placed. Filling the reading room with additional functions leads to an increase in the area and volume of the room, which requires a special approach to ensure high-quality lighting for the entire room. On the one hand, it is necessary to ensure that natural light reaches the furthest corners of the room, while on the other hand, over-lighting and the appearance of glare on work surfaces close to the light source must be avoided.
Natural lighting in reading rooms can be either side or top lighting. The choice of lighting is influenced by the size of the reading rooms and their location in the library building. Small reading rooms, which are similar in size to residential units, can be illuminated by windows placed at desk level, but the number, size, and shape of the windows must meet lighting requirements that differ significantly from those for similar residential units (the horizontal lighting factor for residential units is 0.5% and the working area in reading rooms is 1.25%). As the area of the reading room increases, it is necessary to increase the level of the window openings or, if planning permits, to use double-sided raised window positions. This makes it possible to provide the necessary even lighting throughout the hall. As far as overhead lighting is concerned, it is mostly used in large reading rooms and, even then, only in those on the top floors of the building. The disadvantages of such a lighting system include structural complexity, difficulty in handling and cleaning, the possibility of condensation on the inner surface of the glass, and the danger of glare. However, despite all shortcomings, the overhead lighting system has still found its way into global practice [9].
Translucent structures and materials play an important role in shaping the architectural image of a building, influencing the esthetic perception of the building in its surroundings. They lend lightness and accessibility to the façade while protecting the interior spaces of the premises from adverse weather conditions. At the same time, the characteristics of transparent structures are important for the passage of sunlight through them. The most popular light-transmitting material in architecture is glass. Glass has allowed architects to fully express their imagination when creating a unique building image, making extensive use of the characteristics of light and space. The nature of glass is to allow sufficient daylight into a room, to create visual connections with the surroundings, and to give the room a spatial infinity and fluidity. No other material gives such an immediate visual effect [27].
Manufacturers of glass materials used in the building industry today offer a wide range of products: solar control glass, thermal insulation glass, soundproofing glass, self-cleaning glass, toughened glass, transparent photovoltaic (PV) glass, etc. Glass can be transparent, translucent, laminated, tinted, and even ‘smart’ [27]. Smart glass can help architects achieve their sustainability goals by reducing the amount of electricity needed for indoor lighting, lowering cooling costs, and promoting the health and well-being of building occupants [28]. In addition, Qahtan et al. [29] highlighted the benefits of smart glazing technologies, in particular, polymer-dispersed liquid crystals (PDLCs), in achieving energy efficiency, visual comfort, and environmental sustainability in building design and construction. Smart windows can reversibly change their optical properties to adapt to changing weather conditions or user preferences, thus providing selective and dynamic control over incoming solar radiation This is achieved through the incorporation of chromogenic materials such as thermochromic, photochromic, electrochromic, and gasochromic ones [30].
To choose the right type of glass and transparent design, the needs of the room as dictated by its function must be thoroughly understood. In addition to glass, other translucent materials such as polycarbonate and acrylic are also used in architecture. These are most commonly used in skylights. Polycarbonate and acrylic, due to their construction and properties, diffuse light well, which has a positive effect on reducing direct sunlight entering the room.
Over the past thirty years, trends in library design and construction have shown the widespread use of translucent structures in this type of building and space. On the one hand, this makes the library building visually attractive, open, and friendly, and its spaces bright and pleasant. On the other hand, it is a challenge to provide comfortable lighting conditions inside. Excessive use of translucent structures leads to overheating of the building during the warmer seasons and causes glare on work surfaces. The solution to the problem of overheating is to use large amounts of electricity for air conditioning, which is energy inefficient, unprofitable, and contrary to the principles of sustainable development. Moreover, the incorrect orientation of windows limits the amount of light that can enter on cloudy days. The problem of excessive light is often solved with curtains or tinted films. This contradicts the original idea of using glass in the architecture of libraries, which should be accessible and open.
For this study, it was decided to analyze the lighting environment of the main reading rooms of two university libraries in Warsaw. Both reading rooms are equipped with side and ceiling lighting. However, in both cases, different types of translucent structures are used, which affects the glazing area. Thus, the main objective of this study was to find the relationship between the parameters of the interior space of the reading room and the geometry of the translucent structures, and their influence on the efficiency of the daylighting of the libraries in the natural conditions of Warsaw.

2. Materials and Methods

This study was conducted in two university libraries in Warsaw, Poland: The Library of the Warsaw University of Life Sciences (SGGW) and the University of Warsaw Library (UW).
In the first stage of this study, data from the scientific literature on the physical properties of daylight [31] and the technical properties of translucent structures and materials [32] were analyzed and systematized. The highlighting of key information and the identification of gaps in the literature allowed for a critical look at the topic.
The next step was to analyze the technical documentation of the library buildings, which included architectural drawings of plans, façades, and cross-sections, structural diagrams, and a description of the construction and technical features of the rooms in use.
An important stage of this study was to conduct a field survey. The survey was conducted on the most cloudy and sunny days of February 2024 between 11:00 a.m. and 2:00 p.m. This study was preliminary and allowed us to become acquainted with the light environment of libraries in Poland. On-site inspections of library premises began in February 2024. The time for studying the illumination of reading rooms was chosen according to the largest angle of the solstice and according to the recommendations presented in specialized publications [33,34]. This study was performed in the main reading rooms of each of the libraries, and the subjects of the field research were the transparent structures and materials through which daylight enters the rooms. The lighting condition of the reading rooms was recorded with a Canon EOS 6D camera with a Canon TS-E 17 mm lens. The use of professional photographic equipment made it possible to capture the lighting with maximum accuracy in different weather conditions and at the chosen time of the day.
The light environment of the reading rooms was photographed when the camera was set to manual mode. The technical parameters of the camera were set in such a way as to reproduce as accurately as possible the state of illumination of the premises of the reading rooms. To photograph the lighting of the SGGW library reading room on a cloudy day, the ISO was 1000, the aperture was 8, and the shutter speed was 1/30. To capture the lighting of the UW library reading room on an overcast day, the ISO was 320, the aperture was 8, and the shutter speed was 1/30. To capture the lighting of the UW library reading room on a sunny day, ISO was 100, the aperture was 8, and the shutter speed was 1/30. A photograph of the reading room lighting of the SGGW Library on a sunny day did not show significant changes and was therefore not taken into account in the presentation of the research results in this article. All image files were made in RAW format.

2.1. Room Orientation

The illumination of a building’s interior is variable and dependent on external factors such as weather, season, time of day, etc. Therefore, an important element in the design of any building is the orientation of its rooms in relation to the cardinal points. At the same time, the destination of the premises must be considered. North is generally considered the best side for a reading room, as this orientation makes it possible to provide diffused light and avoid direct sunlight entering the room. It can be seen from Figure 1 that the north façade of the building receives sunlight only in summer: in the morning and the evening.
When determining the correct orientation of a room, the number of sunny days per year is also important. The higher the number, the more direct sunlight will enter the building, which can have both positive and negative effects on its functioning.
Warsaw is located in a temperate transitional climate zone. Throughout the year, continental and oceanic air masses flow over the city, which results in a wide variety of weather conditions within Warsaw [36]. The amount of sunlight in the city varies according to the season. This study presents indices of the number of hours and days of sunshine in Warsaw (Table 2 and Table 3). From the data provided, it can be seen that the greatest amount of sunshine occurs in summer. In July, the city receives an average of 295.4 h of sunlight. During the year in Warsaw, cloudy days far outweigh sunny days. The monthly number of sunny days ranges from 0.9 to 3.6, while the number of cloudy days varies from 3.6 to 18.7. Warsaw has an average of only 28.4 sunny days per year, which is only 8%.

2.2. Parameters of Room Geometries and Translucent Structures

The distribution of daylight and its direction are the main determinants of visual comfort and comfort indicators, which are brightness and illumination [7]. The quality of a building’s interior lighting depends on its architectural design, the geometry of the space, the size and material of the transparent structures, and the characteristics of the surfaces on which the light falls.
This study focuses on determining the geometric parameters of the main reading rooms at the SGGW and UW Libraries. The geometric parameters of the interior space of a reading room include the room’s width (Wrr), depth (Drr), and height (Hrr). This study also defines the geometric parameters of the transparent structures, which include the structures’ height (Hts), the structures’ width (Wts), windowsill height (Hws), the number of windows (Nw), and the number of window cells (Nwc). These parameters enabled the calculation of the room’s floor area (Arr), the room’s volume (Vrr), the glazing area (Ag), and the ratio of the semi-transparent structure area to the floor area (RtsF).
By comparing the results of the geometric calculations with field studies, it was possible to assess the efficiency of the use of horizontal rows of windows in glass wall construction and the efficiency of the use of punctual skylights in flat roof construction.
This study also analyzed the physical and mechanical properties of various types of semi-transparent materials used in reading rooms.

3. Results

3.1. The Main Reading Room of the SGGW Library

The Library of the Warsaw University of Life Sciences (SGGW) is an important structural component of the university campus, which is spread across the Ursynów district in Warsaw (Poland).
The library building is adjacent to Nowoursynowska Street, surrounded by university buildings and a complex of student dormitories (Figure 2, Table 4). This location makes the library an active participant in the educational process, fostering continuous interaction with students and lecturers.
The library building, designed by architect St. Fijałkowski, was constructed in three stages—from 1996 to 2006—as evidenced by its volume, divided into two square buildings with separate entrances. One building has three floors, while the other has two floors. The buildings are connected at the first-floor level by a covered passageway. The building has a surface area of 2310 m2 [39]. The library structure comprises four reading rooms with a total area of approximately 1200 m2. This study was carried out in the main reading room, located on the first floor of the two-story part of the building. The reading room has a rectangular shape, measuring 19.6 × 32.4 m with a height of 4.6 m [40,41]. The area of the room is 635 m2 and its volume is 2921 m3.
The exterior of the building uses a mullion–transom glazing system, which is one of the most popular methods for creating glass façades due to its technical properties and affordability [42]. The façades are decorated with glass, giving the impression that the building is made entirely of glass. However, only part of the glass acts as a semi-transparent material, allowing natural light to enter the rooms.
The rest of the glass is used as finishing material to cover the wall structures. The hall’s windows decorate two façades facing northeast and northwest. This orientation maximizes the amount of direct sunlight entering the room. On the one hand, this is a good solution because it prevents glare on work surfaces and provides diffused light in the hall. On the other hand, given the size of the hall, this orientation does not provide an adequate level of interior lighting, especially in cloudy weather, despite the large number and size of the windows. Figure 3 clearly shows that the reading room is well lit near the windows, but poorly lit on the opposite side.
There are 11 windows on the northeast side of the room and 21 windows on the northwest side. The windows are placed close together, forming two long rows on each side, taking up almost the entire wall area. Each window is 1.5 m wide and 3.05 m high. The windows are positioned 1 m above the floor. Each window consists of three sections: two narrow 0.55 m high sections (both of which can be opened) and a 1.95 m high section. The structure of the window consists of a metal frame (with a frame profile width of 50 mm and a thickness of 28 mm) into which a double-glazed window with two panes is inserted. The double glazing consists of two panes of different types of glass. The outer pane, facing the street, is made of 6 mm thick Stopsol Classic Green reflective glass, while the inner pane, facing the interior, is made of 4 mm thick Termofloat glass.
The reflective glass acts as a barrier, controlling the amount of heat energy emitted by the sun due to its low solar coefficient. The pane is coated with a special film that reflects sunlight and protects the building from excessive solar radiation, reducing cooling costs. Additionally, the highly reflective coating creates a mirror-like surface effect that provides excellent privacy, which is why it is actively used in façade glazing. From the inside, however, the glass appears transparent, allowing an undistorted view of the outside [43,44,45]. The main characteristics of the reflective glass are shown in Table 5.
Thermofloat glass, also known as low-emissivity glass, is used to retain heat in a room. The surface of Thermofloat glass is coated with a special layer that reflects long-wave heat radiation while allowing the same amount of daylight to pass through like it would through normal transparent glass. This feature increases the thermal insulation of the window and has a positive effect on both heating costs and user comfort [46].
In addition to the front windows, the reading room is equipped with skylights installed in the ceiling, allowing additional daylight to enter. This design feature is possible because there are no other rooms above the reading room and the hall’s ceiling forms a flat roof. The skylights are grouped into three rows (with eight units in each row) and placed on the opposite side of the hall from the windows. The dimensions of each skylight are 1.2 × 1.2 m, with a depth of 2.5 m [41]. These proportions suggest that the skylights are insufficient to provide adequate daylight to the room, as the intensity of light decreases over such a long path, creating a “well” light effect (Figure 4).
The top of the skylight is covered with a cellular polycarbonate sheet and a polyester panel. Cellular polycarbonate is a lightweight and practical material that is resistant to adverse weather conditions and has a special UV coating that allows only sunlight to pass through [47,48].
Cellular polycarbonate sheets and polyester panels diffuse sunlight due to their cellular structure and matt surface, providing soft and even illumination of the room. However, due to the considerable depth of the skylight opening in the ceiling of the SGGW library reading room, this function is not fully exploited. In addition, each skylight opening is fitted with an artificial light source from below a pendant lamp with a round shade that covers part of the opening, further restricting the amount of natural light entering the reading room.
Despite all of the advantages of the window design of the reading room which adorns the façade and roof of the SGGW Library, their size, number, and light and heat transmission properties still do not provide an adequate level of natural lighting. In this case, the main drawback is the orientation of the windows, which does not work well in Warsaw due to the relatively few sunny days per year.

3.2. The Main Reading Room of the University of Warsaw Library (UW)

An important functional element within the structure of the university is the University of Warsaw Library (UW), with its buildings spread across three districts in Warsaw, Śródmieście, Ochota, and Służewiec, as well as outside the city and even beyond Poland’s borders [49]. The analyzed UW Library is located in the central part of the city—Śródmieście—on a 3.3 ha plot, following the development plan for Śródmieście designated for University of Warsaw buildings and green areas [50].
The area of the UW Library is bordered by Dobra, Lipowa, and Wybrzeże Kościuszkowskie Streets and is surrounded not only by university buildings but also by other types of facilities: residential buildings, shops, restaurants, beauty salons, etc. It is close to the Copernicus Science Centre and the Old Town with the Royal Castle. The UW Library’s location not only makes it an important participant in the educational process, but also promotes active interaction with the city’s community (Figure 5).
The library building at the University of Warsaw was built between 1993 and 1999 based on a design by architects Budzyński and Badowski in cooperation with the then Director of the Library, Kobierska-Maciuszka (Table 6).
The building is divided into two parts: the library part, where the main library operations take place, and the commercial part, where rental offices, bookshops, agencies, and cafés are located. The two parts are connected by an “alley”, which serves as a public space and is used for various social events. The building has four aboveground levels and two underground levels. The floor plan of the building is approximately 129 × 112 m, with a total area of approximately 14,450 m2 [50]. The main attraction of the library is the roof garden—one of the largest and finest roof gardens in Europe [52,53].
The UW library building is mainly made of concrete. Its façades are richly decorated with large windows, not only in the walls but also around the perimeter of the roof. In addition to the windows, one-third of the roof area is occupied by skylights which provide natural lighting for the “alley” inside the building, the library’s main information hall, the main reading room, the periodicals room, the special collections room on the top floor, as well as the underground car park entrance, staircases, boiler room, kitchen, etc. [50].
The structure of the library comprises twelve zones with a total area of approximately 3200 m2 designed for interaction with the library’s collection. This study was carried out in the main reading room, located on the second floor of the building. The reading room is rectangular, measuring 19.0 × 28.8 m, with a height to the highest level of over 12.5 m [50]. The floor area of the first level of the room is approximately 550 m2, with a volume of approximately 5965 m3. The reading room has two levels, the second of which is a mezzanine floor with individual workstations.
The reading room has no windows. On the northwest side, the building has a semi-structural wall which, through the use of curved glass at the junction, flows seamlessly into a double-pitched glass roof. Given the amount of glazing (over 125% of the floor area) and the orientation of the transparent structure, it is clear that the reading room has a high level of natural light.
High-quality lighting is best achieved when the sky is overcast and direct sunlight is not entering the room. The room is then filled with soft, diffused light, which, given the primary function of the reading room—working with printed materials and using computers—is the most comfortable light for the human eye. In sunny weather, however, direct sunlight passes through the glass roof, causing glare not only on the walls but also on the working surfaces of the desks. This leads to overheating in the lit part of the room, creating uncomfortable conditions for concentrated mental and visual work. The difference in natural light intensity in the UW library reading room under different weather conditions is shown in Figure 6.
The semi-structural wall of the reading room at Warsaw University Library consists of aluminum brackets with seals on the inside of the wall. As a result, only the glass is visible from the outside. The height of the glass wall (over 8 m from the inside) requires the use of steel columns with diameters of 150 mm and 70 mm to reinforce the wall from the inside. The glass wall rises 0.80 m above the floor and is divided into 53 sections by a frame. Of these, 27 sections are double-glazed windows measuring 1.85 × 2.10 m, 6 sections are double-glazed windows measuring 0.95 × 2.10 m, and 20 sections are curved glass measuring 0.95 × 2.20 m (Figure 7). The glass used is reflective with a low solar energy transmittance (g = 24%). Information on the use of low-emissivity glass in the double-glazed windows to retain heat in the room is not available to the authors of this study.
As mentioned above, in addition to the design of the glass wall structure, the reading room is also illuminated by a skylight in the form of a glass roof that covers the entire area of the room. The roof is supported by a specially designed structure of steel tubes coated with fire-resistant protective coatings. The design is “organic” in style, resembling the shape of branching trees. The glazing of the skylight meets the basic requirements of reliability, light transmission, and thermal insulation. The skylight structure uses double-glazed windows with two layers of grey-green glass.
The outer glass is tempered (ESG), while the inner glass is laminated (VSG). ESG-tempered glass has increased impact resistance, reducing the risk of breakage. It is five to seven times stronger than ordinary glass and shatters into small, safe pieces when damaged. In addition, the upper pane is coated with a special film that reflects sunlight, giving the skylight a mirrored appearance from the outside. Laminated VSG glass is also designed with durability in mind. It consists of at least two layers of glass bonded together with a polyvinyl butyral (PVB) film, which gives it increased resistance to breakage and allows it to retain its shape in the event of damage [54].
The use of durable glass on the roof makes it safe to walk on. At the same time, manufacturers of such double-glazed windows claim that their product effectively retains solar energy, which has a positive effect on the air conditioning of the room. Given the physical properties of the glazing unit, characterized by indicators such as a U-value of 1.1 W/m2K, a solar factor (g) of 24%, and a light transmission (LT) of 42%, direct sunlight entering the room should be minimal. However, these indicators do not seem to hold up in the actual situation shown in Figure 6b.
Table 7 shows the main architectural and structural parameters of the reading rooms studied. From the table, it can be seen that with a slight difference in floor area between the two rooms, the lighting levels vary significantly. This is mainly because the glazing area in the reading room of the UW Library is almost four times larger than the glazing area in the reading room of the SGGW Library. Another no less important criterion for increasing the lighting level is the height of the room, which has a direct effect on the volume of the room. The height of the UW reading room is almost three times greater than the height of the SGGW library reading room, and the volume is twice as large.
Table 8 presents the main architectural and construction indicators of translucent constructions of reading rooms. The table indicates the type of translucent structure (Tts), number of windows (Nw), window height (Hw), window width (Ww), window length (Hw) (for skylights and glass roof), glazing area (Ag), and translucent material (Mt).

4. Discussion

Natural lighting is an integral part of the physical environment of any space. Providing high-quality daylight helps to create a comfortable environment for productive work and effective relaxation. Therefore, providing optimal levels of natural light in library reading rooms requires increased attention.
To date, many studies on lighting in different types of buildings have focused mainly on improving environmental quality and increasing energy savings [55]. Most existing research emphasizes artificial lighting and energy consumption [56]. Separate studies focus on evaluating and improving natural lighting in residential and educational spaces.
However, few studies assess the lighting environment in libraries, in particular, reading rooms [57,58]. Therefore, studies on natural lighting in reading rooms need to be further investigated and refined. In addition, architectural norms and standards do not provide specific suggestions for the organization of daylight in libraries, especially in reading rooms. The few guidelines that do address reading room lighting often overlook the physical parameters of the space and the natural conditions in which these rooms are located. Therefore, to improve the efficiency of natural lighting in reading rooms and save energy costs due to heating and air conditioning, it is crucial to study the specifics of organizing daylight in this type of space, based not only on an understanding of the physical properties of light, but also on taking into account the physical parameters of the spaces, the natural conditions in which they are located, and the physical–technical characteristics of different types of glass and semi-transparent structures [59].
Given the important role of the library in the educational process, bright and spacious reading rooms are essential for its proper functioning. If they are well organized and well lit, they can be actively used as a primary space for individual and group study, for working with library collections and personal materials, for concentrated work, and for meeting friends. Therefore, the reading room is (or should be) the most desirable type of space in the library.
The principle of participatory design emphasizes involving stakeholders, including future users, in the design process [60]. Integrating user feedback during library design is crucial for creating spaces that truly meet the expected needs. A library designed with participatory principles creates an environment that may be not only visually appealing but also conducive to learning, relaxation, and social interaction. Nevertheless, some studies indicate that there are notable differences between the views of experts (architects and civil engineers) and the experiences of actual building occupants. Bridging the gap between expert perspectives and the real-world experiences of occupants could help guide the development of building environments that are more effective, sustainable, and user-friendly [61].
The quality of natural lighting is crucial to meeting users’ needs, maintaining physical and mental health, and reducing the overall energy consumption of the building. Therefore, this study considered the physical–technical parameters of the reading rooms, namely the room dimensions (width, length, height, area, volume), type of natural lighting (side, top), type of translucent structure (window, wall, skylight), sizes of translucent structure (width, length, height, area), ratio of glazed area to room area, and physical–technical properties of different types of semi-transparent materials (glass and fiberglass). All of these parameters have a significant impact on increasing the level and improving the quality of natural lighting in reading rooms.
For example, this study suggests that to improve the effectiveness of natural lighting in the SGGW library reading room, it would be necessary to increase the height of the room and the height of the windows. Given the orientation of the windows, increasing their height would allow more diffused daylight to penetrate deeper into the room without causing problems with excessive brightness or glare on work surfaces. This would minimize the need for artificial lighting. Another solution to improve the lighting conditions in the SGGW library reading room could be to reduce the depth of the skylight. This would maintain the intensity of natural light as it passes through the translucent material into the room, making it more effective. In the case of the reading room at the UW Library, the main problem is reflection on the desktops. This is because direct sunlight enters the room through the double-sloped glass roof, specifically the sloping roof surface on the southeast side. If the roof was single-sloped and facing north, there would be no problem with glare.
Glare is a critical problem in many spaces, often caused by natural lighting. However, reflections on the glass façades of buildings can be extremely dangerous for the climate and for people. The sun’s scorching rays, combined with the concave shape of buildings and the reflective coating of their façades, can turn into death rays that burn everything in their path. For example, the glass coating on the façades of the Vdara Hotel in Las Vegas and the Skyscraper in London reflects the sun’s rays and the concave shape of the buildings directs the rays to a single point. The surface at this point is heated to an extremely high temperature, melting not only plastic but also metal parts [62]. Unfortunately, there are many such dangerous objects in architectural practice. In addition, the sun’s rays reflected from glass façades heat the surrounding air, contributing to global warming and moving away from sustainable development.
The effect of solar glare can be minimized by using a special type of translucent material. An alternative to ordinary glass is highly reflective glass. However, as this study shows, not all is clear-cut. As mentioned earlier, the most popular material for solar shading is reflective glass, which is used in both libraries studied. Given that the reading room windows in both libraries face north, the use of reflective glass is not functionally justified. Instead, a more decorative approach to façade design was taken, focusing on the reflective effect of the surroundings. This enhances the modernity of the architectural image and gives it a sense of mystery.
On the other hand, the use of glass with low light transmission does not prevent bright reflections on the work surfaces in the reading room of the University of Warsaw Library. This suggests that the technology for producing solar control glass needs further research and improvement. An alternative is smart glass (or electrochromic glass), which changes from semi-transparent to transparent and vice versa when an electric current is applied, without changing the light transmission [27]. Electrochromic glass can be part of a healthy building strategy, providing access to daylight throughout the day without glare or excessive heat [36]. By optimizing heat exchange, smart glass reduces the load on heating, ventilation, and air conditioning systems, contributing to energy savings and building energy efficiency [57].
This study has shown that in Warsaw’s weather conditions, where there are only a few sunny days a year, the optimal solution for the design of library reading rooms is to increase the ratio of glazed area to room area. The most popular and reliable semi-transparent material is glass. To maintain comfortable thermal conditions, the best approach is to use double-glazed windows with different types of glass; to avoid overheating, reflective glass is recommended, and to retain heat in the room, low-emissivity glass is suggested. Both types of glass can be fire-resistant and, if necessary, toughened for added durability.
Visual comfort and energy efficiency are therefore critical elements in the lighting design of any space, including library reading rooms. Several factors, highlighted in this study, should be considered to achieve optimum natural lighting levels and reduce the energy costs of running a building.

5. Conclusions

Daylight is natural and does not produce a stroboscopic effect, making it particularly valuable for reading room lighting. It has a positive effect on the physical and mental health of users. Natural light has unique physical properties that offer significant advantages over various artificial light sources. At the same time, natural lighting has considerable variability, which can pose a challenge when organizing it within a building. The right architectural parameters and the geometry of transparent structures can be effectively integrated into the design process, contributing positively to the creation of a comfortable lighting environment through architecture and design. In addition, improving natural lighting conditions can improve the performance of a space and reduce electricity consumption.
Providing visually comfortable lighting for reading rooms should become a priority task during the design of library buildings. At the same time, it is crucial not only to anticipate users’ qualitative and quantitative needs, such as the type of activity (focused work with printed text, computer work, or quiet reading), work duration (long-term or short-term), work time (morning, noon, or evening), but also to consider the architectural image of the library (building and room geometry), as well as the natural and climatic conditions of the location (air temperature, amount of solar radiation, and day length). Taking all of these factors into account will help make the right decision regarding the building’s orientation and application of the most efficient type of transparent structures and materials.
There is no doubt about the need to install transparent structures in reading rooms. They are an effective way of letting daylight into the room and maintaining visual contact with the surroundings. In addition, transparent structures are an integral part of the library building envelope and are the main points of heat accumulation and loss. The choice of the right type of transparent structure and the material to fill it should therefore be based primarily on consideration of the needs of the reading room in terms of filling its spaces with soft and diffused light to ensure high-quality functionality, as well as on an analysis of the natural and climatic factors and the physical–technical indicators described in this study.
Modern library buildings can serve as examples of sustainable development and energy efficiency, actively using natural light to illuminate spaces, consuming energy with minimal environmental impact, and making a positive contribution to human life.

Author Contributions

Conceptualization, I.V.; methodology, I.V.; software, I.V.; validation, I.V. and A.P.; formal analysis, I.V. and A.P.; investigation, I.V.; resources, I.V.; data curation, I.V.; writing—original draft preparation, I.V. and A.P.; writing—review and editing, I.V. and A.P.; visualization, I.V.; project administration, I.V.; funding acquisition, I.V. and A.P. All authors have read and agreed to the published version of the manuscript.

Funding

This study was performed within the project MINIATURA 7 titled “The role of light in shaping a comfortable environment in Polish libraries, taking into account energy efficiency”, funded by the National Science Centre, Poland, under grant number DEC-2023/07/X/ST8/01209.

Data Availability Statement

The data are contained within this article.

Acknowledgments

The authors would like to thank Wojciech Wozniak—Director of the SGGW Library, Piotr Bien—Head of the Economic Section of the SGGW, Jolanta Talbierska—acting Director of BUW Library, and Marlena Nawrocka—Deputy Head of the Administrative Section of BUW for their assistance in data collection and data curation.

Conflicts of Interest

The authors declare no conflicts of interest.

References

  1. Šujanová, P.; Rychtáriková, M.; Sotto Mayor, T.; Hyder, A. A Healthy, Energy-Efficient and Comfortable Indoor Environment, a Review. Energies 2019, 12, 1414. [Google Scholar] [CrossRef]
  2. Soares, N.; Bastos, J.; Pereira, L.D.; Soares, A.; Amaral, A.R.; Asadi, E.; Rodrigues, E.; Lamas, F.B.; Monteiro, H.; Lopes, M.A.R.; et al. A Review on Current Advances in the Energy and Environmental Performance of Buildings towards a More Sustainable Built Environment. Renew. Sustain. Energy Rev. 2017, 77, 845–860. [Google Scholar] [CrossRef]
  3. Yun, G.; Yoon, K.C.; Kim, K.S. The influence of shading control strategies on the visual comfort and energy demand of office buildings. Energy Build. 2014, 84, 70–85. [Google Scholar] [CrossRef]
  4. Boyce, P.; Hunter, C.; Howlett, O. The Benefits of Daylight through Windows. Report; Lighting Research Center, Rensselaer Polytechnic Institute: Troy, NY, USA, 2003. [Google Scholar]
  5. Xie, F.; Song, H.; Zhang, H. Research on Light Comfort of Waiting Hall of High-Speed Railway Station in Cold Region Based on Interpretable Machine Learning. Buildings 2023, 13, 1105. [Google Scholar] [CrossRef]
  6. Lipowicz-Budzyńska, A. Art glass as an external partition—Its impact on visual and functional properties. Architectus 2019, 3, 69–82. [Google Scholar] [CrossRef]
  7. Knera, D.; Szczepańska, E.; Heim, D. Providing an interior daylight environment through the use of light pipes. Tech. Trans. Civ. Eng. 2014, 195–203. [Google Scholar] [CrossRef]
  8. Sitek, M.; Malinowska-Borowska, J. Conditions of lighting in reading rooms located in public and school libraries in Silesian Voivodeship. Environ. Med. 2013, 16, 38–44. [Google Scholar]
  9. Cherpinska, I. The natural lighting of library rooms and buildings. Archit. Bull. Lviv. Polytech. Natl. Univ. 2007, 585, 168–173. (In Ukrainian) [Google Scholar]
  10. PN-EN 12464-1:2022-01; Light and Lighting. Workplace Lighting. Part 1: Indoor Workplaces. Polish Committee for Standardization: Warsaw, Poland, 2022.
  11. Pawlak, A. Illumination of indoor workplaces—A new lighting standard. Work Saf. 2004, 10, 6–10. (In Polish) [Google Scholar]
  12. Muñoz-González, C.; Ruiz-Jaramillo, J.; Cuerdo-Vilches, T.; Joyanes-Díaz, M.D.; Montiel Vega, L.; Cano-Martos, V.; Navas-Martín, M.Á. Natural lighting in historic houses during times of pandemic. The case of housing in the Mediterranean climate. Int. J. Environ. Res. Public Health 2021, 18, 7264. [Google Scholar] [CrossRef] [PubMed]
  13. Michael, A.; Heracleous, C. Assessment of natural lighting performance and visual comfort of educational architecture in Southern Europe: The case of typical educational school premises in Cyprus. Energy Build. 2017, 140, 443–457. [Google Scholar] [CrossRef]
  14. Jia, Y.; Liu, Z.; Fang, Y.; Zhang, Y.; Zhao, C.; Cai, X. Effect of interior space and window geometry on daylighting performance for terrace classrooms of universities in severe cold regions: A case study of Shenyang, China. Buildings 2023, 13, 603. Available online: https://www.mdpi.com/2075-5309/13/3/603 (accessed on 26 February 2024). [CrossRef]
  15. Akanmu, W.P.; Nunayon, S.S.; Eboson, U.C. Indoor Environmental Quality (IEQ) Assessment of Nigerian University Libraries: A Pilot Study. Energy Built Environ. 2021, 2, 302–314. [Google Scholar] [CrossRef]
  16. Deng, Q.; Allard, B.; Lo, P.; Chiu, D.K.; See-To, E.W.; Bao, A.Z. The Role of the Library Café as a Learning Space: A Comparative Analysis of Three Universities. J. Librariansh. Inf. Sci. 2019, 51, 823–842. [Google Scholar] [CrossRef]
  17. Lourenço, P.; Pinheiro, M.D.; Heitor, T. Light Use Patterns in Portuguese School Buildings: User Comfort Perception, Behaviour, and Impacts on Energy Consumption. J. Clean. Prod. 2019, 228, 990–1010. [Google Scholar] [CrossRef]
  18. Peters, T.; D’Penna, K. Biophilic Design for Restorative University Learning Environments: A Critical Review of Literature and Design Recommendations. Sustainability 2020, 12, 7064. [Google Scholar] [CrossRef]
  19. Borrelli, S.; Chao, Z.; Su, C. Reflecting the Voice of the Student: A Case Study from The Pennsylvania State University Using Mixed-Methods in Assessing Space. Libr. Manag. 2019, 40, 121–127. [Google Scholar] [CrossRef]
  20. Zhang, Z. The Effect of Library Indoor Environments on Occupant Satisfaction and Performance in Chinese Universities Using SEMs. Build. Environ. 2019, 150, 322–329. [Google Scholar] [CrossRef]
  21. Liu, Q.; Ren, J. Research on the Building Energy Efficiency Design Strategy of Chinese Universities Based on Green Performance Analysis. Energy Build. 2020, 224, 110242. [Google Scholar] [CrossRef]
  22. Makaremi, N.; Schiavoni, S.; Pisello, A.L.; Cotana, F. Effects of Surface Reflectance and Lighting Design Strategies on Energy Consumption and Visual Comfort. Indoor Built Environ. 2019, 28, 552–563. [Google Scholar] [CrossRef]
  23. Izmir Tunahan, G.; Altamirano, H.; Teji, J.U.; Ticleanu, C. Evaluation of Daylight Perception Assessment Methods. Front. Psychol. 2022, 13, 805796. [Google Scholar] [CrossRef] [PubMed]
  24. Abisuga, A.O.; Wang, C.C.; Sunindijo, R.Y. A Holistic Framework with User-Centred Facilities Performance Attributes for Evaluating Higher Education Buildings. Facilities 2019, 38, 132–160. [Google Scholar] [CrossRef]
  25. Kaymaz, E.; Manav, B. A Proposal on Residential Lighting Design Considering Visual Requirements, Circadian Factors, and Energy Performance of Lighting. J. Asian Archit. Build. Eng. 2023, 22, 2851–2866. [Google Scholar] [CrossRef]
  26. Samotyj, R.; Voronkova, I. Forming Modern Architectural Space in a University Library in the Example of Renovation of Some Libraries “4th Wroclaw Meetings of Librarians”; Oficyna Wydawnicza Politechniki Wrocławskiej: Wroclaw, Poland, 2014; pp. 383–393. (In Polish) [Google Scholar]
  27. Voronkova, I. Types of architectural glass to improve the energy efficiency of buildings. Acta Sci. Pol. Archit. 2021, 3, 77–83. [Google Scholar] [CrossRef]
  28. Sottile, G.M. Cleantech Daylighting Using Smart Glass: A Survey of LEED® Accredited Professionals. Clean Technol. Proc. 2008, 201–204. [Google Scholar]
  29. Qahtan, A.M.; Shaik, S.; Alwadai, Y.A.; Alhamami, S.; Alawlaki, A.S.; Alyami, M.H.; Kodati, J.A. Smart Glazing Systems vs. Conventional Glazing: A Comprehensive Study on Temperature Control, Daylighting, and Sustainability. Int. J. Sustain. Dev. Plan. 2024, 19, 939–947. [Google Scholar] [CrossRef]
  30. Liu, X.; Wu, Y. A review of advanced architectural glazing technologies for solar energy conversion and intelligent daylighting control. Archit. Intell. 2022, 1, 10. [Google Scholar] [CrossRef]
  31. Central Institute for Labor Protection—National Research Institute. Lighting Parameters Affecting Work Safety and Visual Comfort. Available online: https://www.ciop.pl/CIOPPortalWAR/appmanager/ciop/pl?_nfpb=true&_pageLabel=P30001831335539182278&html_tresc_root_id=23200&html_tresc_id=23217&html_klucz=19558&html_klucz_spis (accessed on 26 February 2024). (In Polish).
  32. Losyk, M.; Zvir, O. Technological and Physical and Chemical Properties of Glass: Education, Manual; LNAM: Lviv, Ukraine, 2018; p. 40. (In Ukrainian) [Google Scholar]
  33. Weissman, D. Heliotropic shading: Daylighting a rare books reading room with electrochromic glass and parametric analysis. Leukos J. Illum. Eng. Soc. 2024, 20, 148–171. Available online: https://www.tandfonline.com/doi/epdf/10.1080/15502724.2023.2219019?needAccess=true (accessed on 26 February 2024). [CrossRef]
  34. Twarowski, M. The sun in architecture. Arkady 1970, 296. (In Polish) [Google Scholar]
  35. Gnes, I.P.; Rudyk, R.A.; Yakubovskyi, V.B.; Yakubovskyi, I.V. Single-Family Residential Building: Study Guide; Lviv Polytechnic National University Publishing House: Lviv, Ukraine, 2007; pp. 43–45. (In Ukrainian) [Google Scholar]
  36. Pawlak, J.; Zalupka, M. Warsaw Climate. Office of Architecture and Spatial Planning Capital City Warsaw. Available online: https://architektura.um.warszawa.pl/documents/12025039/22491719/klimat_broszura.pdf/b654b97c-8c88-dbf2-0168-38fa1971c4ca?t=1634497936327 (accessed on 26 February 2024). (In Polish).
  37. KLIMAT IMGW-PIB: Climate Standards 1991–2020. Available online: https://klimat.imgw.pl/pl/climate-normals/D_POGODNE (accessed on 26 February 2024). (In Polish).
  38. Brach, M.; Jaworska, A.; Sarnowski, M.; Kalinowska-Szymczak, A. The Library under the Microscope, i.e., a New Dimension of the SGGW Main Library in GIS Technology. Available online: https://www.arcanagis.pl/biblioteka-pod-lupa-czyli-nowy-wymiar-biblioteki-glownej-sggw-w-technologii-gis/ (accessed on 26 February 2024). (In Polish).
  39. Main Library of SGGW—Stage I, Warsaw, Poland. Architectural and Construction Design: Arch. Fijałkowski, S. Unpublished work. 1996. (In Polish) [Google Scholar]
  40. Main Library of SGGW—Stage III, Warsaw, Poland. Electrical Installations: Post-Completion Documentation. Unpublished work. 2004. (In Polish) [Google Scholar]
  41. Main Library of SGGW—Stage III, Warsaw, Poland. Construction Works, Part 1: Post-Completion Documentation. Unpublished work. 2005. (In Polish) [Google Scholar]
  42. GreenSWIFT. Rack-and-Transom Facades. Available online: https://greenswift.com.ua/uk/stijkovo-rigelni-fasadi/ (accessed on 26 February 2024). (In Ukrainian).
  43. GFO Gdansk Glass Factory. Available online: https://www.gfo.com.pl/szyby/szyby-refleksyjne-stopsol/ (accessed on 26 February 2024). (In Polish).
  44. AGC. Technical Data Sheet—Stopsol, 11/2011. Available online: https://www.agc-yourglass.com/sites/default/files/technical_documents/original/stopsol-tds.pdf (accessed on 26 February 2024).
  45. Glass, Properties of Glass for Various Purposes, an Assortment of Glass Products. Available online: https://vuzlit.com/282143/vikoristannya_skla_suchasnomu_budivnitstvi#533 (accessed on 26 February 2024). (In Ukrainian).
  46. INTERNORM. Low-Emission Glass—Energy-Saving Windows. Available online: https://okna.waw.pl/poradnik/szklo-niskoemisyjne-okna-energooszczedne (accessed on 26 February 2024). (In Polish).
  47. MERCOR. Technical and Operational Documentation. Fixed Skylights, Ventilation Flaps, mcr PROLIGHT Roof Hatches. Available online: https://mercor.com.pl/upload/product/123/attachments/65/DTR_MCR_PROLIGHT_Świetliki,%20klapy%20wentylacyjne,%20wyłazy%20dachowe%20(HO.21.01285%20rev.B).pdf (accessed on 26 February 2024). (In Polish).
  48. GREENHOUSE. Available online: https://szklarnia.pro/pl/poliweglan-komorowy/237-poliweglan-komorowy.html (accessed on 26 February 2024). (In Polish).
  49. University of Warsaw. Visit Us. Available online: https://www.uw.edu.pl/odwiedz-nas/ (accessed on 26 February 2024).
  50. Construction Warehouse. Monographic Issue Devoted to the Presentation of the New Headquarters of the University Library in Warsaw; Bertelsmann, Professional Publishing House: Gütersloh, Germany, 1999; Volume 7. (In Polish) [Google Scholar]
  51. Architektura.Info. BUW—Building Festival. Available online: https://architektura.info/wiadomosci/wydarzenia_architektoniczne/buw_festiwal_budynkow (accessed on 26 February 2024). (In Polish).
  52. Cherpinska, I. Architecture of library areas. Tradit. Innov. High. Archit. Artist. Educ. 2008, 1–3, 313–317. (In Ukrainian) [Google Scholar]
  53. Voronkova, I.; Gumennyk, I. “Green” roofs as a crucial element for energy efficiency. Cases of library buildings. In Proceedings of the 5th International Scientific and Practical Conference “Innovative Technology in Architecture and Design” (ITAD-2021), Kharkiv, Ukraine, 20–21 May 2021; Volume 2490. [Google Scholar]
  54. SageGlass Saint-Gobain. Available online: https://www.sageglass.com/smart-windows/how-electrochromic-glass-works (accessed on 26 February 2024).
  55. Alsabry, A.; Szymański, K.; Backiel-Brzozowska, B. Analysis of the Energy, Environmental and Economic Efficiency of Multi-Family Residential Buildings in Poland. Energies 2024, 17, 2057. [Google Scholar] [CrossRef]
  56. Prasad, R.D. School Electricity Consumption in a Small Island Country: The Case of Fiji. Energies 2024, 17, 1727. [Google Scholar] [CrossRef]
  57. Shen, J.; Zhang, X.; Mylly, N.; Lin, J. A critical review of lighting design and asset management strategies. Illuminating practices and lessons learned for Swedish public libraries. J. Phys. Conf. Ser. 2023, 2654, 012139. Available online: https://iopscience.iop.org/article/10.1088/1742-6596/2654/1/012139/pdf (accessed on 26 February 2024). [CrossRef]
  58. Garcia-Fernandez, B.; Omar, O. Integrated innovative solar lighting system for optimization of daylight utilization for public library in Alexandria, Egypt. Ain Shams Eng. J. 2023, 14, 101819. Available online: https://www.sciencedirect.com/science/article/pii/S2090447922001307 (accessed on 26 February 2024). [CrossRef]
  59. Djoković, J.M.; Nikolić, R.R.; Bujnak, J.; Hadzima, B.; Pastorek, F.; Dwornicka, R.; Ulewicz, R. Selection of the optimal window type and orientation for the two cities in Serbia and one in Slovakia. Energies 2022, 15, 323. Available online: https://www.mdpi.com/1996-1073/15/1/323 (accessed on 26 February 2024). [CrossRef]
  60. Kołacz, K.; Podlasek, A. Pro-Social Solutions in Residential Environments Created as a Result of Participatory Design. Sustainability 2024, 16, 510. [Google Scholar] [CrossRef]
  61. Mokhtariyan Sorkhan, F.; Roumi, S.; Soltanzadeh Zarandi, M.; Ashraf Ganjouei, M.A. The Impact of Indoor Environmental Quality on Occupant Satisfaction in Commercial Buildings: A Comparison of Building Expert Opinions and Residents’ Experiences. Energies 2024, 17, 1473. [Google Scholar] [CrossRef]
  62. Learn from London’s “Solar Death Ray”Tower. Available online: https://www.greenprophet.com/2013/09/learn-from-londons-solar-death-ray-tower/ (accessed on 26 February 2024).
Figure 1. A diagram for determining the optimal orientation of the building according to the cardinal directions (our own interpretation based on [35]).
Figure 1. A diagram for determining the optimal orientation of the building according to the cardinal directions (our own interpretation based on [35]).
Energies 17 03007 g001
Figure 2. The location of the SGGW Library: (a) a view of the library building from the southeast [38]; (b) the ground floor plan of the library building.
Figure 2. The location of the SGGW Library: (a) a view of the library building from the southeast [38]; (b) the ground floor plan of the library building.
Energies 17 03007 g002
Figure 3. SGGW library reading room: (a) view from window side; (b) view from entrance side. Author: I. Voronkova.
Figure 3. SGGW library reading room: (a) view from window side; (b) view from entrance side. Author: I. Voronkova.
Energies 17 03007 g003
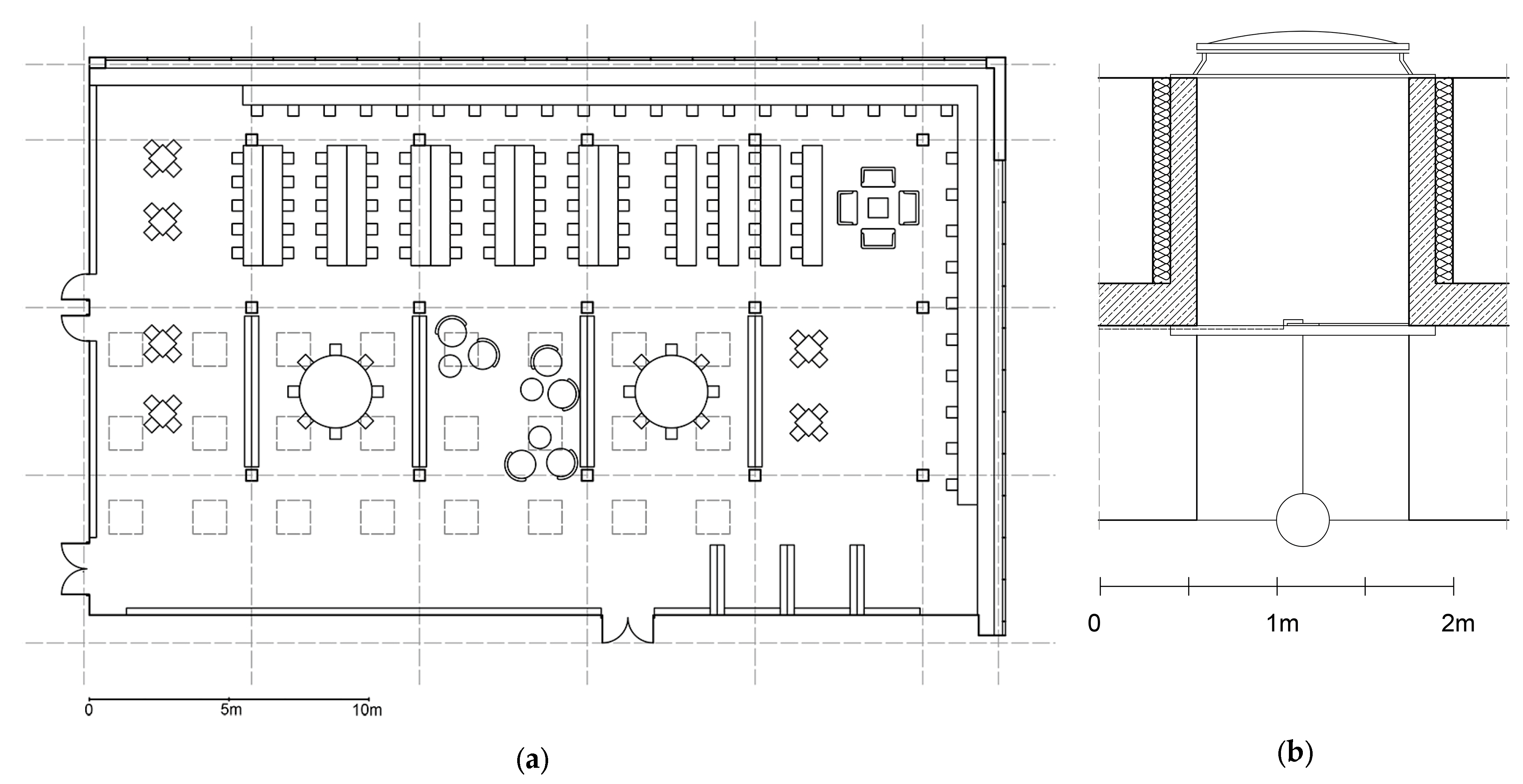
Figure 4. SGGW library reading room: (a) floor plan; (b) skylight cross-section. Author: I. Voronkova (own study based on [41]).
Figure 4. SGGW library reading room: (a) floor plan; (b) skylight cross-section. Author: I. Voronkova (own study based on [41]).
Energies 17 03007 g004
Figure 5. The location of the UW Library: (a) a view of the library building from the southwest [51]; (b) the layout of the UW library building.
Figure 5. The location of the UW Library: (a) a view of the library building from the southwest [51]; (b) the layout of the UW library building.
Energies 17 03007 g005
Figure 6. The natural light intensity in the reading room of the UW Library under different weather conditions: (a) on a cloudy day; (b) on a clear day. The photo was taken from the mezzanine of the reading room. Author: I. Voronkova.
Figure 6. The natural light intensity in the reading room of the UW Library under different weather conditions: (a) on a cloudy day; (b) on a clear day. The photo was taken from the mezzanine of the reading room. Author: I. Voronkova.
Energies 17 03007 g006
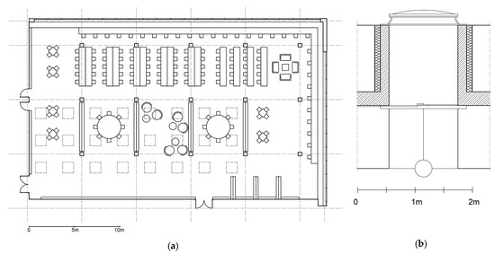
Figure 7. UW library reading room: (a) floor plan; (b) view of semi-transparent structures: glass roof above and glass wall below. Author: I. Voronkova.
Figure 7. UW library reading room: (a) floor plan; (b) view of semi-transparent structures: glass roof above and glass wall below. Author: I. Voronkova.
Energies 17 03007 g007
Table 1. A summary of selected studies dedicated to the design of library spaces and buildings conducted in 2019–2024.
Table 1. A summary of selected studies dedicated to the design of library spaces and buildings conducted in 2019–2024.
No.LocationAim of the StudyMain FindingsReference
1Minna,
Nigeria
To assess the environmental quality conditions in three academic libraries using objective measurements.
  • The illuminance levels in the three library spaces varied significantly and were also found to be unevenly distributed.
  • The propositions have been provided to deliver adequate daylight.
  • The quality of the indoor environment in the libraries was poor, indicating the need for intervention.
[15]
2Tsukuba, Japan
Hong Kong, China
Lexington, USA
To examine the roles of physical academic libraries as more learning-related activities.
To identify the similarities and differences in the usage of library cafés.
  • The library café serves as a multi-functional center to meet different needs; it can be used as a study space or a place for social activities and interaction.
  • The role of light was not analyzed.
[16]
3PortugalTo analyze light-use management in Portuguese secondary school buildings, focusing on the facilities, user behavior, and the impacts on energy consumption patterns.
  • Significant improvements in the lighting conditions of school buildings are essential to improve visual comfort, energy efficiency, and environmental sustainability.
  • Favorable conditions exist for making natural light the main light source in Portuguese schools.
[17]
4-To identify relevant studies that illustrate the benefits of biophilic design specifically for urban university campuses.
  • Lighting, air quality, and thermal comfort play significant roles in the quality of learning environments.
  • Lighting and shading levels should be able to be adjusted.
  • Bringing daylight into all educational areas creates a biophilic pattern of connection to natural systems, fostering a more productive working environment.
[18]
5Pennsylvania, USATo use methods to redesign a library facility.
  • Spacious and well-designed workspaces are crucial for the users’ productivity.
[19]
6Northeast ChinaTo identify how the indoor environment influences users’ satisfaction and performance in libraries.
  • The quality of the indoor environment has the greatest impact on performance in the context of a university library, with interior design playing a secondary role.
  • Artificial lighting can reduce student satisfaction, whereas natural daylight significantly improves mental health and productivity.
[20]
7ChinaTo analyze energy consumption characteristics of university facilities.
  • Energy efficiency should be integrated into architectural design and layout, functional design, structural design, system design, and other aspects.
  • The factors that influence energy efficiency of library buildings include landscape greening design, building orientation design, building form design, daylighting and natural ventilation design, outer-building envelope design, sun-shading design, window design, and air tightness design of doors and windows.
[21]
8Perugia, ItalyTo investigate the impact of different design strategies on lighting energy use and visual comfort.
  • The type of luminaire is the most critical factor in determining the quantity and quality of light in an indoor environment.
  • There is no single design solution to guarantee both low energy demand and high visual quality.
[22]
9London, UKTo present an overview of current knowledge on methods for assessing daylight perception
and to establish a methodology for assessing daylight perception in the context of the cultural background.
  • A summary of methods for assessing daylight perception was presented and a methodology for assessing daylight perception was established.
  • Daylight was the key factor when choosing the best desks in the library, with privacy, outdoor views, and quietness being the next most important considerations.
[23]
10-To propose a comprehensive set of attributes based on user requirements for assessing higher-education buildings.
  • Lighting control aims to ensure the optimal use of light to conserve energy and enhance user comfort.
[24]
11TurkeyTo assess the impacts of several lighting design parameters through a simulation case study.
  • The application of LED systems with lighting energy measures can improve lighting energy performance by up to 38%.
  • An increase in light levels can lead to glare and higher energy consumption, while a higher color temperature can harm the psychology of occupants.
  • A higher melanopic illuminance and/or color temperature are required to maintain circadian rhythms under overcast skies in winter months.
[25]
Table 2. The sum of sunshine hours in Warsaw (according to [37]).
Table 2. The sum of sunshine hours in Warsaw (according to [37]).
CharacteristicsJanuaryFebruaryMarchAprilMayJuneJulyAugustSeptemberOctoberNovemberDecember
Maximum71.8109.5214.9317.5356.5390.2437.5345.7298.5196.190.367.6
Average44.666.5139.4210.1272.4288.8295.4280.2193.1122.650.633.6
Minimum12.216.574.396.0134.5164.4148.6187.179.347.122.74.7
Table 3. Average value of sunny and cloudy days in Warsaw (according to [37]).
Table 3. Average value of sunny and cloudy days in Warsaw (according to [37]).
CharacteristicsJanuaryFebruaryMarchAprilMayJuneJulyAugustSeptemberOctoberNovemberDecember
Sunny days1.41.73.23.22.61.92.43.53.62.80.91.2
Cloudy days17.514.510.56.95.24.54.13.66.49.516.918.7
Table 4. Source data for SGGW library project; own research.
Table 4. Source data for SGGW library project; own research.
DescriptionData
AddressNowoursynowska St. 161, Warsaw, Poland
The distance from the city center8.5 km, convenient connection with the city center
LocationOn the campus of SGGW
Project developerArchitect: St. Fijalkowski. General Design Office “Budepol”
Implementation of the project1996–2006
The building area2310 m2
The number of floors2 above ground
The number of reading rooms4
The total area of the reading rooms~1200 m2
Table 5. A summary of the light, solar, and thermal properties of the Stopsol products of 6 mm thickness (according to [44]).
Table 5. A summary of the light, solar, and thermal properties of the Stopsol products of 6 mm thickness (according to [44]).
PropertiesLight Transmission,
%
Light Reflection on the Coating Side,
%
Light Reflection on the Glass Side,
%
Direct Energy Transmission,
%
Energy Reflection on the Coating Side,
%
Energy Reflection on the Glass Side,
%
Normal Emissivity
Value3134202228110.89
Table 6. Source data from University of Warsaw Library (UW) project; own research.
Table 6. Source data from University of Warsaw Library (UW) project; own research.
DescriptionData
AddressDobra St. 56/66, Warsaw, Poland
The distance from the city center2.1 km, convenient connection with the city center
LocationIn the center of the city
Project developerArchitects: M. Budzyński, Zb. Badowski
Implementation of the project1993–1999
The building area~14,450 m2
The number of floors4 above ground and 2 below ground
The number of reading rooms12
The total area of the reading rooms~3200 m2
Table 7. A comparison of architectural and construction indicators for the SGGW and UW reading rooms; source: own research.
Table 7. A comparison of architectural and construction indicators for the SGGW and UW reading rooms; source: own research.
NSGGW Reading RoomUW Reading Room
Wrr19.6 m28.8 m
Drr32.4 m19.0 m
Hrr4.6 m12.5 m
Hws1.0 m0.8 m
Arr~635 m2~550 m2
Vrr~2921 m3~5965 m3
NwWindows: 32
Skylights: 24
Glass wall: 53 glass units
Glass roof: 320 glass units
Ag~172 m2~700 m2
RtsF~27%~127%
Table 8. Comparative table of architectural and construction indicators of translucent structures of SGGW’s and UW’s Library; source: own research.
Table 8. Comparative table of architectural and construction indicators of translucent structures of SGGW’s and UW’s Library; source: own research.
NSGGW Reading RoomUW Reading Room
Type-I translucent structures
TtsWindowsGlass wall
Nw3253 glass units
Hw2.95 m2.10 m (27 units)
2.10 m (6 units)
2.20 m (20 units)
Ww1.45 m1.85 m (27 units)
0.95 m (6 units)
0.95 m (20 units)
Ag137 m2159 m2
MtReflective glass
and low-emissivity glass
Reflective glass
Type-II translucent structures
TtsSkylightsGlass roof
Nw24320 glass units
Lw1.20 m1.13 m (120 units)
2.16 m (200 units)
Ww1.20 m0.95 m
Ag35 m2540 m2
MtCellular polycarbonate sheet
and polyester panel
Tempered glass
and laminated glass
Disclaimer/Publisher’s Note: The statements, opinions and data contained in all publications are solely those of the individual author(s) and contributor(s) and not of MDPI and/or the editor(s). MDPI and/or the editor(s) disclaim responsibility for any injury to people or property resulting from any ideas, methods, instructions or products referred to in the content.

Share and Cite

MDPI and ACS Style

Voronkova, I.; Podlasek, A. The Use of Transparent Structures to Improve Light Comfort in Library Spaces and Minimize Energy Consumption: A Case Study of Warsaw, Poland. Energies 2024, 17, 3007. https://doi.org/10.3390/en17123007

AMA Style

Voronkova I, Podlasek A. The Use of Transparent Structures to Improve Light Comfort in Library Spaces and Minimize Energy Consumption: A Case Study of Warsaw, Poland. Energies. 2024; 17(12):3007. https://doi.org/10.3390/en17123007

Chicago/Turabian Style

Voronkova, Ivanna, and Anna Podlasek. 2024. "The Use of Transparent Structures to Improve Light Comfort in Library Spaces and Minimize Energy Consumption: A Case Study of Warsaw, Poland" Energies 17, no. 12: 3007. https://doi.org/10.3390/en17123007

APA Style

Voronkova, I., & Podlasek, A. (2024). The Use of Transparent Structures to Improve Light Comfort in Library Spaces and Minimize Energy Consumption: A Case Study of Warsaw, Poland. Energies, 17(12), 3007. https://doi.org/10.3390/en17123007

Note that from the first issue of 2016, this journal uses article numbers instead of page numbers. See further details here.

Article Metrics

Back to TopTop