Next Article in Journal
Renovation of Modernist Housing Developments in the Pursuit of Modernity for Well-Being and Clean Energy
Next Article in Special Issue
Enhancing User Engagement in Local Energy Initiatives Using Smart Local Energy Engagement Tools: A Meta Study
Previous Article in Journal
Energy Efficient UAV Flight Control Method in an Environment with Obstacles and Gusts of Wind
Previous Article in Special Issue
User-Centric BIM-Based Framework for HVAC Root-Cause Detection
 
 
Font Type:
Arial Georgia Verdana
Font Size:
Aa Aa Aa
Line Spacing:
Column Width:
Background:
Article

Possibilities of Adapting the University Lecture Room to the Green University Standard in Terms of Thermal Comfort and Ventilation Accuracy

by
Piotr Kosiński
* and
Aldona Skotnicka-Siepsiak
Faculty of Geoengineering, University of Warmia and Mazury in Olsztyn, Heweliusza 10, 10-724 Olsztyn, Poland
*
Author to whom correspondence should be addressed.
Energies 2022, 15(10), 3735; https://doi.org/10.3390/en15103735
Submission received: 7 April 2022 / Revised: 15 May 2022 / Accepted: 17 May 2022 / Published: 19 May 2022

Abstract

:
Numerous classrooms at the University of Warmia and Mazury in Olsztyn, built in the years 1960–1980, require deep modernization to implement the idea of the green university there. The paper presents an energy analysis of possible scenarios of modernization of a selected lecture hall and an indication of the optimal variant in terms of the user’s thermal comfort. The conditions of the room were experimentally measured. Authors compared the energy effects of typical thermorenovation activities, such as increased thermal resistance of external walls (reduction of the primary energy (EP) demand by about 45%), with more advanced measures, such as replacement of natural ventilation with mechanical with heat recovery (indicated in the course of numerical studies as necessary for health and comfort of users). The authors also compared the effectiveness of the heat network and individual sources that could be implemented in the building. The heat pump, in combination with photovoltaic panels, turned out to be optimal (reduction of the EP by 97%, utility energy by 69%). As the problem of modernizing facilities to a similar standard is also faced by many campuses, school facilities, and assembly rooms in Central and Eastern Europe, the presented results can be a reference point for similar activities in other locations.

1. Introduction

1.1. The Idea of Green University

The concepts of green universities (GU) and sustainable campuses (SC) have gained enormous interest around the world. Numerous universities, being aware of the need to develop ecological and energy-saving solutions and their leadership role in the process of social change, try to participate in precursory activities. The importance of this issue can be demonstrated by the numerous organizations and associations devoted to this subject. It should be mentioned that the Association of University Leaders for a Sustainable Future, which is associated with over 500 universities from over 50 countries and bases its operations on a 10-point action plan—the Talloires Declaration [1]. The Association for the Advancement of Sustainability in Higher Education created a tool in the form of The Sustainability Tracking, Assessment & Rating System™, which helped 1083 institutions measure their sustainability performance [2]. The United Nations Environmental Education and Training Unit, through their Global Universities Partnership on Environment and Sustainability (GUPES) flagship program, has created the national and regional Green University Networks [3].
There are numerous rankings and statements, classifying how “green” the university is. For example, to assess how sustainable the university, The Guardian’s People & Planet University League [4] published in December 2021 a ranking of universities in the UK. Among 154 universities under consideration, the first place was taken by Manchester Metropolitan University, but the issue of a sustainable campus is also discussed more broadly in society [5]. The Environmental Academy of Universities and Colleges decided that the International Green Gown Awards 2021 for the ‘Sustainability Institution of the Year’ category would be won by Polytech Montpellier (France) and Keele University (UK) [6]. The International Sustainable Campus Network in 2021, in the category of Whole Systems Approach, awarded Covenant University [7]. In 2010, Universitas Indonesia initiated the UI Green Metric World University Rankings, which, in 2021, was hosted by Wageningen University & Research [8].
So far, nine university buildings in Olsztyn have been modernized in terms of increasing the wall or roof thermal resistance, window and door replacement, or modernization of the heating system [9]. Currently, six other buildings (including one dormitory) are under modernization, while twelve others will be modernized in the next few years. In one of the boiler rooms, a coal system was replaced by a wood chip system. In the near future, the Kortowo Park (a part of the university campus) revitalization is planned. It will include the planting of thousands of new trees. This will contribute to lowering the concentration of pollutants and, in parallel, will work as a source of biomass and a moisture buffer.
In the presented article, an attempt was made to identify the optimal activities that can be carried out due to energy efficiency for the university rooms, which were built under the technologies from the 1960s to the 1980s. This issue is particularly important for the area of central and eastern Europe, where such facilities are still widely used. With the appropriate financial resources, it is easy to implement the idea of SC in newly designed buildings. However, facilities already existing at the university campus also require action in this direction. This problem is also discussed by other researchers, for example, Chung and Rhee [10]. It could be generalized that a typical energy performance includes: more efficient heating and cooling systems; better-insulated walls and roofs (passivation) [11]. However, in our opinion, it is such an important and often marginalized problem that it requires individual analysis.
Educational buildings are responsible for the high consumption of non-industrial energy [12]. As noted by Pereira and coauthors, among all public buildings, on account of their educational purpose, school buildings have a major social responsibility [13]. The energy consumption of school buildings, due to their high number in developed countries, contributes to a considerable overall amount of energy consumption in public buildings, which results in an increase in the expenses paid by the national budgets [14]. Therefore, it is important to limit the energy intensity of this sector.
Numerous universities shared their own experiences in implementing the broadly understood idea of an SC in publications. Numerous Chinese experiences have been described by Tan et al. [15] or Yuan, Zuo and Huisingh [16]. A case study of the University of Maribor, Slovenia [17] was made with the Life Cycle Assessment, similar to that of Tianjin Polytechnical University [18]. The environmental management practices developed at the University of São Paulo campus were analyzed using the Harris and Crane model [19,20]. Dalhousie University has published experiences from the 15th anniversary of the campus environmental management system cycle [21]. The problem of controlling sustainable development in the example of the following two universities: Feevale University in Brazil and Häme University of Applied Sciences in Finland, was described in the work of Friman et al. [22]. At the Prince George campus of the University of Northern British Columbia, an analysis of waste management was made, which was indicated as one of the first steps in achieving SC development [23]. The zero-waste program was implemented at the Turitea of the Massey University campus [24]. For the conversion to energy-efficient renewable energy, there can be cited the example of the Leuphan University of Lueneburg [25].
Examples of Living Labs’ implementation in the development of sustainable universities can be found in the first LOW3 solar house prototype project developed at the School of Architecture at Sant Cugat del Vallés [26] or at the University of Manchester by transforming the campus into a living laboratory for research used in teaching [27] or at the Norwegian University of Science and Technology, which operates the Research Center of Zero Emission Buildings [28]. In the example of the University of Kent, at the Canterbury campus, the possibility of reducing energy consumption in the range of 5% to 15% thanks to the use of persuasive technology and intelligent sensors was shown [29]. A comprehensive SC strategy at the University of Osaka [30], due to grouping campus buildings into three categories and applying energy-saving strategies in combination with solar generation, has reduced energy consumption by 22%. In the example of the Cretan Polytechnic Campus, an innovative improvement in energy use from 15% to 30% was presented, even in high seasons [31]. At the Seoul National University campus, the need for optimal algorithms for determining the rate based on energy efficiency was presented [32].
However, it should be noted that the very concept of SC also undergoes changes and modifications over time. For [33], analyzing environmental management and social changes observed on American campuses since the 1970s, three stages can be distinguished: greening the campus (1970s–1990s), the growth of campus sustainability (1990s–2010s), and transforming to implement sustainability on campus and beyond (since 2010s). One cannot omit its social aspect and the need for real involvement of the community concerned by the changes [34]. It is also necessary to remember the emotional context of the discussed concept and its possible counteraction to such negative phenomena as gentrification, racialized poverty, and mass incarceration. Nevertheless, one can criticize the idea of “co-optation by neoliberal institutions and organizations” for its lack of conceptual clarity [35].
In publications related to the topic, attention is drawn to the fact that broad and diverse activities can be considered within the framework of the idea of SC, disregarding different methodologies of evaluator rankings, as “green” is a university campus. For Chen et al. [36], based on the fuzzy Delphi method and analytic hierarchy process, the indicators can be grouped into three dimensions: policy management, buildings and equipment, and educational activities, among which 28 detailed indicators were specified. The Greening Universities [37] cannot be omitted here, as it is a guide for ‘universities with the basic strategies and tactics necessary to transform themselves into green, low carbon institutions with the capacity to address climate change, increase resource efficiency, enhance ecosystem management and minimize waste and pollution’. This document indicates the next steps for GU and also lists the following four groups of indicators that characterize SC: (a) Energy, carbon, and climate change: Scope 1 and 2 greenhouse gas emissions; Electricity consumption; Natural gas consumption; Transport energy consumption, (b) Water use: Potable and non-potable water consumption; Wastewater production, (c) Land use: Proportion of certified green buildings; Proportion of pervious/impervious surfaces; Vegetation cover, (d) Material flows: Solid waste disposal; Solid waste recovery; Material use.

1.2. Thermal Comfort in the Educational Buildings

Differences in the perception of thermal comfort of individual people under the same thermal conditions and the same environment depend on individual differences in the feelings of warmth or inconsistency in assessments made by the same person. It can be noticed that the differences in the scores of one person do not diverge statistically from the differences in the rates made by the whole group [38]. It should also be remembered that the thermal comfort conditions depend on the season of the year [39].
However, it is possible to isolate factors that affect the feelings of thermal comfort. The most important of them include ambient air temperature, the surface temperature of building elements, air humidity, clothing, the metabolic level of the human body, and others, such as age, sex, or ethnic differences. Most of these factors, though not all, have found a mapping in the comfort heating equation, according to Fanger [40].
The complexity of the thermal comfort assessment and multiple approaches to the issue noted in the literature on the subject entails the need to systematize for purposes the methodology for classification and evaluation of the thermal environment [41,42]. Such classification is described in standards ISO 7730:2006 and EN 15251:2012 [43,44].
Many works have been devoted to the thermal comfort of rooms in the education sector. Thermal comfort is currently one of the most frequently discussed issues in the field of building environments. It is often discussed in the context of providing proper conditions for learning and working in educational buildings. According to ISO 7730:2006 [43], the operating temperature in auditoriums and school classes in summer conditions should fluctuate around 24.5 °C, and in winter, around 22.0 °C. In Category A facilities, the permissible deviation from the assumed operating temperature is ±1.0 °C. In category B facilities, the permissible deviation may be ±1.5 °C in summer conditions and ±2.0 °C in winter conditions. In category C facilities, the permissible deviation from the assumed operating temperature may be ±2.5 °C in summer conditions and ±3.0 °C in winter conditions. The maximum allowable average airspeed in summer conditions for category A facilities is 0.12 m/s, for category B facilities, it is 0.19 m/s, and for category C facilities, it is 0.24 m/s. In winter, the maximum allowable average airspeed in summer conditions for category A facilities is 0.10 m/s, for category B facilities, it is 0.16 m/s, while for category C facilities, it is 0.21 m/s. These assumptions are valid for a user activity of about 70 W/m2, a turbulence intensity of 40%, and a relative humidity of 60% in summer and 40% in winter. On the basis of the Zomoradia et al. review work, it could be stated that the significance of the thermal comfort study is related to the relationship between the occupants’ satisfaction in the built environment, the functioning of the building, and energy consumption [45]. Students spend much of their time in schools; thus, it is important to provide good thermal comfort and indoor air quality levels. Thermal discomfort in educational buildings can create unsatisfactory conditions for both teachers and students [46].
De Gennaro et al. draw attention to the importance of air quality in maintaining the comfort conditions in the educational rooms in order to protect the health and safety of the occupants, and in particular of children that are more sensitive to environmental pollutants [47]. It is important to equip educational buildings with adequate ventilation systems to improve air exchange. On the other hand, the air quality in the room is affected not only by the efficient ventilation system but also by separation from sources of potential contaminants [48]. The lack of effective ventilation exchange in overheated buildings creates conditions for the growth of fungi and mold [49]. The influence of air quality on thermal comfort in classrooms was also demonstrated by Pereira et al. in the south of Portugal, a school wherein, in naturally ventilated rooms, the concentration of carbon dioxide exceeds the acceptable limits [50]. This conclusion was confirmed by research carried out in several school buildings in Cameroon by Nematchoua et al., and in the Netherlands by Rosbach et al. [51,52].
The air temperature significantly influences the thermal comfort of the room’s users. Moreover, natural human behavior under high-temperature conditions is to put air into motion. Observations in an educational building ventilated naturally in a hot, humid climate in India showed that users were more likely to use ceiling fans than open windows [53]. A good solution for reducing the energy consumption of high thermal mass buildings is the use of night ventilation to reduce the high temperatures resulting from the daily overheating of the building [54,55]. However, high thermal inertia and nocturnal ventilation are not sufficient to guarantee well-being conditions during daytime hours [56].
Important, although different from the above, are the conclusions from Yao et al.’s work. Based on the observations in the classrooms in Chongqing, they noticed that students were more easily adapted to the conditions in naturally ventilated rooms (dressing, taking off the outer covers) than in the air-conditioned classrooms [57].
Teli et al. attempted to assess whether the models of thermal comfort have been developed for adult people as well as for children [58]. Research has shown that young people have a different thermal perception of the surrounding environment and feel more comfortable at a lower temperature than adults. The research was validated in a large group of preschoolers [59]. Buratti et al. attempted to compare the mathematical model of thermal comfort with questionnaires completed by students in several Italian cities. They showed a convergence between the model used and the results of the surveys [60].
Optimizing and using energy in educational settings is an often-discussed issue. Barbhuiya and Barbhuiya [12], in the course of the conducted measurements and simulations, showed, in the example of a facility in the UK, that near an inadequately secured entrance to the facility, a zone in the building may be expected to be particularly exposed to temperatures that are too low for the thermal comfort of users. Another disadvantage is the too low intensity of natural lighting in winter conditions, which results in an increase in electricity consumption for artificial lighting of the facility. On the other hand, Sekki, Airaksinen, and Saari [61] analyzed the energy consumption of 80 daycare centers, 74 school buildings, and 13 university buildings located in Espoo, Finland. They showed that the energy consumption for heating purposes is directly dependent on the construction technology of the object. The gradual tightening of the design requirements in the building regulations results in the fact that newer buildings have a lower energy demand for heating purposes. The cited studies also point to the problem of electricity consumption. Despite the cold Finnish climate, the primary electricity consumption is higher than primary heating in educational buildings constructed in the 2000s. Limiting electricity consumption requires appropriate measures already at the design stage of the facility. Park et al. [62] demonstrated the usefulness of shading when phase change materials (PCMs) were applied to the building in the example of a building located in Seoul to reduce energy demand. The solution used resulted in the cooling energy consumption decreasing by approximately 44% compared to the energy consumption for the building before the retrofit. Moreover, the applied solution resulted in an increase of approximately 34% in the number of hours with adequate thermal comfort for users. Quian and Lee [63] showed that it is possible to reduce energy consumption by using the design of the experimental approach, especially mixed-level factorial design and statistical methods for energy-efficient envelope design. Thanks to the use of building energy modeling software (TRACETM 700) and statistical software (Minitab® 17), energy-efficient building envelopes were designed, reducing total energy consumption by around 16.6%. Lowering energy consumption in school facilities can also be achieved by increasing user awareness [64]. As an example, the activities of Schools4energy in Potenza, in the period from August 2018 to April 2019, resulted in an average decrease of 4% in natural gas consumption and electricity consumption (between 0.5% and 4.3% per capita). Chen et al. [65] showed that increasing users’ awareness of the need to save energy may result in 4–30% of energy savings.
The aim of the article is to assess the possibility of modernizing the university lecture hall, which will enable the implementation of the GU idea. An existing lecture room, located in a building that requires thorough modernization and was made in accordance with the standards in force in Central and Eastern Europe in the 1980s, was selected for the analysis. In the first stage of work, the existing condition of the facility was assessed. The following experiments were verified: indoor air temperature, speed and ambient temperature, airtightness and performance of the ventilation system, and heat transfer coefficient of external walls. Based on CFD simulations, the functioning of the currently existing ventilation system in the facility was assessed, and the effectiveness of alternative solutions to the modified ventilation system was analyzed. The results were the basis for identifying 13 possible scenarios for the modernization of the analyzed room. Each scenario takes into account the different degrees of thermal modernization work for the elements of the building envelope, different solutions for the ventilation system, and different heat sources for heating the building. The conducted research was aimed at assessing the energy demand for the analyzed lecture hall and indicating the most advantageous solutions in terms of energy.

2. Methodology

2.1. Guidelines

Permanently unsatisfactory thermal comfort parameters inspired authors to conduct CFD numerical investigation based on the results of the field measurements to indicate how to improve thermal comfort in the room. The in situ measurements were carried out in the summer and winter seasons while the simulation in the summer season. In the summer, the building is not heated, while in the winter it is centrally heated by a water system with radiators.
The predominant wind direction in Olsztyn is from the West during the hot season with the warmest month being July (average 17.7 °C) and from the East during the winter season with the coldest month being January (average −3.6 °C). The average annual temperature is 6.9 °C [66].

2.2. Building Description

The selected lecture room is located in the educational building of the UWM in Olsztyn (Figure 1). The university is located in the North-East region of Poland. The campus, Kortowo (Figure 2), considered the greenest in Poland, is located on the edge of the forest by the lake and has its own park. In the summer it is a place of green schools and tourist camps for children.
Originally the building was designed in 1980s’ as a laboratory glassware magazine and offices, but in 1990s’ was adopted for educational purposes. The building was constructed in a large block technology, exterior walls consist of the following: large concrete block (0.24 m), aerated concrete (0.18 m), polystyrene (0.02 m), hollow brick (0.06 m), and lime-cement plasters (0.03 m). The ceilings and the roof were constructed as prefabricated concrete plates. The building is 3-stories with a utility cellar. Laboratories, lecture rooms, and office rooms are located at each level. The external dimensions of the building are 24.5 × 11.8 m. The average height of each level is 2.44 m.
The selected lecture room (Figure 3), situated on the ground floor, is 10.8 m long, 5.7 m wide, and 2.44 m height, the floor usable area is 60.7 m2, volume is 148.1 m3. This is a corner room with the following three external walls: NW, NE, and SE. Above and under laboratories are located, while beside office rooms. Two, combined windows with a wooden stile, double-glazed, windows are located in the NW wall (1.75 × 1.50 and 1.95 × 1.50 m) and another two of the same construction and dimensions, in SE Wall. Paneled doors with corrugated filling (0.80 × 2.00 m) constitute the only entrance to the room. The room is partly shaded because of the tall trees and neighboring buildings. The heating is provided by the radiators situated on the walls under the windows. The temperature is adjusted individually depending on the activity in the room. Two double-inlets (110 × 110 mm) chimneys provide natural ventilation.
The lecture room is used for didactic purposes with the civil and environmental engineering students. This is why numerous thermal and environmental measurements of the room are carried out as a part of these classes.
The room users often complain about the poor air quality and the inside stuffiness. The problem escalates especially during the winter period when the windows are closed in order to limit the infiltration of the cold external air. The problem also occurs in the summer period when, despite the ventilation of the room, it is not possible to obtain satisfactory parameters of the indoor environment.

2.3. Field Study of the Indoor Parameters and Building Enclosure Properties

2.3.1. Monitoring Indoor Air Temperature, Speed, and Ambient Temperature

It is recommended to place the temperature sensors close to the room occupants, according to ISO 28802:2012 [67]. However, the temperature measurements were registered in the summer and there were no users inside. Thus, the risk of interference from the measurements was reduced to zero. The sensors were mounted on tripods and placed at the height of the head of a person sitting at the table or standing next to a blackboard. The air temperature was measured using the Pt100 FPA32L0250 thermometers. The sensors were connected to Ahlborn multichannel recorders. Before the measurements, the sensors were calibrated, and time synchronization was performed. The temperature was recorded in the period from 1 July 2015 up to 22 July 2015. It covered the warmest period of the year in Olsztyn. At the same time, the outside temperature was recorded using Pt100 FPA32L0250 thermometer which was placed on the NW side and protected against solar radiation. It should be noted that in the measuring year, the average air temperature in July was lower than in previous years, but with a tendency to exceed the values from the typical meteorological year. The pressure difference between the room and environment was measured using the pressure difference meter FDA602S1K.
The airspeed and mean radiant temperature were measured using the following: FVA605TA10U anemometer and spherical thermometer FPA805GTS. The sensors were mounted at a height approximately 1.5 m above the floor. During the first 3 days these sensors were placed in the southern part of the room, during the 4 July day in the central part, and from the 5 July next to a blackboard.
The air parameters were recorded every 15 min. The technical properties of all sensors are presented in Table 1.

2.3.2. Airtightness of the Lecture Room Enclosure Measurement

The term “airtightness” pertains to the intensity of uncontrolled flow of air through the building envelope as a result of a pressure difference between interior and exterior air. The airtightness of the lecture room was examined many times over the last 9 years during both the heating and summer seasons. The measurements were carried out in accordance with ISO EN ISO 13829:2002 criteria using the pressure difference method, the “blower door” test, method A, using Minneapolis Blower Door equipment [68]. Only the airtightness of the room was tested, without adjacent rooms, but windows and doors of surrounding space were open due to avoid additional pressure differences. The measurement was carried out on 25 October 2015 before the heating season.

2.3.3. Monitoring of the Ventilation System Performance

The natural ventilation system measurements were carried out many times over the last 9 years during the heating and non-heating seasons as well. The airflow was measured using the rotational anemometer FVA915SMA1 with a measuring tube (ø 200 mm), technical properties in Table 1. Each ventilation opening was examined. The measurement was carried out several times during February, May, and July 2015 during the heating season.

2.3.4. Heat Transfer Coefficient of External Walls Measurement

The heat transfer coefficient of the external walls was measured based the heat flux density method. The research was conducted using two plates FQA019C dedicated to measuring heat flux density of walls and two Pt100 thermometers FPA32L0250 to measure temperature difference between the room and environment, technical properties in Table 1. The measurements were carried out in accordance with ISO 9869-1:2014 [69]. Based on the registered values of the heat flux density and temperature difference, it was possible to determine the U-value of the external walls. Measurements were carried out every half hour in the period of 21 days from 28 January 2015 to 17 February 2015—a total of 920 results were registered.

2.4. Numerical Research

The digital research into a division of conditioned air in the analyzed room has been performed with the use of the FloVent software by Mentor Graphics. The character of the simulation changed in time and the input data to the model were made of some recorded results for the following:
  • The external air temperature and the temperature of the air inflowing to the room through some leakages in the windows;
  • The position of the sun that was adequate to the sun time, and, in consequence, the angle and the direction of the sunrays;
  • The intensity of the irradiation.
The frequency of an hour-long digital step has been decided upon. The simulation has been performed in 15 steps, one after another. Each of them was one hour long and the maximum size of the time unit was 15 min. Results of the previous step were used as starting information on the conditions of the model for the following step. The experimental measurements have been taken for the whole day-and-night period, while the digital simulation has included the time from 6:00 AM to 8:00 PM, which reflects the real use of the room by people. The digital model of the room corresponded to the geometry of the real room.
The digital research was performed on the 10 July 2015. The day has been selected for the simulation as it is characterized by an external air temperature that is very close to the most frequently recorded ones in the period of May to September according to the data collated in the Typical Meteorological Year (Figure 4). Because of the large external heat gain, the non-winter period is the most difficult for ventilation.
Visualization of the numerical model of the room for the mechanical ventilation case is presented in Figure 5.
Values for the external air temperature and the irradiation intensity have been identified in measurements. No people have been present in the room. An experimentally identified jet of conditioned air of 70 m3/h has been accepted for the CFD model. The k-epsilon (k-ε) turbulence model has been applied and a 445,286-mesh calculation grid has been used. The experimental research into the distribution of the temperatures has been conducted with the use of six stationary sensors located according to the scheme in Figure 3. A comparative analysis of temperature distribution has been performed for those points based on the simulations and the experimental measurements.

2.5. Modernization Scenarios

For the purposes of adapting the lecture room to the energy and eco-friendly standard, the 13 various cases of modernization were analyzed. The investigation has been performed with the use of the ArCADia Termocad software (https://www.intersoft.pl/ accessed on 21 March 2022). The most important idea of the work is that the thermal modernization of the room should also include maintenance of the thermal comfort parameters; thus, it must assume at least the following:
  • Thermal insulation of the building enclosure;
  • Replacement of window and door joinery;
  • Replacement of lighting system;
  • Providing an appropriate amount of heat for heating needs;
  • Providing, with the use of mechanical ventilation, an adequate amount of ventilation air, heat treaded before (depending on the season: heated or cooled).
Activities aimed at energy saving of university facilities may also include diametrical changes in the heating and ventilation systems. Theoretically, a huge number of technical solutions are available. In practice, considering the financial constraints and the possibility of introducing a large number of objects to a territorially extensive campus, only a few examples of solutions were considered in terms of energy (Table 2). First, based on the results of numerical tests, it is necessary to use mechanical ventilation to maintain appropriate comfort conditions for users. This is why the use of air handling units with recuperation efficiency of about 95% was assumed (cases 5–13). For an insulated building with the replaced window joinery and lighting and mechanical ventilation (case 5), the EP dropped by 59% compared to the initial level. Additionally, the use of an air-ground heat exchanger was assumed (cases: 7, 9, 11, and 13). Fortunately, the park nature of the UWM campus provides that this solution is possible to implement for most facilities, at least in the option of a tubular device. The efficiency of this solution was assumed to be 70% based on experimental studies [70]. For cases 6–11, the change of the network heat source from coal-fired to district heating from cogeneration using biomass was considered. The usefulness of biomass under UWM conditions was emphasized in the work of Górecki et al. [71]. Moreover, in cases 8, 9, 12, and 13, a photovoltaic panel located near the object was considered a source of electricity for heating and ventilation devices.

3. Results

3.1. Results of the Field Study of the Indoor Parameters and Building Enclosure Properties

3.1.1. Results of the Indoor Air Temperature, Speed, and Ambient Temperature Measurements

Figure 6 presents the external air temperature and the pressure difference between the room and the environment. The measuring time step was 15 min. In the examined period, the external air temperature varied in the range of 10–35 °C. It is clearly visible that the month is divided into the following three periods: the first, the warmest period (1–7 July); the second, the colder period (8–15 July); and the last warming, the last period (16–22 July). Night cooling of the air, reaching down to 10 °C, is visible. The maximum daily temperature differences occurred in the hottest period and reached 18 °C. Pressure difference measurements reveal that the room was in an under-pressure condition for almost the whole examined period. The overpressure conditions occurred only on the hottest days during the warmest period. The described situation was conducive to the infiltration of air exchange in the room.
Figure 7 shows the values of solar radiation measured by the pyranometer Kipp & Zonnen CMP3. The measuring time step was 1 h. It can be slightly seen that the lower temperature in the period 8–15 July (presented in Figure 6) is correlated with less solar radiation. The highest irradiation peeks (around 1000 W/m2 and even more) were achieved before 8 July and after 15 July.
Figure 8 presents the measured values of the internal air temperature in the room as measured by sensors located in the back (southern-east orientation) and middle part of the room (sensors: T1–T4). The measuring time step was 15 min. The air temperature in the room during the examined period fluctuated in the range of 18.3–21.4 °C and was related to the external air temperature. It is worth noticing that the temperature measured by the sensors located in the back of the room, SE orientation was slightly higher. This is related to the less shading and, thus, to the greater solar insolation of the façade.
Figure 9 presents the values of air temperature and speed and ambient temperature (sensor: T, Tr, V). The measuring time step was 15 min. The measurements were carried out in an empty room; therefore, the air temperature and ambient temperature were similar, with a delicate indication of a higher ambient temperature. This might be related to solar radiation and the heating of the room equipment. Airspeed is in the range of 0.020–0.045 m/s, occasionally with peaks up to 0.05 m/s. The predominant values of the airspeed were around 0.038 m/s.

3.1.2. Results of the Airtightness Measurements

Boundary conditions: indoor temperature 22.0 °C, external temperature 11.0 °C, windless. The measured value of airtightness at a pressure difference of 50 Pa, n50 = 2.63 (h−1). Exponent n = 0.651 indicates the turbulent nature of the airflows through the leaks, typical for poor window joinery.

3.1.3. Results of the Ventilation System Performance Measurements

The total capacity of the airflow, depending on the indoor temperature (range 15.0–25.0 °C) and wind conditions, varied in the range of 38.0–78.0 m3/h with closed windows and 88.0–103.0 m3/h with one window open. The repeal of more windows did not affect ventilation system performance. The low efficiency of the ventilation system is typical for this type of building for practically the entire year. There is almost no differentiation between the heating and summer seasons.

3.1.4. Results of the Heat Transfer Coefficient Measurements

The determined U-value is 0.668 (W/(m2·K)). This value is 2.6% higher than the one calculated on the based on materials properties for the analyzed wall constructed of large concrete block (0.24 m), aerated concrete (0.18 m), polystyrene (0.02 m), hollow brick (0.06 m), and lime-cement plasters (0.03 m).

3.2. Results of the Numerical Simulations

The mean temperature value obtained in the experimental research is 20.32 °C, while in the digital research, the value is 20.09 °C. As for the experimental studies (most points, excluding the area in the vicinity of the board), there is a small downfall trend (about 0.5 °C) visible in the analyzed time. The trend has been confirmed by the simulation results, and the digital model maps the reality reliably enough, and it may serve as a basis to verify some interesting factors as well as analyze some hypothetical options.
The temperature distribution presented in Figure 10 that oscillates around 20 °C in the analyzed time may suggest some favorable thermal conditions in the room. However, it should be remembered that the measurements have been taken while the room is empty. Introducing people to the room significantly increases the amount of sensible and latent heat in it. To verify conditions in the room full of its users, the initial calculation model has been supplemented with 46 people sitting on the benches in the room. Every person releases about 85 W of sensible heat into the environment. The above modification has entailed an increase of the temperature in the room by about 10 °C. The mean value for the internal temperature was circa 29.9 °C. The mean PMV coefficient for the whole room is to be at the level of about 1.2, and the PPD coefficient is to be about 35. The studies of the above coefficients have been carried out upon assuming that the metabolism is 58 W/m2 and an average person is wearing trousers, a shirt, and a jacket (0.96 clo).
A low velocity of the airflow is also characteristic. It is about 0.04 m/s at a height of about 1.5 m above the floor. Due to some convection movements, there is a local velocity increase visible over the heads of the people sitting in the room.
The only source of fresh air in the room (70 m3/h) are leakages in the building walls (particularly around its windows). Removing the used air takes place in the partly gapped shafts of the gravity air conditioning. Obviously, such low values of the conditioned air do not make it possible to deliver the minimal air amount of 20 m3/h for every person. That results in a too-high concentration of carbon dioxide and other volatile air-polluting substances, a significant decrease in the students’ ability to focus, and a lower quality of microclimate in the room.

3.3. Digital Analysis of Exemplary Variants of the Air Conditioning System Modernization

3.3.1. Natural Air Conditioning with Window Diffusers

What seems to be the simplest and least money-consuming solution to the problem is substituting the window carpentry with elements equipped with window diffusers and clearing the air ducts in the ventilation shafts. When applying such typical solutions, it would be possible to obtain a jet of conditioned air with a value of about 200 m3/h.
When considering such a hypothetical case as an initial digital model (the room with no people inside), the mean temperature of the internal air is assumed to be about 19.1 °C. There are small falls of temperature in the direct vicinity of the windows. Moreover, the change has not entailed a significant increase in the velocity of the airflow. In the empty room, with no convectional air movement caused by humans present in it, the mean air velocity is to be about 0.012 m/s, apart from the vicinity of the windows (Figure 11).
In this case, the ventilation air change rate was 1.3. It is a value that could seem satisfactory based on an empty room analysis. According to Polish regulations, there should be provided at least 20 m3/h of air for each user of the room [72]. Thus, due to hygienic requirements, for 46 users of the room, the minimum provided fresh airflow should be 920 m3/h. This case also has to be rejected because the minimum amount of fresh air for the room users cannot be delivered. Moreover, there would be a draft near the window diffusers, and the temperature of the supplied air would correspond to the temperature of the outside air.

3.3.2. Mechanical Air Conditioning with an Air Cooler

An alternative solution is to apply a system of mechanical air conditioning with an air cooler and, at the same time, change the window carpentry to a leak-tight one coupled with closing the ducts of gravity air conditioning. Comfortable use of the system requires the possibility to control the temperature of the air in-flown by the users. To verify that hypothesis, the following digital model has been created, in which a maximum number of users (46 people, metabolism of every person: 58 W/m2, 0.6 clo, sensible heat: 85 W) is introduced into the room for the analyzed time and external conditions. Four diffusers (each one with the efficiency of 250 m3/h) have been placed symmetrically in the ceiling, as well as two uptake inlets (each one with the efficiency of 500 m3/h) in the central part of it. The temperature accepted for those calculations is 17 °C.
The distribution of the internal temperatures in the analyzed case indicates that their mean value in the area of up to 1.50 m above the floor is about 23 °C. Some small areas of increased temperatures are visible directly behind the sitting students. Some areas of lower temperatures directly under the diffusers are also interesting. As the room is not large, it may be hard to avoid experiencing the results of installing the cool-air inflow system. It is advisable to use such inflow elements that would facilitate indirect vertical diffusion of the air jet and to avoid localizing them directly over the users’ heads.
The analysis of the airflow velocities indicates that speed values of about 0.10 m/s are to be obtained in the human-occupied zone (Figure 12). Some increased velocities of the airflow are also visible, as the result of the convection movements over the heads of the sitting people. A negative feeling of draught may be caused by the airflow of about 0.45 m/s directly under the diffusers.
The analysis of indication parameters for thermal comfort indicates that the users should have positive sensations (Figure 13). The mean PMV value is about −0.25–0. The PPD shows that about 7% of the users may feel some discomfort caused by a slightly too-low temperature in the room. The strategic points where the users may feel some discomfort are represented by some small areas directly under the diffusers. However, that still makes a significant improvement in the thermal comfort in the room when compared to the initial state.

3.4. Sustainable Energy Sources for Heating and Ventilations

In the current state, the annual unit demand for primary energy (EP) for the analyzed room is 245.81 kWh/(m2·year), the annual unit demand for usable energy (EU) is 121.98 kWh/(m2·year), while annual unit demand for final energy (EF) is 180.58 kWh/(m2·year), the annual unit CO2 emission ECO2 = 0.00638 t CO2/(m2·year). The current thermal requirements in Poland impose the external wall heat transfer coefficient not higher than 0.20 W/(m2·K). Providing only this threshold value will result in a decrease of EP by 27% (case 1, Figure 14). Replacing the window joinery so that the value of the heat transfer coefficient for external windows does not exceed 0.90 W/(m2·K) will cause the EP to decrease by another 22% (case 2, Figure 14). Replacing the old incandescent and fluorescent lighting with LED lighting will further reduce the EP by 5% (case 3, Figure 14). These basic modernization activities in the lecture room will eventually cause a total decrease in the EP by 54%. Although it seems to be very beneficial from an energy effect and economic point of view, this modernization will not provide thermal comfort inside the room. Unblocking and clearing the natural ventilation ducts and enabling the fresh air distribution by window diffusers (in the total amount of 200 m3/h) will result in the EP = 149.30 kWh/(m2·year) (case 4, Figure 14).
Assuming the following for all further cases (6–13): insulation of external walls, replacement of windows, joinery, and lighting, and the use of mechanical ventilation systems, the change of network source of heat to cogeneration using biomass (Figure 14, case 6) results in a decrease of EP by 86% in relation to the existing state. The addition of the ground-air heat exchanger in the heating-ventilation system results in a small EP decrease by a further 0.01%. On the other hand, the use of photovoltaic panels for local electricity generation for the needs of the heating and ventilation system results in a significant energy effect. It results in a 61% decrease in the EU index, 59% in EK index, and 93 in the EP index in relation to the existing state. It also results in a 63% decrease in the ECO2.
It is also possible to consider resignation from the network heat source and the use of a local heat source instead (Figure 14). Due to regulations (including safety) and individual conditions of university buildings, it will not be possible to create an individual boiler room in all the buildings. However, it is possible to use a heat pump there. The solutions including air (the easiest system to implement), ground, or water from Kortowo Lake will be the most recommended. In cases 10–13, a compressor heat pump (glycol/water system) with a working temperature of 55 °C/45 °C and a coefficient of performance (COP) of 3.5 was included. The 10th case assumes the following: insulation of external partitions, replacement of window joinery and lighting, the use of a mechanical ventilation system, and the application of the heat pump. It results in EP decreasing by 69% compared to the current state. An additional application of the ground-air heat exchanger (case 11) results in EP decreasing by a further 2% compared to the current state. The use of local electricity generation from photovoltaic panels in the system proves to be most advantageous and results in a decrease of EP by 97% and ECO2 by 99% compared to the existing state. Implementation of both the following: ground-air heat exchanger and photovoltaic panels (case 13) results in the lowest EP = 6.5 kWh/(m2·year), EU = 3.63 kWh/(m2·year) and EF = 58.69 kWh/(m2·year) while ECO2 = 0.00073 t CO2/(m2·year).

4. Discussion

The UWM campus, through its park nature and location in the area of the so-called “Green lungs of Poland”, is particularly well-suited for the implementation of the Green University idea. New buildings are energy efficient. There are also implemented university-wide activities, such as the replacement of lighting at the campus with an energy-saving system. However, as on most campuses in the area of Eastern Europe, a large number of university buildings are objects made mainly in the 1960s–1980s of the twentieth century. They should also be subjected to activities aimed at improving their energy efficiency. The article presents conditions prevailing in one of these lecture rooms and suggestions for different scenarios of modernization actions.
On the basis of the field study measurements, it was possible to carry out numerical simulations presenting the possibility of improving the indoor conditions in the student lecture room in terms of the quantity and quality of air. The recorded values of the ambient and indoor air temperatures allow us to state that the temperature in the empty room depends directly on the external temperature. However, due to the thermal mass of the building envelope, indoor air temperature variations are smaller than external ones. Pressure difference measurements reveal that the room was in an under-pressure condition for almost the whole examined period. The overpressure conditions occurred only during the peaks of temperatures on the hottest days.
In the examined period, the indoor ambient temperature was higher than the air temperature. This may be related to the thermal mass of the room enclosure and equipment inside the building. Airspeed is in the range of 0.020–0.045 m/s, occasionally with peaks up to 0.05 m/s. The ventilation system performance was also examined and revealed its insufficient work.
The building envelope was also tested for airtightness and heat transfer. The measured value of airtightness at a pressure difference of 50 Pa, n50 = 2.63 (h−1). The measurement-based, determined U-value is 0.668 (W/(m2 K)).
The CFD model shows temperature coincidence with the results of measurements in an empty room. The initial calculation model has been supplemented with 46 people sitting on the benches in the room, which has entailed an increase of the temperature in the room by about 10 °C. A numerical study confirmed the low efficiency of the ventilation system either in an empty or full room.
Two ways of improving the thermal comfort of the room in terms of ventilation were examined. The first remains the natural ventilation and involves installing air diffusers in windows, and the second, changing the ventilation system into mechanical with air cooling. The first case results in lowering the temperature of an empty room by 1 °C, but it does not increase the efficiency of the ventilation system in a significant way. The second case results in lowering the temperature of the fully occupied room by 6–7 °C. What is more important, mechanical ventilation provides the needed amount of fresh air to the room. It should be noted that directly under the mechanical ventilation diffusers, the users may feel some discomfort.
Among many energy-saving, renewable energy sources for heating and ventilation purposes, the authors selected two to analyze. The network system of heat distribution with cogeneration and boiler room for biomass was compared with the case of resignation from the network system for individual heating in buildings based on a heat pump. The selection was based on investment costs, implementation technical difficulties, and local conditions. Both cases of modernization will result in a decrease in the annual EU demand for usable energy of about 67% in relation to the existing state.
Most preferably are the modernization options where the photovoltaic panels are used to generate electricity for the operation of heating and ventilation devices. In the case of a cogeneration system and a biomass boiler, the EP index will drop by 94% in relation to the existing state, while it will drop by 97% in the case of a system with a heat pump. However, it should be noted that using a system with a heat pump powered by grid energy is not ecologically preferable. A much lower unit volume of CO2 emissions also speaks in favor of heat pump systems (about 88% for systems without PV and about 99% with PV panels compared to the existing systems, while 63% in the case of a central system with cogeneration and biomass source).
Unfortunately, rising prices of energy sources and supply interruptions caused by pandemics, inflation, and war do not allow for a detailed economic analysis of the proposed solutions. The authors are still monitoring university rooms, analyzing possible technologies that, in harmony with nature, will enable the thermal modernization of buildings.

5. Conclusions

Common problems in older buildings were diagnosed in the analyzed room as follows: very low thermal insulation of building partitions, inefficient natural ventilation, and leaks in building envelopes. The thermal transmittance coefficient measured for the external wall was 0.668 (W/(m2·K)). It is very high, especially if compared to current requirements in Poland (0.20 (W/(m2·K))). The measured value of airtightness at a pressure difference of 50 Pa, n50 = 2.63 (h−1), which is slightly below the maximal allowed (3.0 h−1), results in fluctuations in indoor temperature directly dependent on external temperature conditions. Although the room was empty and shaded during the measurements, the outside temperature during the test period, varying from 10 °C to 35 °C, caused fluctuations in the internal temperature from 18.3 °C to 21.4 °C. The airflow speed was too high. Most often, it was around 0.038 m/s and ranged from 0.020 to 0.045 m/s. Typical activities aimed at improving the energy standards of the facility are limited to the insulation of external walls, replacement of window joinery (to ensure the operation of gravitational ventilation, most often with slot-type window diffusers), and the opening of natural ventilation shafts. Such modernizations are usually not aimed at achieving thermal comfort in the rooms but only meet the requirements for heat transfer coefficients and EP demand.
It should be mentioned that lecture rooms are characterized by a specific cycle of use—in the absence of classes, they are empty, while during the course, they are maximally filled with users. It results in the impossibility of taking away large heat gains from people under the climatic conditions of north-eastern Poland and the natural ventilation system of about 200 m3/h rates. What is more, the lack of thermal comfort for the users with a simultaneous increase in carbon dioxide concentration results in fatigue, sleepiness, lack of concentration, and malaise in students who are unable to work effectively in such rooms.
The authors analyzed 13 possible scenarios for the modernization of the analyzed room. Some of the scenarios seem to be very energy efficient, while the problem of insufficient air supply will not be solved. The authors showed that mechanical ventilation, which will provide at least 20 m3/h per user (a hygienic minimum), could be a solution for the mentioned phenomena. Implementing the ventilation heat recovery system, with 95% efficiency, will reduce the EU by about 43% while providing 5 times more fresh air compared to the natural ventilation system after modernization (window diffusers, cleaned shafts).
Very good energy effects are provided by the local use of photovoltaic panels for the operation of heating and ventilation devices. The use of a network heat source from cogeneration using biomass instead of the currently used coal in the current heating network will lower the EP by 93% and the unitary CO2 emissions by 64%. Better results can be achieved by using a heat pump operating locally in the facility as a heat source with a solar panel power supply; the EP will fall by 97% and the unitary volume of CO2 emissions by 99% in relation to the existing one.
The problem of conditions in academic lecture rooms is a broad issue. Future studies of changes in the concentration of carbon dioxide in the room, fluctuations in the humidity of the indoor air, and subjective feelings of users will constitute a further stage of research towards the possibility of effective and energy-efficient all-year use of educational buildings.

Author Contributions

Conceptualization, P.K. and A.S.-S.; methodology, P.K. and A.S.-S.; software, P.K. and A.S.-S.; validation, P.K. and A.S.-S.; formal analysis, P.K. and A.S.-S.; investigation, P.K. and A.S.-S.; resources, P.K. and A.S.-S.; data curation, P.K. and A.S.-S.; writing—original draft preparation, P.K. and A.S.-S.; writing—review and editing, P.K. and A.S.-S.; visualization, P.K. and A.S.-S.; supervision, P.K. and A.S.-S. All authors have read and agreed to the published version of the manuscript.

Funding

This research received no external funding.

Institutional Review Board Statement

Not applicable.

Informed Consent Statement

Not applicable.

Data Availability Statement

Data are available on request due to restrictions e.g., privacy or ethical.

Conflicts of Interest

The authors declare no conflict of interest.

References

  1. The Association of University Leaders for a Sustainable Future. Available online: http://ulsf.org/ (accessed on 21 March 2022).
  2. The Association for the Advancement of Sustainability in Higher Education. 2018. Available online: https://stars.aashe.org/ (accessed on 21 March 2022).
  3. United Nations Environment Programme. Available online: https://www.unenvironment.org/explore-topics/education-training/why-does-education-and-training-matter/green-university-networks (accessed on 21 March 2022).
  4. People’s Planet University League. Available online: https://peopleandplanet.org/university-league (accessed on 21 March 2022).
  5. Bryant, M. Majority of Universities in UK ‘Not on Track to Meet Emissions Targets’. Available online: https://www.theguardian.com/education/2021/dec/09/majority-of-universities-in-uk-not-on-track-to-meet-emissions-targets (accessed on 21 March 2022).
  6. Environmental Association for Universities and Colleges. Available online: https://www.greengownawards.org/2021-international-green-gown-awards-winners (accessed on 21 March 2022).
  7. International Campus Sustainability Network. Available online: https://international-sustainable-campus-network.org/awards/2021-award-winners/ (accessed on 21 March 2022).
  8. Green Metric World University Ranking 2021. Available online: https://greenmetric.ui.ac.id/rankings/overall-rankings-2021/ (accessed on 21 March 2022).
  9. Termomodernizacja Zakończona. Available online: http://www.uwm.edu.pl/egazeta/termomodernizacja-zakonczona-rachunki-juz-nie-parza (accessed on 26 April 2022).
  10. Chung, M.H.; Rhee, E.K. Potential opportunities for energy conservation in existing buildings on university campus: A field survey in Korea. Energy Build. 2014, 78, 176–182. [Google Scholar] [CrossRef]
  11. Massimo, D.E.; Fragomeni, C.; Malerba, A.; Musolino, M. Valuation supports green university: Case action at Mediterranea campus in Reggio Calabria. Procedia Soc. Behav. Sci. 2016, 223, 17–24. [Google Scholar] [CrossRef] [Green Version]
  12. Barbhuiya, S.; Barbhuiya, S. Thermal comfort and energy consumption in a UK educational building. Build. Environ. 2013, 68, 1–11. [Google Scholar] [CrossRef]
  13. Pereira, L.D.; Raimondo, D.; Corgnati, S.P.; da Silva, M.G. Energy consumption in schools—A review paper. Renew. Sustain. Energy Rev. 2014, 40, 911–922. [Google Scholar] [CrossRef]
  14. Dimoudi, A.; Kostarela, P. Energy monitoring and conservation potential in school buildings in the C′ climatic zone of Greece. Renew. Energy 2009, 34, 289–296. [Google Scholar] [CrossRef]
  15. Tan, H.; Chen, S.; Shi, Q.; Wang, L. Development of green campus in China. J. Clean. Prod. 2014, 64, 646–653. [Google Scholar] [CrossRef]
  16. Yuan, X.L.; Zuo, J.; Huisingh, D. Green Universities in China—What matters? J. Clean. Prod. 2013, 61, 36–45. [Google Scholar] [CrossRef]
  17. Lukman, R.; Tiwary, A.; Azapagic, A. Towards greening a university campus: The case of the University of Maribor, Slovenia. Resour. Conserv. Recycl. 2009, 53, 639–644. [Google Scholar] [CrossRef]
  18. Liu, H.; Wang, X.; Yang, J.; Zhou, X.; Liu, Y. The ecological footprint evaluation of low carbon campuses based on life cycle assessment: A case study of Tianjin, China. J. Clean. Prod. 2017, 144, 266–278. [Google Scholar] [CrossRef]
  19. Harris, L.C.; Crane, A. The greening of organizational culture—Management views on the depth, degree and diffusion of change. J. Organ. Change Manag. 2002, 15, 214–234. [Google Scholar] [CrossRef]
  20. Pereira, G.D.S.M.; Jabbour, C.J.C.; de Oliveira, S.V.W.B.; Teixeira, A.A. Greening the campus of a Brazilian university: Cultural challenges. Int. J. Sustain. High. Educ. 2014, 15, 34–47. [Google Scholar] [CrossRef]
  21. Clarke, A. The campus environmental management system cycle in practice: 15 years of environmental management, education and research at Dalhousie University. Int. J. Sustain. High. Educ. 2006, 7, 374–389. [Google Scholar] [CrossRef]
  22. Friman, M.; Schreiber, D.; Syrjänen, R.; Kokkonen, E.; Mutanen, A.; Salminen, J. Steering sustainable development in higher education—Outcomes from Brazil and Finland. J. Clean. Prod. 2018, 186, 364–372. [Google Scholar] [CrossRef]
  23. Smyth, D.P.; Fredeen, A.L.; Booth, A.L. Reducing solid waste in higher education: The first step towards ‘greening’ a university campus. Resour. Conserv. Recycl. 2010, 54, 1007–1016. [Google Scholar] [CrossRef]
  24. Mason, I.; Brooking, A.; Oberender, A.; Harford, J.; Horsley, P. Implementation of a zero waste program at a university campus. Resour. Conserv. Recycl. 2003, 38, 257–269. [Google Scholar] [CrossRef]
  25. Opel, O.; Strodel, N.; Werner, K.F.; Geffken, J.; Tribel, A.; Ruck, W.K.L. Climate-neutral and sustainable campus Leuphana University of Lueneburg. Energy 2017, 141, 2628–2639. [Google Scholar] [CrossRef]
  26. Masseck, T. Living Labs in Architecture as Innovation Arenas within Higher Education Institutions. Energy Procedia 2017, 115, 383–389. [Google Scholar] [CrossRef] [Green Version]
  27. Evans, J.; Jones, R.; Karvonen, A.; Millard, L.; Wendler, J. Living labs and co-production: University campuses as platforms for sustainability science. Curr. Opin. Environ. Sustain. 2015, 16, 1–6. [Google Scholar] [CrossRef]
  28. Goia, F.; Schlemminger, C.; Gustavsen, A. The ZEB Test Cell Laboratory. A facility for characterization of building envelope systems under real outdoor conditions. Energy Procedia 2017, 132, 531–536. [Google Scholar] [CrossRef]
  29. Emeakaroha, A.; Ang, C.S.; Yan, Y. Challenges in Improving Energy Efficiency in a University Campus through the Application of Persuasive Technology and Smart Sensors. Challenges 2012, 3, 290–318. [Google Scholar] [CrossRef]
  30. Yoshida, Y.; Shimoda, Y.; Ohashi, T. Strategies for a sustainable campus in Osaka University. Energy Build. 2017, 147, 1–8. [Google Scholar] [CrossRef]
  31. Kolokotsa, D.; Gobakis, K.; Papantoniou, S.; Georgatou, C.; Kampelis, N.; Kalaitzakis, K.; Vasilakopoulou, K.; Santamouris, M. Development of a web based energy management system for University Campuses: The CAMP-IT platform. Energy Build. 2016, 123, 119–135. [Google Scholar] [CrossRef]
  32. Song, K.; Kim, S.; Park, M.; Lee, H.-S. Energy efficiency-based course timetabling for university buildings. Energy 2017, 139, 394–405. [Google Scholar] [CrossRef]
  33. Washington-Ottombre, C.; Washington, G.L.; Newman, J. Campus sustainability in the US: Social change since 1970 Environmental management and social change since 1970. J. Clean. Prod. 2018, 196, 564–575. [Google Scholar] [CrossRef]
  34. León-Fernández, Y.; Gomera, A.; Antúnez, M.; Martínez-Escrich, B.; Villamandos, F.; Vaquero, M. Enhancing environmental management in universities through participation: The case of the University of Cordoba. J. Clean. Prod. 2018, 172, 4328–4337. [Google Scholar] [CrossRef]
  35. Croog, R. Campus sustainability at the edges: Emotions, relations, and bio-cultural connections. Geoforum 2016, 74, 108–116. [Google Scholar] [CrossRef]
  36. Chen, C.W.; Wang, J.H.; Wang, J.C.; Shen, Z.H. Developing indicators for sustainable campuses in Taiwan using fuzzy Delphi method and analytic hierarchy process. J. Clean. Prod. 2018, 193, 661–671. [Google Scholar] [CrossRef]
  37. Dave, M.; Gou, Z.; Prasad, D.; Li, F. Greening Universities Toolkit v2.0; United Nations Environment Programme; United Nations: New York, NY, USA, 2014. [Google Scholar]
  38. Śliwowski, L. Microclimate of Interiors and Thermal Comfort of People in Rooms (pol. Mikroklimat Wnętrz i Komfort Cieplny Ludzi w Pomieszczeniach); Publishing House of the Wrocław University of Technology: Wrocław, Poland, 2000. [Google Scholar]
  39. Ning, H.; Wang, Z.; Zhang, X.; Ji, Y. Adaptive thermal comfort in university dormitories in the severe cold area of China. Build. Environ. 2016, 99, 161–169. [Google Scholar] [CrossRef]
  40. Fanger, P.O. Thermal Comfort-Analysis and Applications in Environmental Engineering; Danish Technical Press: Copenhagen, Denmark, 1970. [Google Scholar]
  41. Rupp, R.F.; Vasquez, N.G.; Lamberts, R. A review of human thermal comfort in the built environment. Energy Build. 2015, 105, 178–205. [Google Scholar] [CrossRef]
  42. Djamila, H. Indoor thermal comfort predictions: Selected issues and trends. Renew. Sustain. Energy Rev. 2017, 74, 569–580. [Google Scholar] [CrossRef]
  43. UNI EN ISO 7730 (2006); Ergonomics of the Thermal Environment—Analytical Determination and Interpretation of Thermal Comfort Using Calculation of the PMV and PPD Indices and Local Thermal Comfort Criteria. European Committee for Standardization: Brussels, Belgium, 2006.
  44. EN 15251:2012; Indoor Environmental Input Parameters for Design and Assessment of Energy Performance of Buildings Addressing Indoor Air Quality, Thermal Environment, Lighting and Acoustics. European Committee for Standardization: Brussels, Belgium, 2012.
  45. Zomorodian, Z.S.; Tahsildoost, M.; Hafezi, M. Thermal comfort in educational buildings: A review article. Renew. Sustain. Energy Rev. 2016, 59, 895–906. [Google Scholar] [CrossRef]
  46. Sarbu, I.; Pacurar, C. Experimental and numerical research to assess indoor environment quality and schoolwork performance in university classrooms. Build. Environ. 2015, 93, 141–154. [Google Scholar] [CrossRef]
  47. de Gennaro, G.; Dambruoso, P.R.; Loiotile, A.D.; Di Gilio, A.; Giungato, P.; Tutino, M.; Marzocca, A.; Mazzone, A.; Palmisani, J.; Porcelli, F. Indoor air quality in schools. Environ. Chem. Lett. 2014, 12, 467–482. [Google Scholar] [CrossRef]
  48. Lstiburek, J.; Pressnail, K.; Timusk, J. Air Pressure and Building Envelopes. J. Build. Phys. 2002, 26, 53–91. [Google Scholar] [CrossRef]
  49. Yu, C.W.; Kim, J.T. Low-Carbon Housings and Indoor Air Quality. Indoor Built Environ. 2012, 21, 5–15. [Google Scholar] [CrossRef]
  50. Pereira, L.D.; Raimondo, D.; Corgnati, S.P.; da Silva, M.C.G. Assessment of indoor air quality and thermal comfort in Portuguese secondary classrooms: Methodology and results. Build. Environ. 2014, 81, 69–80. [Google Scholar] [CrossRef]
  51. Nematchoua, M.K.; Tchinda, R.; Orosa, J.A. Adaptation and comparative study of thermal comfort in naturally ventilated classrooms and buildings in the wet tropical zones. Energy Build. 2014, 85, 321–328. [Google Scholar] [CrossRef] [Green Version]
  52. Rosbach, J.T.; Vonk, M.; Duijm, F.; Van Ginkel, J.T.; Gehring, U.; Brunekreef, B. A ventilation intervention study in classrooms to improve indoor air quality: The FRESH study. Environ. Health 2013, 12, 10. [Google Scholar] [CrossRef] [Green Version]
  53. Mishra, A.K.; Ramgopal, M. A thermal comfort field study of naturally ventilated classrooms in Kharagpur, India. Build. Environ. 2015, 92, 396–406. [Google Scholar] [CrossRef]
  54. Evola, G.; Marletta, L.; Costanzo, V.; Caruso, G. Different Strategies for Improving Summer Thermal Comfort in Heavyweight Traditional Buildings. Energy Procedia 2015, 78, 3228–3233. [Google Scholar] [CrossRef] [Green Version]
  55. Kisilewicz, T.; Dudzińska, A. Summer overheating of a passive sports hall building. Arch. Civ. Mech. Eng. 2015, 15, 1193–1201. [Google Scholar] [CrossRef]
  56. Gagliano, A.; Berardi, U.; Nocera, F.; Salerno, N. Influence of Natural Ventilation on the Thermal Behavior of a Massive Building. Energy Procedia 2015, 78, 1287–1292. [Google Scholar] [CrossRef] [Green Version]
  57. Yao, R.; Liu, J.; Li, B. Occupants’ adaptive responses and perception of thermal environment in naturally conditioned university classrooms. Appl. Energy 2010, 87, 1015–1022. [Google Scholar] [CrossRef]
  58. Teli, D.; Jentsch, M.F.; James, P.A.B. Naturally ventilated classrooms: An assessment of existing comfort models for predicting the thermal sensation and preference of primary school children. Energy Build. 2012, 53, 166–182. [Google Scholar] [CrossRef]
  59. Fabbri, K. Thermal comfort evaluation in kindergarten: PMV and PPD measurement through datalogger and questionnaire. Build. Environ. 2013, 68, 202–214. [Google Scholar] [CrossRef]
  60. Buratti, C.; Ricciardi, P. Adaptive analysis of thermal comfort in university classrooms: Correlation between experimental data and mathematical models. Build. Environ. 2009, 44, 674–687. [Google Scholar] [CrossRef]
  61. Sekki, T.; Airaksinen, M.; Saari, A. Measured energy consumption of educational buildings in a Finnish city. Energy Build. 2015, 87, 105–115. [Google Scholar] [CrossRef]
  62. Park, J.H.; Yun, B.Y.; Chang, S.J.; Wi, S.; Jeon, J.; Kim, S. Impact of a passive retrofit shading system on educational building to improve thermal comfort and energy consumption. Energy Build. 2020, 216, 109930. [Google Scholar] [CrossRef]
  63. Qian, X.; Lee, S.W. The design and analysis of energy efficient building envelopes for the commercial buildings by mixed-level factorial design and statistical methods. In Proceedings of the ASEE Middle Atlantic American Society of Engineering Education, Swarthmore, PA, USA, 14–15 November 2014. [Google Scholar]
  64. Pietrapertosa, F.; Tancredi, M.; Salvia, M.; Proto, M.; Pepe, A.; Giordano, M.; Afflitto, N.; Sarricchio, G.; Di Leo, S.; Cosmi, C. An educational awareness program to reduce energy consumption in schools. J. Clean. Prod. 2021, 278, 123949. [Google Scholar] [CrossRef]
  65. Chen, S.; Zhang, G.; Xia, X.; Chen, Y.; Setunge, S.; Shi, L. The impacts of occupant behavior on building energy consumption: A review. Sustain. Energy Technol. Assess. 2021, 45, 101212. [Google Scholar] [CrossRef]
  66. Polish Institute of Meteorology and Water Management. Available online: http://www.imgw.pl (accessed on 4 January 2022).
  67. ISO 28802:2012; Ergonomics of the Physical Environment—Assessment of Environments by Means of an Environmental Survey Involving Physical Measurements of the Environment and Subjective Responses of People. International Standards Organization: Geneva, Switzerland, 2012.
  68. EN 13829:2002; Thermal Performance of Buildings—Determination of Air Permeability of Buildings—Fan Pressurization Method. ISO 9972:1996, Modified, EN 13829:2000. Slovenian Institute for Standardization: Ljubljana, Slovenia, 2002.
  69. ISO 9869-1:2014; Thermal Insulation—Building Elements—In-Situ Measurement of Thermal Resistance and Thermal Transmittance—Part 1: Heat Flow Meter Method. International Standards Organization: Geneva, Switzerland, 2014.
  70. Skotnicka-Siepsiak, A.; Wesołowski, M.; Piechocki, J. Experimental and Numerical Study of an Earth-to-Air Heat Exchanger in Northeastern Poland. Pol. J. Environ. Stud. 2018, 27, 1255–1260. [Google Scholar] [CrossRef]
  71. Górecki, R.; Piętak, A.; Meus, M.; Kozłowski, M. Biomass energy potential—Green energy for the University of Warmia and Mazury in Olszytyn. J. KONES 2015, 20, 99–106. [Google Scholar]
  72. ISAP Homepage. Available online: https://isap.sejm.gov.pl/isap.nsf/download.xsp/WDU20020750690/O/D20020690,pdf (accessed on 26 April 2022).
Figure 1. The selected educational building in the campus of the UWM in Olsztyn.
Figure 1. The selected educational building in the campus of the UWM in Olsztyn.
Energies 15 03735 g001
Figure 2. Part of the UWM campus with selected building, https://msipmo.olsztyn.eu/imap/ (accessed on 21 March 2022).
Figure 2. Part of the UWM campus with selected building, https://msipmo.olsztyn.eu/imap/ (accessed on 21 March 2022).
Energies 15 03735 g002
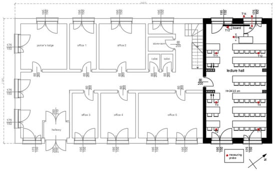
Figure 3. Plan of the building floor with lecture room with the location of measuring probes.
Figure 3. Plan of the building floor with lecture room with the location of measuring probes.
Energies 15 03735 g003
Figure 4. Histogram of the external air temperature distribution for the period of May from September according to the data by the typical meteorological year.
Figure 4. Histogram of the external air temperature distribution for the period of May from September according to the data by the typical meteorological year.
Energies 15 03735 g004
Figure 5. Visualized digital model: full room and the mechanical air conditioning system (green—air diffusers in the ceiling, pink—air uptake inlets in the ceiling).
Figure 5. Visualized digital model: full room and the mechanical air conditioning system (green—air diffusers in the ceiling, pink—air uptake inlets in the ceiling).
Energies 15 03735 g005
Figure 6. External air temperature and pressure difference between the lecture room and environment.
Figure 6. External air temperature and pressure difference between the lecture room and environment.
Energies 15 03735 g006
Figure 7. Irradiation measured in July 2015.
Figure 7. Irradiation measured in July 2015.
Energies 15 03735 g007
Figure 8. Indoor air temperature, sensors: T1, T2, T3, and T4.
Figure 8. Indoor air temperature, sensors: T1, T2, T3, and T4.
Energies 15 03735 g008
Figure 9. Indoor air temperature, speed, and mean radiant temperature measured next to the blackboard (sensor: T, Tr, V).
Figure 9. Indoor air temperature, speed, and mean radiant temperature measured next to the blackboard (sensor: T, Tr, V).
Energies 15 03735 g009
Figure 10. Distribution of the internal air temperatures—the experimental and digital studies.
Figure 10. Distribution of the internal air temperatures—the experimental and digital studies.
Energies 15 03735 g010
Figure 11. Visualized distribution of air velocities in a floor-parallel plane at the height of about 1.5 m; situation for the empty room at 3:00 PM—the natural air conditioning with window diffusers.
Figure 11. Visualized distribution of air velocities in a floor-parallel plane at the height of about 1.5 m; situation for the empty room at 3:00 PM—the natural air conditioning with window diffusers.
Energies 15 03735 g011
Figure 12. Distribution of the air velocities in a floor-parallel plane at the height of about 1.5 m; situation for the full room at 3:00 PM—the mechanical air conditioning.
Figure 12. Distribution of the air velocities in a floor-parallel plane at the height of about 1.5 m; situation for the full room at 3:00 PM—the mechanical air conditioning.
Energies 15 03735 g012
Figure 13. Distribution of the PPD and PMV coefficients between the external walls in the line of the T12/T4/T1 measuring sensors at the height of about 1.5 m; situation for the full room at 3:00 PM—the present state and the mechanical air conditioning.
Figure 13. Distribution of the PPD and PMV coefficients between the external walls in the line of the T12/T4/T1 measuring sensors at the height of about 1.5 m; situation for the full room at 3:00 PM—the present state and the mechanical air conditioning.
Energies 15 03735 g013
Figure 14. Impact of thermomodernization measures on the annual units demand for: usable (EU), final (EK), and primary energy (EP), as well as emission of CO2 for the analyzed lecture room.
Figure 14. Impact of thermomodernization measures on the annual units demand for: usable (EU), final (EK), and primary energy (EP), as well as emission of CO2 for the analyzed lecture room.
Energies 15 03735 g014
Table 1. Test instruments, producers, range, and accuracy.
Table 1. Test instruments, producers, range, and accuracy.
NameTypeProducerParameterRangeAccuracy
Globe thermometerAhlborn FPA805GTSAhlborn Mess- und Regelungstechnik GmbH, Holzkirchen, GermanyMean radiant temperature−50 to 200 °C±0.15 °C
Thermo-anemometerAhlborn FVA605TA10UAir velocity0.01 to 1 m/s±1%
Heat flow meterAhlborn FQA019CHeat flow0 to 26,000 W/m2±5%
Pressure difference meterAhlborn FDA602S1KPressure difference±1250 Pa±0.5%
Rotating anemometer + mountable hopperAhlborn FVA915SMA1 + ZV9915LMAirflow0.1 to 20 m/s±0.5%
ThermometerAhlborn FPA32L0250Air temperature−70 to 500 °C0.1 °C
Blower DoorEnergy Conservatory Type 4Energy Conservatory, Minneapolis, MN, USAAirtightness0–7200 m3/h±1.0%
PyranometerKipp & Zonnen CMP3OTT HydroMet B.V.
Delft, The Netherlands
Solar radiation0–2000 W/m2 in the 300–2800 mm spectrum range10–32 µV/(W/m2)
directional error < 20 W/m2
Table 2. Scenarios of energy-saving activities in the analyzed facility.
Table 2. Scenarios of energy-saving activities in the analyzed facility.
ModificationCase Number
-12345678910111213
Current statex
Insulation of external walls xxxxxxxxxxxxx
Replacement of window joinery xxxxxxxxxxxx
Replacement of lighting xxxxxxxxxxx
Installation of window diffusers x
Mechanical ventilation xxxxxxxxx
Ground pipe heat exchanger x x x x
Network heat from a coal-fired heating plantxxxxxx
Network heat from cogeneration—biomass xxxx
Glycol/water heat pump xxxx
Photovoltaic panels xx xx
Publisher’s Note: MDPI stays neutral with regard to jurisdictional claims in published maps and institutional affiliations.

Share and Cite

MDPI and ACS Style

Kosiński, P.; Skotnicka-Siepsiak, A. Possibilities of Adapting the University Lecture Room to the Green University Standard in Terms of Thermal Comfort and Ventilation Accuracy. Energies 2022, 15, 3735. https://doi.org/10.3390/en15103735

AMA Style

Kosiński P, Skotnicka-Siepsiak A. Possibilities of Adapting the University Lecture Room to the Green University Standard in Terms of Thermal Comfort and Ventilation Accuracy. Energies. 2022; 15(10):3735. https://doi.org/10.3390/en15103735

Chicago/Turabian Style

Kosiński, Piotr, and Aldona Skotnicka-Siepsiak. 2022. "Possibilities of Adapting the University Lecture Room to the Green University Standard in Terms of Thermal Comfort and Ventilation Accuracy" Energies 15, no. 10: 3735. https://doi.org/10.3390/en15103735

APA Style

Kosiński, P., & Skotnicka-Siepsiak, A. (2022). Possibilities of Adapting the University Lecture Room to the Green University Standard in Terms of Thermal Comfort and Ventilation Accuracy. Energies, 15(10), 3735. https://doi.org/10.3390/en15103735

Note that from the first issue of 2016, this journal uses article numbers instead of page numbers. See further details here.

Article Metrics

Back to TopTop