Spectrum Analysis for Condition Monitoring and Fault Diagnosis of Ventilation Motor: A Case Study
Abstract
1. Introduction
- A detailed analytical method is evaluated for the testing and harmonic analysis of the faulty current signal of the motor in the ventilation system.
- The current signal is denoised using wavelet decomposition and further divided into three categories, namely noise, transients, and harmonics. The FFT is applied for further detection in all three categories. The proposed method identifies the causes of motor failure in the ventilation system with a relative degree of accuracy.
- The experimental results reveal the effectiveness of the employed technique by computing the number of harmonics in the current signal along with the maximum harmonics present in the signal. The analysis reveals that the reason for the harmonics is the high switching frequency of the motor cover, which causes motor failure.
- By effective utilization of motor current signature analysis (MCSA), preventive maintenance can improve the ventilation system’s reliability. The fault detection at the developing stage can save the system from any catastrophic situation and give enough repair and maintenance time. Since the inverter-fed motor’s current contains a variety of harmonics, it is important to segregate them. This paper proposes a wavelet transform for the division of current harmonics.
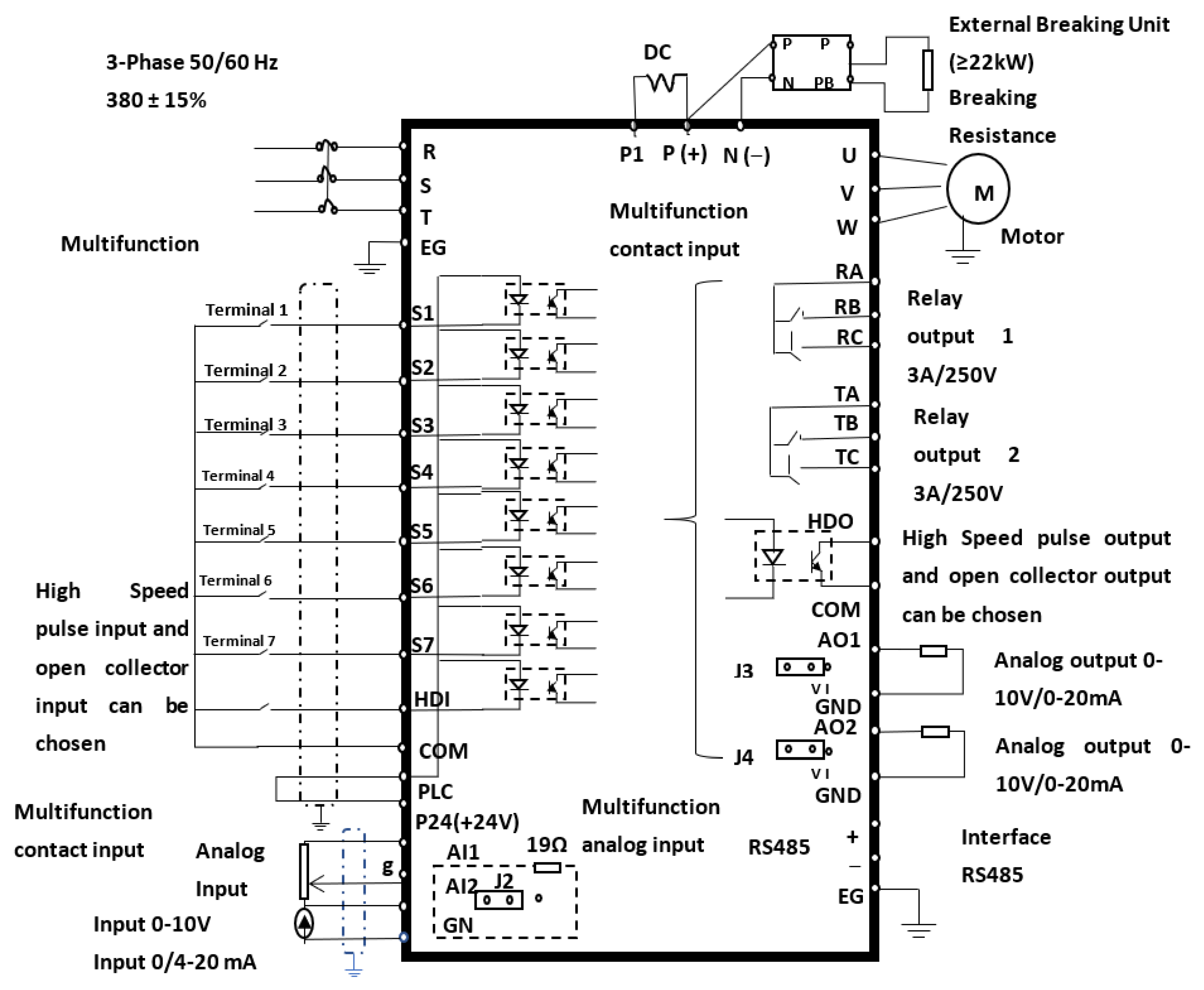
2. System under Fault Diagnostic Test
3. Measurement of the Signal
- Voltage level, which should be at the level of every 10 min observation window (90–110%)·UNIMI, where UNIMI is in the low voltage network 230/400 V.
- The level of voltage distortion is given by the level of both the general nonlinear distortion factor (THDu) and the individual harmonics.
3.1. Measurement Procedure
3.2. Measuring Instrument
3.2.1. Frequency Analysis up to 2.5 kHz
3.2.2. Frequency Analysis of the Motor Power Supply above 20 kHz
3.3. Supply Current Measurement
4. Signal Processing Techniques
4.1. Wavelet Transform
Discrete Wavelet Transform
4.2. Fourier Transform
5. Analysis of the Signal
6. Comparison of This Study with Existing Studies
7. Conclusions
Author Contributions
Funding
Institutional Review Board Statement
Informed Consent Statement
Data Availability Statement
Conflicts of Interest
References
- Karafotis, P.A.; Evangelopoulos, V.A.; Georgilakis, P.S. Evaluation of harmonic contribution to unbalance in power systems under non-stationary conditions using wavelet packet transform. Electr. Power Syst. Res. 2020, 178, 106026. [Google Scholar] [CrossRef]
- International Electrotechnical Commission. IEC 61000-4-30. Electromagnetic Compatibility (EMC)—Part 4-30: Testing and Measurement Techniques—Power Quality Measurement Methods; International Electrotechnical Commission: Geneva, Switzerland, 2000; p. 134. [Google Scholar]
- IEEE Power and Energy Society. IEEE Recommended Practice and Requirements for Harmonic Control in Electric Power Systems IEEE Power and Energy Society. IEEE Std 519-2014; IEEE: New York, NY, USA, 2014; Volume 2014. [Google Scholar] [CrossRef]
- Latran, M.B.; Teke, A. A novel wavelet transform based voltage sag/swell detection algorithm. Int. J. Electr. Power Energy Syst. 2015, 71, 131–139. [Google Scholar] [CrossRef]
- International Electrotechnical Commission. IEC 61000-4-7. Electromagnetic Compatibility (EMC)—Part 4-7: Testing and Measurement Techniques—General Guide on Harmonics and Interharmonics Measurements and Instrumentation, for Power Supply Systems and Equipment Connected; International Electrotechnical Commission: Geneva, Switzerland, 2002. [Google Scholar]
- Kudelina, K.; Asad, B.; Vaimann, T.; Belahcen, A.; Rassõlkin, A.; Kallaste, A.; Lukichev, D.V. Bearing fault analysis of bldc motor for electric scooter application. Designs 2020, 4, 42. [Google Scholar] [CrossRef]
- Zhao, H.; Lu, B.; Yu, L.; Zhao, S.; Zeng, L.; Zhang, Z.; You, P. A fourier series-based anomaly extraction approach to access network traffic in power telecommunications. In Proceedings of the 2017 12th International Conference on Computer Science and Education (ICCSE), Houston, TX, USA, 22–25 August 2017; pp. 550–553. [Google Scholar] [CrossRef]
- Barros, J.; Diego, R.I.; De Apráiz, M. Applications of wavelets in electric power quality: Voltage events. Electr. Power Syst. Res. 2012, 88, 130–136. [Google Scholar] [CrossRef]
- Najafi, E.; Yatim, A.H.M.; Mirzaei, A. An improved sag detection approach based on modified Goertzel algorithm. Int. J. Electron. 2019, 106, 36–47. [Google Scholar] [CrossRef]
- Dos Santos, I.S.; Hall Barbosa, C.R.; da Silva, M.T.F.; de Oliveira Filho, O.B. Multi-resolution wavelet analysis for noise reduction in impulse puncture voltage measurements. Measurement 2020, 153, 107416. [Google Scholar] [CrossRef]
- Asad, B.; Vaimann, T.; Rassõlkin, A.; Kallaste, A.; Belahcen, A. Review of Electrical Machine Diagnostic Methods Applicability in the Perspective of Industry 4.0. Electr. Control Commun. Eng. 2019, 14, 108–116. [Google Scholar] [CrossRef]
- Thirumala, K.; Shantanu; Jain, T.; Umarikar, A.C. Visualizing time-varying power quality indices using generalized empirical wavelet transform. Electr. Power Syst. Res. 2017, 143, 99–109. [Google Scholar] [CrossRef]
- Jalayer, M.; Orsenigo, C.; Vercellis, C. Fault detection and diagnosis for rotating machinery: A model based on convolutional LSTM, Fast Fourier and continuous wavelet transforms. Comput. Ind. 2021, 125, 103378. [Google Scholar] [CrossRef]
- Kordestani, M.; Safavi, A.A.; Saif, M. Harmonic Fault Diagnosis in Power Quality System Using Harmonic Wavelet. IFAC-PapersOnLine 2017, 50, 13569–13574. [Google Scholar] [CrossRef]
- Xinmin, T.; Chao, R.; Yongkang, W.; Qing, L.; Wenjie, G.; Rui, L.; Qing, H.; Junrong, Z. Bearings fault detection using wavelet transform and generalized Gaussian density modeling. Measurement 2020, 155. [Google Scholar] [CrossRef]
- Vaimann, T.; Sobra, J.; Belahcen, A.; Rassõlkin, A.; Rolak, M.; Kallaste, A. Induction machine fault detection using smartphone recorded audible noise. IET Sci. Meas. Technol. 2018, 12, 554–560. [Google Scholar] [CrossRef]
- Pérez Vallés, A.; Salmerón Revuelta, P. A new distributed measurement index for the identification of harmonic distortion and/or unbalance sources based on the IEEE Std. 1459 framework. Electr. Power Syst. Res. 2019, 172, 96–104. [Google Scholar] [CrossRef]
- Chicco, G.; Postolache, P.; Toader, C. Analysis of three-phase systems with neutral under distorted and unbalanced conditions in the symmetrical component-based framework. IEEE Trans. Power Deliv. 2007, 22, 674–683. [Google Scholar] [CrossRef]
- Chicco, G.; Pons, E.; Russo, A.; Spertino, F.; Porumb, R.; Postolache, P.; Toader, C. Assessment of unbalance and distortion components in three-phase systems with harmonics and interharmonics. Electr. Power Syst. Res. 2017, 147, 201–212. [Google Scholar] [CrossRef]
- Boudebbouz, O.; Boukadoum, A.; Leulmi, S. Effective apparent power definition based on sequence components for non-sinusoidal electric power quantities. Electr. Power Syst. Res. 2014, 117, 210–218. [Google Scholar] [CrossRef]
- Zheng, T.; Makram, E.B.; Girgis, A.A. Evaluating power system unbalance in the presence of harmonic distortion. IEEE Trans. Power Deliv. 2003, 18, 393–397. [Google Scholar] [CrossRef]
- Gudaru, U.; Waje, V.B. Analysis of Harmonics in Power System Using Wavelet Transform. In Proceedings of the 2012 IEEE Students’ Conference on Electrical, Electronics and Computer Science Analysis, Bhopal, India, 1–2 March 2012. [Google Scholar]
- Yuan, X.L.; Peng, G.; Zhang, F.D.; Yang, C.L.; Yin, Z.; Ren, S.L.; Li, J.F. Analysis of power grid harmonics with wavelet network. In Proceedings of the 2017 29th Chinese Control And Decision Conference (CCDC), Chongqing, China, 28–30 May 2017; pp. 6052–6055. [Google Scholar] [CrossRef]
- Alves, D.K.; Costa, F.B.; Lucio De Araujo Ribeiro, R.; Martins De Sousa Neto, C.; De Oliveira Alves Rocha, T. Real-time power measurement using the maximal overlap discrete wavelet-packet transform. IEEE Trans. Ind. Electron. 2017, 64, 3177–3187. [Google Scholar] [CrossRef]
- Mustafa, T.I.A.H.; Cabral, S.H.; Almaguer, H.D.; Meyer, L.H.; Puchale, L.H.B.; Cereja, J.E.M.; Vier, G.B. Analysis of the Behavior of the 3rd Harmonic over Power Transmission Lines. In Proceedings of the 2019 IEEE PES GTD Grand International Conference and Exposition Asia (GTD Asia), Bangkok, Thailand, 19–23 March 2019; pp. 310–313. [Google Scholar] [CrossRef]
- Morsi, W.G.; El-Hawary, M.E. Novel power quality indices based on wavelet packet transform for non-stationary sinusoidal and non-sinusoidal disturbances. Electr. Power Syst. Res. 2010, 80, 753–759. [Google Scholar] [CrossRef]
- Guo, M.; Yang, N.; You, L. Wavelet-transform based early detection method for short-circuit faults in power distribution networks. Int. J. Electr. Power Energy Syst. 2018, 99, 706–721. [Google Scholar] [CrossRef]
- Qi, P.; Jovanovic, S.; Lezama, J.; Schweitzer, P. Discrete wavelet transform optimal parameters estimation for arc fault detection in low-voltage residential power networks. Electr. Power Syst. Res. 2017, 143, 130–139. [Google Scholar] [CrossRef]
- Jayamaha, D.K.J.S.; Lidula, N.W.A.; Rajapakse, A.D. Wavelet-Multi Resolution Analysis Based ANN Architecture for Fault Detection and Localization in DC Microgrids. IEEE Access 2019, 7, 145371–145384. [Google Scholar] [CrossRef]
- Morsi, W.G.; El-Hawary, M.E. Wavelet packet transform-based power quality indices for balanced and unbalanced three-phase systems under stationary or nonstationary operating conditions. IEEE Trans. Power Deliv. 2009, 24, 2300–2310. [Google Scholar] [CrossRef]
- Morsi, W.G.; El-Hawary, M.E. Power quality evaluation in smart grids considering modern distortion in electric power systems. Electr. Power Syst. Res. 2011, 81, 1117–1123. [Google Scholar] [CrossRef]
- Morsi, W.G.; El-Hawary, M.E. Reformulating three-phase power components definitions contained in the IEEE standard 1459–2000 using discrete wavelet transform. IEEE Trans. Power Deliv. 2007, 22, 1917–1925. [Google Scholar] [CrossRef]
- Thirumala, K.; Umarikar, A.C.; Jain, T. Estimation of single-phase and three-phase power-quality indices using empirical wavelet transform. IEEE Trans. Power Deliv. 2015, 30, 445–454. [Google Scholar] [CrossRef]
- AdvanTech M430 Series. Available online: http://www.advcontrol.eu/download/files/M430_en.pdf?fbclid=IwAR0FXN7N1PzL-F_zGUgnWkwH8HDA42T1mG0pMzL4OgZLfLDJDQbSTJ9nUi8 (accessed on 23 January 2021).
- International Electrotechnical Commission. IEC 61800-3:2018. Adjustable Speed Electrical Power Drive Systems—Part 3: EMC Requirements and Specific Test Methods; International Electrotechnical Commission: Geneva, Switzerland, 2018. [Google Scholar]
- Asad, B.; Vaimann, T.; Belahcen, A.; Kallaste, A.; Rassõlkin, A.; Iqbal, M.N. Broken rotor bar fault detection of the grid and inverter-fed induction motor by effective attenuation of the fundamental component. IET Electr. Power Appl. 2019, 13, 2005–2014. [Google Scholar] [CrossRef]
- García Plaza, E.; Núñez López, P.J. Application of the wavelet packet transform to vibration signals for surface roughness monitoring in CNC turning operations. Mech. Syst. Signal Process. 2018, 98, 902–919. [Google Scholar] [CrossRef]
- RX Gao, R.Y. Wavelets: Theory and Applications for Manufacturing; Springer: Boston, MA, USA, 2010. [Google Scholar]
- Matlab Discrete Wavelet Transform. Available online: https://se.mathworks.com/help/wavelet/ref/dwt.html (accessed on 26 May 2020).
- Johnson, S.G.; Frigo, M. A modified split-radix FFT with fewer arithmetic operations. IEEE Trans. Signal Process. 2007, 55, 111–119. [Google Scholar] [CrossRef]
- Xia, J.; Tashpolat, T.; Zhang, F.; Ji, H.-J. The Design and Implementation of FFTW3. Proc. IEEE 2005, 93, 216–231. [Google Scholar] [CrossRef]
- Cooley, J.W.; Tukey, J.W. An algorithm for the machine calculation of complex Fourier series. Math. Comput. 1965, 19, 297. [Google Scholar] [CrossRef]
- De Apráiz, M.; Barros, J.; Diego, R.I. A real-time method for time-frequency detection of transient disturbances in voltage supply systems. Electr. Power Syst. Res. 2014, 108, 103–112. [Google Scholar] [CrossRef]
- Gencer, Ö.; Öztürk, S.; Erfidan, T. A new approach to voltage sag detection based on wavelet transform. Int. J. Electr. Power Energy Syst. 2010, 32, 133–140. [Google Scholar] [CrossRef]
- Li, J.; Wang, H.; Wang, X.; Zhang, Y. Rolling bearing fault diagnosis based on improved adaptive parameterless empirical wavelet transform and sparse denoising. Measurement 2020, 152, 107392. [Google Scholar] [CrossRef]
- Ping, H.W.; Gaeid, K.S. Detection of induction motor faults using direct wavelet transform technique. In Proceedings of the 2012 15th International Conference on Electrical Machines and Systems (ICEMS), Sapporo, Japan, 21–24 October 2012. [Google Scholar]
- Singh, M.; Shaik, A.G. Broken Rotor Bar Fault Diagnosis of a Three-phase Induction Motor using Discrete Wavelet Transform. In Proceedings of the 2019 IEEE PES GTD Grand International Conference and Exposition Asia (GTD Asia), Bangkok, Thailand, 19–23 March 2019; pp. 13–17. [Google Scholar] [CrossRef]
- Ameid, T.; Menacer, A.; Talhaoui, H.; Azzoug, Y. Discrete wavelet transform and energy eigen value for rotor bars fault detection in variable speed field-oriented control of induction motor drive. ISA Trans. 2018, 79, 217–231. [Google Scholar] [CrossRef]
- Fernandez-Cavero, V.; Pons-Llinares, J.; Duque-Perez, O.; Morinigo-Sotelo, D. Detection and quantification of bar breakage harmonics evolutions in inverter-fed motors through the dragon transform. ISA Trans. 2021, 109, 352–367. [Google Scholar] [CrossRef]
- Cherif, H.; Benakcha, A.; Laib, I.; Chehaidia, S.E.; Menacer, A.; Soudan, B.; Olabi, A.G. Early detection and localization of stator inter-turn faults based on discrete wavelet energy ratio and neural networks in induction motor. Energy 2020, 212, 118684. [Google Scholar] [CrossRef]
- Rassolkin, A.; Rjabtsikov, V.; Vaimann, T.; Kallaste, A.; Kuts, V.; Partyshev, A. Digital Twin of an Electrical Motor Based on Empirical Performance Model. In Proceedings of the 2020 XI International Conference on Electrical Power Drive Systems (ICEPDS), St. Petersburg, Russia, 4–7 October 2020; pp. 8–11. [Google Scholar] [CrossRef]
- Rassolkin, A.; Vaimann, T.; Kallaste, A.; Kuts, V. Digital twin for propulsion drive of autonomous electric vehicle. In Proceedings of the 2019 IEEE 60th International Scientific Conference on Power and Electrical Engineering of Riga Technical University (RTUCON), Riga, Latvia, 7–9 October 2019; pp. 1–4. [Google Scholar] [CrossRef]











| Input Voltage [V] | 3-Phase 380 (50/60 Hz) | Voltage Range [V] | 323–437 |
| Rated Output Power [kW] | 5.5/4 | Startup Torque | 150%, 0.5 Hz (sensorless vector control) 150%, 1 H (V/f control) |
| Input Current [A] | 15/10 | Maximum Frequency [Hz] | 400 |
| Output Current [A] | 13/9 | Carrier Frequency [kHz] | 1–15 |
| Overload Capacity 60 s [A] | 19.5/13.5 | V/f Curve | Linear, Square, Multipoint |
| Applicable Motor [kW] | 5.5/4 | Protection | Overload, over and under voltage, overheat, over current, phase loss |
Publisher’s Note: MDPI stays neutral with regard to jurisdictional claims in published maps and institutional affiliations. |
© 2021 by the authors. Licensee MDPI, Basel, Switzerland. This article is an open access article distributed under the terms and conditions of the Creative Commons Attribution (CC BY) license (https://creativecommons.org/licenses/by/4.0/).
Share and Cite
Shabbir, N.; Kütt, L.; Asad, B.; Jawad, M.; Iqbal, M.N.; Daniel, K. Spectrum Analysis for Condition Monitoring and Fault Diagnosis of Ventilation Motor: A Case Study. Energies 2021, 14, 2001. https://doi.org/10.3390/en14072001
Shabbir N, Kütt L, Asad B, Jawad M, Iqbal MN, Daniel K. Spectrum Analysis for Condition Monitoring and Fault Diagnosis of Ventilation Motor: A Case Study. Energies. 2021; 14(7):2001. https://doi.org/10.3390/en14072001
Chicago/Turabian StyleShabbir, Noman, Lauri Kütt, Bilal Asad, Muhammad Jawad, Muhammad Naveed Iqbal, and Kamran Daniel. 2021. "Spectrum Analysis for Condition Monitoring and Fault Diagnosis of Ventilation Motor: A Case Study" Energies 14, no. 7: 2001. https://doi.org/10.3390/en14072001
APA StyleShabbir, N., Kütt, L., Asad, B., Jawad, M., Iqbal, M. N., & Daniel, K. (2021). Spectrum Analysis for Condition Monitoring and Fault Diagnosis of Ventilation Motor: A Case Study. Energies, 14(7), 2001. https://doi.org/10.3390/en14072001

