Evaluation on Overheating Risk of a Typical Norwegian Residential Building under Future Extreme Weather Conditions
Abstract
1. Introduction
2. Method
2.1. Simulation Tool
2.2. Evaluation Criteria and Guideline
2.2.1. Passive House Planning Package (PHPP)
2.2.2. CIBSE TM 59 (Adaptive Thermal Comfort)
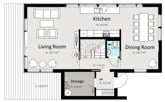
3. Typical Residential Building in Norway
4. Weather Scenarios
5. Results and Discussion
5.1. PHPP Method
5.2. CIBSE TM 59 (Adaptive Thermal Comfort)
6. Conclusions and Outlook
- The evaluation method recommended in the PHPP is not very precise to evaluate the specific overheating risk for bedrooms without considering occupied time. The adaptive thermal comfort method is recommended to evaluate the overheating risk for single rooms in residential buildings.
- Large window-to-wall ratios (WWR) are not recommended for Norwegian residential buildings. Too large WWR will result in overheating risk in the summer, particularly in the future extreme weather conditions. In the north-western oriented bedrooms with windows faced north, the use of a large WWR is not recommended.
- In very airtight residential buildings, overheating risk can take place in the future climate scenarios analyzed.
Author Contributions
Funding
Acknowledgments
Conflicts of Interest
References
- Copernicus Climate Change Service. Available online: https://cds.climate.copernicus.eu/#!/home (accessed on 1 April 2019).
- Hughes, C.; Natarajan, S. Summer thermal comfort and overheating in the elderly. Build. Serv. Eng. Res. Technol. 2019, 40, 426–445. [Google Scholar] [CrossRef]
- Åström, D.O.; Forsberg, B.; Ebi, K.L.; Rocklöv, J. Attributing mortality from extreme temperatures to climate change in Stockholm, Sweden. Nat. Clim. Chang. 2013, 3, 1050–1054. [Google Scholar] [CrossRef]
- Pathan, A.; Mavrogianni, A.; Summerfield, A.; Oreszczyn, T.; Davies, M. Monitoring summer indoor overheating in the London housing stock. Energy Build. 2017, 141, 361–378. [Google Scholar] [CrossRef]
- Jenkins, D.; Ingram, V.; Simpson, S.; Patidar, S. Methods for assessing domestic overheating for future building regulation compliance. Energy Policy 2013, 56, 684–692. [Google Scholar] [CrossRef]
- Ozarisoy, B.; Elsharkawy, H. Assessing overheating risk and thermal comfort in state-of-the-art prototype houses that combat exacerbated climate change in UK. Energy Build. 2019, 187, 201–217. [Google Scholar] [CrossRef]
- Sameni, S.M.T.; Gaterell, M.; Montazami, A.; Ahmed, A. Overheating investigation in UK social housing flats built to the Passivhaus standard. Build. Environ. 2015, 92, 222–235. [Google Scholar] [CrossRef]
- Ji, Y.; Fitton, R.; Swan, W.; Webster, P.; Swan, W. Assessing overheating of the UK existing dwellings—A case study of replica Victorian end terrace house. Build. Environ. 2014, 77, 1–11. [Google Scholar] [CrossRef]
- Gupta, R.; Gregg, M.; Gregg, M. Preventing the overheating of English suburban homes in a warming climate. Build. Res. Inf. 2013, 41, 281–300. [Google Scholar] [CrossRef]
- Peacock, A.; Jenkins, D.; Kane, D. Investigating the potential of overheating in UK dwellings as a consequence of extant climate change. Energy Policy 2010, 38, 3277–3288. [Google Scholar] [CrossRef]
- Psomas, T.; Heiselberg, P.; Duer, K.; Bjørn, E. Overheating risk barriers to energy renovations of single family houses: Multicriteria analysis and assessment. Energy Build. 2016, 117, 138–148. [Google Scholar] [CrossRef]
- Ibrahim, A.; Pelsmakers, S.L. Low-energy housing retrofit in North England: Overheating risks and possible mitigation strategies. Build. Serv. Eng. Res. Technol. 2018, 39, 161–172. [Google Scholar] [CrossRef]
- Sehizadeh, A.; Ge, H. Impact of future climate change on the overheating of Canadian housing retrofitted to the passivehaus standard. In Proceedings of the 2009 IBPSA Conference, Glasgow, Scotland, 27–30 July 2009. [Google Scholar]
- De Grussa, Z.; Andrews, D.; Lowry, G.; Newton, E.J.; Yiakoumetti, K.; Chalk, A.; Bush, D. A London residential retrofit case study: Evaluating passive mitigation methods of reducing risk to overheating through the use of solar shading combined with night-time ventilation. Build. Serv. Eng. Res. Technol. 2019, 40, 389–408. [Google Scholar] [CrossRef]
- Salem, R.; Bahadori-Jahromi, A.; Mylona, A. Investigating the impacts of a changing climate on the risk of overheating and energy performance for a UK retirement village adapted to the nZEB standards. Build. Serv. Eng. Res. Technol. 2019, 40, 470–491. [Google Scholar] [CrossRef]
- Mitchell, R.; Natarajan, S. Overheating risk in Passivhaus dwellings. Build. Serv. Eng. Res. Technol. 2019, 40, 446–469. [Google Scholar] [CrossRef]
- Petrou, G.; Symonds, P.; Mavrogianni, A.; Mylona, A.; Davies, M. The summer indoor temperatures of the English housing stock: Exploring the influence of dwelling and household characteristics. Build. Serv. Eng. Res. Technol. 2019, 40, 492–511. [Google Scholar] [CrossRef]
- Roberts, B.M.; Allinson, D.; Diamond, S.; Abel, B.; Das Bhaumik, C.; Khatami, N.; Lomas, K.J. Predictions of summertime overheating: Comparison of dynamic thermal models and measurements in synthetically occupied test houses. Build. Serv. Eng. Res. Technol. 2019, 40, 512–552. [Google Scholar] [CrossRef]
- Mlakar, J.; Štrancar, J. Overheating in residential passive house: Solution strategies revealed and confirmed through data analysis and simulations. Energy Build. 2011, 43, 1443–1451. [Google Scholar] [CrossRef]
- Schweitzer, O.; Erell, E. Evaluation of the energy performance and irrigation requirements of extensive green roofs in a water-scarce Mediterranean climate. Energy Build. 2014, 68, 25–32. [Google Scholar] [CrossRef]
- Zuazua-Ros, A.; Martín-Gómez, C.; Ramos, J.C.; Bermejo-Busto, J. Towards cooling systems integration in buildings: Experimental analysis of a heat dissipation panel. Renew. Sustain. Energy Rev. 2017, 72, 73–82. [Google Scholar] [CrossRef]













| External Wall | Ground Floor | Roof | Window | |
|---|---|---|---|---|
| U-Value (W/(m² K)) | 0.22 | 0.18 | 0.18 | 1.2 |
© 2020 by the authors. Licensee MDPI, Basel, Switzerland. This article is an open access article distributed under the terms and conditions of the Creative Commons Attribution (CC BY) license (http://creativecommons.org/licenses/by/4.0/).
Share and Cite
Tian, Z.; Zhang, S.; Deng, J.; Dorota Hrynyszyn, B. Evaluation on Overheating Risk of a Typical Norwegian Residential Building under Future Extreme Weather Conditions. Energies 2020, 13, 658. https://doi.org/10.3390/en13030658
Tian Z, Zhang S, Deng J, Dorota Hrynyszyn B. Evaluation on Overheating Risk of a Typical Norwegian Residential Building under Future Extreme Weather Conditions. Energies. 2020; 13(3):658. https://doi.org/10.3390/en13030658
Chicago/Turabian StyleTian, Zhiyong, Shicong Zhang, Jie Deng, and Bozena Dorota Hrynyszyn. 2020. "Evaluation on Overheating Risk of a Typical Norwegian Residential Building under Future Extreme Weather Conditions" Energies 13, no. 3: 658. https://doi.org/10.3390/en13030658
APA StyleTian, Z., Zhang, S., Deng, J., & Dorota Hrynyszyn, B. (2020). Evaluation on Overheating Risk of a Typical Norwegian Residential Building under Future Extreme Weather Conditions. Energies, 13(3), 658. https://doi.org/10.3390/en13030658

