Carbon Dioxide Monitoring inside an Australian Brewery Using an Internet-of-Things Sensor Network
Abstract
1. Introduction
1.1. Air Pollutants
1.2. Carbon Dioxide as a Pollutant
1.3. Carbon Dioxide Monitoring
1.4. Carbon Dioxide Monitoring inside a Working Brewery
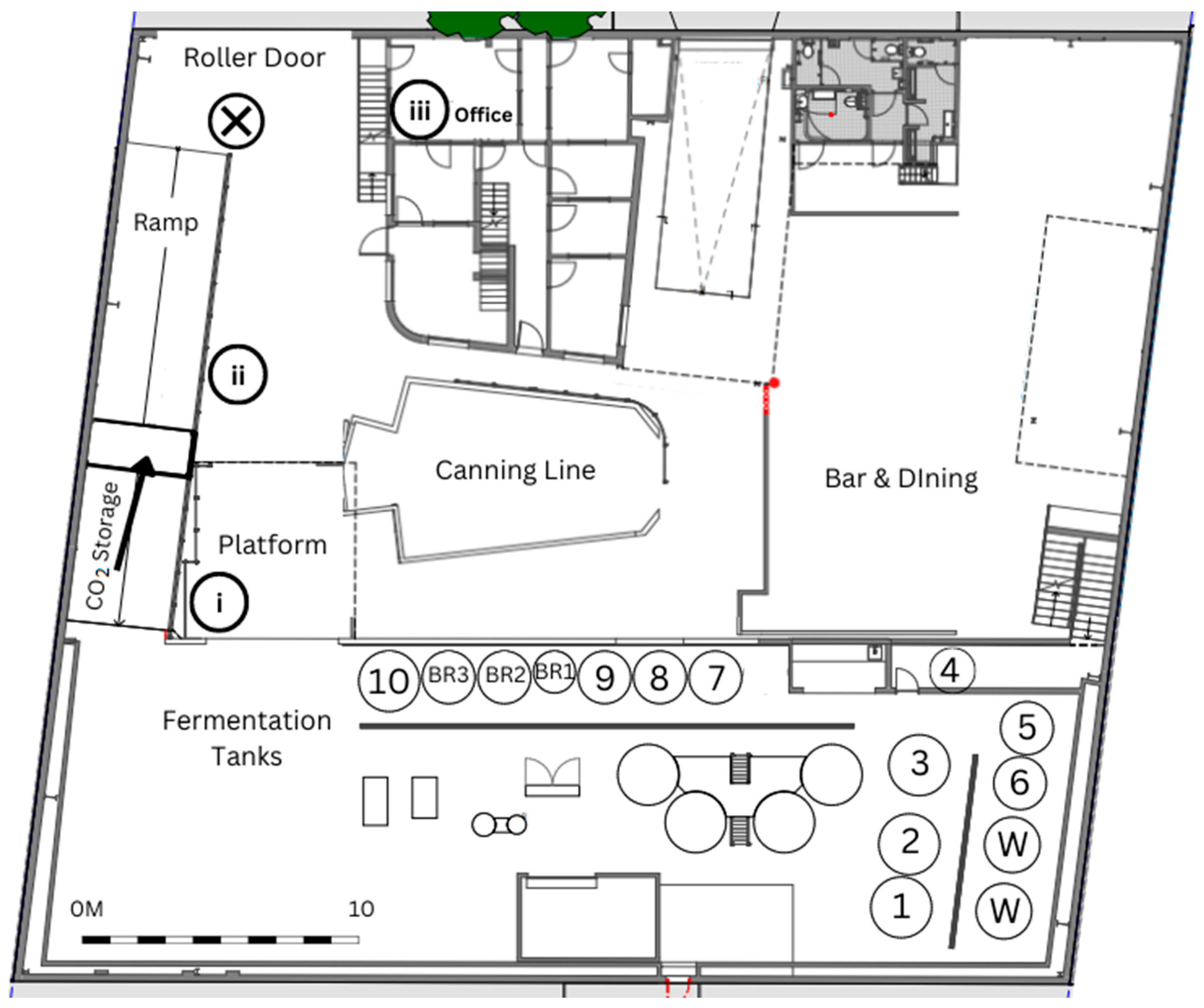
2. Methodology
3. Results and Discussion
3.1. Maximum CO2 Concentrations
3.2. Beyond a Single Hard-Wired Sensor
4. Conclusions
Author Contributions
Funding
Institutional Review Board Statement
Informed Consent Statement
Data Availability Statement
Acknowledgments
Conflicts of Interest
References
- Seguel, J.M.; Merrill, R.; Seguel, D.; Campagna, A.C. Indoor Air Quality. Am. J. Lifestyle Med. 2017, 11, 284–295. [Google Scholar] [CrossRef]
- National Construction Code. Indoor Air Quality; Australian Building Codes Board: Canberra, Australia, 2021.
- Van Tran, V.; Park, D.; Lee, Y.-C. Indoor Air Pollution, Related Human Diseases, and Recent Trends in the Control and Improvement of Indoor Air Quality. Int. J. Environ. Res. Public Health 2020, 17, 2927. [Google Scholar] [CrossRef]
- Brook, R.D.; Rajagopalan, S.; Pope, C.A., 3rd; Brook, J.R.; Bhatnagar, A.; Diez-Roux, A.V.; Holguin, F.; Hong, Y.; Luepker, R.V.; Mittleman, M.A.; et al. Particulate Matter Air Pollution and Cardiovascular Disease: An update to the scientific statement from the american heart association. Circulation 2010, 121, 2331–2378. [Google Scholar] [CrossRef] [PubMed]
- Miller, M.R.; Shaw, C.A.; Langrish, J.P. From particles to patients: Oxidative stress and the cardiovascular effects of air pollution. Future Cardiol. 2012, 8, 577–602. [Google Scholar] [CrossRef]
- US; EPA; OAR. Volatile Organic Compounds’ Impact on Indoor Air Quality. Overviews and Factsheets. Available online: https://www.epa.gov/indoor-air-quality-iaq/volatile-organic-compounds-impact-indoor-air-quality (accessed on 3 October 2022).
- Dunagan, S.C.; Dodson, R.E.; Rudel, R.A.; Brody, J.G. Toxics use reduction in the home: Lessons learned from household exposure studies. J. Clean. Prod. 2011, 19, 438–444. [Google Scholar] [CrossRef]
- Huang, Y.; Ho, S.S.H.; Ho, K.F.; Lee, S.C.; Yu, J.Z.; Louie, P.K. Characteristics and health impacts of VOCs and carbonyls associated with residential cooking activities in Hong Kong. J. Hazard. Mater. 2011, 186, 344–351. [Google Scholar] [CrossRef]
- Lee, K.; Choi, J.-H.; Lee, S.; Park, H.-J.; Oh, Y.-J.; Kim, G.-B.; Lee, W.-S.; Son, B.-S. Indoor levels of volatile organic compounds and formaldehyde from emission sources at elderly care centers in Korea. PLOS ONE 2018, 13, e0197495. [Google Scholar] [CrossRef] [PubMed]
- Liu, S.; Li, R.; Wild, R.J.; Warneke, C.; de Gouw, J.A.; Brown, S.S.; Miller, S.L.; Luongo, J.C.; Jimenez, J.L.; Ziemann, P.J. Contribution of human-related sources to indoor volatile organic compounds in a university classroom. Indoor Air 2015, 26, 925–938. [Google Scholar] [CrossRef] [PubMed]
- Tang, X.; Misztal, P.K.; Nazaroff, W.W.; Goldstein, A.H. Siloxanes Are the Most Abundant Volatile Organic Compound Emitted from Engineering Students in a Classroom. Environ. Sci. Technol. Lett. 2015, 2, 303–307. [Google Scholar] [CrossRef]
- Brickus, L.S.R.; Cardoso, J.N.; de Aquino Neto, F.R. Distributions of Indoor and Outdoor Air Pollutants in Rio de Janeiro, Brazil: Implications to Indoor Air Quality in Bayside Offices. Environ. Sci. Technol. 1998, 32, 3485–3490. [Google Scholar] [CrossRef]
- Bernstein, J.A.; Alexis, N.; Bacchus, H.; Bernstein, I.L.; Fritz, P.; Horner, E.; Li, N.; Mason, S.; Nel, A.; Oullette, J.; et al. The health effects of nonindustrial indoor air pollution. J. Allergy Clin. Immunol. 2008, 121, 585–591. [Google Scholar] [CrossRef]
- Weschler, C.J. Roles of the human occupant in indoor chemistry. Indoor Air 2015, 26, 6–24. [Google Scholar] [CrossRef]
- Huang, Y.; Yang, Z.; Gao, Z. Contributions of Indoor and Outdoor Sources to Ozone in Residential Buildings in Nanjing. Int. J. Environ. Res. Public Health 2019, 16, 2587. [Google Scholar] [CrossRef]
- Katsouyanni, K.; Touloumi, G.; Spix, C.; Schwartz, J.; Balducci, F.; Medina, S.; Rossi, G.; Wojtyniak, B.; Sunyer, J.; Bacharova, L.; et al. Short term effects of ambient sulphur dioxide and particulate matter on mortality in 12 European cities: Results from time series data from the APHEA project. BMJ 1997, 314, 1658. [Google Scholar] [CrossRef] [PubMed]
- Seow, W.J.; Downward, G.S.; Wei, H.; Rothman, N.; Reiss, B.; Xu, J.; Bassig, B.A.; Li, J.; He, J.; Hosgood, H.D.; et al. Indoor concentrations of nitrogen dioxide and sulfur dioxide from burning solid fuels for cooking and heating in Yunnan Province, China. Indoor Air 2016, 26, 776–783. [Google Scholar] [CrossRef]
- Hänninen, O.; Goodman, P. Outdoor Air as a Source of Indoor Pollution. In Issues in Environmental Science and Technology; Harrison, R.M., Hester, R.E., Eds.; Royal Society of Chemistry: Cambridge, UK, 2019; pp. 35–65. [Google Scholar] [CrossRef]
- WHO. Air Quality Guidelines: Chapter 7.4 Sulfur Dioxide; WHO Regional Oce for Europe: Copenhagen, Denmark, 2000.
- International Programme on Chemical Safety. Carbon Monoxide; World Health Organization: Geneva, Switzerland, 1999.
- Raub, J.A.; Mathieu-Nolf, M.; Hampson, N.B.; Thom, S.R. Carbon monoxide poisoning—A public health perspective. Toxicology 2000, 145, 1–14. [Google Scholar] [CrossRef] [PubMed]
- Persily, A.; de Jonge, L. Carbon dioxide generation rates for building occupants. Indoor Air 2017, 27, 868–879. [Google Scholar] [CrossRef] [PubMed]
- Emmerich, S.J.; Persily, A.K. State-of-the-Art Review of CO2 Demand Controlled Ventilation Technology and Application; National Institute of Standards and Technology: Gaithersburg, MD, USA, 2001. [CrossRef]
- Ramalho, O.; Wyart, G.; Mandin, C.; Blondeau, P.; Cabanes, P.-A.; Leclerc, N.; Mullot, J.-U.; Boulanger, G.; Redaelli, M. Association of carbon dioxide with indoor air pollutants and exceedance of health guideline values. Build. Environ. 2015, 93, 115–124. [Google Scholar] [CrossRef]
- Satish, U.; Mendell, M.J.; Shekhar, K.; Hotchi, T.; Sullivan, D.; Streufert, S.; Fisk, W.J. Is CO2 an Indoor Pollutant? Direct Effects of Low-to-Moderate CO2 Concentrations on Human Decision-Making Performance. Environ. Health Perspect. 2012, 120, 1671–1677. [Google Scholar] [CrossRef]
- Allen, J.G.; Macnaughton, P.; Cedeno-Laurent, J.G.; Cao, X.; Flanigan, S.; Vallarino, J.; Rueda, F.; Donnelly-McLay, D.; Spengler, J.D. Airplane pilot flight performance on 21 maneuvers in a flight simulator under varying carbon dioxide concentrations. J. Expo. Sci. Environ. Epidemiol. 2019, 29, 457–468. [Google Scholar] [CrossRef]
- Allen, J.G.; Macnaughton, P.; Satish, U.; Santanam, S.; Vallarino, J.; Spengler, J.D. Associations of Cognitive Function Scores with Carbon Dioxide, Ventilation, and Volatile Organic Compound Exposures in Office Workers: A Controlled Exposure Study of Green and Conventional Office Environments. Environ. Health Perspect. 2016, 124, 805–812. [Google Scholar] [CrossRef] [PubMed]
- Zhang, X.; Wargocki, P.; Lian, Z.; Thyregod, C. Effects of exposure to carbon dioxide and bioeffluents on perceived air quality, self-assessed acute health symptoms, and cognitive performance. Indoor Air 2017, 27, 47–64. [Google Scholar] [CrossRef] [PubMed]
- ACGIH. Carbon Dioxide. In Threshold Limit Values for Chemical Substances and Physical Agents and Biological Exposure Indices with 7th Edition Documentation; American Conference of Governmental Industrial Hygienists: Cincinnati, OH, USA, 2017. [Google Scholar]
- DFG. Kohlendioxid [MAK Value Documentation, 2002]. In Documentations and Methods; MAK Collection for Occupational Health and Safety; Wiley-VCH Verlag GmbH: Weinheim, Germany, 2012. [Google Scholar]
- HSDB. Carbon Dioxide. In Hazardous Substances Data Bank Number: 516; U.S. National Library of Medicine: Bethesda, MD, USA, 2015. [Google Scholar]
- Rice, S.A. Health Effects of Acute and Prolonged CO2 Exposure in Normal and Sensitive Populations. In Proceedings of the NETL Proceeding, Alexandria, VA, USA, 2003. [Google Scholar]
- Tran, T.V.; Dang, N.T.; Chung, W.-Y. Battery-free smart-sensor system for real-time indoor air quality monitoring. Sens. Actuators B Chem. 2017, 248, 930–939. Available online: https://www.infona.pl/resource/bwmeta1.element.elsevier-af5ec885-ae66-3525-8d69-79e89624eb93 (accessed on 30 October 2022). [CrossRef]
- Marques, G.; Ferreira, C.R.; Pitarma, R. Indoor Air Quality Assessment Using a CO2 Monitoring System Based on Internet of Things. J. Med. Syst. 2019, 43, 67. [Google Scholar] [CrossRef] [PubMed]
- Kim, J.-Y.; Chu, C.-H.; Shin, S.-M. ISSAQ: An Integrated Sensing Systems for Real-Time Indoor Air Quality Monitoring. IEEE Sens. J. 2014, 14, 4230–4244. [Google Scholar] [CrossRef]
- Pitarma, R.; Marques, G.; Ferreira, B. Monitoring Indoor Air Quality for Enhanced Occupational Health. J. Med. Syst. 2016, 41, 23. [Google Scholar] [CrossRef]
- Abraham, S.; Li, X. A Cost-effective Wireless Sensor Network System for Indoor Air Quality Monitoring Applications. Procedia Comput. Sci. 2014, 34, 165–171. [Google Scholar] [CrossRef]
- Huizen, D. The Assessment of CO2 Exposures, Workload Demands, and Musculoskeletal Disorder Risk on Heart Rate for Select Craft Brewery Job Tasks. Ph.D. Dissertation, Western Michigan University, Kalamazoo, MI, USA, 2020. Available online: https://scholarworks.wmich.edu/dissertations/3644 (accessed on 1 December 2022).
- Industries, Adafruit. Adafruit SCD-30-NDIR CO2 Temperature and Humidity Sensor. Available online: https://www.adafruit.com/product/4867 (accessed on 6 November 2022).
- Ould, S.; Bennett, N.S. Energy Performance Analysis and Modelling of LoRa Prototyping Boards. Sensors 2021, 21, 7992. [Google Scholar] [CrossRef]








| Venting Day | Vent Time (Duration) | Tank Number | |
|---|---|---|---|
| 1 | a | 2 p.m. | 6 |
| b | 7 p.m. | BR2 | |
| 2 | a | 2 p.m. | 4 |
| b | 4 p.m. (Not recorded) | BR1 | |
| 3 | a | 2 p.m. | 1 |
| 4 | a | 2 p.m. | 8 |
| 5 | a | 10 a.m. | 9 |
| b | 2 p.m. | Stored CO2 | |
| 6 | a | 9 a.m. | Stored CO2 |
| b | 12 p.m. | 3 | |
| 7 | a | 11 a.m. | 5 |
| 8 | a | 11 a.m. (60 min) | Stored CO2 |
| b | 12 p.m. | 2 | |
| 9 | a | 12 p.m. | 7 |
| b | 1 p.m. | 10 | |
| 10 | a | 9 a.m. (45 min) | Stored CO2 |
| b | 11 a.m. | 8 | |
Publisher’s Note: MDPI stays neutral with regard to jurisdictional claims in published maps and institutional affiliations. |
© 2022 by the authors. Licensee MDPI, Basel, Switzerland. This article is an open access article distributed under the terms and conditions of the Creative Commons Attribution (CC BY) license (https://creativecommons.org/licenses/by/4.0/).
Share and Cite
Hawchar, A.; Ould, S.; Bennett, N.S. Carbon Dioxide Monitoring inside an Australian Brewery Using an Internet-of-Things Sensor Network. Sensors 2022, 22, 9752. https://doi.org/10.3390/s22249752
Hawchar A, Ould S, Bennett NS. Carbon Dioxide Monitoring inside an Australian Brewery Using an Internet-of-Things Sensor Network. Sensors. 2022; 22(24):9752. https://doi.org/10.3390/s22249752
Chicago/Turabian StyleHawchar, Amer, Solomon Ould, and Nick S. Bennett. 2022. "Carbon Dioxide Monitoring inside an Australian Brewery Using an Internet-of-Things Sensor Network" Sensors 22, no. 24: 9752. https://doi.org/10.3390/s22249752
APA StyleHawchar, A., Ould, S., & Bennett, N. S. (2022). Carbon Dioxide Monitoring inside an Australian Brewery Using an Internet-of-Things Sensor Network. Sensors, 22(24), 9752. https://doi.org/10.3390/s22249752

