Smart Hospital Sensor Network Deployment for Mobile and Remote Healthcare System
Abstract
:1. Introduction
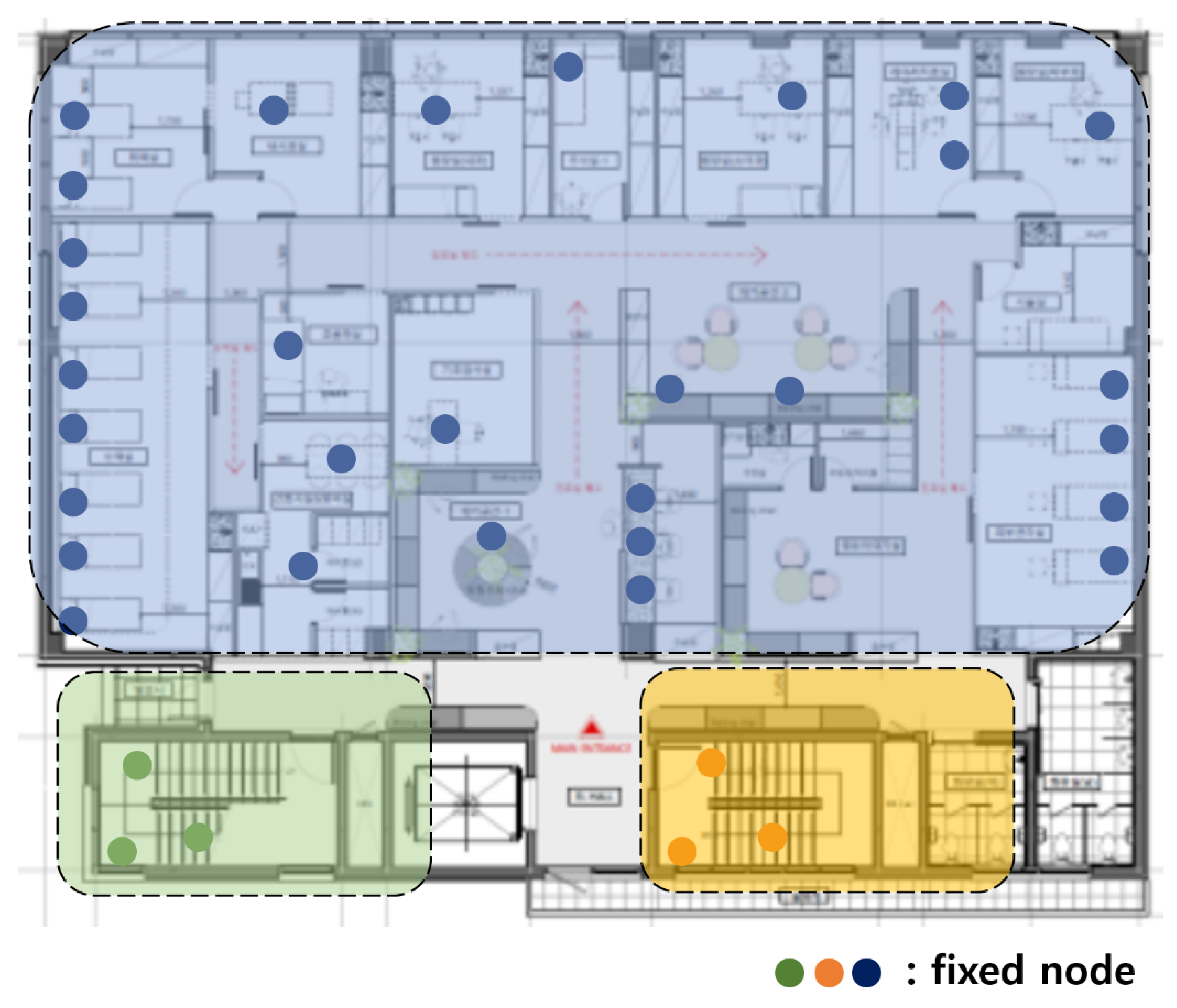
2. Original Hospital Network
3. Deploying AP with Divide and Conquer Algorithm
3.1. First Dividing Step
3.2. Second Dividing Step
3.2.1. 2-1 Dividing Step
3.2.2. 2-2 Dividing Step
4. Group Number-Based Network
4.1. Initial Group Number Setting
- An AP sets its group number to 0 and then transmits the group number information to fixed nodes within a distance that can be transmitted.
- When a fixed node that has not set a group number receives the group number information, it adds 1 to the received group number and sets it as its own group number. When a fixed node that already has a group number receives the group number information, it compares its origin group number with the received group number. If the received group number is smaller than its origin group number, add 1 to the received group number and set it as its own group number. Thereafter, this new group number information is transmitted to other fixed nodes within a communication range.
- Repeat step number two until the group numbers of all fixed nodes are set.
- After group numbers are assigned to all fixed nodes, the group number assignment for the mobile sensors starts. Sensors with mobility receive a group number from the nearest AP or fixed node.
- An AP transmits the group number information to the sensor node with mobility. When a moving node that has not set a group number receives the group number information, it adds 1 to the received group number and sets it as its own group number. Thereafter, this new group number information is transmitted to other moving nodes within a communication range.
- Fixed nodes transmit group number information to the sensor node with mobility. When a moving node that has not set a group number receives the group number information, it adds 1 to the received group number and sets it as its own group number. When a moving node that already has a group number receives the group number information, it compares its origin group number with the received group number. If the received group number is smaller than its origin group number, add 1 to the received group number and set it as its own group number. Thereafter, this new group number information is transmitted to other moving nodes within a communication range.
Algorithm 1 Initial group number setting 1: AP sets its group number to 0 2: AP transmits the group number information to nodes that in the communication range among fixed nodes ‘F = {,, …, }’ 3: while(! (all sensor node of F has group number)){ 4: for i = 1, 2, …, n{ 5: if( has not set a group number){ 6: set its group number as 1 7: transmits the group number information to nodes that in the communication range among fixed nodes ‘F = {,, …, }’ 8: } 9: else{ 10: if(group number information < group number of ){ 11: set its group number as (group number information + 1) 12: } 13: } 14: } 15: } 16: while(! (all mobile sensor nodes ‘M = {, , …, }’ has group number)){ 17: for i = 1, 2, …, m{ 18: if( has not set a group number){ 19: set its group number as 1 20: transmits the group number information to nodes that in the communication range among mobile nodes ‘M = {, , …, }’ 21: } 22: else{ 23: if(group number information < group number of ){ 24: set its group number as (group number information + 1) 25: } 26: } 27: } 28: } n: the number of fixed sensor node
m: the number of mobile sensor node
4.2. Data Transmission Path
4.3. Group Number Resetting
5. Simulation
5.1. Comparison with the Method to Check All Cases
5.2. Comparison with the Genetic Algorithm
6. Conclusions
Author Contributions
Funding
Conflicts of Interest
References
- Khezr, S.; Moniruzzaman, M.; Yassine, A.; Benlamri, R. Blockchain Technology in Healthcare: A Comprehensive Review and Directions for Future Research. Appl. Sci. 2019, 9, 1736. [Google Scholar] [CrossRef] [Green Version]
- Long, C.; Shuai, M. Wireless sensor networks: Traffic information providers for intelligent transportation system. In Proceedings of the 2010 18th International Conference on Geoinformatics, Beijing, China, 18–20 June 2010. [Google Scholar]
- Lee, S.C.; Jeon, T.G.; Hwang, H.S.; Kim, C.S. Design and implementation of wireless sensor based-monitoring system for smart factory. In International Conference on Computational Science and Its Applications; Springer: Berlin/Heidelberg, Germany, August 2007; pp. 584–592. [Google Scholar]
- Shobha, G.; Chittal, R.R.; Kumar, K. Medical Applications of Wireless Networks. In Proceedings of the 2007 Second International Conference on Systems and Networks Communications (ICSNC 2007), Cap Esterel, French Riviera, France, 25–31 August 2007; p. 82. [Google Scholar] [CrossRef]
- Alemdar, H.; Ersoy, C. Wireless sensor networks for healthcare: A survey. Comput. Netw. 2010, 54, 2688–2710. [Google Scholar] [CrossRef]
- Kinsella, K.; Philips, D.R. Global aging: The challenge of success. Popul. Bull. 2005, 60. Available online: https://www.prb.org/resources/global-aging-the-challenge-of-success/ (accessed on 14 August 2021).
- Stankovic, J.A.; Cao, Q.; Doan, T.; Fang, L.; He, Z.; Kiran, R.; Lin, S.; Son, S.; Stoleru, R.; Wood, A. Wireless Sensor Networks for In-Home Healthcare: Potential and Challenges. In High Confidence Medical Device Software and Systems (HCMDSS) Workshop; Penn Library: Wolverhampton, UK, 2005. [Google Scholar]
- Kim, S.; Choi, J.; Moon, J.H.; Choi, S.-E.; Lee, Y. Trends of Extended Reality-based Telemedicine Technology for Emergency Patients in medically vulnerable areas. Commun. Korean Inst. Inf. Sci. Eng. 2020, 38, 27–35. [Google Scholar]
- Bae, H.-J.; Lee, S.-J.; Lee, J.-H.; Lee, K. A Remote Medical Ambulance using Wireless Biometric Sensors. Korean Inst. Electr. Eng. 2019, 11, 156–157. [Google Scholar]
- Park, H.-B.; Seo, J.-H. Implementation of a Remote Patient Monitoring System using Mobile Phones. J. Korea Inst. Inf. Commun. Eng. 2009, 13, 1167–1174. [Google Scholar]
- Schmidt, A.; Laerhoven, K.V. How to build smart appliances? IEEE Pers. Commun. 2001, 8, 66–71. [Google Scholar] [CrossRef]
- Shnayder, V.; Chen, B.; Lorincz, K.; FulfordJones, T.R.F.; Welsh, M. Sensor Networks for Medical Care. In Proceedings of the 3rd International Conference on Embedded Networked Sensor Systems, New York, NY, USA, 2–4 November 2005. [Google Scholar]
- Choi, Y.-J.; Kwon, J.-H.; Yoo, S.-J. Q-Learning based Dynamic Routing Protocol with Low Latency and High Reliability in Body Area Networks. In Proceedings of Symposium of the Korean Institute of Communications and Information Sciences; Springer: Berlin/Heidelberg, Germany, 2019; Volume 6, pp. 911–912. [Google Scholar]
- Chung, W.Y.; An, S.-M.; Lee, S.-C. Real Time Multi-hop Routing Protocol for Healthcare System Based on WSN. In Proceedings of the 14th International Meeting on Chemical Sensors, Nuremberg, Germany, 20–23 May 2012. [Google Scholar]
- Varshney, U. A framework for supporting emergency messages in wireless patient monitoring. Decis. Support Syst. 2008, 45, 981–996. [Google Scholar] [CrossRef]
- Zhao, S.; Wang, F.; Ning, Y.; Xiao, Y.; Zhang, D. Vertical Handoff Decision Algorithm combined Improved Entropy Weighting with GRA for Heterogeneous Wireless Networks. KSII Trans. Internet Inf. Syst. 2020, 14, 4611–4624. [Google Scholar]
- Mukhlif, F.; Noordin, K.A.B.; Abdulghafoor, O.B. Energy Harvesting Technique for Efficient Wireless Cognitive Sensor Networks Based on SWIPT Game Theory. KSII Trans. Internet Inf. Syst. 2020, 14, 2709–2734. [Google Scholar]
- Aminian, M.; Naji, H.R. A Hospital Healthcare Monitoring System Using Wireless Sensor Networks. J. Health Med. Inform. 2013, 4. [Google Scholar] [CrossRef] [Green Version]
- Tam, P.; Math, S.; Kim, S. Intelligent Massive Traffic Handling Scheme in 5G Bottleneck Backhaul Networks. KSII Trans. Internet Inf. Syst. 2021, 15, 874–890. [Google Scholar]
- Hwang, D.; Kim, D. DFR: Directional flooding-based routing protocol for underwater sensor networks. In Proceedings of the OCEANS 2008, Quebec City, QC, Canada, 15–18 September 2008; pp. 1–7. [Google Scholar] [CrossRef]
- Samaras, N.S.; Triantari, F.S. On Direct Diffusion Routing for Wireless Sensor Networks. In Proceedings of the 2016 Advances in Wireless and Optical Communications (RTUWO), Riga, Latvia, 3–4 November 2016; pp. 89–94. [Google Scholar] [CrossRef]
- López, G.; Custodio, V.; Moreno, J.I. LOBIN: E-Textile and Wireless-Sensor-Network-Based Platform for Healthcare Monitoring in Future Hospital Environments. IEEE Trans. Inf. Technol. Biomed. 2010, 14, 1446–1458. [Google Scholar] [CrossRef] [PubMed]
- Antonio, P.; Cecilia, P.; Dario Giuseppe, F.; Mauro, G. Optimal planning of sensor networks for asset tracking in hospital environments. Decis. Support Syst. 2013, 55, 304–313. [Google Scholar] [CrossRef]
- Yuan, X.; Elhoseny, M.; El-Minir, H.K.; Alaa, M.R. A Genetic Algorithm-Based, Dynamic Clustering Method Towards Improved WSN Longevity. J. Netw. Syst. Manag. 2017, 25, 21–46. [Google Scholar] [CrossRef]


















| Distance-Obstructions | Packet Lost Rate |
|---|---|
| 3 m | 0.13% |
| 5 m | 0.19% |
| 5 m-1door | 0.32% |
| 10 m | 0.85% |
| 10 m-1door | 1.08% |
| 10 m-2doors | 1.23% |
| moving patient | 20.15% |
| Before Applied | After Applied | |||
|---|---|---|---|---|
| Combinations | Cost | Applied Combinations | Applied Cost | |
| 1 | (8, 5, 4, 4, 4, 3, 1, 1) | 184 | (9, 5, 5, 4, 4, 3) | 187 |
| 2 | (8, 8, 4, 4, 3, 3) | 186 | (10, 9, 4, 4, 3) | 188 |
| 3 | (8, 8, 7, 3, 2, 1, 1) | 189 | (9, 8, 7, 3, 2, 1, 1) | 201 |
| Before Applied | After Applied | |||
|---|---|---|---|---|
| Combinations | Cost | Applied Combinations | Applied Cost | |
| 1 | (3) | 20 | (3) | 20 |
| 2 | (2, 1) | 25 | (2, 1) | 25 |
| The Number of Sensor Nodes | |||||||||
|---|---|---|---|---|---|---|---|---|---|
| 15 | 16 | 17 | 18 | ||||||
| All Cases | Proposed Method | All Cases | Proposed Method | All Cases | Proposed Method | All Cases | Proposed Method | ||
| Number of simulation runs | 1 | 1395.777 | 5.567255 | 3346.086 | 7.838274 | 7030.184 | 11.45018 | 16,088.71 | 14.1234 |
| 2 | 1356.374 | 6.392298 | 3065.544 | 8.11234 | 6912.407 | 12.4214 | 15,885.37 | 14.1256 | |
| 3 | 1403.543 | 6.109328 | 3412.523 | 7.9934 | 7123.94 | 12.15124 | 15,923.11 | 15.92189 | |
| 4 | 1389.235 | 7.1143 | 3387.412 | 8.0124 | 7111.85 | 11.94673 | 15,488.22 | 15.1235 | |
| 5 | 1394.432 | 6.9932 | 3314.324 | 8.412354 | 6899.523 | 10.93876 | 16,183.2 | 15.7315 | |
| Average (s) | 1387.872 | 6.435276 | 3305.178 | 8.073754 | 7015.581 | 11.78166 | 15,913.72 | 15.00518 | |
Publisher’s Note: MDPI stays neutral with regard to jurisdictional claims in published maps and institutional affiliations. |
© 2021 by the authors. Licensee MDPI, Basel, Switzerland. This article is an open access article distributed under the terms and conditions of the Creative Commons Attribution (CC BY) license (https://creativecommons.org/licenses/by/4.0/).
Share and Cite
Jang, Y.; Ryoo, I.; Kim, S. Smart Hospital Sensor Network Deployment for Mobile and Remote Healthcare System . Sensors 2021, 21, 5514. https://doi.org/10.3390/s21165514
Jang Y, Ryoo I, Kim S. Smart Hospital Sensor Network Deployment for Mobile and Remote Healthcare System . Sensors. 2021; 21(16):5514. https://doi.org/10.3390/s21165514
Chicago/Turabian StyleJang, Yoonkyung, Intae Ryoo, and Seokhoon Kim. 2021. "Smart Hospital Sensor Network Deployment for Mobile and Remote Healthcare System " Sensors 21, no. 16: 5514. https://doi.org/10.3390/s21165514
APA StyleJang, Y., Ryoo, I., & Kim, S. (2021). Smart Hospital Sensor Network Deployment for Mobile and Remote Healthcare System . Sensors, 21(16), 5514. https://doi.org/10.3390/s21165514
