Falcon: A False Ceiling Inspection Robot
Abstract
:1. Introduction
2. Design Requirement for a False Ceiling Inspection Robot
- The space availability is limited inside a false ceiling, and a robot often has to navigate narrow and low-height passages. Therefore, the robot should have a compact size that enables it to move through narrow passages;
- The surface of a false ceiling consists of runners, lighting fixtures, electrical cables, and ducts. Therefore, the robot should have the ability to traverse these components to cover a false ceiling during the inspections;
- False ceilings are hanged from the main structures by cables. In addition to that, the ceiling panels are made from low-strength materials where the weight bearability has limitations. Therefore, the robot should be lightweight;
- In the inspection process, it is necessary to move the robot along the perimeter to observe the inside of a false ceiling correctly. However, it is not easy to move the robot along a perimeter merely using teleoperation. The continuous heading variation of the robot due to terrain conditions is the main reason for this difficulty. Thus, the ability to autonomously follow the perimeter is crucial to improve the robot-aided inspection process of a false ceiling;
- The robot should be equipped with a vision system to provide visual feedback of the inside environment. This vision system should be capable of working in low-light conditions. Moreover, the robot should be equipped with an illumination source to complement the vision system.
3. Robot Platform
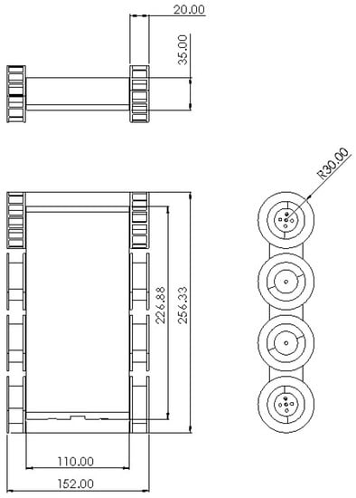
3.1. Mechanical Design
3.2. Electrical Design
4. Perimeter-Following Controller
- Fuzzy logic can be used to map the input and output space of a process using a set of linguistic rules without the knowledge of the underlying dynamics of the process model [24,25,26]. In the case of the Falcon robot, the exact dynamics of the robot are not known due to the difficulty of modeling the slippage of the robot when traversing on bumps such as runners and cables;
- Range sensor information inside a confined space, such as inside a false ceiling, is not accurate [27,28]. Thus, the proposed robot often encounters sensor inaccuracies where the decisions have to be made while coping with the sensor uncertainties. Fuzzy logic is effective for decision making based on such inaccurate sensor measurements [29,30];
5. Experimental Validation
5.1. Experimental Setup
5.2. Verification of the Obstacle Traversing Ability of the Robot
5.3. Performance and Behavior of the PFC
6. Conclusions
Supplementary Materials
Author Contributions
Funding
Institutional Review Board Statement
Informed Consent Statement
Data Availability Statement
Conflicts of Interest
References
- Mahtta, R.; Mahendra, A.; Seto, K.C. Building up or spreading out? Typologies of urban growth across 478 cities of 1 million+. Environ. Res. Lett. 2019, 14, 124077. [Google Scholar] [CrossRef] [Green Version]
- Cha, S.H.; Koo, C.; Kim, T.W.; Hong, T. Spatial perception of ceiling height and type variation in immersive virtual environments. Build. Environ. 2019, 163, 106285. [Google Scholar] [CrossRef]
- Interview with Curator Matthew Welch—The Art of Asia—Japanese Audience Hall. 2020. Available online: http://www.artsmia.org/art-of-asia/architecture/japanese-audience-hall-interview.cfm (accessed on 20 May 2021).
- Smith, B.R. The Acoustic World of Early Modern England: Attending to the O-Factor; University of Chicago Press: Chicago, IL, USA, 1999. [Google Scholar]
- Hu, Z.Z.; Tian, P.L.; Li, S.W.; Zhang, J.P. BIM-based integrated delivery technologies for intelligent MEP management in the operation and maintenance phase. Adv. Eng. Softw. 2018, 115, 1–16. [Google Scholar] [CrossRef]
- Types of False Ceilings and Its Applications. 2017. Available online: https://theconstructor.org/building/types-false-ceilings-applications/13602/ (accessed on 20 May 2021).
- Michael, M.; Sankar, V.; Paul, A.; Joy, A.; Fainusa, V.; Raju, C.I. Comparative study on the effect of false ceiling materials on the room temperature. In Green Buildings and Sustainable Engineering; Springer: Berlin, Germany, 2019; pp. 179–187. [Google Scholar]
- Guidelines on Prevention of Rat and Cockroach Infestations at Food Establishments; A Public Health Document, Singapore Food Agency: Singapore, 2019.
- Min, J.; Kim, Y.; Lee, S.; Jang, T.W.; Kim, I.; Song, J. The fourth industrial revolution and its impact on occupational health and safety, worker’s compensation and labor conditions. Saf. Health Work 2019, 10, 400–408. [Google Scholar] [CrossRef] [PubMed]
- Samarakoon, S.B.P.; Muthugala, M.V.J.; Le, A.V.; Elara, M.R. HTetro-infi: A reconfigurable floor cleaning robot with infinite morphologies. IEEE Access 2020, 8, 69816–69828. [Google Scholar] [CrossRef]
- Chae, H.; Park, G.; Lee, J.; Kim, K.; Kim, T.; Kim, H.S.; Seo, T.T. Facade cleaning robot with manipulating and sensing devices equipped on a gondola. IEEE/ASME Trans. Mechatron. 2021. [Google Scholar] [CrossRef]
- Koh, K.H.; Farhan, M.; Yeung, K.P.C.; Tang, D.C.H.; Lau, M.P.Y.; Cheung, P.K.; Lai, K.W.C. Teleoperated service robotic system for on-site surface rust removal and protection of high-rise exterior gas pipes. Autom. Constr. 2021, 125, 103609. [Google Scholar] [CrossRef]
- Muthugala, M.A.V.J.; Vega-Heredia, M.; Mohan, R.E.; Vishaal, S.R. Design and Control of a Wall Cleaning Robot with Adhesion-Awareness. Symmetry 2020, 12, 122. [Google Scholar] [CrossRef] [Green Version]
- Agnisarman, S.; Lopes, S.; Madathil, K.C.; Piratla, K.; Gramopadhye, A. A survey of automation-enabled human-in-the-loop systems for infrastructure visual inspection. Autom. Constr. 2019, 97, 52–76. [Google Scholar] [CrossRef]
- Yahya, N.; Ashrafi, N.; Humod, A. Development and Adaptability of In-Pipe Inspection Robots. IOSR J. Mech. Civ. Eng. 2014, 11, 01–08. [Google Scholar] [CrossRef]
- Ito, F.; Kawaguchi, T.; Kamata, M.; Yamada, Y.; Nakamura, T. Proposal of a Peristaltic Motion Type Duct Cleaning Robot for Traveling in a Flexible Pipe. In Proceedings of the 2019 IEEE/RSJ International Conference on Intelligent Robots and Systems (IROS), The Venetian Macao, Macau, 3–8 November 2019; IEEE: Piscataway, NJ, USA, 2019; pp. 6614–6621. [Google Scholar]
- Nitta, Y.; Inai, S.; Matsumura, K.; Ishida, M.; Onai, T.; Nishitani, A. The Visual Inspection Methodology for Ceiling Utilizing the Blimp. Procedia Eng. 2017, 188, 256–262. [Google Scholar] [CrossRef]
- Unver, O.; Sitti, M. A miniature ceiling walking robot with flat tacky elastomeric footpads. In Proceedings of the 2009 IEEE International Conference on Robotics and Automation, Kobe, Japan, 12–17 May 2009; pp. 2276–2281. [Google Scholar] [CrossRef]
- Unver, O.; Uneri, A.; Aydemir, A.; Sitti, M. Geckobot: A gecko inspired climbing robot using elastomer adhesives. In Proceedings of the 2006 IEEE International Conference on Robotics and Automation, ICRA 2006, Orlando, FL, USA, 15–19 May 2006; IEEE: Piscataway, NJ, USA, 2006; pp. 2329–2335. [Google Scholar]
- Ko, H.; Yi, H.; Jeong, H.E. Wall and ceiling climbing quadruped robot with superior water repellency manufactured using 3D printing (UNIclimb). Int. J. Precis. Eng. Manuf. Green Technol. 2017, 4, 273–280. [Google Scholar] [CrossRef]
- Zhang, Y.; Dodd, T.; Atallah, K.; Lyne, I. Design and optimization of magnetic wheel for wall and ceiling climbing robot. In Proceedings of the 2010 IEEE International Conference on Mechatronics and Automation, Xi’an, China, 4–7 August 2010; IEEE: Piscataway, NJ, USA, 2010; pp. 1393–1398. [Google Scholar]
- Nitta, Y.; Iwasaki, A.; Nishitani, A.; Wakatabe, M.; Inai, S.; Ohdomari, I.; Tsutsumi, H. Development of the damage assessment methodology for ceiling elements. Sensors and Smart Structures Technologies for Civil, Mechanical, and Aerospace Systems 2012. Int. Soc. Opt. Photonics 2012, 8345, 83453T. [Google Scholar]
- Kelly, A. Mobile Robotics: Mathematics, Models, and Methods; Cambridge University Press: Cambridge, UK, 2013. [Google Scholar]
- Muthugala, M.A.V.J.; Vega-Heredia, M.; Vengadesh, A.; Sriharsha, G.; Elara, M.R. Design of an Adhesion-Aware Façade Cleaning Robot. In Proceedings of the 2019 IEEE/RSJ International Conference on Intelligent Robots and Systems (IROS), The Venetian Macao, Macau, 4–8 November 2019; IEEE: Piscataway, NJ, USA, 2019; pp. 1441–1447. [Google Scholar]
- Samarakoon, S.M.B.P.; Muthugala, M.A.V.J.; Elara, M.R. Toward obstacle-specific morphology for a reconfigurable tiling robot. J. Ambient. Intell. Humaniz. Comput. 2021, 1–13. [Google Scholar] [CrossRef]
- Ma, Z.; Huang, P.; Kuang, Z. Fuzzy approximate learning-based sliding mode control for deploying tethered space robot. IEEE Trans. Fuzzy Syst. 2020. [Google Scholar] [CrossRef]
- Liu, G.; Hao, W.; Yan, S.; Sun, Z.; Qiang, W. A Fusion Algorithm for Building Maps in Confined Environments for Mobile Robots. In Proceedings of the Multiconference on Computational Engineering in Systems Applications, Beijing, China, 4–6 October 2006; IEEE: Piscataway, NJ, USA, 2006; Volume 1, pp. 960–964. [Google Scholar]
- Singh, R.; Nagla, K.S. Comparative analysis of range sensors for the robust autonomous navigation—A review. Sens. Rev. 2019, 40, 17–41. [Google Scholar] [CrossRef]
- Ibarra, L.; Webb, C. Advantages of fuzzy control while dealing with complex/unknown model dynamics: A quadcopter example. New Appl. Artif. Intell. 2016, 31, 93–121. [Google Scholar] [CrossRef] [Green Version]
- Phan, K.B.; Ha, H.T.; Hoang, S.V. Eliminating the Effect of Uncertainties of Cutting Forces by Fuzzy Controller for Robots in Milling Process. Appl. Sci. 2020, 10, 1685. [Google Scholar] [CrossRef]
- Muthugala, M.; Samarakoon, S.; Mohan Rayguru, M.; Ramalingam, B.; Elara, M.R. Wall-Following Behavior for a Disinfection Robot Using Type 1 and Type 2 Fuzzy Logic Systems. Sensors 2020, 20, 4445. [Google Scholar] [CrossRef]
- Faisal, M.; Algabri, M.; Abdelkader, B.M.; Dhahri, H.; Al Rahhal, M.M. Human expertise in mobile robot navigation. IEEE Access 2017, 6, 1694–1705. [Google Scholar] [CrossRef]
- Muthugala, M.A.V.J.; Jayasekara, A.G.B.P. Enhancing user satisfaction by adapting Robot’s perception of uncertain information based on environment and user feedback. IEEE Access 2017, 5, 26435–26447. [Google Scholar] [CrossRef]
- Muthugala, M.A.V.J.; Samarakoon, S.M.B.P.; Elara, M.R. Tradeoff between area coverage and energy usage of a self-reconfigurable floor cleaning robot based on user preference. IEEE Access 2020, 8, 76267–76275. [Google Scholar] [CrossRef]
- Zangeneh, M.; Aghajari, E.; Forouzanfar, M. A survey: Fuzzify parameters and membership function in electrical applications. Int. J. Dyn. Control. 2020, 8, 1040–1051. [Google Scholar] [CrossRef]
- Wu, D.; Mendel, J.M. Designing practical interval type-2 fuzzy logic systems made simple. In Proceedings of the 2014 IEEE International Conference on Fuzzy Systems (FUZZ-IEEE), Beijing, China, 6–11 July 2014; IEEE: Piscataway, NJ, USA, 2014; pp. 800–807. [Google Scholar]











| Robot | Usability Inside a False Ceiling | Locomotion Method | Autonomy | Inspection Sensors | Payload |
|---|---|---|---|---|---|
| Blimp [17] | No | Aerial vehicle | No | Monocular camera | Limited (50 g) |
| Ceiling walking robot [18] | No | Walking using elastomeric footpads | No | No | Yes (100 g) |
| Geckobot [19] | No | Walking using elastomeric footpads | No | No | Data not available |
| UNIclimb [20] | No | Walking using elastomeric footpads | No | No | Data not available |
| Wall and ceiling climbing robot [21] | No | Magnetic wheels | No | No | Yes |
| Falcon (proposed design) | Yes | Wheels | Perimeter following | Monocular camera | Yes (200 g) |
| \ | NH | N | Z | P | PH |
|---|---|---|---|---|---|
| NH | R | R | R | LR | M |
| N | R | R | LR | M | LL |
| Z | R | LR | M | LL | L |
| P | LR | M | LL | L | L |
| PH | M | LL | L | L | L |
| Case | (cm) |
|---|---|
| (a) | 2.8 |
| (b) | 3.5 |
| (c) | 5.2 |
| (d) | 1.4 |
| (e) | 13.0 |
| (f) | 17.2 |
| (g) | 6.6 |
Publisher’s Note: MDPI stays neutral with regard to jurisdictional claims in published maps and institutional affiliations. |
© 2021 by the authors. Licensee MDPI, Basel, Switzerland. This article is an open access article distributed under the terms and conditions of the Creative Commons Attribution (CC BY) license (https://creativecommons.org/licenses/by/4.0/).
Share and Cite
Muthugala, M.A.V.J.; Apuroop, K.G.S.; Padmanabha, S.G.A.; Samarakoon, S.M.B.P.; Elara, M.R.; Wen, R.Y.W. Falcon: A False Ceiling Inspection Robot. Sensors 2021, 21, 5281. https://doi.org/10.3390/s21165281
Muthugala MAVJ, Apuroop KGS, Padmanabha SGA, Samarakoon SMBP, Elara MR, Wen RYW. Falcon: A False Ceiling Inspection Robot. Sensors. 2021; 21(16):5281. https://doi.org/10.3390/s21165281
Chicago/Turabian StyleMuthugala, M. A. Viraj J., Koppaka Ganesh Sai Apuroop, Saurav Ghante Anantha Padmanabha, S. M. Bhagya P. Samarakoon, Mohan Rajesh Elara, and Raymond Yeong Wei Wen. 2021. "Falcon: A False Ceiling Inspection Robot" Sensors 21, no. 16: 5281. https://doi.org/10.3390/s21165281
APA StyleMuthugala, M. A. V. J., Apuroop, K. G. S., Padmanabha, S. G. A., Samarakoon, S. M. B. P., Elara, M. R., & Wen, R. Y. W. (2021). Falcon: A False Ceiling Inspection Robot. Sensors, 21(16), 5281. https://doi.org/10.3390/s21165281

