Abstract
This research presents the calibration of a constitutive model to replicate the cyclic performance of soils using a Bayesian framework. This study uses data from laboratory-conducted consolidated undrained isotropic cyclic triaxial tests and numerical tools to estimate optimal parameters by the application of Slice Sampling in a Bayesian analysis and to determinate the uncertainty of the model. For each calibrated parameter in the model, a probability distribution was obtained from the Markov chain. The means and the standard deviations from the distributions are compared with the laboratory results by the simulation of a series of consolidated undrained isotropic cyclic triaxial tests and a numerical model for a deposit that replicates the Wildlife’s stratigraphic characteristics. The calibrated model response offers a good approximation of the recorded data and the uncertainty due to the model is evaluated. The results of this study demonstrate that Bayesian calibration can reliably quantify parameter uncertainty, reveal parameter correlations that deterministic methods overlook, and improve confidence in liquefaction assessments. This probabilistic framework provides a robust basis for extending calibration to other soil types and site conditions.
1. Introduction
Saturated granular soils, from loose to medium dense, can accumulate excess pore pressure during seismic activity or vibrations, leading to reduced effective stresses. This buildup may cause the effective confining stress to decrease to near-zero or fluid-like levels, a phenomenon known as liquefaction [].
Liquefaction significantly increases the risk of structural failure during seismic events []. The potential for liquefaction to occur is typically assessed by analyzing pore water pressure and axial deformation in undrained cyclic triaxial tests. These tests simulate the cyclic loading that soils experience during seismic events. In loose sands, pore pressure gradually increases, accompanied by shear modulus degradation and significant deformation []. Common field-based assessments include the Standard Penetration Test (SPT), Cone Penetration Test (CPT), and shear wave velocity measurements [,,,,]. However, computational simulations are often more suitable for complex cases []. While simulations have shown promise in predicting liquefaction [,,], uncertainty remains regarding their sensitivity to parameter variations and internal correlations [,].
Bayesian inference has become a widely used methodology in modern geotechnical engineering due to its robust approach to quantifying and managing uncertainty in parameter estimation. Unlike traditional deterministic methods, Bayesian inference combines prior knowledge with observed measurements to build the probability distributions of unknown parameters. This probabilistic framework allows engineers to make informed decisions under uncertainty, improving the reliability of design results. In geotechnical applications, where data are often sparse, variable or incomplete, Bayesian methods provide a rational and adaptable means to characterize the behavior of soils and geomaterials, especially when dealing with complex site conditions and nonlinear responses.
To strengthen engineers’ decision making, researchers have developed a range of Bayesian-based probabilistic transformation frameworks. For example, the implementation of Bayesian optimization in machine learning algorithms has been proposed to improve the prediction of undrained shear strength []. Tang et al., for instance, study focuses on estimating model uncertainty by proposing probabilistic distributions for model factors based on an extensive foundation load test database []. In another study, the Bayesian learning and Markov chain Monte Carlo techniques are implemented to support the regression of the compression ratio, overcoming the challenges posed by multivariate and sparse data []. A comprehensive Bayesian model testing and screening approach was also developed with the aim of enhancing design reliability, using pullout resistance data from mechanically stabilized earth walls []. Additionally, a hybrid surrogate modelling approach was adopted, combining polynomial chaos kriging and Gibbs sampling, to enable the efficient Bayesian updating of geotechnical parameters. This approach has been applied to solve soil dynamic problems such as shear wave velocity inversion [].
This study calibrates a pressure-dependent soil model with multiple yield surfaces [] using Bayesian analysis and Slice Sampling []. Data from consolidated undrained isotropic cyclic triaxial tests (TCUI) conducted at the Ruhr-University Bochum [] support this calibration. The proposed method identifies optimal parameters, while providing insights into uncertainties and parameter correlations, thus contributing to the automation of parameter calibration in constitutive models.
2. Materials and Methods
The Karlsruhe fine sand, a uniform, graded, medium coarse to coarse sand (D10 = 0.115 mm, D30 = 0.128 mm, D50 = 0.15 mm, D60 = 0.17 mm), with a uniformity coefficient of Cu = 1.4 and a curvature index of Cc = 0.9, was used for the tests analyzed (see Figure 1). Minimum and maximum void ratios were determined by dry pluviation through a funnel. The maximum void ratio was emax = 0.992, and the minimum void ratio emin = 0.679. The triaxial tests performed for this research were conducted with effective confining pressures of 100, 200, and 300 kPa, and an approximate relative density of ID0 ≅ 0.60, within the classification of dense relative density according to the formula suggested in the DIN 18126 standard [].
Figure 1.
Grain size distribution of test sand. Data from [].
2.1. Experimental Setup
The samples used in the triaxial tests relevant to this research had a diameter of d = 10 cm and a height of h = 20 cm. The minimum sample diameter for these tests is 2″ (5.1 cm) according to ASTM standard D5311M-13 [], and the height-to-diameter ratio should be between 2.0 and 2.5. The cyclic loading was conducted at a constant displacement rate of 0.05 mm/min.
In this test, the soil sample was encapsulated in a latex membrane and prepared according to standard triaxial test protocols. The sample was placed in a triaxial chamber and subjected to an initial confining pressure before being loaded through a top loading bar. Isotropic consolidation, where the vertical and lateral effective stresses are equal, was achieved by maintaining constant back pressure and adjusting the chamber pressure to match the desired consolidation stress []. After consolidation, the sample was subjected to sinusoidal axial loading, inducing deformation and changes in pore pressure, which were recorded using pore pressure and vertical deformation transducers.
2.2. The Soil Constitutive Model
This study adopts a pressure-dependent model with multiple yield surfaces (PDMY) [,] for the simulation of the cyclic behavior of soils based on their stress–strain relationship. This elastoplastic model, characterized by multiple yield surfaces and pressure dependence, exhibits the capacity to simulate soil responses under diverse loading scenarios []. The model has been incorporated into the finite element software framework OpenSees (Version 3.7.1) []. Its successful applications span various contexts, including monopiles, liquefaction potential assessment, and retaining wall behavior [,,,].
The PDMY model employs a set of multiple yield surfaces with conical geometry in the principal stress space. Within this space, the hydrostatic axis aligns with the center of all yield surfaces (refer to Figure 2). The material’s behavior in the elastic phase is assumed to be both linear and isotropic. The kinematic hardening rule, crucial for defining the hysteresis response according to Masing’s rules [], is based on a modified version of Mroz’s hardening rule [], indicating that the yield surface undergoes translation within the stress space.
Figure 2.
Visualization of model yield surfaces. Adapted from [].
The model adopts a hyperbolic curve [] to define the initial (“backbone”) shear stress–strain relationship, as illustrated in Figure 3. The hyperbolic function [] is expressed as:
where represents the octahedral shear stress, is the octahedral shear strain, is the small-strain shear modulus, is the effective mean confining pressure, is a reference mean confining pressure, and d is an exponent controlling the pressure dependency. An arbitrary value of 100 kPa is used for in this study. The maximum octahedral shear stress at , denoted as , is achieved as γ approaches infinity, following , where is the reference shear strain at an effective confining pressure . The shear strength can be expressed in terms of the soil’s internal friction angle, , represented by the equation:
Figure 3.
Hyperbolic backbone curve for a nonlinear soil stress–strain response. A piecewise linear representation of multi-surface plasticity. Adapted from conceptual illustrations by [].
The bulk modulus, B, is assumed as pressure-dependent, and is defined by the following expression:
where is the value of the bulk modulus at a reference mean confining pressure . Additionally, the bulk modulus adheres to elastic theory and is related to the shear modulus by , where is Poisson’s ratio [].
The model incorporates a non-associative rule defining the plastic flow of the volumetric component based on the transformation phase (PT) surface. This surface acts as a boundary in the - plane, where is the von Mises stress and is the mean confining pressure. The stress state is inferred using the stress ratio η, given by . The stress ratio associated with the PT surface can also be expressed in terms of a PT angle, , as follows:
Shear-induced contraction occurs inside the PT surface, or outside the PT surface if . The contraction flow rule is given by:
where is the volumetric component of the flow rule tensor, and is a material parameter that adjusts the magnitude of volumetric contraction. This work focuses on the contractive phase of material behavior, which results in excess pore pressure accumulation. The dilative phase (which occurs outside the PT surface if ) is not considered in this study. Given these simplifying considerations, is assigned the same value as . More information on the constitutive model formulation is given by Prevost [], and Yang et al. [].
2.3. Bayesian Inference
Bayesian inference enables the updating of the probability distribution for a set of uncertain parameters, θ, given a model, M, based on a measured response, D. The discrepancy or error between observed and model-predicted results is expressed as:
where signifies the modeled response through the model utilizing parameters , given a model M, with i = 1, …, r, where r is the number of points considered for measuring observed and modeled responses. Additionally, can be termed the “prior” or the distribution of the previous probability of parameters given a model M. This distribution denotes the probability of observing each parameter based on prior knowledge.
With the above in mind, Bayes’ theorem is applied to calculate the posterior probability distribution of the parameters using the next equation:
The term , also recognized as the “posterior”, indicates the probability of observing the parameter set given observations D for model M. The distribution represents the likelihood function of data D given for model M. Assuming a normal distribution for the error or discrepancy between observed response D and modeled h, the likelihood function is expressed as:
This function aligns with a normal distribution, where is the standard deviation of the discrepancy between observed and modeled responses.
In the specific analysis pertinent to this study, the vector encompasses parameters defining the constitutive model, including the model’s standard deviation, , since, in principle, the value of is unknown and varies depending on the remaining model parameters. Thus, , where , , , , are material parameters, as described in Section 2.2.
The observed response in this issue corresponds to the following expression:
where is vertical strain, is the excess pore pressure measured at time of the triaxial test, and and are the maximum values measured for vertical strain and excess pore water pressure, respectively. Conversely, the modeled response is:
where is vertical strain, is the excess pore pressure predicted at time estimated through modeling for a set of parameters , and and are the maximum values recorded in the data obtained from numerical modeling for vertical strain and excess pore pressure, respectively. A single standard deviation was used for both strain and pore pressure, assuming equal weight in the evaluation of the model-to-data discrepancy. We acknowledge that using separate likelihood terms with distinct uncertainties could improve accuracy and may be explored in future work.
In this study, the standard deviation in the likelihood function accounts jointly for measurement and model uncertainty, as these components were not explicitly separated. While we acknowledge that triaxial test data are subject to some degree of measurement noise and instrumentation error, previous experimental studies [], as well as their adoption and validation within the LEAP framework [], suggest that such uncertainties are relatively minor. Given the dominant role of modeling assumptions and soil parameter variability in the response, we opted to treat the total uncertainty as a single aggregated term in the likelihood formulation.
The Slice Sampling algorithm was employed to systematically sample parameter values through Bayesian Analysis utilizing a Markov chain Monte Carlo. The underlying principle of this sampling technique is to generate stochastic samples of parameters (). Each set of these parameters will produce a value of following the modeling of the response. The algorithm, through the implementation of an acceptance criterion, discards samples with values that fail to satisfy the specified standard, while preserving those that do. Over time, the distribution of the generated samples will converge with the distribution of the function .
The methodology utilized by the Slice Sampling algorithm is widely described by Neil [], for sampling values of from a given distribution is described as follows:
- Select a specific value , where .
- Randomly assign a value y within the range of 0 to .
- Define a horizontal line at the position, outlining a “slice” that corresponds to an axis interval, where the value of exceeds .
- Select a new value within the identified slice and repeat the process.
3. Results
3.1. Model Calibration
OpenSees software was used to model laboratory cyclic tests under single-element conditions with homogeneous stress and strain fields. The simulations employed “BrickUP” elements, which are eight-node hexahedral linear isoparametric elements commonly used for dynamic analysis of fluid-saturated porous media []. Each node has four degrees of freedom, 1 to 3 for displacement and one for fluid pressure as shown in Figure 4. Node 1 at the base of the element was fully fixed to prevent translation in all directions, ensuring a stable support. To maintain geometric compatibility and avoid numerical artifacts, displacement constraints (equalDOF) were applied among lateral and upper nodes along the X, Y, and Z directions, tying symmetrical corners of the element. Axial cyclic loading was simulated by allowing vertical displacement on the top face, while lateral faces remained free to deform, replicating the isotropic confinement and axial loading conditions of the laboratory test. The material behavior was represented by the multi-yield surface constitutive model described earlier in Section 2.2. During simulation, the element was consolidated under vertical stress with fixed horizontal boundaries, followed by undrained shear cyclic loading, where volumetric deformation was restricted.
Figure 4.
Schematic of the BrickUP element used for modeling the PDMY material and loading conditions.
The objective of the calibration was to adjust the model parameters to accurately replicate the material’s experimental response to cyclic loading up to the onset of liquefaction (complete loss of effective confining pressure). Using Bayesian analysis with the Slice Sampling algorithm, parameters, were calibrated to match results from undrained isotropic triaxial tests. Measurements of shear stress, vertical deformation, and excess pore pressure were extracted at specific times , forming vector , as described by Equation (10). The response vector was established based on the data from the described cyclic triaxial tests.
The Sampling algorithm was then used to identify a parameter set = [] that minimizes the discrepancy between the observed response in the laboratory-tested specimen () and the modeled response in the test element (), as described by the likelihood function (Equation (8)). A Gaussian prior probability distribution was established for each parameter within the vector. The distributions used for calibrating the parameters for each test being modelled are presented in Table 1. The following considerations were taken into account to define these “prior” distributions:
Table 1.
Probability distributions of the initial values assumed for the model parameters to be estimated.
The soil type used in this study was identified as subangular quartz sand, leading to an assumed specific gravity of 2.65, typical for quartz sand []. For the initial shear modulus, Wichtmann’s [] equation was used, which relates the small-strain shear modulus G to the confining stress , atmospheric pressure , and the initial void ratio . The shear modulus according to the type of soil used by Wichtmann was determined with Equation (11):
where is the constant factor for a given soil, is the constant factor representing a void ratio function, and is an adjustable exponent. The values proposed by Wichtmann according to the experimental for Equation (11) are: , , and . By using Equation (11), an initial value of kPa is obtained for an initial confining pressure kPa corresponding to the test TCUI16. This value serves as the reference shear modulus , which is treated as a model parameter and used internally by the constitutive model to compute the shear modulus G for each confining pressure condition, as defined in Equation (3).
A value of 0.5 is taken as the mean for the “prior” probability distribution of d; this value is typically assumed for sands [].
The mean for the “prior” probability distribution for the contraction coefficient is specified as 0.05, following recommendations for medium-dense sand by Yang et al. [].
The mean for the “prior” probability distribution for Poisson’s ratio is considered to be 0.3, in line with the typical value for sand as outlined by Kulhawy and Mayne [].
A total of 5000 samples were obtained using the Slice Sampling technique. A “burning” of 1000 samples was implemented to discard the initial set samples for which the Markov chain had not reached stability (see [] for more details).
3.2. Analysis of Results
The undrained consolidated cyclic triaxial tests TCUI10, TCUI13, and TCUI16 were performed under initial confining pressures of kPa, kPa, and kPa, respectively. These tests were subjected to cyclic deviator stresses of kPa, kPa, and kPa, respectively.
Figure 5 displays frequency histograms (along the main diagonal) showing the distribution of samples generated by the Slice Sampling algorithm, based on the selection of suitable samples for the calibration of each test. The other panels illustrate the correlations between the parameters. A key observation is the strong negative correlation between and , which can be highlighted, a result observed across all tests (TCUI10, TCUI13, and TCUI16). The material’s volumetric deformation behavior is influenced by both parameters, which results in a strong correlation as anticipated. According to the contractive flow rule in Equation (5) in Section 2.2, the volumetric shrinkage values would be lower for small values of . The volumetric deformation of the material is related to the bulk modulus of the soil, and a high value of would generate a lower value of , which explains such a high negative correlation.
Figure 5.
Frequency histograms (main diagonal), posterior values (outside) for the tests and the Pearson correlation coefficient (r): (a) TCUI10, (b) TCUI13 and (c) TCUI16.
Additionally, the histograms show two distinct peaks, indicating that for certain parameter values, higher posterior probabilities are present. The presence of multiple peaks suggests the calibration problem may lack a unique solution.
In the TCUI10 and TCUI13 tests, a positive correlation between d and is detected, not as strong and pronounced as in the case of and , but appreciable. This relationship is also expected, due to the relationship that both have in the behavior of the shear modulus of the soil, as described in Equation (3). In TCUI16, however, no correlation between d and is observed. The rest remaining parameters do not show an observable correlation, which is confirmed by the low values of the Pearson correlation coefficient.
In Table 2, the corresponding values for the MAP of each simulation are provided. It can be observed that in each of them, the internal friction angle of the soil, initially set at 31.2° as the average value, decreased to approximately 28°. Similarly, the values for decreased to approximately 80,000 for TCUI10 and TCUI16 and 72,192.9 kPa for TCUI13. The MAP for the Poisson’s ratio remains close to the initial value in the TCUI10 test but significantly decreases in the TCUI13 test. Conversely, for the TCUI16 test, the obtained value is notably high for the soil type tested [].
Table 2.
Maximum a posteriori (MAP) values of each parameter in the simulation test results.
Regarding the parameter , the TCUI10 test shows a value close to the average of the initial distribution. However, in the TCUI13 and TCUI16 tests, the MAPs obtained are higher and lower, respectively, than the initial supplied value. These changes may be attributed to the variation observed in the Poisson’s ratio, which exhibits a strong correlation. The values of d remain close to the initial value in the TCUI10 and TCUI13 tests, whereas in the TCUI16 test, the MAP for this parameter is 0.277.
The main limitations associated with the use of prior distributions in this study stem from their potential influence on posterior outcomes, particularly in cases where the likelihood surface is flat or parameter identifiability is weak. In such situations, the posterior may reflect the prior assumptions more strongly than the data itself. Additionally, the emergence of multimodal posterior distributions, particularly for parameters such as c1 and ν, indicates a propensity to be influenced by the configuration and the extent of the priors. While literature-informed ranges were used to define physically plausible bounds, further research is needed to assess the robustness of these inferences under alternative prior formulations.
On the one hand, Figure 6 illustrates the excess pore pressure response over time from the laboratory tests (blue line) and compares it to the numerical results from 100 simulated samples for each test. The mean of these simulations is shown in red, with the standard deviation highlighted in yellow. These simulated samples were selected from the Markov chains generated by Bayesian analysis. The comparison between the laboratory data and the mean of the simulations shows a reasonably good agreement, indicating a well-calibrated set of input parameters, based on this criterion alone. While the standard deviation is not prominently noticeable, a zoomed-in view in Figure 6 enhances its visibility.
Figure 6.
Excess pore water pressure for (a) TCUI10, (b) TCUI13 and (c) TCUI16 laboratory data and model results for all data taken for analysis. Zoomed-in views of parts of the results near to the final part of the simulation are shown in boxes.
On the other hand, Figure 6 also highlights discrepancies between the model’s simulation of pore water pressure and the laboratory results. In the TCUI13 test, for instance, the model underestimates pore pressure before 3000 s but overestimates it after 3500 s. This pattern is similarly observed in the TCUI10 and TCUI16 tests, indicating that the model has difficulty accurately replicating the observed pore pressure generation in the soil under laboratory conditions.
Figure 7 illustrates the vertical deformation over time for both the laboratory test data (blue) and the mean response from 100 computational samples generated by the Slice Sampling algorithm (red). The standard deviation of these simulations is also shown as yellow-shaded area. Across all tests, the model underestimates vertical deformation during the compressive loading phase compared to the laboratory results. The underestimation of vertical deformation during compressive loading can be attributed, in part, to the fact that the PDMY model does not consider the Lode angle dependency in its yield and plastic potential functions.
Figure 7.
Vertical strain for laboratory data and for the model. (a) Results for TCUI10; (b) results for TCUI13; (c) results for TCUI16.
The Lode angle is a parameter that governs the influence of the intermediate principal stress on shear strength and stiffness degradation. Soils frequently demonstrate distinct responses under triaxial compression, triaxial extension, and simple shear, owing to variations in stress paths and fabric evolution. By assuming an isotropic mechanical response independent of the Lode angle, the model simplifies the stress–strain behavior, resulting in identical predictions for compression and extension. The variability in the simulation results is minimal, as indicated by the narrow range of the standard deviation. Additionally, the model assumes isotropic fabric and uniform initial conditions, which may not capture localized strain accumulation and anisotropy present in the real samples.
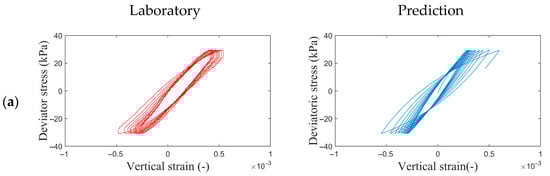
Figure 8 presents vertical strain-deviatoric stress diagrams. The laboratory data (red) display uniform behavior during the initial loading cycles, while the computational model (blue) shows greater deformation under load in the early cycles but underestimates strain in the later stages. This suggests greater degradation of the soil’s shear modulus in the experimental data. Despite this, the model effectively captures the overall contractive behavior [].

Figure 8.
Stress–strain cycles for experimental data and MAP simulation data in the (a) TCUI10, (b) TCUI13 and (c) TCUI16 tests.
In order to better understand the influence of each of the calibrated parameters on the model response, the results of a sensitivity analysis are presented in Figure 9. For this, the median of the posterior values for each of the calibrated parameters is determined, each parameter is varied individually, taking into account the values of the inferior and superior tails, as is standard practice in the creation of a box plot. The values of the inferior and superior tails were determined by subtracting from and adding to the median, respectively, 1.5 fold the interquartile range.

Figure 9.
(a) Excess pore water pressure and (b) vertical deformation for the median, maximum, and minimum values of the Markov chain results from the TCUI10 test calibration.
In Figure 9, only the TCUI10 test is presented, since the variations and trends in susceptibility to result changes were similar across tests. Little variation was observed in the and d parameters, while significant changes were observed in the v and c1 parameters in relation to the average value, upper and lower values. These two parameters directly influence the volumetric behavior of the material used. It is also expected that changing these parameters will cause variability in deformation response and excess pore pressure accumulation.
4. Discussion
Verification of Variability Effects on the Dynamic Response of a Liquefiable Deposit
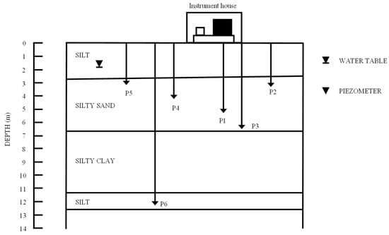
The Wildlife Liquefaction Array (WLA) serves as both a ground motion monitoring station and a research site situated at the southern end of the San Andreas Fault. Located in a seismically active zone, the WLA records numerous daily earthquakes and is fully instrumented, providing critical data for studies on liquefaction and ground movement.
Given the site’s susceptibility to liquefaction, pressure transducers and accelerometers, as shown in Figure 10, were strategically installed to capture variations in pore pressure and dynamic soil response at different depths during seismic activity []. The figure also illustrates the stratigraphy down to 14 m. The top layer (approximately 2.5 m deep) consists of silty clay to clayey silt, followed by a layer of silty sand to sandy silt. Below this, a 5.5 m layer of silty clay to clay is found, with the final layer of silt extending to the surface. The groundwater table fluctuates between 1 m and 2 m in depth.
Figure 10.
Transverse distribution of WLA piezometers. Adapted from [].
A numerical model was constructed based on this stratigraphy and the water table location. While the material parameters used for the sandy layer do not exactly match the soil at the WLA, the site’s stratigraphy provides a valuable scenario to assess the variability derived from the calibration process (Section 5). The aim of these simulations is not to replicate the recorded acceleration and pore pressure responses at the WLA but to explore the variability linked to uncertainties in the calibration procedure.
The numerical model was constructed using the finite elements framework OpenSees. The deposit was modeled using a column of 2D quadrilateral “Nine_Four_Node_QuadUP” elements. The mesh geometry for finite element use consists of a single element, horizontally, with a thickness of 0.50 m across all soil layers. The number of elements vertically varies for each soil layer, with greater refinement in the vertical direction to account for soil characteristics. The elements, each with four nodes, include pore pressure and displacement degrees of freedom. The displacement degrees of freedom (vertical and horizontal) are tied at any depth to impose periodic boundary conditions []. An input acceleration is applied to the base nodes. For simplicity, two types of soils were created: clay for layers 1, 3, and 4, and sand for layer 2, distributed as shown in Table 3. The water table was set at a depth of 2.00 m. The properties for the different layers used in the Wildlife simulation are summarized in Table 3. The mesh distribution in the vertical direction is 2, 18, 2 and 8 elements, respectively, for the 1, 2, 3 and 4 layers of soils.
Table 3.
Properties of the soil layers used for the simulation of the response of the Wildlife array.
The PDMY material model was used to simulate the two soil types. Clay layers were modeled as nearly impervious materials with very low permeability, adopting typical values and assuming minimal contractive tendencies. Parameters for sandy soil were derived from 100 randomly selected samples from the Markov chain analysis of the TCUI10 test (Section 3.2), along with a standard permeability coefficient for sand []. The initial confinement stress conditions in this test reflected the in situ conditions of the Wildlife deposit. The material model accounted for pressure dependence, with the sand density treated as constant, and a parameter set was used for each simulation.
The Superstition Hills earthquake on 23 November 1987, with a moment magnitude (Mw) of 6.6 and peak surface acceleration of 0.21 g, served as a key seismic event for this study []. Located approximately 31 km southwest of the Wildlife Liquefaction Array (WLA), the earthquake excitation recorded at a depth of 7.5 m was applied to the model. To prevent premature liquefaction (given that the sand used is more prone to liquefaction), the input acceleration was reduced by 50% (Figure 11b).
Figure 11.
(a) Prediction of surface acceleration of WLA liquefiable soil layer after simulation; (b) recorded base acceleration (at a depth of 7.5 m), and (c) excess pore pressure over time. Average of 100 sample results (blue) and standard deviation of results (yellow area).
Figure 11a presents the average horizontal acceleration response (blue) and its standard deviation (yellow), showing minimal variation, indicating consistent model behavior. Similarly, Figure 11c illustrates the pore pressure accumulation over the first 40 s, along with the standard deviation, providing insights into the phenomenon’s progression. Using the same samples employed to calculate the surface horizontal acceleration response, the average pore pressure accumulation over the first 40 s of the phenomenon and its standard deviation throughout the event were estimated and are presented in Figure 11c.
A low dispersion of simulations regarding water pore pressure behavior is observed when examining the sensor P5 recording at a depth of 2.90 m. The simulation captures the pore pressure performance induced by the earthquake, indicating quicker excess pore pressure accumulation than the sensor data, as the soil liquefies much earlier in the model than in the WLA’s recorded data (see Figure 12). This behavior can be attributed to the difference in soil types, as the classifications are different for both. Karlsruhe sand under the studied conditions may be more susceptible to liquefaction than the silty sandy soil in the stratum between 2.50 m and 7.00 m at the WLA.
Figure 12.
Pore pressure ratio recorded by various WLA sensors during the Superstition Hills earthquake. Adapted from [].
The calibration results are specific to Karlsruhe sand, which is a clean quartz sand with low fines content. Using these parameters with silty sands, such as those at the WLA, could lead to an overestimation of stiffness and strength, an underestimation of pore pressure buildup, and an incorrect representation of contractive behavior due to the higher fines content and partial plasticity of these sands. For other soil types, predictive accuracy would decrease without recalibration, resulting in greater uncertainty and bias. To improve generalizability, future work should recalibrate the model using diverse soil datasets and validate the results for different soil classes.
5. Conclusions
In this research, experimental data from undrained isotropic consolidated triaxial tests performed on the Karlsruhe sand were considered. A Bayesian calibration procedure was implemented in order to calibrate parameters of a constitutive model, while estimating their probability density function of the parameters. A pressure-dependent constitutive model was used to simulate soil behavior; this model has been successfully applied in simulating the behavior of soils subjected to cyclic loading.
The parameters calibrated according to this procedure were the critical internal friction angle (ϕc), maximum reference shear modulus (), Poisson’s coefficient (), the constant that controls the contractive behavior of the soil (), and the pressure-dependent coefficient (d). Additionally, the prediction error (σe) was estimated by evaluating the normalized values of vertical deformation (εv) and pore pressure (u). For each calibrated parameter, a probability distribution of the samples contained in the Markov chain was obtained, as a result of the Bayesian analysis. The mean and the maximum a posteriori value for each parameter and for the standard deviation of the model were also estimated to evaluate the uncertainty associated with the model.
The comparison between the calibrated model response and the pore pressure records of the triaxial tests indicates that the method used for the selection of the calibration parameters is adequate, while the results of the modeling obtained with the model calibrated using this method provide a good approximation of the mechanical response of the studied sand. The observable correlations between each calibrated parameter were identified. The presence of a considerable negative correlation between the variables and in this model is highlighted. In addition, a positive correlation has been detected between d and . These correlations have been analyzed in terms of the physics governing the model, identifying possible determining factors for the manifestation of such relationships.
A limitation of this study is the strong correlation observed between the contraction coefficient () and Poisson’s ratio (). This relationship is indicative of the structural interaction of these parameters within the constitutive model, where both parameters influence the soil’s volumetric response. The model appears to compensate for variations in one parameter by adjusting the other, which may result in identifiability issues under the current observation set. This analysis underscores the necessity for future research to integrate supplementary measurements or modeling methodologies, such as constraining a specific parameter or incorporating auxiliary observations, with the aim of enhancing parameter decoupling and reinforcing the reliability of the calibration process.
The simulation of the dynamic response of the Wildlife deposit was used to assess the impact of the probability distribution of the material parameters (derived from the calibration procedure) on the simulated deposit response. The modeling results are consistent with the nature of the liquefaction phenomenon observed in the WLA liquefiable sand, considering the difference between the soil types found at the site. Results of the simulation of the deposit for 100 samples of sets of parameters (obtained from the Markov chains generated during the calibration procedure), showed that the variability of the soil parameters associated with the calibration procedure had a negligible effect on the simulated pore pressure and acceleration response of the deposit.
Finally, this study demonstrates that Bayesian calibration of a pressure-dependent constitutive model is an effective method for quantifying parameter uncertainty and reproducing the cyclic behavior of sands under undrained conditions. The probabilistic approach facilitates the estimation of credible intervals for important parameters and highlights correlations that are imperceptible to deterministic methods. Despite the substantial congruence between the model’s predictions and the laboratory’s experimental results, the observed discrepancies in pore pressure and deformation indicate the limitations of the model when applied to diverse soil types or loading conditions. The methodology provides a robust framework to improve reliability in liquefaction assessment and can be extended to other geomaterials and site conditions through targeted recalibration.
Author Contributions
Conceptualization, L.C.-S., J.R.-M. and V.M.; methodology, L.C.-S., J.R.-M. and V.M.; data curation, L.C.-S.; writing—original draft preparation, L.C.-S.; writing—review and editing, L.C.-S., J.R.-M., V.M., J.F.-G. and J.A.-G.; visualization, L.C.-S.; supervision, V.M. and J.A.-G.; project administration, V.M. All authors have read and agreed to the published version of the manuscript.
Funding
This research received no external funding.
Institutional Review Board Statement
Not applicable.
Informed Consent Statement
Not applicable.
Data Availability Statement
The data presented in this study are available on request from the corresponding author. The data are not publicly available due to privacy.
Conflicts of Interest
The authors declare no conflicts of interest.
Abbreviations
The following abbreviations are used in this manuscript:
| MAP | Maximum a posteriori |
| PDMY | Pressure-dependent model with multiple yield surfaces |
| TCUI | Consolidated undrained isotropic cyclic triaxial tests |
| WLA | Wildlife Liquefaction Array |
| PT | Transformation phase |
References
- Seed, H.B. Soil Liquefaction and Cyclic Mobility Evaluation for Level Ground during Earthquakes. J. Geotech. Eng. Div. 1979, 105, 201–255. [Google Scholar] [CrossRef]
- Palacios, I.V.; Chacón, J.; Espinosa, I.V.; Vidal, F.; Irigaray, C. Susceptibilidad a Licuefacción En La Vega De Granada (España). In 4CNIS: Libro de Resúmenes del Cuarto Congreso Nacional de Ingeniería Sísmica; Copicentro: Andalusia, Spain, 2012; p. 72. [Google Scholar]
- Zeitouny, J.; Lieske, W.; Lavasan, A.A.; Heinz, E.; Wichern, M.; Wichtmann, T. Impact of New Combined Treatment Method on the Mechanical Properties and Microstructure of MICP-Improved Sand. Geotechnics 2023, 3, 661–685. [Google Scholar] [CrossRef]
- Andrus, R.D.; Stokoe, K.H. Liquefaction Resistance Based on Shear Wave Velocity; ROSAP: Washington, DC, USA, 1997.
- Boulanger, R.W.; Idriss, I.M. CPT and SPT Liquefaction Triggering Procedures; Report No. UCD/CGM-14/01; Center for Geotechnical Modeling, Department of Civil & Environmental Engineering, University of California: Davis, CA, USA, 2014. [Google Scholar]
- Youd, B.T.L.; Idriss, I.M. Liquefaction resistance of soils: Summary report from the 1996 NCEER and 1998 NCEER/NSF workshops on evaluation of liquefaction resistance of soils. J. Geotech. Geoenviron. Eng. 2001, 127, 297–313. [Google Scholar] [CrossRef]
- Bennett, M.J.; McLaughlin, P.V.; Sarmiento, J.S.; Youd, T.L. Geotechnical Investigation of Liquefaction Sites, Imperial Valley, California; US Geological Survey: Reston, VA, USA, 1984. [CrossRef]
- Youd, L.; Holzer, T.L. Piezometer Performance at Wildlife Liquefaction Site, California. J. Geotech. Eng. 1994, 120, 975–995. [Google Scholar] [CrossRef]
- Quintero, J.; Gomes, R.C.; Rios, S.; Ferreira, C.; da Fonseca, A.V. Liquefaction assessment based on numerical simula-tions and simplified methods: A deep soil deposit case study in the Greater Lisbon. Soil Dyn. Earthq. Eng. 2023, 169, 107866. [Google Scholar] [CrossRef]
- Kutter, B.L.; Carey, T.J.; Hashimoto, T.; Zeghal, M.; Abdoun, T.; Kokkali, P.; Madabhushi, G.; Haigh, S.K.; D’ARezzo, F.B.; Madabhushi, S.; et al. LEAP-GWU-2015 experiment specifications, results, and comparisons. Soil Dyn. Earthq. Eng. 2018, 113, 616–628. [Google Scholar] [CrossRef]
- Manzari, M.T.; Zeghal, M.; Iai, S.; Tobita, T.; Madabhushi, S.P.; Zhou, Y.G. LEAP projects: Concept and challenges. In Proceedings of the 4th International Conference on Geotechnical Engineering for Disaster Mitigation and Rehabilitation, Kyoto, Japan, 16–18 September 2014; pp. 109–116. [Google Scholar]
- Zahmatkesh, A.; Choobbasti, A.J. Calibration of an Advanced Constitutive Model for Babolsar Sand Accom-panied by Liquefaction Analysis. J. Earthq. Eng. 2017, 21, 679–699. [Google Scholar] [CrossRef]
- Zeghal, M.; Goswami, N.; Kutter, B.L.; Manzari, M.T.; Abdoun, T.; Arduino, P.; Armstrong, R.; Beaty, M.; Chen, Y.-M.; Ghofrani, A.; et al. Stress-strain response of the LEAP-2015 centrifuge tests and numerical predictions. Soil Dyn. Earthq. Eng. 2018, 113, 804–818. [Google Scholar] [CrossRef]
- Zhang, W.; Wu, C.; Zhong, H.; Li, Y.; Wang, L. Prediction of undrained shear strength using extreme gradient boosting and random forest based on Bayesian optimization. Geosci. Front. 2021, 12, 469–477. [Google Scholar] [CrossRef]
- Tang, C.; Phoon, K.-K.; Zhang, L.; Li, D.-Q. Model Uncertainty for Predicting the Bearing Capacity of Sand Overlying Clay. Int. J. Geomech. 2017, 17, 04017015. [Google Scholar] [CrossRef]
- He, G.-F.; Yin, Z.-Y.; Zhang, P. Uncertainty quantification in data-driven modelling with application to soil properties pre-diction. Acta Geotech. 2025, 20, 843–859. [Google Scholar] [CrossRef]
- Bozorgzadeh, N.; Bathurst, R.J. Bayesian model checking, comparison and selection with emphasis on outlier detection for geotechnical reliability-based design. Comput. Geotech. 2019, 116, 103181. [Google Scholar] [CrossRef]
- Elbadawy, M.A.; Zhou, Y.-G. Class-C Simulations of LEAP-ASIA-2019 via OpenSees Platform by Using a Pressure Dependent Multi-yield Surface Model. In Model Tests and Numerical Simulations of Liquefaction and Lateral Spreading II; Springer International Publishing: Cham, Switzerland, 2024; pp. 409–435. [Google Scholar] [CrossRef]
- Neil, R. Slice Sampling (with discussion). Ann. Stat. 2003, 31, 705–767. Available online: https://projecteuclid.org/journals/annals-of-statistics/volume-31/issue-3/Slice-sampling/10.1214/aos/1056562461.full (accessed on 4 June 2025).
- Wichtmann, T.; Triantafyllidis, T. An experimental database for the development, calibration and verification of constitu-tive models for sand with focus to cyclic loading: Part II—tests with strain cycles and combined loading. Acta Geotech. 2016, 11, 763–774. [Google Scholar] [CrossRef]
- DIN 18126; Baugrund, Untersuchung von Bodenproben-Bestimmung der Dichte Nichtbindiger Böden bei Lockerster und Dichtester Lagerung. Beuth Verlag: Berlín, Germany, 1996.
- ASTM D5311M-13; Standard Test Method for Load Controlled Cyclic Triaxial Strength of Soil. ASTM International: West Conshohocken, PA, USA, 2013.
- Yang, Z.; Lu, J.; Elgamal, A. OpenSees Soil Models and Solid-Fluid Fully Coupled Elements: User’s Manual; University of California: San Diego, CA, USA, 2008; Version 1; Available online: http://scholar.google.com/scholar?hl=en&btnG=Search&q=intitle:OpenSees+Soil+Models+and+Solid-+Fluid+Fully+Coupled+Elements+User+?+s+Manual#0 (accessed on 5 June 2025).
- McKenna, F.; Fenves, G.L.; Scott, M.H. Open System for Earthquake Engineering Simulation (OpenSees), Version 3.7.1; University of California: Berkeley, CA, USA, 2000. Available online: https://opensees.berkeley.edu/ (accessed on 13 July 2025).
- Ismael, B.; Lombardi, D. Evaluation of Liquefaction Potential for Two Sites Due to the 2016 Kumamoto Earthquake Sequence. In Proceedings of the Conference of the Arabian Journal of Geosciences, Sousse, Tunisia, 25–28 November 2019; Springer International Publishing: Cham, Germany, 2019; pp. 237–241. [Google Scholar] [CrossRef]
- Khosravifar, A.; Elgamal, A.; Lu, J.; Li, J. A 3D model for earthquake-induced liquefaction triggering and post-liquefaction response. Soil Dyn. Earthq. Eng. 2018, 110, 43–52. [Google Scholar] [CrossRef]
- Patra, S.K.; Haldar, S. Seismic Response of Monopile Supported Offshore Wind Turbine in Liquefied Soil. Structures 2021, 31, 248–265. [Google Scholar] [CrossRef]
- Qiu, Z.; Elgamal, A. Seismic performance of a sheet-pile retaining structure in liquefiable soils: Numerical simulations of LEAP-2022 centrifuge tests. Soil Dyn. Earthq. Eng. 2024, 176, 108330. [Google Scholar] [CrossRef]
- Masing, G. Eigenspannungen und Verfestigung beim Messing. In Proceedings of the International Congress for Applied Mechanics, Zurich, Switzerland, 12–17 September 1926; pp. 332–335. [Google Scholar]
- Mróz, Z.; Norris, V.A.; Zienkiewicz, O.C. Application of an anisotropic hardening model in the analysis of elasto–plastic deformation of soils. Géotechnique 1979, 29, 1–34. [Google Scholar] [CrossRef]
- Kondner, R.L. Hyperbolic Stress-Strain Response: Cohesive Soils. J. Soil Mech. Found. Div. 1963, 89, 115–144. [Google Scholar]
- Puzrin, A.M. Constitutive Modelling in Geomechanics: Introduction; Springer: Berlin, Germany, 2012; pp. 1–312. [Google Scholar] [CrossRef]
- Prevost, J.H. A simple plasticity theory for frictional cohesionless soils. Int. J. Soil Dyn. Earthq. Eng. 1985, 4, 9–17. [Google Scholar] [CrossRef]
- Elgamal, A.; Yang, Z.; Parra, E.; Ragheb, A. Modeling of cyclic mobility in saturated cohesionless soils. Int. J. Plast. 2003, 19, 883–905. [Google Scholar] [CrossRef]
- Das, B.M.; Sivakugan, N. Principles of Foundation Engineering; Cengage Learning: Boston, MA, USA, 2018. [Google Scholar]
- Wichtmann, T.; Triantafyllidis, T. Influence of a cyclic and dynamic loading history on dynamic properties of dry sand, part I: Cyclic and dynamic torsional prestraining. Soil Dyn. Earthq. Eng. 2004, 24, 127–147. [Google Scholar] [CrossRef]
- Kulhawy, F.H.; Mayne, P. Manual on Estimating Soil Properties for Foundation Design; Cornell University Ithaca: New York, NY, USA, 1990. [Google Scholar]
- Elgamal, A.; Yang, Z.; Parra, E. Computational modeling of cyclic mobility and post-liquefaction site response. Soil Dyn. Earthq. Eng. 2002, 22, 259–271. [Google Scholar] [CrossRef]
Disclaimer/Publisher’s Note: The statements, opinions and data contained in all publications are solely those of the individual author(s) and contributor(s) and not of MDPI and/or the editor(s). MDPI and/or the editor(s) disclaim responsibility for any injury to people or property resulting from any ideas, methods, instructions or products referred to in the content. |
© 2025 by the authors. Licensee MDPI, Basel, Switzerland. This article is an open access article distributed under the terms and conditions of the Creative Commons Attribution (CC BY) license (https://creativecommons.org/licenses/by/4.0/).