Long Live the Step Pyramid!
Abstract
:1. Introduction
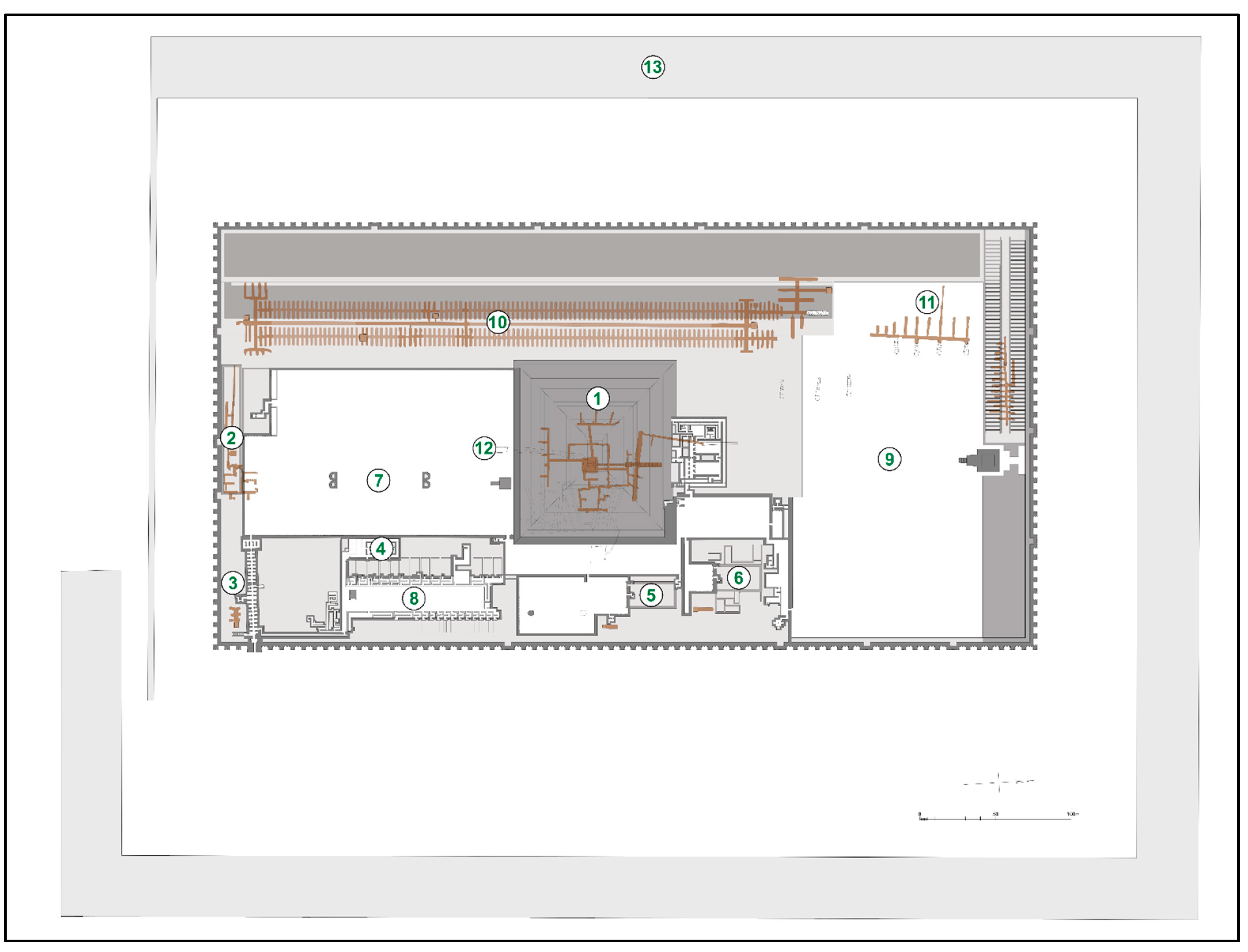
2. The Funerary Complex of Netjerykhet
- Two burial place markers: the step pyramid and the mastaba of the South Tomb in the central and southern part of the complex, respectively [23] (pp. 2–9, 18–24).
- Subterranean installations related to specific model buildings within the complex (Building Askew, House of the North and House of the South).
- Structures of uncertain date probably not to be identified as elements of the original design: the shaft tombs (D) and possibly Gallery C in the northern part of the complex.
3. The Place in the Landscape
4. Later References
5. Conclusions
Funding
Data Availability Statement
Conflicts of Interest
References
- Emery, W. Great Tombs of the First Dynasty 1949–1958; Government Press: Cairo, Egypt, 1949; Volume I–III. [Google Scholar]
- Lacher-Raschdorff, C. Das Grab des Königs Ninetjer in Saqqara. Architektonische Entwicklung frühzeitlicher Grabanlagen in Ägypten (AV 125); Harrassowitz: Wiesbaden, Germany, 2014. [Google Scholar]
- Leprohon, R. The Great Name. Ancient Egyptian Royal Titulary; Society of Biblical Literature: Atlanta, GA, USA, 2013. [Google Scholar]
- Baud, M. Djéser et la IIIe Dynastie; Pygmalion: Paris, France, 2002. [Google Scholar]
- Sullivan, E.J. Constructing the Sacred. Visibility and Ritual Landscape at the Egyptian Necropolis of Saqqara; Stanford University Press: Stanford, CA, USA, 2020; Available online: https://constructingthesacred.supdigital.org (accessed on 4 September 2022).
- Wildung, D. Imhotep und Amenhotep (MÄS 36); Deutscher Kunstverlag: München-Berlin, Germany, 1977. [Google Scholar]
- Stadelmann, R. Die Ägyptischen Pyramiden: Vom Ziegelbau zum Weltwunder; Philipp von Zabern: Mainz am Rhein, Germany, 1997. [Google Scholar]
- Friedman, F.D. Notions of Cosmos in the Step Pyramid Complex. In Studies in Honor of William Kelly Simpson; Manuelian, P.D., Ed.; Museum of Fine Arts: Boston, MA, USA, 1996; pp. 337–351. [Google Scholar]
- Van Wetering, J. The Early Dynastic royal cemetery at Saqqara. In The Perfection that Endures… Studies on Old Kingdom Art and Archaeology; Kuraszkiewicz, K.O., Kopp, E., Takács, D., Eds.; University of Warsaw: Warsaw, Poland, 2018; pp. 367–396. [Google Scholar]
- Krauss, R. Astronomische Konzepte und Jenseitsvorstellungen in den Pyramidentexten; Harrasowitz: Wiesbaden, Germany, 1997. [Google Scholar]
- Belmonte, J.A.; Goznález Garcia, A.C.; Shaltout, M.; Fekri, M.; Miranda, N. From Umm Al Qab to Biban al Muluk: The Orientation of Royal Tombs in Ancient Egypt. In Astronomy and Cosmology in Folk Traditions and Cultural Heritage (Archaeologia Baltica 10); Vaškūnas, J., Ed.; Lithuanian Institute of History: Klaipeda, Lithuania, 2008; pp. 226–233. [Google Scholar]
- Nofal, B.; Tharwat, A.; El-Aguizy, O.; El Khodary, I. An Optimization Model for Exploring the Egyptian Royal Pyramids Locations. Mediterr. Archaeol. Archaeom. 2021, 21, 129–140. [Google Scholar]
- Lauer, J.-P. Observations sur les Pyramides; IFAO: Cairo, Egypt, 1960. [Google Scholar]
- Nell, E.; Ruggles, C. The Orientations of the Giza pyramids and associated structures. Archaeoastron. J. Astron. Cult. 2014, 45, 304–360. [Google Scholar] [CrossRef]
- Swelim, N. Some Problems on the History of the Third Dynasty; The Archaeological Society of Alexandria: Alexandria, Egypt, 1983. [Google Scholar]
- Lauer, J.-P. La Pyramide à Degrés: L’architecture I–II; IFAO: Cairo, Egypt, 1936. [Google Scholar]
- Haack, S.C. The Astronomical Orientation of the Egyptian Pyramids. Archaeoastronomy 1984, 7, 122. [Google Scholar] [CrossRef]
- Gadre, K. La Signification Astronomique des Pyramides d’Égypte: L’ordre Céleste Recrée; La Maison de Vie: Paris, France, 1998; pp. 93–114. [Google Scholar]
- Monnier, F. L’ère des Géants. Une Description Détailée des Grandes Pyramides d’Égypte; Boccard: Paris, France, 2017. [Google Scholar]
- Ricke, H. Bemerkungen zur Ägyptischen Baukunst des Alten Reiches I (BÄBA 4); Borchardt-Institut: Zurich, Switzerland, 1944. [Google Scholar]
- Stadelmann, R. Origins and Development of the Funerary Complex of Djoser. In Studies in Honor of William Kelley Simpson; Manuelian, P.D., Ed.; Museum of Fine Arts: Boston, MA, USA, 1996; pp. 787–800. [Google Scholar]
- Lauer, J.-P. The Step Pyramid Precinct of King Djoser. In Egyptian Art in the Age of the Pyramids; O’Neill, J.P., Fuerstein, C., Eds.; Metropolitan Museum of Art: New York, NY, USA, 1999; pp. 13–19. [Google Scholar]
- Firth, C.M.; Quibell, J.E. The Step Pyramid I–II; IFAO: Cairo, Egypt, 1935. [Google Scholar]
- Kaiser, W. Zu den Königlichen Talbezirken der 1. und 2. Dynastie in Abydos und zur Baugeschichte des Djoser-Grabmals. Mitt. Dtsch. Archäol. Inst. Abt. Kairo 1969, 25, 1–21. [Google Scholar]
- Lauer, J.-P. La Pyramide à Degrés III: Compléments; IFAO: Cairo, Egypt, 1939. [Google Scholar]
- Stadelmann, R. Die Oberbauten der Königsgräber der 2. Dynastie in Sakkara. In Mélanges Gamal eddin Mokhtar (BdE 97/2); IFAO: Cairo, Egypt, 1985; pp. 295–307. [Google Scholar]
- Beuthe, T. An Animal Embalming Complex at Saqqara. J. Anc. Egypt. Archit. 2020, 4, 19–27. [Google Scholar]
- Deslandes, B. Travaux récents menés dans la pyramide à degrés de Saqqarah. C. R. Séances Acad. Inscr. B.-Lett. 2007, 151, 1475–1482. [Google Scholar] [CrossRef]
- Hornung, E.; Staehelin, E. Neue Studien zum Sedfest (Aegyptiaca Helvetica 20); Schwabe: Basel, Switzerland, 2006. [Google Scholar]
- Lauer, J.-P. Les Edicules en Forme de D du Complex Monumental de la Pyramide a Degres. In Hommages à Jean Leclant (BdE 106); Berger, C., Clerc, G., Grimal, N., Eds.; IFAO: Cairo, Egypt, 1994; pp. 183–198. [Google Scholar]
- Friedman, F.D. The Underground Panels of King Djoser at the Step Pyramid Complex. J. Am. Res. Cent. Egypt 1995, 32, 1–42. [Google Scholar] [CrossRef]
- Swelim, N. The Dry Moat of the Netjerykhet Complex. In Pyramid Studies and Other Essays Presented to I. E. S. Edwards; Baines, J., James, T.G.H., Leahy, A., Shore, A.F., Eds.; The Egypt Exploration Society: London, UK, 1998; pp. 12–22. [Google Scholar]
- Swelim, N. The Dry Moat, the South Rock Wall of the Inner South Channel. In Timelines. Studies in Honour of Manfred Bietak; Schwab, A., Melman, D., Czerny, E., Hunger, H., Hein, I., Eds.; Peeters Leuven Publishers: Paris, France, 2006; pp. 363–376. [Google Scholar]
- Myśliwiec, K. The ‘Dry Moat’ West of the Netjerykhet Enclosure. In The Old Kingdom Art and Archaeology, Proceedings of the Conference Held in Prague, May 31–June 4, 2004; Bárta, M., Ed.; Czech Institute of Egyptology: Prague, Czech Republic, 2006; pp. 233–237. [Google Scholar]
- Herbich, T.; Jagodziński, A. Geophysical Investigation of the Dry Moat of the Netjerykhet Complex in Saqqara. In Man—Millennia—Environment: Studies in Honour of Romuald Schild; Sulgostowska, Z., Tomaszewski, A.J., Eds.; Institute of Archaeology and Ethnology, Polish Academy of Sciences: Warsaw, Poland, 2008; pp. 273–279. [Google Scholar]
- Myśliwiec, K. The ‘Dry Moat’: A New Project. In The Perfection that Endures… Studies on Old Kingdom Art and Archaeology; Kuraszkiewicz, K.O., Kopp, E., Takács, D., Eds.; University of Warsaw: Warsaw, Poland, 2018; pp. 327–332. [Google Scholar]
- Kuraszkiewicz, K.O. Afterworld for Netjerykhet. In Old Kingdom, New Perspectives. Egyptian Art and Archaeology 2750–2150 BC; Strudwick, N., Strudwick, H., Eds.; Oxbow: Oxford, UK, 2011; pp. 139–142. [Google Scholar]
- Kuraszkiewicz, K.O. Polish research west of the Step Pyramid enclosure. Saqqara Newsl. 2018, 16, 11–22. [Google Scholar]
- Saad, Z.Y. Royal Excavations at Saqqara and Helwan (1941–1945) (CASAE 3); IFAO: Cairo, Egypt, 1947. [Google Scholar]
- Kuraszkiewicz, K.O. Netjerikhet’s Traces in the West. In Abusir and Saqqara in the Year 2005; Bárta, M., Coppens, F., Krejčí, J., Eds.; Czech Institute of Egyptology: Prague, Czech Republic, 2006; pp. 274–281. [Google Scholar]
- Aston, B.; Harrell, J.; Shaw, I. Stone. In Ancient Egyptian Materials and Technology; Nicholson, P.T., Shaw, I., Eds.; Cambridge University Press: Cambridge, UK, 2000; pp. 6–77. [Google Scholar]
- Hornung, E. Chaotische Bereiche in der geordneter Welt. Z. Ägyptische Sprache 1956, 81, 28–32. [Google Scholar] [CrossRef]
- Meurer, G. Die Feinde des Königs in den Pyramidentexten; Universitätsverlag/Vandenhoeck Ruprecht: Göttingen, Germany, 2002. [Google Scholar]
- Allen, J.P. The Ancient Egyptian Pyramid Texts; Society for Biblical Literature: Atlanta, GA, USA, 2005. [Google Scholar]
- Allen, J.P. The Cosmology of the Pyramid Texts. In Religion and Philosophy in Ancient Egypt; Simpson, W.K., Ed.; Yale Egyptological Seminar: New Haven, CN, USA, 1989; pp. 1–28. [Google Scholar]
- Allen, J.P. Reading a Pyramid. In Hommages à Jean Leclant (BdE 106); Berger, C., Clerc, G., Grimal, N., Eds.; IFAO: Cairo, Egypt, 1993; pp. 5–28. [Google Scholar]
- Hays, H. Unreading the Pyramids. Bull. Inst. Fr. Archéol. Orient. 2009, 109, 195–220. [Google Scholar]
- Barta, W. Die Bedeutung der Pyramidentexte für den verstorbenen König; Deutscher Kunstverlag: München-Berlin, Germany, 1981; pp. 136–150. [Google Scholar]
- Welc, F.; Malata, E.; Marks, L.; Studencka, B.; Olszewska, B. Preliminary remarks on enigmatic “white casing limestone” from Saqqara archaeological site in Egypt. Stud. Quat. 2013, 30, 115–123. [Google Scholar] [CrossRef]
- Roth, A.M. The Organization of Royal Cemeteries at Saqqara in the Old Kingdom. J. Am. Res. Cent. Egypt 1998, 25, 201–214. [Google Scholar] [CrossRef]
- Kuraszkiewicz, K.O. More remarks on late Old Kingdom mastabas west of the Step Pyramid. Pol. Archaeol. Mediterr. 2009, 18, 165–173. [Google Scholar]
- Spencer, A.J. Researches on the Topography of North Saqqara. Orientalia 1974, 43, 1–11. [Google Scholar]
- Bresciani, E.; Giammarusti, A. (Eds.) The North Saqqara Archaeological Site: Handbook for the Environmental Risk Analysis; Plus: Pisa, Italy, 2003. [Google Scholar]
- Kuraszkiewicz, K.O. Saqqara V.1. Old Kingdom Structures between the Step Pyramid Complex and the Dry Moat. Architecture and Development of the Necropolis; Neriton: Warsaw, Poland, 2013. [Google Scholar]
- Ryholt, K. The Late Old Kingdom Archive from the Pyramid Complex of Netjerkhet. In Les Archives Administratives de l’Ancien Empire; Collombert, P., Tallet, P., Eds.; Peeters: Leuven, Belgium, 2021; pp. 117–146. [Google Scholar]
- Arnold, D. The Pyramid Complex of Senwosret III at Dahshur; Architectural Studies; Metropolitan Museum of Art: New York, NY, USA, 2002. [Google Scholar]
- Oppenheim, A. A New Boundary Stela of the Pharaoh Netjerikhet (Djoser) Found in the Pyramid Complex of Senwosret III, Dahshur. Bull. Egyptol. Semin. 2007, 17, 153–182. [Google Scholar]
- Návratilová, H. The Visitors’ Graffiti of Dynasties XVIII and XIX in Abusir and Northern Saqqara; Czech Institute of Egyptology: Prague, Czech Republic, 2007. [Google Scholar]
- Gomaà, F. Chaemwese, Sohn Ramses’ II. Und Hoherpriester von Memphis (ÄA 27); Harrasowitz: Wiesbaden, Germany, 1973. [Google Scholar]
- Takamiya, I.H.; Kashiwagi, H.; Yoshimura, S. Khaemwaset and His Monument at North Saqqara: A Record of Multiple Aspects of the “First Egyptologist”. In Times, Signs and Pyramids: Studies in Honour of Miroslav Verner on the Occasion of His Seventieth Birthday; Callender, V.G., Bareš, L., Bárta, M., Janák, J., Krejči, J., Eds.; Charles University: Prague, Czech Republic, 2011; pp. 401–419. [Google Scholar]
- Allen, J.P. A Monument of Khaemwaset Honoring Imhotep. In Gold of Praise. Studies in Ancient Egypt in Honor of Edward Wente (SAOC 58); Teeter, E., Larson, J.A., Eds.; The Oriental Institute of the University of Chicago: Chicago, IL, USA, 1999; pp. 1–10. [Google Scholar]
- Myśliwiec, K. Eine geheimnisvolle Rampe und Plattform an der Westseite der Pyramide des Djoser. Sokar 2005, 11, 6–7. [Google Scholar]
- Rzeuska, T. West Saqqara. The Pottery, 2001. Pol. Archaeol. Mediterr. 2002, 13, 151–158. [Google Scholar]
- Staring, N. From Landscape Biography to the Social Dimension of Burial. In Perspectives on Lived Religion. Practices—Transmission—Landscape; Staring, N., Twiston Davies, H., Weiss, L., Eds.; Sidestone Press: Leiden, The Netherlands, 2019; pp. 207–223. [Google Scholar]
- Martin, G. The Hidden Tombs of Memphis: New Discoveries from the Time of Tutankhamun and Ramesses the Great; Thames and Hudson: New York, NY, USA, 1991. [Google Scholar]
- Lauer, J.-P. The Pyramids of Saqqara; IFAO: Cairo, Egypt, 1991. [Google Scholar]
- Smolárikova, K. The Step Pyramid—a constant inspiration to the Saite Egyptians. In Abusir and Saqqara in the Year 2005; Bárta, M., Coppens, F., Krejči, J., Eds.; Czech Institute of Egyptology: Prague, Czech Republic, 2006; pp. 42–49. [Google Scholar]
- El-Daly, O. Egyptology: The Missing Millennium. Ancient Egypt in Medieval Arabic Writings; UCL Press: London, UK, 2005. [Google Scholar]
- Salem, R.A.; Ewais, A.Y.; Ahmed, M.A. Detachment of Coptic Mural Painting in a Hermitage Inside the Southern Side of Stepped Pyramid of Saqqara, 2015. Available online: https://www.researchgate.net/publication/274009171_Detachment_of_Coptic_mural_painting_in_a_hermitage_inside_the_southern_side_of_stepped_pyramid_of_Saqqara_Egypt (accessed on 4 September 2022).








Publisher’s Note: MDPI stays neutral with regard to jurisdictional claims in published maps and institutional affiliations. |
© 2022 by the author. Licensee MDPI, Basel, Switzerland. This article is an open access article distributed under the terms and conditions of the Creative Commons Attribution (CC BY) license (https://creativecommons.org/licenses/by/4.0/).
Share and Cite
Kuraszkiewicz, K.O. Long Live the Step Pyramid! Heritage 2022, 5, 2615-2627. https://doi.org/10.3390/heritage5030136
Kuraszkiewicz KO. Long Live the Step Pyramid! Heritage. 2022; 5(3):2615-2627. https://doi.org/10.3390/heritage5030136
Chicago/Turabian StyleKuraszkiewicz, Kamil Omar. 2022. "Long Live the Step Pyramid!" Heritage 5, no. 3: 2615-2627. https://doi.org/10.3390/heritage5030136
APA StyleKuraszkiewicz, K. O. (2022). Long Live the Step Pyramid! Heritage, 5(3), 2615-2627. https://doi.org/10.3390/heritage5030136

