Next Article in Journal
Exploring the Relationship between Environmental and Economic Payback Times, and Heritage Values in an Energy Renovation of a Multi-Residential Pre-War Building
Next Article in Special Issue
The Ottomans and the Greek Landscape: The Perception of Landscape in Greece by the Ottomans and Its Impact on the Architectural and Landscape Design
Previous Article in Journal
Organic Remains in Early Christian Egyptian Metal Vessels: Investigation with Fourier Transform Infrared Spectroscopy and Gas Chromatography–Mass Spectrometry
Previous Article in Special Issue
Original Varnish Recipes in Post-Byzantine Painting Manuals
 
 
Font Type:
Arial Georgia Verdana
Font Size:
Aa Aa Aa
Line Spacing:
Column Width:
Background:
Article

The Voyatzis Mansion in Aegina, Greece: A Historical and Architectural Approach and Physicochemical Documentation of the Wall Painting Decoration

by
Athena Georgia Alexopoulou
1,*,
Zoe Georgiadou
2,
Panagiotis Ilias
3 and
Agathi Anthoula Kaminari
4
1
ARTICON Laboratory—Conservation Promotion of Visual Art, Books and Archival Material, Department of Conservation of Antiquities and Works of Art, School of Applied Arts and Culture, University of West Attica, 12243 Egaleo, Greece
2
DesArDo Laboratory—Design, Interior Architecture and Audiovisual Documentation, Department of Interior Architecture, School of Applied Arts and Culture, University of West Attica, 12243 Egaleo, Greece
3
Department of Photography and Audiovisual Arts, University of West Attica, 12243 Egaleo, Greece
4
Department of Conservation of Antiquities and Works of Art, School of Applied Arts and Culture, University of West Attica, 12243 Egaleo, Greece
*
Author to whom correspondence should be addressed.
Heritage 2021, 4(4), 3630-3651; https://doi.org/10.3390/heritage4040200
Submission received: 31 August 2021 / Revised: 7 October 2021 / Accepted: 8 October 2021 / Published: 18 October 2021

Abstract

:
This paper refers to the study of the Voyatzis mansion, in the port of Aegina, Greece. The building complex consists of two discrete structures, which were built at different times (before 1830, 1880 and 1890) and have housed either the Voyatzis family home or its business and work premises. The present research is focused on the documentation of the building, which was never published, and combines the architectural form and elements within its historical context as well as the physicochemical analysis of the painted decoration. The key hypothesis investigated is whether Konstantinos Voyatzis transferred the aesthetic approach and application techniques from Symi to Aegina, when he emigrated from his birthplace. The documentation of the ceiling decoration as well as the physicochemical study of the second floor’s internal wall painting decoration in the main rooms was carried out using in situ modern hyperspectral imaging in specific wavelengths of the visible and near-infrared region, as well as in false color infrared mode. Complementary SWIR imaging, using an InGaAs sensor at the range 900–1700 nm was also applied. The assumption was supported by the findings of the imaging techniques, which showed, apart from the secco method, the use of traditional pigments for the wall paintings, such as cobalt blue, brown, red and yellow earth pigments, chrome oxide green and black, sometimes in admixture with white. The use of guidelines and stencil in the case of the hallway was also recorded.

1. Introduction

This paper is focused on the documentation of the Voyatzis mansion, a family building and a significant landmark in the port of Aegina Island. The documentation refers to the architectural form and elements of the building, it investigates the ceiling decoration and comprises the physicochemical study of the second floor’s internal wall painting decoration of the main rooms.
Konstantinos Voyatzis, the forefather of the family, was born in Symi, an island in the Greek Dodecanese, in 1838. Symi was under Ottoman occupation since 1522, when it was subject to the administrative remit of the Sanjak of Rhodes [1]. The island developed commercial shipping, trade and sponge fishing due to a granted privilege, among others (lower taxes, etc.) [1]. These privileges were maintained until the Greek War of Independence in 1821, in which the Symi’s inhabitants actively took part. As the Ottoman rule lasted up to 1912 and these privileges were gradually abolished, the islanders began to emigrate, and this movement intensified during the period of Italian rule up to 1942 [2]. Konstantinos Voyatzis moved to Aegina around 1860–70 and transferred his commercial activities to a more favorable environment, as he was a sponge merchant, exporting quality products particularly to England and France.
The key hypothesis investigated in this research is whether Konstantinos Voyatzis transferred the aesthetic approach and application techniques to Aegina, when he emigrated, as the arts—including architecture, decoration, painting and others—flourished and significant cultural activity was evident in Symi during the 18th and 19th centuries, at the peak of commercial activities [1].
The originality of the present work lies in two basic and complementary axes. The first axis is focused on the documentation of the building, based on unpublished archival material (photographs and architectural plans) and tracks, in detail, the architectural form, elements and changes from the first phase of the construction up to the present situation, in order to document the mansion complex and its relation between Aegina and Symi.
The second axis refers to the documentation of the ceiling decoration as well as the physicochemical study of the second floor’s internal wall painting decoration in the main rooms. The research was carried out using in situ modern hyperspectral imaging in specific wavelengths of the visible and near-infrared region, as well as in false color infrared mode, in order to collect data regarding the condition, the characterization of the pigments and the painting technique. It is important to note that the application of this methodology highlights the modern applications of the methods in historical monuments painting decoration, apart from the established and widespread use in easel paintings and archival material.

2. Architecture and Special Features

2.1. Timeline

Voyatzis mansion is a building complex, which consists of two discrete structures totaling 911 m2, built at different times which have housed either the Voyatzis family home or its business and work premises. The buildings themselves present different features and hierarchy, depending on their use, both in terms of their building mass and of the decorative elements of the interior and exterior.
After his settlement in Aegina, Konstantinos Voyatzis rented and then purchased a building on the north-west side of the Aegina Port (an area which served as a boat repair yard), since water was essential for sponge processing. The building was single-storey with a clay-tile roof which housed the sponge-processing areas (construction date unknown) and was later expanded. A sign for an insurance company listing the year 1830 was incorporated into the later building and may have come from the original structure. The building complex (Figure 1 and Figure 2) was constructed in three principal phases—the original building A (which existed previously, perhaps since 1830); the three-storey main building B, with a small room on the roof top, built around 1880; and the main building C, which was essentially the addition of a two-storey building and extensions to the original building around 1890. The main three-storey building, which has a sign over the entrance, indicates the year 1890. This appears to be the date of completion, as construction is thought to have begun in 1878 or earlier [3].
There is no information regarding the architects who designed the buildings, but it appears that they were not Greek, while the wall paintings in the residence of the main building B were said to have been created by Florentine artists [5].

2.2. Architectural Style and Configuration

The two-storey structure (buildings A and C) with masses of unequal height is not rectangular; it is turned at an angle against the main building and stands on the existing original building (Figure 3). To this was added the first floor, with two building masses and roofs, while it appears that some sections were added later, particularly the section that visually connects the subsequent main building with the addition, as attested to by its continuation to the new mezzanine, the difference in height and the dual-pitched roof that covers it [6]. The main building (B), housing the family home, follows the single-family neoclassical home model with a condensed cubic mass, almost squared floor plan and a small L-shaped end [7,8]. The ground-floor spaces of both buildings are unified in each building, designed to provide spacious business premises for storing and processing sponges and for the company’s operational needs (Figure 3) including a loft and Konstantinos Voyatzis’ office, slightly raised, on the eastern side. According to testimony, this space had a ceiling mural featuring the head of Hermes [5], which did not survive, as all the interior divisions were removed during subsequent uses of these spaces for shops. There are two entrances to the buildings from Kanari Street to the upper floors. Entry into the main building Β is through a monumental doorway built into a tall wall, which leads to an interior courtyard with a cistern. From there, a large, circular wooden stairway leads to the mezzanine and then to the second floor (Figure 4). The second entryway is via an exterior stairway on the side of the building parallel to the street, with a door that leads directly to an entrance hall [6].
The facades display a hierarchy of plastic and decorative elements, with those of the original building and its additions being the more inferior. The hierarchical order begins with the simplest north facade along Irioti Street (Figure 5), then the east facade along Kanari Street incorporating the entryways (Figure 6), and the most significant south and west facades along the waterfront and Dimokratias Avenue, correspondingly (Figure 5 and Figure 7), which are designed in a neoclassical style, with austere symmetry and axiality in the individual structures [8,9]. The waterfront facades have been listed as historical and are part of a linear total of 34 buildings designated in Government Gazette 1007/Δ/02.10.1992, Ministry for the Environment, Physical Planning and Public Works decision 76769/5180 a/25.08.1992 [10,11]. The buildings are part of a settlement which developed from residences around the Kolona (Temple of Apollo) and the port according to Richard Chandler. In his account of “Travels in Greece”, this area in 1765 had no buildings but only fields and stone walls, as well as churches. The inhabitants’ resettlement of the waterfront began around 1800 and is characterized by small city blocks arranged closely together [12].
The main building B is arranged in three storeys and a roof, with the unique feature that the first floor is particularly lower in height and of a different color [4]. Four balconies extend from the south and west facades, towards the port [6] (Figure 5 and Figure 7). Two are large and supported by columns on the first floor and two smaller ones are supported by marble corbels (brackets) with carved volutes on the second floor. Archival photographs [4] indicate that one of the two balconies on the first floor is a later addition and included the conversion of windows into balcony doors (Figure 8b). This supports the west facade (which is believed to be the principal one) of the two facades towards the port and is crowned by a pediment in the roof, shaped along symmetrical axes (similar to the second main facade to the south), with a plain style of repeated openings. The four-sided tile roof is concealed by an attikon- which refers to a low wall on the roof above the entablature of the facade in neoclassical architecture [13]- enclosing it and allowing only the end of the auxiliary stairway and the laundry room on the roof to project. From archival photographs [4], it appears the openings of the ground floor have undergone changes to height and use (doors which have been converted to windows), with the original form depicted in the two openings on the left of the main facade. Except for the doors, these openings featured solid panel shutters, which also covered the skylights. These facades were designed with pilasters (plastered) and Corinthian ceramic capitals on the second floor, used on a smaller scale to frame the wooden windows and feature an entablature with a projecting horizontal crown [7]. Some of these plastic elements are also noted in Symi’s urban neoclassical buildings, as well as in the urban neoclassical buildings of the Dodecanese during the same period. By the end of the 18th century, the neoclassical style had spread throughout the Ottoman Empire and was adapted by the prosperous Greek communities of the Dodecanese and combined with local architectural features [8].
On the first floor, artificial (rendered) cornerstones are used to highlight the division of the facade and simple arrangement of openings without frames. This is an approach which is not only due to the smaller height of the storey, but also to the practice of having the decorative elements feature more prominently on the upper floors of buildings, while the rest of the building is used as an “optical pedestal” for the style [7,8]. On the second floor, a window corresponding to a wall dividing the subsequent addition of bathrooms, has been filled in; however, its framing and decorative elements remain. Conversely, a pair of niches—windows (1st and 2nd floors)—on the Kanari Street facade were built originally in this form to preserve the order [6].
Ornate cast-iron railings are used on the balconies, except on the addition, where a built wall with balusters is used, as in the second building. This has been damaged and replaced [4].
The main stairway connecting the floors is of monumental size; it is articulated with wooden stringers and steps, accessible from the interior courtyard through a double panel door leading to a space with decorated pebble-paved flooring in black-and-white [14]. The decorative and functional elements of the space vary and include wall paintings, faux finishes resembling marble cladding, differentiated windows with cathedral-type diamond-shaped glass panes, a niche with a statue in the courtyard and a crystal clock, which did not survive, from the first floor to the ground floor, with oil lamps within the crystal frame to light the space [5]. Also not surviving is a conservatory on the first floor (Figure 8a) which was accessed through the main stairway [3] and corresponded to a projecting building mass, currently a balcony. The conservatory appears in an archival photograph surrounded by colored glass panes and covered by a dual-pitched tin roof [4].
The first and second floors are arranged in an identical three-section floor plan in the main areas, with a slight variation in the layout of the auxiliary spaces at the sides, which include a kitchen and bathrooms (Figure 4). The entryways are in the usual configuration with the monumental circular stairway ending in a symmetrical arrangement of the entrance hall, with lateral rooms and a central reception area, with corresponding rooms at the sides [7]. As such, there is evidence of four side rooms on the first floor, the largest of which was used seasonally by the parents. The main reception area functioned as a formal dining room, where important figures of the period, such as Greece’s Prime Minister, Harilaos Trikoupis, were entertained [5]. This space was joined to one of the spaces at the side during a conversion of unknown date. Two rooms on the first floor were used as auxiliary spaces—a dance school and a classroom for the children of the family—while on the second floor, the same room served the kitchen, where a chimney (hood) above the cooking area is visible [3]. The bathroom area was added later, during the 1950s. The auxiliary spaces that form a leg of the “L” shape, were on three levels, instead of two, and were accessed via a small circular stairway which runs through the building from the courtyard to the roof [6], where the wash house was located with a stove for heating water for laundry.
On the second floor, following the same layout, the main reception area was the drawing room for official functions, while the room communicating with the kitchen served as the less formal dining area. As such, three more bedrooms are apparent. This floor, because it was heated with a stove and stovepipes, was where the entire family stayed in winter. The room on the roof was apparently in regular use later [3].
The second floor is the most decorated (the first floor does not have any decorative elements), with wall paintings and painted ceilings, as well as built-in oak furniture in plain forms for storage. Reference has already been made to the fact that the decorative paintings were made by Florentine artists [5]. However, the general identification of prototypes imported from abroad, which relies on a commonplace interpretation and classification of the neoclassical styles in Greece, cannot interpret the variety and forms of a multifaceted phenomenon. Philippidis (1998:71) [14] notes that in the Aegean region, in the Dodecanese and specifically Symi, there is a discernible local classicism with clear-cut features, which is not, however, evident in the construction of the building under study. What can be noted with some certainty is the similarity of the decorative items, such as the pebbled paving on the entryway floor and the painted images on the second floor, particularly relative to the palette of colors and motifs used.
According to these documentation findings the application of the architectural tradition of Symi and especially the aesthetic of neoclassical decoration and morphology have been particularly well developed and applied to Aegina.
The interior spaces of the upper stories and the shell with the design of the facades of the main building were designated a work of art in accordance with the provisions of Law 5351/1932 and 1469/50 by decision no. Γ/46024/2062/10.09.1982 of Minister of Culture and Sciences, Melina Merkouri (Government Gazette 999/B/09.12.1982) [15].

3. Wall Paintings and Ceiling Decoration

3.1. Description

The decoration of the second floor of the Voyatzis estate can be divided into three different categories. The first refers to the secondary areas of the house that only members of the family or servants may access, such as rooms turned into bedrooms. The second is about the primary rooms where visitors may come, such as the entrance hall/corridor and the main reception room. The third refers to the decoration of the ceiling.
Secondary areas of the floor, even though they can be accessed by doors through the primary areas, bear no specific decoration on the walls. The walls are painted with a dark blue greyish color, uniform throughout the rooms. However, this is not the case with areas meant to be visited or exposed to people other than the family or staff. These areas comprise of the wide space at the end of the staircase leading from the ground floor to the second floor, the entrance hall and the main reception room. Wall decoration begins as early as the walls of the staircase and the stairhead on the second floor. These walls are covered with an imitation of big sized rectangle marble stone faux finish. This type of decoration is often found in neoclassical buildings of the time in Greece [16]. Usually, the imitation consisted of continuous frames on a dark background, in tones of beige, red (Rosso Antico), sienna and dark green, executed in such a way so as to give the impression of a polished marble. Continuing to the entrance hall, the lower part of the walls bears false marble tablets as well, in grey-black and dark red colors, each of them surrounded by a whitish frame. The upper part of the walls is decorated by a simple double frame made of stripes. Within this frame, a decorative repeated motif of leaves is painted with both of its sides surrounded by red and grey stripes. This decoration covers all the height of the wall up to ceiling, where it meets the ceiling decoration.
In the main reception room (Figure 9 and Figure 10), the wall painting decoration covers the bottom of the walls up to a height of 1.5 m. The painting can be divided into four distinct zones. The lower zone depicts a painted representation of marble tablets in grey-black and dark red colors, each of them surrounded by a whitish frame, similar to the ones observed in the entrance hall of this floor. On their top, the faux marble plaques are adorned with gold painted plant decoration. They are both laid on a light grey background. The second zone, above the plant decoration, includes only garnished horizontal stripes. The third zone consists of plant decoration namely single red and white alternating roses above which there is a more elaborate green leaf with red roses synthesis. Finally, a vivid blue with a brown and yellow pointy crown shaped top delimits the wall painting. The rest of the wall up to the ceiling is painted in a gray tone.
Regarding the ceiling decoration, it must be noted that all ceilings are decorated, no matter if they belong to primary or secondary areas of the house. However, the ceiling decoration of the main reception room is richer, more elaborate and more luxurious compared to the others, therefore it will be dealt with separately. The ceiling of all the other rooms is painted with roses and/or plant decoration, with marble strips, giving out the sense of relief. As the main reception area comprises two rooms, both of them have the same ceiling decoration (Figure 11 and Figure 12). This can be divided in at least four different zones. The outer zone includes roughly 30cm of the upper part of the wall, which merges to the ceiling in a curved inner bas-relief painting. The second part is composed of straight-lined plant decoration divided into sections by marble-like roses. The inner part of the ceiling consists of an octahedron. Its outer ring bears the faces of ancient men alternating with flower bouquets, while the inner painting comprises a detailed plant-shaped marble relief.
Of special significance is the category of ceiling paintings where square, octagonal and circular panels were depicted (Figure 13, Figure 14, Figure 15 and Figure 16), usually with a central star, rose or other decorative pattern painted on a bright background according to the ancient standard, something that we find in vestibule stairwells in galleries and loggias [17]. Furthermore, simple rooms were usually decorated with a central rosette surrounded by symmetrical arrangements with thin floral garlands. The margins were decorated with similar shapes with helical stems and flowers that had a specific axial relation to the central theme.

3.2. The Style of the Painting Decoration

The decoration described above is a typical example of wall decoration and ceiling paintings created by Italian and Greek master painters and artisans in the heyday of classicism [6]. Indeed, their works are distinguished by the very precise application of the design and the high quality of the colorings. The decoration in general, may have been standard, copies, with stencils and stamps -carved wooden stamps for wall-paintings were also used in Symi [18]- and even designs through catalogs with pre-designed patterns as well as template guides that easily transferred the reproduction of repetitive elements [15,16,19]. The themes generally developed in floral and geometric patterns in a variety of hues, degradations and stylistic designs with geometric patterns of roses, curves, straight and zigzag lines, meandering twists and turns [15].
Apart from the architectural documentation that give evidence that Voyatzis transferred the aesthetics of the neoclassical houses of Symi to Aegina, it seems that he also transferred the cosmopolitan mentality of the island’s residents.
The contact of the Symian merchants with the big urban centers at the end of the 19th century and the first half of the 20th century, such as Syros, Genoa, Konstantinople, Izmir, Trieste, Alexandria, Paris, London and Brussels brought the Symians in contact with new images, and ideas and new ways of life, so the effects from European neoclassical architecture are clear. The Symians devoted much of their money from trade and the sea to building their own homes, which thus projected personal and family prestige [1,19]. This can be seen in the way the interiors of these buildings are decorated. In addition to the expensive furniture and wood-carved elements of the spaces, the colors and paintings on the walls and ceilings present expressions of high aesthetic perfection and symbolism [19]. So, ceilings completely covered by painting can be seen, while it is not usual for the walls to be covered. The ceiling was usually wooden and at the top of the walls there was a narrow-painted frieze with anthems and other decorative elements. The variety of themes is also important as the artists were inspired by Greek history, ancient and modern, by mythology and nature [18]. The coffered ceilings were decorated with designs such as anthems, rosettes and other plant decorations that can usually be found in rooms, hallways and utility rooms, which are evidently similar to those found in the Voyatzis mansion (Figure 17 and Figure 18).

3.3. Technology and Construction

The support of the roof paintings are the wooden laths that constitute the bagdati construction [20,21] (Figure 19). This element becomes apparent at first glance as both in the ceiling painting of the central reception area and in the ceiling painting of the bedroom, parts of the ceiling paintings have collapsed, most likely due to the humidity, as a result of which the wooden beams that characterize the bagdati are visible.
This construction method is used in the period of neoclassicism [20,21]. According to this method, this is a construction made of wooden beams, which have a small cross-section and are fixed on top of square beams, also of a small cross-section. They are usually 50cm apart [20,21]. All this timber construction, which is usually made of hewn spruce wood, is fixed to the roof beams that are a large cross-section and are usually about 1m apart [20,21]. Short boards are placed on the bars in order to fill the gaps between the beams, thus creating the so-called false floor. Finally, for the best sound and thermal insulation of the floor, a layer of mortar reinforced with lime and hair or straw is applied to the entire surface, for the best sound and thermal insulation of the floor. On the wooden substrate were placed three successive layers of lime mortar in different thickness and texture (fine-grained ~2mm, coarse-grained ~3 mm and fine-grained ~2mm) to eliminate structural irregularities of the roof surface and to form the solid, smooth, clean and appropriately textured substrate.
The technique employed for the painting decoration during the neoclassical period is usually the technique of secco. The term secco means a group of wall painting techniques, performed on dry plaster or lime and where the pigments are fixed by the binder with which they are mixed before being applied to the wall. Typically, the technique involves painting with lime, which is created by applying a mixture of pigments mixed with a solution of lime on a dry background, which had already previously been moistened in order to strengthen its support in the masonry.
Wall painters did not use commercial products, but prepared their own paint, grinding dry pigment in a mortar—or later, a paint mill—and mixing it with any number of possible mediums. Skimmed milk, glue, egg and ale were popular binders. The earth pigments, raw and burnt umber, raw and burnt sienna, and yellow and red ochre were readily dug from the soil as clay and washed free from impurities with water. For the wall painting, the raw colors could be mixed immediately with a binder [22,23,24].

4. Applied Methodology

In order to investigate the key hypothesis from the point of view of the physicochemical data concerning the characterization of the technique and the painting materials, in this preliminary stage of the research, emphasis was given to nondestructive noninvasive imaging techniques. The documentation of the surfaces of both walls and the ceiling, apart from classical visible photography and macrophotography, included the recording of images in the visible and near-infrared band of the spectrum using in situ hyperspectral imaging and SWIR infrared reflectography and thermography. Ultraviolet induced imaging was ruled out because it requires absolute darkness, which in the case of the mansion could not be achieved.
Multispectral (MSI) and hyperspectral imaging (HSI), both called spectral imaging (SI), is a spectral sensing technique in which an image of the object is recorded using several well-defined optical bands in the visible and near-infrared spectrum (400–1000nm). During last two decades, the methods have been applied to numerous applications including art conservation and archeology [25,26] for surface inspection and materials identification.
Hyperspectral imaging samples a wider variety of bandwidths in the region of 400–1000 nm compared to multispectral imaging. This allows material identification on the basis of their unique spectral absorbance and reflection behavior in specific wavelengths. Furthermore, as the wavelengths move from visible to the near-infrared region, more penetrating ability is achieved, and one can usually have a glimpse of the stratigraphy or the state underneath the surface. Thus, hyperspectral imaging can provide a rich dataset, detect objects of interest invisible to human eye [27] and allow materials’ identification, according to the specific conditions and the set up.
Another important function of the hyperspectral camera is the image recording in the false color infrared mode (FCIR). Based on the tristimulus theory, instead of recording the usual three channels red, green and blue, this mode inputs green, red and infrared radiation and channels the output as red, green and blue [28]. As this image contains information of both the visible and the near infrared, the produced colors, called infrared false colors, are quite different from the true colors observed in the visible. The false colors are indicative of the behavior of the material, such as the pigments, in the infrared and can thus help formulate a documented argument about the chemical composition [28].
Short wave infrared (SWIR) imaging usually employs indium gallium arsenide (InGaAs) sensors at the range 900–1700 nm [29]. This detector reaches further in the infrared region than the hyperspectral camera and can facilitate higher levels of penetrating ability concerning the stratigraphy of colored surfaces. Therefore, it is highly employed in cases where it is important to search for the underdrawing, the initial sketching of a painting or the pentimenti of the artist [30]. However, in this case, there is not the possibility of using specific wavelengths as in hyperspectral imaging, but the image recording covers the whole spectrum range simultaneously.
Hyperspectral imaging was carried out by a MuSIS™ camera. Tungsten lights, which produce a continuous emission in both visible and near-infrared wavelengths, were placed symmetrically in regard to the walls. A photographic slider was used to ensure even and smooth movement of the camera in the horizontal axis.
Due to the extent of both wall and ceiling decoration and the ownership status it was decided to focus on the study of specific areas which were representative, as much as possible, of the observed style and the color variety. Therefore, part of the wall of the entrance hall/corridor, an entire wall within the main reception room and one of the two similar ceilings in the reception room. The areas selected were scanned in a grid of a 20 × 20 cm window. Images in specific wavelengths were acquired, namely in 420 nm, 500 nm, 600 nm, 700 nm and 1000 nm. The choice of wavelengths was based on the proximity to ultraviolet boundaries (420 nm), color bands in visible 500 nm and 600 nm, which are around the maximum sensitivity of human eye (555 nm), boundaries to the infrared (700 nm) and near-infrared area (1000 nm). False color infrared (FCIR) images were also acquired in selected areas so as to cover the entire color palette. In addition, an Allied Vision Goldeye Coolpix SWIR thermographic camera was employed to investigate the colored layers up to 1700 nm. As the detector of this camera functions in a range of 900–1700 nm, well within the near-infrared region, it can record the behavior of the pigments without any influence of the visible band. To facilitate the mapping of the grey levels, a pseudo color mode can be used which helps to focus on the information of interest. The same light setup used for the hyperspectral imaging shoots was employed.
Visible photography was carried out with a Nikon D800 camera fitted with a Nikon AF-S NIKKOR 24–70 mm f/2.8G ED lens. The same lights used for the hyperspectral imaging shoots were employed, as well as the photographic slider.

5. Results and Discussion

5.1. Preservation State

The visual inspection of the painting decoration showed that it is in rather good condition. However, in several areas, both wall and ceiling decorations suffer from damage which are due to the condition of the substrate because of humidity phenomena, rather than the condition of the painting itself which seems to be very well preserved. On one side of the main reception room, the state is so poor that scaffolding was fixed so as to support the ceiling and its materials from collapsing.
Carefully worked wall paintings, with vivid and good quality colors are kept either intact or in very good condition and “without cracks” [31]. Their good condition is due to the fact that the construction of the buildings was very careful, the walls are solidly built and the mortars are well worked and with the appropriate composition, thus significantly reduces the effect of humidity, one of the main factors for causing damage to the painting surface of the wall paintings.

5.2. Material Identification and Painting Technique

Visual observation of the wall paintings showed that the color emits a subjective sense of being in the top layer in contrast to the mix within the ground layer indicating the use of the secco technique. The fact that by the late 19th century the vast majority of wall paintings were executed by the secco technique strongly supports this assumption. However, sampling and further analysis should be carried out to support this assumption with chemical evidence.
The recording of the images in true and false colour mode (Figure 20) has given many interesting results regarding the nature of the pigments employed by the artist as well as the painting technique. The main hues used were yellow, red, brown, green and blue, but not in clear form, rather in admixtures with white or black or some other color. The colors are very well mixed. The surface of the background is fine grained and smooth, the brushstroke not being distinguishable. The relief of the preparation can be distinguished at 1000nm due the penetrating ability of the infrared, by both MuSIS and SWIR. Tone differentiations are better distinguished in FCIR rather than in the visible.
The comparison of the false color infrared images showed that the artist used two different blue pigments for the wall paintings. The blue pigment employed for the roses’ internal ring and the crown filling shows a bright red false color, while the intense blue of the background produces a black greyish false color. According to the hue in the visible, blues may be artificial ultramarine (Na6–10Al6Si6O24S2–4), the rather expensive cobalt blue (CoO·Al2O3) or indigo, a dye produced by indigofera tinctoria, which gives indigotin (2,2′-Bis(2,3-dihydro-3- oxoindolyliden) as a dyeing substance [32,33,34,35]. Indigo, even though an organic compound, has been used in wall decorations [33,34,35]. Artificial ultramarine, which began to be produced industrially after 1830 [33], is also one of the most widespread artificial blue pigments found in murals, paintings and manuscripts; while in Greece it has been used, among others, for the painting of walls with lime paints, according to the traditional technique [33,34,35]. It must be noted that cobalt blue was considered a rather expensive pigment. All three of the aforementioned blue pigments produce a reddish false color [28,36]. However, the intense red false color the cobalt blue presents [28], compared to that of the ultramarine [36], is more similar to the one the wall painting presents (Figure 19). The bluish color, which can be found in the background of the roses, recorded by a grayish false color, which excludes the use of cobalt blue, indigo or ultramarine blue.
The brown pigment of the stripes and garland is the same as the one used for the rose (Figure 20). It is recorded by an olive false color, which suggests the use of earth pigments and especially burnt sienna, perhaps in admixture with a white pigment depending on the tone the artist wanted to express [22,28].
In all areas with a white hue, such as in the leaves, the brush stroke is clearly depicted in both FCIR and SWIR images; color layer is not uniform either. Judging from the transparency it presents, it is assumed that the white pigment could be lime (CaCO3), as lead white (2PbCO3·Pb(OH)2) gives out the feeling of impasto.
As far as green color tones are concerned, they present a purple false color (Figure 9). Terra verde (Fe, Mg, Al, K, hydrosilicate), which presents a similar green tone in the visible [28], is recorded as greyish false color, while chrome oxide green (Cr2O3) presents a purple false color [28]. Historically, chrome oxide green could have been used, because its use appeared as an artist’s pigment around 1862 [37]. Another suggestion might be the mixture of blue and yellow pigments. Further analysis should be carried out to verify these assumptions.
Yellow areas could have been executed with yellow ochres, as they present the typical green-olive false color [28] (Figure 20).
In the faux marbles in the reception room, the red turns into a yellow-olive false color, which indicates the presence of iron oxide pigments [28]. In the hallway, the orangey red presents a bright yellow false color (Figure 21) which suggests the use of either minium (Pb3O4) or artificial vermillion (art. HgS) [28]. However, since minium has not been widely used in wall paintings [37,38] and the fact that it has a slightly more orangey tone than vermillion, it might indicate the use of the latter.
Furthermore, it is worth noting that in the wall decoration of the hallway area, the gray lines observed in the visible become gray in false color infrared, which could indicate that they were made of a mixture of black and white pigment. However, the gray background presents a pinkish false color, and this might indicate the addition of a blue pigment in the mixture, probably cobalt blue.
Comparing the images of the wall paintings at 420 nm and 1000 nm as well as in false color infrared mode, the paintings in the main reception room appear free from a preliminary sketch or guidelines. At 1000 nm, the brush strokes can be easily observed and appreciated, as every single one can be distinguished. It is a painting created by hand, without any external use such as a stencil. Moreover, no underdrawings could be observed even with the SWIR camera that extends up to 1700 nm. To further investigate the artist’s technique, raking light illumination was employed. Images at 500 nm, 700 nm and 1000 nm were acquired (Figure 22) and enabled the distinction of the relief caused by the brushstrokes. While in the visible, the background looks uniform, examination with the SWIR camera revealed brush strokes and highlighted the existence of the shadow under the roses (Figure 23). It should be reminded that pseudo colors in this case depict different tones of grey.
On the contrary, in the corridor/entrance hall, the stripes that form the frames were carried out on guidelines that can be observed at 1000 nm (Figure 24) and in the SWIR images because of the penetrating ability of the infrared radiation. Furthermore, in the infrared images, the floral motifs present a waterfront at their edges, which could indicate that they were painted using a stencil. There is a possibility of the use of carved wooden stamps, but they usually had more detailed sketches, which is not the case here.
In the reception room, the painting seems more solid, while in the corridor it looks more fluid. This might have happened because of the different style of execution of the wall paintings, which might relate to the existence of two different artists who painted the walls.

6. Conclusions

The key hypothesis of this study refers to the aesthetic of Symi’s neoclassical architecture, decoration and morphology associated with Venetian influence and techniques that has been particularly well developed on the island and probably transferred to Aegina during Konstantinos Voyatzis emigration. Based on the documentation and the comparison of the decoration found in neoclassical houses in Symi and the decoration in the Voyatzis mansion, we assume that Konstantinos Voyatzis, aside from his business activities, also transferred and used the aesthetic, the neoclassical style, the application techniques and artists—perhaps even materials they brought with them—to bring the traditions of his birthplace, Symi, to Aegina. This assumption was supported by the architectural documentation and the findings of the imaging techniques, which showed, apart from the secco method, the use of traditional pigments for the wall paintings, such as cobalt blue, brown, red and yellow earth pigments, sometimes in admixture with white, chrome oxide green and black as well as the use of guidelines and stencil in the case of the hallway.

Author Contributions

Conceptualization, A.G.A. and Z.G.; methodology, A.G.A. and Z.G.; validation, A.G.A., Z.G. and A.A.K.; formal analysis, A.A.K.; investigation, A.G.A., Z.G. and A.A.K.; resources, A.G.A., Z.G. and P.I.; data curation, A.A.K. and P.I.; writing—original draft preparation, A.G.A., Z.G. and A.A.K.; writing—review and editing, A.G.A., Z.G. and A.A.K.; visualization, P.I.; supervision, all; project administration, all. All authors have read and agreed to the published version of the manuscript.

Funding

This research received no external funding.

Institutional Review Board Statement

Not applicable.

Informed Consent Statement

Not applicable.

Data Availability Statement

Restrictions apply to the availability of archival material and architectural plans. Data was obtained from M. Voyatzis and Jacotey-Voyiatzis, Architectes Associés and are only available for this article.

Acknowledgments

Permission to use the Dimitrios Moraitis Photographic Archive was granted by Mrs. Margarita Moraitis-Voyatzis. Permission to use the Jacotey-Voyiatzis, Architectes Associés architectural plans was granted by Mrs. Christine Voyatzis. Permission to re-publish the photographs from source [19] Symi; Apostolopolos, N., Ed; New Media Art: Athens, Greece, 2008 was granted by Mr. Nick Apostolopoulos and Dr. Nikitas Chiotinis.

Conflicts of Interest

The authors declare no conflict of interest.

References

  1. Topouzis, G. Symi, Nireus’ Island: History of symi from the Mythical Years to Incorporation; Self-Publication: Rhodes, Greece, 1950; pp. 12–20. (In Greek) [Google Scholar]
  2. Georgas, E. Study of Sponges and Sponge Fishing; Self-Publication: Piraeus, Greece, 1937; pp. 18–35. (In Greek) [Google Scholar]
  3. Oral testimony and archived documents of Margarita Voyatzi, granddaughter of Konstantinos and Aida Luisa.
  4. Voyatzi, M. Photographic Archives of Dimitrios Moraitis.
  5. Oral testimony of Sylvia Voyatzi (1985–1986), daughter of Konstantinos and Aida Luisa.
  6. Jacotey-Voyatzis Architectes Associès architectural firm, Christina Voyatzi, great-granddaughter of Konstantinos and Aida Louisa. Plotting of Current State, 2004.
  7. Biris, M. Athenian Architecture, 1875–1925; Melissa: Athens, Greece, 2003; pp. 50–110. (In Greek) [Google Scholar]
  8. Biris, M.; Adami-Kardamitsi, M. Neoclassical Architecture in Greece; Melissa: Athens, Greece, 2001; pp. 15–102. (In Greek) [Google Scholar]
  9. Philippidis, D. Modern Greek Architecture; Melissa: Athens, Greece, 1984; pp. 65–98. (In Greek) [Google Scholar]
  10. Government Gazette 1007/D/02.10.1992 “Listing of 34 Buildings located within the Street Plan of the Municipality of Aegina (Prefecture of Attica) as Historical Buildings and Determination of Special Terms and Conditions for Construction”; Ministry for the Environment, Physical Planning and Public Works: Athens, Greece, 1992.
  11. Explanatory Report by the Piraeus Directorate for Urban Planning re: “Listing of 34 Buildings along the Port of Aegina Front as Historical” Oικ/101397/13280/04.12.91; Ministry for the Environment, Physical Planning and Public Works: Athens, Greece, 1991.
  12. Chandler, R. Voyages dans l’ Asie Mineure et en Grèce: Faits aux Depends de la Société des Dilettanti, dans les Années 1764–1765 et 1766; (In French). Chez Arthus- Bernard Librairie: Paris, France, 1806; pp. 302–304. [Google Scholar]
  13. Bouras, C.; Philippidis, D. (Eds.) Architecture; Melissa: Athens, Greece, 2013; p. 45. (In Greek) [Google Scholar]
  14. Philippidis, D. Decorative Arts: Three Centuries of Art in Greek Architecture; Melissa: Athens, Greece, 1998; pp. 104–108, 144–147, 271–275. (In Greek) [Google Scholar]
  15. Government Gazette 999/B/09.12.1982. “Designation of Building at 1 Kanari Str. on the Aegina Waterfront, Owned by A. and S. Voyatzis, as a Work of Art”; Ministry of Culture: Athens, Greece, 1982.
  16. Harwood, B. Stencilling: Interior Architectural Ornamentation. A Look at 1870–1930 with examples from Texas. J. Int. Des. 1986, 12, 31–40. [Google Scholar] [CrossRef]
  17. Georgiadou, Z. Constructive and Decorative Materials; Tziolas: Thessaloniki, Greece, 2021; pp. 520–521. (In Greek) [Google Scholar]
  18. Chiotinis, N.; Xanthis, S.; Chiotinis, M. The Architecture of Symi. In Symi; Apostolopolos, N., Ed.; New Media Art: Athens, Greece, 2008; pp. 111–162. (In Greek) [Google Scholar]
  19. Tseva, I. Decorative and Architectural Details of Neoclassical Houses of Piraeus. Available online: https://tseva.webnode.com/news/διακοσμητικές-και-αρχιτεκτονικές-λεπτομέρε/ (accessed on 3 June 2021). (In Greek).
  20. Talbott, P. Classical Savannah; Fine and Decorative Arts 1800–1840; Telfair Museum of Art: Savannah, GA, USA, 1998; p. 6. [Google Scholar]
  21. Thanopoulos, N. The Athenian Monumental Buildings of the 19th and Early 20th Century with Investigation of the Construction and Static Methodology (1834–1916). Ph.D. Thesis, School of Architect Engineers, National Technical University of Athens, Athens, Greece, 2004. (In Greek). [Google Scholar]
  22. Nomikos, M. Restoration, Reuse of Historic Buildings and Ensembles. Methodology-Applications; Giagoudi-Giapouli: Thessaloniki, Greece, 2004; pp. 92–102. (In Greek) [Google Scholar]
  23. Coffin, M. Borders and Scrolls, Early American Brush-Stroke Wall paintings 1790–1820; Albany Institute of History of Art: New York, NY, USA, 1986; p. 7. [Google Scholar]
  24. Nikolakos, C. Investigation of Conservation and Restoration Treatments of Ceiling Paintings of a Neoclassical Building. Ph.D. Thesis, Department of Civil Engineering, ATEI of Pireus, Egaleo, Greece, 2006. Available online: https://www.prooptiki-insurance.gr/wp-content/uploads/Acrobat/ptyxiaki.pdf (accessed on 3 June 2021). (In Greek).
  25. Kalantzidou, K. Study of Conservation and Restoration of Ceiling Paintings and Wall Paintings of the Neoclassical Buildinsg “Oikia Prassakaki” in Syros. Ph.D. Thesis, Department for Conservation of Antiqities and Works of Art, TEI of Athens, Athens, Greece, 2006. (In Greek). [Google Scholar]
  26. Fisher, C.; Kakoulli, I. Multispectral and Hyperspectral Imaging Technologies in Conservation: Current Research and Potential Applications. Rev. Conserv. 2006, 7, 3–16. [Google Scholar] [CrossRef]
  27. Liang, H. Advances in Multispectral and Hyperspectral Imaging for Archaeology and Art Conservation. Appl. Phys. A 2012, 106, 309–323. [Google Scholar] [CrossRef] [Green Version]
  28. Land, E.H.; McCann, J.J. Lightness and Retinex theory. J. Opt. Soc. Am. 1971, 61, 1–11. [Google Scholar] [CrossRef] [PubMed]
  29. Moon, T.; Schilling, M.R.; Thirkettle, S. A Note on the Use of False-Color Infrared Photography in Conservation. Stud. Cons. 1992, 37, 42. [Google Scholar] [CrossRef]
  30. Mercuri, F.; Zammit, U.; Orazi, N. Active infrared thermography applied to the investigation of art and historic artefacts. J. Therm. Anal. Calorim. 2011, 104, 475–485. [Google Scholar] [CrossRef]
  31. Alexopoulou, A.; Kaminari, A.; Moutsatsou, A. Multispectral and Hyperspectral Studies on Greek Monuments, Archaeological Objects and Paintings on different Substrates. Achievements and Limitations. In Proceedings of the International Conference on Transdisciplinary Multispectral Modeling and Cooperation for the Preservation of Cultural Heritage, TMM_CH 2018, Athens, Greece, 10–13 October 2018; Springer, Communications in Computer and Information Science; Springer: Berlin/Heidelberg, Germany, 2018; pp. 443–461. [Google Scholar]
  32. Kokkou, A.; Travlos, I. Ermoupolis—The Creation of a New City in Syros in the Beginning of the 19th Century; Emporiki Trapeza: Athens, Greece, 1984. (In Greek) [Google Scholar]
  33. Mayer, R. The Artist’s Handbook of Materials and Techniques; Viking: New York, NY, USA, 1991; p. 47. [Google Scholar]
  34. Eastaugh, N.; Walsh, V.; Chaplin, T.; Siddall, R. The Pigment. Compendium: Optical Microscopy of Historical Pigments; Butterworth-Heinemann: Oxford, UK, 2004. [Google Scholar] [CrossRef]
  35. Merkaj, E.; Civici, N. Micro-XRF Investigation of Decoration Materials and Painting Techniques in Three 18th–19th Century Mosques in Berat, Albania. J. Mat. Sci. Chem. Eng. 2019, 7, 1–15. [Google Scholar] [CrossRef] [Green Version]
  36. Alexopoulou, A.; Tziamourani, E.; Karabotsos, A. The Color Decoration of the Rodakis Hose in Mesagros, Aegina. Study of the Stratigraphy and Materials. Available online: https://www.archaiologia.gr/blog (accessed on 3 June 2021). (In Greek).
  37. Pigments through the Ages. Available online: http://www.webexhibits.org/pigments/ (accessed on 3 June 2021).
  38. Gettens, R.; Stout, G. Painting Materials—A Short Encyclopaedia; Dover: New York, NY, USA, 1966; p. 153. [Google Scholar]
Figure 1. Building A (pre-existing single-storey) appears at the left part of the photograph, the three-storey main building B appears at the right part of the photograph and the building C at the left part, which consists of the first floor as an extension of the original building A and a two-storey part in the middle. Archival photograph, around 1890. In Dimitrios Moraitis’ archives. © Ref. [4].
Figure 1. Building A (pre-existing single-storey) appears at the left part of the photograph, the three-storey main building B appears at the right part of the photograph and the building C at the left part, which consists of the first floor as an extension of the original building A and a two-storey part in the middle. Archival photograph, around 1890. In Dimitrios Moraitis’ archives. © Ref. [4].
Heritage 04 00200 g001
Figure 2. Archival postcard: the reference date (1882–15) seems to be false as the port configuration and the building’s data, as well as the people’s dressing style, indicate a period between 1920–1930. In Dimitrios Moraitis’ archives. © Ref. [4].
Figure 2. Archival postcard: the reference date (1882–15) seems to be false as the port configuration and the building’s data, as well as the people’s dressing style, indicate a period between 1920–1930. In Dimitrios Moraitis’ archives. © Ref. [4].
Heritage 04 00200 g002
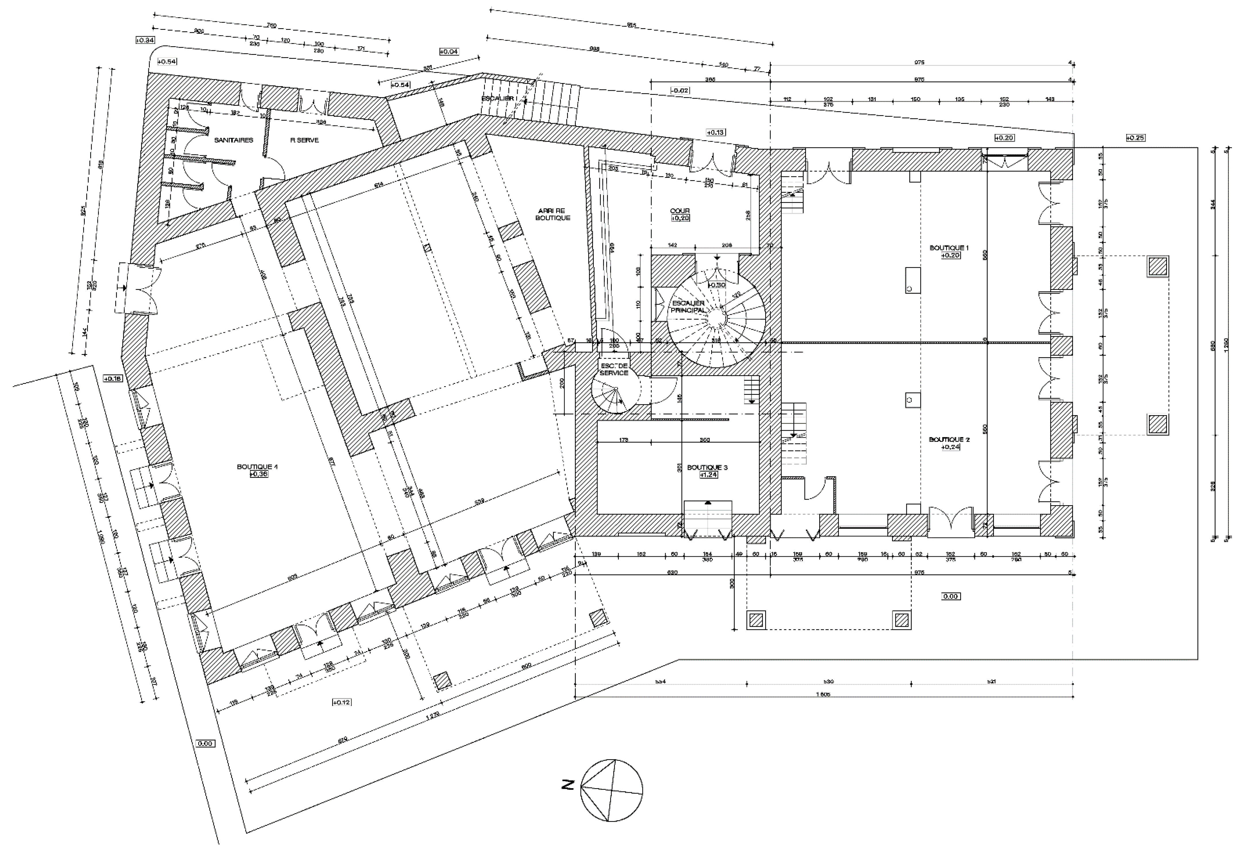
Figure 3. Plan of the complex: ground floor. Buildings A and C (left), building B (right). By the Architectural Office “Jacotey-Voyiatzis, Architectes Associés” (2004). © Ref. [6].
Figure 3. Plan of the complex: ground floor. Buildings A and C (left), building B (right). By the Architectural Office “Jacotey-Voyiatzis, Architectes Associés” (2004). © Ref. [6].
Heritage 04 00200 g003
Figure 4. Plan of the complex: 2nd floor. Building C (roof-top left) and building B (right). By the Architectural Office “Jacotey-Voyiatzis, Architectes Associés” (2004). © Ref. [6].
Figure 4. Plan of the complex: 2nd floor. Building C (roof-top left) and building B (right). By the Architectural Office “Jacotey-Voyiatzis, Architectes Associés” (2004). © Ref. [6].
Heritage 04 00200 g004
Figure 5. South (right) and north (left) facades—Dimokratias Avenue—port and Kanari street. Source: Architectural Office “Jacotey-Voyiatzis, Architectes Associés” (2004). © Ref. [6].
Figure 5. South (right) and north (left) facades—Dimokratias Avenue—port and Kanari street. Source: Architectural Office “Jacotey-Voyiatzis, Architectes Associés” (2004). © Ref. [6].
Heritage 04 00200 g005
Figure 6. East façade—Irioti str. Source: Architectural Office “Jacotey-Voyiatzis, Architectes Associés” (2004). © Ref. [6].
Figure 6. East façade—Irioti str. Source: Architectural Office “Jacotey-Voyiatzis, Architectes Associés” (2004). © Ref. [6].
Heritage 04 00200 g006
Figure 7. West facade Dimokratias Avenue—port. Source: Architectural Office “Jacotey-Voyiatzis, Architectes Associés” (2004). © Ref. [6].
Figure 7. West facade Dimokratias Avenue—port. Source: Architectural Office “Jacotey-Voyiatzis, Architectes Associés” (2004). © Ref. [6].
Heritage 04 00200 g007
Figure 8. The additional balcony with balusters (b). Archival photograph around 1905–1907. The conservatory of the first floor (a) Kanari str. Archival photograph around 1962–1967. Both in Dimitrios Moraitis’ archives. © Ref. [4].
Figure 8. The additional balcony with balusters (b). Archival photograph around 1905–1907. The conservatory of the first floor (a) Kanari str. Archival photograph around 1962–1967. Both in Dimitrios Moraitis’ archives. © Ref. [4].
Heritage 04 00200 g008
Figure 9. Wall paintings and furniture in the main reception room (a,b). Archival photographs around 1970–1975. Both in Dimitrios Moraitis’ archives. © Ref. [4].
Figure 9. Wall paintings and furniture in the main reception room (a,b). Archival photographs around 1970–1975. Both in Dimitrios Moraitis’ archives. © Ref. [4].
Heritage 04 00200 g009
Figure 10. Wall paintings in the main reception room. Photograph by Panagiotis Ilias ©.
Figure 10. Wall paintings in the main reception room. Photograph by Panagiotis Ilias ©.
Heritage 04 00200 g010
Figure 11. Ceiling paintings in the main reception room. Photograph by Panagiotis Ilias ©.
Figure 11. Ceiling paintings in the main reception room. Photograph by Panagiotis Ilias ©.
Heritage 04 00200 g011
Figure 12. Ceiling paintings in the second part of the main reception room (detail). Photograph by Panagiotis Ilias ©.
Figure 12. Ceiling paintings in the second part of the main reception room (detail). Photograph by Panagiotis Ilias ©.
Heritage 04 00200 g012
Figure 13. Ceiling paintings and stencil work in the walls of the corridor. Photograph by Panagiotis Ilias ©.
Figure 13. Ceiling paintings and stencil work in the walls of the corridor. Photograph by Panagiotis Ilias ©.
Heritage 04 00200 g013
Figure 14. Ceiling paintings in a bedroom. Photograph by Panagiotis Ilias ©.
Figure 14. Ceiling paintings in a bedroom. Photograph by Panagiotis Ilias ©.
Heritage 04 00200 g014
Figure 15. Ceiling paintings in the second bedroom. Photograph by Panagiotis Ilias ©.
Figure 15. Ceiling paintings in the second bedroom. Photograph by Panagiotis Ilias ©.
Heritage 04 00200 g015
Figure 16. Ceiling and wall paintings in the staircase. Photograph by Panagiotis Ilias ©.
Figure 16. Ceiling and wall paintings in the staircase. Photograph by Panagiotis Ilias ©.
Heritage 04 00200 g016
Figure 17. (a) Reception hall in Voyatzis mansion—the upper part of the walls and the ceiling decoration (detail). Photograph by Panagiotis Ilias © (b)The upper part of the walls and the ceiling decoration in a mansion in Symi. Source: [18] Chiotinis N, Xanthis S, Chiotinis M (2008). The Architecture of Symi. In: Apostolopoulos N (ed) Symi (in Greek). New Media Art, Athens, p. 136. ©.
Figure 17. (a) Reception hall in Voyatzis mansion—the upper part of the walls and the ceiling decoration (detail). Photograph by Panagiotis Ilias © (b)The upper part of the walls and the ceiling decoration in a mansion in Symi. Source: [18] Chiotinis N, Xanthis S, Chiotinis M (2008). The Architecture of Symi. In: Apostolopoulos N (ed) Symi (in Greek). New Media Art, Athens, p. 136. ©.
Heritage 04 00200 g017
Figure 18. Bedroom’s ceiling decoration in Voyatzis mansion, (a). Photograph by Panagiotis Ilias ©. Ceiling decoration in a mansion in Symi (b). Source: [18] Chiotinis N, Xanthis S, Chiotinis M (2008). The Architecture of Symi. In: Apostolopoulos N (ed) Symi (in Greek). New Media Art, Athens, p. 138. ©.
Figure 18. Bedroom’s ceiling decoration in Voyatzis mansion, (a). Photograph by Panagiotis Ilias ©. Ceiling decoration in a mansion in Symi (b). Source: [18] Chiotinis N, Xanthis S, Chiotinis M (2008). The Architecture of Symi. In: Apostolopoulos N (ed) Symi (in Greek). New Media Art, Athens, p. 138. ©.
Heritage 04 00200 g018
Figure 19. Ceiling paintings in the dining-room, where the bagdati construction is visible. Photograph by Panagiotis Ilias ©.
Figure 19. Ceiling paintings in the dining-room, where the bagdati construction is visible. Photograph by Panagiotis Ilias ©.
Heritage 04 00200 g019
Figure 20. Detail of the wall painting in the main reception room in the visible (a) and FCIR (b). Photograph by ARTICON Lab ©.
Figure 20. Detail of the wall painting in the main reception room in the visible (a) and FCIR (b). Photograph by ARTICON Lab ©.
Heritage 04 00200 g020
Figure 21. Detail of the wall painting in the hallway in the visible (a) and FCIR (b). Photograph by ARTICON Lab ©.
Figure 21. Detail of the wall painting in the hallway in the visible (a) and FCIR (b). Photograph by ARTICON Lab ©.
Heritage 04 00200 g021
Figure 22. Details of the wall decoration in the main reception room in 500 nm (a) and 1000 nm (b). Photograph by ARTICON Lab ©.
Figure 22. Details of the wall decoration in the main reception room in 500 nm (a) and 1000 nm (b). Photograph by ARTICON Lab ©.
Heritage 04 00200 g022
Figure 23. Pseudo color image of the wall in the main reception room. Photograph by ARTICON Lab ©.
Figure 23. Pseudo color image of the wall in the main reception room. Photograph by ARTICON Lab ©.
Heritage 04 00200 g023
Figure 24. Detail of the wall painting in the hallway at 1000nm. Photograph by ARTICON Lab ©.
Figure 24. Detail of the wall painting in the hallway at 1000nm. Photograph by ARTICON Lab ©.
Heritage 04 00200 g024
Publisher’s Note: MDPI stays neutral with regard to jurisdictional claims in published maps and institutional affiliations.

Share and Cite

MDPI and ACS Style

Alexopoulou, A.G.; Georgiadou, Z.; Ilias, P.; Kaminari, A.A. The Voyatzis Mansion in Aegina, Greece: A Historical and Architectural Approach and Physicochemical Documentation of the Wall Painting Decoration. Heritage 2021, 4, 3630-3651. https://doi.org/10.3390/heritage4040200

AMA Style

Alexopoulou AG, Georgiadou Z, Ilias P, Kaminari AA. The Voyatzis Mansion in Aegina, Greece: A Historical and Architectural Approach and Physicochemical Documentation of the Wall Painting Decoration. Heritage. 2021; 4(4):3630-3651. https://doi.org/10.3390/heritage4040200

Chicago/Turabian Style

Alexopoulou, Athena Georgia, Zoe Georgiadou, Panagiotis Ilias, and Agathi Anthoula Kaminari. 2021. "The Voyatzis Mansion in Aegina, Greece: A Historical and Architectural Approach and Physicochemical Documentation of the Wall Painting Decoration" Heritage 4, no. 4: 3630-3651. https://doi.org/10.3390/heritage4040200

APA Style

Alexopoulou, A. G., Georgiadou, Z., Ilias, P., & Kaminari, A. A. (2021). The Voyatzis Mansion in Aegina, Greece: A Historical and Architectural Approach and Physicochemical Documentation of the Wall Painting Decoration. Heritage, 4(4), 3630-3651. https://doi.org/10.3390/heritage4040200

Article Metrics

Back to TopTop