Next Article in Journal
The Importance of Knowledge of Provenance for the Provenance of Knowledge: The Case of Traditional Costumes Collections in Greece
Previous Article in Journal
Village and Heritage in China: A Discussion on the Influence and Future of Heritage Work in Rural Areas
 
 
Font Type:
Arial Georgia Verdana
Font Size:
Aa Aa Aa
Line Spacing:
Column Width:
Background:
Review

Heritage Preservation Policy of Civil Servants Joint Stock Fund for Historical Buildings in Athens: The Deligiorgi Residence Case

by
Maria Margarita Vyzantiadou
1,* and
Panagiotis S. Gkiokas
2
1
Department of Traditional Settlements and Listed Buildings, Ministry of Interior (Sector of Macedonia-Trace), 54123 Thessaloniki, Greece
2
Technical Department of Civil Servants Joint Stock Fund, Hellenic Ministry of Labour and Social Security, 10551 Athens, Greece
*
Author to whom correspondence should be addressed.
Heritage 2019, 2(1), 681-707; https://doi.org/10.3390/heritage2010044
Submission received: 14 December 2018 / Revised: 1 February 2019 / Accepted: 14 February 2019 / Published: 19 February 2019

Abstract

:
The Civil Servants Joint Stock Fund (C.S.J.S.F.), since its establishment in 1867, has invested part of its funds in acquiring real estate properties during the interwar period in Greece. The real estate selection was a very significant process for the Fund’s administration, investing on buildings situated in the historic center of Athens and designed by well-known architects. The fund also initiated the restoration procedures in order to keep its real estate up to date with respect to their importance as milestones of Greek Culture. This paper presents a part of the Fund’s heritage preservation policy and its extensive protection, conservation, restoration, and rehabilitation program; referring briefly to the historical and architectural description of the five (C.S.J.S.F.) historical buildings, in addition to the conservation and restoration projects for one of them; the Deligiorgi Residence, which was designed by the architect Ernst Ziller. The restoration work underlines the ultimate need for heritage preservation, and the importance of being sensitive to the historical character of the buildings, thereby improving their economic status and contributing to the sustainable preservation of architectural and cultural heritage within historic cities.

1. Introduction

The Civil Servants Joint Stock Fund (C.S.J.S.F.)—following its investment policy—purchased, reconstructed, and expanded buildings situated in the historic center of Athens between 1926–1939. This area now entails the most important part of its real estate property. The above action has proven successful because Greek currency (drachma) devaluations and the economic devastation caused by the Second World War.
Real estate selection was a very significant process for the Fund’s administration, investing on buildings designed by well-known architects, as well as assigning the design and construction of new ones to outstanding architects and engineers of that period. The buildings mentioned above are the following:
(1)
In 1926, a three-story newly-built building was purchased, located at the corner of 12 Lykourgou Str. and 56 Athinas Str., which was reconstructed in 1929 by the addition of three more floors and one recess (Figure 1). The study and supervision of the project was commissioned by architect Vasileio Kouremenos (1875–1957). In 2005, a project for the building’s restoration, renovation, repair, and arrangement was accomplished in order to achieve its integration into modern city life (Figure 2) [1].
(2)
In 1928, a newly-built five-story building was purchased, designed and supervised in 1926 by the architect Constantinos Kiriakidis (1881–1941), at the corner of 37 Panepistimiou Str. and 2 Korai Str (Figure 3). During that period, the C.S.J.S.F. also purchased two existing adjoining buildings, the first was a semi-story building located on 47 Panepistimiou Str., and the second was a two-story building located on 49 Panepistimiou Str. In 1936, the two adjoining buildings were leveled and a new building was erected forming a single five-story building. At the same time, modifications to building facades and interior were conducted. This renovation work was commissioned by the architect Emmanuel Lazarides (1894–1961) (Figure 4) [2].
(3)
In 1929, an old two-story building was purchased on 10 Lykourgou Str. (next to the building of 12 Lykourgou Str. and Athena’s Str.). In 1935, this building was leveled and in its place a six-story building was erected with a gallery towards Omonia Square, following the design and supervision of architect Emmanuil Lazaridis (Figure 5) [3].
(4)
In 1939, two adjoining buildings were purchased, one on 2 Pindarou Str. (Figure 6) and the other on the corner of Pindarou, Academias and 1 Kanari Str. The corner building on Pindarou, Academias and 1 Kanari Str. was work by the architect Ernst Ziller (1837–1923), named the Deligiorgi Residence (Figure 7). The building on 2 Pindarou Str. was originally a two-story building, thought to be designed by Ernst Ziller, expanded later with the addition of floors at a height by architect Nicolao Zoumboulidis (1888–1969). This renovation and engineering work took place during 1922–1923 [4].
The above buildings have been designated as preserved buildings or as works of art, which are protected by the Greek Legislation and are representative examples of the architectural tendencies of their time, as monuments of our architectural heritage. The great historical and morphological aspects of these five Athens historical buildings highlights issues related to morphological changes that mark the architectural tendency of the city of Athens from the beginning of the previous century to the interwar period [5]. These fluctuations began around the 1900s, when Ziller reinforced the Greek classical style with the introduction of Greek elements, and shortly afterwards (1922–1930s) when significant architects worked in Athens. Most of whom studied at architectural schools of Central Europe and Constantinople, since the first Greek School of Architecture was founded in 1917 [6,7].
At this time, Greek architecture appeared to undergo a transitional phase, moderately following the conservative trend of the architecture of eclectic historical references. Greek architects, inspired by the great Greek tradition and seeking in their architectural compositions the element of Greekness, highlighted the morphological flexibility of their work and cultivated the movement “return to the roots”. Their works represent proposals and attempts to create a Greek architectural style, apart from classicism. They have incorporated and integrated other modern architectural trends, such as Art Nouveau and Art Deco, to their projects’ elements of decoration, which often refer to the great architectural tradition of Greece, such as the Byzantine ornaments and motifs (vines, spikes, etc.), mosaic, anthems, rosettes with animal or plant elements, etc. [7,8,9].
The result was a climate rich in a variety of morphological inventions and artistic production, implanted with the work of great architects composing together with other arts in the multidimensional era of the interwar period [7]. Through presenting the abovementioned historical buildings of Athens, the morphological freedom is perceived reflecting the spirit, education, or design skill of each architect; E. Ziller, V. Kouremenos, E. Lazaridis, N. Zoumboulidis, and K. Kiriakidis.
The Fund, in its effort to revitalize the remarkable but also aged buildings, and to improve their economic statue, while contributing to the enhancement of our architectural and cultural heritage, has developed in recent years an extensive protection, conservation, restoration, and rehabilitation program. Among these restoration works, an exceptional case is the resent restoration and conservation project of the Deligiorgi Residence, which we describe in the following paragraphs.

2. The Deligiorgi Residence on the Corner of Pindarou, Academias and 1 Kanari Str

The Deligiorgi Residence is an example of mature Athenian neoclassicism trends of the 1880–1890s, with renaissance elements built by the well-known German architect Ernst Ziller. It is a significant example of a wealthy bourgeoisie private house with neoclassical features on the exterior and very rich painting and sculptural decoration in the interior. The building was designated by the Ministry of Culture as a monument “…which has to be under the State’s protection because it is the home of the former Prime Minister of Greece Ep. Deligiorgi and now belongs to the C.S.J.S.F., it is the work of the great architect Ziller and present significant interesting from architectural point of view…”. Furthermore, it was designated by Urban’s Decree as a listed building (Figure 8) [4,10,11].
Ernst Ziller was born in Oberlossnitz, Saxony in 1837, and studied at the Royal School of Architecture at Dresden Technical University (1855–1858). He was a man with many interests who loved learning, with a variety of roles: builder, engineer, manager, a researcher of the architecture of the Greek Antiquity, painter, and an architect of Public and Private projects in many places in Greece, including Athens, Thessaloniki, Piraeus, Syros, Zakynthos, etc., in addition to other urban places and gardens [12]. Τhe most significant impact of his work in contemporary Greek architecture is his creativity, the sense of artistic freedom, in addition to the preservation and distinction of classical Greek spirit to the architecture of State and private homes [6,8].
A few years after his death, in 1939, during the framework of an exhibition that took place in Athens presenting his work, it was mentioned that: ‘…this exhibition couldn’t be unnoticeable from the Athenian people, as it has a great artistic value and integrates a large part of the history of Athens, a light season of its own…we see the architect, the painter, the wise archaeologist and the poet, because some of his works is poetry…Another project, the Deligiorgis house, gives us the impression of elegance. There is no need for someone to enter into the interior of the building to feel the beauty and wealthy of the house; the façade gives us this impression. Large, fine windows that leave between them appropriate parts of walls. Their analogy is harmonic like music…’ [13].
The building is a three-story house with ground, 1st, and 2nd floors that are strictly square shape, creating a triangular garden towards Kanari Str. [14]. The homogeneity and consistency of the shaped building’s volume, designed by the classical principle of horizontal composition and its separation into a base, trunk, and coronation, represent its characteristic features. A clear emphasis is on the base of the building with the isodomous stone masonry, which was formed with drawn plasters up to the 1st floor, above the marble base. Each façade is composed in symmetry with the openings—balconies in axial layout and the arched windows of the ground floor and the portico of the entrance in projection [15].
The openings are axially arranged. On the 2nd floor they have classical frames and cornice in coronation, whereas on the 1st floor there are arched rosettes on both sides, with a key at the top. The arc follows the typical solution of the era; for example, it is arranged as the architrave, with stepped concentric strips and a wave outside, ending in a horizontal cornice at the coronation. Replacing the sill, there are small balconies or pseudo balconies with railings, at the same level as the façade.
On the face of Akademias Str., the central balcony on the floor, which has four beads and elaborate railing, is emphasized [15]. In the main view of the entrance to Kanari Str., a feature that focuses on the central axis, is the portico, which is supported by two marble columns, houses the marble staircase of the entrance, protrudes the main volume of the building, and supports the central large balcony of the 2nd floor (Figure 9). The rails of the building balconies, the roof, and the pseudo-balconies on the 1st floor are cast iron, of domestic production, with forms of mythical creatures (female feathered torso, lower limbs, and reptile tail) (Figure 10). The garden extends to the side of Kanari Str., where the entrance of the building is formed on two levels with marble paving [15].

2.1. The Interior of the Building

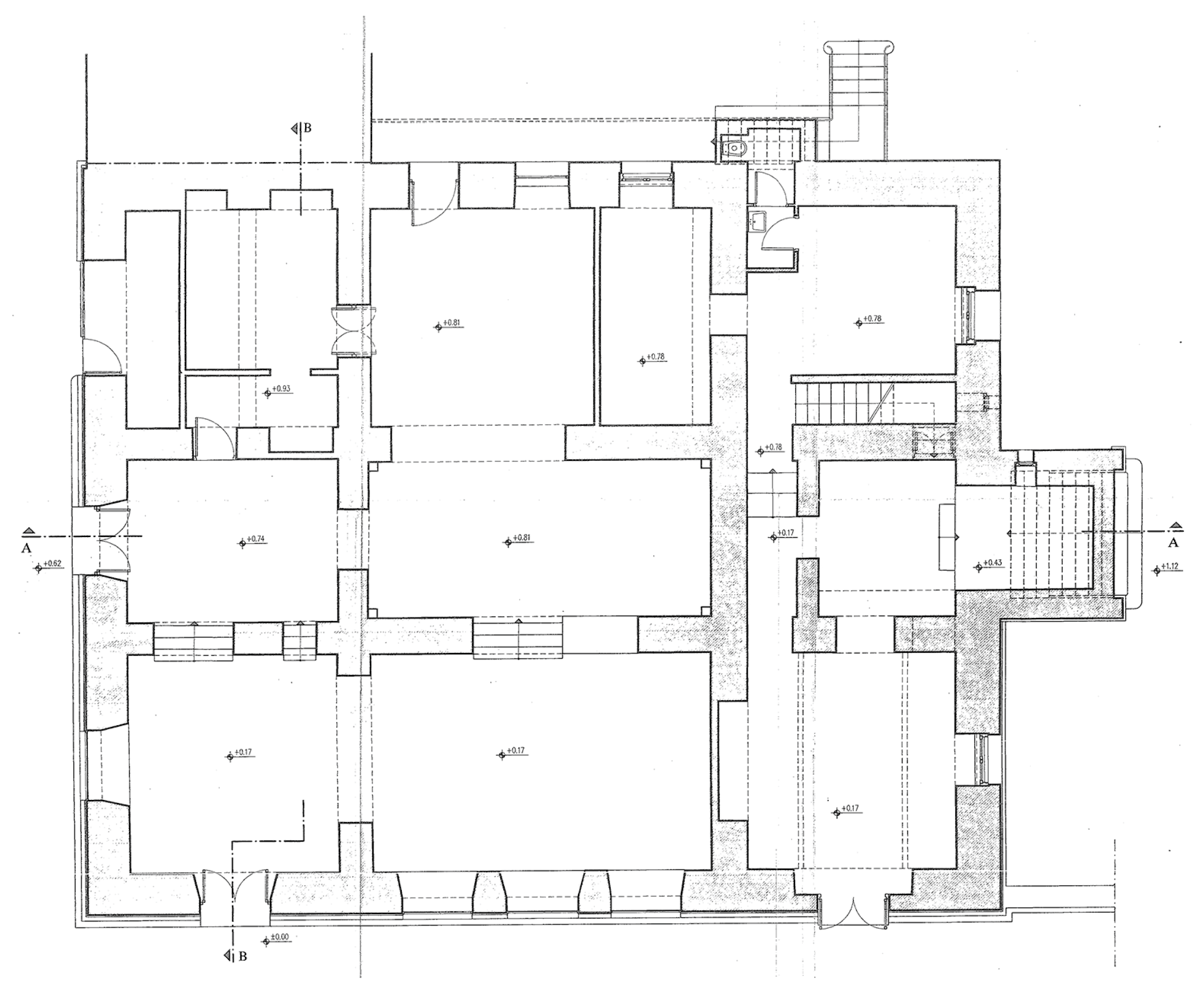
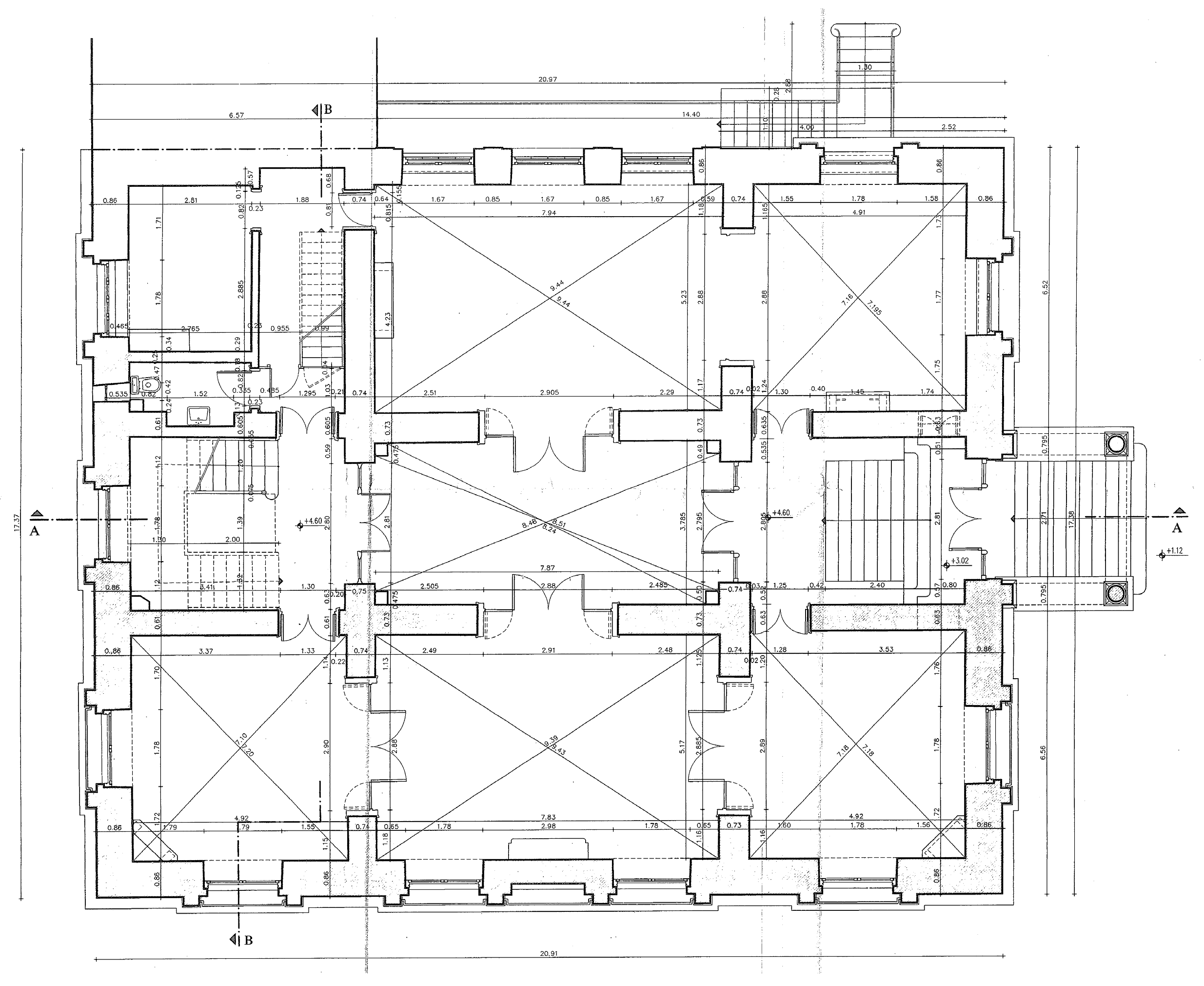
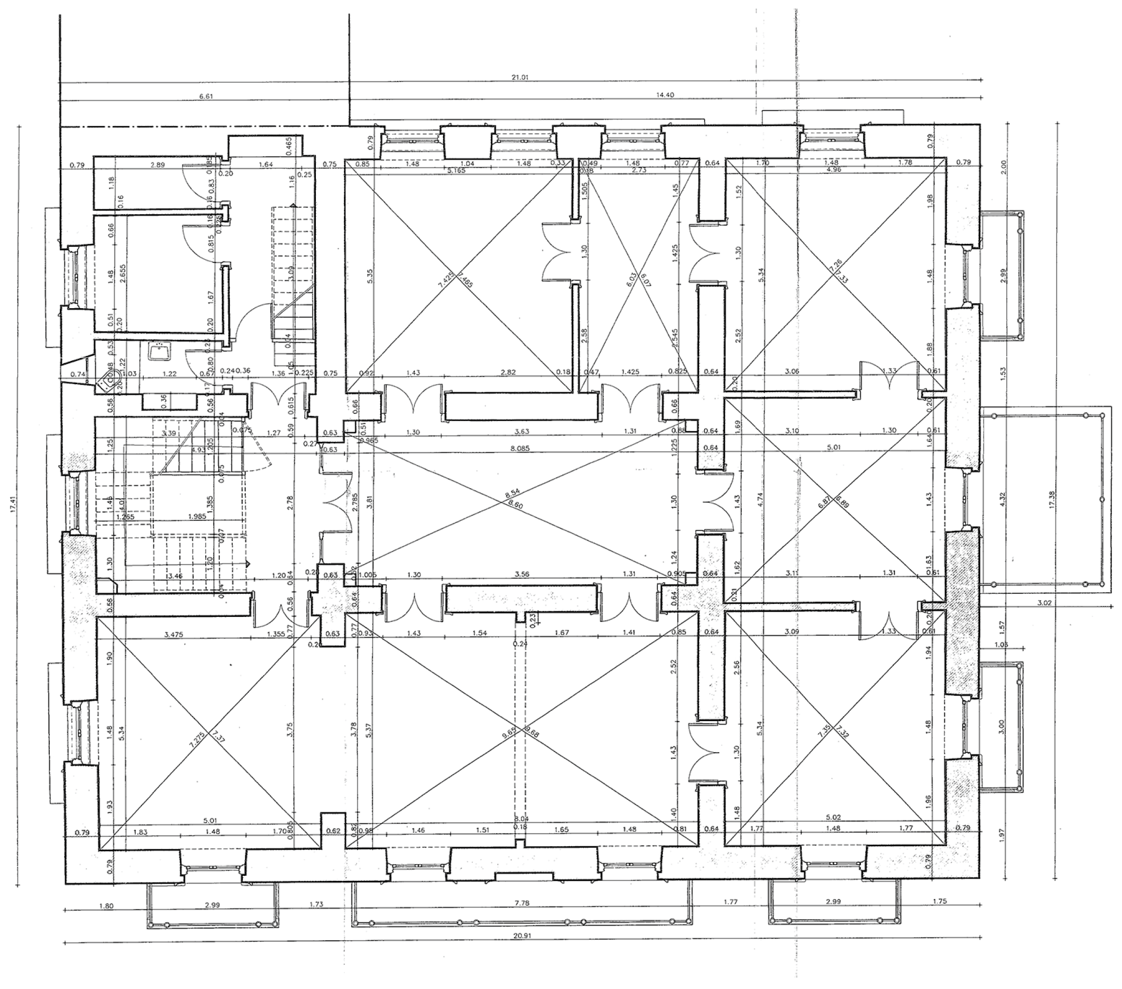
The main feature of the floor plan structure of the main house, developed on the 1st and 2nd floors, is the three-parts arrangement and the symmetrical layout of the interior spaces (Figure 11 and Figure 12). The entrance (Figure 13) leads to a small front with a marble staircase, which leads to a spacious reception room in the central zone of the building. Around the reception room, there are lounges, a dining room, two offices (Figure 14 and Figure 15), and auxiliary spaces, and the central stairwell is located in the back of the room [4,14,15].
On the ground floor, there are auxiliary rooms (Figure 16, Figure 17 and Figure 18), the kitchen, the store rooms, the cellar, etc. On this level, several interventions have taken place from time to time due to the operation of various shops [15].
In all main spaces, wooden nailed floors have been used. At the main entrance, the floors are covered with large marble slabs, and the central entry stairway consists of marble stairs. All the interior doors are made of paneling with wooden decoration and rectangular patterns. The knobs are cast with elaborate decorations, in all reception areas and office spaces on the 1st floor there are ornamented fireplaces covered with white or red marble (Figure 19). Three of these rooms have a bronze round stamp, marked Jules Cantini Marseilles, which apparently states the name and the city of origin of the factory that manufactured them. It is probably the workshop of the great French marble sculptor and art collector Jules Cantini (1826–1916) (Figure 20), who was born in Marseilles and participated in the construction of many public and religious buildings in the city. Works of art from his collection, as well as his studies, including studying fireplaces are exhibited at the city’s Cantini Museum of Marseilles [4,16,17].

2.2. The Interior Decoration

The interior decoration of the building, painted and sculptural, consists of three categories; the wall-painting, the frescoes, and the relief-plaster decorations [14]. In the gypsum decoration of the central entrance, the main corridor, and main areas of the 1st floor, it was determined by exploratory cuts that the hollow decorative friezes and the reliefs of the roofs are adorned with gold leaf, while the background is imitated wood. There is an elaborate ornate decoration, and the walls are both imitation of marble, or repeating plant and geometric decorations (Figure 21). The ceiling on the 2nd floor are painted in bands of different dimensions, with strips of repetitive wavy decoration and flowers, which form helical repeating shapes or are richly decorated with plant motifs. The colors are distinguished by the tones of sienna, umber, green, ciel, red, gray, and white (Figure 22).
The painted and embossed decorations were fully revealed during the restoration, renovation, repairing, and laying-out of the building that began in September 2009. In central areas of the basement after exploratory incisions, it was found that the ceilings were divided into three arches with identical decoration; rosettes, enclosed by strips forming geometric shapes (e.g., diamond and triangles) (Figure 23) [4,18,19].

2.3. The Construction

The load-bearing structure is stone with up to one meter (~1 m) thickness. On the basement and 2nd floor roofs, the lowered domes system (KAPPEN) is used, a technical solution widely used by Ziller, with its first application at the Schliemann Mansion (1879) (Figure 24). It consists of brick blocks that are supported by parallel tiles (T) of about ninety centimeters. The 1st floor roof is of wooden construction, with wooden beams, an intermediate false floor painted with plaster, a layer of insulation made of ceramic trimmings, soil support frames on the beams, and a nailed floor. In the auxiliary areas (1st and 2nd levels flooring), where the final floor consists of marble slabs, the construction is with double tau (T) bridged with stone slabs [15].

2.4. Recording the Existing Status—Pathology—Wear and Tear

Significant alternations of the static operation were caused by the occasional interventions in the ground floor masonry, with demolition of parts of the masonry and coatings, as well as due to natural causes such as earthquakes and the 1996 fire that occurred at the 2nd floor, where the Film Archive was located (Figure 25, Figure 26 and Figure 27).
The building was intersected by longitudinal cracks in the masonry walls due to seismic stresses, with a wider range in the central stairway area where the external wall to Pindarou Str. had been detached (Figure 27). The poor conservation status concerned floors, ceilings, walls, cabins, and an auxiliary stairway. The most significant damage was caused by the natural aging of the building’s materials, the lack of maintenance, and the presence of moisture. Aging phenomena were recorded in all wooden frames and floors, in addition to local cracks in the marble of balconies, entrance floors, and decorative elements of facades.
The problems encountered in the wall paintings and frescoes of the buildings come mainly from: (a) moisture, which created cracking, detachment of parts, and discoloration; (b) earthquakes that caused cracks; (c) several layers of coloring and placements of plaster decorative elements which covered the painting layers (Figure 28 and Figure 29); and (d) the 1996 fire, which completely destroyed the painting decoration in some areas (Figure 30) [15].

3. Restoration, Renovation, Repair, and Arrangement Study of the Deligiorgi Residence

Architectural heritage represents a priceless wealth and an irreplaceable expression of the past’s richness, thus deserving our uttermost care for bequeathing (inheriting) to future generations. Cultural heritage protection laws in Greece are established according to internationals conventions and charters, as well as the Constitution of Greece, which in its 24th article mandates: “The protection of the natural and cultural environment constitutes a duty of the State and a right of every person. The State is bound to adopt special preventive or repressive measures for the preservation of the environment in the context of the principle of sustainable development” [20].
During 1999–2002, a study for the restoration, renovation, repair, and arrangement of the Residence Deligiorgi was carried out, by the collaboration of architectural consultants, civil engineers, conservators, etc.
The main principles of the C.S.J.S.F policy were to proceed to an “integrated protection” respecting the monuments character, aiming to enhance its historical and cultural memory, and ensuring its survival, according to needs of contemporary life with new advances in technology and techniques. The intervention methodology considered the international documentations of cultural heritage protection, which the Greek State has legally recognized (Declaration of Amsterdam of 1975, European Charter of the Architectural Heritage 1975); the specifications instructed by the Greek Legislation for the building itself [10], the instructions and specifications given by the C.S.J.S.F, the investigation of painting decoration and structural stability that took place, and the approvals given by the Ministry of Culture, according to the relevant Law [21].
The Ministry of Culture has the authority and the responsibility to approve or not the restoration study, and the final approval took place according to the principles of proper conservation-restoration of wall paintings, decorations, etc. Hence, for the restoration of each part of the building a series of appropriate steps were followed (e.g., instigation, documentation, etc.).
The aim of the project was the reinforcement of the static building behavior, while preserving its initial design and its internal arrangement so as to be contemporary, functional, and be able to receive alternative uses, minimizing the need for future interventions or amendments. In addition, the intervention methodology in the monument took into account other important parameters, such as the significant aesthetic and cultural value of this historic building, its rareness, the conservation statue, the financial conditions, and its rehabilitation so as to correspond to the needs of contemporary life. It was also a specification given by the C.S.J.S.F to restore the possibility of joining the building with the adjoining building at 2 Pindarou Str.
The implementation of the study was approved by the Ministry of Culture and the project was launched in September 2009 after the relevant authorization of the Listing Building Department. Both the study and implementation of the project were supervised by the Technical Department of the C.S.J.S.F. The restoration of the building was done according to the following design principles:
  • In depth recognition and documentation of the research project;
  • respect of the original and authentic elements of the monument;
  • avoiding forgery and undocumented interventions;
  • compatibility, discretion, and distinctness of fixation and maintenance materials and methods;
  • removal of modern elements, which functionally and morphologically alter the building;
  • harmonious and discreet integration of the requirements of the new use into the synthetic logic (typological, morphological, aesthetic) of the existing building monument; and
  • security and protection of workers in the building [4,15].
The main restoration, renovation, repair, and arrangement works that took place at the Deligiorgi Residence are described, briefly, as follows:

3.1. Strengthening the Building Structure

The optimization and reinforcement of the existing building’s structural system was achieved by the following procedure:
  • Through understanding of the existing structural system concerning geometry materials, and definition of their strength and quality through inspection and non catastrophic methods (masonry, foundation of masonry grout, mortar, steel beams, wooden beams).
  • Calculation with finite element analysis of the building’s model to find out the strength of the existing structural system in terms of stresses.
  • Definition of the strategy which was needed to follow, in order to reinforce the existing building against future loading actions such as earthquake, fire, and differential settlements as well as cooperation of different materials which were needed for the reinforcement of existing ones. Of note, the above strategy of reinforcement had to take into account the limitations of almost zero changes to the existing geometry and materials in order to preserve the initial form of the monument.
  • Calculation with finite element analysis of the building’s model with reinforcements of the existing structural system which resulted to the following:
    • Excavation to the ground floor and construction of new L-shape stripe reinforced concrete footings in all the separate openings.
    • Use of shotcrete at the core of the building and throughout its height.
    • Use of special grout mixture for the reinforcement of masonry walls.
    • Use of fiber mortar applied on steel galvanized mesh for the finishing of masonry walls.
    • Reinforcement of wooden floor beams with vertical galvanized steel plates on their two vertical sides, throughout their length.
    • Reinforcement of the bottom flanges of the existing steel beams by welding steel inox plates [4,15].

3.2. Internal Arrangement

In order to preserve the important morphological features of the building, and to minimize the need for subsequent interventions (in any future use scenario), the original logic of the arrangement of functions (main areas and auxiliary areas), access, and internal circulation of the building were restored so that efficient auxiliary areas (restrooms, staircases, store rooms and facilities spaces) could be found far from the area of main monumental character (Figure 31 and Figure 32).
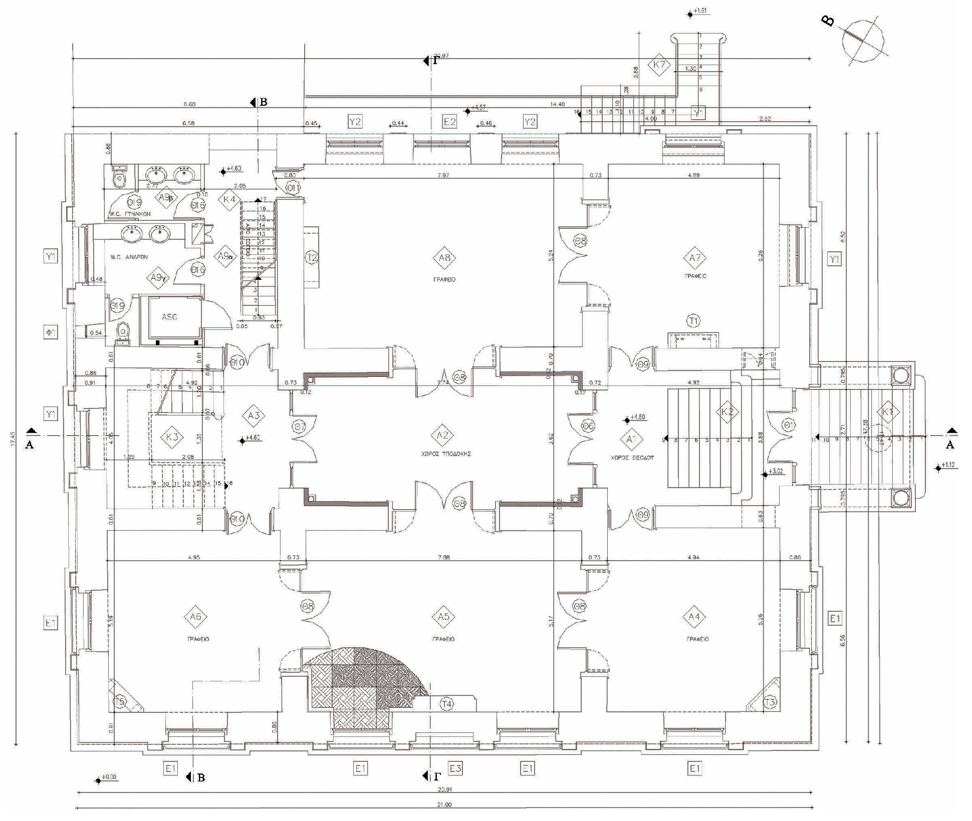
The three-story building can be operated in two different ways: (a) the operation of all three floors in a single complex, and (b) the operation of the two upper floors as a single set and the basement as an independent unit (Figure 33 and Figure 34). In order to achieve this, the secondary staircase was reconstructed and a lift was placed in the area of auxiliary spaces, on the ground floor of which a new entrance and concierge space was created (Figure 35). The remaining existing entrances on the ground floor are maintained to serve its most likely use, as commercial or cultural activity [4,15].

3.3. Restoration of the Painting Decoration

After the restoration of the mansion and the possibility of access to all its spaces, investigation was made on new surfaces, thus giving an overall picture of its ceilings and frescoes. The state of preservation of the embossed and painted decoration inside the building was divided into two sections depending on the extent of the deterioration and the type of restoration. The first ones concerned decorations, that were kept in such a condition, that they were restored in situ and the second ones were painted decorations that were not kept in good condition and would be reproduced (Figure 36) [15].
Aesthetic rehabilitation interventions were done only in areas where there were losses, without extending to the authentic decoration. New colors were attributed to a lower color tone so as to be distinguished from the authentic decoration and not to break the aesthetic unity of the work. The aesthetic restoration and reproduction of the painting decoration was done with respect to the historical and artistic value of the work (Figure 37, Figure 38, Figure 39 and Figure 40) [4,22].

3.4. Restoration of Facades

The construction work concerned the replacement of simple coatings, fixings with a slightly reinforced polypropylene fiber coating (the original outer coating had already largely replaced), and repairing or replacing the damaged marble members of the external floorings—embossed decorations and the damaged pieces of rails of balconies and roof (Figure 41).
In all the openings (doors and windows) of the ground floor in the facade of Academias and Pindarou Str. the window frames appear as neutral glass surfaces without frames. On the other two sides (the view of Kanari Str.-view to the garden) the windows of the ground floor remained as they were—glass panels on wooden frames [4,15].

3.5. Color Proposal

From Ziller’s original plans, which are found in the City Hall Archive of the Municipality of Athens, the designer chose the buildings color with respect to the classical principle of horizontal composition (Figure 42). The exceptionally light choices for the large color surfaces (white–umber) give the building the light elegance of the private residence [4,15].

4. Discussion

Restoration work for the Deligiorgi Residence was completed in 2015. The Civil Servants Joint Stock Fund adopted the appropriate management tools and made the necessary procedures, under the existing law frame, restrictions and regulations, in order to repair and protect this monument respecting its architectural physiognomy. Due to the nature and importance of the works that were applied to the building, it was a time consuming period involving a series of actions, such as preliminary investigation, (e.g., historical documentation, pathology of the building, etc.), completion of the necessary plans (e.g., architectural, engineering, etc.), their approval by the relevant authorities, continuous collaboration between the owners, the engineers and the specialized agencies, e.g., the Ministry of Culture, etc. Major priorities were given, such as the examination of possible future use of the building, the proven previous experience of the contractor, and the project executors in similar projects, etc.
The physical loss or damage of the structural system and elements of the building, alongside the different uses, caused harmful interventions on painting decoration or lack of maintenance during the last period of its history. Hopefully, during the above restoration process, it was possible to distinguish and reveal the original parts of the monument, for example the internal decoration, the arrangement, the way of building, etc., having today the building’s initial appearance, character, and aesthetic position in the contemporary surroundings.
Aiming towards a better functional management of the property, which emphasizes preventive maintenance, minimum intervention in the future, financial upgrading, and respect of the monument’s architectural physiognomy, the C.S.J.S.F. formulated a policy to adopt a use suitable for all the above priorities, if possible.
As all the above mentioned historical monuments have “…an economic asset…” [23], which can be used to save or increase the C.S.J.S.F. resources, it is a conscious choice for the C.S.J.S.F. to follow all the legislative, administrative, and financial steps in order to give them a new prosperous use with certain functional requirements. This could ensure respect of the monuments character, their maintenance at less future costs, and their better functional management.
Taking into consideration the current financial crisis and the high cost requirements of such historical buildings, there are not many alternatives e.g., to sell these historical properties, or to rent the buildings for recreational functions, etc. As far as the Deligiorgi Residence is concerned, the C.S.J.S.F. supported the opinion that the best prosperous way is to put a use concerning, for example, the cultural purposes or offices with no demands from a large amount of people. Thus, after completing the restoration works, it was a long time period involving discussions about different offers that were submitted, concerning possible ways for its reuse.
Following the above principles, the C.S.J.S.F. proceeded to negotiations with a certain applied offer and achieved to rent the monument for cultural use. Today the monument is used as an exhibition for works of art as it has been recently leased to a well-known contemporary art gallery (Figure 43 and Figure 44).
This information highlights the C.S.J.S.F. policy is an interesting example of following legislative, administrative, and financial steps in order to highlight the major artistic and historic values of the building, strengthen its structural preserved status, and minimize the degree of inappropriate changes, while taking into account the social economic information, along with the need for its prosperity and prominence in the framework of an integrated protection (Figure 45).

5. Conclusions

The administrative and investment policy of C.S.J.S.F. contributed to the creation and preservation of significant examples of our architectural and cultural heritage, whose restoration and enhancement consist of great value for the historical memory of the city of Athens.
The C.S.J.S.F.’s historical buildings, designed by well-known foreign or Greek architects, are the majority of the Fund’s real estate property; meanwhile, their historical documentation highlights a part of the architectural evolution that took place in Greece during the first decades after the 1900s. One can distinguish in these projects some of the most important features of the period, such as the investigation of cultural self- awareness, the evolution of eclecticism associated with the Modern Greek reality, the creative integration of new architectural styles, and the freedom of expression.
In addition, the restoration work that took place in the Deligiorgi Residence, which has been recently completed under the Fund’s financial support, supervision, and management, gives a valuable paradigm regarding the ultimate need of preserving our cultural heritage, the importance of sensitivity to the historical character of the buildings, and the utilization of available scientific tools, in order for the monument to have a sustainable re-use and continuity in the contemporary life of the city.

Funding

This research received no external funding.

Conflicts of Interest

The authors declare no conflict of interest.

References

  1. Vyzantiadou, M.; Papageorgiou, A.T. The Historical Building at the corner of 12 Lykourgou Str. and 56 Athinas Str. In Historical Buildings of Civil Servants Joint Stock Fund. Five Listed Buildings and One Contemporary Building; Vyzantiadou, M., Ed.; Methexis: Thessaloniki, Greece, 2015; pp. 95–129. (In Greek) [Google Scholar]
  2. Vyzantiadou, M.; Papageorgiou, A.T. The Historical Building at the corner of 37 Panepistimiou Str. and 2 Korai Str. In Historical Buildings of Civil Servants Joint Stock Fund. Five Listed Buildings and One Contemporary Building; Vyzantiadou, M., Ed.; Methexis: Thessaloniki, Greece, 2015; pp. 161–190. (In Greek) [Google Scholar]
  3. Vyzantiadou, M.; Papageorgiou, A.T. The Historical Building at Lykourgou Str. 10. In Historical Buildings of Civil Servants Joint Stock Fund. Five Listed Buildings and One Contemporary Building; Vyzantiadou, M., Ed.; Methexis: Thessaloniki, Greece, 2015; pp. 131–159. (In Greek) [Google Scholar]
  4. Vyzantiadou, M.; Papageorgiou, A.T. The Historical Building Deligiorgi on Pindarou, Academias and 1 Kanari Str. and the Historical Building on 2 Pindarou Str. In Historical Buildings of Civil Servants Joint Stock Fund. Five Listed Buildings and One Contemporary Building; Vyzantiadou, M., Ed.; Methexis: Thessaloniki, Greece, 2015; pp. 21–93. (In Greek) [Google Scholar]
  5. Vyzantiadou, M.; Papageorgiou, A.T. Historical Buildings of Civil Servants Joint Stock Fund. Five Listed Buildings and One Contemporary Building; Vyzantiadou, M., Ed.; Methexis: Thessaloniki, Greece, 2015; pp. 15–18. (In Greek) [Google Scholar]
  6. Scarpia, H.X.; Ziller, E. The model of the pluralistic idea and its contribution to the formation of mature modern Greek classicism. In Ernst Ziller Architect [1837–1923]; Kasimati, M.Z., Ed.; National Gallery and Alexandros Soutsos Museum: Athens, Greece, 2010; pp. 33–37. (In Greek) [Google Scholar]
  7. Holevas, N.T. The Progress of Architecture to Athens in the Interwar Period; Libro: Athens, Greece, 1998; pp. 11–13. (In Greek) [Google Scholar]
  8. Filippidis, D. New Greek Architecture; Melissa: Athens, Greece, 1984; pp. 164–174. (In Greek) [Google Scholar]
  9. Fessa Emmanouil, E.; Marmaras, E. Twelve Greek Architects of the Interwar Period; University Publications of Crete: Heraklion, Greece, 2005; (In Greek and English). [Google Scholar]
  10. Government Gazette Issue (G.G.I.). Designation of the House on the Corner of Pindarou, Academias and 1 Kanari Str. as a Monument which Has to Be under the State’s Protection, 1119/B/7-11-1974. 1974, p. 8910. Available online: www.et.gr (accessed on 11 December 2018). (In Greek).
  11. Government Gazette Issue (G.G.I.). Designation of Main Facades of the Buildings on the 2, 6, 8 and 10 Pindarou Str. In the City of Athens, Definition of Special Protection Regulation and Restrictions of Their Land Areas and Designation as Listed the Building Located on Pindarou, Academias and 1 Kanari Str., 49/D/2-3-1983. 1983, pp. 469–470. Available online: www.et.gr (accessed on 11 December 2018). (In Greek).
  12. Kasimati, M.Z. From the plan to the building: The cosmopolitan application of historicism by Ziller. In Ernst Ziller Architect [1837–1923]; Kasimati, M.Z., Ed.; National Gallery and Alexandros Soutsos Museum: Athens, Greece, 2010; pp. 13–22. (In Greek) [Google Scholar]
  13. Kassandras, V. Ernst Ziller. Tech. Ann. 1939, 15, 125–130. (In Greek) [Google Scholar]
  14. Kardamitsi Adami, Μ. Ernst Ziller 1837–1923. The Art of Classical; Melissa: Athens, Greece, 2006; pp. 124–126. (In Greek) [Google Scholar]
  15. Kaier, K.; Mitsiou, A.; Arvanitakis, M.; Politis, C.; Sachanidis, C. Restoration, Renovation, Repair and Arrangement Study of the Residence Deligiorgi. Historical, Morphological Documentation; Unpublished Study; Archive of C.S.J.S.F.: Athens, Greece, 1999. (In Greek) [Google Scholar]
  16. Le Μusee-Cantini de Marseille. Available online: www.marseille.fr/siteculture/les-lieux-culturels/musees/le-musee-cantini (accessed on 11 December 2018).
  17. Cantini, J. Deux études de cheminée. Available online: http://www.culture.gouv.fr/public/mistral/joconde_fr?ACTION=CHERCHER&FIELD_98=AUTR&VALUE_98=CANTINI%20Jules&DOM=All&REL_SPECIFIC=3 (accessed on 11 December 2018).
  18. Dritsas, P. Conservation Study of Painted and Plaster Decoration of C.S.J.S.F. Listed Building of the Deligiorgi Residence; Unpublished Study; Archive of C.S.J.S.F.: Athens, Greece, 2001. (In Greek) [Google Scholar]
  19. Aeinaes. The Listed Residence Deligiorgi on the Corner of Pindarou, Academias and Kanari Str. Supplementary Conservation, Restoration of Ceiling Paintings and Murals; Unpublished Study; Archive of C.S.J.S.F.: Athens, Greece, 2009. (In Greek) [Google Scholar]
  20. Hellenic Parliament. The Constitution of Greece. Available online: http://www.hellenicparliament.gr/UserFiles/f3c70a23-7696-49db-9148-f24dce6a27c8/001-156%20aggliko.pdf (accessed on 21 January 2019).
  21. Government Gazette Issue (G.G.I.). For the Protection of Antiquities and Cultural Heritage, 153/A/28-6-2002. 2002, pp. 3003–3029. Available online: www.et.gr (accessed on 21 January 2019). (In Greek).
  22. Aeinaes. The Listed Residence Deligiorgi on the Corner of Pindarou, Academias and Kanari Str. Report of Maintenance and Reconstruction Decoration Work; Unpublished Study; Archive of C.S.J.S.F.: Athens, Greece, 2014. (In Greek) [Google Scholar]
  23. ICOMOS. European Charter of the Arcjitectural Heritage. 1975. Available online: https://www.icomos.org/en/resources/charters-and-texts/179-articles-en-francais/ressources/charters-and-standards/170-european-charter-of-the-architectural-heritage (accessed on 21 January 2019).
  24. Contemporary Art at the Neoclassical Deligiorgi Residence. Available online: https://www.athensvoice.gr/culture/arts/490792_syghroni-tehni-sto-neoklasiko-megaro-deligiorgi (accessed on 1 February 2019).
  25. Four Famous American Painters in Athens. Available online: http://www.topontiki.gr/article/284579/tesseris-emvlimatikoi-amerikanoi-zografoi-stin-athina-photos (accessed on 1 February 2019).
Figure 1. Architectural design of V. Kouremenos on Lykourgou and Athinas Str. (11 of May 1927). Source: Modern Greek Architecture Archives (M.G.A.A.) of the Benaki Museum.
Figure 1. Architectural design of V. Kouremenos on Lykourgou and Athinas Str. (11 of May 1927). Source: Modern Greek Architecture Archives (M.G.A.A.) of the Benaki Museum.
Heritage 02 00044 g001
Figure 2. The Civil Servants Joint Stock Fund (C.S.J.S.F.) building, after the restoration (22 November 2007). Source: C.S.J.S.F. Photographic Archive.
Figure 2. The Civil Servants Joint Stock Fund (C.S.J.S.F.) building, after the restoration (22 November 2007). Source: C.S.J.S.F. Photographic Archive.
Heritage 02 00044 g002
Figure 3. The building by architect K. Kiriakidis at the corner of 37 Panepistimiou and 2 Korai Str. (about 1931). C.S.J.S.F. Photographic Archive.
Figure 3. The building by architect K. Kiriakidis at the corner of 37 Panepistimiou and 2 Korai Str. (about 1931). C.S.J.S.F. Photographic Archive.
Heritage 02 00044 g003
Figure 4. The C.S.J.S.F. building by architect E. Lazaridis (around 1938–39). C.S.J.S.F. Photographic Archive.
Figure 4. The C.S.J.S.F. building by architect E. Lazaridis (around 1938–39). C.S.J.S.F. Photographic Archive.
Heritage 02 00044 g004
Figure 5. View of the building from Lykourgou Str. (2007). C.S.J.S.F. Photographic Archive.
Figure 5. View of the building from Lykourgou Str. (2007). C.S.J.S.F. Photographic Archive.
Heritage 02 00044 g005
Figure 6. The facade of the building at Pindarou Str. (1999). C.S.J.S.F. Photographic Archive.
Figure 6. The facade of the building at Pindarou Str. (1999). C.S.J.S.F. Photographic Archive.
Heritage 02 00044 g006
Figure 7. The Deligiorgi Residence at the corner of Pindarou, Academias and 1 Kanari Str. C.S.J.S.F. Photographic Archive.
Figure 7. The Deligiorgi Residence at the corner of Pindarou, Academias and 1 Kanari Str. C.S.J.S.F. Photographic Archive.
Heritage 02 00044 g007
Figure 8. The Deligiorgi Residence (1900), E.L.I.A–M.I.E.T. Photographic Archive.
Figure 8. The Deligiorgi Residence (1900), E.L.I.A–M.I.E.T. Photographic Archive.
Heritage 02 00044 g008
Figure 9. The portico of the entrance (2009). C.S.J.S.F. Photographic Archive.
Figure 9. The portico of the entrance (2009). C.S.J.S.F. Photographic Archive.
Heritage 02 00044 g009
Figure 10. Balcony of the 2nd floor with the cast iron railings and the marble beads (2009). C.S.J.S.F. Photographic Archive.
Figure 10. Balcony of the 2nd floor with the cast iron railings and the marble beads (2009). C.S.J.S.F. Photographic Archive.
Heritage 02 00044 g010
Figure 11. Plan of the 1st floor (1999). C.S.J.S.F. Archive.
Figure 11. Plan of the 1st floor (1999). C.S.J.S.F. Archive.
Heritage 02 00044 g011
Figure 12. Plan of the 2nd floor (1999). C.S.J.S.F. Archive.
Figure 12. Plan of the 2nd floor (1999). C.S.J.S.F. Archive.
Heritage 02 00044 g012
Figure 13. The entrance with the small front and the marble stairs (1999).
Figure 13. The entrance with the small front and the marble stairs (1999).
Heritage 02 00044 g013
Figure 14. The reception room.
Figure 14. The reception room.
Heritage 02 00044 g014
Figure 15. Lounges around the reception room.
Figure 15. Lounges around the reception room.
Heritage 02 00044 g015
Figure 16. Ground floor plan (1999). C.S.J.S.F. Archive.
Figure 16. Ground floor plan (1999). C.S.J.S.F. Archive.
Heritage 02 00044 g016
Figure 17. Section perpendicular to Pindarou Str. (1999). C.S.J.S.F. Archive.
Figure 17. Section perpendicular to Pindarou Str. (1999). C.S.J.S.F. Archive.
Heritage 02 00044 g017
Figure 18. Section perpendicular to Academias Str. (1999). C.S.J.S.F. Archive.
Figure 18. Section perpendicular to Academias Str. (1999). C.S.J.S.F. Archive.
Heritage 02 00044 g018
Figure 19. Ornamented fireplace in the reception area of the 1st floor (2009). C.S.J.S.F. Photographic Archive.
Figure 19. Ornamented fireplace in the reception area of the 1st floor (2009). C.S.J.S.F. Photographic Archive.
Heritage 02 00044 g019
Figure 20. Bronze round stamp, marked Jules Cantini Marseilles.
Figure 20. Bronze round stamp, marked Jules Cantini Marseilles.
Heritage 02 00044 g020
Figure 21. Decoration of the central entrance.
Figure 21. Decoration of the central entrance.
Heritage 02 00044 g021
Figure 22. Ceiling on the 2nd floor.
Figure 22. Ceiling on the 2nd floor.
Heritage 02 00044 g022
Figure 23. Ceiling on the 2nd floor.
Figure 23. Ceiling on the 2nd floor.
Heritage 02 00044 g023
Figure 24. The lowered domes system of the roof of the 2nd floor.
Figure 24. The lowered domes system of the roof of the 2nd floor.
Heritage 02 00044 g024
Figure 25. Naturally caused changes by earthquakes.
Figure 25. Naturally caused changes by earthquakes.
Heritage 02 00044 g025
Figure 26. Damages due to the 1996 fire.
Figure 26. Damages due to the 1996 fire.
Heritage 02 00044 g026
Figure 27. Longitudinal cracks in the central stairway area.
Figure 27. Longitudinal cracks in the central stairway area.
Heritage 02 00044 g027
Figure 28. Covering the painting layers in the lounge area around the reception room on the 1st floor (left) and at the central area on the 2nd floor (right).
Figure 28. Covering the painting layers in the lounge area around the reception room on the 1st floor (left) and at the central area on the 2nd floor (right).
Heritage 02 00044 g028
Figure 29. Covering of painting layers on ceilings and walls of the 1st and 2nd floor.
Figure 29. Covering of painting layers on ceilings and walls of the 1st and 2nd floor.
Heritage 02 00044 g029
Figure 30. Damages due to the 1996 fire on the 2nd floor.
Figure 30. Damages due to the 1996 fire on the 2nd floor.
Heritage 02 00044 g030
Figure 31. The central reception room on the 1st floor.
Figure 31. The central reception room on the 1st floor.
Heritage 02 00044 g031
Figure 32. View of the lounge area left to the central reception room on the 1st floor.
Figure 32. View of the lounge area left to the central reception room on the 1st floor.
Heritage 02 00044 g032
Figure 33. Plan of the 1st floor (1999). Proposal. C.S.J.S.F. Archive.
Figure 33. Plan of the 1st floor (1999). Proposal. C.S.J.S.F. Archive.
Heritage 02 00044 g033
Figure 34. Plan of the 2nd floor (1999). Proposal. C.S.J.S.F. Archive.
Figure 34. Plan of the 2nd floor (1999). Proposal. C.S.J.S.F. Archive.
Heritage 02 00044 g034
Figure 35. Plan of the ground floor (1999). Proposal. C.S.J.S.F. Archive.
Figure 35. Plan of the ground floor (1999). Proposal. C.S.J.S.F. Archive.
Heritage 02 00044 g035
Figure 36. Restoration of the painting decoration.
Figure 36. Restoration of the painting decoration.
Heritage 02 00044 g036
Figure 37. Painting decoration of the arches on the ground floor before (top) and after (bottom) the restoration works (2015).
Figure 37. Painting decoration of the arches on the ground floor before (top) and after (bottom) the restoration works (2015).
Heritage 02 00044 g037
Figure 38. Painting decoration of walls of the 1st floor before (top) and after (bottom) the restoration works (2015).
Figure 38. Painting decoration of walls of the 1st floor before (top) and after (bottom) the restoration works (2015).
Heritage 02 00044 g038
Figure 39. Painting decoration of a room ceiling of the 2nd floor before (top) and after (bottom) the restoration works (2015).
Figure 39. Painting decoration of a room ceiling of the 2nd floor before (top) and after (bottom) the restoration works (2015).
Heritage 02 00044 g039
Figure 40. The painting decoration of walls of a room of the 2nd floor after the restoration works (2015).
Figure 40. The painting decoration of walls of a room of the 2nd floor after the restoration works (2015).
Heritage 02 00044 g040
Figure 41. The portico of the entrance before and after the restoration works (2009).
Figure 41. The portico of the entrance before and after the restoration works (2009).
Heritage 02 00044 g041
Figure 42. The Deligiorgi Residence after restoration works (2015).
Figure 42. The Deligiorgi Residence after restoration works (2015).
Heritage 02 00044 g042
Figure 43. Art exhibition on the 1st floor of the contemporary art gallery at Deligiorgi Residence [24].
Figure 43. Art exhibition on the 1st floor of the contemporary art gallery at Deligiorgi Residence [24].
Heritage 02 00044 g043
Figure 44. Art exhibition on the ground floor of the contemporary art gallery at Deligiorgi Residence [25].
Figure 44. Art exhibition on the ground floor of the contemporary art gallery at Deligiorgi Residence [25].
Heritage 02 00044 g044
Figure 45. The Deligiorgi Residence after the restoration works (2015).
Figure 45. The Deligiorgi Residence after the restoration works (2015).
Heritage 02 00044 g045

Share and Cite

MDPI and ACS Style

Vyzantiadou, M.M.; Gkiokas, P.S. Heritage Preservation Policy of Civil Servants Joint Stock Fund for Historical Buildings in Athens: The Deligiorgi Residence Case. Heritage 2019, 2, 681-707. https://doi.org/10.3390/heritage2010044

AMA Style

Vyzantiadou MM, Gkiokas PS. Heritage Preservation Policy of Civil Servants Joint Stock Fund for Historical Buildings in Athens: The Deligiorgi Residence Case. Heritage. 2019; 2(1):681-707. https://doi.org/10.3390/heritage2010044

Chicago/Turabian Style

Vyzantiadou, Maria Margarita, and Panagiotis S. Gkiokas. 2019. "Heritage Preservation Policy of Civil Servants Joint Stock Fund for Historical Buildings in Athens: The Deligiorgi Residence Case" Heritage 2, no. 1: 681-707. https://doi.org/10.3390/heritage2010044

APA Style

Vyzantiadou, M. M., & Gkiokas, P. S. (2019). Heritage Preservation Policy of Civil Servants Joint Stock Fund for Historical Buildings in Athens: The Deligiorgi Residence Case. Heritage, 2(1), 681-707. https://doi.org/10.3390/heritage2010044

Article Metrics

Back to TopTop