Implementing Sustainability in Retrofitting Heritage Buildings. Case Study: Villa Antoniadis, Alexandria, Egypt
Abstract
:1. Introduction
1.1. Sustainability and Conservation
1.2. Degrees of Intervention
1.3. Examples of Sustainable Conservation of Heritage Buildings
1.4. Objective of the Work
2. The Case Study: Overview
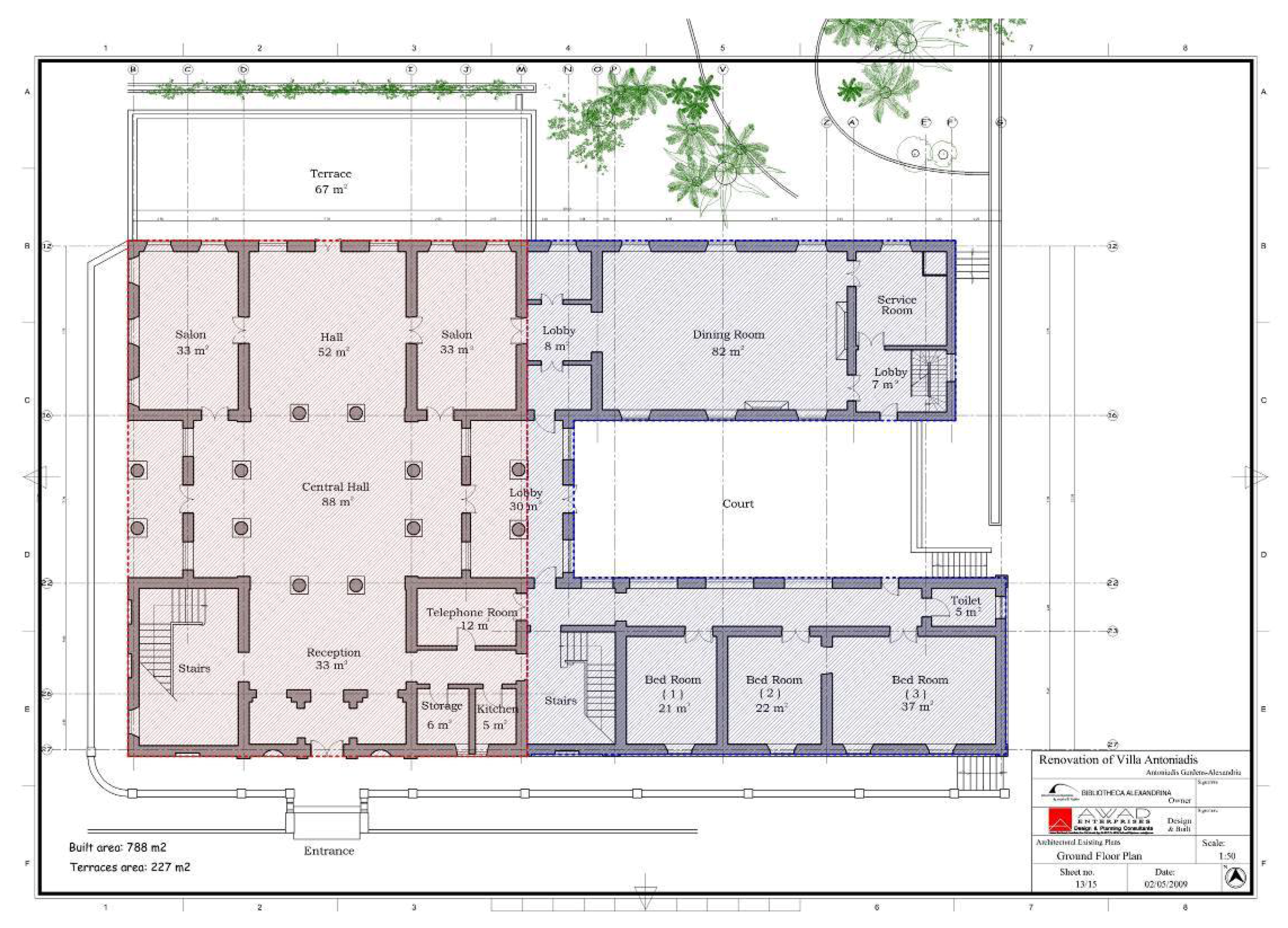
2.1. Villa Antoniadis
2.2. Historical Background
2.3. Classification and Significance of the Villa
3. Current Condition of the Building
3.1. Architectural Condition
3.2. Structural Condition
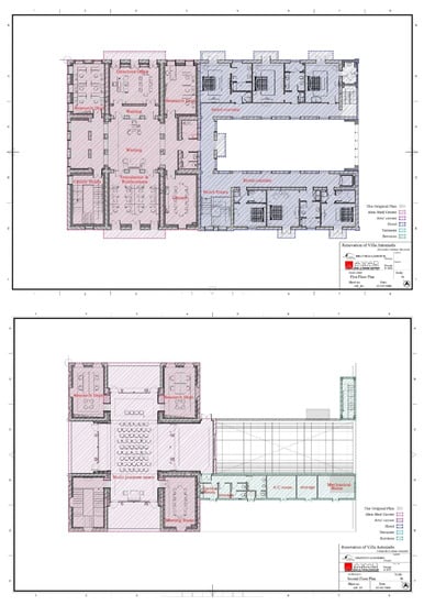
4. The Current Adaptive-Reuse Project
4.1. The New Function of the Building
- The Alexandria and Mediterranean “Alex-Med” research center of the Bibliotheca Alexandrina including its facilities (offices, administration, meeting room, library and a seminar hall).
- An exhibition area for the Sir John Antoniadis collection.
- A six-room hotel for Bibliotheca guests.
- Restaurants and cafeterias (including the historic dining room, a dining area in the atrium, garden terraces, kitchens and services).
- Art Center (including a 230 m2 multi-purpose hall, changing rooms, and a separate entrance).
4.2. The Conservation Strategy of the Building
5. Methodology
5.1. The Base Case
5.2. Settings
5.2.1. Weather Data
5.2.2. Activity
5.2.3. Construction
5.2.4. Openings
5.2.5. Lighting
- Normalized power density1: 5 W/m2/100 lux
- Target Illumination:
- ∘
- Hotel rooms, bathrooms, Corridors & Stairs: 100 lux
- ∘
- Dining: 150 lux
- ∘
- Reception Area, Exhibition & Mechanical rooms: 200 lux
- ∘
- Lounges, library & multi-purpose hall: 300 lux
- ∘
- Offices: 400 lux
- ∘
- Kitchens: 500 lux
5.2.6. HVAC
5.3. Results of the Base Case
6. Results and Discussion
6.1. Thermal Insulation Case
6.1.1. Intervention
6.1.2. Results of the Thermal Insulation Case
- The original existing wall thickness already has great thermal insulation when compared to the added insulation material.
- The moderate climate of Alexandria may not cause a high heat gain or loss as in hotter or cooler climates.
- The great window-to-wall ratio may suggest that more heat gain is incorporated with the openings than the walls.
6.2. Lighting Control Case
6.2.1. Intervention
6.2.2. Results of the Lighting Control Case
6.3. Double-Glazing Case
6.3.1. Intervention
- 6 mm clear glass, 13 mm air gap, and 6 mm clear internal glass.
- 6 mm blue tinted glass, 13 mm air gap, and 6 mm clear internal glass.
- 6 mm clear glass, 13 mm void filled with argon, and 6 mm clear internal glass.
- 6 mm blue tinted glass, 13 mm void filled with argon, and 6 mm clear internal glass.
- 6 mm clear glass, 13 mm air gap and 6 mm clear internal glass, and windows with internally fixed louvers.
- 6 mm clear glass, 13 mm air gap and 6 mm clear internal glass, and windows with internal louvers that turn on when solar radiation exceeds 120 W/m2.
- 6 mm clear glass, 13 mm air gap and 6 mm clear internal glass, and windows with internal louvers that turn on when solar radiation exceeds 400 W/m2.
- 6 mm clear glass, 13 mm air gap and 6 mm clear internal glass, and windows with internal louvers that turn on when solar radiation exceeds 600 W/m2.
6.3.2. Results of the Double-Glazing Cases
6.4. Atrium Shading Case
6.4.1. Intervention
6.4.2. Results of the Atrium Shading Case
6.5. Natural Ventilation Case
6.5.1. Intervention
- Outside air change: 5 air changes per hour
- Outdoor minimum air temperature: 18 °C
- Outdoor maximum air temperature: 25 °C
- Delta T: 3 °C (outside air temperature must be over 3 °C cooler than the inside air temperature to allow the use of natural ventilation).
6.5.2. Results of the Natural Ventilation Case
6.6. Photovoltaic Panels Case
6.6.1. Intervention
6.6.2. Results of the Photovoltaic Panels Case
6.7. All Modifications Case
Results of the All Modifications Case
7. Conclusions
Author Contributions
Acknowledgments
Conflicts of Interest
References
- Howe, J.C. Overview of green buildings. Natl. Wetlands Newslett. 2010, 33, 3–14. [Google Scholar]
- Khalil, A.M.R. Implementing Sustainability in Retrofitting Heritage Buildings, Case Study: Villa Antoniadis, Alexandria, Egypt. Faculty of Fine Arts, University of Alexandria. 2015. Available online: https://www.academia.edu/33229941/IMPLEMENTING_SUSTAINABILITY_IN_RETROFITTING_HERITAGE_BUILDINGS_CASE_STUDY_VILLA_ANTONIADIS_ALEXANDRIA_EGYPT (accessed on 21 May 2018).
- Fouseki, K.; Cassar, M. Editorial: Energy Efficiency in Heritage Buildings—Future Challenges and Research Needs. Hist. Environ. 2014, 5, 95–100. [Google Scholar] [CrossRef]
- McDonagh, J.; Nahkies, P.B. Heritage Building Preservation, the Ultimate in Green Building? In Proceedings of the Pacific Rim Real Estate Society (PRRES) 16th Annual Conference, Wellington, New Zealand, 24–27 January 2010. [Google Scholar]
- ICOMOS. The Valletta Principles for the Safeguarding and Management of Historic Cities, Towns and Urban Areas; ICOMOS, International Council on Monuments and Sites: Paris, France, 2011; Available online: https://www.icomos.org/Paris2011/GA2011_CIVVIH_text_EN_FR_final_20120110.pdf (accessed on 21 May 2018).
- Rodwell, D. Conservation and Sustainability in Historic Cities; Blackwell Publishing: Oxford, UK, 2007. [Google Scholar]
- Cannarozzo, T.; Rashed, A.Y.; Khalil, M. The Challenges of Sustainable Historical Centers: The Case of Rosette, Egypt. In Proceedings of the Fifth International Congress “Science and Technology for the Safeguard of Cultural Heritage in the Mediterranean Basin”, Istanbul, Turkey, 22–25 November 2011. [Google Scholar]
- Marino, V. Which Is the Task of the Historic Built Environment within the Development of a Smart City? In Proceedings of the SB13 Conference, Implementing Sustainability—Barriers and Chances, Munich, Germany, 24–26 April 2013; Fraunhofer IRB Verlag: Stuttgart, Germany, 2013; pp. 82–90. [Google Scholar]
- Okba, E.M.; Embaby, M.E. Sustainability and Heritage Buildings. Int. J. Eng. Res. Technol. 2013, 2, 1682–1690. [Google Scholar]
- Coleman, V. Conservation and Sustainability; NSW Heritage Office, National Trust of Australia: Sydney, Australia, 2004. [Google Scholar]
- Akande, O.K.; Odeleye, D.; Coday, A. Energy Efficiency for Sustainable Reuse of Public Heritage Buildings: The Case for Research. Int. J. Sustain. Dev. Plan. 2014, 9, 237–250. [Google Scholar] [CrossRef]
- ElSallab, M. Sustainable Adaptive Reuse; University of Alexandria, Faculty of Fine Arts: Alexandria, Egypt, 2014. [Google Scholar]
- Preservation in Action Pinnacle Award: Gerding Theater at the Armory, Architectural Heritage Center, News and Notes; The Bosco-Milligan Foundation: Oregon, Portland, 2009; Volume 17, p. 13. Available online: www.VisitAHC.org (accessed on 21 February 2013).
- Energy Efficiency and Renewable Energy: Buildings Database, Gerding Theater at the Armory: Energy; U.S. Department of Energy: Washington, DC, USA, 2012. Available online: buildingdata.energy.gov/content/gerding-theater-armory (accessed on 21 January 2012).
- Ruiz, A. NMTC-Funded Armory Project Becomes First on National Register of Historic Places to Win Platinum Designation for Sustainable Design; NMTC Monthly Report; Novogradac & Company LLP: San Francisco, CA, USA, 2006; Volume V, p. 1. [Google Scholar]
- AIA Top Ten Green Projects: Gerding Theater at the Armory, Energy; The American Institute of Architects: Washington, DC, USA, 2007; Available online: www.aiatopten.org/hpb/overview.cfm?ProjectID=833 (accessed on 21 March 2012).
- Abdel-Rahman, N.H. Alexandria’s Cultural Landscapes: Historical Parks between Originality and Deterioration, Coastal Cities and their Sustainable Future II. WIT Trans. Built Environ. 2017, 170, 73–83. [Google Scholar]
- Awad, M.F. Italy in Alexandria: Influences on the Built Environment; Alexandria Preservation Trust: Alexandria, Egypt, 2008. [Google Scholar]
- Cherstich, L. The role of Alexandria in Cyrenean cemeteries from ‘Ptolemization’ to Romanization. In Proceedings of the IX Symposium on Mediterranean Archaeology, Chieti, Italy, 24–26 February 2005. [Google Scholar]
- Venit, M.S. Monumental Tombs of Ancient Alexandria: The Theatre of the Dead; Cambridge University Press: New York, NY, USA, 2002. [Google Scholar]
- Mubarak, A. El Khitat el Tewfikieh el Guidida; Great Amiria Press of Boulaq: Cairo, Egypt, 1989; Volume 7. [Google Scholar]
- Hamdy, R. A Study of Plant Distribution in Nine Historic Gardens in Egypt. Gard. Hist. 2010, 38, 267–314. [Google Scholar] [CrossRef]
- Awad, M.F. Le modèle européen: L’évolution urbaine de 1807 à 1958. In Revue de l’Occident Musulman et de la Méditerranée; Entre Deux Mondes: Alexandrie, Egypt, 1987; pp. 93–109. [Google Scholar]
- Ilbert, R. Alexandrie, 1830–1930: Histoire d’une Communauté Citadine, Volume 1; Institut Français D’archéologie Orientale: Cairo, Egypt, 1996; Volume 112, Part 1. [Google Scholar]
- Bibliotheca Alexandrina International Food Fair, the Venue. 2008. Available online: http://www.bibalex.com/food/venue.html (accessed on 21 May 2018).
- Katba, K. “An Historical Account of Prime Ministers of Egypt 1878–1952”. From the Egyptian Chronicles May 2010 Issue. Available online: http://www.theegyptianchronicles.com/History/PRIMEMINISTERS33.html (accessed on 23 February 2015).
- Al-Ahram Weekly. “Summit Images” 23rd Match 2002. Available online: http://weekly.ahram.org.eg/2002/579/sum7.htm (accessed on 20 February 2015).
- Said, L. Heritage and Nationalism in Nasser’s Egypt, the Case of Belle Epoque Alexandria; Scottish Centre for Conservation Studies, The University of Edinburgh: Edinburgh, UK, 2016. [Google Scholar]
- Bibliotheca Alexandrina, “Signing an Agreement between the Bibliotheca Alexandrina (BA) and Alexander S. Onassis Public Benefit Foundation” Posted on 3 April 2006. Available online: https://www.bibalex.org/en/news/details?documentid=1021&keywords=antoniadis (accessed on 21 May 2018).
- NOUH (National Organization for Urban Harmony). Listed Touristic Buildings in Alexandria East District. Available online: http://www.urbanharmony.org/placedetails.asp?id=35 (accessed on 21 February 2015).
| 1 | Normalized power density is the energy consumed for lighting a square meter to 100 lux. |
| 2 | Set Point is the temperature at which the cooling or heating system starts, during the working hours. |
| 3 | Set Back Point is the temperature at which the cooling or heating starts, outside the working hours. |
| 4 | Coefficient of performance (CoP) is a ratio of useful heating or cooling provided to work required. |
| 5 | Energy Use Intensity (EUI) is the energy used per square meter per year and is calculated by dividing the total energy consumption in one year by the total gross floor area of the building, measured by kW/h/m2. |



































| Centre offices | Occupancy | Multipurpose hall | Occupancy | ||
| Occupancy density | 0.111 person/m2 | Occupancy density | 0.175 person/m2 | ||
| Occupancy schedule: | Occupancy schedule: | ||||
| For: Weekdays: | 12:00 a.m.–09:00 a.m. | 0% Occupancy | |||
| 12:00 a.m.–07:00 a.m. | 0% Occupancy | 09:00 a.m.–10:00 a.m. | 75% Occupancy | ||
| 07:00 a.m.–08:00 a.m. | 25% Occupancy | 10:00 a.m.–12:00 p.m. | 100% Occupancy | ||
| 08:00 a.m.–09:00 a.m. | 50% Occupancy | 12:00 p.m.–02:00 p.m. | 75% Occupancy | ||
| 09:00 a.m.–12:00 p.m. | 100% Occupancy | 02:00 p.m.–05:00 p.m. | 100% Occupancy | ||
| 12:00 p.m.–02:00 p.m. | 75% Occupancy | 05:00 p.m.–06:00 p.m. | 75% Occupancy | ||
| 02:00 p.m.–05:00 p.m. | 100% Occupancy | 06:00 p.m.–12:00 a.m. | 0% Occupancy | ||
| 05:00 p.m.–06:00 p.m. | 50% Occupancy | Metabolic rate per person | 140 W/person | ||
| 06:00 p.m.–07:00 p.m. | 25% Occupancy | Equipment | |||
| 07:00 p.m.–12:00 a.m. | 0% Occupancy | Equipment gain | 2 W/m2 | ||
| For: Weekends: | Equipment schedule | ||||
| Until: 12:00 a.m. | 0% Occupancy | 12:00 a.m.–09:00 a.m. | 5% Working | ||
| Metabolic rate per person | 123 W/person | 09:00 a.m.–10:00 a.m. | 76% Working | ||
| Equipment | 10:00 a.m.–12:00 p.m. | 100% Working | |||
| Equipment gain | 11.17 W/m2 | 12:00 p.m.–02:00 p.m. | 76% Working | ||
| Equipment schedule | 02:00 p.m.–05:00 p.m. | 100% Working | |||
| For: Weekdays: | 05:00 p.m.–06:00 p.m. | 76% Working | |||
| 12:00 a.m.–07:00 a.m. | 5% Working | 06:00 p.m.–12:00 a.m. | 0% Working | ||
| 07:00 a.m.–08:00 p.m. | 100% Working | ||||
| 08:00 p.m.–12:00 a.m. | 5% Working | ||||
| For: Weekends: | |||||
| Until: 12:00 a.m. | 5% Working | ||||
| Hotel rooms | Occupancy | Exhibition | Occupancy | ||
| Occupancy density | 0.0944 person/m2 | Occupancy density | 0.1497 person/m2 | ||
| Occupancy schedule: | Occupancy schedule: | ||||
| 12:00 a.m.–08:00 a.m. | 100% Occupancy | For: Weekdays: | |||
| 08:00 a.m.–09:00 a.m. | 25% Occupancy | 12:00 a.m.–07:00 a.m. | 0% Occupancy | ||
| 09:00 a.m.–09:00 p.m. | 0% Occupancy | 07:00 a.m.–08:00 a.m. | 25% Occupancy | ||
| 09:00 p.m.–10:00 p.m. | 25% Occupancy | 08:00 a.m.–09:00 a.m. | 50% Occupancy | ||
| 10:00 p.m.–11:00 p.m. | 75% Occupancy | 09:00 a.m.–12:00 p.m. | 100% Occupancy | ||
| 11:00 p.m.–12:00 a.m. | 100% Occupancy | 12:00 p.m.–02:00 p.m. | 75% Occupancy | ||
| Metabolic rate per person | 104 W/person | 02:00 p.m.–05:00 p.m. | 100% Occupancy | ||
| Equipment | 05:00 p.m.–06:00 p.m. | 50% Occupancy | |||
| Equipment gain | 3.15 W/m2 | 06:00 p.m.–07:00 p.m. | 25% Occupancy | ||
| Equipment schedule | 07:00 p.m.–12:00 a.m. | 0% Occupancy | |||
| 12:00 a.m.–07:00 a.m. | 7% Working | For: Weekends: | |||
| 07:00 a.m.–08:00 a.m. | 53% Working | Until: 12:00 a.m. | 0% Occupancy | ||
| 08:00 a.m.–09:00 a.m. | 100% Working | Metabolic rate per person | 180 W/person | ||
| 09:00 a.m.–10:00 a.m. | 53% Working | Equipment | |||
| 09:00 a.m.–05:00 p.m. | 7% Working | Equipment gain | 3.5 W/m2 | ||
| 05:00 p.m.–06:00 p.m. | 30% Working | Equipment schedule | |||
| 06:00 p.m.–07:00 p.m. | 53% Working | 12:00 a.m.–08:00 a.m. | 5% Working | ||
| 07:00 p.m.–08:00 p.m. | 77% Working | 08:00 a.m.–06:00 p.m. | 100% Working | ||
| 08:00 p.m.–10:00 p.m. | 100% Working | 06:00 p.m.–12:00 a.m. | 5% Working | ||
| 10:00 p.m.–11:00 p.m. | 77% Working | ||||
| 11:00 p.m.–12:00 a.m. | 30% Working | ||||
| Kitchens | Occupancy | Dining Halls | Occupancy | ||
| Occupancy density | 0.108 person/m2 | Occupancy density | 0.2 person/m2 | ||
| Occupancy schedule: | Occupancy schedule: | ||||
| 12:00 a.m.– 06:00 a.m. | 0% Occupancy | 12:00 a.m.–07:00 a.m. | 0% Occupancy | ||
| 06:00 a.m.–07:00 a.m. | 25% Occupancy | 07:00 a.m.–09:00 a.m. | 25% Occupancy | ||
| 07:00 a.m.–08:00 a.m. | 75% Occupancy | 09:00 a.m.–12:00 p.m. | 50% Occupancy | ||
| 08:00 a.m.–02:00 p.m. | 100% Occupancy | 12:00 p.m.–02:00 p.m. | 100% Occupancy | ||
| 02:00 p.m.–03:00 p.m. | 75% Occupancy | 02:00 p.m.–03:00 p.m. | 50% Occupancy | ||
| 03:00 p.m.–05:00 p.m. | 25% Occupancy | 03:00 p.m.–06:00 p.m. | 25% Occupancy | ||
| 05:00 p.m.–06:00 p.m. | 75% Occupancy | 06:00 p.m.–10:00 p.m. | 100% Occupancy | ||
| 06:00 p.m.–10:00 p.m. | 100% Occupancy | 10:00 p.m.–11:00 p.m. | 50% Occupancy | ||
| 10:00 p.m.–11:00 p.m. | 75% Occupancy | 11:00 p.m.–12:00 a.m. | 0% Occupancy | ||
| 11:00 p.m.–12:00 a.m. | 25% Occupancy | Metabolic rate per person | 110 W/person | ||
| Metabolic rate per person | 180 W/person | Equipment | |||
| Equipment | Equipment gain | 18.88 W/m2 | |||
| Equipment gain | 42.24 W/m2 | Equipment schedule | |||
| Equipment schedule | 12:00 a.m.–07:00 a.m. | 5% Working | |||
| 12:00 a.m.–07:00 a.m. | 5% Working | 07:00 a.m.–11:00 p.m. | 100% Working | ||
| 07:00 a.m.–11:00 p.m. | 100% Working | 08:00 p.m.–12:00 a.m. | 34% Working | ||
| 11:00 p.m.–12:00 a.m. | 33% Working | ||||
![]() | ![]() |
| External walls of the 1860s section: 50 cm thick brick walls with 20 cm thick concrete for structural consolidation. | Internal walls of the 1860s section: 50 cm walls with 20 cm concrete on both sides for structural consolidation. |
![]() | ![]() |
| Old walls of the 1930s section: 50 cm thick brick walls. | 20 cm thick concrete wall for the new extension under the terraces. |
![]() | |
| Roof |
![]() | ![]() |
| External 50 cm thick brick walls with 20 cm thick concrete with internal fiber glass board insulation. | Old 50 cm thick brick walls with internal fiber glass board insulation. |
![]() | ![]() |
| 20 cm thick concrete wall with internal fiber glass board insulation. | Roof layers with thermal insulation. |
![]() | |
| New 10 cm thick brick wall with internal fiber glass board insulation. |
© 2018 by the authors. Licensee MDPI, Basel, Switzerland. This article is an open access article distributed under the terms and conditions of the Creative Commons Attribution (CC BY) license (http://creativecommons.org/licenses/by/4.0/).
Share and Cite
Khalil, A.M.R.; Hammouda, N.Y.; El-Deeb, K.F. Implementing Sustainability in Retrofitting Heritage Buildings. Case Study: Villa Antoniadis, Alexandria, Egypt. Heritage 2018, 1, 57-87. https://doi.org/10.3390/heritage1010006
Khalil AMR, Hammouda NY, El-Deeb KF. Implementing Sustainability in Retrofitting Heritage Buildings. Case Study: Villa Antoniadis, Alexandria, Egypt. Heritage. 2018; 1(1):57-87. https://doi.org/10.3390/heritage1010006
Chicago/Turabian StyleKhalil, Ahmed M. R., Naglaa Y. Hammouda, and Khaled F. El-Deeb. 2018. "Implementing Sustainability in Retrofitting Heritage Buildings. Case Study: Villa Antoniadis, Alexandria, Egypt" Heritage 1, no. 1: 57-87. https://doi.org/10.3390/heritage1010006
APA StyleKhalil, A. M. R., Hammouda, N. Y., & El-Deeb, K. F. (2018). Implementing Sustainability in Retrofitting Heritage Buildings. Case Study: Villa Antoniadis, Alexandria, Egypt. Heritage, 1(1), 57-87. https://doi.org/10.3390/heritage1010006











