Next Article in Journal
Critical Review of the Parameters Affecting the Effectiveness of Moisture Absorption Treatments Used for Natural Composites
Previous Article in Journal
Preparation and Thermal Analysis of Blended Nanoaluminum/Fluorinated Polyether-Segmented Urethane Composites
Previous Article in Special Issue
Axial Compressive Stress-Strain Model Developed for FRP-Confined Concrete Columns with Elliptical Cross Sections
 
 
Font Type:
Arial Georgia Verdana
Font Size:
Aa Aa Aa
Line Spacing:
Column Width:
Background:
Article

Reinforced Concrete Corbel Strengthened Using Carbon Fiber Reinforced Polymer (CFRP) Sheets

by
Rafael Alves de Souza
1,*,
Leandro Mouta Trautwein
2 and
Mauricio de Pina Ferreira
3
1
Civil Engineering Department, State University of Maringá (UEM), 87020-900 Maringá, Brazil
2
Structures Department, University of Campinas (UNICAMP), 13083-970 Campinas, Brazil
3
Faculty of Civil Engineering, Federal University of Pará (UFPA), 66075-110 Belém, Brazil
*
Author to whom correspondence should be addressed.
J. Compos. Sci. 2019, 3(1), 26; https://doi.org/10.3390/jcs3010026
Submission received: 20 December 2018 / Revised: 25 February 2019 / Accepted: 11 March 2019 / Published: 15 March 2019
(This article belongs to the Special Issue FRP Composites in Structural Concrete)

Abstract

This paper presents and discusses the procedures adopted for repairing and strengthening a damaged reinforced concrete corbel of an industrial biomass boiler. The reinforced concrete corbel was subjected to concrete spalling, favoring the risk of the main tie reinforcement slip in the anchorage zone. The proposed solution involved a local repair with a polymeric mortar and subsequent strengthening using carbon fiber reinforced polymer (FRP) sheets, attending the requirements imposed by the in site conditions and the design plans. The intervention allowed the confinement of the concrete zone subjected to spalling and provided additional safety for the main tie reinforcement of the corbel. The applied technique was demonstrated to be fast, reliable, practical, and cheaper than other available solutions, such as section enlargements with concrete jacketing.

1. Introduction

Corbels are structural members projecting from columns or walls that are generally used to support precast concrete/steel beams or to allow the execution of expansion joints in concrete structures. As they are short elements usually subject to interferences from other parts of the structure, the strengthening of a corbel may be a challenging task.
In situations where the corbel to be strengthened presents neighboring corbels, an alternative may be the use of prestressing forces, both internal or external, noting that this technique can even be used to add new corbels to the columns. Figure 1 presents an example of prestressing forces applied to the creation of new corbels in 57 columns of a building, as shown in Voumard [1].
Godycka [2] studied the behavior of reinforced concrete corbels subjected to an initial load capable of originating the first inclined cracks. After that, the corbels were unloaded and strengthened using two external threaded bars anchored in steel plates. Lachowicz and Godycka [3] investigated the experimental performance of reinforced concrete corbels with post-tensioned threaded bars. The corbels had two threaded bars installed in PVC (Polyvinyl chloride) pipes, which were tensioned after casting of the concrete. Unlike Godycka’s work [2], the main tie of these corbels consisted only of the threaded bars and not threaded bars and passive reinforcements. The experimental results showed the efficiency of prestressing as a solution for the strengthening of corbels, and it has been widely used to improve the performance of other types of structures, such as beams and pile caps.
If the corbel does not present neighboring corbels in the support column, the intervention may be more comfortable, especially when using carbon fiber reinforced polymers (CFRP), sheets, or laminate strips. Figure 2 presents a corbel strengthened with CFRP strips investigated by Souza et al. [4] and Souza [5]. As one can see, the lateral faces of the corbels were cut using a diamond saw, and CFRP laminate strips of 2 mm by 16 mm were attached into the slits using epoxy adhesive. This technique, known as near-surface mounted (NSM), is attractive if the reinforcement concrete cover is large enough, and its efficiency has been proven by several researchers (Kuntal et al. [6], Al-Mahmoud et al. [7] and Barros and Dias [8]).
Strengthening of reinforced concrete corbels using CFRP sheets is also a powerful technique, especially when the continuity of the layers is possible, i.e., when there are no obstacles like neighboring corbels/beams in the orthogonal directions. This technique, known as externally bonded reinforcing (EBR), is usually less attractive than the NSM technique based on the load carrying capacity, deformability, and its time-consuming nature. However, for some types of problems where confinement and strength are necessary, this technique is supposed to be a better alternative.
The present paper is aimed at presenting a real intervention using this technique, where a reinforced concrete corbel of an industrial biomass boiler was strengthened in order to avoid concrete spalling and enhance the load-carrying capacity of the main tie reinforcement. The field intervention was successful, and after three years, the repaired structure has been working properly without presenting pathologies like cracks or concrete spalling.

2. Behavior of Reinforced Concrete Corbels

Corbels are usually considered as generalized discontinuous regions (“D regions”), i.e., regions where the Euler–Bernoulli plane section hypothesis is not valid. For the design of “D regions”, it is necessary to know the path of the internal stresses in the structure, which can be carried out intuitively through the “load path approach”. This problem is also addressed in the design practice by the implementation of empirical or semiempirical recommendations provided by the design codes or by linear elastic computational analyses.
The behavior of a reinforced concrete corbel may be defined taking into account the relationship between the shear span (av) and the effective depth (d), known as the a/d ratio. For corbels with a/d ratio larger than 1.0, the considered behavior is assumed to be similar to that of a conventional cantilever beam.
If the a/d ratio is less than 1.0, the corbel is usually defined as short or very short, and the “strut-and-tie method” (STM), as presented by Schlaich and Schafer [9] and Schlaich et al. [10], should be applied for the design/analysis. The Brazilian code for the design of concrete structures (ABNT NBR 6118 [11]) recommends STM for the design and assessment of corbels and permits the solution with different truss models (discrete representations of the stress fields in the structural elements), provided that they are based on experimental evidence or derived from basic models widely proven by tests. In the STM, compression fields are represented by struts (concrete), while ties (steel reinforcement) are used to represent the tensile fields.
The typical behavior of a short corbel may be described by a truss model that contemplate the overall equilibrium of the element, where the tie reinforcement anchors in the strut under the external load on one side and anchors in the column on the other side. The diagonal strut runs from the loading point to the face of the support, making use of the available depth. According to ABNT NBR 6118 [9], the following aspects are fundamental to the adequate behavior of a corbel:
  • appropriate anchorage of the reinforcement;
  • assurance of reinforcement yielding before concrete crushing by limiting the ratio of the tie reinforcement;
  • checking the strut stress or the equivalent shear stress at the loading bearing face in order to avoid brittle failure; and
  • consideration of horizontal forces in the design of corbels and the consequent unfavorable effect on the slope of the resultant F d (Figure 3).
Figure 4 presents a typical damage that may appear at the uttermost face of a reinforced concrete corbel, according to Neupane et al. [12]. The presence of cracks or concrete spalling in the nib of the corbel is probably due to the following conditions: inadequate dimensions or positioning of the load bearing plate, lack of complementary reinforcement in the bends of the main tie reinforcement, overloading during the use of the structure, or insufficient anchorage length.
In order to have the load bearing plate working appropriately, the face of the plate must be fully supported on the interior of the corbel. If the upper face of the corbel is not leveled, some points on the surface may be subject to higher stresses, which can lead to localized damages in the concrete. Also, if the face of the bearing pad is in the same line of the nib edge of the corbel, a local failure (spalling) of the concrete is expected.
In general, it is not recommended to place the load bearing plate close to the edges of the vertical nib face of the corbel. The surroundings of the bearing plate are highly stressed, and unevenness on the corbels’ dimensions due to construction mistakes can result in cracks, spalling of the concrete, or other kinds of structural damage.
Spalling or cracking at the end of the corbel is even more critical for uneven surfaces or with support devices subjected to rotations. One way of reducing the probabilities of concrete spalling at the end of the corbel is to incorporate a chamfer in the nib corner (20 mm by 20 mm, for example) and positioning the outer edge of the load bearing plate at least 30 mm from the chamfer, i.e., at least 50 mm from the nib (vertical face) of the corbel.
According to item 22.5.1.4.1 of ABNT NBR6118 [11], as the main tie reinforcement is short, it is essential to be aware of its anchorage at both ends, especially at the edges of the corbel, close to the bearing plate. In this zone, it is recommended to avoid hooks in tie reinforcement in the vertical plane in order to preclude failures by corner break or spalling of the concrete cover. These vertical hooks can only be accepted in continuous corbels, with the width “b” of the corbel greater than four times its length and in the presence of small horizontal and vertical loads. In regular situations, a more efficient anchorage in this zone can be obtained by detailing the main tie reinforcement with horizontal hooks (loop bar) or to weld them to transverse rebars or steel angles, as shown in Figure 3.
The Brazilian code, in item 22.5.1.4.2, requires that the position and dimensions of the load bearing plate must be adopted in such a way that the main tie embraces the diagonal strut. The unfavorable effect of the resulting slope of the load on the bearing plate due to the horizontal forces should always be considered in the design of the main tie reinforcement. The code also specifies in item 22.5.1.4.3 that short or very short corbels are not allowed to be designed without crack control reinforcement, which can be formed by horizontal stirrups. This skin reinforcement shall be designed to reach a minimum of 40% of the main tie reinforcement and should be distributed over 2/3 of the effective depth (d) of the corbel, as shown in Figure 3.

3. Description of the Damaged Reinforced Concrete Corbel

Figure 5 illustrates an industrial biomass boiler situated in Maringá, Paraná State, Brazil. In this complex industrial plant, consisting of steel and reinforced concrete structures, a reinforced concrete corbel supporting one single W-beam (347/7.7 × 203/13.5 × 3550 mm) presented severe concrete spalling at the vertical uppermost face of the corbel.
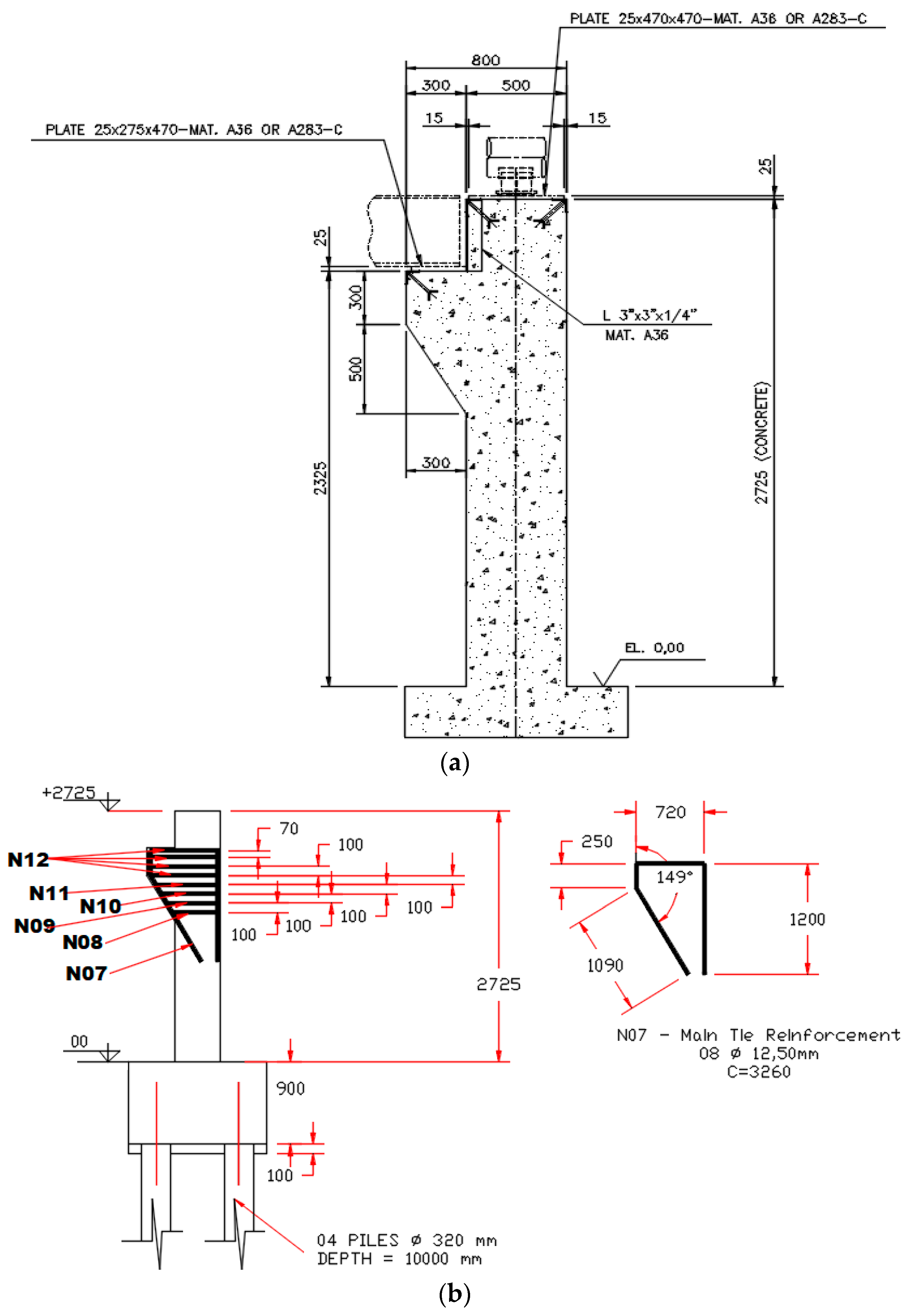
Theoretical estimates pointed that this very short corbel (a/d ratio of approximately 0.20) was supporting a characteristic vertical load of about 355 kN, taking into account the available tie reinforcement and loading conditions (self-weight of the W-beam and some pipes made with tube NPS 8” SCH 120 × 4013). After examination of the design plans of the structure (the most relevant data are summarized in Figure 6), it was concluded that a better detailing could have allowed a better performance under use. The main steel reinforcement consisted of 8 bars with a diameter of 12.5 mm with a characteristic yielding strength of 500 N/mm2, leading to a mechanical reinforcement ratio (ϖ = As,tie × fyk/b × d × fck = 8 × 1.22 × 50/50 × 76 × 2) of about 0.06, taking into account a concrete of characteristic compressive strength of 20 N/mm2.
The adopted mechanical reinforcement ratio is higher than the minimum mechanical reinforcement ratio of 0.04 prescribed by ABNT NBR6118 [11]. However, the main tie reinforcement was detailed using vertical hooks, as shown in Figure 6. The framing bars (constructive reinforcement) and the main tie bars have become the same bar in order to facilitate the positioning of the secondary horizontal bars (skin reinforcement). As seen, ABNT NBR6118 [11] indicates horizontal hooks (loop bar) or crossbar welded to the main tie in order to better anchor the tie as well as to avoid concrete spalling at the nib of the corbel.
The skin reinforcement (the secondary group of horizontal rebars) of the corbel is constituted by four horizontal stirrups of 10 mm distributed along the flat height of the corbel and five horizontal stirrups of 10 mm distributed along the inclined height of the corbel. This reinforcement was considered adequate and contributes to the control of potential cracks that could arise in the concrete strut by diagonal tension. No secondary vertical reinforcement (vertical stirrups) was detailed for the corbel. This was not considered a significant design mistake, but the vertical reinforcement could also collaborate to crack control besides increasing the load carrying capacity of the diagonal strut.
Once the dimensions and reinforcement of the corbel were verified, visits to the site were made in order to check the construction conformity. It was then concluded that the main reason for the concrete spalling was the utilization of vertical hooks for the main tie as well as the incorrect position of the load bearing steel plate. As can be seen in Figure 6, the W-beam is supported by a 25 × 275 × 470 steel plate, and this steel plate is welded in 3″ × 3″ × 1/4″ steel angles that are facing the corners of the corbel. The face of the steel plate should be retreated at a distance of about c + 3.5ϕ (2 + 3 × 12.5 = 57.5 mm), as recommended by ABNT NBR6118 [11] in Figure 3.
Considering the poor positioning of the steel bearing plate and the rotational/translational movements of the existing W-beam over the corbel, the uttermost face of the corbel was subjected to concrete spalling. Once the movement of the W-beam was difficult due to the presence of many pipes leaning over this beam and taking account that the industrial biomass boiler could not be interrupted, a solution using CFRP sheets was proposed.
The proposed solution using CFRP sheets was idealized to simultaneously increase the strength of the main tie reinforcement and confine the concrete that was spalling, thus jeopardizing the anchorage zone of the reinforcement bars. Also, the proposed solution, wrapping the corbel and the column with CFRP sheets, would be able to correct the issues related to the lack of vertical secondary reinforcement and the questionable utilization of vertical hooks for the main tie reinforcement. Laboratory researches (Neupane et al. [12] and Ivanova et al. [13]) have indicated that this kind of solution can increase the load capacity of corbels, especially in the elastic range, with an increase of about 20%. The steps of this rehabilitation are described in detail in the next section.

4. Strengthening Procedures

The first step in the rehabilitation process of the corbel was to unload the W-beam using a hydraulic jack with capacity to hold 100 ton. The jack was supported by a crib constructed with wood beams, as shown in Figure 7. This task was made in order to release the corbel from the vertical load and make the repair and strengthening more effective when the W-beam would be back to service.
After shoring the structure, it was possible to start the repair of the spalled concrete. As shown in Figure 8a, the damaged material was removed using a chisel and a sledgehammer until an intact concrete layer was found. The substrate was then cleaned in order to remove all powdery and dust materials using a vacuum cleaner, and a bonding bridge with styrene butadiene (SBR) was applied in order to improve the properties of adhesion of the substrate with the polymer-modified mortar.
The dry polymer-modified mortar without coarse aggregate and an acrylic emulsion were then applied in 20 mm layers, as shown in Figure 8b. Polymer-modified mortar is defined as a hydraulic cement combined at the time of mixing with organic polymers that are dispersed or re-dispersed in water, and it is generally known that the drying shrinkage of cement mortars modified by polymer emulsions (except polyvinyl acetate emulsion) is lower than that of unmodified cement mortars (Tokumoto [14]). The repaired surface was then straightened using a square trowel, and a curing process by sprinkle water was arranged.
After 24 h, the repaired surface and the original surface surrounding the corbel were polished using a small angle grinder, as shown in Figure 8d. Concrete repair and uneven surfaces must be equalized before the application of the CFRP sheets, and for that reason, the equalization of the surfaces were made using epoxy resin, as shown in Figure 8e,f. The grinding of the corners of the column and the corbel was also necessary in order to produce rounding corners, with radius higher than 25 mm in order to better wrap the structure using the CFRP sheets.
Figure 9 shows the proposed strengthening using one single layer of CFRP sheet using the EBR technique. The selected material was the S&P C-Sheet 240, a unidirectional carbon fiber fabric with high strength properties. As one can see, the selected FRP sheet had a tensile strength of 4300 N/mm2, a weight of 300 g/m2, and width of 0.168 mm. The proposed strengthening was defined based on the strut-and-tie model to be presented in the next section.
It is important to observe that the sharp edges of the column section (corners) were mechanically rounded before placing the composite material using a minimum radius of 30 mm. This procedure is very important in order to avoid excessive stress concentrations in the CFRP sheet folded in the column (fib Task Group 9.3 [15] and Balázs [16]) Otherwise, the design strain of the CFRP sheet should be reduced by a reduction factor dependent on the corner ray.
Figure 10 shows the procedures used to install the CFRP sheet in the reinforced concrete corbel. The first step (Figure 10a) was to cut the blanket to the recommended length in order to have the appropriate overlapping length. The overlapping length in the fiber direction is usually recommended to be higher than 150 mm. For the proposed intervention, an overlapping length of 500 mm (the same width of the column) was used.
Once the CFRP blanket was cut, a primer resin was applied to the treated surface. The system “wet on wet” was used, i.e., with the primer still wet when the blanket was applied, as shown in Figure 10c. Epoxy resin was used for impregnation of the blanket. The excess of epoxy resin was squeezed out using a celluloid spatula (see Figure 10d), and a bubble buster roller was used to avoid the presence of bubbles in the applied wrapping.
After 24 h, an epoxy paint was applied over the CFRP blanket and also in the whole column/corbel, as shown in Figure 10e,f. When properly catalyzed and applied, epoxy coating produces a hard, chemical- and solvent-resistant finish, enhancing the resistance to water, alkali, and acids. After three years of the described intervention, the work done still preserves the quality and looks as new. No cracks or concrete spalling were observed again, and the structure has been kept under monitoring to check the performance throughout the next years. Basically, visual inspections and sonic auscultations are annually conducted in order to check the applied solution under loading.

5. Strut-and-Tie Model for the Security Verification

In the design of the proposed strengthening solution that applied CFRP sheets, the strut-and-tie model presented in Figure 11a was used. In order to optimize the design process, a free software package called CAST (Computer Aided Strut-and-Tie) was employed. CAST is a computer-based graphical working environment in which the designer can readily sketch the boundaries of D-regions, draw an internal load-resisting truss and obtain the members’ forces, readily select the dimensions of struts and nodes, and select the reinforcement for the ties. Results are graphically summarized, and the software continuously recalculates the forces and stresses, providing an interactive design tool. More details about CAST can be obtained in Tjhin and Kuchma [17].
A vertical design load of 550 kN and a horizontal design load of 30 kN were considered in the investigation. Therefore, a resultant design force of 551 kN inclined 86.9° to the horizontal direction was applied. The parameters recommended by ACI-318 [18] for struts, ties, and nodes were adopted and, based on ACI 440.2R-08 [19], an environmental reduction factor (CE) of 0.85 (exterior exposure, was considered as appropriate for this situation.
The design values for forces and materials were defined, and the structural analysis of the proposed strut-and-tie model was carried using CAST. Figure 11b shows these results, and one can see that all elements (struts, ties, and nodes) have appropriate stress levels, confirming the adequacy of the proposed strengthening solution.
It should be observed that an equivalent tie (element E4) was assumed in order to simulate the simultaneous contribution of the CFRP strengthening (one sheet in each face of the column with a cross section of 300 mm by 0.168 mm). This tie also comprises the contribution given by the initially placed reinforcement, formed by 8 rebars with 12.5 mm diameter. Based on the strength and sections of the materials, the equivalent tie was considered to be formed by 16 bars of 12.5 mm, with a total area of about 19,500 mm2. This procedure was defined in order to have a more economical strengthening, taking into account the contribution of the original reinforcement tie. If the contribution given by the initially placed reinforcement were entirely ignored, more than one single sheet in each face of the corbel would be needed.
Once the CFRP maximum design force was similar to the maximum design force taken by the original reinforcement tie, the position of the equivalent tie resultant was considered to be the arithmetic mean of the internal level arms of the mentioned ties, leading to positioning of about 90 mm from the top face of the corbel. The maximum design force for the CFRP strengthening was 331.58 kN (ϕ × CE × ffu × Af = 0.90 × 0.85 × 4300 N/mm2 × 2 plies × 0.168 mm/ply × 300 mm), while the maximum design force for the original tie was 366 kN (ϕ × fy × As = 0.75 × 500 N/mm2 × 8 bars × 122 mm2) based on the strengths and safety factors assumed.

6. Conclusions

The present paper has shown the repairing and strengthening of a reinforced concrete corbel belonging to an industrial biomass boiler. Taking into account the incorrect positioning of the load bearing plate, concrete spalling of the nib of the corbel was occurring, jeopardizing the anchorage zone of the main tie reinforcement.
Although the amount of the main tie reinforcement was well designed, a detail that was not recommended for this reinforcement was being used. The main tie reinforcement was detailed using vertical hooks, and this fact may have also contributed to the observed concrete spalling. ABNT NBR6118 [11] indicated horizontal hooks (loop bar) or crossbars welded to the main tie in order to better anchor the tie as well as to avoid concrete spalling at the nib of the corbel. Besides that, no vertical secondary reinforcement (vertical stirrups) was found in a way that the strength of the diagonal strut should be weakened.
Taking into account the issues mentioned, repair using a polymer-modified mortar and strengthening using CFRP by EBR was recommended. The proposed intervention was able to increase the strength and the ductility of the corbel by external wrapping (jacketing) and has brought confidence to the local workers who were previously scared of the concrete spalling. The CFRP blanket has promoted the confinement of the concrete and avoided the spalling of the nib of the corbel, increasing the service life and durability.
In order to certify the strengthening proposal, a strut-and-tie model based on the ACI-318 [18] was investigated using the package software CAST. The strut-and-tie model considered an equivalent tie in order to simulate the simultaneous contribution of the original reinforcement tie and the CFRP strengthening, thus ensuring a more economical approach. The adequate stress levels obtained for the nodes, struts, and ties certified that one single CFRP sheet is enough to provide safety for the damaged corbel.
The intervention process was versatile, simple, and economical, especially considering that the interdiction of the industrial biomass boiler was avoided, thus eliminating significant financial losses. The industrial boiler works 24 h every day, 365 days a year, and a solution with less movement of the W-beam and the pipes of the industrial plant was only possible using FRP sheets.

Author Contributions

Conceptualization, R.A.d.S.; Methodology, R.A.d.S., L.M.T. and M.d.P.F.; Software, R.A.d.S.; Validation, R.A.d.S., L.M.T. and M.d.P.F.; Formal Analysis, R.A.d.S.; Investigation, L.M.T.; Resources, M.d.P.F.; Data Curation, R.A.d.S.; Writing-Original Draft Preparation, R.A.d.S., L.M.T. and M.d.P.F.; Writing-Review & Editing, R.A.d.S., L.M.T. and M.d.P.F.; Visualization, R.A.d.S.; Supervision, R.A.d.S.; Project Administration, R.A.d.S.; Funding Acquisition, R.A.d.S.

Funding

This research received no external funding.

Conflicts of Interest

The authors declare no conflict of interest.

References

  1. Voumard, J.M. Precast Corbels Fitted to Columns. In Fib Bulletin 61: Design Examples for Strut-and-Tie Models; fib (Fédération Internationale du Béton): Lausanne, Switzerland, 2011. [Google Scholar]
  2. Godycka, N.K. Behavior of corbels with external prestressing bars—Experimental study. Aci Struct. J. 1999, 96, 1033–1039. [Google Scholar]
  3. Lachowicz, M.; Nagrodzka-godycka, K. Experimental study of the post tensioned prestressed concrete corbels. Eng. Struct. 2016, 108, 1–11. [Google Scholar] [CrossRef]
  4. Souza, R.A.; Tranalli, P.P.; Bittencourt, T.N.; Martin, G.G. Análise Experimental e Analítica de Consolos Curtos de Concreto Armado Reforçados com Fibras de Carbono. In Proceedings of the 48 Congresso Brasileiro do Concreto, Rio de Janeiro, Brazil, 22–27 September 2006. [Google Scholar]
  5. Souza, R.A. Experimental and Numerical Analysis of Reinforced Concrete Corbels Strengthened with Fiber Reinforced Polymers. In Computational Modelling of Concrete Structures, 1st ed.; CRC Press/Balkema: Delft, The Netherlands, 2010; Volume 1, pp. 711–718. [Google Scholar]
  6. Kuntal, V.S.; Chellapandian, M.; Prakash, S.S. Efficient near surface mounted CFRP shear strengthening of high strength prestressed concrete beams—An experimental study. Compos. Struct. 2017, 180, 16–28. [Google Scholar] [CrossRef]
  7. Al-mahmoud, F.; Castel, A.; François, R.; Tourneur, C. Strengthening of RC members with near-surface mounted CFRP rods. Compos. Struct. 2009, 180, 138–147. [Google Scholar] [CrossRef]
  8. Barros, J.A.O.; Dias, S.J.E. Near surface mounted CFRP laminates for shear strengthening of concrete beams. Cem. Concr. Compos. 2006, 28, 276–292. [Google Scholar] [CrossRef]
  9. Schlaich, J.; Schafer, K. Design and detailing of structural concrete using strut-and-tie models. Struct. Eng. 1991, 32, 113–125. [Google Scholar]
  10. Schlaich, J.; Schafer, K.; Jennewein, M. Toward a consistent design of structural concrete. PCI J. 1987, 32, 74–150. [Google Scholar] [CrossRef]
  11. Associação Brasileira de Normas Técnicas. Projeto de Estruturas de Concreto—Procedimento; NBR 6118; ABNT: Rio de Janeiro, Brazil, 2014. [Google Scholar]
  12. Neupane, R.C.; Eddy, L.; Nagai, K. Investigation on Strengthening Approaches Adopted for Poorly Detailed RC Corbels. Fibers 2017, 5, 16. [Google Scholar] [CrossRef]
  13. Ivanova, I.; Assih, J.; Li, A.; Dontchev, D.; Delma, Y. Experimental investigation into strengthened short reinforced concrete corbels by bonding carbon fiber fabrics. J. Adhes. Sci. Technol. 2015, 29, 2176–2189. [Google Scholar] [CrossRef]
  14. Tokumoto, M. A Study on Drying Shrinkage of Cement Mortars with Acrylic Polymer Emulsion. J. Soc. Mater. Sci. 1975, 24, 314–319. [Google Scholar] [CrossRef]
  15. fib Task Group 9.3. FRP (Fibre Reinforced Polymer) Reinforcement for Concrete Structures. In Externally Bonded FRP Reinforcement for RC Structures; fib Bulletin 14; fib (Féderation Internationale du Béton): Lausanne, Switzerland, 2001. [Google Scholar]
  16. Balázs, G.L. Detailing, Technological Aspects and Durability. In Retrofitting of Concrete Structures by Externally Bonded FRPs; fib Bulletin 35; fib (Féderation Internationale du Béton): Lausanne, Switzerland, 2006; pp. 29–40. [Google Scholar]
  17. Tjhin, T.N.; Kuchma, D.A. Computer-Based Tools for Design by Strut-and-Tie Method: Advances and Challenges. Aci Struct. J. 2002, 99, 586–594. [Google Scholar]
  18. American Concrete Institute. Building Code Requirements for Structural Concrete (ACI 318-2014) and Commentary (ACI 318R-2014); ACI Committee 318; American Concrete Institute: Detroit, MI, USA, 2014. [Google Scholar]
  19. American Concrete Institute. Guide for the Design and Construction of Externally Bonded FRP Systems for Strengthening Concrete Structures; ACI 440.2R-08; Farmington: Hills, MI, USA, 2008. [Google Scholar]
Figure 1. Corbel strengthened using prestressing bars (Source: Voumard [1]).
Figure 1. Corbel strengthened using prestressing bars (Source: Voumard [1]).
Jcs 03 00026 g001
Figure 2. Corbel strengthened using carbon fiber reinforced polymers (CFRP) laminate strips using the near surface mounted method: (a) cut of the lateral faces; (b) lateral cut finished; (c) laminate strips glued with resin epoxy in the slits; and (d) reinforced concrete corbel strengthened with CFRP laminate strips being tested. (Source: Souza et al. [4]).
Figure 2. Corbel strengthened using carbon fiber reinforced polymers (CFRP) laminate strips using the near surface mounted method: (a) cut of the lateral faces; (b) lateral cut finished; (c) laminate strips glued with resin epoxy in the slits; and (d) reinforced concrete corbel strengthened with CFRP laminate strips being tested. (Source: Souza et al. [4]).
Jcs 03 00026 g002
Figure 3. Typical reinforcement for corbels according to ABNT NBR6118 [11].
Figure 3. Typical reinforcement for corbels according to ABNT NBR6118 [11].
Jcs 03 00026 g003
Figure 4. Spalled reinforced concrete corbel due to the inadequate position of the load bearing plate (Source: Neupane et al. [12]).
Figure 4. Spalled reinforced concrete corbel due to the inadequate position of the load bearing plate (Source: Neupane et al. [12]).
Jcs 03 00026 g004
Figure 5. (a) Biomass industrial boiler; (b) reinforced concrete corbel supporting a W-beam; and (c) detail of the spalled concrete at the face of the corbel due to inadequate position of the load bearing plate.
Figure 5. (a) Biomass industrial boiler; (b) reinforced concrete corbel supporting a W-beam; and (c) detail of the spalled concrete at the face of the corbel due to inadequate position of the load bearing plate.
Jcs 03 00026 g005
Figure 6. (a) Dimensions of the reinforced concrete corbel and column supporting the W-beam and (b) main tie reinforcement found in the structural design shop drawings.
Figure 6. (a) Dimensions of the reinforced concrete corbel and column supporting the W-beam and (b) main tie reinforcement found in the structural design shop drawings.
Jcs 03 00026 g006
Figure 7. Jacking of the W-beam in order to relieve the reinforced concrete corbel to be repaired.
Figure 7. Jacking of the W-beam in order to relieve the reinforced concrete corbel to be repaired.
Jcs 03 00026 g007
Figure 8. Initial procedures for the damaged corbel: (a) manual scarification of the loose concrete, (b) application of polymer-modified mortar in the scarified surface; (c) straightening of the applied polymeric mortar; (d) regularization of the surfaces using a small angle grinder; (e) surface holes and voids filled using epoxy resin; and (f) standardization of the surfaces using epoxy resin.
Figure 8. Initial procedures for the damaged corbel: (a) manual scarification of the loose concrete, (b) application of polymer-modified mortar in the scarified surface; (c) straightening of the applied polymeric mortar; (d) regularization of the surfaces using a small angle grinder; (e) surface holes and voids filled using epoxy resin; and (f) standardization of the surfaces using epoxy resin.
Jcs 03 00026 g008
Figure 9. Proposed strengthening for the damaged reinforced concrete corbel and properties of the CFRP sheets selected.
Figure 9. Proposed strengthening for the damaged reinforced concrete corbel and properties of the CFRP sheets selected.
Jcs 03 00026 g009
Figure 10. Application of the CFRP sheet for the repaired corbel: (a) cutting of the sheets as required in the strengthening design; (b) application of the resin primer in the treated surface; (c) application of the CFRP sheet; (d) removal of the excess resin using a celluloid spatula; (e) painting of the strengthened corbel using epoxy paint; and (f) final aspect of the corbel/column after the intervention.
Figure 10. Application of the CFRP sheet for the repaired corbel: (a) cutting of the sheets as required in the strengthening design; (b) application of the resin primer in the treated surface; (c) application of the CFRP sheet; (d) removal of the excess resin using a celluloid spatula; (e) painting of the strengthened corbel using epoxy paint; and (f) final aspect of the corbel/column after the intervention.
Jcs 03 00026 g010
Figure 11. Strut-and-tie model: (a) proposed and (b) obtained results considering design forces and materials.
Figure 11. Strut-and-tie model: (a) proposed and (b) obtained results considering design forces and materials.
Jcs 03 00026 g011

Share and Cite

MDPI and ACS Style

Souza, R.A.d.; Trautwein, L.M.; Ferreira, M.d.P. Reinforced Concrete Corbel Strengthened Using Carbon Fiber Reinforced Polymer (CFRP) Sheets. J. Compos. Sci. 2019, 3, 26. https://doi.org/10.3390/jcs3010026

AMA Style

Souza RAd, Trautwein LM, Ferreira MdP. Reinforced Concrete Corbel Strengthened Using Carbon Fiber Reinforced Polymer (CFRP) Sheets. Journal of Composites Science. 2019; 3(1):26. https://doi.org/10.3390/jcs3010026

Chicago/Turabian Style

Souza, Rafael Alves de, Leandro Mouta Trautwein, and Mauricio de Pina Ferreira. 2019. "Reinforced Concrete Corbel Strengthened Using Carbon Fiber Reinforced Polymer (CFRP) Sheets" Journal of Composites Science 3, no. 1: 26. https://doi.org/10.3390/jcs3010026

APA Style

Souza, R. A. d., Trautwein, L. M., & Ferreira, M. d. P. (2019). Reinforced Concrete Corbel Strengthened Using Carbon Fiber Reinforced Polymer (CFRP) Sheets. Journal of Composites Science, 3(1), 26. https://doi.org/10.3390/jcs3010026

Article Metrics

Back to TopTop