Principles of Sustainable Development of Georesources as a Way to Reduce Urban Vulnerability
Abstract
1. Introduction
2. Study Subject
2.1. Mineral Deposit Location
2.2. Mineral Deposit Structure
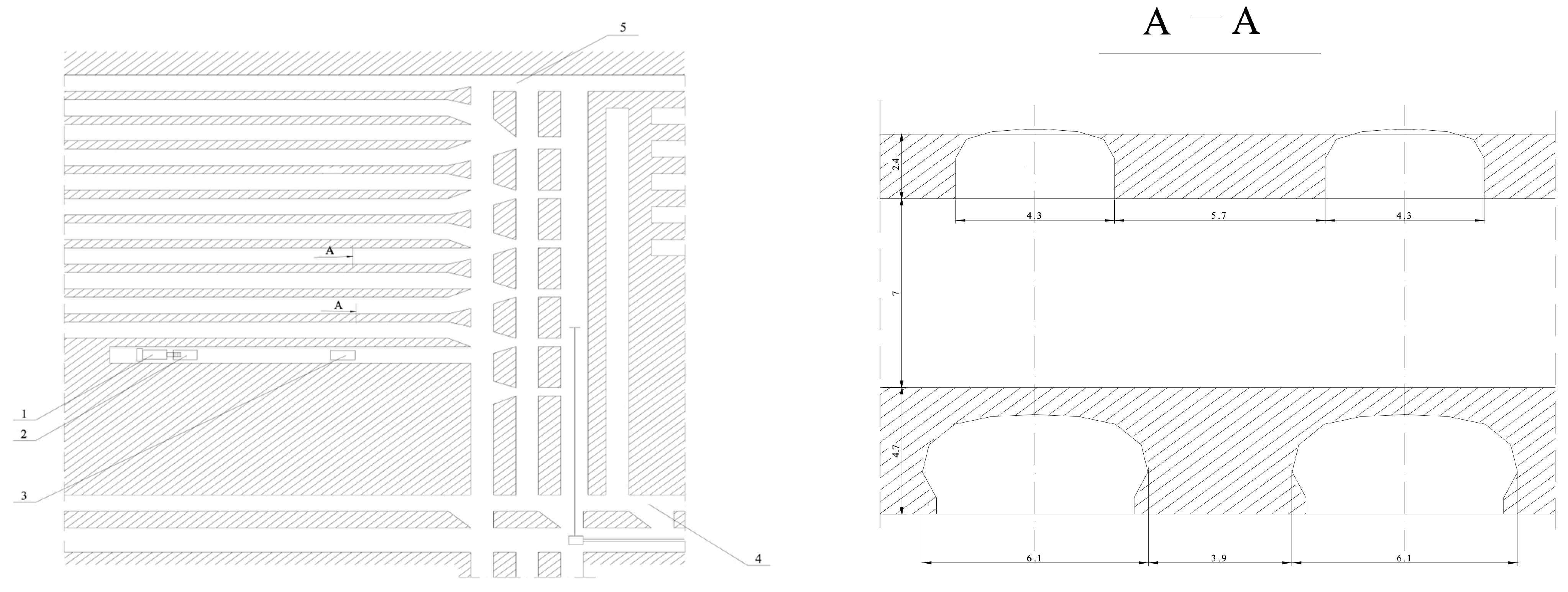
2.3. Mining Technology
2.4. Induced and Ecological Problems
3. Methods
3.1. Backfill
3.1.1. Backfill Components
3.1.2. Experiments
3.2. Stowing Operations
3.2.1. Backfill Preparation
3.2.2. A Scheme for Feeding Backfill into the Rooms
3.3. Influence of Stoping on the Seam
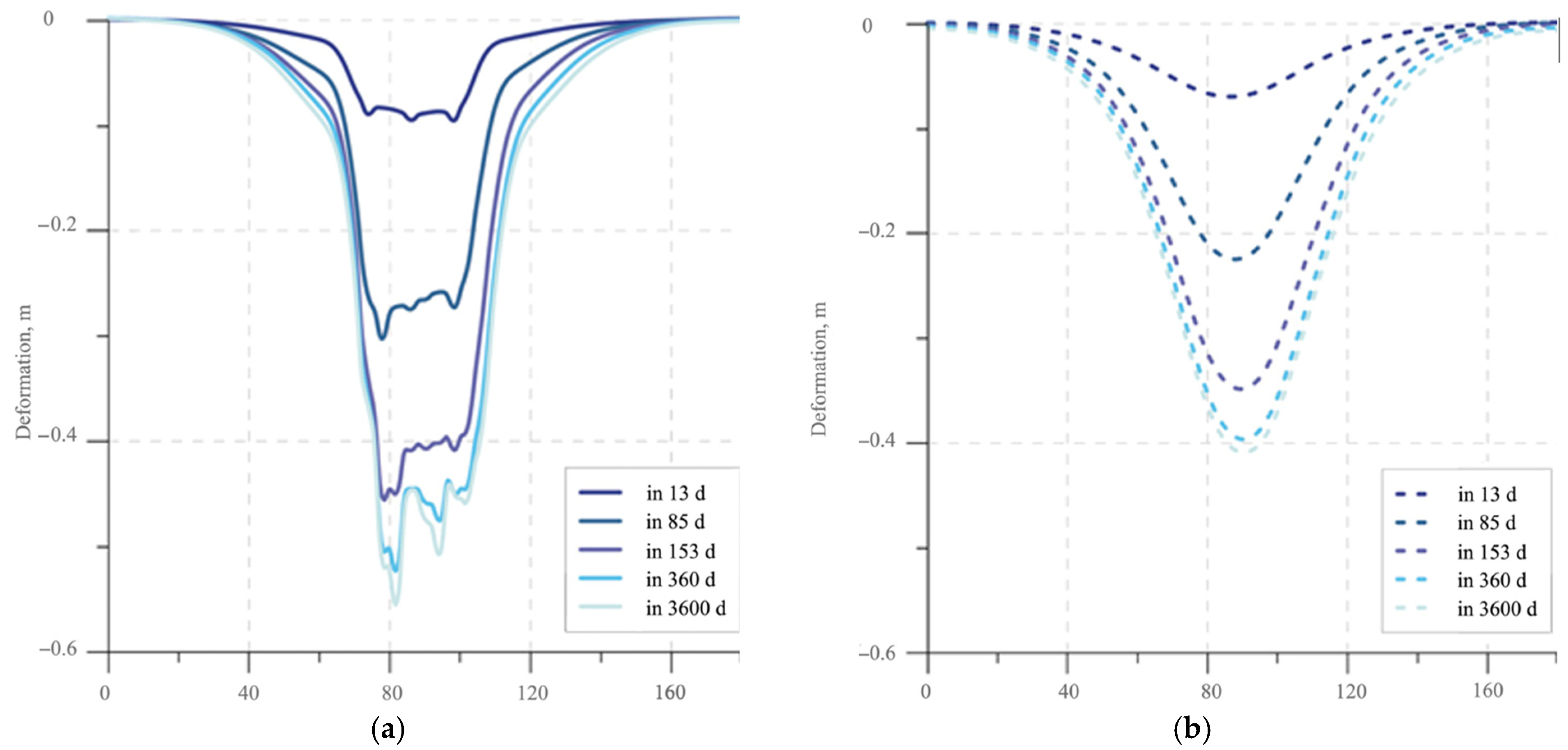
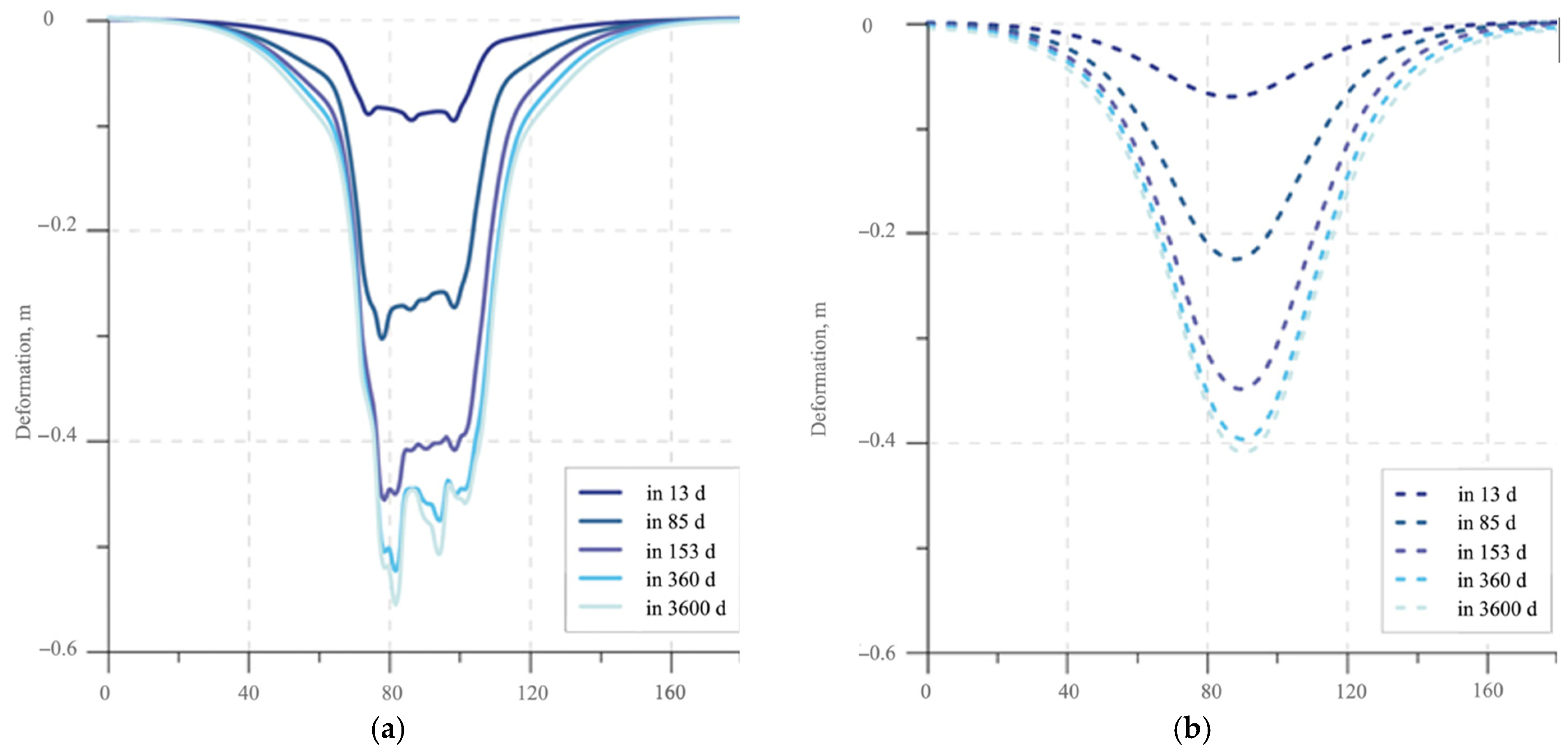
4. Results and Discussion
5. Conclusions
- The use of local waste materials in backfill composition is technologically and economically effective. The possibility of using salt waste as an aggregate and granulated blast furnace slag as a binder is proven.
- Saturated brine should be used as grouting fluid if the aggregate is salt waste.
- Activation additives such as waterglass and calcium hydroxide solution increase the strength of the fill mass.
- The proposed scheme of feeding backfill into the rooms allows to maximise filling up to 95–100%.
- In the case of parallel stoping and stowing at the working area (with the minimum necessary technological lag), unsteady mining-and-geomechanical processes tend to stabilise within the first year after the start of mining, and in the following ten and more years, they remain practically static.
- Replacing the traditional method of georesource extraction with backfill technology will allow for the extraction of reserves from the left pillars, which significantly increases the mineral resource base of the mining enterprise and extends its operational life.
- The proposed technology, based on the principles of sustainable development of georesources, is the basis for an economically profitable, environmentally friendly, and socially responsible mining enterprise.
- The proposed principles of sustainable development of georesources at different stages of mining (from ore extraction to final products) are the basis for preserving cities and reducing their vulnerability.
Author Contributions
Funding
Data Availability Statement
Conflicts of Interest
References
- Zhang, X.-M.; Hu, C.; He, Z.-Q.; Abbas, Y.; Li, Y.; Lv, L.-F.; Hao, X.-Y.; Gai, G.-S.; Huang, Z.-H.; Yang, Y.-F.; et al. Microcrystalline apatite minerals: Mechanochemical activation for agricultural application. Minerals 2019, 9, 211. [Google Scholar] [CrossRef]
- Ali, M.M.E.; Petropoulos, S.A.; Selim, D.A.F.H.; Elbagory, M.; Othman, M.M.; Omara, A.E.-D.; Mohamed, M.H. Plant Growth, Yield and Quality of Potato Crop in Relation to Potassium Fertilization. Agronomy 2021, 11, 675. [Google Scholar] [CrossRef]
- Gu, X.; Liu, Y.; Li, N.; Liu, Y.; Zhao, D.; Wei, B.; Wen, X. Effects of the foliar application of potassium fertilizer on the grain protein and dough quality of wheat. Agronomy 2021, 11, 1749. [Google Scholar] [CrossRef]
- Ushakova, E.; Perevoshchikova, A.; Menshikova, E.; Khayrulina, E.; Perevoshchikov, R.; Belkin, P. Environmental Aspects of Potash Mining: A Case Study of the Verkhnekamskoe Potash Deposit. Mining 2023, 3, 176–204. [Google Scholar] [CrossRef]
- Ciceri, D.; Manning, D.; Allanore, A. Historical and Technical Developments of Potassium Resources. Sci. Total Environ. 2015, 502, 590–601. [Google Scholar] [CrossRef]
- Malyukova, L.S.; Martyushev, N.V.; Tynchenko, V.V.; Kondratiev, V.V.; Bukhtoyarov, V.V.; Konyukhov, V.Y.; Bashmur, K.A.; Panfilova, T.A.; Brigida, V. Circular Mining Wastes Management for Sustainable Production of Camellia sinensis (L.) O. Kuntze. Sustainability 2023, 15, 11671. [Google Scholar] [CrossRef]
- Broughton, P.L. Economic geology of southern Saskatchewan potash mines. Ore Geol. Rev. 2019, 113, 103117. [Google Scholar] [CrossRef]
- Khayrutdinov, M.M.; Kaung, P.A.; Chzho, Z.Y.; Tyulyaeva, Y.S. Ensuring environmental safety in the implementation of the resource-renewable technologies. Bezop. Tr. V Promyshlennosti 2022, 5, 57–62. (In Russian) [Google Scholar] [CrossRef]
- Zadkov, D.A.; Gabov, V.V.; Babyr, N.V.; Stebnev, A.V.; Teremetskaya, V.A. Adaptable and energy-efficient powered roof support unit. MIAB Min. Inf. Anal. Bull. 2022, 6, 46–61. (In Russian) [Google Scholar] [CrossRef]
- Antoninova, N.Y.; Shubina, L.A.; Sobenin, A.V.; Usmanov, A.I. Assessment of possible ecosystem degradation during mine closure using mining and metallurgical waste. MIAB Min. Inf. Anal. Bull. 2021, 5-2, 193–201. (In Russian) [Google Scholar] [CrossRef]
- Savich, I.N.; Votyakov, M.V. Stoping of the Verkhnekamskoye potash deposit. MIAB Min. Inf. Anal. Bull. 2006, 9, 268–271. (In Russian) [Google Scholar]
- Kovalski, E.R.; Gromtsev, K.V.; Petrov, D.N. Modeling deformation of rib pillars during backfill. MIAB Min. Inf. Anal. Bull. 2020, 8, 87–101. (In Russian) [Google Scholar] [CrossRef]
- Zubov, V.P.; Smychnik, A.D. The concept of reducing the risks of potash mines flooding caused by groundwater inrush into excavations. J. Min. Inst. 2015, 215, 29–37. (In Russian) [Google Scholar]
- Orris, G.J.; Cocker, M.D.; Dunlap, P.; Wynn, J.; Spanski, G.T.; Briggs, D.A.; Gass, L. A Global Overview of Evaporate-Related Potash Resources, Including Spatial Data-Bases of Deposits, Occurrences, and Permissive Tracts; Scientific Investigations Report, 2010-5090-S; U.S. Geological Survey: Reston, VA, USA, 2014.
- Vysotskaya, N.A.; Piskun, E.V. The Main Factors of Adverse Environmental Impact of Potash Production and Methods of Environmental Protection. Min. Sci. Technol. 2019, 4, 172–180. [Google Scholar] [CrossRef]
- Gorostiza, S. Potash extraction and historical environmental conflict in the Bages region (Spain). Investig. Geogr. 2014, 61, 5–16. [Google Scholar] [CrossRef][Green Version]
- Kovalski, E.R.; Kongar-Syuryun, C.B.; Petrov, D.N. Challenges and prospects for several-stage stoping in potash minining. Sustain. Dev. Mt. Territ. 2023, 15, 349–364. (In Russian) [Google Scholar] [CrossRef]
- Zaalishvili, V.B.; Melkov, D.A.; Fidarova, M.I.; Kharebov, K.S. Instrumental measure of seismic intensity based on K-Net data. Sustain. Dev. Mt. Territ. 2022, 14, 331–340. (In Russian) [Google Scholar] [CrossRef]
- Gendler, S.G.; Gabov, V.V.; Babyr, N.V.; Prokhorova, E.A. Justification of engineering solutions on reduction of occupational traumatism in coal longwalls. MIAB Min. Inf. Anal. Bull. 2022, 1, 5–19. (In Russian) [Google Scholar] [CrossRef]
- Xiang, Y.; Zhang, Q.; Wang, D.; Wu, S. Mining Investment Risk Assessment for Nations along the Belt and Road Initiative. Land 2022, 11, 1287. [Google Scholar] [CrossRef]
- Wardley-Kershaw, J.; Schenk-Hoppé, K.R. Perspectives on the Future of Growth. World 2022, 3, 299–312. [Google Scholar] [CrossRef]
- Kovalskii, E.R.; Gromtsev, K.V. Development of the technology of stowing the developed space during mining. J. Min. Inst. 2022, 254, 202–209. (In Russian) [Google Scholar] [CrossRef]
- Skrzypkowski, K. 3D Numerical modelling of the application of cemented paste backfill on displacements around strip excavations. Energies 2021, 14, 7750. [Google Scholar] [CrossRef]
- Gilev, M.V.; Konstantinova, S.A.; Murakov, V.E.; Chernopazov, S.A. Backfilling in development of sylvinite seams as a constructive element of mining method. Marks. Vestn. 2007, 1, 33–40. (In Russian) [Google Scholar]
- Shvab, R.G.; Deshkovsky, V.N. Control of undermined rock state by partial backfilling in the form of rubble strips from destroyed halite during potash extraction with room and pillar mining. PNRPU Bull. 2009, 8, 20–27. [Google Scholar]
- Chen, S.; Wang, W.; Yan, R.; Wu, A.; Wang, Y.; Yilmaz, E. A Joint experiment and discussion for strength characteristics of cemented paste backfill considering curing conditions. Minerals 2022, 12, 211. [Google Scholar] [CrossRef]
- Yan, B.X.; Jia, H.; Yang, Z.; Yilmaz, E.; Liu, H. Goaf instability in an open pit iron mine triggered by dynamics disturbance: A large-scale similar simulation. Int. J. Min. Reclam. Environ. 2023, 37, 606–629. [Google Scholar] [CrossRef]
- Xia, K.; Chen, C.; Liu, X.; Liu, X.; Yuan, J.; Dang, S. Assessing the stability of high-level pillars in deeply-buried metal mines stabilized using cemented backfill. Int. J. Rock Mech. Min. Sci. 2023, 170, 105489. [Google Scholar] [CrossRef]
- Sotoudeh, F.; Nehring, M.; Kizil, M.; Knights, P.; Mousavi, A. A novel cut-off grade method for increasing the sustainability of underground metalliferous mining operations. Miner. Eng. 2021, 172, 107168. [Google Scholar] [CrossRef]
- Kuzmenko, O.; Dychkovskyi, R.; Petlovanyi, M.; Buketov, V.; Howaniec, N.; Smolinski, A. Mechanism of Interaction of Backfill Mixtures with Natural Rock Fractures within the Zone of Their Intense Manifestation while Developing Steep Ore Deposits. Sustainability 2023, 15, 4889. [Google Scholar] [CrossRef]
- Petlovanyi, M. Influence of configuration chambers on the formation of stress in multi-modulus mass. Min. Miner. Depos. 2016, 10, 48–54. [Google Scholar] [CrossRef]
- Guo, M.; Tan, Y.; Chen, D.; Song, W.; Cao, S. Optimization and stability of the bottom structure parameters of the deep sublevel stope with delayed backfilling. Minerals 2022, 12, 709. [Google Scholar] [CrossRef]
- Sirenko, Y.G.; Kovalsky, E.R. Improvement of selective potash extraction using shortwall mining with partial backfill. Gorn. Zhurnal 2016, 1, 24–26. (In Russian) [Google Scholar] [CrossRef]
- Ajayi, S.A.; Ma, L.; Spearing, A.J.S. Ground stress analysis and automation of workface in continuous mining continuous backfill operation. Minerals 2022, 12, 754. [Google Scholar] [CrossRef]
- Baryakh, A.A.; Gubanova, E.A. On flood protection measures for potash mines. J. Min. Inst. 2019, 240, 613–620. (In Russian) [Google Scholar] [CrossRef]
- Zubov, V.P.; Yunpeng, L. Slicing mining of thick gently dipping coal in China: Problems and improvement. MIAB Min. Inf. Anal. Bull. 2023, 7, 37–51. (In Russian) [Google Scholar] [CrossRef]
- Baryakh, A.A.; Smirnov, E.V.; Kvitkin, S.Y.; Tenison, L.O. Russian potash industry: Issues of rational and safe mining. Russ. Min. Ind. 2022, 1, 41–50. (In Russian) [Google Scholar] [CrossRef]
- Afanasyev, A.S.; Egoshin, A.M.; Alekseev, S.V. Simulation model of the organization of technologicaltransport movement at a mining enterprise. J. Phys. Conf. Ser. 2021, 1753, 012008. [Google Scholar] [CrossRef]
- Shuvalov, Y.V.; Kovalev, O.V.; Moser, S.P.; Thorikov, I.Y.; Troshchinenko, G.A. On the issue of reducing investment risks in the development of potash deposits. MIAB Min. Inf. Anal. Bull. 2010, 11, 366–372. (In Russian) [Google Scholar]
- Yamilev, M.Z.; Pshenin, V.V.; Matveev, D.S.; Podlesniy, D.S.; Bezimyannikov, T.I. The use of compact inspection devices for monitoring the technical condition of pipelines in protective cases. Neft. Khozyaystvo Oil Ind. 2022, 2, 106–110. [Google Scholar] [CrossRef]
- Sidki-Rius, N.; Sanmiquel, L.; Bascompta, M.; Parcerisa, D. Subsidence Management and Prediction System: A Case Study in Potash Mining. Minerals 2022, 12, 1155. [Google Scholar] [CrossRef]
- Didmanidze, O.N.; Afanasev, A.S.; Hakimov, R.T. Natural gas methane number and its influence on the gas engine working process efficiency. J. Min. Inst. 2021, 251, 730–737. (In Russian) [Google Scholar] [CrossRef]
- Kowalewski, O.; Spiewanowski, P. Stock market response to potash mine disasters. J. Commod. Mark. 2020, 20, 100124. [Google Scholar] [CrossRef]
- Malovichko, A.A.; Blinova, T.S.; Lebedev, A.Y.; Nekrasova, L.V. Solikamsk earthquake on January 5, 1995. Safety problems during the operation of mineral deposits in the zones of urban industrial agglomerations. In Materials of the International Symposium SRM-95; URO RAS: Ekaterinburg, Russia, 1997; pp. 307–315. (In Russian) [Google Scholar]
- Marcak, H.; Mutke, G. Seismic activation of tectonic stresses by mining. J. Seismol. 2013, 17, 1139–1148. [Google Scholar] [CrossRef]
- Baryakh, A.A.; Telegina, E.A. Analysis of the destruction conditions ofthe waterproof layer for various stoping system. MIAB Min. Inf. Anal. Bull. 2013, 1, 34–40. (In Russian) [Google Scholar]
- Belyakov, N.A.; Belikov, A.A. Prediction of the integrity of the water-protective stratum at the Verkhnekamskoye potash ore deposit. MIAB Min. Inf. Anal. Bull 2022, 33–46. (In Russian) [Google Scholar] [CrossRef]
- Mikolas, M.; Mikusinec, J.; Abrahamovsky, J.; Tyulyaeva, Y.; Srek, J. Activities of a Mine Surveyor and a Geologist at Design Bases in a Limestone Quarry. IOP Conf. Ser. Earth Environ. Sci. 2021, 906, 012073. [Google Scholar] [CrossRef]
- Bacova, D.; Khairutdinov, A.M.; Gago, F. Cosmic Geodesy Contribution to Geodynamics Monitoring. IOP Conf. Ser. Earth Environ. Sci. 2021, 906, 012074. [Google Scholar] [CrossRef]
- Liskova, M.Y. Negative impact on the environment caused by companies that mine and process potassium and magnesium salts. Bull. PNRPU Geology. Oil Gas Eng. Min. 2017, 16, 82–88. (In Russian) [Google Scholar] [CrossRef]
- Maksimovich, N.G.; Pervova, M.S. Influence of the mineralized water crossflows of the Upper-Kama potash-magnesium salt deposit on the subsurface hydrosphere. Eng. Surv. 2012, 1, 22–28. [Google Scholar]
- Gorostiza, S.; Sauri, D. Naturalizing pollution: A critical social science view on the link between potash mining and salinization in the Llobregat river basin, northeast Spain. Phil. Trans. R. Soc. B 2018, 374, 20180006. [Google Scholar] [CrossRef]
- Tallin, J.E.; Pufahl, D.E.; Barbour, S.L. Waste management schemes of potash mines in Saskatchewan. Can. J. Civ. Eng. 2011, 17, 528–542. [Google Scholar] [CrossRef]
- Xu, H.; Apel, D.B.; Wang, J.; Wei, C.; Pourrahimian, Y. Investigation of backfilling step effects on stope stability. Mining 2021, 1, 155–166. [Google Scholar] [CrossRef]
- He, W.; Zheng, C.; Li, S.; Shi, W.; Zhao, K. Strength Development Monitoring of Cemented Paste Backfill Using Guided Waves. Sensors 2021, 21, 8499. [Google Scholar] [CrossRef] [PubMed]
- Guo, J.; Cheng, X.; Lu, J.; Zhao, Y.; Xie, X. Research on factors affecting mine wall stability in isolated pillar mining in deep mines. Minerals 2022, 12, 623. [Google Scholar] [CrossRef]
- Zeng, F.; Li, L.; Aubertin, M.; Simon, R. Implementation of the non-associated elastoplastic msdpu model in flac3d and application for stress analysis of backfilled stopes. Processes 2022, 10, 1130. [Google Scholar] [CrossRef]
- Zhang, Q.; Hu, G.; Wang, X. Hydraulic calculation of gravity transportation pipeline system for backfill slurry. J. Cent. South Univ. Technol. 2008, 15, 645–649. [Google Scholar] [CrossRef]
- Kaung, P.F.; Semikin, A.A.; Khayrutdinov, A.M.; Dekhtyarenko, A.A. Recycling of industrial waste is a paradigm of resource provision for sustainable development. Sustain. Dev. Mt. Territ. 2023, 15, 385–397. (In Russian) [Google Scholar] [CrossRef]
- Khairutdinov, M.M.; Shaimyardyanov, I.K. Underground geotechnology with backfilling: Shortcomings, opportunities for improvement. MIAB Min. Inf. Anal. Bull. 2009, 1, 240–250. (In Russian) [Google Scholar]
- Qi, C.; Guo, L.; Wu, Y.; Zhang, Q.; Chen, Q. Stability evaluation of layered backfill considering filling interval, backfill strength and creep behavior. Minerals 2022, 12, 271. [Google Scholar] [CrossRef]
- Wang, J.; Wu, A.; Ruan, Z.; Bürger, R.; Wang, Y.; Wang, S.; Zhang, P.; Gao, Z. Optimization of parameters for rheological properties and strength of cemented paste backfill blended with coarse aggregates. Minerals 2022, 12, 374. [Google Scholar] [CrossRef]
- Wang, R.; Li, L. Time-dependent stability analyses of side-exposed backfill considering creep of surrounding rock mass. Rock Mech. Rock Eng. 2022, 55, 2255–2279. [Google Scholar] [CrossRef]
- Kulikova, A.A.; Kovaleva, A.M. Use of tailings of enrichment for laying of the developed space of mines. MIAB. Mining Inf. Anal. Bull. 2021, 2-1, 144–154. (In Russian) [Google Scholar] [CrossRef]
- Khairutdinov, M.M.; Votyakov, M.V. Hydraulic backfilling at potash mines. MIAB Min. Inf. Anal. Bull. 2007, 6, 214–218. (In Russian) [Google Scholar]
- Golik, V.I.; Kongar-Syuryun, C.B.; Tyulyaeva, Y.S.; Khayrutdinov, A.M. The use of binders based on metallurgical slags in the composition of based mixtures. Izv. TulGU. Nauk. O Zemle 2020, 4, 389–400. (In Russian) [Google Scholar]
- Fang, A.; Yang, Y.; Yang, Z.; Hua, S.; Wang, J.; Zhou, F. Consolidation properties of soil/modified bentonite backfill in salt solution. Water 2022, 14, 1967. [Google Scholar] [CrossRef]
- Khudyakova, L.I.; Zalutskiy, A.V.; Paleev, P.L. Use of ash and slag waste of thermal power plants. XXI century. Technosphere Saf. 2019, 4, 375–391. (In Russian) [Google Scholar] [CrossRef]
- Phutthananon, C.; Tippracha, N.; Jongpradist, P.; Tunsakul, J.; Tangchirapat, W.; Jamsawang, P. Investigation of Strength and Microstructural Characteristics of Blended Cement-Admixed Clay with Bottom Ash. Sustainability 2023, 15, 3795. [Google Scholar] [CrossRef]
- Abdul-Hussain, N.; Fall, M. Unsaturated hydraulic properties of cemented tailings backfill that contains sodium silicate. Eng. Geol. 2011, 123, 288–301. [Google Scholar] [CrossRef]
- Fedorov, P.; Sinitsin, D. Alkali-Activated Binder Based on Cupola Dust of Mineral Wool Production with Mechanical Activation. Buildings 2022, 12, 1565. [Google Scholar] [CrossRef]
- Khayrutdinov, M.M.; Votyakov, M.V. Development of compositions of hardening stowing mixtures from ore processing wastes of potash enterprises. MIAB Min. Inf. Anal. Bull. 2007, 10, 220–222. (In Russian) [Google Scholar]
- Ustinova, Y.V.; Nasonova, A.E.; Nikiforova, T.P.; Kozlov, V.V. Research of Interaction between Caustic Magnesite and a Microsilica Additive. Proc. Mosc. State Univ. Civ. Eng. 2012, 3, 100–104. (In Russian) [Google Scholar]
- Mohamadi Nasab, S.; Shafiei Bafti, B.; Yarahmadi, M.R.; Mahmoudi Maymand, M.; Kamalabadi Khorasani, J. Mineralogical Properties of the Copper Slags from the SarCheshmeh Smelter Plant, Iran, in View of Value Recovery. Minerals 2022, 12, 1153. [Google Scholar] [CrossRef]
- Golik, V.I.; Mitsik, M.F.; Aleksakhina, Y.V.; Alenina, E.E.; Ruban-Lazareva, N.V.; Kruzhkova, G.V.; Kondratyeva, O.A.; Trushina, E.V.; Skryabin, O.O.; Khayrutdinov, M.M. Comprehensive Recovery of Metals in Tailings Utilization with Mechanochemical Activation. Resources 2023, 12, 113. [Google Scholar] [CrossRef]
- Jin, J.; Qin, Z.; Zuo, S.; Feng, J.; Sun, Q. The role of rheological additives on fresh and hardened properties of cemented paste backfill. Materials 2022, 15, 3006. [Google Scholar] [CrossRef] [PubMed]
- Roshani, A.; Fall, M. Rheological properties of cemented paste backfill with nano-silica: Link to curing temperature. Cem. Concr. Compos. 2020, 114, 103785. [Google Scholar] [CrossRef]
- Zhang, J.; Deng, H.; Taheri, A.; Deng, J.; Ke, B. Effects of Superplasticizer on the Hydration, Consistency, and Strength Development of Cemented Paste Backfill. Minerals 2018, 8, 381. [Google Scholar] [CrossRef]
- Ahmed, H.M.; Bharathan, B.; Kermani, M.; Hassani, F.; Hefni, M.A.; Ahmed, H.A.M.; Hassan, G.S.A.; Moustafa, E.B.; Saleem, H.A.; Sasmito, A.P. Evaluation of rheology measurements techniques for pressure loss in mine paste backfill transportation. Minerals 2022, 12, 678. [Google Scholar] [CrossRef]
- Wang, C.; Gan, D. Study and analysis on the influence degree of particle settlement factors in pipe transportation of backfill slurry. Metals 2021, 11, 1780. [Google Scholar] [CrossRef]
- Bandyopadhyay, T.K.; Das, S.K. Non-Newtonian liquid flow through small diameter piping components: CFD analysis. J. Inst. Eng. Ser. E 2016, 97, 131–141. [Google Scholar] [CrossRef]
- Wu, D.; Yang, B.; Liu, Y. Pressure drop in loop pipe flow of fresh cemented coal gangue–fly ash slurry: Experiment and simulation. Adv. Powder Technol. 2015, 26, 920–927. [Google Scholar] [CrossRef]
- Kazanin, O.I.; Sidorenko, A.A.; Evsiukova, A.A.; Zilu, L. Justification of the longwall panel entries support technology when mining gently inclined coal seams at large depths. MIAB Min. Inf. Anal. Bull. 2023, 9-1, 5–21. (In Russian) [Google Scholar] [CrossRef]
- Ermolovich, E.A. Calculation of the distance of transportation by gravity of 70% slurry of ferruginous quartzite enrichment waste, condensed with magnofloc 155 flocculant. MIAB. Mining Inf. Anal. Bull. 2013, 8, 19–22. (In Russian) [Google Scholar]
- Denisov, E.F.; Yamilev, M.Z.; Tigulev, E.A.; Pshenin, V.V. Analysis of the current level of technologies for determining the location of non-metallic underground services. Neft. Khozyaystvo Oil Ind. 2022, 9, 121–125. (In Russian) [Google Scholar] [CrossRef]
- Yamilev, M.Z.; Masagutov, A.M.; Nikolaev, A.K.; Pshenin, V.V.; Zaripova, N.A.; Plotnikova, K.I. Modified equations for hydraulic calculation of thermally insulated oil pipelines for the case of a power-law fluid. Sci. Technol. Oil Oil Prod. Pipeline Transp. 2021, 11, 388–395. (In Russian) [Google Scholar] [CrossRef]
- Marinin, M.A.; Afanasyev, P.I.; Sushkova, V.I.; Ustimenko, K.D.; Akhmetov, A.R. The experience of using the Kuz-Ram model in describing of grain size distribution of blasted rock mass. MIAB Min. Inf. Anal. Bull. 2023, 9-1, 96–109. (In Russian) [Google Scholar] [CrossRef]
- Gendler, S.G.; Kryukova, M.S. Thermal management of metro lines, including double-track and single-track tunnels. MIAB Min. Inf. Anal. Bull. 2023, 9-1, 248–269. (In Russian) [Google Scholar] [CrossRef]
- Isheisky, V.A.; Ryadinskii, D.E.; Magomedov, G.S. Increasing the quality of fragmentation of blasting rock mass based on accounting for structural features of massif in the blast design. MIAB Min. Inf. Anal. Bull. 2023, 9-1, 79–95. (In Russian) [Google Scholar] [CrossRef]
- Korzeniowski, W. Rheological model of hard rock pillar. Rock Mech. Rock Eng. 1991, 24, 155–166. [Google Scholar] [CrossRef]
- Kurenkov, D.S.; Fedorov, G.B.; Dudchenko, O.L. Physics of application of acoustic vibrations in stimulation of dissolution of rock salt. MIAB Min. Inf. Anal. Bull. 2021, 5, 45–53. (In Russian) [Google Scholar] [CrossRef]
- Korshak, A.A.; Pshenin, V.V. Modeling of water slug removal from oil pipelines by methods of computational fluid dynamics. Neft. Khozyaystvo Oil Ind. 2023, 10, 117–122. (In Russian) [Google Scholar] [CrossRef]
- Li, X.; Yin, Z. Study of Creep Mechanical Properties and a Rheological Model of Sandstone under Disturbance Loads. Processes 2021, 9, 1291. [Google Scholar] [CrossRef]
- Motta, G.E.; Pinto, C.L.L. New constitutive equation for salt rock creep. Mining. Rem Rev. Esc. Minas 2014, 67, 397–403. [Google Scholar] [CrossRef]











| Particle size, mm | >7 | 7–5 | 5–3 | 3–2 | 2–1 | 1–0.5 | 0.5–0.25 | <0.25 |
| Ratio% | 7.4 | 7.3 | 17 | 16.3 | 20.9 | 19.5 | 8.6 | 3.0 |
| Average particle size, mm | 2.54 | |||||||
| SiO2 | Al2O3 | CaO | MgO | S | SO3 | MnO | Fe2O3 | FeO | etc. | ||
|---|---|---|---|---|---|---|---|---|---|---|---|
| 31.1 | 10.2 | 50.6 | 4.3 | 1.4 | 0.2 | - | - | - | 2.2 | 1.33 | 3.04 |
| No | Composition | UCS, MPa | |||||||
|---|---|---|---|---|---|---|---|---|---|
| Grouting Fluid | Binder | Aggregate | |||||||
| Type | V, л/m3 | Slag, % of Solid | Waste, % of Solid | Time, Days | |||||
| Inactivated | Activated | 7 | 28 | 60 | 90 | ||||
| 1 | Saturated brine | 30 | 70 | 0.9 | 1.6 | 2.1 | 2.4 | ||
| 2 | 30 | 70 | 1.05 | 1.95 | 2.5 | 2.7 | |||
| 3 | Waterglass ρ = l.3 g/cm3 | 135 | 30 | 70 | 0.85 | 1.95 | 3.05 | 3.3 | |
| 4 | 135 | 30 | 70 | 1.1 | 2.3 | 3.35 | 3.7 | ||
| 5 | Calcium hydroxide ρ = l.15 g/cm3 | 125 | 30 | 70 | 1.05 | 2.0 | 2.65 | 2.8 | |
| 6 | 125 | 30 | 70 | 1.2 | 2.3 | 2.9 | 3.12 | ||
Disclaimer/Publisher’s Note: The statements, opinions and data contained in all publications are solely those of the individual author(s) and contributor(s) and not of MDPI and/or the editor(s). MDPI and/or the editor(s) disclaim responsibility for any injury to people or property resulting from any ideas, methods, instructions or products referred to in the content. |
© 2024 by the authors. Licensee MDPI, Basel, Switzerland. This article is an open access article distributed under the terms and conditions of the Creative Commons Attribution (CC BY) license (https://creativecommons.org/licenses/by/4.0/).
Share and Cite
Kongar-Syuryun, C.; Klyuev, R.; Golik, V.; Oganesyan, A.; Solovykh, D.; Khayrutdinov, M.; Adigamov, D. Principles of Sustainable Development of Georesources as a Way to Reduce Urban Vulnerability. Urban Sci. 2024, 8, 44. https://doi.org/10.3390/urbansci8020044
Kongar-Syuryun C, Klyuev R, Golik V, Oganesyan A, Solovykh D, Khayrutdinov M, Adigamov D. Principles of Sustainable Development of Georesources as a Way to Reduce Urban Vulnerability. Urban Science. 2024; 8(2):44. https://doi.org/10.3390/urbansci8020044
Chicago/Turabian StyleKongar-Syuryun, Cheynesh, Roman Klyuev, Vladimir Golik, Armine Oganesyan, Danila Solovykh, Marat Khayrutdinov, and Danila Adigamov. 2024. "Principles of Sustainable Development of Georesources as a Way to Reduce Urban Vulnerability" Urban Science 8, no. 2: 44. https://doi.org/10.3390/urbansci8020044
APA StyleKongar-Syuryun, C., Klyuev, R., Golik, V., Oganesyan, A., Solovykh, D., Khayrutdinov, M., & Adigamov, D. (2024). Principles of Sustainable Development of Georesources as a Way to Reduce Urban Vulnerability. Urban Science, 8(2), 44. https://doi.org/10.3390/urbansci8020044

