Assessment of Soil–Structure Interaction Effects on the Beirut Port Silos Due to the 4 August 2020 Explosion: A Coupled Eulerian–Lagrangian Approach
Abstract
:1. Introduction
2. Materials and Methods
2.1. Site Characterization
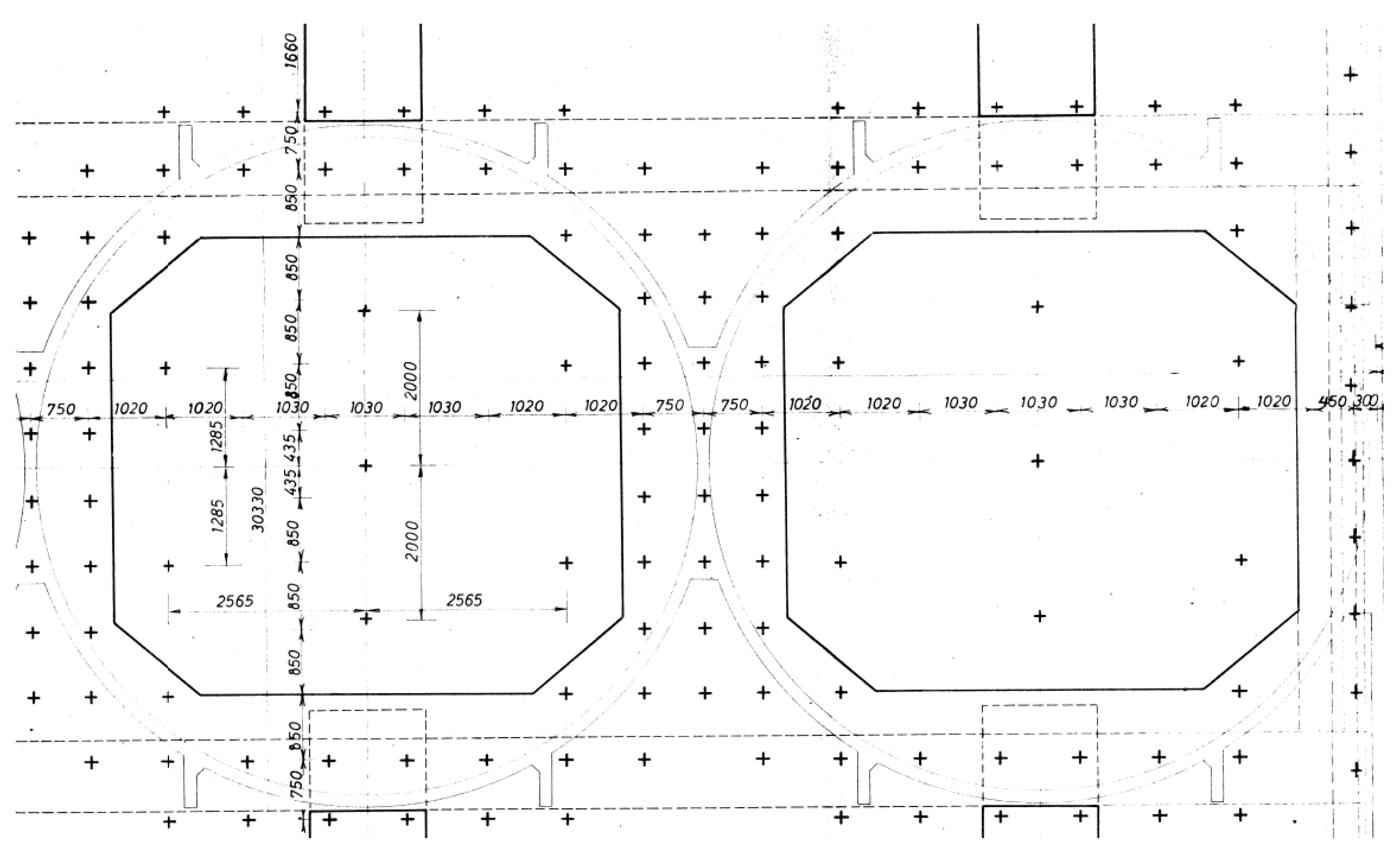
2.1.1. Silos
2.1.2. Foundation
2.1.3. Soil
2.2. Numerical Analysis Method
2.2.1. Geometric Model
2.2.2. Materials Model
Concrete Model
Steel Model
TNT Model
Air Model
Soil Model
2.2.3. Interaction
2.2.4. Boundary Conditions
2.2.5. Mesh Size
3. Results and Discussion
3.1. Model Validation
3.2. Superstructure’s Response
3.2.1. Damage
3.2.2. Displacement
3.3. Substructure’s Response
3.3.1. Behavior of the Raft Foundation
Damage
Displacement
3.3.2. Behavior of Piles
3.3.3. Behavior of Soil
Stress and Strain in Soil
Soil–Pile Interface
4. Conclusions
Author Contributions
Funding
Data Availability Statement
Conflicts of Interest
References
- Jayasinghe, L. Blast Response and Vulnerability Assessment of Piled Foundations. Ph.D. Thesis, Queensland University of Technology, Brisbane City, QLD, Australia, 2014. Available online: https://core.ac.uk/download/pdf/33490633.pdf (accessed on 1 February 2023).
- Temsah, Y.; Jahami, A.; Khatib, J.; Sonebi, M. Numerical Derivation of Iso-Damaged Curve for a Reinforced Concrete Beam Subjected to Blast Loading. MATEC Web Conf. 2018, 149, 02016. [Google Scholar] [CrossRef]
- Jahami, A.; Temsah, Y.; Khatib, J. The efficiency of using CFRP as a strengthening technique for reinforced concrete beams subjected to blast loading. Int. J. Adv. Struct. Eng. 2019, 11, 411–420. [Google Scholar] [CrossRef]
- Vannucci, P.; Masi, F.; Stefanou, I. A Study on the Simulation of Blast Actions on a Monument Structure. 2017. Available online: https://hal.science/hal-01447783v3 (accessed on 1 February 2023).
- Howells, D.A. The dynamics of explosion and its use, by Josef Henrych, Elsevier Scientific Publishing Company, Amsterdam and New York, 1979. No. of pages: 562. Price: US$ 107·25/Dfl. 220·00. Earthq. Eng. Struct. Dyn. 1980, 8, 294. [Google Scholar] [CrossRef]
- Temsah, Y.; Jahami, A.; Khatib, J.; Firat, S. Single Degree of Freedom Approach of a Reinforced Concrete Beam Subjected to Blast Loading. In Proceedings of the 1st International Turkish World Engineering and Science Congress, Antalya, Turkey, 7–10 December 2017. [Google Scholar]
- Jahami, A.; Temsah, Y.; Khatib, J.; Baalbaki, O.; Kenai, S. The behavior of CFRP strengthened RC beams subjected to blast loading. Mag. Civ. Eng. 2021, 103, 10309. [Google Scholar] [CrossRef]
- Temsah, Y.; Jahami, A.; Khatib, J.; Sonebi, M. Numerical analysis of a reinforced concrete beam under blast loading. MATEC Web Conf. 2018, 149, 02063. [Google Scholar] [CrossRef]
- U.S. Army Corps of Engineers. Unified Facilities Criteria (UFC) Structures to Resist the Effects of Accidental Explosions Approved for Public Release; Distribution Unlimited. 2005. Available online: https://www.wbdg.org/FFC/DOD/UFC/ARCHIVES/ufc_3_340_02.pdf (accessed on 1 February 2023).
- Kausel, E. Early history of soil–structure interaction. Soil Dyn. Earthq. Eng. 2010, 30, 822–832. [Google Scholar] [CrossRef]
- Jayasinghe, L.B.; Thambiratnam, D.; Perera, N.; Jayasooriya, J.H.A.R. Computer simulation of underground blast response of pile in saturated soil. Comput. Struct. 2013, 120, 86–95. [Google Scholar] [CrossRef]
- Jayasinghe, L.B.; Thambiratnam, D.P.; Perera, N.; Jayasooriya, J.H.A.R. Blast response and failure analysis of pile foundations subjected to surface explosion. Eng. Fail. Anal. 2014, 39, 41–54. [Google Scholar] [CrossRef]
- Huang, B.; Gao, Q.C.; Wang, J.G.; Jiang, X.Z.; Wang, X.Y.; Jiang, B.; Wu, W. Dynamic Analysis of Pile-Soil-Structure Interaction System under Blasting Load. Appl. Mech. Mater. 2014, 638–640, 433–436. [Google Scholar] [CrossRef]
- Ambrosini, D.; Luccioni, B. Effects of underground explosions on soil and structures. Undergr. Space 2020, 5, 324–338. [Google Scholar] [CrossRef]
- Souli, M.; Shahrour, I. Arbitrary Lagrangian Eulerian formulation for soil structure interaction problems. Soil Dyn. Earthq. Eng. 2012, 35, 72–79. [Google Scholar] [CrossRef]
- De, A. Numerical simulation of surface explosions over dry, cohesionless soil. Comput. Geotech. 2012, 43, 72–79. [Google Scholar] [CrossRef]
- Hao, H.; Pan, T.; Zhao, Z. Inelastic Responses of Pile-Soil System to Blast Loads. 1994. Available online: https://www.witpress.com/Secure/elibrary/papers/SU94/SU94037FU.pdf (accessed on 1 February 2023).
- Nagy, N.; Mohamed, M.; Boot, J.C. Nonlinear numerical modelling for the effects of surface explosions on buried reinforced concrete structures. Geomech. Eng. 2010, 2, 1–18. Available online: http://www.techno-press.org/content/?page=article&journal=gae&volume=2&num=1&ordernum=1 (accessed on 1 February 2023). [CrossRef]
- Lekkas, E.; Voulgaris, N.; Lozios, S. The August 4, 2020 Beirut (Lebanon) explosion: A technological disaster within crises. In Newsletter of Environmental, Disaster, and Crisis Management Stratigies; National and Kapodistrian University of Athens: Athens, Greece, 2020. [Google Scholar]
- Temsah, Y.; Jahami, A.; Aouad, C. Silos structural response to blast loading. Eng. Struct. 2021, 243, 112671. [Google Scholar] [CrossRef]
- Sawaya, G. Beirut’s Grain Silos: The Monolith that Shielded the City during 2020′s Port Blast. Designboom|Architecture & Design Magazine, 4 February 2021. Available online: https://www.designboom.com/architecture/beiruts-grain-silos-the-monolith-that-shielded-the-city-02-04-2021 (accessed on 1 February 2023).
- ACI Committee 318; American Concrete Institute. Building Code Requirements for Structural Concrete; American Concrete Institute: Farmington Hills, MI, USA, 2014. [Google Scholar]
- ASTM. Standard Specification for Deformed and Plain Carbon-Steel Bars for Concrete Reinforcement. 2022. Available online: https://www.astm.org/a0615_a0615m-22.html (accessed on 1 February 2023).
- Bakroon, M.; Daniel, A.; Frank, R. Geotechnical Large Deformation Numerical Analysis Using Implicit and Explicit Integration. In Proceedings of the 3rd International Conference on New Advances in Civil Engineering, Helsinki, Finland, 28–29 April 2017. [Google Scholar]
- Li, X.; Kang, R.; Liu, C.; Zhang, Z.; Zhao, Z.-Y.; Lu, T.J. Dynamic responses of ultralight all-metallic honeycomb sandwich panels under fully confined blast loading. Compos. Struct. 2023, 311, 116791. [Google Scholar] [CrossRef]
- Chen, X.M.; Duan, J.; Li, Y.G. Application of separate reinforced concrete beam model in ABAQUS. Adv. Eng. Res. (AER) 2017, 135. [Google Scholar]
- Abaqus Analysis User’s Guide (6.14). 149.89.49. 2022. Available online: http://130.149.89.49:2080/v6.14/books/usb/default.htm?startat=pt05ch23s06abm39.html (accessed on 1 February 2023).
- Explicit Dynamic Analysis. (n.d.). Docs.software.vt.edu. Available online: https://docs.software.vt.edu/abaqusv2022/English/SIMACAEANLRefMap/simaanl-c-expdynamic.htm (accessed on 17 August 2023).
- Besseling, J.F. A Theory of Elastic, Plastic, and Creep Deformations of an Initially Isotropic Material Showing Anisotropic Strain-Hardening, Creep Recovery, and Secondary Creep. J. Appl. Mech. 1958, 25, 529–536. [Google Scholar] [CrossRef]
- Lee, E.; Finger, M.; Collins, W. JWL Equation of State Coefficients for High Explosives; Lawrence Livermore National Laboratory: Livermore, CA, USA, 1973. [Google Scholar] [CrossRef]
- Botez, M.; Bredean, L. Numerical Study of a RC Slab Subjected to Blast: A Coupled Eulerian-Lagrangian Approach. IOP Conf. Ser. Mater. Sci. Eng. 2019, 471, 052036. [Google Scholar] [CrossRef]
- Getting Started with ABAQUS/Explicit: Keywords Version (v6.6). Wustl.edu. 2023. Available online: https://classes.engineering.wustl.edu/2009/spring/mase5513/abaqus/docs/v6.6/books/gsx/default.htm?startat=ch06s02.html (accessed on 1 February 2023).
- AMANN. Technical Support Beyrouth; AMANN: Beirut, Lebanon, 2020. [Google Scholar]
- Guo, K.; Zhou, C.; Meng, L.; Zhang, X. Seismic vulnerability assessment of reinforced concrete silo considering granular material-structure interaction. Struct. Des. Tall Spec. Build. 2016, 25, 1011–1030. [Google Scholar] [CrossRef]



























| Rebar Diameter in mm | Average Yield Strength (MPa) of Steel Rebars from Silos Prior to Rehabilitation Works (2000–2002) | Average Yield Strength (MPa) of Steel Rebars from Silos after Rehabilitation Works (2000–2002) |
|---|---|---|
| 10 | 407 | 522 |
| 12 | 505 | 447 |
| 14 | 455 | 464 |
| Properties | First Layer (0–2 m) | Second Deep Layer (2–15 m) |
|---|---|---|
| USCS Classification | SP—Poorly graded sand with gravel | SP—Poorly graded sand |
| Specific Gravity | 2.75 | 2.55 |
| Wet Unit Weight (kN/m3) | 17.3 | 18.85 |
| Angle of friction Φ (°) | 37 | 36 |
| Dilation Angle ψ (°) | 7 | 6 |
| Degree of Saturation (%) | 50.4 | 100 |
| Factors | Symbol | Concrete of Original Silos | Concrete of Rehabilitated Silos | Concrete of Raft Foundation and Piles |
|---|---|---|---|---|
| Elastic Modulus (MPa) | E | 19,467 | 22,800 | 21,538 |
| Poisson’s ratio | υ | 0.2 | 0.2 | 0.2 |
| Density (kg/m3) | ρ | 2400 | 2400 | 2400 |
| Compressive strength (MPa) | F′c | 15.8 | 23.7 | 21 |
| Peak Compressive strain (mm/m) | ac | 1.06 | 1.13 | 1.1 |
| Tensile Strength (MPa) | ft | 3 | 3 | 3 |
| Strain rate (s−1) | 0.24–4 | 0.24–4 | 0.24–4 | |
| Dilation angle (°) | ψ | 36 | 36 | 36 |
| Eccentricity | ɛ | 0.1 | 0.1 | 0.1 |
| Bi-axial to Uni-axial strength ratio | fb0/ft0 | 1.16 | 1.16 | 1.16 |
| Second stress invariant ratio | K | 0.67 | 0.67 | 0.67 |
| Viscosity parameter | μ | 0 | 0 | 0 |
| Parameter | Value | Units |
|---|---|---|
| Mass Density | 1630 | kg/m3 |
| Detonation Wave Speed | 6930 | m/s |
| A | 3.738 × 1011 | Pa |
| B | 3.747 × 109 | Pa |
| R1 | 4.15 | - |
| R2 | 0.9 | - |
| ω | 0.35 | - |
| Specific Energy | 3.68 × 106 | J/kg |
| Ambient Pressure | 101,325 | N/m2 |
| Specific Gas Constant | - | J/kg·K |
| Specific Heat | - | J/kg·K |
| Viscosity | - | kg/m·s |
| Parameters | Values | Units |
|---|---|---|
| Mass Density | 1.293 | kg/m3 |
| Ambient Pressure | 101,325 | N/m2 |
| Specific Gas Constant | 286.9 | J/kg·K |
| Specific Heat | 717 | J/kg·K |
| Viscosity | 1.82 × 105 | kg/m·s |
| Raft | Piles (14 m) | Silos | ||||
|---|---|---|---|---|---|---|
| Mesh Size (m) | Maximum Vertical Displacement (cm) | Mesh Size (m) | Maximum Stress (N/m2) | Maximum Lateral Displacement (cm) | Mesh Size (m) | Damage Level |
| 3 | −1.75 × 10−2 | 3 m | 1.19 × 106 | 32 | 3 | Part of the 1st row + Extension. The last silo in all rows is destroyed |
| 1 | −1.42 | 1.4 | 2.09 × 108 | 38 | 1.5 | First two rows of silos + last two silos in 3rd row. The third row exhibited damages in its internal face |
| 0.8 | −1.425 | 0.4 | 2.10 × 108 | 38.1 | 1 | First two rows of silos + last two silos in 3rd row. The third row exhibited damages in its internal face |
| Structural Damage State | Description of Damage | Drift Ratio |
|---|---|---|
| None or slight damage | No or slight damage to the RC silo. | 0.001074 |
| Moderate damage | Cracks of RC silo shell can be seen remarkably; the stored materials do not contribute to developments of existing cracks. | 0.003265 |
| Severe damage | The stored materials contribute to the development of cracks of the silo shell; a sudden collapse of silo structure may occur. | 0.005571 |
| Total damage | Partial or complete collapse of the silo occurs. | 0.008000 |
Disclaimer/Publisher’s Note: The statements, opinions and data contained in all publications are solely those of the individual author(s) and contributor(s) and not of MDPI and/or the editor(s). MDPI and/or the editor(s) disclaim responsibility for any injury to people or property resulting from any ideas, methods, instructions or products referred to in the content. |
© 2023 by the authors. Licensee MDPI, Basel, Switzerland. This article is an open access article distributed under the terms and conditions of the Creative Commons Attribution (CC BY) license (https://creativecommons.org/licenses/by/4.0/).
Share and Cite
Jahami, A.; Halawi, J.; Temsah, Y.; Jaber, L. Assessment of Soil–Structure Interaction Effects on the Beirut Port Silos Due to the 4 August 2020 Explosion: A Coupled Eulerian–Lagrangian Approach. Infrastructures 2023, 8, 147. https://doi.org/10.3390/infrastructures8100147
Jahami A, Halawi J, Temsah Y, Jaber L. Assessment of Soil–Structure Interaction Effects on the Beirut Port Silos Due to the 4 August 2020 Explosion: A Coupled Eulerian–Lagrangian Approach. Infrastructures. 2023; 8(10):147. https://doi.org/10.3390/infrastructures8100147
Chicago/Turabian StyleJahami, Ali, Jana Halawi, Yehya Temsah, and Lina Jaber. 2023. "Assessment of Soil–Structure Interaction Effects on the Beirut Port Silos Due to the 4 August 2020 Explosion: A Coupled Eulerian–Lagrangian Approach" Infrastructures 8, no. 10: 147. https://doi.org/10.3390/infrastructures8100147
APA StyleJahami, A., Halawi, J., Temsah, Y., & Jaber, L. (2023). Assessment of Soil–Structure Interaction Effects on the Beirut Port Silos Due to the 4 August 2020 Explosion: A Coupled Eulerian–Lagrangian Approach. Infrastructures, 8(10), 147. https://doi.org/10.3390/infrastructures8100147

